Portfolio Íria Leite Roriz
 
Íria Leite Roriz Master on running at Instituto Superior Técnico (‘The body as a generator of spaces’) Architecture & Planning Portugal Summary Though not having professional experience in the current study area so far, took a great range of courses related to architecture, communication and performing arts. Little job experience having tried out some non-related areas in school brake.  Specialties Space and movement, Urbanism, Sustainability contacts | other projetcs | architecture projects |   drawing   |  info
desenho o desenho tem de fluir no papel como a bailarina no palco, trata-se de uma simbiose entre poética e revelação de quem segura o material riscador, que acaba (ou começa) na apoteose do encontro de uma imagem em 2d que nos faz sentir coisas, contar histórias ou que simplesmente nos deixa apaixonados. é essa a capacidade do arquitecto, arrebatar, transmitir ideias, novos sentimentos, através da expressão da linha, da dureza do traço, da intensidade da cor. é esta a minha forma de expressão. como forma de expressão contacts | other projetcs | architecture projects |  drawing  | info
contacts | other projetcs | architecture projects |  drawing  | info
contacts | other projetcs | architecture projects |  drawing  | info
a zona de habitar fica como elemento de transição entre a cidade do betão e do ferro e o jardim repleto de árvores e linhas de água. aparece-nos assim, um espaço cheio de entradas de luz, envolto em natureza mas lançando o grito “quero estar na cidade”.  a altura dos planos verticais é adaptada ao desnível do terreno e os planos superiores dos espaços descrevem com eles uma espiral, conseguindo assim uma ideia de movimento e dinamismo, como um condimento com duas especiarias da própria cidade. (IST | 2004/05 | 1º ano | 2º semestre | docente arq. Francisco T. Bastos)   contacts | other projetcs |  architecture projects  |   drawing   | info zona de habitar
contacts | other projetcs |  architecture projects  |   drawing   | info zona de habitar
a casa ganha corpo em 2 volumes distintos que se abrem em leque acompanhando o movimento natural do declive do terreno. toda a casa está virada o mais possível a sul, procurando o sol como fonte de iluminação natural e interacção com a natureza. apesar dos grandes envidraçados a casa é protegida visualmente do exterior pela fileira de árvores a sul. (IST | 2006/07 | 3º ano | 1º semestre | docente arq. J. Pedro Falcão)   contacts | other projetcs |  architecture projects  |   drawing   | info herdade no barrocal
contacts | other projetcs |  architecture projects  |   drawing   | info herdade do barrocal
contacts | other projetcs |  architecture projects  |   drawing   | info herdade do barrocal
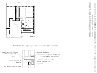
a partir do conceito da importância do frame negro em cinema (é o frame negro a intercalar as imagens da película que cria a ilusão de movimento, quando esta é projectada), quis enaltecer a baixa pelos seus vazios, e não só desimpedir os saguões como permitir o deambular em torno deles para os apreciar, vivenciar. para que estes vazios na baixa podessem ser, também eles, criação de movimento, acontecimento.   assim, o acesso aos fogos é feito a partir do interior do quarteirão, acedendo, para tal, ao saguão que possibilita o acesso aos tabuleiros de distribuição por piso através de escadas ou elevadores. a divisão de espaço e orientação das divisões pretende potenciar a utilização da luz e dinamizar a forma de utilização e circulação no espaço, tentando inspirar os edifícios envolventes necessitados de intervenção.  (IST | 2006/07 | 3º ano | 2º semestre | docente arq. J. Pedro Falcão)   contacts | other projetcs |  architecture projects  |   drawing   | info requalificação da baixa ed. na rua de santa justa
contacts | other projetcs |  architecture projects  |   drawing   | info requalificação da baixa ed. na rua de santa justa
contacts | other projetcs |  architecture projects  |   drawing   | info requalificação da baixa ed. na rua de santa justa
criação de estacionamento automóvel no lote escolhido, com o objectivo de rentabilizar o espaço até ao momento de construção de uma escola de artes perfomativas, programa efectivo para o espaço em causa.a zona de projecto situa-se em alcântara, lisboa, na área de intervenção de alcântara xxi. o lote situa-se em frente ao futuro projecto de jean nouvel, entre as ruas vieira da silva, av. 24 de julho, rua do arco a alcântara e tv. do baluarte. é desenvolvida uma estrutura de apoio ao parque que cria zonas de sombra e faz a transição entre as várias cotas existentes delimitando os vários tipos de lugares e espaços existentes. (IST | 2007/08 | 4º ano | 1º semestre | docente arq. Ricardo Bak   Gordon)   contacts | other projetcs |  architecture projects  |   drawing   | info estacionamento provisório projecto para alcântara xxi
contacts | other projetcs |  architecture projects  |   drawing   | info requalificação da baixa ed. na rua de santa justa
ergue-se o edifício negro sobre uma extensão branca e personifica o conceito do projecto em perfil, exibindo os seus corpos harmoniozamente entrelaçados. o projecto pretende ser discreto no toque com o burgo e afirmado na relação com a 24 de julho. assim, a escola superior de artes performativas abre-se à cidade apressada com uma praça elevada a cerca de 1m da cota da av. 24 de julho. a entrada no edifício faz-se por um dos volumes intermédios onde existe a portaria e recepção e a partir do qual se desenvolve a circulação para os restantes volumes. este espaço tem ainda zona de bengaleiro de apoio aos auditórios em dia de espectáculo. os volumes estão, então, seccionados por função e separados hierarquicamente no que se refere ao uso dos espaços ao nível do público | privado. as circulações processam-se em espaços diferentes e destinados a servir os espaços adjacentes. entre corredores há ligações pontuais, por escadas, caso se trate de uma ligação em altura, ou por plataforma (com eventual inclinação), no caso de se tratar de ligações horizontais. (IST | 2007/08 | 4º ano | 2º semestre | docente arq. Ricardo Bak Gordon)   contacts | other projetcs |  architecture projects  |   drawing   | info escola sup. de artes perfor. projecto para alcântara xxi
contacts | other projetcs |  architecture projects  |   drawing   | info estacionamento provisório projecto para alcântara xxi
projecto EsCOLAR surge no âmbito da problemática actual que se prendia com a reabilitação e sustentabilidade das escolas em território nacional, desenvolvido sob um orçamento limitado pelo estado. o projecto consta na instalação de equipamentos e instalações provisórias, durante o período de 1 ano lectivo (duração das obras de intervenção no espaço de uma escola), que possam adaptar-se aos espaços disponíveis, e que sirvam as necessidades dos seus utilizadores. o título do projecto pretende ir ao encontro do público alvo, sugerindo uma vontade ecológica, associada à escola como lar, enquanto Terra, ou seja, que respeita a natureza reutilizando e tornando os meios mais eficientes. palavras-chave: Amigo do ambiente, envolvimento com a população escolar, baixo custo. são utilizados contentores tratados acústica e termicamente que se dispõem fisicamente consoante as necessidades da comunidade escolar, podem criar pátios no seu interior, zonas privadas, extensões, etc. (IST | 2007/08 | 4º ano | 2º semestre | docente arq. Manuel Correia Guedes)   contacts |  other projetcs  | architecture projects |   drawing   | info projecto EsCOLAR reabilitação e sustentabilidade
projecto EsCOLAR reabilitação e sustentabilidade contacts |  other projetcs  | architecture projects |   drawing   | info
projecto EsCOLAR reabilitação e sustentabilidade contacts |  other projetcs  | architecture projects |   drawing   | info
projecto EsCOLAR reabilitação e sustentabilidade contacts |  other projetcs  | architecture projects |   drawing   | info
Íria Leite Roriz http://pt.linkedin.com/in/iriaroriz http://iriaroriz.wordpress.com iria.roriz @ gmail.com contacts  | other projetcs | architecture projects |   drawing   | info

Portfolio

  • 1.
  • 2.
  • 3.
    Íria Leite RorizMaster on running at Instituto Superior Técnico (‘The body as a generator of spaces’) Architecture & Planning Portugal Summary Though not having professional experience in the current study area so far, took a great range of courses related to architecture, communication and performing arts. Little job experience having tried out some non-related areas in school brake. Specialties Space and movement, Urbanism, Sustainability contacts | other projetcs | architecture projects | drawing | info
  • 4.
    desenho o desenhotem de fluir no papel como a bailarina no palco, trata-se de uma simbiose entre poética e revelação de quem segura o material riscador, que acaba (ou começa) na apoteose do encontro de uma imagem em 2d que nos faz sentir coisas, contar histórias ou que simplesmente nos deixa apaixonados. é essa a capacidade do arquitecto, arrebatar, transmitir ideias, novos sentimentos, através da expressão da linha, da dureza do traço, da intensidade da cor. é esta a minha forma de expressão. como forma de expressão contacts | other projetcs | architecture projects | drawing | info
  • 5.
    contacts | otherprojetcs | architecture projects | drawing | info
  • 6.
    contacts | otherprojetcs | architecture projects | drawing | info
  • 7.
    a zona dehabitar fica como elemento de transição entre a cidade do betão e do ferro e o jardim repleto de árvores e linhas de água. aparece-nos assim, um espaço cheio de entradas de luz, envolto em natureza mas lançando o grito “quero estar na cidade”. a altura dos planos verticais é adaptada ao desnível do terreno e os planos superiores dos espaços descrevem com eles uma espiral, conseguindo assim uma ideia de movimento e dinamismo, como um condimento com duas especiarias da própria cidade. (IST | 2004/05 | 1º ano | 2º semestre | docente arq. Francisco T. Bastos) contacts | other projetcs | architecture projects | drawing | info zona de habitar
  • 8.
    contacts | otherprojetcs | architecture projects | drawing | info zona de habitar
  • 9.
    a casa ganhacorpo em 2 volumes distintos que se abrem em leque acompanhando o movimento natural do declive do terreno. toda a casa está virada o mais possível a sul, procurando o sol como fonte de iluminação natural e interacção com a natureza. apesar dos grandes envidraçados a casa é protegida visualmente do exterior pela fileira de árvores a sul. (IST | 2006/07 | 3º ano | 1º semestre | docente arq. J. Pedro Falcão) contacts | other projetcs | architecture projects | drawing | info herdade no barrocal
  • 10.
    contacts | otherprojetcs | architecture projects | drawing | info herdade do barrocal
  • 11.
    contacts | otherprojetcs | architecture projects | drawing | info herdade do barrocal
  • 12.
    a partir doconceito da importância do frame negro em cinema (é o frame negro a intercalar as imagens da película que cria a ilusão de movimento, quando esta é projectada), quis enaltecer a baixa pelos seus vazios, e não só desimpedir os saguões como permitir o deambular em torno deles para os apreciar, vivenciar. para que estes vazios na baixa podessem ser, também eles, criação de movimento, acontecimento. assim, o acesso aos fogos é feito a partir do interior do quarteirão, acedendo, para tal, ao saguão que possibilita o acesso aos tabuleiros de distribuição por piso através de escadas ou elevadores. a divisão de espaço e orientação das divisões pretende potenciar a utilização da luz e dinamizar a forma de utilização e circulação no espaço, tentando inspirar os edifícios envolventes necessitados de intervenção. (IST | 2006/07 | 3º ano | 2º semestre | docente arq. J. Pedro Falcão) contacts | other projetcs | architecture projects | drawing | info requalificação da baixa ed. na rua de santa justa
  • 13.
    contacts | otherprojetcs | architecture projects | drawing | info requalificação da baixa ed. na rua de santa justa
  • 14.
    contacts | otherprojetcs | architecture projects | drawing | info requalificação da baixa ed. na rua de santa justa
  • 15.
    criação de estacionamentoautomóvel no lote escolhido, com o objectivo de rentabilizar o espaço até ao momento de construção de uma escola de artes perfomativas, programa efectivo para o espaço em causa.a zona de projecto situa-se em alcântara, lisboa, na área de intervenção de alcântara xxi. o lote situa-se em frente ao futuro projecto de jean nouvel, entre as ruas vieira da silva, av. 24 de julho, rua do arco a alcântara e tv. do baluarte. é desenvolvida uma estrutura de apoio ao parque que cria zonas de sombra e faz a transição entre as várias cotas existentes delimitando os vários tipos de lugares e espaços existentes. (IST | 2007/08 | 4º ano | 1º semestre | docente arq. Ricardo Bak Gordon) contacts | other projetcs | architecture projects | drawing | info estacionamento provisório projecto para alcântara xxi
  • 16.
    contacts | otherprojetcs | architecture projects | drawing | info requalificação da baixa ed. na rua de santa justa
  • 17.
    ergue-se o edifícionegro sobre uma extensão branca e personifica o conceito do projecto em perfil, exibindo os seus corpos harmoniozamente entrelaçados. o projecto pretende ser discreto no toque com o burgo e afirmado na relação com a 24 de julho. assim, a escola superior de artes performativas abre-se à cidade apressada com uma praça elevada a cerca de 1m da cota da av. 24 de julho. a entrada no edifício faz-se por um dos volumes intermédios onde existe a portaria e recepção e a partir do qual se desenvolve a circulação para os restantes volumes. este espaço tem ainda zona de bengaleiro de apoio aos auditórios em dia de espectáculo. os volumes estão, então, seccionados por função e separados hierarquicamente no que se refere ao uso dos espaços ao nível do público | privado. as circulações processam-se em espaços diferentes e destinados a servir os espaços adjacentes. entre corredores há ligações pontuais, por escadas, caso se trate de uma ligação em altura, ou por plataforma (com eventual inclinação), no caso de se tratar de ligações horizontais. (IST | 2007/08 | 4º ano | 2º semestre | docente arq. Ricardo Bak Gordon) contacts | other projetcs | architecture projects | drawing | info escola sup. de artes perfor. projecto para alcântara xxi
  • 18.
    contacts | otherprojetcs | architecture projects | drawing | info estacionamento provisório projecto para alcântara xxi
  • 19.
    projecto EsCOLAR surgeno âmbito da problemática actual que se prendia com a reabilitação e sustentabilidade das escolas em território nacional, desenvolvido sob um orçamento limitado pelo estado. o projecto consta na instalação de equipamentos e instalações provisórias, durante o período de 1 ano lectivo (duração das obras de intervenção no espaço de uma escola), que possam adaptar-se aos espaços disponíveis, e que sirvam as necessidades dos seus utilizadores. o título do projecto pretende ir ao encontro do público alvo, sugerindo uma vontade ecológica, associada à escola como lar, enquanto Terra, ou seja, que respeita a natureza reutilizando e tornando os meios mais eficientes. palavras-chave: Amigo do ambiente, envolvimento com a população escolar, baixo custo. são utilizados contentores tratados acústica e termicamente que se dispõem fisicamente consoante as necessidades da comunidade escolar, podem criar pátios no seu interior, zonas privadas, extensões, etc. (IST | 2007/08 | 4º ano | 2º semestre | docente arq. Manuel Correia Guedes) contacts | other projetcs | architecture projects | drawing | info projecto EsCOLAR reabilitação e sustentabilidade
  • 20.
    projecto EsCOLAR reabilitaçãoe sustentabilidade contacts | other projetcs | architecture projects | drawing | info
  • 21.
    projecto EsCOLAR reabilitaçãoe sustentabilidade contacts | other projetcs | architecture projects | drawing | info
  • 22.
    projecto EsCOLAR reabilitaçãoe sustentabilidade contacts | other projetcs | architecture projects | drawing | info
  • 23.
    Íria Leite Rorizhttp://pt.linkedin.com/in/iriaroriz http://iriaroriz.wordpress.com iria.roriz @ gmail.com contacts | other projetcs | architecture projects | drawing | info