PROJETO DE INSTALAÇÕES DE AR CONDICIONADO
NORMAS TÉCNICAS Normas NBR 6401- Instalações centrais de ar condicionado para conforto – Parâmetros básicos de projeto. Substituída pelas normas abaixo: ABNT NBR 16401-1 Parte 1: Instalações de Ar Condicionado - Sistemas Centrais e Unitários. Projeto das Instalações. Estabelece parâmetros básicos e requisitos mínimos de projeto para sistemas de ar condicionado centrais e unitários. Utilizado também para instalações especiais como salas limpas, centros cirúrgicos, laboratórios, etc.  ABNT NBR 16401-2 Parte 2: Instalações de Ar Condicionado - Sistemas Centrais e Unitários. Parâmetros de Conforto Térmico. Especifica os parâmetros do ambiente interno. Trata da satisfação térmica média de 80% das pessoas em relação ao conforto térmico em áreas providas de ar condicionado. ABNT NBR 16401-3 Parte 3: Instalações de Ar Condicionado - Sistemas Centrais e Unitários. Qualidade do Ar Interior. Especifica os parâmetros básicos e os requisitos mínimos para sistemas de ar condicionado, como vazões mínimas, níveis mínimos de filtragem de ar, requisitos técnicos e componentes relativos a qualidade do ar. NBR 6675 - Instalação de condicionadores de ar de uso doméstico (tipo monobloco ou modular)
O que é: AR CONDICIONADO  é um equipamento destinado a climatizar o ar em um recinto fechado, mantendo sua temperatura e umidade controladas.
Objetivo Processos e equipamentos mecânicos para: Resfriar ou Aquecer; Desumidificar ou Umidificar; Distribuir; Filtrar; e Renovar. o ar de um ambiente seja para: conforto térmico; controle de um processo produtivo; preservação de produtos. Existem quatro categorias básicas de refrigeração mecânica: ar condicionado para conforto; refrigeração ar condicionado para processo refrigeração de baixa temperatura
Erro comum quando pensamos em ar condicionado para conforto é enfocarmos apenas o aspecto refrigeração. Na verdade é muito mais do que isso. O ar condicionado completo é proporcionado por um sistema que pode aquecer, umidificar, esfriar, ventilar, filtrar e circular o ar. A maioria dos equipamentos que existem executam apenas um trabalho parcial.
Exemplos: Tecelagem: umidade elevada Armazenamento de Papel: baixa umidade Fábrica de sorvetes: baixíssima temperatura CPD: baixas temperaturas
Parâmetros Ambientais Temperatura do ar-> Termostatos; Umidade do ar -> Umidostatos; Velocidade do ar -> Difusores e “Dampers”; Pureza do ar -> Limpeza, Filtros e Renovação; Nível de Ruído -> Difusores, Atenuadores, etc. Satisfação e Saúde dos Usuários
Princípio de Funcionamento É insuflado, no ambiente, ar em condições de temperatura, umidade e pureza em condições diferentes daquelas que se quer manter. Resfriamento: Para se remover o calor gerado no interior dos ambientes, somado àquele que penetra pela envoltória, é insuflado ar de 10°C a 12°C mais frio que a temperatura desejada. -> Conceito de “diluir” o calor gerado.
Componentes do ar-condicionado Evaporador:  Rouba o calor do ambiente pela evaporação de um fluído a baixas pressões; Compressor:  Fornece energia mecânica para o sistema funcionar e eleva a pressão do gás para permitir sua condensação; Condensador:  Rejeita, para o exterior, o calor retirado do ambiente condicionado, condensando o gás (volta para o estado líquido); Válvula de expansão:  Reduz a pressão do líquido, deixando-o no estado adequado para recomeçar o ciclo, ou seja, ser evaporado.
ETAPAS DO PROJETO Levantamento de dados e Realização de esboço Cálculo de carga térmica Escolha de equipamentos Escolha da distribuição de ar Projeto de dutos Escolha de acessórios - retorno, bocas de insuflamento, tomadas de ar externo, etc Memorial descritivo
LEVANTAMENTO DE DADOS Fazer esboço da obra Medir paredes, janelas, portas Contar equipamentos, verificar consumo Verificar tipo e número luminárias Observar orientação solar Proteção nas janelas Tipo de tijolo e de cobertura Quantidade de pessoas por sala Calculo de iluminação por sala ex:360 W iluminação fluoresc. por sala
ESTIMATIVA CARGA TÉRMICA Condução pelas paredes, vidros, cobertura e piso; calor latente e sensível pelas pessoas calor latente e sensível do ar externo equipamentos iluminação insolação solar
CÁLCULO DE CARGA TÉRMICA A grande maioria das pessoas ao comprar um ar condicionado não sabe exatamente qual a capacidade em BTUS que ele deve ter para refrigerar o local em que ele vai ser instalado. Um número ainda menor sabe que isso pode ser determinado pelo cálculo de carga térmica. Os sites de fabricantes de aparelhos de ar condicionado colocam "calculadoras de ar condicionado" ou "calculadoras de carga térmica" que geram resultados bastante imprecisos. Descobrir qual o ar condicionado ideal não é uma arte e nem um exercício de adivinhação. É uma questão de cálculo (carga térmica) e, por sinal, bem fácil de ser feito. A determinação de qual ar condicionado é adequado para um ambiente doméstico deve ser feita com o uso da norma ABNT NBR 5858.
FATORES QUE DETERMINAM A ESCOLHA DO SISTEMA DE AR CONDICIONADO Existem vários fatores que determinam a escolha de um determinado sistema de ar condicionado. O tamanho do sistema e posição da casa de máquinas ou, de forma mais geral, a localização do espaço disponível para instalação dos equipamentos de ar condicionado são os primeiros fatores a serem observados. A quantidade de ambientes que deverão ter controle individual de temperatura também é fator importante na escolha de um sistema podendo levar a escolha de um sistema de água gelada ou não.
Tipos de sistemas e algumas de suas características principais que influenciariam na sua escolha: Condicionador  individual (janela ou mini split) - Pequenos ambientes Split - Ambientes com limitações relativas a parede externa e a casa de máquinas. Self contained a ar - Ambientes maiores - O equipamento fica também numa parede externa, mas o evaporador é dotado de um ventilador de maior pressão estática que permite distribuir o ar condicionado através de dutos. Self contained a água - Vários ambientes maiores Resfriadores de líquido (Chiller) com climatizadores (Fan-Coils). - água gelada - Vários ambientes maiores - expansão indireta.
Conversão de Unidades: 1 TR = 12.000 BTU/h 1 TR = 3.517 W 1 TR = 3.025 kcal/h 1000 BTU/h = 293 W 1 kcal/h = 1,163 W
CRITÉRIOS PARA ESCOLHA DO SISTEMA Flexibilidade  Qualidade do ar Custo inicial Custo de operação Estética Facilidade de manutenção Eficiência energética  Capacidade Total (TR ou Btu/h)
Condicionador de Ar de Janela
Equipamentos de Janela Equipamento de baixo custo; Instalação fácil; Um ponto de energia elétrica; Abertura na parede/janela voltada para o exterior; Suporte, em geral metálico; Adequado para condicionamento de recintos individuais ou ambientes coletivos de pequeno porte. Rendimento energético baixo.
Equipamentos de janela - Aspectos relacionados à instalação Localização do aparelho no recinto. Descarga do ar de insuflamento. Espaço para circulação de ar na entrada e saída do condensador. Localização do ponto de força. Instalação de dreno.
Equipamentos de janela - Aspectos relacionados à instalação O condicionador deverá ser instalado com altura em relação ao piso entre 1,50 e 1,80m.
Equipamentos de janela - Aspectos relacionados à instalação Instale sempre o condicionador insuflando na dimensão maior do recinto
Equipamentos de janela - Aspectos relacionados à instalação Instale o condicionador de ar, afastado 0,50m, nas laterais
Equipamentos de janela - Aspectos relacionados à instalação Evite qualquer tipo de obstrução no insuflamento do ar
Equipamentos de janela - Aspectos relacionados à instalação Evite curto circuito de ar entre os condicionadores
Equipamentos de janela - Aspectos relacionados à instalação Deverá ser prevista distância mínima de 0,50m nas laterais e parte posterior do condicionador, para resfriamento do condensador
Equipamentos de janela - Aspectos relacionados à instalação O ponto de força deverá ser posicionado na lateral esquerda ou direita, nunca sob o condicionador
Erros de instalações
Erros de instalações
O condicionador deve ser instalado com uma inclinação para a parte posterior ± 10% do comprimento do aparelho Deve-se prever dreno para escoamento do condensado
Dreno da água condensada Uma boa montagem de uma instalação de ar condicionado deve prever formas de coleta da água condensada, evitando que ela pingue sobre transeuntes ou se acumule na edificação.
Dreno da água condensada No caso de edifícios, deve-se prever um ramal principal para interligar os diversos condicionadores
Sistema Split
Sistema Mini-Split
Sistema Mini-Split
Sistema Mini-Split Unidade evaporadora
Sistema Mini-Split
Sistema Mini-Split Unidade condensadora
Sistema Mini-Split
Sistema Multi-Split
Self Contained
CASA DE MÁQUINAS Self-contained com condensação a ar
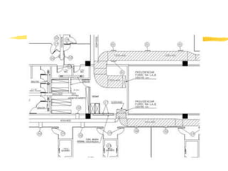
TOMADA DE AR EXTERNO Self-contained com condensação a ar
DETALHES COMUNS Self-contained com condensação a ar
DESENHO DO SISTEMA Self-contained com condensação a ar
Self-contained com condensação a ar
Chiller
ESQUEMA ELÉTRICO
MEMORIAL DESCRITIVO Condições do projeto temperatura adotada, ex.:25 graus C dados da obra descrição do projeto desenhos  anexos tabelas utilizadas
 

Ar condicionado

  • 1.
    PROJETO DE INSTALAÇÕESDE AR CONDICIONADO
  • 2.
    NORMAS TÉCNICAS NormasNBR 6401- Instalações centrais de ar condicionado para conforto – Parâmetros básicos de projeto. Substituída pelas normas abaixo: ABNT NBR 16401-1 Parte 1: Instalações de Ar Condicionado - Sistemas Centrais e Unitários. Projeto das Instalações. Estabelece parâmetros básicos e requisitos mínimos de projeto para sistemas de ar condicionado centrais e unitários. Utilizado também para instalações especiais como salas limpas, centros cirúrgicos, laboratórios, etc. ABNT NBR 16401-2 Parte 2: Instalações de Ar Condicionado - Sistemas Centrais e Unitários. Parâmetros de Conforto Térmico. Especifica os parâmetros do ambiente interno. Trata da satisfação térmica média de 80% das pessoas em relação ao conforto térmico em áreas providas de ar condicionado. ABNT NBR 16401-3 Parte 3: Instalações de Ar Condicionado - Sistemas Centrais e Unitários. Qualidade do Ar Interior. Especifica os parâmetros básicos e os requisitos mínimos para sistemas de ar condicionado, como vazões mínimas, níveis mínimos de filtragem de ar, requisitos técnicos e componentes relativos a qualidade do ar. NBR 6675 - Instalação de condicionadores de ar de uso doméstico (tipo monobloco ou modular)
  • 3.
    O que é:AR CONDICIONADO é um equipamento destinado a climatizar o ar em um recinto fechado, mantendo sua temperatura e umidade controladas.
  • 4.
    Objetivo Processos eequipamentos mecânicos para: Resfriar ou Aquecer; Desumidificar ou Umidificar; Distribuir; Filtrar; e Renovar. o ar de um ambiente seja para: conforto térmico; controle de um processo produtivo; preservação de produtos. Existem quatro categorias básicas de refrigeração mecânica: ar condicionado para conforto; refrigeração ar condicionado para processo refrigeração de baixa temperatura
  • 5.
    Erro comum quandopensamos em ar condicionado para conforto é enfocarmos apenas o aspecto refrigeração. Na verdade é muito mais do que isso. O ar condicionado completo é proporcionado por um sistema que pode aquecer, umidificar, esfriar, ventilar, filtrar e circular o ar. A maioria dos equipamentos que existem executam apenas um trabalho parcial.
  • 6.
    Exemplos: Tecelagem: umidadeelevada Armazenamento de Papel: baixa umidade Fábrica de sorvetes: baixíssima temperatura CPD: baixas temperaturas
  • 7.
    Parâmetros Ambientais Temperaturado ar-> Termostatos; Umidade do ar -> Umidostatos; Velocidade do ar -> Difusores e “Dampers”; Pureza do ar -> Limpeza, Filtros e Renovação; Nível de Ruído -> Difusores, Atenuadores, etc. Satisfação e Saúde dos Usuários
  • 8.
    Princípio de FuncionamentoÉ insuflado, no ambiente, ar em condições de temperatura, umidade e pureza em condições diferentes daquelas que se quer manter. Resfriamento: Para se remover o calor gerado no interior dos ambientes, somado àquele que penetra pela envoltória, é insuflado ar de 10°C a 12°C mais frio que a temperatura desejada. -> Conceito de “diluir” o calor gerado.
  • 9.
    Componentes do ar-condicionadoEvaporador: Rouba o calor do ambiente pela evaporação de um fluído a baixas pressões; Compressor: Fornece energia mecânica para o sistema funcionar e eleva a pressão do gás para permitir sua condensação; Condensador: Rejeita, para o exterior, o calor retirado do ambiente condicionado, condensando o gás (volta para o estado líquido); Válvula de expansão: Reduz a pressão do líquido, deixando-o no estado adequado para recomeçar o ciclo, ou seja, ser evaporado.
  • 10.
    ETAPAS DO PROJETOLevantamento de dados e Realização de esboço Cálculo de carga térmica Escolha de equipamentos Escolha da distribuição de ar Projeto de dutos Escolha de acessórios - retorno, bocas de insuflamento, tomadas de ar externo, etc Memorial descritivo
  • 11.
    LEVANTAMENTO DE DADOSFazer esboço da obra Medir paredes, janelas, portas Contar equipamentos, verificar consumo Verificar tipo e número luminárias Observar orientação solar Proteção nas janelas Tipo de tijolo e de cobertura Quantidade de pessoas por sala Calculo de iluminação por sala ex:360 W iluminação fluoresc. por sala
  • 12.
    ESTIMATIVA CARGA TÉRMICACondução pelas paredes, vidros, cobertura e piso; calor latente e sensível pelas pessoas calor latente e sensível do ar externo equipamentos iluminação insolação solar
  • 13.
    CÁLCULO DE CARGATÉRMICA A grande maioria das pessoas ao comprar um ar condicionado não sabe exatamente qual a capacidade em BTUS que ele deve ter para refrigerar o local em que ele vai ser instalado. Um número ainda menor sabe que isso pode ser determinado pelo cálculo de carga térmica. Os sites de fabricantes de aparelhos de ar condicionado colocam "calculadoras de ar condicionado" ou "calculadoras de carga térmica" que geram resultados bastante imprecisos. Descobrir qual o ar condicionado ideal não é uma arte e nem um exercício de adivinhação. É uma questão de cálculo (carga térmica) e, por sinal, bem fácil de ser feito. A determinação de qual ar condicionado é adequado para um ambiente doméstico deve ser feita com o uso da norma ABNT NBR 5858.
  • 14.
    FATORES QUE DETERMINAMA ESCOLHA DO SISTEMA DE AR CONDICIONADO Existem vários fatores que determinam a escolha de um determinado sistema de ar condicionado. O tamanho do sistema e posição da casa de máquinas ou, de forma mais geral, a localização do espaço disponível para instalação dos equipamentos de ar condicionado são os primeiros fatores a serem observados. A quantidade de ambientes que deverão ter controle individual de temperatura também é fator importante na escolha de um sistema podendo levar a escolha de um sistema de água gelada ou não.
  • 15.
    Tipos de sistemase algumas de suas características principais que influenciariam na sua escolha: Condicionador individual (janela ou mini split) - Pequenos ambientes Split - Ambientes com limitações relativas a parede externa e a casa de máquinas. Self contained a ar - Ambientes maiores - O equipamento fica também numa parede externa, mas o evaporador é dotado de um ventilador de maior pressão estática que permite distribuir o ar condicionado através de dutos. Self contained a água - Vários ambientes maiores Resfriadores de líquido (Chiller) com climatizadores (Fan-Coils). - água gelada - Vários ambientes maiores - expansão indireta.
  • 16.
    Conversão de Unidades:1 TR = 12.000 BTU/h 1 TR = 3.517 W 1 TR = 3.025 kcal/h 1000 BTU/h = 293 W 1 kcal/h = 1,163 W
  • 17.
    CRITÉRIOS PARA ESCOLHADO SISTEMA Flexibilidade Qualidade do ar Custo inicial Custo de operação Estética Facilidade de manutenção Eficiência energética Capacidade Total (TR ou Btu/h)
  • 18.
  • 19.
    Equipamentos de JanelaEquipamento de baixo custo; Instalação fácil; Um ponto de energia elétrica; Abertura na parede/janela voltada para o exterior; Suporte, em geral metálico; Adequado para condicionamento de recintos individuais ou ambientes coletivos de pequeno porte. Rendimento energético baixo.
  • 20.
    Equipamentos de janela- Aspectos relacionados à instalação Localização do aparelho no recinto. Descarga do ar de insuflamento. Espaço para circulação de ar na entrada e saída do condensador. Localização do ponto de força. Instalação de dreno.
  • 21.
    Equipamentos de janela- Aspectos relacionados à instalação O condicionador deverá ser instalado com altura em relação ao piso entre 1,50 e 1,80m.
  • 22.
    Equipamentos de janela- Aspectos relacionados à instalação Instale sempre o condicionador insuflando na dimensão maior do recinto
  • 23.
    Equipamentos de janela- Aspectos relacionados à instalação Instale o condicionador de ar, afastado 0,50m, nas laterais
  • 24.
    Equipamentos de janela- Aspectos relacionados à instalação Evite qualquer tipo de obstrução no insuflamento do ar
  • 25.
    Equipamentos de janela- Aspectos relacionados à instalação Evite curto circuito de ar entre os condicionadores
  • 26.
    Equipamentos de janela- Aspectos relacionados à instalação Deverá ser prevista distância mínima de 0,50m nas laterais e parte posterior do condicionador, para resfriamento do condensador
  • 27.
    Equipamentos de janela- Aspectos relacionados à instalação O ponto de força deverá ser posicionado na lateral esquerda ou direita, nunca sob o condicionador
  • 28.
  • 29.
  • 30.
    O condicionador deveser instalado com uma inclinação para a parte posterior ± 10% do comprimento do aparelho Deve-se prever dreno para escoamento do condensado
  • 31.
    Dreno da águacondensada Uma boa montagem de uma instalação de ar condicionado deve prever formas de coleta da água condensada, evitando que ela pingue sobre transeuntes ou se acumule na edificação.
  • 32.
    Dreno da águacondensada No caso de edifícios, deve-se prever um ramal principal para interligar os diversos condicionadores
  • 33.
  • 34.
  • 35.
  • 36.
  • 37.
  • 38.
  • 39.
  • 40.
  • 41.
  • 42.
    CASA DE MÁQUINASSelf-contained com condensação a ar
  • 43.
    TOMADA DE AREXTERNO Self-contained com condensação a ar
  • 44.
    DETALHES COMUNS Self-containedcom condensação a ar
  • 45.
    DESENHO DO SISTEMASelf-contained com condensação a ar
  • 46.
  • 47.
  • 48.
  • 49.
    MEMORIAL DESCRITIVO Condiçõesdo projeto temperatura adotada, ex.:25 graus C dados da obra descrição do projeto desenhos anexos tabelas utilizadas
  • 50.