Universidade Federal de Uberlândia




Planejamento – Casa Mínima
 API V – Ateliê de Projeto Integrado

                                  Carollyna Bernardo Lemes de Souza
                                  Tamires Nunes de Alcântara Nicolau




               UBERLÂNDIA, 2012
Condicionantes Sócio
     Culturais
• Público Alvo: Famílias com renda mensal entre 3
  e 5 salários mínimos     R$1966,00 – R$3110,00

• Abrangência: - regional: implantação exige
  transporte e comércio        modificação da
  dinâmica urbana
                 - nacional: famílias vindas de outras
  regiões de MG e de SP.

• Perfil Social: Famílias com acesso aos bens de
  consumo; eletrodomésticos, eletrônicos,
  automóvel
• Perfil Econômico:
Segundo a cartilha do programa “Minha casa,
  Minha vida” :

- Não ter recebido subsídio direto ou indireto da
  União.
- Prazo para pagamento: até 30 anos.
- Subsídio para famílias com renda de até R$
  3.100,00
- Valor de avaliação limitado ao teto do FGTS
  para a região (R$ 80 mil     R$170 mil)
• Perfil Cultural:
- Famílias nucleares
- Dinks (casais sem filhos)
- Coabitação
- Mais de um responsável pela renda
Ensino médio completo       Superior incompleto
   Em casa                      Fora de casa

 Refeições e Lazer             Trabalho remunerado
Referências Projetuais
  • Concurso Internacional Living Steel
      para Habitação Sustentável
     Andrade Morettin Arquitetos
• Residência na Barra do Sahy (SP)
  Nitsche Arquitetos Associados
Condicionantes
   Físicas
Localização do Lote
• Localização Imediata
                         Proximidade
                          com a área
                         comercial do
                            bairro


Próximo à via
que dá acesso
  ao centro




                                  Próximo ao
                                     clube
• Localização Regional


         Avenida Getúlio                Avenida João Naves
             Vargas                          de Ávila




                           Avenida Rondon
                              Pacheco
• Zoneamento
• Zona Residencial 2
Zonas Residenciais 2
                                                    ( ZR 2 )

                                        -Habitação Familiar

                                        -Habitação Multifamiliar Horizontal

                                        -Habitação Multifamiliar Vertical

                                        -Habitação de Interesse Social

                                        -Comércio Varejista Local

                                        -Serviço Local

                                        -Equipamento Social e Comunitário
                                        Local

                                        -Indústria de Pequeno Porte


Fonte: Prefeitura de Uberlândia, 2012
• Restrições Municipais




Fonte: Prefeitura de Uberlândia – 2012
    Modificado por: AUTOR, 2012
• Normas de Acessibilidade – NBR 9050
Para sanitários
Para que não percamos
Para dormitórios                              tanto espaço, utilizaremos
                                             algumas áreas de estocagem
                                               como separação entre os
                                             dormitórios , caso julguemos
                                                      necessário




       Fonte: Cartilha de Acessibilidade -
       Prefeitura de Uberlândia - 2011
• Topografia




 Curvas Mestras




                  Curvas Intermediárias
• Análise de Insolação
• Caminho do sol




         10 de abril   22 de junho
22 de dezembro
• Análise de Ventilação



                              Ventos
                          predominantes
                          em Uberlândia
                               (NE)




    N
• Materialidade

 - Steel Frame (Sistema Auto – Portante de Construção)
            Perfis formados a frio, de aço galvanizado.



        Elementos individuais e
            ligados entre si                         Componentes e subsistemas
                                                           (vedações)


                                        Guia




                                  Montante

                                                          Residência construída em Steel Frame
- Vedação



          Paredes
                                                                   Painéis do pavimento
                                                                  térreo – Residência em
                                                                            BH
       Painéis estruturais                Compostas de perfis
       ou auto portantes                    galvanizados -
                                             montantes


                             Fechamento dos
                                 painéis


  Placas cimentícias nas                          Gesso acartonado nas
  paredes externas e em                             paredes internas
     áreas molhadas
- Cobertura


A estrutura da cobertura muito se assemelha à da construção convencional, sendo
substituído o madeiramento por perfis galvanizados




Estrutura da cobertura, composta de steel frame –
                Residência em BH

                                                    Caibros e vigas alinhadas com montante de painél
                                                                         estrutural
- Vantagens do sistema     Steel frame


 -Comprovada resistência do aço

 -Melhor desempenho da estrutura

 -Facilidade de montagem, manuseio e manutenção

 -Flexibilidade no projeto arquitetônico

 -Diminuição dos resíduos (evita o desperdício)
• Partido Adotado
    - Flexibilidade por longos períodos



                Fixação apenas das áreas hidráulicas


    - Residência tipo: se adequa aos diferentes perfis familiares




                                                     Solteiros
                                                      DINKS*
                                                 Famílias nucleares

      - Ampliação: Poderá atender ao aumento de moradores na residência, e não pelo
      perfil familiar.

* Double Income, no Kids
- Estratégias de Sustentabilidade

- Aproveitar ao máximo os recursos naturais: luz e ventilação

- Evitando o uso de luz artificial, ventiladores e equipamentos de ar-condicionado

- Material: auxilia nas estratégias de conforto térmico, além de evitar o desperdício e
possibilitar o seu reuso

- Flexibilidade: facilita a aceitação e integração do morador com a residência,
aumentando sua durabilidade e evitando novas construções
Propostas Projetuais
Projeto criado de acordo
                                      com as normas de
                                        acessibilidade
PROPOSTA 1




                           Modulação de
             Esc - 1:100    1,20x1,20
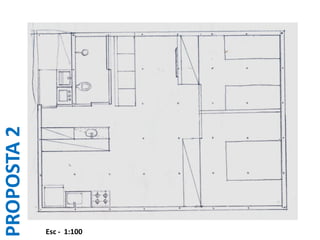
PROPOSTA 2




             Esc - 1:100
Referências
•   ABNT – Associação Brasileira de Normas Técnicas. NBR-9050/04. Disponível em
    www.uberlandia.mg.gov.br. Acesso em: março de 2012.

•   Andrade Morettin Arquitetos. 2º concurso internacional Living Steel de
    habitação  sustentável.     Pernambuco:      2007.     Disponível  em:
    www.andrademorettin.com.br . Acesso em: março de 2012.

•   Caixa Econômica Federal. Cartilha “Minha casa, minha vida”. Brasil:2011.

•   FREITAS, Arlene Maria Sarmanho; CASTRO, Renata Cristina Moraes de. Steel
    Framing: Arquitetura. Rio de Janeiro: IBS/CBCA, 2006.

•   Nitsche Arquitetos.Residência Sahy. São Paulo: 2005. Disponível em:
    www.nitsche.com.br . Acesso em: março de 2012.

•   Prefeitura de Uberlândia. Plano Diretor de Uberlândia. Uberlândia: 2011.
    Disponível em: www.uberlandia.mg.gov.br. Acesso em abril de 2012

Apresentação pdf

  • 1.
    Universidade Federal deUberlândia Planejamento – Casa Mínima API V – Ateliê de Projeto Integrado Carollyna Bernardo Lemes de Souza Tamires Nunes de Alcântara Nicolau UBERLÂNDIA, 2012
  • 2.
  • 3.
    • Público Alvo:Famílias com renda mensal entre 3 e 5 salários mínimos R$1966,00 – R$3110,00 • Abrangência: - regional: implantação exige transporte e comércio modificação da dinâmica urbana - nacional: famílias vindas de outras regiões de MG e de SP. • Perfil Social: Famílias com acesso aos bens de consumo; eletrodomésticos, eletrônicos, automóvel
  • 4.
    • Perfil Econômico: Segundoa cartilha do programa “Minha casa, Minha vida” : - Não ter recebido subsídio direto ou indireto da União. - Prazo para pagamento: até 30 anos. - Subsídio para famílias com renda de até R$ 3.100,00 - Valor de avaliação limitado ao teto do FGTS para a região (R$ 80 mil R$170 mil)
  • 5.
    • Perfil Cultural: -Famílias nucleares - Dinks (casais sem filhos) - Coabitação - Mais de um responsável pela renda Ensino médio completo Superior incompleto Em casa Fora de casa Refeições e Lazer Trabalho remunerado
  • 8.
    Referências Projetuais • Concurso Internacional Living Steel para Habitação Sustentável Andrade Morettin Arquitetos
  • 9.
    • Residência naBarra do Sahy (SP) Nitsche Arquitetos Associados
  • 10.
  • 11.
  • 13.
    • Localização Imediata Proximidade com a área comercial do bairro Próximo à via que dá acesso ao centro Próximo ao clube
  • 14.
    • Localização Regional Avenida Getúlio Avenida João Naves Vargas de Ávila Avenida Rondon Pacheco
  • 15.
  • 16.
  • 17.
    Zonas Residenciais 2 ( ZR 2 ) -Habitação Familiar -Habitação Multifamiliar Horizontal -Habitação Multifamiliar Vertical -Habitação de Interesse Social -Comércio Varejista Local -Serviço Local -Equipamento Social e Comunitário Local -Indústria de Pequeno Porte Fonte: Prefeitura de Uberlândia, 2012
  • 18.
    • Restrições Municipais Fonte:Prefeitura de Uberlândia – 2012 Modificado por: AUTOR, 2012
  • 19.
    • Normas deAcessibilidade – NBR 9050 Para sanitários
  • 20.
    Para que nãopercamos Para dormitórios tanto espaço, utilizaremos algumas áreas de estocagem como separação entre os dormitórios , caso julguemos necessário Fonte: Cartilha de Acessibilidade - Prefeitura de Uberlândia - 2011
  • 21.
    • Topografia CurvasMestras Curvas Intermediárias
  • 22.
    • Análise deInsolação
  • 26.
    • Caminho dosol 10 de abril 22 de junho
  • 27.
  • 28.
    • Análise deVentilação Ventos predominantes em Uberlândia (NE) N
  • 29.
    • Materialidade -Steel Frame (Sistema Auto – Portante de Construção) Perfis formados a frio, de aço galvanizado. Elementos individuais e ligados entre si Componentes e subsistemas (vedações) Guia Montante Residência construída em Steel Frame
  • 31.
    - Vedação Paredes Painéis do pavimento térreo – Residência em BH Painéis estruturais Compostas de perfis ou auto portantes galvanizados - montantes Fechamento dos painéis Placas cimentícias nas Gesso acartonado nas paredes externas e em paredes internas áreas molhadas
  • 32.
    - Cobertura A estruturada cobertura muito se assemelha à da construção convencional, sendo substituído o madeiramento por perfis galvanizados Estrutura da cobertura, composta de steel frame – Residência em BH Caibros e vigas alinhadas com montante de painél estrutural
  • 33.
    - Vantagens dosistema Steel frame -Comprovada resistência do aço -Melhor desempenho da estrutura -Facilidade de montagem, manuseio e manutenção -Flexibilidade no projeto arquitetônico -Diminuição dos resíduos (evita o desperdício)
  • 34.
    • Partido Adotado - Flexibilidade por longos períodos Fixação apenas das áreas hidráulicas - Residência tipo: se adequa aos diferentes perfis familiares Solteiros DINKS* Famílias nucleares - Ampliação: Poderá atender ao aumento de moradores na residência, e não pelo perfil familiar. * Double Income, no Kids
  • 35.
    - Estratégias deSustentabilidade - Aproveitar ao máximo os recursos naturais: luz e ventilação - Evitando o uso de luz artificial, ventiladores e equipamentos de ar-condicionado - Material: auxilia nas estratégias de conforto térmico, além de evitar o desperdício e possibilitar o seu reuso - Flexibilidade: facilita a aceitação e integração do morador com a residência, aumentando sua durabilidade e evitando novas construções
  • 36.
  • 37.
    Projeto criado deacordo com as normas de acessibilidade PROPOSTA 1 Modulação de Esc - 1:100 1,20x1,20
  • 38.
    PROPOSTA 2 Esc - 1:100
  • 39.
    Referências • ABNT – Associação Brasileira de Normas Técnicas. NBR-9050/04. Disponível em www.uberlandia.mg.gov.br. Acesso em: março de 2012. • Andrade Morettin Arquitetos. 2º concurso internacional Living Steel de habitação sustentável. Pernambuco: 2007. Disponível em: www.andrademorettin.com.br . Acesso em: março de 2012. • Caixa Econômica Federal. Cartilha “Minha casa, minha vida”. Brasil:2011. • FREITAS, Arlene Maria Sarmanho; CASTRO, Renata Cristina Moraes de. Steel Framing: Arquitetura. Rio de Janeiro: IBS/CBCA, 2006. • Nitsche Arquitetos.Residência Sahy. São Paulo: 2005. Disponível em: www.nitsche.com.br . Acesso em: março de 2012. • Prefeitura de Uberlândia. Plano Diretor de Uberlândia. Uberlândia: 2011. Disponível em: www.uberlandia.mg.gov.br. Acesso em abril de 2012