PORTIFÓLIO
PROJETOS EXECUTIVOS
PROJETOS INTERIOR
PROJETOS 3D
MAQUETES
GERENTE DE PROJETOS
Arq. Luciano E. Fonseca
LF BUILDING ARQUITETURA
LF BUILDING ARQUITETURA
AUTOR: ARQ. LUCIANO E. FONSECA / CAU: AU 85245-7
INTERIOR DA COZINHA
DATA: 13/09/2015
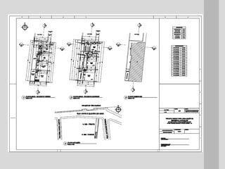
PROJETO CASA BARRA DO PIRAÍ
LF BUILDING ARQUITETURA
PROJETO CASA BARRA DO PIRAÍ
AUTOR: ARQ. LUCIANO E. FONSECA / CAU: AU 85245-7
DATA: 13/09/2015
INTERIOR DA COZINHA
1
COZINHA - PLANTA BAIXA - ARMÁRIOS EM MDF BRANCO E CAIXA DA PIA EM COMPENSADO REVESTIDO COM FORMICA BRANCA. PORTAS E FRENTES DE GAVETAS
EM MDF BRANCO E PUXADOR JAZZ CLASSIC (SUGESTÃO). PAINÉIS 18mm EM MDF CARVALHO . PRATELEIRAS MDF CARVALHO COM ILUMINAÇÃO EMBUTIDA.
PRATELEIRAS DA TORRE EM MDF CARVALHO. GAVETEIROS COM FRENTE EM MDF BRANCO E PUZADORES JAZZ CLASSIC (SUGESTÃO). ARMÁRIOS SUPERIORES EM MDF
CRAVALHO E COM PORTAS EM MDF BRANCO E PUZADOR JAZZ (SUGESTÃO) COM ILUMINAÇÃO EMBUTIDA. PIA EM “L” EM TAMPO DE GRANITO PRETO. DETALHE DE
FAIXA EM MDF TECCA ENTRE O TAMPO DE GRANITO E ARMÁRIOS SUPERIORES.
ILHA DE COCÇÃO COM PORTAS E FRENTES DE GAVETAS EM MDF BRANCO E PUXADOR JAZZ CLASSIC (SUGESTÃO). PAINÉIS LATERIAIS 36mm EM MDF CARVALHO.
PAINÉL DO FUNDO DA ILHA EM MDF TECCA 36mm (SUGESTÃO A SER DEFINIDA). TAMPO DA ILHA DE COCÇÃO EM GRANITO PRETO 35mm. TAMPO DE MESA DA ILHA
EM MDF BRANCO 36mm. PORTAS DE CORRER COM TRILHO EMBUTIDO EM SOBREFORRO ACESSO A SALA (4 FOLHAS) E PORTA DE CORRER TRILHO EMBUTIDO EM
SOBREFORRO COM ACESSO A ÁREA GOURMET (4 FOLHAS) EM VIDRO E ESQUADRIA DE ALUMÍNIO BRANCO. ILUMINAÇÃO EM PENDENTES E EMBUTIDA NO TETO.
LF BUILDING ARQUITETURA
PROJETO CASA BARRA DO PIRAÍ
AUTOR: ARQ. LUCIANO E. FONSECA / CAU: AU 85245-7
DATA: 13/09/2015
INTERIOR DA COZINHA
2
COZINHA - VISTA PAREDE 01 - ARMÁRIOS EM MDF BRANCO E CAIXA DA PIA EM COMPENSADO REVESTIDO COM FORMICA BRANCA. PORTAS E FRENTES DE
GAVETAS EM MDF BRANCO E PUXADOR JAZZ CLASSIC (SUGESTÃO). PAINÉIS 18mm EM MDF CARVALHO . PRATELEIRAS MDF CARVALHO COM ILUMINAÇÃO
EMBUTIDA. PRATELEIRAS DA TORRE EM MDF CARVALHO. GAVETEIROS COM FRENTE EM MDF BRANCO E PUZADORES JAZZ CLASSIC (SUGESTÃO). ARMÁRIOS
SUPERIORES EM MDF CRAVALHO E COM PORTAS EM MDF BRANCO E PUZADOR JAZZ (SUGESTÃO) COM ILUMINAÇÃO EMBUTIDA. PIA EM “L” EM TAMPO DE GRANITO
PRETO. DETALHE DE FAIXA EM MDF TECCA ENTRE O TAMPO DE GRANITO E ARMÁRIOS SUPERIORES.
PORTAS DE CORRER COM TRILHO EMBUTIDO EM SOBREFORRO ACESSO A SALA (4 FOLHAS) E PORTA DE CORRER TRILHO EMBUTIDO EM SOBREFORRO COM ACESSO A
ÁREA GOURMET (4 FOLHAS) EM VIDRO E ESQUADRIA DE ALUMÍNIO BRANCO. ILUMINAÇÃO EM PENDENTES E EMBUTIDA NO TETO.
LF BUILDING ARQUITETURA
PROJETO CASA BARRA DO PIRAÍ
AUTOR: ARQ. LUCIANO E. FONSECA / CAU: AU 85245-7
DATA: 13/09/2015
INTERIOR DA COZINHA
3
COZINHA - VISTA PAREDE 02 - ARMÁRIOS EM MDF BRANCO E CAIXA DA PIA EM COMPENSADO REVESTIDO COM FORMICA BRANCA. PORTAS E
FRENTES DE GAVETAS EM MDF BRANCO E PUXADOR JAZZ CLASSIC (SUGESTÃO). PAINÉIS 18mm EM MDF CARVALHO. TORRE DA GELADEIRA EM MDF
CARVALHO E FRENTE DE PORTAS DE ARMÁRIO SUPERIOR EM MDF BRANCO. PAINÉIS LATERIAIS 18mm EM MDF CARVALHO. PIA EM “L” EM TAMPO DE
GRANITO PRETO. DETALHE DE FAIXA EM MDF TECCA ENTRE O TAMPO DE GRANITO E ARMÁRIOS SUPERIORES.
PORTAS DE CORRER COM TRILHO EMBUTIDO EM SOBREFORRO ACESSO A SALA (4 FOLHAS). ILUMINAÇÃO EM PENDENTES E EMBUTIDA NO TETO.
LF BUILDING ARQUITETURA
PROJETO CASA BARRA DO PIRAÍ
AUTOR: ARQ. LUCIANO E. FONSECA / CAU: AU 85245-7
DATA: 13/09/2015
INTERIOR DA COZINHA
4
COZINHA - ILHA DE COCÇÃO DETALHE 01 - ILHA DE COCÇÃO COM PORTAS E FRENTES DE GAVETAS EM MDF BRANCO E PUXADOR JAZZ CLASSIC
(SUGESTÃO). PAINÉIS LATERIAIS 36mm EM MDF CARVALHO. PAINÉL DO FUNDO DA ILHA EM MDF TECCA 36mm (SUGESTÃO A SER DEFINIDA). TAMPO
DA ILHA DE COCÇÃO EM GRANITO PRETO 35mm. TAMPO DE MESA DA ILHA EM MDF BRANCO 36mm.
GAVETEIRO, ARMÁRIO E PORTA ÓLEO COM PORTAS E FRENTE DE GAVETAS EM MDF BRANCO E PUXADORES JAZZ CLASSIC (SUGESTÃO).
ILUMINAÇÃO EM PENDENTES E EMBUTIDA NO TETO.
LF BUILDING ARQUITETURA
PROJETO CASA BARRA DO PIRAÍ
AUTOR: ARQ. LUCIANO E. FONSECA / CAU: AU 85245-7
DATA: 13/09/2015
INTERIOR DA COZINHA
5
COZINHA - ILHA DE COCÇÃO DETALHE 02 - ILHA DE COCÇÃO COM PORTAS E FRENTES DE GAVETAS EM MDF BRANCO E PUXADOR JAZZ CLASSIC
(SUGESTÃO). PAINÉIS LATERIAIS 36mm EM MDF CARVALHO. PAINÉL DO FUNDO DA ILHA EM MDF TECCA 36mm (SUGESTÃO A SER DEFINIDA). TAMPO
DA ILHA DE COCÇÃO EM GRANITO PRETO 35mm. TAMPO DE MESA DA ILHA EM MDF BRANCO 36mm.
GAVETEIRO, ARMÁRIO E PORTA ÓLEO COM PORTAS E FRENTE DE GAVETAS EM MDF BRANCO E PUXADORES JAZZ CLASSIC (SUGESTÃO).
ILUMINAÇÃO EM PENDENTES E EMBUTIDA NO TETO.
LF BUILDING ARQUITETURA
PROJETO CASA BARRA DO PIRAÍ
AUTOR: ARQ. LUCIANO E. FONSECA / CAU: AU 85245-7
DATA: 13/09/2015
INTERIOR DA COZINHA
6
COZINHA - ILHA DE COCÇÃO DETALHE 03 - ILHA DE COCÇÃO COM PORTAS E FRENTES DE GAVETAS EM MDF BRANCO E PUXADOR JAZZ CLASSIC
(SUGESTÃO). PAINÉIS LATERIAIS 36mm EM MDF CARVALHO. PAINÉL DO FUNDO DA ILHA EM MDF TECCA 36mm (SUGESTÃO A SER DEFINIDA). TAMPO
DA ILHA DE COCÇÃO EM GRANITO PRETO 35mm. TAMPO DE MESA DA ILHA EM MDF BRANCO 36mm.
GAVETEIRO, ARMÁRIO E PORTA ÓLEO COM PORTAS E FRENTE DE GAVETAS EM MDF BRANCO E PUXADORES JAZZ CLASSIC (SUGESTÃO).
ILUMINAÇÃO EM PENDENTES E EMBUTIDA NO TETO.
LF BUILDING ARQUITETURA
PROJETO CASA BARRA DO PIRAÍ
AUTOR: ARQ. LUCIANO E. FONSECA / CAU: AU 85245-7
DATA: 13/09/2015
INTERIOR DA COZINHA
7
COZINHA - ILHA DE COCÇÃO DETALHE 04 - ILHA DE COCÇÃO COM PORTAS E FRENTES DE GAVETAS EM MDF BRANCO E PUXADOR JAZZ CLASSIC
(SUGESTÃO). PAINÉIS LATERIAIS 36mm EM MDF CARVALHO. PAINÉL DO FUNDO DA ILHA EM MDF TECCA 36mm (SUGESTÃO A SER DEFINIDA). TAMPO
DA ILHA DE COCÇÃO EM GRANITO PRETO 35mm. TAMPO DE MESA DA ILHA EM MDF BRANCO 36mm.
GAVETEIRO, ARMÁRIO E PORTA ÓLEO COM PORTAS E FRENTE DE GAVETAS EM MDF BRANCO E PUXADORES JAZZ CLASSIC (SUGESTÃO).
ILUMINAÇÃO EM PENDENTES E EMBUTIDA NO TETO.
LF BUILDING ARQUITETURA
PROJETO CASA BARRA DO PIRAÍ
AUTOR: ARQ. LUCIANO E. FONSECA / CAU: AU 85245-7
DATA: 13/09/2015
INTERIOR DA COZINHA
COZINHA - IMAGEM 01
8
LF BUILDING ARQUITETURA
PROJETO CASA BARRA DO PIRAÍ
AUTOR: ARQ. LUCIANO E. FONSECA / CAU: AU 85245-7
DATA: 13/09/2015
INTERIOR DA COZINHA
COZINHA - IMAGEM 02
9
LF BUILDING ARQUITETURA
PROJETO CASA BARRA DO PIRAÍ
AUTOR: ARQ. LUCIANO E. FONSECA / CAU: AU 85245-7
DATA: 13/09/2015
INTERIOR DA COZINHA
COZINHA - IMAGEM 03
10
LF BUILDING ARQUITETURA
PROJETO CASA BARRA DO PIRAÍ
AUTOR: ARQ. LUCIANO E. FONSECA / CAU: AU 85245-7
DATA: 13/09/2015
INTERIOR DA COZINHA
COZINHA - IMAGEM 04
11
LF BUILDING ARQUITETURA
PROJETO CASA BARRA DO PIRAÍ
AUTOR: ARQ. LUCIANO E. FONSECA / CAU: AU 85245-7
DATA: 13/09/2015
INTERIOR DA SALA
SALA - IMAGEM 01
12
LF BUILDING ARQUITETURA
PROJETO CASA BARRA DO PIRAÍ
AUTOR: ARQ. LUCIANO E. FONSECA / CAU: AU 85245-7
DATA: 13/09/2015
INTERIOR DA SALA
SALA - IMAGEM 02
13
LF BUILDING ARQUITETURA
PROJETO CASA BARRA DO PIRAÍ
AUTOR: ARQ. LUCIANO E. FONSECA / CAU: AU 85245-7
DATA: 13/09/2015
INTERIOR DA SALA
SALA - IMAGEM 03
14
LF BUILDING ARQUITETURA
PROJETO CASA BARRA DO PIRAÍ
AUTOR: ARQ. LUCIANO E. FONSECA / CAU: AU 85245-7
DATA: 13/09/2015
INTERIOR DA SALA
PISCINA - IMAGEM 03
15
LF BUILDING ARQUITETURA
PROJETO CASA BARRA DO PIRAÍ
AUTOR: ARQ. LUCIANO E. FONSECA / CAU: AU 85245-7
DATA: 13/09/2015
PROJETO EXECUTIVO COZINHA
PROJETO EXECUTIVO COZINHA
16
LF BUILDING ARQUITETURA
PROJETO CASA BARRA DO PIRAÍ
AUTOR: ARQ. LUCIANO E. FONSECA / CAU: AU 85245-7
DATA: 13/09/2015
PROJETO EXECUTIVO COZINHA
PROJETO EXECUTIVO COZINHA
17
LF BUILDING ARQUITETURA
PROJETO CASA BARRA DO PIRAÍ
AUTOR: ARQ. LUCIANO E. FONSECA / CAU: AU 85245-7
DATA: 13/09/2015
PROJETO EXECUTIVO COZINHA
PROJETO EXECUTIVO COZINHA
18
LF BUILDING ARQUITETURA
PROJETO CASA BARRA DO PIRAÍ
AUTOR: ARQ. LUCIANO E. FONSECA / CAU: AU 85245-7
DATA: 13/09/2015
PROJETO EXECUTIVO COZINHA
PROJETO EXECUTIVO COZINHA
19
LF BUILDING ARQUITETURA
AUTOR: ARQ. LUCIANO E. FONSECA / CAU: AU 85245-7
INTERIOR E FACHADA DA LOJA
REVISÃO 02
DATA: 06/11/2015
PROJETO INTERIOR LOJA CARREFOUR BARRETOS – NITERÓI/RJ
PROJETO:
LF BUILDING ARQUITETURA
PROJETO BÁSICO LOJA CARREFOUR BARRETOS – NITERÓI/RJ
AUTOR: ARQ. LUCIANO E. FONSECA / CAU: AU 85245-7
DATA: 04/11/2015
INTERIOR E FACHADA DA LOJA
1
1. ESTRUTURA DE MADEIRA AUTOPORTANTE PARA SUPORTE DE PAREDES DRYWALL, PRATELEIRAS DE VIDRO SUSPENSAS, PAINÉIS
CANALETADOS, PAINÉIS COM ESPELHOS, AR CONDICIONADO E INFRA;
2. PAREDES DE DRYWALL COM TV E PAPEL PAREDE (IMAGEM) IMPRESSO E APLICADO NO DRYWALL;
3. FACHADA DA LOJA COM REVESTIMENTO MDF BRANCO E PAINÉL DE VIDRO;
4. ESTANTE DE VIDRO SUSPENSA COM BASE EM MDF BRANCO E ILUMINAÇÃO EMBUTIDA, E PAINÉL LATERAL;
5. ESTANTE AUTOPORTANTE EM MDF BRANCO E PAINÉIS LATERIAIS EM MDF BRANCO;
6. ARMÁRIO BANCADA COM GAVETEIROS, ARMÁRIO C/ PORTA DE CORRER EM MDF BRANCO;
7. BALCÃO EM “L” COMPOSTO DE DOIS MÓDULOS: MÓDULO BALCÃO VITRINE EM “L” E MÓDULO ARMÁRIO CAIXA;
8. 01 PAINÉL CANALETADO EM MDF BRANCO COM MÓDULOS LATERIAIS EM MDF BRANCO E PRATELEIRAS DE VIDRO COM ILUMINAÇÃO
LED E ILUMINAÇÃO NO TETO;
9. 01 PAINÉL CANALETADO EM MDF BRANCO COM MÓDULOS LATERIAIS EM PLACAS MODULADAS DE ESPELHOS LISOS E PRATELEIRAS DE
VIDRO COM ILUMINAÇÃO LED NAS PRATELEIRAS, ILUMINAÇÃO SPOT NA BASE E ILUMINAÇÃO TETO (AR CONDICIONADO INSTALADO
NO PAINEL CANALETADO);
10. GAVETEIRO BAIXO COM TAMPO EM MDF BRANCO 50mm E PAINÉIS LATERIAIS MDF BRANDO 50mm (ARMÁRIO MÓVEL);
11. ARMÁRIOS COM GAVETEIROS TIPO PISO-TETO NO ESTOQUE DA LOJA;
12. GALERIA CARREFOUR E ENTRADA DA LOJA;
13. ÁREA DE ESTOQUE DA LOJA COMPOSTA DE ESCRITÓRIO, PIA COM BANCADA, ARMÁRIOS (ITEM 10).
OBS.:
PREVER DRENO DO AR CONDICIONADO EMBUTIDO EM PAREDE DRYWALL A SER CONSTRUIDA;
PREVER TRECHOS DE PAREDE DRYWALL C/ REFORÇO PARA SUSTENTAÇÃO DA TV E DO AR CONDICIONADO;
PREVER NOVA INFRA DE ELÉTRICA NAS PAREDES DRYWALL E FORRO DE GESSO;
PREVER SISTEMA DE AUDIO PARA TV;
PREVER PIA COM BANCADA NO ESTOQUE (PONTOS DE ÁGUA E ESGOTO);
PREVER INSTALAÇÃO DE RELÓGIO DE ÁGUA;
PREVER INSTALAÇÃO DE CONDENSADORA DO AR NO TELHADO DO CARREFOUR;
PREVER NOVA MONTAGEM DO QDL E NOVA INFRA DE ELÉTRICA E REDE.
2
PLANTA BAIXA
LF BUILDING ARQUITETURA
PROJETO BÁSICO LOJA CARREFOUR BARRETOS – NITERÓI/RJ
AUTOR: ARQ. LUCIANO E. FONSECA / CAU: AU 85245-7
DATA: 04/11/2015
INTERIOR E FACHADA DA LOJA
1
2
2
3
6
4
5
7
9
10
11
11
8
9
12
13
3
VISTA 01: PAREDE COM TV E SANDA DE ILUMINAÇÃO NO TETO(IMAGEM APLICADA); BALCÃO EM “L” EM MDF BRANCO E PAINÉIS LATERIAIS EM MDF BRANCO 50mm
(MÓDULO CAIXA E MÓDULO VITRINE) E ILUMINAÇÃO SPOT INTERNO VITRINE NA BASE E LED AZUL NA BASE EXTERNA, E LED LARANJA NO TAMPO (TRAVESSA
SUPERIOR); BANCADA COM TAMPO MDF BRANCO 50mm, FRENTE DE GAVETAS E PORTAS CORRER EM MDF BRANCO 15mm E PAINÉIS EM MDF BRANCO; ESTANTE
MDF BRANCO E PAINÉIS LATERIAIS EM MDF BRANCO 50mm (ILUMINAÇÃO ELD LARANJA NAS LATERIAIS) COM PRATELEITRAS DE VIDRO E ILUMINAÇÃO SPOT NA BASE,
LED LARANJA NAS PRATELEIRAS, LED AZUL NA BASE FACE EXTERNA E SPOT NO TETO; 02 PAINÉIS CANALETADOS MDF BRANCO E ILUMINAÇÃO SPOT NO TETO E LED
LARANJA NAS LATERIAIS, E MODULOS LATERIAIS EM ESPELHO E COM PRATELEIRAS DE VIDRO, SENDO ILUMINAÇÃO LED LARANJA NAS PRATELEIRAS, SPOT NA BASE
E TETO; GAVETEIRO MÓVEL EM MDF BRANCO COM TAMPO MDF BRANCO 50mm E FRENTE DE GAVETAS MDF BRANCO E ILUMINAÇÃO LED AZUL NA BASE.
LF BUILDING ARQUITETURA
PROJETO LOJA CARREFOUR BARRETOS – NITERÓI/RJ
AUTOR: ARQ. LUCIANO E. FONSECA / CAU: AU 85245-7
DATA: 04/11/2015
INTERIOR E FACHADA DA LOJA
4LF BUILDING ARQUITETURA
PROJETO LOJA CARREFOUR BARRETOS – NITERÓI/RJ
AUTOR: ARQ. LUCIANO E. FONSECA / CAU: AU 85245-7
DATA: 04/11/2015
INTERIOR E FACHADA DA LOJA
VISTA 02: PAREDE COM TV E SANDA DE ILUMINAÇÃO NO TETO(IMAGEM APLICADA); BALCÃO EM “L” EM MDF BRANCO E PAINÉIS LATERIAIS EM MDF BRANCO 50mm
(MÓDULO CAIXA E MÓDULO VITRINE) E ILUMINAÇÃO SPOT INTERNO VITRINE NA BASE E LED AZUL NA BASE EXTERNA, E LED LARANJA NO TAMPO (TRAVESSA
SUPERIOR); BANCADA COM TAMPO MDF BRANCO 50mm, FRENTE DE GAVETAS E PORTAS CORRER EM MDF BRANCO 15mm E PAINÉIS EM MDF BRANCO; ESTANTE
MDF BRANCO E PAINÉIS LATERIAIS EM MDF BRANCO 50mm (ILUMINAÇÃO ELD LARANJA NAS LATERIAIS) COM PRATELEITRAS DE VIDRO E ILUMINAÇÃO SPOT NA BASE,
LED LARANJA NAS PRATELEIRAS, LED AZUL NA BASE FACE EXTERNA E SPOT NO TETO; 02 PAINÉIS CANALETADOS MDF BRANCO E ILUMINAÇÃO SPOT NO TETO E LED
LARANJA NAS LATERIAIS, E MODULOS LATERIAIS EM ESPELHO E COM PRATELEIRAS DE VIDRO, SENDO ILUMINAÇÃO LED LARANJA NAS PRATELEIRAS, SPOT NA BASE
E TETO; GAVETEIRO MÓVEL EM MDF BRANCO COM TAMPO MDF BRANCO 50mm E FRENTE DE GAVETAS MDF BRANCO E ILUMINAÇÃO LED AZUL NA BASE.
5LF BUILDING ARQUITETURA
PROJETO LOJA CARREFOUR BARRETOS – NITERÓI/RJ
AUTOR: ARQ. LUCIANO E. FONSECA / CAU: AU 85245-7
DATA: 04/11/2015
INTERIOR E FACHADA DA LOJA
VISTA 03: BALCÃO EM “L” EM MDF BRANCO E PAINÉIS LATERIAIS EM MDF BRANCO 50mm (MÓDULO CAIXA E MÓDULO VITRINE) E ILUMINAÇÃO SPOT INTERNO VITRINE
NA BASE E LED AZUL NA BASE EXTERNA, E LED LARANJA NO TAMPO (TRAVESSA SUPERIOR); 02 PAINÉIS CANALETADOS MDF BRANCO E ILUMINAÇÃO SPOT NO TETO E
LED LARANJA NAS LATERIAIS, E MODULOS LATERIAIS EM ESPELHO E COM PRATELEIRAS DE VIDRO, SENDO ILUMINAÇÃO LED LARANJA NAS PRATELEIRAS, SPOT NA
BASE E TETO; GAVETEIRO MÓVEL EM MDF BRANCO COM TAMPO MDF BRANCO 50mm E FRENTE DE GAVETAS MDF BRANCO E ILUMINAÇÃO LED AZUL NA BASE.
6LF BUILDING ARQUITETURA
PROJETO LOJA CARREFOUR BARRETOS – NITERÓI/RJ
AUTOR: ARQ. LUCIANO E. FONSECA / CAU: AU 85245-7
DATA: 04/11/2015
INTERIOR E FACHADA DA LOJA
VISTA 04: VITRINE FRENTE DE LOJA DE PRATELEIRAS DE VIDRO SUSPENSAS POR CABOS DE AÇO COM BASE MDF BRANCO E ILUMINAÇÃO LED AZUL NA FACE EXTERNA E
SPOT S NA BASE E NO TETO (MODULOS DE MDF BRANCO NA LATERAL DA LOJA E CABOS DE AÇO PRESOS NA BASE E NO TETO COM ILUMINAÇÃO SPOTS NO TETO –
PROTEÇÃO DA “ESQUINA” DAS PRATELEIRAS DE VIDRO DE MANEIRA A MANTER A VISIBILIDADE); BALCÃO EM “L” EM MDF BRANCO E PAINÉIS LATERIAIS EM MDF
BRANCO 50mm (MÓDULO CAIXA E MÓDULO VITRINE) E ILUMINAÇÃO SPOT INTERNO VITRINE NA BASE E LED AZUL NA BASE EXTERNA, E LED LARANJA NO TAMPO
(TRAVESSA SUPERIOR); BANCADA COM TAMPO MDF BRANCO 50mm, FRENTE DE GAVETAS E PORTAS CORRER EM MDF BRANCO 15mm E PAINÉIS EM MDF BRANCO;
ESTANTE MDF BRANCO E PAINÉIS LATERIAIS EM MDF BRANCO 50mm (ILUMINAÇÃO ELD LARANJA NAS LATERIAIS) COM PRATELEITRAS DE VIDRO E ILUMINAÇÃO SPOT
NA BASE, LED LARANJA NAS PRATELEIRAS, LED AZUL NA BASE FACE EXTERNA E SPOT NO TETO; 02 PAINÉIS CANALETADOS MDF BRANCO E ILUMINAÇÃO SPOT NO
TETO E LED LARANJA NAS LATERIAIS, E MODULOS LATERIAIS EM ESPELHO E COM PRATELEIRAS DE VIDRO, SENDO ILUMINAÇÃO LED LARANJA NAS PRATELEIRAS,
SPOT NA BASE E TETO; GAVETEIRO MÓVEL EM MDF BRANCO COM TAMPO MDF BRANCO 50mm E FRENTE DE GAVETAS MDF BRANCO E ILUMINAÇÃO LED AZUL NA
BASE.
7LF BUILDING ARQUITETURA
PROJETO LOJA CARREFOUR BARRETOS – NITERÓI/RJ
AUTOR: ARQ. LUCIANO E. FONSECA / CAU: AU 85245-7
DATA: 04/11/2015
INTERIOR E FACHADA DA LOJA
VISTA 04: VITRINE FRENTE DE LOJA DE PRATELEIRAS DE VIDRO SUSPENSAS POR CABOS DE AÇO COM BASE MDF BRANCO E ILUMINAÇÃO LED AZUL NA FACE EXTERNA E
SPOT S NA BASE E NO TETO (MODULOS DE MDF BRANCO NA LATERAL DA LOJA E CABOS DE AÇO PRESOS NA BASE E NO TETO COM ILUMINAÇÃO SPOTS NO TETO –
PROTEÇÃO DA “ESQUINA” DAS PRATELEIRAS DE VIDRO DE MANEIRA A MANTER A VISIBILIDADE); BALCÃO EM “L” EM MDF BRANCO E PAINÉIS LATERIAIS EM MDF
BRANCO 50mm (MÓDULO CAIXA E MÓDULO VITRINE) E ILUMINAÇÃO SPOT INTERNO VITRINE NA BASE E LED AZUL NA BASE EXTERNA, E LED LARANJA NO TAMPO
(TRAVESSA SUPERIOR); BANCADA COM TAMPO MDF BRANCO 50mm, FRENTE DE GAVETAS E PORTAS CORRER EM MDF BRANCO 15mm E PAINÉIS EM MDF BRANCO;
ESTANTE MDF BRANCO E PAINÉIS LATERIAIS EM MDF BRANCO 50mm (ILUMINAÇÃO ELD LARANJA NAS LATERIAIS) COM PRATELEITRAS DE VIDRO E ILUMINAÇÃO SPOT
NA BASE, LED LARANJA NAS PRATELEIRAS, LED AZUL NA BASE FACE EXTERNA E SPOT NO TETO; 02 PAINÉIS CANALETADOS MDF BRANCO E ILUMINAÇÃO SPOT NO
TETO E LED LARANJA NAS LATERIAIS, E MODULOS LATERIAIS EM ESPELHO E COM PRATELEIRAS DE VIDRO, SENDO ILUMINAÇÃO LED LARANJA NAS PRATELEIRAS,
SPOT NA BASE E TETO;
8LF BUILDING ARQUITETURA
PROJETO LOJA CARREFOUR BARRETOS – NITERÓI/RJ
AUTOR: ARQ. LUCIANO E. FONSECA / CAU: AU 85245-7
DATA: 04/11/2015
INTERIOR E FACHADA DA LOJA
FACHADA 01: VITRINE FRENTE DE LOJA DE PRATELEIRAS DE VIDRO SUSPENSAS POR CABOS DE AÇO COM BASE MDF BRANCO E ILUMINAÇÃO LED AZUL NA FACE
EXTERNA E SPOT S NA BASE E NO TETO (MODULOS DE MDF BRANCO NA LATERAL DA LOJA E CABOS DE AÇO PRESOS NA BASE E NO TETO COM ILUMINAÇÃO SPOTS
NO TETO – PROTEÇÃO DA “ESQUINA” DAS PRATELEIRAS DE VIDRO DE MANEIRA A MANTER A VISIBILIDADE); LETREIRO COM LOGO ILUMINADA.
9
ARMÁRIO PISO-TETO: 02ARMÁRIOS TIPO PISO-TETO EM MDF BRANCO COM PAINEIS LATERIAIS EM MDF MARFIM 35mm COMPOSTOS DE GAVETEIROS NA PARTE
INFERIOR E ARMÁRIOS NA PARTE SUPERIOR.
LF BUILDING ARQUITETURA
PROJETO LOJA CARREFOUR BARRETOS – NITERÓI/RJ
AUTOR: ARQ. LUCIANO E. FONSECA / CAU: AU 85245-7
DATA: 04/11/2015
INTERIOR E FACHADA DA LOJA
ARMÁRIO PISO-TETO_01: A SER MONTADO NO ESTOQUE ARMÁRIO PISO-TETO_02: A SER MONTADO NA ENTRADA DO
ESTOQUE
10LF BUILDING ARQUITETURA
PROJETO EXECUTIVO LOJA CARREFOUR BARRETOS – NITERÓI/RJ
AUTOR: ARQ. LUCIANO E. FONSECA / CAU: AU 85245-7
DATA: 04/11/2015
PROJETO EXECUTIVO PARA LEGALIZAÇÃO SEGUNDO CADERNO TECNICO DO SHOPPING
11LF BUILDING ARQUITETURA
PROJETO EXECUTIVO LOJA CARREFOUR BARRETOS – NITERÓI/RJ
AUTOR: ARQ. LUCIANO E. FONSECA / CAU: AU 85245-7
DATA: 04/11/2015
PROJETO EXECUTIVO PARA LEGALIZAÇÃO SEGUNDO CADERNO TECNICO DO SHOPPING
11LF BUILDING ARQUITETURA
PROJETO EXECUTIVO LOJA CARREFOUR BARRETOS – NITERÓI/RJ
AUTOR: ARQ. LUCIANO E. FONSECA / CAU: AU 85245-7
DATA: 04/11/2015
PROJETO EXECUTIVO PARA LEGALIZAÇÃO SEGUNDO CADERNO TECNICO DO SHOPPING
11LF BUILDING ARQUITETURA
PROJETO EXECUTIVO LOJA CARREFOUR BARRETOS – NITERÓI/RJ
AUTOR: ARQ. LUCIANO E. FONSECA / CAU: AU 85245-7
DATA: 04/11/2015
PROJETO EXECUTIVO PARA LEGALIZAÇÃO SEGUNDO CADERNO TECNICO DO SHOPPING
11LF BUILDING ARQUITETURA
PROJETO EXECUTIVO LOJA CARREFOUR BARRETOS – NITERÓI/RJ
AUTOR: ARQ. LUCIANO E. FONSECA / CAU: AU 85245-7
DATA: 04/11/2015
PROJETO EXECUTIVO PARA LEGALIZAÇÃO SEGUNDO CADERNO TECNICO DO SHOPPING
LF BUILDING ARQUITETURA
AUTOR: ARQ. LUCIANO E. FONSECA / CAU: AU 85245-7
INTERIOR E FACHADA DA LOJA
REVISÃO 02
DATA: 07/10/2014
PROJETO LOJA JARDIM ICARAÍ – NITERÓI/RJ
PROJETO INTERIOR
LOJA JARDIM ICARAÍ
AUTOR: ARQ. LUCIANO E. FONSECA / CAU: AU 85245-7
DATA: 07/10/2014
PROJETO:
1. CONSTRUÇÃO E MONTAGEM DE ESTRUTURA DE TESTEIRA E COLUNAS EM MDF CARVALHO COM:
1.1. - ESTANTE EMBUTIDA (PRATELEIRAS DE VIDRO / ILUMINAÇÃO SPOT EMBUTIDO NO FORRO / INTERRUPTORES
EMBUTIDOS NA LATERAL) À DIREITA DA LOJA;
1.2. - PAINÉL EMBUTIDO MAIS BANCADA E ARMÁRIOS COM GAVETAS À ESQUERDA DA LOJA EM MDF CARVALHO
(ILUMINAÇÃO COM ESPOTES EMBUTIDOS NO FORRO / INTERRUPTORES INTERNO),
1.3. - TESTEIRA EM MDF CARVALHO COM LOGO RECORTADA E ILUMINADA;
2. FABRICAÇÃO DE BALCÃO EM “L” EM MDF CARVALHO E PRATELEIRAS EM VIDRO (ILUMINAÇÃO SPOT EMBUTIDO NA
BASE DO BALCÃO / INTERRUPTORES ELÉTRICOS NAS LATERAIS / GAVETA DO CAIXA E ARMÁRIO INTERNO / PORTA
LATERAL EM MDF CARVALHO);
3. FABRICAÇÃO E MONTAGEM DE PAREDE TIPO PAINÉL TV COM ESTRUTURA EM MADEIRA E ACABAMENTO EM
IMAGEM IMPRESSA (SUPORTE PARA TV / PREVER TUBULAÇÕES PARA TV / ESTRUTURA FIXA NA ESTRUTURA DO
FORRO E PAREDE / ILUMINAÇÃO SPOT EMBUTIDO NO TETO / INTERRUPTORES ELÉTRICOS);
4. FABRICAÇÃO E MONTAGEM DE ESTANTE COM PRATELEIRAS DE VIDRO SUSPENSAS POR CABOS DE AÇO FIXADOS
EM ESTRUTURA DE MADEIRA TIPO TESTEIRA COM ACABAMENTO EM MDF CARVALHO NA FRENTE DA LOJA
(ILUMINAÇÃO SPOT EMBUTIDO NO FORRO DA TESTEIRA);
5. FABRICAÇÃO E MONTAGEM DE 02 PAINÉIS CANALETADOS EM MFD CARVALHO MAIS COMPLEMENTO LATERAL EM
MDF CARVALHO (ILUMINAÇÃO SPOTS FIXADOS NA PAREDE / PREVER CANALETA EMBUTIDA PARA ENFIAÇÃO E
PASSAGEM DE FIOS DE ILUMINAÇÃO TANTO PARA O PAINÉL QUANTO PARA A ESTANTE DE VIDRO SUSPENSA NA
FRENTE DA LOJA COM ILUMINAÇÃO NO FORRO DA TESTEIRA);
6. EXECUÇÃO DE ACABAMENTO DA FACHADA EM MDF CARVALHO E LOGO ILUMINADA COM LETRAS TIPO CAIXA;6
1.
3
5
4
3
2
1.
2
1.
1
1
1
PROJETO INTERIOR
LOCAL MONTAGEM: LOJA JARDIM ICARAÍ
AUTOR: ARQ. LUCIANO E. FONSECA / CAU: AU 85245-7
DATA: 07/10/2014
PLANTA BAIXA
6
1.
1
1.
2
1.
3
5.1
4
3
2
5.2
2
PROJETO INTERIOR
LOCAL MONTAGEM: LOJA JARDIM ICARAÍ
AUTOR: ARQ. LUCIANO E. FONSECA / CAU: AU 85245-7
DATA: 07/10/2014
FACHADA DA LOJA
3
PROJETO INTERIOR
LOCAL MONTAGEM: LOJA JARDIM ICARAÍ
AUTOR: ARQ. LUCIANO E. FONSECA / CAU: AU 85245-7
DATA: 07/10/2014
PERSPECTIVAS
4
PROJETO INTERIOR
LOCAL MONTAGEM: LOJA JARDIM ICARAÍ
AUTOR: ARQ. LUCIANO E. FONSECA / CAU: AU 85245-7
DATA: 07/10/2014
PERSPECTIVAS
5
PROJETO INTERIOR
LOCAL MONTAGEM: LOJA JARDIM ICARAÍ
AUTOR: ARQ. LUCIANO E. FONSECA / CAU: AU 85245-7
DATA: 07/10/2014
PERSPECTIVAS
6
PROJETO INTERIOR
LOCAL MONTAGEM: LOJA JARDIM ICARAÍ
AUTOR: ARQ. LUCIANO E. FONSECA / CAU: AU 85245-7
DATA: 07/10/2014
PERSPECTIVAS
7
PROJETO INTERIOR
LOCAL MONTAGEM: LOJA JARDIM ICARAÍ
AUTOR: ARQ. LUCIANO E. FONSECA / CAU: AU 85245-7
DATA: 07/10/2014
PERSPECTIVAS
8
PROJETO INTERIOR
LOCAL MONTAGEM: LOJA JARDIM ICARAÍ
AUTOR: ARQ. LUCIANO E. FONSECA / CAU: AU 85245-7
DATA: 07/10/2014
PERSPECTIVAS
9
PROJETO INTERIOR
LOCAL MONTAGEM: LOJA JARDIM ICARAÍ
AUTOR: ARQ. LUCIANO E. FONSECA / CAU: AU 85245-7
DATA: 07/10/2014
PERSPECTIVAS
10
ESTRUTURA TESTEIRA
DE ESTRUTURA DE TESTEIRA E COLUNAS EM MDF CARVALHO COM ESTANTE EMBUTIDA (PRATELEIRAS DE
VIDRO / ILUMINAÇÃO SPOT EMBUTIDO NO FORRO / INTERRUPTORES EMBUTIDOS NA LATERAL) À DIREITA DA
LOJA E PAINÉL EMBUTIDO MAIS BANCADA E ARMÁRIOS COM GAVETAS À ESQUERDA DA LOJA EM MDF
CARVALHO (ILUMINAÇÃO COM ESPOTES EMBUTIDOS NO FORRO / INTERRUPTORES INTERNO), E NA TESTEIRA
LOGO RECORTADA E ILUMINADA.
PROJETO INTERIOR
LOCAL MONTAGEM: LOJA JARDIM ICARAÍ
AUTOR: ARQ. LUCIANO E. FONSECA / CAU: AU 85245-7
DATA: 07/10/2014
11
PROJETO INTERIOR
LOCAL MONTAGEM: LOJA JARDIM ICARAÍ
AUTOR: ARQ. LUCIANO E. FONSECA / CAU: AU 85245-7
DATA: 07/10/2014
PRATELEIRA DE VIDRO EMBUTIDA
ESTANTE EMBUTIDA (PRATELEIRAS DE VIDRO / ILUMINAÇÃO SPOT EMBUTIDO NO FORRO / INTERRUPTORES
EMBUTIDOS NA LATERAL)
12
PROJETO INTERIOR
LOCAL MONTAGEM: LOJA JARDIM ICARAÍ
AUTOR: ARQ. LUCIANO E. FONSECA / CAU: AU 85245-7
DATA: 07/10/2014
PAINÉL EMBUTIDA MAIS BANCADA E ARMÁRIOS COM GAVETAS
PAINÉL EMBUTIDO MAIS BANCADA E ARMÁRIOS COM GAVETAS À ESQUERDA DA LOJA EM MDF CARVALHO
(ILUMINAÇÃO COM ESPOTES EMBUTIDOS NO FORRO / INTERRUPTORES INTERNO)
13
PROJETO INTERIOR
LOCAL MONTAGEM: LOJA JARDIM ICARAÍ
AUTOR: ARQ. LUCIANO E. FONSECA / CAU: AU 85245-7
DATA: 07/10/2014
DETALHE PAINÉL EMBUTIDA
PAINÉL EMBUTIDO EM MDF CARVALHO (ILUMINAÇÃO COM ESPOTES EMBUTIDOS NO FORRO / INTERRUPTORES
INTERNO)
14
PROJETO INTERIOR
LOCAL MONTAGEM: LOJA JARDIM ICARAÍ
AUTOR: ARQ. LUCIANO E. FONSECA / CAU: AU 85245-7
DATA: 07/10/2014
TESTEIRA COM LOGO ILUINADA
TESTEIRA EM MDF CARVALHO COM LOGO RECORTADA E ILUMINADA
15
PROJETO INTERIOR
LOCAL MONTAGEM: LOJA JARDIM ICARAÍ
AUTOR: ARQ. LUCIANO E. FONSECA / CAU: AU 85245-7
DATA: 07/10/2014
BALCÃO EM “L”
BALCÃO EM “L” EM MDF CARVALHO E PRATELEIRAS EM VIDRO (ILUMINAÇÃO SPOT EMBUTIDO NA BASE DO BALCÃO /
INTERRUPTORES ELÉTRICOS NAS LATERAIS / GAVETA DO CAIXA E ARMÁRIO INTERNO / PORTA LATERAL EM MDF
CARVALHO);
16
PROJETO INTERIOR
LOCAL MONTAGEM: LOJA JARDIM ICARAÍ
AUTOR: ARQ. LUCIANO E. FONSECA / CAU: AU 85245-7
DATA: 07/10/2014
BALCÃO EM “L”
BALCÃO EM “L” EM MDF CARVALHO E PRATELEIRAS EM VIDRO (ILUMINAÇÃO SPOT EMBUTIDO NA BASE DO BALCÃO /
INTERRUPTORES ELÉTRICOS NAS LATERAIS / GAVETA DO CAIXA E ARMÁRIO INTERNO / PORTA LATERAL EM MDF
CARVALHO);
17
PROJETO INTERIOR
LOCAL MONTAGEM: LOJA JARDIM ICARAÍ
AUTOR: ARQ. LUCIANO E. FONSECA / CAU: AU 85245-7
DATA: 07/10/2014
DETALHE BALCÃO EM “L”
BALCÃO EM “L” EM MDF CARVALHO E PRATELEIRAS EM VIDRO (ILUMINAÇÃO SPOT EMBUTIDO NA BASE DO BALCÃO /
INTERRUPTORES ELÉTRICOS NAS LATERAIS / GAVETA DO CAIXA E ARMÁRIO INTERNO / PORTA LATERAL EM MDF
CARVALHO);
18
PROJETO INTERIOR
LOCAL MONTAGEM: LOJA JARDIM ICARAÍ
AUTOR: ARQ. LUCIANO E. FONSECA / CAU: AU 85245-7
DATA: 07/10/2014
PAREDE TIPO PAINÉL “TV”
PAREDE TIPO PAINÉL TV COM ESTRUTURA EM MADEIRA E ACABAMENTO EM IMAGEM IMPRESSA (SUPORTE PARA TV /
PREVER TUBULAÇÕES PARA TV / ESTRUTURA FIXA NA ESTRUTURA DO FORRO E PAREDE / ILUMINAÇÃO SPOT EMBUTIDO
NO TETO / INTERRUPTORES ELÉTRICOS);
19
PROJETO INTERIOR
LOCAL MONTAGEM: LOJA JARDIM ICARAÍ
AUTOR: ARQ. LUCIANO E. FONSECA / CAU: AU 85245-7
DATA: 07/10/2014
ESTANTE PRATELEIRAS VIDRO SUSPENSA
ESTANTE COM PRATELEIRAS DE VIDRO SUSPENSAS POR CABOS DE AÇO FIXADOS EM ESTRUTURA DE MADEIRA TIPO
TESTEIRA COM ACABAMENTO EM MDF CARVALHO NA FRENTE DA LOJA (ILUMINAÇÃO SPOT EMBUTIDO NO FORRO DA
TESTEIRA);
20
PROJETO INTERIOR
LOCAL MONTAGEM: LOJA JARDIM ICARAÍ
AUTOR: ARQ. LUCIANO E. FONSECA / CAU: AU 85245-7
DATA: 07/10/2014
PAINÉL CANALETADO – LADO ESQUERDO DA LOJA
02 PAINÉIS CANALETADOS EM MFD CARVALHO MAIS COMPLEMENTO LATERAL EM MDF CARVALHO (ILUMINAÇÃO SPOTS
FIXADOS NA PAREDE / PREVER CANALETA EMBUTIDA PARA ENFIAÇÃO E PASSAGEM DE FIOS DE ILUMINAÇÃO TANTO PARA O
PAINÉL QUANTO PARA A ESTANTE DE VIDRO SUSPENSA NA FRENTE DA LOJA COM ILUMINAÇÃO NO FORRO DA TESTEIRA);
21
PROJETO INTERIOR
LOCAL MONTAGEM: LOJA JARDIM ICARAÍ
AUTOR: ARQ. LUCIANO E. FONSECA / CAU: AU 85245-7
DATA: 07/10/2014
PAINÉL CANALETADOS– LADO DIREITO DA LOJA
02 PAINÉIS CANALETADOS EM MFD CARVALHO MAIS COMPLEMENTO LATERAL EM MDF CARVALHO (ILUMINAÇÃO SPOTS
FIXADOS NA PAREDE / PREVER CANALETA EMBUTIDA PARA ENFIAÇÃO E PASSAGEM DE FIOS DE ILUMINAÇÃO TANTO PARA O
PAINÉL QUANTO PARA A ESTANTE DE VIDRO SUSPENSA NA FRENTE DA LOJA COM ILUMINAÇÃO NO FORRO DA TESTEIRA);
22
PROJETO INTERIOR
LOCAL MONTAGEM: LOJA JARDIM ICARAÍ
AUTOR: ARQ. LUCIANO E. FONSECA / CAU: AU 85245-7
DATA: 07/10/2014
DETALHES PAINÉIS CANALETADOS
02 PAINÉIS CANALETADOS EM MFD CARVALHO MAIS COMPLEMENTO LATERAL EM MDF CARVALHO.
OBS: AMBOS OS PAINÉIS CANALETADOS NA FRENTE DA LOJA TÊM AS MESMAS MEDIDAS.
23
PROJETO EXECUTIVO
LOCAL MONTAGEM: LOJA JARDIM ICARAÍ
AUTOR: ARQ. LUCIANO E. FONSECA / CAU: AU 85245-7
DATA: 07/10/2014
24
PROJETO EXECUTIVO
LOCAL MONTAGEM: LOJA JARDIM ICARAÍ
AUTOR: ARQ. LUCIANO E. FONSECA / CAU: AU 85245-7
DATA: 07/10/2014
25
PROJETO EXECUTIVO
LOCAL MONTAGEM: LOJA JARDIM ICARAÍ
AUTOR: ARQ. LUCIANO E. FONSECA / CAU: AU 85245-7
DATA: 07/10/2014
26
PROJETO EXECUTIVO
LOCAL MONTAGEM: LOJA JARDIM ICARAÍ
AUTOR: ARQ. LUCIANO E. FONSECA / CAU: AU 85245-7
DATA: 07/10/2014
27
PROJETO EXECUTIVO
LOCAL MONTAGEM: LOJA JARDIM ICARAÍ
AUTOR: ARQ. LUCIANO E. FONSECA / CAU: AU 85245-7
DATA: 07/10/2014
28
LF BUILDING ARQUITETURA
AUTOR: ARQ. LUCIANO E. FONSECA / CAU: AU 85245-7
INTERIOR E FACHADA DA LOJA
REVISÃO 01
DATA: 15/01/2016
PROJETO LOJA GALERIA COMERCIAL EM ICARAÍ – NITERÓI/RJ
2
VISTA 01
LF BUILDING ARQUITETURA
PROJETO LOJA GALERIA COMERCIAL ICARAÍ – NITERÓI/RJ
AUTOR: ARQ. LUCIANO E. FONSECA / CAU: AU 85245-7
DATA: 18/01/2016
INTERIOR E FACHADA DA LOJA
3
VISTA 02
LF BUILDING ARQUITETURA
PROJETO LOJA GALERIA COMERCIAL ICARAÍ – NITERÓI/RJ
AUTOR: ARQ. LUCIANO E. FONSECA / CAU: AU 85245-7
DATA: 18/01/2016
INTERIOR E FACHADA DA LOJA
4
VISTA 03
LF BUILDING ARQUITETURA
PROJETO LOJA GALERIA COMERCIAL ICARAÍ – NITERÓI/RJ
AUTOR: ARQ. LUCIANO E. FONSECA / CAU: AU 85245-7
DATA: 18/01/2016
INTERIOR E FACHADA DA LOJA
5
VISTA 04
LF BUILDING ARQUITETURA
PROJETO LOJA GALERIA COMERCIAL ICARAÍ – NITERÓI/RJ
AUTOR: ARQ. LUCIANO E. FONSECA / CAU: AU 85245-7
DATA: 18/01/2016
INTERIOR E FACHADA DA LOJA
6
VISTA 05
LF BUILDING ARQUITETURA
PROJETO LOJA GALERIA COMERCIAL ICARAÍ – NITERÓI/RJ
AUTOR: ARQ. LUCIANO E. FONSECA / CAU: AU 85245-7
DATA: 18/01/2016
INTERIOR E FACHADA DA LOJA
7
VISTA 06
LF BUILDING ARQUITETURA
PROJETO LOJA GALERIA COMERCIAL ICARAÍ – NITERÓI/RJ
AUTOR: ARQ. LUCIANO E. FONSECA / CAU: AU 85245-7
DATA: 18/01/2016
INTERIOR E FACHADA DA LOJA
8
PROJETO EXECUTIVO - PLANTA BAIXA
LF BUILDING ARQUITETURA
PROJETO EXECUTIVO
AUTOR: ARQ. LUCIANO E. FONSECA / CAU: AU 85245-7
DATA: 18/01/2016
PROJETO EXECUTIVO LOJA EM GALERIA EM ICARAÍ – NITERÓI / RJ
9
PROJETO EXECUTIVO - PLANTA LUMINOTÉCNICA
LF BUILDING ARQUITETURA
PROJETO EXECUTIVO
AUTOR: ARQ. LUCIANO E. FONSECA / CAU: AU 85245-7
DATA: 18/01/2016
PROJETO EXECUTIVO LOJA EM GALERIA EM ICARAÍ – NITERÓI / RJ
10
PROJETO EXECUTIVO - CORTES
LF BUILDING ARQUITETURA
PROJETO EXECUTIVO
AUTOR: ARQ. LUCIANO E. FONSECA / CAU: AU 85245-7
DATA: 18/01/2016
PROJETO EXECUTIVO LOJA EM GALERIA EM ICARAÍ – NITERÓI / RJ
PROJETO
PARA QUIOSQUE EM SHOPPING CENTER
Cliente: quiosque Mr. case
Arquiteto luciano fonseca
PROJETO PARA QUIOSQUE EM SHOPPING CENTER
PlANTA BAIXA
Especificações:
•02 Balcões cascata com armário e gaveteiro em mdf carvalho atenas / mdf branco e vengué / vidro (1,80m x 0,50m x 1,10m)
•01 Balcão cascata com vitrine inferior mdf carvalho atenas / mdf branco e vengué / vidro (1,0m x 0,50m x 1,10m)
•01 Balcão cascata com vitrine / computador / gaveteiros em mdf carvalho atenas / mdf branco / vidro (1,0m x 0,50m x 1,10m)
•04 Totens com vitrines curvas em mdf branco evengué (0,50 x 0,50m x 1,60m)
Arquiteto luciano fonseca
PROJETO PARA QUIOSQUE EM SHOPPING CENTER
Vista panorâmica 01
Especificações:
•Logos iluminadas sob dois totens e na bandeira inferior dos balcões vitrines em cascatas
•10 gavetas internas em cada um dos balcões vitrines em cascatas
•04 gavetas, 01 armário e apoio para gabinete de computador interiormente no balcão lateral em cascata
Arquiteto luciano fonseca
PROJETO PARA QUIOSQUE EM SHOPPING CENTER
Vista frontal
Especificações:
•Logo na bandeira inferior do balcão vitrine em cascata e na parte superior de dois totens
•Iluminação indireta nas bases dos balcões e dos totens
•07 cascatas em mdf branco / iluminadas (0,06m x 1,8m x 0,10 cm)
•04 vitrines em cada toten lateral (0,50 x 0,50 x 1,60m)
Arquiteto luciano fonseca
PROJETO PARA QUIOSQUE EM SHOPPING CENTER
Vista dos fundos
Especificações:
•Balcão lateral em cascata com vitrine em mdf branco / laterais em mdf carvalho atenas / vitrine em vidro
•Balcão frontal com 07 cascatas em mdf branco / lateriais em carvalho atenas
Arquiteto luciano fonseca
PROJETO PARA QUIOSQUE EM SHOPPING CENTER
Perspectiva 01
Arquiteto luciano fonseca
PROJETO PARA QUIOSQUE EM SHOPPING CENTER
Vista panorâmica 02
Arquiteto luciano fonseca
PROJETO EXECUTIVO
PROJETO EXECUTIVO QUIOSQUE PARA LEGALIZAÇÃO JUNTO AO SHOPPING VIA BRASIL
Arquiteto luciano fonseca
PROJETO EXECUTIVO
PROJETO EXECUTIVO QUIOSQUE PARA LEGALIZAÇÃO JUNTO AO SHOPPING VIA BRASIL
Arquiteto luciano fonseca
PROJETO EXECUTIVO
PROJETO EXECUTIVO QUIOSQUE PARA LEGALIZAÇÃO JUNTO AO SHOPPING VIA BRASIL
Arquiteto luciano fonseca
PROJETO EXECUTIVO
PROJETO EXECUTIVO QUIOSQUE PARA LEGALIZAÇÃO JUNTO AO SHOPPING VIA BRASIL
Arquiteto luciano fonseca
PROJETO EXECUTIVO
PROJETO EXECUTIVO QUIOSQUE PARA LEGALIZAÇÃO JUNTO AO SHOPPING VIA BRASIL
Arquiteto luciano fonseca
PROJETO PARA QUIOSQUE EM SHOPPING CENTER
FOTOS
Arquiteto luciano fonseca
PROJETO PARA QUIOSQUE EM SHOPPING CENTER
FOTOS
Arquiteto luciano fonseca
PROJETO PARA QUIOSQUE EM SHOPPING CENTER
FOTOS
Arquiteto luciano fonseca
PROJETO PARA QUIOSQUE EM SHOPPING CENTER
Vista panorâmica 02
Arquiteto luciano fonseca
LF BUILDING ARQUITETURA
AUTOR: ARQ. LUCIANO E. FONSECA / CAU: AU 85245-7
MAQUETE FÍSICA DO PROJETO ROCK BOLA MTV - RIO DE JANEIRO
DATA: ABRIL/2013
MAQUETE ROCK BOLA MTV_RIO DE JANEIRO / RJ
2
LF BUILDING ARQUITETURAMAQUETE PROJETO ROCK BOLA MTV /RJ
AUTOR: ARQ. LUCIANO E. FONSECA / CAU: AU 85245-7
DATA: ABRIL/2013
3
LF BUILDING ARQUITETURA
AUTOR: ARQ. LUCIANO E. FONSECA / CAU: AU 85245-7
DATA: DEZEMBRO/2012
MAQUETE PROJETO ROCK BOLA MTV /RJ
4
LF BUILDING ARQUITETURA
AUTOR: ARQ. LUCIANO E. FONSECA / CAU: AU 85245-7
DATA: DEZEMBRO/2012
MAQUETE PROJETO ROCK BOLA MTV /RJ
5
LF BUILDING ARQUITETURA
AUTOR: ARQ. LUCIANO E. FONSECA / CAU: AU 85245-7
DATA: DEZEMBRO/2012
MAQUETE PROJETO ROCK BOLA MTV /RJ
6
LF BUILDING ARQUITETURA
AUTOR: ARQ. LUCIANO E. FONSECA / CAU: AU 85245-7
DATA: DEZEMBRO/2012
MAQUETE PROJETO ROCK BOLA MTV /RJ
7
LF BUILDING ARQUITETURA
AUTOR: ARQ. LUCIANO E. FONSECA / CAU: AU 85245-7
DATA: DEZEMBRO/2012
MAQUETE PROJETO ROCK BOLA MTV /RJ
LF BUILDING ARQUITETURA
AUTOR: ARQ. LUCIANO E. FONSECA / CAU: AU 85245-7
RESIDENCIA UNIFAMILIAR EM SÃO JOSÉ DO IMBASSAÍ / RJ
DATA: JUL / 2012
PROJETO REFORMA E ACRÉSCIMO P/
LEGALIZAÇÃO RESIDENCIA UNIFAMILIAR
LF BUILDING ARQUITETURA
AUTOR: ARQ. LUCIANO E. FONSECA / CAU: AU 85245-7
RESIDENCIA UNIFAMILIAR EM SAMPAIO / RJ
DATA: JUL / 2014
PROJETO REFORMA E ACRÉSCIMO P/
LEGALIZAÇÃO RESIDENCIA UNIFAMILIAR
LF BUILDING ARQUITETURA
PROJETOS EXECUTIVO DE PORTARIA EDIFÍCIO P/ LEGALIZAÇÃO - RJ
AUTOR: DESENHO ARQ. LUCIANO E. FONSECA / CAU: AU 85245-7
DATA: 02/12/2015
LF BUILDING ARQUITETURA
PROJETOS LEGALIZAÇÃO – CENTRO/RJ
AUTOR: ARQ. LUCIANO E. FONSECA / CAU: AU 85245-7
DATA: 02/12/2015
LF BUILDING ARQUITETURA
AUTOR: ARQ. LUCIANO E. FONSECA / CAU: AU 85245-7
MAQUETE FÍSICA DO SAMBÓDROMO DO RIO DE JANEIRO
DATA: DEZ/2012
MAQUETE SAMBÓDROMO DO RIO DE JANEIRO – CENTRO/RJ
2
LF BUILDING ARQUITETURAMAQUETE SAMBÓDROMO RIO DE JANEIRO – CENTRO /RJ
AUTOR: ARQ. LUCIANO E. FONSECA / CAU: AU 85245-7
DATA: DEZEMBRO/2012
3
LF BUILDING ARQUITETURAMAQUETE SAMBÓDROMO RIO DE JANEIRO – CENTRO /RJ
AUTOR: ARQ. LUCIANO E. FONSECA / CAU: AU 85245-7
DATA: DEZEMBRO/2012
4
LF BUILDING ARQUITETURAMAQUETE SAMBÓDROMO RIO DE JANEIRO – CENTRO /RJ
AUTOR: ARQ. LUCIANO E. FONSECA / CAU: AU 85245-7
DATA: DEZEMBRO/2012
5
LF BUILDING ARQUITETURAMAQUETE SAMBÓDROMO RIO DE JANEIRO – CENTRO /RJ
AUTOR: ARQ. LUCIANO E. FONSECA / CAU: AU 85245-7
DATA: DEZEMBRO/2012
6
LF BUILDING ARQUITETURAMAQUETE SAMBÓDROMO RIO DE JANEIRO – CENTRO /RJ
AUTOR: ARQ. LUCIANO E. FONSECA / CAU: AU 85245-7
DATA: DEZEMBRO/2012
7
LF BUILDING ARQUITETURAMAQUETE SAMBÓDROMO RIO DE JANEIRO – CENTRO /RJ
AUTOR: ARQ. LUCIANO E. FONSECA / CAU: AU 85245-7
DATA: DEZEMBRO/2012
8
LF BUILDING ARQUITETURAMAQUETE SAMBÓDROMO RIO DE JANEIRO – CENTRO /RJ
AUTOR: ARQ. LUCIANO E. FONSECA / CAU: AU 85245-7
DATA: DEZEMBRO/2012
9
LF BUILDING ARQUITETURAMAQUETE SAMBÓDROMO RIO DE JANEIRO – CENTRO /RJ
AUTOR: ARQ. LUCIANO E. FONSECA / CAU: AU 85245-7
DATA: DEZEMBRO/2012
10
LF BUILDING ARQUITETURAMAQUETE SAMBÓDROMO RIO DE JANEIRO – CENTRO /RJ
AUTOR: ARQ. LUCIANO E. FONSECA / CAU: AU 85245-7
DATA: DEZEMBRO/2012
11
LF BUILDING ARQUITETURAMAQUETE SAMBÓDROMO RIO DE JANEIRO – CENTRO /RJ
AUTOR: ARQ. LUCIANO E. FONSECA / CAU: AU 85245-7
DATA: DEZEMBRO/2012
12
LF BUILDING ARQUITETURAMAQUETE SAMBÓDROMO RIO DE JANEIRO – CENTRO /RJ
AUTOR: ARQ. LUCIANO E. FONSECA / CAU: AU 85245-7
DATA: DEZEMBRO/2012
13
LF BUILDING ARQUITETURAMAQUETE SAMBÓDROMO RIO DE JANEIRO – CENTRO /RJ
AUTOR: ARQ. LUCIANO E. FONSECA / CAU: AU 85245-7
DATA: DEZEMBRO/2012
14
LF BUILDING ARQUITETURAMAQUETE SAMBÓDROMO RIO DE JANEIRO – CENTRO /RJ
AUTOR: ARQ. LUCIANO E. FONSECA / CAU: AU 85245-7
DATA: DEZEMBRO/2012
15
LF BUILDING ARQUITETURAMAQUETE SAMBÓDROMO RIO DE JANEIRO – CENTRO /RJ
AUTOR: ARQ. LUCIANO E. FONSECA / CAU: AU 85245-7
DATA: DEZEMBRO/2012
16
LF BUILDING ARQUITETURAMAQUETE SAMBÓDROMO RIO DE JANEIRO – CENTRO /RJ
AUTOR: ARQ. LUCIANO E. FONSECA / CAU: AU 85245-7
DATA: DEZEMBRO/2012
17
LF BUILDING ARQUITETURAMAQUETE SAMBÓDROMO RIO DE JANEIRO – CENTRO /RJ
AUTOR: ARQ. LUCIANO E. FONSECA / CAU: AU 85245-7
DATA: DEZEMBRO/2012
18
LF BUILDING ARQUITETURAMAQUETE SAMBÓDROMO RIO DE JANEIRO – CENTRO /RJ
AUTOR: ARQ. LUCIANO E. FONSECA / CAU: AU 85245-7
DATA: DEZEMBRO/2012
19
LF BUILDING ARQUITETURAMAQUETE SAMBÓDROMO RIO DE JANEIRO – CENTRO /RJ
AUTOR: ARQ. LUCIANO E. FONSECA / CAU: AU 85245-7
DATA: DEZEMBRO/2012
20
LF BUILDING ARQUITETURAMAQUETE SAMBÓDROMO RIO DE JANEIRO – CENTRO /RJ
AUTOR: ARQ. LUCIANO E. FONSECA / CAU: AU 85245-7
DATA: DEZEMBRO/2012
21
LF BUILDING ARQUITETURAMAQUETE SAMBÓDROMO RIO DE JANEIRO – CENTRO /RJ
AUTOR: ARQ. LUCIANO E. FONSECA / CAU: AU 85245-7
DATA: DEZEMBRO/2012

PORTIFOLIO_LF BUILDING

  • 1.
    PORTIFÓLIO PROJETOS EXECUTIVOS PROJETOS INTERIOR PROJETOS3D MAQUETES GERENTE DE PROJETOS Arq. Luciano E. Fonseca LF BUILDING ARQUITETURA
  • 2.
    LF BUILDING ARQUITETURA AUTOR:ARQ. LUCIANO E. FONSECA / CAU: AU 85245-7 INTERIOR DA COZINHA DATA: 13/09/2015 PROJETO CASA BARRA DO PIRAÍ
  • 3.
    LF BUILDING ARQUITETURA PROJETOCASA BARRA DO PIRAÍ AUTOR: ARQ. LUCIANO E. FONSECA / CAU: AU 85245-7 DATA: 13/09/2015 INTERIOR DA COZINHA 1 COZINHA - PLANTA BAIXA - ARMÁRIOS EM MDF BRANCO E CAIXA DA PIA EM COMPENSADO REVESTIDO COM FORMICA BRANCA. PORTAS E FRENTES DE GAVETAS EM MDF BRANCO E PUXADOR JAZZ CLASSIC (SUGESTÃO). PAINÉIS 18mm EM MDF CARVALHO . PRATELEIRAS MDF CARVALHO COM ILUMINAÇÃO EMBUTIDA. PRATELEIRAS DA TORRE EM MDF CARVALHO. GAVETEIROS COM FRENTE EM MDF BRANCO E PUZADORES JAZZ CLASSIC (SUGESTÃO). ARMÁRIOS SUPERIORES EM MDF CRAVALHO E COM PORTAS EM MDF BRANCO E PUZADOR JAZZ (SUGESTÃO) COM ILUMINAÇÃO EMBUTIDA. PIA EM “L” EM TAMPO DE GRANITO PRETO. DETALHE DE FAIXA EM MDF TECCA ENTRE O TAMPO DE GRANITO E ARMÁRIOS SUPERIORES. ILHA DE COCÇÃO COM PORTAS E FRENTES DE GAVETAS EM MDF BRANCO E PUXADOR JAZZ CLASSIC (SUGESTÃO). PAINÉIS LATERIAIS 36mm EM MDF CARVALHO. PAINÉL DO FUNDO DA ILHA EM MDF TECCA 36mm (SUGESTÃO A SER DEFINIDA). TAMPO DA ILHA DE COCÇÃO EM GRANITO PRETO 35mm. TAMPO DE MESA DA ILHA EM MDF BRANCO 36mm. PORTAS DE CORRER COM TRILHO EMBUTIDO EM SOBREFORRO ACESSO A SALA (4 FOLHAS) E PORTA DE CORRER TRILHO EMBUTIDO EM SOBREFORRO COM ACESSO A ÁREA GOURMET (4 FOLHAS) EM VIDRO E ESQUADRIA DE ALUMÍNIO BRANCO. ILUMINAÇÃO EM PENDENTES E EMBUTIDA NO TETO.
  • 4.
    LF BUILDING ARQUITETURA PROJETOCASA BARRA DO PIRAÍ AUTOR: ARQ. LUCIANO E. FONSECA / CAU: AU 85245-7 DATA: 13/09/2015 INTERIOR DA COZINHA 2 COZINHA - VISTA PAREDE 01 - ARMÁRIOS EM MDF BRANCO E CAIXA DA PIA EM COMPENSADO REVESTIDO COM FORMICA BRANCA. PORTAS E FRENTES DE GAVETAS EM MDF BRANCO E PUXADOR JAZZ CLASSIC (SUGESTÃO). PAINÉIS 18mm EM MDF CARVALHO . PRATELEIRAS MDF CARVALHO COM ILUMINAÇÃO EMBUTIDA. PRATELEIRAS DA TORRE EM MDF CARVALHO. GAVETEIROS COM FRENTE EM MDF BRANCO E PUZADORES JAZZ CLASSIC (SUGESTÃO). ARMÁRIOS SUPERIORES EM MDF CRAVALHO E COM PORTAS EM MDF BRANCO E PUZADOR JAZZ (SUGESTÃO) COM ILUMINAÇÃO EMBUTIDA. PIA EM “L” EM TAMPO DE GRANITO PRETO. DETALHE DE FAIXA EM MDF TECCA ENTRE O TAMPO DE GRANITO E ARMÁRIOS SUPERIORES. PORTAS DE CORRER COM TRILHO EMBUTIDO EM SOBREFORRO ACESSO A SALA (4 FOLHAS) E PORTA DE CORRER TRILHO EMBUTIDO EM SOBREFORRO COM ACESSO A ÁREA GOURMET (4 FOLHAS) EM VIDRO E ESQUADRIA DE ALUMÍNIO BRANCO. ILUMINAÇÃO EM PENDENTES E EMBUTIDA NO TETO.
  • 5.
    LF BUILDING ARQUITETURA PROJETOCASA BARRA DO PIRAÍ AUTOR: ARQ. LUCIANO E. FONSECA / CAU: AU 85245-7 DATA: 13/09/2015 INTERIOR DA COZINHA 3 COZINHA - VISTA PAREDE 02 - ARMÁRIOS EM MDF BRANCO E CAIXA DA PIA EM COMPENSADO REVESTIDO COM FORMICA BRANCA. PORTAS E FRENTES DE GAVETAS EM MDF BRANCO E PUXADOR JAZZ CLASSIC (SUGESTÃO). PAINÉIS 18mm EM MDF CARVALHO. TORRE DA GELADEIRA EM MDF CARVALHO E FRENTE DE PORTAS DE ARMÁRIO SUPERIOR EM MDF BRANCO. PAINÉIS LATERIAIS 18mm EM MDF CARVALHO. PIA EM “L” EM TAMPO DE GRANITO PRETO. DETALHE DE FAIXA EM MDF TECCA ENTRE O TAMPO DE GRANITO E ARMÁRIOS SUPERIORES. PORTAS DE CORRER COM TRILHO EMBUTIDO EM SOBREFORRO ACESSO A SALA (4 FOLHAS). ILUMINAÇÃO EM PENDENTES E EMBUTIDA NO TETO.
  • 6.
    LF BUILDING ARQUITETURA PROJETOCASA BARRA DO PIRAÍ AUTOR: ARQ. LUCIANO E. FONSECA / CAU: AU 85245-7 DATA: 13/09/2015 INTERIOR DA COZINHA 4 COZINHA - ILHA DE COCÇÃO DETALHE 01 - ILHA DE COCÇÃO COM PORTAS E FRENTES DE GAVETAS EM MDF BRANCO E PUXADOR JAZZ CLASSIC (SUGESTÃO). PAINÉIS LATERIAIS 36mm EM MDF CARVALHO. PAINÉL DO FUNDO DA ILHA EM MDF TECCA 36mm (SUGESTÃO A SER DEFINIDA). TAMPO DA ILHA DE COCÇÃO EM GRANITO PRETO 35mm. TAMPO DE MESA DA ILHA EM MDF BRANCO 36mm. GAVETEIRO, ARMÁRIO E PORTA ÓLEO COM PORTAS E FRENTE DE GAVETAS EM MDF BRANCO E PUXADORES JAZZ CLASSIC (SUGESTÃO). ILUMINAÇÃO EM PENDENTES E EMBUTIDA NO TETO.
  • 7.
    LF BUILDING ARQUITETURA PROJETOCASA BARRA DO PIRAÍ AUTOR: ARQ. LUCIANO E. FONSECA / CAU: AU 85245-7 DATA: 13/09/2015 INTERIOR DA COZINHA 5 COZINHA - ILHA DE COCÇÃO DETALHE 02 - ILHA DE COCÇÃO COM PORTAS E FRENTES DE GAVETAS EM MDF BRANCO E PUXADOR JAZZ CLASSIC (SUGESTÃO). PAINÉIS LATERIAIS 36mm EM MDF CARVALHO. PAINÉL DO FUNDO DA ILHA EM MDF TECCA 36mm (SUGESTÃO A SER DEFINIDA). TAMPO DA ILHA DE COCÇÃO EM GRANITO PRETO 35mm. TAMPO DE MESA DA ILHA EM MDF BRANCO 36mm. GAVETEIRO, ARMÁRIO E PORTA ÓLEO COM PORTAS E FRENTE DE GAVETAS EM MDF BRANCO E PUXADORES JAZZ CLASSIC (SUGESTÃO). ILUMINAÇÃO EM PENDENTES E EMBUTIDA NO TETO.
  • 8.
    LF BUILDING ARQUITETURA PROJETOCASA BARRA DO PIRAÍ AUTOR: ARQ. LUCIANO E. FONSECA / CAU: AU 85245-7 DATA: 13/09/2015 INTERIOR DA COZINHA 6 COZINHA - ILHA DE COCÇÃO DETALHE 03 - ILHA DE COCÇÃO COM PORTAS E FRENTES DE GAVETAS EM MDF BRANCO E PUXADOR JAZZ CLASSIC (SUGESTÃO). PAINÉIS LATERIAIS 36mm EM MDF CARVALHO. PAINÉL DO FUNDO DA ILHA EM MDF TECCA 36mm (SUGESTÃO A SER DEFINIDA). TAMPO DA ILHA DE COCÇÃO EM GRANITO PRETO 35mm. TAMPO DE MESA DA ILHA EM MDF BRANCO 36mm. GAVETEIRO, ARMÁRIO E PORTA ÓLEO COM PORTAS E FRENTE DE GAVETAS EM MDF BRANCO E PUXADORES JAZZ CLASSIC (SUGESTÃO). ILUMINAÇÃO EM PENDENTES E EMBUTIDA NO TETO.
  • 9.
    LF BUILDING ARQUITETURA PROJETOCASA BARRA DO PIRAÍ AUTOR: ARQ. LUCIANO E. FONSECA / CAU: AU 85245-7 DATA: 13/09/2015 INTERIOR DA COZINHA 7 COZINHA - ILHA DE COCÇÃO DETALHE 04 - ILHA DE COCÇÃO COM PORTAS E FRENTES DE GAVETAS EM MDF BRANCO E PUXADOR JAZZ CLASSIC (SUGESTÃO). PAINÉIS LATERIAIS 36mm EM MDF CARVALHO. PAINÉL DO FUNDO DA ILHA EM MDF TECCA 36mm (SUGESTÃO A SER DEFINIDA). TAMPO DA ILHA DE COCÇÃO EM GRANITO PRETO 35mm. TAMPO DE MESA DA ILHA EM MDF BRANCO 36mm. GAVETEIRO, ARMÁRIO E PORTA ÓLEO COM PORTAS E FRENTE DE GAVETAS EM MDF BRANCO E PUXADORES JAZZ CLASSIC (SUGESTÃO). ILUMINAÇÃO EM PENDENTES E EMBUTIDA NO TETO.
  • 10.
    LF BUILDING ARQUITETURA PROJETOCASA BARRA DO PIRAÍ AUTOR: ARQ. LUCIANO E. FONSECA / CAU: AU 85245-7 DATA: 13/09/2015 INTERIOR DA COZINHA COZINHA - IMAGEM 01 8
  • 11.
    LF BUILDING ARQUITETURA PROJETOCASA BARRA DO PIRAÍ AUTOR: ARQ. LUCIANO E. FONSECA / CAU: AU 85245-7 DATA: 13/09/2015 INTERIOR DA COZINHA COZINHA - IMAGEM 02 9
  • 12.
    LF BUILDING ARQUITETURA PROJETOCASA BARRA DO PIRAÍ AUTOR: ARQ. LUCIANO E. FONSECA / CAU: AU 85245-7 DATA: 13/09/2015 INTERIOR DA COZINHA COZINHA - IMAGEM 03 10
  • 13.
    LF BUILDING ARQUITETURA PROJETOCASA BARRA DO PIRAÍ AUTOR: ARQ. LUCIANO E. FONSECA / CAU: AU 85245-7 DATA: 13/09/2015 INTERIOR DA COZINHA COZINHA - IMAGEM 04 11
  • 14.
    LF BUILDING ARQUITETURA PROJETOCASA BARRA DO PIRAÍ AUTOR: ARQ. LUCIANO E. FONSECA / CAU: AU 85245-7 DATA: 13/09/2015 INTERIOR DA SALA SALA - IMAGEM 01 12
  • 15.
    LF BUILDING ARQUITETURA PROJETOCASA BARRA DO PIRAÍ AUTOR: ARQ. LUCIANO E. FONSECA / CAU: AU 85245-7 DATA: 13/09/2015 INTERIOR DA SALA SALA - IMAGEM 02 13
  • 16.
    LF BUILDING ARQUITETURA PROJETOCASA BARRA DO PIRAÍ AUTOR: ARQ. LUCIANO E. FONSECA / CAU: AU 85245-7 DATA: 13/09/2015 INTERIOR DA SALA SALA - IMAGEM 03 14
  • 17.
    LF BUILDING ARQUITETURA PROJETOCASA BARRA DO PIRAÍ AUTOR: ARQ. LUCIANO E. FONSECA / CAU: AU 85245-7 DATA: 13/09/2015 INTERIOR DA SALA PISCINA - IMAGEM 03 15
  • 18.
    LF BUILDING ARQUITETURA PROJETOCASA BARRA DO PIRAÍ AUTOR: ARQ. LUCIANO E. FONSECA / CAU: AU 85245-7 DATA: 13/09/2015 PROJETO EXECUTIVO COZINHA PROJETO EXECUTIVO COZINHA 16
  • 19.
    LF BUILDING ARQUITETURA PROJETOCASA BARRA DO PIRAÍ AUTOR: ARQ. LUCIANO E. FONSECA / CAU: AU 85245-7 DATA: 13/09/2015 PROJETO EXECUTIVO COZINHA PROJETO EXECUTIVO COZINHA 17
  • 20.
    LF BUILDING ARQUITETURA PROJETOCASA BARRA DO PIRAÍ AUTOR: ARQ. LUCIANO E. FONSECA / CAU: AU 85245-7 DATA: 13/09/2015 PROJETO EXECUTIVO COZINHA PROJETO EXECUTIVO COZINHA 18
  • 21.
    LF BUILDING ARQUITETURA PROJETOCASA BARRA DO PIRAÍ AUTOR: ARQ. LUCIANO E. FONSECA / CAU: AU 85245-7 DATA: 13/09/2015 PROJETO EXECUTIVO COZINHA PROJETO EXECUTIVO COZINHA 19
  • 22.
    LF BUILDING ARQUITETURA AUTOR:ARQ. LUCIANO E. FONSECA / CAU: AU 85245-7 INTERIOR E FACHADA DA LOJA REVISÃO 02 DATA: 06/11/2015 PROJETO INTERIOR LOJA CARREFOUR BARRETOS – NITERÓI/RJ
  • 23.
    PROJETO: LF BUILDING ARQUITETURA PROJETOBÁSICO LOJA CARREFOUR BARRETOS – NITERÓI/RJ AUTOR: ARQ. LUCIANO E. FONSECA / CAU: AU 85245-7 DATA: 04/11/2015 INTERIOR E FACHADA DA LOJA 1 1. ESTRUTURA DE MADEIRA AUTOPORTANTE PARA SUPORTE DE PAREDES DRYWALL, PRATELEIRAS DE VIDRO SUSPENSAS, PAINÉIS CANALETADOS, PAINÉIS COM ESPELHOS, AR CONDICIONADO E INFRA; 2. PAREDES DE DRYWALL COM TV E PAPEL PAREDE (IMAGEM) IMPRESSO E APLICADO NO DRYWALL; 3. FACHADA DA LOJA COM REVESTIMENTO MDF BRANCO E PAINÉL DE VIDRO; 4. ESTANTE DE VIDRO SUSPENSA COM BASE EM MDF BRANCO E ILUMINAÇÃO EMBUTIDA, E PAINÉL LATERAL; 5. ESTANTE AUTOPORTANTE EM MDF BRANCO E PAINÉIS LATERIAIS EM MDF BRANCO; 6. ARMÁRIO BANCADA COM GAVETEIROS, ARMÁRIO C/ PORTA DE CORRER EM MDF BRANCO; 7. BALCÃO EM “L” COMPOSTO DE DOIS MÓDULOS: MÓDULO BALCÃO VITRINE EM “L” E MÓDULO ARMÁRIO CAIXA; 8. 01 PAINÉL CANALETADO EM MDF BRANCO COM MÓDULOS LATERIAIS EM MDF BRANCO E PRATELEIRAS DE VIDRO COM ILUMINAÇÃO LED E ILUMINAÇÃO NO TETO; 9. 01 PAINÉL CANALETADO EM MDF BRANCO COM MÓDULOS LATERIAIS EM PLACAS MODULADAS DE ESPELHOS LISOS E PRATELEIRAS DE VIDRO COM ILUMINAÇÃO LED NAS PRATELEIRAS, ILUMINAÇÃO SPOT NA BASE E ILUMINAÇÃO TETO (AR CONDICIONADO INSTALADO NO PAINEL CANALETADO); 10. GAVETEIRO BAIXO COM TAMPO EM MDF BRANCO 50mm E PAINÉIS LATERIAIS MDF BRANDO 50mm (ARMÁRIO MÓVEL); 11. ARMÁRIOS COM GAVETEIROS TIPO PISO-TETO NO ESTOQUE DA LOJA; 12. GALERIA CARREFOUR E ENTRADA DA LOJA; 13. ÁREA DE ESTOQUE DA LOJA COMPOSTA DE ESCRITÓRIO, PIA COM BANCADA, ARMÁRIOS (ITEM 10). OBS.: PREVER DRENO DO AR CONDICIONADO EMBUTIDO EM PAREDE DRYWALL A SER CONSTRUIDA; PREVER TRECHOS DE PAREDE DRYWALL C/ REFORÇO PARA SUSTENTAÇÃO DA TV E DO AR CONDICIONADO; PREVER NOVA INFRA DE ELÉTRICA NAS PAREDES DRYWALL E FORRO DE GESSO; PREVER SISTEMA DE AUDIO PARA TV; PREVER PIA COM BANCADA NO ESTOQUE (PONTOS DE ÁGUA E ESGOTO); PREVER INSTALAÇÃO DE RELÓGIO DE ÁGUA; PREVER INSTALAÇÃO DE CONDENSADORA DO AR NO TELHADO DO CARREFOUR; PREVER NOVA MONTAGEM DO QDL E NOVA INFRA DE ELÉTRICA E REDE.
  • 24.
    2 PLANTA BAIXA LF BUILDINGARQUITETURA PROJETO BÁSICO LOJA CARREFOUR BARRETOS – NITERÓI/RJ AUTOR: ARQ. LUCIANO E. FONSECA / CAU: AU 85245-7 DATA: 04/11/2015 INTERIOR E FACHADA DA LOJA 1 2 2 3 6 4 5 7 9 10 11 11 8 9 12 13
  • 25.
    3 VISTA 01: PAREDECOM TV E SANDA DE ILUMINAÇÃO NO TETO(IMAGEM APLICADA); BALCÃO EM “L” EM MDF BRANCO E PAINÉIS LATERIAIS EM MDF BRANCO 50mm (MÓDULO CAIXA E MÓDULO VITRINE) E ILUMINAÇÃO SPOT INTERNO VITRINE NA BASE E LED AZUL NA BASE EXTERNA, E LED LARANJA NO TAMPO (TRAVESSA SUPERIOR); BANCADA COM TAMPO MDF BRANCO 50mm, FRENTE DE GAVETAS E PORTAS CORRER EM MDF BRANCO 15mm E PAINÉIS EM MDF BRANCO; ESTANTE MDF BRANCO E PAINÉIS LATERIAIS EM MDF BRANCO 50mm (ILUMINAÇÃO ELD LARANJA NAS LATERIAIS) COM PRATELEITRAS DE VIDRO E ILUMINAÇÃO SPOT NA BASE, LED LARANJA NAS PRATELEIRAS, LED AZUL NA BASE FACE EXTERNA E SPOT NO TETO; 02 PAINÉIS CANALETADOS MDF BRANCO E ILUMINAÇÃO SPOT NO TETO E LED LARANJA NAS LATERIAIS, E MODULOS LATERIAIS EM ESPELHO E COM PRATELEIRAS DE VIDRO, SENDO ILUMINAÇÃO LED LARANJA NAS PRATELEIRAS, SPOT NA BASE E TETO; GAVETEIRO MÓVEL EM MDF BRANCO COM TAMPO MDF BRANCO 50mm E FRENTE DE GAVETAS MDF BRANCO E ILUMINAÇÃO LED AZUL NA BASE. LF BUILDING ARQUITETURA PROJETO LOJA CARREFOUR BARRETOS – NITERÓI/RJ AUTOR: ARQ. LUCIANO E. FONSECA / CAU: AU 85245-7 DATA: 04/11/2015 INTERIOR E FACHADA DA LOJA
  • 26.
    4LF BUILDING ARQUITETURA PROJETOLOJA CARREFOUR BARRETOS – NITERÓI/RJ AUTOR: ARQ. LUCIANO E. FONSECA / CAU: AU 85245-7 DATA: 04/11/2015 INTERIOR E FACHADA DA LOJA VISTA 02: PAREDE COM TV E SANDA DE ILUMINAÇÃO NO TETO(IMAGEM APLICADA); BALCÃO EM “L” EM MDF BRANCO E PAINÉIS LATERIAIS EM MDF BRANCO 50mm (MÓDULO CAIXA E MÓDULO VITRINE) E ILUMINAÇÃO SPOT INTERNO VITRINE NA BASE E LED AZUL NA BASE EXTERNA, E LED LARANJA NO TAMPO (TRAVESSA SUPERIOR); BANCADA COM TAMPO MDF BRANCO 50mm, FRENTE DE GAVETAS E PORTAS CORRER EM MDF BRANCO 15mm E PAINÉIS EM MDF BRANCO; ESTANTE MDF BRANCO E PAINÉIS LATERIAIS EM MDF BRANCO 50mm (ILUMINAÇÃO ELD LARANJA NAS LATERIAIS) COM PRATELEITRAS DE VIDRO E ILUMINAÇÃO SPOT NA BASE, LED LARANJA NAS PRATELEIRAS, LED AZUL NA BASE FACE EXTERNA E SPOT NO TETO; 02 PAINÉIS CANALETADOS MDF BRANCO E ILUMINAÇÃO SPOT NO TETO E LED LARANJA NAS LATERIAIS, E MODULOS LATERIAIS EM ESPELHO E COM PRATELEIRAS DE VIDRO, SENDO ILUMINAÇÃO LED LARANJA NAS PRATELEIRAS, SPOT NA BASE E TETO; GAVETEIRO MÓVEL EM MDF BRANCO COM TAMPO MDF BRANCO 50mm E FRENTE DE GAVETAS MDF BRANCO E ILUMINAÇÃO LED AZUL NA BASE.
  • 27.
    5LF BUILDING ARQUITETURA PROJETOLOJA CARREFOUR BARRETOS – NITERÓI/RJ AUTOR: ARQ. LUCIANO E. FONSECA / CAU: AU 85245-7 DATA: 04/11/2015 INTERIOR E FACHADA DA LOJA VISTA 03: BALCÃO EM “L” EM MDF BRANCO E PAINÉIS LATERIAIS EM MDF BRANCO 50mm (MÓDULO CAIXA E MÓDULO VITRINE) E ILUMINAÇÃO SPOT INTERNO VITRINE NA BASE E LED AZUL NA BASE EXTERNA, E LED LARANJA NO TAMPO (TRAVESSA SUPERIOR); 02 PAINÉIS CANALETADOS MDF BRANCO E ILUMINAÇÃO SPOT NO TETO E LED LARANJA NAS LATERIAIS, E MODULOS LATERIAIS EM ESPELHO E COM PRATELEIRAS DE VIDRO, SENDO ILUMINAÇÃO LED LARANJA NAS PRATELEIRAS, SPOT NA BASE E TETO; GAVETEIRO MÓVEL EM MDF BRANCO COM TAMPO MDF BRANCO 50mm E FRENTE DE GAVETAS MDF BRANCO E ILUMINAÇÃO LED AZUL NA BASE.
  • 28.
    6LF BUILDING ARQUITETURA PROJETOLOJA CARREFOUR BARRETOS – NITERÓI/RJ AUTOR: ARQ. LUCIANO E. FONSECA / CAU: AU 85245-7 DATA: 04/11/2015 INTERIOR E FACHADA DA LOJA VISTA 04: VITRINE FRENTE DE LOJA DE PRATELEIRAS DE VIDRO SUSPENSAS POR CABOS DE AÇO COM BASE MDF BRANCO E ILUMINAÇÃO LED AZUL NA FACE EXTERNA E SPOT S NA BASE E NO TETO (MODULOS DE MDF BRANCO NA LATERAL DA LOJA E CABOS DE AÇO PRESOS NA BASE E NO TETO COM ILUMINAÇÃO SPOTS NO TETO – PROTEÇÃO DA “ESQUINA” DAS PRATELEIRAS DE VIDRO DE MANEIRA A MANTER A VISIBILIDADE); BALCÃO EM “L” EM MDF BRANCO E PAINÉIS LATERIAIS EM MDF BRANCO 50mm (MÓDULO CAIXA E MÓDULO VITRINE) E ILUMINAÇÃO SPOT INTERNO VITRINE NA BASE E LED AZUL NA BASE EXTERNA, E LED LARANJA NO TAMPO (TRAVESSA SUPERIOR); BANCADA COM TAMPO MDF BRANCO 50mm, FRENTE DE GAVETAS E PORTAS CORRER EM MDF BRANCO 15mm E PAINÉIS EM MDF BRANCO; ESTANTE MDF BRANCO E PAINÉIS LATERIAIS EM MDF BRANCO 50mm (ILUMINAÇÃO ELD LARANJA NAS LATERIAIS) COM PRATELEITRAS DE VIDRO E ILUMINAÇÃO SPOT NA BASE, LED LARANJA NAS PRATELEIRAS, LED AZUL NA BASE FACE EXTERNA E SPOT NO TETO; 02 PAINÉIS CANALETADOS MDF BRANCO E ILUMINAÇÃO SPOT NO TETO E LED LARANJA NAS LATERIAIS, E MODULOS LATERIAIS EM ESPELHO E COM PRATELEIRAS DE VIDRO, SENDO ILUMINAÇÃO LED LARANJA NAS PRATELEIRAS, SPOT NA BASE E TETO; GAVETEIRO MÓVEL EM MDF BRANCO COM TAMPO MDF BRANCO 50mm E FRENTE DE GAVETAS MDF BRANCO E ILUMINAÇÃO LED AZUL NA BASE.
  • 29.
    7LF BUILDING ARQUITETURA PROJETOLOJA CARREFOUR BARRETOS – NITERÓI/RJ AUTOR: ARQ. LUCIANO E. FONSECA / CAU: AU 85245-7 DATA: 04/11/2015 INTERIOR E FACHADA DA LOJA VISTA 04: VITRINE FRENTE DE LOJA DE PRATELEIRAS DE VIDRO SUSPENSAS POR CABOS DE AÇO COM BASE MDF BRANCO E ILUMINAÇÃO LED AZUL NA FACE EXTERNA E SPOT S NA BASE E NO TETO (MODULOS DE MDF BRANCO NA LATERAL DA LOJA E CABOS DE AÇO PRESOS NA BASE E NO TETO COM ILUMINAÇÃO SPOTS NO TETO – PROTEÇÃO DA “ESQUINA” DAS PRATELEIRAS DE VIDRO DE MANEIRA A MANTER A VISIBILIDADE); BALCÃO EM “L” EM MDF BRANCO E PAINÉIS LATERIAIS EM MDF BRANCO 50mm (MÓDULO CAIXA E MÓDULO VITRINE) E ILUMINAÇÃO SPOT INTERNO VITRINE NA BASE E LED AZUL NA BASE EXTERNA, E LED LARANJA NO TAMPO (TRAVESSA SUPERIOR); BANCADA COM TAMPO MDF BRANCO 50mm, FRENTE DE GAVETAS E PORTAS CORRER EM MDF BRANCO 15mm E PAINÉIS EM MDF BRANCO; ESTANTE MDF BRANCO E PAINÉIS LATERIAIS EM MDF BRANCO 50mm (ILUMINAÇÃO ELD LARANJA NAS LATERIAIS) COM PRATELEITRAS DE VIDRO E ILUMINAÇÃO SPOT NA BASE, LED LARANJA NAS PRATELEIRAS, LED AZUL NA BASE FACE EXTERNA E SPOT NO TETO; 02 PAINÉIS CANALETADOS MDF BRANCO E ILUMINAÇÃO SPOT NO TETO E LED LARANJA NAS LATERIAIS, E MODULOS LATERIAIS EM ESPELHO E COM PRATELEIRAS DE VIDRO, SENDO ILUMINAÇÃO LED LARANJA NAS PRATELEIRAS, SPOT NA BASE E TETO;
  • 30.
    8LF BUILDING ARQUITETURA PROJETOLOJA CARREFOUR BARRETOS – NITERÓI/RJ AUTOR: ARQ. LUCIANO E. FONSECA / CAU: AU 85245-7 DATA: 04/11/2015 INTERIOR E FACHADA DA LOJA FACHADA 01: VITRINE FRENTE DE LOJA DE PRATELEIRAS DE VIDRO SUSPENSAS POR CABOS DE AÇO COM BASE MDF BRANCO E ILUMINAÇÃO LED AZUL NA FACE EXTERNA E SPOT S NA BASE E NO TETO (MODULOS DE MDF BRANCO NA LATERAL DA LOJA E CABOS DE AÇO PRESOS NA BASE E NO TETO COM ILUMINAÇÃO SPOTS NO TETO – PROTEÇÃO DA “ESQUINA” DAS PRATELEIRAS DE VIDRO DE MANEIRA A MANTER A VISIBILIDADE); LETREIRO COM LOGO ILUMINADA.
  • 31.
    9 ARMÁRIO PISO-TETO: 02ARMÁRIOSTIPO PISO-TETO EM MDF BRANCO COM PAINEIS LATERIAIS EM MDF MARFIM 35mm COMPOSTOS DE GAVETEIROS NA PARTE INFERIOR E ARMÁRIOS NA PARTE SUPERIOR. LF BUILDING ARQUITETURA PROJETO LOJA CARREFOUR BARRETOS – NITERÓI/RJ AUTOR: ARQ. LUCIANO E. FONSECA / CAU: AU 85245-7 DATA: 04/11/2015 INTERIOR E FACHADA DA LOJA ARMÁRIO PISO-TETO_01: A SER MONTADO NO ESTOQUE ARMÁRIO PISO-TETO_02: A SER MONTADO NA ENTRADA DO ESTOQUE
  • 32.
    10LF BUILDING ARQUITETURA PROJETOEXECUTIVO LOJA CARREFOUR BARRETOS – NITERÓI/RJ AUTOR: ARQ. LUCIANO E. FONSECA / CAU: AU 85245-7 DATA: 04/11/2015 PROJETO EXECUTIVO PARA LEGALIZAÇÃO SEGUNDO CADERNO TECNICO DO SHOPPING
  • 33.
    11LF BUILDING ARQUITETURA PROJETOEXECUTIVO LOJA CARREFOUR BARRETOS – NITERÓI/RJ AUTOR: ARQ. LUCIANO E. FONSECA / CAU: AU 85245-7 DATA: 04/11/2015 PROJETO EXECUTIVO PARA LEGALIZAÇÃO SEGUNDO CADERNO TECNICO DO SHOPPING
  • 34.
    11LF BUILDING ARQUITETURA PROJETOEXECUTIVO LOJA CARREFOUR BARRETOS – NITERÓI/RJ AUTOR: ARQ. LUCIANO E. FONSECA / CAU: AU 85245-7 DATA: 04/11/2015 PROJETO EXECUTIVO PARA LEGALIZAÇÃO SEGUNDO CADERNO TECNICO DO SHOPPING
  • 35.
    11LF BUILDING ARQUITETURA PROJETOEXECUTIVO LOJA CARREFOUR BARRETOS – NITERÓI/RJ AUTOR: ARQ. LUCIANO E. FONSECA / CAU: AU 85245-7 DATA: 04/11/2015 PROJETO EXECUTIVO PARA LEGALIZAÇÃO SEGUNDO CADERNO TECNICO DO SHOPPING
  • 36.
    11LF BUILDING ARQUITETURA PROJETOEXECUTIVO LOJA CARREFOUR BARRETOS – NITERÓI/RJ AUTOR: ARQ. LUCIANO E. FONSECA / CAU: AU 85245-7 DATA: 04/11/2015 PROJETO EXECUTIVO PARA LEGALIZAÇÃO SEGUNDO CADERNO TECNICO DO SHOPPING
  • 37.
    LF BUILDING ARQUITETURA AUTOR:ARQ. LUCIANO E. FONSECA / CAU: AU 85245-7 INTERIOR E FACHADA DA LOJA REVISÃO 02 DATA: 07/10/2014 PROJETO LOJA JARDIM ICARAÍ – NITERÓI/RJ
  • 38.
    PROJETO INTERIOR LOJA JARDIMICARAÍ AUTOR: ARQ. LUCIANO E. FONSECA / CAU: AU 85245-7 DATA: 07/10/2014 PROJETO: 1. CONSTRUÇÃO E MONTAGEM DE ESTRUTURA DE TESTEIRA E COLUNAS EM MDF CARVALHO COM: 1.1. - ESTANTE EMBUTIDA (PRATELEIRAS DE VIDRO / ILUMINAÇÃO SPOT EMBUTIDO NO FORRO / INTERRUPTORES EMBUTIDOS NA LATERAL) À DIREITA DA LOJA; 1.2. - PAINÉL EMBUTIDO MAIS BANCADA E ARMÁRIOS COM GAVETAS À ESQUERDA DA LOJA EM MDF CARVALHO (ILUMINAÇÃO COM ESPOTES EMBUTIDOS NO FORRO / INTERRUPTORES INTERNO), 1.3. - TESTEIRA EM MDF CARVALHO COM LOGO RECORTADA E ILUMINADA; 2. FABRICAÇÃO DE BALCÃO EM “L” EM MDF CARVALHO E PRATELEIRAS EM VIDRO (ILUMINAÇÃO SPOT EMBUTIDO NA BASE DO BALCÃO / INTERRUPTORES ELÉTRICOS NAS LATERAIS / GAVETA DO CAIXA E ARMÁRIO INTERNO / PORTA LATERAL EM MDF CARVALHO); 3. FABRICAÇÃO E MONTAGEM DE PAREDE TIPO PAINÉL TV COM ESTRUTURA EM MADEIRA E ACABAMENTO EM IMAGEM IMPRESSA (SUPORTE PARA TV / PREVER TUBULAÇÕES PARA TV / ESTRUTURA FIXA NA ESTRUTURA DO FORRO E PAREDE / ILUMINAÇÃO SPOT EMBUTIDO NO TETO / INTERRUPTORES ELÉTRICOS); 4. FABRICAÇÃO E MONTAGEM DE ESTANTE COM PRATELEIRAS DE VIDRO SUSPENSAS POR CABOS DE AÇO FIXADOS EM ESTRUTURA DE MADEIRA TIPO TESTEIRA COM ACABAMENTO EM MDF CARVALHO NA FRENTE DA LOJA (ILUMINAÇÃO SPOT EMBUTIDO NO FORRO DA TESTEIRA); 5. FABRICAÇÃO E MONTAGEM DE 02 PAINÉIS CANALETADOS EM MFD CARVALHO MAIS COMPLEMENTO LATERAL EM MDF CARVALHO (ILUMINAÇÃO SPOTS FIXADOS NA PAREDE / PREVER CANALETA EMBUTIDA PARA ENFIAÇÃO E PASSAGEM DE FIOS DE ILUMINAÇÃO TANTO PARA O PAINÉL QUANTO PARA A ESTANTE DE VIDRO SUSPENSA NA FRENTE DA LOJA COM ILUMINAÇÃO NO FORRO DA TESTEIRA); 6. EXECUÇÃO DE ACABAMENTO DA FACHADA EM MDF CARVALHO E LOGO ILUMINADA COM LETRAS TIPO CAIXA;6 1. 3 5 4 3 2 1. 2 1. 1 1 1
  • 39.
    PROJETO INTERIOR LOCAL MONTAGEM:LOJA JARDIM ICARAÍ AUTOR: ARQ. LUCIANO E. FONSECA / CAU: AU 85245-7 DATA: 07/10/2014 PLANTA BAIXA 6 1. 1 1. 2 1. 3 5.1 4 3 2 5.2 2
  • 40.
    PROJETO INTERIOR LOCAL MONTAGEM:LOJA JARDIM ICARAÍ AUTOR: ARQ. LUCIANO E. FONSECA / CAU: AU 85245-7 DATA: 07/10/2014 FACHADA DA LOJA 3
  • 41.
    PROJETO INTERIOR LOCAL MONTAGEM:LOJA JARDIM ICARAÍ AUTOR: ARQ. LUCIANO E. FONSECA / CAU: AU 85245-7 DATA: 07/10/2014 PERSPECTIVAS 4
  • 42.
    PROJETO INTERIOR LOCAL MONTAGEM:LOJA JARDIM ICARAÍ AUTOR: ARQ. LUCIANO E. FONSECA / CAU: AU 85245-7 DATA: 07/10/2014 PERSPECTIVAS 5
  • 43.
    PROJETO INTERIOR LOCAL MONTAGEM:LOJA JARDIM ICARAÍ AUTOR: ARQ. LUCIANO E. FONSECA / CAU: AU 85245-7 DATA: 07/10/2014 PERSPECTIVAS 6
  • 44.
    PROJETO INTERIOR LOCAL MONTAGEM:LOJA JARDIM ICARAÍ AUTOR: ARQ. LUCIANO E. FONSECA / CAU: AU 85245-7 DATA: 07/10/2014 PERSPECTIVAS 7
  • 45.
    PROJETO INTERIOR LOCAL MONTAGEM:LOJA JARDIM ICARAÍ AUTOR: ARQ. LUCIANO E. FONSECA / CAU: AU 85245-7 DATA: 07/10/2014 PERSPECTIVAS 8
  • 46.
    PROJETO INTERIOR LOCAL MONTAGEM:LOJA JARDIM ICARAÍ AUTOR: ARQ. LUCIANO E. FONSECA / CAU: AU 85245-7 DATA: 07/10/2014 PERSPECTIVAS 9
  • 47.
    PROJETO INTERIOR LOCAL MONTAGEM:LOJA JARDIM ICARAÍ AUTOR: ARQ. LUCIANO E. FONSECA / CAU: AU 85245-7 DATA: 07/10/2014 PERSPECTIVAS 10
  • 48.
    ESTRUTURA TESTEIRA DE ESTRUTURADE TESTEIRA E COLUNAS EM MDF CARVALHO COM ESTANTE EMBUTIDA (PRATELEIRAS DE VIDRO / ILUMINAÇÃO SPOT EMBUTIDO NO FORRO / INTERRUPTORES EMBUTIDOS NA LATERAL) À DIREITA DA LOJA E PAINÉL EMBUTIDO MAIS BANCADA E ARMÁRIOS COM GAVETAS À ESQUERDA DA LOJA EM MDF CARVALHO (ILUMINAÇÃO COM ESPOTES EMBUTIDOS NO FORRO / INTERRUPTORES INTERNO), E NA TESTEIRA LOGO RECORTADA E ILUMINADA. PROJETO INTERIOR LOCAL MONTAGEM: LOJA JARDIM ICARAÍ AUTOR: ARQ. LUCIANO E. FONSECA / CAU: AU 85245-7 DATA: 07/10/2014 11
  • 49.
    PROJETO INTERIOR LOCAL MONTAGEM:LOJA JARDIM ICARAÍ AUTOR: ARQ. LUCIANO E. FONSECA / CAU: AU 85245-7 DATA: 07/10/2014 PRATELEIRA DE VIDRO EMBUTIDA ESTANTE EMBUTIDA (PRATELEIRAS DE VIDRO / ILUMINAÇÃO SPOT EMBUTIDO NO FORRO / INTERRUPTORES EMBUTIDOS NA LATERAL) 12
  • 50.
    PROJETO INTERIOR LOCAL MONTAGEM:LOJA JARDIM ICARAÍ AUTOR: ARQ. LUCIANO E. FONSECA / CAU: AU 85245-7 DATA: 07/10/2014 PAINÉL EMBUTIDA MAIS BANCADA E ARMÁRIOS COM GAVETAS PAINÉL EMBUTIDO MAIS BANCADA E ARMÁRIOS COM GAVETAS À ESQUERDA DA LOJA EM MDF CARVALHO (ILUMINAÇÃO COM ESPOTES EMBUTIDOS NO FORRO / INTERRUPTORES INTERNO) 13
  • 51.
    PROJETO INTERIOR LOCAL MONTAGEM:LOJA JARDIM ICARAÍ AUTOR: ARQ. LUCIANO E. FONSECA / CAU: AU 85245-7 DATA: 07/10/2014 DETALHE PAINÉL EMBUTIDA PAINÉL EMBUTIDO EM MDF CARVALHO (ILUMINAÇÃO COM ESPOTES EMBUTIDOS NO FORRO / INTERRUPTORES INTERNO) 14
  • 52.
    PROJETO INTERIOR LOCAL MONTAGEM:LOJA JARDIM ICARAÍ AUTOR: ARQ. LUCIANO E. FONSECA / CAU: AU 85245-7 DATA: 07/10/2014 TESTEIRA COM LOGO ILUINADA TESTEIRA EM MDF CARVALHO COM LOGO RECORTADA E ILUMINADA 15
  • 53.
    PROJETO INTERIOR LOCAL MONTAGEM:LOJA JARDIM ICARAÍ AUTOR: ARQ. LUCIANO E. FONSECA / CAU: AU 85245-7 DATA: 07/10/2014 BALCÃO EM “L” BALCÃO EM “L” EM MDF CARVALHO E PRATELEIRAS EM VIDRO (ILUMINAÇÃO SPOT EMBUTIDO NA BASE DO BALCÃO / INTERRUPTORES ELÉTRICOS NAS LATERAIS / GAVETA DO CAIXA E ARMÁRIO INTERNO / PORTA LATERAL EM MDF CARVALHO); 16
  • 54.
    PROJETO INTERIOR LOCAL MONTAGEM:LOJA JARDIM ICARAÍ AUTOR: ARQ. LUCIANO E. FONSECA / CAU: AU 85245-7 DATA: 07/10/2014 BALCÃO EM “L” BALCÃO EM “L” EM MDF CARVALHO E PRATELEIRAS EM VIDRO (ILUMINAÇÃO SPOT EMBUTIDO NA BASE DO BALCÃO / INTERRUPTORES ELÉTRICOS NAS LATERAIS / GAVETA DO CAIXA E ARMÁRIO INTERNO / PORTA LATERAL EM MDF CARVALHO); 17
  • 55.
    PROJETO INTERIOR LOCAL MONTAGEM:LOJA JARDIM ICARAÍ AUTOR: ARQ. LUCIANO E. FONSECA / CAU: AU 85245-7 DATA: 07/10/2014 DETALHE BALCÃO EM “L” BALCÃO EM “L” EM MDF CARVALHO E PRATELEIRAS EM VIDRO (ILUMINAÇÃO SPOT EMBUTIDO NA BASE DO BALCÃO / INTERRUPTORES ELÉTRICOS NAS LATERAIS / GAVETA DO CAIXA E ARMÁRIO INTERNO / PORTA LATERAL EM MDF CARVALHO); 18
  • 56.
    PROJETO INTERIOR LOCAL MONTAGEM:LOJA JARDIM ICARAÍ AUTOR: ARQ. LUCIANO E. FONSECA / CAU: AU 85245-7 DATA: 07/10/2014 PAREDE TIPO PAINÉL “TV” PAREDE TIPO PAINÉL TV COM ESTRUTURA EM MADEIRA E ACABAMENTO EM IMAGEM IMPRESSA (SUPORTE PARA TV / PREVER TUBULAÇÕES PARA TV / ESTRUTURA FIXA NA ESTRUTURA DO FORRO E PAREDE / ILUMINAÇÃO SPOT EMBUTIDO NO TETO / INTERRUPTORES ELÉTRICOS); 19
  • 57.
    PROJETO INTERIOR LOCAL MONTAGEM:LOJA JARDIM ICARAÍ AUTOR: ARQ. LUCIANO E. FONSECA / CAU: AU 85245-7 DATA: 07/10/2014 ESTANTE PRATELEIRAS VIDRO SUSPENSA ESTANTE COM PRATELEIRAS DE VIDRO SUSPENSAS POR CABOS DE AÇO FIXADOS EM ESTRUTURA DE MADEIRA TIPO TESTEIRA COM ACABAMENTO EM MDF CARVALHO NA FRENTE DA LOJA (ILUMINAÇÃO SPOT EMBUTIDO NO FORRO DA TESTEIRA); 20
  • 58.
    PROJETO INTERIOR LOCAL MONTAGEM:LOJA JARDIM ICARAÍ AUTOR: ARQ. LUCIANO E. FONSECA / CAU: AU 85245-7 DATA: 07/10/2014 PAINÉL CANALETADO – LADO ESQUERDO DA LOJA 02 PAINÉIS CANALETADOS EM MFD CARVALHO MAIS COMPLEMENTO LATERAL EM MDF CARVALHO (ILUMINAÇÃO SPOTS FIXADOS NA PAREDE / PREVER CANALETA EMBUTIDA PARA ENFIAÇÃO E PASSAGEM DE FIOS DE ILUMINAÇÃO TANTO PARA O PAINÉL QUANTO PARA A ESTANTE DE VIDRO SUSPENSA NA FRENTE DA LOJA COM ILUMINAÇÃO NO FORRO DA TESTEIRA); 21
  • 59.
    PROJETO INTERIOR LOCAL MONTAGEM:LOJA JARDIM ICARAÍ AUTOR: ARQ. LUCIANO E. FONSECA / CAU: AU 85245-7 DATA: 07/10/2014 PAINÉL CANALETADOS– LADO DIREITO DA LOJA 02 PAINÉIS CANALETADOS EM MFD CARVALHO MAIS COMPLEMENTO LATERAL EM MDF CARVALHO (ILUMINAÇÃO SPOTS FIXADOS NA PAREDE / PREVER CANALETA EMBUTIDA PARA ENFIAÇÃO E PASSAGEM DE FIOS DE ILUMINAÇÃO TANTO PARA O PAINÉL QUANTO PARA A ESTANTE DE VIDRO SUSPENSA NA FRENTE DA LOJA COM ILUMINAÇÃO NO FORRO DA TESTEIRA); 22
  • 60.
    PROJETO INTERIOR LOCAL MONTAGEM:LOJA JARDIM ICARAÍ AUTOR: ARQ. LUCIANO E. FONSECA / CAU: AU 85245-7 DATA: 07/10/2014 DETALHES PAINÉIS CANALETADOS 02 PAINÉIS CANALETADOS EM MFD CARVALHO MAIS COMPLEMENTO LATERAL EM MDF CARVALHO. OBS: AMBOS OS PAINÉIS CANALETADOS NA FRENTE DA LOJA TÊM AS MESMAS MEDIDAS. 23
  • 61.
    PROJETO EXECUTIVO LOCAL MONTAGEM:LOJA JARDIM ICARAÍ AUTOR: ARQ. LUCIANO E. FONSECA / CAU: AU 85245-7 DATA: 07/10/2014 24
  • 62.
    PROJETO EXECUTIVO LOCAL MONTAGEM:LOJA JARDIM ICARAÍ AUTOR: ARQ. LUCIANO E. FONSECA / CAU: AU 85245-7 DATA: 07/10/2014 25
  • 63.
    PROJETO EXECUTIVO LOCAL MONTAGEM:LOJA JARDIM ICARAÍ AUTOR: ARQ. LUCIANO E. FONSECA / CAU: AU 85245-7 DATA: 07/10/2014 26
  • 64.
    PROJETO EXECUTIVO LOCAL MONTAGEM:LOJA JARDIM ICARAÍ AUTOR: ARQ. LUCIANO E. FONSECA / CAU: AU 85245-7 DATA: 07/10/2014 27
  • 65.
    PROJETO EXECUTIVO LOCAL MONTAGEM:LOJA JARDIM ICARAÍ AUTOR: ARQ. LUCIANO E. FONSECA / CAU: AU 85245-7 DATA: 07/10/2014 28
  • 66.
    LF BUILDING ARQUITETURA AUTOR:ARQ. LUCIANO E. FONSECA / CAU: AU 85245-7 INTERIOR E FACHADA DA LOJA REVISÃO 01 DATA: 15/01/2016 PROJETO LOJA GALERIA COMERCIAL EM ICARAÍ – NITERÓI/RJ
  • 67.
    2 VISTA 01 LF BUILDINGARQUITETURA PROJETO LOJA GALERIA COMERCIAL ICARAÍ – NITERÓI/RJ AUTOR: ARQ. LUCIANO E. FONSECA / CAU: AU 85245-7 DATA: 18/01/2016 INTERIOR E FACHADA DA LOJA
  • 68.
    3 VISTA 02 LF BUILDINGARQUITETURA PROJETO LOJA GALERIA COMERCIAL ICARAÍ – NITERÓI/RJ AUTOR: ARQ. LUCIANO E. FONSECA / CAU: AU 85245-7 DATA: 18/01/2016 INTERIOR E FACHADA DA LOJA
  • 69.
    4 VISTA 03 LF BUILDINGARQUITETURA PROJETO LOJA GALERIA COMERCIAL ICARAÍ – NITERÓI/RJ AUTOR: ARQ. LUCIANO E. FONSECA / CAU: AU 85245-7 DATA: 18/01/2016 INTERIOR E FACHADA DA LOJA
  • 70.
    5 VISTA 04 LF BUILDINGARQUITETURA PROJETO LOJA GALERIA COMERCIAL ICARAÍ – NITERÓI/RJ AUTOR: ARQ. LUCIANO E. FONSECA / CAU: AU 85245-7 DATA: 18/01/2016 INTERIOR E FACHADA DA LOJA
  • 71.
    6 VISTA 05 LF BUILDINGARQUITETURA PROJETO LOJA GALERIA COMERCIAL ICARAÍ – NITERÓI/RJ AUTOR: ARQ. LUCIANO E. FONSECA / CAU: AU 85245-7 DATA: 18/01/2016 INTERIOR E FACHADA DA LOJA
  • 72.
    7 VISTA 06 LF BUILDINGARQUITETURA PROJETO LOJA GALERIA COMERCIAL ICARAÍ – NITERÓI/RJ AUTOR: ARQ. LUCIANO E. FONSECA / CAU: AU 85245-7 DATA: 18/01/2016 INTERIOR E FACHADA DA LOJA
  • 73.
    8 PROJETO EXECUTIVO -PLANTA BAIXA LF BUILDING ARQUITETURA PROJETO EXECUTIVO AUTOR: ARQ. LUCIANO E. FONSECA / CAU: AU 85245-7 DATA: 18/01/2016 PROJETO EXECUTIVO LOJA EM GALERIA EM ICARAÍ – NITERÓI / RJ
  • 74.
    9 PROJETO EXECUTIVO -PLANTA LUMINOTÉCNICA LF BUILDING ARQUITETURA PROJETO EXECUTIVO AUTOR: ARQ. LUCIANO E. FONSECA / CAU: AU 85245-7 DATA: 18/01/2016 PROJETO EXECUTIVO LOJA EM GALERIA EM ICARAÍ – NITERÓI / RJ
  • 75.
    10 PROJETO EXECUTIVO -CORTES LF BUILDING ARQUITETURA PROJETO EXECUTIVO AUTOR: ARQ. LUCIANO E. FONSECA / CAU: AU 85245-7 DATA: 18/01/2016 PROJETO EXECUTIVO LOJA EM GALERIA EM ICARAÍ – NITERÓI / RJ
  • 76.
    PROJETO PARA QUIOSQUE EMSHOPPING CENTER Cliente: quiosque Mr. case Arquiteto luciano fonseca
  • 77.
    PROJETO PARA QUIOSQUEEM SHOPPING CENTER PlANTA BAIXA Especificações: •02 Balcões cascata com armário e gaveteiro em mdf carvalho atenas / mdf branco e vengué / vidro (1,80m x 0,50m x 1,10m) •01 Balcão cascata com vitrine inferior mdf carvalho atenas / mdf branco e vengué / vidro (1,0m x 0,50m x 1,10m) •01 Balcão cascata com vitrine / computador / gaveteiros em mdf carvalho atenas / mdf branco / vidro (1,0m x 0,50m x 1,10m) •04 Totens com vitrines curvas em mdf branco evengué (0,50 x 0,50m x 1,60m) Arquiteto luciano fonseca
  • 78.
    PROJETO PARA QUIOSQUEEM SHOPPING CENTER Vista panorâmica 01 Especificações: •Logos iluminadas sob dois totens e na bandeira inferior dos balcões vitrines em cascatas •10 gavetas internas em cada um dos balcões vitrines em cascatas •04 gavetas, 01 armário e apoio para gabinete de computador interiormente no balcão lateral em cascata Arquiteto luciano fonseca
  • 79.
    PROJETO PARA QUIOSQUEEM SHOPPING CENTER Vista frontal Especificações: •Logo na bandeira inferior do balcão vitrine em cascata e na parte superior de dois totens •Iluminação indireta nas bases dos balcões e dos totens •07 cascatas em mdf branco / iluminadas (0,06m x 1,8m x 0,10 cm) •04 vitrines em cada toten lateral (0,50 x 0,50 x 1,60m) Arquiteto luciano fonseca
  • 80.
    PROJETO PARA QUIOSQUEEM SHOPPING CENTER Vista dos fundos Especificações: •Balcão lateral em cascata com vitrine em mdf branco / laterais em mdf carvalho atenas / vitrine em vidro •Balcão frontal com 07 cascatas em mdf branco / lateriais em carvalho atenas Arquiteto luciano fonseca
  • 81.
    PROJETO PARA QUIOSQUEEM SHOPPING CENTER Perspectiva 01 Arquiteto luciano fonseca
  • 82.
    PROJETO PARA QUIOSQUEEM SHOPPING CENTER Vista panorâmica 02 Arquiteto luciano fonseca
  • 83.
    PROJETO EXECUTIVO PROJETO EXECUTIVOQUIOSQUE PARA LEGALIZAÇÃO JUNTO AO SHOPPING VIA BRASIL Arquiteto luciano fonseca
  • 84.
    PROJETO EXECUTIVO PROJETO EXECUTIVOQUIOSQUE PARA LEGALIZAÇÃO JUNTO AO SHOPPING VIA BRASIL Arquiteto luciano fonseca
  • 85.
    PROJETO EXECUTIVO PROJETO EXECUTIVOQUIOSQUE PARA LEGALIZAÇÃO JUNTO AO SHOPPING VIA BRASIL Arquiteto luciano fonseca
  • 86.
    PROJETO EXECUTIVO PROJETO EXECUTIVOQUIOSQUE PARA LEGALIZAÇÃO JUNTO AO SHOPPING VIA BRASIL Arquiteto luciano fonseca
  • 87.
    PROJETO EXECUTIVO PROJETO EXECUTIVOQUIOSQUE PARA LEGALIZAÇÃO JUNTO AO SHOPPING VIA BRASIL Arquiteto luciano fonseca
  • 88.
    PROJETO PARA QUIOSQUEEM SHOPPING CENTER FOTOS Arquiteto luciano fonseca
  • 89.
    PROJETO PARA QUIOSQUEEM SHOPPING CENTER FOTOS Arquiteto luciano fonseca
  • 90.
    PROJETO PARA QUIOSQUEEM SHOPPING CENTER FOTOS Arquiteto luciano fonseca
  • 91.
    PROJETO PARA QUIOSQUEEM SHOPPING CENTER Vista panorâmica 02 Arquiteto luciano fonseca
  • 92.
    LF BUILDING ARQUITETURA AUTOR:ARQ. LUCIANO E. FONSECA / CAU: AU 85245-7 MAQUETE FÍSICA DO PROJETO ROCK BOLA MTV - RIO DE JANEIRO DATA: ABRIL/2013 MAQUETE ROCK BOLA MTV_RIO DE JANEIRO / RJ
  • 93.
    2 LF BUILDING ARQUITETURAMAQUETEPROJETO ROCK BOLA MTV /RJ AUTOR: ARQ. LUCIANO E. FONSECA / CAU: AU 85245-7 DATA: ABRIL/2013
  • 94.
    3 LF BUILDING ARQUITETURA AUTOR:ARQ. LUCIANO E. FONSECA / CAU: AU 85245-7 DATA: DEZEMBRO/2012 MAQUETE PROJETO ROCK BOLA MTV /RJ
  • 95.
    4 LF BUILDING ARQUITETURA AUTOR:ARQ. LUCIANO E. FONSECA / CAU: AU 85245-7 DATA: DEZEMBRO/2012 MAQUETE PROJETO ROCK BOLA MTV /RJ
  • 96.
    5 LF BUILDING ARQUITETURA AUTOR:ARQ. LUCIANO E. FONSECA / CAU: AU 85245-7 DATA: DEZEMBRO/2012 MAQUETE PROJETO ROCK BOLA MTV /RJ
  • 97.
    6 LF BUILDING ARQUITETURA AUTOR:ARQ. LUCIANO E. FONSECA / CAU: AU 85245-7 DATA: DEZEMBRO/2012 MAQUETE PROJETO ROCK BOLA MTV /RJ
  • 98.
    7 LF BUILDING ARQUITETURA AUTOR:ARQ. LUCIANO E. FONSECA / CAU: AU 85245-7 DATA: DEZEMBRO/2012 MAQUETE PROJETO ROCK BOLA MTV /RJ
  • 99.
    LF BUILDING ARQUITETURA AUTOR:ARQ. LUCIANO E. FONSECA / CAU: AU 85245-7 RESIDENCIA UNIFAMILIAR EM SÃO JOSÉ DO IMBASSAÍ / RJ DATA: JUL / 2012 PROJETO REFORMA E ACRÉSCIMO P/ LEGALIZAÇÃO RESIDENCIA UNIFAMILIAR
  • 101.
    LF BUILDING ARQUITETURA AUTOR:ARQ. LUCIANO E. FONSECA / CAU: AU 85245-7 RESIDENCIA UNIFAMILIAR EM SAMPAIO / RJ DATA: JUL / 2014 PROJETO REFORMA E ACRÉSCIMO P/ LEGALIZAÇÃO RESIDENCIA UNIFAMILIAR
  • 104.
    LF BUILDING ARQUITETURA PROJETOSEXECUTIVO DE PORTARIA EDIFÍCIO P/ LEGALIZAÇÃO - RJ AUTOR: DESENHO ARQ. LUCIANO E. FONSECA / CAU: AU 85245-7 DATA: 02/12/2015
  • 105.
    LF BUILDING ARQUITETURA PROJETOSLEGALIZAÇÃO – CENTRO/RJ AUTOR: ARQ. LUCIANO E. FONSECA / CAU: AU 85245-7 DATA: 02/12/2015
  • 106.
    LF BUILDING ARQUITETURA AUTOR:ARQ. LUCIANO E. FONSECA / CAU: AU 85245-7 MAQUETE FÍSICA DO SAMBÓDROMO DO RIO DE JANEIRO DATA: DEZ/2012 MAQUETE SAMBÓDROMO DO RIO DE JANEIRO – CENTRO/RJ
  • 107.
    2 LF BUILDING ARQUITETURAMAQUETESAMBÓDROMO RIO DE JANEIRO – CENTRO /RJ AUTOR: ARQ. LUCIANO E. FONSECA / CAU: AU 85245-7 DATA: DEZEMBRO/2012
  • 108.
    3 LF BUILDING ARQUITETURAMAQUETESAMBÓDROMO RIO DE JANEIRO – CENTRO /RJ AUTOR: ARQ. LUCIANO E. FONSECA / CAU: AU 85245-7 DATA: DEZEMBRO/2012
  • 109.
    4 LF BUILDING ARQUITETURAMAQUETESAMBÓDROMO RIO DE JANEIRO – CENTRO /RJ AUTOR: ARQ. LUCIANO E. FONSECA / CAU: AU 85245-7 DATA: DEZEMBRO/2012
  • 110.
    5 LF BUILDING ARQUITETURAMAQUETESAMBÓDROMO RIO DE JANEIRO – CENTRO /RJ AUTOR: ARQ. LUCIANO E. FONSECA / CAU: AU 85245-7 DATA: DEZEMBRO/2012
  • 111.
    6 LF BUILDING ARQUITETURAMAQUETESAMBÓDROMO RIO DE JANEIRO – CENTRO /RJ AUTOR: ARQ. LUCIANO E. FONSECA / CAU: AU 85245-7 DATA: DEZEMBRO/2012
  • 112.
    7 LF BUILDING ARQUITETURAMAQUETESAMBÓDROMO RIO DE JANEIRO – CENTRO /RJ AUTOR: ARQ. LUCIANO E. FONSECA / CAU: AU 85245-7 DATA: DEZEMBRO/2012
  • 113.
    8 LF BUILDING ARQUITETURAMAQUETESAMBÓDROMO RIO DE JANEIRO – CENTRO /RJ AUTOR: ARQ. LUCIANO E. FONSECA / CAU: AU 85245-7 DATA: DEZEMBRO/2012
  • 114.
    9 LF BUILDING ARQUITETURAMAQUETESAMBÓDROMO RIO DE JANEIRO – CENTRO /RJ AUTOR: ARQ. LUCIANO E. FONSECA / CAU: AU 85245-7 DATA: DEZEMBRO/2012
  • 115.
    10 LF BUILDING ARQUITETURAMAQUETESAMBÓDROMO RIO DE JANEIRO – CENTRO /RJ AUTOR: ARQ. LUCIANO E. FONSECA / CAU: AU 85245-7 DATA: DEZEMBRO/2012
  • 116.
    11 LF BUILDING ARQUITETURAMAQUETESAMBÓDROMO RIO DE JANEIRO – CENTRO /RJ AUTOR: ARQ. LUCIANO E. FONSECA / CAU: AU 85245-7 DATA: DEZEMBRO/2012
  • 117.
    12 LF BUILDING ARQUITETURAMAQUETESAMBÓDROMO RIO DE JANEIRO – CENTRO /RJ AUTOR: ARQ. LUCIANO E. FONSECA / CAU: AU 85245-7 DATA: DEZEMBRO/2012
  • 118.
    13 LF BUILDING ARQUITETURAMAQUETESAMBÓDROMO RIO DE JANEIRO – CENTRO /RJ AUTOR: ARQ. LUCIANO E. FONSECA / CAU: AU 85245-7 DATA: DEZEMBRO/2012
  • 119.
    14 LF BUILDING ARQUITETURAMAQUETESAMBÓDROMO RIO DE JANEIRO – CENTRO /RJ AUTOR: ARQ. LUCIANO E. FONSECA / CAU: AU 85245-7 DATA: DEZEMBRO/2012
  • 120.
    15 LF BUILDING ARQUITETURAMAQUETESAMBÓDROMO RIO DE JANEIRO – CENTRO /RJ AUTOR: ARQ. LUCIANO E. FONSECA / CAU: AU 85245-7 DATA: DEZEMBRO/2012
  • 121.
    16 LF BUILDING ARQUITETURAMAQUETESAMBÓDROMO RIO DE JANEIRO – CENTRO /RJ AUTOR: ARQ. LUCIANO E. FONSECA / CAU: AU 85245-7 DATA: DEZEMBRO/2012
  • 122.
    17 LF BUILDING ARQUITETURAMAQUETESAMBÓDROMO RIO DE JANEIRO – CENTRO /RJ AUTOR: ARQ. LUCIANO E. FONSECA / CAU: AU 85245-7 DATA: DEZEMBRO/2012
  • 123.
    18 LF BUILDING ARQUITETURAMAQUETESAMBÓDROMO RIO DE JANEIRO – CENTRO /RJ AUTOR: ARQ. LUCIANO E. FONSECA / CAU: AU 85245-7 DATA: DEZEMBRO/2012
  • 124.
    19 LF BUILDING ARQUITETURAMAQUETESAMBÓDROMO RIO DE JANEIRO – CENTRO /RJ AUTOR: ARQ. LUCIANO E. FONSECA / CAU: AU 85245-7 DATA: DEZEMBRO/2012
  • 125.
    20 LF BUILDING ARQUITETURAMAQUETESAMBÓDROMO RIO DE JANEIRO – CENTRO /RJ AUTOR: ARQ. LUCIANO E. FONSECA / CAU: AU 85245-7 DATA: DEZEMBRO/2012
  • 126.
    21 LF BUILDING ARQUITETURAMAQUETESAMBÓDROMO RIO DE JANEIRO – CENTRO /RJ AUTOR: ARQ. LUCIANO E. FONSECA / CAU: AU 85245-7 DATA: DEZEMBRO/2012