Incorporar apresentação


















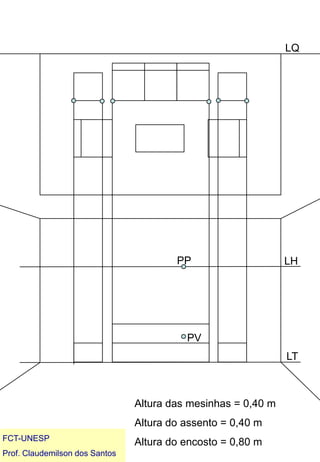
Este documento apresenta um desenho técnico da perspectiva frontal de uma sala de estar. Ele mostra os detalhes dimensionais da sala, incluindo a altura do pé direito, as dimensões dos móveis como mesas e sofás, e a distância do observador em relação à linha de quadro.

















