1
Janeiro•2019-EsteManualsubstituitodososanteriores
2
IMPORTANTE:
• Fazer a Instalação observando "Nível" e
"Prumo" exatos, evitando torções e
desalinhamentos que venham a
comprometer o perfeito funcionamento.
Se possível, utilizar Instrumentos de
Medição de Precisão.
• Atenção para correta fixação do Trilho:
ATENÇÃO:
• As Medidas de Folga e os Desenhos
deste Manual são para referência de
montagem e podem sofrer modificações.
• Consulte sempre o Site para verificar as
atualizações.
• Observar Dimensões Máximas de vidro
recomendadas para cada modelo.
• Este Manual substitui todas as versões
anteriores.
90º
ERRADO!6
• Garantir o esquadro de 90º
do Trilho em relação ao
Prumo do Sistema em toda
extensão do vão.
• Checar ângulos a cada 50cm
90º
Prumo
CORRETO!
4
• A Montagem deve ser efetuada por um
Profissional Qualificado com experiência em
Instalações com Vidro Temperado.
Prumo Prumo
• Movimento
da Porta
comprometido!
33
Índice
25Ve6Kit Versatik® Engenharia
2 Folhas Fixas e 4 Móveis
15Ve3Kit Versatik® Engenharia
1 Folha Fixa e 2 Móveis
7Ve2Kit Versatik® Engenharia
2 Folhas Móveis
5Ferramentas
4
5
Chaves
de Fenda
Arco de Serra
Chave Fixa 19mm
Esquadro
Trena
Furadeira
de Impacto
Nível
Bomba
de Silicone
Rebitadeira
Prumos
de Centro e
de Face
Ferramentas
Gabaritos
Chave Allen 4mm
Brocas de Aço Rápido
ø 3,5mm
ø 4,0mm
Brocas de Vídia
ø 5,0mm
ø 6,0mm
6
7
	Ve2Kit Versatik® Engenharia
2 Folhas Móveis
VE2
ImagemIlustrativa
8
Ve2 Kit Versatik® Engenharia
8
Ve2
	Item	Quant.	Descrição	Desenho
	A	 01	 Perfil Trilho
	B	 01	 Perfil Capa
	C	 01	 Perfil Guia
	D	 01	 Perfil Arremate
	E	 02	 Perfil “U” 20mm
	F	 01	 Perfil “U” de Vedação
	G	 04	 Roldana Versatik
	H	 02	 Batedeira Superior
	I	 02	
	J	 04	
	K	 04	 Bucha S6
	L	 06	
	M	 06	 Bucha S5
	N	 04	 Batedeira Reta de PVC
Parafuso Cabeça Chata
ø 3,5x22mm
Conteúdo
Parafuso Cabeça Panela
ø 3,9x32mm
Parafuso Cabeça Chata PH
ø 3,5x19mm
9
	Ve2Kit Versatik® Engenharia
	Item	Quant.	Descrição	Desenho
	O	 02	
	P	 01	 Escova de Vedação
	Q	 02 	 Suporte de Alinhamento
	R	 04 	 Trava de Segurança - Nylon
9
	Ve2Conteúdo
Batedeira Curva de
Borracha
Furação para Roldanas
Folgas Laterais
20mm
50mm
ø 14mm
Vão + 50mm, dividido por 2 (largura das peças iguais).
Peso Máximo por Peça de Vidro: 60kg.
Corre Corre
10
Ve2 Kit Versatik® Engenharia
10
Ve2 Folgas dos Vidros
41mm
Vidros 8 e 10mm
38mm
Vidros 6mm
Portamaior:vão-20mm
Portamenor:vão-60mm
24mm
24mm
Vãototal
67mm61mm
Vãototal
85mm
85mm
41mm
Vidros 8 e 10mm
38mm
Vidros 6mm
Portamaior:vão-20mm
Portamenor:vão-60mm
24mm
24mm
67mm61mm
Vãototal
Vãototal
85mm
Portamaior:vão-20mm
Portamenor:vão-60mm
11
	Ve2Kit Versatik® Engenharia
11
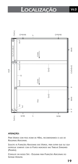
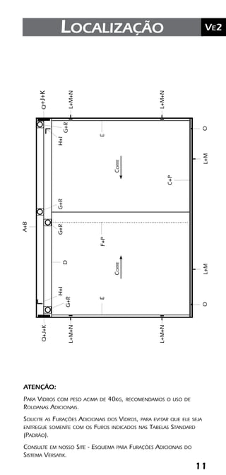
	Ve2Localização
CORRECORRE
H+IG+RG+RH+I
G+RG+RD
L+M+N
C+P
EEF+P
L+M+N
L+M+N
L+M+N
Q
A+B
L+ML+MOO
Q+J+K+J+K
ATENÇÃO:
Para Vidros com peso acima de 40kg, recomendamos o uso de
Roldanas Adicionais.
Solicite as Furações Adicionais dos Vidros, para evitar que ele seja
entregue somente com os Furos indicados nas Tabelas Standard
(Padrão).
Consulte em nosso Site - Esquema para Furações Adicionais do
Sistema Versatik.
12
Ve2 Montagem
Montar Perfil Guia (C)
Silicone
01
Furo Perfil (4mm)
Furo Alvenaria (5mm)
Parafuso (L) + Bucha (M)
Marcar os furos dos Suportes do
Trilho (Q) usando o Gabarito
alinhado com o
Perfil Guia (C) e
fixá-los
Encaixar o Trilho (A) nos Suportes
(Q) e fixá-lo na parte superior
02
03
Fazer a fixação conforme
tipo de alvenaria
Furo Perfil (4mm)
Furo Alvenaria (6mm)
Parafuso (J) + Bucha (K)
Alinhamento
X= para Vidros de 6mm: 6,5mm
X= para Vidros 8 e 10mm: 8mm
x
Atenção:
Para instalações de uso
externo, fazer furo de
drenagem nos perfis inferiores
13
	Ve2Montagem
Fixar os Perfis “U” (E) entre o
Trilho (A) e a Guia (C) e colocar as
Batedeiras (N)
04
Furo Perfil (4mm)
Furo Alvenaria (5mm)
Parafuso (L) + Bucha (M)
Cortar
100mm
menor
que o
vão
Cortar
70mm
menor que
o vão
05 Instalar as Travas de
Segurança de Nylon (R)
nas Portas, utilizando as
Roldanas (G) para fixar
Batedeira (N)
Batedeira (N)
Atenção: As Travas
possuem posição correta
para instalação.
Observar inscrições no topo
“Lado Roldana” e “Lado Tampa”
LADO
ROLDANA
L A D O
TA M PA
Lado
Roldana
Lado
Tampa
14
Ve2 Kit Versatik® Engenharia
14
Ve2 Montagem
Colocar e ajustar as
Portas e as Travas
de Segurança.
Colocar o Perfil
de Vedação (F) +
Escova (P)
Montar os Puxadores
tipo Concha (opcional)
07
06
Vedar toda a
periferia interna
Utilize silicone
antifungo
10
Colocar a Capa (B)09
Determinar a posição de parada das
Portas e fixar as Batedeiras
Superiores (H) e Inferiores (O)
08
ATENÇÃO:
utilizar
Parafuso (I)
15
	Ve2Kit Versatik® Engenharia
15
	Ve3Kit Versatik® Engenharia
1 Folha Fixa e 2 Móveis
VE3
ImagemIlustrativa
16
Ve2 Kit Versatik® Engenharia
16
Ve3
	Item	Quant.	Descrição	Desenho
	A	 01	 Perfil Trilho
	B	 01	 Perfil Capa
	C	 01	 Perfil Guia
	D	 02	 Perfil Arremate
	E	 01	 Perfil “U” de Base
	F	 02	 Perfil “U” 20mm
	G	 02	 Perfil “U” de Vedação
	H	 04	 Roldana Versatik
	I	 03	 Batedeira Superior
	J	 03	
	K	 04	
	L	 04	 Bucha S6
	M	 08	
	N	 08	 Bucha S5
Parafuso Cabeça Chata
ø 3,5x22mm
Conteúdo
Parafuso Cabeça Panela
ø 3,9x32mm
Parafuso Cabeça Chata PH
ø 3,5x19mm
17
	Ve2Kit Versatik® Engenharia
17
	Ve3Conteúdo
Batedeira Curva de
Borracha
Suporte Lateral
"Mão Amiga"
Suporte Principal
"Mão Amiga"
Furação para Roldanas
20mm
50mm
ø 14mm
	Item	Quant.	Descrição	Desenho
	O	 02	 Batedeira Reta de PVC
	P	 02	
	Q	 01	 Escova de Vedação
	R	 02	 Cunha de Regulagem
	S	 02	 Suporte de Alinhamento
	T	 01	
	U	 02	
	V	 01	
	W	 01	
	X	 03	
	Y	 01	 Trava de Segurança - Nylon
Suporte da Trava de
Segurança
Parafuso Allen Sem Cabeça
M 5x5 - Inox
Trava de Segurança -
Alumínio
18
Ve2 Kit Versatik® Engenharia
18
Ve3 Folgas dos Vidros
41mm
16mm
Portamaior:vão-20mm
Fixo:vão-90mm
Vidros 8 e 10mm0mm
24mm
67mmVãototal
85mm
Portamaior:vão-20mm
Portamenor:vão-60mm
Portamenor:vão-60mm
Sem fechadura: Vão + 120mm, dividido por 3 para Fixo e Portas
de Correr (largura das três peças iguais).
Com fechadura: Vão total dividido por 3. Do resultado adicionar
120mm na Porta (3).
Peso Máximo por Peça de Vidro: 60kg.
Corre Corre
CorreCorre Fixo
3 2 1
Folgas Laterais
Vidros 8 e 10mm
19
	Ve2Kit Versatik® Engenharia
19
	Ve3Localização
ATENÇÃO:
Para Vidros com peso acima de 40kg, recomendamos o uso de
Roldanas Adicionais.
Solicite as Furações Adicionais dos Vidros, para evitar que ele seja
entregue somente com os Furos indicados nas Tabelas Standard
(Padrão).
Consulte em nosso Site - Esquema para Furações Adicionais do
Sistema Versatik.
20
Ve2 Kit Versatik® Engenharia
20
Ve3 Montagem
Montar Perfil Guia (C) +
“U” de Base (E)
Silicone
01
Furo Perfil (4mm)
Furo Alvenaria (5mm)
Parafuso (M) + Bucha (N)
Marcar os furos dos Suportes do
Trilho (S) usando o Gabarito
alinhado com o
Perfil “U” de Base
(E) e fixá-los
Encaixar o Trilho (A) nos Suportes
(S) e fixá-lo na parte superior
02
03
Alinhamento:
Centro do perfil
Atenção:
Para instalações de uso
externo, fazer furo de
drenagem nos perfis inferiores
Fazer a fixação conforme
tipo de alvenaria
Furo Perfil (4mm)
Furo Alvenaria (6mm)
Parafuso (J) + Bucha (K)
21
	Ve2Kit Versatik® Engenharia
21
	Ve3Montagem
Fixar os Perfis “U” (F) e colocar
as Batedeiras (O)
04
Furo Perfil (4mm)
Furo Alvenaria (5mm)
Parafuso (M) +
Bucha (N)
Cortar o
Perfil de
recebimento
da Porta
70mm menor
que o vão
Cortar o
Perfil de
fixação do
Vidro
110mm
menor que
o vão
Batedeira (O)
Batedeira (O)
Travar o Vidro Fixo com as
Cunhas de Regulagem (R) e
o Perfil Arremate (D)
05
Vidro Fixo
Perfil “U” de Base
Cunha de Regulagem
22
Ve2 Kit Versatik® Engenharia
22
Ve3 Montagem
06
08
Instalar os Suportes Laterais
"Mão Amiga" na Porta Intermediária
2 com as Roldanas (H).
Adicionar as Travas de Segurança (X)
Sem
arruelas
Sem
arruelas
Instalar o Suporte Principal (T) e a
Trava de Segurança (Y) com as
Roldanas (H) na Porta maior 3
Ajustar a altura das Travas de
Segurança (X) após regulagem da
Porta 2
07
Atenção: A Trava de Segurança
possui posição correta para
instalação. Observar inscrições
no topo “Lado Roldana” e
“Lado Tampa”
LADO
ROLDANA
L A D O
TA M PA
Lado
Roldana
Lado
Tampa
23
	Ve2Kit Versatik® Engenharia
23
	Ve3Montagem
Colocar a Escova de
Vedação (Q) nos
Perfis "U" de
Vedação (G), ajustar
o tamanho dos
mesmos de acordo
com os vidros e em
seguida, encaixá-los
Colocar as Portas de maneira que o
Suporte Principal (T) fique entre os
Suportes Laterais (U)
11
12
Adicionar o Suporte da Trava de
Segurança (V)
fixando-o com o
Parafuso (W).
Atenção: O Suporte (V) já vem instalado no Suporte
Principal (T), se houver necessidade de mudar a posição
(esquerdo/direito) apenas desparafusar o Suporte (V) e
seguir as instruções do passo Nº 9
9
Instalar a Trava de
Segurança (X) no
Suporte
Ajustar a altura das Travas de
Segurança (Y) e (X)
10
24
Ve2 Kit Versatik® EngenhariaVe3
Vedar toda a
periferia interna.
Utilize silicone
antifungo
16
Colocar a Capa (B)15
Regular as Portas
de maneira que o
Suporte Principal
(T) encoste em dois
pontos dos Suportes
Laterais (U)
13
Determinar a posição de parada das
Portas e fixar as Batedeiras Superiores
(I) e Inferiores (P)
14
ATENÇÃO: utilizar Parafuso (J)
25
	Ve2Kit Versatik® Engenharia 	Ve6Kit Versatik® Engenharia
2 Folhas Fixas e 4 Móveis
VE6
ImagemIlustrativa
26
Ve2 Kit Versatik® Engenharia
26
Ve6
	Item	Quant.	Descrição	Desenho
	A	 01	 Perfil Trilho
	B	 01	 Perfil Capa
	C	 01	 Perfil Guia
	D	 02	 Perfil Arremate
	E	 01	 Perfil “U” de Base
	F	 02	 Perfil “U” 20mm
	G	 04	 Perfil “U” de Vedação
	H	 01	 Perfil “H” de Vedação
	I	 08	 Roldana Versatik
	J	 08	 Batedeira Superior
	K	 08	
	L	 04	
	M	 04	 Bucha S6
	N	 08	
Parafuso Cabeça Chata
ø 3,5x22mm
Conteúdo
Parafuso Cabeça Panela
ø 3,9x32mm
Parafuso Cabeça Chata PH
ø 3,5x19mm
27
	Ve2Kit Versatik® Engenharia
27
	Ve6Conteúdo
Batedeira Curva de
Borracha
	Item	Quant.	Descrição	Desenho
	O	 08	 Bucha S5
	P	 04	
	Q	 01	 Escova de Vedação
	R	 04	 Cunha de Regulagem
	S	 02	 Suporte de Alinhamento
	T	 02	
	U	 04	
	V	 02	
	W	 02	
	X	 06	
	Y	 02	 Trava de Segurança - Nylon	
Suporte Lateral
"Mão Amiga"
Suporte Principal
"Mão Amiga"
Furação para Roldanas
20mm
50mm
ø 14mm
Suporte da Trava de
Segurança
Parafuso Allen Sem Cabeça
M 5x5 - Inox
Trava de Segurança -
Alumínio
28
Ve2 Kit Versatik® Engenharia
28
Ve6 Folgas dos Vidros
Corre Corre
CorreCorre CorreCorreFixo Fixo
CorreCorre Fixo
Sem fechadura: Vão + 240mm, dividido por 6 para Fixos e Portas
de Correr (largura das seis Peças iguais).
Com fechadura: Vão total dividido por 6. Do resultado adicionar
120mm nas Portas Centrais.
Peso Máximo por Peça de Vidro: 60kg.
Folgas Laterais
33 22 11
41mm
16mm
Portamaior:vão-20mm
Fixo:vão-90mm
Vidros 8 e 10mm0mm
24mm 67mm
Vãototal
85mm
Portamaior:vão-20mm
Portamenor:vão-60mm
Portamenor:vão-60mm
Vidros 8 e 10mm
29
	Ve2Kit Versatik® Engenharia
29
	Ve6Localização
ATENÇÃO:
Para Vidros com peso acima de 40kg, recomendamos o uso de
Roldanas Adicionais.
Solicite as Furações Adicionais dos Vidros, para evitar que ele seja
entregue somente com os Furos indicados nas Tabelas Standard
(Padrão).
Consulte em nosso Site - Esquema para Furações Adicionais do
Sistema Versatik.
30
Ve2 Kit Versatik® Engenharia
30
Ve6 Montagem
Montar Perfil Guia (C) +
“U” de Base (E)
01
Silicone
Furo Perfil (4mm)
Furo Alvenaria (5mm)
Parafuso (N) + Bucha (O)
Marcar os furos dos Suportes do
Trilho (S) usando o Gabarito
alinhado com o
Perfil “U” de Base
(E) e fixá-los
Encaixar o Trilho (A) nos Suportes
(S) e fixá-lo na parte superior
02
03
Atenção:
Para instalações de uso
externo, fazer furo de
drenagem nos perfis inferiores
Alinhamento:
Centro do perfil
Fazer a fixação conforme
tipo de alvenaria
Furo Perfil (4mm)
Furo Alvenaria (6mm)
Parafuso (L) + Bucha (M)
31
	Ve2Kit Versatik® Engenharia
31
	Ve6Montagem
Fixar os Perfis “U” (F) nas laterais04
Furo Perfil (4mm)
Furo Alvenaria (5mm)
Parafuso (N) +
Bucha (O)
Cortar o Perfil de fixação do
Vidro 110mm menor que o vão
Cortar o
Perfil de
fixação do
Vidro
110mm
menor que
o vão
Travar o Vidro Fixo com as
Cunhas de Regulagem (R) e
o Perfil Arremate (D)
05
Vidro Fixo
Perfil “U” de Base
Cunha de Regulagem
32
Ve2 Kit Versatik® Engenharia
32
Ve6 Montagem
06
08
Instalar os Suportes Laterais
"Mão Amiga" nas Portas
Intermediárias 2 com as Roldanas (I).
Adicionar as Travas de Segurança (X)
Sem
arruelas
Sem
arruelas
Instalar os Suportes Principais (T) e as
Travas de Seguranças (Y) com as
Roldanas (I) nas Portas maiores 3
Ajustar a altura das Travas de
Segurança (X) após regulagem das
Portas 2
07
Atenção: A Trava de Segurança
possui posição correta para
instalação. Observar inscrições
no topo “Lado Roldana” e
“Lado Tampa”
LADO
ROLDANA
L A D O
TA M PA
Lado
Roldana
Lado
Tampa
33
	Ve2Kit Versatik® Engenharia
33
	Ve6Montagem
Colocar a Escova de Vedação (Q) nos
Perfis "H" de Vedação (H) e "U" de
Vedação (G), ajustar o tamanho dos
mesmos de acordo com os vidros e em
seguida, encaixá-los
Colocar as Portas de maneira que o
Suporte Principal (T) fique entre os
Suportes Laterais (U)
11
12
Adicionar o Suporte da Trava de
Segurança (V)
fixando-o com o
Parafuso (W).
Atenção: O Suporte (V) já vem instalado no Suporte
Principal (T), se houver necessidade de mudar a posição
(esquerdo/direito) apenas desparafusar o Suporte (V) e
seguir as instruções do passo Nº 9
9
Instalar a Trava
de Segurança (X)
no Suporte
Ajustar a altura das Travas de
Segurança (Y) e (X)
10
3434
Ve6 Montagem
Vedar toda a
periferia interna.
Utilize silicone
antifungo
16
Colocar a Capa (B)15
Regular as Portas
de maneira que o
Suporte Principal
(T) encoste em dois
pontos dos Suportes
Laterais (U)
13
Determinar a posição de parada das
Portas e fixar as Batedeiras Superiores
(J) e Inferiores (P)
14
ATENÇÃO: utilizar Parafuso (J)
36
Ve2 Kit Versatik® Engenharia
TEC-IMP-1021

Manual versatik-engenharia

  • 1.
  • 2.
    2 IMPORTANTE: • Fazer aInstalação observando "Nível" e "Prumo" exatos, evitando torções e desalinhamentos que venham a comprometer o perfeito funcionamento. Se possível, utilizar Instrumentos de Medição de Precisão. • Atenção para correta fixação do Trilho: ATENÇÃO: • As Medidas de Folga e os Desenhos deste Manual são para referência de montagem e podem sofrer modificações. • Consulte sempre o Site para verificar as atualizações. • Observar Dimensões Máximas de vidro recomendadas para cada modelo. • Este Manual substitui todas as versões anteriores. 90º ERRADO!6 • Garantir o esquadro de 90º do Trilho em relação ao Prumo do Sistema em toda extensão do vão. • Checar ângulos a cada 50cm 90º Prumo CORRETO! 4 • A Montagem deve ser efetuada por um Profissional Qualificado com experiência em Instalações com Vidro Temperado. Prumo Prumo • Movimento da Porta comprometido!
  • 3.
    33 Índice 25Ve6Kit Versatik® Engenharia 2Folhas Fixas e 4 Móveis 15Ve3Kit Versatik® Engenharia 1 Folha Fixa e 2 Móveis 7Ve2Kit Versatik® Engenharia 2 Folhas Móveis 5Ferramentas
  • 4.
  • 5.
    5 Chaves de Fenda Arco deSerra Chave Fixa 19mm Esquadro Trena Furadeira de Impacto Nível Bomba de Silicone Rebitadeira Prumos de Centro e de Face Ferramentas Gabaritos Chave Allen 4mm Brocas de Aço Rápido ø 3,5mm ø 4,0mm Brocas de Vídia ø 5,0mm ø 6,0mm
  • 6.
  • 7.
    7 Ve2Kit Versatik® Engenharia 2Folhas Móveis VE2 ImagemIlustrativa
  • 8.
    8 Ve2 Kit Versatik®Engenharia 8 Ve2 Item Quant. Descrição Desenho A 01 Perfil Trilho B 01 Perfil Capa C 01 Perfil Guia D 01 Perfil Arremate E 02 Perfil “U” 20mm F 01 Perfil “U” de Vedação G 04 Roldana Versatik H 02 Batedeira Superior I 02 J 04 K 04 Bucha S6 L 06 M 06 Bucha S5 N 04 Batedeira Reta de PVC Parafuso Cabeça Chata ø 3,5x22mm Conteúdo Parafuso Cabeça Panela ø 3,9x32mm Parafuso Cabeça Chata PH ø 3,5x19mm
  • 9.
    9 Ve2Kit Versatik® Engenharia Item Quant. Descrição Desenho O 02 P 01 Escova de Vedação Q 02 Suporte de Alinhamento R 04 Trava de Segurança - Nylon 9 Ve2Conteúdo Batedeira Curva de Borracha Furação para Roldanas Folgas Laterais 20mm 50mm ø 14mm Vão + 50mm, dividido por 2 (largura das peças iguais). Peso Máximo por Peça de Vidro: 60kg. Corre Corre
  • 10.
    10 Ve2 Kit Versatik®Engenharia 10 Ve2 Folgas dos Vidros 41mm Vidros 8 e 10mm 38mm Vidros 6mm Portamaior:vão-20mm Portamenor:vão-60mm 24mm 24mm Vãototal 67mm61mm Vãototal 85mm 85mm 41mm Vidros 8 e 10mm 38mm Vidros 6mm Portamaior:vão-20mm Portamenor:vão-60mm 24mm 24mm 67mm61mm Vãototal Vãototal 85mm Portamaior:vão-20mm Portamenor:vão-60mm
  • 11.
    11 Ve2Kit Versatik® Engenharia 11 Ve2Localização CORRECORRE H+IG+RG+RH+I G+RG+RD L+M+N C+P EEF+P L+M+N L+M+N L+M+N Q A+B L+ML+MOO Q+J+K+J+K ATENÇÃO: ParaVidros com peso acima de 40kg, recomendamos o uso de Roldanas Adicionais. Solicite as Furações Adicionais dos Vidros, para evitar que ele seja entregue somente com os Furos indicados nas Tabelas Standard (Padrão). Consulte em nosso Site - Esquema para Furações Adicionais do Sistema Versatik.
  • 12.
    12 Ve2 Montagem Montar PerfilGuia (C) Silicone 01 Furo Perfil (4mm) Furo Alvenaria (5mm) Parafuso (L) + Bucha (M) Marcar os furos dos Suportes do Trilho (Q) usando o Gabarito alinhado com o Perfil Guia (C) e fixá-los Encaixar o Trilho (A) nos Suportes (Q) e fixá-lo na parte superior 02 03 Fazer a fixação conforme tipo de alvenaria Furo Perfil (4mm) Furo Alvenaria (6mm) Parafuso (J) + Bucha (K) Alinhamento X= para Vidros de 6mm: 6,5mm X= para Vidros 8 e 10mm: 8mm x Atenção: Para instalações de uso externo, fazer furo de drenagem nos perfis inferiores
  • 13.
    13 Ve2Montagem Fixar os Perfis“U” (E) entre o Trilho (A) e a Guia (C) e colocar as Batedeiras (N) 04 Furo Perfil (4mm) Furo Alvenaria (5mm) Parafuso (L) + Bucha (M) Cortar 100mm menor que o vão Cortar 70mm menor que o vão 05 Instalar as Travas de Segurança de Nylon (R) nas Portas, utilizando as Roldanas (G) para fixar Batedeira (N) Batedeira (N) Atenção: As Travas possuem posição correta para instalação. Observar inscrições no topo “Lado Roldana” e “Lado Tampa” LADO ROLDANA L A D O TA M PA Lado Roldana Lado Tampa
  • 14.
    14 Ve2 Kit Versatik®Engenharia 14 Ve2 Montagem Colocar e ajustar as Portas e as Travas de Segurança. Colocar o Perfil de Vedação (F) + Escova (P) Montar os Puxadores tipo Concha (opcional) 07 06 Vedar toda a periferia interna Utilize silicone antifungo 10 Colocar a Capa (B)09 Determinar a posição de parada das Portas e fixar as Batedeiras Superiores (H) e Inferiores (O) 08 ATENÇÃO: utilizar Parafuso (I)
  • 15.
    15 Ve2Kit Versatik® Engenharia 15 Ve3KitVersatik® Engenharia 1 Folha Fixa e 2 Móveis VE3 ImagemIlustrativa
  • 16.
    16 Ve2 Kit Versatik®Engenharia 16 Ve3 Item Quant. Descrição Desenho A 01 Perfil Trilho B 01 Perfil Capa C 01 Perfil Guia D 02 Perfil Arremate E 01 Perfil “U” de Base F 02 Perfil “U” 20mm G 02 Perfil “U” de Vedação H 04 Roldana Versatik I 03 Batedeira Superior J 03 K 04 L 04 Bucha S6 M 08 N 08 Bucha S5 Parafuso Cabeça Chata ø 3,5x22mm Conteúdo Parafuso Cabeça Panela ø 3,9x32mm Parafuso Cabeça Chata PH ø 3,5x19mm
  • 17.
    17 Ve2Kit Versatik® Engenharia 17 Ve3Conteúdo BatedeiraCurva de Borracha Suporte Lateral "Mão Amiga" Suporte Principal "Mão Amiga" Furação para Roldanas 20mm 50mm ø 14mm Item Quant. Descrição Desenho O 02 Batedeira Reta de PVC P 02 Q 01 Escova de Vedação R 02 Cunha de Regulagem S 02 Suporte de Alinhamento T 01 U 02 V 01 W 01 X 03 Y 01 Trava de Segurança - Nylon Suporte da Trava de Segurança Parafuso Allen Sem Cabeça M 5x5 - Inox Trava de Segurança - Alumínio
  • 18.
    18 Ve2 Kit Versatik®Engenharia 18 Ve3 Folgas dos Vidros 41mm 16mm Portamaior:vão-20mm Fixo:vão-90mm Vidros 8 e 10mm0mm 24mm 67mmVãototal 85mm Portamaior:vão-20mm Portamenor:vão-60mm Portamenor:vão-60mm Sem fechadura: Vão + 120mm, dividido por 3 para Fixo e Portas de Correr (largura das três peças iguais). Com fechadura: Vão total dividido por 3. Do resultado adicionar 120mm na Porta (3). Peso Máximo por Peça de Vidro: 60kg. Corre Corre CorreCorre Fixo 3 2 1 Folgas Laterais Vidros 8 e 10mm
  • 19.
    19 Ve2Kit Versatik® Engenharia 19 Ve3Localização ATENÇÃO: ParaVidros com peso acima de 40kg, recomendamos o uso de Roldanas Adicionais. Solicite as Furações Adicionais dos Vidros, para evitar que ele seja entregue somente com os Furos indicados nas Tabelas Standard (Padrão). Consulte em nosso Site - Esquema para Furações Adicionais do Sistema Versatik.
  • 20.
    20 Ve2 Kit Versatik®Engenharia 20 Ve3 Montagem Montar Perfil Guia (C) + “U” de Base (E) Silicone 01 Furo Perfil (4mm) Furo Alvenaria (5mm) Parafuso (M) + Bucha (N) Marcar os furos dos Suportes do Trilho (S) usando o Gabarito alinhado com o Perfil “U” de Base (E) e fixá-los Encaixar o Trilho (A) nos Suportes (S) e fixá-lo na parte superior 02 03 Alinhamento: Centro do perfil Atenção: Para instalações de uso externo, fazer furo de drenagem nos perfis inferiores Fazer a fixação conforme tipo de alvenaria Furo Perfil (4mm) Furo Alvenaria (6mm) Parafuso (J) + Bucha (K)
  • 21.
    21 Ve2Kit Versatik® Engenharia 21 Ve3Montagem Fixaros Perfis “U” (F) e colocar as Batedeiras (O) 04 Furo Perfil (4mm) Furo Alvenaria (5mm) Parafuso (M) + Bucha (N) Cortar o Perfil de recebimento da Porta 70mm menor que o vão Cortar o Perfil de fixação do Vidro 110mm menor que o vão Batedeira (O) Batedeira (O) Travar o Vidro Fixo com as Cunhas de Regulagem (R) e o Perfil Arremate (D) 05 Vidro Fixo Perfil “U” de Base Cunha de Regulagem
  • 22.
    22 Ve2 Kit Versatik®Engenharia 22 Ve3 Montagem 06 08 Instalar os Suportes Laterais "Mão Amiga" na Porta Intermediária 2 com as Roldanas (H). Adicionar as Travas de Segurança (X) Sem arruelas Sem arruelas Instalar o Suporte Principal (T) e a Trava de Segurança (Y) com as Roldanas (H) na Porta maior 3 Ajustar a altura das Travas de Segurança (X) após regulagem da Porta 2 07 Atenção: A Trava de Segurança possui posição correta para instalação. Observar inscrições no topo “Lado Roldana” e “Lado Tampa” LADO ROLDANA L A D O TA M PA Lado Roldana Lado Tampa
  • 23.
    23 Ve2Kit Versatik® Engenharia 23 Ve3Montagem Colocara Escova de Vedação (Q) nos Perfis "U" de Vedação (G), ajustar o tamanho dos mesmos de acordo com os vidros e em seguida, encaixá-los Colocar as Portas de maneira que o Suporte Principal (T) fique entre os Suportes Laterais (U) 11 12 Adicionar o Suporte da Trava de Segurança (V) fixando-o com o Parafuso (W). Atenção: O Suporte (V) já vem instalado no Suporte Principal (T), se houver necessidade de mudar a posição (esquerdo/direito) apenas desparafusar o Suporte (V) e seguir as instruções do passo Nº 9 9 Instalar a Trava de Segurança (X) no Suporte Ajustar a altura das Travas de Segurança (Y) e (X) 10
  • 24.
    24 Ve2 Kit Versatik®EngenhariaVe3 Vedar toda a periferia interna. Utilize silicone antifungo 16 Colocar a Capa (B)15 Regular as Portas de maneira que o Suporte Principal (T) encoste em dois pontos dos Suportes Laterais (U) 13 Determinar a posição de parada das Portas e fixar as Batedeiras Superiores (I) e Inferiores (P) 14 ATENÇÃO: utilizar Parafuso (J)
  • 25.
    25 Ve2Kit Versatik® Engenharia Ve6Kit Versatik® Engenharia 2 Folhas Fixas e 4 Móveis VE6 ImagemIlustrativa
  • 26.
    26 Ve2 Kit Versatik®Engenharia 26 Ve6 Item Quant. Descrição Desenho A 01 Perfil Trilho B 01 Perfil Capa C 01 Perfil Guia D 02 Perfil Arremate E 01 Perfil “U” de Base F 02 Perfil “U” 20mm G 04 Perfil “U” de Vedação H 01 Perfil “H” de Vedação I 08 Roldana Versatik J 08 Batedeira Superior K 08 L 04 M 04 Bucha S6 N 08 Parafuso Cabeça Chata ø 3,5x22mm Conteúdo Parafuso Cabeça Panela ø 3,9x32mm Parafuso Cabeça Chata PH ø 3,5x19mm
  • 27.
    27 Ve2Kit Versatik® Engenharia 27 Ve6Conteúdo BatedeiraCurva de Borracha Item Quant. Descrição Desenho O 08 Bucha S5 P 04 Q 01 Escova de Vedação R 04 Cunha de Regulagem S 02 Suporte de Alinhamento T 02 U 04 V 02 W 02 X 06 Y 02 Trava de Segurança - Nylon Suporte Lateral "Mão Amiga" Suporte Principal "Mão Amiga" Furação para Roldanas 20mm 50mm ø 14mm Suporte da Trava de Segurança Parafuso Allen Sem Cabeça M 5x5 - Inox Trava de Segurança - Alumínio
  • 28.
    28 Ve2 Kit Versatik®Engenharia 28 Ve6 Folgas dos Vidros Corre Corre CorreCorre CorreCorreFixo Fixo CorreCorre Fixo Sem fechadura: Vão + 240mm, dividido por 6 para Fixos e Portas de Correr (largura das seis Peças iguais). Com fechadura: Vão total dividido por 6. Do resultado adicionar 120mm nas Portas Centrais. Peso Máximo por Peça de Vidro: 60kg. Folgas Laterais 33 22 11 41mm 16mm Portamaior:vão-20mm Fixo:vão-90mm Vidros 8 e 10mm0mm 24mm 67mm Vãototal 85mm Portamaior:vão-20mm Portamenor:vão-60mm Portamenor:vão-60mm Vidros 8 e 10mm
  • 29.
    29 Ve2Kit Versatik® Engenharia 29 Ve6Localização ATENÇÃO: ParaVidros com peso acima de 40kg, recomendamos o uso de Roldanas Adicionais. Solicite as Furações Adicionais dos Vidros, para evitar que ele seja entregue somente com os Furos indicados nas Tabelas Standard (Padrão). Consulte em nosso Site - Esquema para Furações Adicionais do Sistema Versatik.
  • 30.
    30 Ve2 Kit Versatik®Engenharia 30 Ve6 Montagem Montar Perfil Guia (C) + “U” de Base (E) 01 Silicone Furo Perfil (4mm) Furo Alvenaria (5mm) Parafuso (N) + Bucha (O) Marcar os furos dos Suportes do Trilho (S) usando o Gabarito alinhado com o Perfil “U” de Base (E) e fixá-los Encaixar o Trilho (A) nos Suportes (S) e fixá-lo na parte superior 02 03 Atenção: Para instalações de uso externo, fazer furo de drenagem nos perfis inferiores Alinhamento: Centro do perfil Fazer a fixação conforme tipo de alvenaria Furo Perfil (4mm) Furo Alvenaria (6mm) Parafuso (L) + Bucha (M)
  • 31.
    31 Ve2Kit Versatik® Engenharia 31 Ve6Montagem Fixaros Perfis “U” (F) nas laterais04 Furo Perfil (4mm) Furo Alvenaria (5mm) Parafuso (N) + Bucha (O) Cortar o Perfil de fixação do Vidro 110mm menor que o vão Cortar o Perfil de fixação do Vidro 110mm menor que o vão Travar o Vidro Fixo com as Cunhas de Regulagem (R) e o Perfil Arremate (D) 05 Vidro Fixo Perfil “U” de Base Cunha de Regulagem
  • 32.
    32 Ve2 Kit Versatik®Engenharia 32 Ve6 Montagem 06 08 Instalar os Suportes Laterais "Mão Amiga" nas Portas Intermediárias 2 com as Roldanas (I). Adicionar as Travas de Segurança (X) Sem arruelas Sem arruelas Instalar os Suportes Principais (T) e as Travas de Seguranças (Y) com as Roldanas (I) nas Portas maiores 3 Ajustar a altura das Travas de Segurança (X) após regulagem das Portas 2 07 Atenção: A Trava de Segurança possui posição correta para instalação. Observar inscrições no topo “Lado Roldana” e “Lado Tampa” LADO ROLDANA L A D O TA M PA Lado Roldana Lado Tampa
  • 33.
    33 Ve2Kit Versatik® Engenharia 33 Ve6Montagem Colocara Escova de Vedação (Q) nos Perfis "H" de Vedação (H) e "U" de Vedação (G), ajustar o tamanho dos mesmos de acordo com os vidros e em seguida, encaixá-los Colocar as Portas de maneira que o Suporte Principal (T) fique entre os Suportes Laterais (U) 11 12 Adicionar o Suporte da Trava de Segurança (V) fixando-o com o Parafuso (W). Atenção: O Suporte (V) já vem instalado no Suporte Principal (T), se houver necessidade de mudar a posição (esquerdo/direito) apenas desparafusar o Suporte (V) e seguir as instruções do passo Nº 9 9 Instalar a Trava de Segurança (X) no Suporte Ajustar a altura das Travas de Segurança (Y) e (X) 10
  • 34.
    3434 Ve6 Montagem Vedar todaa periferia interna. Utilize silicone antifungo 16 Colocar a Capa (B)15 Regular as Portas de maneira que o Suporte Principal (T) encoste em dois pontos dos Suportes Laterais (U) 13 Determinar a posição de parada das Portas e fixar as Batedeiras Superiores (J) e Inferiores (P) 14 ATENÇÃO: utilizar Parafuso (J)
  • 36.
    36 Ve2 Kit Versatik®Engenharia TEC-IMP-1021