Programação de Máquinas
CNC
CONSIDERAÇÕES GERAIS
O que significa CNC ?
C= Comando
N= Numérico
C= Computadorizado
O que é Comando Numérico ?
O Comando Numérico (CN) é um
equipamento eletrônico capaz de
receber informações por algum
meio de entrada, transformar estas
informações em uma seqüência
mecânica desejada.
Maior flexibilidade;
Repetibilidade;
Menor desgaste físico do operador;
Aumento da qualidade do serviço;
Facilidade na confecção de perfis simples e complexos;
Maior controle sobre desgaste das ferramentas;
Redução do refugo;
Menor movimentação da peça;
Interpolações lineares e circulares;
Usinagem de roscas paralelas e cônicas.
Principais vantagens do comando numérico
Quando surgiu ?
Fatores ligados à pesquisa durante a
Segunda Guerra Mundial levaram a uma
necessidade de adaptação aos
conceitos de fabricação.
O primeiro teste do CN aplicado
em máquinas operatrizes foi em
1949, no laboratório de tecnologia
de Massachustets (MIT).
Linguagens de programação ?
A fim de facilitar o processo de desenvolvimento
de programas, foram desenvolvidas linguagens
de programação que facilitam ao usuário ordenar
aos computadores o que fazer.
Criaram-se linguagens como:
ISO (linguagem dos “G's”)
MAZATROL
HEIDENHAIN
Tipos de máquinas, modelos e
comandos
• Romi, Ergomat, Mazak, Index, Mori Seiki, Nardini, Traub, etc
– são exemplos de fabricantes de máquinas;
• Galaxy 10, TND 180, Centur 30 RV, Logic 195, Cosmos 10,
Centur 30 D, etc – são exemplos de modelos de máquinas;
• Fanuc, Siemens, Mach, Fagor, MCS, Heidenhain, Mazatrol,
Mitsubishi, etc – são exemplos de comandos.
Torno CNC Ergomat TND 180
Torno CNC Centur 30 RV
Torno CNC Centur 30 R
Retificadora CNC
Fresadora CNC Sinitron
Eletroerosão a Fio – 5 eixos
Torno CNC portátil
Centro de Usinagem
Comando Fanuc Oi M
Comando Maxitec Siemens
Comando Siemens 810
Comando Mach 8
Comando Fanuc 21i
Comando Mach 5
Comando Diadur
Comando MCS
Comando Mitsubishi
Tipos de fixação das ferramentas
• Torre hidráulica;
• Torre elétrica;
• Fixação por “Gang”;
• Troca rápida.
Torre elétrica
Torre hidráulica
Fixação por “Gang”
Troca rápida
Tipos de fixação de peças
• Placa hidráulica;
• Placa pneumática;
• Placa manual.
Placa manual
Placa hidráulica
Placa pneumática
SISTEMA DE COORDENADAS
Todas as máquinas-ferramenta CNC são
comandadas por um sistema de coordenadas
cartesianas na elaboração de qualquer perfil
geométrico.
Para que a máquina possa trabalhar com as
posições especificadas, estas têm que ser
declaradas em um sistema de referência, que
corresponde aos sentidos dos movimentos
dos eixos (X, Y, Z).
Regra da Mão Direita
Para um sistema tridimensional, são utilizados
três eixos perpendiculares (90) entre si, que
podem ser designados através dos dedos da mão
direita.
Polegar : indica o sentido positivo do eixo
imaginário, representado pela letra “X”.
Indicador : aponta o sentido positivo do eixo “Y”.
Médio : nos mostra o sentido positivo do eixo “Z”.
Regra da Mão Direita
Plano Cartesiano
Sistema Absoluto de Coordenadas
10 20
0 30 40
0
10
20
30
40
P2
P3
P4
P5
P6
P7
P8
P1
eixo X
eixo Y
origem
Sistema Incremental de Coordenadas
10 20
0 30 40
0
10
20
30
40
P2
P3
P4
P5
P6
P7
P8
P1
eixo X
eixo Y
origem
Pontos X Z
P1 50 0
P2 50 -50
P3 75 -50
P4 75 -75
P5 100 -75
Exemplo Coordenada absoluta
Pontos X Z
P1 50 0
P2 0 -50
P3 25 0
P4 0 -25
P5 25 0
Exemplo Coordenada incremental
Quadrantes
Pontos de Referência
Ponto de troca
O ponto de troca é uma coordenada qualquer definida
no programa cujo objetivo é:
•Servir de ponto de partida para posicionamentos
rápidos.
•Servir como ponto de parada para troca de
ferramentas.
•Local seguro para giro de torre elétrica ou virar peças
na placa.
Ponto de troca
•Este procedimento visa evitar colisões indesejáveis
de ferramentas, facilitar o trabalho por parte do
operador da máquina e aumentar a sua segurança.
Funções Preparatórias
G00 Interpolação linear com avanço rápido
G01 Interpolação linear com avanço
programado
G02 Interpolação circular no sentido horário
G03 Interpolação circular no sentido anti-
horário
G17 Seleção de plano de trabalho X-Y
G18 Seleção de plano de trabalho X-Z
Funções Preparatórias
G19 Seleção de plano de trabalho Y- Z
G20 Programação em Polegada
G21 Programação em Milímetro
G40 Cancela compensação de raio
G41 Compensação do raio da ferramenta
à esquerda
G42 Compensação do raio da ferramenta
à direita
G53 Ativa Zero máquina
G54 a G59 Ativa os Deslocamentos de Ponto Zero
peça.
G90 Programação em Coordenadas Absolutas
G91 Programação em Coordenadas Incrementais
G92 Limite de RPM
G94 Programação em Avanço por minuto
G95 Programação em Avanço por rotação
G96 Programação em Velocidade de Corte
Constante
G97 Programação em RPM direta
Função G00 – Posicionamento Rápido
Função G01 – Interpolação Linear
Função G02– Interpolação Circular
Sentido Horário
Função G03 – Interpolação Circular
Sentido Anti-Horário
Função G18 Seleção do Plano X, Z
A função G18 é utilizada nos Tornos CNC, onde
o comando assume G18 como condição básica
de funcionamento (Default), assim que a
máquina é ligada.
Função G20 e G21
G20 – Referência de unidade de medida
(polegada)
G21 – Referência de unidade de medida
(métrico)
Função G41e G42 – Ativa a Compensação de
Raio da Ferramenta
Deslocamento de Ponto Zero Peça.
A função G54, assim como G55, G56, G57, G58
e G59 são funções que definem na
programação a origem Zero Peça.
Observações:
Uma peça poderá ter mais que
uma origem zero peça "W",
conforme a necessidade.
G90 - Coordenadas Absolutas
A função G90 é Modal e prepara a máquina
para executar operações em coordenadas
absolutas.
Observação:
As máquinas ao serem ligadas já assumem
G90 como condição básica de funcionamento.
G91 - Coordenadas Incrementais
A função G91 é Modal e prepara a máquina
para executar todas as operações em
coordenadas incrementais.
G92 - Definição Limite de RPM
Exemplo:
N40 G92 S3000 M3 ;
Estamos permitindo que o eixo-árvore gire
até 3000 rpm no máximo.
G94 - Programação em Avanço por Minuto
A função G94 é Modal e prepara o comando
para computar todos os avanços programados
em pol/min quando utilizado juntamente com a
função G20 ou mm/min quando utilizado
juntamente com a função G21.
G95 - Programação em Avanço por Rotação
A função G95 é Modal prepara o comando para
computar todos os avanços programados em
pol/rot quando utilizado juntamente com a
função G20 ou mm/rot quando utilizado
juntamente com a função G21.
G96 - Programação em Velocidade de
Corte Constante.
A função G96 é Modal e seleciona o modo
de programação em velocidade de corte
constante, cujo objetivo é promover a
variação calculada da rpm através da função
auxiliar "S".
Nota:
A máxima rpm alcançada pela velocidade de corte
constante pode ser limitada programando-se a função
G92.
Exemplo:
N40 G96 S200 ; (Prog. em velocidade de
corte constante / valor de Vc)
N50 G92 S3000 M4 ; (Limite máximo da
rpm e sentido de giro).
G97 - Programação em RPM Direta
A função G97 é Modal e seleciona o modo
de programação em rpm direta, cujo valor
é dado pela função auxiliar "S", desta
forma não haverá variação de rotação.
Exemplo:
N65 G97 S2500 M4; (Prog. em rpm direta / Valor
da rpm e sentido de giro)
Estruturas e Características
do Programa CNC
A estrutura de
programação para
tornos CNC utilizando
a Norma ISO 6983, e
será capaz de
identificar um
programa elaborado
na linguagem
EIA/ISO.
O programa CNC é constituído de:
• Bloco de Dados : É uma série de palavras colocadas numa
linha, finalizada pelo
Caractere; (Exemplo: G01 X54 Y30 F.12;)
•Programa : É uma série de blocos de dados (Finalizada por
M30).
Caracteres especiais
•(;) - Fim de bloco : (EOB - End Of Block). Todo bloco deve
apresentar um caractere que indique o fim do bloco.
•( ) - Comentário : Os caracteres parênteses permitem a
inserção de comentários. Os caracteres que vierem dentro de
parênteses são considerados comentários e serão ignorados
pelo comando.
Funções de posicionamento
•O comando trabalha em milímetros para palavras de
posicionamento com ponto decimal.
•Função X – Aplicação: Posição no eixo transversal (absoluta)
X20 ; ou X-5 ;
•Função Z – Aplicação: Posição no eixo longitudinal (absoluta)
Z20 ; ou Z-20 ;
•Função U – Aplicação: Posição no eixo transversal
(incremental)
U5 ; ou U-5 ; (Usado em programação feita em coordenadas
absolutas)
• Função W – Aplicação: Posição no eixo longitudinal
(incremental)
W5 ; ou W-5 ; (Usado em programação feita em coordenadas
absolutas)
Funções especiais
• Função O (usada no comando GE Fanuc 21i)
Todo programa ou sub-programa na memória do comando é
identificado através da letra “O” composto por até 4 digitos,
podendo variar de 0001 até 9999. Para facilitar a identificação
do programa, recomenda-se inserir um comentário,
observando-se o uso dos parênteses. Ex.: O5750 (Flange do
eixo traseiro);
Funções especiais
•Função N
Define o número da seqüência. Cada seqüência de informação
pode ser identificada por um número de um a quatro dígitos,
que virá após a função N. Esta função é utilizada em
desvios especificados em ciclos, e em procura de blocos.
Exemplo:
N50 G01 X10 ;
N60 G01 Z10 ;
Não é necessário programar o número de seqüência em todos
os blocos de dados.A sequência aparecerá automaticamente
após a inserção de cada bloco de dados, a não ser que seja
feita uma edição fora da seqüência do programa ou após sua
edição completada.
Funções especiais
Função F
Geralmente nos tornos CNC utiliza-se o avanço em
mm/rotação, mas este também pode ser utilizado em mm/min.
O avanço é um dado importante de corte e é obtido levando-se
em conta o material, a ferramenta e a operação a ser
executada. Ex : F0.3 ; ou F.3 ; .
Funções especiais
Função F
Geralmente nos tornos CNC utiliza-se o avanço em
mm/rotação, mas este também pode ser utilizado em mm/min.
O avanço é um dado importante de corte e é obtido levando-se
em conta o material, a ferramenta e a operação a ser
executada. Ex : F0.3 ; ou F.3 ; .
Função T
A função T é usada para selecionar as ferramentas informando
à máquina o seu zeramento (PRE-SET), raio do inserto,
sentido de corte e corretores. Programa-se o código T
acompanhado de no máximo quatro dígitos.
Funções especiais
Função F
Geralmente nos tornos CNC utiliza-se o avanço em
mm/rotação, mas este também pode ser utilizado em mm/min.
O avanço é um dado importante de corte e é obtido levando-se
em conta o material, a ferramenta e a operação a ser
executada. Ex : F0.3 ; ou F.3 ; .
Função T
A função T é usada para selecionar as ferramentas informando
à máquina o seu zeramento (PRE-SET), raio do inserto,
sentido de corte e corretores. Programa-se o código T
acompanhado de no máximo quatro dígitos.
Os dois primeiros dígitos definem a localização da
ferramenta na torre e seu zeramento (PRE-SET), e os
dois últimos dígitos definem o número do corretor de ajustes
de medidas e correções de desgaste do inserto.
Exemplo: T0202 ;
Podem-se programar até 12 ferramentas e 32
corretores. O giro de torre e o movimento dos carros não
podem estar no mesmo bloco que a função T, ela deve ser
programada em uma linha de maneira isolada.
Importante:
O raio do inserto (R) e a geometria da ferramenta (T) devem
ser inseridos somente na página de geometria de
ferramentas.
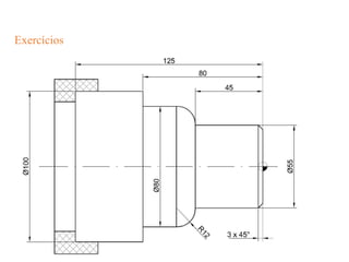
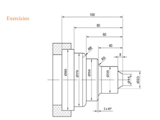
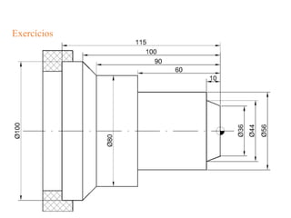
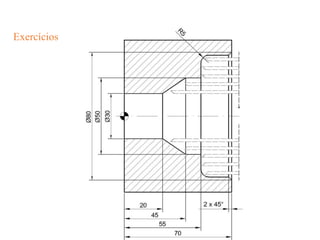
Exercícios
Exercícios
Faça o programa das peças abaixo
com os dados:
T0101=Ferramenta externa
vc=200m/min, f 0,2 e rotação
máxima de 3600.
T0303=Ferramenta interna Vc=
150m/min, f0,15 e rotação de 3000.
Faça os programas
utilizando ciclo de
desbaste e ciclo de
acabamento, G71 e
G7o respectivamente.
Exercícios
Exercícios
Exercícios
Exercícios
G70 Ciclo de Acabamento
G71 Ciclo de Desbaste Longitudinal
G72 Ciclo de desbaste transversal
G74 Ciclo de Torneamento
G74 Ciclo de Furação
G75 Ciclo de Canais
G76 Ciclo de roscamento automático
G83 Ciclo de Furação Axial
Ciclos Automáticos de Usinagem
Comando Fanuc 21iT
G71 Ciclo de Desbaste Longitudinal
Este ciclo permite a usinagem de desbaste completa da
peça, utilizando-se apenas de dois blocos de
programação.
NOTAS:
• Após a execução do ciclo, a
ferramenta retorna
automaticamente ao ponto
posicionado.
• Não é permitida a
programação da função “Z” no
bloco que define o perfil a ser
usinado
G70 Ciclo de Acabamento
Este ciclo é utilizado após a aplicação de ciclos de
desbaste G71, G72 para dar o acabamento final
sem a necessidade de repetição de toda a
seqüência do perfil a ser executado.
Função G70
Aplicação: Ciclo de acabamento.
Este ciclo é utilizado após a aplicação dos ciclos de
desbaste G71, G72 e G73 para dar o acabamento final da
peça sem que o programador necessite repetir toda a
sequência do perfil a ser executado.
A função G70 requer:
G70 P_ _ _ Q_ _ _ ; onde:
P = número do bloco que define o início do perfil
Q = número do bloco que define o final do perfil
As funções F, S e T especificadas nos blocos G71, G72
e, mas as especificadas entre o bloco de início do perfil (P)
e final do perfil (Q) são válidas durante
a utilização do código G70.
NOTAS:
• Após a execução do ciclo, a ferramenta retorna
automaticamente ao ponto
posicionado.
N10 G21 G40 G90 G95;
N20 G0 X200 Z200 T00;
N30 T0101 (Desbaste);
N40 G55;
N50 G96 S200;
N60 G92 S2500 M4;
N70 G0 X80 Z75;
N80 G71 U2.5 R2;
N90 G71 P100 Q200 U1 W0.2 F0.25;
N100 G0 X16;
N110 G42;
N120 G1 Z70 F.2;
N130 X20 Z68;
N140 Z55;
N150 G2 X30 Z50 R5;
N160 G1 X50;
N170 Z40;
N180 X80 Z25;
N190 G40;
N200 G1 X85;
N210 G70 P100 Q200;
N220 G0 X200 Z200 T00;
N230 M30;
Exemplo
G75 Ciclo de Canais
Este ciclo permite o sangramento de canais
eqüidistantes, com quebra de cavacos, programados
com apenas dois blocos de programação.
G75 Ciclo de Canais
Aplicação: Ciclo de canais.
A função G75 como ciclo de canais requer:
G75 R_ _ _ ;
G75 X_ _ _ Z_ _ _ P_ _ _ Q_ _ _ F_ _ _ ; onde:
R = retorno incremental para quebra de cavaco (raio)
X = diâmetro final do canal
Z = posição final (absoluto)
P = incremento de corte (raio / milésimo de milímetro)
Q = distância entre os canais (incremental / milésimo de milímetro)
F = avanço de trabalho
G75 Ciclo de Canais
NOTAS:
• Neste ciclo os canais deverão ser eqüidistantes, com exceção do
último.
• Após a execução do ciclo, a ferramenta retorna automaticamente ao
ponto
posicionado.
Exemplo
O0075 (Ciclo de canais);
N10 G21 G40 G90 G95;
N20 G0 X200 Z200 T00;
N30 T0808 (canais);
N40 G54;
N50 G96 S130;
N60 G92 S3000 M4;
N70 G0 X75 Z67;
N80 G75 R2;
N90 G75 X50 Z25 P7500 Q14000
F.2;
N100 G0 X200 Z200 T00;
N110 M30;
G74 e G83 Ciclo de Furação Axial
A aplicação da função G74 como ciclo de furação,
realiza furações com quebra de cavacos, e G83 com
descarga de cavaco
G83 Ciclo de Furação
G83 - Ciclo de Furação Axial
A função G83, realiza furações com descarga de
cavacos.
G74 Ciclo de Furação
Aplicação: Ciclo de furação.
A função G74 como ciclo de furação requer:
G74 R_ _ _ ;
G74 Z_ _ _ Q_ _ _ F_ _ _ ; onde:
R = retorno incremental para quebra de cavaco no
ciclo de furação
Z = posição final (absoluto)
Q = valor do incremento no ciclo de furação (milésimo
de milímetro)
F = avanço de trabalho
G74 Ciclo de Furação
NOTAS:
• Após a execução do ciclo a ferramenta retorna
automaticamente ao ponto
posicionado.
• Quando utilizarmos o ciclo G74 como ciclo de
furação não poderemos informar as
funções “X” e “U” no bloco.
Exemplo
O0074 (Ciclo de furação);
N10 G21 G40 G90 G95;
N20 G0 X200 Z200 T00;
N30 T0606 (Broca 12 mm);
N40 G54;
N50 G97 S1200 M3;
N60 G0 X0 Z80;
N70 G1 Z73 F1 M8;
N80 G74 R2;
N90 G74 Z-4 Q15000 F0.08;
N100 G0 X200 Z200 T00 M9;
N110 M30;
G74 Ciclo de Desbaste Longitudinal
A função G74 pode ser utilizada como ciclo de
torneamento paralelo ao eixo Z, o qual executa a
usinagem com sucessivos passes até o diâmetro
desejado.
G76 Ciclo de Roscamento Automático
Esta função executa o roscamento automático, através de
duas linhas de programação.
1
2
3
4
1
2
3
4
FRESAMENTO
 Sistema de Coordenadas.
 Funções Preparatórias.
 Sistema de Referência e Ffixação de Ferramentas.
 Controle Linear e Circular de Deslocamento.
 Lógica de Repetição.
 Ciclos Automáticos de Usinagem.
 Compensação do Raio de Corte.
Regra da mão direita
Localização dos Pontos de Referência da Máquina
Onde:
M - Ponto Zero Máquina
W - Ponto Zero Peça
LS - Limite de Software
P - Ponto comandado
Obs:
Nas fresadoras a Posição do Ponto Zero Máquina "M" pode variar
de acordo com o fabricante da mesma.
Funções Preparatórias
G00 Interpolação linear rápida
G01 Interpolação linear com avanço programado
G02 Interpolação circular no sentido horário
G03 Interpolação circular no sentido anti-horário
G17 Seleção de plano X-Y
G18 Seleção de plano X-Z
G19 Seleção de plano Y-Z
G40 Cancela compensação do raio da ponta da ferramenta
G41 Compensação do raio da ferramenta (esquerda)
G42 Compensação do raio da ferramenta (direita)
G70 Admite programação em polegada
G71 Admite programação em milímetro
G90 Programação em coordenadas absolutas
G91 Programação em coordenadas incrementais
G92 Definição de origem temporária
G94 Programação do avanço por minuto
G99 Cancela definição de origem temporária
Função G00 - Posicionamento rápido
Função G01
Interpolação Linear com Avanço Programado
Função G02/G03
Interpolação Circular (Horária/Anti-Horária)
G02 / G03 X.. Y.. I.. J. #
Onde:
X - Ponto final no eixo X (absoluto).
Y - Ponto final no eixo Y (absoluto).
I - Centro do arco em relação ao
eixo X.
J - Centro do arco em relação ao
eixo Y.
Compensação do Raio da Ferramenta
G41 – Ferramenta à esquerda da peça em função do
sentido de usinagem.
Compensação do Raio da Ferramenta
G42 – Ferramenta à direita da peça em função do sentido
de usinagem.
FUNÇÕES AUXILIARES
Exemplo:
T01 – Chama a ferramenta nº1;
M06 – Habilita a troca;
O1 – Ativa o corretor de altura nº 1;
S1500 M3 – Liga a rotação do eixo-árvore a 1500 RPM.
FUNÇÕES : O, S, T, M6
Função G24 Auto rotina de Círculo de Furos
Função G25 Auto rotina de Retângulo de Furos
Função G26 Auto rotina para alojamento Interno(Cavidade)
Função G81 Ciclo de furação simples
Função G83 Ciclo de furação com descarga de cavacos
Função G84 Ciclo de roscamento
Ciclos Automáticos de Usinagem
G24 Auto-Rotina de Círculo de Furos
A função G24, executa automaticamente um padrão
circular de pontos (furos) igualmente espaçados, com
no máximo 128 vezes.
G25 Auto-Rotina de Retângulo de Furos
A função G26 é uma auto-rotina para fresamento de
alojamentos internos e podem ser retangulares,
quadrados ou circulares.
G81 Ciclo de Furação Simples
G83 Ciclo de Furação
com Descarga de Cavacos
G84 Ciclo de Roscamento
Estrutura Básica de Programação
; NOME # (Nome do Programa)
N10 G99 # (Cancela novas origens)
N20 G94 # (Avanço de corte em mm/min)
N30 G90 # (Programação no Sistema de
Coordenadas Absolutas)
N40 G71 # (Programação em Milímetros)
N50 G17 # (Plano de trabalho X,Y)
CHAMADA DE FERRAMENTA:
N60 T01 M06 ; FRESA DE TOPO DE 10 MM #
(Chamada de Ferramenta e Liberação para a troca
de posição no Magazine)
N70 O01 S2500 M03 # (Ativa o corretor da
ferramenta, a rotação desejada e o sentido e giro
do eixo árvore).
N80 M08 # (Liga refrigerante de corte)
BLOCOS DE USINAGEM
N150 G00 X50. Y45. # (Posicionamento rápido)
N160 G01 X80. F400 # (Interpolação linear com
avanço programado)
TROCAS DE FERRAMENTAS
N240 M09 # (Desliga refrigerante de corte)
N250 GZO M05 # (Ponto de troca, cancela
corretor de ferramenta e desliga o eixo árvore)
N260 T02 M06; BROCA HELICOIDAL 5MM #
(Chama a nova ferramenta e libera para a troca de
posição no magazine)
N270 O02 S3000 M03 # (Ativa o corretor da nova
ferramenta, a rotação desejada e o sentido de giro).
N280 M08 # (Liga refrigerante de corte)
FINAL DE PROGRAMA
N930 M09 # (Desliga refrigerante de corte)
N940 GZO M05 # (Ponto de troca, cancela
corretor de ferramenta e desliga o eixo árvore)
N950 T00 M06 # (Descarrega o eixo árvore)
N960 M30 # (Final de programa)

Comando Numérico Computadorizado2 -Apresentação.pdf

  • 1.
  • 2.
    CONSIDERAÇÕES GERAIS O quesignifica CNC ? C= Comando N= Numérico C= Computadorizado
  • 3.
    O que éComando Numérico ? O Comando Numérico (CN) é um equipamento eletrônico capaz de receber informações por algum meio de entrada, transformar estas informações em uma seqüência mecânica desejada.
  • 4.
    Maior flexibilidade; Repetibilidade; Menor desgastefísico do operador; Aumento da qualidade do serviço; Facilidade na confecção de perfis simples e complexos; Maior controle sobre desgaste das ferramentas; Redução do refugo; Menor movimentação da peça; Interpolações lineares e circulares; Usinagem de roscas paralelas e cônicas. Principais vantagens do comando numérico
  • 5.
    Quando surgiu ? Fatoresligados à pesquisa durante a Segunda Guerra Mundial levaram a uma necessidade de adaptação aos conceitos de fabricação. O primeiro teste do CN aplicado em máquinas operatrizes foi em 1949, no laboratório de tecnologia de Massachustets (MIT).
  • 6.
    Linguagens de programação? A fim de facilitar o processo de desenvolvimento de programas, foram desenvolvidas linguagens de programação que facilitam ao usuário ordenar aos computadores o que fazer. Criaram-se linguagens como: ISO (linguagem dos “G's”) MAZATROL HEIDENHAIN
  • 7.
    Tipos de máquinas,modelos e comandos • Romi, Ergomat, Mazak, Index, Mori Seiki, Nardini, Traub, etc – são exemplos de fabricantes de máquinas; • Galaxy 10, TND 180, Centur 30 RV, Logic 195, Cosmos 10, Centur 30 D, etc – são exemplos de modelos de máquinas; • Fanuc, Siemens, Mach, Fagor, MCS, Heidenhain, Mazatrol, Mitsubishi, etc – são exemplos de comandos.
  • 8.
    Torno CNC ErgomatTND 180 Torno CNC Centur 30 RV Torno CNC Centur 30 R
  • 9.
    Retificadora CNC Fresadora CNCSinitron Eletroerosão a Fio – 5 eixos Torno CNC portátil Centro de Usinagem
  • 10.
    Comando Fanuc OiM Comando Maxitec Siemens Comando Siemens 810 Comando Mach 8
  • 11.
    Comando Fanuc 21i ComandoMach 5 Comando Diadur Comando MCS Comando Mitsubishi
  • 12.
    Tipos de fixaçãodas ferramentas • Torre hidráulica; • Torre elétrica; • Fixação por “Gang”; • Troca rápida.
  • 13.
    Torre elétrica Torre hidráulica Fixaçãopor “Gang” Troca rápida
  • 14.
    Tipos de fixaçãode peças • Placa hidráulica; • Placa pneumática; • Placa manual.
  • 15.
  • 16.
    SISTEMA DE COORDENADAS Todasas máquinas-ferramenta CNC são comandadas por um sistema de coordenadas cartesianas na elaboração de qualquer perfil geométrico. Para que a máquina possa trabalhar com as posições especificadas, estas têm que ser declaradas em um sistema de referência, que corresponde aos sentidos dos movimentos dos eixos (X, Y, Z).
  • 17.
    Regra da MãoDireita Para um sistema tridimensional, são utilizados três eixos perpendiculares (90) entre si, que podem ser designados através dos dedos da mão direita. Polegar : indica o sentido positivo do eixo imaginário, representado pela letra “X”. Indicador : aponta o sentido positivo do eixo “Y”. Médio : nos mostra o sentido positivo do eixo “Z”.
  • 18.
  • 19.
  • 20.
    Sistema Absoluto deCoordenadas 10 20 0 30 40 0 10 20 30 40 P2 P3 P4 P5 P6 P7 P8 P1 eixo X eixo Y origem
  • 21.
    Sistema Incremental deCoordenadas 10 20 0 30 40 0 10 20 30 40 P2 P3 P4 P5 P6 P7 P8 P1 eixo X eixo Y origem
  • 22.
    Pontos X Z P150 0 P2 50 -50 P3 75 -50 P4 75 -75 P5 100 -75 Exemplo Coordenada absoluta
  • 23.
    Pontos X Z P150 0 P2 0 -50 P3 25 0 P4 0 -25 P5 25 0 Exemplo Coordenada incremental
  • 24.
  • 25.
  • 27.
    Ponto de troca Oponto de troca é uma coordenada qualquer definida no programa cujo objetivo é: •Servir de ponto de partida para posicionamentos rápidos. •Servir como ponto de parada para troca de ferramentas. •Local seguro para giro de torre elétrica ou virar peças na placa.
  • 28.
    Ponto de troca •Esteprocedimento visa evitar colisões indesejáveis de ferramentas, facilitar o trabalho por parte do operador da máquina e aumentar a sua segurança.
  • 31.
    Funções Preparatórias G00 Interpolaçãolinear com avanço rápido G01 Interpolação linear com avanço programado G02 Interpolação circular no sentido horário G03 Interpolação circular no sentido anti- horário G17 Seleção de plano de trabalho X-Y G18 Seleção de plano de trabalho X-Z
  • 32.
    Funções Preparatórias G19 Seleçãode plano de trabalho Y- Z G20 Programação em Polegada G21 Programação em Milímetro G40 Cancela compensação de raio G41 Compensação do raio da ferramenta à esquerda G42 Compensação do raio da ferramenta à direita
  • 33.
    G53 Ativa Zeromáquina G54 a G59 Ativa os Deslocamentos de Ponto Zero peça. G90 Programação em Coordenadas Absolutas G91 Programação em Coordenadas Incrementais G92 Limite de RPM G94 Programação em Avanço por minuto G95 Programação em Avanço por rotação G96 Programação em Velocidade de Corte Constante G97 Programação em RPM direta
  • 34.
    Função G00 –Posicionamento Rápido
  • 35.
    Função G01 –Interpolação Linear
  • 36.
    Função G02– InterpolaçãoCircular Sentido Horário
  • 37.
    Função G03 –Interpolação Circular Sentido Anti-Horário
  • 39.
    Função G18 Seleçãodo Plano X, Z A função G18 é utilizada nos Tornos CNC, onde o comando assume G18 como condição básica de funcionamento (Default), assim que a máquina é ligada.
  • 40.
    Função G20 eG21 G20 – Referência de unidade de medida (polegada) G21 – Referência de unidade de medida (métrico)
  • 41.
    Função G41e G42– Ativa a Compensação de Raio da Ferramenta
  • 45.
    Deslocamento de PontoZero Peça. A função G54, assim como G55, G56, G57, G58 e G59 são funções que definem na programação a origem Zero Peça. Observações: Uma peça poderá ter mais que uma origem zero peça "W", conforme a necessidade.
  • 46.
    G90 - CoordenadasAbsolutas A função G90 é Modal e prepara a máquina para executar operações em coordenadas absolutas. Observação: As máquinas ao serem ligadas já assumem G90 como condição básica de funcionamento.
  • 47.
    G91 - CoordenadasIncrementais A função G91 é Modal e prepara a máquina para executar todas as operações em coordenadas incrementais.
  • 48.
    G92 - DefiniçãoLimite de RPM Exemplo: N40 G92 S3000 M3 ; Estamos permitindo que o eixo-árvore gire até 3000 rpm no máximo.
  • 49.
    G94 - Programaçãoem Avanço por Minuto A função G94 é Modal e prepara o comando para computar todos os avanços programados em pol/min quando utilizado juntamente com a função G20 ou mm/min quando utilizado juntamente com a função G21.
  • 50.
    G95 - Programaçãoem Avanço por Rotação A função G95 é Modal prepara o comando para computar todos os avanços programados em pol/rot quando utilizado juntamente com a função G20 ou mm/rot quando utilizado juntamente com a função G21.
  • 51.
    G96 - Programaçãoem Velocidade de Corte Constante. A função G96 é Modal e seleciona o modo de programação em velocidade de corte constante, cujo objetivo é promover a variação calculada da rpm através da função auxiliar "S". Nota: A máxima rpm alcançada pela velocidade de corte constante pode ser limitada programando-se a função G92.
  • 52.
    Exemplo: N40 G96 S200; (Prog. em velocidade de corte constante / valor de Vc) N50 G92 S3000 M4 ; (Limite máximo da rpm e sentido de giro).
  • 53.
    G97 - Programaçãoem RPM Direta A função G97 é Modal e seleciona o modo de programação em rpm direta, cujo valor é dado pela função auxiliar "S", desta forma não haverá variação de rotação. Exemplo: N65 G97 S2500 M4; (Prog. em rpm direta / Valor da rpm e sentido de giro)
  • 54.
    Estruturas e Características doPrograma CNC A estrutura de programação para tornos CNC utilizando a Norma ISO 6983, e será capaz de identificar um programa elaborado na linguagem EIA/ISO.
  • 57.
    O programa CNCé constituído de: • Bloco de Dados : É uma série de palavras colocadas numa linha, finalizada pelo Caractere; (Exemplo: G01 X54 Y30 F.12;) •Programa : É uma série de blocos de dados (Finalizada por M30). Caracteres especiais •(;) - Fim de bloco : (EOB - End Of Block). Todo bloco deve apresentar um caractere que indique o fim do bloco. •( ) - Comentário : Os caracteres parênteses permitem a inserção de comentários. Os caracteres que vierem dentro de parênteses são considerados comentários e serão ignorados pelo comando.
  • 58.
    Funções de posicionamento •Ocomando trabalha em milímetros para palavras de posicionamento com ponto decimal. •Função X – Aplicação: Posição no eixo transversal (absoluta) X20 ; ou X-5 ; •Função Z – Aplicação: Posição no eixo longitudinal (absoluta) Z20 ; ou Z-20 ; •Função U – Aplicação: Posição no eixo transversal (incremental) U5 ; ou U-5 ; (Usado em programação feita em coordenadas absolutas) • Função W – Aplicação: Posição no eixo longitudinal (incremental) W5 ; ou W-5 ; (Usado em programação feita em coordenadas absolutas)
  • 59.
    Funções especiais • FunçãoO (usada no comando GE Fanuc 21i) Todo programa ou sub-programa na memória do comando é identificado através da letra “O” composto por até 4 digitos, podendo variar de 0001 até 9999. Para facilitar a identificação do programa, recomenda-se inserir um comentário, observando-se o uso dos parênteses. Ex.: O5750 (Flange do eixo traseiro);
  • 60.
    Funções especiais •Função N Defineo número da seqüência. Cada seqüência de informação pode ser identificada por um número de um a quatro dígitos, que virá após a função N. Esta função é utilizada em desvios especificados em ciclos, e em procura de blocos. Exemplo: N50 G01 X10 ; N60 G01 Z10 ; Não é necessário programar o número de seqüência em todos os blocos de dados.A sequência aparecerá automaticamente após a inserção de cada bloco de dados, a não ser que seja feita uma edição fora da seqüência do programa ou após sua edição completada.
  • 61.
    Funções especiais Função F Geralmentenos tornos CNC utiliza-se o avanço em mm/rotação, mas este também pode ser utilizado em mm/min. O avanço é um dado importante de corte e é obtido levando-se em conta o material, a ferramenta e a operação a ser executada. Ex : F0.3 ; ou F.3 ; .
  • 62.
    Funções especiais Função F Geralmentenos tornos CNC utiliza-se o avanço em mm/rotação, mas este também pode ser utilizado em mm/min. O avanço é um dado importante de corte e é obtido levando-se em conta o material, a ferramenta e a operação a ser executada. Ex : F0.3 ; ou F.3 ; . Função T A função T é usada para selecionar as ferramentas informando à máquina o seu zeramento (PRE-SET), raio do inserto, sentido de corte e corretores. Programa-se o código T acompanhado de no máximo quatro dígitos.
  • 63.
    Funções especiais Função F Geralmentenos tornos CNC utiliza-se o avanço em mm/rotação, mas este também pode ser utilizado em mm/min. O avanço é um dado importante de corte e é obtido levando-se em conta o material, a ferramenta e a operação a ser executada. Ex : F0.3 ; ou F.3 ; . Função T A função T é usada para selecionar as ferramentas informando à máquina o seu zeramento (PRE-SET), raio do inserto, sentido de corte e corretores. Programa-se o código T acompanhado de no máximo quatro dígitos.
  • 64.
    Os dois primeirosdígitos definem a localização da ferramenta na torre e seu zeramento (PRE-SET), e os dois últimos dígitos definem o número do corretor de ajustes de medidas e correções de desgaste do inserto. Exemplo: T0202 ; Podem-se programar até 12 ferramentas e 32 corretores. O giro de torre e o movimento dos carros não podem estar no mesmo bloco que a função T, ela deve ser programada em uma linha de maneira isolada. Importante: O raio do inserto (R) e a geometria da ferramenta (T) devem ser inseridos somente na página de geometria de ferramentas.
  • 66.
  • 67.
  • 68.
    Faça o programadas peças abaixo com os dados: T0101=Ferramenta externa vc=200m/min, f 0,2 e rotação máxima de 3600. T0303=Ferramenta interna Vc= 150m/min, f0,15 e rotação de 3000. Faça os programas utilizando ciclo de desbaste e ciclo de acabamento, G71 e G7o respectivamente.
  • 69.
  • 70.
  • 71.
  • 72.
  • 73.
    G70 Ciclo deAcabamento G71 Ciclo de Desbaste Longitudinal G72 Ciclo de desbaste transversal G74 Ciclo de Torneamento G74 Ciclo de Furação G75 Ciclo de Canais G76 Ciclo de roscamento automático G83 Ciclo de Furação Axial Ciclos Automáticos de Usinagem Comando Fanuc 21iT
  • 74.
    G71 Ciclo deDesbaste Longitudinal Este ciclo permite a usinagem de desbaste completa da peça, utilizando-se apenas de dois blocos de programação.
  • 75.
    NOTAS: • Após aexecução do ciclo, a ferramenta retorna automaticamente ao ponto posicionado. • Não é permitida a programação da função “Z” no bloco que define o perfil a ser usinado
  • 77.
    G70 Ciclo deAcabamento Este ciclo é utilizado após a aplicação de ciclos de desbaste G71, G72 para dar o acabamento final sem a necessidade de repetição de toda a seqüência do perfil a ser executado.
  • 78.
    Função G70 Aplicação: Ciclode acabamento. Este ciclo é utilizado após a aplicação dos ciclos de desbaste G71, G72 e G73 para dar o acabamento final da peça sem que o programador necessite repetir toda a sequência do perfil a ser executado. A função G70 requer: G70 P_ _ _ Q_ _ _ ; onde: P = número do bloco que define o início do perfil Q = número do bloco que define o final do perfil
  • 79.
    As funções F,S e T especificadas nos blocos G71, G72 e, mas as especificadas entre o bloco de início do perfil (P) e final do perfil (Q) são válidas durante a utilização do código G70. NOTAS: • Após a execução do ciclo, a ferramenta retorna automaticamente ao ponto posicionado.
  • 80.
    N10 G21 G40G90 G95; N20 G0 X200 Z200 T00; N30 T0101 (Desbaste); N40 G55; N50 G96 S200; N60 G92 S2500 M4; N70 G0 X80 Z75; N80 G71 U2.5 R2; N90 G71 P100 Q200 U1 W0.2 F0.25; N100 G0 X16; N110 G42; N120 G1 Z70 F.2; N130 X20 Z68; N140 Z55; N150 G2 X30 Z50 R5; N160 G1 X50; N170 Z40; N180 X80 Z25; N190 G40; N200 G1 X85; N210 G70 P100 Q200; N220 G0 X200 Z200 T00; N230 M30; Exemplo
  • 81.
    G75 Ciclo deCanais Este ciclo permite o sangramento de canais eqüidistantes, com quebra de cavacos, programados com apenas dois blocos de programação.
  • 82.
    G75 Ciclo deCanais Aplicação: Ciclo de canais. A função G75 como ciclo de canais requer: G75 R_ _ _ ; G75 X_ _ _ Z_ _ _ P_ _ _ Q_ _ _ F_ _ _ ; onde: R = retorno incremental para quebra de cavaco (raio) X = diâmetro final do canal Z = posição final (absoluto) P = incremento de corte (raio / milésimo de milímetro) Q = distância entre os canais (incremental / milésimo de milímetro) F = avanço de trabalho
  • 83.
    G75 Ciclo deCanais NOTAS: • Neste ciclo os canais deverão ser eqüidistantes, com exceção do último. • Após a execução do ciclo, a ferramenta retorna automaticamente ao ponto posicionado.
  • 84.
    Exemplo O0075 (Ciclo decanais); N10 G21 G40 G90 G95; N20 G0 X200 Z200 T00; N30 T0808 (canais); N40 G54; N50 G96 S130; N60 G92 S3000 M4; N70 G0 X75 Z67; N80 G75 R2; N90 G75 X50 Z25 P7500 Q14000 F.2; N100 G0 X200 Z200 T00; N110 M30;
  • 85.
    G74 e G83Ciclo de Furação Axial A aplicação da função G74 como ciclo de furação, realiza furações com quebra de cavacos, e G83 com descarga de cavaco
  • 86.
    G83 Ciclo deFuração
  • 87.
    G83 - Ciclode Furação Axial A função G83, realiza furações com descarga de cavacos.
  • 88.
    G74 Ciclo deFuração Aplicação: Ciclo de furação. A função G74 como ciclo de furação requer: G74 R_ _ _ ; G74 Z_ _ _ Q_ _ _ F_ _ _ ; onde: R = retorno incremental para quebra de cavaco no ciclo de furação Z = posição final (absoluto) Q = valor do incremento no ciclo de furação (milésimo de milímetro) F = avanço de trabalho
  • 89.
    G74 Ciclo deFuração NOTAS: • Após a execução do ciclo a ferramenta retorna automaticamente ao ponto posicionado. • Quando utilizarmos o ciclo G74 como ciclo de furação não poderemos informar as funções “X” e “U” no bloco.
  • 90.
    Exemplo O0074 (Ciclo defuração); N10 G21 G40 G90 G95; N20 G0 X200 Z200 T00; N30 T0606 (Broca 12 mm); N40 G54; N50 G97 S1200 M3; N60 G0 X0 Z80; N70 G1 Z73 F1 M8; N80 G74 R2; N90 G74 Z-4 Q15000 F0.08; N100 G0 X200 Z200 T00 M9; N110 M30;
  • 91.
    G74 Ciclo deDesbaste Longitudinal A função G74 pode ser utilizada como ciclo de torneamento paralelo ao eixo Z, o qual executa a usinagem com sucessivos passes até o diâmetro desejado.
  • 92.
    G76 Ciclo deRoscamento Automático Esta função executa o roscamento automático, através de duas linhas de programação.
  • 102.
  • 103.
  • 104.
  • 105.
     Sistema deCoordenadas.  Funções Preparatórias.  Sistema de Referência e Ffixação de Ferramentas.  Controle Linear e Circular de Deslocamento.  Lógica de Repetição.  Ciclos Automáticos de Usinagem.  Compensação do Raio de Corte.
  • 106.
  • 107.
    Localização dos Pontosde Referência da Máquina Onde: M - Ponto Zero Máquina W - Ponto Zero Peça LS - Limite de Software P - Ponto comandado Obs: Nas fresadoras a Posição do Ponto Zero Máquina "M" pode variar de acordo com o fabricante da mesma.
  • 108.
    Funções Preparatórias G00 Interpolaçãolinear rápida G01 Interpolação linear com avanço programado G02 Interpolação circular no sentido horário G03 Interpolação circular no sentido anti-horário G17 Seleção de plano X-Y G18 Seleção de plano X-Z G19 Seleção de plano Y-Z G40 Cancela compensação do raio da ponta da ferramenta G41 Compensação do raio da ferramenta (esquerda)
  • 109.
    G42 Compensação doraio da ferramenta (direita) G70 Admite programação em polegada G71 Admite programação em milímetro G90 Programação em coordenadas absolutas G91 Programação em coordenadas incrementais G92 Definição de origem temporária G94 Programação do avanço por minuto G99 Cancela definição de origem temporária
  • 110.
    Função G00 -Posicionamento rápido
  • 111.
    Função G01 Interpolação Linearcom Avanço Programado
  • 112.
    Função G02/G03 Interpolação Circular(Horária/Anti-Horária) G02 / G03 X.. Y.. I.. J. # Onde: X - Ponto final no eixo X (absoluto). Y - Ponto final no eixo Y (absoluto). I - Centro do arco em relação ao eixo X. J - Centro do arco em relação ao eixo Y.
  • 113.
    Compensação do Raioda Ferramenta G41 – Ferramenta à esquerda da peça em função do sentido de usinagem.
  • 114.
    Compensação do Raioda Ferramenta G42 – Ferramenta à direita da peça em função do sentido de usinagem.
  • 115.
    FUNÇÕES AUXILIARES Exemplo: T01 –Chama a ferramenta nº1; M06 – Habilita a troca; O1 – Ativa o corretor de altura nº 1; S1500 M3 – Liga a rotação do eixo-árvore a 1500 RPM. FUNÇÕES : O, S, T, M6
  • 116.
    Função G24 Autorotina de Círculo de Furos Função G25 Auto rotina de Retângulo de Furos Função G26 Auto rotina para alojamento Interno(Cavidade) Função G81 Ciclo de furação simples Função G83 Ciclo de furação com descarga de cavacos Função G84 Ciclo de roscamento Ciclos Automáticos de Usinagem
  • 117.
    G24 Auto-Rotina deCírculo de Furos A função G24, executa automaticamente um padrão circular de pontos (furos) igualmente espaçados, com no máximo 128 vezes.
  • 118.
    G25 Auto-Rotina deRetângulo de Furos
  • 119.
    A função G26é uma auto-rotina para fresamento de alojamentos internos e podem ser retangulares, quadrados ou circulares.
  • 120.
    G81 Ciclo deFuração Simples
  • 121.
    G83 Ciclo deFuração com Descarga de Cavacos
  • 122.
    G84 Ciclo deRoscamento
  • 123.
    Estrutura Básica deProgramação ; NOME # (Nome do Programa) N10 G99 # (Cancela novas origens) N20 G94 # (Avanço de corte em mm/min) N30 G90 # (Programação no Sistema de Coordenadas Absolutas) N40 G71 # (Programação em Milímetros) N50 G17 # (Plano de trabalho X,Y)
  • 124.
    CHAMADA DE FERRAMENTA: N60T01 M06 ; FRESA DE TOPO DE 10 MM # (Chamada de Ferramenta e Liberação para a troca de posição no Magazine) N70 O01 S2500 M03 # (Ativa o corretor da ferramenta, a rotação desejada e o sentido e giro do eixo árvore). N80 M08 # (Liga refrigerante de corte)
  • 125.
    BLOCOS DE USINAGEM N150G00 X50. Y45. # (Posicionamento rápido) N160 G01 X80. F400 # (Interpolação linear com avanço programado)
  • 126.
    TROCAS DE FERRAMENTAS N240M09 # (Desliga refrigerante de corte) N250 GZO M05 # (Ponto de troca, cancela corretor de ferramenta e desliga o eixo árvore) N260 T02 M06; BROCA HELICOIDAL 5MM # (Chama a nova ferramenta e libera para a troca de posição no magazine) N270 O02 S3000 M03 # (Ativa o corretor da nova ferramenta, a rotação desejada e o sentido de giro). N280 M08 # (Liga refrigerante de corte)
  • 127.
    FINAL DE PROGRAMA N930M09 # (Desliga refrigerante de corte) N940 GZO M05 # (Ponto de troca, cancela corretor de ferramenta e desliga o eixo árvore) N950 T00 M06 # (Descarrega o eixo árvore) N960 M30 # (Final de programa)