COMPRESSORES CENTRÍFUGOS
1- Tipos de Compressores
ÍNDICE ÍTEM
Introdução 1.1
Caminho do Gás 1.2
Tipos de Compressores 1.3
Compressores com Carcaça bipartida horizontalmente 1.4
Compressores com Carcaça bipartida Verticalmente 1.5
Compressores com Carcaça tipo “Sino” 1.6
Compressores tipo “SR” 1.7
1
1.1INTRODUÇÃO
O compressor centrífugo é uma máquina “dinâmica”. Possui uma vazão contínua de
fluido, que recebe energia do conjunto impelidores e eixo. Esta energia é
transformada em pressão, parte através dos impelidores e parte pela seção do
estator, isto é, nos difusores.
Esta tipo de máquina é composta de uma carcaça externa (A) que contém a parte do
estator, chamada de Bundle (Conjunto de diafragmas) (B) e um rotor formado por um
eixo (C), um ou mais impelidores (D), um tambor de balanceamento (E) e um colar de
escora (F). O conjunto rotor é acionado por meio de um cubo (G) e apoiado por
mancais radiais (H), e mantido na posição axial por meio de um mancal axial (I). O
conjunto rotor possui selos labirinto (L) e, se necessário, selos de óleo (M).
A – Carcaça Externa G – Cubo de Acoplamento
B – Conjunto de Diafragmas (Bundle) H – Mancais Radiais
C – Eixo I – Mancal Axial
D - Impelidores L – Selos Labirinto
E – Tambor de Balanceamento M- Selo de Óleo
F – Colar de Escora
2
1.2 CAMINHO DO GÁS NO COMPRESSOR
O gás é sugado para o compressor através de um bocal de sucção e entra na
câmara anular (voluta de entrada), fluindo para o centro a partir de todas as
direções em um padrão radial uniforme (ver fig. 1.2). Na câmara, no lado oposto
ao bocal de sucção, existe uma aleta para evitar perturbações de gás.
Figura 1.2
Carcaça
aleta
Lâmina
eixo
Impulsor
voluta de entrada
Bocal de sucção
Tubo de sucção
3
O gás flui para o diafragma de sucção e então é sugado pelo primeiro impelidor
(ver Fig. 1.3).
Figura 1.3
Os impelidores consistem de dois discos, referidos como o disco e a proteção,
conectados por lâminas que são montadas no eixo por interferência e mantidas no
lugar por uma ou duas chavetas. O impelidor empurra o gás para frente
aumentando sua velocidade e pressão; a velocidade de saída possui um
componente radial e um tangencial.
No lado do disco, o impelidor é exposto à pressão de descarga (ver fig. 1.4) e no
outro lado parcialmente a esta mesma pressão e parcialmente à pressão de
sucção. Assim é criada uma força de empuxo na direção da sucção.
Voluta de entrada proteção
Lâmina
Disco
Chaveta
Eixo
Vedações de labirinto vedação de labirinto
Diafragma de sucção
4
Figura 1.4
Depois o gás flui através de uma câmara circular (difusor), seguindo um caminho
espiral onde perde velocidade e aumenta a pressão (devido à equação para
vazão de fluidos através de condutos).
Depois o gás flui ao longo do canal de retorno; este é uma câmara circular
limitada por dois anéis que formam o diafragma intermediário que possui lâminas
(ver fig. 1.5) para dirigir o gás para a entrada do próximo impelidor.
As lâminas são dispostas para retificar a vazão espiral do gás para obter uma
saída radial e uma entrada axial no impulsor seguinte. O caminho do gás é o
mesmo para cada impelidor.
5
Figura 1.5
Vedações do tipo labirinto são instaladas nos diafragmas para minimizar os
vazamentos internos de gás (ver fig. 1.5). Estas vedações são formadas por anéis
feitos de duas ou mais partes.
O último impelidor de um estágio (o termo se refere à área de compressão entre
dois bocais consecutivos) envia o gás para um difusor que leva para uma câmara
anular chamada de voluta de descarga (ver fig. 1.6).
Diafragma de entrada
diafragma
intermediário
Difusor
Canal de retorno
Luvas
lâmina
vedações de labirinto
6
A voluta de descarga é uma câmara circular que coleta o gás do limite externo
dos difusores e transporta o mesmo para os bocais de descarga; perto dos bocais
de descarga existe outra aleta que evita que o gás continue a fluir ao redor da
voluta e o dirige para o bocal de descarga (ver fig. 1.7).
Figura 1.7
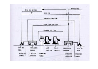
O tambor de balanceamento (E) é montado no eixo depois do impelidor final (ver
fig. 1.1). Serve para balancear o empuxo total produzido pelos impelidores. Com
o impelidor final fornecendo pressão em um lado do tambor, a pressão de entrada
Figura 1.6
Voluta de
descarga
Último impulsor
Voluta de descarga
aleta
Bocal de descarga
7
do compressor é aplicada no outro lado através de uma conexão externa (linha de
balanceamento, ver fig. 1.8).
Figura 1.8.
Desta forma as pressões de gás nos dois lados do rotor são aproximadamente
balanceadas. Para obter níveis de pressão ainda mais similares e, portanto, as
mesmas condições de operação para as vedações de óleo das pontas de eixo, é
feita outra conexão externa entre as câmaras de balanceamento (linha de
balanceamento, ver fig. 1.8).
As câmaras de gás de referência são posicionadas fora dos labirintos das pontas
de eixo. São conectadas para obter a mesma pressão da usada como referência
para o sistema de selo de óleo (ver fig. 1.8 para o diagrama de blocos.
Nos casos especiais, onde o selo de óleo e o gás de processo devem ser
mantidos separados, gás inerte é injetado na câmara de balanceamento (sistema
de gás de balanceamento) a uma pressão que permite seu vazamento para
dentro e para fora formando um selo.
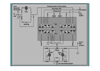
SISTEMA DE ÓLEO
DE VEDAÇÃO
GÁS DE BALANCEAMENTO
ÓLEO DE VEDAÇÃO
LINHA DE GÁS DE REFERÊNCIA
LINHA DE GÁS DE EQUALIZAÇÃO
LINHA DE GÁS DE BALANCEAMENTO
ANEL DE SELO
DE ÓLEO
CÂMARA DE
REFERÊNCIA
CÂMARA DE
EQUALIZAÇÃO
LABIRINTO DA
PONTA
ÚLTIMO
IMPELIDOR
PISTÃO DE BALANCEAMENTO
PRIMEIRO
IMPELIDOR
LABIRINTO DA
PONTA
CÂMARA DE
REFERÊNCIA
CÂMARA DE
EQUALIZAÇÃO
ANEL DE SELO
DE ÓLEO
8
1.3 TIPOS DE COMPRESSORES
Os compressores centrífugos fabricados possuem configurações diferentes para
atender serviços e faixas de pressão específicos, sendo que cada fabricante
adota uma nomenclatura associada ao tipo de compressor e suas características.
Considerando a Nuovo Pignone encontramos as seguintes nomenclaturas
relacionadas aos tipos de compressores existentes;
1.4 COMPRESSORES COM CARCAÇAS BIPARTIDAS HORIZONTALMENTE
As carcaças bipartidas horizontalmente consistindo de duas meias carcaças
ligadas ao longo da linha de centro horizontal (fig. 2.1) são usadas para
pressões de operação abaixo de 60 bar.
Figura 2.1.
9
Os bocais de sucção e descarga bem como quaisquer bocais de corrente
lateral, tubos de óleo lubrificante e todas as outras conexões da instalação
de compressor são localizadas na carcaça inferior. Com este arranjo tudo o
necessário para levantar a carcaça superior para ter acesso a todos os
componentes internos, tais como o rotor, diafragmas e vedações de
labirinto, é remover os parafusos da tampa ao longo da linha de centro
horizontal.
Os compressores com carcaça bi-partida horizontalmente são indicados
pela designação de letras MCL e podem ser identificados conforme o
número de estágios.
1.4.1. Compressores MCL
Estes compressores multi-estágio (ver fig. 2.2) possuem somente um estágio
de compressão.
Figura 2.2.
10
1.4.2. Compressores 2MCL
Estes são compressores multi-estágio (ver fig. 2.3) que agrupam dois
estágios de compressão em série na mesma máquina com resfriamento entre
os estágios.
Figura 2.3.
1.4.3. Compressores 3MCL
Estes são compressores multi-estágio que geralmente incorporam mais de
dois estágios de compressão em uma única carcaça (ver fig. 2.4). Como
regra são usados em serviços onde diferentes vazões de gás devem ser
comprimidas em diversos níveis de pressão, isto é, injetando e/ou extraindo
gás durante a compressão.
11
Figura 2.4.
1.4.4. Compressores DMCL
Dois estágios de compressão são dispostos em paralelo em uma única
carcaça. O fato de ambos estágios serem idênticos e o bocal de descarga ser
posicionado no centro da carcaça torna esta solução a mais balanceada
possível.
Ainda mais, uma vazão dupla é criada por um impulsor central comum (ver
fig. 2.5).
12
Figura 2.5.
1.5 COMPRESSORES COM CARCAÇAS BIPARTIDAS VERTICALMENTE
As carcaças bipartida verticalmente são formadas por um cilindro fechado com
duas tampas nas pontas: daí a denominação “barril” usada para se referir aos
compressores com estas carcaças. Estas máquinas, que são geralmente multi-
estágio, são usadas para serviços de alta pressão (até 700 kg/cm2
).
Dentro da carcaça (ver fig. 2.6) o rotor e o diafragma são essencialmente os
mesmos dos compressores MCL.
13
Figura 2.6.
1.5.1. Compressores BCL
Estes são compressores do tipo barril com um único estágio de
compressão (ver fig. 2.7).
Figura 2.7.
14
1.5.2. Compressores 2BCL
Estes são compressores do tipo barril com dois estágios de compressão
em série em uma única carcaça (ver fig. 2.8).
Figura 2.8.
1.5.3. Compressores DBCL
Como os compressores DMCL, estes compressores incorporam dois estágios
de compressão em paralelo em uma única carcaça.
15
1.6 COMPRESSORES COM CARCAÇA DE SINO
1.6.1. Compressores BCL com Carcaça de Sino
Os compressores de barril para altas pressões possuem carcaças em
forma de sino e são fechados com anéis de cisalhamento em lugar de
parafusos (ver fig. 2.9).
Figura 2.9.
16
1.6.2. Compressores PCL
Estes possuem carcaças em forma de sino com uma única tampa vertical na
ponta em lugar de duas como nos compressores BCL. Geralmente são
usados para transporte de gás natural (ver fig. 2.10). Normalmente possuem
sucção lateral e bocais de descarga posicionados opostos um ao outro para
facilitar a instalação nos gasodutos.
Figura 2.10
17
1.7 COMPRESSORES SR
Estes compressores são apropriados para serviços de pressão relativamente
baixa. Apresentam a característica de diversos eixos com impulsores em balanço.
Os impelidores são normalmente do tipo aberto, isto é, sem cobertura, para obter
elevadas pressões de ponta com baixos níveis de tensão e altas relações de
pressão por estágio. A entrada de cada impelidor é coaxial enquanto que a saída
é tangencial. Estes compressores são usados geralmente para compressão de ar
ou vapor, aplicações geotermais, etc. (ver fig. 2.11).
Figura 2.11
2 - Termodinâmica
ÍNDICE ÍTEM
Fenômeno de Compressão 2.1
Processo de Difusão 2.2
Teoria do Impelidor 2.3
Definição dos Parâmetros Termodinâmicos da Compressão 2.4
Característica de Funcionamento dos Compressores 2.5
Associação de Múltiplo Estágios 2.6
Curva da Máquina 2.7
Ponto de Operação 2.8
Limites Operacionais 2.9
Controle de Capacidade e anti-Surge 2.10
1
2. CONCEITOS BÁSICOS DA COMPRESSÃO EM CENTRÍFUGOS
2.1. FENÔMENO DA COMPRESSÃO – O CAMINHO DO GÁS
A figura no
01 mostra um compressor centrífugo de um único estágio.
Um elemento girante munido de pás, denominado impelidor ou rotor, aspira o
gás pela sua abertura central (olho) e o força a deslocar radialmente, devido à ação da
força centrífuga gerada pela rotação. Daí o nome dado a este tipo de compressor. Fica
então estabelecido um fluxo continuo, resultando urna transferência de energia do
impelidor para o gás, que sofre um aumento de pressão e velocidade. O fluxo expelido
do impelidor passa a se deslocar livremente no difusor radial, um anel circular que
envolve o impelidor. Quando um gás escoa em velocidade subsônica, um alargamento
na seção transversal leva a urna queda de velocidade e aumento de pressão. Isto é o
que ocorre no difusor: A energia em forma de velocidade auferida no impelidor é
convertida em pressão. Os difusores radiais podem ou não ser aletados. As aletas só
servem para dar urna orientação mais conveniente ao fluxo. O escoamento é então
recebido pela carcaça em forma de espiral conhecida como voluta. A seção transversal
da voluta é crescente apenas para acomodar a quantidade de gás progressivamente
descarregada pelo difusor radial, sendo pretendido, ao menos nas condições de projeto,
que a pressão não varie ao longo dela. Antes de ser descarregado o gás passa por um
bocal divergente o difusor da voluta, onde se complementa o processo de difusão
(alguns compressores possuem um único difusor, radial ou da voluta).
A máxima pressão que o gás pode alcançar em um estágio centrifugo é baixa,
estando limitada por dois fatores: pela resistência mecânica do impelidor às tensões
2
radiais oriundas da rotação e pela possibilidade de ser ultrapassada a velocidade sônica.
Assim, em aplicações industriais os níveis de pressão requeridos são tais que se utilizam
compressores de múltiplos estágios.
2.2. PROCESSO DE DIFUSÃO
Existem três alternativas para o processo de difusão:
− Em anel difusor;
− No difusor da voluta;
− Em anel difusor e no difusor da voluta.
Para compressores de múltiplos estágios é empregada a última alternativa,
sendo o anel empregado entre estágios e a voluta com difusor ao final do último estágio.
Para retornar o gás do difusor de um estágio para a entrada do impelidor do
estágio seguinte, o gás passa por uma curva e um canal de retorno, que deve ser
divergente (espessura com aumento progressivo da periferia para o centro) para não
desfazer o trabalho do difusor. O canal de retorno possui aletas (ver figura no
1A) para
dirigir o gás para a entrada do próximo impelidor.As aletas são dispostas para retificar a
vazão espiral do gás para obter uma saída radial e uma entrada axial no impelidor
seguinte.
Figura no
1A
O difusor em anel pode ser liso ou aletado, sendo primeiro mais empregado,
pois, embora o aletado reduza o percurso do gás no difusor, provoca choques e perda
de energia quando operado fora da vazão de projeto, já que o ângulo das aletas é
projetado para promover urna entrada suave em urna única vazão. Em um difusor liso a
trajetória do gás e uma espiral devido a vazão livre com perda de velocidade igualmente,
Diafragma de entrada
diafragma
intermediário
Difusor
Canal de retorno
Luvas
aletas
vedações de labirinto
3
tanto na componente radial como na tangencial. Normalmente a largura do difusor é
constante, sendo que em alguns casos as paredes são divergentes (em até cerca de
10%).
A voluta e uma carcaça em espiral que coleta o gás na saída do último impelidor
de um compressor multi-estágios ou de um compressor de um único estágio. Na
extremidade da voluta e que há normalmente um canal divergente, o difusor da voluta.
2.3. TEORIA DO IMPELIDOR -CONCEITO DE HEAD
Estudaremos a transferência de energia num impelidor centrífugo.Para isso
consideremos individualmente o escoamento do gás em um canal entre duas pás do
impelidor, idealizando que o gás preenche homogeneamente este canal, escoando de
maneira unidimensional, permanente e uniforme.
C é a velocidade absoluta do gás, U a velocidade periférica do impelidor devido a
rotação, W a velocidade do gás relativa ao impelidor. Assim, vetorialmente: C = U + W. A
figura no
02 mostra estas velocidades na entrada e na saída do impelidor. W1 aparece
tangente às pás na entrada do impelidor, caracterizando urna "entrada suave", que só se
verifica para urna dada vazão para cada rotação, que corresponde à condição de
projeto. Do mesmo modo a velocidade relativa de saída W2 aparece com ângulo de
4
inclinação idêntico ao das pás, devido à hipótese de que a trajetória do gás toma o
formato do perfil das pás.
Podemos relacionar aqueles triângulos de velocidade na entrada e saída do
impelidor com a transferência de energia. Usando o teorema de variação do momento da
quantidade de movimento, que indica que o torque (τ) aplicado a urna massa de gás (m)
que escoa num intervalo de tempo (∆t) é dado por:
τ = m . (r2 . Cu2 – r1 . Cu1) (1)
∆t
onde, Cu é a projeção da velocidade absoluta na direção periférica.
Introduzimos aqui o conceito de "Head": é a energia cedida a cada unidade de
massa do fluido no processo de compressão.
H = N (2)
M
onde, N é a potência (energia por unidade de tempo) cedida ao fluido durante a
compressão e M e a vazão em massa do fluido (massa por unidade de tempo).
Se multiplicarmos (1) pela velocidade angular (Ω), vem:
τ . Ω = M . ( U2 . Cu2 – U1. Cu1.) (3)
pois r . Ω = U. Sabemos que τ . Ω. = N. Passando, então, a vazão em massa para o
membro esquerdo aparece o Head (H):
H = U2 . Cu2 – U1. Cu1 (4)
Esta é a equação de Euler e o Head assim calculado é denominado Head de Euler.
Na maioria dos compressores não existe dispositivo para conferir pré-rotação ao
gás na entrada do impelidor. Assim o fluido entra radialmente no impelidor, ou seja, Cu1
= O e, de (4):
H = U2 . Cu2 (5)
Verifica-se que o Head fornecido ao fluido pelo impelidor é função apenas de:
− Rotação do impelidor (Ω)
− Raio externo do impelidor (r2)
− Vazão através do impelidor (V2)
− Ângulo de saída das pás (β2)
A rotação e o raio impelidor influenciam U2 ( U2 = Ω . r2 ).
O ângulo de saída das pás e a vazão influenciam Cu2. Veja na fiqura no
03 como
Cu2 cresce (e H também) com o aumento de β2.
5
De acordo com o ângulo β2 o impelidor será denominado: impelidor de pás para
trás quando β2 < 90º; de pás radiais quando β2 = 90º e de pás para frente quando β2.>
90º.
Impelidores com pás para frente, embora produzam maiores Heads, tem faixa de
funcionamento estável reduzida. Também operam com baixas eficiências, pois o
impelidor confere grande parte da energia ao fluido na forma de velocidade, implicando
em grandes velocidades e perdas no processo de difusão.
Impelidores com pás radiais conferem altos Heads com boas eficiências, mas em
faixas limitadas de vazão. É o mais resistente e pode trabalhar com maiores velocidades
periféricas. E usado quando se necessita alto Head com poucos estágios.
Impelidores com pás para trás permitem um grande intervalo estável de vazões,
incluindo a faixa de maior eficiência, apesar de fornecerem menores Heads. As
vantagens citadas os tornam os de uso universal industrial (55º ≤ β2 ≥ 65º).
A vazão volumétrica na saída do impelidor (V2) pode ser escrita em função da
projeção da velocidade relativa na direção radial (Wr2) e da área de saída (A2), como:
V2 = A2 . Wr2 (6)
Assim (5) pode ser reescrita para incluir V2, utilizando relações trigonométricas
no triângulo de velocidades de saída, como:
H = U2
2
- U2 . Wr2. .cotg β2 (7) ou
H = U2
2
- U2 . V2 . .cotg β2 (8)
A2
Portanto, o Head varia linearmente com a vazão volumétrica na descarga. Na
figura no
04 mostramos graficamente esta relação para as três possíveis configurações
das pás.
6
Na realidade, devido ao fenômeno de circulação ("Slip") do fluido entre duas pás
do impelidor, os ângulos das velocidades relativas do gás são um pouco menores que os
ângulos das pás (β2),.causando que o Head cedido ao gás seja menor que o previsto no
caso ideal (cerca de 10 a 20%). Essa diminuição do Head em relação ao ideal não
implica em perda de energia ou redução da eficiência. Tanto a energia recebida pelo gás
para aumentar a pressão, como a cedida pelo impelidor são menores devido ao “Slip”.
No entanto, os projetistas tentam diminuir o fenômeno de modo a conseguir um maior
Head para as mesmas condições gerais.
Até aqui não foram levadas em conta as perdas de energia do fluxo por atrito do
fluido nas superfícies de impelidor e difusor e por choques, ou seja, turbulência e
separação das linhas de fluxo, devido a mudanças de direção ou incidência do fluxo nas
pás. Assim o impelidor cede ao fluido o Head de Euler (ideal) menos o "SLIP". Porém só
7
uma parte desta energia e utilizada para aumento de pressão (útil), o restante
correspondendo as perdas citadas.
As perdas por atrito variam com o quadrado da velocidade do fluido, ou seja, da
vazão. As perdas por choques têm um mínimo para uma certa vazão (um certo triângulo
de velocidades), aumentando para vazões maiores ou menores.
Os diagramas Head útil x Vazão volumétrica na descarga tomam o seguinte
aspecto:
Vemos nos dlagramas dois valores de vazão características:
− Qproj : Vazão em que é máxima a eficiência do impelidor, ou seja, em que é
mínima a diferença entre o Head total ou real e o Head útil. O projeto
é sempre feito para operação nesta vizinhança.
8
− Qmin: Vazão para a qual o Head útil é máximo. Esta é a vazão mínima do
impelidor, pois abaixo dela a máquina se torna instável. Explicaremos
este fenômeno posteriormente.
2.4. DEFINIÇÃO DOS PARAMÊTROS TERMODINÂMICOS DA COMPRESSÃO
2.4.1. HEAD REAL Heff
O Head real Heff de um estágio de compressor (como para toda a
máquina) é o trabalho real L1, 2 que é trocado entre o fluido e a máquina
por unidade de peso do gás que circula.
Conforme esta premissa, o Heff real é expresso pela relação:
Heff = L1, 2 = p1∫p2
vdp + La (9)
Ou pela relação:
Heff = L1, 2 = (h2 – h1) + Qe (10)
Que, no caso de máquinas onde a suposição de transformação adiabática
(Qe = 0) é muito próxima da realidade (como no caso dos compressores
centrífugos), assume a forma bem conhecida:
Heff = L1, 2 = (h2 – h1) (11)
As considerações resultantes de uma rápida verificação das condições
acima são as seguintes:
- Somente uma parte do trabalho L1, 2 fornecido (ou head real) é
encontrado na forma de aumento de energia potencial termodinâmica
do fluido, expresso por: p1∫p2
vdp (este valor é chamado de Head
politrópico Hpol do qual falaremos mais tarde), enquanto que um parte
La, é usada para vencer o fenômeno da resistência passiva (perdas
devido ao atrito, impacto, etc.) relacionada com a vazão do fluido e que,
transformada em calor, permanece dentro do próprio fluido;
- O conhecimento da variação na quantidade de “entalpia h”, inferida da
pressão e da temperatura do gás medida na sucção e descarga do
compressor, permite estimar o Head real Heff (ou trabalho específico)
trocado entre o gás e a máquina por unidade de peso.
9
2.4.2. HEAD POLITRÓPICO Hpol
Conforme já citado, o Head politrópico Hpol de um estágio, bem como de
toda a máquina, é definido como a energia acumulada no fluido sempre na
forma de aumento da energia potencial termodinâmica expresso por:
Hpol = p1∫p2
vdp (12)
A transformação idealizada (sem perdas) chamada politrópica (reversível
e entre as mesmas pressões e temperaturas de sucção e discarga) é a
melhor forma de se estimar a energia potencial termodinâmica transmitida
ao gás (energia útil), já que não há como, analiticamente descrever-se o
processo real de compressão ponto a ponto. A trasformação politrópica é
composta de duas parcelas (vide figura no
6A):
• uma transformação isentrópica (sem
perdas, reversível) entre a condição
de sução (ponto 1) e a pressão final
de descarga (ponto 2IS), onde
somente há trabalho;
• uma transformação isobárica (a
pressão constante p2 – pressão de
descarga) até que seja alcançada a
temperatura de descarga (ponto 2),
onde há uma tranferência virtual de
calor.
Figura no
6A
Ou seja, o calor grado pelas perdas em um processo real não reversível
pode ser simulado por calor cedido do meio externo de forma reversível.
O processo pode ser aprimorado se o dividirmos em várias pequenas
transformações, que, se encadeadas passo a passo, recriarão a
transformação completa.
A equação que define este processo teórico chamado politrópico é:
pvn
= constante (13)
onde n é o expoente médio da transformação politrópica entre os pontos 1
e 2, no começo e no fim do processo real de compressão (Figura 6A).
Se substituirmos a relação acima na integral e a desenvolvermos, temos a
seguinte relação:
10
HPOL =
1−n
n
Z1RT1 ⎥
⎦
⎤
⎢
⎣
⎡
−
−
)1)
1
)((
1
2
n
n
P
P
(14)
onde:
Z1 é o fator de compressibilidade calculado nas condições iniciais;
R é a constante característica do gás;
T1 é a temperatura de sucção do gás;
p1 é a pressão de sucção do gás;
p2 é a pressão de descarga do gás;
n é o expoente da transformação politrópica assumido como constante
durante a transformação.
As unidades de medida para expressar a altura manométrica politrópica
Hpol são metros (m), se o sistema técnico de unidades de medida for
adotado, ou, mais corretamente, as unidades para energia específica
(J/kg) se o sistema internacional de unidades de medida for adotado.
2.4.3. EFICIÊNCIA POLITRÓPICA (ηPol)
A energia entregue ao gás no processo de compressão é maior que o
calculado através da idealização dada pelo Head politrópico, visto que é
considerada somente a energia útil para aumento de pressão, sem
perdas. Com isso, surge o conceito de eficiência que relaciona o Head
necessário para um processo ideal com o real.
A eficiência politrópica (ηPol) de um compressor é definida como a relação
entre o Head politrópico Hpol, que acabamos de definir, e o Head real Heff
para comprimir cada unidade de massa do gás.
ηPol = Hpol (15)
Heff
Portanto, de acordo com o exposto anteriormente e considerando as
expressões já fornecidas para Hpol e Heff, temos:
ηPol =
)(
1
1
)1/2(
1
12
11
hh
n
n
PP
n
n
RTZ
Heff
Hpol
−
⎥
⎦
⎤
⎢
⎣
⎡
−
−
−
= (16)
Esta relação pode ser simplificada na forma:
k
k
n
n
npol
1
.
1
−
−
= (17)
Para um gás perfeito, onde
n é o expoente médio da transformação politrópica de compressão entre
as condições inicial e final
11
k (= cp/ cv) é o expoente da transformação adiabática isentrópica, na
mesma relação de compressão da transformação real considerada.
A temperatura de descarga para uma transformação politrópica pode ser
calculada por:
⎟
⎠
⎞
⎜
⎝
⎛
=
−
1
2
.
1
12
P
p
TT
n
n
(18)
Utilizando as duas equações anteriores, lembrando que estamos
considerando um gás perfeito,
⎟
⎠
⎞
⎜
⎝
⎛
=
−
1
2
.
.
1
12
P
p
TT
nk
k
pol
(19)
Explicitando o ηPol
)/(ln
)1/2(ln
.
1
12 TT
pp
k
k
n pol
−
= (20)
Assim sendo, podemos inferir que é possível estimar a eficiência
politrópica, confiável e experimentalmente, medindo os parâmetros
termodinâmicos na sucção (p1 e T1) e na descarga (p2 e T2) do
compressor, desde que o gás movimentado possa ser aproximado a um
gás perfeito.
De outra forma, os valores Hpol e Heff devem ser calculados, após medir
experimentalmente os valores de pressão e temperatura de entrada e
saída e conhecendo a composição do gás, conforme as equações de
estado que representam o comportamento do gás tão real quanto
possível.
A equação de estado mais comum aplicada ao gás natural é a equação de
B.W.R.S. (Benedict, Webb, Rubbin, Starling).
2.4.4. HEAD ADIABÁTICO Had
O Head Adiabático de um compressor (Had) é a energia entregue ao fluido
devido a um processo idealizado reversível, e portanto isentrópico (sem
perdas), de compressão adiabática (transformação 1 – 2is na figura 6A)
ocorrido entre as mesmas pressões p1 inicial e final p2, entre as quais é
realizado o processo de compressão real. Obviamente a temperatura de
descarga desta transformação ideal é menor que a real.
12
A altura manométrica His então é obtida da relação
His = p1∫p2
vdp com pvk
= constante (21)
Que pode ser expressa na forma
His = Z1RT ⎥
⎦
⎤
⎢
⎣
⎡
−
−
−
1
1
)(
1 1
2
K
K
P
P
k
k
(22)
considerando k = constante durante a transformação onde:
k (= cp/ cv) é o expoente ligando as pressões e volumes específicos
durante a compressão isentrópica;
Z1 é o fator de compressibilidade do fluido no começo da transformação
adiabática reversível;
R é a constante característica do gás;
T1 é a temperatura de sucção do gás;
P1 é a pressão de sucção do gás;
P2 é a pressão de descarga do gás.
Também o Head adiabático His, como o politrópico Hpol, é expresso em
(m) ou (J/kg) dependendo de aplicar o sistema de unidades técnico com
internacional para as unidades de medição.
2.4.5. EFICIÊNCIA ADIABÁTICA ηad
A eficiência adiabática ηad de um compressor é a relação entre o Head
adiabático Had, definido acima, e o Head real Heff.
É obtido da relação
nad =
)(
1
1
)/(
1
12
1211
hh
k
k
PP
k
k
RTZ
H
H
eff
ad
−
⎥
⎦
⎤
⎢
⎣
⎡
−
−
−
= (23)
Diferentemente das considerações sobre eficiência politrópica, a eficiência
adiabática ηad depende da relação de compressão p2/p1, além da máquina
e da natureza do fluido, como no caso do gás perfeito em que é dada pela
relação:
nad =
1
.
1
)(
1
1
)(
1
2
1
2
−
−
−
−
Pnk
k
P
P
k
k
P
P
(24)
13
Esta relação mostra que a eficiência adiabática ηad é sempre menor que a
eficiência politrópica ηpol. Quanto mais a relação de compressão p2 / p1
tende para 1, mais a eficiência adiabática tende para o valor politrópico.
O rendimento permite saber o grau de eficiência com que o compressor
executa o processo. Nesse sentido o rendimento politrópico é um critério
mais verdadeiro de avaliação, pois usa como critério de comparação a
energia que seria cedida num processo sem perdas (irreversibilidades)
entre os mesmos estados de sucção e descarga que os reais (HP). Já o
rendimento adiabático considera um processo que leva a um estado de
descarga que não é real, e que necessitaria menor aporte de energia.
Assim o rendimento politrópico é considerado a eficiência hidráulica do
impelidor, independendo do gás ou das condições de serviço, sendo
função apenas da vazão em volume na sucção, para cada rotação.
A temperatura de descarga para uma transformação isoentrópica e
adiabática pode ser calculada por:
⎟⎟
⎠
⎞
⎜⎜
⎝
⎛ −
+=
ad
S
TT
TT
η
12
12 , (25)
onde T2S é a temperatura de descarga teórica adiabática (vide figura 6A),
dada por:
⎟
⎠
⎞
⎜
⎝
⎛
=
−
1
2
.
1
12
P
p
TT
k
k
S
(26)
2.4.6. EFICIÊNCIA MECÂNICA
Além da potência empregada na compressão do gás (a útil e as perdas
hidráulicas), o acionador deve compensar as perdas por atrito mecânico
do eixo com os mancais e com o sistema de selagem, além das perdas
associadas à rotação dos impelidores num meio viscoso. Assim, é definida
a eficiência mecânica (ηM), relacionando a potência empregada na
compressão (N) e a potência total necessária no eixo do compressor (W).
ηM = N (27)
W
As perdas por atrito podem ser calculadas empiramente por:
Pat = N0,4
=> W= N + N0,4
(28 )
14
2.4.7. Potência absorvida pelo compressor
Os diagramas disponíveis, fornecidos pelo fabricante, que indicam o Head
H (politrópico ou adiabático) e a eficiência (politrópica ou adiabática) para
determinados valores da velocidade de rotação n, permitem calcular o
trabalho específico real (L1,2) ou Head real (Heff) por meio das relações:
eff
ad
ad
POL
POL
H
n
H
n
H
L ===2,1 (29)
Conhecendo o trabalho específico L1, 2, é possível calcular a potência total
consumida no eixo do compressor, através da relação:
W = M . L1, 2 + Pf + Pm (30)
onde Pf representa a potência perdida devido a vazamento e Pm
representa a potência perdida devido a perdas mecânicas.
Também podemos calcular a potência consumida no eixo do compressor.
Por:
W = M . HT (31)
ηT . ηM
onde: M é a vazão mássica, HT é o Head ideal (tornado em base
adiabática ou politrópica), ηT é o rendimento termodinâmico (também
adiabático ou politrópico, conforme o adotado para o Head) e ηM é o
rendimento mecânico.
15
2.5 CARACTERÍSTICAS DE FUNCIONAMENTO DOS COMPRESSORES
CENTRÍFUGOS
2.5.1 CURVAS CARACTERÍSTICAS
As principais características de funcionamento de um compressor centrífugo são:
vazão, potência e temperatura de descarga. Estas grandezas dependem essencialmente
das variáveis: pressão e temperatura de sucção, pressão de descarga e natureza do gás
comprimido, além, é claro, das caracteristicas próprias da máquina. Para fornecer
informações a respeito do comportamento e desempenho de suas máquinas, inter-
relacionando os parâmetros acima, os fabricantes costumam fornecer gráficos,
denominados curvas características. É logicamente uma forma limitada, posto que
envolve tantos parâmetros. O Head termodinâmico e o rendimento termodinâmico são
nesse contexto muito importantes pois estão diretamente relacionados com as quatro
variáveis acima descritas.
a) CURVAS DE HEAD TERMODINÂMICO E RENDIMENTO TERMODINÂMICO
É a mais usual forma de representação das curvas características para
compressores centrifugos.
Para uso prático destas curvas a vazão volumétrica na saída do impelidor (V2),
usada até aqui, não se mostra conveniênte. É,mais conveniente expressar estas curvas
em função da vazão volumétrica na sucção da maquina (V1), que pode ser facilmente
medida. V1 e V2 são diferentes devido a compressibilidade do gás, ou seja, devido a
alteração dos volumes específicos da sucção (v1) para a saída do impelidor (v2). Assim:
V2 = V1 (= M ) => V1 = v1 . V2 (32)
v2 v1 v2
A relação entre os volumes específicos (v2 / v1) depende, para uma dada energia
transferida, da temperatura de sucção e da natureza do gás, agrupados no conceito
"Grau de Compressibilidade”. O grau de compressibilidade é tão maior quando maior for
a variação dos volumes especificos (mais baixas temperaturas de sucção ou mais alto
peso molecular), para uma dada energia de compressão .
A figura no
07 mostra o aspecto de duas curvas de Head x Vazão na sucção,
para um compressor operando com dois gases diferentes. Evidentemente a curva H x V2
seria a mesma nos dois casos: O efeito do grau de compressibilidade é normalmente
desprezado, se a variação dos volumes específicos é pequena.
16
A base de referência adotada para o Head e o rendimento pode ser adiabática ou
politrópica. No entanto, a base politrópica é a preferida pois, dentro de uma certa
aproximação, o Head e .o rendimento politrópico só dependerão da vazão e rotação do
compressor (desprezada a influência da temperatura de sucção e da natureza do gás, ou
seja, do grau de compressibilidade), o que não.ocorre com o rendimento adiabático, que
depende da relação de compressão. As curvas HT x V1 e ηT x V1 podem ser
apresentadas nas duas formas mostradas na fig. no
08, sendo que na primeira temos
curvas de rendimento para cada rotação e na segunda ( mais comum) temos curvas de
rendimento constante.
17
A potência de compressão e a temperatura de descarga podem ser obtidas a
partir do Head e do rendimento, como já mostrado.
b) CURVAS DE PRESSÃO DE DESCARGA E POTÊNCIA DE COMPRESSÃO
Se fixarmos a pressão e temperatura de sucção e a natureza do gás, é possível
representar graficamente a pressão de descarga e a potência do compressor contra a
vazão mássica. Esta é a maneira mais direta de representar o desempenho de um
compressor centrifugo, pois vazão e potência são duas das grandezas que estamos
interessados, e aparecem explicitamente. A temperatura de descarga pode ser
calculada.
A grande inconveniência deste tipo de representação é a falta de generalidade,
dado que os parâmetros fixados estão muitas vezes sujeitos a pequenas variações. Para
ganhar alguma generalidade podemos incluir nas curvas a pressão de sucção como
variável. Para isso, pode-se usar P2 / P1 ao invés de P2 e N / P1, substituindo N. O
formato geral das curvas permanece o mesmo.
18
2.6.ASSOCIAÇAO DE MÚLTIPLOS ESTÁGIOS
Vamos considerar um compressor com dois estágios similares, a exceção das
larguras do impelidor, difusor e demais áreas de passagem. Isto é um aspecto comum
nos compressores multiestágios. Numa aproximação razoável, as curvas Head e
rendimento politrópico para os dois estágios seriam idênticos, se traçados em função da
velocidade C1 de entrada no impelidor, tal como as da figura no
10.
Consideremos a velocidade C1*. Ela corresponde ao ponto de máximo
rendimento (ponto Y) e ao Head definido pelo ponto A, que impõe uma relação rv* (= v1 /
v2) entre os volumes específicos de entrada e saída do primeiro estágio. Como,
naturalmente, queremos que o segundo estágio opere com eficiência máxima,
reduziremos as áreas de passagem, em relação ao primeiro estágio, na mesma
proporção dos volumes específicos. Ou seja: RELAÇÃO DE ÁREAS = rv*. Assim a
velocidade de entrada no segundo impelidor será C1* novamente. Com isso o Head do
conjunto será o dobro de "A", e o rendimento será igual.
Para velocidades superiores à de projeto (vazões supeirores), o primeiro estágio
operaria, por exemplo, com Head dado pelo ponto B e rendimento dado por Z, na fig. no
10. Este head menor (menor relação de compressão) irá levar a uma relação de volumes
19
específicos inferior a rv* e, portanto, as áreas de passagem do segundo estágio,
definidas pela condição anterior, serão pequenas agora. Portanto a velocidade de
entrada no segundo estágio será superior a do primeiro, o Head será inferior ao do
primeiro (ponto B") e a soma total dada por B'.
Para velocidades inferiores à de projeto (vazões inferiores), o primeiro estágio
teria Head dado por C e rendimento dado por X. Agora as áreas de passagem se
tornariam grandes demais e a velocidade de entrada do segundo impelidor será menor
que a do primeiro, o Head será superior ao do primeiro (ponto C") e a soma total dos
Heads dada por C'.
A esse efeito é dado o nome de "bola de neve" devido ao fato de que se a
velocidade de entrada do primeiro estagio se afasta do valor de projeto, mais dele se
afastarão as velocidades de entrada dos estágios subsequentes. E na mesma direção.
Já a curva de Head do conJunto sofre uma rotação em relação a curva dos estágios,
tornando-se mais próxima da vertical (curva de Head do conjunto passa pelos pontos C’ -
A’ - B’). Num raciocínio análogo a curva de rendimento torna-se mais fechada que a de
cada estágio, levando a maior sensibilidade ao afastamento das condições de projeto
(curva de rendimento do conjunto passa pelos pontos X’ – Y’ – Z’).
É importante registrar que não só mudanças na velocidade de entrada do
primeiro estágio implicam no efeito bola de neve. Também variações de rotação,
temperatura de sucção e natureza do gás provocam o efeito, sendo que o efeito total
será a composição de todos.
2.7.CURVA DA MÁQUINA
Nos itens anteriores descrevemos as curvas características de cada estágio
simples. Para chegar nas curvas de desempenho total de uma máquina é necessário, é
claro, juntar as curvas dos diversos estágios constituintes, para chegar no desempenho
total.
Na prática isto é realizado por um programa de computador, armazenando as
curvas de desempenho dos estágios simples, e através de uma equação de estado
apropriada para os gases reais (geralmente aplicamos a equação de Benedict-Webb-
Rubin generalizada por Starling).
As curvas dos estágios simples, nos diversos e possíveis valores de operação
em termos de número de Mach (rotações), são obtidas através dos resultados de testes
de cada estágio, sendo depois armazenadas no computador.
O computador pode “escolher” estes estágios para valores de vazão perto dos
projetados (faixa de seleção para um estágio padrão) e então “compor” a máquina para
chegar nas curvas totais exigidas.
Na prática, o trabalho é realizado da seguinte forma: conhecendo as condições
de entrada (pressão, temperatura, composição do gás, vazão, etc.) e com base nas
características do impelidor e na equação de estado escolhida, as condições na saída do
estágio são calculadas (pressão, temperatura, etc.); daí a vazão de entrada no próximo
estágio é conhecida. Portanto, é possível “selecionar” o próximo estágio mais apropriado
para a vazão nominal de projeto. O procedimento então é o mesmo como para o primeiro
estágio, até que se chegue às condições finais (estabelecimento das pressões de
projeto).
20
Claramente, conforme as diferentes aplicações possíveis, obtemos curvas de
desempenho diferentes na eficiência, formato da curva e faixa de operacional de vazões
(máxima – mínima), etc.
2.8.PONTO DE OPERAÇÃO
Para entrar nas curvas características de um compressor e estabelecer o ponto
de operação necessitamos da pressão e temperatura de sucção, pressão de descarga e
natureza do gás (para uma dada rotação). Porém, na maioria dos sistemas industriais,
esses parâmetros são dependentes da vazão, devido às perdas de carga e trocas
térmicas.
Assim, o ponto de operação será estabelecido se as condições p1, t1, p2 e
natureza do gás satisfazerem tanto as equações ou curvas da máquina como as do
sistema, para o mesmo valor de vazão mássica. As curvas da máquina são dadas pelos
fabricantes. .As curvas do sistema representam a energia necessária ao fluido para que
possa escoar e vencer a resistência do sistema (contra-pressão, atrito interno com a
tubulação) em função da vazão de gás.
A curva do sistema pode ser do tipo "a" da figura no
11, no caso em que a
tubulação do sistema é muito pequena, sem restrições, e toda a energia é usada para
vencer um diferencial de pressão.
Em outros sistemas toda a energia pode ser usada para compensar as perdas
por atrito devido ao escoamento do gás em tubulações longas, com nenhuma diferença
de pressão entre os reservatórios de sucção e descarga. Neste caso, temos a curva "c",
uma parábola passando pela origem. É o caso dos gasodutos em terra.
Se o sistema for misto, sendo parte da energia usada para compensar perdas
por atrito e outra parte para vencer um diferencial de pressão, o sistema apresenta uma
curva do tipo "b".
21
Como estas curvas em geral não são conhecidas, o ponto de operação do
compressor pode ser determinado pelo seguinte processo interativo:
-Arbitra-se um valor para a vazão mássica M;
-Calcula-se a perda de carga na sucção a partir de um ponto de pressão fixa,
definindo-se assim a pressão de sucção p1 e a vazão volumétrica aspirada V1;
-Entra-se n.as curvas do compressor tirando-se a pressão de descarga p2 e a
temperatura de descarga T2.
-Calcula-se a perda de carga entre a descarga do compressor e um ponto a
jusante de pressão fixa. Se o valor de p2 diminuído da perda da carga coincidir com o
valor de pressão do ponto fixo a jusante, temos a vazão M correta e o ponto de operação
determinado.
Tudo foi considerado para temperatura de sucção do compressor e natureza do
gás com variações desprezíveis por facilidade.
Como última observação notamos que, se um compressor for colocado em
operação em um dado sistema, sem qualquer tipo de controle, a vazão e pressões de
equilíbrio não necessariamente serão convenientes ao processo. A situação pode ser
melhorada exercendo-se um controle de capacidade.
2.9.LIMITES OPERACIONAIS
a) LIMITE DE "SURGE"
Existe uma vazão mínima para o compressor, a cada rotação, abaixo da qual a
operação se torna instável, tendo Inicio um fenômeno chamado de "surge". A.causa
deste fato esta na forma da curva p2 x V1 do compressor (vide figura no
12), que, depois
de atingir um máximo, começa a decrescer para menores vazões. Este valor de pico é o
limite de surge.
Uma instabilidade leve é observada mesmo antes de chegar no ápice da curva
(pulsações de pressão com freqüência muito menor que a velocidade de rotação) e é
22
devida a “rottanting stall”, isto é, descolamento da camada limite localizamente
(geralmente em algumas aletas do canal de retorno ou algumas pás do impelidor). O stall
se move ao longo de linhas circunferenciais, originando assim o nome como este
fenômeno é conhecido.
Para uma explicação simplificada do fenômeno de surge, suponhamos que
durante a operação de um compressor, a rotação constante, uma válvula na linha de
descarga seja progressivamente fechada, aumentando a resistência do sistema e,
portanto, o Head (ou pressão de descarga), necessário para vencer esta resistência. À
medida que se fecha a válvula, a vazão através do compressor cai, até atingirmos a
vazão correspondente ao máximo Head (ou pressão de descarga). Nessa condição, a
contrapressão do sistema é maior que a pressão de descarga que o compressor pode
fornecer, causando momentaneamente uma inversão de fluxo através do compressor,
cuja duração será da ordem de décimos de segundo. Isto porque, com a inversão de
fluxo, a pressão na descarga cai, tornando o compressor capaz de, novamente, fornecer
uma vazão superior à do limite de surge. A operação volta a seguir a curva característica
até atingir, novamente, o limite de surge, numa ação cíclica. O compressor emite um
som peculiar audível a longas distâncias.
As consequências da ocorrência do surge dependem de sua duração e das
características da instalação, podendo variar de uma perturbação simples até
ocorrências desastrosas, tais como:
-Vibrações, especialmente na direção axial, causando empeno do rotor,
destruição do sistema de selagem, das tubulações, de mancais e de impelidores;
-Aquecimento anormal do gás;
Um dos fatores importantes é a frequência das pulsações: quando maior, menor
a possibilidade de danos. É por isso que se costuma instalar uma válvula de retenção na
linha de descarga, bem próxima ao compressor.
O limite de surge é bastante influenciado pelo ângulo de descarga do impelidor,
e para os impeli dores comuns está em torno de 50% da vazão de máxima eficiência.
A origem do surge costuma ser associada ao escoamento através do difusor. A
figura no
13 mostra que quanto menor a vazão, menor o ângulo de entrada do fluxo no
difusor e maior será o percurso (em espiral, num difusor de anel liso) do gás até alcançar
a salda do difusor. Acredita-se que, na condição de surge, o percurso do gás é tão longo
e a perda de carga tão intensa que a pressão reinante na salda do difusor não é
alcançada. Isto provoca a reversão que caracteriza o surge.
23
Quando o difusor é aletado o início do fenômeno está associado a separação da
camada que ocorre devido ao grande ângulo de ataque sob o qual o escoamento incide
nas aletas do difusor, para baixas vazões. Como no caso anterior o processo de difusão
e prejudicado e o gás não atinge a pressão reinante na saída do difusor.
O surge também pode ser entendido como a generalização do stall na máquina
como um todo.
Conforme as experiências realizadas em estágios padronizados de
compressores centrífugos, durante as quais as pulsações de pressão com baixa vazão
também são registradas, foram estabelecidos limites experimentais (para cada número
de Mach periférico - Mu) nos quais a máquina trabalha satisfatoriamente. Para cada
estágio, portanto, são estabelecidas a vazões mínimas específica nas diversas
velocidades, isto é, nos diversos valores de Mu.
Para operar a vazões abaixo do limite de surge, é necessário um sistema de
controle, que será discutido posteriormente.
b) LIMITE DE "STONEWALL" ou “CHOKE”
O limite superior de vazão é determinado pelo fenômeno denominado
"Stonewall" ou “Choke”.
Os compressores centrífugos são projetados para operar em regime subsônico.
Porém, acima de certa vazão, as velocidades através da máquina são tão elevadas que
o regime supersônico é atingido em alguma parte do compressor. Resultam ondas de
24
choque que restringem o escoamento, causando um efeito de blocagem - queda rápida
na pressão de descarga para um mínimo aumento da vazão, além que forte queda na
eficiência.
O Stonewall só ocorre para vazões muito altas, normalmente fora da faixa
operacional (baixo rendimento). Ele só representa um problema para compressores
operando com gás com alto peso molecular ou baixa temperatura (sistemas de
refrigeração), quando a velocidade sônica é reduzida. Nestes casos usam-se baixas
rotações e grandes áreas de passagem do gás.
Para gás natural, o citado acima se aplica somente quando são exigidos pontos
de operação fora das condições de projeto com valores de vazão muito acima das
previstas no projeto.
De qualquer forma, no caso de compressores de gás natural, enquanto o limite
da faixa de operação à esquerda das curvas características é sempre a linha de surge, o
limite à direita (ainda limitando a faixa de operação) raramente é a linha de stonewall;
sendo mais freqüentemente o limite de estudo para as características da máquina (por
exemplo, para o controle do empuxo axial).
Como a ultrapassagem deste limite não ameaça a integridade da máquina, não é
necessário um controle para prevení-lo, como é feito em relação ao surge.
Lembremos do efeito "bola de neve", já descrito, que ocorre na associação de
estágios: quando o primeiro estágio admite uma vazão afastada da de projeto, num certo
sentido, o afastamento das condições de projeto nos estágios subsequentes será
progressivamente acentuado no mesmo sentido. Devido a este efeito é esperado que os
limites de Surge e Stonewall sejam atingidos pelo último impelidor do conjunto, e
também teremos um estreitamento da faixa útil de trabalho, em relação ao
comportamento individual de um estágio. Assim, para compressores de poucos estágios
(3 ou 4), o limite de surge está em cerca de 50% da vazão de projeto, enquanto para um
compressor de muitos estágios, ele está em cerca de 85% da vazão de projeto. E
importante lembrar que todas estas observações são válidas para operação da máquina
próxima da rotação, temperatura de sucção e natureza do gás nominais de projeto.
25
c) VARIAÇÃO DOS LIMITES COM AS CONDIÇÕES OPERACIONAIS
O limite de surge de um compressor centrífugo, de um ou vários estágios, situa-
se em vazões inferiores quando operando com gases de reduzido grau de
compressibilidade, isto é, os de baixo peso molecular ou aspirado a altas temperaturas.
Também o limite de Stonewall se afasta para a direita no gráfico e no computo total a
faixa operacional é ampliada.
Já a mudança de rotação provoca o deslocamento do limite de surge ao longo de
urna curva com o aspecto de urna parábola, denominada curva do limite de surge (vide o
primeiro gráfico abaixo).
26
Para compressores multi-estágios, no entanto, a curva de limite de surge
apresentará um ligeiro desvio na curvatura (vide o segundo gráfico da figura no
16).
A mudança de rotação também pode alterar o estágio através do qual se iniciam
tanto o Surge como o Stonewall.
d) AVALIAÇÃO DO DESEMPENHO DO COMPRESSOR CENTRÍFUGO
EM CONDIÇÕES DIFERENTES DAS DE PROJETO
Vamos considerar as curvas de características de um compressor centrífugo
quando as condições de operação são diferentes das de projeto.
Sabemos o tipo de máquina (MCL, BCL, 2BCL, etc.), sua geometria, (definição
perfeita dos estágios que compõem a máquina, escolhida ao projetar a mesma) bem
como a faixa de velocidade de operação.
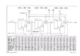
Desejamos definir o desempenho quando os parâmetros de operação são
diferentes dos de projeto.
Nos parágrafos anteriores descrevemos os principais fatores que influenciam o
desempenho da máquina. Agora queremos estimar a influência destes parâmetros, em
valores e seu efeito na operação da máquina.
É claro que durante a operação, parâmetros diferentes e combinados (alterações
simultâneas na pressão de sucção, tipo de gás, etc.) podem ocorrer; portanto é
impossível prever toda a série de casos.
Para obter alguns dados sobre os diversos desempenhos possíveis, vamos
definir duas “famílias fora de projeto”: alterações nas condições de sucção (tipo de gás,
pressão de sucção e temperatura) e alterações devido a possíveis deteriorações no
campo.
e) Variações nos parâmetros de entrada
Três variações diferentes possíveis nos parâmetros de entrada foram supostas
para serviço de compressão de gás natural:
a – peso molecular (composição do gás)
b – temperatura de sucção
c – pressão de sucção
As curvas características, anexas a este documento, foram obtidas por
computador para um compressor centrífugo BCL 404/A e mostradas na sua faixa
completa de operação.
Nestas curvas podemos observar o movimento da linha de surge, da linha de
vazão máxima, etc., devido a alterações nas condições de entrada.
27
a – peso molecular (composição do gás)
CAPACIDADE DE SUCÇÃO (m3
/hr)
Estas curvas se aplicam nas seguintes condições:
Gás movimentado
Peso molecular
Pressão de sucção
Temperatura de sucção
natural
18,73 (valor nominal)
67,1 ATA
21,4°C
RELAÇÃODECOMPRESSÃOPOTÊNCIAABSORVIDADOCOMPRESSOR(KW)
28
b – temperatura de sucção
CAPACIDADE DE SUCÇÃO (m3
/hr)
Estas curvas se aplicam nas seguintes condições:
Gás movimentado
Peso molecular
Pressão de sucção
Temperatura de sucção
natural
18,73
67,1 ATA
21,4°C (valor nominal)
RELAÇÃODECOMPRESSÃOPOTÊNCIAABSORVIDADOCOMPRESSOR(KW)
29
c – pressão de sucção
CAPACIDADE DE SUCÇÃO (m3
/hr)
Estas curvas se aplicam nas seguintes condições:
Gás movimentado
Peso molecular
Pressão de sucção
Temperatura de sucção
natural
18,73
67,1 ATA (valor nominal)
21,4°C
RELAÇÃODECOMPRESSÃOPOTÊNCIAABSORVIDADOCOMPRESSOR(KW)
30
f) Variações devido a possíveis deteriorações no campo
Em relação à influência das possíveis deteriorações de campo, que o
compressor pode sofrer durante sua operação, no desempenho, aplicamos premissas
simplificadas para simular as realidades.
Especialmente consideramos os seguintes casos:
a – incrustação dos impelidores e canais de diafragmas
b – aumento das folgas das selagens de labirinto
As curvas características anexas são obtidas por computador, para o mesmo
serviço, da mesma forma que os diagramas para alterações dos parâmetros de entrada.
31
a – incrustação dos impelidores e canais de diafragmas
CAPACIDADE DE SUCÇÃO (m3
/hr)
Estas curvas se aplicam nas seguintes condições:
Gás movimentado
Peso molecular
Pressão de sucção
Temperatura de sucção
natural
18,73
67,1 ATA
21,4°C
RELAÇÃODECOMPRESSÃOPOTÊNCIAABSORVIDADOCOMPRESSOR(KW)
Condições nominais
Efeito da incrustação
32
b – aumento das folgas das selagens de labirinto
CAPACIDADE DE SUCÇÃO (m3
/hr)
Estas curvas se aplicam nas seguintes condições:
Gás movimentado
Peso molecular
Pressão de sucção
Temperatura de sucção
natural
18,73
67,1 ATA
21,4°C
RELAÇÃODECOMPRESSÃOPOTÊNCIAABSORVIDADOCOMPRESSOR(KW)
Condições nominais
Vazamentos internos
33
2.10. CONTROLE DE CAPACIDADE E ANTI-SURGE
a) CONTROLE DE CAPACIDADE
.Sabemos que existe uma correspondência entre as características do sistema e a
vazão do compressor centrífugo que nele opera. Porém, o ponto de equilíbrio nem
sempre e o adequado às necessidades. Vem daí a necessidade de um sistema de
controle que .pode ter como objetivos:
− Controle de Pressão de Sucção: Quando a vazão do compressor é
ajustada para equilibrar-se com o suprimento de gás pelo sistema, que
se mostra variável;
− Controle de Pressão de Descarga: Quando a vazão do compressor é
ajustada para equilibrar-se com a demanda de gás pelo sistema, que
se mostra variável;
− Controle de Vazão: Quando é necessário que um processo seja
alimentado com vazão constante, independente das eventuais
variações nas pressões do sistema;
Somente um desses tipos de controle pode ser escolhido para ser
exercido, através da atuação nas condições de operação do compressor. A forma
de atuação, no entanto, será a mesma em qualquer dos três casos. Os métodos
de controle mais usados são os seguintes:
− Variação da Rotação: É o método mais usado. Com rotação variável o
compressor pode facilmente atender demandas do tipo vazão constante,
pressão constante ou uma combinação de vazão e pressão variáveis. É o
método mais eficiente, pois não introduz perdas de energia adicionais e,
além disso, para os sistemas comuns, a curva Head x vazão do sistema
coincide com a região de máxima eficiência das curvas Head x Vazão do
compressor, em várias rotações (vide figura no
17).
34
Este método e muito interessante para compressores acionados por
turbina, mas também pode ser usado para motores elétricos de rotação
variável ou de rotação fixa com uso de variadores hidráulicos de
velocidade. Além disso, é bom lembrar que a alteração de velocidade do
acionador pode levar a operá-lo com baixa eficiência.
− Estrangulamento na Sucção: É o segundo método mais empregado. Sua
simplicidade e baixo custo contrastam com o seu alto custo operacional,
na maioria dos casos. Consiste na introdução de uma válvula de controle
na tubulação de sucção do compressor fazendo com que a pressão de
sucção do compressor seja inferior à pressão suprida pelo sistema.
Conforme e aumentada a relação de compressão a vazão do compressor
cai.
35
Esse método é antieconômico pois há perda de energia com a expansão
(perda de pressão) do gás na válvula, aumentando o trabalho de
compressão por unidade de massa. Outro inconveniente é o aumento da
temperatura de descarga.
− Mudança de Ângulo das pás Guias na Sucção: Em alguns compressores
há dispositivos para alterar o ângulo das pás guias na sucção do 1o
estágio. Isto tem duplo objetivo: Redução da pressão na entrada do
compressor, como no estrangulamento na sucção e imposição de uma
pré-rotação ao fluido, que pode ser no sentido .de rotação do impelidor
(ângulo positivo), fazendo com que o Head .fornecido para uma
determinada vazão seja menor, ou no sentido contrário (ângulo negativo),
fazendo com que o Head fornecido seja maior. Basta lembrar da equação
de Euler.
H = U2 . Cu2 – U1. Cu1
Cu1 causa H
Cu1 causa H
36
Como altera o triângulo de velocidades do impelidor, este método muda a
performance do impelidor com um mínimo de estrangulamento, operando
com maior eficiência em relação ao método anterior. Porém implica em
redução da eficiência máxima, pois mesmo totalmente abertas, as pás
introduzem perda de energia disponível no fluido.
As pás guias podem ser colocadas na entrada de todos os estágios, mas
é mais comum tê-Ias apenas no primeiro estágio. É um método que exige
um sistema de atuação e controle de alto custo e complexo, e que é pouco
efetivo para um compressor de muitos estágios.Porém operacionalmente
é quase tão econômico quanto a variação de rotação.
b) CONTROLE ANTI-SURGE
O propósito do controle é impedir que o compressor opere com vazão
inferior a um limite mínimo - o ponto de controle de surge - escolhido ligeiramente
maior em vazão que o ponto no qual se inicia o surge (ponto limite de surge). Tal
poderia ocorrer peIa ação do controle de capacidade, reduzindo a vazão de
operação, ou na partida.
A forma convencional de atuação é a recirculação da descarga para a
sucção (ou descarga para a.atmosfera, no caso de compressores de ar). A
recirculação é controlada de tal maneira que a vazão de gás que passa pelo
compressor, que é a sorna das vazões de recirculação e para consumo, seja
maior que o limite de surge.
37
Em compressores de processo a recirculação é controlada automaticamente. Para
que o controlador anti-surge possa saber quando e quanto recircular é necessário
que ele conheça simultaneamente o ponto de operação e o ponto de controle de
surge. Quanto ao último surgem duas dificuldades. É preciso que haja uma
margem de segurança entre o ponto de controle e o ponto de limite de surge, que,
todavia, não pode ser grande pois a recirculação é anti-econômica, nem muito
pequena dada a relativa incerteza da localização do ponto de limite de surge.
Levantar experimentalmente este ponto no sistema de operação, com
instrumentação adequada, é o mais indicado. Também o ponto limite de surge não
é único, variando em termos das condições do sistema e da atuação do controle
de capacidade. Isto é que torna o sistema de controle complexo. Há um ponto
limite de surge para cada rotação, formando urna curva de limite de surge. Se,
ainda mais, tivermos as condições de sucção variáveis, como vimos
anteriormente, a curva de limite de surge oscila de posição. Como exemplo
vejamos a figura no
21.
38
A curva do sistema apresenta larga variação e há, para cada condição do
sistema, um ponto correspondente a ocorrência do surge, com uma dada vazão
que muda de ponto. O “set-point" do controlador deverá então ser estabelecido, a
cada instante, em função de uma determinada lei ou equação, que considere o
deslocamento do limite de surge.
Quando no compressor houver resfriamento intermediário com a retirada
posterior de condensado deve um controle individual de surge para cada estágio,
pois a vazão em massa irá diminuir de estágio para estágio. Quando não houver
resfriamento do gás recirculado, a recirculação não pode ser feita por muito
tempo.
3 - Rotodinamica
ÍNDICE ÍTEM
Introdução 3.1
Vibrações síncronas 3.2
Vibrações assíncronas 3.3
Vibrações torsionais 3.4
Conclusões 3.5
1
3. ROTODINÂMICA E CRITÉRIOS DE PROJETO N.P.
3.1.INTRODUÇÃO
O maior esforço no projeto de compressores centrífugos, principalmente
para aplicações de alta pressão é atualmente dirigido a problemas relacionados à
estabilidade lateral do rotor. O problema da estabilidade se relaciona ao
compressor em todos os seus componentes, já que, como veremos em detalhe,
todas as peças básicas das máquinas contribuem para a estabilidade: rotor,
mancais, selagens a óleo, acoplamento e todas as peças fluido-dinâmicas como
impelidores, difusores, canais de retorno.
Os métodos de previsão teórica e a investigação experimental
disponibilizados nos últimos anos contribuíram muito para o progresso neste
campo. Estamos nos referindo aqui à disponibilidade, na indústria, de grandes
computadores capazes de executar programas de cálculos muito elaborados, e de
equipamentos eletrônicos para a detecção de vibrações e pulsações de pressão
(sensores de vibração de não contato - “probes”, “key-phasors”, transdutores de
pressão, analisadores de tempo real, etc.) que permitiram diagnósticos mais
precisos.
A medida do comportamento mecânico de um compressor é dada pela
amplitude e freqüência das vibrações do rotor.
A amplitude da vibração do rotor não deve causar contato entre o rotor e
as peças do estator de pequena folga (labirintos), sobrecarga das selagens a óleo,
e tensão de fadiga nos mancais. A freqüência das vibrações é um elemento muito
importante na avaliação da estabilidade do sistema.
A vibração pode ter uma freqüência correspondente à rotação da máquina
(vibração síncrona) ou uma freqüência diferente (vibração assíncrona).
Normalmente em máquinas como os compressores, ambos os tipos de vibração
podem estar presentes.
3.2.VIBRAÇÕES SÍNCRONAS
Vibrações síncronas normalmente são atribuíveis a uma das seguintes
causas ou a uma combinação delas:
a) defeitos acidentais dos rotores (como por exemplo,
desbalanceamento);
b) defeitos de projeto, isto é, velocidade operacional muito próxima à
ressonância e/ou amortecimento insuficiente do sistema.
Com relação ao item a), os fabricantes das máquinas agora possuem
equipamentos que permitem a obtenção de um balanceamento muito preciso.
Entretanto, esta precisão considerável no balanceamento é algumas vezes
alterada por causas acidentais, de modo que o item b) adquire grande
importância: o projeto correto do sistema de mancal-rotor deve garantir níveis de
vibração aceitáveis mesmo quando causas acidentais destroem o estado original
2
de balanceamento adequado.
Normalmente, são usadas duas abordagens para prever o comportamento
dinâmico síncrono de um rotor.
A primeira abordagem é o cálculo numérico Myhlestad-Prhol, que
considera o rotor como um sistema dinâmico compreendendo um número de
massas concentradas incorporadas a um eixo sem massa apoiado por mancais. O
programa de computador resolve o sistema para uma variedade de valores de
apoio constante em toda a faixa possível. Um diagrama pode ser elaborado, no
qual as velocidades críticas laterais se constituem em uma função da rigidez
equivalente dos suportes. Os valores efetivos das velocidades críticas laterais
podem ser estabelecidos com base no conhecimento que se tem da rigidez do
mancal (Figura 3.1).
Figura 3.1 Mapa de velocidades laterais críticas x rigidez dos mancais
O programa também calcula o formato do rotor (“mode shape”) nas
velocidades críticas, para cada valor especificado da rigidez dos mancais (Figura
3.2). Os “mode shapes” são importantes porque indicam a amplitude de vibração
relativa em cada ponto ao longo do rotor. Se as amplitudes relativas nos mancais
forem baixas, um alto desbalanceamento produzindo uma considerável deflexão
em algumas seções do eixo, irá causar, no entanto, um movimento relativo muito
pequeno nos mancais. Sem movimento relativo, os mancais o amortecimento dos
mancais não será efetivo. Assim, os mancais não estão colocados na posição
mais eficiente, e sua posição deve ser corrigida.
3
Figura 3.2 - Forma de modalidade de rotor típica na segunda velocidade crítica
A segunda abordagem é efetuar o cálculo de resposta do eixo no qual o
movimento do rotor em toda a sua faixa de velocidade operacional é estudado,
como uma resposta de sistema amortecido a uma excitação de desequilíbrio. Os
desequilíbrios são em geral colocados onde há mais expectativa de sua
ocorrência, isto é, nos impelidores, acoplamentos, etc. A amplitude do movimento
do rotor é calculada em posições (estações) selecionadas no rotor.
Os coeficientes (8) que simulam a rigidez dinâmica e o amortecimento do
mancal são incluídos no cálculo. As órbitas calculadas são em geral elípticas,
devido à diferença entre a rigidez e amortecimento vertical e horizontal. O
diagrama de resposta representa a variação do eixo semi-principal da órbita
elíptica com a velocidade, em estações selecionadas ao longo do rotor (Figura
3.3).
4
Figura 8.3- Diagrama de resposta típica do rotor
A quase totalidade dos compressores centrífugos de grande porte opera
entre a primeira e a segunda freqüências críticas, situação na qual o rotor é dito
flexível. A norma API 617 recomenda que a primeira freqüência crítica
corresponda a uma rotação pelo menos 15% abaixo da mínima requerida na
operação do compressor. E que a segunda freqüência crítica seja pelo menos
20% superior a máxima rotação de funcionamento contínuo.
Vários testes realizados diretamente em condições operacionais reais
mostraram que as freqüências e as amplitudes medidas estão próximas aos
valores esperados/ calculados.
Os parâmetros de projeto disponíveis para atuar sobre as capacidades de
amortecimento e valores de ressonância são: posições do mancal, especialmente
em relação às pontas eixo, tipo de mancal, tipo de fluido lubrificante, tipo de
acoplamento e evidentemente as características elásticas do rotor.
5
3.3.VIBRAÇÕES ASSÍNCRONAS
No campo de vibrações assíncronas, é necessário fazer uma outra
distinção entre as freqüências de vibração que são múltiplas da velocidade de
rotação e as freqüências de vibração mais baixas ou mais altas do que a
velocidade de rotação, mas não múltiplas dela.
Ao primeiro tipo pertencem as vibrações normalmente causadas por
fatores locais, tais como: desalinhamento, atrito entre peças rotativas e estáticas,
tensões excessivas na tubulação, fundações, etc.
Ao segundo tipo pertencem as vibrações que foram causa de problemas
mais graves, especialmente no campo de compressores de alta pressão. Elas
podem ser causadas por fenômenos externos (vibrações forçadas: por exemplo, o
efeito de forças aerodinâmicas), ou por fenômenos intrínsecos ao movimento do
rotor propriamente dito (vibrações de auto-excitadas), que prejudicam a
estabilidade em sua base.
A estabilidade é uma função de um balanço de vários fatores. Os
principais são:
A - Sistema de suporte de rotor com suas características elásticas;
B – Efeitos aerodinâmicos;
C – Selagens a óleo;
D – Selagens por labirintos.
Cada fator desempenha um papel no balanço da estabilidade e pode ser
positivo ou negativo. O sistema é mais ou menos estável ou instável de acordo
com o resultado deste balanço.
Uma abordagem teórica para prever a estabilidade de um sistema rotativo
é o cálculo do decremento logarítmico (Figura 8.4).
6
Figura 3.4 - Diagrama de freqüências naturais laterais amortecidas e
decremento logarítmico
O programa calcula as freqüências naturais amortecidas do sistema de
suporte do rotor a velocidades selecionadas e fornece, para cada freqüência, o
valor da diminuição logarítmica que é uma indicação segura da estabilidade do
próprio sistema.
A – Com relação ao rotor, já vimos como as freqüências naturais são
determinadas e como a eficiência do mancal pode ser avaliada no que tange às
formas de curvatura do rotor (mode shapes).
Para evitar ou minimizar histerese interna, elementos de montagem
ajustada (como camisas, espaçadores, impelidores, etc.) devem ser tão
axialmente limitados quanto possível.
As ranhuras podem causar resposta elástica diferenciada nos vários
planos. Por este motivo, elas são reduzidas ao tamanho mínimo, escalonadas em
90 graus entre um impelidor e o próximo, e em alguns casos, são eliminadas.
Com relação aos mancais, para se evitar problemas de instabilidade de
óleo (“oil whip”), normalmente é usado o tipo de pastilhas oscilantes (“tiltint pad”).
7
Em alguns casos, os mancais amortecedores também são usados (Figura 3.5).
Esses oferecem a vantagem de permitir o ajuste independente de coeficientes de
amortecimento e rigidez.
Figura 3.5 – Mancal amortecedor
B – A ocorrência de “rotating stall” em um ou mais impelidores poderia
explicar a presença de pulsações que indicam vibrações na mesma freqüência
(vibrações forçadas).
Todos os compressores centrífugos, qualquer que seja a pressão, são
afetados pela excitação aerodinâmica. Outras condições sendo favoráveis, esses
efeitos aumentam em intensidade, em proporção à densidade efetiva do gás. O
parâmetro determinante não é só a pressão, mas também a temperatura, peso
molecular e compressibilidade, em conjunto. Esta é a razão porque os problemas
de vibrações excitadas por efeitos aerodinâmicos ocorrem com mais freqüência
nas plantas de re-injeção ou de síntese de uréia do que nos compressores de
síntese de amônia ou de refinaria, mesmo quando operando nos mesmos níveis
de pressão.
N.P. já estudou em profundidade e verificou, de forma experimental, os
“fenômenos de fluxo instável” em sua configuração de estágio padrão. As
conclusões foram que a perturbação aerodinâmica e as conseqüentes pulsações
de pressão vinham das aletas do estator do canal de retorno, muito antes de vir do
impelidor propriamente dito. Neste caso a relevante vibração do eixo tinha as
seguintes características:
- Estabilidade na amplitude
- Freqüência muito baixa (ordem de magnitude de cerca de 10% da
velocidade operacional)
- Amplitude como função da velocidade periférica e da densidade do gás.
8
C – As selagens a óleo da extremidade do eixo ainda são as partes mais
críticas na fabricação de compressores centrífugos de alta pressão.
Um requisito importante que as selagens a óleo devem atender é
contribuir para a estabilidade do sistema ou, no mínimo, não perturbar muito a
estabilidade. É fácil entender que as selagens, por sua própria natureza, seriam
componentes muito negativos no balanço da estabilidade do sistema se elas
estivessem “travadas”, porque agiriam como mancais perfeitamente circulares,
levemente carregados. Esta tendência negativa é em geral compensada fazendo-
se os anéis flutuarem o máximo possível em condições operacionais.
Isto pode ser obtido distribuindo-se a queda de pressão do óleo no lado
atmosférico entre vários anéis e reduzindo a superfície de cada anel, onde a
pressão atua, recobrindo as superfícies. Quando essas técnicas são insuficientes
para evitar o “travamento” (isto é, um alto valor de força de limite de
desprendimento), ranhuras periféricas ou axiais nos anéis flutuantes podem dar
uma contribuição positiva à estabilidade, influenciando as características de
amortecimento e resistência do sistema.
D – Outra possível causa importante de instabilidade e vibração sub-
síncrona pode surgir dos selos de labirintos.
Nas superfícies anulares, os movimentos circulares do gás, por causa do
deslocamento do rotor, podem se tornar irregulares e assim, podem causar uma
distribuição não-simétrica da pressão, com uma resultante força perpendicular ao
próprio deslocamento (assim chamado efeito de acoplamento cruzado). Este é um
fenômeno típico de auto-excitação que causa instabilidade.
A importância do fenômeno aumenta com a densidade do gás (portanto
com a pressão) e com o local da selagem. Na verdade, a vibração que sempre
começa acima da primeira velocidade crítica, possui uma freqüência característica
igual à primeira velocidade crítica com o mesmo “mode shape”.
Portanto, particularmente delicados deste ponto de vista, são os
compressores “back-to-back” nos quais o maior labirinto está no meio (como é a
mais alta pressão) onde os movimentos do eixo são maiores.
O labirinto na Figura 3.6 representa uma primeira tentativa de diminuir ou
tentar interromper os movimentos circulares por meio de muitos septos colocados
axialmente no labirinto.
O labirinto na Figura 3.7 é derivado do anterior, colocando-se a superfície
anular entre dois dentes consecutivos em comunicação com uma câmara toroidal
interna a fim de igualar a pressão no interior o máximo possível.
9
Figura 3.6
Figura 3.7
10
3.4 VIBRAÇÕES TORSIONAIS
A análise de vibrações torsionais durante a fase de projeto do compressor
centrífugo é também importante, principalmente se o acionamento é feito por
motor elétrico síncrono ou utiliza-se uma caixa de engrenagens (multiplicadora de
velocidade). Esses são os elementos que mais freqüentemente proporcionam
problemas de vibração torsional.
Os objetivos desta análise são os mesmos citados no caso das vibrações
laterais, isto é identificar as freqüências críticas e prever os níveis gerais de
vibração. A análise torsional possui, no entanto, algumas peculiaridades. A mais
importante delas reside na obrigatoriedade de considerar simultaneamente o
comportamento de todas as máquinas e elementos conectados, uma vez que o
movimento torsional se propaga de eixo a eixo, devido à liberdade de rotação. Isto
causa dificuldade na fase de projeto, especialmente se há mais de um fabricante
de equipamentos envolvido, o que é bastante comum.
Os acoplamentos, por serem os componentes menos rígidos de todo o
arranjo, possuem uma influência muito grande sobre as freqüências críticas
torsionais, além de serem muitas vezes projetados com a função precípua de
suprir o adequado efeito de amortecimento do conjunto.
3.5 CONCLUSÕES
As causas mais importantes de vibrações laterais síncronas ou
assíncronas e torsionais podem ser bem simuladas durante o cálculo, de modo
que se pode obter uma boa previsão do comportamento dinâmico do rotor.
Além disso, o crescimento paralelo da tecnologia da instrumentação dá a
possibilidade de uma completa verificação, não só das condições operacionais
mecânicas da máquina, mas também, e conseqüentemente, das premissas
teóricas tomadas como base de projeto, tal como acima explicitado no parágrafo
acima.
4- Componentes
ÍNDICE ÍTEM
Carcaças 4.1
Diafragmas 4.2
Rotor 4.3
Mancais Radiais 4.4
Mancal Axial (Escora) 4.5
Sistema de Posicionamento Axial do Eixo 4.6
Acoplamentos 4.7
Selagens 4.8
1
4.1 CARCAÇAS.
4.1.1 Informações Gerais
O material escolhido deve levar em consideração a pressão, temperatura de
operação, tamanho, gás manuseado, e regulamentos fornecidos pelas normas
API.
Geralmente a Nuovo Pignone usa ferro fundido Meehanite GD com resistência a
tração de 25-30 kg/mm2
e 70 kg/mm2
de resistência à compressão (isto é, melhor
do que muitos aços).
Quando na utilização de carcaças em aço, é empregado o ASTM A 216 WCA, se
o compressor operar a baixas temperaturas devrá ser utilizado o ASTM A 352 em
um dos seus quatro graus dependendo da temperatura de operação; por último,
usamos aço ASTM 351 Gr. CA15 (13% Cr) ou Gr. CF8 no caso de ambientes
corrosivos.
O teste usual para estas carcaças é a inspeção por partículas magnéticas. Em
casos especiais, quando cuidados especiais são exigidos, é realizado o teste de
ultra-som.
Algumas vezes é exigida a inspeção radiográfica; não devemos considerá-la visto
que as tensões que afetam estes elementos são limitadas e as falhas certamente
existem nos fundidos, no entanto são aceitáveis e não são prejudiciais para estes
fundidos, podem ser exibidas desta forma.
A última tendência é usar carcaças soldadas, esta solução é mais vantajosa que o
fundido: desta forma o risco de rejeições, reparos, etc., é reduzido, evitando fazer
os modelos separados o que exige uma sala grande e muito cuidado no caso de
uma linha de produção diversificada como na Nuovo Pignone, para evitar
quaisquer danos.
2
4.1.2 CARCAÇAS DIVIDIDAS HORIZONTALMENTE
CARCAÇA DIVIDIDA HORIZONTALMENTE
Este tipo de carcaça é utilizado em compressores com pressões de operação abaixo
de 60 bar (aproximadamente 61 Kgf/cm²)
Vantagens Desvantagens
Melhores condições de acesso aos
internos da máquina (o que é feito
simplesmente pela de sua metade
superior).
Dificuldade em garantir a estanqueidade ao
longo de toda a abertura longitudinal do
compressor (sujeita a tensões
circunferências devidas à pressão interna)
Para melhorias de projeto os bocais de sucção e descarga, as linhas de óleo e outras
linhas de processo foram localizadas na parte inferior de carcaça. Esta configuração
permite a abertura do compressor sem desconectar as tubulações que interfiram no
posicionamento do compressor afetando principalmente o alinhamento.
3
4.1.3 CARCAÇAS DIVIDIDAS VERTICALMENTE
CARCAÇA DIVIDIDA VERTICALMENTE
As carcaças bipartida verticalmente são formadas por um cilindro fechado com duas
tampas nas extremidades originando a denominação “barril” (usada em compressores
com este tipo de configuração). Estas máquinas, são geralmente multi-estágio e
usadas para serviços de alta pressão (até 700 kg/cm2
).
Vantagens Desvantagem
Oferece condições de selagem bem
mais favoráveis, não só pelo local da
partição, mas também por ela estar
sujeita a tensões longitudinais que
possuem a metade da intensidade das
tensões circunferências.
Construção conhecida como “tipo barril”
é adotado pelos fabricantes para
pressões acima de cerca de 5000 Kpa (
Kgf/cm2), ou em qualquer condição com
hidrogênio e outros fluidos cujo
vazamento possa representar perigo.
Exige o desacoplamento do eixo e a
retirada lateral de todos os seus internos
4
4.2 DIAFRAGMAS.
4.2.1 Informações Gerais
Os diafragmas formam o caminho do gás no interior da parte estatora do
compressor. São divididos em quatro tipos:
1. Sucção
2. Intermediário
3. Inter-estágio
4. Descarga
O diafragma de sucção transporta o gás para a entrada do primeiro impelidor.
Geralmente é equipado com aletas variáveis e operado por um dispositivo de
controle (externo ao compressor), que proporciona mudanças no ângulo de
entrada do gás para o impelidor.
Os diafragmas intermediários realizam a tarefa dupla de formar o difusor onde a
energia cinética é convertida em energia de pressão e o canal de retorno para
levar o gás para a entrada do próximo impelidor. Os difusores podem ser do tipo
de vórtice livre ou com aletas: estas aletas melhoram a eficiência da conversão,
mas reduzem a flexibilidade da máquina.
O diafragma de descarga forma o difusor do último impelidor, bem como o
caminho de descarga.
Os diafragmas interestágio separam os lados de descarga dos dois estágios nos
compressores com rotores do tipo “back-to-back”.
Cada diafragma possui selos tipo labirinto para evitar que o gás na saída do
impelidor retorne para o lado de sucção e evitar vazamentos interestágio.
Os selos labirintos são bipartidos e podem ser removidos com facilidade.
Por motivos de instalação do rotor, os diafragmas são divididos; quando montados
em barris ou em carcaças bipartida horizontalmente, a diferença não é muito
grande, diferem somente no seu alojamento na carcaça.
Nos compressores tipo barril, as metades do diafragma são mantidas fixas por
tirantes formando assim dois feixes separados; são parafusados juntos após
instalar o rotor: o conjunto resultante (ver figura a seguir) é instalado axialmente
na carcaça.
5
Instalação do Bundle
Nos compressores bipartidos horizontalmente, cada metade do diafragma é
instalada nas duas metades da carcaça; por isto a superfície externa de cada
diafragma possui um rasgo para combinar com o relevo correspondente na
carcaça. Cada diafragma é baixado na metade da carcaça (fig. A seguir).
Detalhes de um Bundle (Carcaças divididas horizontalmente)
Nas manutenções, onde uma substituição de difusores for necessária, observar a
manutenção de difusores compatíveis com o removido, principalmente levando-se
6
em conta as áreas de entrada e saída do difusor. Alterações nas mesmas poderão
influienciar no rendimento do compressor devido a mudanças no
dimensionamento do caminho do gás, baseado nas exigências termodinâmicas
para garantir a velocidade e ângulo exigido do gás, e o dimensionamento da
espessura que é baseado no ∆p estabelecido nas duas faces de cada diafragma.
Na maioria dos projetos os diafragmas são quase sempre fundidos devido a sua
estrutura complicada. Geralmente é usado ferro fundido tipo Meehanite GD ou
esferoidal, algumas vezes com adição de porcentagens de níquel para melhorar
sua resistência característica ao impacto em baixas temperaturas (1 a 1,5 % Ni).
Se a temperatura de operação for abaixo de –100°C, é usado aço ASTM A 352
nos quatro graus disponíveis ou ASTM A 351 grau CF8.
Abaixo de um certo tamanho de canais de gás, a fundição pode ser difícil,
portanto os diafragmas são fabricados de duas partes, normalmente uma fundida
e a outra de chapa de metal, parafusadas juntas.
Em condições severas tais como diafragmas de compressor de alta pressão ou
diafragmas inter-estágio em compressores com impelidores em série, é
necessário usar os materiais mais qualificados tais como aços carbono forjados
(ASTM A 182 F22).
No caso de pressões muito altas, é necessário reforçar a estrutura do feixe do
diafragma, neste caso a solução consiste em fabricar a contra carcaça em aço
forjado (ASTM A 182 F22) composta de suas metades de carcaça, onde são
montados os diafragmas como nos compressores bipartidos horizontalmente. Esta
solução tem a vantagem de permitir a montagem dos diafragmas em diâmetros
menores e, portanto o comprimento livre de deflexão é reduzido (ver fig. A seguir).
7
4.3 ROTOR
4.3.1 Informações Gerais
O rotor de um compressor centrífugo é composto pelo eixo, impelidores, tambor
de balanceamento, mancal axial, mancal radial, cubo do acoplamento, luvas e
anéis espaçadores.
4.3.2 Informações Detalhadas
a. Eixo
O eixo consiste de uma seção central, onde são montados os impelidores e
espaçadores, e nas suas extremidades têm diâmetros ligeiramente
diferenciados para acomodar os mancais e as selagens.
O eixo é dimensionado para uma rigidez (através de redução na distância entre
os centros dos rolamentos e/ou aumentando o diâmetro de acordo com o projeto
de vazão dinâmica) para chegar ao melhor comportamento de flexão.
O material usado para fabricar os eixos para qualquer tipo de compressor é o
aço 40 NiCrMo7 UNI. De fato, as características mecânicas deste aço são
melhores do que as normalmente exigidas para o uso normal dos eixos de
compressores centrífugos; por isto outros fabricante usam aço carbono comum.
O Aço 40NiCrMo7 é muito apropriado para endurecimento e têmpera; os eixos
de tamanho normal para compressores centrífugos feitos deste aço passam
todos por este tratamento (até o núcleo), já os eixos de aço carbono passam
pelo mesmo somente superficialmente.
Como o objetivo é obter uma boa dutilidade e tenacidade, e um ponto de
escoamento não muito alto e um valor de tensão de tração superior, a têmpera é
realizada em uma temperatura acima da normal, permitindo em todo caso
chegar a uma tensão de tração acima 100 kg/mm2
e ponto de escoamento
acima de 65-75 kg/mm2
.
b. Impelidores
Os impelidores são instalados no eixo pelo processo de interferência. A figura a
seguir ilustra esta instalação.
8
Os impelidores são montados por interferência não somente devido à
transmissão de torque, mas também para evitar que soltem sob a alta
velocidade de rotação devido às tensões das forças centrífugas, evitando
também os desbalanceamentos já que os impelidores não estariam mais
concêntricos com o eixo.
Os impelidores podem se, estruturalmente, do tipo fechado ou aberto. Os
impelidores fechados consistem de um cubo, um determinado número de aletas
e uma carenagem. As aletas geralmente são inclinadas para trás. Para união
destas partes (aletas e carenagem) é utilizado pela Nuovo Pignone o processo
de soldagem.
As aletas geralmente são usinadas (ver fig. A seguir) no cubo (ou na
carenagem), depois a unidas por solda internamente. As aletas são usinadas no
cubo ou na proteção dependendo do formato do impelidor e, portanto, conforme
a possibilidade do eletrodo entrar no canal.
Se, devido à largura menor do impelidor, for difícil soldar internamente, a solda
externa é usada: na carenagem (ou cubo) perto das aletas e conforme seu
formato, os rasgos são executados superficialmente. O cubo e a carenagem são
conectados entre si por solda de topo temporária. Ao encher estes rasgos com
material de solda, as superfícies entre a aleta e a carenagem são fundidas
resultando assim em uma solda.
9
O ciclo de soldagem do impelidor é o seguinte: solda, seguido por alívio de
tensões por tratamento térmico, inspeção das peças soldadas, endurecimento e
têmpera, remoção da tolerância de usinagem.
Soldagem de um Impelidor
Os impelidores abertos são diferentes do tipo fechado devido à falta da
carenagem. Normalmente este tipo de impelidor possuie aletas tridimensionais
obtidas por usinagem. As aletas podem ser radiais ou inclinadas para trás de
acordo com a característica e pressão que se deseja obter.
Em relação ao projeto mecânico, deve-se levar em consideração que os
impelidores são os elementos sob mais tensão em um compressor, como a
vantagem de reduzir o número de estágios leva a velocidades mais elevadas
nas pontas e, portanto, tensões.
A tendência das tensões nas diversas partes do impelidor varia, é claro, de
acordo com o tipo de impelidor.
A condição mais severa ocorre durante o teste de sobre velocidade (a 115% da
velocidade máxima contínua).
10
Como regra geral, ao fabricar impelidores é preciso muito cuidado no
acabamento das superfícies e no seu projeto, considerando especialmente as
espessuras, os rasgos de chaveta e os arredondamentos dos cantos.
Os materiais e tratamentos térmicos são escolhidos levando em consideração
as tensões devido à força centrífuga (em função da velocidade da ponta na qual
o compressor deve funcionar) e as condições de trabalho, tais como corrosão,
corrosão por tensão, baixas temperaturas, etc.
Para obter um bom resultado nas soldas das lâminas, devem ser feitas de aço
com boas características mecânicas, no entanto com baixo teor de carbono. A
Nuovo Pignone usa o aço KMN COGNE para todos os impelidores, exceto para
casos especiais, que é um aço de baixa liga apropriado para baixa temperatura,
contendo 2% de cromo, 1% de molibdênio e 0,13 a 0,17% de carbono.
Os fabricantes de impelidores nos EUA usam aço com maior teor de carbono,
obtendo melhores características mecânicas, mas deixando algumas dúvidas
sobre a qualidade da solda, já que a solda e a área ao redor estão sujeitas à
corrosão inter cristalina. Por este motivo os fabricantes britânicos exigem limites
da porcentagem de carbono. A corrosão inter cristalina leva ao relaxamento das
ligações metalográficas entre os grãos e, portanto, a degradação da resistência
mecânica.
Um teor de carbono no aço maior que o limite de solubilidade de sua matriz
austenítica determina a possibilidade do aço ser sujeito à corrosão inter
cristalina, já que o carbono é a causa principal para a precipitação de carbeto e
redução do cromo na área ao redor do limite do grão. Os carbetos precipitados
ao longo do limite do grão podem iniciar a fratura, enquanto que a redução de
cromo torna o material mais suscetível à corrosão.
Se o aço permanecer na temperatura de sensibilização (de 400 a 900°C)
durante o processo de têmpera após o tratamento térmico, bem como durante o
aquecimento para solda, os carbetos de cromo podem precipitar ainda mais,
quanto mais alto o teor de carbono no aço.
Quando os impelidores funcionam em meio corrosivo, é usado aço com teor de
cromo mais elevado, tal como o X15C13 (13% Cr); em áreas especialmente
corrosivas a porcentagem de cromo no aço é muito maior: aços KXOA2-FNOX
(de 15 a 19% Cr); além disso, se houver algum problema na resistência a
tensões junto com os problemas de corrosão, são usados aços MARAGING,
série 17% Cr, 4% Ni, temperados em baixa temperatura.
O aço 9% níquel é usado para impelidores funcionado em baixa temperatura,
este teor foi estudado para ter uma boa resistência ao impacto até –196°C.
c. Tambor de balanceamento
Durante a operação normal, dentro do compressor é gerado um empuxo contra
o rotor, que deve ser suportado pelo mancal axial.
Este empuxo é devido principalmente às pressões agindo no impelidor.
11
O ∆p produzido pelo impelidor gera, é claro, uma força na direção de sucção
expressa pelo produto multiplicado pela área sob a selagem da proteção.
A soma destes empuxos é geralmente muito alta e muitas vezes além da
capacidade do mancal axial. Para um conjunto rotor com 5 impelidores, um ∆p
médio para cada impelidor = 6 kg/cm2
, eixo Ø = 17 cm, selagem Ø = 27 cm, o
empuxo gerado é de 10370 Kg:
Portanto, é previsto um tambor de balanceamento, depois do último impelidor;
localizando sua face oposta sob a pressão de sucção e dimensionando seu
diâmetro adequadamente, um empuxo é gerado do lado de sucção para o lado
de descarga, de modo a balancear o empuxo dos impelidores.
O balanceamento ainda não está completo: um empuxo residual é deixado,
capaz de ser suportado pelo mancal de escora, para evitar qualquer
instabilidade axial do rotor.
Outros empuxos são gerados além dos descritos acima, tal como o empuxo
provocado pela variação do fluxo de gás entrando axialmente no impelidor e
saindo do mesmo radialmente, ou como o empuxo resultante da irregularidade
da pressão agindo no impelidor nas máquinas de alta pressão.
Geralmente, estes empuxos não são alto suficiente para alterar o estado das
coisas, mesmo assim devem ser calculados com precisão.
É importante levar em consideração também o empuxo gerado pelo
acoplamento, que será discutido oportunamente.
Em relação ao perfil deve-se observar que a largura deste tambor seja suficiente
para suportar todo o ∆p desenvolvido pelo compressor: um dimensionamento
12
inadequado da selagem de labirinto resulta em um grande vazamento do gás na
direção da sucção, prejudicando assim o desempenho do compressor.
Geralmente, o tambor de balanceamento é fabricado de aço X12C13 montado
por interferência com chaveta como os impelidores.
4.4 MANCAIS RADIAIS
Informações Gerais
Os mancais radiais servem para efetuar a sustentação do conjunto rotativo, de
forma a evitar o desgaste e minimizar a dissipação de energia por atrito.
Existem fundamentalmente dois tipos de mancais radiais:
a) Mancais de Rolamentos
b) Mancais de deslizamento.
Os mancais de rolamentos são padronizados, mais compactos, dissipam menos
energia e consomem menos lubrificante. São, no entanto, menos resistentes,
porque trabalham com contato metálico entre as superfícies de rolamentos. Por
isso são empregados apenas em máquinas de pequeno porte. Os compressores
centrífugos, usados em processamento industrial, possuem mancais do tipo
deslizamento dotado de um revestimento interno de metal macio(metal patente).
A formação de um filme de óleo impede o contato do eixo com o revestimento
desse mancal, proporcionando, sob condições normais de operação da máquina,
longa duração de campanha sem qualquer manutenção.
O mecanismo de formação desse filme de óleo foi estudado inicialmente por
Osborne Reynolds, estabelecendo o primeiro passo no sentido do projeto dos
mancais de deslizamento. De um modo geral, um fluido contido entre duas
superfícies que apresentem movimentos relativos entre si estará sujeito a um
campo de pressões que depende principalmente das velocidades relativas, das
formas das superfícies e das propriedades do fluido. No mancal, o campo de
pressões assim estabelecido gera uma resultante que se contrapõe ao
carregamento imposto pelo eixo, assegurando a manutenção do filme de óleo e
impedindo o contato metálico.
A fase inicial do projeto de um mancal desse tipo considera um carregamento
devido apenas ao peso próprio do conjunto rotativo, além da rotação e diâmetro
do eixo, comprimento axial do mancal e viscosidade do lubrificante para
estabelecer a folga diametral do mancal (entre cerca de 0,05 e a 5 mm) (e a vazão
de óleo requerida para a dissipação do calor)em geral entre 0,01 e 0,1 l/s). A
espessura mínima aceitável para o filme de óleo e sua máxima temperatura
admissível são os parâmetros que balizam essa fase do projeto.
Admitindo a hipótese de carregamento constante, pode-se demonstrar que o eixo
tenderia a assumir um posicionamento fixo no interior do mancal caracterizado,
como ilustra a figura 13.10, por uma certa excentricidade (ε) e um desvio (φ) do
ponto onde o filme é menos espesso em relação à direção normal.
13
Na pratica, o carregamento sobre os mancais radiais não é constante, devido ás
componentes variáveis introduzidas pela existência de desbalanceamento, pelo
desalinhamento em relação à máquina acionadora e diversos outros efeitos. Em
conseqüência, o eixo se movimenta no interior do mancal, com o seu centro
descrevendo uma órbita em torno da virtual posição de equilíbrio.
A Segunda fase do projeto dos mancais diz respeito exatamente ao
comportamento dinâmico do eixo. Fazendo analogia com um sistema massa-
mola-amortecedor, os parâmetros de funcionamento dos mancais devem ser
ajustados de modo a obter a elasticidade e o amortecimento adequado ao
desempenho oscilatório pretendido para o conjunto rotativo.
Um traçado considerado normal para a órbita de um eixo é mostrado na figura
13.11(a). Encontra-se, como podemos observar, circunscrito a um espaço
pequeno em relação à folga do mancal. A figura 13.11(b) mostra, por sua vez,
uma órbita que vai se alargando em torno de uma posição inicial até atingir um
círculo limite. No primeiro caso, o comportamento do mancal é tido estável e o
conjunto rotativo trabalha sob condições normais de vibração. No segundo, o
comportamento é tido instável e caracterizado por elevado nível de vibração.
14
A instabilidade do mancal é um fenômeno vibratório auto-excitado que se
manifesta quase sempre com freqüência inferior à sua rotação e que pode ter
diversas causas. A mais comum consiste numa movimentação cíclica do filme de
óleo no interior do mancal (“oil whirl”), que pode aparecer acima de uma
determinada rotação. A interação aerodinâmica entre os impelidores e o gás ou
um contato físico entre o conjunto rotativo e as partes estacionárias podem causar
efeito semelhante.
Devido a problemas de instabilidade, os mancais puramente cilíndricos vem sendo
muito pouco utilizados em compressores, especialmente nos de alta rotação.
Formas mais complexas, tais como as que são mostradas da figura abaixo, tem
proporcionado melhores desempenhos.
O mancal de pastilhas oscilantes é atualmente o mais usado. As pastilhas
proporcionam a formação de diversas cunhas de óleo e praticamente centralizam
o eixo e asseguram grande estabilidade hidrodinâmica ao mancal. Além disso, as
pastilhas são pivotadas para acomodar pequenos desalinhamentos do eixo. São
apropriados para rotações elevadas, embora com uma certa limitação de
carregamento.
Os mancais radiais são do tipo pastilhas basculantes de lubrificação forçada. O
óleo sob pressão circula pelos mancais em sentido radial, e passa por passagens
existentes para lubrificar as pastilhas radiais e em seguida é descarregado
lateralmente.
Esta configuração permite pequeno movimento das pastilhas no interior do
alojamento, quer em sentido radial quer em sentido axial, amortizando o máximo
que for possível às vibrações radiais do rotor. A rotação das pastilhas dentro do
alojamento é impedida através de pinos salientes aparafusados ao alojamento.
15
Mancal Radial – Conjunto alojamento, pastilhas e anéis de selagem.
Os mancais são fixados axialmente as tampas verticais (cabeçote), de cada lado
da carcaça (barril) dos compressores, através de parafusos.
Os mancais dos compressores da Nuovo Pignone permitem o ajusta da folga
radial por intermédio de instalação shim (calco) na parte traseira das pastilhas.
4.5 MANCAL AXIAL (ESCORA).
4.5.1 Informações Gerais
Como mencionado no parágrafo 4.3.2.c (Tambor de Balanceamento), nos
compressores centrífugos o gás descarregado pelos impelidores ocupa os
espaços existentes entre os próprios impelidores e os diafragmas gerando um
campo de pressões. Dessa distribuição de pressões resulta uma força axial que
age sobre o impelidor no sentido da descarga para a sucção. O somatório das
forças atuantes sobre os diversos impelidores em um mesmo conjunto rotativo é
tradicionalmente conhecido como empuxo axial.
Existem recursos que podem ser empregados como objetivo de gerar forças
balanceadoras capazes de anular total ou parcialmente o empuxo axial ou até
mesmo inverter o seu sentido.
16
Na verdade, é até desejável que o eixo trabalhe sob algum esforço axial para
posicioná-lo em um determinado sentido. Os projetos normais buscam fixar essa
resultante em cerca de 25% do empuxo axial aerodinâmico. Outra tendência
consiste em estabelecer uma força balanceadora da ordem de 125% do empuxo
axial aerodinâmico, fazendo com que a resultante se oponha a este.
Seja qual for à intensidade e o sentido da resultante axial sobre o eixo, ela deverá
ser absorvida pelo mancal de escora. O princípio no qual se baseia a construção
desse dispositivo é ilustrado pelo esquema da figura.
Um disco preso ao eixo, denominado colar de escora, é inserido no interior de um
estojo revestido de metal macio, posicionando o conjunto rotativo em relação à
carcaça. A formação de um filme de óleo, tal como ocorre nos mancais radiais,
devem impedir o contato direto entre o colar e o revestimento, e ainda promover a
dissipação do calor gerado pelo atrito.
Na maioria dos compressores, o mancal de escora situa-se na extremidade do
eixo que fica do lado da sucção, com a face externa do colar pressionada sobre o
mancal. Isso significa que a resultante axial sobre o eixo possui sentido idêntico
ao do empuxo aerodinâmico, e portanto o eixo trabalha sob compressão. O
acionamento do compressor é sempre feito pelo lado oposto ao do mancal, esse
caso, o lado de descarga.
É recomendável que o mancal de escora seja de dupla ação, isto é, permita
contato de qualquer uma das faces do colar, porque sempre há risco de inversão
no sentido da resultante axial, sobretudo em condições extraordinárias de
operação, como na partida d máquina ou durante o funcionamento em surge. A
folga total do mancal ou “passeio” axial do conjunto rotor é da ordem de alguns
décimos de milímetro.
Quase todos os compressores centrífugos de uso industrial empregam um tipo de
mancal de escora denominado “Kingsbury” ou “ Mitchell”, que se caracteriza pelo
revestimento segmentado, em forma de pastilhas pivotadas para produzir
movimento oscilatório.
17
A inclinação das pastilhas em torno dos pivôs proporciona a formação de cunhas
de óleo que conferem grande estabilidade à posição do eixo e ao mesmo tempo
elevam a pressão que o mancal é capaz de suportar a cerca de 3000 Kpa ou
mais, enquanto nos mancais comuns o limite não ultrapassa 600 Kpa.
Melhores resultados são ainda obtidos com o uso de mancais auto-ajustáveis que
possuem um sistema de pivotamentos múltiplos (balancins), próprio para
compensar o desalinhamento angular entre os eixos do compressor e do
acionador, distribuindo a carga igualmente sobre as pastilhas. A desvantagem
dessa construção é o aumento considerável do comprimento axial requerido para
a instalação do mancal.
Para o compressor centrifugo BCL 406/A o mancal de empuxo é do tipo kingsbury
φ 10 ½” e é composto de um único mancal de empuxo do tipo 266,7 LEG B
(kingsbury) no lado ativo e de um único mancal de empuxo kingcole "8" 225
(kingsbuy) no lado inativo. Os dois lados têm lubrificação direta.
Para o compressor centrifugo 2BCL 458/N o mancal de empuxo é o kingsbury 9".
A folga especificada entre as pastilhas do mancal e o colar de escora é indicada
na "Ficha dados folga" de cada máquina.
Detalhes das partes integrantes de um Mancal Axial
Instalação de
calco para
ajustar a folga
axial (lado ativo)
Instalação de calco
para ajustar a folga
axial (lado inativo)
18
Esquema com passagens do óleo lubrificante
19
Detalhes do Colar de Escora
4.6 SISTEMA DE POSICIONAMENTO AXIAL DO EIXO.
As peças fundamentais desse sistema são o mancal de escora, e o tambor de
balanceamento.
O tambor de balanceamento, também chamado pistão de balanceamento, é uma
peça cilíndrica fixada ao conjunto rotativo logo após o último impelidor como objetivo
de gerar uma força contrária ao empuxo axial. A face interna do tambor fica
naturalmente exposta à condição final do gás, enquanto a outra face fica em contato
com uma câmara ligada à sucção do compressor por um tubo denominado linha de
balanceamento. Origina-se portanto, sobre o tambor uma força que corresponde ao
produto do seu diâmetro pela diferença entre as pressões atuantes em cada uma
das faces, praticamente equivalentes às pressões de sucção e descarga do
compressor. O esquema da figura 13.17 mostra esse funcionamento.
20
Junto à periferia do tambor de balanceamento são instalados diversos anéis de
labirintos, para minimizar o vazamento de gás através dessa superfície. Esse é um
aspecto bastante delicado do funcionamento do sistema, uma vez que a
deteriorização da selagem pode anular o balanceamento. Os defensores da tese de
que a força balanceadora gerada pelo tambor deve-ser superior ao empuxo axial
aerodinâmico apoim-se justamente nessa tendência de deteriorização do
balanceamento com o uso, que, nesse caso, não seria imediatamente prejudicial.
Esse argumento, embora consistente, não sensibiliza a maior parte dos projetistas,
face às dimensões elevadas requeridas para o tambor.
A construção de máquinas com fluxo em duplo sentido é uma opção algumas vezes
empregada apara anular total ou praticamente o empuxo axial, eliminando pelo
menos a necessidade do tambor de balanceamento. Isso é o que se pretende, por
exemplo, ao adotar impelidores de dupla aspiração, conforme o esquema da figura
13.18. Utilizando principalmente em máquinas de um único estágio, esse tipo de
impelidor não está sujeito, obviamente, a empuxo axial.
21
Um outro recurso consiste em estabelecer dois conjuntos de impelidores acoplados
ao mesmo eixo, de modo que eles sejam percorridos em sentidos opostos pelo gás,
como aparece na figura 13.19.
Há duas alternativas a considerar nesse caso. Se os conjuntos de impelidores são
percorridos em paralelo, trata-se de um compressor com fluxo dividido, e nesse caso
um balanceamento perfeito do empuxo axial é conseguido. O inconveniente desse
tipo de construção é a duplicação das dimensões da máquina e conseqüente
elevação do custo. Se, por outro lado, os conjuntos são percorridos em série, com a
descarga de um sendo conectada por fora da máquina até a admissão do outro, a
anulação do empuxo axial não é absoluta, mas é, em muitos casos, satisfatórios.
O fluxo em duplo sentido é utilizado principalmente quando os níveis de pressão do
sistema são elevados, porque nessas circunstâncias o empuxo axial também é
elevado e as dimensões requeridas para o tambor de balanceamento tornam-se
exageradas, tanto em termos de diâmetro quanto comprimento.
22
4.7 Acoplamentos
O acoplamento transmite energia do acionamento para o compressor.
O acoplamento pode ser direto ou através de uma engrenagem de aumento da
velocidade, dependendo do acionamento conforme considerado em seguida.
Normalmente são usados acoplamentos dentados com lubrificação forçada ou
por enchimento. Os acoplamentos com lubrificação forçada são montados na
rotação de alta velocidade e praticamente só são usados nos compressores, o
outro tipo de acoplamento é selado, geralmente com graxa de lubrificação a ser
completadas de vez em quando; estes acoplamentos são usados somente nos
eixos de acionamento.
Ao transmitir o torque, um acoplamento dentado pode originar um empuxo axial
se os eixos a serem acoplados variarem sua posição relativa, durante o estado
transiente ou devido a uma expansão térmica dos diversos elementos, ficando
axialmente mais perto ou mais longe. Um deslocamento relativo dos dois eixos
não é permitido, uma força axial é gerada acima do valor de atrito dos dentes do
acoplamento, até este momento esta força é suportada pelo rolamento axial.
Veremos agora, por exemplo, quanto pode ser este empuxo: no caso de um
compressor com potência N = 10.000 HP, rpm n = 10.000 e raio R = 100 mm
(raio da linha de passo dos dentes do rolamento) temos:
Mt 716
716
==
n
N
kgm de torque transmitido
Ft = Mt/ R = 7.160 kg de força tangencial transmitida
Como a faixa de coeficiente de atrito dos dentes é:
0,15 < f > 0,3, uma força axial é necessária para vencer o atrito nos dentes.
Fa = Ftf = 1074 a 2148 kg
O empuxo pode chegar até a 5 t no caso de potência mais elevada. Para
entender o comportamento do empuxo deve ser considerado que o ponto fixo do
rotor é o rolamento axial e que a inércia de calor do rotor é menor que a da
carcaça.
O uso de acoplamentos de diafragma tem aumentado recentemente. A Nuovo
Pignone não usa este tipo de acoplamento porque apresenta muitas
desvantagens, comparado com a vantagem principal de compensar
desalinhamentos consideráveis, tais como: mais pesado r portanto com efeito
negativo no comportamento de flexão do rotor em relação à segunda velocidade
crítica, dificuldade de balanceamento e falha por fadiga nas placas finas.
23
4.8 SELAGENS
As selagens são utilizadas para evitar ou minimizar o vazamento de gás
comprimido entre os impelidores e os difusores.
4.8.1. SELAGEM INTERNA.
1. O objetivo da selagem interna é restringir a recirculação do gás através das
folgas existentes entre o conjunto rotativo e as partes estacionárias do
compressor. Há dois pontos de selagem por estágio, sendo um anterior e o
outro posterior a cada impelidor conforme esquematizado na figura 13.20.
2. Os dispositivos utilizados com essa finalidade são os anéis de labirintos,
constituídos por uma superfície filetada que minimiza o vazamento do gás
pela sucessão de mudanças de direção que são impostas.
3. Os anéis de labirintos são encaixados nas extremidades dos diafragmas e
servem também para efetuar a vedação do tambor de balanceamento.
Fabricados em metal macio, usualmente alumínio, deformam-se ao menor
contato com o eixo, de modo a não introduzir carregamento transversal
sobre o mesmo.
4. O número de filetes adotados em cada ponto de selagem depende da
diferença de pressões, e a folga em relação ao eixo deve ser superior à
folga dos mancais radiais em cerca de 0,001 mm por mm de diâmetro do
eixo.
5. As metades superiores dos anéis são fixadas ao diafragma superior e as
metades inferiores dos anéis são fixadas aos diafragmas inferiores.
6. A remoção dos labirintos podem ser executada girando-os na sua sede
(encaixe) dentro dos diafragmas.
7. O mesmo tipo de vedação é posicionado na extremidade do eixo para
limitar os escapamentos de gás do compressor (selo de gás).
8. As folgas entre os labirintos e o rotor são indicadas no "Controle de folgas"
existente em cada manual de manutenção de cada fabricante.
24
Conjunto do conjunto de Pivôs (Balancins)
Detalhes de Pastilha Axial e de Pivotamento
Detalhes de Pastilha Axial, Pivotamento e Alojamento
Conjunto Mancal Axial
5- Montagem e Instalação
ÍNDICE ÍTEM
Nivelamento e Grauteamento 5.1
Alinhamento 5.2
Procedimentos de alinhamento e acoplamento 5.3
Acoplamentos 5.4
1
5. MONTAGEM E INSTALAÇÃO
5.1.NIVELAMENTO E GRAUTEAMENTO
A instalação correta de compressores centrífugos requer uma base ancorada
sólida que pode ser obtida por meio de fundações de concreto armado ou
estruturas metálicas suficientemente rígidas para garantir alinhamento estável
com o motor de acionamento.
Em alguns casos, o grupo motor/compressor, fixado a uma placa base (sapata
de fundação) do tipo suporte, é ancorado à estrutura com suportes articulados
para torná-lo independente da estrutura principal; este método é usado para
instalações em plataformas offshore.
No caso de fundações de concreto armado, um espaço de cerca de 10 cm deve
ser deixado entre a placa-base metálica e a superfície de concreto para permitir
o grauteamento dos parafusos de ancoragem e a chapa do mancal (ver Figura
5.1)
Figura 5.1
Parafuso de nivelamento
Placa-base
metálica
Calços
Fundação
de concreto
Parafuso de ancoragem da fundação
2
Em alguns casos, o parafuso de ancoragem é um tirante que passa por uma
camisa guia na fundação propriamente dita (ver Figura 5.2).
Figura 5.2
Antes de proceder à instalação permanente da maquinaria, confirmar as
dimensões das fundações, verificar as dimensões e referências mostradas no
manual de instruções.
Para despejar corretamente, o concreto deve estar livre de traços de óleo, graxa
ou outras impurezas. Para despejar, normalmente é usado concreto pré-
misturado de secagem rápida, sem contração.
A posição da estrutura da base metálica pode ser ajustada, utilizando-se os
calços entre a placa de fundação e a chapa do mancal e é verificada com um
prumo com uma precisão de 0.01 mm/metro.
Parafuso de nivelamento
Placa-base
metálica
Calços
Fundação
de concreto
Fundação de concreto CamisaTirante da fundação
Calços
3
No caso de mais de uma máquina em placas-base separadas, faça uma verificação
preliminar de alinhamento (ver Figura 5.3)
Figura 5.3
Durante esta fase, você deve avaliar cuidadosamente a distância entre os cubos
de acoplamento, considerando a folga extrema do espaçador e o fato de que os
cubos são posicionados a frio nos eixos.
Um erro na avaliação destas dimensões pode tornar necessário fazer um novo
grauteamento das placas-base nas fundações.
Eixo de referência pra fundações Eixo de referência para tubulação
4
É sempre melhor consultar o livreto de referência para o torque de aperto dos
parafusos de ancoragem (na ordem de décimos de Kgm).
Quando bastante tempo tiver decorrido para a máxima contração do concreto
(cerca de sete dias), o nivelamento e alinhamento do grupo são normalmente re-
verificados, ajustando-se os calços entre a placa-base e a fundação e entre a
placa-base e o compressor, se necessário.
O alinhamento final será feito antes de se conectar a sucção e a tubulação de
gás de produção, o que, em hipótese alguma, deve criar tensão ou esforço nas
máquinas.
5.2.ALINHAMENTO
Alinhamento significa a coincidência do eixo de uma máquina com a extensão
do eixo da outra máquina, durante operação normal. Para realizar isto, você
deve lembrar que todos os compressores sofrem um certo deslocamento
vertical, devido à expansão dos pés de suporte, devido à diferença em
temperatura entre a máquina operando e a máquina em repouso.
O procedimento a ser seguido para encontrar a posição relativa entre dois eixos
a serem alinhados radialmente (ver Figura 5.4), é medir com instrumentos
especiais (indicadores centesimais),
Figura 5.4
5
a diferença entre a posição de quatro pontos na circunferência lida (disco na
máquina de acionamento), juntamente com os eixos perpendiculares aos pontos
correspondentes na circunferência gerada pelo indicador, feita para girar em
torno do eixo da máquina acionada, tomada como referência (ver Figura 5.5).
Figura 5.5
Além disso, para encontrar a quantidade de desvio angular relativo entre os dois
eixos (ver Figura 5.6), use os indicadores de dial instalados em um dos dois
eixos
Figura 5..6
6
E em contato com a superfície de um disco montado perpendicularmente no
outro eixo (ver Figura 5.7).
Figura 5.7
Como dito anteriormente, a leitura é feita em quatro pontos no disco, em
correspondência com os eixos perpendiculares. Esta leitura mostra, em forma
linear, o desvio angular entre os dois eixos.
Para evitar erros devidos à excentricidade e imperfeições de usinagem no disco,
você deve girar ambos os eixos em 90o
, para cada leitura, de modo que o
indicador seja sempre lido no mesmo ponto no qual ele foi regulado para zero.
Este procedimento, entretanto, pode levar a erros, por causa de prováveis
movimentos axiais; para eliminá-los, use dois comparadores montados
axialmente em 180o
. Então considerando a diferença em suas leituras, você
pode obter um valor livre de erro.
7
5.3.Procedimentos de alinhamento e acoplamento
Inicie o alinhamento, tomando o equipamento de acionamento como referência.
Medindo o alinhamento radial
Zere o dial radial com referência a vertical, como mostrado na Figura 5.8
Figura 5.8
Gire ambos os eixos na direção esperada para operação, fazendo leituras do
medidor a intervalos de 90o
.
O indicador lê “menos” (negativo) quando a haste se move para fora e “mais”
(positivo) quando a haste se move para dentro. Faça as leituras observando os
cubos de acoplamento na mesma direção axial das máquinas acionadas.
Assegure-se que os indicadores iniciem em faixa intermediária e repousem de
modo correto no eixo.
O desalinhamento vertical é expresso como
rv = b
2
8
onde “b” é a leitura do indicador em seguida a uma rotação de 180o
.
Com exceção de pequenos erros, a soma algébrica das leituras pós-90o
(w) e
pós-270o
(z) coincide com a leitura pós-180o
:
b = w + x
Ao passo que sua semi-diferença algébrica indica deslinhamento radial
horizontal:
ro = w – z
2
NOTA: É imperativo levar em conta os sinais de mais e menos de “w” e “z”.
Medindo o alinhamento axial
Alinhamento axial, isto é, alinhamento angular dos eixos, é medido por meio de
dois indicadores dial ajustados em zero quando estão posicionados em 12 e 6
horas.
Gire ambos os eixos e registre as medições a cada intervalo de 90o
, como
mostrado na Figura 5.9.
Figura 5.9
9
Pressupondo-se que os dois indicadores estejam afixados ao flange do eixo P, o
botão do indicador irá rastrear no flange do eixo Q. As leituras são registradas
visualizando-se a partir do eixo P. Os resultados são:
a) no plano vertical “av”, o desalinhamento vertical é expresso como
av = d – g
2
(sinais de + ou – devem ser considerados)
b) no plano horizontal “ao”, o desalinhamento vertical é expresso como
ao = (c – e) – (f – h )
2
Os sinais de + ou – de “c”, “e”, “f” e “h” devem ser levados em consideração
Alinhamento a frio
Após o alinhamento ter sido medido, posicione cada máquina no grupo de tal
forma que a expansão ou contração térmica traga os eixos para o alinhamento
apropriado durante operações normais.
Os gráficos de alinhamento para cada um dos acoplamentos fornecidos nas
páginas seguintes dão as posições do eixo e a velocidade operacional, a
expansão prevista e desse modo, as posições necessárias para eixos frios.
Além disso, eles mostram os valores a serem lidos nos indicadores para obter a
posição do eixo exigida.
Os valores de deslocamento do eixo foram calculados pressupondo-se a
temperatura ambiente e uma temperatura de suporte média, como indicado nos
gráficos. Se as temperaturas forem muito diferentes das indicadas, o operador
deve calcular os valores reais de deslocamento.
10
Exemplo: o novo valor de deslocamento de um suporte L é expressado em
termos do antigo valor L multiplicado pela proporção
T1
F
Onde
T = temperatura de suporte estimada menos a temperatura
ambiente estimada
T1 = temperatura de suporte medida menos a temperatura
ambiente medida
Como esses valores não são perfeitamente precisos, entretanto, sugere-se que
uma verificação seja feita enquanto a máquina está em velocidade operacional
normal.
Para o correto posicionamento da máquina, primeiro corrija o alinhamento axial
no plano vertical, ajustando a altura dos calços colocados sob a chapa do
mancal do compressor.
No caso da Figura 5.10, a correção do calço sob o suporte externo do eixo é
expresso pela fórmula
S = av x L
Ø
Se a correção a ser feita for bastante significativa (vários décimos de um mm,
por exemplo), é melhor ajustar os calços entre as as placas grauteadas e a
placa-base.
11
Figura 5.10
Para corrigir o alinhamento radial “rv”, o compressor deve estar levantado ou
abaixado (sem modificar sua posição angular), inserindo ou removendo um
calço abaixo de cada placa de suporte de altura “rv”.
Para corrigir desalinhamento axial e radial no plano horizontal, apenas
movimente o compressor horizontalmente por meio dos parafusos de ajuste nos
pés do compressor. Para determinar a quantidade de desalinhamento, siga as
mesmas regras da correção de desalinhamento vertical.
Conexão de Tubulação e Encaixe (Cavilhamento)
Após o alinhamento ter sido concluído, você pode começar a conectar a
tubulação.
Os indicadores dial devem ser instalados em pontos convenientes na fundação
ou em uma estrutura não incorporada à máquina.
12
Os botões do indicador devem ser colocados em contato com a máquina para
detectar qualquer desalinhamento da tubulação que possa causar
desalinhamento do acoplamento.
Após um período inicial de operação em velocidade normal, verifique novamente
o alinhamento e cavilhe as máquinas.
As cavilhas de referência estão localizadas nas placas onde as chavetas
mantêm as máquinas alinhadas longitudinal e transversalmente, mesmo que
haja forte empuxo causado pela tubulação de gás e deformação devida à
expansão térmica.
As chavetas colocadas entre os pés do compressor e as placas de suporte
posicionam as máquinas longitudinalmente, enquanto que as chavetas
colocadas ao longo do eixo vertical do compressor, posicionam as máquinas
transversalmente.
5.4.Acoplamento
As máquinas que compõem o grupo compressor são acopladas com uniões
dentadas ou de diafragma (ver Figura 5.11), que podem ser presas aos eixos
por meio de uma ou duas chavetas
Figura 5.11
13
ou, o que é mais comum, forçadas a frio na extremidade cônica do eixo com um
dispositivo hidráulico fornecido com a máquina, ou por aquecimento das metades da
união em fornos elétricos.
Assegure-se, quando posicionar as máquinas, que a distância entre as metades da
união seja a indicada, e que o espaçador tenha o jogo exigido no desenho.
6 - Teste
ÍNDICE ÍTEM
Testes Mecânicos 6.1
Testes Termodinâmicos 6.2
1
6. TESTES DE DESEMPENHO EM COMPRESSORES CENTRÍFUGOS
Dois tipos de testes são conduzidos em compressores centrífugos: testes
mecânicos e testes termodinâmicos.
6.1.TESTES MECÂNICOS
6.1.1. TESTES DE FÁBRICA
Um dos tópicos a serem examinados durante o chamado teste de desempenho
mecânico (“mechanical running test”) refere-se às características de seu desempenho
vibratório. Realizado nas instalações do fabricante, como parte do procedimento de
aquisição de um compressor, este teste poderá redundar na sua aceitação ou rejeição
por parte do cliente.
Estes podem ser de vários tipos e complexidades, dependendo das informações
que se deseja obter.
As condições de teste devem ser as mais próximas possíveis das condições
contratuais reais.
Durante este teste, as medições de vibração do eixo são feitas em várias
velocidades, próximo aos mancais.
Também durante os testes, o item de maior interesse é a localização da(s)
velocidade(s) crítica(s) lateral(is), o que pode ser feito através do registro das amplitudes
durante a aceleração ou desaceleração do compressor, como indica a figura 4.1. Por um
efeito de histerese, as indicações produzidas nestas duas condições costumam ser
ligeiramente diferentes.
Figura 4.1
Em geral, um teste operacional à velocidade máxima contínua é conduzido
(100% de velocidade de projeto para unidades acionadas a motor, 105% para unidades
acionadas por turbina a gás ou a vapor); de acordo com as normas API, este teste é
2
concluído em 4 horas. O objetivo é constatar que a segunda freqüência crítica se
encontra fora da faixa de trabalho do compressor.
Um teste de excesso de velocidade é realizado atingindo-se o set-point de
parada por excesso de velocidade da turbina, para verificar a segurança do compressor
no caso de falha de controle da turbina. Neste caso, a velocidade pode atingir 10% sobre
a máxima velocidade contínua, ponto onde o corte por excesso de velocidade desliga a
máquina.
Os níveis de vibração em rotação normal devem ser também verificados, sendo
permissível, de acordo com a norma API 617, um limite de amplitude de deslocamento
pico a pico medido no eixo próximo aos mancais da ordem de 0,05 mm ou calculado por
rpm
mmA
5,7
)( =
devendo-se adotar o menor. É recomendável também que a amplitude observada
durante a passagem pela primeira freqüência crítica não exceda a oito vezes este valor.
Sabe-se que o acoplamento possui uma notável influência sobre tudo na
segunda velocidade crítica; por esta razão, é aconselhável realizar os testes com o
acoplamento de serviço. Se um acoplamento diferente for usado, deve-se ter cuidado
para garantir que o balanço ou “overhang” (considerar peso e dimensões axiais) seja o
mesmo. Particularmente, são necessários o mesmo peso e posição do centro de
gravidade da luva, a mesma distância entres dentes e mancal, o mesmo peso e
flexibilidade do acoplamento de serviço. A conexão entre o eixo do compressor e o
acoplamento (realizada por meio de dentes correspondentes) é considerada como uma
articulação: na verdade, o momento de curvatura não é transmitido ao eixo do
compressor. Particularmente, o peso do espaçador é considerado dividido em duas
forças idênticas atuando nos dentes das duas extremidades.
Além disso, o acionador de teste deve ser, sempre que possível, o do projeto. Na
verdade o grupo acionador-acoplamento-compressor é um todo, cuja interação das
partes componentes não é fácil de ser reproduzida. Em geral, entretanto, são usados os
acionadores das instalações de teste; apenas com máquinas particularmente críticas os
testes são conduzidos usando-se o acionador do projeto.
Em geral, isto é o que concerne a resposta elástica do compressor. Deve-se
levar em conta também os mancais e as selagens, já que as velocidades críticas são
muito influenciadas por estes (tipo de mancais e selagens, suas folgas, viscosidade do
óleo, etc.). Já foi visto também, quando considerando a velocidade crítica lateral e
problemas de instabilidade, que o tipo de mancal e selagem tem uma importância
fundamental na redução das forças desestabilizadoras que atuam no sistema rotor-
suporte.
É útil lembrar que o caso em que ocorrem vibrações assíncronas em velocidades
que sejam múltiplas da velocidade de rotação, indica desalinhamento, falha do mancal,
ou outras causas deste tipo. Vibrações assíncronas em velocidades mais baixas do que
a velocidade de rotação devem ser atribuídas à instabilidade do filme de óleo nos
mancais ou nas selagens.
O óleo utilizado no teste deve ter a mesma viscosidade que o óleo usado na
planta; isto pode ser feito ajustando-se a temperatura do óleo para obter a viscosidade
necessária na entrada do mancal.
3
Para poder reproduzir as mesmas condições operacionais nas selagens de alta
pressão, dever-se fazer o óleo ou o gás circular em circuito fechado de alta pressão, o
que é complicado e oneroso.
Durante os testes, a temperatura e a pressão do óleo são medidas na entrada e
a temperatura na descarga do mancal. Normalmente, a temperatura do mancal é medida
(termo-elemento inserido no metal patente das pastilhas). As medições nas vazões de
óleo lubrificante e de selagem não são feitas com freqüência.
A medição de vibrações pode ser feita tanto no eixo quanto na carcaça.
As medições na carcaça são feitas próximas às posições do mancal nos planos
vertical, horizontal e axial.
As vibrações no eixo são medidas em várias posições, com sondas a 90o, de
modo que no osciloscópio, é possível ver as órbitas dos pontos do eixo correspondentes
à seção específica. Filtros ou analisadores de tempo real são usados para analisar as
várias componentes de vibração, em freqüência e amplitude.
Também é interessante ver as variações de fase, isto é, ver como a amplitude da
vibração se movimenta com relação a um ponto fixo no eixo, em várias velocidades de
rotação (o ponto fixo no eixo pode ser obtido tendo uma marca de referência monitorada
por uma célula fotoelétrica ou “key-phasor”). Pela observação da fase, é possível achar
entre quais velocidades críticas o ponto operacional existe, já que ao passar em uma
destas, existe uma mudança de fase nas vibrações. Por exemplo, antes da primeira
velocidade crítica, o desbalanceamento e as vibrações estão em fase; além da primeira
velocidade crítica, eles estão em oposição de fase. Na verdade, essas mudanças de fase
nunca são instantâneas mas são distribuídas em uma faixa de velocidade.
Durante as medições de vibração, é necessário levar em conta os “run-outs”
elétricos e mecânicos. O “run-out” elétrico é um fenômeno devido ao fato que, durante as
operações de forja, campos magnéticos são criados e, subseqüentemente, perturbam as
medições. É necessário evitar essas dificuldades antes dos testes, desmagnetizando o
rotor. O “run-out” mecânico é devido a excentricidades e ovalização inevitáveis das
peças mecânicas, pode ser medido por meio de outros instrumentos.
No passado, se limitava a amplitude da vibração exclusivamente; agora se
verifica também a velocidade da vibração ou a aceleração da vibração (energia da
vibração). A velocidade da vibração é proporcional ao produto da amplitude pela
freqüência e à energia dissipada: esta é razão porque é uma importante referência para
a avaliação de vibrações.
Em geral, os valores de vibração aceitáveis na carcaça, são metade daquelas no
eixo. Para dar uma idéia da ordem dessas amplitudes, para um eixo operando a cerca de
5000 RPM, a amplitude de vibração aceitável é até cerca de 40 microns. Para a carcaça,
os limites de velocidade de vibração são aceitáveis na ordem de 10 – 20 mm/ seg.
É oportuno mencionar que as características do comportamento vibratório
obtidas durante o teste de fábrica poderão ser um pouco diferentes das que serão
observadas no campo, devido a fatores como mudanças da natureza do gás e esforços
na compressão, uso de acoplamentos e fundações diferentes, etc.
6.1.2. MONITORAÇÃO E ACOMPANHAMENTO DE VIBRAÇÕES DURANTE A
OPERAÇÃO
O primeiro sintoma de ocorrência de problemas mecânicos em máquinas
costuma se a alteração de seu comportamento vibratório. Embora existam alguns tipos
de defeitos que se manifestem subitamente, danificando a máquina quase no mesmo
4
instante, o que se vê na maioria das vezes é o aparecimento de alguma anormalidade
sem graves conseqüências imediatas, seguida de uma deterioração progressiva que irá
finalmente, caso não percebida e corrigida a tempo, levar à falha.
A monitoração contínua de vibração (será abordada em outro capítulo), fornecida
com a máquina e suas proteções, é útil na proteção quanto a falhas súbitas ou evitar-se
uma falha maior (catastrófica), mas pouco contribuem na avaliação das causas do
problema.
Com o avanço da eletrônica e da informática, surgiram as técnicas
computacionais de análise e até diagnóstico de vibrações, revolucionando a prática da
manutenção. São empregados, de acordo com o caráter preditivo da manutenção
moderna, na observação sistemática e regular do comportamento vibratório das
máquinas, para detectar as perspectivas de ocorrência de falhas, efetuar o diagnóstico
das causas e definir a ação corretiva.
As mais importantes técnicas de análise consistem no levantamento da órbita do
eixo e na elaboração do espectro de freqüências x amplitudes de vibração.
A órbita ou movimento desenvolvido pelo centro do eixo no interior do mancal,
pode ser reproduzida na tela de um osciloscópio pela composição dos sinais
provenientes de dois sensores de vibração a 90º instalados no mesmo ponto. As
imagens assim produzidas, denominadas “curvas de Lissajou” permitem a análise de
aspectos da vibração. Um exemplo típico é mostrado na figura 4.2.
Figura 4.2
O espectro de freqüência é um registro gráfico das amplitudes de vibração
referente às freqüências presentes em um determinado sinal, tal como é mostrado
esquematicamente na figura 4.3.
5
Figura 4.3
A melhor maneira de se obter o espectro de freqüências consiste no uso de um
analisador instantâneo de vibrações (“Real Time Analiser”). Este eqipamento funciona
em tempo real, recebendo o sinal e gerando simultaneamente o espectro na tela. A
imagem é dinâmica, sofrendo perturbações a medida em que é alterado o
comportamento dinâmico do rotor (permite gravar o espectro num determinado instante,
fazer gráficos em cascata – com espectros gravadas em intervalos regulares,
usualmente em partidas ou paradas da máquina, etc). A comparação dos espectros de
freqüência obtidos com uma periodicidade regular permite constatar a evolução de
defeitos ou desajustes, cuja natureza é indicada pelas freqüências que são afetadas.
6.2.TESTES TERMODINÂMICOS
Quando um compressor centrífugo é adquirido, o fabricante se compromete a
fornecer as respectivas curvas de desempenho, baseadas nas condições previstas de
funcionamento. Estas curvas são elaboradas por composição analítica a partir das
características individuais de cada estágio, obtidas a partir de ensaios de protótipos e
catalogadas como dados de projetos para várias famílias de impelidores. Possuem
precisão satisfatória para que se possa prever a operação do compressor, mas não há
garantia formal disto. A praxe contratual, estabelecida com base na norma API, prevê a
obrigatoriedade de garantia, por parte do fabricante, apenas com relação à possibilidade
de operar nas condições e alternativas especificadas na requisição de compra do
compressor. Ainda assim, a rotação indicada nas curvas para cada uma destas
situações não precisa se confirmar na prática, e há tolerância de mais ou menos 4%
quanto à potência consumida.
A execução do teste de performance com o objetivo de estabelecer as curvas de
desempenho por via experimental se mostra conveniente não só por permitir uma
avaliação mais precisa da potencialidade da máquina, sua flexibilidade operacional e
limites aerodinâmicos, mas também por instituir um padrão de funcionamento inicial, sua
performance original ao início do uso (assinatura).
6
Existem duas possibilidades quanto ao local de teste, que acabam por influir
bastante em sua metodologia. O teste pode ser realizado na fábrica, utilizando uma
bancada mantida pelo fabricante para tal, ou no campo, após a instalação. Cada opção
tem prós e contras. O teste de fábrica tem as seguintes vantagens:
− Possibilidade de corrigir imediatamente eventuais deficiências de projeto;
− Disponibilidade de condições e equipamentos apropriado são teste,
conforme prescrição das normas.
O teste de fábrica é, no entanto, menos favorável nos seguintes aspectos:
− Impossibilidade de reproduzir exatamente alguns parâmetros (pressões,
temperaturas, composição do gás, potência, rotação, etc) referentes á
operação normal do sistema, obrigando a adoção de condições equivalente
e critérios de similaridade,
− Custo elevado do fabricante para executar os testes.
Poderíamos concluir dizendo que o teste de fábrica é indispensável e o de campo
altamente desejável.
Não é apenas na aquisição de um novo compressor que devemos realizar o
teste de performance. Ele pode ser também necessário quando desejamos executar
grandes modificações nas condições operacionais do sistema, nas aferições do sistema
de controle ou mesmo para avaliação periódica da deterioração do desempenho
termodinâmico da máquina (acompanhamento preditivo). Nestes casos, por tratar-se de
um compressor já instalado, obviamente o teste será no campo.
6.2.1. TESTE DE FÁBRICA
A execução de um teste na fábrica é planejada e comandada pelo fabricante,
normalmente com testemunho e aprovação do cliente.
O planejamento deve incluir uma descrição das instalações e da instrumentação
existente , os procedimentos previstos e as formas de apresentação dos resultados.
Todas as equações utilizadas na interpretação dos dados devem ser listadas e
justificadas, caso envolvam simplificações ou conceitos que não sejam de uso corrente.A
maioria dos fabricantes está preparada para realizar testes de performance baseados em
normas editadas por entidades oficiais. No Brasil a mais aceita e a norma ASME PTC-
10, que estabelece preceitos sobre os mais variados aspectos do teste, tais como:
− “lay-out” da instalação;
− tipo, quantidade, posicionamento e calibração da instrumentação;
− regras pra o caso de se adotar no teste condições diferentes das utilizadas
na operação do compressor;
− métodos para computação dos resultados.
O aspecto mais característico da norma ASME PTC-10 é o estabelecimento de 2
tipos de teste, para os quais são indicados metodologias e tolerâncias diversas. O tipo I
pressupõe a realização do teste em condições exatamente coincidentes com aquelas
para as quais o compressor foi especificado.O tipo II trata do teste em que não há esta
coincidência, sendo adotadas regras de equivalência.
Existem diversas circunstâncias que podem impedir a total reprodução das
condições de operação durante um teste realizado na fábrica, tais como:
− dificuldade na obtenção ou manuseio do gás de projeto (gás natural com
peso molecular específico, no nosso caso);
− impossibilidade de fornecer potência (compressores acionados por motores
7
elétricos, por ex.) e rotação requeridas pelo compressor nas condições de
projeto.
Como os compressores centrífugos comprimem muitos gases diferentes (ar,
metano, propano, misturas de hidrocarboneto, amônia, oxigênio, dióxido de carbono,
etc.), é normalmente difícil e oneroso conduzir testes com o gás operacional em um
circuito fechado. Por esta razão, o ar em circuito aberto é normalmente usado para
testes (mais barato e mais prático) ou até um número limitado de gases em circuito
fechado pode ser empregado, como veremos posteriormente.
Uma vez que gases diferentes do de processo podem ser usados, surge a
necessidade de se conduzir um teste bem embasado, atendento aos requisitos da norma
ASME PTC-10. Para obter isto, os seguintes critérios de similitude devem ser atendidos:
Ter triângulos de velocidade semelhantes e, portanto, a mesma proporção
entre módulos de cada velocidade semelhante e ângulos iguais entre os vetores de
velocidade, quando comprimindo diferentes gases, desse modo resultando em curvas
características semelhantes em Head x vazão.
Ter a mesma razão de volumes específicos do gás entre a entrada e saída
do compressor durante o teste que a de projeto (operação normal), dentro de um limite
de tolerância de ± 5%. Na verdade, ao passo que para uma bomba a similitude existe
para todos os pontos da curva característica, para os compressores isto nem sempre é
verdadeiro, porque se deve levar em conta a compressibilidade do gás, já que a razão de
velocidades do gás entre a entrada e a saída nem sempre é o mesmo para gases
diferentes.
Por exemplo, fazendo a comparação entre a compressão de ar e de hidrogênio,
encontramos que a razão de compressão do ar será maior que a do hidrogênio (ρar>
ρH2); considerando triângulos de velocidade iguais na entrada, na saída os triângulos
serão diferentes, já que o volume específico de ar na compressão é reduzido mais do
que o do hidrogênio. Portanto, os gases operacionais e de teste devem ter os mesmos
coeficientes entre os volumes específicos na entrada e na saída, já que é necessário que
o fluxo dos dois gases atinjam as pás do impelidor com a mesma incidência e sejam
comprimidas com a mesma eficiência, ou seja:
v2 = constante
v1
Já que ==⎟⎟
⎠
⎞
⎜⎜
⎝
⎛
= ρ
1
2
1
2
11
P
p
v
v
nn
constante
Pode ser deduzido que a condição acima mencionada pode ser substituída por
outra em termos da razão de compressão e da constante politrópica “n”. Particularmente,
se os gases tiverem a mesma constante adiabática “k” e o mesmo “n” (supondo uma
eficiência de compressão politrópica igual), um teste válido pode ser conduzido com o
gás tendo a mesma relação de compressão.
Naturalmente, estas condições devem ser respeitadas mesmo se o gás de teste
for igual ao gás operacional, mas é succionado a uma temperatura diferente. No caso da
8
razão de volumes específicos dos dois gases não ser igual, ele pode ser modificado
variando-se o head e portanto a velocidade do teste.
10.2.3 Testar com, aproximadamente, o mesmo número Reynolds (Re)
Re = V. l = forças inerciais
v forças de atrito
onde: V = velocidade do fluido
l = comprimento de referência que depende da seção do duto
v = viscosidade cinemática
Quanto mais alto for o número de Reynolds, melhor será a eficiência do
compressor e mais alto o Head.
Re é aproximadamente proporcional à pressão de sucção, a potência é
proporcional a vazão mássica e consequentemente, também à pressão de sucção, e
desse modo, Re é proporcional à potência.
Em conclusão, é possível operar à potência mais baixa com Re mais baixo, e
corrigir o Head e a eficiência com o número Reynolds.
A norma ASME prevê essas correções em uma forma aproximadamente
proporcional. Esta é uma solução aproximada já que a influência de Re não é constante
e é maior para valores menores.
È importante mencionar que a norma ASME tem limites de tolerância apertados
para Re de teste, se o Re de projeto for abaixo de 200.000: entre 90% e 105% do valor
de projeto. Já se o Re de projeto for acima de 200.000 as tolerância é ampliada: Re de
teste pode variar 10% a 200% do valor de projeto
1.1..1. Testar com, aproximadamente, o mesmo número de MACH:
Ma = V
a
Onde: V = velocidade média do gás
a = velocidade sônica no gás
Se Ma < 0.8 em qualquer parte do percurso do gás, os testes podem ser
realizados com números Mach bem diferentes (limites de tolerância entre 50% e 105%
do valor de projeto), já que sua influência é desprezível; geralmente este é o caso em
compressores centrífugos.
Se Ma > 0.8, isto é, se a faixa transônica e supersônica for atingida, os testes
devem ser conduzidos com um Ma muito próximo ao do projeto (limite de tolerância de ±
5%), neste caso, entretanto, as condições a serem atendidas são muitas e é difícil
realizar os testes.
Os testes podem ser feitos com gases puros ou com misturas de gases.
Entretanto, em circuito fechado, as misturas de gases podem variar sua composição,
perder suas características e afetar os testes. Por isso é importante manter uma análise
freqüente da composição da mistura ao longo dos testes. Isto leva os testes em circuito
fechado a serem mais dispendiosos, mas em alguns casos é a única forma de se obter
resultados aceitáveis.
= constante
= constante
9
Quando o gás de processo tem um peso molecular maior do que o ar ou baixa T1
(mais compressíveis), os testes devem ser conduzidos em circuito fechado com dióxido
de carbono (CO2) ou gás freon; caso contrário, se o teste fosse feito em circuito fechado
com ar, velocidades mais altas seriam necessárias, levando a temperaturas de descarga
mais altas com o conseqüente risco de dano para o compressor.
Quando o gás de processo tem um peso molecular menor do que o ar ou alta T1
(manos compressíveis), os testes são normalmente conduzidos em similitude (uso de
fatores de correção) com o ar, em circuito aberto, em velocidades mais baixas (o que
pode também ser difícil) ou com misturas de gases em um circuito fechado (nitrogênio
(N2) e hélio (H2), por exemplo).
É melhor evitar testes com ar em um circuito fechado, já que podem ocorrer
misturas explosivas de ar e vapores de óleo.
Gases tóxicos ou inflamáveis nunca são usados para testes, já que exigem
equipamentos caros e uma instalação de teste externa.
Deve-se levar em conta o desvio entre gases reais e gases perfeitos por meio do
fator de compressibilidade “Z” que modifica a fórmula do gás perfeito:
PV = ZRT
Durante os testes termodinâmicos, as seguintes leituras são feitas: pressão,
temperatura e vazão volumétrica na sucção, pressão e temperatura na descarga e
composição do gás de teste.
A temperatura externa da carcaça é medida para avaliar o calor irradiado que é
desprezível em um cálculo de primeira aproximação.
A potência absorvida pelo compressor deve ser medida por meio de um torque-
meter. É possível, também, avaliar a potência por meio do balanço térmico do óleo
lubrificante, do óleo de selagem e do gás, na base de saltos de entalpia. Neste caso, a
potência absorvida é dada pela soma da potência armazenada pelo gás (proporcional ao
fluxo de massa e à salto entálpico entre a sucção e a descarga), pelo óleo (calculada
com base na vazão e no ∆Τ em sua passagem pelas selagens e mancais) e da irradiada
para fora.
A eficiência adiabática ou politrópica é obtida dividindo-se o head adiabático ou
politrópico, calculadas usando as fórmulas termodinâmicas acima, pelo head real, que é
a potência total absorvida pelo compressor por unidade de peso de fluido comprimido.
Quando existirem trocadores de calor intermediários, o melhor método é o de
realizar o teste, estágio por estágio, e em seguida reconstruir o todo.
Ao receber o projeto relativo à execução de um teste de performance no
fabricante, provavelmente constataremos que ele não atende exatamente a tudo que
preceitua a ASME. As diferenças encontradas podem ter como objetivo a agilização do
teste, redução dos custos ou derivam-se mesmo de uma deficiência das instalações
existentes. Estas infrações à norma , além de comuns, são em geral toleráveis, mas o
cliente deve saber identificá-las e analisar suas conseqüências.
6.2.2. TESTE DE CAMPO
Quando se pode prever a realização de um teste no campo, é muito importante
que o projeto da instalação leve em conta essa perspectiva. Essa não é, infelizmente, a
realidade com que nos defrontamos na maior parte das vezes. Problemas de diversos
10
tipos podem então ocorrer, chegando a serem necessárias modificações na instalação
para viabilizar o teste, quase sempre com custo elevado.
O teste no campo é usualmente executado antes da partida inicial ou com o
objetivo de avaliar a deterioração de performance do compressor ao longo do tempo de
operação, durante uma possibilidade de interrupção do funcionamento da planta. Esta
avaliação, se feita periodicamente (acompanhamento preditivo de performance),
permitirá decidir de forma otimizada quando é mais econômico fazer a revisão geral do
compressor (manutenção “on condition”) fruto da comparação do benefício (potencial
ganho de performance pós revisão) x custo da revisão.
Pressões, temperaturas, vazão, composição do gás e rotação são grandezas a
serem obtidas diretamente no teste de performance. O head efetivamente fornecido ao
gás e mais alguns outros parâmetros relacionados à composição do gás (expoente
adiabático, constante do gás, calor específico à pressão constante) devem ser avaliados
indiretamente, por exemplo, empregando os métodos indicados pelo ASME PTC-I0.
Há alguma dúvida quanto à forma mais adequada para a obtenção do head. O
método termodinâmico consiste em associá-lo à variação de entalpia entre as condições
de entrada e saída do gás, ou seja:
H = h2 –h1
A precisão com que podem ser calculados os valores da entalpia é, no entanto,
duvidosa, especialmente em se tratando da compressão de gases reais e misturas de
gases. Uma outra corrente prefere a medição direta da potência, utilizando
recursos.mecânicos (torquímetros, dinamômetros) ou elétricos (no caso de acionamento
a motor elétrico): Um balanço térmico, no caso de acionamento por turbina a vapor, pode
também ser efetuado. A potência obtida em qualquer desses casos é a de entrada no
eixo do compressor, e o head pode ser calculado então por:
H = WC - WL
M
onde:
H = head real
WC = potência medida no teste
WL = potência dissipada nos mancais
M = vazão mássica aspirada
A dissipação de potência nos mancais pode ser avaliada pelo aquecimento do óleo
lubrificante. Alguns autores recomendam que os vazamentos através da selagem
externa do compressor sejam subtraídos da vazão mássica aspirada, no sentido de obter
um valor mais realista para o "head". Não achamos esse procedimento conveniente
porque ao proceder de maneira inversa, isto é, determinar a potência consumida a partir
dos dados de operação, o usuário teria que estimar o vazamento para incluí-lo nos
cálculos. Adotando a fórmula anterior o efeito dos vazamentos fica incorporado ao
rendimento termodinâmico, causando pequena redução do seu valor.
Antes de realizar um teste é preciso tomar precauções para eliminar todas as
possíveis causas de erros de medições. Devemos tentar, na medida do possível,
trabalhar com a instrumentação existente, mas não a ponto de comprometer a validade
do teste. Muitas vezes, modificações se fazem necessárias. Os principais aspectos a
serem observados são os seguintes:
11
- Os medidores de pressão, temperatura e vazão devem se situar em trechos
retos de tubulação, de comprimento mínimo equivalente a dez diâmetros.
- A utilização de pelo menos dois medidores de pressão e dois de temperatura
por seção, em posições diametralmente opostas, é recomendável para permitir a
verificação de eventuais estratificações do fluxo.
- Os medidores de pressão e temperatura devem ser selecionados de modo a
trabalharem próximos ao meio da escala e devem sofrer calibração no local,
imediatamente antes do teste.
- A amostragem do gás para fins de análise de composição requer o maior
cuidado, especialmente se houver componentes saturados, passíveis de condensação à
temperatura ambiente. É recomendável fazer uma extração na sucção e outra na
descarga, para fms de
comparação.
No momento de passar à computação dos resultados é preciso decidir acerca de
como considerar o comportamento do gás. Três são as alternativas mais indicadas:
-Adotar a hipótese de gás perfeito.
-Adotar as fórmulas desenvolvidas para gases perfeitos, aplicando correções
práticas baseadas no conceito de fator de compressibililidade.
-Adotar fórmulas desenvolvidas para gases reais, com uso de recursos
computacionais.
Seja qual for o procedimento adotado, é preciso que ele seja claramente referido
na apresentação dos resultados, para que o usuário das curvas características possa
efetuar os seus cálculos nas mesmas bases.
7.1- Sistema de Óleo Lubrificante
ÍNDICE ÍTEM
Generalidades 7.1.1
Componentes Principais 7.1.2
Detalhamento dos componentes principais 7.1.3
Observações operacionais 7.1.4
Procedimentos de limpeza de permutador 7.1.5
Substituição de elementos filtrantes 7.1.6
Sistema de óleo lubrificante (emergência) 7.1.7
Bomba de emergência 7.1.8
Linhas de óleo lubrificante 7.1.9
Pressão de óleo lubrificante nos mancais 7.1.10
Válvula de controle de pressão 7.1.11
Instrumentação 7.1.12
1
7.1 SISTEMA DE ÓLEO LUBRIFICANTE
7.1.1 GENERALIDADES
O óleo lubrificante tem como finalidades prover a elevação do conjunto rotor, pela
formação de um filme de óleo entre o eixo e o mancal, e também refrigerar (trocar
calor) as partes constituintes dos mancais, mantendo-os a uma determinada
temperatura (longe do ponto de fusão).
O óleo lubrificante deve ser resfriado para manter uma boa viscosidade; portanto,
é fornecido um sistema de resfriamento.
A viscosidade do óleo é um parâmetro muito importante que, juntamente com as
características geométricas dos mancais, influencia consideravelmente o
comportamento dinâmico do rotor e em conseqüência, as vibrações: um
lubrificante pode ter força suficiente de amortecimento para permitir a operação
em velocidades quase críticas.
Baixa viscosidade devida a altas temperaturas de mancal iria comprometer a
operação e torná-la insegura: se o peso do rotor não é suportado por elevação
suficiente, o filme de óleo pode se romper e fazer com que as superfícies do eixo
e do mancal trabalhem em contato, desse modo aumentando as temperaturas e
o risco de queima do metal branco do mancal.
Importante registrar que o fluxo de óleo deve ser suficiente para dissipação do
calor gerado pelos mancais. Daí ser necessário que a temperatura do mancal seja
sempre mantida sob controle: ela é regulada pela variação da pressão do óleo de
entrada com a válvula de controle de pressão (PCV).
Além disso, a temperatura do óleo drenado deve ser mantida sob controle para
verificar se a troca de calor entre o mancal e o óleo está correta.
7.1.2 COMPONENTES PRINCIPAIS
I. Tanque de Óleo
II. Bombas de Óleo
III. Trocadores de Calor
IV. Filtros
V. Válvula de Controle de Pressão (PCV)
7.1.3 DETALHAMENTO DOS COMPONENTES PRINCIPAIS
7.1. Tanque de Óleo
Geralmente o tanque é equipado com um aquecedor elétrico (resistências)
que permitem dar ao óleo a viscosidade adequada para a partida.
Ele possui capacidade suficiente para garantir tanto um bom tempo de
retenção (alimentando as bombas de óleo mesmo sem o óleo retornar ao
tanque e se perdendo no sistema) quanto um determinado tempo em um
receptor para evitar formação de espuma.
2
Em alguns casos, o gás pode entrar no tanque, o que pode formar
misturas explosivas em contato com vapores de óleo; um leve fluxo de
gás inerte (N2) é aplicado à superfície de óleo para prevenir esta
ocorrência.
Compressores centrífugos acionados por turbinas a vapor possuem um
separador (centrífugo) que tira o óleo do fundo do tanque e o centrifuga,
para separar a água formada por vazamentos de vapor da turbina de força
motriz, condensando e sendo reciclada para o tanque.
Normalmente, o separador é dimensionado para processar todo o óleo do
tanque em um só dia. Ele pode ser projetado também para separar lama e
sujeira; estes são chamados de centrífugas de clarificação.
A capacidade “volume” varia de acordo com projeto.
A Lista dos Instrumentos contém os instrumentos de controle e segurança
fornecidos pelo fabricante.
O reservatório é provido das conexões necessárias para encher, drenar,
purgar e inspecionar.
Existem reservatórios que possuem aquecedor elétrico.
7.2. Bombas
O óleo é retirado do tanque e enviado para o sistema por uma série de
bombas.
Podem ser usadas bombas de deslocamento positivo ou bombas
centrífugas; vamos examinar brevemente a diferença entre esses dois
tipos de bombas.
Uma bomba de deslocamento positivo fornece mais ou menos a mesma
vazão de óleo em pressões variadas, dependendo da resistência do
sistema à pressão. Sua curva característica é a mostrada na Figura 7.2.
O ponto operacional é aquele em que a curva característica e a curva de
resistência do sistema (A neste caso) se cruzam.
3
Figura 7.2
Teoricamente, a curva característica de uma bomba de deslocamento
positivo é paralela ao eixo Y, mas na prática a vazão diminui
gradualmente em uma elevação na pressão, porque vazamentos internos
(vazamentos de fluido em direção à sucção) aumentam com a pressão.
O único modo de modificar o ponto operacional é alterar a curva de
resistência do sistema, já que em geral, estas bombas são de velocidade
definida. Ele pode ser facilmente modificado, acrescentando-se uma
válvula de desvio à parte direta do óleo de volta para o tanque. Variando a
abertura da válvula é possível mover o ponto operacional ao longo da
curva característica; por exemplo, a curva A representa a resistência do
sistema com a válvula de desvio parcialmente aberta e a curva C
representa a resistência do sistema com a válvula de desvio mais fechada
e B com a válvula totalmente aberta.
Normalmente esta válvula se abre automaticamente, operada pela
pressão do óleo que deve ser mantida constante (ver Figura 7.3).
Curva característica
Curvas de resistência do circuito
Ponto operacional
4
Figura 7.3
Normalmente utiliza-se bomba auto-escorvante.
O sistema do óleo lubrificante inclui uma bomba de óleo principal e uma
bomba auxiliar normalmente do tipo submersa.
As bombas são adequadas para uma operação contínua e podem ter
capacidades iguais.
A bomba principal está conectada mecanicamente ao eixo do redutor.
A linha de aspiração da bomba principal é munida de um filtro e de uma
válvula de escorva.
A linha de descarga de cada bomba mecânica é munida de uma válvula de
alívio, de uma válvula de retenção e de uma válvula de bloqueio.
A bomba auxiliar é munida de um dispositivo automático de controle da
partida.
A linha de descarga da bomba auxiliar é provida de uma válvula de
retenção e de uma válvula de bloqueio.
Obs: Quando a bomba de corrente alternada e a de corrente são instaladas
no mesmo eixo, conforme nas máquinas da P-20 / P-08, existe um sistema
de inter-travamento como medida de segurança.
Durante a instalação de bombas e tubulações assegurar-se de que os
valores de desalinhamento radial (paralelo) e axial (angular) não
ultrapassem os valores fornecidos pelo fabricante.
7.3. Trocador de Calor
Como já mencionado, o óleo deve ser resfriado para manter uma boa
viscosidade. Portanto é fornecido um sistema de resfriamento,
compreendendo dois trocadores de água ou ar em paralelo, que são feitos
para operar alternadamente por válvulas de três vias.
A temperatura do óleo é controlada regulando-se a vazão do líquido
refrigerante.
7.4. Filtros
O óleo limpo deve ser mantido circulando para ótima lubrificação dos
mancais e vedações e para prevenir o desgaste; assim, existem dois filtros
funcionando alternadamente em paralelo.
Os filtros são componentes de sistema críticos que devem ser mantidos
sob controle com um manômetro de pressão diferencial.
Quando existe muita perda de pressão devido a filtros sujos, eles devem
ser substituídos ou podem se quebrar.
Quando existem filtros duplos e resfriadores duplos, é necessário que o
fluxo seja comutado de modo uniforme nas válvulas de três vias, de modo
que não pare na metade do caminho, fazendo com que a pressão se eleve
à montante (e, portanto fazendo com que as válvulas de alívio se abram) e
5
causando uma interrupção no fluxo (resultando em um desligamento de
pressão mínima).
A jusante dos permutadores está presente dois filtros de óleo iguais,
ligados em paralelo e munido de uma válvula de transferência de fluxo
contínuo. A válvula de transferência está instalada entre os filtros para
encaminhar o óleo através de cada filtro para os mancais das máquinas.
Este dispositivo permite pôr fora de serviço um dos filtros para inspeções
ou para manutenção sem interromper o fluxo do óleo para as máquinas.
Os filtros possuem elementos filtrantes do tipo cartucho substituível.
Os cartuchos devem ser substituídos sempre que a queda de pressão no
filtro, medida pôr um indicador de pressão diferencial, se aproxima do valor
nominal indicado na "Lista dos Instrumentos".
Uma linha de compensação do fluxo, munida de orifício de restrição,
conecta os dois filtros para permitir o enchimento do filtro de reserva e
facilitar o funcionamento da válvula de transferência.
Nunca abrir a válvula de dreno e de vent do filtro em serviço, pois poderá
ocorrer parada da máquina pôr pressão baixa óleo lubrificante e / ou
acidente
7.5. Válvula de controle (PCV)
Depois dos filtros, existe uma válvula de controle de pressão auto-acionada
(PCV) que mantém constante a pressão do óleo para os mancais, entre 1.5
e 2.5 kg/cm2
.
Cada linha de óleo para os mancais é equipada com um orifício calibrado e
uma derivação ou tomada de pressão para regular a pressão para os
mancais individuais.
O óleo deve poder ser facilmente drenado sem espuma ou evaporação que
dificultaria a lubrificação. Portanto, ele é drenado por gravidade para o
tanque através de tubulação inclinada devidamente dimensionada; a
entrada é distante da sucção da bomba.
Suspiros são instalados para prevenir sobre-pressão que poderia impedir o
defluxo regular do óleo.
7.1.4 OBSERVAÇÕES OPERACIONAIS
7.1. O óleo é resfriado, filtrado e disponibilizado no header principal a uma
temperatura e pressão para cada projeto específico;
7.2. A pressão no sistema do óleo lubrificante é controlada pôr meio de uma
válvula controladora de pressão;
7.3. Os desenhos simplificados nas páginas seguintes mostram os
componentes principais do sistema de óleo lubrificante.
6
7.4. O óleo é resfriado por dois permutadores do tipo "placa" água / óleo, um
como reserva do outro.
7.5. Cada permutador é projetado para resfriar a quantidade total de óleo
necessária à instalação. Eles são munidos de tubos ligados em paralelo.
Uma válvula de transferência de fluxo contínuo está instalada entre os
permutadores para encaminhar o óleo através de cada um deles e para o
cabeçote do óleo.
7.6. Este dispositivo permite pôr fora de serviço um dos permutadores para
inspeções ou para manutenção sem interromper o fluxo do óleo para as
máquinas.
7.7. Uma linha de compensação do fluxo, munida de ofício de restrição, conecta
os dois permutadores para permitir o enchimento daquele que estiver de
reserva e facilitar o funcionamento da válvula de transferência.
7.8. Os permutadores são providos de uma linha de derivação com válvula
automática (TV)controlada por um dispositivo de controle da temperatura
(TIC), o qual mede a temperatura no cabeçote principal do óleo a jusante
dos resfriadores. Isso permite uma conexão direta das tubulações de
entrada e saída do óleo dos resfriadores até que a temperatura a jusante
atinja o valor nominal.
7.9. Ar no circuito diminui a eficiência e com isto ocorre o aumento de
temperatura.
7.10. Deve−se ter cuidado com o diâmetro e concentricidade das juntas, em
relação aos flanges nas tubulações, pois caso não seja observado pode
ocorrer restrição do fluxo e aumento de temperatura do fluido.
7
7.1.5 O procedimento para a limpeza do permutador (elemento refrigerante) e
o seu sucessivo enchimento, enquanto o sistema do óleo estiver
funcionando, inclui os passos seguintes:
i. Abrir a válvula na linha de enchimento (ou de compensação do fluxo)
que conecta os dois permutadores.
ii. Purgar o ar do permutador que entrará em funcionamento, através da
válvula de purga, e quando o fluxo estiver constante e sem ar fechar a
válvula.
iii. Ativar a válvula de transferência (ou válvulas) para pôr em
funcionamento o permutador de reserva.
iv. Fechar a válvula presente na linha de enchimento, abrir a válvula de
drenagem e purgar permutador que agora ficará de reserva para
manutenção.
v. A fim de manter o permutador limpo e disponível para o uso imediato,
após a manutenção, abrir a válvula na linha de enchimento e fechar a
válvula de ventilação logo que o óleo fluir sem ar.
vi. Uma vez que o permutador de reserva tenha sido inspecionado como
descrito acima, a linha de compensação do fluxo mantém um fluxo
continuo através do permutador que está de reserva.
7.1.6 Procedimento para substituição do elemento filtrante;
7.1. Filtro que se quer colocar para operar (standby).
i. Assegurar se através de indicador de pressão e contato com a mão
na carcaça do filtro “temperatura”, qual filtro não está operando
ii. Verificar se a válvula de equalização para interligar os dois filtros
esteja fechada.
iii. Abrir lentamente a válvula de drenagem do filtro para certificar se
não está pressurizado. Caso esteja poderá ser a válvula de três vias
e/ou de equalização dando passagem. Portanto, esta operação é
feita apenas para certificar se não existe passagem de uma carcaça
para outra indevidamente (ótima oportunidade de se detectar alguma
anormalidade e/ou evitar acidentes durante a manobra de troca de
filtro).
Observações:
Caso não exista retorno para o tanque do óleo a ser drenado,
durante a substituição do elemento filtrante, deve-se usar uma
bandeja para coletar o óleo.
Normalmente quando a carcaça é muito grande e portanto existiria
provavelmente grande quantidade de óleo a ser drenado, o projeto
prevê a drenagem com o retorno de óleo para o tanque.
iv. Fechar e / ou certificar de que a válvula de drenagem do filtro esteja
fechada.
v. Abrir a válvula de vent e / ou purga.
vi. Abrir a válvula de equalização.
8
vii. Deixar sangrar / pressurizar o filtro por um período de tempo que
assegure que ocorreu a sangria e / ou o filtro esteja completamente
cheio / pressurizado.
viii. Fechar a válvula de vent.
ix. Fechar a válvula de equalização.
x. Comutar lentamente de filtro através da válvula de transferência de
três vias.
7.2. Filtro que se quer substituir o elemento filtrante (elemento filtrante
sujo).
i. Após ter feito a comutação, assegurar-se através de indicador de
pressão e contato com a mão na carcaça do filtro “temperatura”, se o
filtro que se quer substituir o elemento filtrante não está mais em
operação.
ii. Verificar se a válvula de equalização para interligar os dois filtros
esteja fechada.
iii. Abrir a válvula de vent e / ou purga e certificar através do visor de
fluxo se não existe fluxo.
iv. Abrir lentamente a válvula de drenagem do filtro para certificar se
não está pressurizado. Caso esteja poderá ser a válvula de três vias
e/ou de equalização dando passagem. Portanto, esta operação é
feita apenas para certificar se não existe passagem de uma carcaça
para outra indevidamente (ótima oportunidade de se detectar alguma
anormalidade e/ou evitar acidentes durante a manobra de troca de
filtro).
9
Observações:
Caso não exista retorno para o tanque do óleo a ser drenado,
durante a substituição do elemento filtrante, deve-se usar uma
bandeja para coletar o óleo.
Normalmente quando a carcaça é muito grande e portanto
existiria provavelmente grande quantidade de óleo a ser drenado o
projeto prevê a drenagem com o retorno de óleo para o tanque.
v. Abrir a tampa superior inspecionar, limpar o filtro e substituir os
cartuchos (o elemento filtrante).
vi. Fechar e/ou certificar de que a válvula de drenagem do filtro esteja
fechada.
vii. Fechar a tampa superior (atentar para o estado da junta).
viii. Abrir lentamente a válvula de equalização.
ix. Deixar sangrar / pressurizar o filtro por um período de tempo que
assegure que ocorreu a sangria e/ou o filtro esteja completamente
cheio / pressurizado.
x. Fechar a válvula de vent e/ou purga.
xi. Fechar a válvula de equalização. Desta formo o filtro onde se
substituiu o elemento filtrante está pronta par entrar em operação a
qualquer momento.
10
11
DESENHO SIMPLIFICADO DO SISTEMA DE ÓLEO LUBRIFICANTE
12
7.1.7 SISTEMA DO ÓLEO LUBRIFICANTE DE EMERGÊNCIA
7.1. TANQUE ELEVADO (RUN DOWN TANK) DE ÓLEO LUBRIFICANTE.
6..1.1. O sistema é integrado por um tanque elevado de óleo lubrificante, para
abastecer o cabeçote dos mancais em caso de parada de emergência
causada por uma avaria das bombas principais e auxiliares.
6..1.2. O tanque é dimensionado para uma capacidade de óleo suficiente para
assegurar a lubrificação dos mancais até a parada completa da unidade (V=
100 Litros).
6..1.3. As bombas aspiram o óleo do tanque principal e envia para dois caminhos
a seguir: RUN-DOWN TANK e mancais dos compressores BCL406A /
2BCL458N / Caixa redutora / Turbina Livre (PT).
6..1.4. A montante do RUN- DOWN TANK, na linha de enchimento, existem dois
caminhos para o óleo percorrer : Um o óleo passa através de um orifício
calibrado e o outro através de uma válvula de controle e desta forma
controla-se o enchimento do tanque.
6..1.5. A montante do RUN- DOWN TANK, existe também, uma válvula de
retenção que permite a passagem do óleo do tanque para lubrificar e esfriar
os mancais dos compressores BCL406A / 2BCL458N / Caixa redutora /
Turbina Livre (PT) em caso de parada de emergência causada pôr uma
avaria das bombas principais e auxiliares. Quando a pressão estática no
tanque elevado excede a pressão presente no cabeçote de abastecimento,
o óleo lubrificante desce até aos mancais através da válvula de retenção.
6..1.6. Inicialmente, o tanque é abastecido de óleo até ao nível operacional,
durante a preparação do sistema do óleo lubrificante. O sistema de controle
do nível permitirá que o nível do tanque seja controlado adequadamente e
além disto existe uma linha de transbordamento para retorno de óleo para o
tanque principal.
6..1.7. Em alguns projetos este sistema provê óleo para os mancais dos
compressores, caixa redutora e turbina livre (PT).
7.1.8 BOMBA DE EMERGÊNCIA (BOMBA DE ESFRIAMENTO)
7.1. Uma bomba de emergência normalmente do tipo submerso é utilizada para
lubrificar os mancais da Turbina Livre (PT), durante a fase de parada de
emergência causada pôr falha das bombas principal / stand-by e / ou por falha
de corrente alternada.
7.2. O acionamento da bomba é feito pôr motor elétrico de corrente continua.
7.3. A bomba é acionada logo após o sinal de parada de emergência
7.4. A linha de sucção da bomba é provida de filtro.
13
7.5. A linha de descarga é provida de permutador duplex e de um filtro duplex de
óleo.
7.6. A bomba de emergência deverá funcionar até que a temperatura de
resfriamento dos mancais sejam alcançadas.
7.1.9 LINHAS DO ÓLEO LUBRIFICANTE
7.1. Após o óleo atingir temperatura necessária através do permutador, grau
adequado de pureza pelos filtros, o óleo é então direcionado através do header
de óleo principal para as tubulações que levam o óleo para os mancais das
máquinas.
7.2. A pressão do óleo no header principal é mantida a uma pressão constante pôr
meio de uma válvula redutora de pressão (PCV).
7.3. Em cada linha do óleo para os mancais radiais e axiais, está presente um
orifício calibrado, conforme o valor da pressão considerado no projeto (O ajuste
final e feito durante a fase de pré−operação).
7.4. Visores de fluxo em vidro e termômetros locais estão instalados nas linhas de
retorno do óleo dos mancais.
7.5. Em cada mancal está instalado termo-elementos para controlar a temperatura
do metal branco.
7.6. As linhas de saída do óleo despejam-se num header principal, da qual o óleo é
encaminhado para o reservatório principal.
7.1.10 PRESSÃO DE ÓLEO LUBRIFICANTE NOS MANCAIS
7.1. A pressão do óleo lubrificante nos mancais é dimensionada pôr meio de
orifícios calibrados presentes em cada linha da tubulação de entrada do óleo nos
mancais. Os valores das pressões são indicados pôr manômetros instalados no
campo e durante a fase de pré-operação deve-se ajustar os valores de cada
placa de orifício.
7.2. Uma pressão de óleo de 1.9 à 2.3 Bar (190 à 230 Kpa g) para os mancais
radiais do compressor centrífugo BCL406A / 2BCL 458N.
7.3. Uma pressão de óleo de 1.3 até 2.3 Bar (130 à 230 kPa) para o mancal axial
do compressor centrífugo 2BCL 458N.
7.4. Uma pressão de óleo de 2.0 Bar abs. (200 kPa abs.) para o mancal axial do
compressor centrífugo BCL 406A.
7.1.11 VÁLVULA DE CONTROLE DA PRESSÃO DO ÓLEO
7.1. Válvula de controle da contrapressão (PCV 315).
14
Esta válvula de controle tem a função de manter a pressão de óleo constante na
descarga das bombas. Está pressão constante de cerca de 9 Bar g (900 kPa g) é
enviada para o atuador da PCV315 que consequentemente resultará, de acordo com
a posição da válvula, numa maior ou menor quantidade de retorno de óleo para o
tanque principal.
7.2. Válvula reguladora do cabeçote do óleo lubrificante (PCV 320).
Esta válvula de controle tem a função de manter a pressão de óleo constante de
cerca de 2.50 Bar g (250kPa g) no header principal de óleo lubrificante.
Regulação da válvula.
A regulação da válvula é efetuada durante a fase de pré-operação com a bomba
do óleo em funcionamento com a válvula de bloqueio, instalada em paralelo,
aberta.
O orifício calibrado, instalado em paralelo, deve ter a medida de acordo com o
especificado pelo fabricante. Pode ser que pequenos ajustes sejam
necessários durante a fase de pré-operação.
Observando o manômetro colocado na linha em que a válvula mantém a pressão
neces-
sária, fechar lentamente a válvula de bloqueio e ao mesmo tempo ajustar a
válvula de
controle de modo a que a pressão necessária no header principal seja atingida
quando a válvula de bloqueio estiver completamente fechada.
7.1.12 INSTRUMENTAÇÃO.
7.1. A instrumentação instalada no sistema de alimentação do óleo (Controladores
de pressão, controladores de temperatura, reguladores, etc.) é idônea para
assegurar um funcionamento correto do sistema e para sinalizar eventuais
maus funcionamentos como partida da bomba auxiliar, parada do
equipamento e similares em caso de avaria.
7.2. Os instrumentos normalmente instalados:
Chave de nível.
Visor de nível.
Termômetro.
Chave de pressão de partida da bomba auxiliar.
Transmissor de pressão diferencial dos filtros de óleo.
Chave de temperatura alta no header principal de alimentação de óleo
para os mancais.
Chave de pressão baixa de alimentação de óleo para os mancais (alarme
e trip)
15
7.3. A lista completa dos instrumentos, fornecidos pela fabricante, com os valores
de ajuste e os seus respectivos TAGs são indicados na "Lista dos
instrumentos".
7.2 Sistemas de Selagem
ÍNDICE ÍTEM
Selagem externa 7.2.1
1
7.2.1. SELAGEM EXTERNA.
1. A selagem externa tem como objetivo impedir o vazamento do gás através
da passagem do eixo pela carcaça.
2. O dispositivo de selagem do lado do bocal de sucção atua sujeito à pressão
e temperatura de sucção do sistema, enquanto do lado da descarga
verifica-se uma pressão ligeiramente superior à de sucção (devido à linha
de balanceamento) e uma temperatura próxima da temperatura de
descarga do compressor. Esses parâmetros, além da natureza do gás
comprimido, definem as características da selagem a ser utilizada.
3. Há quatro tipos de selagem, fundamentalmente, que são:
a. Selo de labirintos
b. S selo de anéis de carvão, Selo de anéis flutuantes ou de líquido
c. Selo mecânico, selo seco.
7.2.1.1. SELO DE LABIRINTOS.
1. A selagem de labirintos, cujo esquema é mostrado na figura 13.22, tem
como principais vantagens à simplicidade e a ausência de contato direto
entre o eixo e o elemento vedante. Sua eficiência é, no entanto, reduzida, e
seu emprego limitado à compressão de ar ou fluidos baratos e inofensivos,
em pressões moderadas (até cerca de 1200 Kpa =12,23 Kgf / cm²).
2. A folga existente entre os labirintos e o eixo deve superar a folga dos
mancais radiais em 0,001 a 0,002 mm por mm de diâmetro. O vazamento
esperado nesse caso é da ordem de 0,5 % da vazão mássica.
2
3. Um aprimoramento dessa forma de selagem é conseguido pela instalação
de uma ou mais câmaras intermediárias aos labirintos através das quais se
faz a injeção de um fluido selante (em geral ar, vapor d’água ou gás inerte)
ou a injeção do vazamento para um local seguro.
4. O sistema com injeção trabalha conforme o esquema da figura 13.23, com
fluido selante sendo mantido a uma pressão de cerca de 0,3 atm superior
à pressão interna. Esse fluido deve ser bem tolerado pelo gás de
operação, ao qual irá se misturar, assim como não deverá ser nocivo ou
perigoso porque uma parte do fluxo injetado irá vazar para a atmosfera.
5. O sistema com injeção funciona de modo semelhante, mantendo-se a
câmara de extração a uma pressão de cerca de 0.05 atm inferior à menor
entre as pressões interna e atmosférica. Para isso, utiliza-se um ejetor
operado com ar ou vapor d’água.
6. Há ainda compressores que utilizam um sistema composto com câmaras
de injeção e extração justapostas.
3
7. Os artifícios que acabamos de mencionar conferem ao selo de labirinto
uma estanqueidade absoluta, mas tem o inconveniente de requerer um
comprimento muito longo do eixo para a sua instalação. Além disso, no
sistema com injeção a vazão necessária do compressor, dos quais estima-
se que ¼ possa se misturar ao gás de operação. O sistema com extração,
por outro lado, acarreta uma perda de cerca de 1 a 2 % da vazão mássica
do compressor.
Se o uso de selagens de labirinto é permitido, estas são aplicadas para
minimizar os vazamentos para fora; neste caso o gás que sai através das
pontas de eixo é cortado por um conjunto de lâminas chamadas de
labirintos.
Estas selagens são feitas de alta liga ou material resistente à corrosão, com
dureza inferior ao eixo, para evitar danificar o mesmo no caso de contatos
acidentais. Podem ser removidos com facilidade. O número de lâminas e o
valor da folga dependem das condições de operação. Se não for permitido
nem um leve vazamento de gás (gases venenosos, explosivos, etc.) as
selagens de labirinto são combinadas com sistemas de extração ou injeção.
As selagens de labirinto são feitas de liga de alumínio com tratamento
térmico (dureza 70-80 Brinell); se o alumínio não for compatível com a
corrosão do gás, são usados aços inoxidáveis com teor de 18% de Cr e 8%
de Ni.
Não existe limitação para usar outros materiais tais como bronze, etc.
7.2.1.2. SELAGEM DE ÓLEO
As selagens de óleo consistem de dois anéis flutuantes (anel de alta pressão no
lado de alta pressão, anel de baixa pressão no lado de baixa pressão)
revestidos com babbit (ver Fig. 4.10) mostrando um desenho típico de um
compressor e equipado com diversos anéis de selagem de baixa pressão.
Figura 4.10
4
O óleo de selagem é introduzido, com uma pressão ligeiramente acima da do
gás, no espaço anular entre os dois anéis e percola para a folga entre os dois
anéis e o eixo.
O óleo que sai do lado de baixa pressão volta para o reservatório e é
recirculado; o óleo do lado de alta pressão é drenado por purgadores
automáticos.
A vazão do óleo para o gás é evitada através de uma grande selagem de
labirinto instalada entre as selagens de óleo e o interior do compressor,
equipada com uma câmara intermediária de balanceamento da pressão.
As selagens de óleo consistem de um anel suporte de aço carbono, revestido
com uma fina camada de metal branco (geralmente HOYT 11 R) ou metal
branco sem cobre, se não for compatível com o gás movimentado (OMNIA).
1
7.2.1.3. SELOS MECANICOS
O selo mecânico consiste principalmente de um anel de carbono, geralmente
estacionário, mantido em contato com um colar de aço girando com o eixo do
compressor. Este contato é garantido pela ação combinada dos elementos
elásticos (molas ou foles) e a distribuição de pressão agindo no anel.
O calor é gerado pelo contato entre o colar e o anel e deve ser extraído por
resfriamento do selo de óleo. A pressão diferencial entre o óleo e o gás deve ser
muito alta (3-5 atm), para lubrificar a folga entre o colar e o anel. Para manter
este ∆p constante, deve ser construída uma câmara de pressão, tornando
necessário ter um selo de baixa pressão entre o óleo pressurizado e a
atmosfera.
Os selos mecânicos não são fabricados diretamente pela Nuovo Pignone, e sim
por outros fabricantes qualificados.
Cada fabricante projeta os selos com características estruturais especiais; por
exemplo, a fig. 4.11 mostra um selo Kopper: como podemos observar, os
elementos elásticos são compostos de molas e o selo de baixa pressão é
composto por um anel flutuante de carbono.
Figura 4.11
1
Os selos mecânicos são aplicados onde à contaminação do gás pelo óleo deve
ser muito limitada; de fato, o vazamento de óleo do anel de alta pressão é cerca
de 5-10 vezes menos que das selagens de óleo convencionais.
Além disso, no caso de parada do compressor por falta de óleo, o selo pode
continuar a isolar o gás com a máquina parada (embora não perfeitamente
dependendo dos arranhões ou desgaste presente nas superfícies de contato
entre o colar e o anel).
O selo mecânico funciona também com injeção de óleo, mas possui um anel de
carvão que trabalha em contato direto com um colar preso ao eixo, conforme
ilustra a figura 13.27.
O contato direto reduz muito o consumo de óleo deste tipo de selagem em
relação ao anterior, sendo essa a sua principal vantagem. Não há, em
conseqüência, necessidade de um rigor excessivo no controle da diferença de
pressão entre o óleo de selagem e o gás, que nesse caso costuma ser ajustada
em até 0,3 atm.
Outro aspecto positivo é a manutenção de uma razoável estanqueidade no caso
de uma queda na pressão do óleo.
O selo mecânico costuma ser especificado para pressões de até 4000 Kpa
(40,78 Kgf/cm2), e sua eficiência é fortemente influenciada pelo acabamento
superficial e paralelismo das superfícies em contato, além da precisão de
montagem. A deterioração das faces do anel de carvão tende a aumentar
paulatinamente o consumo de óleo, indicando a necessidade de reposição.
2
3
7.2.1.4. SELO DE ANÉIS DE CARVÃO.
1. Instalados de modo a possuírem liberdade de movimento radial, os anéis
de carvão são centrados em relação ao eixo pelo próprio vazamento. Em
virtude disso, podem ser montados com folgas inferiores às dos anéis de
labirintos, apresentando, com conseqüência, maior estanqueidade. O
inevitável contato com o eixo faz, no entanto, que esse tipo de selo tenha
de sofrer reposição relativamente freqüente.
2. Os selos de anéis de carvão são também utilizados em combinação com
sistemas de injeção ou extração de câmaras intermediárias.
3. Para efetuar a selagem do eixo contra pressões e temperaturas elevadas,
superiores a 1200 Kpa (12,23 Kgf/cm2) e 180° C, respectivamente, ou
quando o gás comprimido é potencialmente perigoso, é mais conveniente o
uso de selagem líquida. Nesse caso, podemos optar entre os selos de
anéis flutuantes e os selos mecânicos. Em ambos os casos, um líquido
(quase sempre óleo) é injetado em câmaras de selagem com objetivos de
criar uma barreira à passagem do gás.
4
7.2.1.5. SELO SECO.
1. As vedações são montadas nas extremidades do eixo dos compressores e
evita vazamentos de gás.
2. As vedações mecânicas do gás são fornecidas pela John Crane UK Ltda.
do tipo T28AT.
3. As vedações mecânicas do gás são compostas de duas vedações
mecânicas com as faces sobrepostas, lado a lado, de dois anéis giratórios
(sede), em carbureto de tungstênio, e de dois anéis estacionários (face) em
grafite.
4. O lado interno (lado gás) de cada vedação mecânica é a parte que suporta
a pressão do gás.
7
5
6
7
1
7.3 Sistema de Gás de Selagem
ÍNDICE ÍTEM
Generalidades 7.3.1
Gás de selagem (BCL406A 2BCL458N) 7.3.2
Filtros de gás e ar de selagem 7.3.3
Válvulas de controle de pressão de gás e ar de
selagem
7.3.4
Instrumentos 7.3.5
2
7.3. SISTEMA DE GÁS DE SELAGEM
7.3.1. GENERALIDADES.
1. O sistema fornece gás de selagem filtrado as tampas verticais (cabeçotes).
2. Esse gás normalmente é extraído do 4° estágio no BCL406A e é enviado
para as tampas verticais existentes em cada lado do barril (verificar em
cada projeto específico o estágio onde é feito esta extração).
3. Esse gás normalmente é extraído do 2° estágio do compressor 2BCL458/N
e é enviado para as tampas verticais existentes em cada lado do barril
(verificar em cada projeto específico o estágio onde é feito esta extração).
4. Nas respectivas tampas verticais o gás é direcionado para a selagem (selos
secos).
5. Os desenhos simplificados abaixo representam os componentes principais
e o funcionamento do sistema de vedação de gás.
3
4
5
6
7.3.2. GÁS DE SELAGEM (BCL406A / 2BCL458N).
1. O gás de descarga de cada compressor, que sai entre a vedação do labirinto
"N" e o tambor de balanceamento “compensador”, entra no compartimento
"B" e retorna para a sucção do compressor através de uma conexão externa
chamada linha do gás de compensação (linha de gás de balanceamento).
2. A conexão supracitada, compensa também o empuxo axial no rotor,
conforme descrito no parágrafo "Tambor de balanceamento" incluído no
capitulo 2 (parte 2.4).
3. Desta maneira ambas as extremidades do rotor têm uma pressão similar à
da aspiração que permitem utilizar dois grupos semelhantes de selagem com
a mesma pressão de gás de selagem para ambas as extremidades do rotor.
4. As vedações do tipo labirinto e a selagem mecânica do gás (selo seco)
formam quatro compartimentos na extremidade de aspiração do rotor e cinco
compartimentos na extremidade de descarga do rotor.
5. A fim de prevenir o vazamento do gás de processo das vedações do labirinto
"M" (selo de gás), os compartimentos "A" são pressurizados através da
injeção de gás de selagem procedente do 4° estágio do compressor BCL
406/A e do 2° estágio do compressor 2BCL458/N.
6. Este gás é chamado de "gás de selagem".
7. O gás de selagem, neste caso, é utilizado a uma pressão um pouco superior
à pressão de aspiração do compressor. Isto se realiza por intermédio de um
sistema automático, composto essencialmente de um transmissor diferencial
de pressão (PDT-114/128), instalado entre a linha do gás de selagem e a
linha do gás de compensação, que envia um sinal para um controlador de
pressão diferencial (PDIC-114/128) que controla a válvula reguladora de
pressão diferencial (PDCV-114/128) instalada na linha de entrada do gás de
selagem, através de um transdutor de pressão (PDY-114/128).
8. A válvula de controle (PDCV-114/128) é provida de válvulas de bloqueio,
linha de by-pass com válvula manual e linha com orifício calibrado que
assegura a passagem do fluxo do gás de selagem em caso de falha da
válvula.
9. O gás de selagem restante que passa para os compartimentos "A" pelos
selos de gás instalado de cada lado do barril, chega nos compartimentos "C"
caso o selo primário esteja dando passagem (1), e de lá é levado para o
sistema de descarga de baixa pressão, através de uma tubulação chamada
"Vent primário". Nas linhas do vent primário existem válvulas de orifício
calibrado e indicadores de fluxo (um orifício e um indicador para cada linha).
7
10. Nestas linhas também existem chaves de pressão diferencial (PDSHH-
122/124) que permitem ter um sinal de alarme em caso de excessiva
pressão diferencial entre a parte a montante e a parte a jusante das válvulas
de orifício de regulação do fluxo (FV-122/123 e FV-129/130). Os discos de
ruptura (PSE-125/126 e PSE-139/140) asseguram a ventilação em caso de
emergência.
11. Além disso, os transmissores de pressa diferencial (PSHH-136/138 e
PSHH-122/124) geram um sinal em caso de pressão muito alta na linha de
ventilação primária a montante das válvulas do orifício de regulação do fluxo.
12. O gás de selagem restante que porventura tenha passado para os
compartimentos “C”, “selo primário (1) do selo seco dando passagem”, e
caso o selo secundário (2) do selo seco esteja dando passagem o gás
chegará nos compartimentos “D”, e de lá é, junto com o ar de selagem que
escape do compartimento “E” para o “D” será conduzido para atmosfera
através da tubulação chamada “(Linhas de ventilação secundaria e/ou vent
secundário).
13. O compartimento "E" está posicionado entre as vedações do labirinto "L" e
"L1".
14. A pressão do ar de selagem é controlada pela válvula reguladora de
pressão (PCV-104/128) que é provida de válvulas de bloqueio (NO) e de
linha de by-pass com válvula manual (NC). O ar é enviado para os
compartimentos "E" através de orifícios calibrados (um para cada
compartimento).
15. O ar pressurizado dentro dos compartimentos "E”, (espaço anular existente
no selo terciária), evita que eventuais fuga de gás vinda dos compartimentos
"D", chegue aos mancais bem como evita também que o vapor de óleo dos
mancais entre em contato com as vedações mecânicas (selo selo) do gás.
16. Nas linhas de dreno dos compartimentos "E" existem purgadores
automáticos (LCV-101/102 e LCV-103/104) que drenam automaticamente
estas câmaras em caso de ocorrência de nível. Existe também válvulas (NF)
que permite purgar manualmente os compartimentos "E" somente com a
máquina parada.
17. Um indicador de pressão diferencial (PDSL-116/117 e PDSL-130/132)
instalado em cada extremidade, entre o compartimento externo de vedação
de gás "D" e o compartimento de limpeza "E", envia um sinal a um
comutador que, de acordo com os valores de regulagem possibilita a partida
da bomba do óleo lubrificante.
7.3.3. FILTROS DE GÁS E AR DE SELAGEM.
7.3.3.1. FILTROS DE GÁS.
1. Na linha do gás de selagem existe um filtro duplex por cada compressor.
8
2. Os filtros duplex são compostos de dois filtros em paralelos e que através de
uma válvula de transferência permite-se comutar de carcaça, com fluxo
contínuo de gás, sem a necessidade de para a máquina.
3. Os filtros são do tipo com cartucho substituível.
4. Os cartuchos devem ser substituídos sempre que a queda de pressão através
do filtro, medida pôr um manômetro diferencial, atingir o valor especificado
pelo fabricante dos compressores.
5. Uma linha de fluxo de equalização, munida de um ofício calibrado, conecta os
dois filtros para permitir o enchimento do filtro reserva e para facilitar a
operação da válvula de transferência.
6. Nunca abrir a válvula de dreno e de vent do filtro em serviço, pois poderá
ocorrer parada da máquina pôr baixa pressão de gás de selagem e/ou
acidente.
7. O procedimento para a troca do filtro com o sistema de selagem de gás em
funcionamento, inclui as seguintes fases:
7.3.3.1.1. PROCEDIMENTO PARA A SUSBTITUIÇÃO DO ELEMENTO
FILTRANTE.
(A) Filtro que se quer colocar para operar (stand by).
1) Assegurar-se através de indicador de pressão e contato com a mão na
carcaça do filtro “temperatura”, qual filtro não está operando.
2) Verificar se a válvula de equalização para interligar os dois filtros esteja
fechada.
3) Abrir lentamente a válvula de drenagem do filtro para certificar se não
está pressurizado. Caso esteja poderá ser a válvula de três vias e/ou de
equalização dando passagem. Portanto, esta operação é feita apenas
para certificar se não existe passagem de uma carcaça para outra
indevidamente (ótima oportunidade de se detectar alguma anormalidade
e / ou evitar acidentes durante a manobra de troca de filtro).
4) Fechar e / ou certificar de que a válvula de drenagem do filtro esteja
fechada.
5) Abrir a válvula de vent e/ou purga.
6) Abrir a válvula de equalização.
7) Deixar sangrar / pressurizar o filtro por um período de tempo que
assegure que ocorreu a sangria e / ou o filtro esteja completamente
cheio / pressurizado.
8) Fechar a válvula de vent.
9) Fechar a válvula de equalização.
10)Comutar lentamente de filtro através da válvula de transferência de três
vias.
9
(B) Filtro que se quer substituir o elemento filtrante (elemento filtrante
sujo).
6) Após ter feito a comutação, assegurar-se através de indicador de
pressão e contato com a mão na carcaça do filtro “temperatura”, se o
filtro que se quer substituir o elemento filtrante não está mais em
operação.
7) Verificar se a válvula de equalização para interligar os dois filtros esteja
fechada.
8) Abrir a válvula de vent e/ou purga e certificar através do visor de fluxo
se não existe fluxo.
9) Abrir lentamente a válvula de drenagem do filtro para certificar se não
está pressurizado. Caso esteja poderá ser a válvula de três vias e/ou de
equalização dando passagem. Portanto, esta operação é feita apenas
para certificar se não existe passagem de uma carcaça para outra
indevidamente (ótima oportunidade de se detectar alguma anormalidade
e / ou evitar acidentes durante a manobra de troca de filtro).
10)Abrir a tampa superior inspecionar, limpar o filtro e substituir os
cartuchos (o elemento filtrante).
11)Fechar e / ou certificar de que a válvula de drenagem do filtro esteja
fechada.
12)Fechar a tampa superior (atentar para o estado do o-ring).
13)Abrir lentamente a válvula de equalização.
14)Deixar sangrar / pressurizar o filtro por um período de tempo que
assegure que ocorreu a sangria e/ou o filtro esteja completamente
pressurizado.
15)Fechar a válvula de vent e/ou purga.
16)Fechar a válvula de equalização e o filtro estará pronto para entrar em
operação a qualquer momento.
10
7.3.3.2. FILTROS DE AR.
6.3.3.2.1. GENERALIDADES DOS COMPRESSORES PIGNONE
1) Dados do ar de selagem.
AR DE SELAGEM
Descrição Vazão
Sistema de selagem Máximo: 186 Nm3/h
Mínimo: 138 Nm3/h
2) Na linha de ar de selagem existe um filtro duplex para os dois compressores
(BCL406A e 2BCL459N).
3) O filtro duplex é composto de dois filtros em paralelos e que através de uma
válvula de transferência permite-se comutar de carcaça, com fluxo contínuo de
ar, sem a necessidade de para a máquina.
4) Esta característica permite pôr fora de serviço um dos filtros para inspecioná-
los, substituir o elemento filtrante,ou efetuar a manutenção sem interromper o
fluxo de ar para máquina.
5) Os filtros são do tipo com cartucho substituível.
6) Os cartuchos devem ser substituídos sempre que a queda de pressão através
do filtro, medida por um manômetro diferencial, atingir o valor de regulação
indicado na "Lista dos instrumentos”.
7) Uma linha de fluxo de equalização, munida de um ofício calibrado, conecta os
dois filtros para permitir o enchimento do filtro reserva e para facilitar a
operação da válvula de transferência.
8) Nunca abrir a válvula de dreno e de vent do filtro em serviço, pois poderá
ocorrer parada da máquina pôr pressão baixa ar e / ou acidente.
9) O procedimento para a troca do filtro com o sistema de ar de selagem em
funcionamento, inclui as seguintes fases:
6.3.3.2.2. PROCEDIMENTO PARA A SUSBTITUIÇÃO DO ELEMENTO
FILTRANTE.
(A) Filtro que se quer colocar para operar (standby).
1) Assegurar-se através de indicador de pressão e contato com a mão na
carcaça do filtro “temperatura”, qual filtro não está operando.
2) Verificar se a válvula de equalização para interligar os dois filtros esteja
fechada.
3) Abrir lentamente a válvula de drenagem do filtro para certificar se não
está pressurizado. Caso esteja poderá ser a válvula de três vias e/ou de
equalização dando passagem. Portanto, esta operação é feita apenas
para certificar se não existe passagem de uma carcaça para outra
11
indevidamente (ótima oportunidade de se detectar alguma anormalidade
e / ou evitar acidentes durante a manobra de troca de filtro).
4) Fechar e / ou certificar de que a válvula de drenagem do filtro esteja
fechada.
5) Abrir a válvula de vent e/ou purga.
6) Abrir a válvula de equalização.
7) Deixar sangrar / pressurizar o filtro por um período de tempo que
assegure que ocorreu a sangria e / ou o filtro esteja completamente
cheio / pressurizado.
8) Fechar a válvula de vent.
9) Fechar a válvula de equalização.
10) Comutar lentamente de filtro através da válvula de transferência de três
vias.
(B) Filtro que se quer substituir o elemento filtrante (elemento filtrante
sujo).
1) Após ter feito a comutação, assegurar-se através de indicador de
pressão e contato com a mão na carcaça do filtro “temperatura”, se o
filtro que se quer substituir o elemento filtrante não está mais em
operação.
2) Verificar se a válvula de equalização para interligar os dois filtros esteja
fechada.
3) Abrir a válvula de vent e/ou purga e certificar através do visor de fluxo
se não existe fluxo.
4) Abrir lentamente a válvula de drenagem do filtro para certificar se não
está pressurizado. Caso esteja poderá ser a válvula de três vias e / ou
de equalização dando passagem. Portanto, esta operação é feita
apenas para certificar se não existe passagem de uma carcaça para
outra indevidamente (ótima oportunidade de se detectar alguma
anormalidade e/ou evitar acidentes durante a manobra de troca de filtro).
5) Abrir a tampa superior inspecionar, limpar o filtro e substituir os
cartuchos (o elemento filtrante).
6) Fechar e / ou certificar de que a válvula de drenagem do filtro esteja
fechada.
7) Fechar a tampa superior (atentar para o estado do o-ring).
8) Abrir lentamente a válvula de equalização.
9) Deixar sangrar / pressurizar o filtro por um período de tempo que
assegure que ocorreu a sangria e / ou o filtro esteja completamente
pressurizado.
10) Fechar a válvula de vent e / ou purga.
11) Fechar a válvula de equalização e o filtro estará pronto para entrar em
operação a qualquer momento.
12
6.3.4. VÁLVULAS DE CONTROLE DE PRESSÃO.
7.3.4.1. VÁLVULAS DE CONTROLE DE PRESSÃO DE GÁS DE
SELAGEM (PDCV 114 / PDCV 128)
1) A pressão do gás de selagem é mantida constantemente mais elevada
em relação à pressão na linha de compensação (ou de aspiração do
compressor), através da válvula de controle da pressão diferencial
(PDCV 114 / PDCV 128) respectivamente para os compressores
BCL406A e 2BCL458N.
2) Esta válvula automática, instalada na linha do gás de selagem é
controlada pelo controlador e indicador de pressão diferencial (PDIC-
114/PDIC-128) e pelo transmissor de pressão diferencial (PDST-
114/PDT-128), instalado entre a linha do gás de selagem e a linha do
gás de compensação dos respectivos compressores (BCL406A e
2BCL458N).
3) O gás de selagem (câmara “A”) é mantido a uma pressão de
aproximadamente 0.2 Bar g (20 kPa g) acima da pressão da linha do gás
de compensação “aspiração do compressor (câmara “B”). Isto assegura
uma contra-pressão da câmara (A) para câmara (B), pôr intermédio do
selo de gás tipo labirinto, evitando que o gás de processo saia de dentro
da carcaça interna do compressor .
(A) Regulagem da válvula.
1) Os orifícios calibrados dos respectivos compressores BCL406A e
2BCL458N devem estar instalados conforme dados de projeto. Na fase
de pré-operação pode ser que seja necessário uns pequenos ajustes no
diâmetro das placas.
2) A regulação da válvula executa-se com o compressor em
funcionamento ou utiliza-se duas fontes externas de suprimento de
pressão do gás para simular o funcionamento do compressor.
3) As válvulas de bloqueio e as válvulas de by-pass devem ser abertas
totalmente.
4) Olhando o indicador de pressão diferencial colocado entre a linha de
compensação e a linha do gás de vedação à jusante da válvula de
controle(painel de instrumentação local), fechar devagar a válvula de by-
pass e ao mesmo tempo regular a válvula de controle de maneira que a
pressão diferencial seja atingida quando a válvula de by-pass
estiver completamente fechada.
7.3.4.2. VÁLVULAS DE CONTROLE DE PRESSÃO DE AR DE SELAGEM
(PCV 104)
1) Para garantir uma pressão maior nos compartimentos de vedação (E)
do que no vent secundário (E) do sistema de selagem compressores
13
dos BCL406A e2BLC458N a válvula de controle (PCV-104) deverá
manter a pressão constante de aproximadamente 2 Bar g (200 kPa g)
“na entrada do pacote” automaticamente.
2) A pressão do ar de selagem de aproximadamente 2 Bar g (200 kPa g)
injetado automaticamente nas (câmaras “E”) garante uma contra-
pressão acima das existentes nas (câmaras “D”) dos compressores
BCL406A e 2BCL458N. Desta forma qualquer vazamento de gás nos
selos seco para as (câmaras “D”), dentro do limite de alarme, será
automaticamente misturado com o ar de selagem migrado da (câmaras
“E”). Isto devido à pressão das (câmaras “E”) normalmente possuir uma
pressão maior e sendo assim, o gás + ar de selagem será enviado para
o vent secundário.
(A) Regulagem da válvula.
1) A regulação da válvula efetua-se com o sistema de alimentação do gás
de selagem em funcionamento (compressores em funcionamento).
2) As válvulas de bloqueio e as válvulas de by-pass devem ser abertas
totalmente.
3) Olhando o manômetro instalado no painel de instrumentação local,
referente a pressão de ar de selagem, fechar devagar a válvula de by-
pass e ao mesmo tempo regular a válvula de controle de maneira que,
quando a válvula de controle estiver totalmente fechada, lê-se no
indicador de pressão o valor recomendado.
14
6.3.5. INSTRUMENTAÇAO.
1) Dados do ar de instrumentação para projetos Nuovo Pignone:
AR DE INSTRUMENTO
Descrição Vazão
Processo e auxiliares 95 Nm3/h
BDVs 15 Nm3/h
2) A instrumentação instalada no sistema de selagem de gás (controladores
de pressão,reguladores, etc.) deve ser de excelente qualidade para
assegurar uma operação correta do sistema e do equipamento.
3) A lista completa dos instrumentos, fornecidos pelo fabricante dos
compressores, com seus respectivos TAGs e valores de ajuste. são
indicados na "Lista dos instrumentos".
15
1
7.4 Planta de Processo
2
3
8- Instrumentação e Monitoração
ÍNDICE ÍTEM
Sistema de Monitoração de Vibração e Deslocamento axial 8.1
Termopares dos Mancais 8.2
RTD drenos dos Mancais 8.3
Runout 8.4
1
8. INSTRUMENTAÇÃO.
8.1. SISTEMA DE MONITORAÇÃO DE VIBRAÇÃO.
1) Um sistema de monitoração de vibração pode ser composto pela máquina a
ser estudada, pelo equipamento de aquisição / processamento de sinais e
pelos critérios de níveis permissíveis de vibração, como mostra a figura abaixo.
8.1.1. EQUIPAMENTO NECESSÁRIO À MONITORAÇÃO DA VIBRAÇÃO.
8.1.1.1. AQUISIÇÃO DE DADOS
Obtenção das amostras de dados iniciais da vibração.
8.1.1.2. CONCEITOS BÁSICOS
Os dados de vibração para alguns pontos selecionados em uma
máquina são obtidos através de transdutores.
(A) TRANSDUTOR DE VIBRAÇÃO.
1) Um transdutor de vibração é um aparelho que gera um sinal de
saída proporcional ao movimento dinâmico (isto é, as vibrações) de
um ponto medido na máquina. A maioria dos transdutores de
vibração modernos produz um sinal elétrico de saída com voltagem
(ou carga elétrica) proporcional ao deslocamento, velocidade ou
aceleração instantânea das vibrações medidas. Isto se refere aos
transdutores de deslocamento, velocidade e aceleração,
respectivamente. Um exemplo de relação entre o movimento de
entrada e o sinal de saída de um transdutor de velocidade, é dado a
seguir.
Máquina
monitorada
Aquisição
de dados de
vibração
Processamento
do
sinal
Avaliação
da
condição
Sistema de
Monitoração de
Vibração
Equipamento de
Monitoração de
Vibração
2
(B) TIPOS DE TRANSDUTOR DE VIBRAÇÃO.
1) Os transdutores podem ser divididos em duas categorias
principais: Transdutores por contato e transdutores sem contato.
TRANSDUTORES POR
CONTATO
TRANSDUTORES SEM
CONTATO
Modo de Operação Aderido ou fixado em alguma
parte da máquina
Direcionados, mas sem
tocar na parte da máquina
que está sendo medida.
Transdutores de
Vibração
Transdutores Sísmicos:
Transdutores de velocidade e
acelerômetros
Transdutores de
proximidade:
Transdutores capacitivos,
indutivos e de corrente
circular.
1) Um sistema de monitoração de vibração pode abranger um ou
mais tipos de transdutores dependendo principalmente, do tipo de
máquina que está sendo monitorada.
3
2) Os tipos mais comuns de transdutor de vibração usado para
monitoração de máquinas são:
TRANSDUTORES DE
VELOCIDADE E
ACELERÔMETROS
(SÍSMICOS)
TRANSDUTORES
INDUTIVOS E DE
CORRENTE CIRCULAR
(PROXIMIDADE)
Princípio de
Operação
Gera um sinal de saída
proporcional, respectivamente, à
velocidade e à aceleração
absoluta das vibrações no ponto
de contato da máquina.
Gera um sinal de saída
proporcional ao
deslocamento da vibração
entre a superfície e a
extremidade do
transdutor.
(C) TIPOS DE POSICIONAMENTO DO TRANSDUTOR DE VIBRAÇÃO.
1) É amplamente reconhecido que as vibrações nos mancais de
uma máquina podem ser obtidos por uma medição das vibrações
de várias partes, todas estruturais e em movimento, que compõe
a máquina. Também são comuns as medições de vibração da
fundação e da carcaça.
2) Os locais nos quais os vários tipos de transdutores são
normalmente posicionados, estão mostrados na tabela a seguir.
TRANSDUTOR POSICIONAMENTO
SÍSMICO
Normalmente posicionado nos alojamentos dos mancais ou
na carcaça da máquina, a fim de monitorar as vibrações
absolutas no ponto de contato.
Medições horizontais e verticais são mais comuns, como
pelo menos uma medição axial por linha de eixo. Podem
ser usados transdutores portáteis ou permanentemente
instalados.
PROXIMIDADE
Normalmente localizado nos alojamentos dos mancais da
máquina, a fim de monitorar os movimentos do eixo relativo
à carcaça do mancal ou para monitorar a posição do rotor.
Para mancais de bucha, os transdutores são comumente
montados separados de 90°, mas desviados dos eixos
horizontais e verticais.
4
SÍSMICO PROXIMIDADE
(D) TRANSDUTOR DE VELOCIDADE.
1) Tacômetros são aparelhos sensíveis para medir velocidade rotacional
(rotações de eixos girantes) e, em alguns casos, podem fornecer pulsos de
referência.
2) Estetoscópio é um aparelho que pode ser usado para observar
movimentos de alta freqüência, fazendo com que as componentes móveis
pareçam estacionárias. Pode também ser usado como medidor de
velocidade rotacional.
(E) TRANSDUTOR ELETRÔNICO.
1) O sinal de saída de um transdutor eletrônico pode ser conectado
diretamente com uma unidade de processamento de sinal ou gravado em
meio digital num PC e então processado, analisado através de um
programa especifico.
2) O processamento do sinal ou a manipulação dos dados iniciais levam em
consideração as informações mais relevantes. No caso de medições com
transdutores de proximidade, torna-se geralmente, necessário mostrar o
sinal de saída do transdutor no domínio do tempo, com a finalidade de
detectar e diagnosticar avarias. Entretanto, para as muitas aplicações de
monitoração de vibração, é recomendável processar eletronicamente o
sinal de saída do transdutor a fim de obter informações futuras que
poderão ser usadas para informar as condições da máquina e/ou
diagnosticar avarias.
5
8.1.2. EQUIPAMENTO DE MONITORAÇÃO DE VIBRAÇÃO DOS
COMPRESSORES BCL / 2BCL.
8.1.2.1. PRINCÍPIO DE FUNCIONAMENTO.
1) Gera um sinal de saída proporcional, normalmente em freqüência, ao
deslocamento da vibração entre a superfície e a extremidade do
transdutor.
2) CATEGORIA: Transdutor sem contato
3) MODO DE OPERAÇÃO: Direcionados e sem tocar na parte da
máquina que está sendo medida.
4) TRANSDUTOR DE VIBRAÇÃO: Transdutor de proximidade tipo
indutivo e de corrente circular.
8.1.2.2. Para Compressores modelos BCL / 2BCL. (Cuidados especiais
durante montagem e desmontagem)
1) Fazer levantamento da curva do sensor através do TK-3, para
certificar a curva de resposta a valores conhecidos, estabelecendo
assim a melhor folga (Gap).
2) Inspecionar o cabo quanto à existência de mossa.
3) Durante a instalação do sensor deve-se atentar para que se a leitura
indicada no multímetro corresponde ao GAP (real).
NOTA:
È importante durante instalação dos sensores, o monitoramento, com
multímetro devidamente calibrado, do Gap (Folga entre Sensor e Eixo),
pois caso contrário, danos no Sensor e no Eixo poderão ocorrer. Em
alguns casos para reparar danos nas pistas de monitoramento (Eixo) é
necessária a retirada do conjunto rotor.
4) Direcionar o cabo do probe a caixa de passagem do cabo fixado na
carcaça do compressor e ter o cuidado de usar um selante, tipo
selastic, para evitar a vazamento de óleo para o exterior (tempo de
cura do selante 12 horas).
6
8.1.3. EQUIPAMENTO DE MONITORAÇÃO DE DESLOCAMENTO AXIAL DOS
COMPRESSORES BCL / 2BCL.
MALHA DE VIBRAÇÃO / DESLOCAMENTO
SENSOR TRNSDUTOR PROCESSADOR /
MONITOR
Sensor de vibração e
ou deslocamento
Transdutor (proximitor) Processador / Monitor
de vibração e / ou
deslocamento
7
8.1.3.1. PRINCÍPIO DE FUNCIONAMENTO.
1) Gera um sinal de saída proporcional ao deslocamento do eixo entre
a superfície e a extremidade do transdutor.
2) CATEGORIA: Transdutor sem contato
3) MODO DE OPERAÇÃO: Direcionados e sem tocar na parte da
máquina que está sendo medida.
4) TRANSDUTOR DE DESLOCAMENTO: Transdutor de proximidade
tipo indutivo e de corrente circular.
8.1.3.2. Para compressores modelos BCL / 2BCL (Cuidados especiais
durante a montagem e desmontagem)
1) Fazer levantamento da curva do probe, através do TK-3, para
certificar se mesmo esta com algum problema.
2) Inspecionar o cabo quanto à existência de mossa.
3) Durante a instalação do probe deve-se atentar para que se a leitura
indicada no multímetro corresponde ao GAP (real).
4) Encaminhar o cabo do probe a caixa de passagem do cabo fixado na
carcaça do compressor e ter o cuidado de usar um selante, tipo
selastic, para evitar vazamento de óleo para o exterior (tempo de
cura do selante 12 horas).
8
Usar
selante
Atentar durante a calibração para
não danificar o eixo / sensor
Atentar durante a calibração para
não danificar o eixo / sensor
9
Testar os sensores de temperatura, vibração e deslocamento varias vezes antes de fechar cada montagem.
10
INSTRUMENTOS UTILIZADOS PARA LEVANTAMENTO DAS CURVAS DOS
SENORES DE VIBRACAO E DESLOCAMENTO.
DC VOLTMETER
-VT
INPUT
PROXIMITOR
EXTENSION
SPINDLE MICROMETER
TARGE
PROB
BEN
TLY
NEV
ADA
ou
t
co
m
vt
11
8.2 TERMOPARES DOS MANCAIS.
8.2.1. PRINCÍPIO DE FUNCIONAMENTO.
1) O termopar é, talvez, o mais usado de todos os tipos de termômetros
para tomadas de impulso de temperatura, especialmente quando se
trata de altas temperaturas (a faixa comum é de 200 a 1000 ° C) e
quando se requer resposta rápida.
2) Ele se baseia no princípio de que qualquer diferença de temperatura
entre as junções de dois metais diferentes gera uma diferença de
potencial, isto é, força eletromotriz entre essas junções, como mostra
figura acima.
12
3) O potencial é determinado pelos três fatores seguintes:
(a) O potencial é proporcional à diferença de temperatura entre as
junções.
(b) O potencial depende da combinação de metais diferentes.
(c) O potencial depende da homogeneidade do material.
4) Utilizando-se desses princípios construiu-se o termopar, que é
constituído de dois metais diferentes nas suas extremidades que são
identificados pela cor do isolamento do fio, e essas cores obedecem
a normas internacionais.
5) Estando uma dessas extremidades em contato com a fonte de calor
e a outra no meio ambiente haverá uma diferença de temperatura
entre as junções e, conseqüentemente, uma diferença de potencial,
isto é, voltagem em mV.
6) Essa pequena tensão formada pela diferença de temperatura é
indicada diretamente em um multímetro de precisão ou um
instrumento especifico que converte esse sinal em valores em
temperatura.
7) A sensibilidade ou tempo de resposta e também o limite superior da
temperatura de utilização de um termopar dependem do diâmetro do
fio, da massa da junção e da massa do tubo de proteção.
8) Para conectar o termopar ao instrumento emprega-se o fio de
compensação, também chamado de extensão, que é constituído do
mesmo material e esse cabo vai da junta quente ate o Painel na
junta fria com o mesmo material não podendo haver inversão.
Exemplo de problema ocorrido durante a fase de comissionamento em
uma maquina:
Havia diferença de temperatura muito alta entre sensores cujas funções
eram captar a temperatura de lugares muito próxima. Vários testes nos
sensores, nos cabos (megagem) e inclusive substituições de peças foram
realizadas e nada de errado era encontrado. Decidiu−se então realizar
uma pesquisa mais detalhada ao longo do cabo de compensação desses
sensores, onde foi encontrada inversão dos fios na JB de campo.
Observando as fiações nos bornes de ligação da JB aparentemente
estavam corretas, mas quando foi solta a fiação do interior dela,
detectou−se que o isolamento nas extremidades dessas fiações foi
removido e trocado de modo que aparentava que os cabos que estavam
ligados nos bornes estavam corretos, sendo que devido a essa inversão
no meio do cabo de compensação a indicação no Painel não era real.
INVERSAO DO CABO DE COMPENSASO NA JB
13
TERMOPARES MAIS USADOS.
PAR
+ -
Códig
o ISA
Fem /
º C
Observações Método de
identificação
Ferro Constantan
(1)
J 2 º Uso geral, porém fraco
para oxidação.
Ferro é mais
duro e
magnético
Cromel
(2)
Alumel (3) K 3º Fraco para ambiente
redutor
Alumel é
ligeiramente
magnético
Cobre Constantan T Maior Para T ‹ 25 º C
antioxidante
Pelas cores
Platina Platina +
Rhódio
S Menor 630 º C < T >1400º C
1- Liga de cobre (60%) e níquel (40%).
2- Liga de cromo (10%) e níquel (90%).
3- Liga de níquel (94%), manganês (3%), alumínio (2%) e silicone 1%).
8.2.1.1 Para compressores Pignone BCL / 2BCL.
1) O termopar usado nos compressores da Nuovo Pignone é tipo K.
PAR
+ -
Códig
o ISA
Fem /
º C
Observações Método de
identificação
Cromel Alumel K 3º Fraco para ambiente
redutor
Alumel é
ligeiramente
magnético
2) VANTAGENS / DESVANTAGENS.
VANTAGEM DESVANTAGEM
14
O diâmetro e o comprimento do fio não
influenciam no potencial gerado
Sofrem corrosão especialmente
quando expostos à temperatura
próxima da temperatura do limite
superior
3) CUIDADOS ESPECIAIS (DURANTE A MONTAGEM /
DESMONTAGEM).
(a) Inspecionar o cabo do termopar quanto à existência de mossa.
Nota:
Foi realizado teste de movimentos cíclicos, no cabo do termopar, com o
intuito de verificar a resistência mecânica e detectou-se que o mesmo se
rompe por fadiga após aproximadamente 80 atuações.
Conclusão:
⇒ Caso seja detectada alguma mossa no cabo o termopar não deve ser
instalado.
⇒ O cabo resiste a muitos contornos, na hora da instalação, desde que
não exista mossa.
⇒ Evitar realizar contornos com ângulo muito fechado.
(b) Instalar o termopar e verificar se o elemento sensor ficou bem fixado na
pastilha.
(c) Testar com o multímetro se o mesmo está com problema (teste de
continuidade e baixa isolação).
(d) Após instalar os mancais verificar novamente se os termopares instalados
estão sem problemas.
(e) Encaminhar os cabos dos termopares para a caixa de passagem dos
cabos fixados em cada lado dos compressores e ter o cuidado de usar um
selante, tipo selastic, para evitar a vazamento de óleo para a caixa de
passagem.
(f) Verificar se os cabos dos termopares não estão posicionados exatamente
na direção do fluxo de retorno de óleo lubrificante dos mancais, pois
poderá acarretar a quebra dos mesmos por fadiga.
15
Termopares do tipo K usado nos compressores da Nuovo Pignone
Foi realizado teste de movimentos cíclicos, no cabo do termopar, com o intuito de
verificar a resistência mecânica e detectou-se que o mesmo se rompe por fadiga após
aproximadamente 80 atuações.
Rebaixo que deve
ser instalado no
sentido de rotação
Não deve existir
mossa
16
8.3 RTD (RESISTANCE TEMPERATURE DETECTOR) DRENOS DOS MANCAIS.
O principio de funcionamento do RTD é a medição da resistência de um elemento de
platina que varia diretamente com a temperatura aplicada. O tipo mais comum é o
Não deve ter mossa
Sentido de
rotação
Pastilhas usadas com termopares (vide sentido de
rotação e a formação do filme de óleo no capitulo sobre
mancais “localização dos termopares”)
Selo de óleo
Usar selante durante
a montagem
O termopar usado nos compressores da Nuovo Pignone é tipo K
17
PT100 que tem uma resistência de 100 ohms com 0°C e 138.4 ohms com 100°C. Há
também o sensor PT1000 que tem uma resistência de 1000ohms com 0°C que não é
muito utilizado.
Esse sensor tem uma precisão maior em baixa temperatura, e utiliza três fios, dois
para medir a resistência e um de compensação, pois o comprimento da fiação
influencia diretamente na resistência no Painel, alterando assim a indicação.
Nesses sensores é muito importante não haver bornes frouxos e os terminais se
possíveis soldados para evitar mal contato e assim variação na resistência.
8.4 RUNOUT.
8.4.1 RUNOUT MECANICO.
Definição
O Runout mecânico e a geração do sinal de vibração devido a imperfeições
existentes no eixo (pista do probe).
Mecanismo de detecção.
a) Instala−se o eixo em uma maquina especial e coloca−se o mesmo para girar
em baixa rotação. A detecção de indicação de vibração, pelos sensores de
vibração instalado em cada lado da extremidade do eixo, indicara a
existência de imperfeição. Evidentemente que caso esteja fora da tolerância
recomendada pelo fabricante do compressor deve−se corrigir o defeito.
Defeitos que geram o Runout mecânico:
18
a) Imperfeições na pista do sensor (Excentricidade entre a pista e o eixo,
rugosidade, riscos, erosão, corrosão).
Ação corretiva:
a) Caso esteja acima do valor Maximo especificado pelo fabricante do
compressor deve ser verificado a origem e efetuar a correção da imperfeição
da pista do probe logo que possível.
8.4.2 RUNOUT ELETRICO.
Runout Elétrico e a geração do sinal de vibração devido à diferença de
permebialidade magnética em varias regiões da pista do probe.
Mecanismo de detecção.
a) Instala−se o eixo em uma maquina especial e coloca−se o mesmo para girar
em baixa rotação. A detecção de indicação de vibração, pelos sensores de
vibração instalado em cada lado da extremidade do eixo, indicara a
existência de diferença de permeabilidade magnética na região da pista do
probe.
Defeito que gera o Runout Elétrico: Diferença de permeabilidade elétrica na
região da pista do probe.
Ação corretiva:
Caso esteja acima do valor Maximo especificado pelo fabricante do compressor
deve−se executar o martelamento na pista do probe através de equipamento
especial de forma a reorganizar as moléculas e minimizar a diferença de
permeabilidade magnética nesta região.
9- Operação
ÍNDICE ÍTEM
Introdução 9.1
Operação de compressor acionado por turbina a gás 9.2
Verificação e Solução de Problemas 9.3
1
9. OPERAÇÃO DE COMPRESSOR CENTRÍFUGO
9.1. INTRODUÇÃO
A operação de uma unidade compressora significa manter os
equipamentos (acionador e acionado) dentro de limites operacionais para os quais
foram projetados.
Uma boa operação depende também da configuração e operação correta
de seus sistemas auxiliares (sistemas de óleo lubrificante e de selagem, sistema
de gás, instrumentação). A confiabilidade operacional dos equipamentos está
diretamente relacionada às verificações realizadas durante a operação e na
avaliação dos valores registrados (leituras efetuadas).
É importante ressaltar que não basta somente registrar parâmetros, mas
também analisar os valores encontrados observando a repetibilidade ou não e as
suas tendências.
Durante montagem e operação inicial, uma série de testes e verificações
deverão ser realizados pelos técnicos envolvidos nos serviços executados, antes
da entrega da máquina, juntamente com as pessoas encarregadas da operação
da planta. Uma Lista de Verificação, conforme exemplo abaixo incluindo os
tópicos, deve ser elaborada tomando por base as recomendações do fabricante e
a experiência operacional.
As pessoas que atendem e têm contato freqüente com as máquinas
durante toda a sua vida útil, devem estar familiarizadas com sua operação e os
limites operacionais, para poderem agir a tempo antes que os problemas ocorram.
LISTA DE VERIFICAÇÃO
Item Verificar
1
Inspeção externa nos sistemas de tubulação de gás, óleo e água (vazamentos,
alinhamentos ...)
2 Verificação quanto à limpeza interna no casulo e painéis
3 Inspeção quanto ao alinhamento do ar de instrumentação
4
Verificação do nível de óleo, controle de análise de óleo e verificação do
inventário
5 Verificação de válvulas de segurança nos sistemas de gás e óleo
6 Verificação da operação da bomba principal de óleo lubrificante
7
Verificação da partida automática e operação da bomba auxiliar de óleo
lubrificante – Teste da bomba de emergência
2
8 Verificação da operação da bomba principal do óleo de selagem
9
Verificação da partida automática e operação da bomba auxiliar do óleo de
vedação
10 Verificação da operação da válvula de controle no sistema de óleo
11 Verificação de vazamentos de óleo da planta
12 Verificação da operação da válvula de controle no sistema de gás
13
Verificação da alavanca de comutação do filtro de óleo para operação
Verificação do enchimento do filtro sobressalente
14
Inspeção do sistema de combate a incêndio
Inspeção do sistema de pressurização da sala de máquinas
15 Verificação dos detectores de temperatura dos mancais da máquina
16 Verificação dos detectores de vibração
17 Verificação dos indicadores de deslocamento axial
18 Verificação dos sistemas de alarme
19
Verificação e registro de valores de pressão e temperatura em condição de
parada
20 Verificação da rotação da máquina manualmente
Como os compressores centrífugos têm emprego bastante diversificado
em diferentes aplicações industriais, os sistemas de acionamento podem ser de
vários tipos: motores elétricos, turbinas a vapor, turbinas a gás industriais ou
aeroderivadas.
9.2. Exemplo de Operação de Compressor acionado por uma Turbina a
Gás
As seguintes medidas tenham sido executadas antes de dar a sua
aprovação para a partida:
Pré-Partida
a) Preparação, verificação e partida dos sistemas de óleo lubrificante e/ou
selagem;
b) Preparação e verificação e partida do sistema de gás de selagem (Selo
Seco);
c) Preparação e verificação de alinhamento das Válvulas do Processo;
3
4
Durante a partida, os seguintes parâmetros devem ser constantemente
verificados:
- rotação do compressor
- níveis de vibração
- temperatura e pressão do óleo lubrificante dos mancais
- temperatura do mancal de escora
- valores do passeio axial dos compressores
- pressões do sistema de selagem
Abaixo se encontram as verificações que devem ser realizadas a
intervalos regulares durante a operação em velocidade normal:
9.3. VERIFICAÇÃO E SOLUÇÃO DE PROBLEMAS
Observe que uma instalação correta, uma configuração precisa da
instrumentação e o cuidado extremo durante o comissionamento, otimizam a
operação da máquina, minimizam o risco de desligamentos e emergências.
Entretanto, quando problemas forem detectados, é extremamente importante
saber as possíveis causas (e as soluções a serem providenciadas).
A tabela a seguir lista as falhas e defeitos mais comuns, suas possíveis
causas e as correções e soluções recomendadas.
5
PROBLEMA CAUSA POSSÍVEL CORREÇÃO/SOLUÇÃO
Desalinhamento Retire o acoplamento. Para verificar o alinhamento, consultar o
manual de instruções.
Falha do acoplamento Verifique a condição do acoplamento
Desbalanceamento do rotor do
compressor
Executar uma coleta de valores de vibração, utilizando pessoal
especializado para coleta e análise dos valores encontrados.
Mancais gastos devido a
contaminação no óleo
Inspecionar visual e dimensionalmente os mancais,
determinando as folgas radiais e comparando-as com os
recomendados pelo fabricante, reparando como necessário.
Tensões transmitidas por
tubulações de gás ao alojamento,
resultando em desalinhamento
Tubulações de gás devem ser devidamente fixadas para
prevenir tensões excessivas sobre o alojamento do compressor.
Acoplamento desbalanceado Desmonte o acoplamento e verifique o desbalanceamento
Vibrações ou ruído anormal do
compressor
Oscilação Verifique se as condições operacionais do compressor
Falha do mancal axial
Empuxo axial excessivo Assegure que o acoplamento esteja montado de modo que
empuxo excessivo não seja transmitido do acionado acoplado
para o compressor
Verificar o passeio axial atual e compará-lo com os limites
6
Desalinhamento e vibrações Consulte as seções sobre vibrações
Óleo sujo Verifique as condições do filtro e substitua cartuchos
sujos
Verifique a limpeza da tubulação
Folga incorreta do anel Verifique a folga, e se necessário, corrija.
Falha do anel de vedação do óleo
Pressão de óleo insuficiente Verifique se a pressão do gás de referência não cai
abaixo do mínimo
Lubrificação imprópria Assegure que o óleo recomendado esteja sendo usado.
Periodicamente verifique se não existe contaminação
com água ou impurezas no óleo. Inspecione os
elementos de filtragem
Desalinhamento Verifique o alinhamento e se necessário, corrija.
Folga incorreta do mancal Verifique a folga e se necessário, corrija.
Falha do mancal
Desbalanceamento do compressor ou do
acoplamento
Consultar as seções sobre vibrações
10- Manutenção
ÍNDICE ÍTEM
Introdução 10.1
Recomendações 10.2
Estrutura Organizacional 10.3
Tipos de Manutenção 10.4
Fluxograma do serviço 10.5
Recomendações de planejamento de intervenção (no campo). 10.6
Recomendações Importantes de montagem, manuseio e
preservação. (No Campo e na Oficina).
10.7
Mancal Radial 10.8
Rotor do Compressor 10.9
Labirinto 10.10
Selo seco 10.11
Instalação de Carcaças Verticais 10.12
Instruções para uso do equipamento hidráulico (para aperto de
parafusos e porcas nas tampas dos compressores).
10.13
Instruções para uso do equipamento hidráulico para aperto de
parafusos e porcas no fechamento das caixas do compressor.
10.14
1
10. MANUTENÇÃO
10.1 Introdução
Manutenção compreende as operações que garantem a funcionalidade
satisfatória e a durabilidade das máquinas com o tempo. É uma necessidade
essencial de qualquer planta industrial para que ela produza continuamente e de
modo eficiente durante toda a sua vida útil.
As manutenções dos compressores podem ser feitos no campo (revisão
parcial) ou em oficina revisora (overhaul) dependendo de vários aspectos ou
recomendações.
Máquina Sobressalente.
Emergência de operação
Falta de sobressalentes para intervenção.
Custo e Benefício
outros
10.2 Recomendações.
a) O pessoal encarregado pela manutenção dos compressores deve possuir
conhecimento e treinamento técnico adequado para as tarefas a serem
executadas nos compressores específicos de cada fabricante.
b) Os procedimentos de montagem e desmontagem descritos servem como
referência. Portanto, instruções específicas devem ser obtidas nos manuais
específicos de cada fabricante.
c) Na Plataforma, cada máquina precisa de um livro de registro de partidas e
paradas. Sendo assim, toda vez que ocorrer alguma anormalidade este livro
servirá como fonte de consulta. Estes registros também servirão para
alimentar o Relatório de Eventos de Maquinas (REM).
d) Cada TBM deve ter seus respectivos registros de intervenção nas máquinas,
controle de materiais sobressalentes, seus índices de controle, etc...
2
10.3 ESTRUTURA ORGANIZACIONAL
A estrutura organizacional de uma planta industrial inclui o pessoal da
manutenção compreendendo, entre outras coisas, membros alocados à
programação, execução e engenharia (ver Diagrama Organizacional)
Oficina Revisora
Cursos de
Treinamento
Engenharia
Assistência
Técnica
Peças
Sobressalente
Programação
- pessoal
- materiais
- meios
- cronometragem
Manutenção
Equipamentos
Cliente
Treinamento de
Pessoal
Produção
Execução
Engenharia
-Aquisição de-
Dados
-Análise de -
Problemas
-Modificações e
Melhorias
Peças
Sobressalentes
3
10.3.1 A Engenharia
Desempenha um importante papel na aquisição de dados e análise dos mesmos,
enquanto prepara esquemas de inspeção e controle capazes de individualizar
qualquer defeito o mais cedo possível. Entre as modernas técnicas de
investigação, a técnica de analise de performance e análise de vibrações são as
mais significativas para fornecer indicações sobre a operação correta das
máquinas.
Evidentemente existem verificações e inspeções que podem ser executadas
mesmo quando as máquinas estão em operação, mas estas são limitadas às
peças que podem ser alcançadas com segurança. A coleta de dados
operacionais, a análise meticulosa dos mesmos e a comparação com dados
registrados em condições de eficiência máxima fornecem uma série de
informações essenciais para a operação eficiente das máquinas e para um
programa adequado de manutenção.
10.3.2 A Programação
Define, na base do trabalho a ser executado e o grau de urgência exigido, o
número de empregados utilizados, e os direciona para a execução dos trabalhos
que têm prioridade para a eficiência das máquinas e dos equipamentos, e
estabelece os meios, os materiais e as ocasiões necessárias para a conclusão do
trabalho.
A verificação das partes do compressor desmontadas gera uma lista do trabalho a
ser executado imediatamente e que pode ser executado, após a preparação
necessária, em ocasiões posteriores quando a máquina estiver parada. Com
relação à substituição de componentes, é muito importante ter um planejamento,
pronta disponibilidade de peças sobressalentes e um sistema de estoque
eficiente.
10.3.3 A Produção/ Execução
Este Corpo Técnico desempenha um Trabalho Especializado de grande precisão
especialização executado procedimentos atualizadas e alimenta a rotina de
desenvolvimento e melhoria no processo como um todo .
10.3.4 Treinamento
É a Rotina de desenvolvimento e atualização de conhecimento do corpo Técnico.
10.3.5 Sobressalentes
São materiais de reposição das máquinas que devem ser planejadas, estocadas e
manterem boa qualidade para uso, com identificação registro dimensional e
preservação adequada.
4
10.4 TIPOS DE MANUTENÇÃO
A manutenção considerada de um ponto de vista técnico, é dividida em três
grandes grupos:
A – Manutenção de Preservação: a previsão de um defeito ou falha ao invés da
restauração da funcionalidade original.
B - Manutenção de Melhoria: reduz o índice de falha ou paralisação (*).
A – MANUTENÇÃO DE PRESERVAÇÃO
Pode ser: A.1 – Corretiva
A.2 – Preventiva
A.3 – Preditiva
A. 1 Manutenção Corretiva
Reparo após um defeito, restaurando a eficiência original.
A. 2 Manutenção de Preventiva
É dividida em três tipos:
A.2.1 – Cíclica: Manutenção em ciclos pré-estabelecidos de acordo com
o grau do defeito ou paralisação
A.2.2 – Parada: Esta é uma concentração das operações da
manutenção cíclica – de inspeção (ver abaixo) e incidental, em
um período pré-estabelecido
A.2.3 – Oportunidade: Manutenção a ser executada na primeira ocasião
de uma parada por defeito, ou na primeira paralisação
determinada por uma avaliação econômica de eficiência
reduzida, devido a um acúmulo de defeitos que não constituíram
razão suficiente separadamente para parar a máquina.
(*) Índice de defeitos ou paralisações significa a probabilidade que um elemento
da máquina ou equipamento tem de quebrar imediatamente após um tempo “t”
pré-estabelecido
5
A.3 Manutenção de Preditiva
Pode ser executada em duas situações:
A.3.1 Com a máquina ou equipamento parados
A inspeção pode ser “programada” ou pode ser executada devido a um
defeito ou paralisação, utilizando:
- inspeção visual
- métodos não destrutivos
• Ultrassônico
• Raios Gama e Raios-X
• Líquidos Penetrantes
• Magnetismo
• Outros
A.3.2 Com a máquina ou equipamento em operação
Definida como manutenção “EM CONDIÇÃO” ou “PREDITIVA”.
Esta pode integrar ou substituir a Manutenção Preventiva, enquanto ao
mesmo tempo facilita a Manutenção Corretiva, nos casos em que o custo
pode justificar isso.
O pessoal responsável pela inspeção faz uso de:
- Inspeção visual
- Métodos não destrutivos
• verificação de vibrações
• verificação de ruídos
• verificação da eficiência da lubrificação, ensaios laboratórios de analises de
óleo.
• termografia
• registro dos parâmetros de funcionamento e operação (temperatura, pressões,
∆p, ∆t, absorção, número de revoluções, etc.)
• outros
6
B MANUTENÇÃO DE MELHORIA
Significa a simples melhoria resultando em uma maior eficiência (o custo da
modificação e/ou substituição é comparado ao ∆ do custo de manutenção)
Todo o planejamento de melhoria esta ligado as informações confiáveis de
operação da máquina , analise detalhada de materiais, analise defeitos e estudo
de custo benefício.
10.4.1 MANUTENÇÃO PREVENTIVA
Esta, como foi mostrado, compreende intervenções que podem ser realizadas
razoavelmente em intervalos pré-estabelecidos, mesmo que não sejam
estritamente necessárias, já que ajudam a prevenir prováveis enguiços ou
defeitos que poderiam comprometer a integridade de muitas peças delicadas e
caras.
Danos de mancais, desgaste de selagem, roçamento do rotor, podem causar
vibração, fadiga, quebra de partes e gerar danos muito mais onerosos do que o
custo da manutenção preventiva. Além disso, um programa de inspeção bem
organizado pode ser coordenado com as necessidades de outras plantas
conectadas e desse modo assegurar que o defeito de uma não cause também a
paralisação de outras.
Para os critérios de seleção do programa específico de manutenção a ser dotado,
todos os fabricantes fornecem um manual sugestões para intervenções a serem
realizadas, períodos definidos de operação e indicações para a compilação de
folhas de inspeção e registros de informações.
Mas na verdade, o próprio usuário com seu plano de controle e inspeções está
em posição melhor para julgar que medidas tomar de acordo com o desempenho
exigido das máquinas, das condições nas quais elas operam, as considerações
que devem ser feitas na base da experiência, o custo de paralisações comparado
com os custos de manutenção, o conhecimento de seu próprio pessoal, sua
capacidade técnica e os meios disponíveis.
7
10.4.2 MANUTENÇÃO CORRETIVA
Esta, por outro lado, compreende intervenções para corrigir, em prazo mais
curto possível, defeitos imprevistos, devidos normalmente a causas
acidentais, para os quais a rapidez da execução implica em perfeito
conhecimento da máquina, na disponibilidade de peças sobressalentes e de
pessoal altamente qualificado, tudo coordenado por uma organização
perfeita.
É claro que se um só desses parâmetros não estiver disponível, a eficiência
do sistema organizacional imediatamente entrará em colapso.
Os compressores centrífugos em geral não exigem uma manutenção
mecânica freqüente, como é o caso de máquinas alternativas para
maquinaria de força, tais como turbinas de gás e vapor.
Não obstante, é necessário prever uma série de inspeções programadas,
cíclicas e de controle para garantir a continuidade operacional dos
compressores.
10.5 FLUXOGRAMA DE SERVIÇO.
Ele é gerado baseado em todas as informações colhidas a respeito do
equipamento e través da analise do motivo da remoção da máquina é
executado um projeto MS PROJET com todos os delineamentos dos
serviços relativos ao equipamento.
Como:
Relatório de Recebimento.
Mão de obra para execução.
Distribuição das tarefas para todas áreas envolvidas.
Desmontagem.
Limpeza.
Inspeções/ Análises de Falha/ Estudo de Melhorias.
Reparos.
Balanceamento.
Preenchimento dos registros de Dimensional.
Montagem.
8
Relatório Final de Revisão.
10.5.1 Relatório de Recebimento.
Onde se relata todas as informações de operação, origem , horas trabalhadas, descrição
do motivo da intervenção e prazo requerido.(negociação cliente/fornecedor).
10.5.2 Mão de obra para execução.
Mobilização de pessoal em todas as áreas do processo
10.5.3 Distribuição das tarefas para todas áreas envolvidas (projeto)
Planejamento e alocação de mão de obra , equipamentos e procedimentos de cada
atividade do processo.
10.5.4 Desmontagem.
Desmembramento completo de todas as partes do equipamento seguindo procedimento
específico desenvolvido pela oficina reparadora ou fornecido pelo fabricante.
10.5.5 Limpeza.
Todo equipamento possui procedimento específico de limpeza, dependendo do material,
fragilidade e dimensões.
- Química
- Ultra som
- Abrasiva
- Desengraxantes
Limpeza
9
10.5.6 Inspeções
São executados procedimentos específicos dependendo da geometria da peça,
materiais e fragilidade.
- Run Out Mecânico / Elétrico
Run Out Mecânico/ Elétrico
- Visual
- Dimensional
10
- Tridimensional
Tridimensional
- Partículas Magnéticas
11
- Líquido Penetrante
Líquido Penetrante
12
- Líquido penetrante fluorescente
13
- Magnetismo Residual
10.5.7 Analises de Falha
Investigação de defeitos crônico ou ocasional que permita ação de melhoria,
desenvolvimento de reparo especiais e geração de banco de dados de falha.
10.5.8 Analise caracterização metalúrgica
Metalografia para avaliação estrutural como fadiga, corrosão inter-granular e outros.
10.5.9 Melhorias.
Baseado em analises acima é desenvolvido a aplicação de melhorias, de material,
tratamentos especiais, como revestimentos e pintura e modificações de projeto como
geometria e dimensionais.
10.5.10 Reparos.
Procedimentos de recuperação de partes.
- Plasma
- HVOF
Revestimentos Eletrolíticos / Químicos.
Nitretação.
Revestimentos. Pinturas especiais e comuns
Metal Patente
Soldas especiais
Tratamento Térmicos
Usinagem de Precisão.
Balanceamento.
Processo utilizado para minimizar descentralização de massa resultando e melhor
equilíbrio das partes rotativas.
14
15
Estático (Overspeed no Fabricantes)
Progressivo
Dinâmico(High Speed) Apenas no fabricante quando requerido)
Preenchimento dos registros de Dimensional.
Registro de dimensionais das partes estatoras e rotativas, para avaliação e registro de
folga e ajuste todos os componentes.
Montagem.
Execução de montagem de todos os componentes conforme instrução e procedimento
elaborado pela oficina revisora ou fabricante.
16
17
18
Relatório Final de Revisão.
Relatando as referências das partes montadas, melhorias implementadas, custos
envolvidos de materiais e serviços, históricos, registro e recomendações.
OBS:
Todas as fases do projeto para Revisão de um Compressor possuem procedimento
específico para cada máquina de acordo com as recomendações de cada fabricante.
Assim como são fabricados com especificações, dimensionais e fabricantes diferentes,
as recomendações e tolerâncias mudam em pequenos detalhes embora sejam todos
dirigidos por normas API.
19
10.6 Recomendações de planejamento de intervenção (no campo).
a) A fim de evitar danos mecânicos ou perdas devem ser colocadas caixas
apropriadas marcadas para armazenar as peças a serem desmontadas.
b) Antes de começar todas as ferramentas especiais devem ser inspecionadas e
estar disponíveis.
c) Devem estar disponíveis e inspecionadas com seu respectivo registro Todas
as peças sobressalentes que são necessárias para a intervenção
dimensional..
d) Todas as fontes de energia do equipamento relacionada com os serviços a
serem executados devem ter suas respectivas gavetas extraídas e
identificadas com aviso de “ EQUIPAMENTO EM MANUTENCAO”.
e) Todas as aberturas de tubulações e / ou equipamento, durante o período de
manutenção, devem ser cobertas para evitar a entrada de corpo estranho.
f) Sinalizar com fitas zebradas passagens que porventura necessitem ser
obstruídas.
g) Não obstruir rotas de fugas.
h) Verificar durante a programação da intervenção se o sistema de
movimentação de carga do equipamento a qual vai mexer esta em perfeitas
condições de uso.
i) Durante a programação de intervenção certificar junto ao COORDENADOR
DA EMBARCAÇÃO “UNIDADE” se os guindastes estarão disponíveis na data
da realização da intervenção.
j) Durante a montagem respeitar cuidadosamente as indicações contidas nos
manuais do fabricante.
k) Respeitar o GERENCIAMENTO DA MUDANÇA.
l) Retirar permissão de trabalho para qualquer tipo de serviço a ser realizado.
m) Fazer DDS.
20
10.7 Recomendações Importantes de montagem, manuseio e preservação. (No
Campo e na Oficina).
10.8 MANCAL RADIAL
Desmontagem.
NOTA:
A) Para facilitar a desmontagem e a montagem do mancal, utilizar as ferramentas
apropriadas conforme procedimento específico para cada máquina.
1. Remover o equipamento e os instrumentos instalados na tampa do alojamento
ou no mancal cuidadosamente para evitar danos.
Tomar cuidado em não danificar cabos, sondas e similares.
2. Desmontar as diferentes partes do mancal e inspecionar atentamente as
superfícies internas, assegurando-se de que não haja fendas, arranhaduras, ou
outros tipos de anomalias. Limpar com cuidado cada peça separadamente.
Injetar o ar através dos condutos de entrada e os condutos de drenagem do óleo,
e limpá-los.
Montagem.
Para remontar o mancal inverter o procedimento indicado para a remoção.
Assegurar-se de que as superfícies da junção tenham sido limpas corretamente
antes da montagem das partes.
As almofadas do mancal devem ser instaladas com a parte chanfradas montada no
sentido contrário em relação ao da rotação do rotor e lubrificadas.
10.8.1 MANCAL AXIAL OU EMPUXO
Desmontagem.
NOTA:
A) Para facilitar a desmontagem e a montagem do mancal, utilizar as ferramentas
apropriadas conforme procedimento específico para cada máquina.
1- Remover o equipamento e os instrumentos instalados na tampa do alojamento ou no
mancal cuidadosamente para evitar danos.
2. Remover a metade superior da proteção da junção e a metade superior da
cobertura terminal (ou suporte).
21
3. Remover os parafusos de retenção do mancal, ou do anel de retenção do mancal
do cabeçote.
4. Remover os parafusos que fixam as duas metades do mancal e levantar a metade
superior.
5. Sustentar o rotor e remover a metade inferior do mancal girando-a de 180º em
volta do eixo.
6. Remover os componentes do mancal de empuxo montados na parte externa do
colar de empuxo.
7. Remover o colar de empuxo, para executar esta operação é necessário consultar
procedimentos específicso de desmontagem para cada equipamento, as Instruções
para montar / desmontar a trava/porca/ colar colar de escora.
8. Remover os componentes de empuxo montados na parte interna do colar de
escora.
9. Desmontar as diferentes partes dos mancais.
Inspecionar atentamente as superfícies internas, assegurando-se de que não haja
fendas, arranhaduras, ou outros tipos de anomalias. Limpar com cuidado cada peça
separadamente. Enjeitar ar através dos condutos de entrada e de drenagem do
óleo e limpá-los.
CONTROLE DAS FOLGAS DOS MANCAIS RADIAIS.
Cada Mancal possui folha de registro com tolerância de folga que dependem da
velocidade da máquina ,diâmetro do Eixo / Mancal e do peso do mesmo.
Os procedimentos de medição pode ser feito por gabarito GO NO GO ,gabaritos que
dimensionam a seção entre a área interna côncava e a externa convexa onde somando-
se todas as medidas relaciona-se ao valor do Dia. Interno do alojamento das pastilhas
(CORPO DO MANCAL) e se avalia o Dia interno de rolagem ,onde a folga e este valor
obtido menos o valor diametral do eixo.
Geralmente os valores de folga são de Diametral contrário aos labirintos que são
geralmente Radiais.
CONTROLE DA FOLGA AXIAL DO MANCAL DE EMPUXO
Cada Mancal possui folha de registro com tolerância de folga que dependem da
velocidade da máquina ,diâmetro do Eixo / Mancal e do peso do mesmo.
A folga do mancal de empuxo e a distância efetiva da deslocação axial do rotor entre as
sapatas.Os procedimentos de medição devem obedecer procedimento específico de
cada fabricante mas todos possuem uma premissa que o passeio do Mancal Axial
devem estabelecer o melhor alinhamento de saída de gás no miolo do impelidor em
referência ao canal de entrada de gás do diafragma,par melhor performance e mehor
escoamento evitando turbilhonamento e calço.
ADVERTÊNCIA:
O manuseio e acondicionamento são muito importantes por ser o material macio e não
aceitar impactos e arranhões.
22
10.9 ROTOR CROMPRESSOR.
A) Para facilitar a desmontagem e a montagem do Rotor, utilizar as ferramentas
apropriadas conforme procedimento específico para cada máquina.
O Rotor é parte mais importante e sensível do conjunto e requer cuidados
especiais de manuseio e acondicionamento, arranhões nos colos de mancais e
sensores , amassamento dos impelidores, danos na area de montagem dos
cubos nas roscas na extremidades, podem levar até mesmo a sucateamento do
Rotor. .
ADVERTÊNCIA:
É recomendável sempre que manusear e movimentar para estoque ou reparo
O rotor com todas asa partes que compõem o conjunto.
O Registro de Controle das folgas da área de vedação do labirinto, dos colos de mancais
e selagem inter – estágios assim como a folha de balanceamento devem sempre
acompanhar o conjunto folha com controle dimensional contendo estes dados para se
certificar da qualidade de montagem do equipamento.
10.10 LABIRINTOS
Material macio (alumínio) deve ser manuseado com cuidado e sempre acompanhado de
sua folha de identificação e dimensionais.
10.11 SELO SECO.
Não remover da embalagem e expor a umidade, óleo, água e impactos.
Importante:
Toda as atividades ligadas a Manutenção devem ser executada com todos os
cuidados e normas de SMS, como EPI, planejamento de movimentação de carga e
Liberação da área para execução do serviço.
A identificação dos materiais, registro, preservação e acondicionamento das peças
desmontadas e montadas são importantes para o custo geral da manutenção.
23
Procedimento específico para montagem de compressores Nuovo Pignone.
10.12 INSTALAÇÃO DE CARCAÇAS VERTICAIS
10.12.1 CARCAÇAS DIVIDIDAS VERTICALMENTE (BCL - 2BCL - DBCL - PCL).
Aperto
Untar com molikote as roscas dos parafusos prisioneiros e as faces das porcas
conjugadas.
Começar a apertar quatro porcas diametralmente opostas e proceder apertando
as outras da mesma maneira (dando os apertos em etapas de quatro em
quatro parafusos ate se chegar ao troque final).
TABELA DOS VALORES DE TORQUE
TorquesDiâmetro nominal dos parafusos prisioneiros (mm)
Kgm Nm
M 24 20 200
M 30 40 400
M 36 x 3 80 800
M 42 x 3 130 1300
M 48 x 3 185 1800
M 56 x 4 2BCL458N 305 3000
M 64 x 4 510 5000
M 72 x 4 BCL406A 765 7500
M 80x 4 1225 12000
M 90x 4 1530 15000
M 100 x 4 2240 22000
ADEVERTÊNCIAS
A- Tolerância sobre os valores de torque 5 à 10 %.
B- Os valores indicados na tabela têm validade para temperaturas acima de 101°
C.
10.13 INSTRUÇÕES PARA USO DO EQUIPAMENTO HIDRAULICO (PARA APERTO
DE PARAFUSOS E PORCAS NAS TAMPAS DOS COMPRESSORES).
1. Controles preliminares.
Controlar o nível do óleo dentro do tanque da bomba.
Utilizar a chave anular escolhida de acordo com a abertura hexagonal "S" da
porca a ser apertada
Conectar o tubo flexível com a chave oleodinâmica (escolhida conforme o
torque de aperto) e com o calibrador e a bomba hidropneumática (ver fig. no
final deste parágrafo).
2. Funcionamento.
24
Com a pressão hidráulica exercida pelo acionamento da bomba, dentro do
cilindro, cria-se um empuxo que é transmitido à chave anular por intermédio de
um sistema de alavancas, após a fixação do braço de torção regulável num
ponto determinado.
A chave anular dá um ângulo de rotação de 30°em volta do eixo da alavanca e
isto transmite um torque à porca. Dentro dos 30° de rotação se obtêm os
valores de regulagem da chave de torque de acordo com as tolerâncias
indicadas no par. 5.
Uma última rotação além de 30° pode ser útil para acelerar o afrouxamento ou
a primeira etapa de aperto.
Uma vez terminada a operação, remover a ferramenta da porca e remontá-la
para um outro movimento até atingir o aperto pretendido.
3 Procedimento.
Escolher uma posição angular entre 35º e 75º do ângulo de trabalho do braço
de torque. Acionar a bomba hidráulica até uma pressão correspondente ao
torque desejado(ler no manômetro).
A regulagem do torque deverá ser obtida verificando na tabela os valores
correspondentes entre Bar e Kgm, de acordo com as especificações da chave
hidráulica utilizada.
No final da rotação de 30° (de modo de obter a máxima precisão de aperto)
parar a bomba, abrir a válvula de ventilação e colocar manualmente o pistão na
sua posição inicial (a ferramenta pode ser mantida no braço de torque e
empurrada na posição de operação).
Repetir esta operação até conseguir o torque requerido (
4 Possíveis problemas.
Dificuldade de acionamento do cilindro.
Verificação.
Sangrar o ar através da válvula de purga.
5 Conselhos para precisão do torque de acionamento.
A precisão do torque de aperto depende da posição angular do braço de
reação giratório que e o ângulo entre braço e eixo de rotação do corpo central
da chave.
Caso este angulo determinado pela posição do braço alcance de 35º a 75º
devemos obter uma precisão de torque de ~- 4% para chave hidráulica
fornecida pelas especificações RCO 11539/S a RC011547/S uma precisão de
+/- 5% para chave hidráulica fornecida pelas especificações RCO 11537/S,
RCO 11595/S e RCO 11608/S. Para código de referência da chave hidráulica
e chave anular em função do torque de aperto ver as paginas seguintes deste
parágrafo.
25
Para os valores do torque de aperto, referir-se ao diâmetro do parafuso estojo
a ser apertado (ver a tabela no parágrafo "procedimento para aperto dos
parafusos estojos da carcaça" incluído nesta seção).
10.14 INSTRUCÕES PARA USO DO EQUIPAMENTO HIDRAULICO PARA APERTO
DE PARAFUSOS E PORCAS NO FECHAMENTO DAS CAIXAS DO
COMPRESSOR
1. Equipamento hidráulico è formado de: Bomba hidráulica pneumática,
adaptadores para manômetros tubulação flexível do manômetro.
2. Chave hidráulica
3. Chave anular
10.14 Procedimentos para apertar os tirantes e porcas.
RELAÇÃO DE
PRESSÃO
Kgm = 9.8 Nm
26
TABELA DOS VALORES DE TORQUE DOS PARAFUSOS E PORCAS DE
TODOS OS COMPRESSORES CENTRÍFUGOS DA NUOVO PIGNONE
20000
18000
16000
14000
12000
10000
8000
6000
4000
2000
100 200 300 400 500 600
700
PRESSÃO bar
Kgm = 9.8 Nm
20000
18000
16000
14000
12000
10000
8000
6000
4000
2000
100 200 300 400 500 600
700
PRESSÃO bar
27
TorquesDiâmetro nominal dos parafusos prisioneiros
(mm) Kgm Nm
M 6 0,5 4
M 8 1 10
M 10 2 20
M 12 3,5 35
M 14 5,5 55
M 16 9 90
M 18 12 120
M 20 16 160
M 20 X 1,5 17 170
M 22 18 180
M 24 20 200
M 24 x 2 23 230
M 27 x 2 33 330
M 30 40 400
M 30 x 2 45 450
M 36 81 800
M 36 x 3 81 800
M 42 117 1150
M 42 x 3 122 1200
TABELA DOS VALORES DE TORQUE TIRANTES E PORCAS
(TIRANTES DO CONJUNTO DO DIAFRAGMA EBCL e PCL)
TorquesDiâmetro nominal dos tirantes (mm)
Kgm Nm
M 16 2,5 25
M 20 4,5 45
M 27 12 120
M 36 29 290
TABELA DOS VALORES DE TORQUE
(PARAFUSOS MONTADOS AXIALMENTE NOS MANCAIS RADIAIS
BCL,2BCL,DBCL e PCL)
TorquesDiâmetro nominal do mancal radial (mm)
Kgm Nm
50 à 90 10 100
110 à 120 18 180
130 31 310
150 à 180 63 620
200 110 1080
Material elaborado por
• Eduardo Losada Diaz – Engenheiro de Equipamentos Sênior (UN-
BC/ST/EGMSE)
• Ecimar Augusto da Silva – Técnico de Manutenção (UN-BC/ATP-MRL/TBM)
• Reginaldo Andrade – Técnico de Manutenção (UN-RIO/ATP-MLS –OP-51)
• Paulo Sergio Brito de Souza – Técnico de Manutenção (E&P.SERV/US-
AP/OTBM)
Referencias Bibliográficas
• Apostila – Centrifugal Compressors (Training Center Nuovo Pignone)
• Livro – Compressores Industriais – Paulo Sergio B. Rodrigues - Editora
Didática e Científica
• CD Multimedia – Centrifugal Compressor Fundamentals (CCF) – GE Nuovo
Pignone

Apostila compressor centrifugo

  • 1.
  • 2.
    1- Tipos deCompressores ÍNDICE ÍTEM Introdução 1.1 Caminho do Gás 1.2 Tipos de Compressores 1.3 Compressores com Carcaça bipartida horizontalmente 1.4 Compressores com Carcaça bipartida Verticalmente 1.5 Compressores com Carcaça tipo “Sino” 1.6 Compressores tipo “SR” 1.7
  • 3.
    1 1.1INTRODUÇÃO O compressor centrífugoé uma máquina “dinâmica”. Possui uma vazão contínua de fluido, que recebe energia do conjunto impelidores e eixo. Esta energia é transformada em pressão, parte através dos impelidores e parte pela seção do estator, isto é, nos difusores. Esta tipo de máquina é composta de uma carcaça externa (A) que contém a parte do estator, chamada de Bundle (Conjunto de diafragmas) (B) e um rotor formado por um eixo (C), um ou mais impelidores (D), um tambor de balanceamento (E) e um colar de escora (F). O conjunto rotor é acionado por meio de um cubo (G) e apoiado por mancais radiais (H), e mantido na posição axial por meio de um mancal axial (I). O conjunto rotor possui selos labirinto (L) e, se necessário, selos de óleo (M). A – Carcaça Externa G – Cubo de Acoplamento B – Conjunto de Diafragmas (Bundle) H – Mancais Radiais C – Eixo I – Mancal Axial D - Impelidores L – Selos Labirinto E – Tambor de Balanceamento M- Selo de Óleo F – Colar de Escora
  • 4.
    2 1.2 CAMINHO DOGÁS NO COMPRESSOR O gás é sugado para o compressor através de um bocal de sucção e entra na câmara anular (voluta de entrada), fluindo para o centro a partir de todas as direções em um padrão radial uniforme (ver fig. 1.2). Na câmara, no lado oposto ao bocal de sucção, existe uma aleta para evitar perturbações de gás. Figura 1.2 Carcaça aleta Lâmina eixo Impulsor voluta de entrada Bocal de sucção Tubo de sucção
  • 5.
    3 O gás fluipara o diafragma de sucção e então é sugado pelo primeiro impelidor (ver Fig. 1.3). Figura 1.3 Os impelidores consistem de dois discos, referidos como o disco e a proteção, conectados por lâminas que são montadas no eixo por interferência e mantidas no lugar por uma ou duas chavetas. O impelidor empurra o gás para frente aumentando sua velocidade e pressão; a velocidade de saída possui um componente radial e um tangencial. No lado do disco, o impelidor é exposto à pressão de descarga (ver fig. 1.4) e no outro lado parcialmente a esta mesma pressão e parcialmente à pressão de sucção. Assim é criada uma força de empuxo na direção da sucção. Voluta de entrada proteção Lâmina Disco Chaveta Eixo Vedações de labirinto vedação de labirinto Diafragma de sucção
  • 6.
    4 Figura 1.4 Depois ogás flui através de uma câmara circular (difusor), seguindo um caminho espiral onde perde velocidade e aumenta a pressão (devido à equação para vazão de fluidos através de condutos). Depois o gás flui ao longo do canal de retorno; este é uma câmara circular limitada por dois anéis que formam o diafragma intermediário que possui lâminas (ver fig. 1.5) para dirigir o gás para a entrada do próximo impelidor. As lâminas são dispostas para retificar a vazão espiral do gás para obter uma saída radial e uma entrada axial no impulsor seguinte. O caminho do gás é o mesmo para cada impelidor.
  • 7.
    5 Figura 1.5 Vedações dotipo labirinto são instaladas nos diafragmas para minimizar os vazamentos internos de gás (ver fig. 1.5). Estas vedações são formadas por anéis feitos de duas ou mais partes. O último impelidor de um estágio (o termo se refere à área de compressão entre dois bocais consecutivos) envia o gás para um difusor que leva para uma câmara anular chamada de voluta de descarga (ver fig. 1.6). Diafragma de entrada diafragma intermediário Difusor Canal de retorno Luvas lâmina vedações de labirinto
  • 8.
    6 A voluta dedescarga é uma câmara circular que coleta o gás do limite externo dos difusores e transporta o mesmo para os bocais de descarga; perto dos bocais de descarga existe outra aleta que evita que o gás continue a fluir ao redor da voluta e o dirige para o bocal de descarga (ver fig. 1.7). Figura 1.7 O tambor de balanceamento (E) é montado no eixo depois do impelidor final (ver fig. 1.1). Serve para balancear o empuxo total produzido pelos impelidores. Com o impelidor final fornecendo pressão em um lado do tambor, a pressão de entrada Figura 1.6 Voluta de descarga Último impulsor Voluta de descarga aleta Bocal de descarga
  • 9.
    7 do compressor éaplicada no outro lado através de uma conexão externa (linha de balanceamento, ver fig. 1.8). Figura 1.8. Desta forma as pressões de gás nos dois lados do rotor são aproximadamente balanceadas. Para obter níveis de pressão ainda mais similares e, portanto, as mesmas condições de operação para as vedações de óleo das pontas de eixo, é feita outra conexão externa entre as câmaras de balanceamento (linha de balanceamento, ver fig. 1.8). As câmaras de gás de referência são posicionadas fora dos labirintos das pontas de eixo. São conectadas para obter a mesma pressão da usada como referência para o sistema de selo de óleo (ver fig. 1.8 para o diagrama de blocos. Nos casos especiais, onde o selo de óleo e o gás de processo devem ser mantidos separados, gás inerte é injetado na câmara de balanceamento (sistema de gás de balanceamento) a uma pressão que permite seu vazamento para dentro e para fora formando um selo. SISTEMA DE ÓLEO DE VEDAÇÃO GÁS DE BALANCEAMENTO ÓLEO DE VEDAÇÃO LINHA DE GÁS DE REFERÊNCIA LINHA DE GÁS DE EQUALIZAÇÃO LINHA DE GÁS DE BALANCEAMENTO ANEL DE SELO DE ÓLEO CÂMARA DE REFERÊNCIA CÂMARA DE EQUALIZAÇÃO LABIRINTO DA PONTA ÚLTIMO IMPELIDOR PISTÃO DE BALANCEAMENTO PRIMEIRO IMPELIDOR LABIRINTO DA PONTA CÂMARA DE REFERÊNCIA CÂMARA DE EQUALIZAÇÃO ANEL DE SELO DE ÓLEO
  • 10.
    8 1.3 TIPOS DECOMPRESSORES Os compressores centrífugos fabricados possuem configurações diferentes para atender serviços e faixas de pressão específicos, sendo que cada fabricante adota uma nomenclatura associada ao tipo de compressor e suas características. Considerando a Nuovo Pignone encontramos as seguintes nomenclaturas relacionadas aos tipos de compressores existentes; 1.4 COMPRESSORES COM CARCAÇAS BIPARTIDAS HORIZONTALMENTE As carcaças bipartidas horizontalmente consistindo de duas meias carcaças ligadas ao longo da linha de centro horizontal (fig. 2.1) são usadas para pressões de operação abaixo de 60 bar. Figura 2.1.
  • 11.
    9 Os bocais desucção e descarga bem como quaisquer bocais de corrente lateral, tubos de óleo lubrificante e todas as outras conexões da instalação de compressor são localizadas na carcaça inferior. Com este arranjo tudo o necessário para levantar a carcaça superior para ter acesso a todos os componentes internos, tais como o rotor, diafragmas e vedações de labirinto, é remover os parafusos da tampa ao longo da linha de centro horizontal. Os compressores com carcaça bi-partida horizontalmente são indicados pela designação de letras MCL e podem ser identificados conforme o número de estágios. 1.4.1. Compressores MCL Estes compressores multi-estágio (ver fig. 2.2) possuem somente um estágio de compressão. Figura 2.2.
  • 12.
    10 1.4.2. Compressores 2MCL Estessão compressores multi-estágio (ver fig. 2.3) que agrupam dois estágios de compressão em série na mesma máquina com resfriamento entre os estágios. Figura 2.3. 1.4.3. Compressores 3MCL Estes são compressores multi-estágio que geralmente incorporam mais de dois estágios de compressão em uma única carcaça (ver fig. 2.4). Como regra são usados em serviços onde diferentes vazões de gás devem ser comprimidas em diversos níveis de pressão, isto é, injetando e/ou extraindo gás durante a compressão.
  • 13.
    11 Figura 2.4. 1.4.4. CompressoresDMCL Dois estágios de compressão são dispostos em paralelo em uma única carcaça. O fato de ambos estágios serem idênticos e o bocal de descarga ser posicionado no centro da carcaça torna esta solução a mais balanceada possível. Ainda mais, uma vazão dupla é criada por um impulsor central comum (ver fig. 2.5).
  • 14.
    12 Figura 2.5. 1.5 COMPRESSORESCOM CARCAÇAS BIPARTIDAS VERTICALMENTE As carcaças bipartida verticalmente são formadas por um cilindro fechado com duas tampas nas pontas: daí a denominação “barril” usada para se referir aos compressores com estas carcaças. Estas máquinas, que são geralmente multi- estágio, são usadas para serviços de alta pressão (até 700 kg/cm2 ). Dentro da carcaça (ver fig. 2.6) o rotor e o diafragma são essencialmente os mesmos dos compressores MCL.
  • 15.
    13 Figura 2.6. 1.5.1. CompressoresBCL Estes são compressores do tipo barril com um único estágio de compressão (ver fig. 2.7). Figura 2.7.
  • 16.
    14 1.5.2. Compressores 2BCL Estessão compressores do tipo barril com dois estágios de compressão em série em uma única carcaça (ver fig. 2.8). Figura 2.8. 1.5.3. Compressores DBCL Como os compressores DMCL, estes compressores incorporam dois estágios de compressão em paralelo em uma única carcaça.
  • 17.
    15 1.6 COMPRESSORES COMCARCAÇA DE SINO 1.6.1. Compressores BCL com Carcaça de Sino Os compressores de barril para altas pressões possuem carcaças em forma de sino e são fechados com anéis de cisalhamento em lugar de parafusos (ver fig. 2.9). Figura 2.9.
  • 18.
    16 1.6.2. Compressores PCL Estespossuem carcaças em forma de sino com uma única tampa vertical na ponta em lugar de duas como nos compressores BCL. Geralmente são usados para transporte de gás natural (ver fig. 2.10). Normalmente possuem sucção lateral e bocais de descarga posicionados opostos um ao outro para facilitar a instalação nos gasodutos. Figura 2.10
  • 19.
    17 1.7 COMPRESSORES SR Estescompressores são apropriados para serviços de pressão relativamente baixa. Apresentam a característica de diversos eixos com impulsores em balanço. Os impelidores são normalmente do tipo aberto, isto é, sem cobertura, para obter elevadas pressões de ponta com baixos níveis de tensão e altas relações de pressão por estágio. A entrada de cada impelidor é coaxial enquanto que a saída é tangencial. Estes compressores são usados geralmente para compressão de ar ou vapor, aplicações geotermais, etc. (ver fig. 2.11). Figura 2.11
  • 20.
    2 - Termodinâmica ÍNDICEÍTEM Fenômeno de Compressão 2.1 Processo de Difusão 2.2 Teoria do Impelidor 2.3 Definição dos Parâmetros Termodinâmicos da Compressão 2.4 Característica de Funcionamento dos Compressores 2.5 Associação de Múltiplo Estágios 2.6 Curva da Máquina 2.7 Ponto de Operação 2.8 Limites Operacionais 2.9 Controle de Capacidade e anti-Surge 2.10
  • 21.
    1 2. CONCEITOS BÁSICOSDA COMPRESSÃO EM CENTRÍFUGOS 2.1. FENÔMENO DA COMPRESSÃO – O CAMINHO DO GÁS A figura no 01 mostra um compressor centrífugo de um único estágio. Um elemento girante munido de pás, denominado impelidor ou rotor, aspira o gás pela sua abertura central (olho) e o força a deslocar radialmente, devido à ação da força centrífuga gerada pela rotação. Daí o nome dado a este tipo de compressor. Fica então estabelecido um fluxo continuo, resultando urna transferência de energia do impelidor para o gás, que sofre um aumento de pressão e velocidade. O fluxo expelido do impelidor passa a se deslocar livremente no difusor radial, um anel circular que envolve o impelidor. Quando um gás escoa em velocidade subsônica, um alargamento na seção transversal leva a urna queda de velocidade e aumento de pressão. Isto é o que ocorre no difusor: A energia em forma de velocidade auferida no impelidor é convertida em pressão. Os difusores radiais podem ou não ser aletados. As aletas só servem para dar urna orientação mais conveniente ao fluxo. O escoamento é então recebido pela carcaça em forma de espiral conhecida como voluta. A seção transversal da voluta é crescente apenas para acomodar a quantidade de gás progressivamente descarregada pelo difusor radial, sendo pretendido, ao menos nas condições de projeto, que a pressão não varie ao longo dela. Antes de ser descarregado o gás passa por um bocal divergente o difusor da voluta, onde se complementa o processo de difusão (alguns compressores possuem um único difusor, radial ou da voluta). A máxima pressão que o gás pode alcançar em um estágio centrifugo é baixa, estando limitada por dois fatores: pela resistência mecânica do impelidor às tensões
  • 22.
    2 radiais oriundas darotação e pela possibilidade de ser ultrapassada a velocidade sônica. Assim, em aplicações industriais os níveis de pressão requeridos são tais que se utilizam compressores de múltiplos estágios. 2.2. PROCESSO DE DIFUSÃO Existem três alternativas para o processo de difusão: − Em anel difusor; − No difusor da voluta; − Em anel difusor e no difusor da voluta. Para compressores de múltiplos estágios é empregada a última alternativa, sendo o anel empregado entre estágios e a voluta com difusor ao final do último estágio. Para retornar o gás do difusor de um estágio para a entrada do impelidor do estágio seguinte, o gás passa por uma curva e um canal de retorno, que deve ser divergente (espessura com aumento progressivo da periferia para o centro) para não desfazer o trabalho do difusor. O canal de retorno possui aletas (ver figura no 1A) para dirigir o gás para a entrada do próximo impelidor.As aletas são dispostas para retificar a vazão espiral do gás para obter uma saída radial e uma entrada axial no impelidor seguinte. Figura no 1A O difusor em anel pode ser liso ou aletado, sendo primeiro mais empregado, pois, embora o aletado reduza o percurso do gás no difusor, provoca choques e perda de energia quando operado fora da vazão de projeto, já que o ângulo das aletas é projetado para promover urna entrada suave em urna única vazão. Em um difusor liso a trajetória do gás e uma espiral devido a vazão livre com perda de velocidade igualmente, Diafragma de entrada diafragma intermediário Difusor Canal de retorno Luvas aletas vedações de labirinto
  • 23.
    3 tanto na componenteradial como na tangencial. Normalmente a largura do difusor é constante, sendo que em alguns casos as paredes são divergentes (em até cerca de 10%). A voluta e uma carcaça em espiral que coleta o gás na saída do último impelidor de um compressor multi-estágios ou de um compressor de um único estágio. Na extremidade da voluta e que há normalmente um canal divergente, o difusor da voluta. 2.3. TEORIA DO IMPELIDOR -CONCEITO DE HEAD Estudaremos a transferência de energia num impelidor centrífugo.Para isso consideremos individualmente o escoamento do gás em um canal entre duas pás do impelidor, idealizando que o gás preenche homogeneamente este canal, escoando de maneira unidimensional, permanente e uniforme. C é a velocidade absoluta do gás, U a velocidade periférica do impelidor devido a rotação, W a velocidade do gás relativa ao impelidor. Assim, vetorialmente: C = U + W. A figura no 02 mostra estas velocidades na entrada e na saída do impelidor. W1 aparece tangente às pás na entrada do impelidor, caracterizando urna "entrada suave", que só se verifica para urna dada vazão para cada rotação, que corresponde à condição de projeto. Do mesmo modo a velocidade relativa de saída W2 aparece com ângulo de
  • 24.
    4 inclinação idêntico aodas pás, devido à hipótese de que a trajetória do gás toma o formato do perfil das pás. Podemos relacionar aqueles triângulos de velocidade na entrada e saída do impelidor com a transferência de energia. Usando o teorema de variação do momento da quantidade de movimento, que indica que o torque (τ) aplicado a urna massa de gás (m) que escoa num intervalo de tempo (∆t) é dado por: τ = m . (r2 . Cu2 – r1 . Cu1) (1) ∆t onde, Cu é a projeção da velocidade absoluta na direção periférica. Introduzimos aqui o conceito de "Head": é a energia cedida a cada unidade de massa do fluido no processo de compressão. H = N (2) M onde, N é a potência (energia por unidade de tempo) cedida ao fluido durante a compressão e M e a vazão em massa do fluido (massa por unidade de tempo). Se multiplicarmos (1) pela velocidade angular (Ω), vem: τ . Ω = M . ( U2 . Cu2 – U1. Cu1.) (3) pois r . Ω = U. Sabemos que τ . Ω. = N. Passando, então, a vazão em massa para o membro esquerdo aparece o Head (H): H = U2 . Cu2 – U1. Cu1 (4) Esta é a equação de Euler e o Head assim calculado é denominado Head de Euler. Na maioria dos compressores não existe dispositivo para conferir pré-rotação ao gás na entrada do impelidor. Assim o fluido entra radialmente no impelidor, ou seja, Cu1 = O e, de (4): H = U2 . Cu2 (5) Verifica-se que o Head fornecido ao fluido pelo impelidor é função apenas de: − Rotação do impelidor (Ω) − Raio externo do impelidor (r2) − Vazão através do impelidor (V2) − Ângulo de saída das pás (β2) A rotação e o raio impelidor influenciam U2 ( U2 = Ω . r2 ). O ângulo de saída das pás e a vazão influenciam Cu2. Veja na fiqura no 03 como Cu2 cresce (e H também) com o aumento de β2.
  • 25.
    5 De acordo como ângulo β2 o impelidor será denominado: impelidor de pás para trás quando β2 < 90º; de pás radiais quando β2 = 90º e de pás para frente quando β2.> 90º. Impelidores com pás para frente, embora produzam maiores Heads, tem faixa de funcionamento estável reduzida. Também operam com baixas eficiências, pois o impelidor confere grande parte da energia ao fluido na forma de velocidade, implicando em grandes velocidades e perdas no processo de difusão. Impelidores com pás radiais conferem altos Heads com boas eficiências, mas em faixas limitadas de vazão. É o mais resistente e pode trabalhar com maiores velocidades periféricas. E usado quando se necessita alto Head com poucos estágios. Impelidores com pás para trás permitem um grande intervalo estável de vazões, incluindo a faixa de maior eficiência, apesar de fornecerem menores Heads. As vantagens citadas os tornam os de uso universal industrial (55º ≤ β2 ≥ 65º). A vazão volumétrica na saída do impelidor (V2) pode ser escrita em função da projeção da velocidade relativa na direção radial (Wr2) e da área de saída (A2), como: V2 = A2 . Wr2 (6) Assim (5) pode ser reescrita para incluir V2, utilizando relações trigonométricas no triângulo de velocidades de saída, como: H = U2 2 - U2 . Wr2. .cotg β2 (7) ou H = U2 2 - U2 . V2 . .cotg β2 (8) A2 Portanto, o Head varia linearmente com a vazão volumétrica na descarga. Na figura no 04 mostramos graficamente esta relação para as três possíveis configurações das pás.
  • 26.
    6 Na realidade, devidoao fenômeno de circulação ("Slip") do fluido entre duas pás do impelidor, os ângulos das velocidades relativas do gás são um pouco menores que os ângulos das pás (β2),.causando que o Head cedido ao gás seja menor que o previsto no caso ideal (cerca de 10 a 20%). Essa diminuição do Head em relação ao ideal não implica em perda de energia ou redução da eficiência. Tanto a energia recebida pelo gás para aumentar a pressão, como a cedida pelo impelidor são menores devido ao “Slip”. No entanto, os projetistas tentam diminuir o fenômeno de modo a conseguir um maior Head para as mesmas condições gerais. Até aqui não foram levadas em conta as perdas de energia do fluxo por atrito do fluido nas superfícies de impelidor e difusor e por choques, ou seja, turbulência e separação das linhas de fluxo, devido a mudanças de direção ou incidência do fluxo nas pás. Assim o impelidor cede ao fluido o Head de Euler (ideal) menos o "SLIP". Porém só
  • 27.
    7 uma parte destaenergia e utilizada para aumento de pressão (útil), o restante correspondendo as perdas citadas. As perdas por atrito variam com o quadrado da velocidade do fluido, ou seja, da vazão. As perdas por choques têm um mínimo para uma certa vazão (um certo triângulo de velocidades), aumentando para vazões maiores ou menores. Os diagramas Head útil x Vazão volumétrica na descarga tomam o seguinte aspecto: Vemos nos dlagramas dois valores de vazão características: − Qproj : Vazão em que é máxima a eficiência do impelidor, ou seja, em que é mínima a diferença entre o Head total ou real e o Head útil. O projeto é sempre feito para operação nesta vizinhança.
  • 28.
    8 − Qmin: Vazãopara a qual o Head útil é máximo. Esta é a vazão mínima do impelidor, pois abaixo dela a máquina se torna instável. Explicaremos este fenômeno posteriormente. 2.4. DEFINIÇÃO DOS PARAMÊTROS TERMODINÂMICOS DA COMPRESSÃO 2.4.1. HEAD REAL Heff O Head real Heff de um estágio de compressor (como para toda a máquina) é o trabalho real L1, 2 que é trocado entre o fluido e a máquina por unidade de peso do gás que circula. Conforme esta premissa, o Heff real é expresso pela relação: Heff = L1, 2 = p1∫p2 vdp + La (9) Ou pela relação: Heff = L1, 2 = (h2 – h1) + Qe (10) Que, no caso de máquinas onde a suposição de transformação adiabática (Qe = 0) é muito próxima da realidade (como no caso dos compressores centrífugos), assume a forma bem conhecida: Heff = L1, 2 = (h2 – h1) (11) As considerações resultantes de uma rápida verificação das condições acima são as seguintes: - Somente uma parte do trabalho L1, 2 fornecido (ou head real) é encontrado na forma de aumento de energia potencial termodinâmica do fluido, expresso por: p1∫p2 vdp (este valor é chamado de Head politrópico Hpol do qual falaremos mais tarde), enquanto que um parte La, é usada para vencer o fenômeno da resistência passiva (perdas devido ao atrito, impacto, etc.) relacionada com a vazão do fluido e que, transformada em calor, permanece dentro do próprio fluido; - O conhecimento da variação na quantidade de “entalpia h”, inferida da pressão e da temperatura do gás medida na sucção e descarga do compressor, permite estimar o Head real Heff (ou trabalho específico) trocado entre o gás e a máquina por unidade de peso.
  • 29.
    9 2.4.2. HEAD POLITRÓPICOHpol Conforme já citado, o Head politrópico Hpol de um estágio, bem como de toda a máquina, é definido como a energia acumulada no fluido sempre na forma de aumento da energia potencial termodinâmica expresso por: Hpol = p1∫p2 vdp (12) A transformação idealizada (sem perdas) chamada politrópica (reversível e entre as mesmas pressões e temperaturas de sucção e discarga) é a melhor forma de se estimar a energia potencial termodinâmica transmitida ao gás (energia útil), já que não há como, analiticamente descrever-se o processo real de compressão ponto a ponto. A trasformação politrópica é composta de duas parcelas (vide figura no 6A): • uma transformação isentrópica (sem perdas, reversível) entre a condição de sução (ponto 1) e a pressão final de descarga (ponto 2IS), onde somente há trabalho; • uma transformação isobárica (a pressão constante p2 – pressão de descarga) até que seja alcançada a temperatura de descarga (ponto 2), onde há uma tranferência virtual de calor. Figura no 6A Ou seja, o calor grado pelas perdas em um processo real não reversível pode ser simulado por calor cedido do meio externo de forma reversível. O processo pode ser aprimorado se o dividirmos em várias pequenas transformações, que, se encadeadas passo a passo, recriarão a transformação completa. A equação que define este processo teórico chamado politrópico é: pvn = constante (13) onde n é o expoente médio da transformação politrópica entre os pontos 1 e 2, no começo e no fim do processo real de compressão (Figura 6A). Se substituirmos a relação acima na integral e a desenvolvermos, temos a seguinte relação:
  • 30.
    10 HPOL = 1−n n Z1RT1 ⎥ ⎦ ⎤ ⎢ ⎣ ⎡ − − )1) 1 )(( 1 2 n n P P (14) onde: Z1é o fator de compressibilidade calculado nas condições iniciais; R é a constante característica do gás; T1 é a temperatura de sucção do gás; p1 é a pressão de sucção do gás; p2 é a pressão de descarga do gás; n é o expoente da transformação politrópica assumido como constante durante a transformação. As unidades de medida para expressar a altura manométrica politrópica Hpol são metros (m), se o sistema técnico de unidades de medida for adotado, ou, mais corretamente, as unidades para energia específica (J/kg) se o sistema internacional de unidades de medida for adotado. 2.4.3. EFICIÊNCIA POLITRÓPICA (ηPol) A energia entregue ao gás no processo de compressão é maior que o calculado através da idealização dada pelo Head politrópico, visto que é considerada somente a energia útil para aumento de pressão, sem perdas. Com isso, surge o conceito de eficiência que relaciona o Head necessário para um processo ideal com o real. A eficiência politrópica (ηPol) de um compressor é definida como a relação entre o Head politrópico Hpol, que acabamos de definir, e o Head real Heff para comprimir cada unidade de massa do gás. ηPol = Hpol (15) Heff Portanto, de acordo com o exposto anteriormente e considerando as expressões já fornecidas para Hpol e Heff, temos: ηPol = )( 1 1 )1/2( 1 12 11 hh n n PP n n RTZ Heff Hpol − ⎥ ⎦ ⎤ ⎢ ⎣ ⎡ − − − = (16) Esta relação pode ser simplificada na forma: k k n n npol 1 . 1 − − = (17) Para um gás perfeito, onde n é o expoente médio da transformação politrópica de compressão entre as condições inicial e final
  • 31.
    11 k (= cp/cv) é o expoente da transformação adiabática isentrópica, na mesma relação de compressão da transformação real considerada. A temperatura de descarga para uma transformação politrópica pode ser calculada por: ⎟ ⎠ ⎞ ⎜ ⎝ ⎛ = − 1 2 . 1 12 P p TT n n (18) Utilizando as duas equações anteriores, lembrando que estamos considerando um gás perfeito, ⎟ ⎠ ⎞ ⎜ ⎝ ⎛ = − 1 2 . . 1 12 P p TT nk k pol (19) Explicitando o ηPol )/(ln )1/2(ln . 1 12 TT pp k k n pol − = (20) Assim sendo, podemos inferir que é possível estimar a eficiência politrópica, confiável e experimentalmente, medindo os parâmetros termodinâmicos na sucção (p1 e T1) e na descarga (p2 e T2) do compressor, desde que o gás movimentado possa ser aproximado a um gás perfeito. De outra forma, os valores Hpol e Heff devem ser calculados, após medir experimentalmente os valores de pressão e temperatura de entrada e saída e conhecendo a composição do gás, conforme as equações de estado que representam o comportamento do gás tão real quanto possível. A equação de estado mais comum aplicada ao gás natural é a equação de B.W.R.S. (Benedict, Webb, Rubbin, Starling). 2.4.4. HEAD ADIABÁTICO Had O Head Adiabático de um compressor (Had) é a energia entregue ao fluido devido a um processo idealizado reversível, e portanto isentrópico (sem perdas), de compressão adiabática (transformação 1 – 2is na figura 6A) ocorrido entre as mesmas pressões p1 inicial e final p2, entre as quais é realizado o processo de compressão real. Obviamente a temperatura de descarga desta transformação ideal é menor que a real.
  • 32.
    12 A altura manométricaHis então é obtida da relação His = p1∫p2 vdp com pvk = constante (21) Que pode ser expressa na forma His = Z1RT ⎥ ⎦ ⎤ ⎢ ⎣ ⎡ − − − 1 1 )( 1 1 2 K K P P k k (22) considerando k = constante durante a transformação onde: k (= cp/ cv) é o expoente ligando as pressões e volumes específicos durante a compressão isentrópica; Z1 é o fator de compressibilidade do fluido no começo da transformação adiabática reversível; R é a constante característica do gás; T1 é a temperatura de sucção do gás; P1 é a pressão de sucção do gás; P2 é a pressão de descarga do gás. Também o Head adiabático His, como o politrópico Hpol, é expresso em (m) ou (J/kg) dependendo de aplicar o sistema de unidades técnico com internacional para as unidades de medição. 2.4.5. EFICIÊNCIA ADIABÁTICA ηad A eficiência adiabática ηad de um compressor é a relação entre o Head adiabático Had, definido acima, e o Head real Heff. É obtido da relação nad = )( 1 1 )/( 1 12 1211 hh k k PP k k RTZ H H eff ad − ⎥ ⎦ ⎤ ⎢ ⎣ ⎡ − − − = (23) Diferentemente das considerações sobre eficiência politrópica, a eficiência adiabática ηad depende da relação de compressão p2/p1, além da máquina e da natureza do fluido, como no caso do gás perfeito em que é dada pela relação: nad = 1 . 1 )( 1 1 )( 1 2 1 2 − − − − Pnk k P P k k P P (24)
  • 33.
    13 Esta relação mostraque a eficiência adiabática ηad é sempre menor que a eficiência politrópica ηpol. Quanto mais a relação de compressão p2 / p1 tende para 1, mais a eficiência adiabática tende para o valor politrópico. O rendimento permite saber o grau de eficiência com que o compressor executa o processo. Nesse sentido o rendimento politrópico é um critério mais verdadeiro de avaliação, pois usa como critério de comparação a energia que seria cedida num processo sem perdas (irreversibilidades) entre os mesmos estados de sucção e descarga que os reais (HP). Já o rendimento adiabático considera um processo que leva a um estado de descarga que não é real, e que necessitaria menor aporte de energia. Assim o rendimento politrópico é considerado a eficiência hidráulica do impelidor, independendo do gás ou das condições de serviço, sendo função apenas da vazão em volume na sucção, para cada rotação. A temperatura de descarga para uma transformação isoentrópica e adiabática pode ser calculada por: ⎟⎟ ⎠ ⎞ ⎜⎜ ⎝ ⎛ − += ad S TT TT η 12 12 , (25) onde T2S é a temperatura de descarga teórica adiabática (vide figura 6A), dada por: ⎟ ⎠ ⎞ ⎜ ⎝ ⎛ = − 1 2 . 1 12 P p TT k k S (26) 2.4.6. EFICIÊNCIA MECÂNICA Além da potência empregada na compressão do gás (a útil e as perdas hidráulicas), o acionador deve compensar as perdas por atrito mecânico do eixo com os mancais e com o sistema de selagem, além das perdas associadas à rotação dos impelidores num meio viscoso. Assim, é definida a eficiência mecânica (ηM), relacionando a potência empregada na compressão (N) e a potência total necessária no eixo do compressor (W). ηM = N (27) W As perdas por atrito podem ser calculadas empiramente por: Pat = N0,4 => W= N + N0,4 (28 )
  • 34.
    14 2.4.7. Potência absorvidapelo compressor Os diagramas disponíveis, fornecidos pelo fabricante, que indicam o Head H (politrópico ou adiabático) e a eficiência (politrópica ou adiabática) para determinados valores da velocidade de rotação n, permitem calcular o trabalho específico real (L1,2) ou Head real (Heff) por meio das relações: eff ad ad POL POL H n H n H L ===2,1 (29) Conhecendo o trabalho específico L1, 2, é possível calcular a potência total consumida no eixo do compressor, através da relação: W = M . L1, 2 + Pf + Pm (30) onde Pf representa a potência perdida devido a vazamento e Pm representa a potência perdida devido a perdas mecânicas. Também podemos calcular a potência consumida no eixo do compressor. Por: W = M . HT (31) ηT . ηM onde: M é a vazão mássica, HT é o Head ideal (tornado em base adiabática ou politrópica), ηT é o rendimento termodinâmico (também adiabático ou politrópico, conforme o adotado para o Head) e ηM é o rendimento mecânico.
  • 35.
    15 2.5 CARACTERÍSTICAS DEFUNCIONAMENTO DOS COMPRESSORES CENTRÍFUGOS 2.5.1 CURVAS CARACTERÍSTICAS As principais características de funcionamento de um compressor centrífugo são: vazão, potência e temperatura de descarga. Estas grandezas dependem essencialmente das variáveis: pressão e temperatura de sucção, pressão de descarga e natureza do gás comprimido, além, é claro, das caracteristicas próprias da máquina. Para fornecer informações a respeito do comportamento e desempenho de suas máquinas, inter- relacionando os parâmetros acima, os fabricantes costumam fornecer gráficos, denominados curvas características. É logicamente uma forma limitada, posto que envolve tantos parâmetros. O Head termodinâmico e o rendimento termodinâmico são nesse contexto muito importantes pois estão diretamente relacionados com as quatro variáveis acima descritas. a) CURVAS DE HEAD TERMODINÂMICO E RENDIMENTO TERMODINÂMICO É a mais usual forma de representação das curvas características para compressores centrifugos. Para uso prático destas curvas a vazão volumétrica na saída do impelidor (V2), usada até aqui, não se mostra conveniênte. É,mais conveniente expressar estas curvas em função da vazão volumétrica na sucção da maquina (V1), que pode ser facilmente medida. V1 e V2 são diferentes devido a compressibilidade do gás, ou seja, devido a alteração dos volumes específicos da sucção (v1) para a saída do impelidor (v2). Assim: V2 = V1 (= M ) => V1 = v1 . V2 (32) v2 v1 v2 A relação entre os volumes específicos (v2 / v1) depende, para uma dada energia transferida, da temperatura de sucção e da natureza do gás, agrupados no conceito "Grau de Compressibilidade”. O grau de compressibilidade é tão maior quando maior for a variação dos volumes especificos (mais baixas temperaturas de sucção ou mais alto peso molecular), para uma dada energia de compressão . A figura no 07 mostra o aspecto de duas curvas de Head x Vazão na sucção, para um compressor operando com dois gases diferentes. Evidentemente a curva H x V2 seria a mesma nos dois casos: O efeito do grau de compressibilidade é normalmente desprezado, se a variação dos volumes específicos é pequena.
  • 36.
    16 A base dereferência adotada para o Head e o rendimento pode ser adiabática ou politrópica. No entanto, a base politrópica é a preferida pois, dentro de uma certa aproximação, o Head e .o rendimento politrópico só dependerão da vazão e rotação do compressor (desprezada a influência da temperatura de sucção e da natureza do gás, ou seja, do grau de compressibilidade), o que não.ocorre com o rendimento adiabático, que depende da relação de compressão. As curvas HT x V1 e ηT x V1 podem ser apresentadas nas duas formas mostradas na fig. no 08, sendo que na primeira temos curvas de rendimento para cada rotação e na segunda ( mais comum) temos curvas de rendimento constante.
  • 37.
    17 A potência decompressão e a temperatura de descarga podem ser obtidas a partir do Head e do rendimento, como já mostrado. b) CURVAS DE PRESSÃO DE DESCARGA E POTÊNCIA DE COMPRESSÃO Se fixarmos a pressão e temperatura de sucção e a natureza do gás, é possível representar graficamente a pressão de descarga e a potência do compressor contra a vazão mássica. Esta é a maneira mais direta de representar o desempenho de um compressor centrifugo, pois vazão e potência são duas das grandezas que estamos interessados, e aparecem explicitamente. A temperatura de descarga pode ser calculada. A grande inconveniência deste tipo de representação é a falta de generalidade, dado que os parâmetros fixados estão muitas vezes sujeitos a pequenas variações. Para ganhar alguma generalidade podemos incluir nas curvas a pressão de sucção como variável. Para isso, pode-se usar P2 / P1 ao invés de P2 e N / P1, substituindo N. O formato geral das curvas permanece o mesmo.
  • 38.
    18 2.6.ASSOCIAÇAO DE MÚLTIPLOSESTÁGIOS Vamos considerar um compressor com dois estágios similares, a exceção das larguras do impelidor, difusor e demais áreas de passagem. Isto é um aspecto comum nos compressores multiestágios. Numa aproximação razoável, as curvas Head e rendimento politrópico para os dois estágios seriam idênticos, se traçados em função da velocidade C1 de entrada no impelidor, tal como as da figura no 10. Consideremos a velocidade C1*. Ela corresponde ao ponto de máximo rendimento (ponto Y) e ao Head definido pelo ponto A, que impõe uma relação rv* (= v1 / v2) entre os volumes específicos de entrada e saída do primeiro estágio. Como, naturalmente, queremos que o segundo estágio opere com eficiência máxima, reduziremos as áreas de passagem, em relação ao primeiro estágio, na mesma proporção dos volumes específicos. Ou seja: RELAÇÃO DE ÁREAS = rv*. Assim a velocidade de entrada no segundo impelidor será C1* novamente. Com isso o Head do conjunto será o dobro de "A", e o rendimento será igual. Para velocidades superiores à de projeto (vazões supeirores), o primeiro estágio operaria, por exemplo, com Head dado pelo ponto B e rendimento dado por Z, na fig. no 10. Este head menor (menor relação de compressão) irá levar a uma relação de volumes
  • 39.
    19 específicos inferior arv* e, portanto, as áreas de passagem do segundo estágio, definidas pela condição anterior, serão pequenas agora. Portanto a velocidade de entrada no segundo estágio será superior a do primeiro, o Head será inferior ao do primeiro (ponto B") e a soma total dada por B'. Para velocidades inferiores à de projeto (vazões inferiores), o primeiro estágio teria Head dado por C e rendimento dado por X. Agora as áreas de passagem se tornariam grandes demais e a velocidade de entrada do segundo impelidor será menor que a do primeiro, o Head será superior ao do primeiro (ponto C") e a soma total dos Heads dada por C'. A esse efeito é dado o nome de "bola de neve" devido ao fato de que se a velocidade de entrada do primeiro estagio se afasta do valor de projeto, mais dele se afastarão as velocidades de entrada dos estágios subsequentes. E na mesma direção. Já a curva de Head do conJunto sofre uma rotação em relação a curva dos estágios, tornando-se mais próxima da vertical (curva de Head do conjunto passa pelos pontos C’ - A’ - B’). Num raciocínio análogo a curva de rendimento torna-se mais fechada que a de cada estágio, levando a maior sensibilidade ao afastamento das condições de projeto (curva de rendimento do conjunto passa pelos pontos X’ – Y’ – Z’). É importante registrar que não só mudanças na velocidade de entrada do primeiro estágio implicam no efeito bola de neve. Também variações de rotação, temperatura de sucção e natureza do gás provocam o efeito, sendo que o efeito total será a composição de todos. 2.7.CURVA DA MÁQUINA Nos itens anteriores descrevemos as curvas características de cada estágio simples. Para chegar nas curvas de desempenho total de uma máquina é necessário, é claro, juntar as curvas dos diversos estágios constituintes, para chegar no desempenho total. Na prática isto é realizado por um programa de computador, armazenando as curvas de desempenho dos estágios simples, e através de uma equação de estado apropriada para os gases reais (geralmente aplicamos a equação de Benedict-Webb- Rubin generalizada por Starling). As curvas dos estágios simples, nos diversos e possíveis valores de operação em termos de número de Mach (rotações), são obtidas através dos resultados de testes de cada estágio, sendo depois armazenadas no computador. O computador pode “escolher” estes estágios para valores de vazão perto dos projetados (faixa de seleção para um estágio padrão) e então “compor” a máquina para chegar nas curvas totais exigidas. Na prática, o trabalho é realizado da seguinte forma: conhecendo as condições de entrada (pressão, temperatura, composição do gás, vazão, etc.) e com base nas características do impelidor e na equação de estado escolhida, as condições na saída do estágio são calculadas (pressão, temperatura, etc.); daí a vazão de entrada no próximo estágio é conhecida. Portanto, é possível “selecionar” o próximo estágio mais apropriado para a vazão nominal de projeto. O procedimento então é o mesmo como para o primeiro estágio, até que se chegue às condições finais (estabelecimento das pressões de projeto).
  • 40.
    20 Claramente, conforme asdiferentes aplicações possíveis, obtemos curvas de desempenho diferentes na eficiência, formato da curva e faixa de operacional de vazões (máxima – mínima), etc. 2.8.PONTO DE OPERAÇÃO Para entrar nas curvas características de um compressor e estabelecer o ponto de operação necessitamos da pressão e temperatura de sucção, pressão de descarga e natureza do gás (para uma dada rotação). Porém, na maioria dos sistemas industriais, esses parâmetros são dependentes da vazão, devido às perdas de carga e trocas térmicas. Assim, o ponto de operação será estabelecido se as condições p1, t1, p2 e natureza do gás satisfazerem tanto as equações ou curvas da máquina como as do sistema, para o mesmo valor de vazão mássica. As curvas da máquina são dadas pelos fabricantes. .As curvas do sistema representam a energia necessária ao fluido para que possa escoar e vencer a resistência do sistema (contra-pressão, atrito interno com a tubulação) em função da vazão de gás. A curva do sistema pode ser do tipo "a" da figura no 11, no caso em que a tubulação do sistema é muito pequena, sem restrições, e toda a energia é usada para vencer um diferencial de pressão. Em outros sistemas toda a energia pode ser usada para compensar as perdas por atrito devido ao escoamento do gás em tubulações longas, com nenhuma diferença de pressão entre os reservatórios de sucção e descarga. Neste caso, temos a curva "c", uma parábola passando pela origem. É o caso dos gasodutos em terra. Se o sistema for misto, sendo parte da energia usada para compensar perdas por atrito e outra parte para vencer um diferencial de pressão, o sistema apresenta uma curva do tipo "b".
  • 41.
    21 Como estas curvasem geral não são conhecidas, o ponto de operação do compressor pode ser determinado pelo seguinte processo interativo: -Arbitra-se um valor para a vazão mássica M; -Calcula-se a perda de carga na sucção a partir de um ponto de pressão fixa, definindo-se assim a pressão de sucção p1 e a vazão volumétrica aspirada V1; -Entra-se n.as curvas do compressor tirando-se a pressão de descarga p2 e a temperatura de descarga T2. -Calcula-se a perda de carga entre a descarga do compressor e um ponto a jusante de pressão fixa. Se o valor de p2 diminuído da perda da carga coincidir com o valor de pressão do ponto fixo a jusante, temos a vazão M correta e o ponto de operação determinado. Tudo foi considerado para temperatura de sucção do compressor e natureza do gás com variações desprezíveis por facilidade. Como última observação notamos que, se um compressor for colocado em operação em um dado sistema, sem qualquer tipo de controle, a vazão e pressões de equilíbrio não necessariamente serão convenientes ao processo. A situação pode ser melhorada exercendo-se um controle de capacidade. 2.9.LIMITES OPERACIONAIS a) LIMITE DE "SURGE" Existe uma vazão mínima para o compressor, a cada rotação, abaixo da qual a operação se torna instável, tendo Inicio um fenômeno chamado de "surge". A.causa deste fato esta na forma da curva p2 x V1 do compressor (vide figura no 12), que, depois de atingir um máximo, começa a decrescer para menores vazões. Este valor de pico é o limite de surge. Uma instabilidade leve é observada mesmo antes de chegar no ápice da curva (pulsações de pressão com freqüência muito menor que a velocidade de rotação) e é
  • 42.
    22 devida a “rottantingstall”, isto é, descolamento da camada limite localizamente (geralmente em algumas aletas do canal de retorno ou algumas pás do impelidor). O stall se move ao longo de linhas circunferenciais, originando assim o nome como este fenômeno é conhecido. Para uma explicação simplificada do fenômeno de surge, suponhamos que durante a operação de um compressor, a rotação constante, uma válvula na linha de descarga seja progressivamente fechada, aumentando a resistência do sistema e, portanto, o Head (ou pressão de descarga), necessário para vencer esta resistência. À medida que se fecha a válvula, a vazão através do compressor cai, até atingirmos a vazão correspondente ao máximo Head (ou pressão de descarga). Nessa condição, a contrapressão do sistema é maior que a pressão de descarga que o compressor pode fornecer, causando momentaneamente uma inversão de fluxo através do compressor, cuja duração será da ordem de décimos de segundo. Isto porque, com a inversão de fluxo, a pressão na descarga cai, tornando o compressor capaz de, novamente, fornecer uma vazão superior à do limite de surge. A operação volta a seguir a curva característica até atingir, novamente, o limite de surge, numa ação cíclica. O compressor emite um som peculiar audível a longas distâncias. As consequências da ocorrência do surge dependem de sua duração e das características da instalação, podendo variar de uma perturbação simples até ocorrências desastrosas, tais como: -Vibrações, especialmente na direção axial, causando empeno do rotor, destruição do sistema de selagem, das tubulações, de mancais e de impelidores; -Aquecimento anormal do gás; Um dos fatores importantes é a frequência das pulsações: quando maior, menor a possibilidade de danos. É por isso que se costuma instalar uma válvula de retenção na linha de descarga, bem próxima ao compressor. O limite de surge é bastante influenciado pelo ângulo de descarga do impelidor, e para os impeli dores comuns está em torno de 50% da vazão de máxima eficiência. A origem do surge costuma ser associada ao escoamento através do difusor. A figura no 13 mostra que quanto menor a vazão, menor o ângulo de entrada do fluxo no difusor e maior será o percurso (em espiral, num difusor de anel liso) do gás até alcançar a salda do difusor. Acredita-se que, na condição de surge, o percurso do gás é tão longo e a perda de carga tão intensa que a pressão reinante na salda do difusor não é alcançada. Isto provoca a reversão que caracteriza o surge.
  • 43.
    23 Quando o difusoré aletado o início do fenômeno está associado a separação da camada que ocorre devido ao grande ângulo de ataque sob o qual o escoamento incide nas aletas do difusor, para baixas vazões. Como no caso anterior o processo de difusão e prejudicado e o gás não atinge a pressão reinante na saída do difusor. O surge também pode ser entendido como a generalização do stall na máquina como um todo. Conforme as experiências realizadas em estágios padronizados de compressores centrífugos, durante as quais as pulsações de pressão com baixa vazão também são registradas, foram estabelecidos limites experimentais (para cada número de Mach periférico - Mu) nos quais a máquina trabalha satisfatoriamente. Para cada estágio, portanto, são estabelecidas a vazões mínimas específica nas diversas velocidades, isto é, nos diversos valores de Mu. Para operar a vazões abaixo do limite de surge, é necessário um sistema de controle, que será discutido posteriormente. b) LIMITE DE "STONEWALL" ou “CHOKE” O limite superior de vazão é determinado pelo fenômeno denominado "Stonewall" ou “Choke”. Os compressores centrífugos são projetados para operar em regime subsônico. Porém, acima de certa vazão, as velocidades através da máquina são tão elevadas que o regime supersônico é atingido em alguma parte do compressor. Resultam ondas de
  • 44.
    24 choque que restringemo escoamento, causando um efeito de blocagem - queda rápida na pressão de descarga para um mínimo aumento da vazão, além que forte queda na eficiência. O Stonewall só ocorre para vazões muito altas, normalmente fora da faixa operacional (baixo rendimento). Ele só representa um problema para compressores operando com gás com alto peso molecular ou baixa temperatura (sistemas de refrigeração), quando a velocidade sônica é reduzida. Nestes casos usam-se baixas rotações e grandes áreas de passagem do gás. Para gás natural, o citado acima se aplica somente quando são exigidos pontos de operação fora das condições de projeto com valores de vazão muito acima das previstas no projeto. De qualquer forma, no caso de compressores de gás natural, enquanto o limite da faixa de operação à esquerda das curvas características é sempre a linha de surge, o limite à direita (ainda limitando a faixa de operação) raramente é a linha de stonewall; sendo mais freqüentemente o limite de estudo para as características da máquina (por exemplo, para o controle do empuxo axial). Como a ultrapassagem deste limite não ameaça a integridade da máquina, não é necessário um controle para prevení-lo, como é feito em relação ao surge. Lembremos do efeito "bola de neve", já descrito, que ocorre na associação de estágios: quando o primeiro estágio admite uma vazão afastada da de projeto, num certo sentido, o afastamento das condições de projeto nos estágios subsequentes será progressivamente acentuado no mesmo sentido. Devido a este efeito é esperado que os limites de Surge e Stonewall sejam atingidos pelo último impelidor do conjunto, e também teremos um estreitamento da faixa útil de trabalho, em relação ao comportamento individual de um estágio. Assim, para compressores de poucos estágios (3 ou 4), o limite de surge está em cerca de 50% da vazão de projeto, enquanto para um compressor de muitos estágios, ele está em cerca de 85% da vazão de projeto. E importante lembrar que todas estas observações são válidas para operação da máquina próxima da rotação, temperatura de sucção e natureza do gás nominais de projeto.
  • 45.
    25 c) VARIAÇÃO DOSLIMITES COM AS CONDIÇÕES OPERACIONAIS O limite de surge de um compressor centrífugo, de um ou vários estágios, situa- se em vazões inferiores quando operando com gases de reduzido grau de compressibilidade, isto é, os de baixo peso molecular ou aspirado a altas temperaturas. Também o limite de Stonewall se afasta para a direita no gráfico e no computo total a faixa operacional é ampliada. Já a mudança de rotação provoca o deslocamento do limite de surge ao longo de urna curva com o aspecto de urna parábola, denominada curva do limite de surge (vide o primeiro gráfico abaixo).
  • 46.
    26 Para compressores multi-estágios,no entanto, a curva de limite de surge apresentará um ligeiro desvio na curvatura (vide o segundo gráfico da figura no 16). A mudança de rotação também pode alterar o estágio através do qual se iniciam tanto o Surge como o Stonewall. d) AVALIAÇÃO DO DESEMPENHO DO COMPRESSOR CENTRÍFUGO EM CONDIÇÕES DIFERENTES DAS DE PROJETO Vamos considerar as curvas de características de um compressor centrífugo quando as condições de operação são diferentes das de projeto. Sabemos o tipo de máquina (MCL, BCL, 2BCL, etc.), sua geometria, (definição perfeita dos estágios que compõem a máquina, escolhida ao projetar a mesma) bem como a faixa de velocidade de operação. Desejamos definir o desempenho quando os parâmetros de operação são diferentes dos de projeto. Nos parágrafos anteriores descrevemos os principais fatores que influenciam o desempenho da máquina. Agora queremos estimar a influência destes parâmetros, em valores e seu efeito na operação da máquina. É claro que durante a operação, parâmetros diferentes e combinados (alterações simultâneas na pressão de sucção, tipo de gás, etc.) podem ocorrer; portanto é impossível prever toda a série de casos. Para obter alguns dados sobre os diversos desempenhos possíveis, vamos definir duas “famílias fora de projeto”: alterações nas condições de sucção (tipo de gás, pressão de sucção e temperatura) e alterações devido a possíveis deteriorações no campo. e) Variações nos parâmetros de entrada Três variações diferentes possíveis nos parâmetros de entrada foram supostas para serviço de compressão de gás natural: a – peso molecular (composição do gás) b – temperatura de sucção c – pressão de sucção As curvas características, anexas a este documento, foram obtidas por computador para um compressor centrífugo BCL 404/A e mostradas na sua faixa completa de operação. Nestas curvas podemos observar o movimento da linha de surge, da linha de vazão máxima, etc., devido a alterações nas condições de entrada.
  • 47.
    27 a – pesomolecular (composição do gás) CAPACIDADE DE SUCÇÃO (m3 /hr) Estas curvas se aplicam nas seguintes condições: Gás movimentado Peso molecular Pressão de sucção Temperatura de sucção natural 18,73 (valor nominal) 67,1 ATA 21,4°C RELAÇÃODECOMPRESSÃOPOTÊNCIAABSORVIDADOCOMPRESSOR(KW)
  • 48.
    28 b – temperaturade sucção CAPACIDADE DE SUCÇÃO (m3 /hr) Estas curvas se aplicam nas seguintes condições: Gás movimentado Peso molecular Pressão de sucção Temperatura de sucção natural 18,73 67,1 ATA 21,4°C (valor nominal) RELAÇÃODECOMPRESSÃOPOTÊNCIAABSORVIDADOCOMPRESSOR(KW)
  • 49.
    29 c – pressãode sucção CAPACIDADE DE SUCÇÃO (m3 /hr) Estas curvas se aplicam nas seguintes condições: Gás movimentado Peso molecular Pressão de sucção Temperatura de sucção natural 18,73 67,1 ATA (valor nominal) 21,4°C RELAÇÃODECOMPRESSÃOPOTÊNCIAABSORVIDADOCOMPRESSOR(KW)
  • 50.
    30 f) Variações devidoa possíveis deteriorações no campo Em relação à influência das possíveis deteriorações de campo, que o compressor pode sofrer durante sua operação, no desempenho, aplicamos premissas simplificadas para simular as realidades. Especialmente consideramos os seguintes casos: a – incrustação dos impelidores e canais de diafragmas b – aumento das folgas das selagens de labirinto As curvas características anexas são obtidas por computador, para o mesmo serviço, da mesma forma que os diagramas para alterações dos parâmetros de entrada.
  • 51.
    31 a – incrustaçãodos impelidores e canais de diafragmas CAPACIDADE DE SUCÇÃO (m3 /hr) Estas curvas se aplicam nas seguintes condições: Gás movimentado Peso molecular Pressão de sucção Temperatura de sucção natural 18,73 67,1 ATA 21,4°C RELAÇÃODECOMPRESSÃOPOTÊNCIAABSORVIDADOCOMPRESSOR(KW) Condições nominais Efeito da incrustação
  • 52.
    32 b – aumentodas folgas das selagens de labirinto CAPACIDADE DE SUCÇÃO (m3 /hr) Estas curvas se aplicam nas seguintes condições: Gás movimentado Peso molecular Pressão de sucção Temperatura de sucção natural 18,73 67,1 ATA 21,4°C RELAÇÃODECOMPRESSÃOPOTÊNCIAABSORVIDADOCOMPRESSOR(KW) Condições nominais Vazamentos internos
  • 53.
    33 2.10. CONTROLE DECAPACIDADE E ANTI-SURGE a) CONTROLE DE CAPACIDADE .Sabemos que existe uma correspondência entre as características do sistema e a vazão do compressor centrífugo que nele opera. Porém, o ponto de equilíbrio nem sempre e o adequado às necessidades. Vem daí a necessidade de um sistema de controle que .pode ter como objetivos: − Controle de Pressão de Sucção: Quando a vazão do compressor é ajustada para equilibrar-se com o suprimento de gás pelo sistema, que se mostra variável; − Controle de Pressão de Descarga: Quando a vazão do compressor é ajustada para equilibrar-se com a demanda de gás pelo sistema, que se mostra variável; − Controle de Vazão: Quando é necessário que um processo seja alimentado com vazão constante, independente das eventuais variações nas pressões do sistema; Somente um desses tipos de controle pode ser escolhido para ser exercido, através da atuação nas condições de operação do compressor. A forma de atuação, no entanto, será a mesma em qualquer dos três casos. Os métodos de controle mais usados são os seguintes: − Variação da Rotação: É o método mais usado. Com rotação variável o compressor pode facilmente atender demandas do tipo vazão constante, pressão constante ou uma combinação de vazão e pressão variáveis. É o método mais eficiente, pois não introduz perdas de energia adicionais e, além disso, para os sistemas comuns, a curva Head x vazão do sistema coincide com a região de máxima eficiência das curvas Head x Vazão do compressor, em várias rotações (vide figura no 17).
  • 54.
    34 Este método emuito interessante para compressores acionados por turbina, mas também pode ser usado para motores elétricos de rotação variável ou de rotação fixa com uso de variadores hidráulicos de velocidade. Além disso, é bom lembrar que a alteração de velocidade do acionador pode levar a operá-lo com baixa eficiência. − Estrangulamento na Sucção: É o segundo método mais empregado. Sua simplicidade e baixo custo contrastam com o seu alto custo operacional, na maioria dos casos. Consiste na introdução de uma válvula de controle na tubulação de sucção do compressor fazendo com que a pressão de sucção do compressor seja inferior à pressão suprida pelo sistema. Conforme e aumentada a relação de compressão a vazão do compressor cai.
  • 55.
    35 Esse método éantieconômico pois há perda de energia com a expansão (perda de pressão) do gás na válvula, aumentando o trabalho de compressão por unidade de massa. Outro inconveniente é o aumento da temperatura de descarga. − Mudança de Ângulo das pás Guias na Sucção: Em alguns compressores há dispositivos para alterar o ângulo das pás guias na sucção do 1o estágio. Isto tem duplo objetivo: Redução da pressão na entrada do compressor, como no estrangulamento na sucção e imposição de uma pré-rotação ao fluido, que pode ser no sentido .de rotação do impelidor (ângulo positivo), fazendo com que o Head .fornecido para uma determinada vazão seja menor, ou no sentido contrário (ângulo negativo), fazendo com que o Head fornecido seja maior. Basta lembrar da equação de Euler. H = U2 . Cu2 – U1. Cu1 Cu1 causa H Cu1 causa H
  • 56.
    36 Como altera otriângulo de velocidades do impelidor, este método muda a performance do impelidor com um mínimo de estrangulamento, operando com maior eficiência em relação ao método anterior. Porém implica em redução da eficiência máxima, pois mesmo totalmente abertas, as pás introduzem perda de energia disponível no fluido. As pás guias podem ser colocadas na entrada de todos os estágios, mas é mais comum tê-Ias apenas no primeiro estágio. É um método que exige um sistema de atuação e controle de alto custo e complexo, e que é pouco efetivo para um compressor de muitos estágios.Porém operacionalmente é quase tão econômico quanto a variação de rotação. b) CONTROLE ANTI-SURGE O propósito do controle é impedir que o compressor opere com vazão inferior a um limite mínimo - o ponto de controle de surge - escolhido ligeiramente maior em vazão que o ponto no qual se inicia o surge (ponto limite de surge). Tal poderia ocorrer peIa ação do controle de capacidade, reduzindo a vazão de operação, ou na partida. A forma convencional de atuação é a recirculação da descarga para a sucção (ou descarga para a.atmosfera, no caso de compressores de ar). A recirculação é controlada de tal maneira que a vazão de gás que passa pelo compressor, que é a sorna das vazões de recirculação e para consumo, seja maior que o limite de surge.
  • 57.
    37 Em compressores deprocesso a recirculação é controlada automaticamente. Para que o controlador anti-surge possa saber quando e quanto recircular é necessário que ele conheça simultaneamente o ponto de operação e o ponto de controle de surge. Quanto ao último surgem duas dificuldades. É preciso que haja uma margem de segurança entre o ponto de controle e o ponto de limite de surge, que, todavia, não pode ser grande pois a recirculação é anti-econômica, nem muito pequena dada a relativa incerteza da localização do ponto de limite de surge. Levantar experimentalmente este ponto no sistema de operação, com instrumentação adequada, é o mais indicado. Também o ponto limite de surge não é único, variando em termos das condições do sistema e da atuação do controle de capacidade. Isto é que torna o sistema de controle complexo. Há um ponto limite de surge para cada rotação, formando urna curva de limite de surge. Se, ainda mais, tivermos as condições de sucção variáveis, como vimos anteriormente, a curva de limite de surge oscila de posição. Como exemplo vejamos a figura no 21.
  • 58.
    38 A curva dosistema apresenta larga variação e há, para cada condição do sistema, um ponto correspondente a ocorrência do surge, com uma dada vazão que muda de ponto. O “set-point" do controlador deverá então ser estabelecido, a cada instante, em função de uma determinada lei ou equação, que considere o deslocamento do limite de surge. Quando no compressor houver resfriamento intermediário com a retirada posterior de condensado deve um controle individual de surge para cada estágio, pois a vazão em massa irá diminuir de estágio para estágio. Quando não houver resfriamento do gás recirculado, a recirculação não pode ser feita por muito tempo.
  • 59.
    3 - Rotodinamica ÍNDICEÍTEM Introdução 3.1 Vibrações síncronas 3.2 Vibrações assíncronas 3.3 Vibrações torsionais 3.4 Conclusões 3.5
  • 60.
    1 3. ROTODINÂMICA ECRITÉRIOS DE PROJETO N.P. 3.1.INTRODUÇÃO O maior esforço no projeto de compressores centrífugos, principalmente para aplicações de alta pressão é atualmente dirigido a problemas relacionados à estabilidade lateral do rotor. O problema da estabilidade se relaciona ao compressor em todos os seus componentes, já que, como veremos em detalhe, todas as peças básicas das máquinas contribuem para a estabilidade: rotor, mancais, selagens a óleo, acoplamento e todas as peças fluido-dinâmicas como impelidores, difusores, canais de retorno. Os métodos de previsão teórica e a investigação experimental disponibilizados nos últimos anos contribuíram muito para o progresso neste campo. Estamos nos referindo aqui à disponibilidade, na indústria, de grandes computadores capazes de executar programas de cálculos muito elaborados, e de equipamentos eletrônicos para a detecção de vibrações e pulsações de pressão (sensores de vibração de não contato - “probes”, “key-phasors”, transdutores de pressão, analisadores de tempo real, etc.) que permitiram diagnósticos mais precisos. A medida do comportamento mecânico de um compressor é dada pela amplitude e freqüência das vibrações do rotor. A amplitude da vibração do rotor não deve causar contato entre o rotor e as peças do estator de pequena folga (labirintos), sobrecarga das selagens a óleo, e tensão de fadiga nos mancais. A freqüência das vibrações é um elemento muito importante na avaliação da estabilidade do sistema. A vibração pode ter uma freqüência correspondente à rotação da máquina (vibração síncrona) ou uma freqüência diferente (vibração assíncrona). Normalmente em máquinas como os compressores, ambos os tipos de vibração podem estar presentes. 3.2.VIBRAÇÕES SÍNCRONAS Vibrações síncronas normalmente são atribuíveis a uma das seguintes causas ou a uma combinação delas: a) defeitos acidentais dos rotores (como por exemplo, desbalanceamento); b) defeitos de projeto, isto é, velocidade operacional muito próxima à ressonância e/ou amortecimento insuficiente do sistema. Com relação ao item a), os fabricantes das máquinas agora possuem equipamentos que permitem a obtenção de um balanceamento muito preciso. Entretanto, esta precisão considerável no balanceamento é algumas vezes alterada por causas acidentais, de modo que o item b) adquire grande importância: o projeto correto do sistema de mancal-rotor deve garantir níveis de vibração aceitáveis mesmo quando causas acidentais destroem o estado original
  • 61.
    2 de balanceamento adequado. Normalmente,são usadas duas abordagens para prever o comportamento dinâmico síncrono de um rotor. A primeira abordagem é o cálculo numérico Myhlestad-Prhol, que considera o rotor como um sistema dinâmico compreendendo um número de massas concentradas incorporadas a um eixo sem massa apoiado por mancais. O programa de computador resolve o sistema para uma variedade de valores de apoio constante em toda a faixa possível. Um diagrama pode ser elaborado, no qual as velocidades críticas laterais se constituem em uma função da rigidez equivalente dos suportes. Os valores efetivos das velocidades críticas laterais podem ser estabelecidos com base no conhecimento que se tem da rigidez do mancal (Figura 3.1). Figura 3.1 Mapa de velocidades laterais críticas x rigidez dos mancais O programa também calcula o formato do rotor (“mode shape”) nas velocidades críticas, para cada valor especificado da rigidez dos mancais (Figura 3.2). Os “mode shapes” são importantes porque indicam a amplitude de vibração relativa em cada ponto ao longo do rotor. Se as amplitudes relativas nos mancais forem baixas, um alto desbalanceamento produzindo uma considerável deflexão em algumas seções do eixo, irá causar, no entanto, um movimento relativo muito pequeno nos mancais. Sem movimento relativo, os mancais o amortecimento dos mancais não será efetivo. Assim, os mancais não estão colocados na posição mais eficiente, e sua posição deve ser corrigida.
  • 62.
    3 Figura 3.2 -Forma de modalidade de rotor típica na segunda velocidade crítica A segunda abordagem é efetuar o cálculo de resposta do eixo no qual o movimento do rotor em toda a sua faixa de velocidade operacional é estudado, como uma resposta de sistema amortecido a uma excitação de desequilíbrio. Os desequilíbrios são em geral colocados onde há mais expectativa de sua ocorrência, isto é, nos impelidores, acoplamentos, etc. A amplitude do movimento do rotor é calculada em posições (estações) selecionadas no rotor. Os coeficientes (8) que simulam a rigidez dinâmica e o amortecimento do mancal são incluídos no cálculo. As órbitas calculadas são em geral elípticas, devido à diferença entre a rigidez e amortecimento vertical e horizontal. O diagrama de resposta representa a variação do eixo semi-principal da órbita elíptica com a velocidade, em estações selecionadas ao longo do rotor (Figura 3.3).
  • 63.
    4 Figura 8.3- Diagramade resposta típica do rotor A quase totalidade dos compressores centrífugos de grande porte opera entre a primeira e a segunda freqüências críticas, situação na qual o rotor é dito flexível. A norma API 617 recomenda que a primeira freqüência crítica corresponda a uma rotação pelo menos 15% abaixo da mínima requerida na operação do compressor. E que a segunda freqüência crítica seja pelo menos 20% superior a máxima rotação de funcionamento contínuo. Vários testes realizados diretamente em condições operacionais reais mostraram que as freqüências e as amplitudes medidas estão próximas aos valores esperados/ calculados. Os parâmetros de projeto disponíveis para atuar sobre as capacidades de amortecimento e valores de ressonância são: posições do mancal, especialmente em relação às pontas eixo, tipo de mancal, tipo de fluido lubrificante, tipo de acoplamento e evidentemente as características elásticas do rotor.
  • 64.
    5 3.3.VIBRAÇÕES ASSÍNCRONAS No campode vibrações assíncronas, é necessário fazer uma outra distinção entre as freqüências de vibração que são múltiplas da velocidade de rotação e as freqüências de vibração mais baixas ou mais altas do que a velocidade de rotação, mas não múltiplas dela. Ao primeiro tipo pertencem as vibrações normalmente causadas por fatores locais, tais como: desalinhamento, atrito entre peças rotativas e estáticas, tensões excessivas na tubulação, fundações, etc. Ao segundo tipo pertencem as vibrações que foram causa de problemas mais graves, especialmente no campo de compressores de alta pressão. Elas podem ser causadas por fenômenos externos (vibrações forçadas: por exemplo, o efeito de forças aerodinâmicas), ou por fenômenos intrínsecos ao movimento do rotor propriamente dito (vibrações de auto-excitadas), que prejudicam a estabilidade em sua base. A estabilidade é uma função de um balanço de vários fatores. Os principais são: A - Sistema de suporte de rotor com suas características elásticas; B – Efeitos aerodinâmicos; C – Selagens a óleo; D – Selagens por labirintos. Cada fator desempenha um papel no balanço da estabilidade e pode ser positivo ou negativo. O sistema é mais ou menos estável ou instável de acordo com o resultado deste balanço. Uma abordagem teórica para prever a estabilidade de um sistema rotativo é o cálculo do decremento logarítmico (Figura 8.4).
  • 65.
    6 Figura 3.4 -Diagrama de freqüências naturais laterais amortecidas e decremento logarítmico O programa calcula as freqüências naturais amortecidas do sistema de suporte do rotor a velocidades selecionadas e fornece, para cada freqüência, o valor da diminuição logarítmica que é uma indicação segura da estabilidade do próprio sistema. A – Com relação ao rotor, já vimos como as freqüências naturais são determinadas e como a eficiência do mancal pode ser avaliada no que tange às formas de curvatura do rotor (mode shapes). Para evitar ou minimizar histerese interna, elementos de montagem ajustada (como camisas, espaçadores, impelidores, etc.) devem ser tão axialmente limitados quanto possível. As ranhuras podem causar resposta elástica diferenciada nos vários planos. Por este motivo, elas são reduzidas ao tamanho mínimo, escalonadas em 90 graus entre um impelidor e o próximo, e em alguns casos, são eliminadas. Com relação aos mancais, para se evitar problemas de instabilidade de óleo (“oil whip”), normalmente é usado o tipo de pastilhas oscilantes (“tiltint pad”).
  • 66.
    7 Em alguns casos,os mancais amortecedores também são usados (Figura 3.5). Esses oferecem a vantagem de permitir o ajuste independente de coeficientes de amortecimento e rigidez. Figura 3.5 – Mancal amortecedor B – A ocorrência de “rotating stall” em um ou mais impelidores poderia explicar a presença de pulsações que indicam vibrações na mesma freqüência (vibrações forçadas). Todos os compressores centrífugos, qualquer que seja a pressão, são afetados pela excitação aerodinâmica. Outras condições sendo favoráveis, esses efeitos aumentam em intensidade, em proporção à densidade efetiva do gás. O parâmetro determinante não é só a pressão, mas também a temperatura, peso molecular e compressibilidade, em conjunto. Esta é a razão porque os problemas de vibrações excitadas por efeitos aerodinâmicos ocorrem com mais freqüência nas plantas de re-injeção ou de síntese de uréia do que nos compressores de síntese de amônia ou de refinaria, mesmo quando operando nos mesmos níveis de pressão. N.P. já estudou em profundidade e verificou, de forma experimental, os “fenômenos de fluxo instável” em sua configuração de estágio padrão. As conclusões foram que a perturbação aerodinâmica e as conseqüentes pulsações de pressão vinham das aletas do estator do canal de retorno, muito antes de vir do impelidor propriamente dito. Neste caso a relevante vibração do eixo tinha as seguintes características: - Estabilidade na amplitude - Freqüência muito baixa (ordem de magnitude de cerca de 10% da velocidade operacional) - Amplitude como função da velocidade periférica e da densidade do gás.
  • 67.
    8 C – Asselagens a óleo da extremidade do eixo ainda são as partes mais críticas na fabricação de compressores centrífugos de alta pressão. Um requisito importante que as selagens a óleo devem atender é contribuir para a estabilidade do sistema ou, no mínimo, não perturbar muito a estabilidade. É fácil entender que as selagens, por sua própria natureza, seriam componentes muito negativos no balanço da estabilidade do sistema se elas estivessem “travadas”, porque agiriam como mancais perfeitamente circulares, levemente carregados. Esta tendência negativa é em geral compensada fazendo- se os anéis flutuarem o máximo possível em condições operacionais. Isto pode ser obtido distribuindo-se a queda de pressão do óleo no lado atmosférico entre vários anéis e reduzindo a superfície de cada anel, onde a pressão atua, recobrindo as superfícies. Quando essas técnicas são insuficientes para evitar o “travamento” (isto é, um alto valor de força de limite de desprendimento), ranhuras periféricas ou axiais nos anéis flutuantes podem dar uma contribuição positiva à estabilidade, influenciando as características de amortecimento e resistência do sistema. D – Outra possível causa importante de instabilidade e vibração sub- síncrona pode surgir dos selos de labirintos. Nas superfícies anulares, os movimentos circulares do gás, por causa do deslocamento do rotor, podem se tornar irregulares e assim, podem causar uma distribuição não-simétrica da pressão, com uma resultante força perpendicular ao próprio deslocamento (assim chamado efeito de acoplamento cruzado). Este é um fenômeno típico de auto-excitação que causa instabilidade. A importância do fenômeno aumenta com a densidade do gás (portanto com a pressão) e com o local da selagem. Na verdade, a vibração que sempre começa acima da primeira velocidade crítica, possui uma freqüência característica igual à primeira velocidade crítica com o mesmo “mode shape”. Portanto, particularmente delicados deste ponto de vista, são os compressores “back-to-back” nos quais o maior labirinto está no meio (como é a mais alta pressão) onde os movimentos do eixo são maiores. O labirinto na Figura 3.6 representa uma primeira tentativa de diminuir ou tentar interromper os movimentos circulares por meio de muitos septos colocados axialmente no labirinto. O labirinto na Figura 3.7 é derivado do anterior, colocando-se a superfície anular entre dois dentes consecutivos em comunicação com uma câmara toroidal interna a fim de igualar a pressão no interior o máximo possível.
  • 68.
  • 69.
    10 3.4 VIBRAÇÕES TORSIONAIS Aanálise de vibrações torsionais durante a fase de projeto do compressor centrífugo é também importante, principalmente se o acionamento é feito por motor elétrico síncrono ou utiliza-se uma caixa de engrenagens (multiplicadora de velocidade). Esses são os elementos que mais freqüentemente proporcionam problemas de vibração torsional. Os objetivos desta análise são os mesmos citados no caso das vibrações laterais, isto é identificar as freqüências críticas e prever os níveis gerais de vibração. A análise torsional possui, no entanto, algumas peculiaridades. A mais importante delas reside na obrigatoriedade de considerar simultaneamente o comportamento de todas as máquinas e elementos conectados, uma vez que o movimento torsional se propaga de eixo a eixo, devido à liberdade de rotação. Isto causa dificuldade na fase de projeto, especialmente se há mais de um fabricante de equipamentos envolvido, o que é bastante comum. Os acoplamentos, por serem os componentes menos rígidos de todo o arranjo, possuem uma influência muito grande sobre as freqüências críticas torsionais, além de serem muitas vezes projetados com a função precípua de suprir o adequado efeito de amortecimento do conjunto. 3.5 CONCLUSÕES As causas mais importantes de vibrações laterais síncronas ou assíncronas e torsionais podem ser bem simuladas durante o cálculo, de modo que se pode obter uma boa previsão do comportamento dinâmico do rotor. Além disso, o crescimento paralelo da tecnologia da instrumentação dá a possibilidade de uma completa verificação, não só das condições operacionais mecânicas da máquina, mas também, e conseqüentemente, das premissas teóricas tomadas como base de projeto, tal como acima explicitado no parágrafo acima.
  • 70.
    4- Componentes ÍNDICE ÍTEM Carcaças4.1 Diafragmas 4.2 Rotor 4.3 Mancais Radiais 4.4 Mancal Axial (Escora) 4.5 Sistema de Posicionamento Axial do Eixo 4.6 Acoplamentos 4.7 Selagens 4.8
  • 71.
    1 4.1 CARCAÇAS. 4.1.1 InformaçõesGerais O material escolhido deve levar em consideração a pressão, temperatura de operação, tamanho, gás manuseado, e regulamentos fornecidos pelas normas API. Geralmente a Nuovo Pignone usa ferro fundido Meehanite GD com resistência a tração de 25-30 kg/mm2 e 70 kg/mm2 de resistência à compressão (isto é, melhor do que muitos aços). Quando na utilização de carcaças em aço, é empregado o ASTM A 216 WCA, se o compressor operar a baixas temperaturas devrá ser utilizado o ASTM A 352 em um dos seus quatro graus dependendo da temperatura de operação; por último, usamos aço ASTM 351 Gr. CA15 (13% Cr) ou Gr. CF8 no caso de ambientes corrosivos. O teste usual para estas carcaças é a inspeção por partículas magnéticas. Em casos especiais, quando cuidados especiais são exigidos, é realizado o teste de ultra-som. Algumas vezes é exigida a inspeção radiográfica; não devemos considerá-la visto que as tensões que afetam estes elementos são limitadas e as falhas certamente existem nos fundidos, no entanto são aceitáveis e não são prejudiciais para estes fundidos, podem ser exibidas desta forma. A última tendência é usar carcaças soldadas, esta solução é mais vantajosa que o fundido: desta forma o risco de rejeições, reparos, etc., é reduzido, evitando fazer os modelos separados o que exige uma sala grande e muito cuidado no caso de uma linha de produção diversificada como na Nuovo Pignone, para evitar quaisquer danos.
  • 72.
    2 4.1.2 CARCAÇAS DIVIDIDASHORIZONTALMENTE CARCAÇA DIVIDIDA HORIZONTALMENTE Este tipo de carcaça é utilizado em compressores com pressões de operação abaixo de 60 bar (aproximadamente 61 Kgf/cm²) Vantagens Desvantagens Melhores condições de acesso aos internos da máquina (o que é feito simplesmente pela de sua metade superior). Dificuldade em garantir a estanqueidade ao longo de toda a abertura longitudinal do compressor (sujeita a tensões circunferências devidas à pressão interna) Para melhorias de projeto os bocais de sucção e descarga, as linhas de óleo e outras linhas de processo foram localizadas na parte inferior de carcaça. Esta configuração permite a abertura do compressor sem desconectar as tubulações que interfiram no posicionamento do compressor afetando principalmente o alinhamento.
  • 73.
    3 4.1.3 CARCAÇAS DIVIDIDASVERTICALMENTE CARCAÇA DIVIDIDA VERTICALMENTE As carcaças bipartida verticalmente são formadas por um cilindro fechado com duas tampas nas extremidades originando a denominação “barril” (usada em compressores com este tipo de configuração). Estas máquinas, são geralmente multi-estágio e usadas para serviços de alta pressão (até 700 kg/cm2 ). Vantagens Desvantagem Oferece condições de selagem bem mais favoráveis, não só pelo local da partição, mas também por ela estar sujeita a tensões longitudinais que possuem a metade da intensidade das tensões circunferências. Construção conhecida como “tipo barril” é adotado pelos fabricantes para pressões acima de cerca de 5000 Kpa ( Kgf/cm2), ou em qualquer condição com hidrogênio e outros fluidos cujo vazamento possa representar perigo. Exige o desacoplamento do eixo e a retirada lateral de todos os seus internos
  • 74.
    4 4.2 DIAFRAGMAS. 4.2.1 InformaçõesGerais Os diafragmas formam o caminho do gás no interior da parte estatora do compressor. São divididos em quatro tipos: 1. Sucção 2. Intermediário 3. Inter-estágio 4. Descarga O diafragma de sucção transporta o gás para a entrada do primeiro impelidor. Geralmente é equipado com aletas variáveis e operado por um dispositivo de controle (externo ao compressor), que proporciona mudanças no ângulo de entrada do gás para o impelidor. Os diafragmas intermediários realizam a tarefa dupla de formar o difusor onde a energia cinética é convertida em energia de pressão e o canal de retorno para levar o gás para a entrada do próximo impelidor. Os difusores podem ser do tipo de vórtice livre ou com aletas: estas aletas melhoram a eficiência da conversão, mas reduzem a flexibilidade da máquina. O diafragma de descarga forma o difusor do último impelidor, bem como o caminho de descarga. Os diafragmas interestágio separam os lados de descarga dos dois estágios nos compressores com rotores do tipo “back-to-back”. Cada diafragma possui selos tipo labirinto para evitar que o gás na saída do impelidor retorne para o lado de sucção e evitar vazamentos interestágio. Os selos labirintos são bipartidos e podem ser removidos com facilidade. Por motivos de instalação do rotor, os diafragmas são divididos; quando montados em barris ou em carcaças bipartida horizontalmente, a diferença não é muito grande, diferem somente no seu alojamento na carcaça. Nos compressores tipo barril, as metades do diafragma são mantidas fixas por tirantes formando assim dois feixes separados; são parafusados juntos após instalar o rotor: o conjunto resultante (ver figura a seguir) é instalado axialmente na carcaça.
  • 75.
    5 Instalação do Bundle Noscompressores bipartidos horizontalmente, cada metade do diafragma é instalada nas duas metades da carcaça; por isto a superfície externa de cada diafragma possui um rasgo para combinar com o relevo correspondente na carcaça. Cada diafragma é baixado na metade da carcaça (fig. A seguir). Detalhes de um Bundle (Carcaças divididas horizontalmente) Nas manutenções, onde uma substituição de difusores for necessária, observar a manutenção de difusores compatíveis com o removido, principalmente levando-se
  • 76.
    6 em conta asáreas de entrada e saída do difusor. Alterações nas mesmas poderão influienciar no rendimento do compressor devido a mudanças no dimensionamento do caminho do gás, baseado nas exigências termodinâmicas para garantir a velocidade e ângulo exigido do gás, e o dimensionamento da espessura que é baseado no ∆p estabelecido nas duas faces de cada diafragma. Na maioria dos projetos os diafragmas são quase sempre fundidos devido a sua estrutura complicada. Geralmente é usado ferro fundido tipo Meehanite GD ou esferoidal, algumas vezes com adição de porcentagens de níquel para melhorar sua resistência característica ao impacto em baixas temperaturas (1 a 1,5 % Ni). Se a temperatura de operação for abaixo de –100°C, é usado aço ASTM A 352 nos quatro graus disponíveis ou ASTM A 351 grau CF8. Abaixo de um certo tamanho de canais de gás, a fundição pode ser difícil, portanto os diafragmas são fabricados de duas partes, normalmente uma fundida e a outra de chapa de metal, parafusadas juntas. Em condições severas tais como diafragmas de compressor de alta pressão ou diafragmas inter-estágio em compressores com impelidores em série, é necessário usar os materiais mais qualificados tais como aços carbono forjados (ASTM A 182 F22). No caso de pressões muito altas, é necessário reforçar a estrutura do feixe do diafragma, neste caso a solução consiste em fabricar a contra carcaça em aço forjado (ASTM A 182 F22) composta de suas metades de carcaça, onde são montados os diafragmas como nos compressores bipartidos horizontalmente. Esta solução tem a vantagem de permitir a montagem dos diafragmas em diâmetros menores e, portanto o comprimento livre de deflexão é reduzido (ver fig. A seguir).
  • 77.
    7 4.3 ROTOR 4.3.1 InformaçõesGerais O rotor de um compressor centrífugo é composto pelo eixo, impelidores, tambor de balanceamento, mancal axial, mancal radial, cubo do acoplamento, luvas e anéis espaçadores. 4.3.2 Informações Detalhadas a. Eixo O eixo consiste de uma seção central, onde são montados os impelidores e espaçadores, e nas suas extremidades têm diâmetros ligeiramente diferenciados para acomodar os mancais e as selagens. O eixo é dimensionado para uma rigidez (através de redução na distância entre os centros dos rolamentos e/ou aumentando o diâmetro de acordo com o projeto de vazão dinâmica) para chegar ao melhor comportamento de flexão. O material usado para fabricar os eixos para qualquer tipo de compressor é o aço 40 NiCrMo7 UNI. De fato, as características mecânicas deste aço são melhores do que as normalmente exigidas para o uso normal dos eixos de compressores centrífugos; por isto outros fabricante usam aço carbono comum. O Aço 40NiCrMo7 é muito apropriado para endurecimento e têmpera; os eixos de tamanho normal para compressores centrífugos feitos deste aço passam todos por este tratamento (até o núcleo), já os eixos de aço carbono passam pelo mesmo somente superficialmente. Como o objetivo é obter uma boa dutilidade e tenacidade, e um ponto de escoamento não muito alto e um valor de tensão de tração superior, a têmpera é realizada em uma temperatura acima da normal, permitindo em todo caso chegar a uma tensão de tração acima 100 kg/mm2 e ponto de escoamento acima de 65-75 kg/mm2 . b. Impelidores Os impelidores são instalados no eixo pelo processo de interferência. A figura a seguir ilustra esta instalação.
  • 78.
    8 Os impelidores sãomontados por interferência não somente devido à transmissão de torque, mas também para evitar que soltem sob a alta velocidade de rotação devido às tensões das forças centrífugas, evitando também os desbalanceamentos já que os impelidores não estariam mais concêntricos com o eixo. Os impelidores podem se, estruturalmente, do tipo fechado ou aberto. Os impelidores fechados consistem de um cubo, um determinado número de aletas e uma carenagem. As aletas geralmente são inclinadas para trás. Para união destas partes (aletas e carenagem) é utilizado pela Nuovo Pignone o processo de soldagem. As aletas geralmente são usinadas (ver fig. A seguir) no cubo (ou na carenagem), depois a unidas por solda internamente. As aletas são usinadas no cubo ou na proteção dependendo do formato do impelidor e, portanto, conforme a possibilidade do eletrodo entrar no canal. Se, devido à largura menor do impelidor, for difícil soldar internamente, a solda externa é usada: na carenagem (ou cubo) perto das aletas e conforme seu formato, os rasgos são executados superficialmente. O cubo e a carenagem são conectados entre si por solda de topo temporária. Ao encher estes rasgos com material de solda, as superfícies entre a aleta e a carenagem são fundidas resultando assim em uma solda.
  • 79.
    9 O ciclo desoldagem do impelidor é o seguinte: solda, seguido por alívio de tensões por tratamento térmico, inspeção das peças soldadas, endurecimento e têmpera, remoção da tolerância de usinagem. Soldagem de um Impelidor Os impelidores abertos são diferentes do tipo fechado devido à falta da carenagem. Normalmente este tipo de impelidor possuie aletas tridimensionais obtidas por usinagem. As aletas podem ser radiais ou inclinadas para trás de acordo com a característica e pressão que se deseja obter. Em relação ao projeto mecânico, deve-se levar em consideração que os impelidores são os elementos sob mais tensão em um compressor, como a vantagem de reduzir o número de estágios leva a velocidades mais elevadas nas pontas e, portanto, tensões. A tendência das tensões nas diversas partes do impelidor varia, é claro, de acordo com o tipo de impelidor. A condição mais severa ocorre durante o teste de sobre velocidade (a 115% da velocidade máxima contínua).
  • 80.
    10 Como regra geral,ao fabricar impelidores é preciso muito cuidado no acabamento das superfícies e no seu projeto, considerando especialmente as espessuras, os rasgos de chaveta e os arredondamentos dos cantos. Os materiais e tratamentos térmicos são escolhidos levando em consideração as tensões devido à força centrífuga (em função da velocidade da ponta na qual o compressor deve funcionar) e as condições de trabalho, tais como corrosão, corrosão por tensão, baixas temperaturas, etc. Para obter um bom resultado nas soldas das lâminas, devem ser feitas de aço com boas características mecânicas, no entanto com baixo teor de carbono. A Nuovo Pignone usa o aço KMN COGNE para todos os impelidores, exceto para casos especiais, que é um aço de baixa liga apropriado para baixa temperatura, contendo 2% de cromo, 1% de molibdênio e 0,13 a 0,17% de carbono. Os fabricantes de impelidores nos EUA usam aço com maior teor de carbono, obtendo melhores características mecânicas, mas deixando algumas dúvidas sobre a qualidade da solda, já que a solda e a área ao redor estão sujeitas à corrosão inter cristalina. Por este motivo os fabricantes britânicos exigem limites da porcentagem de carbono. A corrosão inter cristalina leva ao relaxamento das ligações metalográficas entre os grãos e, portanto, a degradação da resistência mecânica. Um teor de carbono no aço maior que o limite de solubilidade de sua matriz austenítica determina a possibilidade do aço ser sujeito à corrosão inter cristalina, já que o carbono é a causa principal para a precipitação de carbeto e redução do cromo na área ao redor do limite do grão. Os carbetos precipitados ao longo do limite do grão podem iniciar a fratura, enquanto que a redução de cromo torna o material mais suscetível à corrosão. Se o aço permanecer na temperatura de sensibilização (de 400 a 900°C) durante o processo de têmpera após o tratamento térmico, bem como durante o aquecimento para solda, os carbetos de cromo podem precipitar ainda mais, quanto mais alto o teor de carbono no aço. Quando os impelidores funcionam em meio corrosivo, é usado aço com teor de cromo mais elevado, tal como o X15C13 (13% Cr); em áreas especialmente corrosivas a porcentagem de cromo no aço é muito maior: aços KXOA2-FNOX (de 15 a 19% Cr); além disso, se houver algum problema na resistência a tensões junto com os problemas de corrosão, são usados aços MARAGING, série 17% Cr, 4% Ni, temperados em baixa temperatura. O aço 9% níquel é usado para impelidores funcionado em baixa temperatura, este teor foi estudado para ter uma boa resistência ao impacto até –196°C. c. Tambor de balanceamento Durante a operação normal, dentro do compressor é gerado um empuxo contra o rotor, que deve ser suportado pelo mancal axial. Este empuxo é devido principalmente às pressões agindo no impelidor.
  • 81.
    11 O ∆p produzidopelo impelidor gera, é claro, uma força na direção de sucção expressa pelo produto multiplicado pela área sob a selagem da proteção. A soma destes empuxos é geralmente muito alta e muitas vezes além da capacidade do mancal axial. Para um conjunto rotor com 5 impelidores, um ∆p médio para cada impelidor = 6 kg/cm2 , eixo Ø = 17 cm, selagem Ø = 27 cm, o empuxo gerado é de 10370 Kg: Portanto, é previsto um tambor de balanceamento, depois do último impelidor; localizando sua face oposta sob a pressão de sucção e dimensionando seu diâmetro adequadamente, um empuxo é gerado do lado de sucção para o lado de descarga, de modo a balancear o empuxo dos impelidores. O balanceamento ainda não está completo: um empuxo residual é deixado, capaz de ser suportado pelo mancal de escora, para evitar qualquer instabilidade axial do rotor. Outros empuxos são gerados além dos descritos acima, tal como o empuxo provocado pela variação do fluxo de gás entrando axialmente no impelidor e saindo do mesmo radialmente, ou como o empuxo resultante da irregularidade da pressão agindo no impelidor nas máquinas de alta pressão. Geralmente, estes empuxos não são alto suficiente para alterar o estado das coisas, mesmo assim devem ser calculados com precisão. É importante levar em consideração também o empuxo gerado pelo acoplamento, que será discutido oportunamente. Em relação ao perfil deve-se observar que a largura deste tambor seja suficiente para suportar todo o ∆p desenvolvido pelo compressor: um dimensionamento
  • 82.
    12 inadequado da selagemde labirinto resulta em um grande vazamento do gás na direção da sucção, prejudicando assim o desempenho do compressor. Geralmente, o tambor de balanceamento é fabricado de aço X12C13 montado por interferência com chaveta como os impelidores. 4.4 MANCAIS RADIAIS Informações Gerais Os mancais radiais servem para efetuar a sustentação do conjunto rotativo, de forma a evitar o desgaste e minimizar a dissipação de energia por atrito. Existem fundamentalmente dois tipos de mancais radiais: a) Mancais de Rolamentos b) Mancais de deslizamento. Os mancais de rolamentos são padronizados, mais compactos, dissipam menos energia e consomem menos lubrificante. São, no entanto, menos resistentes, porque trabalham com contato metálico entre as superfícies de rolamentos. Por isso são empregados apenas em máquinas de pequeno porte. Os compressores centrífugos, usados em processamento industrial, possuem mancais do tipo deslizamento dotado de um revestimento interno de metal macio(metal patente). A formação de um filme de óleo impede o contato do eixo com o revestimento desse mancal, proporcionando, sob condições normais de operação da máquina, longa duração de campanha sem qualquer manutenção. O mecanismo de formação desse filme de óleo foi estudado inicialmente por Osborne Reynolds, estabelecendo o primeiro passo no sentido do projeto dos mancais de deslizamento. De um modo geral, um fluido contido entre duas superfícies que apresentem movimentos relativos entre si estará sujeito a um campo de pressões que depende principalmente das velocidades relativas, das formas das superfícies e das propriedades do fluido. No mancal, o campo de pressões assim estabelecido gera uma resultante que se contrapõe ao carregamento imposto pelo eixo, assegurando a manutenção do filme de óleo e impedindo o contato metálico. A fase inicial do projeto de um mancal desse tipo considera um carregamento devido apenas ao peso próprio do conjunto rotativo, além da rotação e diâmetro do eixo, comprimento axial do mancal e viscosidade do lubrificante para estabelecer a folga diametral do mancal (entre cerca de 0,05 e a 5 mm) (e a vazão de óleo requerida para a dissipação do calor)em geral entre 0,01 e 0,1 l/s). A espessura mínima aceitável para o filme de óleo e sua máxima temperatura admissível são os parâmetros que balizam essa fase do projeto. Admitindo a hipótese de carregamento constante, pode-se demonstrar que o eixo tenderia a assumir um posicionamento fixo no interior do mancal caracterizado, como ilustra a figura 13.10, por uma certa excentricidade (ε) e um desvio (φ) do ponto onde o filme é menos espesso em relação à direção normal.
  • 83.
    13 Na pratica, ocarregamento sobre os mancais radiais não é constante, devido ás componentes variáveis introduzidas pela existência de desbalanceamento, pelo desalinhamento em relação à máquina acionadora e diversos outros efeitos. Em conseqüência, o eixo se movimenta no interior do mancal, com o seu centro descrevendo uma órbita em torno da virtual posição de equilíbrio. A Segunda fase do projeto dos mancais diz respeito exatamente ao comportamento dinâmico do eixo. Fazendo analogia com um sistema massa- mola-amortecedor, os parâmetros de funcionamento dos mancais devem ser ajustados de modo a obter a elasticidade e o amortecimento adequado ao desempenho oscilatório pretendido para o conjunto rotativo. Um traçado considerado normal para a órbita de um eixo é mostrado na figura 13.11(a). Encontra-se, como podemos observar, circunscrito a um espaço pequeno em relação à folga do mancal. A figura 13.11(b) mostra, por sua vez, uma órbita que vai se alargando em torno de uma posição inicial até atingir um círculo limite. No primeiro caso, o comportamento do mancal é tido estável e o conjunto rotativo trabalha sob condições normais de vibração. No segundo, o comportamento é tido instável e caracterizado por elevado nível de vibração.
  • 84.
    14 A instabilidade domancal é um fenômeno vibratório auto-excitado que se manifesta quase sempre com freqüência inferior à sua rotação e que pode ter diversas causas. A mais comum consiste numa movimentação cíclica do filme de óleo no interior do mancal (“oil whirl”), que pode aparecer acima de uma determinada rotação. A interação aerodinâmica entre os impelidores e o gás ou um contato físico entre o conjunto rotativo e as partes estacionárias podem causar efeito semelhante. Devido a problemas de instabilidade, os mancais puramente cilíndricos vem sendo muito pouco utilizados em compressores, especialmente nos de alta rotação. Formas mais complexas, tais como as que são mostradas da figura abaixo, tem proporcionado melhores desempenhos. O mancal de pastilhas oscilantes é atualmente o mais usado. As pastilhas proporcionam a formação de diversas cunhas de óleo e praticamente centralizam o eixo e asseguram grande estabilidade hidrodinâmica ao mancal. Além disso, as pastilhas são pivotadas para acomodar pequenos desalinhamentos do eixo. São apropriados para rotações elevadas, embora com uma certa limitação de carregamento. Os mancais radiais são do tipo pastilhas basculantes de lubrificação forçada. O óleo sob pressão circula pelos mancais em sentido radial, e passa por passagens existentes para lubrificar as pastilhas radiais e em seguida é descarregado lateralmente. Esta configuração permite pequeno movimento das pastilhas no interior do alojamento, quer em sentido radial quer em sentido axial, amortizando o máximo que for possível às vibrações radiais do rotor. A rotação das pastilhas dentro do alojamento é impedida através de pinos salientes aparafusados ao alojamento.
  • 85.
    15 Mancal Radial –Conjunto alojamento, pastilhas e anéis de selagem. Os mancais são fixados axialmente as tampas verticais (cabeçote), de cada lado da carcaça (barril) dos compressores, através de parafusos. Os mancais dos compressores da Nuovo Pignone permitem o ajusta da folga radial por intermédio de instalação shim (calco) na parte traseira das pastilhas. 4.5 MANCAL AXIAL (ESCORA). 4.5.1 Informações Gerais Como mencionado no parágrafo 4.3.2.c (Tambor de Balanceamento), nos compressores centrífugos o gás descarregado pelos impelidores ocupa os espaços existentes entre os próprios impelidores e os diafragmas gerando um campo de pressões. Dessa distribuição de pressões resulta uma força axial que age sobre o impelidor no sentido da descarga para a sucção. O somatório das forças atuantes sobre os diversos impelidores em um mesmo conjunto rotativo é tradicionalmente conhecido como empuxo axial. Existem recursos que podem ser empregados como objetivo de gerar forças balanceadoras capazes de anular total ou parcialmente o empuxo axial ou até mesmo inverter o seu sentido.
  • 86.
    16 Na verdade, éaté desejável que o eixo trabalhe sob algum esforço axial para posicioná-lo em um determinado sentido. Os projetos normais buscam fixar essa resultante em cerca de 25% do empuxo axial aerodinâmico. Outra tendência consiste em estabelecer uma força balanceadora da ordem de 125% do empuxo axial aerodinâmico, fazendo com que a resultante se oponha a este. Seja qual for à intensidade e o sentido da resultante axial sobre o eixo, ela deverá ser absorvida pelo mancal de escora. O princípio no qual se baseia a construção desse dispositivo é ilustrado pelo esquema da figura. Um disco preso ao eixo, denominado colar de escora, é inserido no interior de um estojo revestido de metal macio, posicionando o conjunto rotativo em relação à carcaça. A formação de um filme de óleo, tal como ocorre nos mancais radiais, devem impedir o contato direto entre o colar e o revestimento, e ainda promover a dissipação do calor gerado pelo atrito. Na maioria dos compressores, o mancal de escora situa-se na extremidade do eixo que fica do lado da sucção, com a face externa do colar pressionada sobre o mancal. Isso significa que a resultante axial sobre o eixo possui sentido idêntico ao do empuxo aerodinâmico, e portanto o eixo trabalha sob compressão. O acionamento do compressor é sempre feito pelo lado oposto ao do mancal, esse caso, o lado de descarga. É recomendável que o mancal de escora seja de dupla ação, isto é, permita contato de qualquer uma das faces do colar, porque sempre há risco de inversão no sentido da resultante axial, sobretudo em condições extraordinárias de operação, como na partida d máquina ou durante o funcionamento em surge. A folga total do mancal ou “passeio” axial do conjunto rotor é da ordem de alguns décimos de milímetro. Quase todos os compressores centrífugos de uso industrial empregam um tipo de mancal de escora denominado “Kingsbury” ou “ Mitchell”, que se caracteriza pelo revestimento segmentado, em forma de pastilhas pivotadas para produzir movimento oscilatório.
  • 87.
    17 A inclinação daspastilhas em torno dos pivôs proporciona a formação de cunhas de óleo que conferem grande estabilidade à posição do eixo e ao mesmo tempo elevam a pressão que o mancal é capaz de suportar a cerca de 3000 Kpa ou mais, enquanto nos mancais comuns o limite não ultrapassa 600 Kpa. Melhores resultados são ainda obtidos com o uso de mancais auto-ajustáveis que possuem um sistema de pivotamentos múltiplos (balancins), próprio para compensar o desalinhamento angular entre os eixos do compressor e do acionador, distribuindo a carga igualmente sobre as pastilhas. A desvantagem dessa construção é o aumento considerável do comprimento axial requerido para a instalação do mancal. Para o compressor centrifugo BCL 406/A o mancal de empuxo é do tipo kingsbury φ 10 ½” e é composto de um único mancal de empuxo do tipo 266,7 LEG B (kingsbury) no lado ativo e de um único mancal de empuxo kingcole "8" 225 (kingsbuy) no lado inativo. Os dois lados têm lubrificação direta. Para o compressor centrifugo 2BCL 458/N o mancal de empuxo é o kingsbury 9". A folga especificada entre as pastilhas do mancal e o colar de escora é indicada na "Ficha dados folga" de cada máquina. Detalhes das partes integrantes de um Mancal Axial Instalação de calco para ajustar a folga axial (lado ativo) Instalação de calco para ajustar a folga axial (lado inativo)
  • 88.
    18 Esquema com passagensdo óleo lubrificante
  • 89.
    19 Detalhes do Colarde Escora 4.6 SISTEMA DE POSICIONAMENTO AXIAL DO EIXO. As peças fundamentais desse sistema são o mancal de escora, e o tambor de balanceamento. O tambor de balanceamento, também chamado pistão de balanceamento, é uma peça cilíndrica fixada ao conjunto rotativo logo após o último impelidor como objetivo de gerar uma força contrária ao empuxo axial. A face interna do tambor fica naturalmente exposta à condição final do gás, enquanto a outra face fica em contato com uma câmara ligada à sucção do compressor por um tubo denominado linha de balanceamento. Origina-se portanto, sobre o tambor uma força que corresponde ao produto do seu diâmetro pela diferença entre as pressões atuantes em cada uma das faces, praticamente equivalentes às pressões de sucção e descarga do compressor. O esquema da figura 13.17 mostra esse funcionamento.
  • 90.
    20 Junto à periferiado tambor de balanceamento são instalados diversos anéis de labirintos, para minimizar o vazamento de gás através dessa superfície. Esse é um aspecto bastante delicado do funcionamento do sistema, uma vez que a deteriorização da selagem pode anular o balanceamento. Os defensores da tese de que a força balanceadora gerada pelo tambor deve-ser superior ao empuxo axial aerodinâmico apoim-se justamente nessa tendência de deteriorização do balanceamento com o uso, que, nesse caso, não seria imediatamente prejudicial. Esse argumento, embora consistente, não sensibiliza a maior parte dos projetistas, face às dimensões elevadas requeridas para o tambor. A construção de máquinas com fluxo em duplo sentido é uma opção algumas vezes empregada apara anular total ou praticamente o empuxo axial, eliminando pelo menos a necessidade do tambor de balanceamento. Isso é o que se pretende, por exemplo, ao adotar impelidores de dupla aspiração, conforme o esquema da figura 13.18. Utilizando principalmente em máquinas de um único estágio, esse tipo de impelidor não está sujeito, obviamente, a empuxo axial.
  • 91.
    21 Um outro recursoconsiste em estabelecer dois conjuntos de impelidores acoplados ao mesmo eixo, de modo que eles sejam percorridos em sentidos opostos pelo gás, como aparece na figura 13.19. Há duas alternativas a considerar nesse caso. Se os conjuntos de impelidores são percorridos em paralelo, trata-se de um compressor com fluxo dividido, e nesse caso um balanceamento perfeito do empuxo axial é conseguido. O inconveniente desse tipo de construção é a duplicação das dimensões da máquina e conseqüente elevação do custo. Se, por outro lado, os conjuntos são percorridos em série, com a descarga de um sendo conectada por fora da máquina até a admissão do outro, a anulação do empuxo axial não é absoluta, mas é, em muitos casos, satisfatórios. O fluxo em duplo sentido é utilizado principalmente quando os níveis de pressão do sistema são elevados, porque nessas circunstâncias o empuxo axial também é elevado e as dimensões requeridas para o tambor de balanceamento tornam-se exageradas, tanto em termos de diâmetro quanto comprimento.
  • 92.
    22 4.7 Acoplamentos O acoplamentotransmite energia do acionamento para o compressor. O acoplamento pode ser direto ou através de uma engrenagem de aumento da velocidade, dependendo do acionamento conforme considerado em seguida. Normalmente são usados acoplamentos dentados com lubrificação forçada ou por enchimento. Os acoplamentos com lubrificação forçada são montados na rotação de alta velocidade e praticamente só são usados nos compressores, o outro tipo de acoplamento é selado, geralmente com graxa de lubrificação a ser completadas de vez em quando; estes acoplamentos são usados somente nos eixos de acionamento. Ao transmitir o torque, um acoplamento dentado pode originar um empuxo axial se os eixos a serem acoplados variarem sua posição relativa, durante o estado transiente ou devido a uma expansão térmica dos diversos elementos, ficando axialmente mais perto ou mais longe. Um deslocamento relativo dos dois eixos não é permitido, uma força axial é gerada acima do valor de atrito dos dentes do acoplamento, até este momento esta força é suportada pelo rolamento axial. Veremos agora, por exemplo, quanto pode ser este empuxo: no caso de um compressor com potência N = 10.000 HP, rpm n = 10.000 e raio R = 100 mm (raio da linha de passo dos dentes do rolamento) temos: Mt 716 716 == n N kgm de torque transmitido Ft = Mt/ R = 7.160 kg de força tangencial transmitida Como a faixa de coeficiente de atrito dos dentes é: 0,15 < f > 0,3, uma força axial é necessária para vencer o atrito nos dentes. Fa = Ftf = 1074 a 2148 kg O empuxo pode chegar até a 5 t no caso de potência mais elevada. Para entender o comportamento do empuxo deve ser considerado que o ponto fixo do rotor é o rolamento axial e que a inércia de calor do rotor é menor que a da carcaça. O uso de acoplamentos de diafragma tem aumentado recentemente. A Nuovo Pignone não usa este tipo de acoplamento porque apresenta muitas desvantagens, comparado com a vantagem principal de compensar desalinhamentos consideráveis, tais como: mais pesado r portanto com efeito negativo no comportamento de flexão do rotor em relação à segunda velocidade crítica, dificuldade de balanceamento e falha por fadiga nas placas finas.
  • 93.
    23 4.8 SELAGENS As selagenssão utilizadas para evitar ou minimizar o vazamento de gás comprimido entre os impelidores e os difusores. 4.8.1. SELAGEM INTERNA. 1. O objetivo da selagem interna é restringir a recirculação do gás através das folgas existentes entre o conjunto rotativo e as partes estacionárias do compressor. Há dois pontos de selagem por estágio, sendo um anterior e o outro posterior a cada impelidor conforme esquematizado na figura 13.20. 2. Os dispositivos utilizados com essa finalidade são os anéis de labirintos, constituídos por uma superfície filetada que minimiza o vazamento do gás pela sucessão de mudanças de direção que são impostas. 3. Os anéis de labirintos são encaixados nas extremidades dos diafragmas e servem também para efetuar a vedação do tambor de balanceamento. Fabricados em metal macio, usualmente alumínio, deformam-se ao menor contato com o eixo, de modo a não introduzir carregamento transversal sobre o mesmo. 4. O número de filetes adotados em cada ponto de selagem depende da diferença de pressões, e a folga em relação ao eixo deve ser superior à folga dos mancais radiais em cerca de 0,001 mm por mm de diâmetro do eixo. 5. As metades superiores dos anéis são fixadas ao diafragma superior e as metades inferiores dos anéis são fixadas aos diafragmas inferiores. 6. A remoção dos labirintos podem ser executada girando-os na sua sede (encaixe) dentro dos diafragmas. 7. O mesmo tipo de vedação é posicionado na extremidade do eixo para limitar os escapamentos de gás do compressor (selo de gás). 8. As folgas entre os labirintos e o rotor são indicadas no "Controle de folgas" existente em cada manual de manutenção de cada fabricante.
  • 94.
  • 95.
    Conjunto do conjuntode Pivôs (Balancins) Detalhes de Pastilha Axial e de Pivotamento
  • 96.
    Detalhes de PastilhaAxial, Pivotamento e Alojamento Conjunto Mancal Axial
  • 97.
    5- Montagem eInstalação ÍNDICE ÍTEM Nivelamento e Grauteamento 5.1 Alinhamento 5.2 Procedimentos de alinhamento e acoplamento 5.3 Acoplamentos 5.4
  • 98.
    1 5. MONTAGEM EINSTALAÇÃO 5.1.NIVELAMENTO E GRAUTEAMENTO A instalação correta de compressores centrífugos requer uma base ancorada sólida que pode ser obtida por meio de fundações de concreto armado ou estruturas metálicas suficientemente rígidas para garantir alinhamento estável com o motor de acionamento. Em alguns casos, o grupo motor/compressor, fixado a uma placa base (sapata de fundação) do tipo suporte, é ancorado à estrutura com suportes articulados para torná-lo independente da estrutura principal; este método é usado para instalações em plataformas offshore. No caso de fundações de concreto armado, um espaço de cerca de 10 cm deve ser deixado entre a placa-base metálica e a superfície de concreto para permitir o grauteamento dos parafusos de ancoragem e a chapa do mancal (ver Figura 5.1) Figura 5.1 Parafuso de nivelamento Placa-base metálica Calços Fundação de concreto Parafuso de ancoragem da fundação
  • 99.
    2 Em alguns casos,o parafuso de ancoragem é um tirante que passa por uma camisa guia na fundação propriamente dita (ver Figura 5.2). Figura 5.2 Antes de proceder à instalação permanente da maquinaria, confirmar as dimensões das fundações, verificar as dimensões e referências mostradas no manual de instruções. Para despejar corretamente, o concreto deve estar livre de traços de óleo, graxa ou outras impurezas. Para despejar, normalmente é usado concreto pré- misturado de secagem rápida, sem contração. A posição da estrutura da base metálica pode ser ajustada, utilizando-se os calços entre a placa de fundação e a chapa do mancal e é verificada com um prumo com uma precisão de 0.01 mm/metro. Parafuso de nivelamento Placa-base metálica Calços Fundação de concreto Fundação de concreto CamisaTirante da fundação Calços
  • 100.
    3 No caso demais de uma máquina em placas-base separadas, faça uma verificação preliminar de alinhamento (ver Figura 5.3) Figura 5.3 Durante esta fase, você deve avaliar cuidadosamente a distância entre os cubos de acoplamento, considerando a folga extrema do espaçador e o fato de que os cubos são posicionados a frio nos eixos. Um erro na avaliação destas dimensões pode tornar necessário fazer um novo grauteamento das placas-base nas fundações. Eixo de referência pra fundações Eixo de referência para tubulação
  • 101.
    4 É sempre melhorconsultar o livreto de referência para o torque de aperto dos parafusos de ancoragem (na ordem de décimos de Kgm). Quando bastante tempo tiver decorrido para a máxima contração do concreto (cerca de sete dias), o nivelamento e alinhamento do grupo são normalmente re- verificados, ajustando-se os calços entre a placa-base e a fundação e entre a placa-base e o compressor, se necessário. O alinhamento final será feito antes de se conectar a sucção e a tubulação de gás de produção, o que, em hipótese alguma, deve criar tensão ou esforço nas máquinas. 5.2.ALINHAMENTO Alinhamento significa a coincidência do eixo de uma máquina com a extensão do eixo da outra máquina, durante operação normal. Para realizar isto, você deve lembrar que todos os compressores sofrem um certo deslocamento vertical, devido à expansão dos pés de suporte, devido à diferença em temperatura entre a máquina operando e a máquina em repouso. O procedimento a ser seguido para encontrar a posição relativa entre dois eixos a serem alinhados radialmente (ver Figura 5.4), é medir com instrumentos especiais (indicadores centesimais), Figura 5.4
  • 102.
    5 a diferença entrea posição de quatro pontos na circunferência lida (disco na máquina de acionamento), juntamente com os eixos perpendiculares aos pontos correspondentes na circunferência gerada pelo indicador, feita para girar em torno do eixo da máquina acionada, tomada como referência (ver Figura 5.5). Figura 5.5 Além disso, para encontrar a quantidade de desvio angular relativo entre os dois eixos (ver Figura 5.6), use os indicadores de dial instalados em um dos dois eixos Figura 5..6
  • 103.
    6 E em contatocom a superfície de um disco montado perpendicularmente no outro eixo (ver Figura 5.7). Figura 5.7 Como dito anteriormente, a leitura é feita em quatro pontos no disco, em correspondência com os eixos perpendiculares. Esta leitura mostra, em forma linear, o desvio angular entre os dois eixos. Para evitar erros devidos à excentricidade e imperfeições de usinagem no disco, você deve girar ambos os eixos em 90o , para cada leitura, de modo que o indicador seja sempre lido no mesmo ponto no qual ele foi regulado para zero. Este procedimento, entretanto, pode levar a erros, por causa de prováveis movimentos axiais; para eliminá-los, use dois comparadores montados axialmente em 180o . Então considerando a diferença em suas leituras, você pode obter um valor livre de erro.
  • 104.
    7 5.3.Procedimentos de alinhamentoe acoplamento Inicie o alinhamento, tomando o equipamento de acionamento como referência. Medindo o alinhamento radial Zere o dial radial com referência a vertical, como mostrado na Figura 5.8 Figura 5.8 Gire ambos os eixos na direção esperada para operação, fazendo leituras do medidor a intervalos de 90o . O indicador lê “menos” (negativo) quando a haste se move para fora e “mais” (positivo) quando a haste se move para dentro. Faça as leituras observando os cubos de acoplamento na mesma direção axial das máquinas acionadas. Assegure-se que os indicadores iniciem em faixa intermediária e repousem de modo correto no eixo. O desalinhamento vertical é expresso como rv = b 2
  • 105.
    8 onde “b” éa leitura do indicador em seguida a uma rotação de 180o . Com exceção de pequenos erros, a soma algébrica das leituras pós-90o (w) e pós-270o (z) coincide com a leitura pós-180o : b = w + x Ao passo que sua semi-diferença algébrica indica deslinhamento radial horizontal: ro = w – z 2 NOTA: É imperativo levar em conta os sinais de mais e menos de “w” e “z”. Medindo o alinhamento axial Alinhamento axial, isto é, alinhamento angular dos eixos, é medido por meio de dois indicadores dial ajustados em zero quando estão posicionados em 12 e 6 horas. Gire ambos os eixos e registre as medições a cada intervalo de 90o , como mostrado na Figura 5.9. Figura 5.9
  • 106.
    9 Pressupondo-se que osdois indicadores estejam afixados ao flange do eixo P, o botão do indicador irá rastrear no flange do eixo Q. As leituras são registradas visualizando-se a partir do eixo P. Os resultados são: a) no plano vertical “av”, o desalinhamento vertical é expresso como av = d – g 2 (sinais de + ou – devem ser considerados) b) no plano horizontal “ao”, o desalinhamento vertical é expresso como ao = (c – e) – (f – h ) 2 Os sinais de + ou – de “c”, “e”, “f” e “h” devem ser levados em consideração Alinhamento a frio Após o alinhamento ter sido medido, posicione cada máquina no grupo de tal forma que a expansão ou contração térmica traga os eixos para o alinhamento apropriado durante operações normais. Os gráficos de alinhamento para cada um dos acoplamentos fornecidos nas páginas seguintes dão as posições do eixo e a velocidade operacional, a expansão prevista e desse modo, as posições necessárias para eixos frios. Além disso, eles mostram os valores a serem lidos nos indicadores para obter a posição do eixo exigida. Os valores de deslocamento do eixo foram calculados pressupondo-se a temperatura ambiente e uma temperatura de suporte média, como indicado nos gráficos. Se as temperaturas forem muito diferentes das indicadas, o operador deve calcular os valores reais de deslocamento.
  • 107.
    10 Exemplo: o novovalor de deslocamento de um suporte L é expressado em termos do antigo valor L multiplicado pela proporção T1 F Onde T = temperatura de suporte estimada menos a temperatura ambiente estimada T1 = temperatura de suporte medida menos a temperatura ambiente medida Como esses valores não são perfeitamente precisos, entretanto, sugere-se que uma verificação seja feita enquanto a máquina está em velocidade operacional normal. Para o correto posicionamento da máquina, primeiro corrija o alinhamento axial no plano vertical, ajustando a altura dos calços colocados sob a chapa do mancal do compressor. No caso da Figura 5.10, a correção do calço sob o suporte externo do eixo é expresso pela fórmula S = av x L Ø Se a correção a ser feita for bastante significativa (vários décimos de um mm, por exemplo), é melhor ajustar os calços entre as as placas grauteadas e a placa-base.
  • 108.
    11 Figura 5.10 Para corrigiro alinhamento radial “rv”, o compressor deve estar levantado ou abaixado (sem modificar sua posição angular), inserindo ou removendo um calço abaixo de cada placa de suporte de altura “rv”. Para corrigir desalinhamento axial e radial no plano horizontal, apenas movimente o compressor horizontalmente por meio dos parafusos de ajuste nos pés do compressor. Para determinar a quantidade de desalinhamento, siga as mesmas regras da correção de desalinhamento vertical. Conexão de Tubulação e Encaixe (Cavilhamento) Após o alinhamento ter sido concluído, você pode começar a conectar a tubulação. Os indicadores dial devem ser instalados em pontos convenientes na fundação ou em uma estrutura não incorporada à máquina.
  • 109.
    12 Os botões doindicador devem ser colocados em contato com a máquina para detectar qualquer desalinhamento da tubulação que possa causar desalinhamento do acoplamento. Após um período inicial de operação em velocidade normal, verifique novamente o alinhamento e cavilhe as máquinas. As cavilhas de referência estão localizadas nas placas onde as chavetas mantêm as máquinas alinhadas longitudinal e transversalmente, mesmo que haja forte empuxo causado pela tubulação de gás e deformação devida à expansão térmica. As chavetas colocadas entre os pés do compressor e as placas de suporte posicionam as máquinas longitudinalmente, enquanto que as chavetas colocadas ao longo do eixo vertical do compressor, posicionam as máquinas transversalmente. 5.4.Acoplamento As máquinas que compõem o grupo compressor são acopladas com uniões dentadas ou de diafragma (ver Figura 5.11), que podem ser presas aos eixos por meio de uma ou duas chavetas Figura 5.11
  • 110.
    13 ou, o queé mais comum, forçadas a frio na extremidade cônica do eixo com um dispositivo hidráulico fornecido com a máquina, ou por aquecimento das metades da união em fornos elétricos. Assegure-se, quando posicionar as máquinas, que a distância entre as metades da união seja a indicada, e que o espaçador tenha o jogo exigido no desenho.
  • 111.
    6 - Teste ÍNDICEÍTEM Testes Mecânicos 6.1 Testes Termodinâmicos 6.2
  • 112.
    1 6. TESTES DEDESEMPENHO EM COMPRESSORES CENTRÍFUGOS Dois tipos de testes são conduzidos em compressores centrífugos: testes mecânicos e testes termodinâmicos. 6.1.TESTES MECÂNICOS 6.1.1. TESTES DE FÁBRICA Um dos tópicos a serem examinados durante o chamado teste de desempenho mecânico (“mechanical running test”) refere-se às características de seu desempenho vibratório. Realizado nas instalações do fabricante, como parte do procedimento de aquisição de um compressor, este teste poderá redundar na sua aceitação ou rejeição por parte do cliente. Estes podem ser de vários tipos e complexidades, dependendo das informações que se deseja obter. As condições de teste devem ser as mais próximas possíveis das condições contratuais reais. Durante este teste, as medições de vibração do eixo são feitas em várias velocidades, próximo aos mancais. Também durante os testes, o item de maior interesse é a localização da(s) velocidade(s) crítica(s) lateral(is), o que pode ser feito através do registro das amplitudes durante a aceleração ou desaceleração do compressor, como indica a figura 4.1. Por um efeito de histerese, as indicações produzidas nestas duas condições costumam ser ligeiramente diferentes. Figura 4.1 Em geral, um teste operacional à velocidade máxima contínua é conduzido (100% de velocidade de projeto para unidades acionadas a motor, 105% para unidades acionadas por turbina a gás ou a vapor); de acordo com as normas API, este teste é
  • 113.
    2 concluído em 4horas. O objetivo é constatar que a segunda freqüência crítica se encontra fora da faixa de trabalho do compressor. Um teste de excesso de velocidade é realizado atingindo-se o set-point de parada por excesso de velocidade da turbina, para verificar a segurança do compressor no caso de falha de controle da turbina. Neste caso, a velocidade pode atingir 10% sobre a máxima velocidade contínua, ponto onde o corte por excesso de velocidade desliga a máquina. Os níveis de vibração em rotação normal devem ser também verificados, sendo permissível, de acordo com a norma API 617, um limite de amplitude de deslocamento pico a pico medido no eixo próximo aos mancais da ordem de 0,05 mm ou calculado por rpm mmA 5,7 )( = devendo-se adotar o menor. É recomendável também que a amplitude observada durante a passagem pela primeira freqüência crítica não exceda a oito vezes este valor. Sabe-se que o acoplamento possui uma notável influência sobre tudo na segunda velocidade crítica; por esta razão, é aconselhável realizar os testes com o acoplamento de serviço. Se um acoplamento diferente for usado, deve-se ter cuidado para garantir que o balanço ou “overhang” (considerar peso e dimensões axiais) seja o mesmo. Particularmente, são necessários o mesmo peso e posição do centro de gravidade da luva, a mesma distância entres dentes e mancal, o mesmo peso e flexibilidade do acoplamento de serviço. A conexão entre o eixo do compressor e o acoplamento (realizada por meio de dentes correspondentes) é considerada como uma articulação: na verdade, o momento de curvatura não é transmitido ao eixo do compressor. Particularmente, o peso do espaçador é considerado dividido em duas forças idênticas atuando nos dentes das duas extremidades. Além disso, o acionador de teste deve ser, sempre que possível, o do projeto. Na verdade o grupo acionador-acoplamento-compressor é um todo, cuja interação das partes componentes não é fácil de ser reproduzida. Em geral, entretanto, são usados os acionadores das instalações de teste; apenas com máquinas particularmente críticas os testes são conduzidos usando-se o acionador do projeto. Em geral, isto é o que concerne a resposta elástica do compressor. Deve-se levar em conta também os mancais e as selagens, já que as velocidades críticas são muito influenciadas por estes (tipo de mancais e selagens, suas folgas, viscosidade do óleo, etc.). Já foi visto também, quando considerando a velocidade crítica lateral e problemas de instabilidade, que o tipo de mancal e selagem tem uma importância fundamental na redução das forças desestabilizadoras que atuam no sistema rotor- suporte. É útil lembrar que o caso em que ocorrem vibrações assíncronas em velocidades que sejam múltiplas da velocidade de rotação, indica desalinhamento, falha do mancal, ou outras causas deste tipo. Vibrações assíncronas em velocidades mais baixas do que a velocidade de rotação devem ser atribuídas à instabilidade do filme de óleo nos mancais ou nas selagens. O óleo utilizado no teste deve ter a mesma viscosidade que o óleo usado na planta; isto pode ser feito ajustando-se a temperatura do óleo para obter a viscosidade necessária na entrada do mancal.
  • 114.
    3 Para poder reproduziras mesmas condições operacionais nas selagens de alta pressão, dever-se fazer o óleo ou o gás circular em circuito fechado de alta pressão, o que é complicado e oneroso. Durante os testes, a temperatura e a pressão do óleo são medidas na entrada e a temperatura na descarga do mancal. Normalmente, a temperatura do mancal é medida (termo-elemento inserido no metal patente das pastilhas). As medições nas vazões de óleo lubrificante e de selagem não são feitas com freqüência. A medição de vibrações pode ser feita tanto no eixo quanto na carcaça. As medições na carcaça são feitas próximas às posições do mancal nos planos vertical, horizontal e axial. As vibrações no eixo são medidas em várias posições, com sondas a 90o, de modo que no osciloscópio, é possível ver as órbitas dos pontos do eixo correspondentes à seção específica. Filtros ou analisadores de tempo real são usados para analisar as várias componentes de vibração, em freqüência e amplitude. Também é interessante ver as variações de fase, isto é, ver como a amplitude da vibração se movimenta com relação a um ponto fixo no eixo, em várias velocidades de rotação (o ponto fixo no eixo pode ser obtido tendo uma marca de referência monitorada por uma célula fotoelétrica ou “key-phasor”). Pela observação da fase, é possível achar entre quais velocidades críticas o ponto operacional existe, já que ao passar em uma destas, existe uma mudança de fase nas vibrações. Por exemplo, antes da primeira velocidade crítica, o desbalanceamento e as vibrações estão em fase; além da primeira velocidade crítica, eles estão em oposição de fase. Na verdade, essas mudanças de fase nunca são instantâneas mas são distribuídas em uma faixa de velocidade. Durante as medições de vibração, é necessário levar em conta os “run-outs” elétricos e mecânicos. O “run-out” elétrico é um fenômeno devido ao fato que, durante as operações de forja, campos magnéticos são criados e, subseqüentemente, perturbam as medições. É necessário evitar essas dificuldades antes dos testes, desmagnetizando o rotor. O “run-out” mecânico é devido a excentricidades e ovalização inevitáveis das peças mecânicas, pode ser medido por meio de outros instrumentos. No passado, se limitava a amplitude da vibração exclusivamente; agora se verifica também a velocidade da vibração ou a aceleração da vibração (energia da vibração). A velocidade da vibração é proporcional ao produto da amplitude pela freqüência e à energia dissipada: esta é razão porque é uma importante referência para a avaliação de vibrações. Em geral, os valores de vibração aceitáveis na carcaça, são metade daquelas no eixo. Para dar uma idéia da ordem dessas amplitudes, para um eixo operando a cerca de 5000 RPM, a amplitude de vibração aceitável é até cerca de 40 microns. Para a carcaça, os limites de velocidade de vibração são aceitáveis na ordem de 10 – 20 mm/ seg. É oportuno mencionar que as características do comportamento vibratório obtidas durante o teste de fábrica poderão ser um pouco diferentes das que serão observadas no campo, devido a fatores como mudanças da natureza do gás e esforços na compressão, uso de acoplamentos e fundações diferentes, etc. 6.1.2. MONITORAÇÃO E ACOMPANHAMENTO DE VIBRAÇÕES DURANTE A OPERAÇÃO O primeiro sintoma de ocorrência de problemas mecânicos em máquinas costuma se a alteração de seu comportamento vibratório. Embora existam alguns tipos de defeitos que se manifestem subitamente, danificando a máquina quase no mesmo
  • 115.
    4 instante, o quese vê na maioria das vezes é o aparecimento de alguma anormalidade sem graves conseqüências imediatas, seguida de uma deterioração progressiva que irá finalmente, caso não percebida e corrigida a tempo, levar à falha. A monitoração contínua de vibração (será abordada em outro capítulo), fornecida com a máquina e suas proteções, é útil na proteção quanto a falhas súbitas ou evitar-se uma falha maior (catastrófica), mas pouco contribuem na avaliação das causas do problema. Com o avanço da eletrônica e da informática, surgiram as técnicas computacionais de análise e até diagnóstico de vibrações, revolucionando a prática da manutenção. São empregados, de acordo com o caráter preditivo da manutenção moderna, na observação sistemática e regular do comportamento vibratório das máquinas, para detectar as perspectivas de ocorrência de falhas, efetuar o diagnóstico das causas e definir a ação corretiva. As mais importantes técnicas de análise consistem no levantamento da órbita do eixo e na elaboração do espectro de freqüências x amplitudes de vibração. A órbita ou movimento desenvolvido pelo centro do eixo no interior do mancal, pode ser reproduzida na tela de um osciloscópio pela composição dos sinais provenientes de dois sensores de vibração a 90º instalados no mesmo ponto. As imagens assim produzidas, denominadas “curvas de Lissajou” permitem a análise de aspectos da vibração. Um exemplo típico é mostrado na figura 4.2. Figura 4.2 O espectro de freqüência é um registro gráfico das amplitudes de vibração referente às freqüências presentes em um determinado sinal, tal como é mostrado esquematicamente na figura 4.3.
  • 116.
    5 Figura 4.3 A melhormaneira de se obter o espectro de freqüências consiste no uso de um analisador instantâneo de vibrações (“Real Time Analiser”). Este eqipamento funciona em tempo real, recebendo o sinal e gerando simultaneamente o espectro na tela. A imagem é dinâmica, sofrendo perturbações a medida em que é alterado o comportamento dinâmico do rotor (permite gravar o espectro num determinado instante, fazer gráficos em cascata – com espectros gravadas em intervalos regulares, usualmente em partidas ou paradas da máquina, etc). A comparação dos espectros de freqüência obtidos com uma periodicidade regular permite constatar a evolução de defeitos ou desajustes, cuja natureza é indicada pelas freqüências que são afetadas. 6.2.TESTES TERMODINÂMICOS Quando um compressor centrífugo é adquirido, o fabricante se compromete a fornecer as respectivas curvas de desempenho, baseadas nas condições previstas de funcionamento. Estas curvas são elaboradas por composição analítica a partir das características individuais de cada estágio, obtidas a partir de ensaios de protótipos e catalogadas como dados de projetos para várias famílias de impelidores. Possuem precisão satisfatória para que se possa prever a operação do compressor, mas não há garantia formal disto. A praxe contratual, estabelecida com base na norma API, prevê a obrigatoriedade de garantia, por parte do fabricante, apenas com relação à possibilidade de operar nas condições e alternativas especificadas na requisição de compra do compressor. Ainda assim, a rotação indicada nas curvas para cada uma destas situações não precisa se confirmar na prática, e há tolerância de mais ou menos 4% quanto à potência consumida. A execução do teste de performance com o objetivo de estabelecer as curvas de desempenho por via experimental se mostra conveniente não só por permitir uma avaliação mais precisa da potencialidade da máquina, sua flexibilidade operacional e limites aerodinâmicos, mas também por instituir um padrão de funcionamento inicial, sua performance original ao início do uso (assinatura).
  • 117.
    6 Existem duas possibilidadesquanto ao local de teste, que acabam por influir bastante em sua metodologia. O teste pode ser realizado na fábrica, utilizando uma bancada mantida pelo fabricante para tal, ou no campo, após a instalação. Cada opção tem prós e contras. O teste de fábrica tem as seguintes vantagens: − Possibilidade de corrigir imediatamente eventuais deficiências de projeto; − Disponibilidade de condições e equipamentos apropriado são teste, conforme prescrição das normas. O teste de fábrica é, no entanto, menos favorável nos seguintes aspectos: − Impossibilidade de reproduzir exatamente alguns parâmetros (pressões, temperaturas, composição do gás, potência, rotação, etc) referentes á operação normal do sistema, obrigando a adoção de condições equivalente e critérios de similaridade, − Custo elevado do fabricante para executar os testes. Poderíamos concluir dizendo que o teste de fábrica é indispensável e o de campo altamente desejável. Não é apenas na aquisição de um novo compressor que devemos realizar o teste de performance. Ele pode ser também necessário quando desejamos executar grandes modificações nas condições operacionais do sistema, nas aferições do sistema de controle ou mesmo para avaliação periódica da deterioração do desempenho termodinâmico da máquina (acompanhamento preditivo). Nestes casos, por tratar-se de um compressor já instalado, obviamente o teste será no campo. 6.2.1. TESTE DE FÁBRICA A execução de um teste na fábrica é planejada e comandada pelo fabricante, normalmente com testemunho e aprovação do cliente. O planejamento deve incluir uma descrição das instalações e da instrumentação existente , os procedimentos previstos e as formas de apresentação dos resultados. Todas as equações utilizadas na interpretação dos dados devem ser listadas e justificadas, caso envolvam simplificações ou conceitos que não sejam de uso corrente.A maioria dos fabricantes está preparada para realizar testes de performance baseados em normas editadas por entidades oficiais. No Brasil a mais aceita e a norma ASME PTC- 10, que estabelece preceitos sobre os mais variados aspectos do teste, tais como: − “lay-out” da instalação; − tipo, quantidade, posicionamento e calibração da instrumentação; − regras pra o caso de se adotar no teste condições diferentes das utilizadas na operação do compressor; − métodos para computação dos resultados. O aspecto mais característico da norma ASME PTC-10 é o estabelecimento de 2 tipos de teste, para os quais são indicados metodologias e tolerâncias diversas. O tipo I pressupõe a realização do teste em condições exatamente coincidentes com aquelas para as quais o compressor foi especificado.O tipo II trata do teste em que não há esta coincidência, sendo adotadas regras de equivalência. Existem diversas circunstâncias que podem impedir a total reprodução das condições de operação durante um teste realizado na fábrica, tais como: − dificuldade na obtenção ou manuseio do gás de projeto (gás natural com peso molecular específico, no nosso caso); − impossibilidade de fornecer potência (compressores acionados por motores
  • 118.
    7 elétricos, por ex.)e rotação requeridas pelo compressor nas condições de projeto. Como os compressores centrífugos comprimem muitos gases diferentes (ar, metano, propano, misturas de hidrocarboneto, amônia, oxigênio, dióxido de carbono, etc.), é normalmente difícil e oneroso conduzir testes com o gás operacional em um circuito fechado. Por esta razão, o ar em circuito aberto é normalmente usado para testes (mais barato e mais prático) ou até um número limitado de gases em circuito fechado pode ser empregado, como veremos posteriormente. Uma vez que gases diferentes do de processo podem ser usados, surge a necessidade de se conduzir um teste bem embasado, atendento aos requisitos da norma ASME PTC-10. Para obter isto, os seguintes critérios de similitude devem ser atendidos: Ter triângulos de velocidade semelhantes e, portanto, a mesma proporção entre módulos de cada velocidade semelhante e ângulos iguais entre os vetores de velocidade, quando comprimindo diferentes gases, desse modo resultando em curvas características semelhantes em Head x vazão. Ter a mesma razão de volumes específicos do gás entre a entrada e saída do compressor durante o teste que a de projeto (operação normal), dentro de um limite de tolerância de ± 5%. Na verdade, ao passo que para uma bomba a similitude existe para todos os pontos da curva característica, para os compressores isto nem sempre é verdadeiro, porque se deve levar em conta a compressibilidade do gás, já que a razão de velocidades do gás entre a entrada e a saída nem sempre é o mesmo para gases diferentes. Por exemplo, fazendo a comparação entre a compressão de ar e de hidrogênio, encontramos que a razão de compressão do ar será maior que a do hidrogênio (ρar> ρH2); considerando triângulos de velocidade iguais na entrada, na saída os triângulos serão diferentes, já que o volume específico de ar na compressão é reduzido mais do que o do hidrogênio. Portanto, os gases operacionais e de teste devem ter os mesmos coeficientes entre os volumes específicos na entrada e na saída, já que é necessário que o fluxo dos dois gases atinjam as pás do impelidor com a mesma incidência e sejam comprimidas com a mesma eficiência, ou seja: v2 = constante v1 Já que ==⎟⎟ ⎠ ⎞ ⎜⎜ ⎝ ⎛ = ρ 1 2 1 2 11 P p v v nn constante Pode ser deduzido que a condição acima mencionada pode ser substituída por outra em termos da razão de compressão e da constante politrópica “n”. Particularmente, se os gases tiverem a mesma constante adiabática “k” e o mesmo “n” (supondo uma eficiência de compressão politrópica igual), um teste válido pode ser conduzido com o gás tendo a mesma relação de compressão. Naturalmente, estas condições devem ser respeitadas mesmo se o gás de teste for igual ao gás operacional, mas é succionado a uma temperatura diferente. No caso da
  • 119.
    8 razão de volumesespecíficos dos dois gases não ser igual, ele pode ser modificado variando-se o head e portanto a velocidade do teste. 10.2.3 Testar com, aproximadamente, o mesmo número Reynolds (Re) Re = V. l = forças inerciais v forças de atrito onde: V = velocidade do fluido l = comprimento de referência que depende da seção do duto v = viscosidade cinemática Quanto mais alto for o número de Reynolds, melhor será a eficiência do compressor e mais alto o Head. Re é aproximadamente proporcional à pressão de sucção, a potência é proporcional a vazão mássica e consequentemente, também à pressão de sucção, e desse modo, Re é proporcional à potência. Em conclusão, é possível operar à potência mais baixa com Re mais baixo, e corrigir o Head e a eficiência com o número Reynolds. A norma ASME prevê essas correções em uma forma aproximadamente proporcional. Esta é uma solução aproximada já que a influência de Re não é constante e é maior para valores menores. È importante mencionar que a norma ASME tem limites de tolerância apertados para Re de teste, se o Re de projeto for abaixo de 200.000: entre 90% e 105% do valor de projeto. Já se o Re de projeto for acima de 200.000 as tolerância é ampliada: Re de teste pode variar 10% a 200% do valor de projeto 1.1..1. Testar com, aproximadamente, o mesmo número de MACH: Ma = V a Onde: V = velocidade média do gás a = velocidade sônica no gás Se Ma < 0.8 em qualquer parte do percurso do gás, os testes podem ser realizados com números Mach bem diferentes (limites de tolerância entre 50% e 105% do valor de projeto), já que sua influência é desprezível; geralmente este é o caso em compressores centrífugos. Se Ma > 0.8, isto é, se a faixa transônica e supersônica for atingida, os testes devem ser conduzidos com um Ma muito próximo ao do projeto (limite de tolerância de ± 5%), neste caso, entretanto, as condições a serem atendidas são muitas e é difícil realizar os testes. Os testes podem ser feitos com gases puros ou com misturas de gases. Entretanto, em circuito fechado, as misturas de gases podem variar sua composição, perder suas características e afetar os testes. Por isso é importante manter uma análise freqüente da composição da mistura ao longo dos testes. Isto leva os testes em circuito fechado a serem mais dispendiosos, mas em alguns casos é a única forma de se obter resultados aceitáveis. = constante = constante
  • 120.
    9 Quando o gásde processo tem um peso molecular maior do que o ar ou baixa T1 (mais compressíveis), os testes devem ser conduzidos em circuito fechado com dióxido de carbono (CO2) ou gás freon; caso contrário, se o teste fosse feito em circuito fechado com ar, velocidades mais altas seriam necessárias, levando a temperaturas de descarga mais altas com o conseqüente risco de dano para o compressor. Quando o gás de processo tem um peso molecular menor do que o ar ou alta T1 (manos compressíveis), os testes são normalmente conduzidos em similitude (uso de fatores de correção) com o ar, em circuito aberto, em velocidades mais baixas (o que pode também ser difícil) ou com misturas de gases em um circuito fechado (nitrogênio (N2) e hélio (H2), por exemplo). É melhor evitar testes com ar em um circuito fechado, já que podem ocorrer misturas explosivas de ar e vapores de óleo. Gases tóxicos ou inflamáveis nunca são usados para testes, já que exigem equipamentos caros e uma instalação de teste externa. Deve-se levar em conta o desvio entre gases reais e gases perfeitos por meio do fator de compressibilidade “Z” que modifica a fórmula do gás perfeito: PV = ZRT Durante os testes termodinâmicos, as seguintes leituras são feitas: pressão, temperatura e vazão volumétrica na sucção, pressão e temperatura na descarga e composição do gás de teste. A temperatura externa da carcaça é medida para avaliar o calor irradiado que é desprezível em um cálculo de primeira aproximação. A potência absorvida pelo compressor deve ser medida por meio de um torque- meter. É possível, também, avaliar a potência por meio do balanço térmico do óleo lubrificante, do óleo de selagem e do gás, na base de saltos de entalpia. Neste caso, a potência absorvida é dada pela soma da potência armazenada pelo gás (proporcional ao fluxo de massa e à salto entálpico entre a sucção e a descarga), pelo óleo (calculada com base na vazão e no ∆Τ em sua passagem pelas selagens e mancais) e da irradiada para fora. A eficiência adiabática ou politrópica é obtida dividindo-se o head adiabático ou politrópico, calculadas usando as fórmulas termodinâmicas acima, pelo head real, que é a potência total absorvida pelo compressor por unidade de peso de fluido comprimido. Quando existirem trocadores de calor intermediários, o melhor método é o de realizar o teste, estágio por estágio, e em seguida reconstruir o todo. Ao receber o projeto relativo à execução de um teste de performance no fabricante, provavelmente constataremos que ele não atende exatamente a tudo que preceitua a ASME. As diferenças encontradas podem ter como objetivo a agilização do teste, redução dos custos ou derivam-se mesmo de uma deficiência das instalações existentes. Estas infrações à norma , além de comuns, são em geral toleráveis, mas o cliente deve saber identificá-las e analisar suas conseqüências. 6.2.2. TESTE DE CAMPO Quando se pode prever a realização de um teste no campo, é muito importante que o projeto da instalação leve em conta essa perspectiva. Essa não é, infelizmente, a realidade com que nos defrontamos na maior parte das vezes. Problemas de diversos
  • 121.
    10 tipos podem entãoocorrer, chegando a serem necessárias modificações na instalação para viabilizar o teste, quase sempre com custo elevado. O teste no campo é usualmente executado antes da partida inicial ou com o objetivo de avaliar a deterioração de performance do compressor ao longo do tempo de operação, durante uma possibilidade de interrupção do funcionamento da planta. Esta avaliação, se feita periodicamente (acompanhamento preditivo de performance), permitirá decidir de forma otimizada quando é mais econômico fazer a revisão geral do compressor (manutenção “on condition”) fruto da comparação do benefício (potencial ganho de performance pós revisão) x custo da revisão. Pressões, temperaturas, vazão, composição do gás e rotação são grandezas a serem obtidas diretamente no teste de performance. O head efetivamente fornecido ao gás e mais alguns outros parâmetros relacionados à composição do gás (expoente adiabático, constante do gás, calor específico à pressão constante) devem ser avaliados indiretamente, por exemplo, empregando os métodos indicados pelo ASME PTC-I0. Há alguma dúvida quanto à forma mais adequada para a obtenção do head. O método termodinâmico consiste em associá-lo à variação de entalpia entre as condições de entrada e saída do gás, ou seja: H = h2 –h1 A precisão com que podem ser calculados os valores da entalpia é, no entanto, duvidosa, especialmente em se tratando da compressão de gases reais e misturas de gases. Uma outra corrente prefere a medição direta da potência, utilizando recursos.mecânicos (torquímetros, dinamômetros) ou elétricos (no caso de acionamento a motor elétrico): Um balanço térmico, no caso de acionamento por turbina a vapor, pode também ser efetuado. A potência obtida em qualquer desses casos é a de entrada no eixo do compressor, e o head pode ser calculado então por: H = WC - WL M onde: H = head real WC = potência medida no teste WL = potência dissipada nos mancais M = vazão mássica aspirada A dissipação de potência nos mancais pode ser avaliada pelo aquecimento do óleo lubrificante. Alguns autores recomendam que os vazamentos através da selagem externa do compressor sejam subtraídos da vazão mássica aspirada, no sentido de obter um valor mais realista para o "head". Não achamos esse procedimento conveniente porque ao proceder de maneira inversa, isto é, determinar a potência consumida a partir dos dados de operação, o usuário teria que estimar o vazamento para incluí-lo nos cálculos. Adotando a fórmula anterior o efeito dos vazamentos fica incorporado ao rendimento termodinâmico, causando pequena redução do seu valor. Antes de realizar um teste é preciso tomar precauções para eliminar todas as possíveis causas de erros de medições. Devemos tentar, na medida do possível, trabalhar com a instrumentação existente, mas não a ponto de comprometer a validade do teste. Muitas vezes, modificações se fazem necessárias. Os principais aspectos a serem observados são os seguintes:
  • 122.
    11 - Os medidoresde pressão, temperatura e vazão devem se situar em trechos retos de tubulação, de comprimento mínimo equivalente a dez diâmetros. - A utilização de pelo menos dois medidores de pressão e dois de temperatura por seção, em posições diametralmente opostas, é recomendável para permitir a verificação de eventuais estratificações do fluxo. - Os medidores de pressão e temperatura devem ser selecionados de modo a trabalharem próximos ao meio da escala e devem sofrer calibração no local, imediatamente antes do teste. - A amostragem do gás para fins de análise de composição requer o maior cuidado, especialmente se houver componentes saturados, passíveis de condensação à temperatura ambiente. É recomendável fazer uma extração na sucção e outra na descarga, para fms de comparação. No momento de passar à computação dos resultados é preciso decidir acerca de como considerar o comportamento do gás. Três são as alternativas mais indicadas: -Adotar a hipótese de gás perfeito. -Adotar as fórmulas desenvolvidas para gases perfeitos, aplicando correções práticas baseadas no conceito de fator de compressibililidade. -Adotar fórmulas desenvolvidas para gases reais, com uso de recursos computacionais. Seja qual for o procedimento adotado, é preciso que ele seja claramente referido na apresentação dos resultados, para que o usuário das curvas características possa efetuar os seus cálculos nas mesmas bases.
  • 123.
    7.1- Sistema deÓleo Lubrificante ÍNDICE ÍTEM Generalidades 7.1.1 Componentes Principais 7.1.2 Detalhamento dos componentes principais 7.1.3 Observações operacionais 7.1.4 Procedimentos de limpeza de permutador 7.1.5 Substituição de elementos filtrantes 7.1.6 Sistema de óleo lubrificante (emergência) 7.1.7 Bomba de emergência 7.1.8 Linhas de óleo lubrificante 7.1.9 Pressão de óleo lubrificante nos mancais 7.1.10 Válvula de controle de pressão 7.1.11 Instrumentação 7.1.12
  • 124.
    1 7.1 SISTEMA DEÓLEO LUBRIFICANTE 7.1.1 GENERALIDADES O óleo lubrificante tem como finalidades prover a elevação do conjunto rotor, pela formação de um filme de óleo entre o eixo e o mancal, e também refrigerar (trocar calor) as partes constituintes dos mancais, mantendo-os a uma determinada temperatura (longe do ponto de fusão). O óleo lubrificante deve ser resfriado para manter uma boa viscosidade; portanto, é fornecido um sistema de resfriamento. A viscosidade do óleo é um parâmetro muito importante que, juntamente com as características geométricas dos mancais, influencia consideravelmente o comportamento dinâmico do rotor e em conseqüência, as vibrações: um lubrificante pode ter força suficiente de amortecimento para permitir a operação em velocidades quase críticas. Baixa viscosidade devida a altas temperaturas de mancal iria comprometer a operação e torná-la insegura: se o peso do rotor não é suportado por elevação suficiente, o filme de óleo pode se romper e fazer com que as superfícies do eixo e do mancal trabalhem em contato, desse modo aumentando as temperaturas e o risco de queima do metal branco do mancal. Importante registrar que o fluxo de óleo deve ser suficiente para dissipação do calor gerado pelos mancais. Daí ser necessário que a temperatura do mancal seja sempre mantida sob controle: ela é regulada pela variação da pressão do óleo de entrada com a válvula de controle de pressão (PCV). Além disso, a temperatura do óleo drenado deve ser mantida sob controle para verificar se a troca de calor entre o mancal e o óleo está correta. 7.1.2 COMPONENTES PRINCIPAIS I. Tanque de Óleo II. Bombas de Óleo III. Trocadores de Calor IV. Filtros V. Válvula de Controle de Pressão (PCV) 7.1.3 DETALHAMENTO DOS COMPONENTES PRINCIPAIS 7.1. Tanque de Óleo Geralmente o tanque é equipado com um aquecedor elétrico (resistências) que permitem dar ao óleo a viscosidade adequada para a partida. Ele possui capacidade suficiente para garantir tanto um bom tempo de retenção (alimentando as bombas de óleo mesmo sem o óleo retornar ao tanque e se perdendo no sistema) quanto um determinado tempo em um receptor para evitar formação de espuma.
  • 125.
    2 Em alguns casos,o gás pode entrar no tanque, o que pode formar misturas explosivas em contato com vapores de óleo; um leve fluxo de gás inerte (N2) é aplicado à superfície de óleo para prevenir esta ocorrência. Compressores centrífugos acionados por turbinas a vapor possuem um separador (centrífugo) que tira o óleo do fundo do tanque e o centrifuga, para separar a água formada por vazamentos de vapor da turbina de força motriz, condensando e sendo reciclada para o tanque. Normalmente, o separador é dimensionado para processar todo o óleo do tanque em um só dia. Ele pode ser projetado também para separar lama e sujeira; estes são chamados de centrífugas de clarificação. A capacidade “volume” varia de acordo com projeto. A Lista dos Instrumentos contém os instrumentos de controle e segurança fornecidos pelo fabricante. O reservatório é provido das conexões necessárias para encher, drenar, purgar e inspecionar. Existem reservatórios que possuem aquecedor elétrico. 7.2. Bombas O óleo é retirado do tanque e enviado para o sistema por uma série de bombas. Podem ser usadas bombas de deslocamento positivo ou bombas centrífugas; vamos examinar brevemente a diferença entre esses dois tipos de bombas. Uma bomba de deslocamento positivo fornece mais ou menos a mesma vazão de óleo em pressões variadas, dependendo da resistência do sistema à pressão. Sua curva característica é a mostrada na Figura 7.2. O ponto operacional é aquele em que a curva característica e a curva de resistência do sistema (A neste caso) se cruzam.
  • 126.
    3 Figura 7.2 Teoricamente, acurva característica de uma bomba de deslocamento positivo é paralela ao eixo Y, mas na prática a vazão diminui gradualmente em uma elevação na pressão, porque vazamentos internos (vazamentos de fluido em direção à sucção) aumentam com a pressão. O único modo de modificar o ponto operacional é alterar a curva de resistência do sistema, já que em geral, estas bombas são de velocidade definida. Ele pode ser facilmente modificado, acrescentando-se uma válvula de desvio à parte direta do óleo de volta para o tanque. Variando a abertura da válvula é possível mover o ponto operacional ao longo da curva característica; por exemplo, a curva A representa a resistência do sistema com a válvula de desvio parcialmente aberta e a curva C representa a resistência do sistema com a válvula de desvio mais fechada e B com a válvula totalmente aberta. Normalmente esta válvula se abre automaticamente, operada pela pressão do óleo que deve ser mantida constante (ver Figura 7.3). Curva característica Curvas de resistência do circuito Ponto operacional
  • 127.
    4 Figura 7.3 Normalmente utiliza-sebomba auto-escorvante. O sistema do óleo lubrificante inclui uma bomba de óleo principal e uma bomba auxiliar normalmente do tipo submersa. As bombas são adequadas para uma operação contínua e podem ter capacidades iguais. A bomba principal está conectada mecanicamente ao eixo do redutor. A linha de aspiração da bomba principal é munida de um filtro e de uma válvula de escorva. A linha de descarga de cada bomba mecânica é munida de uma válvula de alívio, de uma válvula de retenção e de uma válvula de bloqueio. A bomba auxiliar é munida de um dispositivo automático de controle da partida. A linha de descarga da bomba auxiliar é provida de uma válvula de retenção e de uma válvula de bloqueio. Obs: Quando a bomba de corrente alternada e a de corrente são instaladas no mesmo eixo, conforme nas máquinas da P-20 / P-08, existe um sistema de inter-travamento como medida de segurança. Durante a instalação de bombas e tubulações assegurar-se de que os valores de desalinhamento radial (paralelo) e axial (angular) não ultrapassem os valores fornecidos pelo fabricante. 7.3. Trocador de Calor Como já mencionado, o óleo deve ser resfriado para manter uma boa viscosidade. Portanto é fornecido um sistema de resfriamento, compreendendo dois trocadores de água ou ar em paralelo, que são feitos para operar alternadamente por válvulas de três vias. A temperatura do óleo é controlada regulando-se a vazão do líquido refrigerante. 7.4. Filtros O óleo limpo deve ser mantido circulando para ótima lubrificação dos mancais e vedações e para prevenir o desgaste; assim, existem dois filtros funcionando alternadamente em paralelo. Os filtros são componentes de sistema críticos que devem ser mantidos sob controle com um manômetro de pressão diferencial. Quando existe muita perda de pressão devido a filtros sujos, eles devem ser substituídos ou podem se quebrar. Quando existem filtros duplos e resfriadores duplos, é necessário que o fluxo seja comutado de modo uniforme nas válvulas de três vias, de modo que não pare na metade do caminho, fazendo com que a pressão se eleve à montante (e, portanto fazendo com que as válvulas de alívio se abram) e
  • 128.
    5 causando uma interrupçãono fluxo (resultando em um desligamento de pressão mínima). A jusante dos permutadores está presente dois filtros de óleo iguais, ligados em paralelo e munido de uma válvula de transferência de fluxo contínuo. A válvula de transferência está instalada entre os filtros para encaminhar o óleo através de cada filtro para os mancais das máquinas. Este dispositivo permite pôr fora de serviço um dos filtros para inspeções ou para manutenção sem interromper o fluxo do óleo para as máquinas. Os filtros possuem elementos filtrantes do tipo cartucho substituível. Os cartuchos devem ser substituídos sempre que a queda de pressão no filtro, medida pôr um indicador de pressão diferencial, se aproxima do valor nominal indicado na "Lista dos Instrumentos". Uma linha de compensação do fluxo, munida de orifício de restrição, conecta os dois filtros para permitir o enchimento do filtro de reserva e facilitar o funcionamento da válvula de transferência. Nunca abrir a válvula de dreno e de vent do filtro em serviço, pois poderá ocorrer parada da máquina pôr pressão baixa óleo lubrificante e / ou acidente 7.5. Válvula de controle (PCV) Depois dos filtros, existe uma válvula de controle de pressão auto-acionada (PCV) que mantém constante a pressão do óleo para os mancais, entre 1.5 e 2.5 kg/cm2 . Cada linha de óleo para os mancais é equipada com um orifício calibrado e uma derivação ou tomada de pressão para regular a pressão para os mancais individuais. O óleo deve poder ser facilmente drenado sem espuma ou evaporação que dificultaria a lubrificação. Portanto, ele é drenado por gravidade para o tanque através de tubulação inclinada devidamente dimensionada; a entrada é distante da sucção da bomba. Suspiros são instalados para prevenir sobre-pressão que poderia impedir o defluxo regular do óleo. 7.1.4 OBSERVAÇÕES OPERACIONAIS 7.1. O óleo é resfriado, filtrado e disponibilizado no header principal a uma temperatura e pressão para cada projeto específico; 7.2. A pressão no sistema do óleo lubrificante é controlada pôr meio de uma válvula controladora de pressão; 7.3. Os desenhos simplificados nas páginas seguintes mostram os componentes principais do sistema de óleo lubrificante.
  • 129.
    6 7.4. O óleoé resfriado por dois permutadores do tipo "placa" água / óleo, um como reserva do outro. 7.5. Cada permutador é projetado para resfriar a quantidade total de óleo necessária à instalação. Eles são munidos de tubos ligados em paralelo. Uma válvula de transferência de fluxo contínuo está instalada entre os permutadores para encaminhar o óleo através de cada um deles e para o cabeçote do óleo. 7.6. Este dispositivo permite pôr fora de serviço um dos permutadores para inspeções ou para manutenção sem interromper o fluxo do óleo para as máquinas. 7.7. Uma linha de compensação do fluxo, munida de ofício de restrição, conecta os dois permutadores para permitir o enchimento daquele que estiver de reserva e facilitar o funcionamento da válvula de transferência. 7.8. Os permutadores são providos de uma linha de derivação com válvula automática (TV)controlada por um dispositivo de controle da temperatura (TIC), o qual mede a temperatura no cabeçote principal do óleo a jusante dos resfriadores. Isso permite uma conexão direta das tubulações de entrada e saída do óleo dos resfriadores até que a temperatura a jusante atinja o valor nominal. 7.9. Ar no circuito diminui a eficiência e com isto ocorre o aumento de temperatura. 7.10. Deve−se ter cuidado com o diâmetro e concentricidade das juntas, em relação aos flanges nas tubulações, pois caso não seja observado pode ocorrer restrição do fluxo e aumento de temperatura do fluido.
  • 130.
    7 7.1.5 O procedimentopara a limpeza do permutador (elemento refrigerante) e o seu sucessivo enchimento, enquanto o sistema do óleo estiver funcionando, inclui os passos seguintes: i. Abrir a válvula na linha de enchimento (ou de compensação do fluxo) que conecta os dois permutadores. ii. Purgar o ar do permutador que entrará em funcionamento, através da válvula de purga, e quando o fluxo estiver constante e sem ar fechar a válvula. iii. Ativar a válvula de transferência (ou válvulas) para pôr em funcionamento o permutador de reserva. iv. Fechar a válvula presente na linha de enchimento, abrir a válvula de drenagem e purgar permutador que agora ficará de reserva para manutenção. v. A fim de manter o permutador limpo e disponível para o uso imediato, após a manutenção, abrir a válvula na linha de enchimento e fechar a válvula de ventilação logo que o óleo fluir sem ar. vi. Uma vez que o permutador de reserva tenha sido inspecionado como descrito acima, a linha de compensação do fluxo mantém um fluxo continuo através do permutador que está de reserva. 7.1.6 Procedimento para substituição do elemento filtrante; 7.1. Filtro que se quer colocar para operar (standby). i. Assegurar se através de indicador de pressão e contato com a mão na carcaça do filtro “temperatura”, qual filtro não está operando ii. Verificar se a válvula de equalização para interligar os dois filtros esteja fechada. iii. Abrir lentamente a válvula de drenagem do filtro para certificar se não está pressurizado. Caso esteja poderá ser a válvula de três vias e/ou de equalização dando passagem. Portanto, esta operação é feita apenas para certificar se não existe passagem de uma carcaça para outra indevidamente (ótima oportunidade de se detectar alguma anormalidade e/ou evitar acidentes durante a manobra de troca de filtro). Observações: Caso não exista retorno para o tanque do óleo a ser drenado, durante a substituição do elemento filtrante, deve-se usar uma bandeja para coletar o óleo. Normalmente quando a carcaça é muito grande e portanto existiria provavelmente grande quantidade de óleo a ser drenado, o projeto prevê a drenagem com o retorno de óleo para o tanque. iv. Fechar e / ou certificar de que a válvula de drenagem do filtro esteja fechada. v. Abrir a válvula de vent e / ou purga. vi. Abrir a válvula de equalização.
  • 131.
    8 vii. Deixar sangrar/ pressurizar o filtro por um período de tempo que assegure que ocorreu a sangria e / ou o filtro esteja completamente cheio / pressurizado. viii. Fechar a válvula de vent. ix. Fechar a válvula de equalização. x. Comutar lentamente de filtro através da válvula de transferência de três vias. 7.2. Filtro que se quer substituir o elemento filtrante (elemento filtrante sujo). i. Após ter feito a comutação, assegurar-se através de indicador de pressão e contato com a mão na carcaça do filtro “temperatura”, se o filtro que se quer substituir o elemento filtrante não está mais em operação. ii. Verificar se a válvula de equalização para interligar os dois filtros esteja fechada. iii. Abrir a válvula de vent e / ou purga e certificar através do visor de fluxo se não existe fluxo. iv. Abrir lentamente a válvula de drenagem do filtro para certificar se não está pressurizado. Caso esteja poderá ser a válvula de três vias e/ou de equalização dando passagem. Portanto, esta operação é feita apenas para certificar se não existe passagem de uma carcaça para outra indevidamente (ótima oportunidade de se detectar alguma anormalidade e/ou evitar acidentes durante a manobra de troca de filtro).
  • 132.
    9 Observações: Caso não existaretorno para o tanque do óleo a ser drenado, durante a substituição do elemento filtrante, deve-se usar uma bandeja para coletar o óleo. Normalmente quando a carcaça é muito grande e portanto existiria provavelmente grande quantidade de óleo a ser drenado o projeto prevê a drenagem com o retorno de óleo para o tanque. v. Abrir a tampa superior inspecionar, limpar o filtro e substituir os cartuchos (o elemento filtrante). vi. Fechar e/ou certificar de que a válvula de drenagem do filtro esteja fechada. vii. Fechar a tampa superior (atentar para o estado da junta). viii. Abrir lentamente a válvula de equalização. ix. Deixar sangrar / pressurizar o filtro por um período de tempo que assegure que ocorreu a sangria e/ou o filtro esteja completamente cheio / pressurizado. x. Fechar a válvula de vent e/ou purga. xi. Fechar a válvula de equalização. Desta formo o filtro onde se substituiu o elemento filtrante está pronta par entrar em operação a qualquer momento.
  • 133.
  • 134.
    11 DESENHO SIMPLIFICADO DOSISTEMA DE ÓLEO LUBRIFICANTE
  • 135.
    12 7.1.7 SISTEMA DOÓLEO LUBRIFICANTE DE EMERGÊNCIA 7.1. TANQUE ELEVADO (RUN DOWN TANK) DE ÓLEO LUBRIFICANTE. 6..1.1. O sistema é integrado por um tanque elevado de óleo lubrificante, para abastecer o cabeçote dos mancais em caso de parada de emergência causada por uma avaria das bombas principais e auxiliares. 6..1.2. O tanque é dimensionado para uma capacidade de óleo suficiente para assegurar a lubrificação dos mancais até a parada completa da unidade (V= 100 Litros). 6..1.3. As bombas aspiram o óleo do tanque principal e envia para dois caminhos a seguir: RUN-DOWN TANK e mancais dos compressores BCL406A / 2BCL458N / Caixa redutora / Turbina Livre (PT). 6..1.4. A montante do RUN- DOWN TANK, na linha de enchimento, existem dois caminhos para o óleo percorrer : Um o óleo passa através de um orifício calibrado e o outro através de uma válvula de controle e desta forma controla-se o enchimento do tanque. 6..1.5. A montante do RUN- DOWN TANK, existe também, uma válvula de retenção que permite a passagem do óleo do tanque para lubrificar e esfriar os mancais dos compressores BCL406A / 2BCL458N / Caixa redutora / Turbina Livre (PT) em caso de parada de emergência causada pôr uma avaria das bombas principais e auxiliares. Quando a pressão estática no tanque elevado excede a pressão presente no cabeçote de abastecimento, o óleo lubrificante desce até aos mancais através da válvula de retenção. 6..1.6. Inicialmente, o tanque é abastecido de óleo até ao nível operacional, durante a preparação do sistema do óleo lubrificante. O sistema de controle do nível permitirá que o nível do tanque seja controlado adequadamente e além disto existe uma linha de transbordamento para retorno de óleo para o tanque principal. 6..1.7. Em alguns projetos este sistema provê óleo para os mancais dos compressores, caixa redutora e turbina livre (PT). 7.1.8 BOMBA DE EMERGÊNCIA (BOMBA DE ESFRIAMENTO) 7.1. Uma bomba de emergência normalmente do tipo submerso é utilizada para lubrificar os mancais da Turbina Livre (PT), durante a fase de parada de emergência causada pôr falha das bombas principal / stand-by e / ou por falha de corrente alternada. 7.2. O acionamento da bomba é feito pôr motor elétrico de corrente continua. 7.3. A bomba é acionada logo após o sinal de parada de emergência 7.4. A linha de sucção da bomba é provida de filtro.
  • 136.
    13 7.5. A linhade descarga é provida de permutador duplex e de um filtro duplex de óleo. 7.6. A bomba de emergência deverá funcionar até que a temperatura de resfriamento dos mancais sejam alcançadas. 7.1.9 LINHAS DO ÓLEO LUBRIFICANTE 7.1. Após o óleo atingir temperatura necessária através do permutador, grau adequado de pureza pelos filtros, o óleo é então direcionado através do header de óleo principal para as tubulações que levam o óleo para os mancais das máquinas. 7.2. A pressão do óleo no header principal é mantida a uma pressão constante pôr meio de uma válvula redutora de pressão (PCV). 7.3. Em cada linha do óleo para os mancais radiais e axiais, está presente um orifício calibrado, conforme o valor da pressão considerado no projeto (O ajuste final e feito durante a fase de pré−operação). 7.4. Visores de fluxo em vidro e termômetros locais estão instalados nas linhas de retorno do óleo dos mancais. 7.5. Em cada mancal está instalado termo-elementos para controlar a temperatura do metal branco. 7.6. As linhas de saída do óleo despejam-se num header principal, da qual o óleo é encaminhado para o reservatório principal. 7.1.10 PRESSÃO DE ÓLEO LUBRIFICANTE NOS MANCAIS 7.1. A pressão do óleo lubrificante nos mancais é dimensionada pôr meio de orifícios calibrados presentes em cada linha da tubulação de entrada do óleo nos mancais. Os valores das pressões são indicados pôr manômetros instalados no campo e durante a fase de pré-operação deve-se ajustar os valores de cada placa de orifício. 7.2. Uma pressão de óleo de 1.9 à 2.3 Bar (190 à 230 Kpa g) para os mancais radiais do compressor centrífugo BCL406A / 2BCL 458N. 7.3. Uma pressão de óleo de 1.3 até 2.3 Bar (130 à 230 kPa) para o mancal axial do compressor centrífugo 2BCL 458N. 7.4. Uma pressão de óleo de 2.0 Bar abs. (200 kPa abs.) para o mancal axial do compressor centrífugo BCL 406A. 7.1.11 VÁLVULA DE CONTROLE DA PRESSÃO DO ÓLEO 7.1. Válvula de controle da contrapressão (PCV 315).
  • 137.
    14 Esta válvula decontrole tem a função de manter a pressão de óleo constante na descarga das bombas. Está pressão constante de cerca de 9 Bar g (900 kPa g) é enviada para o atuador da PCV315 que consequentemente resultará, de acordo com a posição da válvula, numa maior ou menor quantidade de retorno de óleo para o tanque principal. 7.2. Válvula reguladora do cabeçote do óleo lubrificante (PCV 320). Esta válvula de controle tem a função de manter a pressão de óleo constante de cerca de 2.50 Bar g (250kPa g) no header principal de óleo lubrificante. Regulação da válvula. A regulação da válvula é efetuada durante a fase de pré-operação com a bomba do óleo em funcionamento com a válvula de bloqueio, instalada em paralelo, aberta. O orifício calibrado, instalado em paralelo, deve ter a medida de acordo com o especificado pelo fabricante. Pode ser que pequenos ajustes sejam necessários durante a fase de pré-operação. Observando o manômetro colocado na linha em que a válvula mantém a pressão neces- sária, fechar lentamente a válvula de bloqueio e ao mesmo tempo ajustar a válvula de controle de modo a que a pressão necessária no header principal seja atingida quando a válvula de bloqueio estiver completamente fechada. 7.1.12 INSTRUMENTAÇÃO. 7.1. A instrumentação instalada no sistema de alimentação do óleo (Controladores de pressão, controladores de temperatura, reguladores, etc.) é idônea para assegurar um funcionamento correto do sistema e para sinalizar eventuais maus funcionamentos como partida da bomba auxiliar, parada do equipamento e similares em caso de avaria. 7.2. Os instrumentos normalmente instalados: Chave de nível. Visor de nível. Termômetro. Chave de pressão de partida da bomba auxiliar. Transmissor de pressão diferencial dos filtros de óleo. Chave de temperatura alta no header principal de alimentação de óleo para os mancais. Chave de pressão baixa de alimentação de óleo para os mancais (alarme e trip)
  • 138.
    15 7.3. A listacompleta dos instrumentos, fornecidos pela fabricante, com os valores de ajuste e os seus respectivos TAGs são indicados na "Lista dos instrumentos".
  • 139.
    7.2 Sistemas deSelagem ÍNDICE ÍTEM Selagem externa 7.2.1
  • 140.
    1 7.2.1. SELAGEM EXTERNA. 1.A selagem externa tem como objetivo impedir o vazamento do gás através da passagem do eixo pela carcaça. 2. O dispositivo de selagem do lado do bocal de sucção atua sujeito à pressão e temperatura de sucção do sistema, enquanto do lado da descarga verifica-se uma pressão ligeiramente superior à de sucção (devido à linha de balanceamento) e uma temperatura próxima da temperatura de descarga do compressor. Esses parâmetros, além da natureza do gás comprimido, definem as características da selagem a ser utilizada. 3. Há quatro tipos de selagem, fundamentalmente, que são: a. Selo de labirintos b. S selo de anéis de carvão, Selo de anéis flutuantes ou de líquido c. Selo mecânico, selo seco. 7.2.1.1. SELO DE LABIRINTOS. 1. A selagem de labirintos, cujo esquema é mostrado na figura 13.22, tem como principais vantagens à simplicidade e a ausência de contato direto entre o eixo e o elemento vedante. Sua eficiência é, no entanto, reduzida, e seu emprego limitado à compressão de ar ou fluidos baratos e inofensivos, em pressões moderadas (até cerca de 1200 Kpa =12,23 Kgf / cm²). 2. A folga existente entre os labirintos e o eixo deve superar a folga dos mancais radiais em 0,001 a 0,002 mm por mm de diâmetro. O vazamento esperado nesse caso é da ordem de 0,5 % da vazão mássica.
  • 141.
    2 3. Um aprimoramentodessa forma de selagem é conseguido pela instalação de uma ou mais câmaras intermediárias aos labirintos através das quais se faz a injeção de um fluido selante (em geral ar, vapor d’água ou gás inerte) ou a injeção do vazamento para um local seguro. 4. O sistema com injeção trabalha conforme o esquema da figura 13.23, com fluido selante sendo mantido a uma pressão de cerca de 0,3 atm superior à pressão interna. Esse fluido deve ser bem tolerado pelo gás de operação, ao qual irá se misturar, assim como não deverá ser nocivo ou perigoso porque uma parte do fluxo injetado irá vazar para a atmosfera. 5. O sistema com injeção funciona de modo semelhante, mantendo-se a câmara de extração a uma pressão de cerca de 0.05 atm inferior à menor entre as pressões interna e atmosférica. Para isso, utiliza-se um ejetor operado com ar ou vapor d’água. 6. Há ainda compressores que utilizam um sistema composto com câmaras de injeção e extração justapostas.
  • 142.
    3 7. Os artifíciosque acabamos de mencionar conferem ao selo de labirinto uma estanqueidade absoluta, mas tem o inconveniente de requerer um comprimento muito longo do eixo para a sua instalação. Além disso, no sistema com injeção a vazão necessária do compressor, dos quais estima- se que ¼ possa se misturar ao gás de operação. O sistema com extração, por outro lado, acarreta uma perda de cerca de 1 a 2 % da vazão mássica do compressor. Se o uso de selagens de labirinto é permitido, estas são aplicadas para minimizar os vazamentos para fora; neste caso o gás que sai através das pontas de eixo é cortado por um conjunto de lâminas chamadas de labirintos. Estas selagens são feitas de alta liga ou material resistente à corrosão, com dureza inferior ao eixo, para evitar danificar o mesmo no caso de contatos acidentais. Podem ser removidos com facilidade. O número de lâminas e o valor da folga dependem das condições de operação. Se não for permitido nem um leve vazamento de gás (gases venenosos, explosivos, etc.) as selagens de labirinto são combinadas com sistemas de extração ou injeção. As selagens de labirinto são feitas de liga de alumínio com tratamento térmico (dureza 70-80 Brinell); se o alumínio não for compatível com a corrosão do gás, são usados aços inoxidáveis com teor de 18% de Cr e 8% de Ni. Não existe limitação para usar outros materiais tais como bronze, etc. 7.2.1.2. SELAGEM DE ÓLEO As selagens de óleo consistem de dois anéis flutuantes (anel de alta pressão no lado de alta pressão, anel de baixa pressão no lado de baixa pressão) revestidos com babbit (ver Fig. 4.10) mostrando um desenho típico de um compressor e equipado com diversos anéis de selagem de baixa pressão. Figura 4.10
  • 143.
    4 O óleo deselagem é introduzido, com uma pressão ligeiramente acima da do gás, no espaço anular entre os dois anéis e percola para a folga entre os dois anéis e o eixo. O óleo que sai do lado de baixa pressão volta para o reservatório e é recirculado; o óleo do lado de alta pressão é drenado por purgadores automáticos. A vazão do óleo para o gás é evitada através de uma grande selagem de labirinto instalada entre as selagens de óleo e o interior do compressor, equipada com uma câmara intermediária de balanceamento da pressão. As selagens de óleo consistem de um anel suporte de aço carbono, revestido com uma fina camada de metal branco (geralmente HOYT 11 R) ou metal branco sem cobre, se não for compatível com o gás movimentado (OMNIA).
  • 145.
  • 146.
    7.2.1.3. SELOS MECANICOS Oselo mecânico consiste principalmente de um anel de carbono, geralmente estacionário, mantido em contato com um colar de aço girando com o eixo do compressor. Este contato é garantido pela ação combinada dos elementos elásticos (molas ou foles) e a distribuição de pressão agindo no anel. O calor é gerado pelo contato entre o colar e o anel e deve ser extraído por resfriamento do selo de óleo. A pressão diferencial entre o óleo e o gás deve ser muito alta (3-5 atm), para lubrificar a folga entre o colar e o anel. Para manter este ∆p constante, deve ser construída uma câmara de pressão, tornando necessário ter um selo de baixa pressão entre o óleo pressurizado e a atmosfera. Os selos mecânicos não são fabricados diretamente pela Nuovo Pignone, e sim por outros fabricantes qualificados. Cada fabricante projeta os selos com características estruturais especiais; por exemplo, a fig. 4.11 mostra um selo Kopper: como podemos observar, os elementos elásticos são compostos de molas e o selo de baixa pressão é composto por um anel flutuante de carbono. Figura 4.11
  • 147.
    1 Os selos mecânicossão aplicados onde à contaminação do gás pelo óleo deve ser muito limitada; de fato, o vazamento de óleo do anel de alta pressão é cerca de 5-10 vezes menos que das selagens de óleo convencionais. Além disso, no caso de parada do compressor por falta de óleo, o selo pode continuar a isolar o gás com a máquina parada (embora não perfeitamente dependendo dos arranhões ou desgaste presente nas superfícies de contato entre o colar e o anel). O selo mecânico funciona também com injeção de óleo, mas possui um anel de carvão que trabalha em contato direto com um colar preso ao eixo, conforme ilustra a figura 13.27. O contato direto reduz muito o consumo de óleo deste tipo de selagem em relação ao anterior, sendo essa a sua principal vantagem. Não há, em conseqüência, necessidade de um rigor excessivo no controle da diferença de pressão entre o óleo de selagem e o gás, que nesse caso costuma ser ajustada em até 0,3 atm. Outro aspecto positivo é a manutenção de uma razoável estanqueidade no caso de uma queda na pressão do óleo. O selo mecânico costuma ser especificado para pressões de até 4000 Kpa (40,78 Kgf/cm2), e sua eficiência é fortemente influenciada pelo acabamento superficial e paralelismo das superfícies em contato, além da precisão de montagem. A deterioração das faces do anel de carvão tende a aumentar paulatinamente o consumo de óleo, indicando a necessidade de reposição.
  • 148.
  • 149.
    3 7.2.1.4. SELO DEANÉIS DE CARVÃO. 1. Instalados de modo a possuírem liberdade de movimento radial, os anéis de carvão são centrados em relação ao eixo pelo próprio vazamento. Em virtude disso, podem ser montados com folgas inferiores às dos anéis de labirintos, apresentando, com conseqüência, maior estanqueidade. O inevitável contato com o eixo faz, no entanto, que esse tipo de selo tenha de sofrer reposição relativamente freqüente. 2. Os selos de anéis de carvão são também utilizados em combinação com sistemas de injeção ou extração de câmaras intermediárias. 3. Para efetuar a selagem do eixo contra pressões e temperaturas elevadas, superiores a 1200 Kpa (12,23 Kgf/cm2) e 180° C, respectivamente, ou quando o gás comprimido é potencialmente perigoso, é mais conveniente o uso de selagem líquida. Nesse caso, podemos optar entre os selos de anéis flutuantes e os selos mecânicos. Em ambos os casos, um líquido (quase sempre óleo) é injetado em câmaras de selagem com objetivos de criar uma barreira à passagem do gás.
  • 150.
    4 7.2.1.5. SELO SECO. 1.As vedações são montadas nas extremidades do eixo dos compressores e evita vazamentos de gás. 2. As vedações mecânicas do gás são fornecidas pela John Crane UK Ltda. do tipo T28AT. 3. As vedações mecânicas do gás são compostas de duas vedações mecânicas com as faces sobrepostas, lado a lado, de dois anéis giratórios (sede), em carbureto de tungstênio, e de dois anéis estacionários (face) em grafite. 4. O lado interno (lado gás) de cada vedação mecânica é a parte que suporta a pressão do gás. 7
  • 151.
  • 152.
  • 153.
  • 154.
    1 7.3 Sistema deGás de Selagem ÍNDICE ÍTEM Generalidades 7.3.1 Gás de selagem (BCL406A 2BCL458N) 7.3.2 Filtros de gás e ar de selagem 7.3.3 Válvulas de controle de pressão de gás e ar de selagem 7.3.4 Instrumentos 7.3.5
  • 155.
    2 7.3. SISTEMA DEGÁS DE SELAGEM 7.3.1. GENERALIDADES. 1. O sistema fornece gás de selagem filtrado as tampas verticais (cabeçotes). 2. Esse gás normalmente é extraído do 4° estágio no BCL406A e é enviado para as tampas verticais existentes em cada lado do barril (verificar em cada projeto específico o estágio onde é feito esta extração). 3. Esse gás normalmente é extraído do 2° estágio do compressor 2BCL458/N e é enviado para as tampas verticais existentes em cada lado do barril (verificar em cada projeto específico o estágio onde é feito esta extração). 4. Nas respectivas tampas verticais o gás é direcionado para a selagem (selos secos). 5. Os desenhos simplificados abaixo representam os componentes principais e o funcionamento do sistema de vedação de gás.
  • 156.
  • 157.
  • 158.
  • 159.
    6 7.3.2. GÁS DESELAGEM (BCL406A / 2BCL458N). 1. O gás de descarga de cada compressor, que sai entre a vedação do labirinto "N" e o tambor de balanceamento “compensador”, entra no compartimento "B" e retorna para a sucção do compressor através de uma conexão externa chamada linha do gás de compensação (linha de gás de balanceamento). 2. A conexão supracitada, compensa também o empuxo axial no rotor, conforme descrito no parágrafo "Tambor de balanceamento" incluído no capitulo 2 (parte 2.4). 3. Desta maneira ambas as extremidades do rotor têm uma pressão similar à da aspiração que permitem utilizar dois grupos semelhantes de selagem com a mesma pressão de gás de selagem para ambas as extremidades do rotor. 4. As vedações do tipo labirinto e a selagem mecânica do gás (selo seco) formam quatro compartimentos na extremidade de aspiração do rotor e cinco compartimentos na extremidade de descarga do rotor. 5. A fim de prevenir o vazamento do gás de processo das vedações do labirinto "M" (selo de gás), os compartimentos "A" são pressurizados através da injeção de gás de selagem procedente do 4° estágio do compressor BCL 406/A e do 2° estágio do compressor 2BCL458/N. 6. Este gás é chamado de "gás de selagem". 7. O gás de selagem, neste caso, é utilizado a uma pressão um pouco superior à pressão de aspiração do compressor. Isto se realiza por intermédio de um sistema automático, composto essencialmente de um transmissor diferencial de pressão (PDT-114/128), instalado entre a linha do gás de selagem e a linha do gás de compensação, que envia um sinal para um controlador de pressão diferencial (PDIC-114/128) que controla a válvula reguladora de pressão diferencial (PDCV-114/128) instalada na linha de entrada do gás de selagem, através de um transdutor de pressão (PDY-114/128). 8. A válvula de controle (PDCV-114/128) é provida de válvulas de bloqueio, linha de by-pass com válvula manual e linha com orifício calibrado que assegura a passagem do fluxo do gás de selagem em caso de falha da válvula. 9. O gás de selagem restante que passa para os compartimentos "A" pelos selos de gás instalado de cada lado do barril, chega nos compartimentos "C" caso o selo primário esteja dando passagem (1), e de lá é levado para o sistema de descarga de baixa pressão, através de uma tubulação chamada "Vent primário". Nas linhas do vent primário existem válvulas de orifício calibrado e indicadores de fluxo (um orifício e um indicador para cada linha).
  • 160.
    7 10. Nestas linhastambém existem chaves de pressão diferencial (PDSHH- 122/124) que permitem ter um sinal de alarme em caso de excessiva pressão diferencial entre a parte a montante e a parte a jusante das válvulas de orifício de regulação do fluxo (FV-122/123 e FV-129/130). Os discos de ruptura (PSE-125/126 e PSE-139/140) asseguram a ventilação em caso de emergência. 11. Além disso, os transmissores de pressa diferencial (PSHH-136/138 e PSHH-122/124) geram um sinal em caso de pressão muito alta na linha de ventilação primária a montante das válvulas do orifício de regulação do fluxo. 12. O gás de selagem restante que porventura tenha passado para os compartimentos “C”, “selo primário (1) do selo seco dando passagem”, e caso o selo secundário (2) do selo seco esteja dando passagem o gás chegará nos compartimentos “D”, e de lá é, junto com o ar de selagem que escape do compartimento “E” para o “D” será conduzido para atmosfera através da tubulação chamada “(Linhas de ventilação secundaria e/ou vent secundário). 13. O compartimento "E" está posicionado entre as vedações do labirinto "L" e "L1". 14. A pressão do ar de selagem é controlada pela válvula reguladora de pressão (PCV-104/128) que é provida de válvulas de bloqueio (NO) e de linha de by-pass com válvula manual (NC). O ar é enviado para os compartimentos "E" através de orifícios calibrados (um para cada compartimento). 15. O ar pressurizado dentro dos compartimentos "E”, (espaço anular existente no selo terciária), evita que eventuais fuga de gás vinda dos compartimentos "D", chegue aos mancais bem como evita também que o vapor de óleo dos mancais entre em contato com as vedações mecânicas (selo selo) do gás. 16. Nas linhas de dreno dos compartimentos "E" existem purgadores automáticos (LCV-101/102 e LCV-103/104) que drenam automaticamente estas câmaras em caso de ocorrência de nível. Existe também válvulas (NF) que permite purgar manualmente os compartimentos "E" somente com a máquina parada. 17. Um indicador de pressão diferencial (PDSL-116/117 e PDSL-130/132) instalado em cada extremidade, entre o compartimento externo de vedação de gás "D" e o compartimento de limpeza "E", envia um sinal a um comutador que, de acordo com os valores de regulagem possibilita a partida da bomba do óleo lubrificante. 7.3.3. FILTROS DE GÁS E AR DE SELAGEM. 7.3.3.1. FILTROS DE GÁS. 1. Na linha do gás de selagem existe um filtro duplex por cada compressor.
  • 161.
    8 2. Os filtrosduplex são compostos de dois filtros em paralelos e que através de uma válvula de transferência permite-se comutar de carcaça, com fluxo contínuo de gás, sem a necessidade de para a máquina. 3. Os filtros são do tipo com cartucho substituível. 4. Os cartuchos devem ser substituídos sempre que a queda de pressão através do filtro, medida pôr um manômetro diferencial, atingir o valor especificado pelo fabricante dos compressores. 5. Uma linha de fluxo de equalização, munida de um ofício calibrado, conecta os dois filtros para permitir o enchimento do filtro reserva e para facilitar a operação da válvula de transferência. 6. Nunca abrir a válvula de dreno e de vent do filtro em serviço, pois poderá ocorrer parada da máquina pôr baixa pressão de gás de selagem e/ou acidente. 7. O procedimento para a troca do filtro com o sistema de selagem de gás em funcionamento, inclui as seguintes fases: 7.3.3.1.1. PROCEDIMENTO PARA A SUSBTITUIÇÃO DO ELEMENTO FILTRANTE. (A) Filtro que se quer colocar para operar (stand by). 1) Assegurar-se através de indicador de pressão e contato com a mão na carcaça do filtro “temperatura”, qual filtro não está operando. 2) Verificar se a válvula de equalização para interligar os dois filtros esteja fechada. 3) Abrir lentamente a válvula de drenagem do filtro para certificar se não está pressurizado. Caso esteja poderá ser a válvula de três vias e/ou de equalização dando passagem. Portanto, esta operação é feita apenas para certificar se não existe passagem de uma carcaça para outra indevidamente (ótima oportunidade de se detectar alguma anormalidade e / ou evitar acidentes durante a manobra de troca de filtro). 4) Fechar e / ou certificar de que a válvula de drenagem do filtro esteja fechada. 5) Abrir a válvula de vent e/ou purga. 6) Abrir a válvula de equalização. 7) Deixar sangrar / pressurizar o filtro por um período de tempo que assegure que ocorreu a sangria e / ou o filtro esteja completamente cheio / pressurizado. 8) Fechar a válvula de vent. 9) Fechar a válvula de equalização. 10)Comutar lentamente de filtro através da válvula de transferência de três vias.
  • 162.
    9 (B) Filtro quese quer substituir o elemento filtrante (elemento filtrante sujo). 6) Após ter feito a comutação, assegurar-se através de indicador de pressão e contato com a mão na carcaça do filtro “temperatura”, se o filtro que se quer substituir o elemento filtrante não está mais em operação. 7) Verificar se a válvula de equalização para interligar os dois filtros esteja fechada. 8) Abrir a válvula de vent e/ou purga e certificar através do visor de fluxo se não existe fluxo. 9) Abrir lentamente a válvula de drenagem do filtro para certificar se não está pressurizado. Caso esteja poderá ser a válvula de três vias e/ou de equalização dando passagem. Portanto, esta operação é feita apenas para certificar se não existe passagem de uma carcaça para outra indevidamente (ótima oportunidade de se detectar alguma anormalidade e / ou evitar acidentes durante a manobra de troca de filtro). 10)Abrir a tampa superior inspecionar, limpar o filtro e substituir os cartuchos (o elemento filtrante). 11)Fechar e / ou certificar de que a válvula de drenagem do filtro esteja fechada. 12)Fechar a tampa superior (atentar para o estado do o-ring). 13)Abrir lentamente a válvula de equalização. 14)Deixar sangrar / pressurizar o filtro por um período de tempo que assegure que ocorreu a sangria e/ou o filtro esteja completamente pressurizado. 15)Fechar a válvula de vent e/ou purga. 16)Fechar a válvula de equalização e o filtro estará pronto para entrar em operação a qualquer momento.
  • 163.
    10 7.3.3.2. FILTROS DEAR. 6.3.3.2.1. GENERALIDADES DOS COMPRESSORES PIGNONE 1) Dados do ar de selagem. AR DE SELAGEM Descrição Vazão Sistema de selagem Máximo: 186 Nm3/h Mínimo: 138 Nm3/h 2) Na linha de ar de selagem existe um filtro duplex para os dois compressores (BCL406A e 2BCL459N). 3) O filtro duplex é composto de dois filtros em paralelos e que através de uma válvula de transferência permite-se comutar de carcaça, com fluxo contínuo de ar, sem a necessidade de para a máquina. 4) Esta característica permite pôr fora de serviço um dos filtros para inspecioná- los, substituir o elemento filtrante,ou efetuar a manutenção sem interromper o fluxo de ar para máquina. 5) Os filtros são do tipo com cartucho substituível. 6) Os cartuchos devem ser substituídos sempre que a queda de pressão através do filtro, medida por um manômetro diferencial, atingir o valor de regulação indicado na "Lista dos instrumentos”. 7) Uma linha de fluxo de equalização, munida de um ofício calibrado, conecta os dois filtros para permitir o enchimento do filtro reserva e para facilitar a operação da válvula de transferência. 8) Nunca abrir a válvula de dreno e de vent do filtro em serviço, pois poderá ocorrer parada da máquina pôr pressão baixa ar e / ou acidente. 9) O procedimento para a troca do filtro com o sistema de ar de selagem em funcionamento, inclui as seguintes fases: 6.3.3.2.2. PROCEDIMENTO PARA A SUSBTITUIÇÃO DO ELEMENTO FILTRANTE. (A) Filtro que se quer colocar para operar (standby). 1) Assegurar-se através de indicador de pressão e contato com a mão na carcaça do filtro “temperatura”, qual filtro não está operando. 2) Verificar se a válvula de equalização para interligar os dois filtros esteja fechada. 3) Abrir lentamente a válvula de drenagem do filtro para certificar se não está pressurizado. Caso esteja poderá ser a válvula de três vias e/ou de equalização dando passagem. Portanto, esta operação é feita apenas para certificar se não existe passagem de uma carcaça para outra
  • 164.
    11 indevidamente (ótima oportunidadede se detectar alguma anormalidade e / ou evitar acidentes durante a manobra de troca de filtro). 4) Fechar e / ou certificar de que a válvula de drenagem do filtro esteja fechada. 5) Abrir a válvula de vent e/ou purga. 6) Abrir a válvula de equalização. 7) Deixar sangrar / pressurizar o filtro por um período de tempo que assegure que ocorreu a sangria e / ou o filtro esteja completamente cheio / pressurizado. 8) Fechar a válvula de vent. 9) Fechar a válvula de equalização. 10) Comutar lentamente de filtro através da válvula de transferência de três vias. (B) Filtro que se quer substituir o elemento filtrante (elemento filtrante sujo). 1) Após ter feito a comutação, assegurar-se através de indicador de pressão e contato com a mão na carcaça do filtro “temperatura”, se o filtro que se quer substituir o elemento filtrante não está mais em operação. 2) Verificar se a válvula de equalização para interligar os dois filtros esteja fechada. 3) Abrir a válvula de vent e/ou purga e certificar através do visor de fluxo se não existe fluxo. 4) Abrir lentamente a válvula de drenagem do filtro para certificar se não está pressurizado. Caso esteja poderá ser a válvula de três vias e / ou de equalização dando passagem. Portanto, esta operação é feita apenas para certificar se não existe passagem de uma carcaça para outra indevidamente (ótima oportunidade de se detectar alguma anormalidade e/ou evitar acidentes durante a manobra de troca de filtro). 5) Abrir a tampa superior inspecionar, limpar o filtro e substituir os cartuchos (o elemento filtrante). 6) Fechar e / ou certificar de que a válvula de drenagem do filtro esteja fechada. 7) Fechar a tampa superior (atentar para o estado do o-ring). 8) Abrir lentamente a válvula de equalização. 9) Deixar sangrar / pressurizar o filtro por um período de tempo que assegure que ocorreu a sangria e / ou o filtro esteja completamente pressurizado. 10) Fechar a válvula de vent e / ou purga. 11) Fechar a válvula de equalização e o filtro estará pronto para entrar em operação a qualquer momento.
  • 165.
    12 6.3.4. VÁLVULAS DECONTROLE DE PRESSÃO. 7.3.4.1. VÁLVULAS DE CONTROLE DE PRESSÃO DE GÁS DE SELAGEM (PDCV 114 / PDCV 128) 1) A pressão do gás de selagem é mantida constantemente mais elevada em relação à pressão na linha de compensação (ou de aspiração do compressor), através da válvula de controle da pressão diferencial (PDCV 114 / PDCV 128) respectivamente para os compressores BCL406A e 2BCL458N. 2) Esta válvula automática, instalada na linha do gás de selagem é controlada pelo controlador e indicador de pressão diferencial (PDIC- 114/PDIC-128) e pelo transmissor de pressão diferencial (PDST- 114/PDT-128), instalado entre a linha do gás de selagem e a linha do gás de compensação dos respectivos compressores (BCL406A e 2BCL458N). 3) O gás de selagem (câmara “A”) é mantido a uma pressão de aproximadamente 0.2 Bar g (20 kPa g) acima da pressão da linha do gás de compensação “aspiração do compressor (câmara “B”). Isto assegura uma contra-pressão da câmara (A) para câmara (B), pôr intermédio do selo de gás tipo labirinto, evitando que o gás de processo saia de dentro da carcaça interna do compressor . (A) Regulagem da válvula. 1) Os orifícios calibrados dos respectivos compressores BCL406A e 2BCL458N devem estar instalados conforme dados de projeto. Na fase de pré-operação pode ser que seja necessário uns pequenos ajustes no diâmetro das placas. 2) A regulação da válvula executa-se com o compressor em funcionamento ou utiliza-se duas fontes externas de suprimento de pressão do gás para simular o funcionamento do compressor. 3) As válvulas de bloqueio e as válvulas de by-pass devem ser abertas totalmente. 4) Olhando o indicador de pressão diferencial colocado entre a linha de compensação e a linha do gás de vedação à jusante da válvula de controle(painel de instrumentação local), fechar devagar a válvula de by- pass e ao mesmo tempo regular a válvula de controle de maneira que a pressão diferencial seja atingida quando a válvula de by-pass estiver completamente fechada. 7.3.4.2. VÁLVULAS DE CONTROLE DE PRESSÃO DE AR DE SELAGEM (PCV 104) 1) Para garantir uma pressão maior nos compartimentos de vedação (E) do que no vent secundário (E) do sistema de selagem compressores
  • 166.
    13 dos BCL406A e2BLC458Na válvula de controle (PCV-104) deverá manter a pressão constante de aproximadamente 2 Bar g (200 kPa g) “na entrada do pacote” automaticamente. 2) A pressão do ar de selagem de aproximadamente 2 Bar g (200 kPa g) injetado automaticamente nas (câmaras “E”) garante uma contra- pressão acima das existentes nas (câmaras “D”) dos compressores BCL406A e 2BCL458N. Desta forma qualquer vazamento de gás nos selos seco para as (câmaras “D”), dentro do limite de alarme, será automaticamente misturado com o ar de selagem migrado da (câmaras “E”). Isto devido à pressão das (câmaras “E”) normalmente possuir uma pressão maior e sendo assim, o gás + ar de selagem será enviado para o vent secundário. (A) Regulagem da válvula. 1) A regulação da válvula efetua-se com o sistema de alimentação do gás de selagem em funcionamento (compressores em funcionamento). 2) As válvulas de bloqueio e as válvulas de by-pass devem ser abertas totalmente. 3) Olhando o manômetro instalado no painel de instrumentação local, referente a pressão de ar de selagem, fechar devagar a válvula de by- pass e ao mesmo tempo regular a válvula de controle de maneira que, quando a válvula de controle estiver totalmente fechada, lê-se no indicador de pressão o valor recomendado.
  • 167.
    14 6.3.5. INSTRUMENTAÇAO. 1) Dadosdo ar de instrumentação para projetos Nuovo Pignone: AR DE INSTRUMENTO Descrição Vazão Processo e auxiliares 95 Nm3/h BDVs 15 Nm3/h 2) A instrumentação instalada no sistema de selagem de gás (controladores de pressão,reguladores, etc.) deve ser de excelente qualidade para assegurar uma operação correta do sistema e do equipamento. 3) A lista completa dos instrumentos, fornecidos pelo fabricante dos compressores, com seus respectivos TAGs e valores de ajuste. são indicados na "Lista dos instrumentos".
  • 168.
  • 169.
  • 170.
  • 171.
  • 172.
    8- Instrumentação eMonitoração ÍNDICE ÍTEM Sistema de Monitoração de Vibração e Deslocamento axial 8.1 Termopares dos Mancais 8.2 RTD drenos dos Mancais 8.3 Runout 8.4
  • 173.
    1 8. INSTRUMENTAÇÃO. 8.1. SISTEMADE MONITORAÇÃO DE VIBRAÇÃO. 1) Um sistema de monitoração de vibração pode ser composto pela máquina a ser estudada, pelo equipamento de aquisição / processamento de sinais e pelos critérios de níveis permissíveis de vibração, como mostra a figura abaixo. 8.1.1. EQUIPAMENTO NECESSÁRIO À MONITORAÇÃO DA VIBRAÇÃO. 8.1.1.1. AQUISIÇÃO DE DADOS Obtenção das amostras de dados iniciais da vibração. 8.1.1.2. CONCEITOS BÁSICOS Os dados de vibração para alguns pontos selecionados em uma máquina são obtidos através de transdutores. (A) TRANSDUTOR DE VIBRAÇÃO. 1) Um transdutor de vibração é um aparelho que gera um sinal de saída proporcional ao movimento dinâmico (isto é, as vibrações) de um ponto medido na máquina. A maioria dos transdutores de vibração modernos produz um sinal elétrico de saída com voltagem (ou carga elétrica) proporcional ao deslocamento, velocidade ou aceleração instantânea das vibrações medidas. Isto se refere aos transdutores de deslocamento, velocidade e aceleração, respectivamente. Um exemplo de relação entre o movimento de entrada e o sinal de saída de um transdutor de velocidade, é dado a seguir. Máquina monitorada Aquisição de dados de vibração Processamento do sinal Avaliação da condição Sistema de Monitoração de Vibração Equipamento de Monitoração de Vibração
  • 174.
    2 (B) TIPOS DETRANSDUTOR DE VIBRAÇÃO. 1) Os transdutores podem ser divididos em duas categorias principais: Transdutores por contato e transdutores sem contato. TRANSDUTORES POR CONTATO TRANSDUTORES SEM CONTATO Modo de Operação Aderido ou fixado em alguma parte da máquina Direcionados, mas sem tocar na parte da máquina que está sendo medida. Transdutores de Vibração Transdutores Sísmicos: Transdutores de velocidade e acelerômetros Transdutores de proximidade: Transdutores capacitivos, indutivos e de corrente circular. 1) Um sistema de monitoração de vibração pode abranger um ou mais tipos de transdutores dependendo principalmente, do tipo de máquina que está sendo monitorada.
  • 175.
    3 2) Os tiposmais comuns de transdutor de vibração usado para monitoração de máquinas são: TRANSDUTORES DE VELOCIDADE E ACELERÔMETROS (SÍSMICOS) TRANSDUTORES INDUTIVOS E DE CORRENTE CIRCULAR (PROXIMIDADE) Princípio de Operação Gera um sinal de saída proporcional, respectivamente, à velocidade e à aceleração absoluta das vibrações no ponto de contato da máquina. Gera um sinal de saída proporcional ao deslocamento da vibração entre a superfície e a extremidade do transdutor. (C) TIPOS DE POSICIONAMENTO DO TRANSDUTOR DE VIBRAÇÃO. 1) É amplamente reconhecido que as vibrações nos mancais de uma máquina podem ser obtidos por uma medição das vibrações de várias partes, todas estruturais e em movimento, que compõe a máquina. Também são comuns as medições de vibração da fundação e da carcaça. 2) Os locais nos quais os vários tipos de transdutores são normalmente posicionados, estão mostrados na tabela a seguir. TRANSDUTOR POSICIONAMENTO SÍSMICO Normalmente posicionado nos alojamentos dos mancais ou na carcaça da máquina, a fim de monitorar as vibrações absolutas no ponto de contato. Medições horizontais e verticais são mais comuns, como pelo menos uma medição axial por linha de eixo. Podem ser usados transdutores portáteis ou permanentemente instalados. PROXIMIDADE Normalmente localizado nos alojamentos dos mancais da máquina, a fim de monitorar os movimentos do eixo relativo à carcaça do mancal ou para monitorar a posição do rotor. Para mancais de bucha, os transdutores são comumente montados separados de 90°, mas desviados dos eixos horizontais e verticais.
  • 176.
    4 SÍSMICO PROXIMIDADE (D) TRANSDUTORDE VELOCIDADE. 1) Tacômetros são aparelhos sensíveis para medir velocidade rotacional (rotações de eixos girantes) e, em alguns casos, podem fornecer pulsos de referência. 2) Estetoscópio é um aparelho que pode ser usado para observar movimentos de alta freqüência, fazendo com que as componentes móveis pareçam estacionárias. Pode também ser usado como medidor de velocidade rotacional. (E) TRANSDUTOR ELETRÔNICO. 1) O sinal de saída de um transdutor eletrônico pode ser conectado diretamente com uma unidade de processamento de sinal ou gravado em meio digital num PC e então processado, analisado através de um programa especifico. 2) O processamento do sinal ou a manipulação dos dados iniciais levam em consideração as informações mais relevantes. No caso de medições com transdutores de proximidade, torna-se geralmente, necessário mostrar o sinal de saída do transdutor no domínio do tempo, com a finalidade de detectar e diagnosticar avarias. Entretanto, para as muitas aplicações de monitoração de vibração, é recomendável processar eletronicamente o sinal de saída do transdutor a fim de obter informações futuras que poderão ser usadas para informar as condições da máquina e/ou diagnosticar avarias.
  • 177.
    5 8.1.2. EQUIPAMENTO DEMONITORAÇÃO DE VIBRAÇÃO DOS COMPRESSORES BCL / 2BCL. 8.1.2.1. PRINCÍPIO DE FUNCIONAMENTO. 1) Gera um sinal de saída proporcional, normalmente em freqüência, ao deslocamento da vibração entre a superfície e a extremidade do transdutor. 2) CATEGORIA: Transdutor sem contato 3) MODO DE OPERAÇÃO: Direcionados e sem tocar na parte da máquina que está sendo medida. 4) TRANSDUTOR DE VIBRAÇÃO: Transdutor de proximidade tipo indutivo e de corrente circular. 8.1.2.2. Para Compressores modelos BCL / 2BCL. (Cuidados especiais durante montagem e desmontagem) 1) Fazer levantamento da curva do sensor através do TK-3, para certificar a curva de resposta a valores conhecidos, estabelecendo assim a melhor folga (Gap). 2) Inspecionar o cabo quanto à existência de mossa. 3) Durante a instalação do sensor deve-se atentar para que se a leitura indicada no multímetro corresponde ao GAP (real). NOTA: È importante durante instalação dos sensores, o monitoramento, com multímetro devidamente calibrado, do Gap (Folga entre Sensor e Eixo), pois caso contrário, danos no Sensor e no Eixo poderão ocorrer. Em alguns casos para reparar danos nas pistas de monitoramento (Eixo) é necessária a retirada do conjunto rotor. 4) Direcionar o cabo do probe a caixa de passagem do cabo fixado na carcaça do compressor e ter o cuidado de usar um selante, tipo selastic, para evitar a vazamento de óleo para o exterior (tempo de cura do selante 12 horas).
  • 178.
    6 8.1.3. EQUIPAMENTO DEMONITORAÇÃO DE DESLOCAMENTO AXIAL DOS COMPRESSORES BCL / 2BCL. MALHA DE VIBRAÇÃO / DESLOCAMENTO SENSOR TRNSDUTOR PROCESSADOR / MONITOR Sensor de vibração e ou deslocamento Transdutor (proximitor) Processador / Monitor de vibração e / ou deslocamento
  • 179.
    7 8.1.3.1. PRINCÍPIO DEFUNCIONAMENTO. 1) Gera um sinal de saída proporcional ao deslocamento do eixo entre a superfície e a extremidade do transdutor. 2) CATEGORIA: Transdutor sem contato 3) MODO DE OPERAÇÃO: Direcionados e sem tocar na parte da máquina que está sendo medida. 4) TRANSDUTOR DE DESLOCAMENTO: Transdutor de proximidade tipo indutivo e de corrente circular. 8.1.3.2. Para compressores modelos BCL / 2BCL (Cuidados especiais durante a montagem e desmontagem) 1) Fazer levantamento da curva do probe, através do TK-3, para certificar se mesmo esta com algum problema. 2) Inspecionar o cabo quanto à existência de mossa. 3) Durante a instalação do probe deve-se atentar para que se a leitura indicada no multímetro corresponde ao GAP (real). 4) Encaminhar o cabo do probe a caixa de passagem do cabo fixado na carcaça do compressor e ter o cuidado de usar um selante, tipo selastic, para evitar vazamento de óleo para o exterior (tempo de cura do selante 12 horas).
  • 180.
    8 Usar selante Atentar durante acalibração para não danificar o eixo / sensor Atentar durante a calibração para não danificar o eixo / sensor
  • 181.
    9 Testar os sensoresde temperatura, vibração e deslocamento varias vezes antes de fechar cada montagem.
  • 182.
    10 INSTRUMENTOS UTILIZADOS PARALEVANTAMENTO DAS CURVAS DOS SENORES DE VIBRACAO E DESLOCAMENTO. DC VOLTMETER -VT INPUT PROXIMITOR EXTENSION SPINDLE MICROMETER TARGE PROB BEN TLY NEV ADA ou t co m vt
  • 183.
    11 8.2 TERMOPARES DOSMANCAIS. 8.2.1. PRINCÍPIO DE FUNCIONAMENTO. 1) O termopar é, talvez, o mais usado de todos os tipos de termômetros para tomadas de impulso de temperatura, especialmente quando se trata de altas temperaturas (a faixa comum é de 200 a 1000 ° C) e quando se requer resposta rápida. 2) Ele se baseia no princípio de que qualquer diferença de temperatura entre as junções de dois metais diferentes gera uma diferença de potencial, isto é, força eletromotriz entre essas junções, como mostra figura acima.
  • 184.
    12 3) O potencialé determinado pelos três fatores seguintes: (a) O potencial é proporcional à diferença de temperatura entre as junções. (b) O potencial depende da combinação de metais diferentes. (c) O potencial depende da homogeneidade do material. 4) Utilizando-se desses princípios construiu-se o termopar, que é constituído de dois metais diferentes nas suas extremidades que são identificados pela cor do isolamento do fio, e essas cores obedecem a normas internacionais. 5) Estando uma dessas extremidades em contato com a fonte de calor e a outra no meio ambiente haverá uma diferença de temperatura entre as junções e, conseqüentemente, uma diferença de potencial, isto é, voltagem em mV. 6) Essa pequena tensão formada pela diferença de temperatura é indicada diretamente em um multímetro de precisão ou um instrumento especifico que converte esse sinal em valores em temperatura. 7) A sensibilidade ou tempo de resposta e também o limite superior da temperatura de utilização de um termopar dependem do diâmetro do fio, da massa da junção e da massa do tubo de proteção. 8) Para conectar o termopar ao instrumento emprega-se o fio de compensação, também chamado de extensão, que é constituído do mesmo material e esse cabo vai da junta quente ate o Painel na junta fria com o mesmo material não podendo haver inversão. Exemplo de problema ocorrido durante a fase de comissionamento em uma maquina: Havia diferença de temperatura muito alta entre sensores cujas funções eram captar a temperatura de lugares muito próxima. Vários testes nos sensores, nos cabos (megagem) e inclusive substituições de peças foram realizadas e nada de errado era encontrado. Decidiu−se então realizar uma pesquisa mais detalhada ao longo do cabo de compensação desses sensores, onde foi encontrada inversão dos fios na JB de campo. Observando as fiações nos bornes de ligação da JB aparentemente estavam corretas, mas quando foi solta a fiação do interior dela, detectou−se que o isolamento nas extremidades dessas fiações foi removido e trocado de modo que aparentava que os cabos que estavam ligados nos bornes estavam corretos, sendo que devido a essa inversão no meio do cabo de compensação a indicação no Painel não era real. INVERSAO DO CABO DE COMPENSASO NA JB
  • 185.
    13 TERMOPARES MAIS USADOS. PAR +- Códig o ISA Fem / º C Observações Método de identificação Ferro Constantan (1) J 2 º Uso geral, porém fraco para oxidação. Ferro é mais duro e magnético Cromel (2) Alumel (3) K 3º Fraco para ambiente redutor Alumel é ligeiramente magnético Cobre Constantan T Maior Para T ‹ 25 º C antioxidante Pelas cores Platina Platina + Rhódio S Menor 630 º C < T >1400º C 1- Liga de cobre (60%) e níquel (40%). 2- Liga de cromo (10%) e níquel (90%). 3- Liga de níquel (94%), manganês (3%), alumínio (2%) e silicone 1%). 8.2.1.1 Para compressores Pignone BCL / 2BCL. 1) O termopar usado nos compressores da Nuovo Pignone é tipo K. PAR + - Códig o ISA Fem / º C Observações Método de identificação Cromel Alumel K 3º Fraco para ambiente redutor Alumel é ligeiramente magnético 2) VANTAGENS / DESVANTAGENS. VANTAGEM DESVANTAGEM
  • 186.
    14 O diâmetro eo comprimento do fio não influenciam no potencial gerado Sofrem corrosão especialmente quando expostos à temperatura próxima da temperatura do limite superior 3) CUIDADOS ESPECIAIS (DURANTE A MONTAGEM / DESMONTAGEM). (a) Inspecionar o cabo do termopar quanto à existência de mossa. Nota: Foi realizado teste de movimentos cíclicos, no cabo do termopar, com o intuito de verificar a resistência mecânica e detectou-se que o mesmo se rompe por fadiga após aproximadamente 80 atuações. Conclusão: ⇒ Caso seja detectada alguma mossa no cabo o termopar não deve ser instalado. ⇒ O cabo resiste a muitos contornos, na hora da instalação, desde que não exista mossa. ⇒ Evitar realizar contornos com ângulo muito fechado. (b) Instalar o termopar e verificar se o elemento sensor ficou bem fixado na pastilha. (c) Testar com o multímetro se o mesmo está com problema (teste de continuidade e baixa isolação). (d) Após instalar os mancais verificar novamente se os termopares instalados estão sem problemas. (e) Encaminhar os cabos dos termopares para a caixa de passagem dos cabos fixados em cada lado dos compressores e ter o cuidado de usar um selante, tipo selastic, para evitar a vazamento de óleo para a caixa de passagem. (f) Verificar se os cabos dos termopares não estão posicionados exatamente na direção do fluxo de retorno de óleo lubrificante dos mancais, pois poderá acarretar a quebra dos mesmos por fadiga.
  • 187.
    15 Termopares do tipoK usado nos compressores da Nuovo Pignone Foi realizado teste de movimentos cíclicos, no cabo do termopar, com o intuito de verificar a resistência mecânica e detectou-se que o mesmo se rompe por fadiga após aproximadamente 80 atuações. Rebaixo que deve ser instalado no sentido de rotação Não deve existir mossa
  • 188.
    16 8.3 RTD (RESISTANCETEMPERATURE DETECTOR) DRENOS DOS MANCAIS. O principio de funcionamento do RTD é a medição da resistência de um elemento de platina que varia diretamente com a temperatura aplicada. O tipo mais comum é o Não deve ter mossa Sentido de rotação Pastilhas usadas com termopares (vide sentido de rotação e a formação do filme de óleo no capitulo sobre mancais “localização dos termopares”) Selo de óleo Usar selante durante a montagem O termopar usado nos compressores da Nuovo Pignone é tipo K
  • 189.
    17 PT100 que temuma resistência de 100 ohms com 0°C e 138.4 ohms com 100°C. Há também o sensor PT1000 que tem uma resistência de 1000ohms com 0°C que não é muito utilizado. Esse sensor tem uma precisão maior em baixa temperatura, e utiliza três fios, dois para medir a resistência e um de compensação, pois o comprimento da fiação influencia diretamente na resistência no Painel, alterando assim a indicação. Nesses sensores é muito importante não haver bornes frouxos e os terminais se possíveis soldados para evitar mal contato e assim variação na resistência. 8.4 RUNOUT. 8.4.1 RUNOUT MECANICO. Definição O Runout mecânico e a geração do sinal de vibração devido a imperfeições existentes no eixo (pista do probe). Mecanismo de detecção. a) Instala−se o eixo em uma maquina especial e coloca−se o mesmo para girar em baixa rotação. A detecção de indicação de vibração, pelos sensores de vibração instalado em cada lado da extremidade do eixo, indicara a existência de imperfeição. Evidentemente que caso esteja fora da tolerância recomendada pelo fabricante do compressor deve−se corrigir o defeito. Defeitos que geram o Runout mecânico:
  • 190.
    18 a) Imperfeições napista do sensor (Excentricidade entre a pista e o eixo, rugosidade, riscos, erosão, corrosão). Ação corretiva: a) Caso esteja acima do valor Maximo especificado pelo fabricante do compressor deve ser verificado a origem e efetuar a correção da imperfeição da pista do probe logo que possível. 8.4.2 RUNOUT ELETRICO. Runout Elétrico e a geração do sinal de vibração devido à diferença de permebialidade magnética em varias regiões da pista do probe. Mecanismo de detecção. a) Instala−se o eixo em uma maquina especial e coloca−se o mesmo para girar em baixa rotação. A detecção de indicação de vibração, pelos sensores de vibração instalado em cada lado da extremidade do eixo, indicara a existência de diferença de permeabilidade magnética na região da pista do probe. Defeito que gera o Runout Elétrico: Diferença de permeabilidade elétrica na região da pista do probe. Ação corretiva: Caso esteja acima do valor Maximo especificado pelo fabricante do compressor deve−se executar o martelamento na pista do probe através de equipamento especial de forma a reorganizar as moléculas e minimizar a diferença de permeabilidade magnética nesta região.
  • 191.
    9- Operação ÍNDICE ÍTEM Introdução9.1 Operação de compressor acionado por turbina a gás 9.2 Verificação e Solução de Problemas 9.3
  • 192.
    1 9. OPERAÇÃO DECOMPRESSOR CENTRÍFUGO 9.1. INTRODUÇÃO A operação de uma unidade compressora significa manter os equipamentos (acionador e acionado) dentro de limites operacionais para os quais foram projetados. Uma boa operação depende também da configuração e operação correta de seus sistemas auxiliares (sistemas de óleo lubrificante e de selagem, sistema de gás, instrumentação). A confiabilidade operacional dos equipamentos está diretamente relacionada às verificações realizadas durante a operação e na avaliação dos valores registrados (leituras efetuadas). É importante ressaltar que não basta somente registrar parâmetros, mas também analisar os valores encontrados observando a repetibilidade ou não e as suas tendências. Durante montagem e operação inicial, uma série de testes e verificações deverão ser realizados pelos técnicos envolvidos nos serviços executados, antes da entrega da máquina, juntamente com as pessoas encarregadas da operação da planta. Uma Lista de Verificação, conforme exemplo abaixo incluindo os tópicos, deve ser elaborada tomando por base as recomendações do fabricante e a experiência operacional. As pessoas que atendem e têm contato freqüente com as máquinas durante toda a sua vida útil, devem estar familiarizadas com sua operação e os limites operacionais, para poderem agir a tempo antes que os problemas ocorram. LISTA DE VERIFICAÇÃO Item Verificar 1 Inspeção externa nos sistemas de tubulação de gás, óleo e água (vazamentos, alinhamentos ...) 2 Verificação quanto à limpeza interna no casulo e painéis 3 Inspeção quanto ao alinhamento do ar de instrumentação 4 Verificação do nível de óleo, controle de análise de óleo e verificação do inventário 5 Verificação de válvulas de segurança nos sistemas de gás e óleo 6 Verificação da operação da bomba principal de óleo lubrificante 7 Verificação da partida automática e operação da bomba auxiliar de óleo lubrificante – Teste da bomba de emergência
  • 193.
    2 8 Verificação daoperação da bomba principal do óleo de selagem 9 Verificação da partida automática e operação da bomba auxiliar do óleo de vedação 10 Verificação da operação da válvula de controle no sistema de óleo 11 Verificação de vazamentos de óleo da planta 12 Verificação da operação da válvula de controle no sistema de gás 13 Verificação da alavanca de comutação do filtro de óleo para operação Verificação do enchimento do filtro sobressalente 14 Inspeção do sistema de combate a incêndio Inspeção do sistema de pressurização da sala de máquinas 15 Verificação dos detectores de temperatura dos mancais da máquina 16 Verificação dos detectores de vibração 17 Verificação dos indicadores de deslocamento axial 18 Verificação dos sistemas de alarme 19 Verificação e registro de valores de pressão e temperatura em condição de parada 20 Verificação da rotação da máquina manualmente Como os compressores centrífugos têm emprego bastante diversificado em diferentes aplicações industriais, os sistemas de acionamento podem ser de vários tipos: motores elétricos, turbinas a vapor, turbinas a gás industriais ou aeroderivadas. 9.2. Exemplo de Operação de Compressor acionado por uma Turbina a Gás As seguintes medidas tenham sido executadas antes de dar a sua aprovação para a partida: Pré-Partida a) Preparação, verificação e partida dos sistemas de óleo lubrificante e/ou selagem; b) Preparação e verificação e partida do sistema de gás de selagem (Selo Seco); c) Preparação e verificação de alinhamento das Válvulas do Processo;
  • 194.
  • 195.
    4 Durante a partida,os seguintes parâmetros devem ser constantemente verificados: - rotação do compressor - níveis de vibração - temperatura e pressão do óleo lubrificante dos mancais - temperatura do mancal de escora - valores do passeio axial dos compressores - pressões do sistema de selagem Abaixo se encontram as verificações que devem ser realizadas a intervalos regulares durante a operação em velocidade normal: 9.3. VERIFICAÇÃO E SOLUÇÃO DE PROBLEMAS Observe que uma instalação correta, uma configuração precisa da instrumentação e o cuidado extremo durante o comissionamento, otimizam a operação da máquina, minimizam o risco de desligamentos e emergências. Entretanto, quando problemas forem detectados, é extremamente importante saber as possíveis causas (e as soluções a serem providenciadas). A tabela a seguir lista as falhas e defeitos mais comuns, suas possíveis causas e as correções e soluções recomendadas.
  • 196.
    5 PROBLEMA CAUSA POSSÍVELCORREÇÃO/SOLUÇÃO Desalinhamento Retire o acoplamento. Para verificar o alinhamento, consultar o manual de instruções. Falha do acoplamento Verifique a condição do acoplamento Desbalanceamento do rotor do compressor Executar uma coleta de valores de vibração, utilizando pessoal especializado para coleta e análise dos valores encontrados. Mancais gastos devido a contaminação no óleo Inspecionar visual e dimensionalmente os mancais, determinando as folgas radiais e comparando-as com os recomendados pelo fabricante, reparando como necessário. Tensões transmitidas por tubulações de gás ao alojamento, resultando em desalinhamento Tubulações de gás devem ser devidamente fixadas para prevenir tensões excessivas sobre o alojamento do compressor. Acoplamento desbalanceado Desmonte o acoplamento e verifique o desbalanceamento Vibrações ou ruído anormal do compressor Oscilação Verifique se as condições operacionais do compressor Falha do mancal axial Empuxo axial excessivo Assegure que o acoplamento esteja montado de modo que empuxo excessivo não seja transmitido do acionado acoplado para o compressor Verificar o passeio axial atual e compará-lo com os limites
  • 197.
    6 Desalinhamento e vibraçõesConsulte as seções sobre vibrações Óleo sujo Verifique as condições do filtro e substitua cartuchos sujos Verifique a limpeza da tubulação Folga incorreta do anel Verifique a folga, e se necessário, corrija. Falha do anel de vedação do óleo Pressão de óleo insuficiente Verifique se a pressão do gás de referência não cai abaixo do mínimo Lubrificação imprópria Assegure que o óleo recomendado esteja sendo usado. Periodicamente verifique se não existe contaminação com água ou impurezas no óleo. Inspecione os elementos de filtragem Desalinhamento Verifique o alinhamento e se necessário, corrija. Folga incorreta do mancal Verifique a folga e se necessário, corrija. Falha do mancal Desbalanceamento do compressor ou do acoplamento Consultar as seções sobre vibrações
  • 198.
    10- Manutenção ÍNDICE ÍTEM Introdução10.1 Recomendações 10.2 Estrutura Organizacional 10.3 Tipos de Manutenção 10.4 Fluxograma do serviço 10.5 Recomendações de planejamento de intervenção (no campo). 10.6 Recomendações Importantes de montagem, manuseio e preservação. (No Campo e na Oficina). 10.7 Mancal Radial 10.8 Rotor do Compressor 10.9 Labirinto 10.10 Selo seco 10.11 Instalação de Carcaças Verticais 10.12 Instruções para uso do equipamento hidráulico (para aperto de parafusos e porcas nas tampas dos compressores). 10.13 Instruções para uso do equipamento hidráulico para aperto de parafusos e porcas no fechamento das caixas do compressor. 10.14
  • 199.
    1 10. MANUTENÇÃO 10.1 Introdução Manutençãocompreende as operações que garantem a funcionalidade satisfatória e a durabilidade das máquinas com o tempo. É uma necessidade essencial de qualquer planta industrial para que ela produza continuamente e de modo eficiente durante toda a sua vida útil. As manutenções dos compressores podem ser feitos no campo (revisão parcial) ou em oficina revisora (overhaul) dependendo de vários aspectos ou recomendações. Máquina Sobressalente. Emergência de operação Falta de sobressalentes para intervenção. Custo e Benefício outros 10.2 Recomendações. a) O pessoal encarregado pela manutenção dos compressores deve possuir conhecimento e treinamento técnico adequado para as tarefas a serem executadas nos compressores específicos de cada fabricante. b) Os procedimentos de montagem e desmontagem descritos servem como referência. Portanto, instruções específicas devem ser obtidas nos manuais específicos de cada fabricante. c) Na Plataforma, cada máquina precisa de um livro de registro de partidas e paradas. Sendo assim, toda vez que ocorrer alguma anormalidade este livro servirá como fonte de consulta. Estes registros também servirão para alimentar o Relatório de Eventos de Maquinas (REM). d) Cada TBM deve ter seus respectivos registros de intervenção nas máquinas, controle de materiais sobressalentes, seus índices de controle, etc...
  • 200.
    2 10.3 ESTRUTURA ORGANIZACIONAL Aestrutura organizacional de uma planta industrial inclui o pessoal da manutenção compreendendo, entre outras coisas, membros alocados à programação, execução e engenharia (ver Diagrama Organizacional) Oficina Revisora Cursos de Treinamento Engenharia Assistência Técnica Peças Sobressalente Programação - pessoal - materiais - meios - cronometragem Manutenção Equipamentos Cliente Treinamento de Pessoal Produção Execução Engenharia -Aquisição de- Dados -Análise de - Problemas -Modificações e Melhorias Peças Sobressalentes
  • 201.
    3 10.3.1 A Engenharia Desempenhaum importante papel na aquisição de dados e análise dos mesmos, enquanto prepara esquemas de inspeção e controle capazes de individualizar qualquer defeito o mais cedo possível. Entre as modernas técnicas de investigação, a técnica de analise de performance e análise de vibrações são as mais significativas para fornecer indicações sobre a operação correta das máquinas. Evidentemente existem verificações e inspeções que podem ser executadas mesmo quando as máquinas estão em operação, mas estas são limitadas às peças que podem ser alcançadas com segurança. A coleta de dados operacionais, a análise meticulosa dos mesmos e a comparação com dados registrados em condições de eficiência máxima fornecem uma série de informações essenciais para a operação eficiente das máquinas e para um programa adequado de manutenção. 10.3.2 A Programação Define, na base do trabalho a ser executado e o grau de urgência exigido, o número de empregados utilizados, e os direciona para a execução dos trabalhos que têm prioridade para a eficiência das máquinas e dos equipamentos, e estabelece os meios, os materiais e as ocasiões necessárias para a conclusão do trabalho. A verificação das partes do compressor desmontadas gera uma lista do trabalho a ser executado imediatamente e que pode ser executado, após a preparação necessária, em ocasiões posteriores quando a máquina estiver parada. Com relação à substituição de componentes, é muito importante ter um planejamento, pronta disponibilidade de peças sobressalentes e um sistema de estoque eficiente. 10.3.3 A Produção/ Execução Este Corpo Técnico desempenha um Trabalho Especializado de grande precisão especialização executado procedimentos atualizadas e alimenta a rotina de desenvolvimento e melhoria no processo como um todo . 10.3.4 Treinamento É a Rotina de desenvolvimento e atualização de conhecimento do corpo Técnico. 10.3.5 Sobressalentes São materiais de reposição das máquinas que devem ser planejadas, estocadas e manterem boa qualidade para uso, com identificação registro dimensional e preservação adequada.
  • 202.
    4 10.4 TIPOS DEMANUTENÇÃO A manutenção considerada de um ponto de vista técnico, é dividida em três grandes grupos: A – Manutenção de Preservação: a previsão de um defeito ou falha ao invés da restauração da funcionalidade original. B - Manutenção de Melhoria: reduz o índice de falha ou paralisação (*). A – MANUTENÇÃO DE PRESERVAÇÃO Pode ser: A.1 – Corretiva A.2 – Preventiva A.3 – Preditiva A. 1 Manutenção Corretiva Reparo após um defeito, restaurando a eficiência original. A. 2 Manutenção de Preventiva É dividida em três tipos: A.2.1 – Cíclica: Manutenção em ciclos pré-estabelecidos de acordo com o grau do defeito ou paralisação A.2.2 – Parada: Esta é uma concentração das operações da manutenção cíclica – de inspeção (ver abaixo) e incidental, em um período pré-estabelecido A.2.3 – Oportunidade: Manutenção a ser executada na primeira ocasião de uma parada por defeito, ou na primeira paralisação determinada por uma avaliação econômica de eficiência reduzida, devido a um acúmulo de defeitos que não constituíram razão suficiente separadamente para parar a máquina. (*) Índice de defeitos ou paralisações significa a probabilidade que um elemento da máquina ou equipamento tem de quebrar imediatamente após um tempo “t” pré-estabelecido
  • 203.
    5 A.3 Manutenção dePreditiva Pode ser executada em duas situações: A.3.1 Com a máquina ou equipamento parados A inspeção pode ser “programada” ou pode ser executada devido a um defeito ou paralisação, utilizando: - inspeção visual - métodos não destrutivos • Ultrassônico • Raios Gama e Raios-X • Líquidos Penetrantes • Magnetismo • Outros A.3.2 Com a máquina ou equipamento em operação Definida como manutenção “EM CONDIÇÃO” ou “PREDITIVA”. Esta pode integrar ou substituir a Manutenção Preventiva, enquanto ao mesmo tempo facilita a Manutenção Corretiva, nos casos em que o custo pode justificar isso. O pessoal responsável pela inspeção faz uso de: - Inspeção visual - Métodos não destrutivos • verificação de vibrações • verificação de ruídos • verificação da eficiência da lubrificação, ensaios laboratórios de analises de óleo. • termografia • registro dos parâmetros de funcionamento e operação (temperatura, pressões, ∆p, ∆t, absorção, número de revoluções, etc.) • outros
  • 204.
    6 B MANUTENÇÃO DEMELHORIA Significa a simples melhoria resultando em uma maior eficiência (o custo da modificação e/ou substituição é comparado ao ∆ do custo de manutenção) Todo o planejamento de melhoria esta ligado as informações confiáveis de operação da máquina , analise detalhada de materiais, analise defeitos e estudo de custo benefício. 10.4.1 MANUTENÇÃO PREVENTIVA Esta, como foi mostrado, compreende intervenções que podem ser realizadas razoavelmente em intervalos pré-estabelecidos, mesmo que não sejam estritamente necessárias, já que ajudam a prevenir prováveis enguiços ou defeitos que poderiam comprometer a integridade de muitas peças delicadas e caras. Danos de mancais, desgaste de selagem, roçamento do rotor, podem causar vibração, fadiga, quebra de partes e gerar danos muito mais onerosos do que o custo da manutenção preventiva. Além disso, um programa de inspeção bem organizado pode ser coordenado com as necessidades de outras plantas conectadas e desse modo assegurar que o defeito de uma não cause também a paralisação de outras. Para os critérios de seleção do programa específico de manutenção a ser dotado, todos os fabricantes fornecem um manual sugestões para intervenções a serem realizadas, períodos definidos de operação e indicações para a compilação de folhas de inspeção e registros de informações. Mas na verdade, o próprio usuário com seu plano de controle e inspeções está em posição melhor para julgar que medidas tomar de acordo com o desempenho exigido das máquinas, das condições nas quais elas operam, as considerações que devem ser feitas na base da experiência, o custo de paralisações comparado com os custos de manutenção, o conhecimento de seu próprio pessoal, sua capacidade técnica e os meios disponíveis.
  • 205.
    7 10.4.2 MANUTENÇÃO CORRETIVA Esta,por outro lado, compreende intervenções para corrigir, em prazo mais curto possível, defeitos imprevistos, devidos normalmente a causas acidentais, para os quais a rapidez da execução implica em perfeito conhecimento da máquina, na disponibilidade de peças sobressalentes e de pessoal altamente qualificado, tudo coordenado por uma organização perfeita. É claro que se um só desses parâmetros não estiver disponível, a eficiência do sistema organizacional imediatamente entrará em colapso. Os compressores centrífugos em geral não exigem uma manutenção mecânica freqüente, como é o caso de máquinas alternativas para maquinaria de força, tais como turbinas de gás e vapor. Não obstante, é necessário prever uma série de inspeções programadas, cíclicas e de controle para garantir a continuidade operacional dos compressores. 10.5 FLUXOGRAMA DE SERVIÇO. Ele é gerado baseado em todas as informações colhidas a respeito do equipamento e través da analise do motivo da remoção da máquina é executado um projeto MS PROJET com todos os delineamentos dos serviços relativos ao equipamento. Como: Relatório de Recebimento. Mão de obra para execução. Distribuição das tarefas para todas áreas envolvidas. Desmontagem. Limpeza. Inspeções/ Análises de Falha/ Estudo de Melhorias. Reparos. Balanceamento. Preenchimento dos registros de Dimensional. Montagem.
  • 206.
    8 Relatório Final deRevisão. 10.5.1 Relatório de Recebimento. Onde se relata todas as informações de operação, origem , horas trabalhadas, descrição do motivo da intervenção e prazo requerido.(negociação cliente/fornecedor). 10.5.2 Mão de obra para execução. Mobilização de pessoal em todas as áreas do processo 10.5.3 Distribuição das tarefas para todas áreas envolvidas (projeto) Planejamento e alocação de mão de obra , equipamentos e procedimentos de cada atividade do processo. 10.5.4 Desmontagem. Desmembramento completo de todas as partes do equipamento seguindo procedimento específico desenvolvido pela oficina reparadora ou fornecido pelo fabricante. 10.5.5 Limpeza. Todo equipamento possui procedimento específico de limpeza, dependendo do material, fragilidade e dimensões. - Química - Ultra som - Abrasiva - Desengraxantes Limpeza
  • 207.
    9 10.5.6 Inspeções São executadosprocedimentos específicos dependendo da geometria da peça, materiais e fragilidade. - Run Out Mecânico / Elétrico Run Out Mecânico/ Elétrico - Visual - Dimensional
  • 208.
  • 209.
  • 210.
  • 211.
    13 - Magnetismo Residual 10.5.7Analises de Falha Investigação de defeitos crônico ou ocasional que permita ação de melhoria, desenvolvimento de reparo especiais e geração de banco de dados de falha. 10.5.8 Analise caracterização metalúrgica Metalografia para avaliação estrutural como fadiga, corrosão inter-granular e outros. 10.5.9 Melhorias. Baseado em analises acima é desenvolvido a aplicação de melhorias, de material, tratamentos especiais, como revestimentos e pintura e modificações de projeto como geometria e dimensionais. 10.5.10 Reparos. Procedimentos de recuperação de partes. - Plasma - HVOF Revestimentos Eletrolíticos / Químicos. Nitretação. Revestimentos. Pinturas especiais e comuns Metal Patente Soldas especiais Tratamento Térmicos Usinagem de Precisão. Balanceamento. Processo utilizado para minimizar descentralização de massa resultando e melhor equilíbrio das partes rotativas.
  • 212.
  • 213.
    15 Estático (Overspeed noFabricantes) Progressivo Dinâmico(High Speed) Apenas no fabricante quando requerido) Preenchimento dos registros de Dimensional. Registro de dimensionais das partes estatoras e rotativas, para avaliação e registro de folga e ajuste todos os componentes. Montagem. Execução de montagem de todos os componentes conforme instrução e procedimento elaborado pela oficina revisora ou fabricante.
  • 214.
  • 215.
  • 216.
    18 Relatório Final deRevisão. Relatando as referências das partes montadas, melhorias implementadas, custos envolvidos de materiais e serviços, históricos, registro e recomendações. OBS: Todas as fases do projeto para Revisão de um Compressor possuem procedimento específico para cada máquina de acordo com as recomendações de cada fabricante. Assim como são fabricados com especificações, dimensionais e fabricantes diferentes, as recomendações e tolerâncias mudam em pequenos detalhes embora sejam todos dirigidos por normas API.
  • 217.
    19 10.6 Recomendações deplanejamento de intervenção (no campo). a) A fim de evitar danos mecânicos ou perdas devem ser colocadas caixas apropriadas marcadas para armazenar as peças a serem desmontadas. b) Antes de começar todas as ferramentas especiais devem ser inspecionadas e estar disponíveis. c) Devem estar disponíveis e inspecionadas com seu respectivo registro Todas as peças sobressalentes que são necessárias para a intervenção dimensional.. d) Todas as fontes de energia do equipamento relacionada com os serviços a serem executados devem ter suas respectivas gavetas extraídas e identificadas com aviso de “ EQUIPAMENTO EM MANUTENCAO”. e) Todas as aberturas de tubulações e / ou equipamento, durante o período de manutenção, devem ser cobertas para evitar a entrada de corpo estranho. f) Sinalizar com fitas zebradas passagens que porventura necessitem ser obstruídas. g) Não obstruir rotas de fugas. h) Verificar durante a programação da intervenção se o sistema de movimentação de carga do equipamento a qual vai mexer esta em perfeitas condições de uso. i) Durante a programação de intervenção certificar junto ao COORDENADOR DA EMBARCAÇÃO “UNIDADE” se os guindastes estarão disponíveis na data da realização da intervenção. j) Durante a montagem respeitar cuidadosamente as indicações contidas nos manuais do fabricante. k) Respeitar o GERENCIAMENTO DA MUDANÇA. l) Retirar permissão de trabalho para qualquer tipo de serviço a ser realizado. m) Fazer DDS.
  • 218.
    20 10.7 Recomendações Importantesde montagem, manuseio e preservação. (No Campo e na Oficina). 10.8 MANCAL RADIAL Desmontagem. NOTA: A) Para facilitar a desmontagem e a montagem do mancal, utilizar as ferramentas apropriadas conforme procedimento específico para cada máquina. 1. Remover o equipamento e os instrumentos instalados na tampa do alojamento ou no mancal cuidadosamente para evitar danos. Tomar cuidado em não danificar cabos, sondas e similares. 2. Desmontar as diferentes partes do mancal e inspecionar atentamente as superfícies internas, assegurando-se de que não haja fendas, arranhaduras, ou outros tipos de anomalias. Limpar com cuidado cada peça separadamente. Injetar o ar através dos condutos de entrada e os condutos de drenagem do óleo, e limpá-los. Montagem. Para remontar o mancal inverter o procedimento indicado para a remoção. Assegurar-se de que as superfícies da junção tenham sido limpas corretamente antes da montagem das partes. As almofadas do mancal devem ser instaladas com a parte chanfradas montada no sentido contrário em relação ao da rotação do rotor e lubrificadas. 10.8.1 MANCAL AXIAL OU EMPUXO Desmontagem. NOTA: A) Para facilitar a desmontagem e a montagem do mancal, utilizar as ferramentas apropriadas conforme procedimento específico para cada máquina. 1- Remover o equipamento e os instrumentos instalados na tampa do alojamento ou no mancal cuidadosamente para evitar danos. 2. Remover a metade superior da proteção da junção e a metade superior da cobertura terminal (ou suporte).
  • 219.
    21 3. Remover osparafusos de retenção do mancal, ou do anel de retenção do mancal do cabeçote. 4. Remover os parafusos que fixam as duas metades do mancal e levantar a metade superior. 5. Sustentar o rotor e remover a metade inferior do mancal girando-a de 180º em volta do eixo. 6. Remover os componentes do mancal de empuxo montados na parte externa do colar de empuxo. 7. Remover o colar de empuxo, para executar esta operação é necessário consultar procedimentos específicso de desmontagem para cada equipamento, as Instruções para montar / desmontar a trava/porca/ colar colar de escora. 8. Remover os componentes de empuxo montados na parte interna do colar de escora. 9. Desmontar as diferentes partes dos mancais. Inspecionar atentamente as superfícies internas, assegurando-se de que não haja fendas, arranhaduras, ou outros tipos de anomalias. Limpar com cuidado cada peça separadamente. Enjeitar ar através dos condutos de entrada e de drenagem do óleo e limpá-los. CONTROLE DAS FOLGAS DOS MANCAIS RADIAIS. Cada Mancal possui folha de registro com tolerância de folga que dependem da velocidade da máquina ,diâmetro do Eixo / Mancal e do peso do mesmo. Os procedimentos de medição pode ser feito por gabarito GO NO GO ,gabaritos que dimensionam a seção entre a área interna côncava e a externa convexa onde somando- se todas as medidas relaciona-se ao valor do Dia. Interno do alojamento das pastilhas (CORPO DO MANCAL) e se avalia o Dia interno de rolagem ,onde a folga e este valor obtido menos o valor diametral do eixo. Geralmente os valores de folga são de Diametral contrário aos labirintos que são geralmente Radiais. CONTROLE DA FOLGA AXIAL DO MANCAL DE EMPUXO Cada Mancal possui folha de registro com tolerância de folga que dependem da velocidade da máquina ,diâmetro do Eixo / Mancal e do peso do mesmo. A folga do mancal de empuxo e a distância efetiva da deslocação axial do rotor entre as sapatas.Os procedimentos de medição devem obedecer procedimento específico de cada fabricante mas todos possuem uma premissa que o passeio do Mancal Axial devem estabelecer o melhor alinhamento de saída de gás no miolo do impelidor em referência ao canal de entrada de gás do diafragma,par melhor performance e mehor escoamento evitando turbilhonamento e calço. ADVERTÊNCIA: O manuseio e acondicionamento são muito importantes por ser o material macio e não aceitar impactos e arranhões.
  • 220.
    22 10.9 ROTOR CROMPRESSOR. A)Para facilitar a desmontagem e a montagem do Rotor, utilizar as ferramentas apropriadas conforme procedimento específico para cada máquina. O Rotor é parte mais importante e sensível do conjunto e requer cuidados especiais de manuseio e acondicionamento, arranhões nos colos de mancais e sensores , amassamento dos impelidores, danos na area de montagem dos cubos nas roscas na extremidades, podem levar até mesmo a sucateamento do Rotor. . ADVERTÊNCIA: É recomendável sempre que manusear e movimentar para estoque ou reparo O rotor com todas asa partes que compõem o conjunto. O Registro de Controle das folgas da área de vedação do labirinto, dos colos de mancais e selagem inter – estágios assim como a folha de balanceamento devem sempre acompanhar o conjunto folha com controle dimensional contendo estes dados para se certificar da qualidade de montagem do equipamento. 10.10 LABIRINTOS Material macio (alumínio) deve ser manuseado com cuidado e sempre acompanhado de sua folha de identificação e dimensionais. 10.11 SELO SECO. Não remover da embalagem e expor a umidade, óleo, água e impactos. Importante: Toda as atividades ligadas a Manutenção devem ser executada com todos os cuidados e normas de SMS, como EPI, planejamento de movimentação de carga e Liberação da área para execução do serviço. A identificação dos materiais, registro, preservação e acondicionamento das peças desmontadas e montadas são importantes para o custo geral da manutenção.
  • 221.
    23 Procedimento específico paramontagem de compressores Nuovo Pignone. 10.12 INSTALAÇÃO DE CARCAÇAS VERTICAIS 10.12.1 CARCAÇAS DIVIDIDAS VERTICALMENTE (BCL - 2BCL - DBCL - PCL). Aperto Untar com molikote as roscas dos parafusos prisioneiros e as faces das porcas conjugadas. Começar a apertar quatro porcas diametralmente opostas e proceder apertando as outras da mesma maneira (dando os apertos em etapas de quatro em quatro parafusos ate se chegar ao troque final). TABELA DOS VALORES DE TORQUE TorquesDiâmetro nominal dos parafusos prisioneiros (mm) Kgm Nm M 24 20 200 M 30 40 400 M 36 x 3 80 800 M 42 x 3 130 1300 M 48 x 3 185 1800 M 56 x 4 2BCL458N 305 3000 M 64 x 4 510 5000 M 72 x 4 BCL406A 765 7500 M 80x 4 1225 12000 M 90x 4 1530 15000 M 100 x 4 2240 22000 ADEVERTÊNCIAS A- Tolerância sobre os valores de torque 5 à 10 %. B- Os valores indicados na tabela têm validade para temperaturas acima de 101° C. 10.13 INSTRUÇÕES PARA USO DO EQUIPAMENTO HIDRAULICO (PARA APERTO DE PARAFUSOS E PORCAS NAS TAMPAS DOS COMPRESSORES). 1. Controles preliminares. Controlar o nível do óleo dentro do tanque da bomba. Utilizar a chave anular escolhida de acordo com a abertura hexagonal "S" da porca a ser apertada Conectar o tubo flexível com a chave oleodinâmica (escolhida conforme o torque de aperto) e com o calibrador e a bomba hidropneumática (ver fig. no final deste parágrafo). 2. Funcionamento.
  • 222.
    24 Com a pressãohidráulica exercida pelo acionamento da bomba, dentro do cilindro, cria-se um empuxo que é transmitido à chave anular por intermédio de um sistema de alavancas, após a fixação do braço de torção regulável num ponto determinado. A chave anular dá um ângulo de rotação de 30°em volta do eixo da alavanca e isto transmite um torque à porca. Dentro dos 30° de rotação se obtêm os valores de regulagem da chave de torque de acordo com as tolerâncias indicadas no par. 5. Uma última rotação além de 30° pode ser útil para acelerar o afrouxamento ou a primeira etapa de aperto. Uma vez terminada a operação, remover a ferramenta da porca e remontá-la para um outro movimento até atingir o aperto pretendido. 3 Procedimento. Escolher uma posição angular entre 35º e 75º do ângulo de trabalho do braço de torque. Acionar a bomba hidráulica até uma pressão correspondente ao torque desejado(ler no manômetro). A regulagem do torque deverá ser obtida verificando na tabela os valores correspondentes entre Bar e Kgm, de acordo com as especificações da chave hidráulica utilizada. No final da rotação de 30° (de modo de obter a máxima precisão de aperto) parar a bomba, abrir a válvula de ventilação e colocar manualmente o pistão na sua posição inicial (a ferramenta pode ser mantida no braço de torque e empurrada na posição de operação). Repetir esta operação até conseguir o torque requerido ( 4 Possíveis problemas. Dificuldade de acionamento do cilindro. Verificação. Sangrar o ar através da válvula de purga. 5 Conselhos para precisão do torque de acionamento. A precisão do torque de aperto depende da posição angular do braço de reação giratório que e o ângulo entre braço e eixo de rotação do corpo central da chave. Caso este angulo determinado pela posição do braço alcance de 35º a 75º devemos obter uma precisão de torque de ~- 4% para chave hidráulica fornecida pelas especificações RCO 11539/S a RC011547/S uma precisão de +/- 5% para chave hidráulica fornecida pelas especificações RCO 11537/S, RCO 11595/S e RCO 11608/S. Para código de referência da chave hidráulica e chave anular em função do torque de aperto ver as paginas seguintes deste parágrafo.
  • 223.
    25 Para os valoresdo torque de aperto, referir-se ao diâmetro do parafuso estojo a ser apertado (ver a tabela no parágrafo "procedimento para aperto dos parafusos estojos da carcaça" incluído nesta seção). 10.14 INSTRUCÕES PARA USO DO EQUIPAMENTO HIDRAULICO PARA APERTO DE PARAFUSOS E PORCAS NO FECHAMENTO DAS CAIXAS DO COMPRESSOR 1. Equipamento hidráulico è formado de: Bomba hidráulica pneumática, adaptadores para manômetros tubulação flexível do manômetro. 2. Chave hidráulica 3. Chave anular 10.14 Procedimentos para apertar os tirantes e porcas. RELAÇÃO DE PRESSÃO Kgm = 9.8 Nm
  • 224.
    26 TABELA DOS VALORESDE TORQUE DOS PARAFUSOS E PORCAS DE TODOS OS COMPRESSORES CENTRÍFUGOS DA NUOVO PIGNONE 20000 18000 16000 14000 12000 10000 8000 6000 4000 2000 100 200 300 400 500 600 700 PRESSÃO bar Kgm = 9.8 Nm 20000 18000 16000 14000 12000 10000 8000 6000 4000 2000 100 200 300 400 500 600 700 PRESSÃO bar
  • 225.
    27 TorquesDiâmetro nominal dosparafusos prisioneiros (mm) Kgm Nm M 6 0,5 4 M 8 1 10 M 10 2 20 M 12 3,5 35 M 14 5,5 55 M 16 9 90 M 18 12 120 M 20 16 160 M 20 X 1,5 17 170 M 22 18 180 M 24 20 200 M 24 x 2 23 230 M 27 x 2 33 330 M 30 40 400 M 30 x 2 45 450 M 36 81 800 M 36 x 3 81 800 M 42 117 1150 M 42 x 3 122 1200 TABELA DOS VALORES DE TORQUE TIRANTES E PORCAS (TIRANTES DO CONJUNTO DO DIAFRAGMA EBCL e PCL) TorquesDiâmetro nominal dos tirantes (mm) Kgm Nm M 16 2,5 25 M 20 4,5 45 M 27 12 120 M 36 29 290 TABELA DOS VALORES DE TORQUE (PARAFUSOS MONTADOS AXIALMENTE NOS MANCAIS RADIAIS BCL,2BCL,DBCL e PCL) TorquesDiâmetro nominal do mancal radial (mm) Kgm Nm 50 à 90 10 100 110 à 120 18 180 130 31 310 150 à 180 63 620 200 110 1080
  • 226.
    Material elaborado por •Eduardo Losada Diaz – Engenheiro de Equipamentos Sênior (UN- BC/ST/EGMSE) • Ecimar Augusto da Silva – Técnico de Manutenção (UN-BC/ATP-MRL/TBM) • Reginaldo Andrade – Técnico de Manutenção (UN-RIO/ATP-MLS –OP-51) • Paulo Sergio Brito de Souza – Técnico de Manutenção (E&P.SERV/US- AP/OTBM) Referencias Bibliográficas • Apostila – Centrifugal Compressors (Training Center Nuovo Pignone) • Livro – Compressores Industriais – Paulo Sergio B. Rodrigues - Editora Didática e Científica
  • 227.
    • CD Multimedia– Centrifugal Compressor Fundamentals (CCF) – GE Nuovo Pignone