VISITA do COMDEMA ao ATERRO DELTA A
ADEQUAÇÃO GEOMÉTRICA PARA ESTABILIDADE E RECUPERAÇÃO DE COTAS DE PROJETO DA
FACE LESTE DO ATERRO SANITÁRIO DELTA A
MATERIAL NECESSÁRIO:
 Checklistimpresso
 Projetobásicocompletoimpresso
 Licençada Cetesbimpressa
 Máquinafotográfica/ filmadora
 TRENA
CHECK LISTDE VERIFICAÇÃO
1) Apresentarosensaiosgeotécnicosde laboratórioemcorpode provasmoldados,
provenientesdasjazidasde empréstimode solovisandocaracterizargeotecnicamente
os solosa seremutilizadosparaas obrasde adequação (item1.2do RNV-DTA-ADQ-
COM-F – pág 2 e 3). Verificarse osexamesconstam:
• massaespecíficareal dosgrãos;
• limitesde Atterberg(LLe LP);
• análise granulométricaporpeneiramentoe sedimentação;
• compactaçãoProctor Normal;
Verificarse osresultadosdosensaiosestãodentrodoslimitestécnicosparaoprojeto?
Pegarcópia dosresultadosdosensaios?
Qual o parecerfinal doresponsável técnico?
O que são limitesde Atterberg(LLe LP)?
O que é compactação ProctorNormal?
2) Comoque a Prefeitura/operadordoAterroDeltaA (Renova) garantirãoque sejam
cumpridososrequisitosparaa execuçãododique de disparo utilizandosoloargiloso,
compactandocom equipamentosconvencionaisde terraplenagem, comGC> 95% e
desviode umidade emtornodaumidade ótimadoensaiode compactaçãoProctor
Normal:
• Grau de compactação, GC > 95%;
• Teorde Umidade h=hot+/- 2% (ProctorNormal)?
(veritem1.2 do RNV-DTA-ADQ-COM-F–pág 3).
Quaissão os equipamentosque aPrefeitura/operador utilizarão?
Fazerregistrofotográficosdosequipamentos/veículos –pedirpara ligaro
equipamentoe verificaraperfeitafucionabilidade.
Qual o procedimento?Oque temque serfeito?Quemfaz?Quandofaz?Etc.
Verificaradrenagemde lixiviado(veritem1.3do RNV-DTA-ADQ-COM-F–pág3): “O lixiviado
drenado,coletadopelodrenolongitudinal de PEADperfurado,seráencaminhadoparaa lagoa
de lixiviadosatravésde umacaixade passagem, que encaminharáparaa lagoavia tubo
emissor.
LAGOA DE LIXIVIADOS
Registrarfotoda lagoa
Quantassão e onde estãodisponibilizadas?
CAIXA DE PASSAGEM
Registrarfotoda caixa
Quantassão e onde estãodisponibilizadas?
TUBO EMISSOR
RegistrarfotoDO TUBO EMISSOR
Quantossão e onde estãodisponibilizados?
Verificarse otuboemissortemas seguintesdimensões:tubode PEADemissornão
perfurado,comaproximadamente 26m de extensão,e que encaminharáolixiviado
até a lagoa,deveráterdeclividade mínimade 1%.
Verificarqual aCOTA DE SAÍDA DO TUBO EMISSOR,poiso textodorelatóriotécnico
deixouemabertoestaquestão:
“O levantamentotopográficofornecidonãoindicacomprecisãoacota da lagoa; é
necessário,apósaconfirmaçãodessacota,sair com o tubodesse pontopara ter as
cotas da caixade passagem.Assimsendo,casoa cota mínimade chegadana lagoaseja
595 m,o tubo deverásairda caixade passagem, nomínimo,na cota 595,26 m. A partir
dessaconstataçãoe confirmação,a cota de chegadada drenagemna caixa,deveráser
50 cm, no mínimo,maiorque a cota de saída da caixa.
Estespontosdurante a implantaçãosãoobservadosnocampo,por este motivoa
alturada caixaserdefinidacomoVARIÁVEL,poisdepende dacotada lagoae da cota
de implantaçãoda base da caixa.”
(veritem1.3 do RNV-DTA-ADQ-COM-F–pág 4 e 5):
A CAIXA DE ALVENARIA DEPASSAGEMserá quadrada,de acordo com as dimensõesaseguir:
 Largura 1 x 1 metro;
 espessuradaparede 10 cm
 espessuradatampavariável (depende dotipode material aserutilizado)
 espessuradabase 10 cm
 alturavariável emfunçãoda cota d chegadae saída do tubo.
Registrarfotoda caixade alvenariaquadrada
Ela possui asmedidasespecificadas?
Quantassão e onde estãodisponibilizadas?
3) Quantoa Drenagem Pluvial Lateral – Dique de Solo (veritem1.3 doRNV-DTA-ADQ-
COM-F – pág 5), verificarse:
a. Ao longodaextensãododique,apartirda lagoa existente àleste daárea,o a
base dos taludesdodique de soloforamrevestidoscomenrocamento,coma
finalidadede mitigareventuaisprocessoserosivosnostaludesdo dique?
REGISTRAR COMFOTO.Como foi feitoENROCAMENTO?OQUE É
ENROCAMENTO?
b. Este revestimentode enrocamentofoi compostoporrachão/pedra-de-mão
sobre geotêxtilnãotecidode 300 g/m²,revestindo-osaté cercade 3,0 m de
alturado dique e tambémda base próximoaopé-de-taludedodique?
REGISTRAR COMFOTO.CONFERIRMEDIDAS. Qual foi o GEO TEXTIL
UTILIZADO?TIRA FOTO DO GEOTÊXTIL.
c. A lagoafoi esvaziadae desviada,parapossibilitaraexecuçãoadequadado
aterro de sololançadopara construçãodo dique e acessos?REGISTRARCOM
FOTO A LAGOA VAZIA – SÓÉ POSSÍVELFAZERAS OBRASCOMA LAGOA VAZIA
PONTOCRÍTICODE ATENÇÃO – VERIFICARA LAGOA ESVAZIADA
d. Devidoauma parte dodique de solocompactadose situar emárea alagadae
sobre drenagemnatural existente,FOIREALIZADA aescavaçãode alguns
trechosdo terrenopara manteralgumascondiçõesde escoamento,mais
próximasaonatural,como a declividade da drenageme áreada seçãodo
canal de drenagem? REGISTRARCOMFOTO A ESCAVAÇÃO
e. FOIREALIZADA A READEQUAÇÃODA canaletatipomeia-canade ø1,5 m no
pé-de-taludedodique,suaextensãofoi revisada,deixando-se de adotaresse
diâmetrodesde oiníciododique,paraadequar-se daseguinte forma:doinício
da canaleta(à montante) até a4ª escadad’água o diâmetrodacanaleta
deveráserde 1,00 m e a partir daí, de 1,50 m. REGISTRARCOM FOTO.
CONFERIRA MEDIDA.
4) De acordocom a Tabela1-2 (veritem1.5 do RNV-DTA-ADQ-COM-F–pág 7 e 8), estima-se
que serãonecessáriosmaiscercade 74.474 m³ de solopara toda a reconformação.De
onde proveráeste solo:
a. jazidade solodefinidapelaprefeitura,de áreadevidamente licenciada?
b. ou aindade remineraçãodoaterro de inertesdaURM, que estálocalizado
juntoao AterroDeltaA e dispõe de solopara utilizaçãonasobrasdo aterro?
5) Evidenciararealizaçãodasobras abaixoque estãoespecificadasnoProjetoBásico –
IMPLANTAÇÃO – “Retaludamentoe AdequaçãoGeométricada Face Leste para
EncerramentodoAterroSanitárioDeltaA - Planilhade Quantitativosde Materiaise
Serviços - Fase de Implantação”(planilhaexcel)
1. Topografia
1.1 Levantamento Topográfico Realizado Por Técnico Agrimensor
Verificar relatório / projeto realizado
Qual técnico responsável?
2. Terraplenagem
2.2 Limpeza do Terreno
Verificar in locu o terreno
Qual a área total?
Registrar foto.
3. Execução do Dique de Solo
3.1 Dique de contenção
Qual o tamanho do dique de solo?
Verificar projeto do dique?
Registrar foto.
4. Drenagem de Lixiviados de Base
4.1 Tubo PEAD Perfurado
4.2 Tubo PEAD Não-Perfurado
4.3 Brita
4.4 Drenagem dos Taludes Existentes - Trincheiras
4.5 Drenagem dos Taludes Existentes - Rachão
Verificar estrutura de drenagemde lixiviados?
Para onde será destinado?
Como será tratado o lixiviado?
5. Drenagem de Biogás de Base
5.1 Tubo de Concreto Perfurado
5.2 Rachão
5.3 Tela de Aço
Verificar estrutura de drenagemde biogás?
Para onde será destinado?
Como será tratado o biogás?
6. Drenagem Pluvial de Base
6.1 Escada D´Água de Gabião Tipo Colchão Reno
6.2 Geotêxtil Não Tecido Sob Escada D'Água
6.3 Canaleta de Concreto Tipo Meia-Cana
6.4 Canaleta de Concreto Tipo Meia-Cana
6.5 Proteção do Dique de Solo com Enrocamento - Geotêxtil
6.6 Proteção do Dique de Solo com Enrocamento - Pedra de Mão
6.7 Caixa de passagemTipo 1-B - Entre Escadas d'água de gabião
6.8 Caixa de Passagem Tipo 2-A - Entre Canaletas
6.9 Caixa de Passagem Tipo 2-B - Entre Canaletas
6.10 Caixa de passagem- Tipo 3-A (entre tubos)
6.11 Tubo de Concreto Armado
6.12 Tubo de Concreto Armado
6.13 Bacia de Enrocamento
Verificar estrutura de drenagem pluvial (água de chuva)?
Para onde será destinada a água de chuva?
6) Explicar o projeto RNV-DTA-ADQ-COM-1-LevantamentoTopográfico(PDF):
a. No projeto,onde constaanova área destinadaparaa reaberturadoDELTA A?
b. Qual engenheirodaPrefeituraverificoue validouprojeto?
7) Explicar o projeto RNV-DTA-ADQ-COM-2-ImplantaçãoDique de Solo (PDF):
a. No projeto,onde consta aimplantaçãodoDIQUE DE SOLO?
b. Qual engenheirodaPrefeituraverificoue validouprojeto?
8) Explicar o projeto RNV-DTA-ADQ-COM-7-Análise de Estabilidade (PDF):
a. No projeto, VERIFICARA QUANTIDADEE DISPOSIÇÃODOSPIEZÔMETROS,que
controlarãoe avaliarãoa estabilidadedoaterro
VerificarosPiezômetros41,42, 43 e 71, 72 e 73
REGISTRAR FOTOS
ONDE ESTÃO OS DEMAIS? Quantos são ao TODO?
9) VERIFICAR IN LOCU o DETALHAMENTO da execuçãodo projetoRNV-DTA-ADQ-COM-
8-Detalhes(PDF):
DREGANGEM DE BIOGAS
LICENÇA DE OPERAÇÃO CETESB (LO)
01. Asobras, procedimentose estruturasde proteçãoambientaldeverãoserexecutados,
concomitantemente àsobrasde adequaçãogeométrica,de acordocom o projetoavaliado
pelaCETESB, observando-se as consideraçõese exigênciastécnicasefetuadas.
COMDEMA: verificaçãodosrequisitosdoprojetoconforme osquestionamentosacima.
02. Os elementosdosistemade drenagemde águaspluviaisdeverãoseradequadamente
implantados, efetuando-se acorretamanutenção,compatibilizandoolançamentodaságuas
pluviaiscomasdrenagensdo entornode modoa evitara formaçãode erosõese o
carreamentode sedimentos,inclusive paraasáreas de armazenamentode solo.
COMDEMA: verificaçãodosrequisitosdoprojetoconforme osquestionamentosacima –item
1.4 do projeto
03. Manter a disposiçãode formaadequada,garantindoacompactação e o recobrimento
contínuoe imediato comsolo,mantendo-se afrente de disposiçãocoma área mínima
necessária,afimde minimizaraemissãode odorese demaisimpactosassociados.Os
equipamentosnecessáriosàadequadaoperaçãodoempreendimento deverãosermantidos
no local,emboascondiçõesde uso.
COMDEMA: verificarquaisequipamentosserãoutilizadosparaa operaçãodo
empreendimentos –fazerregistrofotográfico:
 Veículos
 Ferramentas
 Oficinade manutenção
 Local de trabalhodos funcionários –saúde e segurança,qualidade de vida,salubridade
etc.
 VerVESTIÁRIO,BANHEIROS,REFEITÓRIOETC.
04. Deverásermantidaa adequadaoperaçãodo empreendimento,comofiel cumprimento
das normastécnicas vigentes,bemcomo,deverãoseradotadastodasas medidaspreventivas
e corretivasnecessárias,de formaa assegurarque o mesmonãose constituaumfocode
atração de aves.
COMDEMA: verificaraexistênciade avesde grande porte rondandooespaço – FAZER
REGISTRO FOTOGRÁFICODA OUTRA PARTE DO ATERRO PARA VERIFICARSEREALMENTE
ESTÃO SENDOEXECUTADOS OSPROCEDIMENTOS ADEQUADOSDE TRATAMENTO DOS
RESÍDUOS
05. Manter o encaminhamentodosefluenteslíquidospercoladosparatratamentoadequado,
emlocais devidamenteaprovadospelaCETESB.
COMDEMA: verificarolocal de destinaçãode efluenteslíquidospercolados?
Comoé feitootratamentode forma adequadadestesefluentes?
VERIFICARSEESTÁ SENDO ENCAMINHADOPARA ESTAÇÃODETRATAMENTO EFLUENTES OU
ÁGUA SANASA (ETEou ETA) ?
06. Fica proibidoolançamentode efluenteslíquidosem galeriade águapluvial,emviapública
ou emcorpos de água, bemcomo,a recirculaçãode efluenteslíquidospercolados,nopróprio
maciço de resíduos.
COMDEMA: verificarnasgaleriaspluviaisse hárecirculaçãode efluenteslíquidospercolados.
VERIFICARCOMA POPULAÇÃOSE HÁ DENÚNCIA DE DESTINAÇÃODE EFLUENTES PARA O
CÓRRREGO DA REGIÃO?
07. Fica proibidaaqueimade resíduosourejeitosaoar livre.
COMDEMA: verificarse NÃOHÁ QUEIMA DE RESÍDUOS NA OUTRA FACE DO ATERRO.
VERIFICARCOMA POPULAÇÃOSE HÁ DENÚNCIA DE QUEIMA DE RESÍDUOS?
Alémdisso, este requisitoseráverificadoapósaoperaçãodo AterroFace Leste.
08. Os itensabaixorelacionadosdeverãoserimplantadose mantidosde formaadequada,a
fimde assegurar o seubomdesempenho,segundosuas finalidadesespecíficas:
- Sistemade drenagemde gasese efluenteslíquidospercolados
- Sistemade drenagemde águaspluviais
- Viasde acesso,caminhosinternose frente de descarga
- Poçosde monitoramentode qualidadedaságuassubterrâneas
- Marcos superficiaise piezômetros
- Coberturavegetal comgramíneas
- Isolamentofísicoe visual daáreado empreendimento.
COMDEMA: este requisitoseráverificadoapósaoperação doAterroFace Leste.
09. Manter a área do empreendimentodevidamente cercada,sinalizadae identificada,com
rigorosocontrole de acessoao local,ficandoproibidooacessoe/ouapermanênciade
catadoresou pessoasestranhasà operação,na área do aterro,bemcomo a presençade
animais
COMDEMA: verificarasinalizaçãoe identificaçãodaárea,controle rigorosode acesso
(portaria,cercas,placas),presençade catadoresnoaterro ouna área de transbordo?
Perguntar para os funcionários que estão trabalhando
no local!
10. Efetuaro controle e registrodosresíduosrecebidos,os quaisdeverãoestasdisponíveis
para verificaçãodaCETESB durante as vistoriasaolocal
COMDEMA: verificarosrelatóriosdosúltimos3mesescomo registrodosresíduosrecebidos:
sistemaeletrônico(maisSEGURANÇA)oumanual (indíciode RISCOe possibilidade de
sobrecargado aterro alémdacapacidade)
11. Fica proibidaaemissãode material particuladoe substânciasodoríferasnaatmosferaem
quantidades que possamserperceptíveisforadoslimitesdapropriedadedo
empreendimento,comofimde evitar inconvenientesaobemestarpúblicoe incômodosa
populaçãovizinha.
COMDEMA: VERIFICARCOMA POPULAÇÃOSE HÁ DENÚNCIA DE EMISSÃO DE MATERIAL
PARTICULADOE SUBSTÂNCIASODORÍFERAS?
12. Caso venhaa serconstatadoodor,ruído ou poeiras,foradoslimitesde propriedade do
empreendimento, decorrentesde operaçõese/ouatividadesrelacionadasaoaterro,com
inconvenientesaobem-estarpúblico,de imediato,deverãoseradotadasmedidasadequadas
para soluçãodos problemasambientaisgerados,nãoisentando daaplicaçãodas medidas
administrativascabíveispelaCETESB.
COMDEMA: VERIFICARCOMA POPULAÇÃOSE HÁ DENÚNCIA DE EMISSÃO DE MATERIAL
PARTICULADOE SUBSTÂNCIASODORÍFERAS?
VERIFICARA DISTÂNCIA DA POPULAÇÃOMAISPRÓXIMA DA FACELESTE DO ATERRO – É
POSSIVELVISUALIZARMORADORESDOENTORNO?
13. O pátioe as áreasde movimentaçãoe tráfegode máquinase veículosemgeral deverãoser
pavimentados ouumectadospermanentemente,de formaaimpediraemissãode poeiras
(material particulado)naatmosfera,em quantidadesque possamcausarinconvenientesao
bemestarpúblico.
COMDEMA: verificarse todaárea de movimentaçãode veículos –arruamentose páteo – são
PAVIMENTADASouUMECTADASPERMANENTEMENTE.
Se são UMECTADAS, verificaroestadodosveículos,qual origemdaágua etc.?
14. A PrefeituraMunicipal de Campinasdeverámanterosistemade monitoramentoda
qualidade daságuas superficiaise subterrâneasnaáreade influênciadoaterro,apresentando
trimestralmente osrespectivosrelatóriosconclusivosàCETESB - AgênciaAmbiental de
Campinas,naforma eletrônicae empapel,acompanhado de ARTdo profissionalresponsável
e Termode Responsabilidade firmadopelorepresentantelegal daPrefeitura Municipal de
Campinas.
COMDEMA: verificarosrelatóriosde monitoramentode qualidadedaságuassuperficiaise
subterrâneasdoaterro(FACEOESTE) – pediros últimos4relatóriosTRIMESTRAIS
APRESENTADOSPARA A CETESB?
Quemé o responsávelpelaemissão+ART?
VerificarTERMODE RESPONSABILIDADEfirmadopeloRepresentante legal daPrefeitura
Municipal de Campinas?
Os resultadosanalíticosdeverãoserapresentadosnostermosdaResoluçãoSMA 100/2013 a
qual regulamentaas exigênciasparaos resultadosanalíticos,incluindo-seaamostragem,
objetode apreciaçãopelosórgãos integrantesdoSistemaEstadual de Administraçãoda
Qualidade Ambiental,Proteção,Controle e Desenvolvimento doMeioAmbiente e Uso
AdequadodosRecursosNaturais - SEAQUA.
COMDEMA: verificarse os4 últimosrelatóriosatendemaosrequisitosestabelecidosacima?
15. A PrefeituraMunicipal de Campinasdeverámanteromonitoramentode todosos
piezômetrosinstaladose avaliarosdados,acompanharos deslocamentosdosmarcos
superficiaise omonitoramentogeotécnicoefetuando inspeçõesrotineirascomointuitode
identificareventuaistrincasportração,processoserosivosou inchamentosnassuperfíciesdo
talude,paralisandoadisposiçãodosresíduos,casoidentificadaqualquer situaçãode risco,
bemcomo adotar as medidasemergenciaise corretivasnecessárias,comunicandode imediato
à CETESB e demaisórgãoscompetentes.
COMDEMA: verificarosrelatóriosde todosos piezômetrosinstalados?
Qual a periodicidade de verificação?
Comoo operadorrealizarinspeçõesrotineirasparaverificar eventuaistrincasportração,
processoserosivosou inchamentosnassuperfíciesdotalude?
Quaisos registrodosrelatóriosdasúltimas3verificações?
Quaisos resultadosdosúltimos12meses – verprocedimentoparaoaterro atual para verificar
como seráexecutadoparao AterroFace Leste (novafase).
Deverá,ainda,elaborarrelatóriosmensaisdomonitoramentogeotécnico,contendoa
interpretaçãodosdados aferidosnarede de instrumentaçãogeotécnica,de formaapermitir
sua utilizaçãonaoperaçãodo aterro sanitário.Essesdocumentosdevemserutilizadosparao
gerenciamentodoempreendimentoe estardisponíveis paraconsultadaCETESB.
COMDEMA: verificaros3 últimosrelatóriosmensaisde monitoramentogeotécnicocoma
interpretaçãodosdadosenviadosparaa CETESB com a avaliaçãodo Aterrojá existente –para
comparar com o procedimento que seráexecutadonoAterroFace Leste.
Trimestralmente deveráapresentaràCETESB - AgênciaAmbiental de Campinas,naforma
eletrônicae empapel, relatórioconsolidado,interpretativoe conclusivodosrelatórios
mensaisdoMonitoramentoGeotécnicodo Aterro.
COMDEMA: verificaros3 últimosrelatóriosmensaisde monitoramentogeotécnicocoma
interpretaçãodosdadosenviadosparaa CETESB com a avaliaçãodo Aterrojá existente –para
comparar com o procedimentoque seráexecutadonoAterroFace Leste.
16. Caso a operaçãovenhaa danificarospiezômetrosexistentes,deveráserefetuadaa
substituiçãocomo mesmotipode piezômetro,umavezque a rede de monitoramento
geotécniconãopoderáserreduzidaouterseus instrumentossubstituídosporoutros de
menorprecisãonaaferiçãode dados.
COMDEMA: este requisitoseráverificadoapósaoperação doAterroFace Leste.
17. Asatividadesde manutençãoe monitoramentodeverãoserexecutadasdurante todoo
períodode operação, devendoprosseguirporumperíodode 20 (vinte) anosapósotérmino
da disposiçãode rejeitos.Este período pode serreduzido,umavezconstatadaa estabilização
física e ambiental,ouentãoestendidocasose verifique serinsuficiente.
COMDEMA: este requisitoseráverificadoapósa operação doAterroFace Leste.
18. Fica proibidaadisposiçãode resíduosnolocal que nãosejamde origemdomiciliar.
COMDEMA: este requisitoseráverificadoapósaoperação doAterroFace Leste.
OBSERVAÇÕES
01. A presente Licençarefere-se aoprojeto de "AdequaçãoGeométricaparaEstabilidade e
Recuperaçãode Cotas de ProjetosdaFace Leste doAterroSanitárioDeltaA",para o
recebimentodosresíduossólidosurbanos geradosnomunicípiode Campinas,coma
disposiçãode umvolume aproximadode 609.115 m³ de resíduos, seguindo-seaspremissas
do projetooriginal:taludescominclinação1:2,5(V:H) e bermascomlargura de 5m,
estimando-se umavidaútil de 17,2 meses(considerandoorecebimentode 35.500 t/mês),
prevalecendoparasua caducidade acondiçãoque primeiroocorrer.
COMDEMA: este requisitoseráverificadoapósaoperação doAterroFace Leste.
02. A Prefeiturade CampinasdeverácomunicaràCETESB - AgênciaAmbiental de Campinas,
com antecedência mínimade 5 (cinco) dias, adata previstapara o inícioda disposiçãode
resíduos,apresentandoaART (Anotaçãode Responsabilidade Técnica) doresponsáveltécnico
pelaexecuçãodoprojetoe operaçãodo empreendimento.
COMDEMA: verificarse oaterro já estáemoperaçãoe com inícioda disposiçãode resíduos –
verificarARTdo responsáveltécnicoparaexecuçãooprojetoe operaçãodoempreendimento.
03. A aceitaçãoda conformaçãogeométricapropostaestácondicionadaamanutençãodas
condiçõesde estabilidade,aqual deveráseracompanhadapormeiodo monitoramento
geotécnicoe,emcasode constatações contrárias,a mesmadeveráserrevista,coma
suspensãodadisposiçãode resíduosnaáreaobjetodesta
COMDEMA: este requisitoseráverificadoapósaoperação doAterroFace Leste.
04. A Prefeiturade CampinasdeverácomunicaràCETESB, de imediato,qualquer
desconformidade ambiental identificadanosmonitoramentose/ounasinspeçõesvisuaisno
maciço,indicandoasações adotadaspara reversãoda situação,sobpenade caracterizar
situaçãoagravante para definiçãodasaçõesadministrativasa seremadotadaspelaCETESB.
COMDEMA: este requisitoseráverificadoapósaoperação doAterroFace Leste.
05. Destaca-se que poderãoserefetuadasexigênciastécnicasadicionais,emfunção dos
resultadosdo monitoramentoambiental.
COMDEMA: este requisitoseráverificadoapósaoperaçãodo AterroFace Leste.
06. A presente Licençaestásendoconcedidaconsiderandoavidaútil estimadade 17,2 meses
de operação do aterro,ocasiãoemque poderáser reavaliadaavidaútil eventualmente
remanescente,considerandoa conformaçãogeométricaprevistaemprojeto.Casoseja
atingidaessaconformaçãoantesdoprazo previsto,a Prefeituradeveráencerraradisposição
de resíduosno local.
COMDEMA: este requisitoseráverificadoapósaoperação doAterroFace Leste.
07. Tendoemvistaque o projetopropostoproporcionaráumasobrevidaútil limitada,no
prazo de seis mesesaPrefeituradeveráapresentarumapropostaalternativaparao adequado
gerenciamentoe disposição final dosresíduossólidosurbanosgeradosnomunicípio,
incluindoaimplantaçãodaunidade de transbordo objetodaLicençade Instalação05003723.
COMDEMA: verificaroprojetoque seráproposto(ATÉ13/OUT/2016) como alternativaao uso
deste aterroque contemple oseuinícioantesde 17,2 meses – fimda sobrevidaútil –
DEZ/2017.
08. Quandoda ocorrênciade desconformidades,de imediato,aAgênciaAmbiental daCETESB
deveráser formalmente comunicada,comindicaçãodadesconformidade,dascausasdo
episódioe asmedidasde adequação adotadaspelosresponsáveispeloempreendimentopara
correção da irregularidade.
COMDEMA: este requisitoseráverificadoapósaoperação doAterroFace Leste.
09. O não atendimentodasexigênciase prazosestabelecidosnasObservações/Exigências
destaLicença poderáacarretar o cancelamentode seusefeitose/ounaaplicaçãodassanções
legais.
COMDEMA: este requisitoseráverificadoapósaoperaçãodo AterroFace Leste.

Delta A/check list

  • 1.
    VISITA do COMDEMAao ATERRO DELTA A ADEQUAÇÃO GEOMÉTRICA PARA ESTABILIDADE E RECUPERAÇÃO DE COTAS DE PROJETO DA FACE LESTE DO ATERRO SANITÁRIO DELTA A MATERIAL NECESSÁRIO:  Checklistimpresso  Projetobásicocompletoimpresso  Licençada Cetesbimpressa  Máquinafotográfica/ filmadora  TRENA CHECK LISTDE VERIFICAÇÃO 1) Apresentarosensaiosgeotécnicosde laboratórioemcorpode provasmoldados, provenientesdasjazidasde empréstimode solovisandocaracterizargeotecnicamente os solosa seremutilizadosparaas obrasde adequação (item1.2do RNV-DTA-ADQ- COM-F – pág 2 e 3). Verificarse osexamesconstam: • massaespecíficareal dosgrãos; • limitesde Atterberg(LLe LP); • análise granulométricaporpeneiramentoe sedimentação; • compactaçãoProctor Normal; Verificarse osresultadosdosensaiosestãodentrodoslimitestécnicosparaoprojeto? Pegarcópia dosresultadosdosensaios? Qual o parecerfinal doresponsável técnico? O que são limitesde Atterberg(LLe LP)? O que é compactação ProctorNormal? 2) Comoque a Prefeitura/operadordoAterroDeltaA (Renova) garantirãoque sejam cumpridososrequisitosparaa execuçãododique de disparo utilizandosoloargiloso, compactandocom equipamentosconvencionaisde terraplenagem, comGC> 95% e desviode umidade emtornodaumidade ótimadoensaiode compactaçãoProctor Normal: • Grau de compactação, GC > 95%; • Teorde Umidade h=hot+/- 2% (ProctorNormal)? (veritem1.2 do RNV-DTA-ADQ-COM-F–pág 3). Quaissão os equipamentosque aPrefeitura/operador utilizarão? Fazerregistrofotográficosdosequipamentos/veículos –pedirpara ligaro equipamentoe verificaraperfeitafucionabilidade.
  • 2.
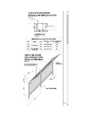
    Qual o procedimento?Oquetemque serfeito?Quemfaz?Quandofaz?Etc. Verificaradrenagemde lixiviado(veritem1.3do RNV-DTA-ADQ-COM-F–pág3): “O lixiviado drenado,coletadopelodrenolongitudinal de PEADperfurado,seráencaminhadoparaa lagoa de lixiviadosatravésde umacaixade passagem, que encaminharáparaa lagoavia tubo emissor. LAGOA DE LIXIVIADOS Registrarfotoda lagoa Quantassão e onde estãodisponibilizadas? CAIXA DE PASSAGEM Registrarfotoda caixa Quantassão e onde estãodisponibilizadas? TUBO EMISSOR RegistrarfotoDO TUBO EMISSOR Quantossão e onde estãodisponibilizados? Verificarse otuboemissortemas seguintesdimensões:tubode PEADemissornão perfurado,comaproximadamente 26m de extensão,e que encaminharáolixiviado até a lagoa,deveráterdeclividade mínimade 1%. Verificarqual aCOTA DE SAÍDA DO TUBO EMISSOR,poiso textodorelatóriotécnico deixouemabertoestaquestão: “O levantamentotopográficofornecidonãoindicacomprecisãoacota da lagoa; é necessário,apósaconfirmaçãodessacota,sair com o tubodesse pontopara ter as cotas da caixade passagem.Assimsendo,casoa cota mínimade chegadana lagoaseja 595 m,o tubo deverásairda caixade passagem, nomínimo,na cota 595,26 m. A partir dessaconstataçãoe confirmação,a cota de chegadada drenagemna caixa,deveráser 50 cm, no mínimo,maiorque a cota de saída da caixa. Estespontosdurante a implantaçãosãoobservadosnocampo,por este motivoa alturada caixaserdefinidacomoVARIÁVEL,poisdepende dacotada lagoae da cota de implantaçãoda base da caixa.” (veritem1.3 do RNV-DTA-ADQ-COM-F–pág 4 e 5): A CAIXA DE ALVENARIA DEPASSAGEMserá quadrada,de acordo com as dimensõesaseguir:  Largura 1 x 1 metro;
  • 3.
     espessuradaparede 10cm  espessuradatampavariável (depende dotipode material aserutilizado)  espessuradabase 10 cm  alturavariável emfunçãoda cota d chegadae saída do tubo. Registrarfotoda caixade alvenariaquadrada Ela possui asmedidasespecificadas? Quantassão e onde estãodisponibilizadas? 3) Quantoa Drenagem Pluvial Lateral – Dique de Solo (veritem1.3 doRNV-DTA-ADQ- COM-F – pág 5), verificarse: a. Ao longodaextensãododique,apartirda lagoa existente àleste daárea,o a base dos taludesdodique de soloforamrevestidoscomenrocamento,coma finalidadede mitigareventuaisprocessoserosivosnostaludesdo dique? REGISTRAR COMFOTO.Como foi feitoENROCAMENTO?OQUE É ENROCAMENTO? b. Este revestimentode enrocamentofoi compostoporrachão/pedra-de-mão sobre geotêxtilnãotecidode 300 g/m²,revestindo-osaté cercade 3,0 m de alturado dique e tambémda base próximoaopé-de-taludedodique? REGISTRAR COMFOTO.CONFERIRMEDIDAS. Qual foi o GEO TEXTIL UTILIZADO?TIRA FOTO DO GEOTÊXTIL. c. A lagoafoi esvaziadae desviada,parapossibilitaraexecuçãoadequadado aterro de sololançadopara construçãodo dique e acessos?REGISTRARCOM FOTO A LAGOA VAZIA – SÓÉ POSSÍVELFAZERAS OBRASCOMA LAGOA VAZIA PONTOCRÍTICODE ATENÇÃO – VERIFICARA LAGOA ESVAZIADA d. Devidoauma parte dodique de solocompactadose situar emárea alagadae sobre drenagemnatural existente,FOIREALIZADA aescavaçãode alguns trechosdo terrenopara manteralgumascondiçõesde escoamento,mais próximasaonatural,como a declividade da drenageme áreada seçãodo canal de drenagem? REGISTRARCOMFOTO A ESCAVAÇÃO e. FOIREALIZADA A READEQUAÇÃODA canaletatipomeia-canade ø1,5 m no pé-de-taludedodique,suaextensãofoi revisada,deixando-se de adotaresse diâmetrodesde oiníciododique,paraadequar-se daseguinte forma:doinício da canaleta(à montante) até a4ª escadad’água o diâmetrodacanaleta deveráserde 1,00 m e a partir daí, de 1,50 m. REGISTRARCOM FOTO. CONFERIRA MEDIDA.
  • 4.
    4) De acordocoma Tabela1-2 (veritem1.5 do RNV-DTA-ADQ-COM-F–pág 7 e 8), estima-se que serãonecessáriosmaiscercade 74.474 m³ de solopara toda a reconformação.De onde proveráeste solo: a. jazidade solodefinidapelaprefeitura,de áreadevidamente licenciada? b. ou aindade remineraçãodoaterro de inertesdaURM, que estálocalizado juntoao AterroDeltaA e dispõe de solopara utilizaçãonasobrasdo aterro? 5) Evidenciararealizaçãodasobras abaixoque estãoespecificadasnoProjetoBásico – IMPLANTAÇÃO – “Retaludamentoe AdequaçãoGeométricada Face Leste para EncerramentodoAterroSanitárioDeltaA - Planilhade Quantitativosde Materiaise Serviços - Fase de Implantação”(planilhaexcel) 1. Topografia 1.1 Levantamento Topográfico Realizado Por Técnico Agrimensor Verificar relatório / projeto realizado Qual técnico responsável? 2. Terraplenagem 2.2 Limpeza do Terreno Verificar in locu o terreno Qual a área total? Registrar foto. 3. Execução do Dique de Solo 3.1 Dique de contenção Qual o tamanho do dique de solo? Verificar projeto do dique? Registrar foto. 4. Drenagem de Lixiviados de Base 4.1 Tubo PEAD Perfurado 4.2 Tubo PEAD Não-Perfurado 4.3 Brita 4.4 Drenagem dos Taludes Existentes - Trincheiras 4.5 Drenagem dos Taludes Existentes - Rachão Verificar estrutura de drenagemde lixiviados? Para onde será destinado? Como será tratado o lixiviado? 5. Drenagem de Biogás de Base 5.1 Tubo de Concreto Perfurado 5.2 Rachão 5.3 Tela de Aço Verificar estrutura de drenagemde biogás? Para onde será destinado? Como será tratado o biogás? 6. Drenagem Pluvial de Base 6.1 Escada D´Água de Gabião Tipo Colchão Reno 6.2 Geotêxtil Não Tecido Sob Escada D'Água 6.3 Canaleta de Concreto Tipo Meia-Cana 6.4 Canaleta de Concreto Tipo Meia-Cana
  • 5.
    6.5 Proteção doDique de Solo com Enrocamento - Geotêxtil 6.6 Proteção do Dique de Solo com Enrocamento - Pedra de Mão 6.7 Caixa de passagemTipo 1-B - Entre Escadas d'água de gabião 6.8 Caixa de Passagem Tipo 2-A - Entre Canaletas 6.9 Caixa de Passagem Tipo 2-B - Entre Canaletas 6.10 Caixa de passagem- Tipo 3-A (entre tubos) 6.11 Tubo de Concreto Armado 6.12 Tubo de Concreto Armado 6.13 Bacia de Enrocamento Verificar estrutura de drenagem pluvial (água de chuva)? Para onde será destinada a água de chuva? 6) Explicar o projeto RNV-DTA-ADQ-COM-1-LevantamentoTopográfico(PDF): a. No projeto,onde constaanova área destinadaparaa reaberturadoDELTA A? b. Qual engenheirodaPrefeituraverificoue validouprojeto? 7) Explicar o projeto RNV-DTA-ADQ-COM-2-ImplantaçãoDique de Solo (PDF): a. No projeto,onde consta aimplantaçãodoDIQUE DE SOLO? b. Qual engenheirodaPrefeituraverificoue validouprojeto? 8) Explicar o projeto RNV-DTA-ADQ-COM-7-Análise de Estabilidade (PDF): a. No projeto, VERIFICARA QUANTIDADEE DISPOSIÇÃODOSPIEZÔMETROS,que controlarãoe avaliarãoa estabilidadedoaterro
  • 6.
    VerificarosPiezômetros41,42, 43 e71, 72 e 73 REGISTRAR FOTOS ONDE ESTÃO OS DEMAIS? Quantos são ao TODO? 9) VERIFICAR IN LOCU o DETALHAMENTO da execuçãodo projetoRNV-DTA-ADQ-COM- 8-Detalhes(PDF):
  • 13.
  • 16.
    LICENÇA DE OPERAÇÃOCETESB (LO) 01. Asobras, procedimentose estruturasde proteçãoambientaldeverãoserexecutados, concomitantemente àsobrasde adequaçãogeométrica,de acordocom o projetoavaliado pelaCETESB, observando-se as consideraçõese exigênciastécnicasefetuadas. COMDEMA: verificaçãodosrequisitosdoprojetoconforme osquestionamentosacima. 02. Os elementosdosistemade drenagemde águaspluviaisdeverãoseradequadamente implantados, efetuando-se acorretamanutenção,compatibilizandoolançamentodaságuas pluviaiscomasdrenagensdo entornode modoa evitara formaçãode erosõese o carreamentode sedimentos,inclusive paraasáreas de armazenamentode solo. COMDEMA: verificaçãodosrequisitosdoprojetoconforme osquestionamentosacima –item 1.4 do projeto 03. Manter a disposiçãode formaadequada,garantindoacompactação e o recobrimento contínuoe imediato comsolo,mantendo-se afrente de disposiçãocoma área mínima necessária,afimde minimizaraemissãode odorese demaisimpactosassociados.Os equipamentosnecessáriosàadequadaoperaçãodoempreendimento deverãosermantidos no local,emboascondiçõesde uso. COMDEMA: verificarquaisequipamentosserãoutilizadosparaa operaçãodo empreendimentos –fazerregistrofotográfico:  Veículos  Ferramentas  Oficinade manutenção  Local de trabalhodos funcionários –saúde e segurança,qualidade de vida,salubridade etc.  VerVESTIÁRIO,BANHEIROS,REFEITÓRIOETC. 04. Deverásermantidaa adequadaoperaçãodo empreendimento,comofiel cumprimento das normastécnicas vigentes,bemcomo,deverãoseradotadastodasas medidaspreventivas e corretivasnecessárias,de formaa assegurarque o mesmonãose constituaumfocode atração de aves. COMDEMA: verificaraexistênciade avesde grande porte rondandooespaço – FAZER REGISTRO FOTOGRÁFICODA OUTRA PARTE DO ATERRO PARA VERIFICARSEREALMENTE ESTÃO SENDOEXECUTADOS OSPROCEDIMENTOS ADEQUADOSDE TRATAMENTO DOS RESÍDUOS
  • 17.
    05. Manter oencaminhamentodosefluenteslíquidospercoladosparatratamentoadequado, emlocais devidamenteaprovadospelaCETESB. COMDEMA: verificarolocal de destinaçãode efluenteslíquidospercolados? Comoé feitootratamentode forma adequadadestesefluentes? VERIFICARSEESTÁ SENDO ENCAMINHADOPARA ESTAÇÃODETRATAMENTO EFLUENTES OU ÁGUA SANASA (ETEou ETA) ? 06. Fica proibidoolançamentode efluenteslíquidosem galeriade águapluvial,emviapública ou emcorpos de água, bemcomo,a recirculaçãode efluenteslíquidospercolados,nopróprio maciço de resíduos. COMDEMA: verificarnasgaleriaspluviaisse hárecirculaçãode efluenteslíquidospercolados. VERIFICARCOMA POPULAÇÃOSE HÁ DENÚNCIA DE DESTINAÇÃODE EFLUENTES PARA O CÓRRREGO DA REGIÃO? 07. Fica proibidaaqueimade resíduosourejeitosaoar livre. COMDEMA: verificarse NÃOHÁ QUEIMA DE RESÍDUOS NA OUTRA FACE DO ATERRO. VERIFICARCOMA POPULAÇÃOSE HÁ DENÚNCIA DE QUEIMA DE RESÍDUOS? Alémdisso, este requisitoseráverificadoapósaoperaçãodo AterroFace Leste. 08. Os itensabaixorelacionadosdeverãoserimplantadose mantidosde formaadequada,a fimde assegurar o seubomdesempenho,segundosuas finalidadesespecíficas: - Sistemade drenagemde gasese efluenteslíquidospercolados - Sistemade drenagemde águaspluviais - Viasde acesso,caminhosinternose frente de descarga - Poçosde monitoramentode qualidadedaságuassubterrâneas - Marcos superficiaise piezômetros - Coberturavegetal comgramíneas - Isolamentofísicoe visual daáreado empreendimento. COMDEMA: este requisitoseráverificadoapósaoperação doAterroFace Leste.
  • 18.
    09. Manter aárea do empreendimentodevidamente cercada,sinalizadae identificada,com rigorosocontrole de acessoao local,ficandoproibidooacessoe/ouapermanênciade catadoresou pessoasestranhasà operação,na área do aterro,bemcomo a presençade animais COMDEMA: verificarasinalizaçãoe identificaçãodaárea,controle rigorosode acesso (portaria,cercas,placas),presençade catadoresnoaterro ouna área de transbordo? Perguntar para os funcionários que estão trabalhando no local! 10. Efetuaro controle e registrodosresíduosrecebidos,os quaisdeverãoestasdisponíveis para verificaçãodaCETESB durante as vistoriasaolocal COMDEMA: verificarosrelatóriosdosúltimos3mesescomo registrodosresíduosrecebidos: sistemaeletrônico(maisSEGURANÇA)oumanual (indíciode RISCOe possibilidade de sobrecargado aterro alémdacapacidade) 11. Fica proibidaaemissãode material particuladoe substânciasodoríferasnaatmosferaem quantidades que possamserperceptíveisforadoslimitesdapropriedadedo empreendimento,comofimde evitar inconvenientesaobemestarpúblicoe incômodosa populaçãovizinha. COMDEMA: VERIFICARCOMA POPULAÇÃOSE HÁ DENÚNCIA DE EMISSÃO DE MATERIAL PARTICULADOE SUBSTÂNCIASODORÍFERAS? 12. Caso venhaa serconstatadoodor,ruído ou poeiras,foradoslimitesde propriedade do empreendimento, decorrentesde operaçõese/ouatividadesrelacionadasaoaterro,com inconvenientesaobem-estarpúblico,de imediato,deverãoseradotadasmedidasadequadas para soluçãodos problemasambientaisgerados,nãoisentando daaplicaçãodas medidas administrativascabíveispelaCETESB. COMDEMA: VERIFICARCOMA POPULAÇÃOSE HÁ DENÚNCIA DE EMISSÃO DE MATERIAL PARTICULADOE SUBSTÂNCIASODORÍFERAS? VERIFICARA DISTÂNCIA DA POPULAÇÃOMAISPRÓXIMA DA FACELESTE DO ATERRO – É POSSIVELVISUALIZARMORADORESDOENTORNO?
  • 19.
    13. O pátioeas áreasde movimentaçãoe tráfegode máquinase veículosemgeral deverãoser pavimentados ouumectadospermanentemente,de formaaimpediraemissãode poeiras (material particulado)naatmosfera,em quantidadesque possamcausarinconvenientesao bemestarpúblico. COMDEMA: verificarse todaárea de movimentaçãode veículos –arruamentose páteo – são PAVIMENTADASouUMECTADASPERMANENTEMENTE. Se são UMECTADAS, verificaroestadodosveículos,qual origemdaágua etc.? 14. A PrefeituraMunicipal de Campinasdeverámanterosistemade monitoramentoda qualidade daságuas superficiaise subterrâneasnaáreade influênciadoaterro,apresentando trimestralmente osrespectivosrelatóriosconclusivosàCETESB - AgênciaAmbiental de Campinas,naforma eletrônicae empapel,acompanhado de ARTdo profissionalresponsável e Termode Responsabilidade firmadopelorepresentantelegal daPrefeitura Municipal de Campinas. COMDEMA: verificarosrelatóriosde monitoramentode qualidadedaságuassuperficiaise subterrâneasdoaterro(FACEOESTE) – pediros últimos4relatóriosTRIMESTRAIS APRESENTADOSPARA A CETESB? Quemé o responsávelpelaemissão+ART? VerificarTERMODE RESPONSABILIDADEfirmadopeloRepresentante legal daPrefeitura Municipal de Campinas?
  • 20.
    Os resultadosanalíticosdeverãoserapresentadosnostermosdaResoluçãoSMA 100/2013a qual regulamentaas exigênciasparaos resultadosanalíticos,incluindo-seaamostragem, objetode apreciaçãopelosórgãos integrantesdoSistemaEstadual de Administraçãoda Qualidade Ambiental,Proteção,Controle e Desenvolvimento doMeioAmbiente e Uso AdequadodosRecursosNaturais - SEAQUA. COMDEMA: verificarse os4 últimosrelatóriosatendemaosrequisitosestabelecidosacima? 15. A PrefeituraMunicipal de Campinasdeverámanteromonitoramentode todosos piezômetrosinstaladose avaliarosdados,acompanharos deslocamentosdosmarcos superficiaise omonitoramentogeotécnicoefetuando inspeçõesrotineirascomointuitode identificareventuaistrincasportração,processoserosivosou inchamentosnassuperfíciesdo talude,paralisandoadisposiçãodosresíduos,casoidentificadaqualquer situaçãode risco, bemcomo adotar as medidasemergenciaise corretivasnecessárias,comunicandode imediato à CETESB e demaisórgãoscompetentes. COMDEMA: verificarosrelatóriosde todosos piezômetrosinstalados? Qual a periodicidade de verificação? Comoo operadorrealizarinspeçõesrotineirasparaverificar eventuaistrincasportração, processoserosivosou inchamentosnassuperfíciesdotalude? Quaisos registrodosrelatóriosdasúltimas3verificações? Quaisos resultadosdosúltimos12meses – verprocedimentoparaoaterro atual para verificar como seráexecutadoparao AterroFace Leste (novafase). Deverá,ainda,elaborarrelatóriosmensaisdomonitoramentogeotécnico,contendoa interpretaçãodosdados aferidosnarede de instrumentaçãogeotécnica,de formaapermitir sua utilizaçãonaoperaçãodo aterro sanitário.Essesdocumentosdevemserutilizadosparao gerenciamentodoempreendimentoe estardisponíveis paraconsultadaCETESB. COMDEMA: verificaros3 últimosrelatóriosmensaisde monitoramentogeotécnicocoma interpretaçãodosdadosenviadosparaa CETESB com a avaliaçãodo Aterrojá existente –para comparar com o procedimento que seráexecutadonoAterroFace Leste. Trimestralmente deveráapresentaràCETESB - AgênciaAmbiental de Campinas,naforma eletrônicae empapel, relatórioconsolidado,interpretativoe conclusivodosrelatórios mensaisdoMonitoramentoGeotécnicodo Aterro.
  • 21.
    COMDEMA: verificaros3 últimosrelatóriosmensaisdemonitoramentogeotécnicocoma interpretaçãodosdadosenviadosparaa CETESB com a avaliaçãodo Aterrojá existente –para comparar com o procedimentoque seráexecutadonoAterroFace Leste. 16. Caso a operaçãovenhaa danificarospiezômetrosexistentes,deveráserefetuadaa substituiçãocomo mesmotipode piezômetro,umavezque a rede de monitoramento geotécniconãopoderáserreduzidaouterseus instrumentossubstituídosporoutros de menorprecisãonaaferiçãode dados. COMDEMA: este requisitoseráverificadoapósaoperação doAterroFace Leste. 17. Asatividadesde manutençãoe monitoramentodeverãoserexecutadasdurante todoo períodode operação, devendoprosseguirporumperíodode 20 (vinte) anosapósotérmino da disposiçãode rejeitos.Este período pode serreduzido,umavezconstatadaa estabilização física e ambiental,ouentãoestendidocasose verifique serinsuficiente. COMDEMA: este requisitoseráverificadoapósa operação doAterroFace Leste. 18. Fica proibidaadisposiçãode resíduosnolocal que nãosejamde origemdomiciliar. COMDEMA: este requisitoseráverificadoapósaoperação doAterroFace Leste. OBSERVAÇÕES 01. A presente Licençarefere-se aoprojeto de "AdequaçãoGeométricaparaEstabilidade e Recuperaçãode Cotas de ProjetosdaFace Leste doAterroSanitárioDeltaA",para o recebimentodosresíduossólidosurbanos geradosnomunicípiode Campinas,coma disposiçãode umvolume aproximadode 609.115 m³ de resíduos, seguindo-seaspremissas do projetooriginal:taludescominclinação1:2,5(V:H) e bermascomlargura de 5m, estimando-se umavidaútil de 17,2 meses(considerandoorecebimentode 35.500 t/mês), prevalecendoparasua caducidade acondiçãoque primeiroocorrer. COMDEMA: este requisitoseráverificadoapósaoperação doAterroFace Leste. 02. A Prefeiturade CampinasdeverácomunicaràCETESB - AgênciaAmbiental de Campinas, com antecedência mínimade 5 (cinco) dias, adata previstapara o inícioda disposiçãode resíduos,apresentandoaART (Anotaçãode Responsabilidade Técnica) doresponsáveltécnico pelaexecuçãodoprojetoe operaçãodo empreendimento. COMDEMA: verificarse oaterro já estáemoperaçãoe com inícioda disposiçãode resíduos – verificarARTdo responsáveltécnicoparaexecuçãooprojetoe operaçãodoempreendimento.
  • 22.
    03. A aceitaçãodaconformaçãogeométricapropostaestácondicionadaamanutençãodas condiçõesde estabilidade,aqual deveráseracompanhadapormeiodo monitoramento geotécnicoe,emcasode constatações contrárias,a mesmadeveráserrevista,coma suspensãodadisposiçãode resíduosnaáreaobjetodesta COMDEMA: este requisitoseráverificadoapósaoperação doAterroFace Leste. 04. A Prefeiturade CampinasdeverácomunicaràCETESB, de imediato,qualquer desconformidade ambiental identificadanosmonitoramentose/ounasinspeçõesvisuaisno maciço,indicandoasações adotadaspara reversãoda situação,sobpenade caracterizar situaçãoagravante para definiçãodasaçõesadministrativasa seremadotadaspelaCETESB. COMDEMA: este requisitoseráverificadoapósaoperação doAterroFace Leste. 05. Destaca-se que poderãoserefetuadasexigênciastécnicasadicionais,emfunção dos resultadosdo monitoramentoambiental. COMDEMA: este requisitoseráverificadoapósaoperaçãodo AterroFace Leste. 06. A presente Licençaestásendoconcedidaconsiderandoavidaútil estimadade 17,2 meses de operação do aterro,ocasiãoemque poderáser reavaliadaavidaútil eventualmente remanescente,considerandoa conformaçãogeométricaprevistaemprojeto.Casoseja atingidaessaconformaçãoantesdoprazo previsto,a Prefeituradeveráencerraradisposição de resíduosno local. COMDEMA: este requisitoseráverificadoapósaoperação doAterroFace Leste. 07. Tendoemvistaque o projetopropostoproporcionaráumasobrevidaútil limitada,no prazo de seis mesesaPrefeituradeveráapresentarumapropostaalternativaparao adequado gerenciamentoe disposição final dosresíduossólidosurbanosgeradosnomunicípio, incluindoaimplantaçãodaunidade de transbordo objetodaLicençade Instalação05003723. COMDEMA: verificaroprojetoque seráproposto(ATÉ13/OUT/2016) como alternativaao uso deste aterroque contemple oseuinícioantesde 17,2 meses – fimda sobrevidaútil – DEZ/2017. 08. Quandoda ocorrênciade desconformidades,de imediato,aAgênciaAmbiental daCETESB deveráser formalmente comunicada,comindicaçãodadesconformidade,dascausasdo
  • 23.
    episódioe asmedidasde adequaçãoadotadaspelosresponsáveispeloempreendimentopara correção da irregularidade. COMDEMA: este requisitoseráverificadoapósaoperação doAterroFace Leste. 09. O não atendimentodasexigênciase prazosestabelecidosnasObservações/Exigências destaLicença poderáacarretar o cancelamentode seusefeitose/ounaaplicaçãodassanções legais. COMDEMA: este requisitoseráverificadoapósaoperaçãodo AterroFace Leste.