Mecânico de Usinagem
AutoCAD 2D
CAI - Mecânico de Usinagem
AutoCAD 2D
 SENAI-SP, 2007
Trabalho elaborado pela Escola SENAI “Almirante Tamandaré”, CFP-1.20.
Departamento Regional do SENAI-SP.
1ª edição, 2007
Coordenação Geral Murilo Strazzer
Equipe Responsável
Coordenação Celso Guimarães Pereira
Estruturação Ilo da Silva Moreira
Elaboração Sidnei Josué Faccio
Revisão Francisco Aparecido Dias Sanches
SENAI - Serviço Nacional de Aprendizagem Industrial
Departamento Regional de São Paulo
Escola SENAI “Almirante Tamandaré”
Av. Pereira Barreto, 456
CEP 09751-000 São Bernardo do Campo - SP
Telefone: (011) 4122-5877
FAX: (011) 4122-5877 (ramal 230)
E-mail: senaitamandare@sp.senai.br
cód. 120.3.024
Sumário
Página 4 Inicialização
- a tela do AutoCAD
- inserção das barras de ferramentas
- menu FILE
- funcionamento do MOUSE
8 Sistemas de coordenadas
- coordenadas absolutas
- coordenadas relativas (incremental)
9 Comandos básicos
18 Ferramentas de precisão
21 Dimensionamento
63 Principais comandos do AutoCAD
74 Definição e inserção de blocos
76 Comando de plotagem
77 Tabela de teclas de atalho
78 Referências bibliográficas
AutoCAD 2D
4ESCOLA SENAI “ALMIRANTE TAMANDARÉ”
INICIALIZAÇÃO
Podemos abrir o AutoCAD das seguintes maneiras:
• Utilizando o ícone na área de trabalho ou;
• Iniciar > Todos os Programas > Autodesk > Mechanical Desktop 2004 DX > AutoCAD 2004
A tela do AutoCAD
1. Barra de Título: contém o nome do programa e o nome do arquivo;
2. Menus Suspensos: os menus suspensos servem para acessar vários comandos;
1 2
3
3
3
4
AutoCAD 2D
5ESCOLA SENAI “ALMIRANTE TAMANDARÉ”
3. Barras de Ferramentas (toolbars): são barras que contém ícones que permitem acessar
comandos do AutoCAD. Podendo ser ligadas, desligadas, movidas em diversas partes da
tela, clicando no canto da barra com o botão esquerdo do mouse e depois arrastá-las até o
ponto desejado.
4. Linha de Comando: é a região onde o operador do AutoCAD digita o comando que irá
utilizar. É muito importante que o operador esteja sempre atento às informações contidas na
linha, pois através dela que se obtém e se fornecem informações ao programa.
Inserção das barras de ferramentas
Para ligar e desligar as barras de ferramentas (toolbars), devemos acessar: VIEW > Toolbars.
AutoCAD 2D
6ESCOLA SENAI “ALMIRANTE TAMANDARÉ”
Ao acessarmos este comando, aparecerá o quadro Customize e a guia Toolbars:
E para inserirmos as barras desejadas, basta ativar o quadrado localizado à frente do nome da
barra em que você deseja inserir em sua tela de desenho, é bom lembrar que quanto mais barras
tiverem na área de trabalho menor será o espaço para desenhar.
AutoCAD 2D
7ESCOLA SENAI “ALMIRANTE TAMANDARÉ”
Menu FILE (arquivo)
1. NEW: inicia um novo arquivo;
2. OPEN: abre um arquivo existente;
3. SAVE: salva as alterações dentro de um arquivo;
4. SAVE AS: salva o arquivo aberto com outro nome.
Funcionamento do MOUSE
• Botão da Esquerda: aciona uma função que está apontada pelo cursor do AutoCAD. Pode
ser um botão, um item de menu ou seleção de um objeto na área gráfica.
• Botão do Meio: aciona o zoom;
1
2
3
4
AutoCAD 2D
8ESCOLA SENAI “ALMIRANTE TAMANDARÉ”
• Botão da Direita: possui funções definidas pelo usuário. Pode operar com a mesma função
da tecla enter (ou RETURN) do teclado. Toda vez que uma fase de um comando for
completada utiliza-se este botão, também é utilizado para repetir o último comando dado,
assim como a tecla Enter ou Spacebar (barra de espaço) do teclado. Este botão em
conjunto com a tecla SHIFT acionamos também os objetos de precisão.
SISTEMAS DE COORDENADAS
O AutoCAD está baseado em um sistema cartesiano de coordenadas, sobre o qual serão
posicionados os pontos que definirão as entidades do desenho. Está baseado nos três eixos
cartesiano: X, Y e Z, com a origem referenciada em 0,0,0. Assim cada objeto do AutoCAD tem pelo
menos duas coordenadas para identificar sua posição.
Observação
No AutoCAD utiliza-se casas decimais separadas por ponto e coordenadas separadas por
vírgulas.
Coordenadas absolutas
Estas coordenadas podem ser utilizadas para se informar ao programa a exata localização do
ponto que desejamos marcar.
• coordenada absoluta retangular
Em desenhos bidimensionais são indicados apenas o par coordenado X,Y.
Exemplo: 7,4 ou 7.5,4.2
• coordenada absoluta polar
São indicadas através de distância e ângulo que o segmento forma com a horizontal, sendo
indicado como: D<A
Exemplo: 12<45 ou 12.5<30
AutoCAD 2D
9ESCOLA SENAI “ALMIRANTE TAMANDARÉ”
Coordenadas relativas (incremental)
São coordenadas que trabalham em referência a um ponto (ou coordenada) já existente.
• coordenada relativa retangular
Em desenhos bidimensionais indicamos distância (delta) em X,Y, sendo: @dX,dY
Exemplo: @3,4 ou @3.5,4.5
• coordenada relativa polar
São indicadas como @D<A
Exemplo: @12<45 ou @12.5<30
COMANDOS BÁSICOS
Comando LINE
Cria segmentos de reta, pode ser ativado através do MENU > DRAW > LINE ou utilizando a
barra toolbar “DRAW” clicando no botão ou , ainda, digitando “L” + <enter>.
AutoCAD 2D
10ESCOLA SENAI “ALMIRANTE TAMANDARÉ”
Exercícios
1) Desenhar utilizando coordenada absoluta relativa:
Comando Desenho Final
LINE
0, 0
100, 100
300, 100
300, 125
280, 125
280, 170
250, 170
250, 145
230, 145
230, 170
180, 170
180, 200
150, 200
150, 125
100, 125
100, 100
AutoCAD 2D
11ESCOLA SENAI “ALMIRANTE TAMANDARÉ”
2) Desenhar utilizando coordenada relativa retangular:
Comando Desenho Final
LINE
0, 0
@ 100, 100
@ 50, 0
@ 0, -35
@ 40, 0
@ 0, -12
@ 35, 0
@ 0, 48
@ 51, 0
@ 0, 32
@ 12, 0
@ 0, 42
@ -20, 0
@ 0, 15
@ -30, 0
@ 0, -15
@ -50, 0
@ 0, -18
@ -45, 0
@ 0, -20
@ -43, 0
@ 0, -37
AutoCAD 2D
12ESCOLA SENAI “ALMIRANTE TAMANDARÉ”
3) Desenhar utilizando coordenada relativa polar:
Comando Desenho Final
LINE
0, 0
100, 100
@ 50, 0
@ -15 < 60
@ 50, 0
@ 15 < 120
@ 50, 0
@ 0, 20
@ -25, 0
@ 17 < 60
@ -102.3, 0
@ -17 < 120
@ -25, 0
@ 0, -20
Comando ERASE
Apaga entidades do desenho. Pode ser acessado através do MENU > MODIFY > ERASE ou
da barra toolbar “MODIFY” clicando no botão ou ainda digitando “E” + <enter>.
Procedimento para o comando ERASE:
Command: Digitar “E” + <Enter>
Select Objects: Clicar sobre as linhas que deseja apagar + <Enter>
AutoCAD 2D
13ESCOLA SENAI “ALMIRANTE TAMANDARÉ”
Comando UNDO
Desfaz as últimas operações realizadas, uma de cada vez. Pode ser acessado através do
MENU > EDIT ou da barra toolbar “STANDARD” clicando no botão ou ainda digitando “U” +
<Enter>.
Comando REDO
Desfaz o UNDO, porém apenas uma vez. Pode ser acessado através do MENU > EDIT ou da
barra tollbar “STANDARD” clicando no botão ou ainda digitando “REDO” + <Enter>.
Comando ZOOM
Este comando permite aproximar ou afastar a imagem de determinadas regiões do desenho.
As opções de comando zoom podem ser acessadas através do MENU > VIEW > ZOOM + a opção
desejada ou digitando “Z” + <Enter> + a opção desejada ou ainda clicando em um dos botões da
barra toolbar, como mostra a figura abaixo:
• Pan Realtime: permite a movimentação da tela gráfica, em qualquer sentido, sem alterar
o tamanho da tela de visualização;
• Zoom Realtime: afasta ou aproxima a tela em tempo real, permitindo a visualização do que
está acontecendo;
• Zoom Window: permite a seleção através de uma janela;
• Zoom Previous: retrocede até 10 telas anteriores.
Pan
Realtime Zoom
Realtime
Zoom
Window
Zoom
Previous
AutoCAD 2D
14ESCOLA SENAI “ALMIRANTE TAMANDARÉ”
Exercícios
4) Construir os desenhos abaixo e salvá-los em disquete, utilizando como nome de arquivo o
número do desenho correspondente.
4.1) EXE01
4.2) EXE02
AutoCAD 2D
15ESCOLA SENAI “ALMIRANTE TAMANDARÉ”
4.3) EXE03
4.4) EXE04
Comando LAYER
Este comando regula os níveis de trabalho, que podem ser entendidos como camadas
independentes de desenho, camadas estas que sobrepõem como folhas transparentes.
O quadro LAYER & LINETYPE PROPERTIES pode ser carregado através do MENU >
FORMAT > LAYER ou através da barra toolbar "PROPERTIES" clicando no botão ou ainda
digitando “LA”+ <Enter>.
AutoCAD 2D
16ESCOLA SENAI “ALMIRANTE TAMANDARÉ”
Opções do quadro LAYER PROPERTIES MANAGER:
• NEW: Cria novos layers;
• CURRENT: torna a camada corrente, ou seja, tudo o que for desenhado a partir deste
momento estará posicionado dentro do LAYER selecionado;
• SHOW DETAILS: abre uma área na caixa de diálogo que permite ver separadamente
informações sobre os layers, como por exemplo (name,color, linetype, lineweight);
• NAME: permite renomear o layer;
• COLOR: permite trocar a cor do layer;
• LINETYPE: permite trocar o tipo de linha do layer;
AutoCAD 2D
17ESCOLA SENAI “ALMIRANTE TAMANDARÉ”
• LINEWEIGHT: permite alterar a espessura das linhas;
• DELETE: elimina o layer selecionado, para isso não pode haver nenhuma entidade
desenhada dentro do layer;
• OFF (lâmpada apagada): desliga o layer, tornando suas entidades invisíveis na tela, porém,
aparecendo na impressão;
• FREEZE (sol azulado): congela o layer, tornando suas entidades na tela e não aparecendo
na impressão;
• FREEZE (sol amarelo): descongela o layer, tornando suas entidades novamente visíveis;
• LOCK (cadeado trancado): trava o layer, impossibilitando que suas entidades sejam
editadas;
• UNLOCK (cadeado aberto): destrava o layer, permitindo a edição de suas entidades.
Quando clicamos em cima do nome da linha (linetype) abrirá um novo quadro SELECT
LINETYPE onde devemos clicar no botão LOAD.
• LOAD: abre o quadro “LOAD OR RELOAD LINETYPES”, utilizado para se selecionar os
tipos de linha com os quais se deseja trabalhar.
AutoCAD 2D
18ESCOLA SENAI “ALMIRANTE TAMANDARÉ”
Para todos ficarem com as mesmas cores no layers que irão criar, utilizaremos a tabela a
seguir:
LAYER COR TIPO DE LINHA ESPESSURA
Contorno WHITE CONTINUOS 0.5
Cotas GREEN CONTINUOS 0.2
Hachuras YELLOW CONTINUOS 0.2
Quadro WHITE CONTINUOS 0.5
Linha De Centro RED CENTER 0.2
Detalhes RED DIVIDE 0.2
Tracejadas YELLOW HIDDEN 0.2
Fina YELLOW CONTINUOS 0.2
FERRAMENTAS DE PRECISÃO
Ao trabalhar com AutoCAD, deve-se sempre ter a certeza de que o ponto capturado esteja
correto, como por exemplo um final de linha ou um centro de um círculo, Para facilitar a execução
destas tarefas existem os modos de precisão que podem ser ativados pelo MENU > TOOLS >
DRAFTING SETTINGS > GUIA OBJECT SNAP sendo permitido a seleção do objeto de precisão a
partir do momento que selecionar a caixa correspondente.
AutoCAD 2D
19ESCOLA SENAI “ALMIRANTE TAMANDARÉ”
A opção liga/desliga pode ser ativado também pela tecla F3 ou ainda clicando no botão
da barra de status.
Durante a construção do desenho podemos apertar a tecla SHIFT + botão direito do mouse
que aparecerá a opção dos objetos de precisão.
• Localiza o ponto extremo de uma entidade (line, arc, pline,
etc);
• Localiza o ponto médio de uma linha ou arco;
• Localiza o ponto de cruzamento entre duas entidades;
• Localiza o ponto de cruzamento virtual entre duas entidades;
• Localiza o centro de um arco ou círculo;
• Localiza um dos quatro quadrantes de um círculo ou arco, 0º,
90º, 180º ou 270º;
• Localiza o ponto de tangenciamento de uma entidade em
relação a um círculo ou arco;
• Localiza pontos perpendiculares entre duas entidades;
• Cria um vetor paralelo imaginário, a partir de uma linha
existente;
• Localiza pontos (definidos pela entidade “Point”);
• Localiza o ponto de inserção de um bloco ou texto;
• Localiza o ponto mais próximo do posicionamento do cursor;
• Desabilita um modo de precisão que esteja ativado.
AutoCAD 2D
20ESCOLA SENAI “ALMIRANTE TAMANDARÉ”
Exercícios
5) Construir os desenhos abaixo e salvá-los em disquete, utilizando como nome de arquivo o
número do desenho correspondente.
5.1) EXE05
5.2) EXE06
AutoCAD 2D
21ESCOLA SENAI “ALMIRANTE TAMANDARÉ”
DIMENSIONAMENTO
Para iniciarmos o dimensionamento (cotagem) de um desenho deve-se primeiro proceder a
regulagem e criação de estilos de dimensionamento. Para isto devemos acessar o menu
DIMENSION>STYLE.
Após a regulagem e criação de estilos, deve-se carregar a toolbar “DIMENSION” para executar
as cotas:
Linear Dimension
Utilizado para criar cotas lineares, através da movimentação do mouse e a ajuda dos
modos de precisão.
AutoCAD 2D
22ESCOLA SENAI “ALMIRANTE TAMANDARÉ”
Aligned Dimension
Utilizado para criar cotas alinhadas paralelamente com a inclinação da linha do desenho.
Radius Dimension
Utilizado para criar cotas de raio, podendo ser de um arco ou de um círculo.
Diameter Dimension
Utilizado para criar cotas de diâmetro, podendo ser de um arco ou de um círculo.
Angular Dimension
Utilizado para dimensionamento do ângulo entre duas linhas.
Baseline Dimension
Utilizado para cotar quando temos cotas sucessivas que possuem o mesmo ponto base.
Continue Dimension
Utilizado quando temos cotas contínuas que possuem como ponto inicial o ponto final da
última cota criada.
Dimension Edit
Utilizado para edição do texto da cota.
• Home: força um texto reposicionado a voltar para seu posicionamento original;
• New: permite alterar o valor do texto da cota;
• Rotate: fornece um ângulo de inclinação para texto da cota;
• Oblique: executa um deslocamento inclinado de toda a cota.
AutoCAD 2D
23ESCOLA SENAI “ALMIRANTE TAMANDARÉ”
Dimension Text Edit
Utilizado para deslocar a cota e o texto da cota.
Style
Command: ST
Menu - Format - Text Style
escolha do estilo já definido para criar um novo estilo
fonte da letra
gravar estilo fechar a tela de estilo
deixar a altura da letra sempre em 0inclinação da letra
AutoCAD 2D
24ESCOLA SENAI “ALMIRANTE TAMANDARÉ”
Variáveis de Dimensionamento
Command: D
Menu - Dimension - Style
cria um novo estilomuda o estilo torna atual o estilo de dimensionamento escolhido
abre a caixa de diálogo Override Current Style compara 2 estilos fecha quadro de estilos
AutoCAD 2D
25ESCOLA SENAI “ALMIRANTE TAMANDARÉ”
definição de cor das linhas de chamada definição de cor da linha de cota
suprime linha de chamada da esquerda ou da direita define tipos de setas
AutoCAD 2D
26ESCOLA SENAI “ALMIRANTE TAMANDARÉ”
abre variáveis
de texto
escolher o estilo
do texto
criar um novo
estilo de letra cor do texto
abre quadro
de tolerância
texto acima, centrado ou
abaixo da linha de cota
texto centrado, alinhado
a esquerda ou a direita
texto sempre paralelo
com a linha de cota
distância da base do
texto até a linha de cota
AutoCAD 2D
27ESCOLA SENAI “ALMIRANTE TAMANDARÉ”
formato das unidades
abre quadro de
unidades primárias
número de casas
decimais
separação decimal com
vírgula ou ponto
omite zeros a direita fator de escala para dimensionamentoomite zeros a esquerda
AutoCAD 2D
28ESCOLA SENAI “ALMIRANTE TAMANDARÉ”
Exercícios
6) Construir os desenhos abaixo e salvá-los em disquete, utilizando como nome de arquivo o
número do desenho correspondente.
6.1) EXE07
6.2) EXE08
AutoCAD 2D
29ESCOLA SENAI “ALMIRANTE TAMANDARÉ”
6.3) EXE09
6.4) EXE10
Comando CIRCLE (círculo)
Constrói círculos através de diferentes maneiras. Pode ser acessado do MENU > DRAW >
CIRCLE, ou utilizando a barra toolbar “DRAW” clicando no botão ou , ainda, digitando “C” +
<enter>.
Opções para serem utilizadas dentro do comando CIRCLE:
• Center, Radius: Cria um círculo que passa pela intersecção de duas retas. Este centro
pode ser determinado através de objeto de precisão INTERSECTION, e
você digitará a medida do raio;
AutoCAD 2D
30ESCOLA SENAI “ALMIRANTE TAMANDARÉ”
• Center, Diameter: Cria um círculo que passa pela intersecção de duas retas. Este centro
pode ser determinado através de objeto de precisão INTERSECTION, e
você digitará a medida do diâmetro;
• 2 Points: Cria um círculo que passa através de dois pontos determinados;
• 3 Points: Cria um círculo que passa através de três pontos determinados;
• TTR: Cria um círculo tangente a duas entidades, que podem ser linhas,
círculos, arcos ou duas entidades diferentes; e você digitará a medida do
raio;
• TTT: Cria um círculo tangente a três entidades, que podem ser linhas,
círculos, arcos ou três entidades diferentes, lembre-se que o raio é
criado automaticamente, pois o raio tangência as três entidades.
Comando REGEN (regenerar)
Regenera o desenho, corrigindo distorções causadas pela utilização do zoom. Pode ser
acessado pelo MENU > VIEW > REGEN ou digitando “RE” + <Enter>.
Comando OFFSET (paralela)
Constrói cópias paralelas a entidades selecionadas. Pode ser acessado do MENU > MODIFY,
ou utilizando a barra toolbar “MODIFY” clicando no botão ou , ainda, digitando “O” + <Enter>.
Procedimentos:
Command: Digite “O” + <Enter>
Offset distance or Through
<1.0000>:
Digite a medida desejada ou aceite a que está dentro dos parênteses.
Select object to offset: Selecione a entidade desejada a que deseja fazer a linha paralela.
Side to offset?: Clique no lado desejado para criação da cópia
Side to offset?: Realize mais cópias ou <Enter> para sair do comando.
AutoCAD 2D
31ESCOLA SENAI “ALMIRANTE TAMANDARÉ”
Exercícios
7) Construir os desenhos abaixo e salvá-los em disquete, utilizando como nome de arquivo o
número do desenho correspondente.
7.1) EXE11
7.2) EXE12
AutoCAD 2D
32ESCOLA SENAI “ALMIRANTE TAMANDARÉ”
Comando MIRROR (espelho)
Cria cópias espelhadas de entidades (cópias invertidas). Pode ser acessado através do MENU
> MODIFY > ou utilizando a barra toolbar “MODIFY” clicando no botão ou , ainda, digitando
“MI” + <Enter>.
Procedimentos:
Command: Digite “MI” + <Enter>
Select objects: Selecione as entidades desejadas que deseja espelhar +
<Enter>
First point of mirror line: Selecione o 1º ponto, utilize os modos de precisão.
First point of mirror line: Second point Selecione o 2º ponto, utilize os modos de precisão.
Delete old objects? <N> <Enter> para não deletar as entidades originais ou Y +
<Enter> para apagar as entidades originais.
Comando TRIM (corte)
Corta trechos de entidades, necessita de uma ou duas entidades que limitarão o trecho a ser
cortado. Pode ser acessado do MENU > MODIFY > TRIM ou utilizando a barra toolbar “MODIFY”
clicando no botão ou , ainda, digitando “TR” + <enter>.
Procedimentos:
Command: Digite “TR” + <Enter>
Select objects: Selecione parte do desenho ou todo o desenho.
Select objects: Tecle <Enter>
Select object to trim>/Project/Edge/Undo: Clique no trecho a ser cortado
AutoCAD 2D
33ESCOLA SENAI “ALMIRANTE TAMANDARÉ”
Exercícios
8) Construir os desenhos abaixo e salvá-los em disquete, utilizando como nome de arquivo o
número do desenho correspondente.
8.1) EXE13
8.2) EXE14
AutoCAD 2D
34ESCOLA SENAI “ALMIRANTE TAMANDARÉ”
8.3) EXE15
Comando FILLET (arredondar)
Constrói um canto com raio pré-definido entre duas entidades. Pode ser acessado através do
MENU > MODIFY > FILLET ou utilizando a barra toolbar “MODIFY” clicando no botão
ou, ainda, digitando “F” + <Enter>.
Procedimentos:
Command: Digite “F” + <Enter>
(TRIM mode) current fillet radius = 10.0000
Polyline/Radius/Trim/<Select first object>
Digite “R” para modificar a medida do raio que no
caso está 10, ou clique na primeira entidade.(neste
caso arredondará com raio 10).
Select second object: Clique na segunda entidade.
AutoCAD 2D
35ESCOLA SENAI “ALMIRANTE TAMANDARÉ”
Exercícios
9) Construir os desenhos abaixo e salvá-los em disquete, utilizando como nome de arquivo o
número do desenho correspondente.
9.1) EXE16
9.2) EXE17
AutoCAD 2D
36ESCOLA SENAI “ALMIRANTE TAMANDARÉ”
Comando CHAMFER (chanfrar)
Constrói um canto com chanfro pré-definido entre duas entidades. Pode ser acessado através
do MENU > MODIFY > CHAMFER ou utilizando a barra toolbar “MODIFY” clicando no botão
ou, ainda, digitando “CHA” + <Enter>.
Procedimentos:
Command: Digite “CHA” + <Enter>
(TRIM mode) current chamfer Dist1= 10.0000,
Dist2 =10,0000
Polyline/Distance/Angle/Trim/Method/<Select
first object>
Digite “D” para modificar a medida do chanfro que no
caso está 10 para a primeira e 10 para a segunda,
ou clique na primeira entidade.
Select second object: Clique na segunda entidade, chanfrando o desenho.
Exercício
10) Construir o desenho abaixo e salvá-lo em disquete, utilizando como nome de arquivo o
número do desenho correspondente.
EXE18
AutoCAD 2D
37ESCOLA SENAI “ALMIRANTE TAMANDARÉ”
Comando POLYGON (polígono)
Constrói um polígono inscrito ou circunscrito em relação a um círculo. Pode ser acessado
através do MENU > DRAW > POLYGON ou utilizando a barra toolbar “DRAW” clicando no botão
ou , ainda, digitando “POL” + <Enter>.
Procedimentos:
Command: Digite “ POL” + <Enter>
Number of sides <4> Digite o número de lados do polígono + <Enter> ou dê
<Enter> se o polígono que deseja é um quadrado.
Edge/<Center of polygon> Determine o centro do polígono para isso utilize os modos de
precisão.
Inscribed in circle/Circumscribed
about circle (I/C) <I>
Escolha “I” se a medida do polígono for entre as quinas ou
“C” se a medida do polígono for entre as faces.
Radius of circle: Digite o valor do raio do círculo imaginário + <Enter>.
Exercícios
11) Construir os desenhos abaixo e salvá-los em disquete, utilizando como nome de arquivo o
número do desenho correspondente.
11.1) EXE19
AutoCAD 2D
38ESCOLA SENAI “ALMIRANTE TAMANDARÉ”
11.2) EXE20
Comando MOVE (mover)
Este comando move entidades de um ponto a outro, alterando as coordenadas de origem.
Pode ser acessado através do MENU > MODIFY > MOVE ou utilizando a barra toolbar “MODIFY”
digitando “M” + <Enter> ou , ainda, clicando no botão
Procedimentos:
Command: Digite “M” + <Enter>
Select objects Selecione as entidades que deseja mover + <Enter>
Base point or displacement: Determine o ponto base por onde o objeto será arrastado,
utilize para isso os modos de precisão.
Second point of displacement: Determine o ponto onde o objeto será posicionado, utilize os
modos de precisão.
AutoCAD 2D
39ESCOLA SENAI “ALMIRANTE TAMANDARÉ”
Exercícios
12) Construir os desenhos abaixo e salvá-los em disquete, utilizando como nome de arquivo o
número do desenho correspondente.
12.1) EXE21
12.2) EXE22
AutoCAD 2D
40ESCOLA SENAI “ALMIRANTE TAMANDARÉ”
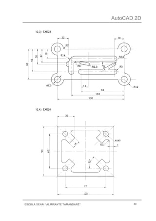
12.3) EXE23
12.4) EXE24
AutoCAD 2D
41ESCOLA SENAI “ALMIRANTE TAMANDARÉ”
Comando ARRAY (cópias múltiplas)
Array Polar
Este comando executa cópias múltiplas de entidades, obedecendo um padrão determinado,
através de um espaçamento angular. Pode ser acessado através do MENU > MODIFY > ARRAY ou
utilizando a barra toolbar “MODIFY” clicando no botão ou , ainda, digitando “AR” + <Enter>.
Procedimentos:
Command: Digite “AR” + <Enter>
Select objects: Selecione as entidades desejadas + <Enter>
Rectangular or Polar array (<R>/P): Digite “P” + <Enter>
Base/<Specify center point of
array>:
Indique o centro de rotação das cópias, utilize para isso os
modos de precisão.
Number of items: Digite o número total de itens + <Enter> (original + cópias)
Angle to fill (+=ccw,-=cw)<360>: Digite o ângulo total a ser preenchido + <Enter>
Rotate objects as they are
copied?<Y>
Digite “Y” =<Enter> para rotacionar as cópias de acordo
com o ângulo de inclinação, ou digite “N” + <Enter> para
não rotacionar as cópias.
Array Retangular
Este comando executa cópias múltiplas de entidades, obedecendo um espaçamento em forma
de linhas e colunas. Pode ser acessado através do MENU > MODIFY > ARRAY ou utilizando a barra
toolbar “MODIFY” clicando no botão ou , ainda, digitando “AR” + <Enter>.
Procedimentos:
Command: Digite “AR” + <Enter>
Select objects: Selecione as entidades desejadas + <Enter>
Rectangular or Polar array (R/<P>): Digite “R” +<Enter>
Number of rows (---) <1>: Digite o número de linhas + <Enter>
Number of columns (III) <1>: Digite o número de colunas + <Enter>
Unit cell or distance between rows (---): Digite a distância entre linhas + <Enter> (esta distância
deve ser em relação as linhas de centro)
AutoCAD 2D
42ESCOLA SENAI “ALMIRANTE TAMANDARÉ”
Exercícios
13) Construir os desenhos abaixo e salvá-los em disquete, utilizando como nome de arquivo o
número do desenho correspondente.
13.1) EXE25
13.2) EXE26
AutoCAD 2D
43ESCOLA SENAI “ALMIRANTE TAMANDARÉ”
13.3) EXE27
AutoCAD 2D
44ESCOLA SENAI “ALMIRANTE TAMANDARÉ”
Comando Hatch (hachuras)
Command: H
Menu - Draw - Hatch
tipo de padrão a
ser utilizado
nome da hachura
escolhida
visualiza o
padrão escolhido
mostra uma pré-visualização da hachura altera o ângulo da hachura
AutoCAD 2D
45ESCOLA SENAI “ALMIRANTE TAMANDARÉ”
para selecionar a área
interna da hachura
seleção manual das
entidades a serem
aproveita as propriedades
de uma hachura já
utilizada
hachuras com vários
elementos (explodida)
hachuras de
um elemento
AutoCAD 2D
46ESCOLA SENAI “ALMIRANTE TAMANDARÉ”
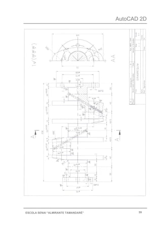
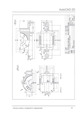
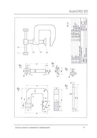
Exercícios
AutoCAD 2D
47ESCOLA SENAI “ALMIRANTE TAMANDARÉ”
AutoCAD 2D
48ESCOLA SENAI “ALMIRANTE TAMANDARÉ”
AutoCAD 2D
49ESCOLA SENAI “ALMIRANTE TAMANDARÉ”
AutoCAD 2D
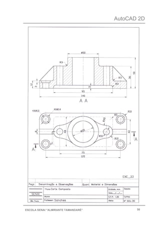
50ESCOLA SENAI “ALMIRANTE TAMANDARÉ”
AutoCAD 2D
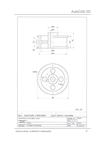
51ESCOLA SENAI “ALMIRANTE TAMANDARÉ”
AutoCAD 2D
52ESCOLA SENAI “ALMIRANTE TAMANDARÉ”
AutoCAD 2D
53ESCOLA SENAI “ALMIRANTE TAMANDARÉ”
AutoCAD 2D
54ESCOLA SENAI “ALMIRANTE TAMANDARÉ”
AutoCAD 2D
55ESCOLA SENAI “ALMIRANTE TAMANDARÉ”
AutoCAD 2D
56ESCOLA SENAI “ALMIRANTE TAMANDARÉ”
AutoCAD 2D
57ESCOLA SENAI “ALMIRANTE TAMANDARÉ”
AutoCAD 2D
58ESCOLA SENAI “ALMIRANTE TAMANDARÉ”
AutoCAD 2D
59ESCOLA SENAI “ALMIRANTE TAMANDARÉ”
AutoCAD 2D
60ESCOLA SENAI “ALMIRANTE TAMANDARÉ”
AutoCAD 2D
61ESCOLA SENAI “ALMIRANTE TAMANDARÉ”
AutoCAD 2D
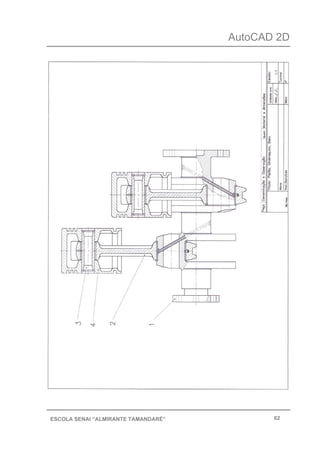
62ESCOLA SENAI “ALMIRANTE TAMANDARÉ”
AutoCAD 2D
63ESCOLA SENAI “ALMIRANTE TAMANDARÉ”
PRINCIPAIS COMANDOS DO AUTOCAD
ARC Desenhos de arcos, (Menu - Draw - Arc). É necessário escolher o tipo
de arco.
AREA Calcula área de figuras fechadas.
ARRAY Desenha cópias múltiplas.
ATTEDF Definição de atributos.
ATTEDIT Edita atributos, troca os valores depois de já serem inseridos.
Observação: Os comandos ATTDEF e ATTEDIT podem ser acessados pelo
teclado ou no menu superior, como mostra a figura acima.
BHATCH Quadro de diálogo para hachuras. Preenche figuras fechadas com
hachuras.
AutoCAD 2D
64ESCOLA SENAI “ALMIRANTE TAMANDARÉ”
BLOCK Criação de blocos de desenhos repetitivos, desenhando-os apenas
uma vez..
BREAK Apaga parte de uma linha ou objeto. É utilizado para evitar o Trim.
CHAMFER Chanfra duas linhas não paralelas, polígonos, retângulos ou
polilinhas.
CHANGE Modifica propriedades, cor, layers, tipo de linha, tickness, variáveis ou
mesmo partes geométricas de elementos já desenhados
anteriormente e que necessitem ser modificados. Todos os dados de
uma figura selecionada estão no quadro de diálogo.
CIRCLE Desenhos de círculos, 2p (2 pontos), 3p (3 pontos), ttr (tan, tan, raio)
e centro raio/diâmetro.
COPY Copia um objeto ou conjunto, dependendo da seleção.
CLOSE É utilizado para fechar um desenho (Menu - File - Close). Sem o uso
deste comando, pode-se mostrar na tela vários desenhos ao mesmo
tempo.
DDEDIT Alterar o conteúdo de um texto já escrito.
DDVPOINT Visão em 3D como vista isométrica. Depois que um objeto é criado
em 3D, pode-se visualizá-lo de onde desejar.
AutoCAD 2D
65ESCOLA SENAI “ALMIRANTE TAMANDARÉ”
DDIM Abre quadro de diálogo do estilo de cotagem (Menu - Dimension -
Style).
DIM Variável de dimensionamento.
• dimTXT Altura da letra.
• dimTAD on Texto sobre linha de cotagem.
• dimTOH off Texto fora das linhas de cota sempre na horizontal.
• dimTSZ Tamanho do traço.
• dimASZ Tamanho da seta.
• dimEXO Medida que a linha de chamada fica distante do objeto.
• dimEXE Valor do tamanho da linha após o cruzamento das linhas de
chamada.
• dimSCALE Escala de dimensionamento.
• dimLFAC Múltiplo de medidas.
Observação: Todas as variáveis podem ser acessadas pelo quadro de diálogo
DDIM.
DIST Calcula distâncias entre dois pontos, usado para conferir medidas.
AutoCAD 2D
66ESCOLA SENAI “ALMIRANTE TAMANDARÉ”
DIVIDE Divide um objeto em partes iguais com pontos sobre o objeto.
DOUGHNUT Círculo com espessura “rosquinha”, pede diâmetro interno e externo.
DTEXT Usado para escrever.
AutoCAD 2D
67ESCOLA SENAI “ALMIRANTE TAMANDARÉ”
ELEV Desenho a qualquer elevação do eixo z, utilizado para 3D.
ELLIPSE Gera uma elipse axis são considerados como uma espécie de raios.
ERASE Apaga um ou mais objetos, dependendo do tipo de seleção,
selecionando-se com o mouse ou abrindo-se janelas.
EXPLODE Reduz um bloco, polilinha, polígonos ou cotas a formas mais
primitivas como linhas e textos.
EXTEND Estica um objeto de modo que ele atinja outro (Clicar primeiro até
onde e depois no objeto).
FILLET Arredondamento de cantos. É pedido o raio antes de selecionar os
objetos. Pode-se juntar duas linhas não paralelas com o raio 0.
GRID Define o espaçamento da grade, pontinhos na tela. O espaçamento é
definido pelo usuário em x e y. O tamanho geral do grid é definido
pelo limite do desenho.
AutoCAD 2D
68ESCOLA SENAI “ALMIRANTE TAMANDARÉ”
HIDE Esconde arestas não visíveis, serve apenas para visualização no 3D.
ID Exibe valores de coordenadas x,y,z em um determinado ponto.
INSERT Insere blocos de desenhos. Abre-se um quadro de diálogo onde são
pedidos o nome do bloco a ser inserido, o ponto de inserção, rotação
e o fator de escala.
LAYER Criação de camadas de desenho. Abre-se um quadro de diálogo para
definição de nome de camadas, tipo de linhas, espessuras,
congelamentos, não de impressão, etc.
LENGTHEN Modifica o comprimento de entidades como linhas e arcos com as
opções:
• Delta: Valor de quanto se quer aumentar.
• Percent: Valor da porcentagem a ser inserida a mais no comprimento.
• Dynamic: Aumenta ou diminui com a visualização inclusa.
LIMITS Determina os limites de um desenho. É pedido o canto inferior
esquerdo (0, 0) e o canto superior direito que sofrerá alteração.
AutoCAD 2D
69ESCOLA SENAI “ALMIRANTE TAMANDARÉ”
LINE Geração de linhas.
• Coordenadas absolutas (X, Y)
• Coordenadas relativas polar (@C, <A)
• Coordenadas relativas retangulares (@X, Y)
Observação: Com o ORTHO (ortogonal) ligado.
LINETYPE Mostra quadro de diálogo de tipos de linha que podem ser
carregados.
LIST Exibe a maioria das propriedades de um objeto já desenhado, como
layer, geometria, cores, estilos, etc.
LTSCALE Controla a escala dos tipos de linhas, aumenta ou diminui o
espaçamento de linhas não contínuas.
MEASURE Divide um objeto em partes de comprimento definido com pontos.
AutoCAD 2D
70ESCOLA SENAI “ALMIRANTE TAMANDARÉ”
MIRROR Faz uma cópia em imagem espelhada. É necessário saber a
localização geométrica da linha de espelho.
MOVE Move um ou vários objetos.
NEW Início de um desenho novo.
OFFSET Cria um objeto paralelo. É usado em linhas, retângulos, círculos e
polilinhas. Pede-se primeiro a distância e em seguida o lado (side) do
paralelo.
OPEN Abre um desenho existente (Menu - File - Open).
OPTIONS Configuração do AutoCAD, tais como cores de tela, plotters e
impressoras a serem utilizados, tamanho de cursor e setagem de
periféricos. Pode ser acessado pelo menu Tools - Options.
ORTHO Ativa ou desativa o modo ortogonal (tecla F8). Usado para desenhar
linhas com ângulos de 0, 90, 180 e 270°.
OSNAP Seleção de pontos geométricos específicos em um objeto. Opções:
• CEN centro de círculos ou arcos.
• END extremidade de objetos.
• INT intersecção de objetos.
• MID ponto do meio de linhas ou arcos.
• NEA próximo ao cursor.
• NODE seleciona um ponto.
• PER perpendicular a uma linha.
AutoCAD 2D
71ESCOLA SENAI “ALMIRANTE TAMANDARÉ”
• QUA quadrante de um arco ou círculo.
• PAR paralela a uma linha.
• APPINT intersecção aparente de dois objetos, usado em 3D.
PAN Desloca a janela ativa.
PEDIT Edita polilinhas, transformando linhas já feitas em polilinhas.
PFACE Constrói um plano com mais de quatro lados.
PLAN Exibe uma visão perpendicular ao UCS corrente, deixando o objeto
em planta 3D.
PLINE Cria linhas com propriedades, como espessuras e curvaturas.
PLOT Abre um quadro de diálogo para o envio do desenho para impressora
ou plotter. É necessário saber a escala de plotagem e a escala do
desenho. Neste comando é criado um arquivo .PLT para uso de um
plotter externo.
POLYGON Cria polígonos, figuras com lados iguais, com opções inscrito,
circunscrito e pelo lado (Edge).
POINT Cria um ponto. Para definir o tipo de ponto usar ddptype.
REDRAW "R" Redesenha o desenho, não alterando nada o seu conteúdo.
REGEN Regenera a tela, apenas para uma melhor visualização. Geralmente
utilizado em partes arredondadas do desenho.
REDO Volta o último comando de Undo.
RECTANG Desenha um retângulo. É pedido o primeiro canto, geralmente com
um click, e em seguida o outro canto descrito com @x, y.
AutoCAD 2D
72ESCOLA SENAI “ALMIRANTE TAMANDARÉ”
ROTATE Rotaciona uma figura ou parte de um desenho em torno de um ponto
selecionado com um click (Base Point). O sentido positivo é sempre
anti-horário.
RENDER Visualiza um desenho em 3D renderizado, com sombra.
SAVE Salva o desenho com o mesmo nome. É usado periodicamente na
elaboração do desenho.
SAVE AS Dá nome ao desenho que está na tela no momento. Pode-se criar
uma cópia do mesmo desenho com outro nome.
SCALE Aumenta ou diminui partes de um desenho. Usado para detalhes.
SNAP Salto do cursor (F9 ativa/desativa). É usado em desenho de croquis,
onde as medidas são sempre múltiplas de algum número.
Geralmente usado em conjunto com o Grid.
STYLE Define o estilo da letra que irá ser utilizada. Pode-se criar vários em
um mesmo desenho.
STRETCH Estica ou encurta uma figura. É usado com "C" (Crossing) para
modificar um desenho já feito como, por exemplo, alterar o
comprimento de um eixo.
SHADE Mostra o desenho em 3D com os planos preenchidos e com as cores
definidas pelo layer.
AutoCAD 2D
73ESCOLA SENAI “ALMIRANTE TAMANDARÉ”
SUBTRACT Usado em operações boleanas em 3D, onde é usado um sólido para
perfurar o outro.
TRIM Apara parte de linhas, arcos, círculos, elipses, etc, passantes.
Primeiro os envolvidos, NQ +, e depois o que cortar. É usado para
apagar apenas uma parte do elemento.
THICKNESS Extruda linhas, transformando-as em planos. Pode ser usado através
do Change.
UNDO Volta o último comando executado.
UNION Usado em operações boleanas em 3D, onde une-se um sólido a
outro, alterando-se a massa resultante.
UNITS Define unidades no desenho referentes ao comprimento e a ângulos
de desenhos, quantas casas decimais, medidas de graus, etc.
UCS Sistema de coordenadas do usuário. Define o plano de trabalho para
desenhos em 3D.
WCS Sistema de coordenadas mundial, usado em 3D. É o sistema de
origem inicial 0 em X,Y e Z.
WBLOCK Transforma blocos em desenhos dwg, para serem usados em outros
desenhos.
ZOOM Visualização dos desenhos, opções:
• All visualiza todo o limite ou todo o desenho, o que for maior.
• Extend visualiza apenas o que está desenhado.
• Windows visualiza uma janela. Pede o primeiro e o segundo cantos a serem
clicados.
AutoCAD 2D
74ESCOLA SENAI “ALMIRANTE TAMANDARÉ”
• Previous visualiza janela anterior.
• Scale afasta ou aproxima a janela. Exemplo: 0.8 x, afasta 20%.
• Dynamic mostra janela flutuante.
• Out diminui a imagem do desenho na razão 0,5 x.
• In aumenta a imagem do desenho na razão 2 x.
DEFINIÇÃO E INSERÇÃO DE BLOCOS
Para criar um bloco
Command: B Menu - Draw - Block - Make
definir o nome do blocodefinir o ponto de base do bloco pelo mouse selecionar os objetos
AutoCAD 2D
75ESCOLA SENAI “ALMIRANTE TAMANDARÉ”
Para inserir um bloco
Command: / Menu - Insert - Block
escolher o bloco a ser inserido procurar em outro diretório
especifica parâmetro em tela
AutoCAD 2D
76ESCOLA SENAI “ALMIRANTE TAMANDARÉ”
COMANDO DE PLOTAGEM
Command: PLOT Menu - File - Plot
salva as mudanças
feitas no quadro
seleciona e adiciona
aplicação de setagens
seleciona equipamento
a ser utilizado
propriedades do equipamento:
normal, econômico, etc.
prévia de como irá
ficar o desenho
finaliza o comando
e volta ao desenho
número de cópias
da impressão
plota todos os
layouts existentes
cria um arquivo
para plotagem
cria um novo estilo
comentário sobre o drive utilizado
estilo para plotagem:
mono, color, etc.
plota apenas o layout
utilizado no momento
AutoCAD 2D
77ESCOLA SENAI “ALMIRANTE TAMANDARÉ”
TABELA DE TECLAS DE ATALHO
Teclas Comando Teclas Comando Teclas Comando Teclas Comando Teclas Comando
A Arc DED Dimedit I Insert MT Mtext S Stretch
ADC Adcenter DI Dist IAD Imageadjust MV Mview SC Scale
AA Área DIV Divide IAT Imageattach O Offset SE Dsettings
AL Align DLI Dimlinear IM Image OP Options SET Setvar
AR Array DO Donut IMP Import OS Osnap SN Snap
B Block DOR Dimordinate L Line P Pan SP Spell
BH Bhatch DOV Dimoverride LA Layer PE Pedit SPL SPline
BO Boundary DR Draworder LE Qleader PL Pline ST Style
BR Break DRA Dimradius LEN Lengthen PO Point T Mtext
C Circle DS Dimsettings LI List POL Polygon TI Tilemode
CH Properties DST Dimstyle LO Layout PR Options TO Toolbar
CHA Chanfer DT Dtext LS List PRE Preview TOL Tolerance
COL Colors E Erase LT Linetype PS Pspace TR Trim
CO Copy ED DDedit LTS LTscale R Redraw UN Units
D Dimstyle EL Ellipse LW Lweight RA Redrawall W Wblock
DAL Dimaligned EX Extend M Move RE Regen X Explode
DAN Dimangular F Fillet MA Matchprop REA Regenall XL Xline
DBA Dimbaseline G Group ME Measure REC Rectangle Z Zoom
DCE Dimcenter GR DDgrips MI Mirror REN Rename
DCO Dimcontinue H Bhatch MO Properties RM DDRmodes
DDI Dimdiameter HE Hatchedit MS Mspace RO Rotate
definir o tamanho
do papel
plota pelo "Limits"
definido
orientação do papel: retrato,
paisagem, etc.
definir escala
de plotagem
plota por uma janela
a ser definida
plota a geometria do Model Space
em primeiro e Paper por último
esconde linhas não aparentes
em Paper Space ou 3D
plota pelo estilo
de plotagem
centraliza o
desenho na folha
plota espessura
definida (layers)
plota toda a extensão
do desenho
plota o que está na
tela no momento
AutoCAD 2D
78ESCOLA SENAI “ALMIRANTE TAMANDARÉ”
REFERÊNCIAS BIBLIOGRÁFICAS
ATCSKYNET. Apostila de AutoCAD 2D. 2000.
AUTODESK. Software AutoCAD 2004.
BALDAM, Roquemar de Lima. Utilizando Totalmente o AutoCAD R14 2D, 3D e Avançado -
Editora Érica.
LIMA FILHO, Aderval Ferreira de. Exercícios para AutoCAD 2D - Escola SENAI “Almirante
Tamandaré” - 2003.
PROGRAMA ESTADUAL DE QUALIFICAÇÃO PROFISSIONAL. AutoCAD R14 Básico -
Prefeitura Municipal de São Bernardo do Campo - 2002.
PROVENZA, Francisco. desenhista de Máquinas. Escola Protec. São Paulo. 1986.
Autocad 2d

Autocad 2d

  • 1.
  • 2.
    CAI - Mecânicode Usinagem AutoCAD 2D  SENAI-SP, 2007 Trabalho elaborado pela Escola SENAI “Almirante Tamandaré”, CFP-1.20. Departamento Regional do SENAI-SP. 1ª edição, 2007 Coordenação Geral Murilo Strazzer Equipe Responsável Coordenação Celso Guimarães Pereira Estruturação Ilo da Silva Moreira Elaboração Sidnei Josué Faccio Revisão Francisco Aparecido Dias Sanches SENAI - Serviço Nacional de Aprendizagem Industrial Departamento Regional de São Paulo Escola SENAI “Almirante Tamandaré” Av. Pereira Barreto, 456 CEP 09751-000 São Bernardo do Campo - SP Telefone: (011) 4122-5877 FAX: (011) 4122-5877 (ramal 230) E-mail: senaitamandare@sp.senai.br cód. 120.3.024
  • 3.
    Sumário Página 4 Inicialização -a tela do AutoCAD - inserção das barras de ferramentas - menu FILE - funcionamento do MOUSE 8 Sistemas de coordenadas - coordenadas absolutas - coordenadas relativas (incremental) 9 Comandos básicos 18 Ferramentas de precisão 21 Dimensionamento 63 Principais comandos do AutoCAD 74 Definição e inserção de blocos 76 Comando de plotagem 77 Tabela de teclas de atalho 78 Referências bibliográficas
  • 4.
    AutoCAD 2D 4ESCOLA SENAI“ALMIRANTE TAMANDARÉ” INICIALIZAÇÃO Podemos abrir o AutoCAD das seguintes maneiras: • Utilizando o ícone na área de trabalho ou; • Iniciar > Todos os Programas > Autodesk > Mechanical Desktop 2004 DX > AutoCAD 2004 A tela do AutoCAD 1. Barra de Título: contém o nome do programa e o nome do arquivo; 2. Menus Suspensos: os menus suspensos servem para acessar vários comandos; 1 2 3 3 3 4
  • 5.
    AutoCAD 2D 5ESCOLA SENAI“ALMIRANTE TAMANDARÉ” 3. Barras de Ferramentas (toolbars): são barras que contém ícones que permitem acessar comandos do AutoCAD. Podendo ser ligadas, desligadas, movidas em diversas partes da tela, clicando no canto da barra com o botão esquerdo do mouse e depois arrastá-las até o ponto desejado. 4. Linha de Comando: é a região onde o operador do AutoCAD digita o comando que irá utilizar. É muito importante que o operador esteja sempre atento às informações contidas na linha, pois através dela que se obtém e se fornecem informações ao programa. Inserção das barras de ferramentas Para ligar e desligar as barras de ferramentas (toolbars), devemos acessar: VIEW > Toolbars.
  • 6.
    AutoCAD 2D 6ESCOLA SENAI“ALMIRANTE TAMANDARÉ” Ao acessarmos este comando, aparecerá o quadro Customize e a guia Toolbars: E para inserirmos as barras desejadas, basta ativar o quadrado localizado à frente do nome da barra em que você deseja inserir em sua tela de desenho, é bom lembrar que quanto mais barras tiverem na área de trabalho menor será o espaço para desenhar.
  • 7.
    AutoCAD 2D 7ESCOLA SENAI“ALMIRANTE TAMANDARÉ” Menu FILE (arquivo) 1. NEW: inicia um novo arquivo; 2. OPEN: abre um arquivo existente; 3. SAVE: salva as alterações dentro de um arquivo; 4. SAVE AS: salva o arquivo aberto com outro nome. Funcionamento do MOUSE • Botão da Esquerda: aciona uma função que está apontada pelo cursor do AutoCAD. Pode ser um botão, um item de menu ou seleção de um objeto na área gráfica. • Botão do Meio: aciona o zoom; 1 2 3 4
  • 8.
    AutoCAD 2D 8ESCOLA SENAI“ALMIRANTE TAMANDARÉ” • Botão da Direita: possui funções definidas pelo usuário. Pode operar com a mesma função da tecla enter (ou RETURN) do teclado. Toda vez que uma fase de um comando for completada utiliza-se este botão, também é utilizado para repetir o último comando dado, assim como a tecla Enter ou Spacebar (barra de espaço) do teclado. Este botão em conjunto com a tecla SHIFT acionamos também os objetos de precisão. SISTEMAS DE COORDENADAS O AutoCAD está baseado em um sistema cartesiano de coordenadas, sobre o qual serão posicionados os pontos que definirão as entidades do desenho. Está baseado nos três eixos cartesiano: X, Y e Z, com a origem referenciada em 0,0,0. Assim cada objeto do AutoCAD tem pelo menos duas coordenadas para identificar sua posição. Observação No AutoCAD utiliza-se casas decimais separadas por ponto e coordenadas separadas por vírgulas. Coordenadas absolutas Estas coordenadas podem ser utilizadas para se informar ao programa a exata localização do ponto que desejamos marcar. • coordenada absoluta retangular Em desenhos bidimensionais são indicados apenas o par coordenado X,Y. Exemplo: 7,4 ou 7.5,4.2 • coordenada absoluta polar São indicadas através de distância e ângulo que o segmento forma com a horizontal, sendo indicado como: D<A Exemplo: 12<45 ou 12.5<30
  • 9.
    AutoCAD 2D 9ESCOLA SENAI“ALMIRANTE TAMANDARÉ” Coordenadas relativas (incremental) São coordenadas que trabalham em referência a um ponto (ou coordenada) já existente. • coordenada relativa retangular Em desenhos bidimensionais indicamos distância (delta) em X,Y, sendo: @dX,dY Exemplo: @3,4 ou @3.5,4.5 • coordenada relativa polar São indicadas como @D<A Exemplo: @12<45 ou @12.5<30 COMANDOS BÁSICOS Comando LINE Cria segmentos de reta, pode ser ativado através do MENU > DRAW > LINE ou utilizando a barra toolbar “DRAW” clicando no botão ou , ainda, digitando “L” + <enter>.
  • 10.
    AutoCAD 2D 10ESCOLA SENAI“ALMIRANTE TAMANDARÉ” Exercícios 1) Desenhar utilizando coordenada absoluta relativa: Comando Desenho Final LINE 0, 0 100, 100 300, 100 300, 125 280, 125 280, 170 250, 170 250, 145 230, 145 230, 170 180, 170 180, 200 150, 200 150, 125 100, 125 100, 100
  • 11.
    AutoCAD 2D 11ESCOLA SENAI“ALMIRANTE TAMANDARÉ” 2) Desenhar utilizando coordenada relativa retangular: Comando Desenho Final LINE 0, 0 @ 100, 100 @ 50, 0 @ 0, -35 @ 40, 0 @ 0, -12 @ 35, 0 @ 0, 48 @ 51, 0 @ 0, 32 @ 12, 0 @ 0, 42 @ -20, 0 @ 0, 15 @ -30, 0 @ 0, -15 @ -50, 0 @ 0, -18 @ -45, 0 @ 0, -20 @ -43, 0 @ 0, -37
  • 12.
    AutoCAD 2D 12ESCOLA SENAI“ALMIRANTE TAMANDARÉ” 3) Desenhar utilizando coordenada relativa polar: Comando Desenho Final LINE 0, 0 100, 100 @ 50, 0 @ -15 < 60 @ 50, 0 @ 15 < 120 @ 50, 0 @ 0, 20 @ -25, 0 @ 17 < 60 @ -102.3, 0 @ -17 < 120 @ -25, 0 @ 0, -20 Comando ERASE Apaga entidades do desenho. Pode ser acessado através do MENU > MODIFY > ERASE ou da barra toolbar “MODIFY” clicando no botão ou ainda digitando “E” + <enter>. Procedimento para o comando ERASE: Command: Digitar “E” + <Enter> Select Objects: Clicar sobre as linhas que deseja apagar + <Enter>
  • 13.
    AutoCAD 2D 13ESCOLA SENAI“ALMIRANTE TAMANDARÉ” Comando UNDO Desfaz as últimas operações realizadas, uma de cada vez. Pode ser acessado através do MENU > EDIT ou da barra toolbar “STANDARD” clicando no botão ou ainda digitando “U” + <Enter>. Comando REDO Desfaz o UNDO, porém apenas uma vez. Pode ser acessado através do MENU > EDIT ou da barra tollbar “STANDARD” clicando no botão ou ainda digitando “REDO” + <Enter>. Comando ZOOM Este comando permite aproximar ou afastar a imagem de determinadas regiões do desenho. As opções de comando zoom podem ser acessadas através do MENU > VIEW > ZOOM + a opção desejada ou digitando “Z” + <Enter> + a opção desejada ou ainda clicando em um dos botões da barra toolbar, como mostra a figura abaixo: • Pan Realtime: permite a movimentação da tela gráfica, em qualquer sentido, sem alterar o tamanho da tela de visualização; • Zoom Realtime: afasta ou aproxima a tela em tempo real, permitindo a visualização do que está acontecendo; • Zoom Window: permite a seleção através de uma janela; • Zoom Previous: retrocede até 10 telas anteriores. Pan Realtime Zoom Realtime Zoom Window Zoom Previous
  • 14.
    AutoCAD 2D 14ESCOLA SENAI“ALMIRANTE TAMANDARÉ” Exercícios 4) Construir os desenhos abaixo e salvá-los em disquete, utilizando como nome de arquivo o número do desenho correspondente. 4.1) EXE01 4.2) EXE02
  • 15.
    AutoCAD 2D 15ESCOLA SENAI“ALMIRANTE TAMANDARÉ” 4.3) EXE03 4.4) EXE04 Comando LAYER Este comando regula os níveis de trabalho, que podem ser entendidos como camadas independentes de desenho, camadas estas que sobrepõem como folhas transparentes. O quadro LAYER & LINETYPE PROPERTIES pode ser carregado através do MENU > FORMAT > LAYER ou através da barra toolbar "PROPERTIES" clicando no botão ou ainda digitando “LA”+ <Enter>.
  • 16.
    AutoCAD 2D 16ESCOLA SENAI“ALMIRANTE TAMANDARÉ” Opções do quadro LAYER PROPERTIES MANAGER: • NEW: Cria novos layers; • CURRENT: torna a camada corrente, ou seja, tudo o que for desenhado a partir deste momento estará posicionado dentro do LAYER selecionado; • SHOW DETAILS: abre uma área na caixa de diálogo que permite ver separadamente informações sobre os layers, como por exemplo (name,color, linetype, lineweight); • NAME: permite renomear o layer; • COLOR: permite trocar a cor do layer; • LINETYPE: permite trocar o tipo de linha do layer;
  • 17.
    AutoCAD 2D 17ESCOLA SENAI“ALMIRANTE TAMANDARÉ” • LINEWEIGHT: permite alterar a espessura das linhas; • DELETE: elimina o layer selecionado, para isso não pode haver nenhuma entidade desenhada dentro do layer; • OFF (lâmpada apagada): desliga o layer, tornando suas entidades invisíveis na tela, porém, aparecendo na impressão; • FREEZE (sol azulado): congela o layer, tornando suas entidades na tela e não aparecendo na impressão; • FREEZE (sol amarelo): descongela o layer, tornando suas entidades novamente visíveis; • LOCK (cadeado trancado): trava o layer, impossibilitando que suas entidades sejam editadas; • UNLOCK (cadeado aberto): destrava o layer, permitindo a edição de suas entidades. Quando clicamos em cima do nome da linha (linetype) abrirá um novo quadro SELECT LINETYPE onde devemos clicar no botão LOAD. • LOAD: abre o quadro “LOAD OR RELOAD LINETYPES”, utilizado para se selecionar os tipos de linha com os quais se deseja trabalhar.
  • 18.
    AutoCAD 2D 18ESCOLA SENAI“ALMIRANTE TAMANDARÉ” Para todos ficarem com as mesmas cores no layers que irão criar, utilizaremos a tabela a seguir: LAYER COR TIPO DE LINHA ESPESSURA Contorno WHITE CONTINUOS 0.5 Cotas GREEN CONTINUOS 0.2 Hachuras YELLOW CONTINUOS 0.2 Quadro WHITE CONTINUOS 0.5 Linha De Centro RED CENTER 0.2 Detalhes RED DIVIDE 0.2 Tracejadas YELLOW HIDDEN 0.2 Fina YELLOW CONTINUOS 0.2 FERRAMENTAS DE PRECISÃO Ao trabalhar com AutoCAD, deve-se sempre ter a certeza de que o ponto capturado esteja correto, como por exemplo um final de linha ou um centro de um círculo, Para facilitar a execução destas tarefas existem os modos de precisão que podem ser ativados pelo MENU > TOOLS > DRAFTING SETTINGS > GUIA OBJECT SNAP sendo permitido a seleção do objeto de precisão a partir do momento que selecionar a caixa correspondente.
  • 19.
    AutoCAD 2D 19ESCOLA SENAI“ALMIRANTE TAMANDARÉ” A opção liga/desliga pode ser ativado também pela tecla F3 ou ainda clicando no botão da barra de status. Durante a construção do desenho podemos apertar a tecla SHIFT + botão direito do mouse que aparecerá a opção dos objetos de precisão. • Localiza o ponto extremo de uma entidade (line, arc, pline, etc); • Localiza o ponto médio de uma linha ou arco; • Localiza o ponto de cruzamento entre duas entidades; • Localiza o ponto de cruzamento virtual entre duas entidades; • Localiza o centro de um arco ou círculo; • Localiza um dos quatro quadrantes de um círculo ou arco, 0º, 90º, 180º ou 270º; • Localiza o ponto de tangenciamento de uma entidade em relação a um círculo ou arco; • Localiza pontos perpendiculares entre duas entidades; • Cria um vetor paralelo imaginário, a partir de uma linha existente; • Localiza pontos (definidos pela entidade “Point”); • Localiza o ponto de inserção de um bloco ou texto; • Localiza o ponto mais próximo do posicionamento do cursor; • Desabilita um modo de precisão que esteja ativado.
  • 20.
    AutoCAD 2D 20ESCOLA SENAI“ALMIRANTE TAMANDARÉ” Exercícios 5) Construir os desenhos abaixo e salvá-los em disquete, utilizando como nome de arquivo o número do desenho correspondente. 5.1) EXE05 5.2) EXE06
  • 21.
    AutoCAD 2D 21ESCOLA SENAI“ALMIRANTE TAMANDARÉ” DIMENSIONAMENTO Para iniciarmos o dimensionamento (cotagem) de um desenho deve-se primeiro proceder a regulagem e criação de estilos de dimensionamento. Para isto devemos acessar o menu DIMENSION>STYLE. Após a regulagem e criação de estilos, deve-se carregar a toolbar “DIMENSION” para executar as cotas: Linear Dimension Utilizado para criar cotas lineares, através da movimentação do mouse e a ajuda dos modos de precisão.
  • 22.
    AutoCAD 2D 22ESCOLA SENAI“ALMIRANTE TAMANDARÉ” Aligned Dimension Utilizado para criar cotas alinhadas paralelamente com a inclinação da linha do desenho. Radius Dimension Utilizado para criar cotas de raio, podendo ser de um arco ou de um círculo. Diameter Dimension Utilizado para criar cotas de diâmetro, podendo ser de um arco ou de um círculo. Angular Dimension Utilizado para dimensionamento do ângulo entre duas linhas. Baseline Dimension Utilizado para cotar quando temos cotas sucessivas que possuem o mesmo ponto base. Continue Dimension Utilizado quando temos cotas contínuas que possuem como ponto inicial o ponto final da última cota criada. Dimension Edit Utilizado para edição do texto da cota. • Home: força um texto reposicionado a voltar para seu posicionamento original; • New: permite alterar o valor do texto da cota; • Rotate: fornece um ângulo de inclinação para texto da cota; • Oblique: executa um deslocamento inclinado de toda a cota.
  • 23.
    AutoCAD 2D 23ESCOLA SENAI“ALMIRANTE TAMANDARÉ” Dimension Text Edit Utilizado para deslocar a cota e o texto da cota. Style Command: ST Menu - Format - Text Style escolha do estilo já definido para criar um novo estilo fonte da letra gravar estilo fechar a tela de estilo deixar a altura da letra sempre em 0inclinação da letra
  • 24.
    AutoCAD 2D 24ESCOLA SENAI“ALMIRANTE TAMANDARÉ” Variáveis de Dimensionamento Command: D Menu - Dimension - Style cria um novo estilomuda o estilo torna atual o estilo de dimensionamento escolhido abre a caixa de diálogo Override Current Style compara 2 estilos fecha quadro de estilos
  • 25.
    AutoCAD 2D 25ESCOLA SENAI“ALMIRANTE TAMANDARÉ” definição de cor das linhas de chamada definição de cor da linha de cota suprime linha de chamada da esquerda ou da direita define tipos de setas
  • 26.
    AutoCAD 2D 26ESCOLA SENAI“ALMIRANTE TAMANDARÉ” abre variáveis de texto escolher o estilo do texto criar um novo estilo de letra cor do texto abre quadro de tolerância texto acima, centrado ou abaixo da linha de cota texto centrado, alinhado a esquerda ou a direita texto sempre paralelo com a linha de cota distância da base do texto até a linha de cota
  • 27.
    AutoCAD 2D 27ESCOLA SENAI“ALMIRANTE TAMANDARÉ” formato das unidades abre quadro de unidades primárias número de casas decimais separação decimal com vírgula ou ponto omite zeros a direita fator de escala para dimensionamentoomite zeros a esquerda
  • 28.
    AutoCAD 2D 28ESCOLA SENAI“ALMIRANTE TAMANDARÉ” Exercícios 6) Construir os desenhos abaixo e salvá-los em disquete, utilizando como nome de arquivo o número do desenho correspondente. 6.1) EXE07 6.2) EXE08
  • 29.
    AutoCAD 2D 29ESCOLA SENAI“ALMIRANTE TAMANDARÉ” 6.3) EXE09 6.4) EXE10 Comando CIRCLE (círculo) Constrói círculos através de diferentes maneiras. Pode ser acessado do MENU > DRAW > CIRCLE, ou utilizando a barra toolbar “DRAW” clicando no botão ou , ainda, digitando “C” + <enter>. Opções para serem utilizadas dentro do comando CIRCLE: • Center, Radius: Cria um círculo que passa pela intersecção de duas retas. Este centro pode ser determinado através de objeto de precisão INTERSECTION, e você digitará a medida do raio;
  • 30.
    AutoCAD 2D 30ESCOLA SENAI“ALMIRANTE TAMANDARÉ” • Center, Diameter: Cria um círculo que passa pela intersecção de duas retas. Este centro pode ser determinado através de objeto de precisão INTERSECTION, e você digitará a medida do diâmetro; • 2 Points: Cria um círculo que passa através de dois pontos determinados; • 3 Points: Cria um círculo que passa através de três pontos determinados; • TTR: Cria um círculo tangente a duas entidades, que podem ser linhas, círculos, arcos ou duas entidades diferentes; e você digitará a medida do raio; • TTT: Cria um círculo tangente a três entidades, que podem ser linhas, círculos, arcos ou três entidades diferentes, lembre-se que o raio é criado automaticamente, pois o raio tangência as três entidades. Comando REGEN (regenerar) Regenera o desenho, corrigindo distorções causadas pela utilização do zoom. Pode ser acessado pelo MENU > VIEW > REGEN ou digitando “RE” + <Enter>. Comando OFFSET (paralela) Constrói cópias paralelas a entidades selecionadas. Pode ser acessado do MENU > MODIFY, ou utilizando a barra toolbar “MODIFY” clicando no botão ou , ainda, digitando “O” + <Enter>. Procedimentos: Command: Digite “O” + <Enter> Offset distance or Through <1.0000>: Digite a medida desejada ou aceite a que está dentro dos parênteses. Select object to offset: Selecione a entidade desejada a que deseja fazer a linha paralela. Side to offset?: Clique no lado desejado para criação da cópia Side to offset?: Realize mais cópias ou <Enter> para sair do comando.
  • 31.
    AutoCAD 2D 31ESCOLA SENAI“ALMIRANTE TAMANDARÉ” Exercícios 7) Construir os desenhos abaixo e salvá-los em disquete, utilizando como nome de arquivo o número do desenho correspondente. 7.1) EXE11 7.2) EXE12
  • 32.
    AutoCAD 2D 32ESCOLA SENAI“ALMIRANTE TAMANDARÉ” Comando MIRROR (espelho) Cria cópias espelhadas de entidades (cópias invertidas). Pode ser acessado através do MENU > MODIFY > ou utilizando a barra toolbar “MODIFY” clicando no botão ou , ainda, digitando “MI” + <Enter>. Procedimentos: Command: Digite “MI” + <Enter> Select objects: Selecione as entidades desejadas que deseja espelhar + <Enter> First point of mirror line: Selecione o 1º ponto, utilize os modos de precisão. First point of mirror line: Second point Selecione o 2º ponto, utilize os modos de precisão. Delete old objects? <N> <Enter> para não deletar as entidades originais ou Y + <Enter> para apagar as entidades originais. Comando TRIM (corte) Corta trechos de entidades, necessita de uma ou duas entidades que limitarão o trecho a ser cortado. Pode ser acessado do MENU > MODIFY > TRIM ou utilizando a barra toolbar “MODIFY” clicando no botão ou , ainda, digitando “TR” + <enter>. Procedimentos: Command: Digite “TR” + <Enter> Select objects: Selecione parte do desenho ou todo o desenho. Select objects: Tecle <Enter> Select object to trim>/Project/Edge/Undo: Clique no trecho a ser cortado
  • 33.
    AutoCAD 2D 33ESCOLA SENAI“ALMIRANTE TAMANDARÉ” Exercícios 8) Construir os desenhos abaixo e salvá-los em disquete, utilizando como nome de arquivo o número do desenho correspondente. 8.1) EXE13 8.2) EXE14
  • 34.
    AutoCAD 2D 34ESCOLA SENAI“ALMIRANTE TAMANDARÉ” 8.3) EXE15 Comando FILLET (arredondar) Constrói um canto com raio pré-definido entre duas entidades. Pode ser acessado através do MENU > MODIFY > FILLET ou utilizando a barra toolbar “MODIFY” clicando no botão ou, ainda, digitando “F” + <Enter>. Procedimentos: Command: Digite “F” + <Enter> (TRIM mode) current fillet radius = 10.0000 Polyline/Radius/Trim/<Select first object> Digite “R” para modificar a medida do raio que no caso está 10, ou clique na primeira entidade.(neste caso arredondará com raio 10). Select second object: Clique na segunda entidade.
  • 35.
    AutoCAD 2D 35ESCOLA SENAI“ALMIRANTE TAMANDARÉ” Exercícios 9) Construir os desenhos abaixo e salvá-los em disquete, utilizando como nome de arquivo o número do desenho correspondente. 9.1) EXE16 9.2) EXE17
  • 36.
    AutoCAD 2D 36ESCOLA SENAI“ALMIRANTE TAMANDARÉ” Comando CHAMFER (chanfrar) Constrói um canto com chanfro pré-definido entre duas entidades. Pode ser acessado através do MENU > MODIFY > CHAMFER ou utilizando a barra toolbar “MODIFY” clicando no botão ou, ainda, digitando “CHA” + <Enter>. Procedimentos: Command: Digite “CHA” + <Enter> (TRIM mode) current chamfer Dist1= 10.0000, Dist2 =10,0000 Polyline/Distance/Angle/Trim/Method/<Select first object> Digite “D” para modificar a medida do chanfro que no caso está 10 para a primeira e 10 para a segunda, ou clique na primeira entidade. Select second object: Clique na segunda entidade, chanfrando o desenho. Exercício 10) Construir o desenho abaixo e salvá-lo em disquete, utilizando como nome de arquivo o número do desenho correspondente. EXE18
  • 37.
    AutoCAD 2D 37ESCOLA SENAI“ALMIRANTE TAMANDARÉ” Comando POLYGON (polígono) Constrói um polígono inscrito ou circunscrito em relação a um círculo. Pode ser acessado através do MENU > DRAW > POLYGON ou utilizando a barra toolbar “DRAW” clicando no botão ou , ainda, digitando “POL” + <Enter>. Procedimentos: Command: Digite “ POL” + <Enter> Number of sides <4> Digite o número de lados do polígono + <Enter> ou dê <Enter> se o polígono que deseja é um quadrado. Edge/<Center of polygon> Determine o centro do polígono para isso utilize os modos de precisão. Inscribed in circle/Circumscribed about circle (I/C) <I> Escolha “I” se a medida do polígono for entre as quinas ou “C” se a medida do polígono for entre as faces. Radius of circle: Digite o valor do raio do círculo imaginário + <Enter>. Exercícios 11) Construir os desenhos abaixo e salvá-los em disquete, utilizando como nome de arquivo o número do desenho correspondente. 11.1) EXE19
  • 38.
    AutoCAD 2D 38ESCOLA SENAI“ALMIRANTE TAMANDARÉ” 11.2) EXE20 Comando MOVE (mover) Este comando move entidades de um ponto a outro, alterando as coordenadas de origem. Pode ser acessado através do MENU > MODIFY > MOVE ou utilizando a barra toolbar “MODIFY” digitando “M” + <Enter> ou , ainda, clicando no botão Procedimentos: Command: Digite “M” + <Enter> Select objects Selecione as entidades que deseja mover + <Enter> Base point or displacement: Determine o ponto base por onde o objeto será arrastado, utilize para isso os modos de precisão. Second point of displacement: Determine o ponto onde o objeto será posicionado, utilize os modos de precisão.
  • 39.
    AutoCAD 2D 39ESCOLA SENAI“ALMIRANTE TAMANDARÉ” Exercícios 12) Construir os desenhos abaixo e salvá-los em disquete, utilizando como nome de arquivo o número do desenho correspondente. 12.1) EXE21 12.2) EXE22
  • 40.
    AutoCAD 2D 40ESCOLA SENAI“ALMIRANTE TAMANDARÉ” 12.3) EXE23 12.4) EXE24
  • 41.
    AutoCAD 2D 41ESCOLA SENAI“ALMIRANTE TAMANDARÉ” Comando ARRAY (cópias múltiplas) Array Polar Este comando executa cópias múltiplas de entidades, obedecendo um padrão determinado, através de um espaçamento angular. Pode ser acessado através do MENU > MODIFY > ARRAY ou utilizando a barra toolbar “MODIFY” clicando no botão ou , ainda, digitando “AR” + <Enter>. Procedimentos: Command: Digite “AR” + <Enter> Select objects: Selecione as entidades desejadas + <Enter> Rectangular or Polar array (<R>/P): Digite “P” + <Enter> Base/<Specify center point of array>: Indique o centro de rotação das cópias, utilize para isso os modos de precisão. Number of items: Digite o número total de itens + <Enter> (original + cópias) Angle to fill (+=ccw,-=cw)<360>: Digite o ângulo total a ser preenchido + <Enter> Rotate objects as they are copied?<Y> Digite “Y” =<Enter> para rotacionar as cópias de acordo com o ângulo de inclinação, ou digite “N” + <Enter> para não rotacionar as cópias. Array Retangular Este comando executa cópias múltiplas de entidades, obedecendo um espaçamento em forma de linhas e colunas. Pode ser acessado através do MENU > MODIFY > ARRAY ou utilizando a barra toolbar “MODIFY” clicando no botão ou , ainda, digitando “AR” + <Enter>. Procedimentos: Command: Digite “AR” + <Enter> Select objects: Selecione as entidades desejadas + <Enter> Rectangular or Polar array (R/<P>): Digite “R” +<Enter> Number of rows (---) <1>: Digite o número de linhas + <Enter> Number of columns (III) <1>: Digite o número de colunas + <Enter> Unit cell or distance between rows (---): Digite a distância entre linhas + <Enter> (esta distância deve ser em relação as linhas de centro)
  • 42.
    AutoCAD 2D 42ESCOLA SENAI“ALMIRANTE TAMANDARÉ” Exercícios 13) Construir os desenhos abaixo e salvá-los em disquete, utilizando como nome de arquivo o número do desenho correspondente. 13.1) EXE25 13.2) EXE26
  • 43.
    AutoCAD 2D 43ESCOLA SENAI“ALMIRANTE TAMANDARÉ” 13.3) EXE27
  • 44.
    AutoCAD 2D 44ESCOLA SENAI“ALMIRANTE TAMANDARÉ” Comando Hatch (hachuras) Command: H Menu - Draw - Hatch tipo de padrão a ser utilizado nome da hachura escolhida visualiza o padrão escolhido mostra uma pré-visualização da hachura altera o ângulo da hachura
  • 45.
    AutoCAD 2D 45ESCOLA SENAI“ALMIRANTE TAMANDARÉ” para selecionar a área interna da hachura seleção manual das entidades a serem aproveita as propriedades de uma hachura já utilizada hachuras com vários elementos (explodida) hachuras de um elemento
  • 46.
    AutoCAD 2D 46ESCOLA SENAI“ALMIRANTE TAMANDARÉ” Exercícios
  • 47.
    AutoCAD 2D 47ESCOLA SENAI“ALMIRANTE TAMANDARÉ”
  • 48.
    AutoCAD 2D 48ESCOLA SENAI“ALMIRANTE TAMANDARÉ”
  • 49.
    AutoCAD 2D 49ESCOLA SENAI“ALMIRANTE TAMANDARÉ”
  • 50.
    AutoCAD 2D 50ESCOLA SENAI“ALMIRANTE TAMANDARÉ”
  • 51.
    AutoCAD 2D 51ESCOLA SENAI“ALMIRANTE TAMANDARÉ”
  • 52.
    AutoCAD 2D 52ESCOLA SENAI“ALMIRANTE TAMANDARÉ”
  • 53.
    AutoCAD 2D 53ESCOLA SENAI“ALMIRANTE TAMANDARÉ”
  • 54.
    AutoCAD 2D 54ESCOLA SENAI“ALMIRANTE TAMANDARÉ”
  • 55.
    AutoCAD 2D 55ESCOLA SENAI“ALMIRANTE TAMANDARÉ”
  • 56.
    AutoCAD 2D 56ESCOLA SENAI“ALMIRANTE TAMANDARÉ”
  • 57.
    AutoCAD 2D 57ESCOLA SENAI“ALMIRANTE TAMANDARÉ”
  • 58.
    AutoCAD 2D 58ESCOLA SENAI“ALMIRANTE TAMANDARÉ”
  • 59.
    AutoCAD 2D 59ESCOLA SENAI“ALMIRANTE TAMANDARÉ”
  • 60.
    AutoCAD 2D 60ESCOLA SENAI“ALMIRANTE TAMANDARÉ”
  • 61.
    AutoCAD 2D 61ESCOLA SENAI“ALMIRANTE TAMANDARÉ”
  • 62.
    AutoCAD 2D 62ESCOLA SENAI“ALMIRANTE TAMANDARÉ”
  • 63.
    AutoCAD 2D 63ESCOLA SENAI“ALMIRANTE TAMANDARÉ” PRINCIPAIS COMANDOS DO AUTOCAD ARC Desenhos de arcos, (Menu - Draw - Arc). É necessário escolher o tipo de arco. AREA Calcula área de figuras fechadas. ARRAY Desenha cópias múltiplas. ATTEDF Definição de atributos. ATTEDIT Edita atributos, troca os valores depois de já serem inseridos. Observação: Os comandos ATTDEF e ATTEDIT podem ser acessados pelo teclado ou no menu superior, como mostra a figura acima. BHATCH Quadro de diálogo para hachuras. Preenche figuras fechadas com hachuras.
  • 64.
    AutoCAD 2D 64ESCOLA SENAI“ALMIRANTE TAMANDARÉ” BLOCK Criação de blocos de desenhos repetitivos, desenhando-os apenas uma vez.. BREAK Apaga parte de uma linha ou objeto. É utilizado para evitar o Trim. CHAMFER Chanfra duas linhas não paralelas, polígonos, retângulos ou polilinhas. CHANGE Modifica propriedades, cor, layers, tipo de linha, tickness, variáveis ou mesmo partes geométricas de elementos já desenhados anteriormente e que necessitem ser modificados. Todos os dados de uma figura selecionada estão no quadro de diálogo. CIRCLE Desenhos de círculos, 2p (2 pontos), 3p (3 pontos), ttr (tan, tan, raio) e centro raio/diâmetro. COPY Copia um objeto ou conjunto, dependendo da seleção. CLOSE É utilizado para fechar um desenho (Menu - File - Close). Sem o uso deste comando, pode-se mostrar na tela vários desenhos ao mesmo tempo. DDEDIT Alterar o conteúdo de um texto já escrito. DDVPOINT Visão em 3D como vista isométrica. Depois que um objeto é criado em 3D, pode-se visualizá-lo de onde desejar.
  • 65.
    AutoCAD 2D 65ESCOLA SENAI“ALMIRANTE TAMANDARÉ” DDIM Abre quadro de diálogo do estilo de cotagem (Menu - Dimension - Style). DIM Variável de dimensionamento. • dimTXT Altura da letra. • dimTAD on Texto sobre linha de cotagem. • dimTOH off Texto fora das linhas de cota sempre na horizontal. • dimTSZ Tamanho do traço. • dimASZ Tamanho da seta. • dimEXO Medida que a linha de chamada fica distante do objeto. • dimEXE Valor do tamanho da linha após o cruzamento das linhas de chamada. • dimSCALE Escala de dimensionamento. • dimLFAC Múltiplo de medidas. Observação: Todas as variáveis podem ser acessadas pelo quadro de diálogo DDIM. DIST Calcula distâncias entre dois pontos, usado para conferir medidas.
  • 66.
    AutoCAD 2D 66ESCOLA SENAI“ALMIRANTE TAMANDARÉ” DIVIDE Divide um objeto em partes iguais com pontos sobre o objeto. DOUGHNUT Círculo com espessura “rosquinha”, pede diâmetro interno e externo. DTEXT Usado para escrever.
  • 67.
    AutoCAD 2D 67ESCOLA SENAI“ALMIRANTE TAMANDARÉ” ELEV Desenho a qualquer elevação do eixo z, utilizado para 3D. ELLIPSE Gera uma elipse axis são considerados como uma espécie de raios. ERASE Apaga um ou mais objetos, dependendo do tipo de seleção, selecionando-se com o mouse ou abrindo-se janelas. EXPLODE Reduz um bloco, polilinha, polígonos ou cotas a formas mais primitivas como linhas e textos. EXTEND Estica um objeto de modo que ele atinja outro (Clicar primeiro até onde e depois no objeto). FILLET Arredondamento de cantos. É pedido o raio antes de selecionar os objetos. Pode-se juntar duas linhas não paralelas com o raio 0. GRID Define o espaçamento da grade, pontinhos na tela. O espaçamento é definido pelo usuário em x e y. O tamanho geral do grid é definido pelo limite do desenho.
  • 68.
    AutoCAD 2D 68ESCOLA SENAI“ALMIRANTE TAMANDARÉ” HIDE Esconde arestas não visíveis, serve apenas para visualização no 3D. ID Exibe valores de coordenadas x,y,z em um determinado ponto. INSERT Insere blocos de desenhos. Abre-se um quadro de diálogo onde são pedidos o nome do bloco a ser inserido, o ponto de inserção, rotação e o fator de escala. LAYER Criação de camadas de desenho. Abre-se um quadro de diálogo para definição de nome de camadas, tipo de linhas, espessuras, congelamentos, não de impressão, etc. LENGTHEN Modifica o comprimento de entidades como linhas e arcos com as opções: • Delta: Valor de quanto se quer aumentar. • Percent: Valor da porcentagem a ser inserida a mais no comprimento. • Dynamic: Aumenta ou diminui com a visualização inclusa. LIMITS Determina os limites de um desenho. É pedido o canto inferior esquerdo (0, 0) e o canto superior direito que sofrerá alteração.
  • 69.
    AutoCAD 2D 69ESCOLA SENAI“ALMIRANTE TAMANDARÉ” LINE Geração de linhas. • Coordenadas absolutas (X, Y) • Coordenadas relativas polar (@C, <A) • Coordenadas relativas retangulares (@X, Y) Observação: Com o ORTHO (ortogonal) ligado. LINETYPE Mostra quadro de diálogo de tipos de linha que podem ser carregados. LIST Exibe a maioria das propriedades de um objeto já desenhado, como layer, geometria, cores, estilos, etc. LTSCALE Controla a escala dos tipos de linhas, aumenta ou diminui o espaçamento de linhas não contínuas. MEASURE Divide um objeto em partes de comprimento definido com pontos.
  • 70.
    AutoCAD 2D 70ESCOLA SENAI“ALMIRANTE TAMANDARÉ” MIRROR Faz uma cópia em imagem espelhada. É necessário saber a localização geométrica da linha de espelho. MOVE Move um ou vários objetos. NEW Início de um desenho novo. OFFSET Cria um objeto paralelo. É usado em linhas, retângulos, círculos e polilinhas. Pede-se primeiro a distância e em seguida o lado (side) do paralelo. OPEN Abre um desenho existente (Menu - File - Open). OPTIONS Configuração do AutoCAD, tais como cores de tela, plotters e impressoras a serem utilizados, tamanho de cursor e setagem de periféricos. Pode ser acessado pelo menu Tools - Options. ORTHO Ativa ou desativa o modo ortogonal (tecla F8). Usado para desenhar linhas com ângulos de 0, 90, 180 e 270°. OSNAP Seleção de pontos geométricos específicos em um objeto. Opções: • CEN centro de círculos ou arcos. • END extremidade de objetos. • INT intersecção de objetos. • MID ponto do meio de linhas ou arcos. • NEA próximo ao cursor. • NODE seleciona um ponto. • PER perpendicular a uma linha.
  • 71.
    AutoCAD 2D 71ESCOLA SENAI“ALMIRANTE TAMANDARÉ” • QUA quadrante de um arco ou círculo. • PAR paralela a uma linha. • APPINT intersecção aparente de dois objetos, usado em 3D. PAN Desloca a janela ativa. PEDIT Edita polilinhas, transformando linhas já feitas em polilinhas. PFACE Constrói um plano com mais de quatro lados. PLAN Exibe uma visão perpendicular ao UCS corrente, deixando o objeto em planta 3D. PLINE Cria linhas com propriedades, como espessuras e curvaturas. PLOT Abre um quadro de diálogo para o envio do desenho para impressora ou plotter. É necessário saber a escala de plotagem e a escala do desenho. Neste comando é criado um arquivo .PLT para uso de um plotter externo. POLYGON Cria polígonos, figuras com lados iguais, com opções inscrito, circunscrito e pelo lado (Edge). POINT Cria um ponto. Para definir o tipo de ponto usar ddptype. REDRAW "R" Redesenha o desenho, não alterando nada o seu conteúdo. REGEN Regenera a tela, apenas para uma melhor visualização. Geralmente utilizado em partes arredondadas do desenho. REDO Volta o último comando de Undo. RECTANG Desenha um retângulo. É pedido o primeiro canto, geralmente com um click, e em seguida o outro canto descrito com @x, y.
  • 72.
    AutoCAD 2D 72ESCOLA SENAI“ALMIRANTE TAMANDARÉ” ROTATE Rotaciona uma figura ou parte de um desenho em torno de um ponto selecionado com um click (Base Point). O sentido positivo é sempre anti-horário. RENDER Visualiza um desenho em 3D renderizado, com sombra. SAVE Salva o desenho com o mesmo nome. É usado periodicamente na elaboração do desenho. SAVE AS Dá nome ao desenho que está na tela no momento. Pode-se criar uma cópia do mesmo desenho com outro nome. SCALE Aumenta ou diminui partes de um desenho. Usado para detalhes. SNAP Salto do cursor (F9 ativa/desativa). É usado em desenho de croquis, onde as medidas são sempre múltiplas de algum número. Geralmente usado em conjunto com o Grid. STYLE Define o estilo da letra que irá ser utilizada. Pode-se criar vários em um mesmo desenho. STRETCH Estica ou encurta uma figura. É usado com "C" (Crossing) para modificar um desenho já feito como, por exemplo, alterar o comprimento de um eixo. SHADE Mostra o desenho em 3D com os planos preenchidos e com as cores definidas pelo layer.
  • 73.
    AutoCAD 2D 73ESCOLA SENAI“ALMIRANTE TAMANDARÉ” SUBTRACT Usado em operações boleanas em 3D, onde é usado um sólido para perfurar o outro. TRIM Apara parte de linhas, arcos, círculos, elipses, etc, passantes. Primeiro os envolvidos, NQ +, e depois o que cortar. É usado para apagar apenas uma parte do elemento. THICKNESS Extruda linhas, transformando-as em planos. Pode ser usado através do Change. UNDO Volta o último comando executado. UNION Usado em operações boleanas em 3D, onde une-se um sólido a outro, alterando-se a massa resultante. UNITS Define unidades no desenho referentes ao comprimento e a ângulos de desenhos, quantas casas decimais, medidas de graus, etc. UCS Sistema de coordenadas do usuário. Define o plano de trabalho para desenhos em 3D. WCS Sistema de coordenadas mundial, usado em 3D. É o sistema de origem inicial 0 em X,Y e Z. WBLOCK Transforma blocos em desenhos dwg, para serem usados em outros desenhos. ZOOM Visualização dos desenhos, opções: • All visualiza todo o limite ou todo o desenho, o que for maior. • Extend visualiza apenas o que está desenhado. • Windows visualiza uma janela. Pede o primeiro e o segundo cantos a serem clicados.
  • 74.
    AutoCAD 2D 74ESCOLA SENAI“ALMIRANTE TAMANDARÉ” • Previous visualiza janela anterior. • Scale afasta ou aproxima a janela. Exemplo: 0.8 x, afasta 20%. • Dynamic mostra janela flutuante. • Out diminui a imagem do desenho na razão 0,5 x. • In aumenta a imagem do desenho na razão 2 x. DEFINIÇÃO E INSERÇÃO DE BLOCOS Para criar um bloco Command: B Menu - Draw - Block - Make definir o nome do blocodefinir o ponto de base do bloco pelo mouse selecionar os objetos
  • 75.
    AutoCAD 2D 75ESCOLA SENAI“ALMIRANTE TAMANDARÉ” Para inserir um bloco Command: / Menu - Insert - Block escolher o bloco a ser inserido procurar em outro diretório especifica parâmetro em tela
  • 76.
    AutoCAD 2D 76ESCOLA SENAI“ALMIRANTE TAMANDARÉ” COMANDO DE PLOTAGEM Command: PLOT Menu - File - Plot salva as mudanças feitas no quadro seleciona e adiciona aplicação de setagens seleciona equipamento a ser utilizado propriedades do equipamento: normal, econômico, etc. prévia de como irá ficar o desenho finaliza o comando e volta ao desenho número de cópias da impressão plota todos os layouts existentes cria um arquivo para plotagem cria um novo estilo comentário sobre o drive utilizado estilo para plotagem: mono, color, etc. plota apenas o layout utilizado no momento
  • 77.
    AutoCAD 2D 77ESCOLA SENAI“ALMIRANTE TAMANDARÉ” TABELA DE TECLAS DE ATALHO Teclas Comando Teclas Comando Teclas Comando Teclas Comando Teclas Comando A Arc DED Dimedit I Insert MT Mtext S Stretch ADC Adcenter DI Dist IAD Imageadjust MV Mview SC Scale AA Área DIV Divide IAT Imageattach O Offset SE Dsettings AL Align DLI Dimlinear IM Image OP Options SET Setvar AR Array DO Donut IMP Import OS Osnap SN Snap B Block DOR Dimordinate L Line P Pan SP Spell BH Bhatch DOV Dimoverride LA Layer PE Pedit SPL SPline BO Boundary DR Draworder LE Qleader PL Pline ST Style BR Break DRA Dimradius LEN Lengthen PO Point T Mtext C Circle DS Dimsettings LI List POL Polygon TI Tilemode CH Properties DST Dimstyle LO Layout PR Options TO Toolbar CHA Chanfer DT Dtext LS List PRE Preview TOL Tolerance COL Colors E Erase LT Linetype PS Pspace TR Trim CO Copy ED DDedit LTS LTscale R Redraw UN Units D Dimstyle EL Ellipse LW Lweight RA Redrawall W Wblock DAL Dimaligned EX Extend M Move RE Regen X Explode DAN Dimangular F Fillet MA Matchprop REA Regenall XL Xline DBA Dimbaseline G Group ME Measure REC Rectangle Z Zoom DCE Dimcenter GR DDgrips MI Mirror REN Rename DCO Dimcontinue H Bhatch MO Properties RM DDRmodes DDI Dimdiameter HE Hatchedit MS Mspace RO Rotate definir o tamanho do papel plota pelo "Limits" definido orientação do papel: retrato, paisagem, etc. definir escala de plotagem plota por uma janela a ser definida plota a geometria do Model Space em primeiro e Paper por último esconde linhas não aparentes em Paper Space ou 3D plota pelo estilo de plotagem centraliza o desenho na folha plota espessura definida (layers) plota toda a extensão do desenho plota o que está na tela no momento
  • 78.
    AutoCAD 2D 78ESCOLA SENAI“ALMIRANTE TAMANDARÉ” REFERÊNCIAS BIBLIOGRÁFICAS ATCSKYNET. Apostila de AutoCAD 2D. 2000. AUTODESK. Software AutoCAD 2004. BALDAM, Roquemar de Lima. Utilizando Totalmente o AutoCAD R14 2D, 3D e Avançado - Editora Érica. LIMA FILHO, Aderval Ferreira de. Exercícios para AutoCAD 2D - Escola SENAI “Almirante Tamandaré” - 2003. PROGRAMA ESTADUAL DE QUALIFICAÇÃO PROFISSIONAL. AutoCAD R14 Básico - Prefeitura Municipal de São Bernardo do Campo - 2002. PROVENZA, Francisco. desenhista de Máquinas. Escola Protec. São Paulo. 1986.