Técnicas de
Representação
Projeções Ortogonais
Planta
Prof. Me. Lucas Reitz
Projeções Ortogonais
Sistema de representação de
reconhecimento internacional e amplo
Constituem um conjunto geral de desenhos
bidimensionais que informam sobre os
objetos tridimensionais
Projeções Ortogonais
Projeções Ortogonais
Projeções Ortogonais
Exercício
Desenhar projeções
ortogonais do sólido
dado
Projeções Ortogonais
Planta:
Corte horizontal
Projeções Ortogonais
Planta:
Corte horizontal
Projeções Ortogonais
Elevações:
Vistas externas
Projeções Ortogonais
Elevações:
Vistas externas
Podem ser
humanizadas ou não
Projeções Ortogonais
Cortes:
Secção Verticais
Projeções Ortogonais
Cortes:
Secção Verticais
Projeções Ortogonais
Objetivo:
“Descrever de
maneira técnica como
uma ideia conceitual
se concretizará”
Cortes
Cortes
Projeção ortogonal
de um objeto
tridimensional sobre
um plano vertical que
o secciona
Cortes
Desenho de abstração para
melhor compreensão de
dinâmicas espaciais,
detalhamento e materialidade
de uma edificação
Cortes
Desenho de abstração para
melhor compreensão de
dinâmicas espaciais,
detalhamento e materialidade
de uma edificação
Cortes
Desenho de abstração para
melhor compreensão de
dinâmicas espaciais,
detalhamento e materialidade
de uma edificação
Cortes
Elementos
1) Dimensões e materiais de paredes e elementos construtivos
2) Relação do cheio e vazio edificado em vista
3) Proporção com elementos da paisagem
4) Topografia
Cortes
Tão importantes quanto as
plantas, auxiliam a compreender
as dinâmicas e conformação da
edificação.
Planta
horizontal
Corte
Vertical
Cortes
Compreensão da estrutura e
cobertura – elementos em altura
que não aparecem em planta
Cortes
Os cortes devem passar em
partes de maior interesse ou
fundamentais na compreensão de
uma edificação:
1. Escada ou quaisquer
circulações verticais
2. Cobertura
3. Elementos em balanço
4. Elementos aterrados
Cortes
Normas dos cortes (NBR 6492)
Identificação
Cortes
Normas dos cortes (NBR 6492)
Hachuras
Exercício
Fazer hachuras ao lado em grafite
Cortes
Normas dos cortes (NBR 6492)
Cotas de nível
Cortes
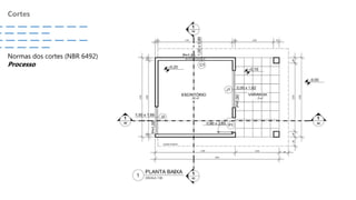
Normas dos cortes (NBR 6492)
Processo
Cortes
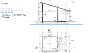
Normas dos cortes (NBR 6492)
Processo

TEC 1_ Aula 13 projeções ortogonais_Cortes