Incorporar apresentação
Baixado 29 vezes












































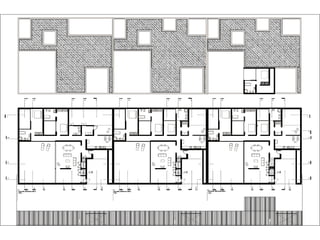
Este documento apresenta os planos e maquetas de um projeto arquitetônico de um estudante da Universidade Lusíada de Lisboa para seu quarto ano de projeto. Os planos incluem plantas do edifício, zonas verdes, cobertura e subsolo, enquanto as maquetas conceitualizam o projeto arquitetônico, habitações, perfis topográficos e plataformas de serviço.











































