PORTIFÓLIO
GERENCIAMENTO
DE OBRAS
COORDENADOR DE
OBRAS
Luciano E. Fonseca
PROJETO VERTICAL
Gerenciamento de obra
projeto construção
de novas lajes
(demolição / estrutura metálica)
ESTRUTURAMETÁLICA LAJES BANHEIROS NOVOS
NOVOS banheiroS - NOVAS LAJES / instalações
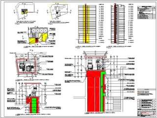
Pressurização escada interna -duto/ grelhas
Gerenciamento de obra
compatibilização
projeto pressurização
escada interna
ESCADAinterna - aberturasNAS PAREDES DE CONCRETO
ESCADAinterna - aberturasNAS PAREDES
PRESSUIRZAÇÃOESCADAinterna - dutos / PESCOÇOS
PRESSUIRZAÇÃOESCADAinterna– dutos /pescoços / aduelas
PRESSURIZAÇÃOESCADAinterna - aduelas /grelha
PRESSURIZAÇÃOESCADAinterna - grelhas
Pressurização escada interna - dutos/ grelhas /pintura
PROJETO
CASA DE MÁQUINA
PRESSURIZAÇÃO DA ESCADA INTERNA
Casa máquina PRESSURIZAÇÃO DA ESCADA INTERNA
Casa máquina PRESSURIZAÇÃO DA ESCADA INTERNA
PROJETO
CASA DE MÁQUINA
EXAUSTÃO
DOS NOVOSBANHEIROS
Casa de máquina exaustão na cobertura
Casa de máquina exaustão na cobertura
Casa de máquina exaustão na cobertura
PROJETO
ABERTURAS VÃOS EM VIGAS
CONCRETO
PARA EXAUSTÃONOVOSBANHEIROS
Gerenciamento de obra
DETECÇÃO EALARME DE
INCÊNDIO
SISTEMADETECÇÃOE ALARME - dETECTORES
SISTEMADETECÇÃOE ALARME - INFRA/ BOTOEIRAS/ SINALIZADORA
SISTEMADETECÇÃOE ALARME - hidrante novo 18º andar
PROJETO
SISTEMA DE ILUMINAÇÃO
DA ESCADA INTERNA
1. ILUMINAÇÃOCOMUM
2. ILUMINAÇÃODE EMERGÊNCIA
Sistema de iluminaçãoescadainterna
Sistema de iluminaçãoescadainterna
Sistema de iluminaçãoescadainterna
Sistema de iluminaçãoescadainterna
CRONOGRAMAS
FÍSICOS FINANCEIROS
CRONOGRAMAS
FÍSICOS
MENSAIS
COORDENADOR
DE OBRAS
Luciano E. Fonseca
P R O J E T O V E R T I C A L

Portifólio PROJETO VERTICAL