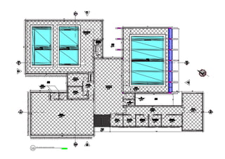
26/fl8
                                                                                                          28/fl9




                                                                                    C
                                                                                                           L



                                                                                                                                                                                                                 Projeção do telhado




                                                                                            Auditório
                                                                                         Área: 138,07m²




                                                                                                                                                                                                                                       Projeção do telhado
                                                                                     CAPACIDADE = 142 PESSOAS
                                                                                                  0,20
                                                                                                                                                                                                                                                               ACESSO
                                                                                                                                                                                                                                                             SECUNDÁRIO
                                                                                                                                                                                          Hall de entrada                                                         0,00
                                                                                                                                                                                          Área: 42,80m²
                                                                                                                                                                                                0,20



              24/fl8                                                                                                                                                                                                                                                    24/fl8
                                                                                                                                                            Sala de som
                  A                                                                                                                                         Área: 6,40m²                                                                                                    A'
                                                                                                                                                                 0,20




               29/fl9

                        N




                                                                                                                                                                                                                                                                        27/fl9
                                                                                                                                                                                                                                                                S
                                                                                                                                                                                          Sala de troféus
                                                                                                                                                                                          Área: 83,70m²
                                                                                                                                                                                                0,20




                                                                                                                                                 WC
                                                                                                                                            Área: 12,12m²
                                                                                                                                                     0,20
                                               ACESSO
                                              INTERNO
                                                  0,00




                                                                                                                                                 WC
                                                         Deck de madeira                                                                    Área: 12,12m²
                                                          Área: 40,05m²                                                                              0,20
                                                                0,20




                                                                         Circulação
                                                                       Área: 43,10m²
                                                                                    0,20




                                                                                                                                   Copa e depósito
                                                                                                                                    Área: 6,00m²
                                                                                                                       ACESSO
                                                                                                                                         0,20
                                                                                                                      INTERNO
 B                                                                                                                          0,00
                                                                                                                                                                                                                                                                          B'
25/fl8                                                                                                                                                                                                                                                                  25/fl8
                                     Sala do diretor                                 Secretária
                                                                                                                                                                                                              Recepção
                                     Área: 18,00m²                             Área: 14,00m²                                                                                Secretaria
                                                                                                                                                                                                            Área: 48,90m²
                                                                                           0,20
                                           0,20                                                                                                                           Área: 12,00m²                           0,20
                                                                                                                                                                                0,20




                                                                                                                                                                                                                                       Projeção do telhado
         Sala de reunião
         Área: 24,15m²
                 0,20




                                                                                                                                                                                                                                                              ACESSO
                                                                                                                                                                                                                                                             PRINCIPAL
                                                                                                                                                                                                                                                                 0,00




                                                                                                                                                                     Almoxarifado
                                                                                              Lavabo                                                                   e arquivo
                                                                                           Área: 2,78m²                                                             Área: 11,55m²
                                                                                                  0,20                                                                       0,20
                                                                           26/fl8




                                                                                                                                                                                                                 Projeção do telhado
                                                                                    C'




                                                                                                                    O
                                                                                                                   30/fl9




                            PLANTA BAIXA ADMINISTRAÇÃO
          22                                                                  Escala: 1/75
PLANTA BAIXA SAÚDE
10

Apresentação de TCC 2

  • 2.
    26/fl8 28/fl9 C L Projeção do telhado Auditório Área: 138,07m² Projeção do telhado CAPACIDADE = 142 PESSOAS 0,20 ACESSO SECUNDÁRIO Hall de entrada 0,00 Área: 42,80m² 0,20 24/fl8 24/fl8 Sala de som A Área: 6,40m² A' 0,20 29/fl9 N 27/fl9 S Sala de troféus Área: 83,70m² 0,20 WC Área: 12,12m² 0,20 ACESSO INTERNO 0,00 WC Deck de madeira Área: 12,12m² Área: 40,05m² 0,20 0,20 Circulação Área: 43,10m² 0,20 Copa e depósito Área: 6,00m² ACESSO 0,20 INTERNO B 0,00 B' 25/fl8 25/fl8 Sala do diretor Secretária Recepção Área: 18,00m² Área: 14,00m² Secretaria Área: 48,90m² 0,20 0,20 Área: 12,00m² 0,20 0,20 Projeção do telhado Sala de reunião Área: 24,15m² 0,20 ACESSO PRINCIPAL 0,00 Almoxarifado Lavabo e arquivo Área: 2,78m² Área: 11,55m² 0,20 0,20 26/fl8 Projeção do telhado C' O 30/fl9 PLANTA BAIXA ADMINISTRAÇÃO 22 Escala: 1/75
  • 3.