30270 - GUARDA ROUPA 2 PTS DE CORRER MANU
                                    WARDROBE 2 DOORS - ARMARIO 2 PUERTAS


                                    Instructions Manual
                                    Manual de Instrucciones




arte: Éder Pegorin (43) 9902-5383
A                      x32   B                       x16   C                      x04
                                                                                        D   4011               x08   E                     x28




                                                                                        Batente Adesivo Silicone
F   5011               x06   G                       x66   H                      x54   I                      x04   J   8071              x02




Sapata U                                                                                                             Haste Dupla Minifix Zamak
K                      x06   L   8008                x04   M                      44g   N                      x20   O                     x26




                             Cantoneira Metal
P   8031               x04   Q                       x20   R                      x24   S   5055               x01   T                     x26




Parafuso 3,5 x 16 CC

U                      x32   V   5010                x08   W 8100                 x12   X   1012               x02   Y   5094              x12




                             Suporte de Prateleira         Parafuso 4,0 x 35 CC         Cavilha madeira 8x55         Cantoneira angular
Z   5063               x04   A1 4006                 x01   B1 4008                x01




Sapata preta                 Etiqueta Canaã                Tapa furo adesivo




MAT.PRIMA                                                                                                                           QTDE.
     8020              CORREDICA METALICA 400MM                                                                                       04
     8116              SIST. PTA DE CORRER INF. 2 PTAS COM GUIAS                                                                      01
     8120              TRILHO ALUMIN "E" DUPLO SUPERIOR 1180MM                                                                        01
     8121              TRILHO ALUMIN DUPLO INFERIOR 1180MM                                                                            01
     8122              TESTEIRA ALUMIN PESADA "L" ANODIZADA 1675MM                                                                    04
     8128              CABIDEIRO ALUMINIO OBLONGO 573 X 16                                                                            01
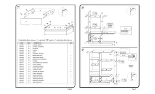
7º                                                                                                        1º
                               B
                    R                                                    B
                                           15
                                Q                                    R    Q
                         16    B                                16
                                                                                                                                       U
      R        B                                        R
                                                        D                B
                                                 B                                                                 O+T   E
                                                                                                                O+T    E                                                              O+T
                                                                                                                                            07                                       O+T
               B                                 B
                                                                                                                                                              E          E



                   13                                                                                                                                                03
                                                                     H                               H                    02
                                                            H                                   H
                                                                                                                                       U
                                                    H                                      H                                                                                                   Girofix
                                                                                                                  O+T
                                                        M        M            M   19   M   M                   O+T    E
                                                                                                                        E
                                                                                                                                                                                      L        duplo
                                                                                                                                            07                                    L
                                                                                                                                                              E                                                                               8121
                                                                                                                  O+T   E
                                                                                                               O+T    E                                                          X        05

                                                                                                                          W            09
                                                                                                                                   H                         H
                                                                                                                               H       U                H            06
                                                                                                                               W
                                                                                                                          W        H                         H
                                                                                                                  O+T          H                        H
      COD.              REF.       DESCRIÇÃO                                                        QT.        O+T                                                                                                         10

     3027001             01    LATERAL DIREITA                                                      1                                                                                                                10
     3027002             02    LATERAL ESQUERDA                                                     1
     3027003             03    DIVISORIA                                                            1
     3027004             04    CHAPEU                                                               1     2º        O+T                                                      04                                      E
     3027005             05    BASE                                                                 1             O+T                                                                                            E
                                                                                                                                                        Q+R                                                                     O+T
     3027006             06    DIVISORIA INFERIOR                                                   1                                                                                                                       O+T
     3027007             07    PRATELEIRA FIXA                                                      3                                                                                                                                     8120
     3027008             08    PRATELEIRA MOVEL                                                     2
     3027009             09    SUPORTE DE CORREDICA                                                 4                                                                E
                                                                                                                                                        L        E                                               E
                                                                                                                                                                                          07                                    O+T
     3027010             10    RODAPE                                                               2                                               L                                                        E                        U
                                                                                                                                                                                                                            O+T
     3027011             11    VISTA SUPERIOR / INFERIOR                                            2
                                                                                                                                       V 08              V
     3027012             12    VISTA LATERAL                                                        2                              V                V
                                                                                                                                                                                                                      01                             TRAVA DA
     3027013             13    FRENTE DE GAVETA                                                     4                                                                                                                                                 PORTA
     3027014             14    PORTA DESLIZANTE                                                     2
                                                                                                                                                                             V                           V
     3027015             15    CONTRA FUNDO                                                         4                                                                    V               08
                                                                                                                                                                                         07          V
     3027016             16    LATERAL DE GAVETA                                                    8
     3027017             17    FUNDO INFERIOR                                                       1                                                                                                                                                    A
     3027018             18    FUNDO SUPERIOR                                                       2                                                                                                        E                  O+T
                                                                                                                                                                                                         E                  O+T
     3027019             19    FUNDO DE GAVETA                                                      4
     3027020             20    SARRAFO FRONTAL                                                      1                                          W                                          W
                                                                                                                                                   Q+R                                                                                    U                  B
     3027021             21    SARRAFO TRASEIRO                                                     1                                                                                               21 09                     O+T
                                                                                                                                           W                                         W
     3027022             22    JANELA ACRILICA                                                      2                                                                                          20                             O+T
                                                                                                                                                                                                                           O+T
                                                                                                                                                                                                                           O+T




                                                                                               Pag.06                                                                                                                                                     Pag.03
3º                                                                   M                5º


                  18                    18
                                                                     N
                                 M+N




                                     M+N

                             17




4º                     Fixar as peças 11 e 12
                       com a sapata preta
                                                             G
                                                        L
                       «Z» e parafusos «G»
                                                                     G                6º               Posicionar a roldana
                                                                                                        superior 2,8cm da
                                                                                                       estremidade da porta
                            11                                                                               2,8cm
                                                                                                                  8116

                                                    Y
                                                        12                                   14



                                                    Y                                             14

                                                                 Y
     Y
                                                    Y
                                                                         G
         G                                                       G
     G   12                                                                                                       8116
                                                    Y


                                                                                      8122
                                                    Y                                                     Obs.: Monte as portas
                                                                                                          com seus acessórios.
                                                                                                          Encaixe a porta na guia
              I                  I              I
                                                                                                          superior em seguida encaixe
                       11                                                                                 a mesma na guia inferior.


                                                                             Pag.04                                           Pag.05

Roupeiro Manu 2 portas

  • 1.
    30270 - GUARDAROUPA 2 PTS DE CORRER MANU WARDROBE 2 DOORS - ARMARIO 2 PUERTAS Instructions Manual Manual de Instrucciones arte: Éder Pegorin (43) 9902-5383
  • 2.
    A x32 B x16 C x04 D 4011 x08 E x28 Batente Adesivo Silicone F 5011 x06 G x66 H x54 I x04 J 8071 x02 Sapata U Haste Dupla Minifix Zamak K x06 L 8008 x04 M 44g N x20 O x26 Cantoneira Metal P 8031 x04 Q x20 R x24 S 5055 x01 T x26 Parafuso 3,5 x 16 CC U x32 V 5010 x08 W 8100 x12 X 1012 x02 Y 5094 x12 Suporte de Prateleira Parafuso 4,0 x 35 CC Cavilha madeira 8x55 Cantoneira angular Z 5063 x04 A1 4006 x01 B1 4008 x01 Sapata preta Etiqueta Canaã Tapa furo adesivo MAT.PRIMA QTDE. 8020 CORREDICA METALICA 400MM 04 8116 SIST. PTA DE CORRER INF. 2 PTAS COM GUIAS 01 8120 TRILHO ALUMIN "E" DUPLO SUPERIOR 1180MM 01 8121 TRILHO ALUMIN DUPLO INFERIOR 1180MM 01 8122 TESTEIRA ALUMIN PESADA "L" ANODIZADA 1675MM 04 8128 CABIDEIRO ALUMINIO OBLONGO 573 X 16 01
  • 3.
    1º B R B 15 Q R Q 16 B 16 U R B R D B B O+T E O+T E O+T 07 O+T B B E E 13 03 H H 02 H H U H H Girofix O+T M M M 19 M M O+T E E L duplo 07 L E 8121 O+T E O+T E X 05 W 09 H H H U H 06 W W H H O+T H H COD. REF. DESCRIÇÃO QT. O+T 10 3027001 01 LATERAL DIREITA 1 10 3027002 02 LATERAL ESQUERDA 1 3027003 03 DIVISORIA 1 3027004 04 CHAPEU 1 2º O+T 04 E 3027005 05 BASE 1 O+T E Q+R O+T 3027006 06 DIVISORIA INFERIOR 1 O+T 3027007 07 PRATELEIRA FIXA 3 8120 3027008 08 PRATELEIRA MOVEL 2 3027009 09 SUPORTE DE CORREDICA 4 E L E E 07 O+T 3027010 10 RODAPE 2 L E U O+T 3027011 11 VISTA SUPERIOR / INFERIOR 2 V 08 V 3027012 12 VISTA LATERAL 2 V V 01 TRAVA DA 3027013 13 FRENTE DE GAVETA 4 PORTA 3027014 14 PORTA DESLIZANTE 2 V V 3027015 15 CONTRA FUNDO 4 V 08 07 V 3027016 16 LATERAL DE GAVETA 8 3027017 17 FUNDO INFERIOR 1 A 3027018 18 FUNDO SUPERIOR 2 E O+T E O+T 3027019 19 FUNDO DE GAVETA 4 3027020 20 SARRAFO FRONTAL 1 W W Q+R U B 3027021 21 SARRAFO TRASEIRO 1 21 09 O+T W W 3027022 22 JANELA ACRILICA 2 20 O+T O+T O+T Pag.06 Pag.03
  • 4.
    M 5º 18 18 N M+N M+N 17 4º Fixar as peças 11 e 12 com a sapata preta G L «Z» e parafusos «G» G 6º Posicionar a roldana superior 2,8cm da estremidade da porta 11 2,8cm 8116 Y 12 14 Y 14 Y Y Y G G G G 12 8116 Y 8122 Y Obs.: Monte as portas com seus acessórios. Encaixe a porta na guia I I I superior em seguida encaixe 11 a mesma na guia inferior. Pag.04 Pag.05