“Ilustrações	
  para	
  um	
  currículo	
  de	
  imagens”....…sem	
  juízos	
  nem	
  legendas,	
  mas	
  as	
  imagens	
  permitem	
  resolver	
  imprecisões	
  do	
  discurso	
  escrito	
  em	
  curriculum	
  e	
  avaliar	
  a	
  adequação	
  deste	
  ao	
  discurso	
  formal	
  dos	
  projectos.
                                                                                                                                                                                                                                                                                                          	
  
2005–Remodelação de Celeiros (Guimarães)
2006– “Pitch”, Bar-Disco (rua Passos Manuel, Porto)
2006–Arranjo interior de apartamento Domingos Araújo (Guimarães)
2008–Adaptação de celeiro para escritórios da NVE, Construções (Guimarães)
2010–Recuperação de edifício de habitação (Guimarães)
2010–Recuperação de edifício de habitação (Guimarães)
2010–Recuperação de edifício de habitação e comércio (Guimarães)
2012–Alteração e ampliação de duas moradias na Alameda Alfredo Pimenta (Guimarães)
2012– Edifício para apartamentos turísticos (Centro Histórico, Guimarães)
2002–Moradia Adelino Soares (Silvares, Guimarães)
2002–Remodelação de duas moradias unifamiliares(Guimarães)
2004– Moradia Paulo Fernandes (Candoso S. Tiago, Guimarães)
2004–Moradias em banda (Azurém, Guimarães)
2005–Moradia Armindo Carvalho (S. Torcato,Guimarães)
2005–Moradias em banda (S. Miguel, Caldas de Vizela)
2006–Moradias em banda (Mesão Frio, Guimarães)
2007–Moradias em banda no “Sardoal” (Guimarães)
2010–Moradia Francisco Marques (Azurém, Guimarães)
2010–Moradia Nuno Santoalha, Quinta do Campo (Guimarães)
2011–Moradia Mário de Sousa (Guimarães)
2012–Moradia Maria Luísa Campos Costa (Abação, Guimarães)
2012–Remodelação e ampliação de Habitação, Carlos Teixeira (Felgueiras)
2001–Edifícios de Habitação colectiva, comércios e serviços “Páteo dos Duques”(Salgueiral, Guimarães)
2003–Edifícios de habitação colectiva, comércios e serviços na Quinta da Espinhosa (Guimarães)
2004–Edifício de habitação colectiva, comércios e serviços “Villas Flor Alameda”(Guimarães)
2005–Edifício “S.Gualter” de habitação colectiva e comércios (Guimarães)
2006–Edifício para habitação colectiva, comércios e serviços (Av. D. João IV, Guimarães)
2010–Edifício de habitação colectiva (Azurém, Guimarães)
2010–Edifício de habitação colectiva (Urgeses, Guimarães)
2004–Fábrica de tubos de cartão“Tubembal”(Trofa)
2005 – Edifícios industriais (Silvares, Guimarães)
2007–Edifícios para industrias ou armazéns (Fermentões, Guimarães)
2001 – Edifício de apoio à Citânia de Briteiros (Briteiros, Guimarães)
2001– Supermercardo Intermarché (Caldas das Taipas, Guimarães)
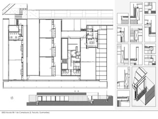
2002–Escola EB-1 da Corredoura (S. Torcato, Guimarães)
2002 – Sede da Cooperativa da Fundação “A’ Lord” (Lordelo,Paredes)
2003–Novo Mercado Municipal de Guimarães (Guimarães)
2005– Edifício escolar de Infantas (Vila Nova de Infantas, Guimarães)
2005–Piscinas Municipais de Mondim de Basto (Mondim de Basto)
2005 / 2010– Jazigos (Guimarães)
2007–Reconversão do edifício escolar de Serzedelo para Centro Escolar (Serzedelo, Guimarães)
2009– Recinto para a “Feira Semanal” (Guimarães)
2011– Concurso para projecto de reabilitação dos edifícios da Quinta de Fora do Mosteiro de S. Bento(Santo Tirso)
2011–Piscinas Municipais “Projecto Tipo – 5 freguesias” (Guimarães)
2011–Mercado Municipal de Fafe (Fafe)
2012 – Concurso de parque de estacionamento do Toural (Guimarães)
2012–Edifício de apoio /recepção do Parque de Campismo da Penha (Guimarães)
2008–Arranjo do Largo do Novo Mercado Municipal(Guimarães)
2011–Arranjo urbanístico da envolvente à Biblioteca Municipal de Fafe (Fafe)
2012–Estudo de Centralidade da freguesia de Candoso S. Martinho (Guimarães)
2009 – Loteamento “Anfrasa” em Benfica(Luanda Angola)
2009–Loteamento industrial “Molembapark” (Molemba, Angola)
2011–Universidade de Lubango (Lubango, Angola)
2011–Estudo para Biblioteca Lubango (Lubango, Angola)
2011–Edifício de habitação colectiva, comércio e serviços (Malange, Angola)
2012–Edifício de habitação, comércio e serviços (Lobito, Angola)
2012–Edifício para serviços e habitações colectivas “Mercedes- Benz”(Benguela, Angola)

Portfolio Rui Alves da Silva