Garanta uma instalação elétrica segura
Instalações Elétricas
Residenciais
O MESMO CONHECIMENTO,
UM NOVO NOME.
Graças aos nossos cabos, transportamos energia
e comunicação pelo mundo inteiro. A partir de
agora, o nosso nome: Pirelli Cabos e Sistemas
www.prysmian.com.br
1630 CP IER 288x210 ok 20.12.2006 17:46 Page 2
se transforma em Prysmian Cabos e Sistemas.
A mesma inovação, a mesma tecnologia, a mesma
performance, as mesmas pessoas.
Prysmian é o novo nome da Pirelli Cabos.
1630 IER 14X21 ok 20.12.2006 17:55 Page 3
4
Instalações Elétricas Residenciais
Índice
Apresentação . . . . . . . . . . . . . . . . . . . . . . . . . . . . . . . . . . . . . . . . . . . . . . . . . . 5
Introdução . . . . . . . . . . . . . . . . . . . . . . . . . . . . . . . . . . . . . . . . . . . . . . . . . . . . 6
Tensão e corrente elétrica . . . . . . . . . . . . . . . . . . . . . . . . . . . . . . . . . . . . . . . . 9
Potência elétrica . . . . . . . . . . . . . . . . . . . . . . . . . . . . . . . . . . . . . . . . . . . . . . 10
Fator de potência . . . . . . . . . . . . . . . . . . . . . . . . . . . . . . . . . . . . . . . . . . . . . 14
Levantamento de cargas elétricas . . . . . . . . . . . . . . . . . . . . . . . . . . . . . . . . . 15
Tipo de fornecimento e tensão . . . . . . . . . . . . . . . . . . . . . . . . . . . . . . . . . . . 26
Padrão de entrada . . . . . . . . . . . . . . . . . . . . . . . . . . . . . . . . . . . . . . . . . . . . . 28
Quadro de distribuição . . . . . . . . . . . . . . . . . . . . . . . . . . . . . . . . . . . . . . . . . 31
Disjuntores termomagnéticos . . . . . . . . . . . . . . . . . . . . . . . . . . . . . . . . . . . . . 34
Disjuntor Diferencial Residual (DR) . . . . . . . . . . . . . . . . . . . . . . . . . . . . . . . . 35
Interruptor Diferencial Residual (IDR) . . . . . . . . . . . . . . . . . . . . . . . . . . . . . . 36
Circuito de distribuição . . . . . . . . . . . . . . . . . . . . . . . . . . . . . . . . . . . . . . . . . 40
Circuitos terminais . . . . . . . . . . . . . . . . . . . . . . . . . . . . . . . . . . . . . . . . . . . . . 41
Simbologia . . . . . . . . . . . . . . . . . . . . . . . . . . . . . . . . . . . . . . . . . . . . . . . . . . . 52
Condutores elétricos . . . . . . . . . . . . . . . . . . . . . . . . . . . . . . . . . . . . . . . . . . . 58
Condutor de proteção (fio ou cabo terra) . . . . . . . . . . . . . . . . . . . . . . . . . . . 61
O uso dos dispositivos DR . . . . . . . . . . . . . . . . . . . . . . . . . . . . . . . . . . . . . . . 64
O planejamento da rede de eletrodutos . . . . . . . . . . . . . . . . . . . . . . . . . . . . . 69
Esquemas de ligação . . . . . . . . . . . . . . . . . . . . . . . . . . . . . . . . . . . . . . . . . . . 77
Representação de eletrodutos e condutores na planta . . . . . . . . . . . . . . . . . 86
Cálculo da corrente elétrica em um circuito . . . . . . . . . . . . . . . . . . . . . . . . . . 89
Cálculo da potência do circuito de distribuição . . . . . . . . . . . . . . . . . . . . . . . 91
Dimensionamento dos condutores e dos disjuntores dos circuitos . . . . . . . . 94
Dimensionamento do disjuntor aplicado no quadro do medidor . . . . . . . . . . 101
Dimensionamento dos dispositivos DR . . . . . . . . . . . . . . . . . . . . . . . . . . . . 102
Seção do condutor de proteção (fio ou cabo terra) . . . . . . . . . . . . . . . . . . . 105
Dimensionamento de eletrodutos . . . . . . . . . . . . . . . . . . . . . . . . . . . . . . . . 105
Levantamento de material . . . . . . . . . . . . . . . . . . . . . . . . . . . . . . . . . . . . . . 121
Apêndices . . . . . . . . . . . . . . . . . . . . . . . . . . . . . . . . . . . . . . . . . . . . . . . . . . 122
1630 IER 14X21 ok 20.12.2006 17:55 Page 4
Instalações Elétricas Residenciais
5
Apresentação
A importância da eletricidade em nossas vidas é inquestionável.
Ela ilumina nossos lares, movimenta nossos eletrodomésticos, permite
o funcionamento dos aparelhos eletrônicos e aquece nosso banho.
Por outro lado, a eletricidade quando mal empregada, traz alguns
perigos como os choques, às vezes fatais, e os curto-circuitos, causadores
de tantos incêndios.
A melhor forma de convivermos em harmonia com a eletricidade é
conhecê-la, tirando-lhe o maior proveito, desfrutando de todo o seu conforto
com a máxima segurança.
O objetivo desta publicação é o de fornecer, em linguagem simples e
acessível, as informações mais importantes relativas ao que é a eletricidade,
ao que é uma instalação elétrica, quais seus principais componentes, como
dimensioná-los e escolhê-los.
Com isto, esperamos contribuir para que nossas instalações elétricas
possam ter melhor qualidade e se tornem mais seguras para todos nós.
A Prysmian Cables & Systems com experiência adquirida nestes 134
anos no mundo e em 76 anos de Brasil tem por objetivo contribuir com a
melhoria da qualidade das instalações elétricas por meio da difusão de
informações técnicas.
Esperamos que esta publicação seja útil e cumpra com as finalidades
a que se propõe.
São Paulo, dezembro de 2006
1630 IER 14X21 ok 20.12.2006 17:55 Page 5
6
Instalações Elétricas Residenciais
Vamos começar
falando um pouco
a respeito da
Eletricidade.
Você já parou para
pensar que
está cercado de
eletricidade
por todos os lados ?
1630 IER 14X21 ok 20.12.2006 17:55 Page 6
Instalações Elétricas Residenciais
7
Pois é !
Estamos tão
acostumados
com ela que
nem percebemos
que existe.
1630 IER 14X21 ok 20.12.2006 17:56 Page 7
8
Instalações Elétricas Residenciais
Na realidade, a eletricidade é invisível.
O que percebemos são seus efeitos, como:
Luz
Calor
Choque
elétrico
e... esses efeitos são possíveis devido a:
Corrente elétrica Tensão elétrica Potência elétrica
1630 IER 14X21 ok 20.12.2006 17:56 Page 8
Instalações Elétricas Residenciais
9
Nos condutores, existem
partículas invisíveis chamadas
elétrons livres, que estão
em constante movimento de
forma desordenada.
Para que estes elétrons livres
passem a se movimentar de forma
ordenada, nos condutores, é
necessário ter uma força que os
empurre. A esta força é dado o
nome de tensão elétrica (U).
Esse movimento ordenado dos
elétrons livres nos condutores,
provocado pela ação da tensão,
forma uma corrente de elétrons.
Essa corrente de elétrons livres é
chamada de corrente elétrica (I).
Pode-se dizer então que:
Tensão e Corrente Elétrica
É o movimento
ordenado dos
elétrons livres
nos condutores.
Sua unidade
de medida
é o ampère (A).
Tensão Corrente elétrica
É a força que
impulsiona os
elétrons
livres nos
condutores.
Sua unidade
de medida
é o volt (V).
1630 IER 14X21 ok 20.12.2006 17:56 Page 9
10
Instalações Elétricas Residenciais
Agora, para entender
potência elétrica,
observe novamente o
desenho.
A tensão elétrica faz movimentar os elétrons de forma
ordenada, dando origem à corrente elétrica.
Potência Elétrica
Essa intensidade de luz
e calor percebida por nós
(efeitos), nada mais é do
que a potência elétrica
que foi trasformada em
potência luminosa (luz) e
potência térmica (calor).
Tendo a corrente
elétrica, a lâmpada
se acende e se aquece
com uma certa
intensidade.
Quando falamos de corrente elétrica, uma dúvida aparece, é
possível através da qualidade do material, existir diferentes
tipos de conduções de corrente elétrica? Este é um ponto
importante para definir uma boa condutividade de corrente,
toda impureza no material pode gerar uma dificuldade para
passagem dos elétrons, fazendo com que liberem mais energia
causando um aquecimento elevado e indesejado no condutor.
Ao contrario, quando o condutor tem um elevado grau de
pureza, os elétrons circulam livremente no condutor, tendo
assim, um melhor aproveitamento de energia.
1630 IER 14X21 ok 20.12.2006 17:56 Page 10
Instalações Elétricas Residenciais
11
Agora... qual é a unidade de medida
da potência elétrica?
Muito
simples !
a intensidade da tensão é
medida em volts (V).
a intensidade da corrente é
medida em ampère (A).
Corrente
elétrica
Tensão
elétrica
É importante gravar:
Para haver potência elétrica, é necessário haver:
A essa potência dá-se o nome de potência aparente.
Então, como a potência é o produto da ação
da tensão e da corrente, a sua unidade de medida
é o volt-ampère (VA).
1630 IER 14X21 ok 20.12.2006 17:56 Page 11
12
Instalações Elétricas Residenciais
A potência ativa é a parcela efetivamente
transformada em:
A potência aparente
é composta por
duas parcelas:
Potência Ativa
Potência Reativa
Potência
Mecânica
Potência
Térmica
Potência
Luminosa
A unidade de medida da potência ativa é o watt (W).
1630 IER 14X21 ok 20.12.2006 17:56 Page 12
Instalações Elétricas Residenciais
13
A potência reativa é a parcela transformada em campo
magnético, necessário ao funcionamento de:
Reatores
Em projetos de instalação elétrica
residencial os cálculos efetuados são
baseados na potência aparente e potência
ativa. Portanto, é importante conhecer
a relação entre elas para que se entenda
o que é fator de potência.
A unidade de medida da potência reativa
é o volt-ampère reativo (VAr).
Motores Transformadores
1630 IER 14X21 ok 20.12.2006 17:56 Page 13
14
Instalações Elétricas Residenciais
Sendo a potência ativa uma parcela da potência
aparente, pode-se dizer que ela representa uma
porcentagem da potência aparente que é transformada
em potência mecânica, térmica ou luminosa.
Nos projetos elétricos
residenciais, desejando-se
saber o quanto da
potência aparente foi
transformada em
potência ativa, aplica-se os
seguintes valores
de fator de potência:
A esta porcentagem dá-se o nome de fator de potência.
Quando o fator de potência é igual a 1, significa que
toda potência aparente é transformada em potência
ativa. Isto acontece nos equipamentos que só possuem
resistência, tais como: chuveiro elétrico, torneira
elétrica, lâmpadas incandescentes, fogão elétrico, etc.
Fator de Potência
1,0
0,8
para iluminação
para tomadas
de uso geral
potência
de
iluminação
(aparente) =
660 VA
fator de
potência
a ser
aplicado =
1
potência ativa
de
iluminação (W)=
1x660 VA =
660 W
potência
de tomada
de
uso geral =
7300 VA
fator de
potência
a ser
aplicado =
0,8
potência ativa
de tomada de
uso geral =
0,8x7300 VA =
5840 W
Exemplos
1630 IER 14X21 ok 20.12.2006 17:56 Page 14
Instalações Elétricas Residenciais
15
Os conceitos vistos anteriormente possibilitarão
o entendimento do próximo assunto: levantamento das
potências (cargas) a serem instaladas na residência.
A previsão de carga deve obedecer às prescrições
da NBR 5410:2004, item 9.5.2
A planta a seguir servirá
de exemplo para o levantamento
das potências.
O levantamento das potências
é feito mediante uma
previsão das potências
(cargas) mínimas
de iluminação e tomadas
a serem instaladas,
possibilitando, assim,
determinar a potência total
prevista para a instalação
elétrica residencial.
1630 IER 14X21 ok 20.12.2006 17:56 Page 15
16
A. SERVIÇO
3,40
3,40
1,75
3,15
1,80
3,25
3,25
3,10
3,75
3,05
3,05
3,05
3,40
2,30
COZINHA
DORMITÓRIO 2
DORMITÓRIO 1
BANHEIRO
COPA
SALA
1630 IER 14X21 ok 20.12.2006 17:56 Page 16
Instalações Elétricas Residenciais
17
A carga de iluminação é feita em função da área do
cômodo da residência.
NOTA: a NBR 5410:2004 não estabelece critérios para
iluminação de áreas externas em residências, ficando
a decisão por conta do projetista e do cliente.
Recomendações da NBR 5410:2004 para
o levantamento da carga de iluminação
1. Condições para se estabelecer a quantidade
mínima de pontos de luz.
2. Condições para se estabelecer a potência
mínima de iluminação.
prever pelo menos um
ponto de luz no teto,
comandado por um
interruptor de parede.
arandelas no banheiro
devem estar distantes,
no mínimo, 60 cm
do limite do boxe.
para
área igual
ou inferior
a 6 m2
atribuir um
mínimo de 100 VA
para área
superior
a 6 m2
atribuir um mínimo
de 100 VA para os
primeiros 6 m2
,
acrescido de 60 VA
para cada aumento
de 4 m2
inteiros.
1630 IER 14X21 ok 20.12.2006 17:56 Page 17
18
Instalações Elétricas Residenciais
Prevendo a carga de iluminação da planta residencial
utilizada para o exemplo, temos:
Dependência
Dimensões Potência de iluminação
área (m2
) (VA)
sala A = 3,25 x 3,05 = 9,91
9,91m2
= 6m2
+ 3,91m2
100VA
|
100VA
copa A = 3,10 x 3,05 = 9,45
9,45m2
= 6m2
+ 3,45m2
100VA
|
100VA
cozinha A = 3,75 x 3,05 = 11,43
11,43m2
=6m2
+ 4m2
+ 1,43m2
160VA
| |
100VA + 60VA
dormitório 1 A = 3,25 x 3,40 = 11,05
11,05m2
= 6m2
+ 4m2
+ 1,05m2
160VA
| |
100VA + 60VA
dormitório 2 A = 3,15 x 3,40 = 10,71
10,71m2
= 6m2
+ 4m2
+ 0,71m2
160VA
| |
100VA + 60VA
banho A = 1,80 x 2,30 = 4,14 4,14m2
=> 100VA 100VA
área de serviço A = 1,75 x 3,40 = 5,95 5,95m2
=> 100VA 100VA
hall A = 1,80 x 1,00 = 1,80 1,80m2
=> 100VA 100VA
área externa — — 100VA
1630 IER 14X21 ok 20.12.2006 17:56 Page 18
Instalações Elétricas Residenciais
19
NOTA: em diversas aplicações, é recomendável prever
uma quantidade de pontos de tomadas maior
do que o mínimo calculado, evitando-se, assim,
o emprego de extensões e benjamins (tês) que,
além de desperdiçarem energia,
podem comprometer a segurança da instalação.
Recomendações da NBR 5410:2004
para o levantamento da carga de tomadas
varandas
salas e
dormitórios
independente
da área e
cômodos ou
dependências
com mais
de 6m2
banheiros
cozinhas,
copas,
copas-cozinhas,
áreas de serviço,
lavanderias
e locais
semelhantes
cômodos ou
dependências
com área igual
ou inferior
a 6m2
no mínimo um
ponto de tomada
no mínimo um ponto
de tomada para cada
5m ou fração de
perímetro, espaçadas
tão uniformemente
quanto possível
um ponto de tomada
para cada 3,5m ou
fração de perímetro,
independente da área.
Acima da bancada da
pia devem ser previs-
tas, no mínimo, duas
tomadas de corrente,
no mesmo ponto ou
em pontos separados
pelo menos um
ponto de tomada
no mínimo um ponto
de tomada junto
ao lavatório com
uma distância
mínima de 60cm
do limite do boxe
1. Condições para se estabelecer a quantidade mínima de
pontos de tomadas. Ponto de tomada é o ponto onde a
conexão do equipamento à instalação elétrica é feita através
de tomada corrente. Um ponto de tomada pode ter uma ou
mais tomadas de corrente.
1630 IER 14X21 ok 20.12.2006 17:56 Page 19
20
Instalações Elétricas Residenciais
2. Condições para se estabelecer a potência mínima
de pontos de tomadas de uso geral (PTUG’s).
banheiros,
cozinhas, copas,
copas-cozinhas,
áreas de serviço,
lavanderias
e locais
semelhantes
demais
cômodos
ou
dependências
- atribuir, no mínimo,
600 VA por ponto de
tomada, até 3 tomadas.
- atribuir 100 VA para
os excedentes.
- atribuir, no mínimo,
100 VA por
ponto de tomada.
Pontos de Tomadas de Uso Geral (PTUG’s)
Não se destinam à ligação de equipamentos específicos
e nelas são sempre ligados:
aparelhos móveis ou aparelhos portáteis.
1630 IER 14X21 ok 20.12.2006 17:56 Page 20
Instalações Elétricas Residenciais
21
Pontos de Tomadas de Uso Específico (PTUE’s)
São destinadas à ligação de equipamentos fixos
e estacionários, como é o caso de:
3. Condições para se estabelecer a quantidade
de pontos de tomadas de uso específico (PTUE’s).
A quantidade de PTUE’s é estabelecida de acordo
com o número de aparelhos de utilização
que sabidamente vão estar fixos em uma dada
posição no ambiente.
Secadora
de roupa
Torneira
elétrica
Chuveiro
NOTA: a ligação dos aquecedores
elétricos de água ao ponto de
utilização deve ser direta, sem
uso de tomadas de corrente.
Podem ser utilizados conectores
apropriados.
1630 IER 14X21 ok 20.12.2006 17:56 Page 21
22
Instalações Elétricas Residenciais
4. Condições para se estabelecer a potência de
pontos de tomadas de uso específico (PTUE’s).
Os valores das áreas dos cômodos da planta do
exemplo já estão calculados, faltando o cálculo do
perímetro onde este se fizer necessário, para se
prever a quantidade mínima de pontos de tomadas.
• ou o valor da área
• ou o valor do perímetro
• ou o valor da área
e do perímetro
Para se prever a carga de pontos de tomadas é necessário,
primeiramente, prever a sua quantidade.
Essa quantidade, segundo os critérios, é estabelecida
a partir do cômodo em estudo,
fazendo-se necessário ter:
Conforme o que foi visto:
Atribuir a potência nominal do equipamento
a ser alimentado.
1630 IER 14X21 ok 20.12.2006 17:56 Page 22
Instalações Elétricas Residenciais
23
Obs.: (*) nesses cômodos, optou-se por instalar uma
quantidade de PTUG’s maior do que a quantidade mínima
calculada anteriormente.
Dependência
Dimensões Quantidade mínima
Área Perímetro
(m2
) (m)
PTUG’s PTUE’s
sala 9,91 3,25x2 + 3,05x2 = 12,6
5 + 5 + 2,6 —
copa 9,45 3,10x2 +3,05x2 = 12,3
3,5 + 3,5 + 3,5 + 1,8 —
cozinha 11,43 3,75x2 + 3,05x2 = 13,6
3,5 + 3,5 + 3,5 + 3,1 1 torneira elétr.
1 geladeira
dormitório 1 11,05 3,25x2 + 3,40x2 = 13,3
5 + 5 + 3,3 —
dormitório 2 10,71 3,15x2 + 3,40x2 = 13,1
5 + 5 + 3,1 —
banho 4,14 1 1 chuveiro elétr.
área de serviço 5,95 2
1 máquina
lavar roupa
hall 1,80 1 —
área externa — — — —
OBSERVAÇÃO
Área inferior a 6m2
:
não interessa
o perímetro
Estabelecendo a quantidade mínima de pontos de tomadas
de uso geral e específico:
Prevendo as cargas de pontos de tomadas de uso geral e específico.
Dependência
Dimensões Quantidade Previsão de Carga
Área Perímetro
(m2
) (m) PTUG’s PTUE’s PTUG’s PTUE’s
sala 9,91 12,6 4* — 4x100VA —
copa 9,45 12,3 4 —
3x600VA —
1x100VA
cozinha 11,43 13,6 4 2
3x600VA 1x5000W (torneira)
1x100VA 1x500W (geladeira)
dormitório 1 11,05 13,3 4* — 4x100VA —
dormitório 2 10,71 13,1 4* — 4x100VA —
banho 4,14 — 1 1 1x600VA 1x5600W (chuveiro)
área de serviço 5,95 — 2 1 2x600VA 1x1000W (máq.lavar)
hall 1,80 — 1 — 1x100VA —
área externa — — — — — —
(1 1 1) = 3
(1 1 1) = 3
(1 1 1) = 3
(1 1 1 1) = 4
(1 1 1 1) = 4
1630 IER 14X21 ok 20.12.2006 17:56 Page 23
24
Instalações Elétricas Residenciais
Reunidos todos os dados obtidos, tem-se
o seguinte quadro:
Dependência
Dimensões Potência de
iluminação
(VA)
Quanti- Potência
dade (VA)
Discrimi- Potência
nação (W)
Área Perímetro
(m2
) (m)
sala 9,91 12,6 100 4 400 — —
copa 9,45 12,3 100 4 1900 — —
cozinha 11,43 13,6 160 4 1900
torneira 5000
geladeira 500
dormitório 1 11,05 13,3 160 4 400 — —
dormitório 2 10,71 13,1 160 4 400 — —
banho 4,14 — 100 1 600 chuveiro 5600
área de serviço 5,95 — 100 2 1200 máq. lavar 1000
hall 1,80 — 100 1 100 — —
área externa — — 100 — — — —
TOTAL — — 1080VA — 6900VA — 12100W
Para obter a potência total da instalação,
faz-se necessário: a) calcular a potência ativa;
b) somar as potências ativas.
PTUG’s PTUE’s
potência
aparente
potência
ativa
1630 IER 14X21 ok 20.12.2006 17:56 Page 24
Instalações Elétricas Residenciais
25
Cálculo da
potência ativa
de iluminação
e pontos de
tomadas
de uso geral
(PTUG’s)
Em função da potência ativa total prevista para
a residência é que se determina:
o tipo de fornecimento, a tensão de alimentação
e o padrão de entrada.
Levantamento da Potência Total
Cálculo
da
potência
ativa
total
Potência de iluminação
1080 VA
Fator de potência a ser
adotado = 1,0
1080 x 1,0 = 1080 W
Potência de pontos de
tomadas de uso geral (PTUG’s)
- 6900 VA
Fator de potência a ser
adotado = 0,8
6900 VA x 0,8 = 5520 W
potência ativa
de iluminação: 1080 W
potência ativa
de PTUG’s: 5520 W
potência ativa
de PTUE’s: 12100 W
18700 W
1630 IER 14X21 ok 20.12.2006 17:56 Page 25
26
Instalações Elétricas Residenciais
Nas áreas de concessão da ELEKTRO, se a
potência ativa total for:
Tipo de Fornecimento e Tensão
Fornecimento monofásico
- feito a dois fios:
uma fase e um neutro
- tensão de 127 V
Fornecimento bifásico
- feito a três fios: duas
fases e um neutro
- tensões de
127V e 220V
Fornecimento trifásico
- feito a quatro fios:
três fases e um neutro
- tensões de 127 V e 220 V
Até 12000 W
Acima de 12000 W até 25000 W
Acima de 25000 W até 75000 W
1630 IER 14X21 ok 20.12.2006 17:56 Page 26
Instalações Elétricas Residenciais
27
No exemplo, a potência ativa total foi de:
NOTA: não sendo área de concessão da ELEKTRO,
o limite de fornecimento, o tipo de fornecimento e os
valores de tensão podem ser diferentes do exemplo.
Estas informações são obtidas na companhia
de eletricidade de sua cidade.
18700 W
Portanto:
fornecimento
bifásico, pois
fica entre
12000 W
e 25000 W.
Sendo
fornecimento
bifásico
têm-se
disponíveis
dois valores
de tensão:
127 V e 220 V.
Uma vez determinado
o tipo de fornecimento,
pode-se determinar
também o padrão
de entrada.
Voltando ao exemplo:
Potência ativa
total:
18700 watts
Tipo de
fornecimento:
bifásico.
O padrão de
entrada deverá
atender ao
fornecimento
bifásico.
Conseqüentemente:
1630 IER 14X21 ok 20.12.2006 17:56 Page 27
28
Instalações Elétricas Residenciais
E... o que vem a ser padrão de entrada?
Padrão de entrada nada
mais é do que o poste
com isolador de roldana,
bengala, caixa de medição
e haste de terra, que
devem estar instalados,
atendendo
às especificações
da norma técnica da
concessionária para
o tipo de fornecimento.
Uma vez pronto o padrão de entrada,
segundo as especificações da norma
técnica, compete à concessionária fazer
a sua inspeção.
1630 IER 14X21 ok 20.12.2006 17:56 Page 28
Instalações Elétricas Residenciais
29
A norma técnica referente à instalação do padrão
de entrada, bem como outras informações a esse
respeito deverão ser obtidas junto à agência local
da companhia de eletricidade.
Estando tudo
certo, a
concessionária
instala e liga
o medidor e
o ramal de
serviço,
Uma vez pronto o padrão de
entrada e estando ligados
o medidor e o ramal de serviço,
a energia elétrica entregue pela
concessionária estará disponível
para ser utilizada.
1630 IER 14X21 ok 20.12.2006 17:56 Page 29
30
Instalações Elétricas Residenciais
Através do circuito de distribuição, essa energia
é levada do medidor até o quadro de distribuição,
também conhecido como quadro de luz.
Rede Pública de Baixa Tensão
Ramal de
ligação
Medidor
Circuitos terminais
Quadro de
distribuição
Circuito de
distribuição
Eletrodo de
aterramento
1630 IER 14X21 ok 20.12.2006 17:56 Page 30
Instalações Elétricas Residenciais
31
Ele é o centro de distribuição, pois:
recebe os condutores que vêm do medidor.
O que vem a
ser quadro de
distribuição?
Quadro de distribuição
é o centro de distribuição
de toda a instalação elétrica
de uma residência.
nele é que se
encontram os
dispositivos de
proteção.
Circuito 5 (PTUE’s)
Pontos de Tomadas
de Uso Específico
(ex. torneira elétrica)
Circuito 6 (PTUE’s)
Pontos de Tomadas
de Uso Específico
(ex. chuveiro elétrico)
Circuito 4 (PTUG’s)
Pontos de Tomadas
de Uso Geral
dele é que partem os circuitos terminais que
vão alimentar diretamente as
lâmpadas, pontos de tomadas e aparelhos elétricos.
Circuito 2
Iluminação de
serviço
Circuito 3 (PTUG’s)
Pontos de Tomadas
de Uso Geral
Circuito 1
Iluminação
social
Segundo o item 6.5.4.10 da NBR 5410:2004, os quadros devem
ser entregues com a advertência indicada na figura, a qual pode
vir de fábrica ou ser afixada no local da obra. Não é especificado
em que material a advertência deve ser feita, mas exige-se que
ela não deve ser facilmente removível.
1630 IER 14X21 ok 20.12.2006 17:56 Page 31
32
Instalações Elétricas Residenciais
A D V E R T Ê N C I A
1 - Quando um disjuntor ou fusível atua, desligando algum circuito ou a
instalação inteira, a causa pode ser uma sobrecarga ou um curto-circuito.
Desligamentos freqüentes são sinal de sobrecarga. Por isso, NUNCA troque
seus disjuntores ou fusíveis por outros de maior corrente (maior
amperagem), simplesmente. Como regra, a troca de um disjuntor ou fusível
por outro de maior corrente requer, antes, a troca dos fios e cabos elétricos,
por outros de maior seção (bitola).
2 - Da mesma forma, NUNCA desative ou remova a chave automática de
proteção contra choques elétricos (dispositivo DR), mesmo em caso de
desligamentos sem causa aparente. Se os desligamentos forem freqüentes e,
principalmente, se as tentativas de religar a chave não tiverem êxito, isso
significa, muito provavelmente, que a instalação elétrica apresenta
anomalias internas, que só podem ser identificadas e corrigidas por
profissionais qualificados. A DESATIVAÇÃO OU REMOÇÃO DA CHAVE
SIGNIFICA A ELIMINAÇÃO DE MEDIDA PROTETORA CONTRA CHOQUES
ELÉTRICOS E RISCO DE VIDA PARA OS USUÁRIOS DA INSTALAÇÃO.
O quadro de distribuição deve estar localizado:
em lugar
de
fácil
acesso
e o mais
próximo possível
do medidor
Através dos desenhos a seguir, você poderá enxergar os
componentes e as ligações feitas no quadro de distribuição.
Isto é feito para se evitar gastos desnecessários com
os condutores do circuito de distribuição, que são os
mais grossos de toda a instalação e, portanto, os de maior valor.
1630 IER 14X21 ok 20.12.2006 17:56 Page 32
Instalações Elétricas Residenciais
33
Este é um exemplo de quadro de distribuição
para fornecimento bifásico.
Proteção
Fase
Neutro
Disjuntor
diferencial
residual geral
Barramento
de interligação
das fases
Um dos dispositivos de proteção que se encontra no
quadro de distribuição é o disjuntor termomagnético.
Vamos falar um pouco a seu respeito.
Barramento de neutro.
Faz a ligação dos
condutores neutros dos
circuitos terminais com o
neutro do circuito de
distribuição, devendo ser
isolado eletricamente
da caixa do QD.
Disjuntores
dos circuitos
terminais bifásicos.
Recebem a fase do
disjuntor geral
e distribuem para
os circuitos
terminais.
Barramento
de proteção.
Deve ser ligado
eletricamente
à caixa do QD.
Disjuntores
dos circuitos
terminais
monofásicos.
1630 IER 14X21 ok 20.12.2006 17:56 Page 33
34
Instalações Elétricas Residenciais
Disjuntores termomagnéticos são dispositivos que:
oferecem proteção aos
condutores do circuito Desligando-o
automaticamente
quando da ocorrência
de uma sobrecorrente
provocada por um
curto-circuito
ou sobrecarga.
Operando-o como
um interruptor,
secciona somente o
circuito necessário
numa eventual
manutenção.
Os disjuntores termomagnéticos têm a mesma
função que as chaves fusíveis. Entretanto:
O fusível se queima
necessitando ser trocado
O disjuntor desliga-se
necessitando religá-lo
No quadro de distribuição, encontra-se também:
- o disjuntor diferencial residual ou, então,
- o interruptor diferencial residual.
permitem
manobra manual
1630 IER 14X21 ok 20.12.2006 17:56 Page 34
Instalações Elétricas Residenciais
35
Disjuntor Diferencial Residual
É um dispositivo constituído de um disjuntor
termomagnético acoplado a um outro
dispositivo: o diferencial residual.
Sendo assim, ele conjuga as duas funções:
Pode-se dizer então que:
Disjuntor diferencial residual é um dispositivo que protege:
- os condutores do circuito contra sobrecarga
e curto-circuito e; - as pessoas contra choques elétricos.
a do disjuntor
termomagnético
a do dispositivo
diferencial residual
protege as pessoas
contra choques
elétricos provocados
por contatos diretos
e indiretos
protege os
condutores do
circuito contra
sobrecarga e
curto-circuito
e
1630 IER 14X21 ok 20.12.2006 17:56 Page 35
36
Instalações Elétricas Residenciais
É um dispositivo composto de um interruptor acoplado
a um outro dispositivo: o diferencial residual.
Pode-se dizer então que:
Interruptor diferencial residual é um dispositivo que:
liga e desliga, manualmente, o circuito e
protege as pessoas contra choques elétricos.
Interruptor Diferencial Residual
a do interruptor
a do dispositivo diferencial
residual (interno)
que liga e desliga,
manualmente,
o circuito
que protege as pessoas
contra choques elétricos
provocados por contatos
diretos e indiretos
Sendo assim, ele conjuga duas funções:
1630 IER 14X21 ok 20.12.2006 17:56 Page 36
Instalações Elétricas Residenciais
37
Os dispositivos vistos anteriormente têm em comum
o dispositivo diferencial residual (DR).
proteger as pessoas contra
choques elétricos provocados por
contato direto e indireto
Contato
indireto
Sua função é:
Contato
direto
É o contato acidental,
seja por falha de
isolamento, por ruptura
ou remoção indevida
de partes isolantes:
ou, então, por atitude
imprudente de uma pessoa
com uma parte elétrica
normalmente energizada
(parte viva).
É o contato entre uma
pessoa e uma parte
metálica de uma instalação
ou componente, normalmente
sem tensão, mas que pode
ficar energizada
por falha de isolamento
ou por uma falha interna.
1630 IER 14X21 ok 20.12.2006 17:56 Page 37
38
Instalações Elétricas Residenciais
A seguir, serão apresentados:
• tipos de disjuntores termomagnéticos;
• tipos de disjuntores DR de alta sensibilidade;
• tipo de interruptor DR de alta sensibilidade.
Os tipos de disjuntores termomagnéticos existentes no
mercado são: monopolares, bipolares e tripolares.
NOTA: os disjuntores termomagnéticos somente devem
ser ligados aos condutores fase dos circuitos.
Tipos de Disjuntores Termomagnéticos
Tripolar
Monopolar Bipolar
1630 IER 14X21 ok 20.12.2006 17:56 Page 38
Instalações Elétricas Residenciais
39
Os tipos mais usuais de disjuntores residuais de alta
sensibilidade (no máximo 30mA) existentes no mercado são:
Tipos de Disjuntores Diferenciais Residuais
NOTA: interruptores DR devem ser utilizados nos
circuitos em conjunto com dispositivos a sobrecorrente
(disjuntor ou fusível), colocados antes do interruptor DR.
Bipolar Tetrapolar
NOTA: os disjuntores DR devem ser ligados
aos condutores fase e neutro dos circuitos, sendo
que o neutro não pode ser aterrado após o DR.
Tipo de Interruptor Diferencial Residual
Um tipo de interruptor
diferencial residual
de alta sensibilidade
(no máximo 30mA)
existente no mercado
é o tetrapolar
(figura ao lado), existindo
ainda o bipolar.
1630 IER 14X21 ok 20.12.2006 17:56 Page 39
40
Instalações Elétricas Residenciais
Os dispositivos vistos são empregados na proteção dos
circuitos elétricos. Mas... o que vem a ser circuito elétrico?
Ramal de
ligação
(2F + N) Circuito de distribuição
(2F + N + PE)
Ramal de
entrada
Vai para
o quadro de
distribuição
Circuito Elétrico
Circuito de Distribuição
Liga o quadro do medidor ao quadro de distribuição.
Em uma instalação elétrica
residencial, encontramos
dois tipos de circuito:
o de distribuição
e os circuitos terminais.
É o conjunto de
equipamentos e
condutores,
ligados ao mesmo
dispositivo de proteção.
Rede pública de
baixa tensão
Ponto de
derivação
Caixa de
medição
Medidor
Origem da
instalação
Ponto de
entrega
Terminal de
aterramento
principal
Dispositivo geral de
comando e proteção
Condutor de aterramento
Eletrodo de aterramento
1630 IER 14X21 ok 20.12.2006 17:56 Page 40
Instalações Elétricas Residenciais
41
Partem do quadro de distribuição e alimentam
diretamente lâmpadas, pontos de tomadas de uso geral
e pontos de tomadas de uso específico.
Circuitos Terminais
Disjuntor
diferencial
residual geral
Neutro
Proteção
(PE)
(2F+N+PE)
Quadro de
distribuição
(F + N + PE)
(2F + PE)
(F + N + PE)
(2F + PE)
(F + N + PE)
(F + N + PE)
Fases
NOTA: em todos os exemplos a seguir, será admitido que a
tensão entre FASE e NEUTRO é 127V e entre FASES é 220V.
Consulte as tensões oferecidas em sua região
1630 IER 14X21 ok 20.12.2006 17:56 Page 41
42
Instalações Elétricas Residenciais
Exemplo de circuitos terminais protegidos por
disjuntores termomagnéticos:
Circuito de Iluminação (FN)
Circuito de Iluminação Externa (FN)
Exemplos de circuitos terminais protegidos
por disjuntores DR:
Barramento
de proteção
Disjuntor
DR
Fase
Neutro
(*) (*)
Disjuntor
monopolar
(*) se possível, ligar o condutor de proteção (terra) à carcaça da luminária.
Retorno
Fase
Neutro
Proteção
Barramento
de proteção
Disjuntor diferencial
residual bipolar
Barramento
de neutro
Retorno
1630 IER 14X21 ok 20.12.2006 17:56 Page 42
Instalações Elétricas Residenciais
43
Fase
Neutro Proteção
Barramento
de proteção
Disjuntor diferencial
residual bipolar
Exemplos de circuitos terminais protegidos por disjuntores DR:
Circuito de Ponto de Tomada de Uso Específico (FN)
Fase
Neutro Proteção
Barramento
de
proteção
Disjuntor diferencial
residual bipolar
Circuito de Pontos de Tomadas
de Uso Geral (FN)
1630 IER 14X21 ok 20.12.2006 17:56 Page 43
44
Instalações Elétricas Residenciais
Circuito de Ponto de Tomada de Uso
Específico (FF)
Fase
Fase Proteção
Barramento
de
proteção
Fase
Neutro Proteção
Barramento
de proteção
Interruptor DR
Exemplos de circuitos protegidos por interruptores DR:
Disjuntor
termomagnético
Disjuntor diferencial residual bipolar
Circuito de Ponto de Tomada de Uso
Específico (FF)
1630 IER 14X21 ok 20.12.2006 17:56 Page 44
Instalações Elétricas Residenciais
45
Fase
Fase Proteção
Barramento
de proteção
Disjuntor
termomagnético
Interruptor DR
Exemplo
de circuito
de distribuição
bifásico
ou
trifásico
protegido por
disjuntor
termomagnético:
Disjuntor ou
interruptor DR
tetrapolar
Quadro de
distribuição
Ligação
bifásica ou
trifásica
Fases
Neutro
Proteção
Circuito de Ponto de Tomada de Uso Específico (FF)
1630 IER 14X21 ok 20.12.2006 17:56 Page 45
46
Instalações Elétricas Residenciais
Neutro Proteção
(PE)
Quadro de
distribuição
(F + N + PE)
(2F + PE)
(F + N + PE)
(2F + PE)
(F + N + PE)
(F + N + PE)
Fases
A divisão da instalação elétrica
em circuitos terminais segue critérios
estabelecidos pela NBR 5410:2004,
apresentados em seguida.
A instalação elétrica de uma residência deve
ser dividida em circuitos terminais.
Isso facilita a manutenção e reduz a interferência.
1630 IER 14X21 ok 20.12.2006 17:56 Page 46
Instalações Elétricas Residenciais
47
Critérios estabelecidos pela
NBR 5410:2004
Além desses critérios, o projetista considera também
as dificuldades referentes à execução da instalação.
Para que isto não ocorra, uma boa recomendação é,
nos circuitos de iluminação e pontos de tomadas de uso
geral, limitar a corrente a 10 A, ou seja, 1270 VA em
127 V ou 2200 VA em 220 V.
• prever circuitos de iluminação separados
dos circuitos de pontos de tomadas de uso
geral (PTUG’s).
• prever circuitos independentes, exclusivos
para cada equipamento com corrente
nominal superior a 10A. Por exemplo,
equipamentos ligados em 127V com
potências acima de 1270VA (127V x 10A)
devem ter um circuito exclusivo para si.
• os pontos de tomadas de cozinhas, copas,
copas-cozinhas, áreas de serviços,
lavanderias e locais semelhantes devem
ser alimentados por circuitos destinados
unicamente a estes locais.
Se os circuitos ficarem
muito carregados,
os condutores adequados
para suas ligações irão
resultar numa seção
nominal (bitola) muito
grande, dificultando:
• a instalação dos
condutores nos
eletrodutos;
• as ligações terminais
(interruptores e
tomadas).
1630 IER 14X21 ok 20.12.2006 17:56 Page 47
48
Instalações Elétricas Residenciais
Aplicando os critérios no exemplo em questão (tabela da
pág. 24), deverá haver, no mínimo, quatro circuitos terminais:
• um para iluminação;
• um para pontos de tomadas de uso geral;
• dois para pontos de tomadas de uso específico
(chuveiro e torneira elétrica).
Mas, tendo em vista as questões de ordem prática,
optou-se no exemplo em dividir:
Com relação aos circuitos de pontos de tomadas de uso
específico, permanecem os 2 circuitos independentes:
os circuitos de iluminação em 2:
Social Serviço
sala
dormitório 1
dormitório 2
banheiro
hall
copa
cozinha
área de serviço
área externa
sala
dormitório 1
dormitório 2
banheiro
hall
cozinha
Chuveiro elétrico Torneira elétrica
copa área de
serviço
os circuitos de pontos de tomadas
de uso geral em 4:
Social Serviço
Serviço Serviço
1630 IER 14X21 ok 20.12.2006 17:56 Page 48
Instalações Elétricas Residenciais
49
Essa divisão dos circuitos, bem como suas respectivas
cargas, estão indicados na tabela a seguir:
Circuito
Tensão
(V)
Local
Corrente
(A)
nº de
circuitos
agrupados
Seção dos
condutores
(mm2
)
nº de Corrente
pólos nominal
Tipo
Proteção
Potência
Quantidade x Total
potência (VA) (VA)
nº Tipo
Sala 1 x 100
Ilum.
Dorm. 1 1 x 160
1
social
127 Dorm. 2 1 x 160 620
Banheiro 1 x 100
Hall 1 x 100
Copa 1 x 100
Ilum.
Cozinha 1 x 160
2
serviço
127 A. serviço 1 x 100 460
A. externa 1 x 100
Sala 4 x 100
3 PTUG’s 127 Dorm. 1 4 x 100 900
Hall 1 x 100
4 PTUG’s 127
Banheiro 1 x 600
1000
Dorm. 2 4 x 100
5 PTUG’s 127 Copa 2 x 600 1200
6 PTUG’s 127 Copa
1 x 100
700
1 x 600
7 PTUG’s 127 Cozinha 2 x 600 1200
PTUG’s
1 x 100
8
+PTUE’s
127 Cozinha 1 x 600 1200
1 x 500
9 PTUG’s 127 A. serviço 2 x 600 1200
10 PTUE’s 127 A. serviço 1 x 1000 1000
11 PTUE’s 220 Chuveiro 1 x 5600 5600
12 PTUE’s 220 Torneira 1 x 5000 5000
Quadro de
Distribuição 220
distribuição
Quadro de
medidor
estes campos serão preenchidos
no momento oportuno
1630 IER 14X21 ok 20.12.2006 17:56 Page 49
50
Instalações Elétricas Residenciais
Como o tipo de fornecimento determinado para
o exemplo em questão é bifásico, têm-se duas fases
e um neutro alimentando o quadro de distribuição.
Sendo assim, neste projeto foram adotados os
seguintes critérios:
Uma vez dividida a instalação elétrica
em circuitos, deve-se marcar, na planta,
o número correspondente a cada
ponto de luz e pontos de tomadas.
No caso do exemplo, a instalação ficou
com 1 circuito de distribuição
e 12 circuitos terminais que estão
apresentados na planta a seguir.
Foram ligados na menor
tensão, entre fase e
neutro (127 V).
Os circuitos de
iluminação e pontos de
tomadas de uso geral
(PTUG’s)
Foram ligados na maior
tensão, entre fase e
fase (220 V).
Os circuitos de
pontos de tomadas
de uso específico
(PTUE’s) com corrente
maior que 10 A
Quanto ao circuito de distribuição,
deve-se sempre considerar a maior tensão
(fase-fase) quando este for bifásico ou trifásico.
No caso, a tensão do circuito
de distribuição é 220 V.
1630 IER 14X21 ok 20.12.2006 17:56 Page 50
51
1630 IER 14X21 ok 20.12.2006 17:56 Page 51
52
Instalações Elétricas Residenciais
Simbologia Gráfica
Símbolo
Sabendo as quantidades de pontos de luz,
pontos de tomadas e o tipo de fornecimento,
o projetista pode dar início ao desenho do
projeto elétrico na planta residencial,
utilizando-se de uma simbologia gráfica.
Neste fascículo, a simbologia apresentada é a
usualmente empregada pelos projetistas.
Como ainda não existe um acordo comum a respeito delas,
o projetista pode adotar uma simbologia própria
identificando-a no projeto, através de uma legenda.
Para os exemplos que aparecem neste Manual,
será utilizada a simbologia apresentada a seguir.
Quadro de
distribuição
1630 IER 14X21 ok 20.12.2006 17:56 Page 52
Instalações Elétricas Residenciais
53
Ponto de luz no teto
100 - potência de iluminação
2 - número do circuito
a - comando
Símbolos
Ponto de tomada baixa
monofásica com terra
Ponto de tomada baixa
bifásica com terra
Símbolo
Ponto de luz na parede
Símbolo
100
2 a
1630 IER 14X21 ok 20.12.2006 17:56 Page 53
54
Instalações Elétricas Residenciais
Interruptor
simples
Caixa de saída alta
monofásica com terra
Caixa de saída alta bifásica
com terra
Símbolos
Ponto de tomada média
monofásica com terra
Ponto de tomada média
bifásica com terra
Símbolos
Símbolo
1630 IER 14X21 ok 20.12.2006 17:56 Page 54
Instalações Elétricas Residenciais
55
Símbolo
Interruptor paralelo
Símbolo
Campainha
Símbolo
Botão de campainha
1630 IER 14X21 ok 20.12.2006 17:56 Page 55
56
Instalações Elétricas Residenciais
Símbolo
Eletroduto embutido
na laje
Símbolo
Eletroduto embutido
na parede
Símbolo
Eletroduto embutido
no piso
1630 IER 14X21 ok 20.12.2006 17:56 Page 56
Instalações Elétricas Residenciais
57
Símbolo Condutor de proteção
(condutor terra necessariamente
verde ou verde-amarelo)
Símbolo
Condutor
fase
Símbolo
Condutor
neutro
(necessariamente
azul claro)
Símbolo
Condutor
de retorno
1630 IER 14X21 ok 20.12.2006 17:56 Page 57
58
Instalações Elétricas Residenciais
Condutores Elétricos
são aqueles condutores
sólidos (fios), os quais
apresentam baixo grau
de flexibilidade durante
o seu manuseio.
são aqueles condutores formados
por vários fios (cabos),
sendo que, quanto mais alta a classe,
maior a flexibilidade do cabo
durante o manuseio.
Classes 2, 4, 5 e 6
Classe 1
O termo condutor elétrico é usado para designar um
produto destinado a transportar corrente (energia)
elétrica, sendo que os fios e os cabos elétricos são os tipos
mais comuns de condutores. O cobre é o metal mais
utilizado na fabricação de condutores elétricos para
instalações residenciais, comerciais e industriais.
Um fio é um condutor sólido, maciço, provido de isolação,
usado diretamente como condutor de energia elétrica.
Por sua vez, a palavra cabo é utilizada quando um conjunto
de fios é reunido para formar um condutor elétrico.
Dependendo do número de fios que compõe um cabo
e do diâmetro de cada um deles, um condutor apresenta
diferentes graus de flexibilidade. A norma brasileira
NBR NM280 define algumas classes de flexibilidade para os
condutores elétricos, a saber:
1630 IER 14X21 ok 20.12.2006 17:57 Page 58
Instalações Elétricas Residenciais
59
E qual a importância da flexibilidade
de um condutor nas instalações
elétricas residenciais ?
Geralmente, nas instalações residenciais,
os condutores são enfiados no interior de eletrodutos
e passam por curvas e caixas de passagem
até chegar ao seu destino final, que é, quase sempre,
uma caixa de ligação 5 x 10cm ou 10 x 10cm
instalada nas paredes ou uma caixa octogonal
situada no teto ou forro.
Além disso, em muitas ocasiões, há vários condutores
de diferentes circuitos no interior do mesmo eledroduto,
o que torna o trabalho de enfiação mais difícil ainda.
Nestas situações, a experiência internacional
vem comprovando há muitos anos que o uso
de cabos flexíveis, com classe 5, no mínimo,
reduz significativamente o esforço de enfiação
dos condutores nos eletrodutos, facilitando também
a eventual retirada dos mesmos.
Da mesma forma, nos últimos anos também
os profissionais brasileiros têm utilizado cada vez mais
os cabos flexíveis nas instalações elétricas em geral
e nas residenciais em particular.
Fios sólidos
Cabos
flexíveis
1630 IER 14X21 ok 20.12.2006 17:57 Page 59
60
Instalações Elétricas Residenciais
NOTA: veja apêndice 1 (pg 122) as novas tecnologias de
cabos de baixa tensão para uso em construções em geral.
Outra questão muito importante, mas que vem depois da
instalação dos cabos, é a durabilidade que eles poderão ter.
Os cabos são projetados para durar, em condições normais,
mais de 25 anos. Durante a utilização normal, podem ocorrer
situações que levem o sistema a uma sobrecarga,
superaquecendo os cabos e reduzindo sua vida útil.
Estudos indicam que, a cada 5ºC de temperatura no condutor
em operação, acima do limite máximo admitido para o cabo,
o mesmo tem sua vida reduzida pela metade.
Para minimizar este problema, e até evitar danos maiores, foram
desenvolvidos condutores que são até 20% mais resistentes à
temperatura, suportando, nas eventuais sobrecargas, o dobro
do tempo dos cabos convencionais.
Estes cabos, que suportam uma temperatura de operação
de até 85ºC, reduzem a ocorrência de curtos-circuitos,
os maiores responsáveis por acidentes elétricos, tornando
os circuitos mais seguros.
1630 IER 14X21 ok 20.12.2006 17:57 Page 60
Instalações Elétricas Residenciais
61
O conceito básico da proteção contra
choques é o de que os elétrons devem
ser “desviados” da pessoa.
Sabendo-se que um condutor de cobre é
um milhão de vezes melhor condutor do
que o corpo humano, fica evidente que,
se oferecermos aos elétrons dois
caminhos para eles circularem,
sendo um o corpo e o outro um
condutor, a enorme maioria deles
irá circular pelo último,
minimizando os efeitos do
choque na pessoa. Esse condutor
pelo qual irão circular os
elétrons que “escapam” dos
aparelhos é chamado de condutor terra.
Condutor de Proteção - PE
(Condutor Terra)
Sendo assim, como podemos fazer para evitar
os choques elétricos ?
Dentro de todos os aparelhos
elétricos existem elétrons que
querem “fugir” do interior
dos condutores. Como o corpo
humano é capaz de conduzir
eletricidade, se uma pessoa encostar
nesses equipamentos, ela estará
sujeita a levar um choque,
que nada mais é do que a
sensação desagradável
provocada pela passagem
dos elétrons pelo corpo.
É preciso lembrar que
correntes elétricas de
apenas 0,05 ampère já podem
provocar graves danos ao organismo !
1630 IER 14X21 ok 20.12.2006 17:57 Page 61
Instalações Elétricas Residenciais
62
Como a função do condutor terra é “recolher” elétrons
“fugitivos”, nada tendo a ver com o funcionamento
propriamente dito do aparelho, muitas vezes as pessoas
esquecem de sua importância para a segurança.
É como em um automóvel: é possível fazê-lo funcionar
e nos transportar até o local desejado, sem o uso do
cinto de segurança. No entanto, é sabido que os riscos
relativos à segurança em caso de acidente aumentam
em muito sem o seu uso.
Como Instalar o Condutor Terra
A figura abaixo indica a maneira mais simples
de instalação em uma residência.
Observe que a seção do condutor terra deve estar
conforme a tabela da página 105. Pode-se utilizar um
único condutor terra por eletroduto, interligando
vários aparelhos e tomadas. Por norma, a cor do
condutor terra é obrigatoriamente verde/amarela
ou somente verde.
1630 IER 14X21 ok 20.12.2006 17:57 Page 62
Instalações Elétricas Residenciais
Como uma instalação deve estar preparada para receber
qualquer tipo de aparelho elétrico, conclui-se que,
conforme prescreve a norma brasileira de
instalações elétricas NBR 5410:2004,
todos os circuitos de
iluminação, pontos de
tomadas de uso
geral e também
os que servem a
aparelhos específicos
(como chuveiros,
ar condicionados,
microondas, lava
roupas, etc.)
devem possuir
o condutor terra.
Os Aparelhos e as Tomadas
Fig. 1
Fig. 2
Fig. 3
Visando uma maior segurança das instalações elétricas
e melhor padronização das tomadas de uso doméstico,
o mercado brasileiro em breve estará padronizando
a aplicação de dois modelos de tomadas,
conforme figuras abaixo. Um para tomada até 10A e
outro para tomada até 20A. Conforme NBR 14136
(Plugues e tomadas para plugues e tomadas para uso
doméstico e análogo até 20A/250V em corrente alternada).
Fique atento às mudanças.
Esta característica de tomada vem
de encontro ao que já era exigido:
o uso do condutor terra para
todos os pontos de tomadas.
orifício
ø 4 mm
orifício
ø 4,8 mm 20 A
10 A
63
1630 IER 14X21 ok 20.12.2006 17:57 Page 63
64
Instalações Elétricas Residenciais
Como vimos anteriormente,
o dispositivo DR é um interruptor
automático que desliga correntes elétricas
de pequena intensidade (da ordem de
centésimos de ampère), que um disjuntor
comum não consegue detectar, mas que podem
ser fatais se percorrerem o corpo humano.
Dessa forma, um completo sistema
de aterramento, que proteja as pessoas
de um modo eficaz, deve conter,
além do condutor terra, o dispositivo DR.
O Uso dos Dispositivos DR
Bipolar Tetrapolar
1630 IER 14X21 ok 20.12.2006 17:57 Page 64
Instalações Elétricas Residenciais
65
Recomendações e Exigências
da NBR 5410:2004
A utilização de proteção
diferencial residual (disjuntor ou interruptor)
de alta sensibilidade em
circuitos terminais que sirvam a:
NOTA: embora os circuitos não relacionados acima
possam ser protegidos apenas por disjuntores
termomagnéticos, dependendo da realização de alguns
calculos, é mais seguro e recomendável realizar a
proteção contra choques elétricos de todos os circuitos
através do emprego de dispositivos DR.
• pontos de tomadas de corrente de uso geral e específico e
pontos de iluminação em cozinhas, copas-cozinhas,
lavanderias, áreas de serviço, garagens e, no geral, a todo
local interno molhado em uso normal ou sujeito a lavagens;
• pontos de tomadas de corrente em áreas externas;
• pontos de tomadas de corrente que, embora instaladas em
áreas internas, possam alimentar equipamentos de uso em
áreas externas;
• pontos situados em locais contendo banheira ou chuveiro.
A NBR 5410:2004
exige,
1630 IER 14X21 ok 20.12.2006 17:57 Page 65
66
Instalações Elétricas Residenciais
Aplicando-se as recomendações e exigências da
NBR 5410:2004 ao projeto utilizado como exemplo, onde já
se tem a divisão dos circuitos, o tipo de proteção a ser
empregado é apresentado no quadro abaixo:
(DTM = disjuntor termomagnético. IDR = interruptor diferencial-residual)
Circuito
Tensão
(V)
Local
Corrente
(A)
nº de
circuitos
agrupados
Seção dos
condutores
(mm2
)
nº de Corrente
pólos nominal
Tipo
Proteção
Potência
Quantidade x Total
potência (VA) (VA)
nº Tipo
Sala 1 x 100
Ilum.
Dorm. 1 1 x 160
1
social
127 Dorm. 2 1 x 160 620 DTM 1
Banheiro 1 x 100 + IDR 2
Hall 1 x 100
Copa 1 x 100
Ilum. Cozinha 1 x 160 DTM 1
2 serviço 127 A. serviço 1 x 100 460 + IDR 2
A. externa 1 x 100
Sala 4 x 100
3 PTUG’s 127 Dorm. 1 4 x 100 900 DTM 1
Hall 1 x 100 + IDR 2
4 PTUG’s 127
Banheiro 1 x 600
1000
DTM 1
Dorm. 2 4 x 100 + IDR 2
5 PTUG’s 127 Copa 2 x 600 1200
DTM 1
+ IDR 2
6 PTUG’s 127 Copa
1 x 100
700
DTM 1
1 x 600 + IDR 2
7 PTUG’s 127 Cozinha 2 x 600 1200
DTM 1
+ IDR 2
PTUG’s
1 x 100
8
+PTUE’s
127 Cozinha 1 x 600 1200 DTM 1
1 x 500 + IDR 2
9 PTUG’s 127 A. serviço 2 x 600 1200
DTM 1
+ IDR 2
10 PTUE’s 127 A. serviço 1 x 1000 1000
DTM 1
+ IDR 2
11 PTUE’s 220 Chuveiro 1 x 5600 5600
DTM 2
+ IDR 2
12 PTUE’s 220 Torneira 1 x 5000 5000
DTM 2
+ IDR 2
Quadro
Distribuição 220
distribuição
DTM 2
Quadro
medidor
1630 IER 14X21 ok 20.12.2006 17:57 Page 66
Instalações Elétricas Residenciais
A NBR 5410:2004 também prevê a possibilidade de
optar pela instalação de disjuntor DR ou interruptor
DR na proteção geral. A seguir serão apresentadas as
regras e a devida aplicação no exemplo em questão.
Desenho Esquemático do Quadro de Distribuição
67
1630 IER 14X21 ok 20.12.2006 17:57 Page 67
68
Instalações Elétricas Residenciais
Opção de Utilização de Interruptor DR
na Proteção Geral
No caso de instalação de interruptor DR na proteção
geral, a proteção de todos os circuitos terminais pode
ser feita com disjuntor termomagnético.
A sua instalação é necessariamente no quadro de
distribuição e deve ser precedida de proteção geral
contra sobrecorrente e curto-circuito.
Esta solução pode, em alguns casos, apresentar
o inconveniente de o IDR disparar com mais freqüência,
uma vez que ele “sente” todas as
correntes de fuga naturais da instalação.
1630 IER 14X21 ok 20.12.2006 17:57 Page 68
Instalações Elétricas Residenciais
69
Uma vez determinado o número de circuitos elétricos
em que a instalação elétrica foi dividida e já definido
o tipo de proteção de cada um, chega o momento
de se efetuar a sua ligação.
Essa ligação,
entretanto, precisa
ser planejada
detalhadamente,
de tal forma que
nenhum ponto
de ligação fique
esquecido.
Para se efetuar esse
planejamento,
desenha-se na planta
residencial o caminho
que o eletroduto deve
percorrer, pois é através
dele que os condutores
dos circuitos
irão passar.
1630 IER 14X21 ok 20.12.2006 17:57 Page 69
70
Instalações Elétricas Residenciais
embutido na laje
embutido na parede
embutido no piso
Eletroduto
DEVE-SE:
A Locar, primeiramente, o quadro de
distribuição, em lugar de fácil
acesso e que fique o mais próximo
possível do medidor.
B Partir com o eletroduto do quadro de distribuição,
traçando seu caminho de forma a encurtar as
distâncias entre os pontos de ligação.
C Utilizar a simbologia gráfica para representar, na
planta residencial, o caminhamento do eletroduto.
D Fazer uma legenda da simbologia empregada.
E Ligar os interruptores e tomadas ao ponto de luz de
cada cômodo.
Quadro de
distribuição
Entretanto, para o planejamento do caminho
que o eletroduto irá percorrer, fazem-se necessárias
algumas orientações básicas:
1630 IER 14X21 ok 20.12.2006 17:57 Page 70
71
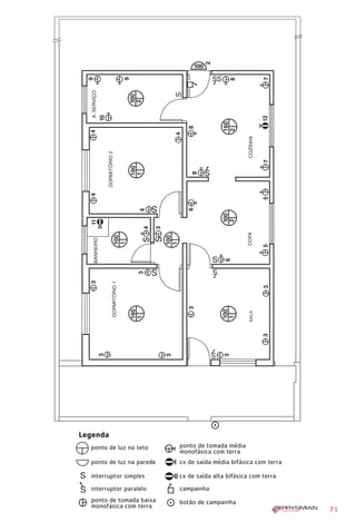
1630 IER 14X21 ok 20.12.2006 17:57 Page 71
72
Instalações Elétricas Residenciais
Para se acompanhar o desenvolvimento do caminhamento
dos eletrodutos, tomaremos a planta do exemplo
(pág. 71) anterior já com
os pontos de luz e pontos
de tomadas e os
respectivos números dos
circuitos representados.
Iniciando o caminhamento
dos eletrodutos, seguindo
as orientações vistas
anteriormente, deve-se
primeiramente:
Quadro
de
distribuição
Quadro
do
medidor
Determinar
o local do
quadro de
distribuição
Uma vez determinado o local para o quadro de
distribuição, inicia-se o caminhamento partindo dele com
um eletroduto em direção ao ponto de luz no teto da sala
e daí para os interruptores e pontos de tomadas desta
dependência. Neste momento, representa-se também o
eletroduto que conterá o circuito de distribuição.
1630 IER 14X21 ok 20.12.2006 17:57 Page 72
Instalações Elétricas Residenciais
73
Ao lado vê-se, em três
dimensões, o que foi
representado na planta
residencial.
Do ponto de luz no
teto da sala sai um
eletroduto que vai até
o ponto de luz na copa
e, daí, para os
interruptores e pontos
de tomadas. Para a
cozinha, procede-se da
mesma forma.
1630 IER 14X21 ok 20.12.2006 17:57 Page 73
74
Instalações Elétricas Residenciais
Observe, novamente,
o desenho em
três dimensões.
Para os demais cômodos da residência,
parte-se com outro eletroduto do quadro
de distribuição, fazendo as outras
ligações (página a seguir).
1630 IER 14X21 ok 20.12.2006 17:57 Page 74
75
1630 IER 14X21 ok 20.12.2006 17:57 Page 75
76
Instalações Elétricas Residenciais
Entretanto, para empregá-la, primeiramente
precisa-se identificar:
Uma vez representados os eletrodutos, e sendo através
deles que os condutores dos circuitos irão passar, pode-se
fazer o mesmo com a fiação: representando-a graficamente,
através de uma simbologia própria.
Serão apresentados a seguir
os esquemas de ligação mais
utilizados em uma residência.
Fase Neutro Proteção
Proteção
Retorno
Esta identificação
é feita com
facilidade desde
que se saiba
como são ligadas
as lâmpadas,
interruptores e
pontos de tomadas.
quais cabos estão passando dentro de cada
eletroduto representado.
Fase
Neutro
Retorno
1630 IER 14X21 ok 20.12.2006 17:57 Page 76
Instalações Elétricas Residenciais
77
Ligar sempre: - a fase ao interruptor;
- o retorno ao contato do disco central da lâmpada;
- o neutro diretamente ao contato da base
rosqueada da lâmpada;
- o condutor terra à luminária metálica.
1. Ligação de uma lâmpada comandada por
interruptor simples.
Ponto
de luz
Disco
central
Base
rosqueada
Luminária
(metálica)
Interruptor
simples
Retorno
1630 IER 14X21 ok 20.12.2006 17:57 Page 77
78
Instalações Elétricas Residenciais
2. Ligação de mais de uma lâmpada com
interruptores simples.
Neutro
Fase
Retorno
Interruptor
simples
1630 IER 14X21 ok 20.12.2006 17:57 Page 78
Instalações Elétricas Residenciais
79
Fase
Neutro
Retorno
Retorno
Retorno
Proteção
Esquema equivalente
Interruptor paralelo
3. Ligação de lâmpada comandada de dois pontos
(interruptores paralelos).
1630 IER 14X21 ok 20.12.2006 17:57 Page 79
80
Instalações Elétricas Residenciais
Retorno
Retorno
Proteção
Retorno
Fase
Neutro
Retorno
Retorno
Esquema equivalente
Interruptor
intermediário
Interruptor
paralelo Interruptor
paralelo
4. Ligação de lâmpada comandada de três ou mais
pontos (paralelos + intermediários).
1630 IER 14X21 ok 20.12.2006 17:57 Page 80
Instalações Elétricas Residenciais
81
5. Ligação de lâmpada comandada por interruptor
simples, instalada em área externa.
Neutro
Proteção
Retorno
Neutro
Proteção
Fase
Interruptor
simples
Retorno
Fase
1630 IER 14X21 ok 20.12.2006 17:57 Page 81
82
Instalações Elétricas Residenciais
Tomadas 2P + T
Esquema equivalente
Neutro
Proteção
Fase
Neutro Proteção
Fase
6. Ligação de pontos de tomadas de uso geral
(monofásicas).
1630 IER 14X21 ok 20.12.2006 17:57 Page 82
Instalações Elétricas Residenciais
83
7. Ligação de pontos de tomadas de uso específico.
Neutro
Proteção
Fase
Fase 2
Proteção
Fase 1
Bifásica
Monofásica
1630 IER 14X21 ok 20.12.2006 17:57 Page 83
84
Instalações Elétricas Residenciais
Sabendo-se como as ligações elétricas são feitas,
pode-se então representá-las graficamente na
planta, devendo sempre:
• representar os condutores que passam dentro de
cada eletroduto, através da simbologia própria;
• identificar a que circuitos pertencem.
Na prática, não se recomenda
instalar mais do que 6 ou 7
condutores por eletroduto,
visando facilitar a enfiação e/ou
retirada dos mesmos, além de
evitar a aplicação
de fatores de correções por
agrupamento muito rigorosos.
Por quê
a representação
gráfica da fiação
deve ser feita ?
Para exemplificar a representação
gráfica da fiação, utilizaremos a planta do
exemplo a seguir, onde os eletrodutos
já estão representados.
Recomendações
A representação gráfica da
fiação é feita para que, ao
consultar a planta, se saiba
quantos e quais condutores
estão passando dentro de
cada eletroduto, bem como a
que circuito pertencem.
1630 IER 14X21 ok 20.12.2006 17:57 Page 84
85
1630 IER 14X21 ok 20.12.2006 17:57 Page 85
86
Instalações Elétricas Residenciais
Começando a
representação gráfica
pelo alimentador:
os dois condutores fase,
o neutro e o de
proteção (PE) partem
do quadro do medidor
e vão até o quadro
de distribuição.
Do quadro de
distribuição saem
os condutores fase,
neutro e de proteção
do circuito 1, indo
até o ponto de
luz da sala.
Do ponto de luz
da sala, faz-se
a ligação da
lâmpada que será
comandada
por interruptores
paralelos.
1
1630 IER 14X21 ok 20.12.2006 17:57 Page 86
87
Instalações Elétricas Residenciais
Para ligar os pontos de
tomadas da sala, é
necessário sair do
quadro de distribuição
com os fios fase e
neutro do circuito 3 e o
fio de proteção, indo até
o ponto de luz na sala
e daí para os pontos de
tomadas, fazendo a sua
ligação.
Ao prosseguir com a instalação é necessário levar
o fase, o neutro e o proteção do circuito 2 do quadro
de distribuição até o ponto de luz na copa.
E assim por diante, completando a distribuição.
Observe que, com a alternativa apresentada, os eletrodutos
não estão muito carregados. Convém ressaltar que esta
é uma das soluções possíveis, outras podem ser estudadas,
inclusive a mudança do quadro de distribuição mais
para o centro da instalação, mas isso só é possível enquanto
o projeto estiver no papel. Adotaremos para este projeto
a solução apresentada na página a seguir.
1630 IER 14X21 ok 20.12.2006 17:57 Page 87
88
1630 IER 14X21 ok 20.12.2006 17:57 Page 88
Instalações Elétricas Residenciais
89
Cálculo da Corrente
A fórmula P = U x I permite o cálculo da corrente,
desde que os valores da potência e da tensão
sejam conhecidos.
Substituindo na fórmula as
letras correspondentes
à potência e tensão pelos
seus valores conhecidos:
No projeto elétrico desenvolvido como exemplo, os
valores das potências de iluminação e tomadas
de cada circuito terminal já estão previstos e a tensão
de cada um deles já está determinada.
Esses valores se
encontram registrados
na tabela a seguir.
P = U x I
635 = 127 x ?
Para o cálculo
da corrente:
Para achar o valor da
corrente basta dividir os
valores conhecidos,
ou seja, o valor da potência
pela tensão:
I = ?
I = P ÷ U
I = 635 ÷ 127
I = 5 A
I = P ÷ U
1630 IER 14X21 ok 20.12.2006 17:57 Page 89
90
Instalações Elétricas Residenciais
Circuito
Tensão
(V)
Local
Corrente
(A)
nº de
circuitos
agrupados
Seção dos
condutores
(mm2
)
nº de Corrente
pólos nominal
Tipo
Proteção
Potência
Quantidade x Total
potência (VA) (VA)
nº Tipo
Sala 1 x 100
Ilum.
Dorm. 1 1 x 160
1
social
127 Dorm. 2 1 x 160 620 4,9 DTM 1
Banheiro 1 x 100 + IDR 2
Hall 1 x 100
Copa 1 x 100
Ilum. Cozinha 1 x 160 DTM 1
2 serviço 127 A. serviço 1 x 100 460 3,6 + IDR 2
A. externa 1 x 100
Sala 4 x 100
3 PTUG’s 127 Dorm. 1 4 x 100 900 7,1 DTM 1
Hall 1 x 100 + IDR 2
4 PTUG’s 127
Banheiro 1 x 600
1000 7,9
DTM 1
Dorm. 2 4 x 100 + IDR 2
5 PTUG’s 127 Copa 2 x 600 1200 9,4
DTM 1
+ IDR 2
6 PTUG’s 127 Copa
1 x 100
700 5,5
DTM 1
1 x 600 + IDR 2
7 PTUG’s 127 Cozinha 2 x 600 1200 9,4
DTM 1
+ IDR 2
PTUG’s
1 x 100
8
+PTUE’s
127 Cozinha 1 x 600 1200 9,4 DTM 1
1 x 500 + IDR 2
9 PTUG’s 127 A. serviço 2 x 600 1200 9,4
DTM 1
+ IDR 2
10 PTUE’s 127 A. serviço 1 x 1000 1000 7,9
DTM 1
+ IDR 2
11 PTUE’s 220 Chuveiro 1 x 5600 5600 25,5
DTM 2
+ IDR 2
12 PTUE’s 220 Torneira 1 x 5000 5000 22,7
DTM 2
+ IDR 2
Quadro de
Distribuição 220
distribuição
12459 56,6 DTM 2
Quadro de
medidor
Para o cálculo da corrente do circuito de distribuição,
primeiramente é necessário calcular a
potência deste circuito.
1630 IER 14X21 ok 20.12.2006 17:57 Page 90
Instalações Elétricas Residenciais
91
Cálculo da Potência do Circuito
de Distribuição
Nota: estes valores já foram calculados na página 25
6600 x 0,40 = 2640W
1. Somam-se os valores das potências ativas de
iluminação e pontos de tomadas de uso geral (PTUG’s).
2. Multiplica-se o valor calculado (6600 W) pelo
fator de demanda correspondente a esta potência.
potência ativa de iluminação: 1080 W
potência ativa de PTUG’s: 5520W
6600W
Fator de demanda representa uma porcentagem
do quanto das potências previstas serão utilizadas
simultaneamente no momento de maior solicitação da
instalação. Isto é feito para não superdimensionar
os componentes dos circuitos de distribuição, tendo
em vista que numa residência nem todas as lâmpadas
e pontos de tomadas são utilizadas ao mesmo tempo.
Fatores de demanda para iluminação e
pontos de tomadas de uso geral (PTUG’s)
Potência (W) Fator de demanda
potência ativa de
iluminação e
PTUG’s = 6600W
fator de demanda:
0,40
0 a 1000 0,86
1001 a 2000 0,75
2001 a 3000 0,66
3001 a 4000 0,59
4001 a 5000 0,52
5001 a 6000 0,45
6001 a 7000 0,40
7001 a 8000 0,35
8001 a 9000 0,31
9001 a 10000 0,27
Acima de 10000 0,24
1630 IER 14X21 ok 20.12.2006 17:57 Page 91
92
Instalações Elétricas Residenciais
O fator de demanda para as PTUE’s é obtido em função
do número de circuitos de PTUE’s previstos no projeto.
12100 W x 0,76 = 9196 W
3. Multiplicam-se as potências dos pontos de tomadas
de uso específico (PTUE’s) pelo fator de demanda
correspondente.
nº de circuitos
FD
PTUE’s
nº de circuitos de PTUE’s
do exemplo = 4.
Potência ativa de PTUE’s:
1 chuveiro de 5600 W
1 torneira de 5000 W
1 geladeira de 500 W
1 máquina de
lavar de 1000 W
12100 W
fator de demanda = 0,76
01 1,00
02 1,00
03 0,84
04 0,76
05 0,70
06 0,65
07 0,60
08 0,57
09 0,54
10 0,52
11 0,49
12 0,48
13 0,46
14 0,45
15 0,44
16 0,43
17 0,40
18 0,40
19 0,40
20 0,40
21 0,39
22 0,39
23 0,39
24 0,38
25 0,38
1630 IER 14X21 ok 20.12.2006 17:57 Page 92
Instalações Elétricas Residenciais
93
11836 ÷ 0,95 = 12459VA
Anota-se o valor da potência e da corrente do
circuito de distribuição na tabela anterior.
Cálculo da Corrente do Circuito
de Distribuição
4. Somam-se os valores das potências ativas de
iluminação, de PTUG’s e de PTUE’s já corrigidos pelos
respectivos fatores de demandas.
5. Divide-se o valor obtido pelo fator de potência
médio de 0,95, obtendo-se assim o
valor da potência do circuito de distribuição.
potência ativa de iluminação e PTUG’s: 2640W
potência ativa de PTUE’s: 9196 W
11836W
Uma vez obtida a potência do circuito
de distribuição, pode-se efetuar o:
potência do circuito
de distribuição: 12459VA
Fórmula: I = P ÷ U
P = 12459VA
U = 220 V
I = 12459 ÷ 220
I = 56,6A
1630 IER 14X21 ok 20.12.2006 17:57 Page 93
94
Instalações Elétricas Residenciais
Para se efetuar o dimensionamento dos
condutores e dos disjuntores do circuito,
algumas etapas devem ser seguidas.
O maior agrupamento para cada um dos
circuitos do projeto se encontra em
destaque na planta a seguir.
• Dimensionar a fiação de um circuito é determinar a seção
padronizada (bitola) dos condutores deste circuito, de
forma a garantir que a corrente calculada para ele possa
circular pelos cabos, por um tempo ilimitado, sem que
ocorra superaquecimento.
• Dimensionar o disjuntor (proteção) é determinar o valor
da corrente nominal do disjuntor de tal forma que se
garanta que os condutores da instalação não sofram
danos por aquecimento excessivo provocado por
sobrecorrente ou curto-circuito.
Consultar a planta com a representação
gráfica da fiação e seguir o caminho que
cada circuito percorre, observando neste
trajeto qual o maior número de circuitos
que se agrupa com ele.
Dimensionamento dos condutores
e dos Disjuntores dos Circuitos
1ª Etapa
1630 IER 14X21 ok 20.12.2006 17:57 Page 94
95
1630 IER 14X21 ok 20.12.2006 17:57 Page 95
96
Instalações Elétricas Residenciais
1 3 7 3
2 3 8 3
3 3 9 3
4 3 10 2
5 3 11 1
6 2 12 3
Distribuição 1
O maior número de circuitos agrupados para
cada circuito do projeto está relacionado abaixo.
nº do nº de circuitos nº do nº de circuitos
circuito agrupados circuito agrupados
Determinar a seção adequada e o
disjuntor apropriado para cada um
dos circuitos.
Para isto é necessário apenas saber
o valor da corrente do circuito e,
com o número de circuitos agrupados
também conhecido, entrar na tabela 1
e obter a seção do condutor e o valor
da corrente nominal do disjuntor.
2ª Etapa
Corrente = 7,1 A, 3 circuitos agrupados por
eletroduto: entrando na tabela 1 na coluna
de 3 circuitos por eletroduto, o valor de
7,1A é menor do que 10A e, portanto, a
seção adequada para o circuito 3 é 1,5mm2
e o disjuntor apropriado é 10A.
Circuito 3
Exemplo
1630 IER 14X21 ok 20.12.2006 17:57 Page 96
Instalações Elétricas Residenciais
97
Tabela 1
Exemplo do circuito 3 Exemplo do circuito 12
Corrente = 22,7 A, 3 circuitos agrupados
por eletroduto: entrando na tabela 1 na
coluna de 3 circuitos por eletroduto, o
valor de 22,7A é maior do que 20 e,
portanto, a seção adequada para o circuito
12 é 6mm2
o disjuntor apropriado é 25A.
Circuito 12
Exemplo
Seção dos
condutores
(mm2
)
1 circuito
por eletroduto
Corrente nominal do disjuntor (A)
2 circuitos
por eletroduto
3 circuitos
por eletroduto
4 circuitos
por eletroduto
1,5 15 10 10 10
2,5 20 15 15 15
4 30 25 20 20
6 40 30 25 25
10 50 40 40 35
16 70 60 50 40
25 100 70 70 60
35 125 100 70 70
50 150 100 100 90
70 150 150 125 125
95 225 150 150 150
120 250 200 150 150
1630 IER 14X21 ok 20.12.2006 17:57 Page 97
98
Instalações Elétricas Residenciais
Desta forma,
aplicando-se
o critério
mencionado
para todos os
circuitos,
temos:
nº do Seção adequada Disjuntor
circuito (mm2
) (A)
1 1,5 10
2 1,5 10
3 1,5 10
4 1,5 10
5 1,5 10
6 1,5 10
7 1,5 10
8 1,5 10
9 1,5 10
10 1,5 10
11 4 30
12 6 25
Distribuição 16 70
Estes são os tipos de cada um dos circuitos do projeto.
Verificar, para cada circuito, qual o valor
da seção mínima para os condutores
estabelecida pela NBR 5410:2004 em
função do tipo de circuito.
3ª Etapa
1 Iluminação 7 Força
2 Iluminação 8 Força
3 Força 9 Força
4 Força 10 Força
5 Força 11 Força
6 Força 12 Força
Distribuição Força
nº do Tipo nº do Tipo
circuito circuito
1630 IER 14X21 ok 20.12.2006 17:57 Page 98
Instalações Elétricas Residenciais
99
A NBR 5410:2004 estabelece as
seguintes seções mínimas de
condutores de acordo
com o tipo de circuito:
Seção mínima de condutores
Tipo de circuito Seção mínima (mm2
)
Iluminação 1,5
Força 2,5
Aplicando
o que a
NBR 5410:2004
estabelece,
as seções
mínimas dos
condutores
para cada um
dos circuitos do
projeto são:
nº do
Tipo
Seção mínima
circuito (mm2
)
1 Iluminação 1,5
2 Iluminação 1,5
3 Força 2,5
4 Força 2,5
5 Força 2,5
6 Força 2,5
7 Força 2,5
8 Força 2,5
9 Força 2,5
10 Força 2,5
11 Força 2,5
12 Força 2,5
Distribuição Força 2,5
1630 IER 14X21 ok 20.12.2006 17:57 Page 99
100
Instalações Elétricas Residenciais
A tabela abaixo mostra as bitolas
encontradas para cada circuito
após termos feito os cálculos e termos
seguido os critérios da NBR 5410:2004
1 1,5 1,5 7 1,5 2,5
2 1,5 1,5 8 1,5 2,5
3 1,5 2,5 9 1,5 2,5
4 1,5 2,5 10 1,5 2,5
5 1,5 2,5 11 4 2,5
6 1,5 2,5 12 6 2,5
Distribuição 16 2,5
nº Seção Seção nº Seção Seção
do adequada mínima do adequada mínima
circuito (mm2
) (mm2
) circuito (mm2
) (mm2
)
1,5mm2
é menor que 2,5mm2
seção dos condutores:
2,5mm2
Circuito 3
Exemplo
6mm2
é maior que 2,5mm2
seção dos condutores:
6mm2
Circuito 12
Exemplo
1630 IER 14X21 ok 20.12.2006 17:57 Page 100
Instalações Elétricas Residenciais
101
nº do Seção dos
circuito condutores (mm2
)
1 1,5
2 1,5
3 2,5
4 2,5
5 2,5
6 2,5
nº do Seção dos
circuito condutores (mm2
)
7 2,5
8 2,5
9 2,5
10 2,5
11 4
12 6
Distribuição 16
De posse desses dados, consulta-se a norma de
fornecimento da companhia de eletricidade local para
se obter a corrente nominal do disjuntor a ser empregado.
Dimensionamento do Disjuntor Aplicado
no Quadro do Medidor
• a potência total instalada
que determinou o tipo de
fornecimento;
• o tipo de sistema de
distribuição da companhia
de eletricidade local.
Para se
dimensionar
o disjuntor
aplicado no quadro
do medidor,
primeiramente é
necessário saber:
Nota: no caso da ELEKTRO, a norma de
fornecimento é a NTU-1.
Comparando os valores das seções
adequadas, obtidos na tabela 1 (pág. 97),
com os valores das seções mínimas estabelecidas
pela NBR 5410:2004 adotamos para a seção dos
condutores do circuito o maior deles.
1630 IER 14X21 ok 20.12.2006 17:57 Page 101
102
Instalações Elétricas Residenciais
25 20 20 15
(3/4) (3/4) 6 (1/2) (1/2)
25 20 20 15
(3/4) (3/4) 10 (1/2) (1/2)
32 25 20 15
(1) (1) 10 (1/2) (1/2)
32 25 20 15
(1) (1) 10 (1/2) (1/2)
32 25 20 15
(1) (1) 10 (1/2) (1/2)
Exemplificando o dimensionamento do disjuntor
aplicado no quadro do medidor:
Consultando a NTU-1:
Tabela 1 da NTU-1- Dimensionamento do ramal
de entrada - Sistema estrela com neutro -
Tensão de fornecimento 127/220 V (1)
18,7kW é maior que 15kW e menor do que 20kW.
A corrente nominal do disjuntor será 70A.
Cate-
goria
Carga
instalada
(kW)
Demanda
calcu-
lada
(kVA)
Medi-
ção
Proteção Eletroduto
tam. nomi-
nal mm (pol)
Disjuntor
termomag.
(A)
Chave
(A) (8)
Fusível
(A) (4) PVC Aço (7) PVC Aço (7)
Limitação (2)
motores (cv)
Condutor
ramal de
entrada
(mm2
) (3)
FN FF FFFN
Aterramento
Cond.
(mm2
)
(3)
Eletroduto tam.
nom. mm (pol)
a potência total instalada: 18700 W ou 18,7k W
sistema de distribuição: estrela com neutro aterrado
A1 C≤ 5
- Direta
1 - - 6 40 30 30
A2 5<C≤ 10 2 - - 16 70 100 70
B1 (9)C≤ 10
- Direta
1 2 - 10 40 60 40
B2 10<C≤ 15 2 3 - 16 60 60 60
B3 15<C≤ 20 2 5 - 25 70 100 70
Dimensionar o dispositivo DR é determinar o valor
da corrente nominal e da corrente diferencial-residual
nominal de atuação de tal forma que se garanta
a proteção das pessoas contra choques elétricos que
possam colocar em risco a vida da pessoa.
Dimensionamento dos Dispositivos DR
1630 IER 14X21 ok 20.12.2006 17:57 Page 102
Instalações Elétricas Residenciais
103
Corrente
diferencial-residual
nominal de atuação
Assim temos duas situações:
A NBR 5410:2004
estabelece que, no caso
dos DRs de alta sensibilidade,
o valor máximo para esta
corrente é de 30mA
(trinta mili ampères).
Corrente
nominal
De um modo geral, as
correntes nominais típicas
disponíveis no mercado, seja
para Disjuntores DR ou
Interruptores DR são: 25,
40, 63, 80 e 100A.
Devem ser escolhidos com base
na tabela 1 (pág. 94).
Note que não será permitido
usar um Disjuntor DR de 25A,
por exemplo, em circuitos que
utilizem condutores de 1,5
e 2,5mm2
.
Nestes casos, a solução é
utilizar uma combinação de
disjuntor termomagnético +
interruptor diferencial-residual.
Disjuntores DR
Devem ser
escolhidos com
base na corrente
nominal dos
disjuntores
termomagnéticos,
a saber:
Interruptores DR (IDR)
Corrente nominal Corrente nominal
do disjuntor (A) mínima do IDR (A)
10, 15, 20, 25 25
30, 40 40
50, 60 63
70 80
90, 100 100
1630 IER 14X21 ok 20.12.2006 17:57 Page 103
104
Instalações Elétricas Residenciais
Aplicando os métodos de escolha de disjuntores e
dispositivos DR vistos anteriormente, temos:
Circuito
Tensão
(V)
Local
Corrente
(A)
nº de
circuitos
agrupados
Seção dos
condutores
(mm2
)
nº de Corrente
pólos nominal
Tipo
Proteção
Potência
Quantidade x Total
potência (VA) (VA)
nº Tipo
Sala 1 x 100
Ilum.
Dorm. 1 1 x 160
1
social
127 Dorm. 2 1 x 160 620 4,9 3 1,5 DTM 1 10
Banheiro 1 x 100 + IDR 2 25
Hall 1 x 100
Copa 1 x 100
Ilum. Cozinha 1 x 160 DTM 1 10
2 serviço 127 A. serviço 1 x 100 460 3,6 3 1,5 + IDR 2 25
A. externa 1 x 100
Sala 4 x 100
3 PTUG’s 127 Dorm. 1 4 x 100 900 7,1 3 2,5 DTM 1 10
Hall 1 x 100 + IDR 2 25
4 PTUG’s 127
Banheiro 1 x 600
1000 7,9 3 2,5
DTM 1 10
Dorm. 2 4 x 100 + IDR 2 25
5 PTUG’s 127 Copa 2 x 600 1200 9,4 3 2,5
DTM 1 10
+ IDR 2 25
6 PTUG’s 127 Copa
1 x 100
700 5,5 2 2,5
DTM 1 10
1 x 600 + IDR 2 25
7 PTUG’s 127 Cozinha 2 x 600 1200 9,4 3 2,5
DTM 1 10
+ IDR 2 25
PTUG’s
1 x 100
8
+PTUE’s
127 Cozinha 1 x 600 1200 9,4 3 2,5 DTM 1 10
1 x 500 + IDR 2 25
9 PTUG’s 127 A. serviço 2 x 600 1200 9,4 3 2,5
DTM 1 10
+ IDR 2 25
10 PTUE’s 127 A. serviço 1 x 1000 1000 7,9 2 2,5
DTM 1 10
+ IDR 2 25
11 PTUE’s 220 Chuveiro 1 x 5600 5600 25,5 1 4
DTM 2 30
+ IDR 2 40
12 PTUE’s 220 Torneira 1 x 5000 5000 22,7 3 6
DTM 2 25
+ IDR 2 25
Quadro de
Distribuição 220
distribuição
12459 56,6 1 16 DTM 2 70
Quadro de
medidor
1630 IER 14X21 ok 20.12.2006 17:57 Page 104
Instalações Elétricas Residenciais
105
Nota: normalmente, em uma instalação, todos os
condutores de cada circuito têm a mesma seção,
entretanto a NBR 5410:2004 permite a utilização
de condutores de proteção com seção menor,
conforme a tabela:
A partir desse momento, passaremos para o
dimensionamento dos eletrodutos.
Seção dos condutores Seção do condutor
fase (mm2
) de proteção (mm2
)
1,5 1,5
2,5 2,5
4 4
6 6
10 10
16 16
25 16
35 16
50 25
70 35
95 50
120 70
150 95
185 95
240 120
Mas... O que é dimensionar eletrodutos ?
Dimensionar eletrodutos
é determinar o tamanho
nominal do eletroduto
para cada trecho da
instalação.
Tamanho nominal do
eletroduto é o diâmetro
externo do eletroduto
expresso em mm,
padronizado por norma.
1630 IER 14X21 ok 20.12.2006 17:57 Page 105
106
Instalações Elétricas Residenciais
Considerando esta recomendação, existe uma tabela que
fornece diretamente o tamanho do eletroduto.
Para dimensionar
os eletrodutos de
um projeto, basta
saber o número
de condutores no
eletroduto e a
maior seção deles.
Exemplo:
nº de condutores
no trecho do
eletroduto =6
maior seção dos
condutores =4mm2
O tamanho nominal
do eletroduto
será 20mm.
Seção
nominal
(mm2
)
Número de condutores no eletroduto
1,5 16 16 16 16 16 16 20 20 20
2,5 16 16 16 20 20 20 20 25 25
4 16 16 20 20 20 25 25 25 25
6 16 20 20 25 25 25 25 32 32
10 20 20 25 25 32 32 32 40 40
16 20 25 25 32 32 40 40 40 40
25 25 32 32 40 40 40 50 50 50
35 25 32 40 40 50 50 50 50 60
50 32 40 40 50 50 60 60 60 75
70 40 40 50 60 60 60 75 75 75
95 40 50 60 60 75 75 75 85 85
120 50 50 60 75 75 75 85 85 -
150 50 60 75 75 85 85 - - -
185 50 75 75 85 85 - - - -
240 60 75 85 - - - - - -
2 3 4 5 6 7 8 9 10
Tamanho nominal do eletroduto (mm)
Diâmetro
interno
Condutores
40%
60%
O tamanho dos eletrodutos deve ser de um diâmetro
tal que os condutores possam ser facilmente
instalados ou retirados.
Para tanto é obrigatório que os condutores não ocupem
mais que 40% da área útil dos eletrodutos.
1630 IER 14X21 ok 20.12.2006 17:57 Page 106
Instalações Elétricas Residenciais
107
Para dimensionar os eletrodutos de um projeto
elétrico, é necessário ter:
Como proceder:
Na planta do
projeto, para
cada trecho de
eletroduto
deve-se:
Consultar a tabela
específica para se obter
o tamanho nominal do
eletroduto adequado a
este trecho.
De posse destes
dados, deve-se:
a planta com a
representação gráfica
da fiação com
as seções dos
condutores indicadas.
e a tabela
específica
que fornece
o tamanho
do eletroduto.
1º
Contar o número de
condutores contidos
no trecho;
2º
Verificar qual é a maior
seção destes condutores.
1630 IER 14X21 ok 20.12.2006 17:57 Page 107
108
Instalações Elétricas Residenciais
Dimensionando os
eletrodutos do circuito
de distribuição
e botão da campainha.
Dimensionamento de Alguns Trechos
dos Eletrodutos do Projeto
Para este trecho:
eletroduto de 25mm.
Seção
nominal
(mm2
)
Número de condutores no eletroduto
2 3 4 5 6 7 8
Tamanho nominal do eletroduto (mm)
Trecho: do QM até QD
nº de condutores: 4
maior seção dos condutores: 16mm2
1,5 16 16 16 16 16 16 20
2,5 16 16 16 20 20 20 20
4 16 16 20 20 20 25 25
6 16 20 20 25 25 25 25
10 20 20 25 25 32 32 32
16 20 25 25 32 32 40 40
1630 IER 14X21 ok 20.12.2006 17:57 Page 108
109
Instalações Elétricas Residenciais
Repetindo-se, então,
este procedimento
para todos os trechos,
temos a planta
indicada a seguir :
Trecho: do QM até botão da campainha
nº de condutores: 2
maior seção dos condutores: 1,5 mm2
Para este trecho:
eletroduto de 16mm.
Seção
nominal
(mm2
)
Número de condutores no eletroduto
1,5 16 16 16 16 16 16 20
2,5 16 16 16 20 20 20 20
4 16 16 20 20 20 25 25
6 16 20 20 25 25 25 25
10 20 20 25 25 32 32 32
16 20 25 25 32 32 40 40
25 25 32 32 40 40 40 50
35 25 32 40 40 50 50 50
2 3 4 5 6 7 8
Tamanho nominal do eletroduto (mm)
1630 IER 14X21 ok 20.12.2006 17:57 Page 109
110
2
8
#1,5
Os condutores e eletrodutos sem indicação na
planta serão: 2,5 mm2
e ø 20 mm, respectivamente.
1630 IER 14X21 ok 20.12.2006 17:57 Page 110
Instalações Elétricas Residenciais
111
Para a execução do projeto elétrico residencial,
precisa-se previamente realizar o levantamento do
material, que nada mais é que:
medir, contar, somar e relacionar
todo o material a ser
empregado e que aparece
representado na planta residencial.
Sendo assim, através da planta pode-se:
medir e determinar quantos metros
de eletrodutos e condutores,
nas seções
indicadas,
devem ser
adquiridos
para
a execução
do projeto.
Levantamento de material
1630 IER 14X21 ok 20.12.2006 17:57 Page 111
112
Instalações Elétricas Residenciais
Para se determinar a medida dos eletrodutos
e condutores deve-se:
medir,
diretamente
na planta, os
eletrodutos
representados
no plano
horizontal
e...
Somar, quando for
o caso, os eletrodutos
que descem ou sobem
até as caixas.
1630 IER 14X21 ok 20.12.2006 17:57 Page 112
Instalações Elétricas Residenciais
113
São feitas com o auxílio de uma régua, na própria
planta residencial.
Uma vez
efetuadas,
estas medidas
devem ser
convertidas
para o valor
real, através
da escala em
que a planta
foi desenhada.
A escala
indica qual é a
proporção
entre a medida
representada
e a real.
Medidas do Eletroduto no Plano
Horizontal
Significa que a cada
1cm no desenho
corresponde a 100cm
nas dimensões reais.
Escala 1:100
Significa que a cada
1cm no desenho
corresponde a 25cm
nas dimensões reais.
Escala 1:25
Exemplos
1630 IER 14X21 ok 20.12.2006 17:57 Page 113
114
Instalações Elétricas Residenciais
saída alta 2,20m
interruptor e
ponto de
tomada média 1,30m
ponto de
tomada baixa 0,30m
quadro de
1,20m
distribuição
Medidas dos Eletrodutos que Descem
até as Caixas
(medida do eletroduto)
Caixas para Subtrair
pé direito = 2,80m
esp. da laje = 0,15m
2,95m
caixa para saída alta
subtrair 2,20m =
2,95m
-2,20m
0,75 m
Exemplificando
espessura da
laje = 0,15 m
pé direito = 2,80 m
São determinadas descontando da medida do
pé direito mais a espessura da laje da residência
a altura em que a caixa está instalada.
1630 IER 14X21 ok 20.12.2006 17:57 Page 114
Instalações Elétricas Residenciais
115
São determinadas somando a medida da altura da caixa
mais a espessura do contrapiso.
Medidas dos Eletrodutos que Sobem
até as Caixas
interruptor e
ponto de
tomada média 1,30m
ponto de
tomada baixa 0,30m
quadro de
1,20m
distribuição
Nota: as medidas apresentadas são sugestões do que
normalmente se utiliza na prática. A NBR 5410:2004
não faz recomendações a respeito disso.
Caixas para Somar
espessura do
contrapiso = 0,10m
1,30 + 0,10 = 1,40m
0,30 + 0,10 = 0,40m
1,20 + 0,10 = 1,30m
Exemplificando
espessura do
contrapiso = 0,10m
1630 IER 14X21 ok 20.12.2006 17:57 Page 115
116
Instalações Elétricas Residenciais
Como a medida dos eletrodutos é a mesma dos condutores
que por eles passam, efetuando-se o levantamento
dos eletrodutos, simultaneamente estará se
efetuando o da fiação.
Exemplificando o levantamento dos eletrodutos e fiação:
Mede-se o trecho
do eletroduto no
plano horizontal.
eletroduto de 20mm = 3,80m
(2 barras)
condutor fase de 2,5mm2
= 3,80m
condutor neutro de 2,5mm2
= 3,80m
condutor de proteção de 2,5mm2
= 3,80m
condutor fase de 1,5mm2
= 3,80m
condutor neutro de 1,5mm2
= 3,80m
Para este trecho da instalação,
têm-se:
escala utilizada = 1:100
pé direito = 2,80 m
espessura da laje = 0,15 m
2,80 + 0,15 = 2,95
3,8 cm
x 100
380,0 cm
ou 3,80 m
Chega-se a um
valor de 3,8 cm:
converte-se o
valor encontrado
para a medida real
1630 IER 14X21 ok 20.12.2006 17:57 Page 116
Instalações Elétricas Residenciais
117
Agora, outro trecho da instalação.
Nele, é necessário somar a medida do eletroduto que desce
até a caixa do ponto de tomada baixa.
2,2cm x 100 = 220cm ou 2,20m
Medida do
eletroduto no
plano horizontal
Medida do
eletroduto que
desce até a caixa
do ponto de
tomada baixa
(pé direito + esp. da laje) - (altura da caixa)
2,95 m - 0,30 m = 2,65 m
Somam-se
os valores
encontrados
(plano horizontal) + (descida até a caixa)
2,20 m + 2,65 m = 4,85 m
eletroduto de 20mm = 3,80m (2 barras)
eletroduto de 16mm = 4,85m (2 barras)
condutor fase de 2,5mm2
= 3,80m + 4,85m = 8,65m
condutor neutro de 2,5mm2
= 3,80m + 4,85m = 8,65m
condutor de proteção de 2,5mm2
= 3,80m + 4,85m = 8,65m
condutor fase de 1,5mm2
= 3,80m
condutor neutro de 1,5mm2
= 3,80m
Adicionam-se os valores encontrados
aos da relação anterior:
S
1630 IER 14X21 ok 20.12.2006 17:57 Page 117
118
Instalações Elétricas Residenciais
Tendo-se medido e relacionado os eletrodutos e fiação,
conta-se e relaciona-se também o número de:
retangular
4” x 2”
Curvas, Luva, Bucha e Arruela
• caixas, curvas, luvas, arruela e buchas;
• tomadas, interruptores, conjuntos
e placas de saída de condutores.
octogonal
4” x 4”
quadrada
4” x 4”
curva
45°
arruela
bucha
luva
curva
90°
Caixas de Derivação
condutores
indicados para
instalações
1630 IER 14X21 ok 20.12.2006 17:57 Page 118
Instalações Elétricas Residenciais
119
Tomadas,
Interruptores
e Conjuntos
Observando-se a planta do exemplo...
Atenção para a nova padronização de tomadas. (ver pg. 63)
b
2 caixas octogonais 4” x 4”
4 caixas 4” x 2”
3 tomadas 2 P + T
1 interruptor simples
1 curva 90° de ø 20
1 luva de ø 20
4 arruelas de ø 20
4 buchas de ø 20
3 curvas 90° de ø 16
6 buchas de ø 16
6 arruelas de ø 16
... conta-se
1630 IER 14X21 ok 20.12.2006 17:57 Page 119
120
Instalações Elétricas Residenciais
O desenho abaixo mostra a localização
desses componentes.
NOTA: considerou-se no levantamento que cada curva
já vem acompanhada das respectivas luvas.
curva 90°
ø 20°
luva ø 20° curva
90°
ø 16°
caixa de
derivação
4” x 2”
caixa de derivação
octogonal 4” x 4”
curva
90°
ø 16°
Considerando-se o projeto elétrico indicado
na página 110 têm-se a lista a seguir:
caixa de derivação
octogonal 4” x 4”
1630 IER 14X21 ok 20.12.2006 17:57 Page 120
Instalações Elétricas Residenciais
121
Lista de material
Preço
Quant. Unit. Total
Cabos Superastic Flex
Proteção 16mm2
7m
Fase 16mm2
13m
Neutro 16mm2
7m
Fase 1,5mm2
56m
Neutro 1,5mm2
31m
Retorno 1,5mm2
60m
Fase 2,5mm2
159m
Neutro 2,5mm2
151m
Retorno 2,5mm2
9m
Proteção 2,5mm2
101m
Fase 4mm2
15m
Proteção 4mm2
8m
Fase 6mm2
22m
Proteção 6mm2
11m
Eletrodutos
16mm 16 barras
20mm 27 barras
25mm 4 barras
Outros componentes da distribuição
Caixa 4” x 2” 36
Caixa octogonal 4” x 4” 8
Caixa 4” x 4” 1
Campainha 1
Tomada 2P + T 26
Interruptor simples 4
Interruptor paralelo 2
Conjunto interruptor simples e tomada 2P + T 2
Conjunto interruptor paralelo e tomada 2P + T 1
Conjunto interruptor paralelo e interruptor simples 1
Placa para saída de fio 2
Disjuntor termomagnético monopolar 10A 10
Disjuntor termomagnético bipolar 25A 1
Disjuntor termomagnético bipolar 30A 1
Disjuntor termomagnético bipolar 70A 1
Interruptor diferencial residual bipolar 30mA/25A 10
Interruptor diferencial residual bipolar 30mA/40A 1
Quadro de distribuição 1
1630 IER 14X21 ok 20.12.2006 17:57 Page 121
122
Instalações Elétricas Residenciais
Apêndice 1
As novas tecnologias de cabos de baixa tensão
para uso em construções em geral.
1.1 - Nesta revisão de 2006 do livro de instalações
elétricas residenciais, procuramos incluir este apêndice com
o objetivo de atender a diversos pedidos de profissionais da
área elétrica que gostariam de ver neste livro quais as
novas tecnologias de cabos elétricos de baixa tensão na
faixa de 450/750V e 0,6/1kV, afim de ampliar seus
conhecimentos e campo de visão de outras aplicações.
Há uma tendência de desenvolvimento contínuo de materiais
que venham a oferecer cada vez mais segurança
principalmente para as pessoas, patrimônio e equipamentos.
Desta forma na década de 70 surgem no mercado os cabos
antichama, que são obrigatórios desde aquela época em
todas edificações. Nesta linha de desenvolvimento surgem
agora os cabos que além de serem antichama possuem
também características de baixa emissão de fumaça e gases
tóxicos em caso de incidente ou até de incêndio.
Pioneira mais uma vez a Prysmiam Cables & Systems lança o
produto da linha Afumex que tem estas características.
Fabricado em diversas linhas mais
principalmente
para as tensões
450/750V e
0,6/1kV,
são atualmente
acessíveis para
uso em todas
edificações.
1630 IER 14X21 ok 20.12.2006 17:58 Page 122
Instalações Elétricas Residenciais
123
A norma brasileira NBR 5410:2004 - Instalações Elétricas
de Baixa Tensão desde 1990 já vem prevendo utilização
deste tipo de material em construções particulares e agora,
como estão muito mais acessíveis, devem com o tempo
estar presentes em todas as edificações brasileiras.
Por isso é importante que você saiba desta nova
realidade pois com certeza dependendo da sua próxima
obra ou manutenção, deverá atentar para o uso de cabos
desta categoria.
Colocamos a seguir referência normativa da utilização de
cabos do tipo Afumex segundo a NBR 5410:2004:
A NBR 5410:2004, no item 5.2.2.2.3, estabelece locais
onde as instalações elétricas aparentes (em leitos,
bandejas, suportes, espaços de construção, etc.) devem
utilizar cabos Afumex (cabos livres de halogênio, com baixa
emissão de fumaça e gases tóxicos).
“5.2.2.2.3 – Em áreas comuns, em áreas de circulação
e em áreas de concentração de público, em locais BD2, BD3
e BD4, as linhas elétricas embutidas devem ser totalmente
imersas em material incombustível, enquanto as linhas
aparentes e as linhas no interior de paredes ocas ou de
outros espaços de construção devem atender a uma das
seguintes condições:
Utilização de cabos Afumex
(NBR 5410:2004).
Residencial Infra-estrutura Comercial Industrial
1630 IER 14X21 ok 20.12.2006 17:58 Page 123
124
Instalações Elétricas Residenciais
a) No caso de linhas constituídas por cabos fixados em
paredes ou em tetos, os cabos devem ser
não-propagantes de chama, livres de halogênio e com
baixa emissão de fumaça e gases tóxicos;
b) No caso de linhas constituídas por condutos abertos, os
cabos devem ser não-propagantes de chama, livres de
halogênio e com baixa emissão de fumaça e gases
tóxicos. Já os condutos, caso não sejam metálicos ou
de outro material incombustível, devem ser
não-propagantes de chama, livres de halogênio e com
baixa emissão de fumaça e gases tóxicos.
c) No caso de linhas em condutos fechados, os condutos
que não sejam metálicos ou de outro material
incombustível devem ser não-propagantes de chama,
livres de halogênios e com baixa emissão de fumaça e
gases tóxicos. Na primeira hipótese (condutos metálicos
ou de outro material incombustível), podem ser usados
condutores e cabos apenas não-propagantes de chama;
na segunda, devem ser usados cabos não-propagantes
de chama, livres de halogênio e com baixa emissão de
fumaça e gases tóxicos.”
código classificação características aplicações e exemplos
CONDIÇÕES DE FUGA DAS PESSOAS EM EMERGÊNCIAS
Edificações residenciais com altura inferior a 50m e
edificações não residenciais com baixa densidade de
ocupação e altura inferior a 28m.
Edificações residenciais com altura superior a 50m e
edificações não residenciais com baixa densidade de
ocupação e altura superior a 28m.
Locais de afluência de público (teatros, cinemas, lojas
de departamentos, escolas, etc.); edificações não
residenciais com alta densidade de ocupação e altura
inferior a 28m.
Locais de afluência de público de maior porte (shopping
centers, grandes hotéis e hospitais, estabelecimento
de ensino ocupando diversos pavimentos de uma
edificação, etc.); edificações não residenciais com alta
densidade de ocupação e altura superior a 28m.
Baixa densidade de
ocupação. Percurso
de fuga breve.
Normal
Longa
Incômoda
Longa e
Incômoda
BD4
BD3
BD2
BD1
Baixa densidade de
ocupação. Percurso
de fuga longo.
Alta densidade de
ocupação. Percurso
de fuga breve.
Alta densidade de
ocupação. Percurso
de fuga longo.
(*) De acordo com a Tabela 21 da NBR 5410:2004.
1630 IER 14X21 ok 20.12.2006 17:58 Page 124
Instalações Elétricas Residenciais
125
1.2. Cabos elétricos 0,6/1kV de maior desempenho.
Sobre novas tecnologias em cabos de maior desempenho
podemos citar os cabos com isolamento em borracha (HEPR),
que no final da última década tiveram seu lançamento no
mercado e atualmente largamente utilizado.
A Prysmian investiu nesta tecnologia
e apresentou ao mercado os cabos da
linha Eprotenax Gsette, que já é
largamente utilizado em circuitos
elétricos em geral conforme previsto
na NBR 5410:2004.
Possui com principal característica maior capacidade de condução de
corrente elétrica como pode ser visto na tabela abaixo.
Seção
nominal
(mm2
)
Condutor
magnético
Queda de tensão para cos ø = 0,8 (V/A km)
Condutor não-magnético
Capacidade de condução
de corrente (A)
1,5 23 20 23,5 20,4 23
2,5 31 28 14,6 12,7 14
4 42 37 9,1 7,9 9,0
6 54 48 6,1 5,3 5,87
10 75 66 3,6 3,2 3,54
16 100 88 2,34 2,05 2,27
25 133 117 1,52 1,34 1,50
35 164 144 1,15 0,99 1,12
50 198 175 0,86 0,76 0,86
70 253 222 0,63 0,56 0,64
95 306 269 0,48 0,43 0,50
120 354 312 0,40 0,36 0,42
150 407 358 0,35 0,31 0,37
185 464 408 0,30 0,26 0,32
240 546 481 0,26 0,21 0,29
Capacidade de condução de corrente e queda de tensão unitária,
à temperatura ambiente de 30°C, instalados em eletroduto aparente,
embutido em alvenaria ou em eletrocalha.
Fonte: Prontuário Técnico PT2 Prysmian - 8ª edição
Cabos Eprotenax Gsette e Afumex 0,6/1kV unipolares
Circuito Circuito
monofásico trifásico
2 condutores 3 condutores
carregados carregados
1630 IER 14X21 ok 20.12.2006 17:58 Page 125
126
Instalações Elétricas Residenciais
Nota: os cabos isolados em EPR, conforme
construção acima podem ser instalados em todas
aplicações conforme NBR 5410:2004, inclusive nos
padrões de entrada, no entanto para estes locais
recomendamos que seja verificado com a
concessionária da região que será instalado.
Aliada a esta característica importante a Prysmian
desenvolveu no cabo Eprotenax Gsette uma dupla
camada na isolação, gravação metro a metro e mais
recentemente a tecnologia ÍrisTech.
Tecnologia ÍrisTech desenvolvida inicialmente na Europa
a Prysmian lança no Brasil esta novidade que vem de
encontro a facilitar as vidas dos profissionais no
momento da instalação destes cabos.
Características:
Isolados com composto termofixo de EPR aplicado em
dupla camada, os cabos Eprotenax Gsette são mais
seguros, podendo ser aplicados em todos os tipos de
instalação, inclusive em ambientes úmidos.
Sua excelente flexibilidade, garantida pelo condutor
com classe de encordoamento 5, facilita o manuseio,
reduzindo o tempo e o custo da instalação.
gravação
metro a metro
dupla camada
1630 IER 14X21 ok 20.12.2006 17:58 Page 126
Instalações Elétricas Residenciais
127
V
Va
an
nt
ta
ag
ge
en
ns
s d
da
a t
te
ec
cn
no
ol
lo
og
gi
ia
a I
Ir
ri
is
sT
Te
ec
ch
h
A tecnologia IrisTech serve para o profissional marcar sobre
o cabo informações úteis para a instalação ou posterior
manutenção dos circuitos tais como:
• identificação das pontas de cada cabo de um mesmo
circuito antes da instalação;
• identificação das fases de um circuito;
• identificação de circuitos;
• data de instalação dos cabos;
• responsável pela instalação;
• data de revisão/inspeção
dos circuitos;
• ou qualquer outra informação
que desejar.
As cores das listras
das seções entre
1,5mm2
e 25mm2
também servem para
uma fácil identificação
da seção do condutor
do cabo através do
código de cores.
Desta forma, estamos sugerindo que você profissional
fique sempre atento as novidades em relação às instalações
elétricas. Uma outra forma possível é acompanhar pela
internet no site da Prysmian (www.prysmian.com.br), pois lá
você também terá acesso atualizado e rápido às novas
tecnologias que irão ajudar no seu dia a dia a conquistar a
confiança e fidelidade dos seus clientes, já que encontrará
em você um profissional diferenciado, capaz e atualizado.
1630 IER 14X21 ok 20.12.2006 17:58 Page 127
128
Instalações Elétricas Residenciais
Apêndice 2
Proteção das instalações elétricas
contra surtos –
uso de dispositivos DPS
O DPS (Dispositivo Protetor de Surtos) protege a instalação
elétrica e seus componentes contra as sobretensões
provocadas diretamente pela queda de raios na edificação
ou na instalação ou provocadas indiretamente pela queda
de raios nas proximidades do local. Em alguns casos, as
sobretensões podem também ser provocadas por
ligamentos ou desligamentos que acontecem nas redes de
distribuição da concessionária de energia elétrica.
As sobretensões são responsáveis, em muitos casos,
pela queima de equipamentos eletroeletrônicos e
eletrodomésticos, particularmente aqueles mais sensíveis,
tais como computadores, impressoras, scaners,
TVs, aparelhos de DVDs, fax, secretárias eletrônicas,
telefones sem fio, etc.
1630 IER 14X21 ok 20.12.2006 17:58 Page 128
Instalações Elétricas Residenciais
129
Tipos de DPS
Conforme a capacidade de suportar maiores ou menores
sobretensões, os DPS são classificados em
classe I, classe II, classe III,
existindo ainda DPS que combinam as
classes I e II (I/II) no mesmo dispositivo.
A informação sobre a classe de um DPS pode ser obtida
nos catálogos dos fabricantes.
Localização dos DPS
Na maioria dos casos, uma residência não utilizará
DPS classe I ou I/II, ficando esta aplicação mais voltada para
edificações altas (prédios) ou predominantemente horizontais.
Na maioria dos casos, numa residência os DPS classe II
são instalados no interior do quadro de distribuição.
E os DPS classe III são ligados exclusivamente juntos aos
equipamentos eletroeletrônicos e eletrodomésticos.
classe
I ou II
exemplo de DPS classe III
1630 IER 14X21 ok 20.12.2006 17:58 Page 129
130
Instalações Elétricas Residenciais
Nos textos a seguir, trataremos especificamente da instalação
de DPS nos quadros de distribuição.
Ligação dos DPS
Nas instalações residenciais, onde o condutor neutro
é aterrado no padrão de entrada da edificação, os DPS são ligados
entre os condutores de fase e a barra de aterramento do quadro
de distribuição. Nestes casos, não é instalado DPS entre neutro
e a barra de aterramento.
Os DPS podem ser ligados antes ou depois do dispositivo geral
de proteção do quadro mas, via de regra, é recomendável
ligá-los antes da proteção.
Deve ser consultado o fabricante do DPS para verificar a necessidade
ou não de instalar proteção contra sobrecorrentes (disjuntor ou
fusível) para a proteção do DPS. Havendo necessidade, o fabricante
deve informar o tipo e características desta proteção.
O comprimento de cada condutor de conexão do DPS ao condutor
de fase somado ao comprimento de cada condutor de conexão do DPS
à barra de aterramento deve ser o mais curto possível, não excedendo
a 50 cm. Devem ainda ser evitadas nestas ligações curvas e laços.
A seção nominal dos condutores de conexão do DPS às fases e
à barra de aterramento não deve nunca ser inferior a 4 mm2
,
sendo recomendável que ela seja, no mínimo, igual à seção
dos condutores de fase.
O emprego de DPS classe III
junto ao equipamento
eletroeletrônico ou
letrodoméstico é, geralmente,
uma decisão a ser tomada pelo
usuário da instalação,
no sentido de reforçar a
proteção contra sobretensões já
oferecida por DPS instalados no quadro de distribuição.
1630 IER 14X21 ok 20.12.2006 17:58 Page 130
Instalações Elétricas Residenciais
131
Desenho Esquemático do Quadro de Distribuição
Condutores de
conexão dos DPS aos
condutores de fase
Condutores de
conexão dos DPS à
Barra de aterramento
DPS
1630 IER 14X21 ok 20.12.2006 17:58 Page 131
132
Instalações Elétricas Residenciais
Requisitos da
NBR 5410:2004 - quando usar DPS
A obrigatoriedade ou não do uso de DPS na rede elétrica
depende de como a instalação é classificada segundo
as influências externas “AQ” previstas na tabela 15
da NBR 5410:2004. E classificar a instalação
segundo estas influências requer um estudo específico
a ser feito por um profissional qualificado.
Assim sendo, como este Manual tem por objetivo prover
as informações que possibilitem a execução de instalações
seguras, recomenda-se que sempre, independentemente
do estudo realizado, seja provida, no mínimo,
a proteção contra surtos transmitidas por linhas externas
e/ou manobras de circuitos.
Nestes casos, a ligação dos DPS deve seguir o item anterior
e a escolha do tipo mais adequado do DPS deve ser feita de
acordo com orientação do fabricante do dispositivo.
A instalação de DPS classe III para a proteção de cargas
sensíveis, tais como computadores, impressoras, TVs, etc.,
não é considerada obrigatória pela norma,
mas é recomendável na maioria dos casos, tendo em vista
o elevado valor dos equipamentos.
1630 IER 14X21 ok 20.12.2006 17:58 Page 132
Instalações Elétricas Residenciais
133
REALIZAÇÃO:
Prysmian Energia Cabos e Sistemas do Brasil S.A.
Av. Alexandre de Gusmão, 145 -
CEP 09110-900 - Santo André - SP
Tel.: (11) 4998-4902 - Fax: (11) 4998-4311
e-mail: webcabos@prysmian.com
www.prysmian.com.br
Victory Propaganda e Marketing Ltda.
Tel.: (11) 3675-7479
e-mail: victory@victorydesign.com.br
Produção gráfica e finalização:
Esta publicação foi baseada na NBR 5410:2004
Instalações Elétricas em Baixa Tensão e também em nossos
Manuais de Instalações Elétricas Residenciais
publicados anteriormente.
Todos os direitos de reprodução são reservados.
© PRYSMIAN
Instalações Elétricas Residenciais
Dezembro de 2006
1630 IER 14X21 ok 20.12.2006 17:58 Page 133
7 desculpas
para você não dar
aos seus clientes
na falta de Afumex
na sua obra.
7 desculpas
para você não dar
aos seus clientes
na falta de Afumex
na sua obra.
Em casos de incêndio, a fumaça e os gases tóxicos são responsáveis
por 80% das mortes. Afumex é o cabo de energia especialmente
desenvolvido para imóveis em geral e principalmente aqueles que
concentram grande número de pessoas ou que apresentam dificuldade
de fuga, como edifícios residenciais e comerciais, shopping centers,
cinemas, teatros, discotecas, boates, casas de espetáculos etc.
www.prysmian.com.br
1630 IER 14X21 ok 20.12.2006 17:58 Page 134
Cabo de energia é tudo igual
(claro que não é verdade e,
agora que estamos contando na mídia as vantagens
de Afumex, dificilmente ele vai engolir).
O prédio tem vários equipamentos antiincêndio
(lembra aquele ditado “é melhor prevenir...”? Pois é...).
Eu não conhecia Afumex
(não dá para alguém bem informado como você dizer
isso, não é mesmo?).
É muito caro
(NÃO é verdade e, aqui entre nós,
a vida das pessoas não tem preço).
Esse pessoal gosta de fazer fumaça
(fumaça é exatamente o que Afumex evita, junto com os
gases tóxicos, a principal causa de mortes em incêndios).
Desculpe, na próxima obra a gente coloca
(aí já pode ser tarde, não é mesmo?).
Isso não tem desculpa,
vamos providenciar a colocação
(essa é a única resposta que um profissional
responsável como você pode dar).
Afumex tem baixíssima emissão de fumaça e gases tóxicos e
é livre de halogênios, permitindo uma desocupação segura do
imóvel numa emergência. Hoje em dia, as obras mais modernas
do mundo usam Afumex. Recomende sempre Afumex, item de
segurança obrigatório para seus clientes.
Prysmian é o novo nome da Pirelli Cabos.
Prysmian Energia Cabos e Sistemas do Brasil S.A.
Av. Alexandre de Gusmão, 145 - CEP 09110-900 - Santo André - SP
Tel.: (11) 4998-4155 - Fax: (11) 4998-4166
e-mail: webcabos@prysmian.com • www.prysmian.com.br
Prysmian é o novo nome da Pirelli Cabos.
1630 CP IER 288x210 ok 20.12.2006 17:46 Page 1

Apostila Instalacoes Eletricas.pdf

  • 1.
    Garanta uma instalaçãoelétrica segura Instalações Elétricas Residenciais
  • 2.
    O MESMO CONHECIMENTO, UMNOVO NOME. Graças aos nossos cabos, transportamos energia e comunicação pelo mundo inteiro. A partir de agora, o nosso nome: Pirelli Cabos e Sistemas www.prysmian.com.br 1630 CP IER 288x210 ok 20.12.2006 17:46 Page 2
  • 3.
    se transforma emPrysmian Cabos e Sistemas. A mesma inovação, a mesma tecnologia, a mesma performance, as mesmas pessoas. Prysmian é o novo nome da Pirelli Cabos. 1630 IER 14X21 ok 20.12.2006 17:55 Page 3
  • 4.
    4 Instalações Elétricas Residenciais Índice Apresentação. . . . . . . . . . . . . . . . . . . . . . . . . . . . . . . . . . . . . . . . . . . . . . . . . . 5 Introdução . . . . . . . . . . . . . . . . . . . . . . . . . . . . . . . . . . . . . . . . . . . . . . . . . . . . 6 Tensão e corrente elétrica . . . . . . . . . . . . . . . . . . . . . . . . . . . . . . . . . . . . . . . . 9 Potência elétrica . . . . . . . . . . . . . . . . . . . . . . . . . . . . . . . . . . . . . . . . . . . . . . 10 Fator de potência . . . . . . . . . . . . . . . . . . . . . . . . . . . . . . . . . . . . . . . . . . . . . 14 Levantamento de cargas elétricas . . . . . . . . . . . . . . . . . . . . . . . . . . . . . . . . . 15 Tipo de fornecimento e tensão . . . . . . . . . . . . . . . . . . . . . . . . . . . . . . . . . . . 26 Padrão de entrada . . . . . . . . . . . . . . . . . . . . . . . . . . . . . . . . . . . . . . . . . . . . . 28 Quadro de distribuição . . . . . . . . . . . . . . . . . . . . . . . . . . . . . . . . . . . . . . . . . 31 Disjuntores termomagnéticos . . . . . . . . . . . . . . . . . . . . . . . . . . . . . . . . . . . . . 34 Disjuntor Diferencial Residual (DR) . . . . . . . . . . . . . . . . . . . . . . . . . . . . . . . . 35 Interruptor Diferencial Residual (IDR) . . . . . . . . . . . . . . . . . . . . . . . . . . . . . . 36 Circuito de distribuição . . . . . . . . . . . . . . . . . . . . . . . . . . . . . . . . . . . . . . . . . 40 Circuitos terminais . . . . . . . . . . . . . . . . . . . . . . . . . . . . . . . . . . . . . . . . . . . . . 41 Simbologia . . . . . . . . . . . . . . . . . . . . . . . . . . . . . . . . . . . . . . . . . . . . . . . . . . . 52 Condutores elétricos . . . . . . . . . . . . . . . . . . . . . . . . . . . . . . . . . . . . . . . . . . . 58 Condutor de proteção (fio ou cabo terra) . . . . . . . . . . . . . . . . . . . . . . . . . . . 61 O uso dos dispositivos DR . . . . . . . . . . . . . . . . . . . . . . . . . . . . . . . . . . . . . . . 64 O planejamento da rede de eletrodutos . . . . . . . . . . . . . . . . . . . . . . . . . . . . . 69 Esquemas de ligação . . . . . . . . . . . . . . . . . . . . . . . . . . . . . . . . . . . . . . . . . . . 77 Representação de eletrodutos e condutores na planta . . . . . . . . . . . . . . . . . 86 Cálculo da corrente elétrica em um circuito . . . . . . . . . . . . . . . . . . . . . . . . . . 89 Cálculo da potência do circuito de distribuição . . . . . . . . . . . . . . . . . . . . . . . 91 Dimensionamento dos condutores e dos disjuntores dos circuitos . . . . . . . . 94 Dimensionamento do disjuntor aplicado no quadro do medidor . . . . . . . . . . 101 Dimensionamento dos dispositivos DR . . . . . . . . . . . . . . . . . . . . . . . . . . . . 102 Seção do condutor de proteção (fio ou cabo terra) . . . . . . . . . . . . . . . . . . . 105 Dimensionamento de eletrodutos . . . . . . . . . . . . . . . . . . . . . . . . . . . . . . . . 105 Levantamento de material . . . . . . . . . . . . . . . . . . . . . . . . . . . . . . . . . . . . . . 121 Apêndices . . . . . . . . . . . . . . . . . . . . . . . . . . . . . . . . . . . . . . . . . . . . . . . . . . 122 1630 IER 14X21 ok 20.12.2006 17:55 Page 4
  • 5.
    Instalações Elétricas Residenciais 5 Apresentação Aimportância da eletricidade em nossas vidas é inquestionável. Ela ilumina nossos lares, movimenta nossos eletrodomésticos, permite o funcionamento dos aparelhos eletrônicos e aquece nosso banho. Por outro lado, a eletricidade quando mal empregada, traz alguns perigos como os choques, às vezes fatais, e os curto-circuitos, causadores de tantos incêndios. A melhor forma de convivermos em harmonia com a eletricidade é conhecê-la, tirando-lhe o maior proveito, desfrutando de todo o seu conforto com a máxima segurança. O objetivo desta publicação é o de fornecer, em linguagem simples e acessível, as informações mais importantes relativas ao que é a eletricidade, ao que é uma instalação elétrica, quais seus principais componentes, como dimensioná-los e escolhê-los. Com isto, esperamos contribuir para que nossas instalações elétricas possam ter melhor qualidade e se tornem mais seguras para todos nós. A Prysmian Cables & Systems com experiência adquirida nestes 134 anos no mundo e em 76 anos de Brasil tem por objetivo contribuir com a melhoria da qualidade das instalações elétricas por meio da difusão de informações técnicas. Esperamos que esta publicação seja útil e cumpra com as finalidades a que se propõe. São Paulo, dezembro de 2006 1630 IER 14X21 ok 20.12.2006 17:55 Page 5
  • 6.
    6 Instalações Elétricas Residenciais Vamoscomeçar falando um pouco a respeito da Eletricidade. Você já parou para pensar que está cercado de eletricidade por todos os lados ? 1630 IER 14X21 ok 20.12.2006 17:55 Page 6
  • 7.
    Instalações Elétricas Residenciais 7 Poisé ! Estamos tão acostumados com ela que nem percebemos que existe. 1630 IER 14X21 ok 20.12.2006 17:56 Page 7
  • 8.
    8 Instalações Elétricas Residenciais Narealidade, a eletricidade é invisível. O que percebemos são seus efeitos, como: Luz Calor Choque elétrico e... esses efeitos são possíveis devido a: Corrente elétrica Tensão elétrica Potência elétrica 1630 IER 14X21 ok 20.12.2006 17:56 Page 8
  • 9.
    Instalações Elétricas Residenciais 9 Noscondutores, existem partículas invisíveis chamadas elétrons livres, que estão em constante movimento de forma desordenada. Para que estes elétrons livres passem a se movimentar de forma ordenada, nos condutores, é necessário ter uma força que os empurre. A esta força é dado o nome de tensão elétrica (U). Esse movimento ordenado dos elétrons livres nos condutores, provocado pela ação da tensão, forma uma corrente de elétrons. Essa corrente de elétrons livres é chamada de corrente elétrica (I). Pode-se dizer então que: Tensão e Corrente Elétrica É o movimento ordenado dos elétrons livres nos condutores. Sua unidade de medida é o ampère (A). Tensão Corrente elétrica É a força que impulsiona os elétrons livres nos condutores. Sua unidade de medida é o volt (V). 1630 IER 14X21 ok 20.12.2006 17:56 Page 9
  • 10.
    10 Instalações Elétricas Residenciais Agora,para entender potência elétrica, observe novamente o desenho. A tensão elétrica faz movimentar os elétrons de forma ordenada, dando origem à corrente elétrica. Potência Elétrica Essa intensidade de luz e calor percebida por nós (efeitos), nada mais é do que a potência elétrica que foi trasformada em potência luminosa (luz) e potência térmica (calor). Tendo a corrente elétrica, a lâmpada se acende e se aquece com uma certa intensidade. Quando falamos de corrente elétrica, uma dúvida aparece, é possível através da qualidade do material, existir diferentes tipos de conduções de corrente elétrica? Este é um ponto importante para definir uma boa condutividade de corrente, toda impureza no material pode gerar uma dificuldade para passagem dos elétrons, fazendo com que liberem mais energia causando um aquecimento elevado e indesejado no condutor. Ao contrario, quando o condutor tem um elevado grau de pureza, os elétrons circulam livremente no condutor, tendo assim, um melhor aproveitamento de energia. 1630 IER 14X21 ok 20.12.2006 17:56 Page 10
  • 11.
    Instalações Elétricas Residenciais 11 Agora...qual é a unidade de medida da potência elétrica? Muito simples ! a intensidade da tensão é medida em volts (V). a intensidade da corrente é medida em ampère (A). Corrente elétrica Tensão elétrica É importante gravar: Para haver potência elétrica, é necessário haver: A essa potência dá-se o nome de potência aparente. Então, como a potência é o produto da ação da tensão e da corrente, a sua unidade de medida é o volt-ampère (VA). 1630 IER 14X21 ok 20.12.2006 17:56 Page 11
  • 12.
    12 Instalações Elétricas Residenciais Apotência ativa é a parcela efetivamente transformada em: A potência aparente é composta por duas parcelas: Potência Ativa Potência Reativa Potência Mecânica Potência Térmica Potência Luminosa A unidade de medida da potência ativa é o watt (W). 1630 IER 14X21 ok 20.12.2006 17:56 Page 12
  • 13.
    Instalações Elétricas Residenciais 13 Apotência reativa é a parcela transformada em campo magnético, necessário ao funcionamento de: Reatores Em projetos de instalação elétrica residencial os cálculos efetuados são baseados na potência aparente e potência ativa. Portanto, é importante conhecer a relação entre elas para que se entenda o que é fator de potência. A unidade de medida da potência reativa é o volt-ampère reativo (VAr). Motores Transformadores 1630 IER 14X21 ok 20.12.2006 17:56 Page 13
  • 14.
    14 Instalações Elétricas Residenciais Sendoa potência ativa uma parcela da potência aparente, pode-se dizer que ela representa uma porcentagem da potência aparente que é transformada em potência mecânica, térmica ou luminosa. Nos projetos elétricos residenciais, desejando-se saber o quanto da potência aparente foi transformada em potência ativa, aplica-se os seguintes valores de fator de potência: A esta porcentagem dá-se o nome de fator de potência. Quando o fator de potência é igual a 1, significa que toda potência aparente é transformada em potência ativa. Isto acontece nos equipamentos que só possuem resistência, tais como: chuveiro elétrico, torneira elétrica, lâmpadas incandescentes, fogão elétrico, etc. Fator de Potência 1,0 0,8 para iluminação para tomadas de uso geral potência de iluminação (aparente) = 660 VA fator de potência a ser aplicado = 1 potência ativa de iluminação (W)= 1x660 VA = 660 W potência de tomada de uso geral = 7300 VA fator de potência a ser aplicado = 0,8 potência ativa de tomada de uso geral = 0,8x7300 VA = 5840 W Exemplos 1630 IER 14X21 ok 20.12.2006 17:56 Page 14
  • 15.
    Instalações Elétricas Residenciais 15 Osconceitos vistos anteriormente possibilitarão o entendimento do próximo assunto: levantamento das potências (cargas) a serem instaladas na residência. A previsão de carga deve obedecer às prescrições da NBR 5410:2004, item 9.5.2 A planta a seguir servirá de exemplo para o levantamento das potências. O levantamento das potências é feito mediante uma previsão das potências (cargas) mínimas de iluminação e tomadas a serem instaladas, possibilitando, assim, determinar a potência total prevista para a instalação elétrica residencial. 1630 IER 14X21 ok 20.12.2006 17:56 Page 15
  • 16.
  • 17.
    Instalações Elétricas Residenciais 17 Acarga de iluminação é feita em função da área do cômodo da residência. NOTA: a NBR 5410:2004 não estabelece critérios para iluminação de áreas externas em residências, ficando a decisão por conta do projetista e do cliente. Recomendações da NBR 5410:2004 para o levantamento da carga de iluminação 1. Condições para se estabelecer a quantidade mínima de pontos de luz. 2. Condições para se estabelecer a potência mínima de iluminação. prever pelo menos um ponto de luz no teto, comandado por um interruptor de parede. arandelas no banheiro devem estar distantes, no mínimo, 60 cm do limite do boxe. para área igual ou inferior a 6 m2 atribuir um mínimo de 100 VA para área superior a 6 m2 atribuir um mínimo de 100 VA para os primeiros 6 m2 , acrescido de 60 VA para cada aumento de 4 m2 inteiros. 1630 IER 14X21 ok 20.12.2006 17:56 Page 17
  • 18.
    18 Instalações Elétricas Residenciais Prevendoa carga de iluminação da planta residencial utilizada para o exemplo, temos: Dependência Dimensões Potência de iluminação área (m2 ) (VA) sala A = 3,25 x 3,05 = 9,91 9,91m2 = 6m2 + 3,91m2 100VA | 100VA copa A = 3,10 x 3,05 = 9,45 9,45m2 = 6m2 + 3,45m2 100VA | 100VA cozinha A = 3,75 x 3,05 = 11,43 11,43m2 =6m2 + 4m2 + 1,43m2 160VA | | 100VA + 60VA dormitório 1 A = 3,25 x 3,40 = 11,05 11,05m2 = 6m2 + 4m2 + 1,05m2 160VA | | 100VA + 60VA dormitório 2 A = 3,15 x 3,40 = 10,71 10,71m2 = 6m2 + 4m2 + 0,71m2 160VA | | 100VA + 60VA banho A = 1,80 x 2,30 = 4,14 4,14m2 => 100VA 100VA área de serviço A = 1,75 x 3,40 = 5,95 5,95m2 => 100VA 100VA hall A = 1,80 x 1,00 = 1,80 1,80m2 => 100VA 100VA área externa — — 100VA 1630 IER 14X21 ok 20.12.2006 17:56 Page 18
  • 19.
    Instalações Elétricas Residenciais 19 NOTA:em diversas aplicações, é recomendável prever uma quantidade de pontos de tomadas maior do que o mínimo calculado, evitando-se, assim, o emprego de extensões e benjamins (tês) que, além de desperdiçarem energia, podem comprometer a segurança da instalação. Recomendações da NBR 5410:2004 para o levantamento da carga de tomadas varandas salas e dormitórios independente da área e cômodos ou dependências com mais de 6m2 banheiros cozinhas, copas, copas-cozinhas, áreas de serviço, lavanderias e locais semelhantes cômodos ou dependências com área igual ou inferior a 6m2 no mínimo um ponto de tomada no mínimo um ponto de tomada para cada 5m ou fração de perímetro, espaçadas tão uniformemente quanto possível um ponto de tomada para cada 3,5m ou fração de perímetro, independente da área. Acima da bancada da pia devem ser previs- tas, no mínimo, duas tomadas de corrente, no mesmo ponto ou em pontos separados pelo menos um ponto de tomada no mínimo um ponto de tomada junto ao lavatório com uma distância mínima de 60cm do limite do boxe 1. Condições para se estabelecer a quantidade mínima de pontos de tomadas. Ponto de tomada é o ponto onde a conexão do equipamento à instalação elétrica é feita através de tomada corrente. Um ponto de tomada pode ter uma ou mais tomadas de corrente. 1630 IER 14X21 ok 20.12.2006 17:56 Page 19
  • 20.
    20 Instalações Elétricas Residenciais 2.Condições para se estabelecer a potência mínima de pontos de tomadas de uso geral (PTUG’s). banheiros, cozinhas, copas, copas-cozinhas, áreas de serviço, lavanderias e locais semelhantes demais cômodos ou dependências - atribuir, no mínimo, 600 VA por ponto de tomada, até 3 tomadas. - atribuir 100 VA para os excedentes. - atribuir, no mínimo, 100 VA por ponto de tomada. Pontos de Tomadas de Uso Geral (PTUG’s) Não se destinam à ligação de equipamentos específicos e nelas são sempre ligados: aparelhos móveis ou aparelhos portáteis. 1630 IER 14X21 ok 20.12.2006 17:56 Page 20
  • 21.
    Instalações Elétricas Residenciais 21 Pontosde Tomadas de Uso Específico (PTUE’s) São destinadas à ligação de equipamentos fixos e estacionários, como é o caso de: 3. Condições para se estabelecer a quantidade de pontos de tomadas de uso específico (PTUE’s). A quantidade de PTUE’s é estabelecida de acordo com o número de aparelhos de utilização que sabidamente vão estar fixos em uma dada posição no ambiente. Secadora de roupa Torneira elétrica Chuveiro NOTA: a ligação dos aquecedores elétricos de água ao ponto de utilização deve ser direta, sem uso de tomadas de corrente. Podem ser utilizados conectores apropriados. 1630 IER 14X21 ok 20.12.2006 17:56 Page 21
  • 22.
    22 Instalações Elétricas Residenciais 4.Condições para se estabelecer a potência de pontos de tomadas de uso específico (PTUE’s). Os valores das áreas dos cômodos da planta do exemplo já estão calculados, faltando o cálculo do perímetro onde este se fizer necessário, para se prever a quantidade mínima de pontos de tomadas. • ou o valor da área • ou o valor do perímetro • ou o valor da área e do perímetro Para se prever a carga de pontos de tomadas é necessário, primeiramente, prever a sua quantidade. Essa quantidade, segundo os critérios, é estabelecida a partir do cômodo em estudo, fazendo-se necessário ter: Conforme o que foi visto: Atribuir a potência nominal do equipamento a ser alimentado. 1630 IER 14X21 ok 20.12.2006 17:56 Page 22
  • 23.
    Instalações Elétricas Residenciais 23 Obs.:(*) nesses cômodos, optou-se por instalar uma quantidade de PTUG’s maior do que a quantidade mínima calculada anteriormente. Dependência Dimensões Quantidade mínima Área Perímetro (m2 ) (m) PTUG’s PTUE’s sala 9,91 3,25x2 + 3,05x2 = 12,6 5 + 5 + 2,6 — copa 9,45 3,10x2 +3,05x2 = 12,3 3,5 + 3,5 + 3,5 + 1,8 — cozinha 11,43 3,75x2 + 3,05x2 = 13,6 3,5 + 3,5 + 3,5 + 3,1 1 torneira elétr. 1 geladeira dormitório 1 11,05 3,25x2 + 3,40x2 = 13,3 5 + 5 + 3,3 — dormitório 2 10,71 3,15x2 + 3,40x2 = 13,1 5 + 5 + 3,1 — banho 4,14 1 1 chuveiro elétr. área de serviço 5,95 2 1 máquina lavar roupa hall 1,80 1 — área externa — — — — OBSERVAÇÃO Área inferior a 6m2 : não interessa o perímetro Estabelecendo a quantidade mínima de pontos de tomadas de uso geral e específico: Prevendo as cargas de pontos de tomadas de uso geral e específico. Dependência Dimensões Quantidade Previsão de Carga Área Perímetro (m2 ) (m) PTUG’s PTUE’s PTUG’s PTUE’s sala 9,91 12,6 4* — 4x100VA — copa 9,45 12,3 4 — 3x600VA — 1x100VA cozinha 11,43 13,6 4 2 3x600VA 1x5000W (torneira) 1x100VA 1x500W (geladeira) dormitório 1 11,05 13,3 4* — 4x100VA — dormitório 2 10,71 13,1 4* — 4x100VA — banho 4,14 — 1 1 1x600VA 1x5600W (chuveiro) área de serviço 5,95 — 2 1 2x600VA 1x1000W (máq.lavar) hall 1,80 — 1 — 1x100VA — área externa — — — — — — (1 1 1) = 3 (1 1 1) = 3 (1 1 1) = 3 (1 1 1 1) = 4 (1 1 1 1) = 4 1630 IER 14X21 ok 20.12.2006 17:56 Page 23
  • 24.
    24 Instalações Elétricas Residenciais Reunidostodos os dados obtidos, tem-se o seguinte quadro: Dependência Dimensões Potência de iluminação (VA) Quanti- Potência dade (VA) Discrimi- Potência nação (W) Área Perímetro (m2 ) (m) sala 9,91 12,6 100 4 400 — — copa 9,45 12,3 100 4 1900 — — cozinha 11,43 13,6 160 4 1900 torneira 5000 geladeira 500 dormitório 1 11,05 13,3 160 4 400 — — dormitório 2 10,71 13,1 160 4 400 — — banho 4,14 — 100 1 600 chuveiro 5600 área de serviço 5,95 — 100 2 1200 máq. lavar 1000 hall 1,80 — 100 1 100 — — área externa — — 100 — — — — TOTAL — — 1080VA — 6900VA — 12100W Para obter a potência total da instalação, faz-se necessário: a) calcular a potência ativa; b) somar as potências ativas. PTUG’s PTUE’s potência aparente potência ativa 1630 IER 14X21 ok 20.12.2006 17:56 Page 24
  • 25.
    Instalações Elétricas Residenciais 25 Cálculoda potência ativa de iluminação e pontos de tomadas de uso geral (PTUG’s) Em função da potência ativa total prevista para a residência é que se determina: o tipo de fornecimento, a tensão de alimentação e o padrão de entrada. Levantamento da Potência Total Cálculo da potência ativa total Potência de iluminação 1080 VA Fator de potência a ser adotado = 1,0 1080 x 1,0 = 1080 W Potência de pontos de tomadas de uso geral (PTUG’s) - 6900 VA Fator de potência a ser adotado = 0,8 6900 VA x 0,8 = 5520 W potência ativa de iluminação: 1080 W potência ativa de PTUG’s: 5520 W potência ativa de PTUE’s: 12100 W 18700 W 1630 IER 14X21 ok 20.12.2006 17:56 Page 25
  • 26.
    26 Instalações Elétricas Residenciais Nasáreas de concessão da ELEKTRO, se a potência ativa total for: Tipo de Fornecimento e Tensão Fornecimento monofásico - feito a dois fios: uma fase e um neutro - tensão de 127 V Fornecimento bifásico - feito a três fios: duas fases e um neutro - tensões de 127V e 220V Fornecimento trifásico - feito a quatro fios: três fases e um neutro - tensões de 127 V e 220 V Até 12000 W Acima de 12000 W até 25000 W Acima de 25000 W até 75000 W 1630 IER 14X21 ok 20.12.2006 17:56 Page 26
  • 27.
    Instalações Elétricas Residenciais 27 Noexemplo, a potência ativa total foi de: NOTA: não sendo área de concessão da ELEKTRO, o limite de fornecimento, o tipo de fornecimento e os valores de tensão podem ser diferentes do exemplo. Estas informações são obtidas na companhia de eletricidade de sua cidade. 18700 W Portanto: fornecimento bifásico, pois fica entre 12000 W e 25000 W. Sendo fornecimento bifásico têm-se disponíveis dois valores de tensão: 127 V e 220 V. Uma vez determinado o tipo de fornecimento, pode-se determinar também o padrão de entrada. Voltando ao exemplo: Potência ativa total: 18700 watts Tipo de fornecimento: bifásico. O padrão de entrada deverá atender ao fornecimento bifásico. Conseqüentemente: 1630 IER 14X21 ok 20.12.2006 17:56 Page 27
  • 28.
    28 Instalações Elétricas Residenciais E...o que vem a ser padrão de entrada? Padrão de entrada nada mais é do que o poste com isolador de roldana, bengala, caixa de medição e haste de terra, que devem estar instalados, atendendo às especificações da norma técnica da concessionária para o tipo de fornecimento. Uma vez pronto o padrão de entrada, segundo as especificações da norma técnica, compete à concessionária fazer a sua inspeção. 1630 IER 14X21 ok 20.12.2006 17:56 Page 28
  • 29.
    Instalações Elétricas Residenciais 29 Anorma técnica referente à instalação do padrão de entrada, bem como outras informações a esse respeito deverão ser obtidas junto à agência local da companhia de eletricidade. Estando tudo certo, a concessionária instala e liga o medidor e o ramal de serviço, Uma vez pronto o padrão de entrada e estando ligados o medidor e o ramal de serviço, a energia elétrica entregue pela concessionária estará disponível para ser utilizada. 1630 IER 14X21 ok 20.12.2006 17:56 Page 29
  • 30.
    30 Instalações Elétricas Residenciais Atravésdo circuito de distribuição, essa energia é levada do medidor até o quadro de distribuição, também conhecido como quadro de luz. Rede Pública de Baixa Tensão Ramal de ligação Medidor Circuitos terminais Quadro de distribuição Circuito de distribuição Eletrodo de aterramento 1630 IER 14X21 ok 20.12.2006 17:56 Page 30
  • 31.
    Instalações Elétricas Residenciais 31 Eleé o centro de distribuição, pois: recebe os condutores que vêm do medidor. O que vem a ser quadro de distribuição? Quadro de distribuição é o centro de distribuição de toda a instalação elétrica de uma residência. nele é que se encontram os dispositivos de proteção. Circuito 5 (PTUE’s) Pontos de Tomadas de Uso Específico (ex. torneira elétrica) Circuito 6 (PTUE’s) Pontos de Tomadas de Uso Específico (ex. chuveiro elétrico) Circuito 4 (PTUG’s) Pontos de Tomadas de Uso Geral dele é que partem os circuitos terminais que vão alimentar diretamente as lâmpadas, pontos de tomadas e aparelhos elétricos. Circuito 2 Iluminação de serviço Circuito 3 (PTUG’s) Pontos de Tomadas de Uso Geral Circuito 1 Iluminação social Segundo o item 6.5.4.10 da NBR 5410:2004, os quadros devem ser entregues com a advertência indicada na figura, a qual pode vir de fábrica ou ser afixada no local da obra. Não é especificado em que material a advertência deve ser feita, mas exige-se que ela não deve ser facilmente removível. 1630 IER 14X21 ok 20.12.2006 17:56 Page 31
  • 32.
    32 Instalações Elétricas Residenciais AD V E R T Ê N C I A 1 - Quando um disjuntor ou fusível atua, desligando algum circuito ou a instalação inteira, a causa pode ser uma sobrecarga ou um curto-circuito. Desligamentos freqüentes são sinal de sobrecarga. Por isso, NUNCA troque seus disjuntores ou fusíveis por outros de maior corrente (maior amperagem), simplesmente. Como regra, a troca de um disjuntor ou fusível por outro de maior corrente requer, antes, a troca dos fios e cabos elétricos, por outros de maior seção (bitola). 2 - Da mesma forma, NUNCA desative ou remova a chave automática de proteção contra choques elétricos (dispositivo DR), mesmo em caso de desligamentos sem causa aparente. Se os desligamentos forem freqüentes e, principalmente, se as tentativas de religar a chave não tiverem êxito, isso significa, muito provavelmente, que a instalação elétrica apresenta anomalias internas, que só podem ser identificadas e corrigidas por profissionais qualificados. A DESATIVAÇÃO OU REMOÇÃO DA CHAVE SIGNIFICA A ELIMINAÇÃO DE MEDIDA PROTETORA CONTRA CHOQUES ELÉTRICOS E RISCO DE VIDA PARA OS USUÁRIOS DA INSTALAÇÃO. O quadro de distribuição deve estar localizado: em lugar de fácil acesso e o mais próximo possível do medidor Através dos desenhos a seguir, você poderá enxergar os componentes e as ligações feitas no quadro de distribuição. Isto é feito para se evitar gastos desnecessários com os condutores do circuito de distribuição, que são os mais grossos de toda a instalação e, portanto, os de maior valor. 1630 IER 14X21 ok 20.12.2006 17:56 Page 32
  • 33.
    Instalações Elétricas Residenciais 33 Esteé um exemplo de quadro de distribuição para fornecimento bifásico. Proteção Fase Neutro Disjuntor diferencial residual geral Barramento de interligação das fases Um dos dispositivos de proteção que se encontra no quadro de distribuição é o disjuntor termomagnético. Vamos falar um pouco a seu respeito. Barramento de neutro. Faz a ligação dos condutores neutros dos circuitos terminais com o neutro do circuito de distribuição, devendo ser isolado eletricamente da caixa do QD. Disjuntores dos circuitos terminais bifásicos. Recebem a fase do disjuntor geral e distribuem para os circuitos terminais. Barramento de proteção. Deve ser ligado eletricamente à caixa do QD. Disjuntores dos circuitos terminais monofásicos. 1630 IER 14X21 ok 20.12.2006 17:56 Page 33
  • 34.
    34 Instalações Elétricas Residenciais Disjuntorestermomagnéticos são dispositivos que: oferecem proteção aos condutores do circuito Desligando-o automaticamente quando da ocorrência de uma sobrecorrente provocada por um curto-circuito ou sobrecarga. Operando-o como um interruptor, secciona somente o circuito necessário numa eventual manutenção. Os disjuntores termomagnéticos têm a mesma função que as chaves fusíveis. Entretanto: O fusível se queima necessitando ser trocado O disjuntor desliga-se necessitando religá-lo No quadro de distribuição, encontra-se também: - o disjuntor diferencial residual ou, então, - o interruptor diferencial residual. permitem manobra manual 1630 IER 14X21 ok 20.12.2006 17:56 Page 34
  • 35.
    Instalações Elétricas Residenciais 35 DisjuntorDiferencial Residual É um dispositivo constituído de um disjuntor termomagnético acoplado a um outro dispositivo: o diferencial residual. Sendo assim, ele conjuga as duas funções: Pode-se dizer então que: Disjuntor diferencial residual é um dispositivo que protege: - os condutores do circuito contra sobrecarga e curto-circuito e; - as pessoas contra choques elétricos. a do disjuntor termomagnético a do dispositivo diferencial residual protege as pessoas contra choques elétricos provocados por contatos diretos e indiretos protege os condutores do circuito contra sobrecarga e curto-circuito e 1630 IER 14X21 ok 20.12.2006 17:56 Page 35
  • 36.
    36 Instalações Elétricas Residenciais Éum dispositivo composto de um interruptor acoplado a um outro dispositivo: o diferencial residual. Pode-se dizer então que: Interruptor diferencial residual é um dispositivo que: liga e desliga, manualmente, o circuito e protege as pessoas contra choques elétricos. Interruptor Diferencial Residual a do interruptor a do dispositivo diferencial residual (interno) que liga e desliga, manualmente, o circuito que protege as pessoas contra choques elétricos provocados por contatos diretos e indiretos Sendo assim, ele conjuga duas funções: 1630 IER 14X21 ok 20.12.2006 17:56 Page 36
  • 37.
    Instalações Elétricas Residenciais 37 Osdispositivos vistos anteriormente têm em comum o dispositivo diferencial residual (DR). proteger as pessoas contra choques elétricos provocados por contato direto e indireto Contato indireto Sua função é: Contato direto É o contato acidental, seja por falha de isolamento, por ruptura ou remoção indevida de partes isolantes: ou, então, por atitude imprudente de uma pessoa com uma parte elétrica normalmente energizada (parte viva). É o contato entre uma pessoa e uma parte metálica de uma instalação ou componente, normalmente sem tensão, mas que pode ficar energizada por falha de isolamento ou por uma falha interna. 1630 IER 14X21 ok 20.12.2006 17:56 Page 37
  • 38.
    38 Instalações Elétricas Residenciais Aseguir, serão apresentados: • tipos de disjuntores termomagnéticos; • tipos de disjuntores DR de alta sensibilidade; • tipo de interruptor DR de alta sensibilidade. Os tipos de disjuntores termomagnéticos existentes no mercado são: monopolares, bipolares e tripolares. NOTA: os disjuntores termomagnéticos somente devem ser ligados aos condutores fase dos circuitos. Tipos de Disjuntores Termomagnéticos Tripolar Monopolar Bipolar 1630 IER 14X21 ok 20.12.2006 17:56 Page 38
  • 39.
    Instalações Elétricas Residenciais 39 Ostipos mais usuais de disjuntores residuais de alta sensibilidade (no máximo 30mA) existentes no mercado são: Tipos de Disjuntores Diferenciais Residuais NOTA: interruptores DR devem ser utilizados nos circuitos em conjunto com dispositivos a sobrecorrente (disjuntor ou fusível), colocados antes do interruptor DR. Bipolar Tetrapolar NOTA: os disjuntores DR devem ser ligados aos condutores fase e neutro dos circuitos, sendo que o neutro não pode ser aterrado após o DR. Tipo de Interruptor Diferencial Residual Um tipo de interruptor diferencial residual de alta sensibilidade (no máximo 30mA) existente no mercado é o tetrapolar (figura ao lado), existindo ainda o bipolar. 1630 IER 14X21 ok 20.12.2006 17:56 Page 39
  • 40.
    40 Instalações Elétricas Residenciais Osdispositivos vistos são empregados na proteção dos circuitos elétricos. Mas... o que vem a ser circuito elétrico? Ramal de ligação (2F + N) Circuito de distribuição (2F + N + PE) Ramal de entrada Vai para o quadro de distribuição Circuito Elétrico Circuito de Distribuição Liga o quadro do medidor ao quadro de distribuição. Em uma instalação elétrica residencial, encontramos dois tipos de circuito: o de distribuição e os circuitos terminais. É o conjunto de equipamentos e condutores, ligados ao mesmo dispositivo de proteção. Rede pública de baixa tensão Ponto de derivação Caixa de medição Medidor Origem da instalação Ponto de entrega Terminal de aterramento principal Dispositivo geral de comando e proteção Condutor de aterramento Eletrodo de aterramento 1630 IER 14X21 ok 20.12.2006 17:56 Page 40
  • 41.
    Instalações Elétricas Residenciais 41 Partemdo quadro de distribuição e alimentam diretamente lâmpadas, pontos de tomadas de uso geral e pontos de tomadas de uso específico. Circuitos Terminais Disjuntor diferencial residual geral Neutro Proteção (PE) (2F+N+PE) Quadro de distribuição (F + N + PE) (2F + PE) (F + N + PE) (2F + PE) (F + N + PE) (F + N + PE) Fases NOTA: em todos os exemplos a seguir, será admitido que a tensão entre FASE e NEUTRO é 127V e entre FASES é 220V. Consulte as tensões oferecidas em sua região 1630 IER 14X21 ok 20.12.2006 17:56 Page 41
  • 42.
    42 Instalações Elétricas Residenciais Exemplode circuitos terminais protegidos por disjuntores termomagnéticos: Circuito de Iluminação (FN) Circuito de Iluminação Externa (FN) Exemplos de circuitos terminais protegidos por disjuntores DR: Barramento de proteção Disjuntor DR Fase Neutro (*) (*) Disjuntor monopolar (*) se possível, ligar o condutor de proteção (terra) à carcaça da luminária. Retorno Fase Neutro Proteção Barramento de proteção Disjuntor diferencial residual bipolar Barramento de neutro Retorno 1630 IER 14X21 ok 20.12.2006 17:56 Page 42
  • 43.
    Instalações Elétricas Residenciais 43 Fase NeutroProteção Barramento de proteção Disjuntor diferencial residual bipolar Exemplos de circuitos terminais protegidos por disjuntores DR: Circuito de Ponto de Tomada de Uso Específico (FN) Fase Neutro Proteção Barramento de proteção Disjuntor diferencial residual bipolar Circuito de Pontos de Tomadas de Uso Geral (FN) 1630 IER 14X21 ok 20.12.2006 17:56 Page 43
  • 44.
    44 Instalações Elétricas Residenciais Circuitode Ponto de Tomada de Uso Específico (FF) Fase Fase Proteção Barramento de proteção Fase Neutro Proteção Barramento de proteção Interruptor DR Exemplos de circuitos protegidos por interruptores DR: Disjuntor termomagnético Disjuntor diferencial residual bipolar Circuito de Ponto de Tomada de Uso Específico (FF) 1630 IER 14X21 ok 20.12.2006 17:56 Page 44
  • 45.
    Instalações Elétricas Residenciais 45 Fase FaseProteção Barramento de proteção Disjuntor termomagnético Interruptor DR Exemplo de circuito de distribuição bifásico ou trifásico protegido por disjuntor termomagnético: Disjuntor ou interruptor DR tetrapolar Quadro de distribuição Ligação bifásica ou trifásica Fases Neutro Proteção Circuito de Ponto de Tomada de Uso Específico (FF) 1630 IER 14X21 ok 20.12.2006 17:56 Page 45
  • 46.
    46 Instalações Elétricas Residenciais NeutroProteção (PE) Quadro de distribuição (F + N + PE) (2F + PE) (F + N + PE) (2F + PE) (F + N + PE) (F + N + PE) Fases A divisão da instalação elétrica em circuitos terminais segue critérios estabelecidos pela NBR 5410:2004, apresentados em seguida. A instalação elétrica de uma residência deve ser dividida em circuitos terminais. Isso facilita a manutenção e reduz a interferência. 1630 IER 14X21 ok 20.12.2006 17:56 Page 46
  • 47.
    Instalações Elétricas Residenciais 47 Critériosestabelecidos pela NBR 5410:2004 Além desses critérios, o projetista considera também as dificuldades referentes à execução da instalação. Para que isto não ocorra, uma boa recomendação é, nos circuitos de iluminação e pontos de tomadas de uso geral, limitar a corrente a 10 A, ou seja, 1270 VA em 127 V ou 2200 VA em 220 V. • prever circuitos de iluminação separados dos circuitos de pontos de tomadas de uso geral (PTUG’s). • prever circuitos independentes, exclusivos para cada equipamento com corrente nominal superior a 10A. Por exemplo, equipamentos ligados em 127V com potências acima de 1270VA (127V x 10A) devem ter um circuito exclusivo para si. • os pontos de tomadas de cozinhas, copas, copas-cozinhas, áreas de serviços, lavanderias e locais semelhantes devem ser alimentados por circuitos destinados unicamente a estes locais. Se os circuitos ficarem muito carregados, os condutores adequados para suas ligações irão resultar numa seção nominal (bitola) muito grande, dificultando: • a instalação dos condutores nos eletrodutos; • as ligações terminais (interruptores e tomadas). 1630 IER 14X21 ok 20.12.2006 17:56 Page 47
  • 48.
    48 Instalações Elétricas Residenciais Aplicandoos critérios no exemplo em questão (tabela da pág. 24), deverá haver, no mínimo, quatro circuitos terminais: • um para iluminação; • um para pontos de tomadas de uso geral; • dois para pontos de tomadas de uso específico (chuveiro e torneira elétrica). Mas, tendo em vista as questões de ordem prática, optou-se no exemplo em dividir: Com relação aos circuitos de pontos de tomadas de uso específico, permanecem os 2 circuitos independentes: os circuitos de iluminação em 2: Social Serviço sala dormitório 1 dormitório 2 banheiro hall copa cozinha área de serviço área externa sala dormitório 1 dormitório 2 banheiro hall cozinha Chuveiro elétrico Torneira elétrica copa área de serviço os circuitos de pontos de tomadas de uso geral em 4: Social Serviço Serviço Serviço 1630 IER 14X21 ok 20.12.2006 17:56 Page 48
  • 49.
    Instalações Elétricas Residenciais 49 Essadivisão dos circuitos, bem como suas respectivas cargas, estão indicados na tabela a seguir: Circuito Tensão (V) Local Corrente (A) nº de circuitos agrupados Seção dos condutores (mm2 ) nº de Corrente pólos nominal Tipo Proteção Potência Quantidade x Total potência (VA) (VA) nº Tipo Sala 1 x 100 Ilum. Dorm. 1 1 x 160 1 social 127 Dorm. 2 1 x 160 620 Banheiro 1 x 100 Hall 1 x 100 Copa 1 x 100 Ilum. Cozinha 1 x 160 2 serviço 127 A. serviço 1 x 100 460 A. externa 1 x 100 Sala 4 x 100 3 PTUG’s 127 Dorm. 1 4 x 100 900 Hall 1 x 100 4 PTUG’s 127 Banheiro 1 x 600 1000 Dorm. 2 4 x 100 5 PTUG’s 127 Copa 2 x 600 1200 6 PTUG’s 127 Copa 1 x 100 700 1 x 600 7 PTUG’s 127 Cozinha 2 x 600 1200 PTUG’s 1 x 100 8 +PTUE’s 127 Cozinha 1 x 600 1200 1 x 500 9 PTUG’s 127 A. serviço 2 x 600 1200 10 PTUE’s 127 A. serviço 1 x 1000 1000 11 PTUE’s 220 Chuveiro 1 x 5600 5600 12 PTUE’s 220 Torneira 1 x 5000 5000 Quadro de Distribuição 220 distribuição Quadro de medidor estes campos serão preenchidos no momento oportuno 1630 IER 14X21 ok 20.12.2006 17:56 Page 49
  • 50.
    50 Instalações Elétricas Residenciais Comoo tipo de fornecimento determinado para o exemplo em questão é bifásico, têm-se duas fases e um neutro alimentando o quadro de distribuição. Sendo assim, neste projeto foram adotados os seguintes critérios: Uma vez dividida a instalação elétrica em circuitos, deve-se marcar, na planta, o número correspondente a cada ponto de luz e pontos de tomadas. No caso do exemplo, a instalação ficou com 1 circuito de distribuição e 12 circuitos terminais que estão apresentados na planta a seguir. Foram ligados na menor tensão, entre fase e neutro (127 V). Os circuitos de iluminação e pontos de tomadas de uso geral (PTUG’s) Foram ligados na maior tensão, entre fase e fase (220 V). Os circuitos de pontos de tomadas de uso específico (PTUE’s) com corrente maior que 10 A Quanto ao circuito de distribuição, deve-se sempre considerar a maior tensão (fase-fase) quando este for bifásico ou trifásico. No caso, a tensão do circuito de distribuição é 220 V. 1630 IER 14X21 ok 20.12.2006 17:56 Page 50
  • 51.
    51 1630 IER 14X21ok 20.12.2006 17:56 Page 51
  • 52.
    52 Instalações Elétricas Residenciais SimbologiaGráfica Símbolo Sabendo as quantidades de pontos de luz, pontos de tomadas e o tipo de fornecimento, o projetista pode dar início ao desenho do projeto elétrico na planta residencial, utilizando-se de uma simbologia gráfica. Neste fascículo, a simbologia apresentada é a usualmente empregada pelos projetistas. Como ainda não existe um acordo comum a respeito delas, o projetista pode adotar uma simbologia própria identificando-a no projeto, através de uma legenda. Para os exemplos que aparecem neste Manual, será utilizada a simbologia apresentada a seguir. Quadro de distribuição 1630 IER 14X21 ok 20.12.2006 17:56 Page 52
  • 53.
    Instalações Elétricas Residenciais 53 Pontode luz no teto 100 - potência de iluminação 2 - número do circuito a - comando Símbolos Ponto de tomada baixa monofásica com terra Ponto de tomada baixa bifásica com terra Símbolo Ponto de luz na parede Símbolo 100 2 a 1630 IER 14X21 ok 20.12.2006 17:56 Page 53
  • 54.
    54 Instalações Elétricas Residenciais Interruptor simples Caixade saída alta monofásica com terra Caixa de saída alta bifásica com terra Símbolos Ponto de tomada média monofásica com terra Ponto de tomada média bifásica com terra Símbolos Símbolo 1630 IER 14X21 ok 20.12.2006 17:56 Page 54
  • 55.
    Instalações Elétricas Residenciais 55 Símbolo Interruptorparalelo Símbolo Campainha Símbolo Botão de campainha 1630 IER 14X21 ok 20.12.2006 17:56 Page 55
  • 56.
    56 Instalações Elétricas Residenciais Símbolo Eletrodutoembutido na laje Símbolo Eletroduto embutido na parede Símbolo Eletroduto embutido no piso 1630 IER 14X21 ok 20.12.2006 17:56 Page 56
  • 57.
    Instalações Elétricas Residenciais 57 SímboloCondutor de proteção (condutor terra necessariamente verde ou verde-amarelo) Símbolo Condutor fase Símbolo Condutor neutro (necessariamente azul claro) Símbolo Condutor de retorno 1630 IER 14X21 ok 20.12.2006 17:56 Page 57
  • 58.
    58 Instalações Elétricas Residenciais CondutoresElétricos são aqueles condutores sólidos (fios), os quais apresentam baixo grau de flexibilidade durante o seu manuseio. são aqueles condutores formados por vários fios (cabos), sendo que, quanto mais alta a classe, maior a flexibilidade do cabo durante o manuseio. Classes 2, 4, 5 e 6 Classe 1 O termo condutor elétrico é usado para designar um produto destinado a transportar corrente (energia) elétrica, sendo que os fios e os cabos elétricos são os tipos mais comuns de condutores. O cobre é o metal mais utilizado na fabricação de condutores elétricos para instalações residenciais, comerciais e industriais. Um fio é um condutor sólido, maciço, provido de isolação, usado diretamente como condutor de energia elétrica. Por sua vez, a palavra cabo é utilizada quando um conjunto de fios é reunido para formar um condutor elétrico. Dependendo do número de fios que compõe um cabo e do diâmetro de cada um deles, um condutor apresenta diferentes graus de flexibilidade. A norma brasileira NBR NM280 define algumas classes de flexibilidade para os condutores elétricos, a saber: 1630 IER 14X21 ok 20.12.2006 17:57 Page 58
  • 59.
    Instalações Elétricas Residenciais 59 Equal a importância da flexibilidade de um condutor nas instalações elétricas residenciais ? Geralmente, nas instalações residenciais, os condutores são enfiados no interior de eletrodutos e passam por curvas e caixas de passagem até chegar ao seu destino final, que é, quase sempre, uma caixa de ligação 5 x 10cm ou 10 x 10cm instalada nas paredes ou uma caixa octogonal situada no teto ou forro. Além disso, em muitas ocasiões, há vários condutores de diferentes circuitos no interior do mesmo eledroduto, o que torna o trabalho de enfiação mais difícil ainda. Nestas situações, a experiência internacional vem comprovando há muitos anos que o uso de cabos flexíveis, com classe 5, no mínimo, reduz significativamente o esforço de enfiação dos condutores nos eletrodutos, facilitando também a eventual retirada dos mesmos. Da mesma forma, nos últimos anos também os profissionais brasileiros têm utilizado cada vez mais os cabos flexíveis nas instalações elétricas em geral e nas residenciais em particular. Fios sólidos Cabos flexíveis 1630 IER 14X21 ok 20.12.2006 17:57 Page 59
  • 60.
    60 Instalações Elétricas Residenciais NOTA:veja apêndice 1 (pg 122) as novas tecnologias de cabos de baixa tensão para uso em construções em geral. Outra questão muito importante, mas que vem depois da instalação dos cabos, é a durabilidade que eles poderão ter. Os cabos são projetados para durar, em condições normais, mais de 25 anos. Durante a utilização normal, podem ocorrer situações que levem o sistema a uma sobrecarga, superaquecendo os cabos e reduzindo sua vida útil. Estudos indicam que, a cada 5ºC de temperatura no condutor em operação, acima do limite máximo admitido para o cabo, o mesmo tem sua vida reduzida pela metade. Para minimizar este problema, e até evitar danos maiores, foram desenvolvidos condutores que são até 20% mais resistentes à temperatura, suportando, nas eventuais sobrecargas, o dobro do tempo dos cabos convencionais. Estes cabos, que suportam uma temperatura de operação de até 85ºC, reduzem a ocorrência de curtos-circuitos, os maiores responsáveis por acidentes elétricos, tornando os circuitos mais seguros. 1630 IER 14X21 ok 20.12.2006 17:57 Page 60
  • 61.
    Instalações Elétricas Residenciais 61 Oconceito básico da proteção contra choques é o de que os elétrons devem ser “desviados” da pessoa. Sabendo-se que um condutor de cobre é um milhão de vezes melhor condutor do que o corpo humano, fica evidente que, se oferecermos aos elétrons dois caminhos para eles circularem, sendo um o corpo e o outro um condutor, a enorme maioria deles irá circular pelo último, minimizando os efeitos do choque na pessoa. Esse condutor pelo qual irão circular os elétrons que “escapam” dos aparelhos é chamado de condutor terra. Condutor de Proteção - PE (Condutor Terra) Sendo assim, como podemos fazer para evitar os choques elétricos ? Dentro de todos os aparelhos elétricos existem elétrons que querem “fugir” do interior dos condutores. Como o corpo humano é capaz de conduzir eletricidade, se uma pessoa encostar nesses equipamentos, ela estará sujeita a levar um choque, que nada mais é do que a sensação desagradável provocada pela passagem dos elétrons pelo corpo. É preciso lembrar que correntes elétricas de apenas 0,05 ampère já podem provocar graves danos ao organismo ! 1630 IER 14X21 ok 20.12.2006 17:57 Page 61
  • 62.
    Instalações Elétricas Residenciais 62 Comoa função do condutor terra é “recolher” elétrons “fugitivos”, nada tendo a ver com o funcionamento propriamente dito do aparelho, muitas vezes as pessoas esquecem de sua importância para a segurança. É como em um automóvel: é possível fazê-lo funcionar e nos transportar até o local desejado, sem o uso do cinto de segurança. No entanto, é sabido que os riscos relativos à segurança em caso de acidente aumentam em muito sem o seu uso. Como Instalar o Condutor Terra A figura abaixo indica a maneira mais simples de instalação em uma residência. Observe que a seção do condutor terra deve estar conforme a tabela da página 105. Pode-se utilizar um único condutor terra por eletroduto, interligando vários aparelhos e tomadas. Por norma, a cor do condutor terra é obrigatoriamente verde/amarela ou somente verde. 1630 IER 14X21 ok 20.12.2006 17:57 Page 62
  • 63.
    Instalações Elétricas Residenciais Comouma instalação deve estar preparada para receber qualquer tipo de aparelho elétrico, conclui-se que, conforme prescreve a norma brasileira de instalações elétricas NBR 5410:2004, todos os circuitos de iluminação, pontos de tomadas de uso geral e também os que servem a aparelhos específicos (como chuveiros, ar condicionados, microondas, lava roupas, etc.) devem possuir o condutor terra. Os Aparelhos e as Tomadas Fig. 1 Fig. 2 Fig. 3 Visando uma maior segurança das instalações elétricas e melhor padronização das tomadas de uso doméstico, o mercado brasileiro em breve estará padronizando a aplicação de dois modelos de tomadas, conforme figuras abaixo. Um para tomada até 10A e outro para tomada até 20A. Conforme NBR 14136 (Plugues e tomadas para plugues e tomadas para uso doméstico e análogo até 20A/250V em corrente alternada). Fique atento às mudanças. Esta característica de tomada vem de encontro ao que já era exigido: o uso do condutor terra para todos os pontos de tomadas. orifício ø 4 mm orifício ø 4,8 mm 20 A 10 A 63 1630 IER 14X21 ok 20.12.2006 17:57 Page 63
  • 64.
    64 Instalações Elétricas Residenciais Comovimos anteriormente, o dispositivo DR é um interruptor automático que desliga correntes elétricas de pequena intensidade (da ordem de centésimos de ampère), que um disjuntor comum não consegue detectar, mas que podem ser fatais se percorrerem o corpo humano. Dessa forma, um completo sistema de aterramento, que proteja as pessoas de um modo eficaz, deve conter, além do condutor terra, o dispositivo DR. O Uso dos Dispositivos DR Bipolar Tetrapolar 1630 IER 14X21 ok 20.12.2006 17:57 Page 64
  • 65.
    Instalações Elétricas Residenciais 65 Recomendaçõese Exigências da NBR 5410:2004 A utilização de proteção diferencial residual (disjuntor ou interruptor) de alta sensibilidade em circuitos terminais que sirvam a: NOTA: embora os circuitos não relacionados acima possam ser protegidos apenas por disjuntores termomagnéticos, dependendo da realização de alguns calculos, é mais seguro e recomendável realizar a proteção contra choques elétricos de todos os circuitos através do emprego de dispositivos DR. • pontos de tomadas de corrente de uso geral e específico e pontos de iluminação em cozinhas, copas-cozinhas, lavanderias, áreas de serviço, garagens e, no geral, a todo local interno molhado em uso normal ou sujeito a lavagens; • pontos de tomadas de corrente em áreas externas; • pontos de tomadas de corrente que, embora instaladas em áreas internas, possam alimentar equipamentos de uso em áreas externas; • pontos situados em locais contendo banheira ou chuveiro. A NBR 5410:2004 exige, 1630 IER 14X21 ok 20.12.2006 17:57 Page 65
  • 66.
    66 Instalações Elétricas Residenciais Aplicando-seas recomendações e exigências da NBR 5410:2004 ao projeto utilizado como exemplo, onde já se tem a divisão dos circuitos, o tipo de proteção a ser empregado é apresentado no quadro abaixo: (DTM = disjuntor termomagnético. IDR = interruptor diferencial-residual) Circuito Tensão (V) Local Corrente (A) nº de circuitos agrupados Seção dos condutores (mm2 ) nº de Corrente pólos nominal Tipo Proteção Potência Quantidade x Total potência (VA) (VA) nº Tipo Sala 1 x 100 Ilum. Dorm. 1 1 x 160 1 social 127 Dorm. 2 1 x 160 620 DTM 1 Banheiro 1 x 100 + IDR 2 Hall 1 x 100 Copa 1 x 100 Ilum. Cozinha 1 x 160 DTM 1 2 serviço 127 A. serviço 1 x 100 460 + IDR 2 A. externa 1 x 100 Sala 4 x 100 3 PTUG’s 127 Dorm. 1 4 x 100 900 DTM 1 Hall 1 x 100 + IDR 2 4 PTUG’s 127 Banheiro 1 x 600 1000 DTM 1 Dorm. 2 4 x 100 + IDR 2 5 PTUG’s 127 Copa 2 x 600 1200 DTM 1 + IDR 2 6 PTUG’s 127 Copa 1 x 100 700 DTM 1 1 x 600 + IDR 2 7 PTUG’s 127 Cozinha 2 x 600 1200 DTM 1 + IDR 2 PTUG’s 1 x 100 8 +PTUE’s 127 Cozinha 1 x 600 1200 DTM 1 1 x 500 + IDR 2 9 PTUG’s 127 A. serviço 2 x 600 1200 DTM 1 + IDR 2 10 PTUE’s 127 A. serviço 1 x 1000 1000 DTM 1 + IDR 2 11 PTUE’s 220 Chuveiro 1 x 5600 5600 DTM 2 + IDR 2 12 PTUE’s 220 Torneira 1 x 5000 5000 DTM 2 + IDR 2 Quadro Distribuição 220 distribuição DTM 2 Quadro medidor 1630 IER 14X21 ok 20.12.2006 17:57 Page 66
  • 67.
    Instalações Elétricas Residenciais ANBR 5410:2004 também prevê a possibilidade de optar pela instalação de disjuntor DR ou interruptor DR na proteção geral. A seguir serão apresentadas as regras e a devida aplicação no exemplo em questão. Desenho Esquemático do Quadro de Distribuição 67 1630 IER 14X21 ok 20.12.2006 17:57 Page 67
  • 68.
    68 Instalações Elétricas Residenciais Opçãode Utilização de Interruptor DR na Proteção Geral No caso de instalação de interruptor DR na proteção geral, a proteção de todos os circuitos terminais pode ser feita com disjuntor termomagnético. A sua instalação é necessariamente no quadro de distribuição e deve ser precedida de proteção geral contra sobrecorrente e curto-circuito. Esta solução pode, em alguns casos, apresentar o inconveniente de o IDR disparar com mais freqüência, uma vez que ele “sente” todas as correntes de fuga naturais da instalação. 1630 IER 14X21 ok 20.12.2006 17:57 Page 68
  • 69.
    Instalações Elétricas Residenciais 69 Umavez determinado o número de circuitos elétricos em que a instalação elétrica foi dividida e já definido o tipo de proteção de cada um, chega o momento de se efetuar a sua ligação. Essa ligação, entretanto, precisa ser planejada detalhadamente, de tal forma que nenhum ponto de ligação fique esquecido. Para se efetuar esse planejamento, desenha-se na planta residencial o caminho que o eletroduto deve percorrer, pois é através dele que os condutores dos circuitos irão passar. 1630 IER 14X21 ok 20.12.2006 17:57 Page 69
  • 70.
    70 Instalações Elétricas Residenciais embutidona laje embutido na parede embutido no piso Eletroduto DEVE-SE: A Locar, primeiramente, o quadro de distribuição, em lugar de fácil acesso e que fique o mais próximo possível do medidor. B Partir com o eletroduto do quadro de distribuição, traçando seu caminho de forma a encurtar as distâncias entre os pontos de ligação. C Utilizar a simbologia gráfica para representar, na planta residencial, o caminhamento do eletroduto. D Fazer uma legenda da simbologia empregada. E Ligar os interruptores e tomadas ao ponto de luz de cada cômodo. Quadro de distribuição Entretanto, para o planejamento do caminho que o eletroduto irá percorrer, fazem-se necessárias algumas orientações básicas: 1630 IER 14X21 ok 20.12.2006 17:57 Page 70
  • 71.
    71 1630 IER 14X21ok 20.12.2006 17:57 Page 71
  • 72.
    72 Instalações Elétricas Residenciais Parase acompanhar o desenvolvimento do caminhamento dos eletrodutos, tomaremos a planta do exemplo (pág. 71) anterior já com os pontos de luz e pontos de tomadas e os respectivos números dos circuitos representados. Iniciando o caminhamento dos eletrodutos, seguindo as orientações vistas anteriormente, deve-se primeiramente: Quadro de distribuição Quadro do medidor Determinar o local do quadro de distribuição Uma vez determinado o local para o quadro de distribuição, inicia-se o caminhamento partindo dele com um eletroduto em direção ao ponto de luz no teto da sala e daí para os interruptores e pontos de tomadas desta dependência. Neste momento, representa-se também o eletroduto que conterá o circuito de distribuição. 1630 IER 14X21 ok 20.12.2006 17:57 Page 72
  • 73.
    Instalações Elétricas Residenciais 73 Aolado vê-se, em três dimensões, o que foi representado na planta residencial. Do ponto de luz no teto da sala sai um eletroduto que vai até o ponto de luz na copa e, daí, para os interruptores e pontos de tomadas. Para a cozinha, procede-se da mesma forma. 1630 IER 14X21 ok 20.12.2006 17:57 Page 73
  • 74.
    74 Instalações Elétricas Residenciais Observe,novamente, o desenho em três dimensões. Para os demais cômodos da residência, parte-se com outro eletroduto do quadro de distribuição, fazendo as outras ligações (página a seguir). 1630 IER 14X21 ok 20.12.2006 17:57 Page 74
  • 75.
    75 1630 IER 14X21ok 20.12.2006 17:57 Page 75
  • 76.
    76 Instalações Elétricas Residenciais Entretanto,para empregá-la, primeiramente precisa-se identificar: Uma vez representados os eletrodutos, e sendo através deles que os condutores dos circuitos irão passar, pode-se fazer o mesmo com a fiação: representando-a graficamente, através de uma simbologia própria. Serão apresentados a seguir os esquemas de ligação mais utilizados em uma residência. Fase Neutro Proteção Proteção Retorno Esta identificação é feita com facilidade desde que se saiba como são ligadas as lâmpadas, interruptores e pontos de tomadas. quais cabos estão passando dentro de cada eletroduto representado. Fase Neutro Retorno 1630 IER 14X21 ok 20.12.2006 17:57 Page 76
  • 77.
    Instalações Elétricas Residenciais 77 Ligarsempre: - a fase ao interruptor; - o retorno ao contato do disco central da lâmpada; - o neutro diretamente ao contato da base rosqueada da lâmpada; - o condutor terra à luminária metálica. 1. Ligação de uma lâmpada comandada por interruptor simples. Ponto de luz Disco central Base rosqueada Luminária (metálica) Interruptor simples Retorno 1630 IER 14X21 ok 20.12.2006 17:57 Page 77
  • 78.
    78 Instalações Elétricas Residenciais 2.Ligação de mais de uma lâmpada com interruptores simples. Neutro Fase Retorno Interruptor simples 1630 IER 14X21 ok 20.12.2006 17:57 Page 78
  • 79.
    Instalações Elétricas Residenciais 79 Fase Neutro Retorno Retorno Retorno Proteção Esquemaequivalente Interruptor paralelo 3. Ligação de lâmpada comandada de dois pontos (interruptores paralelos). 1630 IER 14X21 ok 20.12.2006 17:57 Page 79
  • 80.
    80 Instalações Elétricas Residenciais Retorno Retorno Proteção Retorno Fase Neutro Retorno Retorno Esquemaequivalente Interruptor intermediário Interruptor paralelo Interruptor paralelo 4. Ligação de lâmpada comandada de três ou mais pontos (paralelos + intermediários). 1630 IER 14X21 ok 20.12.2006 17:57 Page 80
  • 81.
    Instalações Elétricas Residenciais 81 5.Ligação de lâmpada comandada por interruptor simples, instalada em área externa. Neutro Proteção Retorno Neutro Proteção Fase Interruptor simples Retorno Fase 1630 IER 14X21 ok 20.12.2006 17:57 Page 81
  • 82.
    82 Instalações Elétricas Residenciais Tomadas2P + T Esquema equivalente Neutro Proteção Fase Neutro Proteção Fase 6. Ligação de pontos de tomadas de uso geral (monofásicas). 1630 IER 14X21 ok 20.12.2006 17:57 Page 82
  • 83.
    Instalações Elétricas Residenciais 83 7.Ligação de pontos de tomadas de uso específico. Neutro Proteção Fase Fase 2 Proteção Fase 1 Bifásica Monofásica 1630 IER 14X21 ok 20.12.2006 17:57 Page 83
  • 84.
    84 Instalações Elétricas Residenciais Sabendo-secomo as ligações elétricas são feitas, pode-se então representá-las graficamente na planta, devendo sempre: • representar os condutores que passam dentro de cada eletroduto, através da simbologia própria; • identificar a que circuitos pertencem. Na prática, não se recomenda instalar mais do que 6 ou 7 condutores por eletroduto, visando facilitar a enfiação e/ou retirada dos mesmos, além de evitar a aplicação de fatores de correções por agrupamento muito rigorosos. Por quê a representação gráfica da fiação deve ser feita ? Para exemplificar a representação gráfica da fiação, utilizaremos a planta do exemplo a seguir, onde os eletrodutos já estão representados. Recomendações A representação gráfica da fiação é feita para que, ao consultar a planta, se saiba quantos e quais condutores estão passando dentro de cada eletroduto, bem como a que circuito pertencem. 1630 IER 14X21 ok 20.12.2006 17:57 Page 84
  • 85.
    85 1630 IER 14X21ok 20.12.2006 17:57 Page 85
  • 86.
    86 Instalações Elétricas Residenciais Começandoa representação gráfica pelo alimentador: os dois condutores fase, o neutro e o de proteção (PE) partem do quadro do medidor e vão até o quadro de distribuição. Do quadro de distribuição saem os condutores fase, neutro e de proteção do circuito 1, indo até o ponto de luz da sala. Do ponto de luz da sala, faz-se a ligação da lâmpada que será comandada por interruptores paralelos. 1 1630 IER 14X21 ok 20.12.2006 17:57 Page 86
  • 87.
    87 Instalações Elétricas Residenciais Paraligar os pontos de tomadas da sala, é necessário sair do quadro de distribuição com os fios fase e neutro do circuito 3 e o fio de proteção, indo até o ponto de luz na sala e daí para os pontos de tomadas, fazendo a sua ligação. Ao prosseguir com a instalação é necessário levar o fase, o neutro e o proteção do circuito 2 do quadro de distribuição até o ponto de luz na copa. E assim por diante, completando a distribuição. Observe que, com a alternativa apresentada, os eletrodutos não estão muito carregados. Convém ressaltar que esta é uma das soluções possíveis, outras podem ser estudadas, inclusive a mudança do quadro de distribuição mais para o centro da instalação, mas isso só é possível enquanto o projeto estiver no papel. Adotaremos para este projeto a solução apresentada na página a seguir. 1630 IER 14X21 ok 20.12.2006 17:57 Page 87
  • 88.
    88 1630 IER 14X21ok 20.12.2006 17:57 Page 88
  • 89.
    Instalações Elétricas Residenciais 89 Cálculoda Corrente A fórmula P = U x I permite o cálculo da corrente, desde que os valores da potência e da tensão sejam conhecidos. Substituindo na fórmula as letras correspondentes à potência e tensão pelos seus valores conhecidos: No projeto elétrico desenvolvido como exemplo, os valores das potências de iluminação e tomadas de cada circuito terminal já estão previstos e a tensão de cada um deles já está determinada. Esses valores se encontram registrados na tabela a seguir. P = U x I 635 = 127 x ? Para o cálculo da corrente: Para achar o valor da corrente basta dividir os valores conhecidos, ou seja, o valor da potência pela tensão: I = ? I = P ÷ U I = 635 ÷ 127 I = 5 A I = P ÷ U 1630 IER 14X21 ok 20.12.2006 17:57 Page 89
  • 90.
    90 Instalações Elétricas Residenciais Circuito Tensão (V) Local Corrente (A) nºde circuitos agrupados Seção dos condutores (mm2 ) nº de Corrente pólos nominal Tipo Proteção Potência Quantidade x Total potência (VA) (VA) nº Tipo Sala 1 x 100 Ilum. Dorm. 1 1 x 160 1 social 127 Dorm. 2 1 x 160 620 4,9 DTM 1 Banheiro 1 x 100 + IDR 2 Hall 1 x 100 Copa 1 x 100 Ilum. Cozinha 1 x 160 DTM 1 2 serviço 127 A. serviço 1 x 100 460 3,6 + IDR 2 A. externa 1 x 100 Sala 4 x 100 3 PTUG’s 127 Dorm. 1 4 x 100 900 7,1 DTM 1 Hall 1 x 100 + IDR 2 4 PTUG’s 127 Banheiro 1 x 600 1000 7,9 DTM 1 Dorm. 2 4 x 100 + IDR 2 5 PTUG’s 127 Copa 2 x 600 1200 9,4 DTM 1 + IDR 2 6 PTUG’s 127 Copa 1 x 100 700 5,5 DTM 1 1 x 600 + IDR 2 7 PTUG’s 127 Cozinha 2 x 600 1200 9,4 DTM 1 + IDR 2 PTUG’s 1 x 100 8 +PTUE’s 127 Cozinha 1 x 600 1200 9,4 DTM 1 1 x 500 + IDR 2 9 PTUG’s 127 A. serviço 2 x 600 1200 9,4 DTM 1 + IDR 2 10 PTUE’s 127 A. serviço 1 x 1000 1000 7,9 DTM 1 + IDR 2 11 PTUE’s 220 Chuveiro 1 x 5600 5600 25,5 DTM 2 + IDR 2 12 PTUE’s 220 Torneira 1 x 5000 5000 22,7 DTM 2 + IDR 2 Quadro de Distribuição 220 distribuição 12459 56,6 DTM 2 Quadro de medidor Para o cálculo da corrente do circuito de distribuição, primeiramente é necessário calcular a potência deste circuito. 1630 IER 14X21 ok 20.12.2006 17:57 Page 90
  • 91.
    Instalações Elétricas Residenciais 91 Cálculoda Potência do Circuito de Distribuição Nota: estes valores já foram calculados na página 25 6600 x 0,40 = 2640W 1. Somam-se os valores das potências ativas de iluminação e pontos de tomadas de uso geral (PTUG’s). 2. Multiplica-se o valor calculado (6600 W) pelo fator de demanda correspondente a esta potência. potência ativa de iluminação: 1080 W potência ativa de PTUG’s: 5520W 6600W Fator de demanda representa uma porcentagem do quanto das potências previstas serão utilizadas simultaneamente no momento de maior solicitação da instalação. Isto é feito para não superdimensionar os componentes dos circuitos de distribuição, tendo em vista que numa residência nem todas as lâmpadas e pontos de tomadas são utilizadas ao mesmo tempo. Fatores de demanda para iluminação e pontos de tomadas de uso geral (PTUG’s) Potência (W) Fator de demanda potência ativa de iluminação e PTUG’s = 6600W fator de demanda: 0,40 0 a 1000 0,86 1001 a 2000 0,75 2001 a 3000 0,66 3001 a 4000 0,59 4001 a 5000 0,52 5001 a 6000 0,45 6001 a 7000 0,40 7001 a 8000 0,35 8001 a 9000 0,31 9001 a 10000 0,27 Acima de 10000 0,24 1630 IER 14X21 ok 20.12.2006 17:57 Page 91
  • 92.
    92 Instalações Elétricas Residenciais Ofator de demanda para as PTUE’s é obtido em função do número de circuitos de PTUE’s previstos no projeto. 12100 W x 0,76 = 9196 W 3. Multiplicam-se as potências dos pontos de tomadas de uso específico (PTUE’s) pelo fator de demanda correspondente. nº de circuitos FD PTUE’s nº de circuitos de PTUE’s do exemplo = 4. Potência ativa de PTUE’s: 1 chuveiro de 5600 W 1 torneira de 5000 W 1 geladeira de 500 W 1 máquina de lavar de 1000 W 12100 W fator de demanda = 0,76 01 1,00 02 1,00 03 0,84 04 0,76 05 0,70 06 0,65 07 0,60 08 0,57 09 0,54 10 0,52 11 0,49 12 0,48 13 0,46 14 0,45 15 0,44 16 0,43 17 0,40 18 0,40 19 0,40 20 0,40 21 0,39 22 0,39 23 0,39 24 0,38 25 0,38 1630 IER 14X21 ok 20.12.2006 17:57 Page 92
  • 93.
    Instalações Elétricas Residenciais 93 11836÷ 0,95 = 12459VA Anota-se o valor da potência e da corrente do circuito de distribuição na tabela anterior. Cálculo da Corrente do Circuito de Distribuição 4. Somam-se os valores das potências ativas de iluminação, de PTUG’s e de PTUE’s já corrigidos pelos respectivos fatores de demandas. 5. Divide-se o valor obtido pelo fator de potência médio de 0,95, obtendo-se assim o valor da potência do circuito de distribuição. potência ativa de iluminação e PTUG’s: 2640W potência ativa de PTUE’s: 9196 W 11836W Uma vez obtida a potência do circuito de distribuição, pode-se efetuar o: potência do circuito de distribuição: 12459VA Fórmula: I = P ÷ U P = 12459VA U = 220 V I = 12459 ÷ 220 I = 56,6A 1630 IER 14X21 ok 20.12.2006 17:57 Page 93
  • 94.
    94 Instalações Elétricas Residenciais Parase efetuar o dimensionamento dos condutores e dos disjuntores do circuito, algumas etapas devem ser seguidas. O maior agrupamento para cada um dos circuitos do projeto se encontra em destaque na planta a seguir. • Dimensionar a fiação de um circuito é determinar a seção padronizada (bitola) dos condutores deste circuito, de forma a garantir que a corrente calculada para ele possa circular pelos cabos, por um tempo ilimitado, sem que ocorra superaquecimento. • Dimensionar o disjuntor (proteção) é determinar o valor da corrente nominal do disjuntor de tal forma que se garanta que os condutores da instalação não sofram danos por aquecimento excessivo provocado por sobrecorrente ou curto-circuito. Consultar a planta com a representação gráfica da fiação e seguir o caminho que cada circuito percorre, observando neste trajeto qual o maior número de circuitos que se agrupa com ele. Dimensionamento dos condutores e dos Disjuntores dos Circuitos 1ª Etapa 1630 IER 14X21 ok 20.12.2006 17:57 Page 94
  • 95.
    95 1630 IER 14X21ok 20.12.2006 17:57 Page 95
  • 96.
    96 Instalações Elétricas Residenciais 13 7 3 2 3 8 3 3 3 9 3 4 3 10 2 5 3 11 1 6 2 12 3 Distribuição 1 O maior número de circuitos agrupados para cada circuito do projeto está relacionado abaixo. nº do nº de circuitos nº do nº de circuitos circuito agrupados circuito agrupados Determinar a seção adequada e o disjuntor apropriado para cada um dos circuitos. Para isto é necessário apenas saber o valor da corrente do circuito e, com o número de circuitos agrupados também conhecido, entrar na tabela 1 e obter a seção do condutor e o valor da corrente nominal do disjuntor. 2ª Etapa Corrente = 7,1 A, 3 circuitos agrupados por eletroduto: entrando na tabela 1 na coluna de 3 circuitos por eletroduto, o valor de 7,1A é menor do que 10A e, portanto, a seção adequada para o circuito 3 é 1,5mm2 e o disjuntor apropriado é 10A. Circuito 3 Exemplo 1630 IER 14X21 ok 20.12.2006 17:57 Page 96
  • 97.
    Instalações Elétricas Residenciais 97 Tabela1 Exemplo do circuito 3 Exemplo do circuito 12 Corrente = 22,7 A, 3 circuitos agrupados por eletroduto: entrando na tabela 1 na coluna de 3 circuitos por eletroduto, o valor de 22,7A é maior do que 20 e, portanto, a seção adequada para o circuito 12 é 6mm2 o disjuntor apropriado é 25A. Circuito 12 Exemplo Seção dos condutores (mm2 ) 1 circuito por eletroduto Corrente nominal do disjuntor (A) 2 circuitos por eletroduto 3 circuitos por eletroduto 4 circuitos por eletroduto 1,5 15 10 10 10 2,5 20 15 15 15 4 30 25 20 20 6 40 30 25 25 10 50 40 40 35 16 70 60 50 40 25 100 70 70 60 35 125 100 70 70 50 150 100 100 90 70 150 150 125 125 95 225 150 150 150 120 250 200 150 150 1630 IER 14X21 ok 20.12.2006 17:57 Page 97
  • 98.
    98 Instalações Elétricas Residenciais Destaforma, aplicando-se o critério mencionado para todos os circuitos, temos: nº do Seção adequada Disjuntor circuito (mm2 ) (A) 1 1,5 10 2 1,5 10 3 1,5 10 4 1,5 10 5 1,5 10 6 1,5 10 7 1,5 10 8 1,5 10 9 1,5 10 10 1,5 10 11 4 30 12 6 25 Distribuição 16 70 Estes são os tipos de cada um dos circuitos do projeto. Verificar, para cada circuito, qual o valor da seção mínima para os condutores estabelecida pela NBR 5410:2004 em função do tipo de circuito. 3ª Etapa 1 Iluminação 7 Força 2 Iluminação 8 Força 3 Força 9 Força 4 Força 10 Força 5 Força 11 Força 6 Força 12 Força Distribuição Força nº do Tipo nº do Tipo circuito circuito 1630 IER 14X21 ok 20.12.2006 17:57 Page 98
  • 99.
    Instalações Elétricas Residenciais 99 ANBR 5410:2004 estabelece as seguintes seções mínimas de condutores de acordo com o tipo de circuito: Seção mínima de condutores Tipo de circuito Seção mínima (mm2 ) Iluminação 1,5 Força 2,5 Aplicando o que a NBR 5410:2004 estabelece, as seções mínimas dos condutores para cada um dos circuitos do projeto são: nº do Tipo Seção mínima circuito (mm2 ) 1 Iluminação 1,5 2 Iluminação 1,5 3 Força 2,5 4 Força 2,5 5 Força 2,5 6 Força 2,5 7 Força 2,5 8 Força 2,5 9 Força 2,5 10 Força 2,5 11 Força 2,5 12 Força 2,5 Distribuição Força 2,5 1630 IER 14X21 ok 20.12.2006 17:57 Page 99
  • 100.
    100 Instalações Elétricas Residenciais Atabela abaixo mostra as bitolas encontradas para cada circuito após termos feito os cálculos e termos seguido os critérios da NBR 5410:2004 1 1,5 1,5 7 1,5 2,5 2 1,5 1,5 8 1,5 2,5 3 1,5 2,5 9 1,5 2,5 4 1,5 2,5 10 1,5 2,5 5 1,5 2,5 11 4 2,5 6 1,5 2,5 12 6 2,5 Distribuição 16 2,5 nº Seção Seção nº Seção Seção do adequada mínima do adequada mínima circuito (mm2 ) (mm2 ) circuito (mm2 ) (mm2 ) 1,5mm2 é menor que 2,5mm2 seção dos condutores: 2,5mm2 Circuito 3 Exemplo 6mm2 é maior que 2,5mm2 seção dos condutores: 6mm2 Circuito 12 Exemplo 1630 IER 14X21 ok 20.12.2006 17:57 Page 100
  • 101.
    Instalações Elétricas Residenciais 101 nºdo Seção dos circuito condutores (mm2 ) 1 1,5 2 1,5 3 2,5 4 2,5 5 2,5 6 2,5 nº do Seção dos circuito condutores (mm2 ) 7 2,5 8 2,5 9 2,5 10 2,5 11 4 12 6 Distribuição 16 De posse desses dados, consulta-se a norma de fornecimento da companhia de eletricidade local para se obter a corrente nominal do disjuntor a ser empregado. Dimensionamento do Disjuntor Aplicado no Quadro do Medidor • a potência total instalada que determinou o tipo de fornecimento; • o tipo de sistema de distribuição da companhia de eletricidade local. Para se dimensionar o disjuntor aplicado no quadro do medidor, primeiramente é necessário saber: Nota: no caso da ELEKTRO, a norma de fornecimento é a NTU-1. Comparando os valores das seções adequadas, obtidos na tabela 1 (pág. 97), com os valores das seções mínimas estabelecidas pela NBR 5410:2004 adotamos para a seção dos condutores do circuito o maior deles. 1630 IER 14X21 ok 20.12.2006 17:57 Page 101
  • 102.
    102 Instalações Elétricas Residenciais 2520 20 15 (3/4) (3/4) 6 (1/2) (1/2) 25 20 20 15 (3/4) (3/4) 10 (1/2) (1/2) 32 25 20 15 (1) (1) 10 (1/2) (1/2) 32 25 20 15 (1) (1) 10 (1/2) (1/2) 32 25 20 15 (1) (1) 10 (1/2) (1/2) Exemplificando o dimensionamento do disjuntor aplicado no quadro do medidor: Consultando a NTU-1: Tabela 1 da NTU-1- Dimensionamento do ramal de entrada - Sistema estrela com neutro - Tensão de fornecimento 127/220 V (1) 18,7kW é maior que 15kW e menor do que 20kW. A corrente nominal do disjuntor será 70A. Cate- goria Carga instalada (kW) Demanda calcu- lada (kVA) Medi- ção Proteção Eletroduto tam. nomi- nal mm (pol) Disjuntor termomag. (A) Chave (A) (8) Fusível (A) (4) PVC Aço (7) PVC Aço (7) Limitação (2) motores (cv) Condutor ramal de entrada (mm2 ) (3) FN FF FFFN Aterramento Cond. (mm2 ) (3) Eletroduto tam. nom. mm (pol) a potência total instalada: 18700 W ou 18,7k W sistema de distribuição: estrela com neutro aterrado A1 C≤ 5 - Direta 1 - - 6 40 30 30 A2 5<C≤ 10 2 - - 16 70 100 70 B1 (9)C≤ 10 - Direta 1 2 - 10 40 60 40 B2 10<C≤ 15 2 3 - 16 60 60 60 B3 15<C≤ 20 2 5 - 25 70 100 70 Dimensionar o dispositivo DR é determinar o valor da corrente nominal e da corrente diferencial-residual nominal de atuação de tal forma que se garanta a proteção das pessoas contra choques elétricos que possam colocar em risco a vida da pessoa. Dimensionamento dos Dispositivos DR 1630 IER 14X21 ok 20.12.2006 17:57 Page 102
  • 103.
    Instalações Elétricas Residenciais 103 Corrente diferencial-residual nominalde atuação Assim temos duas situações: A NBR 5410:2004 estabelece que, no caso dos DRs de alta sensibilidade, o valor máximo para esta corrente é de 30mA (trinta mili ampères). Corrente nominal De um modo geral, as correntes nominais típicas disponíveis no mercado, seja para Disjuntores DR ou Interruptores DR são: 25, 40, 63, 80 e 100A. Devem ser escolhidos com base na tabela 1 (pág. 94). Note que não será permitido usar um Disjuntor DR de 25A, por exemplo, em circuitos que utilizem condutores de 1,5 e 2,5mm2 . Nestes casos, a solução é utilizar uma combinação de disjuntor termomagnético + interruptor diferencial-residual. Disjuntores DR Devem ser escolhidos com base na corrente nominal dos disjuntores termomagnéticos, a saber: Interruptores DR (IDR) Corrente nominal Corrente nominal do disjuntor (A) mínima do IDR (A) 10, 15, 20, 25 25 30, 40 40 50, 60 63 70 80 90, 100 100 1630 IER 14X21 ok 20.12.2006 17:57 Page 103
  • 104.
    104 Instalações Elétricas Residenciais Aplicandoos métodos de escolha de disjuntores e dispositivos DR vistos anteriormente, temos: Circuito Tensão (V) Local Corrente (A) nº de circuitos agrupados Seção dos condutores (mm2 ) nº de Corrente pólos nominal Tipo Proteção Potência Quantidade x Total potência (VA) (VA) nº Tipo Sala 1 x 100 Ilum. Dorm. 1 1 x 160 1 social 127 Dorm. 2 1 x 160 620 4,9 3 1,5 DTM 1 10 Banheiro 1 x 100 + IDR 2 25 Hall 1 x 100 Copa 1 x 100 Ilum. Cozinha 1 x 160 DTM 1 10 2 serviço 127 A. serviço 1 x 100 460 3,6 3 1,5 + IDR 2 25 A. externa 1 x 100 Sala 4 x 100 3 PTUG’s 127 Dorm. 1 4 x 100 900 7,1 3 2,5 DTM 1 10 Hall 1 x 100 + IDR 2 25 4 PTUG’s 127 Banheiro 1 x 600 1000 7,9 3 2,5 DTM 1 10 Dorm. 2 4 x 100 + IDR 2 25 5 PTUG’s 127 Copa 2 x 600 1200 9,4 3 2,5 DTM 1 10 + IDR 2 25 6 PTUG’s 127 Copa 1 x 100 700 5,5 2 2,5 DTM 1 10 1 x 600 + IDR 2 25 7 PTUG’s 127 Cozinha 2 x 600 1200 9,4 3 2,5 DTM 1 10 + IDR 2 25 PTUG’s 1 x 100 8 +PTUE’s 127 Cozinha 1 x 600 1200 9,4 3 2,5 DTM 1 10 1 x 500 + IDR 2 25 9 PTUG’s 127 A. serviço 2 x 600 1200 9,4 3 2,5 DTM 1 10 + IDR 2 25 10 PTUE’s 127 A. serviço 1 x 1000 1000 7,9 2 2,5 DTM 1 10 + IDR 2 25 11 PTUE’s 220 Chuveiro 1 x 5600 5600 25,5 1 4 DTM 2 30 + IDR 2 40 12 PTUE’s 220 Torneira 1 x 5000 5000 22,7 3 6 DTM 2 25 + IDR 2 25 Quadro de Distribuição 220 distribuição 12459 56,6 1 16 DTM 2 70 Quadro de medidor 1630 IER 14X21 ok 20.12.2006 17:57 Page 104
  • 105.
    Instalações Elétricas Residenciais 105 Nota:normalmente, em uma instalação, todos os condutores de cada circuito têm a mesma seção, entretanto a NBR 5410:2004 permite a utilização de condutores de proteção com seção menor, conforme a tabela: A partir desse momento, passaremos para o dimensionamento dos eletrodutos. Seção dos condutores Seção do condutor fase (mm2 ) de proteção (mm2 ) 1,5 1,5 2,5 2,5 4 4 6 6 10 10 16 16 25 16 35 16 50 25 70 35 95 50 120 70 150 95 185 95 240 120 Mas... O que é dimensionar eletrodutos ? Dimensionar eletrodutos é determinar o tamanho nominal do eletroduto para cada trecho da instalação. Tamanho nominal do eletroduto é o diâmetro externo do eletroduto expresso em mm, padronizado por norma. 1630 IER 14X21 ok 20.12.2006 17:57 Page 105
  • 106.
    106 Instalações Elétricas Residenciais Considerandoesta recomendação, existe uma tabela que fornece diretamente o tamanho do eletroduto. Para dimensionar os eletrodutos de um projeto, basta saber o número de condutores no eletroduto e a maior seção deles. Exemplo: nº de condutores no trecho do eletroduto =6 maior seção dos condutores =4mm2 O tamanho nominal do eletroduto será 20mm. Seção nominal (mm2 ) Número de condutores no eletroduto 1,5 16 16 16 16 16 16 20 20 20 2,5 16 16 16 20 20 20 20 25 25 4 16 16 20 20 20 25 25 25 25 6 16 20 20 25 25 25 25 32 32 10 20 20 25 25 32 32 32 40 40 16 20 25 25 32 32 40 40 40 40 25 25 32 32 40 40 40 50 50 50 35 25 32 40 40 50 50 50 50 60 50 32 40 40 50 50 60 60 60 75 70 40 40 50 60 60 60 75 75 75 95 40 50 60 60 75 75 75 85 85 120 50 50 60 75 75 75 85 85 - 150 50 60 75 75 85 85 - - - 185 50 75 75 85 85 - - - - 240 60 75 85 - - - - - - 2 3 4 5 6 7 8 9 10 Tamanho nominal do eletroduto (mm) Diâmetro interno Condutores 40% 60% O tamanho dos eletrodutos deve ser de um diâmetro tal que os condutores possam ser facilmente instalados ou retirados. Para tanto é obrigatório que os condutores não ocupem mais que 40% da área útil dos eletrodutos. 1630 IER 14X21 ok 20.12.2006 17:57 Page 106
  • 107.
    Instalações Elétricas Residenciais 107 Paradimensionar os eletrodutos de um projeto elétrico, é necessário ter: Como proceder: Na planta do projeto, para cada trecho de eletroduto deve-se: Consultar a tabela específica para se obter o tamanho nominal do eletroduto adequado a este trecho. De posse destes dados, deve-se: a planta com a representação gráfica da fiação com as seções dos condutores indicadas. e a tabela específica que fornece o tamanho do eletroduto. 1º Contar o número de condutores contidos no trecho; 2º Verificar qual é a maior seção destes condutores. 1630 IER 14X21 ok 20.12.2006 17:57 Page 107
  • 108.
    108 Instalações Elétricas Residenciais Dimensionandoos eletrodutos do circuito de distribuição e botão da campainha. Dimensionamento de Alguns Trechos dos Eletrodutos do Projeto Para este trecho: eletroduto de 25mm. Seção nominal (mm2 ) Número de condutores no eletroduto 2 3 4 5 6 7 8 Tamanho nominal do eletroduto (mm) Trecho: do QM até QD nº de condutores: 4 maior seção dos condutores: 16mm2 1,5 16 16 16 16 16 16 20 2,5 16 16 16 20 20 20 20 4 16 16 20 20 20 25 25 6 16 20 20 25 25 25 25 10 20 20 25 25 32 32 32 16 20 25 25 32 32 40 40 1630 IER 14X21 ok 20.12.2006 17:57 Page 108
  • 109.
    109 Instalações Elétricas Residenciais Repetindo-se,então, este procedimento para todos os trechos, temos a planta indicada a seguir : Trecho: do QM até botão da campainha nº de condutores: 2 maior seção dos condutores: 1,5 mm2 Para este trecho: eletroduto de 16mm. Seção nominal (mm2 ) Número de condutores no eletroduto 1,5 16 16 16 16 16 16 20 2,5 16 16 16 20 20 20 20 4 16 16 20 20 20 25 25 6 16 20 20 25 25 25 25 10 20 20 25 25 32 32 32 16 20 25 25 32 32 40 40 25 25 32 32 40 40 40 50 35 25 32 40 40 50 50 50 2 3 4 5 6 7 8 Tamanho nominal do eletroduto (mm) 1630 IER 14X21 ok 20.12.2006 17:57 Page 109
  • 110.
    110 2 8 #1,5 Os condutores eeletrodutos sem indicação na planta serão: 2,5 mm2 e ø 20 mm, respectivamente. 1630 IER 14X21 ok 20.12.2006 17:57 Page 110
  • 111.
    Instalações Elétricas Residenciais 111 Paraa execução do projeto elétrico residencial, precisa-se previamente realizar o levantamento do material, que nada mais é que: medir, contar, somar e relacionar todo o material a ser empregado e que aparece representado na planta residencial. Sendo assim, através da planta pode-se: medir e determinar quantos metros de eletrodutos e condutores, nas seções indicadas, devem ser adquiridos para a execução do projeto. Levantamento de material 1630 IER 14X21 ok 20.12.2006 17:57 Page 111
  • 112.
    112 Instalações Elétricas Residenciais Parase determinar a medida dos eletrodutos e condutores deve-se: medir, diretamente na planta, os eletrodutos representados no plano horizontal e... Somar, quando for o caso, os eletrodutos que descem ou sobem até as caixas. 1630 IER 14X21 ok 20.12.2006 17:57 Page 112
  • 113.
    Instalações Elétricas Residenciais 113 Sãofeitas com o auxílio de uma régua, na própria planta residencial. Uma vez efetuadas, estas medidas devem ser convertidas para o valor real, através da escala em que a planta foi desenhada. A escala indica qual é a proporção entre a medida representada e a real. Medidas do Eletroduto no Plano Horizontal Significa que a cada 1cm no desenho corresponde a 100cm nas dimensões reais. Escala 1:100 Significa que a cada 1cm no desenho corresponde a 25cm nas dimensões reais. Escala 1:25 Exemplos 1630 IER 14X21 ok 20.12.2006 17:57 Page 113
  • 114.
    114 Instalações Elétricas Residenciais saídaalta 2,20m interruptor e ponto de tomada média 1,30m ponto de tomada baixa 0,30m quadro de 1,20m distribuição Medidas dos Eletrodutos que Descem até as Caixas (medida do eletroduto) Caixas para Subtrair pé direito = 2,80m esp. da laje = 0,15m 2,95m caixa para saída alta subtrair 2,20m = 2,95m -2,20m 0,75 m Exemplificando espessura da laje = 0,15 m pé direito = 2,80 m São determinadas descontando da medida do pé direito mais a espessura da laje da residência a altura em que a caixa está instalada. 1630 IER 14X21 ok 20.12.2006 17:57 Page 114
  • 115.
    Instalações Elétricas Residenciais 115 Sãodeterminadas somando a medida da altura da caixa mais a espessura do contrapiso. Medidas dos Eletrodutos que Sobem até as Caixas interruptor e ponto de tomada média 1,30m ponto de tomada baixa 0,30m quadro de 1,20m distribuição Nota: as medidas apresentadas são sugestões do que normalmente se utiliza na prática. A NBR 5410:2004 não faz recomendações a respeito disso. Caixas para Somar espessura do contrapiso = 0,10m 1,30 + 0,10 = 1,40m 0,30 + 0,10 = 0,40m 1,20 + 0,10 = 1,30m Exemplificando espessura do contrapiso = 0,10m 1630 IER 14X21 ok 20.12.2006 17:57 Page 115
  • 116.
    116 Instalações Elétricas Residenciais Comoa medida dos eletrodutos é a mesma dos condutores que por eles passam, efetuando-se o levantamento dos eletrodutos, simultaneamente estará se efetuando o da fiação. Exemplificando o levantamento dos eletrodutos e fiação: Mede-se o trecho do eletroduto no plano horizontal. eletroduto de 20mm = 3,80m (2 barras) condutor fase de 2,5mm2 = 3,80m condutor neutro de 2,5mm2 = 3,80m condutor de proteção de 2,5mm2 = 3,80m condutor fase de 1,5mm2 = 3,80m condutor neutro de 1,5mm2 = 3,80m Para este trecho da instalação, têm-se: escala utilizada = 1:100 pé direito = 2,80 m espessura da laje = 0,15 m 2,80 + 0,15 = 2,95 3,8 cm x 100 380,0 cm ou 3,80 m Chega-se a um valor de 3,8 cm: converte-se o valor encontrado para a medida real 1630 IER 14X21 ok 20.12.2006 17:57 Page 116
  • 117.
    Instalações Elétricas Residenciais 117 Agora,outro trecho da instalação. Nele, é necessário somar a medida do eletroduto que desce até a caixa do ponto de tomada baixa. 2,2cm x 100 = 220cm ou 2,20m Medida do eletroduto no plano horizontal Medida do eletroduto que desce até a caixa do ponto de tomada baixa (pé direito + esp. da laje) - (altura da caixa) 2,95 m - 0,30 m = 2,65 m Somam-se os valores encontrados (plano horizontal) + (descida até a caixa) 2,20 m + 2,65 m = 4,85 m eletroduto de 20mm = 3,80m (2 barras) eletroduto de 16mm = 4,85m (2 barras) condutor fase de 2,5mm2 = 3,80m + 4,85m = 8,65m condutor neutro de 2,5mm2 = 3,80m + 4,85m = 8,65m condutor de proteção de 2,5mm2 = 3,80m + 4,85m = 8,65m condutor fase de 1,5mm2 = 3,80m condutor neutro de 1,5mm2 = 3,80m Adicionam-se os valores encontrados aos da relação anterior: S 1630 IER 14X21 ok 20.12.2006 17:57 Page 117
  • 118.
    118 Instalações Elétricas Residenciais Tendo-semedido e relacionado os eletrodutos e fiação, conta-se e relaciona-se também o número de: retangular 4” x 2” Curvas, Luva, Bucha e Arruela • caixas, curvas, luvas, arruela e buchas; • tomadas, interruptores, conjuntos e placas de saída de condutores. octogonal 4” x 4” quadrada 4” x 4” curva 45° arruela bucha luva curva 90° Caixas de Derivação condutores indicados para instalações 1630 IER 14X21 ok 20.12.2006 17:57 Page 118
  • 119.
    Instalações Elétricas Residenciais 119 Tomadas, Interruptores eConjuntos Observando-se a planta do exemplo... Atenção para a nova padronização de tomadas. (ver pg. 63) b 2 caixas octogonais 4” x 4” 4 caixas 4” x 2” 3 tomadas 2 P + T 1 interruptor simples 1 curva 90° de ø 20 1 luva de ø 20 4 arruelas de ø 20 4 buchas de ø 20 3 curvas 90° de ø 16 6 buchas de ø 16 6 arruelas de ø 16 ... conta-se 1630 IER 14X21 ok 20.12.2006 17:57 Page 119
  • 120.
    120 Instalações Elétricas Residenciais Odesenho abaixo mostra a localização desses componentes. NOTA: considerou-se no levantamento que cada curva já vem acompanhada das respectivas luvas. curva 90° ø 20° luva ø 20° curva 90° ø 16° caixa de derivação 4” x 2” caixa de derivação octogonal 4” x 4” curva 90° ø 16° Considerando-se o projeto elétrico indicado na página 110 têm-se a lista a seguir: caixa de derivação octogonal 4” x 4” 1630 IER 14X21 ok 20.12.2006 17:57 Page 120
  • 121.
    Instalações Elétricas Residenciais 121 Listade material Preço Quant. Unit. Total Cabos Superastic Flex Proteção 16mm2 7m Fase 16mm2 13m Neutro 16mm2 7m Fase 1,5mm2 56m Neutro 1,5mm2 31m Retorno 1,5mm2 60m Fase 2,5mm2 159m Neutro 2,5mm2 151m Retorno 2,5mm2 9m Proteção 2,5mm2 101m Fase 4mm2 15m Proteção 4mm2 8m Fase 6mm2 22m Proteção 6mm2 11m Eletrodutos 16mm 16 barras 20mm 27 barras 25mm 4 barras Outros componentes da distribuição Caixa 4” x 2” 36 Caixa octogonal 4” x 4” 8 Caixa 4” x 4” 1 Campainha 1 Tomada 2P + T 26 Interruptor simples 4 Interruptor paralelo 2 Conjunto interruptor simples e tomada 2P + T 2 Conjunto interruptor paralelo e tomada 2P + T 1 Conjunto interruptor paralelo e interruptor simples 1 Placa para saída de fio 2 Disjuntor termomagnético monopolar 10A 10 Disjuntor termomagnético bipolar 25A 1 Disjuntor termomagnético bipolar 30A 1 Disjuntor termomagnético bipolar 70A 1 Interruptor diferencial residual bipolar 30mA/25A 10 Interruptor diferencial residual bipolar 30mA/40A 1 Quadro de distribuição 1 1630 IER 14X21 ok 20.12.2006 17:57 Page 121
  • 122.
    122 Instalações Elétricas Residenciais Apêndice1 As novas tecnologias de cabos de baixa tensão para uso em construções em geral. 1.1 - Nesta revisão de 2006 do livro de instalações elétricas residenciais, procuramos incluir este apêndice com o objetivo de atender a diversos pedidos de profissionais da área elétrica que gostariam de ver neste livro quais as novas tecnologias de cabos elétricos de baixa tensão na faixa de 450/750V e 0,6/1kV, afim de ampliar seus conhecimentos e campo de visão de outras aplicações. Há uma tendência de desenvolvimento contínuo de materiais que venham a oferecer cada vez mais segurança principalmente para as pessoas, patrimônio e equipamentos. Desta forma na década de 70 surgem no mercado os cabos antichama, que são obrigatórios desde aquela época em todas edificações. Nesta linha de desenvolvimento surgem agora os cabos que além de serem antichama possuem também características de baixa emissão de fumaça e gases tóxicos em caso de incidente ou até de incêndio. Pioneira mais uma vez a Prysmiam Cables & Systems lança o produto da linha Afumex que tem estas características. Fabricado em diversas linhas mais principalmente para as tensões 450/750V e 0,6/1kV, são atualmente acessíveis para uso em todas edificações. 1630 IER 14X21 ok 20.12.2006 17:58 Page 122
  • 123.
    Instalações Elétricas Residenciais 123 Anorma brasileira NBR 5410:2004 - Instalações Elétricas de Baixa Tensão desde 1990 já vem prevendo utilização deste tipo de material em construções particulares e agora, como estão muito mais acessíveis, devem com o tempo estar presentes em todas as edificações brasileiras. Por isso é importante que você saiba desta nova realidade pois com certeza dependendo da sua próxima obra ou manutenção, deverá atentar para o uso de cabos desta categoria. Colocamos a seguir referência normativa da utilização de cabos do tipo Afumex segundo a NBR 5410:2004: A NBR 5410:2004, no item 5.2.2.2.3, estabelece locais onde as instalações elétricas aparentes (em leitos, bandejas, suportes, espaços de construção, etc.) devem utilizar cabos Afumex (cabos livres de halogênio, com baixa emissão de fumaça e gases tóxicos). “5.2.2.2.3 – Em áreas comuns, em áreas de circulação e em áreas de concentração de público, em locais BD2, BD3 e BD4, as linhas elétricas embutidas devem ser totalmente imersas em material incombustível, enquanto as linhas aparentes e as linhas no interior de paredes ocas ou de outros espaços de construção devem atender a uma das seguintes condições: Utilização de cabos Afumex (NBR 5410:2004). Residencial Infra-estrutura Comercial Industrial 1630 IER 14X21 ok 20.12.2006 17:58 Page 123
  • 124.
    124 Instalações Elétricas Residenciais a)No caso de linhas constituídas por cabos fixados em paredes ou em tetos, os cabos devem ser não-propagantes de chama, livres de halogênio e com baixa emissão de fumaça e gases tóxicos; b) No caso de linhas constituídas por condutos abertos, os cabos devem ser não-propagantes de chama, livres de halogênio e com baixa emissão de fumaça e gases tóxicos. Já os condutos, caso não sejam metálicos ou de outro material incombustível, devem ser não-propagantes de chama, livres de halogênio e com baixa emissão de fumaça e gases tóxicos. c) No caso de linhas em condutos fechados, os condutos que não sejam metálicos ou de outro material incombustível devem ser não-propagantes de chama, livres de halogênios e com baixa emissão de fumaça e gases tóxicos. Na primeira hipótese (condutos metálicos ou de outro material incombustível), podem ser usados condutores e cabos apenas não-propagantes de chama; na segunda, devem ser usados cabos não-propagantes de chama, livres de halogênio e com baixa emissão de fumaça e gases tóxicos.” código classificação características aplicações e exemplos CONDIÇÕES DE FUGA DAS PESSOAS EM EMERGÊNCIAS Edificações residenciais com altura inferior a 50m e edificações não residenciais com baixa densidade de ocupação e altura inferior a 28m. Edificações residenciais com altura superior a 50m e edificações não residenciais com baixa densidade de ocupação e altura superior a 28m. Locais de afluência de público (teatros, cinemas, lojas de departamentos, escolas, etc.); edificações não residenciais com alta densidade de ocupação e altura inferior a 28m. Locais de afluência de público de maior porte (shopping centers, grandes hotéis e hospitais, estabelecimento de ensino ocupando diversos pavimentos de uma edificação, etc.); edificações não residenciais com alta densidade de ocupação e altura superior a 28m. Baixa densidade de ocupação. Percurso de fuga breve. Normal Longa Incômoda Longa e Incômoda BD4 BD3 BD2 BD1 Baixa densidade de ocupação. Percurso de fuga longo. Alta densidade de ocupação. Percurso de fuga breve. Alta densidade de ocupação. Percurso de fuga longo. (*) De acordo com a Tabela 21 da NBR 5410:2004. 1630 IER 14X21 ok 20.12.2006 17:58 Page 124
  • 125.
    Instalações Elétricas Residenciais 125 1.2.Cabos elétricos 0,6/1kV de maior desempenho. Sobre novas tecnologias em cabos de maior desempenho podemos citar os cabos com isolamento em borracha (HEPR), que no final da última década tiveram seu lançamento no mercado e atualmente largamente utilizado. A Prysmian investiu nesta tecnologia e apresentou ao mercado os cabos da linha Eprotenax Gsette, que já é largamente utilizado em circuitos elétricos em geral conforme previsto na NBR 5410:2004. Possui com principal característica maior capacidade de condução de corrente elétrica como pode ser visto na tabela abaixo. Seção nominal (mm2 ) Condutor magnético Queda de tensão para cos ø = 0,8 (V/A km) Condutor não-magnético Capacidade de condução de corrente (A) 1,5 23 20 23,5 20,4 23 2,5 31 28 14,6 12,7 14 4 42 37 9,1 7,9 9,0 6 54 48 6,1 5,3 5,87 10 75 66 3,6 3,2 3,54 16 100 88 2,34 2,05 2,27 25 133 117 1,52 1,34 1,50 35 164 144 1,15 0,99 1,12 50 198 175 0,86 0,76 0,86 70 253 222 0,63 0,56 0,64 95 306 269 0,48 0,43 0,50 120 354 312 0,40 0,36 0,42 150 407 358 0,35 0,31 0,37 185 464 408 0,30 0,26 0,32 240 546 481 0,26 0,21 0,29 Capacidade de condução de corrente e queda de tensão unitária, à temperatura ambiente de 30°C, instalados em eletroduto aparente, embutido em alvenaria ou em eletrocalha. Fonte: Prontuário Técnico PT2 Prysmian - 8ª edição Cabos Eprotenax Gsette e Afumex 0,6/1kV unipolares Circuito Circuito monofásico trifásico 2 condutores 3 condutores carregados carregados 1630 IER 14X21 ok 20.12.2006 17:58 Page 125
  • 126.
    126 Instalações Elétricas Residenciais Nota:os cabos isolados em EPR, conforme construção acima podem ser instalados em todas aplicações conforme NBR 5410:2004, inclusive nos padrões de entrada, no entanto para estes locais recomendamos que seja verificado com a concessionária da região que será instalado. Aliada a esta característica importante a Prysmian desenvolveu no cabo Eprotenax Gsette uma dupla camada na isolação, gravação metro a metro e mais recentemente a tecnologia ÍrisTech. Tecnologia ÍrisTech desenvolvida inicialmente na Europa a Prysmian lança no Brasil esta novidade que vem de encontro a facilitar as vidas dos profissionais no momento da instalação destes cabos. Características: Isolados com composto termofixo de EPR aplicado em dupla camada, os cabos Eprotenax Gsette são mais seguros, podendo ser aplicados em todos os tipos de instalação, inclusive em ambientes úmidos. Sua excelente flexibilidade, garantida pelo condutor com classe de encordoamento 5, facilita o manuseio, reduzindo o tempo e o custo da instalação. gravação metro a metro dupla camada 1630 IER 14X21 ok 20.12.2006 17:58 Page 126
  • 127.
    Instalações Elétricas Residenciais 127 V Va an nt ta ag ge en ns sd da a t te ec cn no ol lo og gi ia a I Ir ri is sT Te ec ch h A tecnologia IrisTech serve para o profissional marcar sobre o cabo informações úteis para a instalação ou posterior manutenção dos circuitos tais como: • identificação das pontas de cada cabo de um mesmo circuito antes da instalação; • identificação das fases de um circuito; • identificação de circuitos; • data de instalação dos cabos; • responsável pela instalação; • data de revisão/inspeção dos circuitos; • ou qualquer outra informação que desejar. As cores das listras das seções entre 1,5mm2 e 25mm2 também servem para uma fácil identificação da seção do condutor do cabo através do código de cores. Desta forma, estamos sugerindo que você profissional fique sempre atento as novidades em relação às instalações elétricas. Uma outra forma possível é acompanhar pela internet no site da Prysmian (www.prysmian.com.br), pois lá você também terá acesso atualizado e rápido às novas tecnologias que irão ajudar no seu dia a dia a conquistar a confiança e fidelidade dos seus clientes, já que encontrará em você um profissional diferenciado, capaz e atualizado. 1630 IER 14X21 ok 20.12.2006 17:58 Page 127
  • 128.
    128 Instalações Elétricas Residenciais Apêndice2 Proteção das instalações elétricas contra surtos – uso de dispositivos DPS O DPS (Dispositivo Protetor de Surtos) protege a instalação elétrica e seus componentes contra as sobretensões provocadas diretamente pela queda de raios na edificação ou na instalação ou provocadas indiretamente pela queda de raios nas proximidades do local. Em alguns casos, as sobretensões podem também ser provocadas por ligamentos ou desligamentos que acontecem nas redes de distribuição da concessionária de energia elétrica. As sobretensões são responsáveis, em muitos casos, pela queima de equipamentos eletroeletrônicos e eletrodomésticos, particularmente aqueles mais sensíveis, tais como computadores, impressoras, scaners, TVs, aparelhos de DVDs, fax, secretárias eletrônicas, telefones sem fio, etc. 1630 IER 14X21 ok 20.12.2006 17:58 Page 128
  • 129.
    Instalações Elétricas Residenciais 129 Tiposde DPS Conforme a capacidade de suportar maiores ou menores sobretensões, os DPS são classificados em classe I, classe II, classe III, existindo ainda DPS que combinam as classes I e II (I/II) no mesmo dispositivo. A informação sobre a classe de um DPS pode ser obtida nos catálogos dos fabricantes. Localização dos DPS Na maioria dos casos, uma residência não utilizará DPS classe I ou I/II, ficando esta aplicação mais voltada para edificações altas (prédios) ou predominantemente horizontais. Na maioria dos casos, numa residência os DPS classe II são instalados no interior do quadro de distribuição. E os DPS classe III são ligados exclusivamente juntos aos equipamentos eletroeletrônicos e eletrodomésticos. classe I ou II exemplo de DPS classe III 1630 IER 14X21 ok 20.12.2006 17:58 Page 129
  • 130.
    130 Instalações Elétricas Residenciais Nostextos a seguir, trataremos especificamente da instalação de DPS nos quadros de distribuição. Ligação dos DPS Nas instalações residenciais, onde o condutor neutro é aterrado no padrão de entrada da edificação, os DPS são ligados entre os condutores de fase e a barra de aterramento do quadro de distribuição. Nestes casos, não é instalado DPS entre neutro e a barra de aterramento. Os DPS podem ser ligados antes ou depois do dispositivo geral de proteção do quadro mas, via de regra, é recomendável ligá-los antes da proteção. Deve ser consultado o fabricante do DPS para verificar a necessidade ou não de instalar proteção contra sobrecorrentes (disjuntor ou fusível) para a proteção do DPS. Havendo necessidade, o fabricante deve informar o tipo e características desta proteção. O comprimento de cada condutor de conexão do DPS ao condutor de fase somado ao comprimento de cada condutor de conexão do DPS à barra de aterramento deve ser o mais curto possível, não excedendo a 50 cm. Devem ainda ser evitadas nestas ligações curvas e laços. A seção nominal dos condutores de conexão do DPS às fases e à barra de aterramento não deve nunca ser inferior a 4 mm2 , sendo recomendável que ela seja, no mínimo, igual à seção dos condutores de fase. O emprego de DPS classe III junto ao equipamento eletroeletrônico ou letrodoméstico é, geralmente, uma decisão a ser tomada pelo usuário da instalação, no sentido de reforçar a proteção contra sobretensões já oferecida por DPS instalados no quadro de distribuição. 1630 IER 14X21 ok 20.12.2006 17:58 Page 130
  • 131.
    Instalações Elétricas Residenciais 131 DesenhoEsquemático do Quadro de Distribuição Condutores de conexão dos DPS aos condutores de fase Condutores de conexão dos DPS à Barra de aterramento DPS 1630 IER 14X21 ok 20.12.2006 17:58 Page 131
  • 132.
    132 Instalações Elétricas Residenciais Requisitosda NBR 5410:2004 - quando usar DPS A obrigatoriedade ou não do uso de DPS na rede elétrica depende de como a instalação é classificada segundo as influências externas “AQ” previstas na tabela 15 da NBR 5410:2004. E classificar a instalação segundo estas influências requer um estudo específico a ser feito por um profissional qualificado. Assim sendo, como este Manual tem por objetivo prover as informações que possibilitem a execução de instalações seguras, recomenda-se que sempre, independentemente do estudo realizado, seja provida, no mínimo, a proteção contra surtos transmitidas por linhas externas e/ou manobras de circuitos. Nestes casos, a ligação dos DPS deve seguir o item anterior e a escolha do tipo mais adequado do DPS deve ser feita de acordo com orientação do fabricante do dispositivo. A instalação de DPS classe III para a proteção de cargas sensíveis, tais como computadores, impressoras, TVs, etc., não é considerada obrigatória pela norma, mas é recomendável na maioria dos casos, tendo em vista o elevado valor dos equipamentos. 1630 IER 14X21 ok 20.12.2006 17:58 Page 132
  • 133.
    Instalações Elétricas Residenciais 133 REALIZAÇÃO: PrysmianEnergia Cabos e Sistemas do Brasil S.A. Av. Alexandre de Gusmão, 145 - CEP 09110-900 - Santo André - SP Tel.: (11) 4998-4902 - Fax: (11) 4998-4311 e-mail: webcabos@prysmian.com www.prysmian.com.br Victory Propaganda e Marketing Ltda. Tel.: (11) 3675-7479 e-mail: victory@victorydesign.com.br Produção gráfica e finalização: Esta publicação foi baseada na NBR 5410:2004 Instalações Elétricas em Baixa Tensão e também em nossos Manuais de Instalações Elétricas Residenciais publicados anteriormente. Todos os direitos de reprodução são reservados. © PRYSMIAN Instalações Elétricas Residenciais Dezembro de 2006 1630 IER 14X21 ok 20.12.2006 17:58 Page 133
  • 134.
    7 desculpas para vocênão dar aos seus clientes na falta de Afumex na sua obra. 7 desculpas para você não dar aos seus clientes na falta de Afumex na sua obra. Em casos de incêndio, a fumaça e os gases tóxicos são responsáveis por 80% das mortes. Afumex é o cabo de energia especialmente desenvolvido para imóveis em geral e principalmente aqueles que concentram grande número de pessoas ou que apresentam dificuldade de fuga, como edifícios residenciais e comerciais, shopping centers, cinemas, teatros, discotecas, boates, casas de espetáculos etc. www.prysmian.com.br 1630 IER 14X21 ok 20.12.2006 17:58 Page 134
  • 135.
    Cabo de energiaé tudo igual (claro que não é verdade e, agora que estamos contando na mídia as vantagens de Afumex, dificilmente ele vai engolir). O prédio tem vários equipamentos antiincêndio (lembra aquele ditado “é melhor prevenir...”? Pois é...). Eu não conhecia Afumex (não dá para alguém bem informado como você dizer isso, não é mesmo?). É muito caro (NÃO é verdade e, aqui entre nós, a vida das pessoas não tem preço). Esse pessoal gosta de fazer fumaça (fumaça é exatamente o que Afumex evita, junto com os gases tóxicos, a principal causa de mortes em incêndios). Desculpe, na próxima obra a gente coloca (aí já pode ser tarde, não é mesmo?). Isso não tem desculpa, vamos providenciar a colocação (essa é a única resposta que um profissional responsável como você pode dar). Afumex tem baixíssima emissão de fumaça e gases tóxicos e é livre de halogênios, permitindo uma desocupação segura do imóvel numa emergência. Hoje em dia, as obras mais modernas do mundo usam Afumex. Recomende sempre Afumex, item de segurança obrigatório para seus clientes. Prysmian é o novo nome da Pirelli Cabos.
  • 136.
    Prysmian Energia Cabose Sistemas do Brasil S.A. Av. Alexandre de Gusmão, 145 - CEP 09110-900 - Santo André - SP Tel.: (11) 4998-4155 - Fax: (11) 4998-4166 e-mail: webcabos@prysmian.com • www.prysmian.com.br Prysmian é o novo nome da Pirelli Cabos. 1630 CP IER 288x210 ok 20.12.2006 17:46 Page 1