Incorporar apresentação
Baixado 16 vezes


















































































































































































































































































































































































































































































































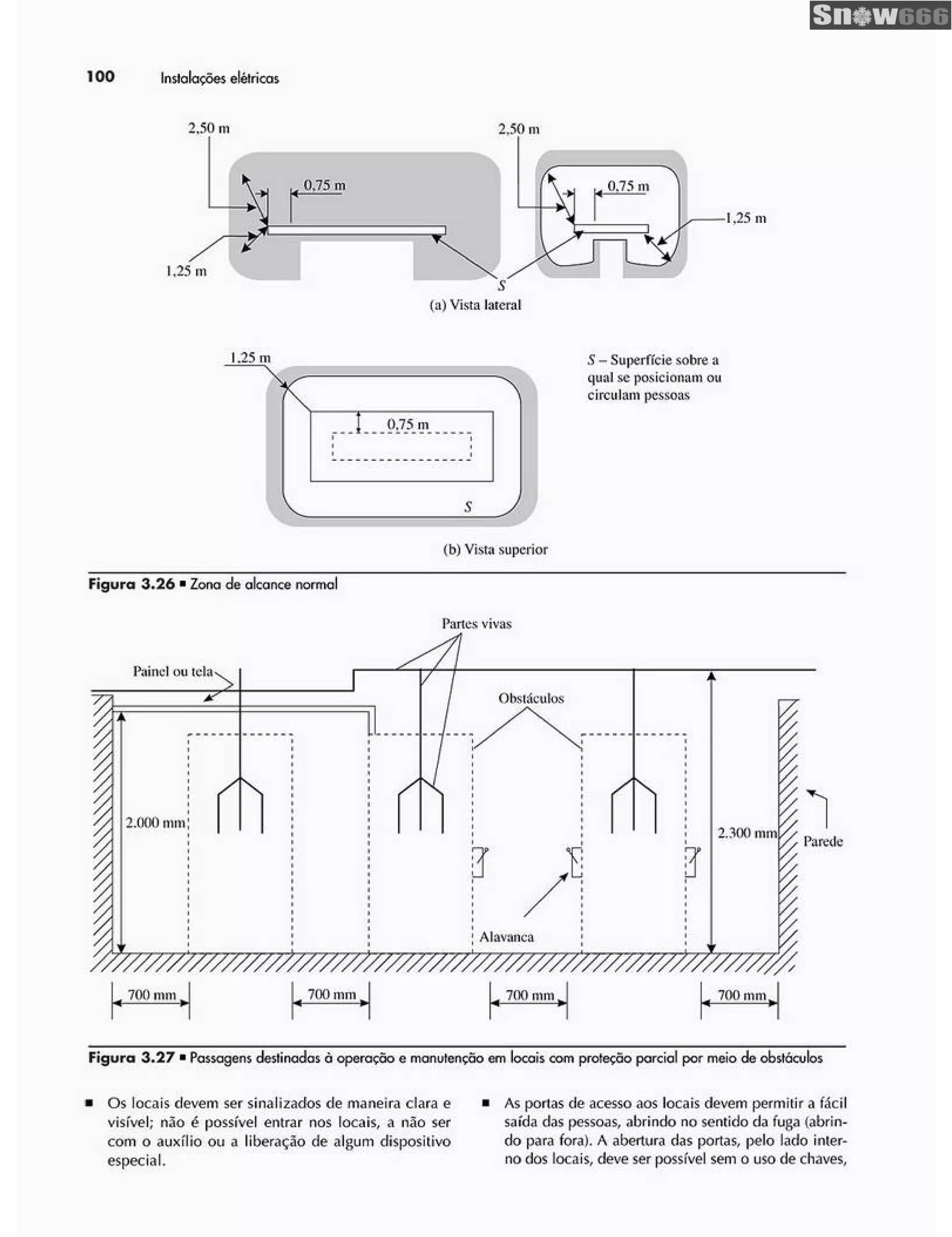
Este documento descreve os detalhes de um novo projeto de software. O projeto tem como objetivo criar um aplicativo móvel para ajudar os usuários a organizarem melhor suas vidas. O aplicativo permitirá que os usuários criem listas de tarefas, alarmes e lembretes.

















































































































































































































































































































































































































































































































