Sumário I
Escadas-TQS
Elementos Inclinados e Escadas
Sumário
1. Introdução..................................................................................................................1
1.1. Fluxograma de Elementos Inclinados...................................................................3
2. Lançamento de elementos inclinados.......................................................................4
2.1. Edição de dados do edifício..................................................................................4
2.2. Definição de pisos auxiliares................................................................................5
2.3. Elementos inclinados no Modelador.....................................................................6
2.4. Pisos auxiliares no Modelador..............................................................................6
2.4.1. Como inserir um elemento em um piso auxiliar............................................7
2.5. Menu de elementos inclinados..............................................................................7
2.6. Vigas inclinadas....................................................................................................9
2.6.1. Por que fornecer pontos intermediários.......................................................12
2.6.2. Algumas regras para vigas inclinadas..........................................................12
2.6.3. Numeração de vigas inclinadas ...................................................................12
2.7. Elementos inclinados no andar tipo....................................................................13
2.8. Rebaixo do topo do pilar ....................................................................................13
2.9. Fechamento de bordo inclinado..........................................................................14
2.10. Lajes inclinadas ................................................................................................16
2.10.1. Dados de lajes inclinadas...........................................................................16
2.10.2. Lançamento de uma laje inclinada ............................................................17
2.10.3. Numeração de lajes inclinadas...................................................................20
2.10.4. Notas sobre a seleção de elementos de contorno.......................................20
2.10.5. Cópia de Elementos Inclinados entre Pavimentos/Pisos ...........................21
2.10.6. Reidentificação de lajes inclinadas............................................................21
2.11. Pilaretes ............................................................................................................22
2.11.1. Comando para inserção de pilaretes ..........................................................22
2.11.2. Dados de Pilaretes .....................................................................................23
2.11.3. Visualização do pilaretes no Modelador....................................................24
2.11.4. Cópia de pilaretes entre plantas.................................................................24
2.11.5. Modelo de grelha com pilaretes.................................................................24
2.11.6. Modelo de pótico espacial com pilaretes...................................................25
2.11.7. Transferência de dados e esforços para o CAD/Pilar ................................25
3. Modelo estrutural com elementos inclinados........................................................26
3.1. Consideração do valor das cargas.......................................................................26
3.2. Grelha com elementos inclinados.......................................................................26
3.2.1. Barras no contorno livre das lajes................................................................28
3.2.2. Pórtico com elementos inclinados ...............................................................29
3.2.3. Esforços considerados no dimensionamento e detalhamento de lajes.........29
II Elementos Inclinados e Escadas - TQS
TQS Informática Ltda Rua dos Pinheiros 706 c/2 05422-001 São Paulo SP Tel (011) 3083-2722 Fax 3083-2798 www.tqs.com.br
4. Lançamento de escadas no Modelador ..................................................................31
4.1. Elementos que formam escadas..........................................................................31
4.2. Lances de escadas...............................................................................................31
4.2.1. Inserindo um lance.......................................................................................32
4.2.2. Cálculo com passo e espelho ideais.............................................................34
4.2.3. Cálculo com passo ou espelho fixos ............................................................35
4.3. Critérios para lançamentos de escadas................................................................36
4.4. Lançamento de patamares...................................................................................36
4.5. Lajes tratadas pelo Editor de Esforços................................................................37
5. Dimensionamento, Detalhamento e Desenho de escadas......................................38
5.1. Transferência de geometria.................................................................................39
5.2. Transferência de esforços ...................................................................................39
5.3. Modelo Estrutural ...............................................................................................39
5.4. Metodologia de cálculo.......................................................................................42
5.5. Critérios de dimensionamento, detalhamento e desenho ....................................44
5.5.1. Materiais ......................................................................................................44
5.5.2. Esforços .......................................................................................................44
5.5.3. Dimensionamento / Detalhamento...............................................................46
5.5.4. Processo simplificado ..................................................................................53
5.5.5. Desenho .......................................................................................................53
5.6. Processamento de escadas...................................................................................53
5.6.1. Listagem do processamento.........................................................................54
5.7. Editando o desenho.............................................................................................57
5.7.1. Detalhamento do patamar mais baixo..........................................................57
5.8. Calculadora de flexão composta normal.............................................................58
5.8.1. Dados de cálculo..........................................................................................59
5.8.2. Verificação de armadura..............................................................................60
5.8.3. Armadura necessária....................................................................................60
6. Dimensionamento e detalhamento de vigas e lajes inclinadas .............................61
6.1. Vigas inclinadas..................................................................................................61
6.1.1. Critérios de projeto ......................................................................................61
6.1.2. Processamento de vigas ...............................................................................65
6.1.3. Dimensionamento à flexão composta normal..............................................66
6.1.4. Relatório de dimensionamento à flexão composta.......................................67
6.2. Dimensionamento de lajes inclinadas.................................................................70
7. Processo Simplificado..............................................................................................72
7.1. Modelo de cálculo e critérios..............................................................................72
7.1.1. Critérios comuns com o cálculo por grelha .................................................75
7.1.2. Critérios comuns com o CAD/Lajes............................................................75
7.2. Processamento - Processo Simplificado..............................................................75
7.2.1. Arquivos envolvidos....................................................................................76
7.2.2. Geometria ....................................................................................................78
7.2.3. Degraus da escada........................................................................................79
Sumário III
7.2.4. Vinculações .................................................................................................80
7.2.5. Carregamentos.............................................................................................80
7.2.6. Dimensionamento e Detalhamento..............................................................81
7.3. Detalhando e desenhando forma e armação........................................................82
7.3.1. Dimensionando com o CAD/Lajes..............................................................82
7.4. Compatibilização dos patamares e lances...........................................................85
8. Exemplo 1.................................................................................................................86
8.1. Entendendo o Exemplo 1....................................................................................86
8.2. Acessando o Exemplo 1 .....................................................................................87
8.3. Editando Dados do Edifício................................................................................89
8.4. Acessando os Elementos Inclinados no Modelador............................................90
8.5. Inserindo a Rampa..............................................................................................93
8.6. Inserindo a Escada do 2PAV............................................................................104
8.7. Calculando o Edifício .......................................................................................120
8.8. Visualização do Resumo Estrutural..................................................................122
8.9. Visualização dos Avisos e Erros.......................................................................123
8.10. Visualização dos Resultados...........................................................................124
8.11. Recapitulando o Exemplo...............................................................................133
9. Exemplo 2...............................................................................................................135
9.1. Entendendo o Exemplo 2..................................................................................135
9.2. Acessando o Escadas – TQS / Processo Simplificado......................................137
9.3. Entrando com os Dados....................................................................................138
9.4. Calculando a Escada.........................................................................................142
9.5. Visualizando os Resultados..............................................................................142
10. Exemplo 3.............................................................................................................145
10.1. Critérios de escadas ........................................................................................153
10.2. Processamento da estrutura.............................................................................155
Introdução 1
1. Introdução
Parte integrante do sistema CAD/TQS VERSÃO 13, o sistema Escadas-TQS permite o
lançamento de elementos inclinados que se apoiam em cotas diferentes no mesmo pa-
vimento ou em pavimentos diferentes. O lançamento de elementos como escadas, lajes
inclinadas, rampas, vigas inclinadas e pilaretes é possível a partir da VERSÃO 12.
Com a utilização de elementos inclinados, os elementos estruturais de um pavimento
acabam influindo nos elementos de outros pavimentos, e com isso o processamento
global como um todo. Por isso antes do lançamento da estrutura é necessário a alteração
das características do edifício, indicando em quais pavimentos esse tipo de elemento
deve ser considerado. Se essa confirmação não for feita o sistema considera que o pa-
vimento em questão não influi nos demais e as opção de elementos inclinados são desa-
bilitadas para ele.
No lançamento dentro do Modelador Estrutural, a principal diferença entre os elemen-
tos inclinados e os planos é a necessidade de elementos de contorno em todas as suas
faces formando um contorno fechado, ou seja, para se lançar uma laje (de rampa ou
escada) é necessário que além dos pontos de início e fim sejam conhecidos os desen-
volvimentos inclinados da laje nas duas laterais (através de bordos inclinados ou de
vigas inclinadas).
Dentro dos elementos inclinados, as escadas são tratadas de maneira especial, possuin-
do ferramentas especificas para seu lançamento. As escadas podem ser definidas atra-
vés de patamares e lances, podendo existir mais de uma escada em um mesmo pavi-
mento. Há uma calculadora para geometria de escadas (passos e espelhos) que leva em
conta a Equação de Conforto para a definição desta geometria.
Há ainda, dentro do sistema Escadas-TQS, um módulo para o cálculo simplificado de
escadas convencionais. O ‘Processo simplificado’ pode ser utilizado para o cálculo de
escadas retas de pequenos vãos, quando estas não contribuírem significativamente na
rigidez da estrutura e a critério do engenheiro. Este módulo possibilita o cálculo de es-
forços (através do CAD/Lajes), dimensionamento, detalhamento e o desenho por um
processo simplificado, podendo ser utilizado tanto para escadas pertencentes ao edifício
(neste caso não há a consideração dos esforços no pórtico espacial) quanto para a veri-
ficação e detalhamento de outras escadas.
A possibilidade de se utilizar pilaretes na definição da escada faz com que um número
maior de projetos de escadas possam ser lançados no Sistema-TQS, facilitando a análi-
se de problemas de difícil solução. Esses pilaretes são dimensionados como um pilar
comum, através do CAD/Pilar.
2 Elementos Inclinados e Escadas - TQS
TQS Informática Ltda Rua dos Pinheiros 706 c/2 05422-001 São Paulo SP Tel (011) 3083-2722 Fax 3083-2798 www.tqs.com.br
Neste manual descreveremos a entrada de dados de elementos inclinados no edifício, e
como lançar esses elementos através do Modelador. Em seguida, será mostrado os mo-
delos de análise gerados pelo sistema, pórticos e grelhas espaciais.
Complementando o manual, há três exemplos de lançamento de elementos inclinados.
No primeiro, mostraremos o lançamento de uma rampa (viga e laje inclinados) e uma
escada de lance único, seguindo passo-a-passo as etapas para o dimensionamento, deta-
lhamento e desenhos, além dos critérios específicos para estes elementos. No segundo,
demostraremos a utilização do módulo simplificado para o cálculo de escadas conside-
rando um escada de dois lances. E finalmente, no terceiro, será demostrado o lançamen-
to de uma escada de dois lances no modelador utilizando para isso “pisos auxiliares”.
O objetivo principal destes exemplos é demonstrar o lançamento e funcionamento glo-
bal do programa, desde a definição dos dados de entrada até a visualização das arma-
ções calculadas. Não caberá dentro deles nenhuma análise ou discussão a respeito do
modelo estrutural adotado bem como dos resultados obtidos. Maiores detalhes de fun-
cionamento dos programas são apresentados em manuais específicos de cada sistema.
Introdução 3
1.1. Fluxograma de Elementos Inclinados
Junto a este manual é fornecido um fluxograma detalhando as etapas principais neces-
sárias para se obter o dimensionamento de elementos inclinados (vigas inclinadas, ram-
pas e escadas compostas por lances e patamares).
4 Elementos Inclinados e Escadas - TQS
TQS Informática Ltda Rua dos Pinheiros 706 c/2 05422-001 São Paulo SP Tel (011) 3083-2722 Fax 3083-2798 www.tqs.com.br
2. Lançamento de elementos inclinados
Em edifícios com elementos inclinados, o elemento estrutural de uma pavimento pode
interferir com o de outro, afetando o processamento global. Os modelos dos pisos incli-
nados são gerados com 6 graus de liberdade, sendo resolvidos como pórticos espaciais.
Por isto, antes da modelagem, devemos informar ao sistema, nos dados do edifício, os
pavimentos que contém elementos inclinados. Os comandos para o lançamento destes
elementos no Modelador somente são liberados nos pavimentos marcados desta manei-
ra.
2.1. Edição de dados do edifício
Por convenção, as plantas de formas são vistas de cima para baixo e representam os
elementos estruturais até a planta de baixo. Da mesma maneira, elementos inclinados
pertencem sempre ao pavimento de cima, e são lançados a partir deste.
No Editor de Dados do Edifício, o item que define um pavimento com elementos incli-
nados está marcado na figura:
Lançamento de elementos inclinados 5
A marcação do item "Elementos inclinados" faz com que a definição dos Pisos Auxilia-
res seja liberada.
2.2. Definição de pisos auxiliares
É fato comum uma ligação entre pavimentos diferentes passar por patamares intermedi-
ários (como numa escada). Duas alternativas possíveis para este lançamento são:
 Criação de pavimentos em cotas intermediárias
 Definir os patamares através de rebaixos (DFS) de vigas e lajes.
A primeira alternativa é trabalhosa pois elimina a possibilidade de definir repetição de
plantas (andar tipo). A segunda alternativa implica em vigas sobrepostas em pavimen-
tos com cotas diferentes, que são difíceis de tratar interativamente.
Os Pisos Auxiliares são uma terceira alternativa criada para facilitar este trabalho a par-
tir da Versão 12. Estes pisos são definidos por um rebaixo em cada pavimento, e podem
ser selecionados diretamente dentro do Modelador. Vigas e lajes podem ser definidos
independentemente nos pisos auxiliares de um pavimento. Nos pavimentos marcados
para receber elementos inclinados, é habilitado o botão “Pisos auxiliares”. Apertando-se
este botão temos:
6 Elementos Inclinados e Escadas - TQS
TQS Informática Ltda Rua dos Pinheiros 706 c/2 05422-001 São Paulo SP Tel (011) 3083-2722 Fax 3083-2798 www.tqs.com.br
Aperte "Novo" para introduzir um piso auxiliar associado ao pavimento atual. O piso
auxiliar é definido por um rebaixo fornecido nesta tela, em metros. Atualmente são
permitidos até 10 pisos auxiliares por planta de formas.
Aperte "Alterar" para modificar o rebaixo de um piso auxiliar já definido.
2.3. Elementos inclinados no Modelador
O Modelador trata pisos auxiliares e elementos inclinados de vigas, fechamentos de
bordo, lajes e lances de escadas.
Um elemento inclinado começa em um piso/cota e termina em outro piso/cota mais
baixo. Não há restrição quanto ao número de pisos entre o ponto inicial do elemento e o
ponto final. Existe uma exceção no andar tipo, comentada adiante.
2.4. Pisos auxiliares no Modelador
Pisos auxiliares funcionam como pavimentos distintos. Vigas, lajes e fechamentos de
bordo no plano estão na cota do pavimento ou em um piso auxiliar. Novos elementos
são inseridos no piso e cota atual. Em um determinado pavimento e cota atual, apenas
os elementos planos nesta cota aparecem. Na seleção do piso auxiliar, o nível do pavi-
mento é o zero.
Lançamento de elementos inclinados 7
A seleção da cota do piso é feita em dois lugares. Em primeiro lugar, no comando
“Modelo, Pavimento atual”:
E o mais prático, na barra de ferramentas geral:
Na barra de ferramentas, o botão de avanço / retrocesso do piso atual pula de pavimento
em pavimento. O botão correspondente no campo de cota atual do piso avança um piso
auxiliar do pavimento de cada vez.
2.4.1. Como inserir um elemento em um piso auxiliar
Vigas, fechamentos de bordo e lajes pertencem sempre a uma combinação pavimento /
piso auxiliar. O nível zero de um pavimento é um caso particular de piso auxiliar de
cota zero. Para que um destes elementos pertença a um piso auxiliar, basta tornar atual
a pavimento/piso desejados e inserir o elemento.
2.5. Menu de elementos inclinados
Todos os comandos para a colocação de elementos inclinados encontram-se sob o menu
"Inclinados", e respectiva barra de ferramentas:
8 Elementos Inclinados e Escadas - TQS
TQS Informática Ltda Rua dos Pinheiros 706 c/2 05422-001 São Paulo SP Tel (011) 3083-2722 Fax 3083-2798 www.tqs.com.br
Comando Ação
Dados atuais p/viga inclinada Definir os dados da próxima viga inclinada a inserir
Viga inclinada Inserir uma viga inclinada com os dados atuais
Dados atuais p/laje inclinada Definir os dados da próxima laje inclinada a inserir
Laje inclinada Inserir uma laje inclinada com os dados atuais
Fechamento de bordo Inserir um fechamento de bordo inclinado
Reidentificar contorno Identificar novamente os elementos que definem o
contorno de uma laje inclinada, após uma modificação
em um deles
Ler dados de rampa/lance Ler dados de uma rampa/lance existente e os torna
atuais
Dados de escada Definir os dados da próxima escada a inserir
Lance de escada Entrada de um lance inclinado de uma escada
Dados de patamar Definir os dados do próximo patamar de escada a inse-
rir
Patamar de escada Inserir um patamar plano de uma escada.
Dados atuais de pilaretes Definir os dados do próximo pilarete a ser inserir
Inserir um pilarete abaixo do
piso atual
Inserir um pilarete que nascerá no piso inferior e mor-
rerá no piso atual.
A barra de ferramentas de elementos inclinados tem os mesmos comandos:
Lançamento de elementos inclinados 9
2.6. Vigas inclinadas
Vigas inclinadas são inseridas com os dados da viga inclinada atual. É preciso fornecer
três tipos de elementos em sequência, separada por <B3>:
 Ponto inicial na planta superior;
 Zero a N pontos intermediários;
 Ponto final na planta inferior.
Como exemplo, vamos inserir uma viga inclinada que vai do "Tipo2" rebaixo zero até o
"Tipo2", rebaixo 1.50. Ela vai apoiar em uma viga tanto no pavimento superior quanto
inferior:
10 Elementos Inclinados e Escadas - TQS
TQS Informática Ltda Rua dos Pinheiros 706 c/2 05422-001 São Paulo SP Tel (011) 3083-2722 Fax 3083-2798 www.tqs.com.br
Comando: “Inclinados, Viga Inclinada”
Defina o primeiro ponto da viga ou <F2><R><P> : <B1> no PT1
Viga inclinada: defina os pontos intermediários : <B3>
Lançamento de elementos inclinados 11
Defina o ponto final no piso inferior : <B1> no PT2
(Neste ponto, o modelador passa para o piso / rebaixo inferior para a entrada do ponto:
No desenho do pavimento superior teremos parte da nova viga inclinada representada:
12 Elementos Inclinados e Escadas - TQS
TQS Informática Ltda Rua dos Pinheiros 706 c/2 05422-001 São Paulo SP Tel (011) 3083-2722 Fax 3083-2798 www.tqs.com.br
2.6.1. Por que fornecer pontos intermediários
Embora seja menos comum, as vigas inclinadas podem mudar de direção em planta. É
possível definir vigas em formato helicoidal e apoiar lajes nestas vigas. Por isto, o Mo-
delador pede sempre por possíveis pontos intermediários. Se não existirem, simples-
mente aperte <B3>.
2.6.2. Algumas regras para vigas inclinadas
 Não tem ajuste automático das pontas. Deve-se definir as pontas da viga inclinada
na posição exata, pois a posição do ponto inicial ou final afeta diretamente a incli-
nação da viga.
 Não podem apoiar em vigas nos pontos intermediários. Se for necessário apoiar
vigas inclinadas sobre vigas em cotas diferentes, será necessário criar vigas incli-
nadas e pisos auxiliares para cada cota onde se deseja fazer o apoio.
 Podem interceptar pilares em nós intermediários. Estas intersecções subdividirão a
barra do pilar no pórtico espacial.
 Vigas definidas por um trecho são 50% visíveis no piso inicial e 50% no piso final.
Vigas com mais de um trecho são visíveis até o último trecho, que é 50% visível.
 As cargas sobre a viga inclinada devem ser lançadas sobre trechos visíveis
2.6.3. Numeração de vigas inclinadas
Todos os elementos inclinados tem numeração única no edifício - isto significa que
você não pode atribuir o mesmo número a duas vigas inclinadas diferentes em pavi-
mentos diferentes do mesmo edifício. A numeração das vigas inclinadas não interfere
com a das vigas planas. O comando de renumeração de elementos tem campos separa-
dos para vigas e lajes inclinadas:
Lançamento de elementos inclinados 13
O prefixo padrão das vigas inclinadas é "VR".
2.7. Elementos inclinados no andar tipo
Como o andar tipo se repete, obrigatoriamente o elemento inclinado que sai de cima se
encaixa com o de baixo no mesmo pavimento. A implicação disto é que torna-se obri-
gatório definir o piso final de um elemento inclinado que passa para o piso de baixo,
como sendo o próprio andar tipo onde este elemento está. Ou seja, um elemento incli-
nado que pertença ao pavimento tipo deve ser lançado com piso inicial e piso final co-
mo sendo o próprio pavimento, passando pelos respectivos pisos auxiliares.
Existe uma lógica separada no sistema para tratar a intersecção dos elementos inclina-
dos no tipo mais baixo com a planta inferior no pórtico espacial.
2.8. Rebaixo do topo do pilar
Uma viga inclinada pode se apoiar numa sequência de pilares que rebaixam o topo jun-
to com sua inclinação. O rebaixo de cada pilar deve ser calculado e fornecido manual-
mente.
A face do topo do pilar no último lance pode ser rebaixada através do atributo abaixo:
14 Elementos Inclinados e Escadas - TQS
TQS Informática Ltda Rua dos Pinheiros 706 c/2 05422-001 São Paulo SP Tel (011) 3083-2722 Fax 3083-2798 www.tqs.com.br
2.9. Fechamento de bordo inclinado
Temos três alternativas para o apoio de lajes inclinadas: vigas, pilares e bordos livres
definidos por fechamentos de bordo. Fechamentos de bordo são usados também para
delimitar o apoio de uma laje sobre outra (ex: lance de escada sobre um patamar).
O fechamento de bordo inclinado é feito exatamente da mesma maneira como uma vi-
ga: um ponto inicial no piso superior, pontos intermediários opcionais e um ponto no
piso inferior.
Inserir um fechamento de bordo de laje inclinado :
Linha múltipla - ponto 1 (ou FRXPDCLUW) : <M>
<M> Ponto médio - Primeiro ponto de 2 : <B1> no PT1
Segundo ponto de 2 : <B1> no PT2
Lançamento de elementos inclinados 15
Linha múltipla - ponto 2 (ou FRXPDCLUW) : <B3>
Defina o ponto final no piso inferior : <SHF> <F10>
<B1> no PT3
(Novamente, o modelador passa para o piso / rebaixo inferior para a entrada do ponto:
Visualização da planta na cota zero:
16 Elementos Inclinados e Escadas - TQS
TQS Informática Ltda Rua dos Pinheiros 706 c/2 05422-001 São Paulo SP Tel (011) 3083-2722 Fax 3083-2798 www.tqs.com.br
Embora o fechamento de bordo seja armazenado como linhas separadas, é importante
que o bordo inclinado seja definido de ponta a ponta de uma só vez - para que as cotas
Z sejam calculadas corretamente ao longo do percurso.
2.10. Lajes inclinadas
Lajes inclinadas não podem ser reconhecidas automaticamente no pavimento, pois têm
elementos de pisos diferentes em seu contorno. Na definição da laje inclinada, todos os
elementos que fazem parte do contorno, inclusive pilares, precisam ser selecionados de
modo a formar um contorno fechado para a laje. Caso o contorno não forme um polígo-
no fechado, o modelador acusará erro.
Se qualquer elemento de contorno da laje inclinada for modificado, o Modelador acusa-
rá alteração de contorno na consistência e pedirá a reidentificação do contorno (veja o
comando "Reidentificar contornos" do menu "Inclinados").
2.10.1. Dados de lajes inclinadas
Lajes inclinadas são sempre maciças. Nos pavimentos com lajes nervuradas, as lajes
inclinadas devem ser discretizadas com formas de nervuras ou deixadas para discretiza-
ção automática (mas sem garantia de continuidade entre as lajes) pelo gerador de gre-
lhas. O comando "Inclinados – Lajes inclinadas - Dados atuais p/laje inclinada" permite
a definição da espessura da laje:
Lançamento de elementos inclinados 17
2.10.2. Lançamento de uma laje inclinada
O lançamento é feito através de 6 entradas nesta ordem: a definição do pavimento/piso
inferior, os elementos de contorno do piso superior, do contorno inclinado e do piso
inferior, posição do texto e o ângulo principal da laje:
Comando : "Inclinados, Laje inclinada"
Inserir uma laje inclinada:
Selecione elementos de contorno do piso superior : <B1> no PT1
Selecione elementos de contorno do piso superior : <B3>
18 Elementos Inclinados e Escadas - TQS
TQS Informática Ltda Rua dos Pinheiros 706 c/2 05422-001 São Paulo SP Tel (011) 3083-2722 Fax 3083-2798 www.tqs.com.br
Selecione elementos do contorno inclinado : <B1> no PT2
Selecione elementos do contorno inclinado : <B1> no PT3
Selecione elementos do contorno inclinado : <B3>
Selecione elementos do contorno inferior : <B1> no PT4
Selecione elementos do contorno inferior : <B3>
Lançamento de elementos inclinados 19
Defina um ponto sobre a laje : <B1> no PT5
Linha na direção principal ou o ângulo ou <ENTER> : <B3>
20 Elementos Inclinados e Escadas - TQS
TQS Informática Ltda Rua dos Pinheiros 706 c/2 05422-001 São Paulo SP Tel (011) 3083-2722 Fax 3083-2798 www.tqs.com.br
2.10.3. Numeração de lajes inclinadas
Assim como as vigas inclinadas, lajes inclinadas tem numeração global e independente
das lajes horizontais. O comando de renumeração de elementos tem um item separado
para lajes inclinadas. Os títulos automáticos para as lajes inclinadas são "Rn", enquanto
que para os lances de escadas são "En".
2.10.4. Notas sobre a seleção de elementos de contorno
Como o reconhecimento do contorno das lajes inclinadas não é automático, é especial-
mente importante que todos os elementos que recebam a laje sejam selecionados. Veja
no exemplo abaixo um pilar que faz parte do contorno e precisa ser selecionado:
Durante o processo de seleção de elementos, se não for formado um contorno fechado,
o Modelador emitirá a mensagem:
Lançamento de elementos inclinados 21
E pedirá novamente a seleção de elementos.
2.10.5. Cópia de Elementos Inclinados entre Pavimen-
tos/Pisos
Quando é necessário a cópia de elementos inclinados de um pavimento/piso para outro
é possível utilizar o comando “Copiar Planta”. Nele há a possibilidade da cópia de ape-
nas os elementos inclinados de uma planta para outra:
A cópia de elementos inclinados funciona exatamente como a cópia de quaisquer outros
elementos, ou seja, é necessário que na planta “destino” não haja outros elementos in-
clinados.
2.10.6. Reidentificação de lajes inclinadas
Sempre que possível o sistema fará a reidentificação dos contornos das lajes inclinadas
em que qualquer um dos seus elementos de contorno tenha sido alterado ou no caso de
cópia de elementos inclinados entre pavimentos/pisos. Mas há casos onde essa reidenti-
ficação não é automática, sendo necessário a reidentificação manual dos elementos de
contorno. Caso uma das lajes não tenha seus contornos definidos, na fase de consistên-
cia de dados será emitida a mensagem:
22 Elementos Inclinados e Escadas - TQS
TQS Informática Ltda Rua dos Pinheiros 706 c/2 05422-001 São Paulo SP Tel (011) 3083-2722 Fax 3083-2798 www.tqs.com.br
A laje inclinada xxx teve seu contorno modificado, é preciso
reidentifica-lo
Isto pode ser feito pelo comando:
2.11. Pilaretes
Além de elementos como vigas e lajes inclinadas, também foi inserido nesta versão do
Sistema CAD/TQS os elementos pilaretes, que têm como objetivo a ligação entre vigas
de pisos auxiliares.
2.11.1. Comando para inserção de pilaretes
Dentro do Modelador Estrutural os comandos para inserção de pilaretes são "Dados
atuais de pilaretes" e "Inserir um pilarete abaixo do piso atual". Estes comandos estão
disponíveis no menu “Inclinados” e também na barra de ferramentas de elementos in-
clinados:
Lançamento de elementos inclinados 23
Não há comando para ler dados atuais de pilaretes. Atualmente, isto pode ser feito com
o novo comando "Ler e tornar atual um elemento", do menu "Modelo".
2.11.2. Dados de Pilaretes
Pilaretes seguem a numeração dos demais pilares do edifício. Nos dados de pilaretes
apenas três janelas estão disponíveis. Na janela "Modelo" podemos definir apenas se o
pilarete nasce em viga ou em outro pilar:
24 Elementos Inclinados e Escadas - TQS
TQS Informática Ltda Rua dos Pinheiros 706 c/2 05422-001 São Paulo SP Tel (011) 3083-2722 Fax 3083-2798 www.tqs.com.br
Diferentemente dos pilares, que podem nascer e morrer em qualquer planta do edifício,
independentemente da planta atual, os pilaretes são definidos sempre morrendo no piso
atual, e nascendo no piso auxiliar definido imediatamente abaixo.
2.11.3. Visualização do pilaretes no Modelador
Naturalmente os pilaretes são visíveis onde foram definidos e no piso auxiliar imedia-
tamente abaixo. Como pilaretes podem ser definidos em andar tipo, ocorrerá o seguinte:
 O pilarete definido no piso auxiliar mais baixo aparecerá também no piso auxiliar
zero;
 O pilarete definido no piso auxiliar mais baixo aparecerá no piso zero da planta
abaixo do tipo;
 O pilarete definido no piso auxiliar mais baixo da planta acima do tipo não apare-
cerá no andar tipo (embora efetivamente seja ligada a ele).
2.11.4. Cópia de pilaretes entre plantas
O comando "Copiar plantas" copia pilaretes (mas não pilares), classificando-os como
"elementos inclinados".
2.11.5. Modelo de grelha com pilaretes
Só está prevista a discretização do modelo de grelha com pilaretes para o modelo de
grelha de escadas complementado pelas grelhas superior e inferior (tripla grelha, atual-
mente o “padrão” do Sistema CAD/TQS). No pavimento mais baixo deste modelo, o
pilarete é fixado por uma restrição de apoio.
Lançamento de elementos inclinados 25
2.11.6. Modelo de pótico espacial com pilaretes
Os pilaretes entram no modelo do pórtico espacial, assim como nas grelhas. Na interfa-
ce do pavimento tipo com o superior, o gerador do modelo pode acrescentar uma barra
rígida caso não haja continuidade de apoio entre os pavimentos.
2.11.7. Transferência de dados e esforços para o CAD/Pilar
Os pilaretes são pilares de um único lance, sendo passados de acordo para o CAD/Pilar.
No caso dos pavimentos tipo, o sistema determina o máximo esforço no topo e na base
dos pilaretes ao longo dos lances e grava um único lance a ser detalhado. Esta regra
pode não funcionar bem em pavimentos tipo onde haja variação acentuada nos esforços
dos pilaretes, e pode exigir correção manual no detalhamento.
26 Elementos Inclinados e Escadas - TQS
TQS Informática Ltda Rua dos Pinheiros 706 c/2 05422-001 São Paulo SP Tel (011) 3083-2722 Fax 3083-2798 www.tqs.com.br
3. Modelo estrutural com elementos in-
clinados
Foram feitas alterações no processamento de edifícios devido aos elementos inclinados.
Como pisos de cima interferem com pisos de baixo, o processamento passou a ser feito
de cima para baixo.
3.1. Consideração do valor das cargas
As cargas distribuídas sobre elementos inclinados seguem o esquema:
Cargas verticais são consideradas distribuídas em planta, linearmente ou por área. O
peso próprio por sua vez é considerado em toda a extensão inclinada. As resultantes são
projetadas e lançadas nas componentes ortogonais Fz e Fx do sistema local do elemen-
to.
3.2. Grelha com elementos inclinados
Para viabilizar a resolução da estrutura, temos a discretização separada dos pavimentos
em grelhas, e a discretização global de um pórtico sem lajes, mas com simulação de
diafragma rígido e de reações provenientes dos modelos de grelha. No edifício com
pavimentos inclinados, os elementos de uma grelha podem interagir com os de outra.
Esta interação é feita de maneira simplificada, através de condições de contorno criadas
nos pavimentos inferiores.
Modelo estrutural com elementos inclinados 27
As grelhas com elementos inclinados tem 6 graus de liberdade. O sistema gera coorde-
nadas 3D dos pontos intermediários da laje em função do contorno.
As seguintes condições de contorno foram criadas:
 Bordos livres foram discretizados em barras de meia largura do espaçamento (crité-
rio de lajes planas).
 O apoio de laje inclinada em viga sobre o pavimento inferior faz com que uma viga
fictícia seja criada. Esta viga apoia sobre pilares retangulares fictícios da largura da
viga e comprimento do apoio original.
 O apoio de uma viga inclinada sobre o pavimento inferior é feito através de um
pilar fictício quadrado com a mesma largura da viga.
 Uma grelha que recebe uma viga inclinada vinda de um piso superior, recebe uma
carga. A viga inclinada é tratada como se fosse um pilar que nasce em transição e
sua reação (somente vertical) é lida do pórtico espacial.
 Uma viga ou laje que recebe uma laje inclinada do piso superior, recebe por reco-
nhecimento geométrico a reação da ponta de cada extremidade da laje inclinada
como carga, transformada do sistema local da barra da laje inclinada para o sistema
local da barra do piso inferior. Estas reações são lidas do resultado do processa-
mento de grelhas aonde está a laje. Note que um piso pode receber lajes inclinadas
vindas de mais de um pavimento de formas diferente.
28 Elementos Inclinados e Escadas - TQS
TQS Informática Ltda Rua dos Pinheiros 706 c/2 05422-001 São Paulo SP Tel (011) 3083-2722 Fax 3083-2798 www.tqs.com.br
 Nos pavimentos com repetição, as barras do pavimento inferior são ligadas por
barras rígidas ao elemento na cota zero que receberá o mesmo elemento vindo da
repetição superior.
3.2.1. Barras no contorno livre das lajes
Os contornos de lajes com bordo livre podem ser fechados por uma barra sem carga e
com largura igual a uma fração das demais barras da malha. Este fechamento é contro-
lado pelo critério de lajes planas:
Modelo estrutural com elementos inclinados 29
3.2.2. Pórtico com elementos inclinados
Estas são as implicações da existência de elementos inclinados no pórtico:
 Barras de pilares são quebradas quando recebem apoio de vigas em piso auxiliar.
 Barras de pilares são quebradas quando interceptam vigas inclinadas em nós inter-
mediários
 Nos apoios de lajes inclinadas sobre vigas inferiores, a carga da laje é transferida
para as vigas, com transformação de um sistema local para outro.
 Existe uma lógica especial para transferir as cargas da laje inclinada que vem do
andar tipo para a viga do piso inferior.
 As reações das vigas inclinadas apoiadas sobre vigas são acumuladas no processa-
mento do pórtico para serem transferidas para grelhas.
3.2.3. Esforços considerados no dimensionamento e deta-
lhamento de lajes
A análise da grelha espacial, com 6 graus de liberdade, resultará possivelmente em 6
esforços solicitantes nas barras. O dimensionamento realizado pelo sistema considera
apenas 3 ou 4 destes esforços: a força cortante Fz, o momento fletor My e a força nor-
mal Fx. O momento torsor Mx é considerado de maneira padrão, através da majoração
dos esforços de flexão com o método aproximado de Wood & Armer. Isto limita o tipo
de dimensionamento e detalhamento de lajes inclinadas e escadas aos casos usuais de
inclinação sem mudança de direção em planta. Os casos onde o momento lateral e/ou a
força lateral sejam importantes (ex: rampas helicoidais), devem ser verificados e di-
mensionados manualmente.
O engenheiro pode a seu critério (ex: na existência de pequenos vãos, carregamentos
usuais, inclinações baixas) considerar a hipótese redistribuição de esforços normais por
redução da rigidez axial das barras das lajes inclinadas. Isto é feito através do item
"Consideração da área da seção transversal das lajes inclinadas", na aba de "Plastifica-
ções", dos critérios de laje plana do Grelha-TQS:
30 Elementos Inclinados e Escadas - TQS
TQS Informática Ltda Rua dos Pinheiros 706 c/2 05422-001 São Paulo SP Tel (011) 3083-2722 Fax 3083-2798 www.tqs.com.br
Lançamento de escadas no Modelador 31
4. Lançamento de escadas no Modelador
4.1. Elementos que formam escadas
Escadas não são elementos isolados dentro do Modelador, mas um agrupamento. Uma
escada é formada por um ou mais lances e zero ou mais patamares. A planta de formas
de um pavimento pode conter uma ou mais escadas.
Tanto lances quanto patamares de escadas nada mais são que lajes com algumas propri-
edades diferentes. Para o Modelador reconhecer os elementos que pertencem a uma
mesma “prumada” de escada é necessário que estes elementos possuam a mesma pro-
priedade chamada de “Identificação” da escada, que aparece na janela de “Identifica-
ção” nos “Dados de escada”:
É muito importante identificar corretamente os lances e patamares para que possam ser
transferidos para o dimensionamento, detalhamento e desenho. A falta, ou erro, de iden-
tificação desses elementos levara o sistema a não considerá-los como uma estrutura
contínua durante o dimensionamento/detalhamento, por exemplo: no caso de um pata-
mar fará com que os ferros do lance não sejam ancorados nele.
4.2. Lances de escadas
No lançamento dos lances vale toda a lógica de inserção de lajes inclinadas. O comando
"Inclinados, Dados de escada" mostra a seguinte tela:
32 Elementos Inclinados e Escadas - TQS
TQS Informática Ltda Rua dos Pinheiros 706 c/2 05422-001 São Paulo SP Tel (011) 3083-2722 Fax 3083-2798 www.tqs.com.br
Os dados de degraus (passo, espelho e ajuste) não precisam ser fornecidos numa etapa
inicial. O espaço e desnível da escada são normalmente calculados pelo programa de-
pois que ela está inserida na forma e é editada. O que se faz usualmente é inserir a laje
definindo o seu contorno para depois editá-la e definir os valores corretos dos degraus.
O botão "Visualizar" aciona uma calculadora que auxilia o cálculo do passo e espelho
ideal. Vamos mostrar como funciona no próximo exemplo.
4.2.1. Inserindo um lance
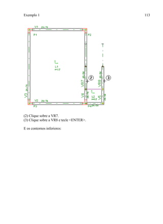
Definiremos uma escada com espessura de 10 cm e identificação "Escada-1" através do
comando "Inclinados, Dados de escada". Depois com o comando "Inclinados, Lance de
escada" definiremos o piso do patamar inferior e os elementos de contorno:
O ponto PT1 define o elemento de contorno no nível superior. Os pontos PT2 e PT3 os
elementos inclinados, e o ponto PT4 o contorno do nível inferior.
Lançamento de escadas no Modelador 33
Note que o lance da escada apoia nos patamares inferior e superior. A geometria destes
patamares precisa estar definida com fechamentos de bordo, que serão selecionados.
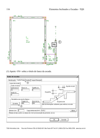
Criamos o lance E5 que neste ponto não tem degraus. Ao editar os dados do lance, o
espaço ocupado aparece calculado e podemos apertar o botão "Visualizar" da janela
"Seção/Carga:"
Isto nos leva à calculadora de escadas. Esta calculadora nos permite calcular os valores
de espelho, passo e ajuste da escada, procurando obedecer os parâmetros comuns de
conforto. A calculadora aparece deste modo:
34 Elementos Inclinados e Escadas - TQS
TQS Informática Ltda Rua dos Pinheiros 706 c/2 05422-001 São Paulo SP Tel (011) 3083-2722 Fax 3083-2798 www.tqs.com.br
Somente os campos "Passo", "Espelho" e "Ajuste" farão parte dos dados finais da esca-
da. Os demais poderão ser usados no cálculo destes valores acionado pelo botão "Suge-
rir".
No grupo "Cálculo de dimensões", podemos fixar ou liberar a variação do espelho e do
passo da escada. Assim teremos 4 possibilidades de cálculo, discutidas em seguida.
Qualquer que seja o resultado, o Modelador indica no quadro se a escada obedece à
"Equação do Conforto", o número de degraus gerados e o valor do ajuste horizontal
final se necessário.
4.2.2. Cálculo com passo e espelho ideais
Se o passo e o espelho da escada estiverem livres para pesquisa, tentaremos atender
aqui às chamadas inequações ou "Equação do Conforto":
60 ≤ Passo + 2 x Espelho ≤ 64
Lançamento de escadas no Modelador 35
Variando os valores do passo e espelho, o Modelador escolherá um par que atenda às
inequações, e ao mesmo tempo, o mais próximo possível dos valores de passo e espe-
lhos ótimos definidos no quadro. Todos os valores usados inicialmente pela calculadora
vem do arquivo de critérios de projeto de formas (incluindo os limites acima, veja adi-
ante). Conforme o espaço disponível, pode não ser possível atender às inequações si-
multaneamente, o que levará o programa a arbitrar os valores.
O esquema vertical da escada é regerado em tempo real conforme os valores de passo e
espelho são alterados. Se os valores definidos não resultarem em uma geometria corre-
ta, nenhuma escada será desenhada.
Os valores finais são arredondados pelo fator fornecido, e qualquer diferença, se hou-
ver, será lançada no último degrau. A diferença ou ajuste horizontal pode ser passada
em parte ou integralmente para o primeiro passo, através da definição do ajuste hori-
zontal no grupo "Lance".
4.2.3. Cálculo com passo ou espelho fixos
O número de degraus será calculado com o valor fixo, e o outro valor deduzido. Se
houver ajuste, será lançado no último degrau.
Se ambos os valores forem fixados, o programa apenas fará uma verificação da geome-
tria da escada e de qualquer ajuste necessário.
36 Elementos Inclinados e Escadas - TQS
TQS Informática Ltda Rua dos Pinheiros 706 c/2 05422-001 São Paulo SP Tel (011) 3083-2722 Fax 3083-2798 www.tqs.com.br
4.3. Critérios para lançamentos de escadas
Os valores iniciais usados na Equação do Conforto, arredondamentos, etc estão defini-
dos no arquivo de critérios de projeto de formas:
Estes valores são os mesmos que aparecem no grupo "Cálculo de dimensões", da calcu-
ladora de escadas.
4.4. Lançamento de patamares
Os dados do patamar a ser inserido e o comando para inserir um patamar estão no menu
"Inclinados":
O patamar é uma laje maciça comum. Entretanto, se for definido como laje comum, não
será transferido para o dimensionamento, detalhamento e desenho de escadas.
Lançamento de escadas no Modelador 37
4.5. Lajes tratadas pelo Editor de Esforços
A grelha espacial gerada pelo Grelha-TQS inclui todos os elementos do pavimento,
incluindo lances e patamares. O Editor de Esforços entretanto dimensiona, detalha e
desenha as lajes que não pertençam a escadas. Lances e patamares são detalhados ex-
clusivamente pelo módulo Escadas-TQS.
38 Elementos Inclinados e Escadas - TQS
TQS Informática Ltda Rua dos Pinheiros 706 c/2 05422-001 São Paulo SP Tel (011) 3083-2722 Fax 3083-2798 www.tqs.com.br
5. Dimensionamento, Detalhamento e
Desenho de escadas
O modelo de escadas lançado pelo Modelador é transferido para processamento pelo
módulo de Dimensionamento, Detalhamento e Desenho de escadas, denominado Esca-
das-TQS. Os comandos deste sistema estão nos menus "Editar", "Processar" e "Visuali-
zar" do gerenciador, acionado pelo botão:
No ambiente do edifício existe uma pasta ESCADAS abaixo da pasta de pavimento,
aparecendo na árvore do painel esquerdo do gerenciador:
Em edifícios anteriores a Versão 12, é necessário regravar os dados do edifício para que
a pasta “Escadas” seja inserida na árvore.
A geometria e os esforços nas escadas de um pavimento são transferidos automatica-
mente para a pasta de escadas sob o pavimento. Todo o processamento de dimensiona-
mento, detalhamento e desenho é feito a partir desta pasta.
Dimensionamento, Detalhamento e Desenho de escadas 39
5.1. Transferência de geometria
As informações de geometria de escadas são armazenadas no arquivo ESCADAS.DAT.
Este arquivo é gravado nos pavimentos onde existam escadas lançadas, sempre que o
modelo do pavimento for salvo no disco pelo Modelador, ou que seja, efetuado o pro-
cessamento de "Extração gráfica de formas".
5.2. Transferência de esforços
Os esforços usados no cálculo de escadas são armazenados no arquivo ESCESF.DAT.
Este arquivo é gravado durante o processamento de transferência de esforços de grelha
para lajes.
Quando um lance se apoia em um patamar no pavimento inferior, a menos dos andares
tipo, os esforços neste patamar são calculados na grelha do pavimento inferior. Por isto,
o dimensionamento da escada depende de outras plantas processadas previamente. É
ideal que o edifício tenha sido processado globalmente antes de se iniciar a etapa de
dimensionamento de escadas.
5.3. Modelo Estrutural
O modelo estrutural padrão adotado pelo Sistema CAD/TQS para a grelha (pórtico) de
plantas discretizadas com lajes planas ou nervuradas e escadas é composto pela grelha
(pórtico) do pavimento mais as grelhas (pórtico) dos pavimentos inferior e superior.
Estas últimas são compostas apenas pelas vigas carregadas com distribuição de cargas
simplificada, e pelas lajes de patamares e lances de escadas. Neste caso a ligação entre
os pavimentos é representada com maior precisão, mas gera um modelo mais comple-
xo.
40 Elementos Inclinados e Escadas - TQS
TQS Informática Ltda Rua dos Pinheiros 706 c/2 05422-001 São Paulo SP Tel (011) 3083-2722 Fax 3083-2798 www.tqs.com.br
É possível optar pela representação dos pavimentos por grelhas simples, onde apenas os
elementos do pavimento são discretizados e a influência dos pavimentos superior e in-
ferior não é rigorosamente considerada, sendo utilizadas condições de contorno apro-
ximadas para a representação dos demais pavimentos. Esse modelo é mais simples,
gerando um processamento mais rápido, mas é menos preciso, o que pode levar a esfor-
ços não adequados em algumas ligações.
O critério que controla o modelo estrutural do pavimento com escadas está nos “Crité-
rios gerais de grelha” – “Escadas” – “Modelo de Grelha de Escadas”:
Dimensionamento, Detalhamento e Desenho de escadas 41
Esse modelo só funciona para um pavimento se os pavimentos inferior e superior tive-
rem lajes discretizadas. Atualmente, se um deles (superiror ou inferior) for grelha so-
mente de vigas, o modelo do pavimento será considerado sem a presença dos pavimen-
tos adicionais.
Por padrão, o visualizador de grelhas mostra as barras das grelhas adicionais inferior e
superior em cinza, sendo que estas barras não apresentam diagramas de esforços solici-
tantes ou deslocamentos. Caso o usuário queira ter acesso às características dessas gre-
lhas de pavimentos adicionais é possível “desbloqueá-las” no visualizador, utilizando-
se, para isso, o comando: “Visualizar” – “Parâmetros de Visualização” – “Complemen-
tos” – “Elementos auxiliares” ou <Ctrl><Y>:
42 Elementos Inclinados e Escadas - TQS
TQS Informática Ltda Rua dos Pinheiros 706 c/2 05422-001 São Paulo SP Tel (011) 3083-2722 Fax 3083-2798 www.tqs.com.br
5.4. Metodologia de cálculo
Lances e patamares são tratados uniformemente como lajes de seção retangular. Os
esforços obtidos da grelha espacial da escada são agrupados por laje e por direção em
três posições (iguais a terços do vão): inicial, intermediária e final, correspondendo aos
esforços nos apoios e no meio do vão.
Dimensionamento, Detalhamento e Desenho de escadas 43
Para cada região, são obtidos valores de momentos máximos e mínimos e normais má-
ximas e mínimas. Nos pontos de momento máximo, a normal é concomitante, assim
como nos pontos de normal máxima, os momentos são concomitantes. A princípio, é
feito uma envoltória de armaduras resultante do dimensionamento de cada uma das
regiões para os esforços máximos obtidos, e os resultados compatibilizados entre as
regiões, conforme o detalhamento da escada.
Nas grelhas espaciais é comum a concentração de tensões em alguns pontos. O dimen-
sionamento de toda uma região devido ao esforço máximo de um único ponto pode
levar a um dimensionamento anti-econômico. Cabe ao engenheiro verificar se a redis-
tribuição de esforços é possível, e neste caso, a seu critério, usar a homogeneização de
momentos disponível no sistema. Uma modelagem melhor (a ser realizada manualmen-
te) seria plastificar diretamente o modelo da grelha.
Se a homogeneização de momentos for escolhida (através de critério definido em
EDITAR > CRITÉRIOS DE ESCADAS), será determinado por região um momento
médio ponderado, que terá um limite inferior correspondendo a uma percentagem do
momento máximo. Podem ser ativadas separadamente a homogeneização de momentos
positivos e negativos. Os momentos homogeneizados substituem os momentos máxi-
mos, e são calculados com as forças normais concomitantes.
A seção da laje é calculada sob ação de flexão composta normal. Testa-se os alojamen-
tos de armaduras disponíveis e o de menor área que equilibra a seção é escolhido. Itera-
tivamente determina-se também a menor área de aço que ainda equilibraria a seção.
Pode-se a critério verificar a condição limite da linha neutra para momentos negativos,
conforme s NBR-6118:2003 item 14.6.4.3 e 14.7.3.2 (limites fixados em critério), mas
somente em seções sem força normal e com momento negativo não desprezível. A ar-
madura mínima é verificada conforme o item 17.3.5.2.1. As reduções previstas nas ar-
maduras mínimas de lajes não são consideradas.
O detalhamento de armaduras segue um padrão comum para escadas. Nos patamares,
quando é necessária armadura negativa, ela é distribuída em todo o patamar. O com-
primento do ferro negativo no apoio do lance nos patamares é definido por um número
fixo de bitolas, com um mínimo definido no item 9.4.2.4 da NBR-6118:2003. A arma-
dura secundária inferior é no mínimo 20% da armadura principal de flexão, conforme o
item 20.1.
Certos limites de detalhamento são verificados pelo programa, como por exemplo, o
uso de bitola maior que h/8 (item 20.1) e bitola maior que o cobrimento da laje. O pro-
grama somente indica esta situação. Fica a cargo do engenheiro eliminar os alojamentos
desta bitola do projeto e substituir por outros alojamentos que atendam à norma.
44 Elementos Inclinados e Escadas - TQS
TQS Informática Ltda Rua dos Pinheiros 706 c/2 05422-001 São Paulo SP Tel (011) 3083-2722 Fax 3083-2798 www.tqs.com.br
5.5. Critérios de dimensionamento, detalhamento e
desenho
Os critérios de escadas são editados através do programa do menu "Editar" do gerenci-
ador:
Os critérios são classificados sob 5 abas: Materiais, Esforços, Dimensionamento, Sim-
plificado e Desenho.
5.5.1. Materiais
Na janela de materiais temos valores característicos do concreto, coeficientes de segu-
rança e cobrimentos. Os valores do concreto, se definidos a partir dos dados do edifício,
podem ser visualizados mas não alterados. Apenas o minorador do aço é definido nesta
tela - outros valores como a resistência característica vem dos critérios gerais de aço e
desenhos de armação.
5.5.2. Esforços
Nesta tela temos o coeficiente γf de referência e os critérios para homogeneização de
esforços:
Dimensionamento, Detalhamento e Desenho de escadas 45
Podem ser homogeneizados separadamente momentos positivos e negativos, com um
mínimo valor homogeneizado em relação ao valor máximo:
46 Elementos Inclinados e Escadas - TQS
TQS Informática Ltda Rua dos Pinheiros 706 c/2 05422-001 São Paulo SP Tel (011) 3083-2722 Fax 3083-2798 www.tqs.com.br
A discretização das escadas em grelhas espaciais leva à concentração de esforços em
alguns pontos. Dimensionar todo o modelo pelos piores esforços nestes pontos pode
levar a um detalhamento com armadura excessiva. O engenheiro deve avaliar se a hipó-
tese de redistribuição de esforços por homogeneização é aceitável caso a caso. A meto-
dologia adotada é:
 Por direção, divide-se a laje em regiões de apoios e meio de vão;
 Em cada região, considera-se alinhamentos isolados de barras de grelha. Estes ali-
nhamentos tem largura constante
 Considera-se separadamente para os momentos positivos e negativos, cada alinha-
mento com momento fletor constante, igual ao máximo momento fletor no alinha-
mento.
 Toma-se como momento homogeneizado, a média ponderada dos momentos da
região (volume de momentos constante).
 A média ponderada é limitada a um mínimo igual a uma percentagem definida a-
baixo do momento máximo em toda a região analisada.
 No dimensionamento, toma-se os momentos homogeneizados concomitantemente
com as normais obtidas nos pontos de máximos esforços.
5.5.3. Dimensionamento / Detalhamento
Os critérios de dimensionamento associados à NBR-6118:2003 não podem ser alterados
nesta tela, se nos dados do edifício estiver definida esta norma.
Dimensionamento, Detalhamento e Desenho de escadas 47
A armadura mínima de ligação mesa-alma, definida em cm2
/m, será usada na verifica-
ção dos apoios. Nos locais onde não é obrigatória a presença de armadura superior,
qualquer valor calculado abaixo da taxa mínima definida acima será ignorado.
Em muitos casos a armadura superior no meio do vão do lance pode ser desnecessária.
Entretanto, o processo de grelhas pode resultar em esforços residuais que levariam a
uma armadura mínima. As armaduras com taxa menor que a adotado para taxa mínima
serão simplesmente desconsiderada.
48 Elementos Inclinados e Escadas - TQS
TQS Informática Ltda Rua dos Pinheiros 706 c/2 05422-001 São Paulo SP Tel (011) 3083-2722 Fax 3083-2798 www.tqs.com.br
Nos critérios de ancoragem, considera-se ancoragem somente em regiões de boa ade-
rência, devendo o engenheiro corrigir o cálculo onde isto não acontecer:
Por simplificação, o sistema não verifica a extensão dos diagramas de momento negati-
vo para a ancoragem destes ferros. Em vez disto, considera-se a "Ancoragem mínima
em número de bitolas", para estender o ferro negativo do lance de escada, que vem do
patamar, para dentro do lance.
Dimensionamento, Detalhamento e Desenho de escadas 49
O critério de verificação de dutilidade da seção nos pontos com momento negativo po-
de ser ativado. A verificação só é feita em seções sem a presença de força normal.
O sistema dimensiona as seções à flexão composta, selecionando alojamentos definidos
nas tabelas para armadura positiva (inferior) e negativa (superior):
Para evitar que certas bitolas sejam usadas no dimensionamento (se maiores que o co-
brimento ou h/8), deve-se retirá-las da tabela de alojamento.
Sob o botão "Detalhamento" temos critérios que controlam como cortar e dobrar certos
ferros da escada - para favorecer o processo de montagem ou obter maior economia de
armadura:
A armadura inferior do lance pode servir de armadura negativa no patamar superior ou
ancorar independentemente:
50 Elementos Inclinados e Escadas - TQS
TQS Informática Ltda Rua dos Pinheiros 706 c/2 05422-001 São Paulo SP Tel (011) 3083-2722 Fax 3083-2798 www.tqs.com.br
ou
O mesmo acontece no patamar inferior, onde a armadura inferior do lance pode servir
de ferro positivo do patamar:
Dimensionamento, Detalhamento e Desenho de escadas 51
ou
A armadura superior do patamar inferior pode ou não ancorar no lance:
52 Elementos Inclinados e Escadas - TQS
TQS Informática Ltda Rua dos Pinheiros 706 c/2 05422-001 São Paulo SP Tel (011) 3083-2722 Fax 3083-2798 www.tqs.com.br
ou
Dimensionamento, Detalhamento e Desenho de escadas 53
5.5.4. Processo simplificado
Os critérios sob a aba "Simplificado" são aplicáveis exclusivamente ao cálculo por pro-
cesso simplificado, e serão discutidos no último capítulo.
5.5.5. Desenho
Na janela "Desenho", temos diversos critérios agrupados sob uma grade, que permitem
controlar diversos níveis e tamanhos usados no desenho de escadas:
5.6. Processamento de escadas
54 Elementos Inclinados e Escadas - TQS
TQS Informática Ltda Rua dos Pinheiros 706 c/2 05422-001 São Paulo SP Tel (011) 3083-2722 Fax 3083-2798 www.tqs.com.br
O comando "Processar, Modelo de Grelha - Dimensionamento, Detalhamento, Dese-
nho" parte da geometria e esforços previamente gravados e faz todo o processamento.
O resultado final será uma listagem com o memorial de cálculo e o desenho de uma ou
mais escadas deste pavimento.
5.6.1. Listagem do processamento
Vamos examinar e entender a listagem emitida no processamento. A listagem vem com
o comando "Visualizar, Dimensionamento, Detalhamento, Desenho":
A listagem se inicia com uma cópia dos critérios usados no cálculo:
Critérios de cálculo
--------------------
Arquivo de critérios.......... P:TQSWC0TETQSINCLI15CRITESC.DAT
Concreto:
Resistência à compressão concreto Fck ........... 200.0 kgf/cm2
Minorador da resistência GamaC .................. 1.4
Resistência à tração superior Fctksup ........... 28.7 kgf/cm2
Resistência à tração inferior Fctkinf ........... 15.5 kgf/cm2
Módulo de elasticidade secante .................. 212873.7 kgf/cm2
Cobrimento inferior principal ................... 1.0 cm
Cobrimento inferior secundário .................. 1.0 cm
Cobrimento superior principal .................. 1.0 cm
Cobrimento superior secundário .................. 1.0 cm
Aço:
Tipos de aço, resistência, etc .................. Conforme DESARM.DAT
Minorador de resistência GamaS .................. 1.15
Módulo de elasticidade .......................... 2100000.0 kgf/cm2
Dimensionamento:
Majorador de esforços GamaF ..................... 1.4
Homogeneização dos momentos positivos ........... Sim
Valor mínimo homogeneizado em relação ao máximo.. 80.0%
Homogeneização dos momentos negativos ........... Sim
Valor mínimo homogeneizado em relação ao máximo.. 50.0%
Critério de armadura mínima ..................... NBR-6118:2003
Armadura mínima negativa no apoio ............... 1.5 cm2
Taxa para ignorar armadura superior ............. 0.05
Limite relativo da linha neutra x/d ............. 0.50
Detalhamento:
Ancoragem das armaduras ......................... NBR-6118:2003
Ancoragem mínima em bitolas ..................... 50
Decalagem de Rsd para ancoragem (em h util) ..... 1.5
Cobrir patamar superior com armadura do lance ... Sim
Cobrir patamar inferior com armadura do lance ... Sim
Dimensionamento, Detalhamento e Desenho de escadas 55
A seguir é mostrada uma legenda dos termos usados nas tabelas de dimensionamento:
Legenda
---------------
Direção X Direção principal da laje, definida no Modelador. É para
onde aponta o eixo X da laje. Pode ser ortogonal à direção
do lance da escada
Direção Y Direção ortogonal a X
MomPos Momento positivo homogeneizado. Normal com momento máximo
MomNeg Momento negativo homogeneizado. Normal com momento mínimo
NorMax Maior força normal. Momento homogeneizado
NorMin Menor força normal. Momento homogeneizado
Início Esforços medidos próximos ao apoio inicial
Meio Esforços medidos no meio da laje
Fim Esforços medidos próximos ao apoio final
Momento Momento fletor tfm/m
Normal Força normal tfm
Barra Número da barra na grelha
As inf Armadura inferior cm2
As sup Armadura superior cm2
Alojamen Alojamento da armadura: bitola / espaçamento
Msg Mensagens do dimensionamento:
(*) Seção sem dimensionamento
(M) Armadura mínima
(I) Armadura superior ignorada
(>) Bitola selecionada > espessura da laje/8
Alguns pontos importantes nesta legenda:
 Os momentos usados no cálculo podem ser os máximos ou os homogeneizados;
 As regiões de verificação são as próximas aos apoios e no meio da laje;
 Tanto patamares como lances são tratados como lajes, e calculados da mesma ma-
neira;
 Os pontos de momento máximo podem ser verificados com o número da barra
mostrada nas tabelas diretamente no visualizador espacial de pórtico/grelha;
 Os caracteres "*", "M", "I" e ">" são usados para mostrar condições do dimensio-
namento.
A seguir é mostrado o dimensionamento de cada região de cada laje. Para cada patamar
e lance, é feito um dimensionamento inicial nas regiões dos apoios e meio do vão, por
direção, nos pontos de momento máximo e mínimo e normal máxima e mínima. Os
momentos tomados podem ser máximos ou homogeneizados. As direções nesta lista-
gem são as das direções principais das lajes, que são definidas arbitrariamente pelo
engenheiro na entrada de dados do Modelador:
Dimensionamento - esforços característicos
------------------------------------------
Pavimento............ Terreo
Elemento ............ Lance E3
56 Elementos Inclinados e Escadas - TQS
TQS Informática Ltda Rua dos Pinheiros 706 c/2 05422-001 São Paulo SP Tel (011) 3083-2722 Fax 3083-2798 www.tqs.com.br
Espessura ........... 10.00 cm
Direção principal ... 0.00°
Verificação Momento Normal Barra As inf Alojamen As sup Alojamen Msg
tfm/m tf/m cm2/m Ø/Esp cm2/m Ø/Esp
MomPos Inicio X 0.51 -3.77 529 2.69 8.0/17.5
MomPos Meio X 0.50 0.59 533 1.54 5.0/12.5
MomPos Fim X 0.52 2.34 535 1.50 6.3/20.0 M
MomPos Inicio Y 0.34 0.12 524 1.50 6.3/20.0 M
MomPos Meio Y 0.19 -1.18 526 1.50 6.3/20.0 M
MomPos Fim Y 0.08 -0.39 528 0.33 I
MomNeg Inicio X -0.04 -3.77 529 0.50 1.50 6.3/20.0 MI
MomNeg Meio X 0.50 0.00 0 1.96 6.3/15.0
MomNeg Fim X -0.35 1.60 536 1.50 6.3/20.0 M
MomNeg Inicio Y -0.01 0.07 519 1.50 6.3/20.0 M
MomNeg Meio Y -0.01 0.60 497 0.06 I
MomNeg Fim Y -0.17 0.03 508 1.50 6.3/20.0 M
NorMax Inicio X 0.51 1.61 470 1.50 6.3/20.0 M
NorMax Meio X 0.50 0.59 533 1.54 5.0/12.5
NorMax Fim X 0.52 2.34 535 1.50 6.3/20.0 M
NorMax Inicio Y 0.34 0.41 520 1.50 6.3/20.0 M
NorMax Meio Y 0.19 0.63 496 1.50 6.3/20.0 M
NorMax Fim Y -0.17 0.37 498 1.50 6.3/20.0 M
NorMin Inicio X 0.51 -3.77 529 2.69 8.0/17.5
NorMin Meio X 0.50 -0.15 490 1.99 6.3/15.0
NorMin Fim X 0.52 -1.63 477 2.35 8.0/20.0
NorMin Inicio Y 0.34 -1.33 494 1.50 6.3/20.0 M
NorMin Meio Y 0.19 -1.18 526 1.50 6.3/20.0 M
NorMin Fim Y -0.17 -0.39 528 1.50 6.3/20.0 M
Sendo as direções X e Y das direções principais da laje, a armadura mostrada em X não
está necessariamente no sentido do lance da escada. O programa então compatibiliza as
armaduras positivas e negativas na direção do lance, e faz um resumo final com as ar-
maduras usadas no detalhamento:
Resumo de armaduras na escada "Escada-1" Lance "E3"
---------------------------------------------------
Direção do lance ... 0.00°
Lance E3
Na direção do lance
Armadura inferior 2.69 cm2/m Ø 8.0/17.5
Na direção secundária
Armadura inferior 1.50 cm2/m Ø 6.3/20.0
Patamar superior L1
Na direção do lance
Armadura inferior 1.50 cm2/m Ø 6.3/20.0
Armadura superior Alongamento da armadura inferior de E3
Na direção secundária
Armadura inferior 5.81 cm2/m Ø12.5/20.0
Armadura superior 1.50 cm2/m Ø 6.3/20.0
Patamar inferior L2
Na direção do lance
Dimensionamento, Detalhamento e Desenho de escadas 57
Armadura inferior Alongamento da armadura inferior de E3
Armadura superior 1.50 cm2/m Ø 6.3/20.0
Na direção secundária
Armadura inferior 8.08 cm2/m Ø12.5/15.0
Armadura superior 1.50 cm2/m Ø 6.3/20.0
Nesta listagem temos todas as armaduras referidas à direção do lance da escada, inclu-
sive as dos patamares.
5.7. Editando o desenho
O programa gerará um arquivo DWG com o nome de cada escada processada. Este é
um arquivo convencional de armaduras segundo a convenção do NGE, podendo ser
editado com o Editor de Armação (convencional ou completo do CAD/AGC) e incluído
em plantas para plotagem:
Em geral a armadura dos patamares na direção do lance de escada está detalhada na
própria escada. Apenas a armadura transversal é detalhada nos patamares. Em certos
arranjos de escada (como um patamar comum a mais de um lance) é possível que o de-
talhamento não seja totalmente automático. Nestes casos é necessário que o engenheiro
complete o detalhamento inserindo ou removendo armaduras do desenho.
5.7.1. Detalhamento do patamar mais baixo
Tomando como exemplo um edifício com uma escada de dois lances entre os pavimen-
tos, o dimensionamento completo da escada em um pavimento teria que ser feito em
três patamares: o superior, o intermediário e o do pavimento inferior. O ferros transver-
sais do patamar inferior não precisam ser detalhados, pois estarão no desenho do pata-
mar superior da escada do pavimento inferior.
58 Elementos Inclinados e Escadas - TQS
TQS Informática Ltda Rua dos Pinheiros 706 c/2 05422-001 São Paulo SP Tel (011) 3083-2722 Fax 3083-2798 www.tqs.com.br
Entretanto, quando chegamos ao patamar mais baixo de todos os pavimentos teremos
um desenho órfão - não há escada a ser detalhada no pavimento mais baixo. O sistema
mesmo assim gera um desenho do detalhamento independente deste patamar, que pode
ser adaptado na escada do pavimento superior:
Há um caso particular neste detalhamento: quando tratamos do andar tipo, o patamar do
pavimento inferior detalhado na escada do tipo é o mesmo patamar superior do lance
inicial.
5.8. Calculadora de flexão composta normal
Para auxiliar o engenheiro na verificação de resultados, uma calculadora de flexão
composta normal está disponível no menu "Visualizar" do Escadas-TQS:
Dimensionamento, Detalhamento e Desenho de escadas 59
Trata-se de uma calculadora interativa que tem dois comandos: o de verificação de ar-
maduras, e o de determinação de armadura necessária.
5.8.1. Dados de cálculo
Alguns dados de cálculo são carregados do arquivo de critérios de escada, outros têm
valor arbitrário que é retido entre duas chamadas da calculadora. Os dados estão dividi-
dos nos seguintes grupos:
 Seção: é a seção transversal de cálculo, que pode ser retangular, T, trapezoidal ou I
(definida pela altura de mini-painel inferior).
 Concreto: são os dados do concreto, com valores característicos. A resistência ca-
racterística superior a tração, e o módulo de elasticidade são calculados com valo-
res da NBR-6118:2003 se definidos como zero.
 Aço: além dos valores característicos de resistência e do módulo de elasticidade,
temos os cobrimentos de armadura inferior e superior, que devem necessariamente
incluir a diferença devido ao CG das armaduras. Considerando-se que a seção re-
cebe apenas uma camada de armadura de uma só bitola, a diferença a considerar é
de meia bitola, em cm.
60 Elementos Inclinados e Escadas - TQS
TQS Informática Ltda Rua dos Pinheiros 706 c/2 05422-001 São Paulo SP Tel (011) 3083-2722 Fax 3083-2798 www.tqs.com.br
 Esforços característicos: Temos a força normal e momento fletor. O momento fle-
tor negativo faz com que as fibras superiores da seção calculada sejam tracionadas.
A posição limite da linha neutra (item 14.6.4.3 e 14.7.3.2 da NBR-6118:2003) so-
mente é verificada para seções sem força normal e com um valor mínimo de mo-
mento. Esta verificação pode ser desligada fixando-se o limite da linha neutra em
zero ou 1.
5.8.2. Verificação de armadura
O botão "Verificação" faz com que a seção, com as áreas de armadura superior e inferi-
or definidas no mesmo quadro seja verificada. O resultado será mostrado no quadro
superior à direita. A seção simplesmente passa ou não, e a altura da linha neutra e o
valor da armadura mínima são mostrados para esta seção.
5.8.3. Armadura necessária
O botão "Armadura necessária" itera valores de armadura até achar a menor armadura
que ainda equilibra a seção. Para que este comando funcione, é necessário que o enge-
nheiro forneça o número de bitolas a serem colocados na região superior e inferior da
seção (pode ser zero). A calculadora mostrará a área de armadura necessária por bitola.
O número de bitolas pode ser fornecido de maneira fracionada, funcionando apenas
para definir a proporção entre a armadura superior e inferior. Neste caso, a área final
mostrada por bitola deve ser multiplicada pelos números fornecidos para a obtenção da
área real.
Dimensionamento e detalhamento de vigas e lajes inclinadas 61
6. Dimensionamento e detalhamento de
vigas e lajes inclinadas
O dimensionamento e detalhamento de vigas e lajes inclinadas é efetuado de maneira
simplificada e deve ser completado conforme necessário pelo engenheiro.
6.1. Vigas inclinadas
Uma viga inclinada é definida no sistema CAD/TQS como uma barra de ligação entre
dois planos (pavimento ou piso auxiliar). Os esforços considerados na sua análise são
provenientes do processamento do modelo de pórtico espacial, e portanto, levam em
conta a sua continuidade com os demais elementos que estão interligados a ela.
Além dos esforços de flexão, as vigas inclinadas usualmente estão submetidas à esfor-
ços axiais (força normal de tração ou compressão). Desta forma, o CAD/Vigas foi a-
daptado para fazer o dimensionamento de uma seção à flexão composta normal, aumen-
tando se necessário as armaduras.
O detalhamento da viga inclinada, porém, precisa da interferência manual do engenhei-
ro estrutural, pois o tramo inclinado da viga é dimensionado e detalhado de forma sepa-
rada. O CAD/Vigas desenha este trecho como se fosse um elemento horizontal já com a
seção de aço correta. Trata-se de um bom ponto de partida para o detalhamento final.
Por esse motivo, após o processamento, todos os desenhos de vigas inclinadas apresen-
tam a seguinte mensagem:
OBSERVAÇÃO: todas as vigas de um pavimento (não só as inclinadas) passam a ser
dimensionadas à flexão composta normal.
6.1.1. Critérios de projeto
Foram adicionados novos critérios de projeto específicos para o dimensionamento de
vigas submetidas à flexão composta normal. Para acessá-los, ative no CAD/Vigas, "E-
ditar, Critérios de projeto, Flexão”, botão “Flexão composta normal”.
62 Elementos Inclinados e Escadas - TQS
TQS Informática Ltda Rua dos Pinheiros 706 c/2 05422-001 São Paulo SP Tel (011) 3083-2722 Fax 3083-2798 www.tqs.com.br
Os novos critérios estão subdivididos em dois grupos: força normal e seção transversal.
O primeiro define parâmetros relativos a força axial solicitante. O segundo estabelece o
tipo de seção a ser considerada.
No grupo “Força normal” é possível estabelecer um limite para que o esforço axial atu-
ante nas vigas seja desconsiderado no dimensionamento. Além disso, define-se, tam-
bém, valores limites para que as forças de tração ou compressão sejam consideradas
elevadas, de tal forma que a análise dos resultados possa ser realizada de forma mais
fácil e eficiente (ver o resumo geral do relatório).
Dimensionamento e detalhamento de vigas e lajes inclinadas 63
No grupo “Seção transversal” é possível definir o tipo de seção a ser levado em conta
no dimensionamento (retangular ou T). Caso a mesa colaborante seja considerada, é
necessário especificar a armadura da laje paralela a viga.
64 Elementos Inclinados e Escadas - TQS
TQS Informática Ltda Rua dos Pinheiros 706 c/2 05422-001 São Paulo SP Tel (011) 3083-2722 Fax 3083-2798 www.tqs.com.br
No grupo “Relatório” é possível definir duas opções para geração do relatório: resumi-
da ou completa. Na primeira são impressas somente as modificações nas vigas cujas
armaduras foram alteradas devido ao esforço normal.
Dimensionamento e detalhamento de vigas e lajes inclinadas 65
6.1.2. Processamento de vigas
O dimensionamento à flexão composta normal de todas as vigas dos pavimentos de um
edifício é sempre realizado de forma automática no processamento global. Porém, se o
cálculo for efetuado localmente dentro do CAD/Vigas (menu “Processar, Dimensiona-
mento, detalhamento e desenho”), existe uma opção que ativa/desativa esta considera-
ção.
66 Elementos Inclinados e Escadas - TQS
TQS Informática Ltda Rua dos Pinheiros 706 c/2 05422-001 São Paulo SP Tel (011) 3083-2722 Fax 3083-2798 www.tqs.com.br
6.1.3. Dimensionamento à flexão composta normal
O dimensionamento à flexão composta normal das vigas é sempre realizado após o di-
mensionamento à flexão simples. O dimensionamento à flexão positiva e negativa não
mudaram, continuam sendo os mesmos que já existiam nas versões anteriores do siste-
ma CAD/TQS.
Durante o dimensionamento à flexão composta normal, diversas seções ao longo de
cada um dos vãos das vigas são verificadas com as armaduras pré-calculadas à flexão
simples. Caso alguma seção não passe (ruptura) em virtude da força normal solicitante
(normalmente de tração), o CAD/Vigas aumentará as armaduras (porta-estribos ou ar-
madura lateral) procurando obter uma uniformidade em toda viga.
Se porventura, mesmo após as alterações nas armaduras, ainda exista alguma seção que
não passe, será emitido um erro grave que aparecerá tanto no resumo estrutural como
no visualizador de erros.
Dimensionamento e detalhamento de vigas e lajes inclinadas 67
Nenhuma verificação especial em relação à ancoragem das vigas tracionadas é realiza-
da pelo CAD/TQS, de tal forma que é necessário que o engenheiro estrutural cheque tal
condição manualmente.
6.1.4. Relatório de dimensionamento à flexão composta
Um relatório em HTML é gerado durante o dimensionamento das vigas à flexão com-
posta normal, possibilitando uma análise mais refinada das verificações realizadas pelo
programa. Para acessá-lo, ative o CAD/Vigas, menu “Visualizar > Esforços e armadu-
ras > Dimensionamento à flexão composta”.
68 Elementos Inclinados e Escadas - TQS
TQS Informática Ltda Rua dos Pinheiros 706 c/2 05422-001 São Paulo SP Tel (011) 3083-2722 Fax 3083-2798 www.tqs.com.br
Todas as alterações de armaduras realizadas nas vigas são documentadas de forma deta-
lhada.
Dimensionamento e detalhamento de vigas e lajes inclinadas 69
No final do relatório é possível acessar um resumo geral que facilita bastante a análise
dos resultados. Vigas com tração ou compressão elevada são listadas a parte.
70 Elementos Inclinados e Escadas - TQS
TQS Informática Ltda Rua dos Pinheiros 706 c/2 05422-001 São Paulo SP Tel (011) 3083-2722 Fax 3083-2798 www.tqs.com.br
6.2. Dimensionamento de lajes inclinadas
Por simplificação, o Editor de Esforços determina as forças normais máxima e mínima
de cada faixa e verifica o momento da faixa combinado com cada uma delas. A arma-
dura final será a maior das armaduras calculadas.
O detalhamento será realizado somente quando, para o momento positivo ou negativo,
for necessária armadura apenas em uma das face da laje. Se for necessária armadura em
ambas as faces na mesma seção, o editor mostrará o valor delas na faixa de esforços,
que aparecerá em vermelho. O detalhamento neste caso precisará ser completado ma-
nualmente.
Nas faixas de esforços com força normal, o Editor de Esforços mostra os valores má-
ximos e mínimos usados no cálculo. No exemplo abaixo, estes valores são respectiva-
mente 1.33 tf/m (compressão) e -2.12 tf/m (tração):
Dimensionamento e detalhamento de vigas e lajes inclinadas 71
A armadura dimensionada será a maior necessária entre as solicitações características
de (M=0.79, N=1.33) e (M=0.79, N=-2.12). Na direção longitudinal, o comprimento do
ferro é modificado de acordo com a inclinação da laje e mostrado nesta inclinação:
72 Elementos Inclinados e Escadas - TQS
TQS Informática Ltda Rua dos Pinheiros 706 c/2 05422-001 São Paulo SP Tel (011) 3083-2722 Fax 3083-2798 www.tqs.com.br
7. Processo Simplificado
Se as escadas de um projeto forem convencionais (retas e com vãos pequenos), e não
contribuírem significativamente na rigidez da estrutura, então poderá ser justificável
calculá-las pelo Processo Simplificado. Um único módulo do sistema Escadas-TQS
permite calcular esforços (através do CAD/Lajes), dimensionar, detalhar e desenhar
escadas por processo simplificado.
O lançamento de escadas pelo processo simplificado não impede o lançamento das
mesmas na estrutura e a sua consideração no modelo espacial.
Este módulo gera uma escada retangular padrão de dois lances e dois patamares, apoia-
da em vigas de contorno. Você pode zerar dados da escada padrão, de modo que ela
também pode ser calculada com somente um lance, com um ou dois patamares (ou só
apoiada em vigas) e com ou sem vigas no contorno. As condições de apoio são contro-
láveis.
As escadas calculadas por este módulo não tem nenhuma ligação com o resto da estru-
tura. Continua sendo responsabilidade do engenheiro lançar carregamentos e outras
condições de contorno na estrutura global devido às escadas para que o modelo estrutu-
ral continue coerente.
7.1. Modelo de cálculo e critérios
No modelo simplificado, as lajes inclinadas, ou não, são calculadas como planas sobre
apoios rígidos, com as medidas projetadas no plano:
O comprimento dos lances pode se limitar à medida entre os patamares, ou pode ser
estendido até o meio de cada patamar, conforme o critério de escadas:
Processo Simplificado 73
As condições de contorno são definidas junto com a geometria da laje (veja adiante).
As lajes, com seus carregamentos e suas vinculações são passadas para o CAD/Lajes,
que calculará esforços segundo um dos modelos abaixo:
74 Elementos Inclinados e Escadas - TQS
TQS Informática Ltda Rua dos Pinheiros 706 c/2 05422-001 São Paulo SP Tel (011) 3083-2722 Fax 3083-2798 www.tqs.com.br
No lance de escada, o peso próprio é corrigido para considerar a inclinação da laje, e o
peso dos degraus é acrescentado.
O CAD/Lajes somente dimensiona armadura negativa nos apoios engastados. Se os
patamares e/ou lances forem simplesmente apoiados, mesmo assim poderemos forçar a
adoção de uma armadura negativa nos patamares a partir de uma taxa de armadura for-
necida pelo critério:
Processo Simplificado 75
7.1.1. Critérios comuns com o cálculo por grelha
Todos os critérios de dimensionamento e detalhamento usados no cálculo de escadas
com esforços de grelha valem no processo simplificado. Estes critérios são discutidos
no item 5.4.
7.1.2. Critérios comuns com o CAD/Lajes
O Escadas-TQS tem seu próprio arquivo de critérios, independente do CAD/Lajes.
Quando o CAD/Lajes calcula escadas, ele carrega ao mesmo tempo os critérios de lajes
do edifício e os de escadas. Os critérios abaixo são comuns aos dois sistemas, prevale-
cendo aqueles do arquivo de critérios de escadas:
 Propriedades dos materiais
 Cobrimentos
 Majoradores e minoradores
 Verificação de dutilidade nos apoios
 Critérios de ancoragem
 Tabelas de alojamento
7.2. Processamento - Processo Simplificado
No menu "Processar" do Escadas-TQS, acionamos o programa de cálculo por processo
simplificado. Todas as atividades de dimensionamento, detalhamento e desenho são
acionadas a seguir a partir deste programa:
76 Elementos Inclinados e Escadas - TQS
TQS Informática Ltda Rua dos Pinheiros 706 c/2 05422-001 São Paulo SP Tel (011) 3083-2722 Fax 3083-2798 www.tqs.com.br
A entrada de dados é feita por intermédio de 5 janelas, acionadas pelas abas superiores:
"Geometria", "Degraus", "Vinculações", "Carregamento" e "Armaduras". A tela de ar-
maduras tem também os comandos para dimensionamento e detalhamento.
7.2.1. Arquivos envolvidos
A pasta preferencial para processamento de escadas por processo simplificado é a pasta
"Escadas":
Processo Simplificado 77
O programa permite processar qualquer número de escadas numa mesma pasta. Entre-
tanto recomenda-se que as escadas de um pavimento sejam processadas no próprio pa-
vimento (pasta "Escadas" sob o pavimento), para que no resumo estrutural os quantita-
tivos do pavimento considerem somente a escada correspondente.
O programa permite também que lances sejam lançados um a um. Para diferenciar lan-
ces diferentes lançados separadamente, e também permitir o lançamento de mais de
uma escada em um pavimento, os dados de escadas por processo simplificado devem
ser salvos um a um com um nome escolhido pelo engenheiro. O programa salvará os
dados em arquivos com tipo ".DAE" e atribuirá o mesmo nome às listagens de proces-
samento e desenho. Por exemplo, se atribuirmos o nome "ESC1" à escada, trabalhare-
mos com os seguintes arquivos na mesma pasta:
Arquivo Uso
ESC1.DAE Dados de escadas, processo simplificado
ESC1.LAJ Gerado automaticamente no processamento de esforços
através do CAD/Lajes
ESC1.LST Listagem de esforços e dimensionamento do CAD/Lajes
ESC1.DWG Desenho de forma e armação da escada
Os comandos de manipulação de arquivos no menu e na barra de ferramentas são típi-
cos de qualquer programa Windows:
Ao entrarmos no programa, teremos três situações possíveis:
78 Elementos Inclinados e Escadas - TQS
TQS Informática Ltda Rua dos Pinheiros 706 c/2 05422-001 São Paulo SP Tel (011) 3083-2722 Fax 3083-2798 www.tqs.com.br
 Se não existir nenhum arquivo de escadas na pasta escolhida, um novo será criado
sem título, sendo salvo no final da operação com título a ser fornecido.
 Se existir somente um arquivo na pasta, ele será editado.
 Se houver mais de um arquivo, o programa pedirá pela escolha de um dos existen-
tes.
Ao sair do programa, o sistema perguntará se você quer salvar o arquivo de escadas e o
nome do arquivo, se você ainda não tiver salvo.
7.2.2. Geometria
A escada padrão tem dois lances e dois patamares. Basta fornecer os dados na tela abai-
xo nos campos próximos ao esquema da escada:
Olhando-se em planta e dividindo-se a escada em cima, baixo, esquerda e direita, temos
que:
 As vigas podem ter largura zero.
 Se a largura do patamar esquerdo for zero, os lances se apoiarão na viga vertical à
esquerda. O patamar e a viga não podem ter simultaneamente largura zero.
 O mesmo ocorre com o patamar da direita.
 Se o lance de baixo tiver largura zero, a viga de baixo servirá de apoio ao lance de
cima. Neste caso teremos uma escada de um único lance.
 O lance que desce na direção indicada pode ser o de cima ou de baixo, afetando a
representação da escada em corte.
Processo Simplificado 79
7.2.3. Degraus da escada
No processo simplificado temos os mesmos recursos de cálculo e definição de degraus
que no Modelador. Os degraus serão representados em planta e corte e terão seu peso
próprio considerado no cálculo de esforços. A tela de dados de degraus tem os mesmos
campos de espessura, espaço e desnível definidos na tela de geometria:
Para ajudar a determinar os passos e espelhos ideais de uma escada dado o espaço e
desnível disponível, podemos usar a calculadora de degraus acionada pelo botão "Visu-
alizar":
80 Elementos Inclinados e Escadas - TQS
TQS Informática Ltda Rua dos Pinheiros 706 c/2 05422-001 São Paulo SP Tel (011) 3083-2722 Fax 3083-2798 www.tqs.com.br
Vale aqui a mesma lógica usada no Modelador, e comentada no item 4.2. Passo e espe-
lho podem ser fixados ou liberados para que o programa procure um valor ideal com o
botão "Sugerir". Os critérios para a escolha dos valores ideais, dentro do grupo "Cálcu-
lo de dimensões" vem do arquivo de critérios de projeto de formas. O desenho no pai-
nel à direita é gerado dinamicamente conforme se alteram os dados à esquerda, e pode
ser manipulado com comandos de janela.
7.2.4. Vinculações
As vinculações (ou condições de contorno) da escada padrão podem ser do tipo Apoio,
Engaste ou Livre. Basta fornecer os dados na tela abaixo nos campos próximos ao es-
quema da escada e dos patamares:
A definição das vinculações é independente da existência de largura de viga e/ou pata-
mares definidos. Cada patamar e lance são calculados independentemente com as con-
dições fornecidas. Note que:
 O CAD/Lajes só gera ferros negativos nos apoios com engastamento. Você pode
forçar a utilização mínima de ferros negativos através do arquivo de critérios de es-
cadas.
 Os lances são simétricos, as vinculações definidas no lance de baixo devem ser
rebatidas no lance de cima.
 As vinculações definidas ao longo da viga horizontal de baixo valem para a viga
horizontal de cima.
7.2.5. Carregamentos
Definimos apenas os valores de cargas permanentes e sobrecargas, nos patamares e nos
lances:
Processo Simplificado 81
7.2.6. Dimensionamento e Detalhamento
Nesta última janela definimos a armadura da escada. Esta armadura pode ser definida
manualmente ou a partir do cálculo de esforços e dimensionamento do CAD/Lajes:
As combinações de alojamento de armaduras que podem ser escolhidas são as definidas
no arquivo de critérios, separadamente para a armadura negativa (superior) e positiva
(inferior). Escolha uma configuração em branco para que a armadura não seja gerada.
Note nesta tela que foram definidas armaduras separadamente para os patamares, mas
não para os lances, que serão armados igualmente. Cada laje tem a definição de quatro
tipos de armaduras: superior e inferior, na direção horizontal e vertical.
82 Elementos Inclinados e Escadas - TQS
TQS Informática Ltda Rua dos Pinheiros 706 c/2 05422-001 São Paulo SP Tel (011) 3083-2722 Fax 3083-2798 www.tqs.com.br
7.3. Detalhando e desenhando forma e armação
Para obter um desenho de forma e armação com a geometria definida e as armaduras
desta tela, simplesmente aperte "Detalhamento". Um novo desenho de forma e armação
será gerado, com o mesmo nome do arquivo .DAE (ex: ESC1.DWG), sendo editado auto-
maticamente pelo editor de armação em seguida. Se você já gerou um desenho e fez
modificações, pode simplesmente editá-lo sem regravar, apertando "Editar desenho".
7.3.1. Dimensionando com o CAD/Lajes
Se você apertar o botão "Dimensionamento", o CAD/Lajes será acionado e fará o pro-
cessamento de esforços e o dimensionamento das armaduras da escada. O programa
grava um arquivo .LAJ de entrada para o CAD/Lajes com o mesmo nome do .DAE. No
final o CAD/Lajes gera a listagem do dimensionamento e detalhamento, que é editada
através do EDITW. Nesta listagem temos três lajes definidas em sequência: o lance da
escada, o patamar esquerdo e o patamar direito:
Processo Simplificado 83
18> $
19> $ Lance
20> $ C.Perm =0.30 tf/m2
21> $ C.Acid =0.20 tf/m2
22> $ C.Dif.Incl=0.04 tf/m2
23> $ C.Dif.Degr=0.21 tf/m2
24> $
25> L8001 LX 240.00 LY 166.00 H 10.00 P 0.75 ENG LALA
Laje 8001 LX 240.0 LY 166.0 H 10 cm
P .750 tf/m2 G .250 tf/m2 LY/LX .00
KFLEX .158 Flecha .45 cm Flecha LIM .80 cm Hmin 9 cm
KMX .0 MX 72.0 tfcm/m
KMY .0 MY .0 tfcm/m
KMXNEG .00
KMYNEG .00
Apoios Vínculo Mom Neg tfcm/m (não compatibilizados)
1 L
2 A
3 L
4 A
Esta é a listagem do lance. Veja que a carga aplicada fora o peso próprio é composta
pela soma das cargas permanentes e acidentais definidas, mais a diferença entre o peso
próprio de uma laje plana e de uma inclinada, mais o peso próprio dos degraus. A vin-
culação definida ("LALA", L=Livre, A=Apoio simples) define o lance como bi-apoiado
sem momentos nas extremidades. Os demais elementos desta listagem são descritos no
manual do CAD/Lajes - flecha elástica, flecha limite e coeficientes usados para a de-
terminação de esforços. Estes coeficientes dependem do critério de cálculo utilizado
(aqui não foram definidos, por ser uma laje bi-apoiada).
A listagem de esforços nos patamares é semelhante, a menos das cargas e das vincula-
ções:
26> $
27> $ Patamar esquerdo
28> $ C.Perm =0.30 tf/m2
29> $ C.Acid =0.20 tf/m2
30> $
31> L8002 LX 154.00 LY 332.00 H 10.00 P 0.50 ENG AAAA
Laje 8002 LX 154.0 LY 332.0 H 10 cm
P .500 tf/m2 G .250 tf/m2 LY/LX 2.16
KFLEX .149 Flecha .05 cm Flecha LIM .51 cm Hmin 7 cm
KMX 8.0 MX 22.2 tfcm/m
KMY 23.5 MY 7.6 tfcm/m
KMXNEG .00
KMYNEG .00
84 Elementos Inclinados e Escadas - TQS
TQS Informática Ltda Rua dos Pinheiros 706 c/2 05422-001 São Paulo SP Tel (011) 3083-2722 Fax 3083-2798 www.tqs.com.br
Apoios Vínculo Mom Neg tfcm/m (não compatibilizados)
1 A
2 A
3 A
4 A
32> $
33> $ Patamar direito
34> $ C.Perm =0.30 tf/m2
35> $ C.Acid =0.20 tf/m2
36> $
37> L8003 LX 154.00 LY 332.00 H 10.00 P 0.50 ENG AAAA
Laje 8003 LX 154.0 LY 332.0 H 10 cm
P .500 tf/m2 G .250 tf/m2 LY/LX 2.16
KFLEX .149 Flecha .05 cm Flecha LIM .51 cm Hmin 7 cm
KMX 8.0 MX 22.2 tfcm/m
KMY 23.5 MY 7.6 tfcm/m
KMXNEG .00
KMYNEG .00
Apoios Vínculo Mom Neg tfcm/m (não compatibilizados)
1 A
2 A
3 A
4 A
Neste exemplo não foram definidos engastamentos, assim não surgiram momentos ne-
gativos. Mesmo assim será definida armadura negativa, a partir do critério de taxa mí-
nima negativa. No final da listagem temos as armaduras dimensionadas em função dos
esforços solicitantes:
Laje 8001 LX= 240.0 LY= 166.0 H=10.
Armad Momen AS N.Fer Bit Compr Espac
tfcm/m cm2 mm cm cm
X 72.0 3.31 12 8.0 240 15.0
Y .0 1.50 12 6.3 166 20.0
AP 1 .0 .00 6.3 20.0
AP 2 .0 .00 6.3 20.0
AP 3 .0 .00 6.3 20.0
AP 4 .0 .00 6.3 20.0
Laje 8002 LX= 154.0 LY= 332.0 H=10.
Armad Momen AS N.Fer Bit Compr Espac
tfcm/m cm2 mm cm cm
X 22.2 1.50 17 6.3 154 20.0
Y 7.6 1.50 8 6.3 332 20.0
AP 1 .0 .00 6.3 20.0
AP 2 .0 .00 6.3 20.0
AP 3 .0 .00 6.3 20.0
Processo Simplificado 85
AP 4 .0 .00 6.3 20.0
Laje 8003 LX= 154.0 LY= 332.0 H=10.
Armad Momen AS N.Fer Bit Compr Espac
tfcm/m cm2 mm cm cm
X 22.2 1.50 17 6.3 154 20.0
Y 7.6 1.50 8 6.3 332 20.0
AP 1 .0 .00 6.3 20.0
AP 2 .0 .00 6.3 20.0
AP 3 .0 .00 6.3 20.0
AP 4 .0 .00 6.3 20.0
Imediatamente após o processamento, as armaduras obtidas são transportadas para a
tela de armaduras. Você pode gerar o detalhamento com elas, ou alterá-las como quiser
antes de detalhar.
7.4. Compatibilização dos patamares e lances
As armaduras dos patamares e lances são calculadas independentemente, mas devem
ser compatibilizadas. O programa:
 Adota a maior armadura calculada nos apoios comuns;
 Pode igualar a armadura inferior do lance com a superior do patamar superior e
com a inferior do patamar inferior, conforme critérios discutidos em 5.5.3.
86 Elementos Inclinados e Escadas - TQS
TQS Informática Ltda Rua dos Pinheiros 706 c/2 05422-001 São Paulo SP Tel (011) 3083-2722 Fax 3083-2798 www.tqs.com.br
8. Exemplo 1
Neste primeiro exemplo, você verá como entrar com dados, calcular e visualizar os
resultados de uma rampa e escadas de lance único, ambos apoiadas em vigas inclinadas.
8.1. Entendendo o Exemplo 1
Trata-se de um edifício de 2 andares com uma arquitetura muito simples. O esquema do
edifício e a planta de arquitetura do pavimento Térreo e do Tipo são mostrados na figu-
ra a seguir:
Exemplo 1 87
Note que o edifício possui um pavimento Sub-Solo, um Térreo, um 1º Pavimento, um
2º Pavimento e uma Cobertura. A forma da Cobertura é idêntica a do Tipo, porém sem
os sem patamares de escada. No caso do 2º Pavimento só há patamar de saída e não há
um de chegada pois se trata do último pavimento.
No Térreo há uma rampa que leva ao Subsolo. A ligação entre os andares é feita através
de uma escada de lance único.
Como este Manual tem o objetivo de mostrar as etapas para o lançamento de elementos
inclinados, os elementos básicos (vigas, pilares e lajes) já estão lançados no exemplo
MODESC.
8.2. Acessando o Exemplo 1
O exemplo para lançamento de escadas e elementos inclinados é o edifício chamado de
‘MODESC’. Ele pode ser encontrado compactado no pasta de instalação do programa
CAD/TQS, no caminho: TQSWUSUARIOTESTE. Dê um duplo clique sobre o arqui-
vo de nome ‘MODESC’, (Compativel com a sua versão), e a janela ‘Salvar / Restaurar /
Compactar’ será aberta:
(1) Clique no botão “Restaurar”;
88 Elementos Inclinados e Escadas - TQS
TQS Informática Ltda Rua dos Pinheiros 706 c/2 05422-001 São Paulo SP Tel (011) 3083-2722 Fax 3083-2798 www.tqs.com.br
(2) Feche a janela “Salvar / Restaurar / Compactar”.
Inicie o Sistema CAD/TQS, e a tela principal do programa chamada de “Gerenciador”
será carregada.
Vamos clicar sobre a árvore de edifícios e abrir o edifício MODESC:
(1) Clique no Edifício “MODESC”.
Esse edifício já está criado, portanto será aberta a árvore de arquivos do mesmo:
Uma árvore do edifício será mostrada no gerenciador.
Clicando sobre o item “Pavimentos” pode-se observar que
os pavimentos já foram definidos.
Exemplo 1 89
8.3. Editando Dados do Edifício
Dentro do sistema ESCADAS-TQS a convenção adotada é que os elementos inclinados
nascem nos pisos superior e terminam no inferior. Desta forma, os pisos onde os ele-
mentos inclinados nascem são: Térreo (rampa e escada), 1PAV (escada) e 2PAV (esca-
da). Primeiramente é necessário indicar ao sistema que existe um elemento inclinado
nestes pavimentos.
Execute o comando “Arquivo” - “Edifício” – “Editar”.
OU
Clique Aqui
(1)Clique na Guia “Pavimentos”.
90 Elementos Inclinados e Escadas - TQS
TQS Informática Ltda Rua dos Pinheiros 706 c/2 05422-001 São Paulo SP Tel (011) 3083-2722 Fax 3083-2798 www.tqs.com.br
Na guia de pavimentos defini-se quais pavimentos possuem elementos inclinados, neste
caso o térreo.
(1) Clique sobre o pavimento “TERREO”.
(2) Defina a existência de elementos inclinados clicando sobre “Elemen. inclina-
do/pisos auxiliares”.
(3) Repita os itens (1) e (2) para os pavimentos 1PAV e 2PAV.
Finalmente, clique no botão “OK” para terminar a edição dos dados do edifício.
8.4. Acessando os Elementos Inclinados no Mode-
lador
Como o lançamento das vigas, pilares e lajes já foram efetuados, precisamos completar
o “Modelo Estrutural” fazendo o lançamento dos elementos inclinados. São eles: rampa
e escadas.
Exemplo 1 91
(1) Clique no pavimento “TERREO”.
(2) Ative o sistema “CAD/Formas”.
(3) Selecione o item “Modelo – Estrutural” na caixa de lista localizada na barra de fer-
ramentas do gerenciador.
(4) Clique no botão “Edição gráfica do desenho” para iniciar o modelador estrutural.
Assim que o comando é executado, a janela do Modelador Estrutural será aberta. Os
elementos estruturais do pavimento TERREO são mostrados.
92 Elementos Inclinados e Escadas - TQS
TQS Informática Ltda Rua dos Pinheiros 706 c/2 05422-001 São Paulo SP Tel (011) 3083-2722 Fax 3083-2798 www.tqs.com.br
Inicialmente iremos fazer o lançamento da rampa. Ela deverá ser apoiada em duas vigas
inclinadas em suas laterais e uma viga no início e fim da rampa (estas últimas já estão
lançadas).
Primeiramente devemos ativar a barra de ferramentas para “Elementos inclinados”.
(1) Clique sobre o botão “Barra de ferramentas de elemento inclinado”
Todos os comandos presentes nesta barra também podem ser acessados através do me-
nu “Inclinados”.
Exemplo 1 93
8.5. Inserindo a Rampa
Inicialmente vamos inserir as vigas inclinadas, cuja seção é de 20 x 50 cm e carregada
com 0,6 tf/m. Vamos definir a geometria através do botão “Dados de viga inclinada” ou
através do menu “Inclinados” – “Dados atuais p/ viga inclinada”.
(1) Clique no botão “Dados de viga inclinada”
ou
(2) Clique no menu “Inclinados” – “Dados atuais p/ viga inclinada”.
94 Elementos Inclinados e Escadas - TQS
TQS Informática Ltda Rua dos Pinheiros 706 c/2 05422-001 São Paulo SP Tel (011) 3083-2722 Fax 3083-2798 www.tqs.com.br
(1) Clique na guia “Seção/Carga”
(2) Defina a Largura da viga
(3) Defina a Altura da viga
(4) Defina a Carga distribuída na viga
(5) Clique no botão OK
Após a definição da geometria iremos inserir as viga inclinadas da rampa. A inserção
de vigas inclinadas é feita através do comando “Inclinados” – “Viga Inclinada”:
Após o comando ser acionado, surgirá a janela “Pavimento inferior de apoio do elemen-
to 3D”, onde deve ser indicado o pavimento onde as vigas inclinadas se apóiam, neste
caso a Fundação.
Exemplo 1 95
(1) Clique sobre o pavimento “Fundação”
(2) Clique sobre o botão “OK”
O comando pede para definirmos o ponto inicial da viga.
(1) Clique sobre o CG do pilar P5, aperte <ENTER>.
96 Elementos Inclinados e Escadas - TQS
TQS Informática Ltda Rua dos Pinheiros 706 c/2 05422-001 São Paulo SP Tel (011) 3083-2722 Fax 3083-2798 www.tqs.com.br
Automaticamente o “Modelador Estrutural” altera o pavimento atual para a Fundação
para definirmos o ponto final da viga inclinada.
(2) Clique sobre o CG do pilar P6.
Após a definição do segundo ponto o Modelador insere a viga VR1 e volta ao pavi-
mento TERREO.
OBS: as vigas inclinadas são denotadas pela sigla VR. Sua numeração é seqüencial
para todo o edifício.
Agora vamos inserir a segunda viga inclinada utilizando o mesmo processo. Utilizando
o mesmo comando: “Inclinados” – “Viga Inclinada”.
Exemplo 1 97
(1) Clique sobre o pavimento “Fundação”
(2) Clique sobre o botão “OK”
Agora os pontos inicial e final:
(1) Clique sobre o encontro da V3 com a V1 no pilar P1, aperte <ENTER>.
98 Elementos Inclinados e Escadas - TQS
TQS Informática Ltda Rua dos Pinheiros 706 c/2 05422-001 São Paulo SP Tel (011) 3083-2722 Fax 3083-2798 www.tqs.com.br
(2) Clique sobre o encontro da V1 com a V4 no pilar P2.
Desta forma os contornos da rampa ficam totalmente definidos.
Para a inserção da laje inclinada é necessário primeiramente definir sua seção e carga,
sendo utilizado para isso o comando “Inclinados” – “Dados atuais p/ laje inclinada”:
Exemplo 1 99
(1) Clique na guia “Seção/Carga”.
(2) Defina a espessura da laje da rampa como 12cm.
(3) Clique no botão “Alterar”.
(4) Defina o valor da Carga permanente como 0,40 tf/m2
.
(5) Defina o valor da Carga acidental como 0,20 tf/m2
.
(6) Clique sobre o botão “OK” da janela “Definição de Carregamentos”.
(7) Clique sobre o botão “OK” da janela “Dados de rampas”.
É necessário agora o lançamento da laje inclinada, para isso utiliza-se o comando “In-
clinados” – “Laje inclinada”.
100 Elementos Inclinados e Escadas - TQS
TQS Informática Ltda Rua dos Pinheiros 706 c/2 05422-001 São Paulo SP Tel (011) 3083-2722 Fax 3083-2798 www.tqs.com.br
(1) Clique sobre o pavimento “Fundação”
(2) Clique sobre o botão “OK”
É necessário agora indicar os elementos de contorno da laje inclinada.
OBS: Olhando atentamente o lançamento dos elementos do pavimento TÉRREO, po-
demos observar que as vigas VR1, VR2, V3 e V4 (do Sub-Solo) não formam um con-
torno fechado em planta. É necessário incluir na seleção de contornos os pilares P1 e
P2 para que as faces da laje inclinada fiquem totalmente definidas pelas faces dos ele-
mentos selecionados.
Primeiramente os elementos de contorno superiores:
(1) Clique sobre o segundo trecho da viga V3
(2) Clique sobre o pilar P1 e tecle <ENTER>
Em seguida os elementos de contorno inclinados:
Exemplo 1 101
(3) Clique sobre a viga inclinada VR1
(4) Clique sobre a viga inclinada VR2 e tecle <ENTER>
Por último os elementos de contorno inferiores:
(5) Clique sobre o segundo trecho da viga inclinada V4
(6) Clique sobre o pilar P2 e tecle <ENTER>
102 Elementos Inclinados e Escadas - TQS
TQS Informática Ltda Rua dos Pinheiros 706 c/2 05422-001 São Paulo SP Tel (011) 3083-2722 Fax 3083-2798 www.tqs.com.br
É necessário agora indicar um ponto sobre a laje e indicar uma linha na direção princi-
pal da laje inclinada, que neste caso será considerada como vertical:
(7) Clique sobre um ponto dentro dos limites da laje inclinada.
(8) Clique sobre uma das linhas verticais e tecle <ENTER>
Assim, definimos a laje inclinada deste Exemplo 1. É aconselhavél agora salvar as
alterações no pavimento TERREO com o comando “Arquivo” – “Salvar modelo estru-
tural”:
Exemplo 1 103
Para visualizarmos melhor o lançamento da laje inclinada e das vigas podemos entrar
no modelo 3D do edifício, para isso utilizamos o comando “Modelo” – “Visualização
3D”:
(1) Clique em Fundação como planta inicial.
(2) Clique em TERREO como planta final.
(3) Clique “OK”.
Utilizando as teclas de navegação, na barra de ferramentas superior, podemos visuali-
zar melhor a rampa. Note que a escada do TERREO para a fundação já foi lançada.
104 Elementos Inclinados e Escadas - TQS
TQS Informática Ltda Rua dos Pinheiros 706 c/2 05422-001 São Paulo SP Tel (011) 3083-2722 Fax 3083-2798 www.tqs.com.br
Para sair no Visualizador Tridimensional execute o comando “Arquivo” – “Sair”.
8.6. Inserindo a Escada do 2PAV
Apenas para demonstrar o lançamento de um lance simples de escada iremos lançar a
escada que começa no 2PAV e termina no 1PAV. As demais escadas já estão lançadas
neste Exemplo 1.
Os lances das escadas são apoiados em vigas inclinadas em suas laterais e em lajes (pa-
tamares) em seus extremos. Inicialmente vamos lançar os patamares da escada, em se-
guida as viga inclinadas e por último a escada.
Primeiramente vamos acessar o pavimento 2PAV com o comando “Modelo” – “Pavi-
mento atual”.
Exemplo 1 105
(1) Clique para abrir a lista de pavimentos.
(2) Selecione o pavimento 2PAV e clique.
Toda escada é definida pelos lances e seus respectivos patamares. Neste Exemplo 1, os
patamares têm espessura igual a da laje no pavimento (h = 12 cm). É necessário inserir
dois patamares, um de saída da escada (no 2PAV) e um de chegada (no 1PAV que já
foi inserido).
Vamos definir a seção e carga do patamar da escada com o comando “Inclinados” –
“Dados de Patamar”.
106 Elementos Inclinados e Escadas - TQS
TQS Informática Ltda Rua dos Pinheiros 706 c/2 05422-001 São Paulo SP Tel (011) 3083-2722 Fax 3083-2798 www.tqs.com.br
(1) Clique na guia “Seção/Carga”.
(2) Defina a espessura da laje da rampa como 12cm.
(3) Clique no botão “Alterar”.
(4) Defina o valor da Carga permanente como 0,40 tf/m2
.
(5) Defina o valor da Carga acidental como 0,20 tf/m2
.
(6) Clique sobre o botão “OK” da janela “Definição de Carregamentos”.
(7) Clique sobre o botão “OK” da janela “Dados de patamares de escadas”.
Para a inserção de patamares utiliza-se o comando “Inclinados” – “Patamar de escada”.
O comando pede para que seja definido um ponto sobre a laje e a direção principal da
laje.
Exemplo 1 107
(1) Clique sobre um ponto sobre os limites do patamar.
(2) Digite “0” e aperte <ENTER>, para definir a direção principal como sendo 0º.
É necessário agora lançar as vigas inclinadas onde o lance da escada se apoiará. Para
fazermos isso utiliza-se o comando “Inclinados” – “Viga inclinada”
Neste caso o pavimento inferior de apoio do elementos inclinado é o 1PAV.
108 Elementos Inclinados e Escadas - TQS
TQS Informática Ltda Rua dos Pinheiros 706 c/2 05422-001 São Paulo SP Tel (011) 3083-2722 Fax 3083-2798 www.tqs.com.br
(1) Clique no 1PAV.
(2) Clique no botão “OK”
(1) Clique para definir o primeiro ponto da viga e tecle <ENTER>.
A planta atual é automaticamente alterada para a definição do segundo ponto:
Exemplo 1 109
(2) Clique para definir o segundo ponto da viga inclinada.
A viga VR7 é gerada, agora é necessário definir a segunda viga inclinada, VR8. Execu-
te o comando “Inclinados” – “Viga inclinada” novamente, defina o 1PAV como pavi-
mento inferior de apoio do elemento inclinado e entre com os ponto da viga inclinada:
(1) Defina o primeiro ponto da viga e tecle <ENTER>.
110 Elementos Inclinados e Escadas - TQS
TQS Informática Ltda Rua dos Pinheiros 706 c/2 05422-001 São Paulo SP Tel (011) 3083-2722 Fax 3083-2798 www.tqs.com.br
(2) Defina o segundo ponto da viga inclinada.
Agora fazemos o lançamento do lance da escada utilizando o comando “Inclinados” –
“Lance de Escada”
O comando inicialmente pede o pavimento inferior de apoio do lance da escada, que
neste caso é o 1PAV.
Exemplo 1 111
(1) Clique no 1PAV.
(2) Clique no botão “OK”
Posteriormente são pedidos os elementos de contorno da escada. Primeiramente os su-
periores:
112 Elementos Inclinados e Escadas - TQS
TQS Informática Ltda Rua dos Pinheiros 706 c/2 05422-001 São Paulo SP Tel (011) 3083-2722 Fax 3083-2798 www.tqs.com.br
(1) Clique sobre o bordo do patamar no 2 PAV e tecle <ENTER>
Agora os contornos inclinados:
Exemplo 1 113
(2) Clique sobre a VR7.
(3) Clique sobre a VR8 e tecle <ENTER>.
E os contornos inferiores:
114 Elementos Inclinados e Escadas - TQS
TQS Informática Ltda Rua dos Pinheiros 706 c/2 05422-001 São Paulo SP Tel (011) 3083-2722 Fax 3083-2798 www.tqs.com.br
(4) Clique sobre o bordo do patamar no 1PAV e tecle <ENTER>.
E por último é necessário definir um ponto sobre a escada e sua direção principal, que
neste caso é 0º.
Exemplo 1 115
(5) Clique dentro dos limites do lance da escada.
(6) Digite “0” e tecle <ENTER>.
Agora é necessário definir o detalhamento da escada (número de degraus e dimensões).
Para isso editamos os dados da escada.
116 Elementos Inclinados e Escadas - TQS
TQS Informática Ltda Rua dos Pinheiros 706 c/2 05422-001 São Paulo SP Tel (011) 3083-2722 Fax 3083-2798 www.tqs.com.br
(1) Aperte <F6> sobre o título do lance da escada.
Exemplo 1 117
(1) Clique sobre a guia “Seção/Carga”.
(2) Clique sobre o botão “Visualizar”.
A janela “Dimensões de uma escada” é utilizada para o detalhamento da escada, sendo
que as dimensões e ajustes podem ser fornecidos nela.
(1) Digite o valor do passo, 27cm.
(2) Digite o valor do espelho, 18 cm.
(3) Aperte o botão “OK”.
(4) Aperte o botão “OK” da janela “Dados de escadas”.
OBS: Como as dimensões utilizadas não “fecham” o vão do lance perfeitamente, o
próprio programa já calcula o ajuste necessário, lançando este no patamar inferior.
Assim, terminamos a definição dos elementos inclinados deste Exemplo 1. É aconse-
lhável agora salvar as alterações no pavimento TERREO com o comando “Arquivo” –
“Salvar modelo estrutural”:
118 Elementos Inclinados e Escadas - TQS
TQS Informática Ltda Rua dos Pinheiros 706 c/2 05422-001 São Paulo SP Tel (011) 3083-2722 Fax 3083-2798 www.tqs.com.br
Para visualizarmos todo o edifício em 3D utilizamos o comando “Modelo” – “Visuali-
zação 3D”:
Exemplo 1 119
(1) Clique sobre a “Fundação” para Planta inicial.
(2) Clique sobre a “Cobertura” para Planta final.
(3) Aperte o botão “OK”.
120 Elementos Inclinados e Escadas - TQS
TQS Informática Ltda Rua dos Pinheiros 706 c/2 05422-001 São Paulo SP Tel (011) 3083-2722 Fax 3083-2798 www.tqs.com.br
Pode-se “Andar” pelo edifício através das ferramentas de navegação da barra de ferra-
mentas. Após visualizar o modelo 3D do edifício sai com o comando “Arquivo” – “Sa-
ir”
8.7. Calculando o Edifício
Na seqüência execute o comando “Arquivo” – “Sair”, salvando as alterações realizadas,
para fechar o Modelador Estrutural e voltar para o Gerenciador Principal do Sistema
CAD/TQS.
É possível calcular todo o edifício através de um único comando, chamado de “Proces-
samento Global” encontrado no menu “Processar”.
Exemplo 1 121
No gerenciador, ative o sistema CAD/Formas e execute o comando.
(1) Selecione “extração gráfica e processamento”
(2) Selecione “Desenhar planta de formas”
(3) Selecione “Esforços e desenho”
(4) Selecione “Dimensionamento, detalhamento, desenho”
(5) Selecione “Dimensionamento, detalhamento, desenho”
(6) Selecione “Dimensionamento, detalhamento, desenho”
(7) Selecione “Relatório geral de pilares”
(8) Clique no botão “OK”
122 Elementos Inclinados e Escadas - TQS
TQS Informática Ltda Rua dos Pinheiros 706 c/2 05422-001 São Paulo SP Tel (011) 3083-2722 Fax 3083-2798 www.tqs.com.br
Neste comando, todos os elementos do edifício (vigas, pilares, lajes e elementos incli-
nados) serão calculados, dimensionados e detalhados de acordo com o modelo estrutu-
ral e os critérios adotados.
8.8. Visualização do Resumo Estrutural
Após o processamento é possível visualizar um resumo geral que possui informações
relevantes do processamento, tais como: dados gerais do edifício, modelo estrutural
adotado e ações consideradas, estabilidade global e análise em serviço (ELS) e parâme-
tros qualitativos/quantitativos e consumos. A visualização do Resumo Estrutural possi-
bilita uma visão global rápida do comportamento da estrutura após o dimensionamento.
Utilize o comando: “Resumo Estrutural” no gerenciador para a visualização destes da-
dos:
Exemplo 1 123
8.9. Visualização dos Avisos e Erros
De volta ao gerenciador principal do Sistema CAD/TQS, execute o comando “Visuali-
zar” – “Avisos e erros” para verificar possíveis erros e as mensagens de avisos que o-
correram durante o processamento.
OBS: Neste exemplo há alguns erros leves e médios.
(1) Para fechar o “Visualizador de erros”
124 Elementos Inclinados e Escadas - TQS
TQS Informática Ltda Rua dos Pinheiros 706 c/2 05422-001 São Paulo SP Tel (011) 3083-2722 Fax 3083-2798 www.tqs.com.br
8.10. Visualização dos Resultados
De volta ao gerenciador principal do Sistema CAD/TQS, vamos visualizar a grelha do
pavimento TERREO.
(1) Selecione o pavimento TERREO na árvore do edifício
(2) Acesse o Grelha - TQS
(3) Acesse o “Visualizar” – “Visualizador de Grelhas – Espacial”
Exemplo 1 125
(1) Execute o comando “Arquivo” – “Sair”, para voltar ao gerenciador principal dos
Sistemas CAD/TQS.
No que tanto a rampa quanto a escada fazem parte do modelo do pavimento.
Vamos agora visualizar o pórtico espacial.
126 Elementos Inclinados e Escadas - TQS
TQS Informática Ltda Rua dos Pinheiros 706 c/2 05422-001 São Paulo SP Tel (011) 3083-2722 Fax 3083-2798 www.tqs.com.br
(1) Acesse o Pórtico - TQS
(2) Acesse o “Visualizar” – “Visualizador de pórticos” – “Estado limite último (ELU)”
Exemplo 1 127
(1) Execute o comando “Arquivo” – “Sair”, para voltar ao gerenciados dos Sistemas
CAD/TQS.
Note que as vigas inclinadas dos lances das escadas e da rampa fazem parte do modelo
de pórtico espacial.
Agora, vamos visualizar o desenho de armação positiva da lajes do TERREO para ob-
servar a armação da rampa.
128 Elementos Inclinados e Escadas - TQS
TQS Informática Ltda Rua dos Pinheiros 706 c/2 05422-001 São Paulo SP Tel (011) 3083-2722 Fax 3083-2798 www.tqs.com.br
(1) Acesse o Laje - TQS
(2) Selecione o pavimento TERREO na árvore do edifício
(3) Selecione o desenho de “ARPXXXX – Armação positiva de lajes”
(4) Clique no botão “Edição gráfica do desenho”.
Exemplo 1 129
(1) Execute o comando “Arquivo” – “Sair”, para voltar ao gerenciador principal dos
Sistemas CAD/TQS.
Para visualizar as armaduras das vigas inclinadas:
130 Elementos Inclinados e Escadas - TQS
TQS Informática Ltda Rua dos Pinheiros 706 c/2 05422-001 São Paulo SP Tel (011) 3083-2722 Fax 3083-2798 www.tqs.com.br
(1) Acesse o Viga – TQS
(2) Selecione o desenho de “00038001 – Viga 8001”
(3) Clique no botão “Edição gráfica do desenho”.
Exemplo 1 131
(1) Execute o comando “Arquivo” – “Sair”, para voltar ao gerenciador principal dos
Sistemas CAD/TQS.
OBS: A Sistema CAD/TQS não faz o detalhamento da armadura de vigas inclinadas
sendo imprescindível a edição destes desenhos.
E finalmente, vamos visualizar a armadura dimensionada para a escada.
132 Elementos Inclinados e Escadas - TQS
TQS Informática Ltda Rua dos Pinheiros 706 c/2 05422-001 São Paulo SP Tel (011) 3083-2722 Fax 3083-2798 www.tqs.com.br
(1) Acesse o Escada – TQS
(2) Selecione o desenho de “Escada-1 – Armação de escadas”
(3) Clique no botão “Edição gráfica do desenho”.
Exemplo 1 133
(1) Execute o comando “Arquivo” – “Sair”, para voltar ao gerenciador principal dos
Sistemas CAD/TQS.
8.11. Recapitulando o Exemplo
Vamos recapitular alguns dos itens importantes que foram vistos durante a resolução
deste exemplo:
Capítulo Item Visto
Acessando o Exemplo Como acessar um edifício dentro da árvore do programa
Editando Dados do Edi-
fício
Como adicionar elementos inclinados em um pavimento
já existente
Acessando os Elementos
Inclinados no Modelador
Como acessar a barra de ferramentas para elementos in-
clinados
Como acessar os comandos de elementos inclinados pelo
menu
Inserindo a Rampa
Como inserir vigas inclinadas
Como inserir uma laje inclinada
134 Elementos Inclinados e Escadas - TQS
TQS Informática Ltda Rua dos Pinheiros 706 c/2 05422-001 São Paulo SP Tel (011) 3083-2722 Fax 3083-2798 www.tqs.com.br
Como determinar os elementos de contorno de uma laje
inclinada
Como acessar o modelo tridimensional de um pavimento
Inserindo a Escada do
2PAV
Como inserir patamares de escadas
Como inserir vigas inclinadas
Como inserir um lance de escada
Como alterar os dados de um lance de escada
Como acessar o modelo tridimensional de um edifício
Calculando o Edifício
Como calcular o edifício inteiro através do Processamento
Global
Visualização dos Erros Como verificar os erros de um pavimento
Visualização dos Resul-
tados
Como visualizar a grelha de um pavimento
Como visualizar o pórtico de um edifício
Como visualizar a armação da rampa
Como visualizar a armação de uma viga inclinada
Como visualizar a armação de uma escada
Exemplo 2 135
9. Exemplo 2
Neste exemplo utilizaremos o processo simplificado presente dentro do Escada – TQS
para o dimensionamento, detalhamento e desenho de uma escada de dois lances e dois
patamares.
Este exemplo foi retirado da apostila CONCRETO ARMADO: ESCADAS da Escola
de Engenharia de São Carlos – USP, cujos autores são os prof. Melges, Pinheiro e Gi-
ongo.
9.1. Entendendo o Exemplo 2
A forma estrutural é apresentada abaixo:
570
22 22143 1438x30=240
2215515522
P1(22x40) P2(22x40)
P3(22x40) P4(22x40)
VE1(22x30)
VE3(22x30)
VT2(22x50)
VT1(22x50)
VE4(22x30)
L1
L2
L3
L4
VT3(22x50)
VT4(22x50)
Os carregamentos são: 0,16 tf/m2
de carga permanente e 0,3 tf/m2
de carga acidental
para os patamares e para os lances da escada. A espessura das lajes é de 10 cm. Os es-
pelhos tem dimensição de 16,67 cm, aproximadamente.
136 Elementos Inclinados e Escadas - TQS
TQS Informática Ltda Rua dos Pinheiros 706 c/2 05422-001 São Paulo SP Tel (011) 3083-2722 Fax 3083-2798 www.tqs.com.br
Vamos acessar a pasta “Escadas” dentro do 2PAV do Edifício MODESC
Exemplo 2 137
9.2. Acessando o Escadas – TQS / Processo Simpli-
ficado
(1) Clique sobre a pasta “Escadas” do 2PAV do Edifício MODESC.
(2) Acesse o Escada – TQS.
(1) Acesse o comando “Processar” – “Processo Simplificado”
138 Elementos Inclinados e Escadas - TQS
TQS Informática Ltda Rua dos Pinheiros 706 c/2 05422-001 São Paulo SP Tel (011) 3083-2722 Fax 3083-2798 www.tqs.com.br
9.3. Entrando com os Dados
(1) Clique sobre a guia “Geometria”.
(2) Clique sobre a opção “Dois lances”.
(3) Digite os valores da geometria da escada.
Exemplo 2 139
(1) Clique sobre a guia “Degraus”.
(2) Clique no botão “Visualizar”.
(3) Entre com o valor do passo, 30 cm.
(4) Entre com o valor do espelho, 16,67 cm.
(5) Clique no botão “OK”.
(1) Clique sobre a guia “Vinculações”.
(2) Defina as vinculações da escada: os patamares são apoiados tendo um bordo livre e
os lances de escada são apoiados nos extremos e na lateral externa e livre na lateral in-
terna.
140 Elementos Inclinados e Escadas - TQS
TQS Informática Ltda Rua dos Pinheiros 706 c/2 05422-001 São Paulo SP Tel (011) 3083-2722 Fax 3083-2798 www.tqs.com.br
(1) Clique sobre a guia “Carregamentos”.
(2) Defina os carregamentos permanentes, 0,16 tf/m2
.
(3) Defina os carregamentos acidentais, 0,30 tf/m2
.
Todos os dados necessários para o dimensionamento da escada foram inseridos. Agora
é necessário que o arquivo seja salvo para que possamos fazer o processamento destes
dados:
Exemplo 2 141
(1) Acesse o comando “Arquivo” – “Salvar”.
(2) Digite um nome para o arquivo.
(3) Aperte o botão “Salvar”
OBS: o arquivo da escada pelo processo simplificado deve sempre ser salvo em uma
pasta de “ESCADAS” referente a algum dos pavimentos.
142 Elementos Inclinados e Escadas - TQS
TQS Informática Ltda Rua dos Pinheiros 706 c/2 05422-001 São Paulo SP Tel (011) 3083-2722 Fax 3083-2798 www.tqs.com.br
9.4. Calculando a Escada
(1) Clique sobre a guia “Armaduras”
(2) Aperte o botão “Dimensionamento”
(3) Aperte o botão “Detalhamento”
9.5. Visualizando os Resultados
Ao clicar sobre o botão “Dimensionamento” são feitos os cálculos e gerado um relató-
rio de dimensionamento da escada, para visualizá-lo execute o comando “Armaduras” –
“Listagem do dimensionamento”.
Exemplo 2 143
Ao clicar sobre o botão “Detalhamento” é gerado um desenho de detalhamento da ar-
madura, que pode ser editado através do comando “Armaduras” – “Editar Desenho”.
144 Elementos Inclinados e Escadas - TQS
TQS Informática Ltda Rua dos Pinheiros 706 c/2 05422-001 São Paulo SP Tel (011) 3083-2722 Fax 3083-2798 www.tqs.com.br
Exemplo 3 145
10. Exemplo 3
Neste exemplo iremos colocar uma escada com dois lances apoiados em patamares no
edifício exemplo TQS MODPLA. Escolheremos o pavimento 4PAV, que se repete três
vezes. Como resultado, o detalhamento será o de uma escada com repetição.
Os patamares serão engastados e delimitados pelos pilares P5 e P6. O pavimento tem
pé-direito de 2.80m. Para que este pavimento possa receber elementos inclinados, e
para definir o nível do patamar 1.40m abaixo deste nível, será necessário primeiro defi-
nir esta condição no edifício:
146 Elementos Inclinados e Escadas - TQS
TQS Informática Ltda Rua dos Pinheiros 706 c/2 05422-001 São Paulo SP Tel (011) 3083-2722 Fax 3083-2798 www.tqs.com.br
Teremos os patamares L2 e L3 na planta 4PAV recebendo os lances de escadas. Como
os apoios serão de laje sobre laje, delimitaremos os contornos com fechamentos de bor-
dos. Vamos primeiro definir estes fechamentos planos e os patamares (comando "Lajes,
Apoios, Fechamentos de bordo"), primeiramente para o pavimento atual:
Exemplo 3 147
Repetimos essa operação para o piso auxiliar do pavimento, definindo assim os bordos
do patamar L2:
Como todos os lances do tipo menos o mais baixo se apoiam no tipo, o lance inferior da
escada será declarado apoiando no patamar do tipo. Por enquanto não é necessário defi-
nir o patamar no 3PAV.
148 Elementos Inclinados e Escadas - TQS
TQS Informática Ltda Rua dos Pinheiros 706 c/2 05422-001 São Paulo SP Tel (011) 3083-2722 Fax 3083-2798 www.tqs.com.br
Lançaremos patamares com espessura de 12 cm e sobrecargas de 0.4 tf/m2. É importan-
te que sejam lançados como patamares e não como lajes comuns, para formarem a ge-
ometria da escada. No menu de elementos inclinados, selecione "Dados de patamares":
A janela de dados de patamares e lances é semelhante à de escadas. Preste atenção para
que o nome atribuído à escada de todos os elementos que fazem parte dela seja o mes-
mo:
O comando de inserção de patamares funciona como o de inserção de uma laje comum.
Com este comando definiremos os dois patamares do tipo:
Exemplo 3 149
Os lances tem bordo livre e por isto são delimitados por fechamentos de bordo inclina-
dos. Precisamos de dois fechamentos, partindo da L3 e chegando na L2. O fechamento
de bordo parte da pavimento atual e vai até o pavimento selecionada nesta janela:
Comando: “Inclinados, Fechamento de bordo”
Os fechamentos de bordos são definidos por N pontos, onde o último está no pavimento
inferior de apoio. Como temos apenas uma reta entre os dois pavimentos, definimos o
primeiro ponto, apertamos <B3> e o segundo ponto no patamar inferior:
Linha múltipla - ponto 1 (ou FRXPDCLUW): <B1> no PT1
Linha múltipla - ponto 2 (ou FRXPDCLUW): <Enter>
Defina o ponto final no piso inferior: <B1> no PT2
Repetimos esta operação com os pontos PT3 e PT4 para fechar a outra lateral deste
lance (neste caso precisamos de uma construção geométrica de ponto médio). Precisa-
mos agora ligar o patamar L2 do tipo com o L3 no piso de baixo da mesma maneira,
mudando-se os pontos:
150 Elementos Inclinados e Escadas - TQS
TQS Informática Ltda Rua dos Pinheiros 706 c/2 05422-001 São Paulo SP Tel (011) 3083-2722 Fax 3083-2798 www.tqs.com.br
Já temos os contornos definidos para os lances de escadas. Vamos inseri-los em duas
etapas. Inicialmente inseriremos os lances sem os degraus dimensionados, em seguida
dimensionaremos os degraus alterando a escada.
Comando: "Inserir um lance de escada"
O comando pedirá a seleção do pavimento inferior onde será apoiado este lance. É a
mesma informação que demos para o fechamento de bordo:
A seguir selecionamos elementos de contorno do piso superior e inclinado, ainda na
pavimento atual (a linha de contorno do PT2 pode estar por debaixo das demais linhas):
Elementos de contorno do piso superior: <B1> no PT1
Elementos de contorno do piso superior: <B3>
Elementos do contorno inclinado: <B1> no PT2
Elementos do contorno inclinado: <B1> no PT3
Elementos do contorno inclinado: <B3>
Selecionamos agora os elementos de contorno no piso auxiliar:
Elementos do contorno inferior: <B1> no PT4
Elementos do contorno inferior: <B3>
Exemplo 3 151
Por último, entramos um ponto para posicionar o título do lance e a direção principal,
como numa laje comum:
Defina um ponto sobre a laje: <B1> no PT5
Linha na direção principal ou ângulo: <B3>
Isto define o lance E1. Repetindo esta operação a partir do piso auxiliar 1.40, definire-
mos o lance E2. Note que como este é um andar tipo, o piso final de apoio do E2 será o
4PAV/Nível zero e não o 3PAV/Nível zero.
Vamos agora dimensionar os degraus do E1. Pedindo a alteração do lance E1, na janela
"Seção/Carga" vemos os dados do degrau zerados, mas o espaço e desnível definidos.
Podemos chamar a calculadora com o botão "Visualizar":
152 Elementos Inclinados e Escadas - TQS
TQS Informática Ltda Rua dos Pinheiros 706 c/2 05422-001 São Paulo SP Tel (011) 3083-2722 Fax 3083-2798 www.tqs.com.br
Fixando-se o passo em 28 cm e apertando o botão "Sugerir", teremos calculado o espe-
lho de 17.5 cm e o ajuste inicial de 19cm. Note que o desenho esquemático do lance à
direita se altera dinamicamente conforme os valores à esquerda são alterados.
Basta agora repetir esta operação para os degraus do lance E2.
Exemplo 3 153
O pavimento abaixo do 4PAV é o 3PAV e não tem repetição, tendo este o Mezanino
abaixo. Para inserirmos uma escada no 3PAV o procedimento é o mesmo, com uma
pequena diferença: o lance de escada inferior se apoia no Mezanino, e por isto o pata-
mar do mezanino precisa ser definido também.
Após o lançamento das escadas do edifício salva-se o modelo estrutural.
10.1. Critérios de escadas
Como o patamar superior L3 é engastado, vamos adotar o critério de separar a armadu-
ra negativa do patamar superior da armadura positiva do lance, para evitar o superdi-
mensionamento da última.
Para fazer essa alteração utilizamos o menu “Editar, Critérios de escadas”.
Na guia “Dimensionamento” aperta-se o botão “Detalhamento”:
154 Elementos Inclinados e Escadas - TQS
TQS Informática Ltda Rua dos Pinheiros 706 c/2 05422-001 São Paulo SP Tel (011) 3083-2722 Fax 3083-2798 www.tqs.com.br
Na janela de detalhamento aperta-se o botão “Ancoragem da armadura inferior do lance
no patamar superior”. Na janela de opções adota-se a (0), ou seja: As armaduras inferio-
res do lance e superior do patamar superior são independentes. A armadura do lance
ancora no patamar:
Exemplo 3 155
10.2. Processamento da estrutura
O processamento global garante que todos os pavimentos sejam processados e respecti-
vos esforços sejam transferidos para escadas. Você pode processar manualmente um
pavimento para ter os esforços nas escadas da seguinte maneira:
 Se o pavimento tiver transições, o edifício já deve ter sido processado pelo menos
uma vez globalmente para que as cargas na base dos pilares que nascem entrem na
grelha.
 Processar o arquivo LDF do pavimento
 Gerar o modelo de grelha, até a transferência para lajes.
 Se uma escada do pavimento atual se apoiar em um patamar do pavimento de bai-
xo, processar este também, até a grelha.
Garantidos os esforços processados, você seleciona a aplicação "Escadas-TQS" no ge-
renciador ou a pasta de escadas para o paivmento atual, e executa o comando no menu
"Processar":
156 Elementos Inclinados e Escadas - TQS
TQS Informática Ltda Rua dos Pinheiros 706 c/2 05422-001 São Paulo SP Tel (011) 3083-2722 Fax 3083-2798 www.tqs.com.br
Como resultado, teremos o memorial de cálculo no menu "Visualizar" e um desenho
com o desenho de armaduras da escada:
TQS Informática Ltda
R. dos Pinheiros, 706 c/2 São Paulo SP 05422-001
Tel (011) 3083-2722 Fax (011) 3083-2798
tqs@tqs.com.br www.tqs.com.br

Tqs 07-escadas tqs

  • 1.
    Sumário I Escadas-TQS Elementos Inclinadose Escadas Sumário 1. Introdução..................................................................................................................1 1.1. Fluxograma de Elementos Inclinados...................................................................3 2. Lançamento de elementos inclinados.......................................................................4 2.1. Edição de dados do edifício..................................................................................4 2.2. Definição de pisos auxiliares................................................................................5 2.3. Elementos inclinados no Modelador.....................................................................6 2.4. Pisos auxiliares no Modelador..............................................................................6 2.4.1. Como inserir um elemento em um piso auxiliar............................................7 2.5. Menu de elementos inclinados..............................................................................7 2.6. Vigas inclinadas....................................................................................................9 2.6.1. Por que fornecer pontos intermediários.......................................................12 2.6.2. Algumas regras para vigas inclinadas..........................................................12 2.6.3. Numeração de vigas inclinadas ...................................................................12 2.7. Elementos inclinados no andar tipo....................................................................13 2.8. Rebaixo do topo do pilar ....................................................................................13 2.9. Fechamento de bordo inclinado..........................................................................14 2.10. Lajes inclinadas ................................................................................................16 2.10.1. Dados de lajes inclinadas...........................................................................16 2.10.2. Lançamento de uma laje inclinada ............................................................17 2.10.3. Numeração de lajes inclinadas...................................................................20 2.10.4. Notas sobre a seleção de elementos de contorno.......................................20 2.10.5. Cópia de Elementos Inclinados entre Pavimentos/Pisos ...........................21 2.10.6. Reidentificação de lajes inclinadas............................................................21 2.11. Pilaretes ............................................................................................................22 2.11.1. Comando para inserção de pilaretes ..........................................................22 2.11.2. Dados de Pilaretes .....................................................................................23 2.11.3. Visualização do pilaretes no Modelador....................................................24 2.11.4. Cópia de pilaretes entre plantas.................................................................24 2.11.5. Modelo de grelha com pilaretes.................................................................24 2.11.6. Modelo de pótico espacial com pilaretes...................................................25 2.11.7. Transferência de dados e esforços para o CAD/Pilar ................................25 3. Modelo estrutural com elementos inclinados........................................................26 3.1. Consideração do valor das cargas.......................................................................26 3.2. Grelha com elementos inclinados.......................................................................26 3.2.1. Barras no contorno livre das lajes................................................................28 3.2.2. Pórtico com elementos inclinados ...............................................................29 3.2.3. Esforços considerados no dimensionamento e detalhamento de lajes.........29
  • 2.
    II Elementos Inclinadose Escadas - TQS TQS Informática Ltda Rua dos Pinheiros 706 c/2 05422-001 São Paulo SP Tel (011) 3083-2722 Fax 3083-2798 www.tqs.com.br 4. Lançamento de escadas no Modelador ..................................................................31 4.1. Elementos que formam escadas..........................................................................31 4.2. Lances de escadas...............................................................................................31 4.2.1. Inserindo um lance.......................................................................................32 4.2.2. Cálculo com passo e espelho ideais.............................................................34 4.2.3. Cálculo com passo ou espelho fixos ............................................................35 4.3. Critérios para lançamentos de escadas................................................................36 4.4. Lançamento de patamares...................................................................................36 4.5. Lajes tratadas pelo Editor de Esforços................................................................37 5. Dimensionamento, Detalhamento e Desenho de escadas......................................38 5.1. Transferência de geometria.................................................................................39 5.2. Transferência de esforços ...................................................................................39 5.3. Modelo Estrutural ...............................................................................................39 5.4. Metodologia de cálculo.......................................................................................42 5.5. Critérios de dimensionamento, detalhamento e desenho ....................................44 5.5.1. Materiais ......................................................................................................44 5.5.2. Esforços .......................................................................................................44 5.5.3. Dimensionamento / Detalhamento...............................................................46 5.5.4. Processo simplificado ..................................................................................53 5.5.5. Desenho .......................................................................................................53 5.6. Processamento de escadas...................................................................................53 5.6.1. Listagem do processamento.........................................................................54 5.7. Editando o desenho.............................................................................................57 5.7.1. Detalhamento do patamar mais baixo..........................................................57 5.8. Calculadora de flexão composta normal.............................................................58 5.8.1. Dados de cálculo..........................................................................................59 5.8.2. Verificação de armadura..............................................................................60 5.8.3. Armadura necessária....................................................................................60 6. Dimensionamento e detalhamento de vigas e lajes inclinadas .............................61 6.1. Vigas inclinadas..................................................................................................61 6.1.1. Critérios de projeto ......................................................................................61 6.1.2. Processamento de vigas ...............................................................................65 6.1.3. Dimensionamento à flexão composta normal..............................................66 6.1.4. Relatório de dimensionamento à flexão composta.......................................67 6.2. Dimensionamento de lajes inclinadas.................................................................70 7. Processo Simplificado..............................................................................................72 7.1. Modelo de cálculo e critérios..............................................................................72 7.1.1. Critérios comuns com o cálculo por grelha .................................................75 7.1.2. Critérios comuns com o CAD/Lajes............................................................75 7.2. Processamento - Processo Simplificado..............................................................75 7.2.1. Arquivos envolvidos....................................................................................76 7.2.2. Geometria ....................................................................................................78 7.2.3. Degraus da escada........................................................................................79
  • 3.
    Sumário III 7.2.4. Vinculações.................................................................................................80 7.2.5. Carregamentos.............................................................................................80 7.2.6. Dimensionamento e Detalhamento..............................................................81 7.3. Detalhando e desenhando forma e armação........................................................82 7.3.1. Dimensionando com o CAD/Lajes..............................................................82 7.4. Compatibilização dos patamares e lances...........................................................85 8. Exemplo 1.................................................................................................................86 8.1. Entendendo o Exemplo 1....................................................................................86 8.2. Acessando o Exemplo 1 .....................................................................................87 8.3. Editando Dados do Edifício................................................................................89 8.4. Acessando os Elementos Inclinados no Modelador............................................90 8.5. Inserindo a Rampa..............................................................................................93 8.6. Inserindo a Escada do 2PAV............................................................................104 8.7. Calculando o Edifício .......................................................................................120 8.8. Visualização do Resumo Estrutural..................................................................122 8.9. Visualização dos Avisos e Erros.......................................................................123 8.10. Visualização dos Resultados...........................................................................124 8.11. Recapitulando o Exemplo...............................................................................133 9. Exemplo 2...............................................................................................................135 9.1. Entendendo o Exemplo 2..................................................................................135 9.2. Acessando o Escadas – TQS / Processo Simplificado......................................137 9.3. Entrando com os Dados....................................................................................138 9.4. Calculando a Escada.........................................................................................142 9.5. Visualizando os Resultados..............................................................................142 10. Exemplo 3.............................................................................................................145 10.1. Critérios de escadas ........................................................................................153 10.2. Processamento da estrutura.............................................................................155
  • 5.
    Introdução 1 1. Introdução Parteintegrante do sistema CAD/TQS VERSÃO 13, o sistema Escadas-TQS permite o lançamento de elementos inclinados que se apoiam em cotas diferentes no mesmo pa- vimento ou em pavimentos diferentes. O lançamento de elementos como escadas, lajes inclinadas, rampas, vigas inclinadas e pilaretes é possível a partir da VERSÃO 12. Com a utilização de elementos inclinados, os elementos estruturais de um pavimento acabam influindo nos elementos de outros pavimentos, e com isso o processamento global como um todo. Por isso antes do lançamento da estrutura é necessário a alteração das características do edifício, indicando em quais pavimentos esse tipo de elemento deve ser considerado. Se essa confirmação não for feita o sistema considera que o pa- vimento em questão não influi nos demais e as opção de elementos inclinados são desa- bilitadas para ele. No lançamento dentro do Modelador Estrutural, a principal diferença entre os elemen- tos inclinados e os planos é a necessidade de elementos de contorno em todas as suas faces formando um contorno fechado, ou seja, para se lançar uma laje (de rampa ou escada) é necessário que além dos pontos de início e fim sejam conhecidos os desen- volvimentos inclinados da laje nas duas laterais (através de bordos inclinados ou de vigas inclinadas). Dentro dos elementos inclinados, as escadas são tratadas de maneira especial, possuin- do ferramentas especificas para seu lançamento. As escadas podem ser definidas atra- vés de patamares e lances, podendo existir mais de uma escada em um mesmo pavi- mento. Há uma calculadora para geometria de escadas (passos e espelhos) que leva em conta a Equação de Conforto para a definição desta geometria. Há ainda, dentro do sistema Escadas-TQS, um módulo para o cálculo simplificado de escadas convencionais. O ‘Processo simplificado’ pode ser utilizado para o cálculo de escadas retas de pequenos vãos, quando estas não contribuírem significativamente na rigidez da estrutura e a critério do engenheiro. Este módulo possibilita o cálculo de es- forços (através do CAD/Lajes), dimensionamento, detalhamento e o desenho por um processo simplificado, podendo ser utilizado tanto para escadas pertencentes ao edifício (neste caso não há a consideração dos esforços no pórtico espacial) quanto para a veri- ficação e detalhamento de outras escadas. A possibilidade de se utilizar pilaretes na definição da escada faz com que um número maior de projetos de escadas possam ser lançados no Sistema-TQS, facilitando a análi- se de problemas de difícil solução. Esses pilaretes são dimensionados como um pilar comum, através do CAD/Pilar.
  • 6.
    2 Elementos Inclinadose Escadas - TQS TQS Informática Ltda Rua dos Pinheiros 706 c/2 05422-001 São Paulo SP Tel (011) 3083-2722 Fax 3083-2798 www.tqs.com.br Neste manual descreveremos a entrada de dados de elementos inclinados no edifício, e como lançar esses elementos através do Modelador. Em seguida, será mostrado os mo- delos de análise gerados pelo sistema, pórticos e grelhas espaciais. Complementando o manual, há três exemplos de lançamento de elementos inclinados. No primeiro, mostraremos o lançamento de uma rampa (viga e laje inclinados) e uma escada de lance único, seguindo passo-a-passo as etapas para o dimensionamento, deta- lhamento e desenhos, além dos critérios específicos para estes elementos. No segundo, demostraremos a utilização do módulo simplificado para o cálculo de escadas conside- rando um escada de dois lances. E finalmente, no terceiro, será demostrado o lançamen- to de uma escada de dois lances no modelador utilizando para isso “pisos auxiliares”. O objetivo principal destes exemplos é demonstrar o lançamento e funcionamento glo- bal do programa, desde a definição dos dados de entrada até a visualização das arma- ções calculadas. Não caberá dentro deles nenhuma análise ou discussão a respeito do modelo estrutural adotado bem como dos resultados obtidos. Maiores detalhes de fun- cionamento dos programas são apresentados em manuais específicos de cada sistema.
  • 7.
    Introdução 3 1.1. Fluxogramade Elementos Inclinados Junto a este manual é fornecido um fluxograma detalhando as etapas principais neces- sárias para se obter o dimensionamento de elementos inclinados (vigas inclinadas, ram- pas e escadas compostas por lances e patamares).
  • 8.
    4 Elementos Inclinadose Escadas - TQS TQS Informática Ltda Rua dos Pinheiros 706 c/2 05422-001 São Paulo SP Tel (011) 3083-2722 Fax 3083-2798 www.tqs.com.br 2. Lançamento de elementos inclinados Em edifícios com elementos inclinados, o elemento estrutural de uma pavimento pode interferir com o de outro, afetando o processamento global. Os modelos dos pisos incli- nados são gerados com 6 graus de liberdade, sendo resolvidos como pórticos espaciais. Por isto, antes da modelagem, devemos informar ao sistema, nos dados do edifício, os pavimentos que contém elementos inclinados. Os comandos para o lançamento destes elementos no Modelador somente são liberados nos pavimentos marcados desta manei- ra. 2.1. Edição de dados do edifício Por convenção, as plantas de formas são vistas de cima para baixo e representam os elementos estruturais até a planta de baixo. Da mesma maneira, elementos inclinados pertencem sempre ao pavimento de cima, e são lançados a partir deste. No Editor de Dados do Edifício, o item que define um pavimento com elementos incli- nados está marcado na figura:
  • 9.
    Lançamento de elementosinclinados 5 A marcação do item "Elementos inclinados" faz com que a definição dos Pisos Auxilia- res seja liberada. 2.2. Definição de pisos auxiliares É fato comum uma ligação entre pavimentos diferentes passar por patamares intermedi- ários (como numa escada). Duas alternativas possíveis para este lançamento são:  Criação de pavimentos em cotas intermediárias  Definir os patamares através de rebaixos (DFS) de vigas e lajes. A primeira alternativa é trabalhosa pois elimina a possibilidade de definir repetição de plantas (andar tipo). A segunda alternativa implica em vigas sobrepostas em pavimen- tos com cotas diferentes, que são difíceis de tratar interativamente. Os Pisos Auxiliares são uma terceira alternativa criada para facilitar este trabalho a par- tir da Versão 12. Estes pisos são definidos por um rebaixo em cada pavimento, e podem ser selecionados diretamente dentro do Modelador. Vigas e lajes podem ser definidos independentemente nos pisos auxiliares de um pavimento. Nos pavimentos marcados para receber elementos inclinados, é habilitado o botão “Pisos auxiliares”. Apertando-se este botão temos:
  • 10.
    6 Elementos Inclinadose Escadas - TQS TQS Informática Ltda Rua dos Pinheiros 706 c/2 05422-001 São Paulo SP Tel (011) 3083-2722 Fax 3083-2798 www.tqs.com.br Aperte "Novo" para introduzir um piso auxiliar associado ao pavimento atual. O piso auxiliar é definido por um rebaixo fornecido nesta tela, em metros. Atualmente são permitidos até 10 pisos auxiliares por planta de formas. Aperte "Alterar" para modificar o rebaixo de um piso auxiliar já definido. 2.3. Elementos inclinados no Modelador O Modelador trata pisos auxiliares e elementos inclinados de vigas, fechamentos de bordo, lajes e lances de escadas. Um elemento inclinado começa em um piso/cota e termina em outro piso/cota mais baixo. Não há restrição quanto ao número de pisos entre o ponto inicial do elemento e o ponto final. Existe uma exceção no andar tipo, comentada adiante. 2.4. Pisos auxiliares no Modelador Pisos auxiliares funcionam como pavimentos distintos. Vigas, lajes e fechamentos de bordo no plano estão na cota do pavimento ou em um piso auxiliar. Novos elementos são inseridos no piso e cota atual. Em um determinado pavimento e cota atual, apenas os elementos planos nesta cota aparecem. Na seleção do piso auxiliar, o nível do pavi- mento é o zero.
  • 11.
    Lançamento de elementosinclinados 7 A seleção da cota do piso é feita em dois lugares. Em primeiro lugar, no comando “Modelo, Pavimento atual”: E o mais prático, na barra de ferramentas geral: Na barra de ferramentas, o botão de avanço / retrocesso do piso atual pula de pavimento em pavimento. O botão correspondente no campo de cota atual do piso avança um piso auxiliar do pavimento de cada vez. 2.4.1. Como inserir um elemento em um piso auxiliar Vigas, fechamentos de bordo e lajes pertencem sempre a uma combinação pavimento / piso auxiliar. O nível zero de um pavimento é um caso particular de piso auxiliar de cota zero. Para que um destes elementos pertença a um piso auxiliar, basta tornar atual a pavimento/piso desejados e inserir o elemento. 2.5. Menu de elementos inclinados Todos os comandos para a colocação de elementos inclinados encontram-se sob o menu "Inclinados", e respectiva barra de ferramentas:
  • 12.
    8 Elementos Inclinadose Escadas - TQS TQS Informática Ltda Rua dos Pinheiros 706 c/2 05422-001 São Paulo SP Tel (011) 3083-2722 Fax 3083-2798 www.tqs.com.br Comando Ação Dados atuais p/viga inclinada Definir os dados da próxima viga inclinada a inserir Viga inclinada Inserir uma viga inclinada com os dados atuais Dados atuais p/laje inclinada Definir os dados da próxima laje inclinada a inserir Laje inclinada Inserir uma laje inclinada com os dados atuais Fechamento de bordo Inserir um fechamento de bordo inclinado Reidentificar contorno Identificar novamente os elementos que definem o contorno de uma laje inclinada, após uma modificação em um deles Ler dados de rampa/lance Ler dados de uma rampa/lance existente e os torna atuais Dados de escada Definir os dados da próxima escada a inserir Lance de escada Entrada de um lance inclinado de uma escada Dados de patamar Definir os dados do próximo patamar de escada a inse- rir Patamar de escada Inserir um patamar plano de uma escada. Dados atuais de pilaretes Definir os dados do próximo pilarete a ser inserir Inserir um pilarete abaixo do piso atual Inserir um pilarete que nascerá no piso inferior e mor- rerá no piso atual. A barra de ferramentas de elementos inclinados tem os mesmos comandos:
  • 13.
    Lançamento de elementosinclinados 9 2.6. Vigas inclinadas Vigas inclinadas são inseridas com os dados da viga inclinada atual. É preciso fornecer três tipos de elementos em sequência, separada por <B3>:  Ponto inicial na planta superior;  Zero a N pontos intermediários;  Ponto final na planta inferior. Como exemplo, vamos inserir uma viga inclinada que vai do "Tipo2" rebaixo zero até o "Tipo2", rebaixo 1.50. Ela vai apoiar em uma viga tanto no pavimento superior quanto inferior:
  • 14.
    10 Elementos Inclinadose Escadas - TQS TQS Informática Ltda Rua dos Pinheiros 706 c/2 05422-001 São Paulo SP Tel (011) 3083-2722 Fax 3083-2798 www.tqs.com.br Comando: “Inclinados, Viga Inclinada” Defina o primeiro ponto da viga ou <F2><R><P> : <B1> no PT1 Viga inclinada: defina os pontos intermediários : <B3>
  • 15.
    Lançamento de elementosinclinados 11 Defina o ponto final no piso inferior : <B1> no PT2 (Neste ponto, o modelador passa para o piso / rebaixo inferior para a entrada do ponto: No desenho do pavimento superior teremos parte da nova viga inclinada representada:
  • 16.
    12 Elementos Inclinadose Escadas - TQS TQS Informática Ltda Rua dos Pinheiros 706 c/2 05422-001 São Paulo SP Tel (011) 3083-2722 Fax 3083-2798 www.tqs.com.br 2.6.1. Por que fornecer pontos intermediários Embora seja menos comum, as vigas inclinadas podem mudar de direção em planta. É possível definir vigas em formato helicoidal e apoiar lajes nestas vigas. Por isto, o Mo- delador pede sempre por possíveis pontos intermediários. Se não existirem, simples- mente aperte <B3>. 2.6.2. Algumas regras para vigas inclinadas  Não tem ajuste automático das pontas. Deve-se definir as pontas da viga inclinada na posição exata, pois a posição do ponto inicial ou final afeta diretamente a incli- nação da viga.  Não podem apoiar em vigas nos pontos intermediários. Se for necessário apoiar vigas inclinadas sobre vigas em cotas diferentes, será necessário criar vigas incli- nadas e pisos auxiliares para cada cota onde se deseja fazer o apoio.  Podem interceptar pilares em nós intermediários. Estas intersecções subdividirão a barra do pilar no pórtico espacial.  Vigas definidas por um trecho são 50% visíveis no piso inicial e 50% no piso final. Vigas com mais de um trecho são visíveis até o último trecho, que é 50% visível.  As cargas sobre a viga inclinada devem ser lançadas sobre trechos visíveis 2.6.3. Numeração de vigas inclinadas Todos os elementos inclinados tem numeração única no edifício - isto significa que você não pode atribuir o mesmo número a duas vigas inclinadas diferentes em pavi- mentos diferentes do mesmo edifício. A numeração das vigas inclinadas não interfere com a das vigas planas. O comando de renumeração de elementos tem campos separa- dos para vigas e lajes inclinadas:
  • 17.
    Lançamento de elementosinclinados 13 O prefixo padrão das vigas inclinadas é "VR". 2.7. Elementos inclinados no andar tipo Como o andar tipo se repete, obrigatoriamente o elemento inclinado que sai de cima se encaixa com o de baixo no mesmo pavimento. A implicação disto é que torna-se obri- gatório definir o piso final de um elemento inclinado que passa para o piso de baixo, como sendo o próprio andar tipo onde este elemento está. Ou seja, um elemento incli- nado que pertença ao pavimento tipo deve ser lançado com piso inicial e piso final co- mo sendo o próprio pavimento, passando pelos respectivos pisos auxiliares. Existe uma lógica separada no sistema para tratar a intersecção dos elementos inclina- dos no tipo mais baixo com a planta inferior no pórtico espacial. 2.8. Rebaixo do topo do pilar Uma viga inclinada pode se apoiar numa sequência de pilares que rebaixam o topo jun- to com sua inclinação. O rebaixo de cada pilar deve ser calculado e fornecido manual- mente. A face do topo do pilar no último lance pode ser rebaixada através do atributo abaixo:
  • 18.
    14 Elementos Inclinadose Escadas - TQS TQS Informática Ltda Rua dos Pinheiros 706 c/2 05422-001 São Paulo SP Tel (011) 3083-2722 Fax 3083-2798 www.tqs.com.br 2.9. Fechamento de bordo inclinado Temos três alternativas para o apoio de lajes inclinadas: vigas, pilares e bordos livres definidos por fechamentos de bordo. Fechamentos de bordo são usados também para delimitar o apoio de uma laje sobre outra (ex: lance de escada sobre um patamar). O fechamento de bordo inclinado é feito exatamente da mesma maneira como uma vi- ga: um ponto inicial no piso superior, pontos intermediários opcionais e um ponto no piso inferior. Inserir um fechamento de bordo de laje inclinado : Linha múltipla - ponto 1 (ou FRXPDCLUW) : <M> <M> Ponto médio - Primeiro ponto de 2 : <B1> no PT1 Segundo ponto de 2 : <B1> no PT2
  • 19.
    Lançamento de elementosinclinados 15 Linha múltipla - ponto 2 (ou FRXPDCLUW) : <B3> Defina o ponto final no piso inferior : <SHF> <F10> <B1> no PT3 (Novamente, o modelador passa para o piso / rebaixo inferior para a entrada do ponto: Visualização da planta na cota zero:
  • 20.
    16 Elementos Inclinadose Escadas - TQS TQS Informática Ltda Rua dos Pinheiros 706 c/2 05422-001 São Paulo SP Tel (011) 3083-2722 Fax 3083-2798 www.tqs.com.br Embora o fechamento de bordo seja armazenado como linhas separadas, é importante que o bordo inclinado seja definido de ponta a ponta de uma só vez - para que as cotas Z sejam calculadas corretamente ao longo do percurso. 2.10. Lajes inclinadas Lajes inclinadas não podem ser reconhecidas automaticamente no pavimento, pois têm elementos de pisos diferentes em seu contorno. Na definição da laje inclinada, todos os elementos que fazem parte do contorno, inclusive pilares, precisam ser selecionados de modo a formar um contorno fechado para a laje. Caso o contorno não forme um polígo- no fechado, o modelador acusará erro. Se qualquer elemento de contorno da laje inclinada for modificado, o Modelador acusa- rá alteração de contorno na consistência e pedirá a reidentificação do contorno (veja o comando "Reidentificar contornos" do menu "Inclinados"). 2.10.1. Dados de lajes inclinadas Lajes inclinadas são sempre maciças. Nos pavimentos com lajes nervuradas, as lajes inclinadas devem ser discretizadas com formas de nervuras ou deixadas para discretiza- ção automática (mas sem garantia de continuidade entre as lajes) pelo gerador de gre- lhas. O comando "Inclinados – Lajes inclinadas - Dados atuais p/laje inclinada" permite a definição da espessura da laje:
  • 21.
    Lançamento de elementosinclinados 17 2.10.2. Lançamento de uma laje inclinada O lançamento é feito através de 6 entradas nesta ordem: a definição do pavimento/piso inferior, os elementos de contorno do piso superior, do contorno inclinado e do piso inferior, posição do texto e o ângulo principal da laje: Comando : "Inclinados, Laje inclinada" Inserir uma laje inclinada: Selecione elementos de contorno do piso superior : <B1> no PT1 Selecione elementos de contorno do piso superior : <B3>
  • 22.
    18 Elementos Inclinadose Escadas - TQS TQS Informática Ltda Rua dos Pinheiros 706 c/2 05422-001 São Paulo SP Tel (011) 3083-2722 Fax 3083-2798 www.tqs.com.br Selecione elementos do contorno inclinado : <B1> no PT2 Selecione elementos do contorno inclinado : <B1> no PT3 Selecione elementos do contorno inclinado : <B3> Selecione elementos do contorno inferior : <B1> no PT4 Selecione elementos do contorno inferior : <B3>
  • 23.
    Lançamento de elementosinclinados 19 Defina um ponto sobre a laje : <B1> no PT5 Linha na direção principal ou o ângulo ou <ENTER> : <B3>
  • 24.
    20 Elementos Inclinadose Escadas - TQS TQS Informática Ltda Rua dos Pinheiros 706 c/2 05422-001 São Paulo SP Tel (011) 3083-2722 Fax 3083-2798 www.tqs.com.br 2.10.3. Numeração de lajes inclinadas Assim como as vigas inclinadas, lajes inclinadas tem numeração global e independente das lajes horizontais. O comando de renumeração de elementos tem um item separado para lajes inclinadas. Os títulos automáticos para as lajes inclinadas são "Rn", enquanto que para os lances de escadas são "En". 2.10.4. Notas sobre a seleção de elementos de contorno Como o reconhecimento do contorno das lajes inclinadas não é automático, é especial- mente importante que todos os elementos que recebam a laje sejam selecionados. Veja no exemplo abaixo um pilar que faz parte do contorno e precisa ser selecionado: Durante o processo de seleção de elementos, se não for formado um contorno fechado, o Modelador emitirá a mensagem:
  • 25.
    Lançamento de elementosinclinados 21 E pedirá novamente a seleção de elementos. 2.10.5. Cópia de Elementos Inclinados entre Pavimen- tos/Pisos Quando é necessário a cópia de elementos inclinados de um pavimento/piso para outro é possível utilizar o comando “Copiar Planta”. Nele há a possibilidade da cópia de ape- nas os elementos inclinados de uma planta para outra: A cópia de elementos inclinados funciona exatamente como a cópia de quaisquer outros elementos, ou seja, é necessário que na planta “destino” não haja outros elementos in- clinados. 2.10.6. Reidentificação de lajes inclinadas Sempre que possível o sistema fará a reidentificação dos contornos das lajes inclinadas em que qualquer um dos seus elementos de contorno tenha sido alterado ou no caso de cópia de elementos inclinados entre pavimentos/pisos. Mas há casos onde essa reidenti- ficação não é automática, sendo necessário a reidentificação manual dos elementos de contorno. Caso uma das lajes não tenha seus contornos definidos, na fase de consistên- cia de dados será emitida a mensagem:
  • 26.
    22 Elementos Inclinadose Escadas - TQS TQS Informática Ltda Rua dos Pinheiros 706 c/2 05422-001 São Paulo SP Tel (011) 3083-2722 Fax 3083-2798 www.tqs.com.br A laje inclinada xxx teve seu contorno modificado, é preciso reidentifica-lo Isto pode ser feito pelo comando: 2.11. Pilaretes Além de elementos como vigas e lajes inclinadas, também foi inserido nesta versão do Sistema CAD/TQS os elementos pilaretes, que têm como objetivo a ligação entre vigas de pisos auxiliares. 2.11.1. Comando para inserção de pilaretes Dentro do Modelador Estrutural os comandos para inserção de pilaretes são "Dados atuais de pilaretes" e "Inserir um pilarete abaixo do piso atual". Estes comandos estão disponíveis no menu “Inclinados” e também na barra de ferramentas de elementos in- clinados:
  • 27.
    Lançamento de elementosinclinados 23 Não há comando para ler dados atuais de pilaretes. Atualmente, isto pode ser feito com o novo comando "Ler e tornar atual um elemento", do menu "Modelo". 2.11.2. Dados de Pilaretes Pilaretes seguem a numeração dos demais pilares do edifício. Nos dados de pilaretes apenas três janelas estão disponíveis. Na janela "Modelo" podemos definir apenas se o pilarete nasce em viga ou em outro pilar:
  • 28.
    24 Elementos Inclinadose Escadas - TQS TQS Informática Ltda Rua dos Pinheiros 706 c/2 05422-001 São Paulo SP Tel (011) 3083-2722 Fax 3083-2798 www.tqs.com.br Diferentemente dos pilares, que podem nascer e morrer em qualquer planta do edifício, independentemente da planta atual, os pilaretes são definidos sempre morrendo no piso atual, e nascendo no piso auxiliar definido imediatamente abaixo. 2.11.3. Visualização do pilaretes no Modelador Naturalmente os pilaretes são visíveis onde foram definidos e no piso auxiliar imedia- tamente abaixo. Como pilaretes podem ser definidos em andar tipo, ocorrerá o seguinte:  O pilarete definido no piso auxiliar mais baixo aparecerá também no piso auxiliar zero;  O pilarete definido no piso auxiliar mais baixo aparecerá no piso zero da planta abaixo do tipo;  O pilarete definido no piso auxiliar mais baixo da planta acima do tipo não apare- cerá no andar tipo (embora efetivamente seja ligada a ele). 2.11.4. Cópia de pilaretes entre plantas O comando "Copiar plantas" copia pilaretes (mas não pilares), classificando-os como "elementos inclinados". 2.11.5. Modelo de grelha com pilaretes Só está prevista a discretização do modelo de grelha com pilaretes para o modelo de grelha de escadas complementado pelas grelhas superior e inferior (tripla grelha, atual- mente o “padrão” do Sistema CAD/TQS). No pavimento mais baixo deste modelo, o pilarete é fixado por uma restrição de apoio.
  • 29.
    Lançamento de elementosinclinados 25 2.11.6. Modelo de pótico espacial com pilaretes Os pilaretes entram no modelo do pórtico espacial, assim como nas grelhas. Na interfa- ce do pavimento tipo com o superior, o gerador do modelo pode acrescentar uma barra rígida caso não haja continuidade de apoio entre os pavimentos. 2.11.7. Transferência de dados e esforços para o CAD/Pilar Os pilaretes são pilares de um único lance, sendo passados de acordo para o CAD/Pilar. No caso dos pavimentos tipo, o sistema determina o máximo esforço no topo e na base dos pilaretes ao longo dos lances e grava um único lance a ser detalhado. Esta regra pode não funcionar bem em pavimentos tipo onde haja variação acentuada nos esforços dos pilaretes, e pode exigir correção manual no detalhamento.
  • 30.
    26 Elementos Inclinadose Escadas - TQS TQS Informática Ltda Rua dos Pinheiros 706 c/2 05422-001 São Paulo SP Tel (011) 3083-2722 Fax 3083-2798 www.tqs.com.br 3. Modelo estrutural com elementos in- clinados Foram feitas alterações no processamento de edifícios devido aos elementos inclinados. Como pisos de cima interferem com pisos de baixo, o processamento passou a ser feito de cima para baixo. 3.1. Consideração do valor das cargas As cargas distribuídas sobre elementos inclinados seguem o esquema: Cargas verticais são consideradas distribuídas em planta, linearmente ou por área. O peso próprio por sua vez é considerado em toda a extensão inclinada. As resultantes são projetadas e lançadas nas componentes ortogonais Fz e Fx do sistema local do elemen- to. 3.2. Grelha com elementos inclinados Para viabilizar a resolução da estrutura, temos a discretização separada dos pavimentos em grelhas, e a discretização global de um pórtico sem lajes, mas com simulação de diafragma rígido e de reações provenientes dos modelos de grelha. No edifício com pavimentos inclinados, os elementos de uma grelha podem interagir com os de outra. Esta interação é feita de maneira simplificada, através de condições de contorno criadas nos pavimentos inferiores.
  • 31.
    Modelo estrutural comelementos inclinados 27 As grelhas com elementos inclinados tem 6 graus de liberdade. O sistema gera coorde- nadas 3D dos pontos intermediários da laje em função do contorno. As seguintes condições de contorno foram criadas:  Bordos livres foram discretizados em barras de meia largura do espaçamento (crité- rio de lajes planas).  O apoio de laje inclinada em viga sobre o pavimento inferior faz com que uma viga fictícia seja criada. Esta viga apoia sobre pilares retangulares fictícios da largura da viga e comprimento do apoio original.  O apoio de uma viga inclinada sobre o pavimento inferior é feito através de um pilar fictício quadrado com a mesma largura da viga.  Uma grelha que recebe uma viga inclinada vinda de um piso superior, recebe uma carga. A viga inclinada é tratada como se fosse um pilar que nasce em transição e sua reação (somente vertical) é lida do pórtico espacial.  Uma viga ou laje que recebe uma laje inclinada do piso superior, recebe por reco- nhecimento geométrico a reação da ponta de cada extremidade da laje inclinada como carga, transformada do sistema local da barra da laje inclinada para o sistema local da barra do piso inferior. Estas reações são lidas do resultado do processa- mento de grelhas aonde está a laje. Note que um piso pode receber lajes inclinadas vindas de mais de um pavimento de formas diferente.
  • 32.
    28 Elementos Inclinadose Escadas - TQS TQS Informática Ltda Rua dos Pinheiros 706 c/2 05422-001 São Paulo SP Tel (011) 3083-2722 Fax 3083-2798 www.tqs.com.br  Nos pavimentos com repetição, as barras do pavimento inferior são ligadas por barras rígidas ao elemento na cota zero que receberá o mesmo elemento vindo da repetição superior. 3.2.1. Barras no contorno livre das lajes Os contornos de lajes com bordo livre podem ser fechados por uma barra sem carga e com largura igual a uma fração das demais barras da malha. Este fechamento é contro- lado pelo critério de lajes planas:
  • 33.
    Modelo estrutural comelementos inclinados 29 3.2.2. Pórtico com elementos inclinados Estas são as implicações da existência de elementos inclinados no pórtico:  Barras de pilares são quebradas quando recebem apoio de vigas em piso auxiliar.  Barras de pilares são quebradas quando interceptam vigas inclinadas em nós inter- mediários  Nos apoios de lajes inclinadas sobre vigas inferiores, a carga da laje é transferida para as vigas, com transformação de um sistema local para outro.  Existe uma lógica especial para transferir as cargas da laje inclinada que vem do andar tipo para a viga do piso inferior.  As reações das vigas inclinadas apoiadas sobre vigas são acumuladas no processa- mento do pórtico para serem transferidas para grelhas. 3.2.3. Esforços considerados no dimensionamento e deta- lhamento de lajes A análise da grelha espacial, com 6 graus de liberdade, resultará possivelmente em 6 esforços solicitantes nas barras. O dimensionamento realizado pelo sistema considera apenas 3 ou 4 destes esforços: a força cortante Fz, o momento fletor My e a força nor- mal Fx. O momento torsor Mx é considerado de maneira padrão, através da majoração dos esforços de flexão com o método aproximado de Wood & Armer. Isto limita o tipo de dimensionamento e detalhamento de lajes inclinadas e escadas aos casos usuais de inclinação sem mudança de direção em planta. Os casos onde o momento lateral e/ou a força lateral sejam importantes (ex: rampas helicoidais), devem ser verificados e di- mensionados manualmente. O engenheiro pode a seu critério (ex: na existência de pequenos vãos, carregamentos usuais, inclinações baixas) considerar a hipótese redistribuição de esforços normais por redução da rigidez axial das barras das lajes inclinadas. Isto é feito através do item "Consideração da área da seção transversal das lajes inclinadas", na aba de "Plastifica- ções", dos critérios de laje plana do Grelha-TQS:
  • 34.
    30 Elementos Inclinadose Escadas - TQS TQS Informática Ltda Rua dos Pinheiros 706 c/2 05422-001 São Paulo SP Tel (011) 3083-2722 Fax 3083-2798 www.tqs.com.br
  • 35.
    Lançamento de escadasno Modelador 31 4. Lançamento de escadas no Modelador 4.1. Elementos que formam escadas Escadas não são elementos isolados dentro do Modelador, mas um agrupamento. Uma escada é formada por um ou mais lances e zero ou mais patamares. A planta de formas de um pavimento pode conter uma ou mais escadas. Tanto lances quanto patamares de escadas nada mais são que lajes com algumas propri- edades diferentes. Para o Modelador reconhecer os elementos que pertencem a uma mesma “prumada” de escada é necessário que estes elementos possuam a mesma pro- priedade chamada de “Identificação” da escada, que aparece na janela de “Identifica- ção” nos “Dados de escada”: É muito importante identificar corretamente os lances e patamares para que possam ser transferidos para o dimensionamento, detalhamento e desenho. A falta, ou erro, de iden- tificação desses elementos levara o sistema a não considerá-los como uma estrutura contínua durante o dimensionamento/detalhamento, por exemplo: no caso de um pata- mar fará com que os ferros do lance não sejam ancorados nele. 4.2. Lances de escadas No lançamento dos lances vale toda a lógica de inserção de lajes inclinadas. O comando "Inclinados, Dados de escada" mostra a seguinte tela:
  • 36.
    32 Elementos Inclinadose Escadas - TQS TQS Informática Ltda Rua dos Pinheiros 706 c/2 05422-001 São Paulo SP Tel (011) 3083-2722 Fax 3083-2798 www.tqs.com.br Os dados de degraus (passo, espelho e ajuste) não precisam ser fornecidos numa etapa inicial. O espaço e desnível da escada são normalmente calculados pelo programa de- pois que ela está inserida na forma e é editada. O que se faz usualmente é inserir a laje definindo o seu contorno para depois editá-la e definir os valores corretos dos degraus. O botão "Visualizar" aciona uma calculadora que auxilia o cálculo do passo e espelho ideal. Vamos mostrar como funciona no próximo exemplo. 4.2.1. Inserindo um lance Definiremos uma escada com espessura de 10 cm e identificação "Escada-1" através do comando "Inclinados, Dados de escada". Depois com o comando "Inclinados, Lance de escada" definiremos o piso do patamar inferior e os elementos de contorno: O ponto PT1 define o elemento de contorno no nível superior. Os pontos PT2 e PT3 os elementos inclinados, e o ponto PT4 o contorno do nível inferior.
  • 37.
    Lançamento de escadasno Modelador 33 Note que o lance da escada apoia nos patamares inferior e superior. A geometria destes patamares precisa estar definida com fechamentos de bordo, que serão selecionados. Criamos o lance E5 que neste ponto não tem degraus. Ao editar os dados do lance, o espaço ocupado aparece calculado e podemos apertar o botão "Visualizar" da janela "Seção/Carga:" Isto nos leva à calculadora de escadas. Esta calculadora nos permite calcular os valores de espelho, passo e ajuste da escada, procurando obedecer os parâmetros comuns de conforto. A calculadora aparece deste modo:
  • 38.
    34 Elementos Inclinadose Escadas - TQS TQS Informática Ltda Rua dos Pinheiros 706 c/2 05422-001 São Paulo SP Tel (011) 3083-2722 Fax 3083-2798 www.tqs.com.br Somente os campos "Passo", "Espelho" e "Ajuste" farão parte dos dados finais da esca- da. Os demais poderão ser usados no cálculo destes valores acionado pelo botão "Suge- rir". No grupo "Cálculo de dimensões", podemos fixar ou liberar a variação do espelho e do passo da escada. Assim teremos 4 possibilidades de cálculo, discutidas em seguida. Qualquer que seja o resultado, o Modelador indica no quadro se a escada obedece à "Equação do Conforto", o número de degraus gerados e o valor do ajuste horizontal final se necessário. 4.2.2. Cálculo com passo e espelho ideais Se o passo e o espelho da escada estiverem livres para pesquisa, tentaremos atender aqui às chamadas inequações ou "Equação do Conforto": 60 ≤ Passo + 2 x Espelho ≤ 64
  • 39.
    Lançamento de escadasno Modelador 35 Variando os valores do passo e espelho, o Modelador escolherá um par que atenda às inequações, e ao mesmo tempo, o mais próximo possível dos valores de passo e espe- lhos ótimos definidos no quadro. Todos os valores usados inicialmente pela calculadora vem do arquivo de critérios de projeto de formas (incluindo os limites acima, veja adi- ante). Conforme o espaço disponível, pode não ser possível atender às inequações si- multaneamente, o que levará o programa a arbitrar os valores. O esquema vertical da escada é regerado em tempo real conforme os valores de passo e espelho são alterados. Se os valores definidos não resultarem em uma geometria corre- ta, nenhuma escada será desenhada. Os valores finais são arredondados pelo fator fornecido, e qualquer diferença, se hou- ver, será lançada no último degrau. A diferença ou ajuste horizontal pode ser passada em parte ou integralmente para o primeiro passo, através da definição do ajuste hori- zontal no grupo "Lance". 4.2.3. Cálculo com passo ou espelho fixos O número de degraus será calculado com o valor fixo, e o outro valor deduzido. Se houver ajuste, será lançado no último degrau. Se ambos os valores forem fixados, o programa apenas fará uma verificação da geome- tria da escada e de qualquer ajuste necessário.
  • 40.
    36 Elementos Inclinadose Escadas - TQS TQS Informática Ltda Rua dos Pinheiros 706 c/2 05422-001 São Paulo SP Tel (011) 3083-2722 Fax 3083-2798 www.tqs.com.br 4.3. Critérios para lançamentos de escadas Os valores iniciais usados na Equação do Conforto, arredondamentos, etc estão defini- dos no arquivo de critérios de projeto de formas: Estes valores são os mesmos que aparecem no grupo "Cálculo de dimensões", da calcu- ladora de escadas. 4.4. Lançamento de patamares Os dados do patamar a ser inserido e o comando para inserir um patamar estão no menu "Inclinados": O patamar é uma laje maciça comum. Entretanto, se for definido como laje comum, não será transferido para o dimensionamento, detalhamento e desenho de escadas.
  • 41.
    Lançamento de escadasno Modelador 37 4.5. Lajes tratadas pelo Editor de Esforços A grelha espacial gerada pelo Grelha-TQS inclui todos os elementos do pavimento, incluindo lances e patamares. O Editor de Esforços entretanto dimensiona, detalha e desenha as lajes que não pertençam a escadas. Lances e patamares são detalhados ex- clusivamente pelo módulo Escadas-TQS.
  • 42.
    38 Elementos Inclinadose Escadas - TQS TQS Informática Ltda Rua dos Pinheiros 706 c/2 05422-001 São Paulo SP Tel (011) 3083-2722 Fax 3083-2798 www.tqs.com.br 5. Dimensionamento, Detalhamento e Desenho de escadas O modelo de escadas lançado pelo Modelador é transferido para processamento pelo módulo de Dimensionamento, Detalhamento e Desenho de escadas, denominado Esca- das-TQS. Os comandos deste sistema estão nos menus "Editar", "Processar" e "Visuali- zar" do gerenciador, acionado pelo botão: No ambiente do edifício existe uma pasta ESCADAS abaixo da pasta de pavimento, aparecendo na árvore do painel esquerdo do gerenciador: Em edifícios anteriores a Versão 12, é necessário regravar os dados do edifício para que a pasta “Escadas” seja inserida na árvore. A geometria e os esforços nas escadas de um pavimento são transferidos automatica- mente para a pasta de escadas sob o pavimento. Todo o processamento de dimensiona- mento, detalhamento e desenho é feito a partir desta pasta.
  • 43.
    Dimensionamento, Detalhamento eDesenho de escadas 39 5.1. Transferência de geometria As informações de geometria de escadas são armazenadas no arquivo ESCADAS.DAT. Este arquivo é gravado nos pavimentos onde existam escadas lançadas, sempre que o modelo do pavimento for salvo no disco pelo Modelador, ou que seja, efetuado o pro- cessamento de "Extração gráfica de formas". 5.2. Transferência de esforços Os esforços usados no cálculo de escadas são armazenados no arquivo ESCESF.DAT. Este arquivo é gravado durante o processamento de transferência de esforços de grelha para lajes. Quando um lance se apoia em um patamar no pavimento inferior, a menos dos andares tipo, os esforços neste patamar são calculados na grelha do pavimento inferior. Por isto, o dimensionamento da escada depende de outras plantas processadas previamente. É ideal que o edifício tenha sido processado globalmente antes de se iniciar a etapa de dimensionamento de escadas. 5.3. Modelo Estrutural O modelo estrutural padrão adotado pelo Sistema CAD/TQS para a grelha (pórtico) de plantas discretizadas com lajes planas ou nervuradas e escadas é composto pela grelha (pórtico) do pavimento mais as grelhas (pórtico) dos pavimentos inferior e superior. Estas últimas são compostas apenas pelas vigas carregadas com distribuição de cargas simplificada, e pelas lajes de patamares e lances de escadas. Neste caso a ligação entre os pavimentos é representada com maior precisão, mas gera um modelo mais comple- xo.
  • 44.
    40 Elementos Inclinadose Escadas - TQS TQS Informática Ltda Rua dos Pinheiros 706 c/2 05422-001 São Paulo SP Tel (011) 3083-2722 Fax 3083-2798 www.tqs.com.br É possível optar pela representação dos pavimentos por grelhas simples, onde apenas os elementos do pavimento são discretizados e a influência dos pavimentos superior e in- ferior não é rigorosamente considerada, sendo utilizadas condições de contorno apro- ximadas para a representação dos demais pavimentos. Esse modelo é mais simples, gerando um processamento mais rápido, mas é menos preciso, o que pode levar a esfor- ços não adequados em algumas ligações. O critério que controla o modelo estrutural do pavimento com escadas está nos “Crité- rios gerais de grelha” – “Escadas” – “Modelo de Grelha de Escadas”:
  • 45.
    Dimensionamento, Detalhamento eDesenho de escadas 41 Esse modelo só funciona para um pavimento se os pavimentos inferior e superior tive- rem lajes discretizadas. Atualmente, se um deles (superiror ou inferior) for grelha so- mente de vigas, o modelo do pavimento será considerado sem a presença dos pavimen- tos adicionais. Por padrão, o visualizador de grelhas mostra as barras das grelhas adicionais inferior e superior em cinza, sendo que estas barras não apresentam diagramas de esforços solici- tantes ou deslocamentos. Caso o usuário queira ter acesso às características dessas gre- lhas de pavimentos adicionais é possível “desbloqueá-las” no visualizador, utilizando- se, para isso, o comando: “Visualizar” – “Parâmetros de Visualização” – “Complemen- tos” – “Elementos auxiliares” ou <Ctrl><Y>:
  • 46.
    42 Elementos Inclinadose Escadas - TQS TQS Informática Ltda Rua dos Pinheiros 706 c/2 05422-001 São Paulo SP Tel (011) 3083-2722 Fax 3083-2798 www.tqs.com.br 5.4. Metodologia de cálculo Lances e patamares são tratados uniformemente como lajes de seção retangular. Os esforços obtidos da grelha espacial da escada são agrupados por laje e por direção em três posições (iguais a terços do vão): inicial, intermediária e final, correspondendo aos esforços nos apoios e no meio do vão.
  • 47.
    Dimensionamento, Detalhamento eDesenho de escadas 43 Para cada região, são obtidos valores de momentos máximos e mínimos e normais má- ximas e mínimas. Nos pontos de momento máximo, a normal é concomitante, assim como nos pontos de normal máxima, os momentos são concomitantes. A princípio, é feito uma envoltória de armaduras resultante do dimensionamento de cada uma das regiões para os esforços máximos obtidos, e os resultados compatibilizados entre as regiões, conforme o detalhamento da escada. Nas grelhas espaciais é comum a concentração de tensões em alguns pontos. O dimen- sionamento de toda uma região devido ao esforço máximo de um único ponto pode levar a um dimensionamento anti-econômico. Cabe ao engenheiro verificar se a redis- tribuição de esforços é possível, e neste caso, a seu critério, usar a homogeneização de momentos disponível no sistema. Uma modelagem melhor (a ser realizada manualmen- te) seria plastificar diretamente o modelo da grelha. Se a homogeneização de momentos for escolhida (através de critério definido em EDITAR > CRITÉRIOS DE ESCADAS), será determinado por região um momento médio ponderado, que terá um limite inferior correspondendo a uma percentagem do momento máximo. Podem ser ativadas separadamente a homogeneização de momentos positivos e negativos. Os momentos homogeneizados substituem os momentos máxi- mos, e são calculados com as forças normais concomitantes. A seção da laje é calculada sob ação de flexão composta normal. Testa-se os alojamen- tos de armaduras disponíveis e o de menor área que equilibra a seção é escolhido. Itera- tivamente determina-se também a menor área de aço que ainda equilibraria a seção. Pode-se a critério verificar a condição limite da linha neutra para momentos negativos, conforme s NBR-6118:2003 item 14.6.4.3 e 14.7.3.2 (limites fixados em critério), mas somente em seções sem força normal e com momento negativo não desprezível. A ar- madura mínima é verificada conforme o item 17.3.5.2.1. As reduções previstas nas ar- maduras mínimas de lajes não são consideradas. O detalhamento de armaduras segue um padrão comum para escadas. Nos patamares, quando é necessária armadura negativa, ela é distribuída em todo o patamar. O com- primento do ferro negativo no apoio do lance nos patamares é definido por um número fixo de bitolas, com um mínimo definido no item 9.4.2.4 da NBR-6118:2003. A arma- dura secundária inferior é no mínimo 20% da armadura principal de flexão, conforme o item 20.1. Certos limites de detalhamento são verificados pelo programa, como por exemplo, o uso de bitola maior que h/8 (item 20.1) e bitola maior que o cobrimento da laje. O pro- grama somente indica esta situação. Fica a cargo do engenheiro eliminar os alojamentos desta bitola do projeto e substituir por outros alojamentos que atendam à norma.
  • 48.
    44 Elementos Inclinadose Escadas - TQS TQS Informática Ltda Rua dos Pinheiros 706 c/2 05422-001 São Paulo SP Tel (011) 3083-2722 Fax 3083-2798 www.tqs.com.br 5.5. Critérios de dimensionamento, detalhamento e desenho Os critérios de escadas são editados através do programa do menu "Editar" do gerenci- ador: Os critérios são classificados sob 5 abas: Materiais, Esforços, Dimensionamento, Sim- plificado e Desenho. 5.5.1. Materiais Na janela de materiais temos valores característicos do concreto, coeficientes de segu- rança e cobrimentos. Os valores do concreto, se definidos a partir dos dados do edifício, podem ser visualizados mas não alterados. Apenas o minorador do aço é definido nesta tela - outros valores como a resistência característica vem dos critérios gerais de aço e desenhos de armação. 5.5.2. Esforços Nesta tela temos o coeficiente γf de referência e os critérios para homogeneização de esforços:
  • 49.
    Dimensionamento, Detalhamento eDesenho de escadas 45 Podem ser homogeneizados separadamente momentos positivos e negativos, com um mínimo valor homogeneizado em relação ao valor máximo:
  • 50.
    46 Elementos Inclinadose Escadas - TQS TQS Informática Ltda Rua dos Pinheiros 706 c/2 05422-001 São Paulo SP Tel (011) 3083-2722 Fax 3083-2798 www.tqs.com.br A discretização das escadas em grelhas espaciais leva à concentração de esforços em alguns pontos. Dimensionar todo o modelo pelos piores esforços nestes pontos pode levar a um detalhamento com armadura excessiva. O engenheiro deve avaliar se a hipó- tese de redistribuição de esforços por homogeneização é aceitável caso a caso. A meto- dologia adotada é:  Por direção, divide-se a laje em regiões de apoios e meio de vão;  Em cada região, considera-se alinhamentos isolados de barras de grelha. Estes ali- nhamentos tem largura constante  Considera-se separadamente para os momentos positivos e negativos, cada alinha- mento com momento fletor constante, igual ao máximo momento fletor no alinha- mento.  Toma-se como momento homogeneizado, a média ponderada dos momentos da região (volume de momentos constante).  A média ponderada é limitada a um mínimo igual a uma percentagem definida a- baixo do momento máximo em toda a região analisada.  No dimensionamento, toma-se os momentos homogeneizados concomitantemente com as normais obtidas nos pontos de máximos esforços. 5.5.3. Dimensionamento / Detalhamento Os critérios de dimensionamento associados à NBR-6118:2003 não podem ser alterados nesta tela, se nos dados do edifício estiver definida esta norma.
  • 51.
    Dimensionamento, Detalhamento eDesenho de escadas 47 A armadura mínima de ligação mesa-alma, definida em cm2 /m, será usada na verifica- ção dos apoios. Nos locais onde não é obrigatória a presença de armadura superior, qualquer valor calculado abaixo da taxa mínima definida acima será ignorado. Em muitos casos a armadura superior no meio do vão do lance pode ser desnecessária. Entretanto, o processo de grelhas pode resultar em esforços residuais que levariam a uma armadura mínima. As armaduras com taxa menor que a adotado para taxa mínima serão simplesmente desconsiderada.
  • 52.
    48 Elementos Inclinadose Escadas - TQS TQS Informática Ltda Rua dos Pinheiros 706 c/2 05422-001 São Paulo SP Tel (011) 3083-2722 Fax 3083-2798 www.tqs.com.br Nos critérios de ancoragem, considera-se ancoragem somente em regiões de boa ade- rência, devendo o engenheiro corrigir o cálculo onde isto não acontecer: Por simplificação, o sistema não verifica a extensão dos diagramas de momento negati- vo para a ancoragem destes ferros. Em vez disto, considera-se a "Ancoragem mínima em número de bitolas", para estender o ferro negativo do lance de escada, que vem do patamar, para dentro do lance.
  • 53.
    Dimensionamento, Detalhamento eDesenho de escadas 49 O critério de verificação de dutilidade da seção nos pontos com momento negativo po- de ser ativado. A verificação só é feita em seções sem a presença de força normal. O sistema dimensiona as seções à flexão composta, selecionando alojamentos definidos nas tabelas para armadura positiva (inferior) e negativa (superior): Para evitar que certas bitolas sejam usadas no dimensionamento (se maiores que o co- brimento ou h/8), deve-se retirá-las da tabela de alojamento. Sob o botão "Detalhamento" temos critérios que controlam como cortar e dobrar certos ferros da escada - para favorecer o processo de montagem ou obter maior economia de armadura: A armadura inferior do lance pode servir de armadura negativa no patamar superior ou ancorar independentemente:
  • 54.
    50 Elementos Inclinadose Escadas - TQS TQS Informática Ltda Rua dos Pinheiros 706 c/2 05422-001 São Paulo SP Tel (011) 3083-2722 Fax 3083-2798 www.tqs.com.br ou O mesmo acontece no patamar inferior, onde a armadura inferior do lance pode servir de ferro positivo do patamar:
  • 55.
    Dimensionamento, Detalhamento eDesenho de escadas 51 ou A armadura superior do patamar inferior pode ou não ancorar no lance:
  • 56.
    52 Elementos Inclinadose Escadas - TQS TQS Informática Ltda Rua dos Pinheiros 706 c/2 05422-001 São Paulo SP Tel (011) 3083-2722 Fax 3083-2798 www.tqs.com.br ou
  • 57.
    Dimensionamento, Detalhamento eDesenho de escadas 53 5.5.4. Processo simplificado Os critérios sob a aba "Simplificado" são aplicáveis exclusivamente ao cálculo por pro- cesso simplificado, e serão discutidos no último capítulo. 5.5.5. Desenho Na janela "Desenho", temos diversos critérios agrupados sob uma grade, que permitem controlar diversos níveis e tamanhos usados no desenho de escadas: 5.6. Processamento de escadas
  • 58.
    54 Elementos Inclinadose Escadas - TQS TQS Informática Ltda Rua dos Pinheiros 706 c/2 05422-001 São Paulo SP Tel (011) 3083-2722 Fax 3083-2798 www.tqs.com.br O comando "Processar, Modelo de Grelha - Dimensionamento, Detalhamento, Dese- nho" parte da geometria e esforços previamente gravados e faz todo o processamento. O resultado final será uma listagem com o memorial de cálculo e o desenho de uma ou mais escadas deste pavimento. 5.6.1. Listagem do processamento Vamos examinar e entender a listagem emitida no processamento. A listagem vem com o comando "Visualizar, Dimensionamento, Detalhamento, Desenho": A listagem se inicia com uma cópia dos critérios usados no cálculo: Critérios de cálculo -------------------- Arquivo de critérios.......... P:TQSWC0TETQSINCLI15CRITESC.DAT Concreto: Resistência à compressão concreto Fck ........... 200.0 kgf/cm2 Minorador da resistência GamaC .................. 1.4 Resistência à tração superior Fctksup ........... 28.7 kgf/cm2 Resistência à tração inferior Fctkinf ........... 15.5 kgf/cm2 Módulo de elasticidade secante .................. 212873.7 kgf/cm2 Cobrimento inferior principal ................... 1.0 cm Cobrimento inferior secundário .................. 1.0 cm Cobrimento superior principal .................. 1.0 cm Cobrimento superior secundário .................. 1.0 cm Aço: Tipos de aço, resistência, etc .................. Conforme DESARM.DAT Minorador de resistência GamaS .................. 1.15 Módulo de elasticidade .......................... 2100000.0 kgf/cm2 Dimensionamento: Majorador de esforços GamaF ..................... 1.4 Homogeneização dos momentos positivos ........... Sim Valor mínimo homogeneizado em relação ao máximo.. 80.0% Homogeneização dos momentos negativos ........... Sim Valor mínimo homogeneizado em relação ao máximo.. 50.0% Critério de armadura mínima ..................... NBR-6118:2003 Armadura mínima negativa no apoio ............... 1.5 cm2 Taxa para ignorar armadura superior ............. 0.05 Limite relativo da linha neutra x/d ............. 0.50 Detalhamento: Ancoragem das armaduras ......................... NBR-6118:2003 Ancoragem mínima em bitolas ..................... 50 Decalagem de Rsd para ancoragem (em h util) ..... 1.5 Cobrir patamar superior com armadura do lance ... Sim Cobrir patamar inferior com armadura do lance ... Sim
  • 59.
    Dimensionamento, Detalhamento eDesenho de escadas 55 A seguir é mostrada uma legenda dos termos usados nas tabelas de dimensionamento: Legenda --------------- Direção X Direção principal da laje, definida no Modelador. É para onde aponta o eixo X da laje. Pode ser ortogonal à direção do lance da escada Direção Y Direção ortogonal a X MomPos Momento positivo homogeneizado. Normal com momento máximo MomNeg Momento negativo homogeneizado. Normal com momento mínimo NorMax Maior força normal. Momento homogeneizado NorMin Menor força normal. Momento homogeneizado Início Esforços medidos próximos ao apoio inicial Meio Esforços medidos no meio da laje Fim Esforços medidos próximos ao apoio final Momento Momento fletor tfm/m Normal Força normal tfm Barra Número da barra na grelha As inf Armadura inferior cm2 As sup Armadura superior cm2 Alojamen Alojamento da armadura: bitola / espaçamento Msg Mensagens do dimensionamento: (*) Seção sem dimensionamento (M) Armadura mínima (I) Armadura superior ignorada (>) Bitola selecionada > espessura da laje/8 Alguns pontos importantes nesta legenda:  Os momentos usados no cálculo podem ser os máximos ou os homogeneizados;  As regiões de verificação são as próximas aos apoios e no meio da laje;  Tanto patamares como lances são tratados como lajes, e calculados da mesma ma- neira;  Os pontos de momento máximo podem ser verificados com o número da barra mostrada nas tabelas diretamente no visualizador espacial de pórtico/grelha;  Os caracteres "*", "M", "I" e ">" são usados para mostrar condições do dimensio- namento. A seguir é mostrado o dimensionamento de cada região de cada laje. Para cada patamar e lance, é feito um dimensionamento inicial nas regiões dos apoios e meio do vão, por direção, nos pontos de momento máximo e mínimo e normal máxima e mínima. Os momentos tomados podem ser máximos ou homogeneizados. As direções nesta lista- gem são as das direções principais das lajes, que são definidas arbitrariamente pelo engenheiro na entrada de dados do Modelador: Dimensionamento - esforços característicos ------------------------------------------ Pavimento............ Terreo Elemento ............ Lance E3
  • 60.
    56 Elementos Inclinadose Escadas - TQS TQS Informática Ltda Rua dos Pinheiros 706 c/2 05422-001 São Paulo SP Tel (011) 3083-2722 Fax 3083-2798 www.tqs.com.br Espessura ........... 10.00 cm Direção principal ... 0.00° Verificação Momento Normal Barra As inf Alojamen As sup Alojamen Msg tfm/m tf/m cm2/m Ø/Esp cm2/m Ø/Esp MomPos Inicio X 0.51 -3.77 529 2.69 8.0/17.5 MomPos Meio X 0.50 0.59 533 1.54 5.0/12.5 MomPos Fim X 0.52 2.34 535 1.50 6.3/20.0 M MomPos Inicio Y 0.34 0.12 524 1.50 6.3/20.0 M MomPos Meio Y 0.19 -1.18 526 1.50 6.3/20.0 M MomPos Fim Y 0.08 -0.39 528 0.33 I MomNeg Inicio X -0.04 -3.77 529 0.50 1.50 6.3/20.0 MI MomNeg Meio X 0.50 0.00 0 1.96 6.3/15.0 MomNeg Fim X -0.35 1.60 536 1.50 6.3/20.0 M MomNeg Inicio Y -0.01 0.07 519 1.50 6.3/20.0 M MomNeg Meio Y -0.01 0.60 497 0.06 I MomNeg Fim Y -0.17 0.03 508 1.50 6.3/20.0 M NorMax Inicio X 0.51 1.61 470 1.50 6.3/20.0 M NorMax Meio X 0.50 0.59 533 1.54 5.0/12.5 NorMax Fim X 0.52 2.34 535 1.50 6.3/20.0 M NorMax Inicio Y 0.34 0.41 520 1.50 6.3/20.0 M NorMax Meio Y 0.19 0.63 496 1.50 6.3/20.0 M NorMax Fim Y -0.17 0.37 498 1.50 6.3/20.0 M NorMin Inicio X 0.51 -3.77 529 2.69 8.0/17.5 NorMin Meio X 0.50 -0.15 490 1.99 6.3/15.0 NorMin Fim X 0.52 -1.63 477 2.35 8.0/20.0 NorMin Inicio Y 0.34 -1.33 494 1.50 6.3/20.0 M NorMin Meio Y 0.19 -1.18 526 1.50 6.3/20.0 M NorMin Fim Y -0.17 -0.39 528 1.50 6.3/20.0 M Sendo as direções X e Y das direções principais da laje, a armadura mostrada em X não está necessariamente no sentido do lance da escada. O programa então compatibiliza as armaduras positivas e negativas na direção do lance, e faz um resumo final com as ar- maduras usadas no detalhamento: Resumo de armaduras na escada "Escada-1" Lance "E3" --------------------------------------------------- Direção do lance ... 0.00° Lance E3 Na direção do lance Armadura inferior 2.69 cm2/m Ø 8.0/17.5 Na direção secundária Armadura inferior 1.50 cm2/m Ø 6.3/20.0 Patamar superior L1 Na direção do lance Armadura inferior 1.50 cm2/m Ø 6.3/20.0 Armadura superior Alongamento da armadura inferior de E3 Na direção secundária Armadura inferior 5.81 cm2/m Ø12.5/20.0 Armadura superior 1.50 cm2/m Ø 6.3/20.0 Patamar inferior L2 Na direção do lance
  • 61.
    Dimensionamento, Detalhamento eDesenho de escadas 57 Armadura inferior Alongamento da armadura inferior de E3 Armadura superior 1.50 cm2/m Ø 6.3/20.0 Na direção secundária Armadura inferior 8.08 cm2/m Ø12.5/15.0 Armadura superior 1.50 cm2/m Ø 6.3/20.0 Nesta listagem temos todas as armaduras referidas à direção do lance da escada, inclu- sive as dos patamares. 5.7. Editando o desenho O programa gerará um arquivo DWG com o nome de cada escada processada. Este é um arquivo convencional de armaduras segundo a convenção do NGE, podendo ser editado com o Editor de Armação (convencional ou completo do CAD/AGC) e incluído em plantas para plotagem: Em geral a armadura dos patamares na direção do lance de escada está detalhada na própria escada. Apenas a armadura transversal é detalhada nos patamares. Em certos arranjos de escada (como um patamar comum a mais de um lance) é possível que o de- talhamento não seja totalmente automático. Nestes casos é necessário que o engenheiro complete o detalhamento inserindo ou removendo armaduras do desenho. 5.7.1. Detalhamento do patamar mais baixo Tomando como exemplo um edifício com uma escada de dois lances entre os pavimen- tos, o dimensionamento completo da escada em um pavimento teria que ser feito em três patamares: o superior, o intermediário e o do pavimento inferior. O ferros transver- sais do patamar inferior não precisam ser detalhados, pois estarão no desenho do pata- mar superior da escada do pavimento inferior.
  • 62.
    58 Elementos Inclinadose Escadas - TQS TQS Informática Ltda Rua dos Pinheiros 706 c/2 05422-001 São Paulo SP Tel (011) 3083-2722 Fax 3083-2798 www.tqs.com.br Entretanto, quando chegamos ao patamar mais baixo de todos os pavimentos teremos um desenho órfão - não há escada a ser detalhada no pavimento mais baixo. O sistema mesmo assim gera um desenho do detalhamento independente deste patamar, que pode ser adaptado na escada do pavimento superior: Há um caso particular neste detalhamento: quando tratamos do andar tipo, o patamar do pavimento inferior detalhado na escada do tipo é o mesmo patamar superior do lance inicial. 5.8. Calculadora de flexão composta normal Para auxiliar o engenheiro na verificação de resultados, uma calculadora de flexão composta normal está disponível no menu "Visualizar" do Escadas-TQS:
  • 63.
    Dimensionamento, Detalhamento eDesenho de escadas 59 Trata-se de uma calculadora interativa que tem dois comandos: o de verificação de ar- maduras, e o de determinação de armadura necessária. 5.8.1. Dados de cálculo Alguns dados de cálculo são carregados do arquivo de critérios de escada, outros têm valor arbitrário que é retido entre duas chamadas da calculadora. Os dados estão dividi- dos nos seguintes grupos:  Seção: é a seção transversal de cálculo, que pode ser retangular, T, trapezoidal ou I (definida pela altura de mini-painel inferior).  Concreto: são os dados do concreto, com valores característicos. A resistência ca- racterística superior a tração, e o módulo de elasticidade são calculados com valo- res da NBR-6118:2003 se definidos como zero.  Aço: além dos valores característicos de resistência e do módulo de elasticidade, temos os cobrimentos de armadura inferior e superior, que devem necessariamente incluir a diferença devido ao CG das armaduras. Considerando-se que a seção re- cebe apenas uma camada de armadura de uma só bitola, a diferença a considerar é de meia bitola, em cm.
  • 64.
    60 Elementos Inclinadose Escadas - TQS TQS Informática Ltda Rua dos Pinheiros 706 c/2 05422-001 São Paulo SP Tel (011) 3083-2722 Fax 3083-2798 www.tqs.com.br  Esforços característicos: Temos a força normal e momento fletor. O momento fle- tor negativo faz com que as fibras superiores da seção calculada sejam tracionadas. A posição limite da linha neutra (item 14.6.4.3 e 14.7.3.2 da NBR-6118:2003) so- mente é verificada para seções sem força normal e com um valor mínimo de mo- mento. Esta verificação pode ser desligada fixando-se o limite da linha neutra em zero ou 1. 5.8.2. Verificação de armadura O botão "Verificação" faz com que a seção, com as áreas de armadura superior e inferi- or definidas no mesmo quadro seja verificada. O resultado será mostrado no quadro superior à direita. A seção simplesmente passa ou não, e a altura da linha neutra e o valor da armadura mínima são mostrados para esta seção. 5.8.3. Armadura necessária O botão "Armadura necessária" itera valores de armadura até achar a menor armadura que ainda equilibra a seção. Para que este comando funcione, é necessário que o enge- nheiro forneça o número de bitolas a serem colocados na região superior e inferior da seção (pode ser zero). A calculadora mostrará a área de armadura necessária por bitola. O número de bitolas pode ser fornecido de maneira fracionada, funcionando apenas para definir a proporção entre a armadura superior e inferior. Neste caso, a área final mostrada por bitola deve ser multiplicada pelos números fornecidos para a obtenção da área real.
  • 65.
    Dimensionamento e detalhamentode vigas e lajes inclinadas 61 6. Dimensionamento e detalhamento de vigas e lajes inclinadas O dimensionamento e detalhamento de vigas e lajes inclinadas é efetuado de maneira simplificada e deve ser completado conforme necessário pelo engenheiro. 6.1. Vigas inclinadas Uma viga inclinada é definida no sistema CAD/TQS como uma barra de ligação entre dois planos (pavimento ou piso auxiliar). Os esforços considerados na sua análise são provenientes do processamento do modelo de pórtico espacial, e portanto, levam em conta a sua continuidade com os demais elementos que estão interligados a ela. Além dos esforços de flexão, as vigas inclinadas usualmente estão submetidas à esfor- ços axiais (força normal de tração ou compressão). Desta forma, o CAD/Vigas foi a- daptado para fazer o dimensionamento de uma seção à flexão composta normal, aumen- tando se necessário as armaduras. O detalhamento da viga inclinada, porém, precisa da interferência manual do engenhei- ro estrutural, pois o tramo inclinado da viga é dimensionado e detalhado de forma sepa- rada. O CAD/Vigas desenha este trecho como se fosse um elemento horizontal já com a seção de aço correta. Trata-se de um bom ponto de partida para o detalhamento final. Por esse motivo, após o processamento, todos os desenhos de vigas inclinadas apresen- tam a seguinte mensagem: OBSERVAÇÃO: todas as vigas de um pavimento (não só as inclinadas) passam a ser dimensionadas à flexão composta normal. 6.1.1. Critérios de projeto Foram adicionados novos critérios de projeto específicos para o dimensionamento de vigas submetidas à flexão composta normal. Para acessá-los, ative no CAD/Vigas, "E- ditar, Critérios de projeto, Flexão”, botão “Flexão composta normal”.
  • 66.
    62 Elementos Inclinadose Escadas - TQS TQS Informática Ltda Rua dos Pinheiros 706 c/2 05422-001 São Paulo SP Tel (011) 3083-2722 Fax 3083-2798 www.tqs.com.br Os novos critérios estão subdivididos em dois grupos: força normal e seção transversal. O primeiro define parâmetros relativos a força axial solicitante. O segundo estabelece o tipo de seção a ser considerada. No grupo “Força normal” é possível estabelecer um limite para que o esforço axial atu- ante nas vigas seja desconsiderado no dimensionamento. Além disso, define-se, tam- bém, valores limites para que as forças de tração ou compressão sejam consideradas elevadas, de tal forma que a análise dos resultados possa ser realizada de forma mais fácil e eficiente (ver o resumo geral do relatório).
  • 67.
    Dimensionamento e detalhamentode vigas e lajes inclinadas 63 No grupo “Seção transversal” é possível definir o tipo de seção a ser levado em conta no dimensionamento (retangular ou T). Caso a mesa colaborante seja considerada, é necessário especificar a armadura da laje paralela a viga.
  • 68.
    64 Elementos Inclinadose Escadas - TQS TQS Informática Ltda Rua dos Pinheiros 706 c/2 05422-001 São Paulo SP Tel (011) 3083-2722 Fax 3083-2798 www.tqs.com.br No grupo “Relatório” é possível definir duas opções para geração do relatório: resumi- da ou completa. Na primeira são impressas somente as modificações nas vigas cujas armaduras foram alteradas devido ao esforço normal.
  • 69.
    Dimensionamento e detalhamentode vigas e lajes inclinadas 65 6.1.2. Processamento de vigas O dimensionamento à flexão composta normal de todas as vigas dos pavimentos de um edifício é sempre realizado de forma automática no processamento global. Porém, se o cálculo for efetuado localmente dentro do CAD/Vigas (menu “Processar, Dimensiona- mento, detalhamento e desenho”), existe uma opção que ativa/desativa esta considera- ção.
  • 70.
    66 Elementos Inclinadose Escadas - TQS TQS Informática Ltda Rua dos Pinheiros 706 c/2 05422-001 São Paulo SP Tel (011) 3083-2722 Fax 3083-2798 www.tqs.com.br 6.1.3. Dimensionamento à flexão composta normal O dimensionamento à flexão composta normal das vigas é sempre realizado após o di- mensionamento à flexão simples. O dimensionamento à flexão positiva e negativa não mudaram, continuam sendo os mesmos que já existiam nas versões anteriores do siste- ma CAD/TQS. Durante o dimensionamento à flexão composta normal, diversas seções ao longo de cada um dos vãos das vigas são verificadas com as armaduras pré-calculadas à flexão simples. Caso alguma seção não passe (ruptura) em virtude da força normal solicitante (normalmente de tração), o CAD/Vigas aumentará as armaduras (porta-estribos ou ar- madura lateral) procurando obter uma uniformidade em toda viga. Se porventura, mesmo após as alterações nas armaduras, ainda exista alguma seção que não passe, será emitido um erro grave que aparecerá tanto no resumo estrutural como no visualizador de erros.
  • 71.
    Dimensionamento e detalhamentode vigas e lajes inclinadas 67 Nenhuma verificação especial em relação à ancoragem das vigas tracionadas é realiza- da pelo CAD/TQS, de tal forma que é necessário que o engenheiro estrutural cheque tal condição manualmente. 6.1.4. Relatório de dimensionamento à flexão composta Um relatório em HTML é gerado durante o dimensionamento das vigas à flexão com- posta normal, possibilitando uma análise mais refinada das verificações realizadas pelo programa. Para acessá-lo, ative o CAD/Vigas, menu “Visualizar > Esforços e armadu- ras > Dimensionamento à flexão composta”.
  • 72.
    68 Elementos Inclinadose Escadas - TQS TQS Informática Ltda Rua dos Pinheiros 706 c/2 05422-001 São Paulo SP Tel (011) 3083-2722 Fax 3083-2798 www.tqs.com.br Todas as alterações de armaduras realizadas nas vigas são documentadas de forma deta- lhada.
  • 73.
    Dimensionamento e detalhamentode vigas e lajes inclinadas 69 No final do relatório é possível acessar um resumo geral que facilita bastante a análise dos resultados. Vigas com tração ou compressão elevada são listadas a parte.
  • 74.
    70 Elementos Inclinadose Escadas - TQS TQS Informática Ltda Rua dos Pinheiros 706 c/2 05422-001 São Paulo SP Tel (011) 3083-2722 Fax 3083-2798 www.tqs.com.br 6.2. Dimensionamento de lajes inclinadas Por simplificação, o Editor de Esforços determina as forças normais máxima e mínima de cada faixa e verifica o momento da faixa combinado com cada uma delas. A arma- dura final será a maior das armaduras calculadas. O detalhamento será realizado somente quando, para o momento positivo ou negativo, for necessária armadura apenas em uma das face da laje. Se for necessária armadura em ambas as faces na mesma seção, o editor mostrará o valor delas na faixa de esforços, que aparecerá em vermelho. O detalhamento neste caso precisará ser completado ma- nualmente. Nas faixas de esforços com força normal, o Editor de Esforços mostra os valores má- ximos e mínimos usados no cálculo. No exemplo abaixo, estes valores são respectiva- mente 1.33 tf/m (compressão) e -2.12 tf/m (tração):
  • 75.
    Dimensionamento e detalhamentode vigas e lajes inclinadas 71 A armadura dimensionada será a maior necessária entre as solicitações características de (M=0.79, N=1.33) e (M=0.79, N=-2.12). Na direção longitudinal, o comprimento do ferro é modificado de acordo com a inclinação da laje e mostrado nesta inclinação:
  • 76.
    72 Elementos Inclinadose Escadas - TQS TQS Informática Ltda Rua dos Pinheiros 706 c/2 05422-001 São Paulo SP Tel (011) 3083-2722 Fax 3083-2798 www.tqs.com.br 7. Processo Simplificado Se as escadas de um projeto forem convencionais (retas e com vãos pequenos), e não contribuírem significativamente na rigidez da estrutura, então poderá ser justificável calculá-las pelo Processo Simplificado. Um único módulo do sistema Escadas-TQS permite calcular esforços (através do CAD/Lajes), dimensionar, detalhar e desenhar escadas por processo simplificado. O lançamento de escadas pelo processo simplificado não impede o lançamento das mesmas na estrutura e a sua consideração no modelo espacial. Este módulo gera uma escada retangular padrão de dois lances e dois patamares, apoia- da em vigas de contorno. Você pode zerar dados da escada padrão, de modo que ela também pode ser calculada com somente um lance, com um ou dois patamares (ou só apoiada em vigas) e com ou sem vigas no contorno. As condições de apoio são contro- láveis. As escadas calculadas por este módulo não tem nenhuma ligação com o resto da estru- tura. Continua sendo responsabilidade do engenheiro lançar carregamentos e outras condições de contorno na estrutura global devido às escadas para que o modelo estrutu- ral continue coerente. 7.1. Modelo de cálculo e critérios No modelo simplificado, as lajes inclinadas, ou não, são calculadas como planas sobre apoios rígidos, com as medidas projetadas no plano: O comprimento dos lances pode se limitar à medida entre os patamares, ou pode ser estendido até o meio de cada patamar, conforme o critério de escadas:
  • 77.
    Processo Simplificado 73 Ascondições de contorno são definidas junto com a geometria da laje (veja adiante). As lajes, com seus carregamentos e suas vinculações são passadas para o CAD/Lajes, que calculará esforços segundo um dos modelos abaixo:
  • 78.
    74 Elementos Inclinadose Escadas - TQS TQS Informática Ltda Rua dos Pinheiros 706 c/2 05422-001 São Paulo SP Tel (011) 3083-2722 Fax 3083-2798 www.tqs.com.br No lance de escada, o peso próprio é corrigido para considerar a inclinação da laje, e o peso dos degraus é acrescentado. O CAD/Lajes somente dimensiona armadura negativa nos apoios engastados. Se os patamares e/ou lances forem simplesmente apoiados, mesmo assim poderemos forçar a adoção de uma armadura negativa nos patamares a partir de uma taxa de armadura for- necida pelo critério:
  • 79.
    Processo Simplificado 75 7.1.1.Critérios comuns com o cálculo por grelha Todos os critérios de dimensionamento e detalhamento usados no cálculo de escadas com esforços de grelha valem no processo simplificado. Estes critérios são discutidos no item 5.4. 7.1.2. Critérios comuns com o CAD/Lajes O Escadas-TQS tem seu próprio arquivo de critérios, independente do CAD/Lajes. Quando o CAD/Lajes calcula escadas, ele carrega ao mesmo tempo os critérios de lajes do edifício e os de escadas. Os critérios abaixo são comuns aos dois sistemas, prevale- cendo aqueles do arquivo de critérios de escadas:  Propriedades dos materiais  Cobrimentos  Majoradores e minoradores  Verificação de dutilidade nos apoios  Critérios de ancoragem  Tabelas de alojamento 7.2. Processamento - Processo Simplificado No menu "Processar" do Escadas-TQS, acionamos o programa de cálculo por processo simplificado. Todas as atividades de dimensionamento, detalhamento e desenho são acionadas a seguir a partir deste programa:
  • 80.
    76 Elementos Inclinadose Escadas - TQS TQS Informática Ltda Rua dos Pinheiros 706 c/2 05422-001 São Paulo SP Tel (011) 3083-2722 Fax 3083-2798 www.tqs.com.br A entrada de dados é feita por intermédio de 5 janelas, acionadas pelas abas superiores: "Geometria", "Degraus", "Vinculações", "Carregamento" e "Armaduras". A tela de ar- maduras tem também os comandos para dimensionamento e detalhamento. 7.2.1. Arquivos envolvidos A pasta preferencial para processamento de escadas por processo simplificado é a pasta "Escadas":
  • 81.
    Processo Simplificado 77 Oprograma permite processar qualquer número de escadas numa mesma pasta. Entre- tanto recomenda-se que as escadas de um pavimento sejam processadas no próprio pa- vimento (pasta "Escadas" sob o pavimento), para que no resumo estrutural os quantita- tivos do pavimento considerem somente a escada correspondente. O programa permite também que lances sejam lançados um a um. Para diferenciar lan- ces diferentes lançados separadamente, e também permitir o lançamento de mais de uma escada em um pavimento, os dados de escadas por processo simplificado devem ser salvos um a um com um nome escolhido pelo engenheiro. O programa salvará os dados em arquivos com tipo ".DAE" e atribuirá o mesmo nome às listagens de proces- samento e desenho. Por exemplo, se atribuirmos o nome "ESC1" à escada, trabalhare- mos com os seguintes arquivos na mesma pasta: Arquivo Uso ESC1.DAE Dados de escadas, processo simplificado ESC1.LAJ Gerado automaticamente no processamento de esforços através do CAD/Lajes ESC1.LST Listagem de esforços e dimensionamento do CAD/Lajes ESC1.DWG Desenho de forma e armação da escada Os comandos de manipulação de arquivos no menu e na barra de ferramentas são típi- cos de qualquer programa Windows: Ao entrarmos no programa, teremos três situações possíveis:
  • 82.
    78 Elementos Inclinadose Escadas - TQS TQS Informática Ltda Rua dos Pinheiros 706 c/2 05422-001 São Paulo SP Tel (011) 3083-2722 Fax 3083-2798 www.tqs.com.br  Se não existir nenhum arquivo de escadas na pasta escolhida, um novo será criado sem título, sendo salvo no final da operação com título a ser fornecido.  Se existir somente um arquivo na pasta, ele será editado.  Se houver mais de um arquivo, o programa pedirá pela escolha de um dos existen- tes. Ao sair do programa, o sistema perguntará se você quer salvar o arquivo de escadas e o nome do arquivo, se você ainda não tiver salvo. 7.2.2. Geometria A escada padrão tem dois lances e dois patamares. Basta fornecer os dados na tela abai- xo nos campos próximos ao esquema da escada: Olhando-se em planta e dividindo-se a escada em cima, baixo, esquerda e direita, temos que:  As vigas podem ter largura zero.  Se a largura do patamar esquerdo for zero, os lances se apoiarão na viga vertical à esquerda. O patamar e a viga não podem ter simultaneamente largura zero.  O mesmo ocorre com o patamar da direita.  Se o lance de baixo tiver largura zero, a viga de baixo servirá de apoio ao lance de cima. Neste caso teremos uma escada de um único lance.  O lance que desce na direção indicada pode ser o de cima ou de baixo, afetando a representação da escada em corte.
  • 83.
    Processo Simplificado 79 7.2.3.Degraus da escada No processo simplificado temos os mesmos recursos de cálculo e definição de degraus que no Modelador. Os degraus serão representados em planta e corte e terão seu peso próprio considerado no cálculo de esforços. A tela de dados de degraus tem os mesmos campos de espessura, espaço e desnível definidos na tela de geometria: Para ajudar a determinar os passos e espelhos ideais de uma escada dado o espaço e desnível disponível, podemos usar a calculadora de degraus acionada pelo botão "Visu- alizar":
  • 84.
    80 Elementos Inclinadose Escadas - TQS TQS Informática Ltda Rua dos Pinheiros 706 c/2 05422-001 São Paulo SP Tel (011) 3083-2722 Fax 3083-2798 www.tqs.com.br Vale aqui a mesma lógica usada no Modelador, e comentada no item 4.2. Passo e espe- lho podem ser fixados ou liberados para que o programa procure um valor ideal com o botão "Sugerir". Os critérios para a escolha dos valores ideais, dentro do grupo "Cálcu- lo de dimensões" vem do arquivo de critérios de projeto de formas. O desenho no pai- nel à direita é gerado dinamicamente conforme se alteram os dados à esquerda, e pode ser manipulado com comandos de janela. 7.2.4. Vinculações As vinculações (ou condições de contorno) da escada padrão podem ser do tipo Apoio, Engaste ou Livre. Basta fornecer os dados na tela abaixo nos campos próximos ao es- quema da escada e dos patamares: A definição das vinculações é independente da existência de largura de viga e/ou pata- mares definidos. Cada patamar e lance são calculados independentemente com as con- dições fornecidas. Note que:  O CAD/Lajes só gera ferros negativos nos apoios com engastamento. Você pode forçar a utilização mínima de ferros negativos através do arquivo de critérios de es- cadas.  Os lances são simétricos, as vinculações definidas no lance de baixo devem ser rebatidas no lance de cima.  As vinculações definidas ao longo da viga horizontal de baixo valem para a viga horizontal de cima. 7.2.5. Carregamentos Definimos apenas os valores de cargas permanentes e sobrecargas, nos patamares e nos lances:
  • 85.
    Processo Simplificado 81 7.2.6.Dimensionamento e Detalhamento Nesta última janela definimos a armadura da escada. Esta armadura pode ser definida manualmente ou a partir do cálculo de esforços e dimensionamento do CAD/Lajes: As combinações de alojamento de armaduras que podem ser escolhidas são as definidas no arquivo de critérios, separadamente para a armadura negativa (superior) e positiva (inferior). Escolha uma configuração em branco para que a armadura não seja gerada. Note nesta tela que foram definidas armaduras separadamente para os patamares, mas não para os lances, que serão armados igualmente. Cada laje tem a definição de quatro tipos de armaduras: superior e inferior, na direção horizontal e vertical.
  • 86.
    82 Elementos Inclinadose Escadas - TQS TQS Informática Ltda Rua dos Pinheiros 706 c/2 05422-001 São Paulo SP Tel (011) 3083-2722 Fax 3083-2798 www.tqs.com.br 7.3. Detalhando e desenhando forma e armação Para obter um desenho de forma e armação com a geometria definida e as armaduras desta tela, simplesmente aperte "Detalhamento". Um novo desenho de forma e armação será gerado, com o mesmo nome do arquivo .DAE (ex: ESC1.DWG), sendo editado auto- maticamente pelo editor de armação em seguida. Se você já gerou um desenho e fez modificações, pode simplesmente editá-lo sem regravar, apertando "Editar desenho". 7.3.1. Dimensionando com o CAD/Lajes Se você apertar o botão "Dimensionamento", o CAD/Lajes será acionado e fará o pro- cessamento de esforços e o dimensionamento das armaduras da escada. O programa grava um arquivo .LAJ de entrada para o CAD/Lajes com o mesmo nome do .DAE. No final o CAD/Lajes gera a listagem do dimensionamento e detalhamento, que é editada através do EDITW. Nesta listagem temos três lajes definidas em sequência: o lance da escada, o patamar esquerdo e o patamar direito:
  • 87.
    Processo Simplificado 83 18>$ 19> $ Lance 20> $ C.Perm =0.30 tf/m2 21> $ C.Acid =0.20 tf/m2 22> $ C.Dif.Incl=0.04 tf/m2 23> $ C.Dif.Degr=0.21 tf/m2 24> $ 25> L8001 LX 240.00 LY 166.00 H 10.00 P 0.75 ENG LALA Laje 8001 LX 240.0 LY 166.0 H 10 cm P .750 tf/m2 G .250 tf/m2 LY/LX .00 KFLEX .158 Flecha .45 cm Flecha LIM .80 cm Hmin 9 cm KMX .0 MX 72.0 tfcm/m KMY .0 MY .0 tfcm/m KMXNEG .00 KMYNEG .00 Apoios Vínculo Mom Neg tfcm/m (não compatibilizados) 1 L 2 A 3 L 4 A Esta é a listagem do lance. Veja que a carga aplicada fora o peso próprio é composta pela soma das cargas permanentes e acidentais definidas, mais a diferença entre o peso próprio de uma laje plana e de uma inclinada, mais o peso próprio dos degraus. A vin- culação definida ("LALA", L=Livre, A=Apoio simples) define o lance como bi-apoiado sem momentos nas extremidades. Os demais elementos desta listagem são descritos no manual do CAD/Lajes - flecha elástica, flecha limite e coeficientes usados para a de- terminação de esforços. Estes coeficientes dependem do critério de cálculo utilizado (aqui não foram definidos, por ser uma laje bi-apoiada). A listagem de esforços nos patamares é semelhante, a menos das cargas e das vincula- ções: 26> $ 27> $ Patamar esquerdo 28> $ C.Perm =0.30 tf/m2 29> $ C.Acid =0.20 tf/m2 30> $ 31> L8002 LX 154.00 LY 332.00 H 10.00 P 0.50 ENG AAAA Laje 8002 LX 154.0 LY 332.0 H 10 cm P .500 tf/m2 G .250 tf/m2 LY/LX 2.16 KFLEX .149 Flecha .05 cm Flecha LIM .51 cm Hmin 7 cm KMX 8.0 MX 22.2 tfcm/m KMY 23.5 MY 7.6 tfcm/m KMXNEG .00 KMYNEG .00
  • 88.
    84 Elementos Inclinadose Escadas - TQS TQS Informática Ltda Rua dos Pinheiros 706 c/2 05422-001 São Paulo SP Tel (011) 3083-2722 Fax 3083-2798 www.tqs.com.br Apoios Vínculo Mom Neg tfcm/m (não compatibilizados) 1 A 2 A 3 A 4 A 32> $ 33> $ Patamar direito 34> $ C.Perm =0.30 tf/m2 35> $ C.Acid =0.20 tf/m2 36> $ 37> L8003 LX 154.00 LY 332.00 H 10.00 P 0.50 ENG AAAA Laje 8003 LX 154.0 LY 332.0 H 10 cm P .500 tf/m2 G .250 tf/m2 LY/LX 2.16 KFLEX .149 Flecha .05 cm Flecha LIM .51 cm Hmin 7 cm KMX 8.0 MX 22.2 tfcm/m KMY 23.5 MY 7.6 tfcm/m KMXNEG .00 KMYNEG .00 Apoios Vínculo Mom Neg tfcm/m (não compatibilizados) 1 A 2 A 3 A 4 A Neste exemplo não foram definidos engastamentos, assim não surgiram momentos ne- gativos. Mesmo assim será definida armadura negativa, a partir do critério de taxa mí- nima negativa. No final da listagem temos as armaduras dimensionadas em função dos esforços solicitantes: Laje 8001 LX= 240.0 LY= 166.0 H=10. Armad Momen AS N.Fer Bit Compr Espac tfcm/m cm2 mm cm cm X 72.0 3.31 12 8.0 240 15.0 Y .0 1.50 12 6.3 166 20.0 AP 1 .0 .00 6.3 20.0 AP 2 .0 .00 6.3 20.0 AP 3 .0 .00 6.3 20.0 AP 4 .0 .00 6.3 20.0 Laje 8002 LX= 154.0 LY= 332.0 H=10. Armad Momen AS N.Fer Bit Compr Espac tfcm/m cm2 mm cm cm X 22.2 1.50 17 6.3 154 20.0 Y 7.6 1.50 8 6.3 332 20.0 AP 1 .0 .00 6.3 20.0 AP 2 .0 .00 6.3 20.0 AP 3 .0 .00 6.3 20.0
  • 89.
    Processo Simplificado 85 AP4 .0 .00 6.3 20.0 Laje 8003 LX= 154.0 LY= 332.0 H=10. Armad Momen AS N.Fer Bit Compr Espac tfcm/m cm2 mm cm cm X 22.2 1.50 17 6.3 154 20.0 Y 7.6 1.50 8 6.3 332 20.0 AP 1 .0 .00 6.3 20.0 AP 2 .0 .00 6.3 20.0 AP 3 .0 .00 6.3 20.0 AP 4 .0 .00 6.3 20.0 Imediatamente após o processamento, as armaduras obtidas são transportadas para a tela de armaduras. Você pode gerar o detalhamento com elas, ou alterá-las como quiser antes de detalhar. 7.4. Compatibilização dos patamares e lances As armaduras dos patamares e lances são calculadas independentemente, mas devem ser compatibilizadas. O programa:  Adota a maior armadura calculada nos apoios comuns;  Pode igualar a armadura inferior do lance com a superior do patamar superior e com a inferior do patamar inferior, conforme critérios discutidos em 5.5.3.
  • 90.
    86 Elementos Inclinadose Escadas - TQS TQS Informática Ltda Rua dos Pinheiros 706 c/2 05422-001 São Paulo SP Tel (011) 3083-2722 Fax 3083-2798 www.tqs.com.br 8. Exemplo 1 Neste primeiro exemplo, você verá como entrar com dados, calcular e visualizar os resultados de uma rampa e escadas de lance único, ambos apoiadas em vigas inclinadas. 8.1. Entendendo o Exemplo 1 Trata-se de um edifício de 2 andares com uma arquitetura muito simples. O esquema do edifício e a planta de arquitetura do pavimento Térreo e do Tipo são mostrados na figu- ra a seguir:
  • 91.
    Exemplo 1 87 Noteque o edifício possui um pavimento Sub-Solo, um Térreo, um 1º Pavimento, um 2º Pavimento e uma Cobertura. A forma da Cobertura é idêntica a do Tipo, porém sem os sem patamares de escada. No caso do 2º Pavimento só há patamar de saída e não há um de chegada pois se trata do último pavimento. No Térreo há uma rampa que leva ao Subsolo. A ligação entre os andares é feita através de uma escada de lance único. Como este Manual tem o objetivo de mostrar as etapas para o lançamento de elementos inclinados, os elementos básicos (vigas, pilares e lajes) já estão lançados no exemplo MODESC. 8.2. Acessando o Exemplo 1 O exemplo para lançamento de escadas e elementos inclinados é o edifício chamado de ‘MODESC’. Ele pode ser encontrado compactado no pasta de instalação do programa CAD/TQS, no caminho: TQSWUSUARIOTESTE. Dê um duplo clique sobre o arqui- vo de nome ‘MODESC’, (Compativel com a sua versão), e a janela ‘Salvar / Restaurar / Compactar’ será aberta: (1) Clique no botão “Restaurar”;
  • 92.
    88 Elementos Inclinadose Escadas - TQS TQS Informática Ltda Rua dos Pinheiros 706 c/2 05422-001 São Paulo SP Tel (011) 3083-2722 Fax 3083-2798 www.tqs.com.br (2) Feche a janela “Salvar / Restaurar / Compactar”. Inicie o Sistema CAD/TQS, e a tela principal do programa chamada de “Gerenciador” será carregada. Vamos clicar sobre a árvore de edifícios e abrir o edifício MODESC: (1) Clique no Edifício “MODESC”. Esse edifício já está criado, portanto será aberta a árvore de arquivos do mesmo: Uma árvore do edifício será mostrada no gerenciador. Clicando sobre o item “Pavimentos” pode-se observar que os pavimentos já foram definidos.
  • 93.
    Exemplo 1 89 8.3.Editando Dados do Edifício Dentro do sistema ESCADAS-TQS a convenção adotada é que os elementos inclinados nascem nos pisos superior e terminam no inferior. Desta forma, os pisos onde os ele- mentos inclinados nascem são: Térreo (rampa e escada), 1PAV (escada) e 2PAV (esca- da). Primeiramente é necessário indicar ao sistema que existe um elemento inclinado nestes pavimentos. Execute o comando “Arquivo” - “Edifício” – “Editar”. OU Clique Aqui (1)Clique na Guia “Pavimentos”.
  • 94.
    90 Elementos Inclinadose Escadas - TQS TQS Informática Ltda Rua dos Pinheiros 706 c/2 05422-001 São Paulo SP Tel (011) 3083-2722 Fax 3083-2798 www.tqs.com.br Na guia de pavimentos defini-se quais pavimentos possuem elementos inclinados, neste caso o térreo. (1) Clique sobre o pavimento “TERREO”. (2) Defina a existência de elementos inclinados clicando sobre “Elemen. inclina- do/pisos auxiliares”. (3) Repita os itens (1) e (2) para os pavimentos 1PAV e 2PAV. Finalmente, clique no botão “OK” para terminar a edição dos dados do edifício. 8.4. Acessando os Elementos Inclinados no Mode- lador Como o lançamento das vigas, pilares e lajes já foram efetuados, precisamos completar o “Modelo Estrutural” fazendo o lançamento dos elementos inclinados. São eles: rampa e escadas.
  • 95.
    Exemplo 1 91 (1)Clique no pavimento “TERREO”. (2) Ative o sistema “CAD/Formas”. (3) Selecione o item “Modelo – Estrutural” na caixa de lista localizada na barra de fer- ramentas do gerenciador. (4) Clique no botão “Edição gráfica do desenho” para iniciar o modelador estrutural. Assim que o comando é executado, a janela do Modelador Estrutural será aberta. Os elementos estruturais do pavimento TERREO são mostrados.
  • 96.
    92 Elementos Inclinadose Escadas - TQS TQS Informática Ltda Rua dos Pinheiros 706 c/2 05422-001 São Paulo SP Tel (011) 3083-2722 Fax 3083-2798 www.tqs.com.br Inicialmente iremos fazer o lançamento da rampa. Ela deverá ser apoiada em duas vigas inclinadas em suas laterais e uma viga no início e fim da rampa (estas últimas já estão lançadas). Primeiramente devemos ativar a barra de ferramentas para “Elementos inclinados”. (1) Clique sobre o botão “Barra de ferramentas de elemento inclinado” Todos os comandos presentes nesta barra também podem ser acessados através do me- nu “Inclinados”.
  • 97.
    Exemplo 1 93 8.5.Inserindo a Rampa Inicialmente vamos inserir as vigas inclinadas, cuja seção é de 20 x 50 cm e carregada com 0,6 tf/m. Vamos definir a geometria através do botão “Dados de viga inclinada” ou através do menu “Inclinados” – “Dados atuais p/ viga inclinada”. (1) Clique no botão “Dados de viga inclinada” ou (2) Clique no menu “Inclinados” – “Dados atuais p/ viga inclinada”.
  • 98.
    94 Elementos Inclinadose Escadas - TQS TQS Informática Ltda Rua dos Pinheiros 706 c/2 05422-001 São Paulo SP Tel (011) 3083-2722 Fax 3083-2798 www.tqs.com.br (1) Clique na guia “Seção/Carga” (2) Defina a Largura da viga (3) Defina a Altura da viga (4) Defina a Carga distribuída na viga (5) Clique no botão OK Após a definição da geometria iremos inserir as viga inclinadas da rampa. A inserção de vigas inclinadas é feita através do comando “Inclinados” – “Viga Inclinada”: Após o comando ser acionado, surgirá a janela “Pavimento inferior de apoio do elemen- to 3D”, onde deve ser indicado o pavimento onde as vigas inclinadas se apóiam, neste caso a Fundação.
  • 99.
    Exemplo 1 95 (1)Clique sobre o pavimento “Fundação” (2) Clique sobre o botão “OK” O comando pede para definirmos o ponto inicial da viga. (1) Clique sobre o CG do pilar P5, aperte <ENTER>.
  • 100.
    96 Elementos Inclinadose Escadas - TQS TQS Informática Ltda Rua dos Pinheiros 706 c/2 05422-001 São Paulo SP Tel (011) 3083-2722 Fax 3083-2798 www.tqs.com.br Automaticamente o “Modelador Estrutural” altera o pavimento atual para a Fundação para definirmos o ponto final da viga inclinada. (2) Clique sobre o CG do pilar P6. Após a definição do segundo ponto o Modelador insere a viga VR1 e volta ao pavi- mento TERREO. OBS: as vigas inclinadas são denotadas pela sigla VR. Sua numeração é seqüencial para todo o edifício. Agora vamos inserir a segunda viga inclinada utilizando o mesmo processo. Utilizando o mesmo comando: “Inclinados” – “Viga Inclinada”.
  • 101.
    Exemplo 1 97 (1)Clique sobre o pavimento “Fundação” (2) Clique sobre o botão “OK” Agora os pontos inicial e final: (1) Clique sobre o encontro da V3 com a V1 no pilar P1, aperte <ENTER>.
  • 102.
    98 Elementos Inclinadose Escadas - TQS TQS Informática Ltda Rua dos Pinheiros 706 c/2 05422-001 São Paulo SP Tel (011) 3083-2722 Fax 3083-2798 www.tqs.com.br (2) Clique sobre o encontro da V1 com a V4 no pilar P2. Desta forma os contornos da rampa ficam totalmente definidos. Para a inserção da laje inclinada é necessário primeiramente definir sua seção e carga, sendo utilizado para isso o comando “Inclinados” – “Dados atuais p/ laje inclinada”:
  • 103.
    Exemplo 1 99 (1)Clique na guia “Seção/Carga”. (2) Defina a espessura da laje da rampa como 12cm. (3) Clique no botão “Alterar”. (4) Defina o valor da Carga permanente como 0,40 tf/m2 . (5) Defina o valor da Carga acidental como 0,20 tf/m2 . (6) Clique sobre o botão “OK” da janela “Definição de Carregamentos”. (7) Clique sobre o botão “OK” da janela “Dados de rampas”. É necessário agora o lançamento da laje inclinada, para isso utiliza-se o comando “In- clinados” – “Laje inclinada”.
  • 104.
    100 Elementos Inclinadose Escadas - TQS TQS Informática Ltda Rua dos Pinheiros 706 c/2 05422-001 São Paulo SP Tel (011) 3083-2722 Fax 3083-2798 www.tqs.com.br (1) Clique sobre o pavimento “Fundação” (2) Clique sobre o botão “OK” É necessário agora indicar os elementos de contorno da laje inclinada. OBS: Olhando atentamente o lançamento dos elementos do pavimento TÉRREO, po- demos observar que as vigas VR1, VR2, V3 e V4 (do Sub-Solo) não formam um con- torno fechado em planta. É necessário incluir na seleção de contornos os pilares P1 e P2 para que as faces da laje inclinada fiquem totalmente definidas pelas faces dos ele- mentos selecionados. Primeiramente os elementos de contorno superiores: (1) Clique sobre o segundo trecho da viga V3 (2) Clique sobre o pilar P1 e tecle <ENTER> Em seguida os elementos de contorno inclinados:
  • 105.
    Exemplo 1 101 (3)Clique sobre a viga inclinada VR1 (4) Clique sobre a viga inclinada VR2 e tecle <ENTER> Por último os elementos de contorno inferiores: (5) Clique sobre o segundo trecho da viga inclinada V4 (6) Clique sobre o pilar P2 e tecle <ENTER>
  • 106.
    102 Elementos Inclinadose Escadas - TQS TQS Informática Ltda Rua dos Pinheiros 706 c/2 05422-001 São Paulo SP Tel (011) 3083-2722 Fax 3083-2798 www.tqs.com.br É necessário agora indicar um ponto sobre a laje e indicar uma linha na direção princi- pal da laje inclinada, que neste caso será considerada como vertical: (7) Clique sobre um ponto dentro dos limites da laje inclinada. (8) Clique sobre uma das linhas verticais e tecle <ENTER> Assim, definimos a laje inclinada deste Exemplo 1. É aconselhavél agora salvar as alterações no pavimento TERREO com o comando “Arquivo” – “Salvar modelo estru- tural”:
  • 107.
    Exemplo 1 103 Paravisualizarmos melhor o lançamento da laje inclinada e das vigas podemos entrar no modelo 3D do edifício, para isso utilizamos o comando “Modelo” – “Visualização 3D”: (1) Clique em Fundação como planta inicial. (2) Clique em TERREO como planta final. (3) Clique “OK”. Utilizando as teclas de navegação, na barra de ferramentas superior, podemos visuali- zar melhor a rampa. Note que a escada do TERREO para a fundação já foi lançada.
  • 108.
    104 Elementos Inclinadose Escadas - TQS TQS Informática Ltda Rua dos Pinheiros 706 c/2 05422-001 São Paulo SP Tel (011) 3083-2722 Fax 3083-2798 www.tqs.com.br Para sair no Visualizador Tridimensional execute o comando “Arquivo” – “Sair”. 8.6. Inserindo a Escada do 2PAV Apenas para demonstrar o lançamento de um lance simples de escada iremos lançar a escada que começa no 2PAV e termina no 1PAV. As demais escadas já estão lançadas neste Exemplo 1. Os lances das escadas são apoiados em vigas inclinadas em suas laterais e em lajes (pa- tamares) em seus extremos. Inicialmente vamos lançar os patamares da escada, em se- guida as viga inclinadas e por último a escada. Primeiramente vamos acessar o pavimento 2PAV com o comando “Modelo” – “Pavi- mento atual”.
  • 109.
    Exemplo 1 105 (1)Clique para abrir a lista de pavimentos. (2) Selecione o pavimento 2PAV e clique. Toda escada é definida pelos lances e seus respectivos patamares. Neste Exemplo 1, os patamares têm espessura igual a da laje no pavimento (h = 12 cm). É necessário inserir dois patamares, um de saída da escada (no 2PAV) e um de chegada (no 1PAV que já foi inserido). Vamos definir a seção e carga do patamar da escada com o comando “Inclinados” – “Dados de Patamar”.
  • 110.
    106 Elementos Inclinadose Escadas - TQS TQS Informática Ltda Rua dos Pinheiros 706 c/2 05422-001 São Paulo SP Tel (011) 3083-2722 Fax 3083-2798 www.tqs.com.br (1) Clique na guia “Seção/Carga”. (2) Defina a espessura da laje da rampa como 12cm. (3) Clique no botão “Alterar”. (4) Defina o valor da Carga permanente como 0,40 tf/m2 . (5) Defina o valor da Carga acidental como 0,20 tf/m2 . (6) Clique sobre o botão “OK” da janela “Definição de Carregamentos”. (7) Clique sobre o botão “OK” da janela “Dados de patamares de escadas”. Para a inserção de patamares utiliza-se o comando “Inclinados” – “Patamar de escada”. O comando pede para que seja definido um ponto sobre a laje e a direção principal da laje.
  • 111.
    Exemplo 1 107 (1)Clique sobre um ponto sobre os limites do patamar. (2) Digite “0” e aperte <ENTER>, para definir a direção principal como sendo 0º. É necessário agora lançar as vigas inclinadas onde o lance da escada se apoiará. Para fazermos isso utiliza-se o comando “Inclinados” – “Viga inclinada” Neste caso o pavimento inferior de apoio do elementos inclinado é o 1PAV.
  • 112.
    108 Elementos Inclinadose Escadas - TQS TQS Informática Ltda Rua dos Pinheiros 706 c/2 05422-001 São Paulo SP Tel (011) 3083-2722 Fax 3083-2798 www.tqs.com.br (1) Clique no 1PAV. (2) Clique no botão “OK” (1) Clique para definir o primeiro ponto da viga e tecle <ENTER>. A planta atual é automaticamente alterada para a definição do segundo ponto:
  • 113.
    Exemplo 1 109 (2)Clique para definir o segundo ponto da viga inclinada. A viga VR7 é gerada, agora é necessário definir a segunda viga inclinada, VR8. Execu- te o comando “Inclinados” – “Viga inclinada” novamente, defina o 1PAV como pavi- mento inferior de apoio do elemento inclinado e entre com os ponto da viga inclinada: (1) Defina o primeiro ponto da viga e tecle <ENTER>.
  • 114.
    110 Elementos Inclinadose Escadas - TQS TQS Informática Ltda Rua dos Pinheiros 706 c/2 05422-001 São Paulo SP Tel (011) 3083-2722 Fax 3083-2798 www.tqs.com.br (2) Defina o segundo ponto da viga inclinada. Agora fazemos o lançamento do lance da escada utilizando o comando “Inclinados” – “Lance de Escada” O comando inicialmente pede o pavimento inferior de apoio do lance da escada, que neste caso é o 1PAV.
  • 115.
    Exemplo 1 111 (1)Clique no 1PAV. (2) Clique no botão “OK” Posteriormente são pedidos os elementos de contorno da escada. Primeiramente os su- periores:
  • 116.
    112 Elementos Inclinadose Escadas - TQS TQS Informática Ltda Rua dos Pinheiros 706 c/2 05422-001 São Paulo SP Tel (011) 3083-2722 Fax 3083-2798 www.tqs.com.br (1) Clique sobre o bordo do patamar no 2 PAV e tecle <ENTER> Agora os contornos inclinados:
  • 117.
    Exemplo 1 113 (2)Clique sobre a VR7. (3) Clique sobre a VR8 e tecle <ENTER>. E os contornos inferiores:
  • 118.
    114 Elementos Inclinadose Escadas - TQS TQS Informática Ltda Rua dos Pinheiros 706 c/2 05422-001 São Paulo SP Tel (011) 3083-2722 Fax 3083-2798 www.tqs.com.br (4) Clique sobre o bordo do patamar no 1PAV e tecle <ENTER>. E por último é necessário definir um ponto sobre a escada e sua direção principal, que neste caso é 0º.
  • 119.
    Exemplo 1 115 (5)Clique dentro dos limites do lance da escada. (6) Digite “0” e tecle <ENTER>. Agora é necessário definir o detalhamento da escada (número de degraus e dimensões). Para isso editamos os dados da escada.
  • 120.
    116 Elementos Inclinadose Escadas - TQS TQS Informática Ltda Rua dos Pinheiros 706 c/2 05422-001 São Paulo SP Tel (011) 3083-2722 Fax 3083-2798 www.tqs.com.br (1) Aperte <F6> sobre o título do lance da escada.
  • 121.
    Exemplo 1 117 (1)Clique sobre a guia “Seção/Carga”. (2) Clique sobre o botão “Visualizar”. A janela “Dimensões de uma escada” é utilizada para o detalhamento da escada, sendo que as dimensões e ajustes podem ser fornecidos nela. (1) Digite o valor do passo, 27cm. (2) Digite o valor do espelho, 18 cm. (3) Aperte o botão “OK”. (4) Aperte o botão “OK” da janela “Dados de escadas”. OBS: Como as dimensões utilizadas não “fecham” o vão do lance perfeitamente, o próprio programa já calcula o ajuste necessário, lançando este no patamar inferior. Assim, terminamos a definição dos elementos inclinados deste Exemplo 1. É aconse- lhável agora salvar as alterações no pavimento TERREO com o comando “Arquivo” – “Salvar modelo estrutural”:
  • 122.
    118 Elementos Inclinadose Escadas - TQS TQS Informática Ltda Rua dos Pinheiros 706 c/2 05422-001 São Paulo SP Tel (011) 3083-2722 Fax 3083-2798 www.tqs.com.br Para visualizarmos todo o edifício em 3D utilizamos o comando “Modelo” – “Visuali- zação 3D”:
  • 123.
    Exemplo 1 119 (1)Clique sobre a “Fundação” para Planta inicial. (2) Clique sobre a “Cobertura” para Planta final. (3) Aperte o botão “OK”.
  • 124.
    120 Elementos Inclinadose Escadas - TQS TQS Informática Ltda Rua dos Pinheiros 706 c/2 05422-001 São Paulo SP Tel (011) 3083-2722 Fax 3083-2798 www.tqs.com.br Pode-se “Andar” pelo edifício através das ferramentas de navegação da barra de ferra- mentas. Após visualizar o modelo 3D do edifício sai com o comando “Arquivo” – “Sa- ir” 8.7. Calculando o Edifício Na seqüência execute o comando “Arquivo” – “Sair”, salvando as alterações realizadas, para fechar o Modelador Estrutural e voltar para o Gerenciador Principal do Sistema CAD/TQS. É possível calcular todo o edifício através de um único comando, chamado de “Proces- samento Global” encontrado no menu “Processar”.
  • 125.
    Exemplo 1 121 Nogerenciador, ative o sistema CAD/Formas e execute o comando. (1) Selecione “extração gráfica e processamento” (2) Selecione “Desenhar planta de formas” (3) Selecione “Esforços e desenho” (4) Selecione “Dimensionamento, detalhamento, desenho” (5) Selecione “Dimensionamento, detalhamento, desenho” (6) Selecione “Dimensionamento, detalhamento, desenho” (7) Selecione “Relatório geral de pilares” (8) Clique no botão “OK”
  • 126.
    122 Elementos Inclinadose Escadas - TQS TQS Informática Ltda Rua dos Pinheiros 706 c/2 05422-001 São Paulo SP Tel (011) 3083-2722 Fax 3083-2798 www.tqs.com.br Neste comando, todos os elementos do edifício (vigas, pilares, lajes e elementos incli- nados) serão calculados, dimensionados e detalhados de acordo com o modelo estrutu- ral e os critérios adotados. 8.8. Visualização do Resumo Estrutural Após o processamento é possível visualizar um resumo geral que possui informações relevantes do processamento, tais como: dados gerais do edifício, modelo estrutural adotado e ações consideradas, estabilidade global e análise em serviço (ELS) e parâme- tros qualitativos/quantitativos e consumos. A visualização do Resumo Estrutural possi- bilita uma visão global rápida do comportamento da estrutura após o dimensionamento. Utilize o comando: “Resumo Estrutural” no gerenciador para a visualização destes da- dos:
  • 127.
    Exemplo 1 123 8.9.Visualização dos Avisos e Erros De volta ao gerenciador principal do Sistema CAD/TQS, execute o comando “Visuali- zar” – “Avisos e erros” para verificar possíveis erros e as mensagens de avisos que o- correram durante o processamento. OBS: Neste exemplo há alguns erros leves e médios. (1) Para fechar o “Visualizador de erros”
  • 128.
    124 Elementos Inclinadose Escadas - TQS TQS Informática Ltda Rua dos Pinheiros 706 c/2 05422-001 São Paulo SP Tel (011) 3083-2722 Fax 3083-2798 www.tqs.com.br 8.10. Visualização dos Resultados De volta ao gerenciador principal do Sistema CAD/TQS, vamos visualizar a grelha do pavimento TERREO. (1) Selecione o pavimento TERREO na árvore do edifício (2) Acesse o Grelha - TQS (3) Acesse o “Visualizar” – “Visualizador de Grelhas – Espacial”
  • 129.
    Exemplo 1 125 (1)Execute o comando “Arquivo” – “Sair”, para voltar ao gerenciador principal dos Sistemas CAD/TQS. No que tanto a rampa quanto a escada fazem parte do modelo do pavimento. Vamos agora visualizar o pórtico espacial.
  • 130.
    126 Elementos Inclinadose Escadas - TQS TQS Informática Ltda Rua dos Pinheiros 706 c/2 05422-001 São Paulo SP Tel (011) 3083-2722 Fax 3083-2798 www.tqs.com.br (1) Acesse o Pórtico - TQS (2) Acesse o “Visualizar” – “Visualizador de pórticos” – “Estado limite último (ELU)”
  • 131.
    Exemplo 1 127 (1)Execute o comando “Arquivo” – “Sair”, para voltar ao gerenciados dos Sistemas CAD/TQS. Note que as vigas inclinadas dos lances das escadas e da rampa fazem parte do modelo de pórtico espacial. Agora, vamos visualizar o desenho de armação positiva da lajes do TERREO para ob- servar a armação da rampa.
  • 132.
    128 Elementos Inclinadose Escadas - TQS TQS Informática Ltda Rua dos Pinheiros 706 c/2 05422-001 São Paulo SP Tel (011) 3083-2722 Fax 3083-2798 www.tqs.com.br (1) Acesse o Laje - TQS (2) Selecione o pavimento TERREO na árvore do edifício (3) Selecione o desenho de “ARPXXXX – Armação positiva de lajes” (4) Clique no botão “Edição gráfica do desenho”.
  • 133.
    Exemplo 1 129 (1)Execute o comando “Arquivo” – “Sair”, para voltar ao gerenciador principal dos Sistemas CAD/TQS. Para visualizar as armaduras das vigas inclinadas:
  • 134.
    130 Elementos Inclinadose Escadas - TQS TQS Informática Ltda Rua dos Pinheiros 706 c/2 05422-001 São Paulo SP Tel (011) 3083-2722 Fax 3083-2798 www.tqs.com.br (1) Acesse o Viga – TQS (2) Selecione o desenho de “00038001 – Viga 8001” (3) Clique no botão “Edição gráfica do desenho”.
  • 135.
    Exemplo 1 131 (1)Execute o comando “Arquivo” – “Sair”, para voltar ao gerenciador principal dos Sistemas CAD/TQS. OBS: A Sistema CAD/TQS não faz o detalhamento da armadura de vigas inclinadas sendo imprescindível a edição destes desenhos. E finalmente, vamos visualizar a armadura dimensionada para a escada.
  • 136.
    132 Elementos Inclinadose Escadas - TQS TQS Informática Ltda Rua dos Pinheiros 706 c/2 05422-001 São Paulo SP Tel (011) 3083-2722 Fax 3083-2798 www.tqs.com.br (1) Acesse o Escada – TQS (2) Selecione o desenho de “Escada-1 – Armação de escadas” (3) Clique no botão “Edição gráfica do desenho”.
  • 137.
    Exemplo 1 133 (1)Execute o comando “Arquivo” – “Sair”, para voltar ao gerenciador principal dos Sistemas CAD/TQS. 8.11. Recapitulando o Exemplo Vamos recapitular alguns dos itens importantes que foram vistos durante a resolução deste exemplo: Capítulo Item Visto Acessando o Exemplo Como acessar um edifício dentro da árvore do programa Editando Dados do Edi- fício Como adicionar elementos inclinados em um pavimento já existente Acessando os Elementos Inclinados no Modelador Como acessar a barra de ferramentas para elementos in- clinados Como acessar os comandos de elementos inclinados pelo menu Inserindo a Rampa Como inserir vigas inclinadas Como inserir uma laje inclinada
  • 138.
    134 Elementos Inclinadose Escadas - TQS TQS Informática Ltda Rua dos Pinheiros 706 c/2 05422-001 São Paulo SP Tel (011) 3083-2722 Fax 3083-2798 www.tqs.com.br Como determinar os elementos de contorno de uma laje inclinada Como acessar o modelo tridimensional de um pavimento Inserindo a Escada do 2PAV Como inserir patamares de escadas Como inserir vigas inclinadas Como inserir um lance de escada Como alterar os dados de um lance de escada Como acessar o modelo tridimensional de um edifício Calculando o Edifício Como calcular o edifício inteiro através do Processamento Global Visualização dos Erros Como verificar os erros de um pavimento Visualização dos Resul- tados Como visualizar a grelha de um pavimento Como visualizar o pórtico de um edifício Como visualizar a armação da rampa Como visualizar a armação de uma viga inclinada Como visualizar a armação de uma escada
  • 139.
    Exemplo 2 135 9.Exemplo 2 Neste exemplo utilizaremos o processo simplificado presente dentro do Escada – TQS para o dimensionamento, detalhamento e desenho de uma escada de dois lances e dois patamares. Este exemplo foi retirado da apostila CONCRETO ARMADO: ESCADAS da Escola de Engenharia de São Carlos – USP, cujos autores são os prof. Melges, Pinheiro e Gi- ongo. 9.1. Entendendo o Exemplo 2 A forma estrutural é apresentada abaixo: 570 22 22143 1438x30=240 2215515522 P1(22x40) P2(22x40) P3(22x40) P4(22x40) VE1(22x30) VE3(22x30) VT2(22x50) VT1(22x50) VE4(22x30) L1 L2 L3 L4 VT3(22x50) VT4(22x50) Os carregamentos são: 0,16 tf/m2 de carga permanente e 0,3 tf/m2 de carga acidental para os patamares e para os lances da escada. A espessura das lajes é de 10 cm. Os es- pelhos tem dimensição de 16,67 cm, aproximadamente.
  • 140.
    136 Elementos Inclinadose Escadas - TQS TQS Informática Ltda Rua dos Pinheiros 706 c/2 05422-001 São Paulo SP Tel (011) 3083-2722 Fax 3083-2798 www.tqs.com.br Vamos acessar a pasta “Escadas” dentro do 2PAV do Edifício MODESC
  • 141.
    Exemplo 2 137 9.2.Acessando o Escadas – TQS / Processo Simpli- ficado (1) Clique sobre a pasta “Escadas” do 2PAV do Edifício MODESC. (2) Acesse o Escada – TQS. (1) Acesse o comando “Processar” – “Processo Simplificado”
  • 142.
    138 Elementos Inclinadose Escadas - TQS TQS Informática Ltda Rua dos Pinheiros 706 c/2 05422-001 São Paulo SP Tel (011) 3083-2722 Fax 3083-2798 www.tqs.com.br 9.3. Entrando com os Dados (1) Clique sobre a guia “Geometria”. (2) Clique sobre a opção “Dois lances”. (3) Digite os valores da geometria da escada.
  • 143.
    Exemplo 2 139 (1)Clique sobre a guia “Degraus”. (2) Clique no botão “Visualizar”. (3) Entre com o valor do passo, 30 cm. (4) Entre com o valor do espelho, 16,67 cm. (5) Clique no botão “OK”. (1) Clique sobre a guia “Vinculações”. (2) Defina as vinculações da escada: os patamares são apoiados tendo um bordo livre e os lances de escada são apoiados nos extremos e na lateral externa e livre na lateral in- terna.
  • 144.
    140 Elementos Inclinadose Escadas - TQS TQS Informática Ltda Rua dos Pinheiros 706 c/2 05422-001 São Paulo SP Tel (011) 3083-2722 Fax 3083-2798 www.tqs.com.br (1) Clique sobre a guia “Carregamentos”. (2) Defina os carregamentos permanentes, 0,16 tf/m2 . (3) Defina os carregamentos acidentais, 0,30 tf/m2 . Todos os dados necessários para o dimensionamento da escada foram inseridos. Agora é necessário que o arquivo seja salvo para que possamos fazer o processamento destes dados:
  • 145.
    Exemplo 2 141 (1)Acesse o comando “Arquivo” – “Salvar”. (2) Digite um nome para o arquivo. (3) Aperte o botão “Salvar” OBS: o arquivo da escada pelo processo simplificado deve sempre ser salvo em uma pasta de “ESCADAS” referente a algum dos pavimentos.
  • 146.
    142 Elementos Inclinadose Escadas - TQS TQS Informática Ltda Rua dos Pinheiros 706 c/2 05422-001 São Paulo SP Tel (011) 3083-2722 Fax 3083-2798 www.tqs.com.br 9.4. Calculando a Escada (1) Clique sobre a guia “Armaduras” (2) Aperte o botão “Dimensionamento” (3) Aperte o botão “Detalhamento” 9.5. Visualizando os Resultados Ao clicar sobre o botão “Dimensionamento” são feitos os cálculos e gerado um relató- rio de dimensionamento da escada, para visualizá-lo execute o comando “Armaduras” – “Listagem do dimensionamento”.
  • 147.
    Exemplo 2 143 Aoclicar sobre o botão “Detalhamento” é gerado um desenho de detalhamento da ar- madura, que pode ser editado através do comando “Armaduras” – “Editar Desenho”.
  • 148.
    144 Elementos Inclinadose Escadas - TQS TQS Informática Ltda Rua dos Pinheiros 706 c/2 05422-001 São Paulo SP Tel (011) 3083-2722 Fax 3083-2798 www.tqs.com.br
  • 149.
    Exemplo 3 145 10.Exemplo 3 Neste exemplo iremos colocar uma escada com dois lances apoiados em patamares no edifício exemplo TQS MODPLA. Escolheremos o pavimento 4PAV, que se repete três vezes. Como resultado, o detalhamento será o de uma escada com repetição. Os patamares serão engastados e delimitados pelos pilares P5 e P6. O pavimento tem pé-direito de 2.80m. Para que este pavimento possa receber elementos inclinados, e para definir o nível do patamar 1.40m abaixo deste nível, será necessário primeiro defi- nir esta condição no edifício:
  • 150.
    146 Elementos Inclinadose Escadas - TQS TQS Informática Ltda Rua dos Pinheiros 706 c/2 05422-001 São Paulo SP Tel (011) 3083-2722 Fax 3083-2798 www.tqs.com.br Teremos os patamares L2 e L3 na planta 4PAV recebendo os lances de escadas. Como os apoios serão de laje sobre laje, delimitaremos os contornos com fechamentos de bor- dos. Vamos primeiro definir estes fechamentos planos e os patamares (comando "Lajes, Apoios, Fechamentos de bordo"), primeiramente para o pavimento atual:
  • 151.
    Exemplo 3 147 Repetimosessa operação para o piso auxiliar do pavimento, definindo assim os bordos do patamar L2: Como todos os lances do tipo menos o mais baixo se apoiam no tipo, o lance inferior da escada será declarado apoiando no patamar do tipo. Por enquanto não é necessário defi- nir o patamar no 3PAV.
  • 152.
    148 Elementos Inclinadose Escadas - TQS TQS Informática Ltda Rua dos Pinheiros 706 c/2 05422-001 São Paulo SP Tel (011) 3083-2722 Fax 3083-2798 www.tqs.com.br Lançaremos patamares com espessura de 12 cm e sobrecargas de 0.4 tf/m2. É importan- te que sejam lançados como patamares e não como lajes comuns, para formarem a ge- ometria da escada. No menu de elementos inclinados, selecione "Dados de patamares": A janela de dados de patamares e lances é semelhante à de escadas. Preste atenção para que o nome atribuído à escada de todos os elementos que fazem parte dela seja o mes- mo: O comando de inserção de patamares funciona como o de inserção de uma laje comum. Com este comando definiremos os dois patamares do tipo:
  • 153.
    Exemplo 3 149 Oslances tem bordo livre e por isto são delimitados por fechamentos de bordo inclina- dos. Precisamos de dois fechamentos, partindo da L3 e chegando na L2. O fechamento de bordo parte da pavimento atual e vai até o pavimento selecionada nesta janela: Comando: “Inclinados, Fechamento de bordo” Os fechamentos de bordos são definidos por N pontos, onde o último está no pavimento inferior de apoio. Como temos apenas uma reta entre os dois pavimentos, definimos o primeiro ponto, apertamos <B3> e o segundo ponto no patamar inferior: Linha múltipla - ponto 1 (ou FRXPDCLUW): <B1> no PT1 Linha múltipla - ponto 2 (ou FRXPDCLUW): <Enter> Defina o ponto final no piso inferior: <B1> no PT2 Repetimos esta operação com os pontos PT3 e PT4 para fechar a outra lateral deste lance (neste caso precisamos de uma construção geométrica de ponto médio). Precisa- mos agora ligar o patamar L2 do tipo com o L3 no piso de baixo da mesma maneira, mudando-se os pontos:
  • 154.
    150 Elementos Inclinadose Escadas - TQS TQS Informática Ltda Rua dos Pinheiros 706 c/2 05422-001 São Paulo SP Tel (011) 3083-2722 Fax 3083-2798 www.tqs.com.br Já temos os contornos definidos para os lances de escadas. Vamos inseri-los em duas etapas. Inicialmente inseriremos os lances sem os degraus dimensionados, em seguida dimensionaremos os degraus alterando a escada. Comando: "Inserir um lance de escada" O comando pedirá a seleção do pavimento inferior onde será apoiado este lance. É a mesma informação que demos para o fechamento de bordo: A seguir selecionamos elementos de contorno do piso superior e inclinado, ainda na pavimento atual (a linha de contorno do PT2 pode estar por debaixo das demais linhas): Elementos de contorno do piso superior: <B1> no PT1 Elementos de contorno do piso superior: <B3> Elementos do contorno inclinado: <B1> no PT2 Elementos do contorno inclinado: <B1> no PT3 Elementos do contorno inclinado: <B3> Selecionamos agora os elementos de contorno no piso auxiliar: Elementos do contorno inferior: <B1> no PT4 Elementos do contorno inferior: <B3>
  • 155.
    Exemplo 3 151 Porúltimo, entramos um ponto para posicionar o título do lance e a direção principal, como numa laje comum: Defina um ponto sobre a laje: <B1> no PT5 Linha na direção principal ou ângulo: <B3> Isto define o lance E1. Repetindo esta operação a partir do piso auxiliar 1.40, definire- mos o lance E2. Note que como este é um andar tipo, o piso final de apoio do E2 será o 4PAV/Nível zero e não o 3PAV/Nível zero. Vamos agora dimensionar os degraus do E1. Pedindo a alteração do lance E1, na janela "Seção/Carga" vemos os dados do degrau zerados, mas o espaço e desnível definidos. Podemos chamar a calculadora com o botão "Visualizar":
  • 156.
    152 Elementos Inclinadose Escadas - TQS TQS Informática Ltda Rua dos Pinheiros 706 c/2 05422-001 São Paulo SP Tel (011) 3083-2722 Fax 3083-2798 www.tqs.com.br Fixando-se o passo em 28 cm e apertando o botão "Sugerir", teremos calculado o espe- lho de 17.5 cm e o ajuste inicial de 19cm. Note que o desenho esquemático do lance à direita se altera dinamicamente conforme os valores à esquerda são alterados. Basta agora repetir esta operação para os degraus do lance E2.
  • 157.
    Exemplo 3 153 Opavimento abaixo do 4PAV é o 3PAV e não tem repetição, tendo este o Mezanino abaixo. Para inserirmos uma escada no 3PAV o procedimento é o mesmo, com uma pequena diferença: o lance de escada inferior se apoia no Mezanino, e por isto o pata- mar do mezanino precisa ser definido também. Após o lançamento das escadas do edifício salva-se o modelo estrutural. 10.1. Critérios de escadas Como o patamar superior L3 é engastado, vamos adotar o critério de separar a armadu- ra negativa do patamar superior da armadura positiva do lance, para evitar o superdi- mensionamento da última. Para fazer essa alteração utilizamos o menu “Editar, Critérios de escadas”. Na guia “Dimensionamento” aperta-se o botão “Detalhamento”:
  • 158.
    154 Elementos Inclinadose Escadas - TQS TQS Informática Ltda Rua dos Pinheiros 706 c/2 05422-001 São Paulo SP Tel (011) 3083-2722 Fax 3083-2798 www.tqs.com.br Na janela de detalhamento aperta-se o botão “Ancoragem da armadura inferior do lance no patamar superior”. Na janela de opções adota-se a (0), ou seja: As armaduras inferio- res do lance e superior do patamar superior são independentes. A armadura do lance ancora no patamar:
  • 159.
    Exemplo 3 155 10.2.Processamento da estrutura O processamento global garante que todos os pavimentos sejam processados e respecti- vos esforços sejam transferidos para escadas. Você pode processar manualmente um pavimento para ter os esforços nas escadas da seguinte maneira:  Se o pavimento tiver transições, o edifício já deve ter sido processado pelo menos uma vez globalmente para que as cargas na base dos pilares que nascem entrem na grelha.  Processar o arquivo LDF do pavimento  Gerar o modelo de grelha, até a transferência para lajes.  Se uma escada do pavimento atual se apoiar em um patamar do pavimento de bai- xo, processar este também, até a grelha. Garantidos os esforços processados, você seleciona a aplicação "Escadas-TQS" no ge- renciador ou a pasta de escadas para o paivmento atual, e executa o comando no menu "Processar":
  • 160.
    156 Elementos Inclinadose Escadas - TQS TQS Informática Ltda Rua dos Pinheiros 706 c/2 05422-001 São Paulo SP Tel (011) 3083-2722 Fax 3083-2798 www.tqs.com.br Como resultado, teremos o memorial de cálculo no menu "Visualizar" e um desenho com o desenho de armaduras da escada:
  • 161.
    TQS Informática Ltda R.dos Pinheiros, 706 c/2 São Paulo SP 05422-001 Tel (011) 3083-2722 Fax (011) 3083-2798 tqs@tqs.com.br www.tqs.com.br