Este catálogo foi desenvolvido para aperfeiçoar nossa comunicação
e simplificar suas compras, uma vez que facilita e auxilia na procura
pelo produto desejado.
Algumas instruções são importantes em sua consulta:
O catálogo está subdividido por marcas em ordem alfabética, com
páginas numeradas.
Caso você não encontre determinado produto de algum fabricante,
procure imediatamente em peçasAlfa. Se o problema persistir, entre
em contato com nosso departamento de vendas.
Algumas peças estão organizadas em Famílias, e caso a foto do
produto não corresponda ao que procura, verifique o código e
descrição completos, porque certamente você encontrará o que
precisar.
Esteja certo de que trabalhamos para oferecer-lhe o melhor. Nós
estamos sempre atentos e prontos para solucionar quaisquer
problemas em transporte vertical.
Trabalhamos também com Elevadores novos e completos, você
compra e instala com suporte técnico daAlfa ou você compra e aAlfa
entrega instalado.
Qualquer que seja sua necessidade entre em contato, possuímos
uma equipe de vendas treinada a sua disposição, conte sempre com
nossa força e apoio técnico.
Obs.: As fotos e as características dos produtos existentes nesse
catálogo são ilustrativas e podem sofrer alterações sem aviso prévio.
Alfa, de 1 sensor a 1 elevador!
1
2
A
ACABAMENTO DIFUSOR PARA TETO
ACABAMENTO DIFUSOR PARA TETO
ACABAMENTO DIFUSOR PARA TETO
ACABAMENTO PARA TETO
ACABAMENTO PARA TETO
ACABAMENTO PARA TETO
K100059
K100058
K100057
ACOLCHOADO PARA CABINA
ALAVANCA PARA FECHADOR
ALAVANCA PARA FECHADOR
ALAVANCA PARA FECHADOR
ARCADA
L100002
H100587
L100124
L100125
I100231
3
A
Algodão 1400 x 1400 x 1400 x 2200 mm
Lonita 1400 x 1400 x 1400 x 2200 mm
Poliéster 1400 x 1400 x 1400 x 2200 mm
Para cotação informar as seguintes medidas internas da cabina:
Profundidade, largura e altura
EV ELEMAQ lado reversível esquerdo (foto ao lado)
FECHOMATIC lado esquedo reversível (foto ao lado)
EV direita (foto ao lado)
EV esquerda
Para elevador hidráulico
4
H100011
ARRUELA
H000761
J1RE065
BARRA RÉGUA PARA SUSPENSÃO
Barramento de rotor (gaiola)
BARRAMENTO DE ROTOR
M1NM001
M1NM002
BARREIRA INFRA VERMELHA
I100071
BASE DE BORRACHA
I100251
BASE PARA MÁQUINA DE TRACÃO
AB
Nylon ø e 22 mm x ø I 10 mm x 2 mm p/ pick up de parada
10 x 40 mm - cantos arredondados Alfa (foto ao lado)
12 x 48 mm - canto superior redondo e inferior reto
J100100
94 feixes modelo 620 - 9 x 24 x 2000mm
154 feixes modelo 632 - 9 x 24 x 2000mm
Alcance: largura até 4m x altura 1,8m
100 X 100 mm para máquina de tração
Base p/ máquina de tração
BATENTE PARA PORTA DE PAVIMENTO
BOBINA P/ CHAVE DE COMUTAÇÃO
BOBINA P/ CHAVE DE COMUTAÇÃO
BOTÃO ALX 400
BOTÃO ALX 500
Verde pino curto
Verde - pino longo
Verde - pino médio
Vermelho - pino curto
Vermelho - pino longo
Vermelho - pino médio
-
5
B
N100054
N100043
N100044
N100045
N100046
N100047
Verde - pino curto
Verde - pino longo
Verde - pino médio
Vermelho - pino curto
Vermelho - pino longo
Vermelho - pino médio
N100048
N100049
N100050
N100051
N100052
N100053
5HP 110V ELEV.
15HP 110V ELEV
N100013
N100016
15HP 110V ELEV.
25HP 50/75 núcleo 26mm ELEV.
36V ELEV.
N100029
N100012
N100010
Aço carbono, porta central 2m
Aço carbono, porta central 2,10m
Aço carbono, porta lateral 2m
Aço carbono, porta lateral 2,10
Aço inox, porta central 2m
Aço inox, porta central 2,10m
Aço inox, porta lateral 2m
Aço inox, porta lateral 2,10m
J100232
J100234
J100228
J100230
J100231
J100233
J100227
J100229
Obs.: Pino curto - painel de chamada padrão Alfa
Pino médio - painel Adv com micro
Pino longo - painel Seletron modelinho com palheta
Obs.: Pino curto - painel de chamada padrão Alfa
Pino médio - painel Adv com micro
Pino longo - painel Seletron modelinho com palheta
6
Com Led 110V-10K
Com Led 12V-470R
Com Led 24V-1K5
Com Led 75V-4K7
Com Led c/ diodo
Obs.: Somente para botoeiras Alfa
BOTÃO ALX 600
BOTÃO MX ALFA
BOTÃO MX
BOTÃO ALX 700 CÔNCAVO INOX - AZUL
BOTÃO ALX 700 CÔNCAVO INOX - VERDE
B
L1SC299
L1SC302
L1SC303
L1SC298
L1SC300
Botão MX - simples
• esse botão é fabricado p/ botoeiras ALFA o núcleo não
substitui o modelo SCHINDLER
- sem ledL1SC297
Sem iluminação c/ 1 contato NA
Sem iluminação c/ 1 contato NF
Diodo p/ comando microprocessado
Diodo + resistor 150R p/ comando Sectron
Diodo + resistor 470R p/ comando Simpac /
Eletem / Addtech
470R12V GC+
470R 12V chamada separada da iluminação
1K5 24V GC+
N100132
N100133
N100184
N100135
N100136
N100137
N100138
N100139
Inox polido - verde pino curto
Inox polido - verde - pino longo
Inox polido - verde - pino médio
Inox polido - vermelho - pino curto
Inox polido - vermelho - pino longo
Inox polido - vermelho - pino médio
-N100122
N100124
N100123
N100119
N100121
N100120
1K5 24V GC-
1K5 24V chamada separada da iluminação
Scanchip
4K7 50/75V GC+
4K7 50/75V GC-
10K 90V GC+
10K 90V GC-
12K 130V GC+
12K 130V chamada separada da Iluminação
N100140
N100141
N100142
N100143
N100144
N100145
N100146
N100147
Sem iluminação c/ 1 contato NA
Sem iluminação c/ 1 contato NF
Diodo p/ comando microprocessado
Diodo + resistor 150R p/ comando Sectron
Diodo + resistor 470R p/ comando Simpac /
Eletem / Addtech
470R 12V GC+
470R 12V chamada separada da Iluminação
1K5 24V GC+
N100148
N100149
N100150
N100151
N100152
N100153
N100154
N100155
1K5 24V GC-
1K5 24V chamada separada da Iluminação
Scanchip
4K7 50/75V GC+
4K7 50/75 GC-
10K 90V GC+
10K 90V GC-
12K 130V GC+
12K 130V chamada separada da iluminação
N100160
N100161
N100162
N100163
N100164
N100165
N100166
N100167
Obs.: Pino curto - painel de chamada padrão Alfa
Pino médio - painel Adv com micro
Pino longo - painel Seletron modelinho com palheta
BOTÃO ALX 700 CÔNCAVO INOX - VERMELHO
BOTOEIRAS DE CABINA
7
B
Sem iluminação c/ 1 contato NA
Sem iluminação c/ 1 contato NF
Diodo p/ comando microprocessado
Diodo + resistor 150R p/ comando Sectron
Diodo + resistor 470R p/ comando Simpac / Eletem /
Addtech
470R 12V GC+
470R 12V chamada separada da iluminação Scanchip
1K5 24V GC+
1K5 24V GC-
1K5 24V chamada separada da iluminação
4K7 50/75V GC+
4K7 50/75V GC-
10K 90V GC+
10K 90V GC-
12K 130V GC+
12K 130V chamada separada da iluminação
N100168
N100169
N100170
N100171
N100172
N100173
N100174
N100175
N100176
N100177
N100178
N100179
N100180
N100181
N100182
N100183
Obs.: a pastilha braile H104839 é vendida separadamente
1 - Tradicional, aço inox, botão ALX 400 vermelho, S, T, 1 a 8, AL, EM, janela para IPD, relógio, interc.
2 - Tradicional, aço inox, botão ALX 500 verde com braile, T, 1 a 14, AL, EM, 2 chaves, janela p/ IPD, relógio,
intermomunicador, luz de emergência.
3 - Tradicional, latão, botão ALX 400 vermelho, S, T, 1 a 8, AL, EM, janela para IPD, relógio, intercomunicador
4 - Tradicional, latão, botão ALX 500 verde, T, 1 a 8, AL, EM, janela para IPD, relógio, intercomunicador
5 - Tipo totem com dobras laterais, aço inox, botão ALX 400 vermelho, T, 1 a 10, AL, EM, 2 chaves, janela IPD, relógio,
intercomunicador, luz de emergência.
6 - Tipo totem, aço inox, botão ALX 600, com braile, T, 1 a 10, AL, AP, 2 chaves, janela IPD, relógio, intercomunicador,
luz de emergência.
Obs: Tipo totem - Altura: Distância do piso acabado até o subteto.
Conforme NBR 13994 altura mínima do primeiro botão 890 + ou – 25mm, altura máxima 1350 + ou – 25mm
Desenho de especificações nas páginas de apoio.
1 2 3 4 5 6
8
BOTOEIRAS DE PAVIMENTO
K100004
K100065
K100007
K100063
K100009
K100068
K100006
K100039
K100040
K100041
K100042
K100060
K100043
K100044
K100045
K100046
K100005
K100064
K100008
L100012
K100067
K100047
K100048
K100049
K100050
K100023
K100022
B
Botoeira de pavimento,
Botoeira de pavimento, 1 botão, 1 chave elétrica, sem caixa, com iluminação
Botoeira de pavimento, 1 botão, 1 janela para display, 1 chave elétrica, com caixa,
com Iluminação
Botoeira de pavimento, 1 botão, 1 janela para display,1 chave elétrica, sem caixa, com
Iluminação
Botoeira de pavimento, 1 botão, 2 janelas para display, 2 chaves elétricas, com caixa,
com Iluminação
Botoeira de pavimento, 1 botão, 2 janelas para display, 2 chaves elétricas, sem caixa,
com Iluminação
Botoeira de pavimento, 1 botão, 2 janelas para display, com caixa, com iluminação
Botoeira de pavimento, 1 botão, 2 setas, com caixa, com iluminação
Botoeira de pavimento, 1 botão, 2 setas, com caixa, sem iluminação
Botoeira de pavimento, 1 botão, 2 setas, sem caixa, com iluminação
Botoeira de pavimento, 1 botão, 2 setas. sem caixa sem iluminação
Botoeira de pavimento, 1 botão, 2 janelas para display, sem caixa, com iluminação
Botoeira de pavimento, 1 botão, sem setas, com caixa, com iluminação
Botoeira de pavimento, 1 botão, sem setas, com caixa, sem iluminação
Botoeira de pavimento, 1 botão, sem setas, sem caixa, com iluminação
Botoeira de pavimento, 1 botão, sem setas, sem caixa, sem iluminação
Botoeira de pavimento, 2 botões, 1 chave elétrica, com caixa, com iluminação
Botoeira de pavimento, 2 botões, 1 chave elétrica, sem caixa, com iluminação
Botoeira de pavimento, 2 botões, 1 janela para display, 1 chave elétrica, com caixa,
com Iluminação
Botoeira de pavimento, 2 botões, 2 janelas para display, 2 chaves elétricas, com
caixa, com iluminação
Botoeira de pavimento, 2 botões, 2 janelas para display, 2 chaves elétricas, sem
caixa, com Iluminação
Botoeira de pavimento, 2 botões, 2 janelas para display, com caixa com iluminação
Botoeira de pavimento, 2 botões, 2 janelas para display, com caixa, sem iluminação
Botoeira de pavimento, 2 botões, 2 janelas para display, sem caixa, com iluminação
Botoeira de pavimento, 2 botões, 2 janelas para display, sem caixa, sem iluminação
Botoeira de pavimento, 2 botões, 4 setas, com caixa, com iluminação
Botoeira de pavimento, 2 botões, 4 setas, com caixa, sem iluminação
1 botão, 1 chave elétrica, com caixa, com iluminação
1 -
2 -
3 -
4 -
K100035
K100036
K100037
K100038
K100061
K100035
Botoeira de pavimento, 1 botão, janela para display, com caixa, com iluminação.
Botoeira de pavimento, 1 botão, janela para display, sem caixa com iluminação.
Botoeira de pavimento, 1 botão, janela para display, sem caixa com iluminação.
Botoeira de pavimento, 1 botão, janela para display, com caixa com iluminação.
Botoeira de pavimento, 2 botões, 1 janela para display, com caixa, com iluminação.
Botoeira de pavimento, com dobras laterais, 1 botão, janela para display, sem caixa,
com iluminação.
1 2 3 4
BOTOEIRAS DE PAVIMENTO
BOTOEIRAS - MODELO TOTEM
9
B
Botoeira de pavimento,
Botoeira de pavimento, 2 botões, 4 setas, sem caixa, sem iluminação
Botoeira de pavimento, 2 botões, 1 janela para display, com caixa, com iluminação
Botoeira de pavimento, 2 botões sem setas, com caixa, com iluminação
Botoeira de pavimento, 2 botões sem setas, com caixa, sem iluminação
Botoeira de pavimento, 2 botões sem setas, sem caixa, com iluminação
Botoeira de pavimento, 2 botões sem setas, sem caixa, sem ilumunação
Botoeira de pavimento, 4 botões, 2 janelas para display, 2 chaves elétricas, com caixa com
iluminação
Botoeira de pavimento, 4 botões, 2 janelas para display, 2 chaves elétricas, sem caixa com
Iluminação
Botoeira de pavimento, 4 botões, 2 janelas para display, com caixa, com iluminação
Botoeira de pavimento, 4 botões, 2 janelas para display, sem caixa, com iluminação
Botoeira de pavimento, Horizontal, 2 botões, 2 janelas para display, 2 chaves elétricas, com
caixa com iluminação
Botoeira de pavimento, Horizontal, 2 botões, 2 janelas para display, 2 chaves elétricas, sem
caixa com iluminação
Botoeira de pavimento, Horizontal, 2 botões, 2 janelas para display, com caixa com iluminação
Botoeira de pavimento, Horizontal, 2 botões, 2 janelas para display, sem caixa, com iluminação
2 botões, 4 setas, sem caixa, com iluminaçãoK100021
K100020
K100062
K100051
K100052
K100053
K100054
K100014
K100069
K100013
K100070
K100011
K100072
K100010
K100071
• Para cotação de botoeiras (cabina ou pavimento) é necessário informar a composição: todos
os botões, (chamada e comando) chaves e acessórios (IPD, intercomunicador, luz de
emergência, caixa, braile, gravações etc).
• Preencher formulário de especificação de botoeira anexado no final do catálogo, arquivos de
apoio.
BOTÃO - CHAMADA SEPARADA DA ILUMINAÇÃO
10
BOTÃO - COMANDOS SIMPAC / ELETEM / ADDTECH
BOTÃO - COMANDOS ATLAS/OTIS/SUR
BOTÃO - COMANDOS JR – 80
BOTÃO - COMANDOS ELETRÔNICOS
BOTÃO - COMANDOS REAL/SCHINDLER
B
ATLAS OMEGA / EXCEL / ALFA DUAL / INFOLEV IFL 750
BLOCO ADITIVO
CABINAS
11
BC
Cabina em inox, 3 passageiros, sub-teto, corrimão, rodapé e piso rebaixado
Cabina em inox, 4 passageiros, sub-teto, corrimão, rodapé e piso rebaixado
Cabina em inox, 5 passageiros, sub-teto, corrimão, rodapé e piso rebaixado
Cabina em inox, 6 passageiros, sub-teto, corrimão, rodapé e piso rebaixado
Cabina em inox, 7 passageiros, sub-teto, corrimão, rodapé e piso rebaixado
Cabina em inox, 8 passageiros, sub-teto, corrimão, rodapé e piso rebaixado
Cabina em inox, 9 passageiros, sub-teto, corrimão, rodapé e piso rebaixado
Cabina em inox, 10 passageiros, sub-teto, corrimão, rodapé e piso rebaixado
Cabina em inox, 12 passageiros, sub-teto, corrimão, rodapé e piso rebaixado
Cabina em inox, 15 passageiros, sub-teto, corrimão, rodapé e piso rebaixado
Cabina em inox, 16 passageiros, sub-teto, corrimão, rodapé e piso rebaixado
L100191
L100192
L100193
L100194
L100195
L100196
L100197
L100198
L100201
L100199
L100200
BUCHA DE NYLON
Bloco aditivo 2NA-2NF-LA1D22H101019
Bucha de nylon p/ pick-up de paradaH100067
Da Vinci
Renoir Van Gogh Cezzani
BC
12
PARA MAIORES DETALHES ENTRE EM CONTATO
COM NOSSO DEPARTAMENTO DE VENDAS.
C
• Para cotação de cabina é necessário informar as medidas livres internas, largura x profundidade x altura e o
acabamento (inox ou pintura eletrostática).
• Botoeira e Operador de Porta de Cabine são acessórios vendidos separadamente.
CABINAS
Cabina Carga Cabina Monet Cabina Inox
Cabina Pintura Cabina Monta CargaCabina Matisse
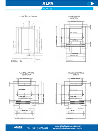
PLANTAS
13
C
ELEVAÇÃO DA CABINA PLANTA BAIXA
CENTRAL
PLANTA BAIXA MÃO
DIREITA
PLANTA BAIXA MÃO
ESQUERDA
* DISTÂNCIA ENTRE TRAVESSAS, INFORMAR:
NA ALTURA______MM
NA LARGURA_____MM
14
H100070
H100069
H101373
H100072
H100068
H100074
CABO DE AÇO
H102411
H100075
CABO DE COMANDO
Caixa para botoeira de cabina
CAIXA PARA BOTOEIRA DE CABINA
H101552
CAIXA PARA BOTÃO
J100059
CAIXA PARA BOTOEIRA DE PAVIMENTO
H104911
CAIXA PARA BOTOEIRA DE PAVIMENTO
C
Cabo de aço 1/8¨ (3,2mm) 6x19 – Galvanizado, com alma
de fibra
Cabo de aço 1/4¨ (6,4mm) 6x19 – Galvanizado, com alma
de fibra
Cabo de aço 5/16¨(8mm) 8x19 – Polido com alma de fibra
Cabo de aço 3/8¨(9,5mm) 8x19 – Polido com alma de fibra
Cabo de aço 1/2¨(13mm) 8x19 – Polido com alma de fibra
Cabo de aço 5/8¨(16mm) 8x19 – Polido com alma de fibra
* Somos distribuidores de cabo de aço CIMAF
8 X 1,50mm – Motor de porta
9 x 0,75mm – Fiação de passadiço
J100082
Caixa para botão MX ALFA
De chapa de aço carbono
Caixa de plástico para botoeira de pavimento
N100030
CAIXA DE INSPEÇÃO
CAIXA DE INSPEÇÃO E PASSAGEM PLUGADA
CAIXA DE PASSAGEM
CAIXA DE PASSAGEM E INSPEÇÃO
CAIXA PARA POÇO
S100022
S100023
S100024
S100025
I100038
P100203
H101650
15
C
caixa de inspeção
Plugada para comando ALSR1/VF
Plugada para comando ALSR1/HD
Plugada para comando ALSR1/VF com 02 operadores
Plugada para comando ALSR1/HD com 02 operadores
Caixa de passagem com tampa (Borne)
Caixa de passagem e inspeção (Borne)
Caixa para poço com botão EM, luz e tomada
H103837
CAIXA DE INSPEÇÃO
Caixa de inspeção completa
16
J100073
CALÇO PARA SAPATILHA
Capacitor eletrolítico 10mF x 440V
CAPACITOR
H100081
CARVÃO
H100676
CARVÃO
C
Calço para sapatilha de porta de cabina
H102994
Carvão 13 x 13 x 19 para chave de comutação 5HP ELEV
Carvão 15 x 19 x 25 para chave de comutação 10HP ELEV
H100082
CARVÃO
Carvão 16 x 25 x 25 para chave de comutação 15HP ELEV
CARVÃO
CHAPA DE PVC
CHASSI / ARMAÇÃO
CHAVE ELÉTRICA
H100085
H100087
I100470
H100169
17
C
Carvão 31 x 37 x 38 para chave de comutação 25HP
Chapa de PVC Vitron Box para teto de cabina
Chassi/armação com freio instantâneo para cabina
Obs: Incluso timoneria para acionar freio de segurança.
Chave elétrica liga/desliga
H100083
CARVÃO
Carvão 22 x 22 x 20 para chave de comutação 10HP ALV
18
H100590
CHAVE DE LUZ
I100033
CHAVE PAPF
Chave para destravar trinco (triangular)
CHAVE PARA DESTRAVAR
H101167
H105941
CHAVE PARA PARAFUSO
J100613
CHICOTE PLUGADO
H104503
H104561
H105208
CLIPS PARA GUIA
C
Chave de luz para botoeira de cabina
Chave Papf tipo contatora 72 VCC
H103778
Chave para parafuso anti-vandalismo - Grande
Chave para parafuso anti-vandalismo - Pequena M4 e 5/32
Chicote plugado
Clips grande 60 x 58mm
Clips médio 50 x 52mm
Clips pequeno 50 x 42mm
H101520
H101662
H102066
H101663
H102763
H102000
CLIPS PARA CABO DE AÇO
CONTATO DE PORTA AZ 05
CONTATO DE PORTA AZ 07
CONTATO DE PORTA AZ 06
CORDA DE NYLON TRANÇADA
H1KO088
H1KO023
H103834
H103955
19
C
1/2¨
1/4¨
1/8¨
3/8¨
5/16¨
5/8¨
Contato de porta simultânea AZ 05
• Também usado na porta de pavimento Alfa
Contato de porta EV AZ 07
• Também usado no operador ALFA
Contato de Porta AZ 06
• Usar ponte de contato AZ 07 H1K0050 - Vendido
separado.
4mm para seletor Pantalha
H104292
COLETOR DE ÓLEO
Coletor de óleo
• Aplicação: Guia Trefilada 9, 11 e 16mm
Guia de chapa dobrada 16mm
20
J1LI016
J1LI017
COROA E SEM FIM
J1LI007
CORREDIÇA
Corrediça de nylon para soleira
• Para porta Fermator/Sur sempre usar suporte
concêntrico com rosca 3/8¨ Cod. H104482
• Também usado no operador e na porta de pavimento
automática Alfa, usar suporte excentrico com rosca 1/4¨
Cod. H104495
CORREDIÇA
I100015
CORREDIÇA
H101623
CORREDIÇA
H102574
CORREIA
C
Coroa e sem fim para máquina R-15 Ø 275 Z 42 grande
Coroa e Sem Fim para máquina R Z 20 pequena
• Coroa e Sem Fim não são vendidos separadamente, é
necessário enviar a máquina de tração para avaliação e
orçamento.
Corrediça de nylon para contra-peso lift
H104441
Corrediça de nylon p/ porta pantográfica
Corrediça de nylon para porta Selcon
Correia para operador 6 canais
H101340
H101930
CORREIA SINCRONIZADA
CORRIMÃO
DISCO DE ACRÍLICO CRISTAL
DISPOSITIVO PARA TRAVAR CABO
ELEVADOR ELÉTRICO PARA PASSAGEIROS
J100088
H103380
H103657
I100021
21
C/E
306 X L037 taco gerador
8m X 10 X 1600mm
Corrimão em aço inox 150 x 2 x 1000mm
• Com ou sem acabamento para espelho
Redondo 103 x 24mm para sub-teto
Quadrado 103 x 24mm para sub-teto
Dispositivo para travar cabo de aço (em ferro)
• Elevador elétrico para passageiros, com casa de máquina superior;
• Conforme NBR NM 207
Formulário com as dimensões na pag. 23
• Para orçamento, preencha o formulário de especificação no final do
catálogo ou em nosso site.
H100727
CORRENTE
Corrente asa 1/2¨ x 1/8¨ RS 37/1
• Vendido por metro
22
ELEVADOR ELÉTRICO PARA PASSAGEIROS
ELEVADOR ELÉTRICO CARGUEIRO
Elevador elétrico,montacarga, com casa de máquina superior
• Elevadores especiais fabricados conforme a necessidade do
cliente, dimensão max. da cabine 1m x 1m x 1,20m, com porta
de cabine e pavimento manual tipo guilhotina
• Para orçamento preencha o formulário de especificações no final do
catálogo ou em nosso site.
ELEVADOR ELÉTRICO MONTACARGA
ELEVADOR HIDRÁULICO PARA PASSAGEIROS
ELEVADOR HIDRÁULICO UNIFAMILIAR
E
Elevador elétrico para passageiros, sem casa de máquina
• Para orçamento preencha formulário de especificação no final do
catálogo ou em nosso site.
Formulário com as dimensões na pag.24
Elevador elétrico, cargueiro, com casa de máquina superior
• Elevadores especiais fabricados conforme a necessidade do cliente
• Para orçamento preencha o formulário de especificações no final do
catálogo ou em nosso site.
Elevador Hidráulico para passageiros com casa de máquina inferior e
superior
• Fabricados conforme NBR NM 267.
Formulário com as dimensões nas páginas 25 e 26
• Para orçamento preencha o formulário de especificação no final do
catálogo ou em nosso site.
Elevador Hidráulico unifamiliar para passageiros, com casa de máquina
inferior
• Percurso máximo 12 metros;
• Velocidade máxima 15m/min - 25m/s;
• Poço mínimo 500m;
• Última altura mínima 2,80m;
• Capacidade de carga mínima 75 e máxima 225 Kg.
• Para atender acessibilidade, fazer cabine com no máx. 1,20m2
(0,91x1,30) e manter a capacidade de carga de 225 kg.
• Para orçamento preencha o formulário de especificação no final do
catálogo ou em nosso site.
23
E
ELEVADOR ELÉTRICO C/ CASA DE MÁQUINA SUPERIOR
ELEVADOR NORMALIZADO - ELEVADOR PASSAGEIRO NBR NM 207 - ELEVADOR MACA NBR 14712 - TRAÇÃO POR MOTO-REDUTOR
TIPO CARGA
Kg
VELOCIDADE
m/s
CABINA
A x B
EAT
CABINA
C x D
EAC
CABINA
E x F
FUNDO
DE POÇO
K
ÚLTIMA
ALTURA
L
PORTAS
M
4075
4100
6075
6100
6150
8075
8100
8150
10075
10100
10150
13075
13100
13150
300
450
600
750
975
975
4
6
8
10
13
13
0,75
1,0
0,75
1,0
1,5
0,75
1,0
1,5
0,75
1,0
1,5
0,75
1,0
1,5
0,75
1,0
1,5
1000X900
1100X1180
1100X1400
1300X1400
1600X1400
1200X2200
1400X1450
1550X1750
1550X1950
1700X2050
2000X2050
2000X2600
1500X1400
1750X1700
1750X1900
1750X1950
1900X1950
2300X2550
1400
1400
1400
1400
1400
1400
4000
4000
4200
4000
4200
4000
4200
4000
4200
4200
700
800
800
800
900
1100
ELEVADORESDEPASSAGEIROS
ESPECIFICAÇÃO:
elevador elétrico
porta automática
porta telescópica
06 passageiros
velocidade 1,0
E A T 6 100
ALFA - A001
Obs.: Fornecemos elevadores conforme normas vigentes, possuem equipamentos exigidos por
norma, tais como: Intercomunicador, luz de emergência, barreira infravermelha, protetor de polia, guarda
corpo, pastilha braile entre outros.
todos
ELEVADOR
DEMACA
PLANTAS DO PASSADIÇO
CASA DE MÁQUINAS
CORTE DO PASSADIÇO
24
ELEVADOR ELÉTRICO SEM CASA DE MÁQUINA
E
ELEVADOR NORMALIZADO - ELEVADOR PASSAGEIRO NBR NM 207 - ELEVADOR MACA NBR 14712 - TRAÇÃO POR MOTO-REDUTOR
TIPO CARGA
Kg
VELOCIDADE
m/s
CABINA
A x B
EAT
CABINA
C x D
EAC
CABINA
E x F
FUNDO
DE POÇO
K
ÚLTIMA
ALTURA
L
PORTAS
M
4075
4100
6075
6110
6150
8075
8100
8150
10075
10100
10150
13075
13100
13150
300
450
600
750
975
975
4
6
8
10
13
13
0,75
1,0
0,75
1,0
1,5
0,75
1,0
1,5
0,75
1,0
1,5
0,75
1,0
1,5
0,75
1,0
1,5
1000X900
1100X1180
1100X1400
1300X1400
1600X1400
1200X2200
1650X1300
1650X1650
1650X1850
1950X1850
2270X1850
2000X2600
1800X1250
1800X1600
1800X1800
2000X1800
2300X1800
2350X2550
1400
1400
1400
1400
1400
1400
4000
4000
4000
4000
4000
4000
4000
4000
4000
4000
4000
800
800
800
800
900
1100
ELEVADOR
DEMACA
ELEVADORESDEPASSAGEIROS
ESPECIFICAÇÃO:
elevador elétrico
porta automática
porta telescópica
06 passageiros
velocidade 1,0
sem casa maquina
E A T 6 100 SCM
ALFA - A002
CORTE DO PASSADIÇO
** NA PARTE SUPERIOR DA CAIXA DE CORRIDA DEVERÁ CONSTAR DETECTOR DE FUMAÇA
E VENTILAÇÃO CRUZADA COM TOMADA DE AR NA ÁREA EXTERNA DA EDIFICAÇÃO PARA
VENTILAÇÃO DA MÁQUINA E SAÍDA DE GASES (PELO CLIENTE)
25
E
ELEVADOR HIDRÁULICO C/ CASA DE MAQ. SUPERIOR E INFERIOR - PISTÃO LATERAL
ELEVADOR NORMALIZADO - ELEVADOR PASSAGEIRO NBR NM 207 - ELEVADOR MACA NBR NM 267 / NBR 14712
300
450
600
750
975
975
4
6
8
10
13
13
0,5 1000X900
1000X1180
1100X1400
1300X1400
1600X1400
1200X2200
1550X1300
1650X1600
1650X1800
1850X1800
2150X1800
1950X2600
1650X1250
1850X1550
1850X1750
1900X1800
2150X1800
2300X2550
1400
1400
1400
1400
1400
1400
3800
3800
3800
3800
3800
3800
700
800
800
800
900
0,5
0,5
0,5
0,5
0,5
ESPECIFICAÇÃO:
elevador hidráulico
porta automática
porta telescópica
06 passageiros
velocidade 0,5
pistão lateral
H A T 6 050 PL
ALFA - A003
ELEVADORESDEPASSAGEIROSELEVADOR
DEMACA
TIPO CARGA
Kg
VELOCIDADE
m/s
CABINA
A x B
HAT
CABINA
C x D
HAC
CABINA
E x F
FUNDO
DE POÇO
K
ÚLTIMA
ALTURA
L
PORTAS
M
1100
26
ELEVADOR HIDRÁULICO C/ CASA DE MAQ. SUPERIOR E INFERIOR - PISTÃO NO FUNDO
E
ELEVADOR NORMALIZADO - ELEVADOR PASSAGEIRO NBR NM 267
TIPO CARGA
Kg
VELOCIDADE
m/s
CABINA
A x B
HAT
CABINA
C x D
HAC
CABINA
E x F
FUNDO
DE POÇO
K
ÚLTIMA
ALTURA
L
PORTAS
M
300
450
600
750
975
4
6
8
10
13
0,5 1000X900
1100X1180
1100X1400
1300X1400
1600X1400
1400X1600
1550X1900
1550X2100
1600X2100
1900X2100
500X1550
1750X1850
1750X2050
1750X2100
1900X2100
1400
1400
1400
1400
1400
3800 700
800
800
800
900
ELEVADORESDEPASSAGEIROS
0,5
0,5
0,5
0,5
3800
3800
3800
3800
ESPECIFICAÇÃO:
elevador hidráulico
porta automática
porta telescópica
06 passageiros
velocidade 0,5
pistão frontal
ALFA - A004
27
E
ELEVOICE - ANUNCIADOR DE ANDAR
ENGATE EXTERNO
ENGRAXADEIRA
ENCODER SEM ACOPLAMENTO
J100022
H100151
H100152
H100153
H100154
H100155
Engate externo em chapa para trinco
01 X 1/8¨
02 X 1/4¨
03 X 1/4¨
04 X 1/4¨
05 X 1/4¨
M1HJ001 Anunciador de andar
Piso menos três;
Piso menos dois;
Piso menos um;
Terceiro subsolo;
Segundo subsolo;
Primeiro subsolo;
Subsolo;
Garagem três;
Garagem dois;
Garagem um;
Garagem;
Estacionamento três;
Estacionamento dois;
Estacionamento um;
Estacionamento;
Terreo;
Primeiro andar;
Segundo andar;
Terceiro andar;
Quarto andar;
Quinto andar;
Sexto andar;
Sétimo andar;
Oitavo andar;
Nono andar;
Décimo andar;
Décimo primeiro andar;
Décimo segundo andar;
Décimo terceiro andar;
Décimo Quarto andar;
Décimo quinto andar;
Décimo sexto andar;
Décimo sétimo andar;
Décimo oitavo andar;
Décimo nono andar;
Vigésimo andar;
Vigésimo primeiro andar;
Vigésimo segundo andar;
Vigésimo terceiro andar;
Vigésimo quarto andar;
Vigésimo quinto andar;
Vigésimo sexto andar;
Vigésimo sétimo andar;
Vigésimo oitavo andar;
Vigésimo nono andar;
Trigésimo andar;
Trigésimo primeiro andar;
Trigésimo segundo andar;
Piso principal;
Portaria;
Acesso;
Lobby;
Playground;
Cobertura;
Restaurante;
Saída;
Salão de Festas;
Sobreloja;
Sobe;
Desce;
Subindo;
Descendo;
Excesso de carga por favor deixe o elevador;
Por favor desobstruir a porta;
*Elevador defeituoso use o interfone;
*Operação de emergência deixe o elevador;
*Aperte o número do andar de destino.
H104161
H104956
Para 1024 PPR
Para 5000 PPR
• Venda sob consulta
*Disponível somente em comando Alfa.
Obs.: Não é possível adicionar novas mensagens. Para aplicação em elevadores multimarcas, funciona com a fonte e a
interface do IPD Serial, adicionar 1 sensor indutivo mais 1 imã por parada.
Mensagens disponíveis:
28
EQUALIZADOR DE CABOS
ESCADA MARINHEIRO
ESPELHO INOX PARA INTERCOMUNICADOR
E
J100106 Equalizador de cabos
J100101 Escada marinheiro
• Medida padrão 2,3 m p/ poço de 1,5m
J100134
L100136
Para intercomunicador
Para interfone com caixa
ESPELHO PARA BOTOEIRA DE CABINA
L1SU060
L1SU061
L1SU062
L1SU063
L1SU064
L1SU065
L1SU066
L1SU067
L1SU068
L1SU069
L1SU070
L1SU071
L1SU072
L1SU073
Inox com 03 furos p/ botões
Inox com 04 furos p/ botões
Inox com 05 furos p/ botões
Inox com 06 furos p/ botões
Inox com 07 furos p/ botões
Inox com 08 furos p/ botões
Inox com 09 furos p/ botões
Inox com 10 furos p/ botões
Inox com 11 furos p/ botões
Inox com 12 furos p/ botões
Inox com 13 furos p/ botões
Inox com 14 furos p/ botões
Inox com 15 furos p/ botões
Inox com 16 furos p/ botões
L1SU074
L1SU075
L1SU076
L1SU077
L1SU078
L1SU079
L1SU080
L1SU081
L1SU082
L1SU083
L1SU084
L1SU085
L1SU086
L1SU087
Inox com 17 furos p/ botões
Inox com 18 furos p/ botões
Inox com 19 furos p/ botões
Inox com 20 furos p/ botões
Inox com 21 furos p/ botões
Inox com 22 furos p/ botões
Inox com 23 furos p/ botões
Inox com 24 furos p/ botões
Inox com 25 furos p/ botões
Inox com 26 furos p/ botões
Inox com 27 furos p/ botões
Inox com 28 furos p/ botões
Inox com 29 furos p/ botões
Inox com 30 furos p/ botões
L1SU163
L1SU166
L1SU167
L1SU168
ESPELHO INOX P/ IPD
ESPELHO INOX PARA PUXADOR
ESPELHO PARA SERVIÇO DE BOMBEIRO
J100113
29
E
Para IPD com janela e visor (reto)
Espelho para IPD em acrilico azul, tipo meia lua
Espelho para IPD em acrílico vermelho, tipo meia lua
Espelho para IPD em inox c/ dobras laterais
Espelho inox para puxador
L100129
L1SU059
L1SU058
L1SU057
ESPELHO INOX PARA BOTOEIRA
Para botoeira de pavimento 1 furo para botão, janela IPD
Para pavimento 2 furos para botão, janela IPD
Para botoeira de pavimento 1 furo para botão
Para botoeira de pavimento 1 furo para botão
J100123 Espelho para serviço de bombeiro
Obs.: Formulário de especificação disponível
junto aos desenhos de apoio no final deste
catalogo
30
EXTENSÃO BARREIRA INFRAVERMELHA
FECHADOR AM 1400 ESPINGARDA
FECHADOR DORMA MA 200
EF
M1ME009
M1ME010
M1ME011
M1ME012
TX 632
RX 632
TX 633
RX 633
H101338
H101339
Direito (foto)
Esquerdo
H101261
H101337
Número 3 preto
Número 4 preto
Obs: Os suportes de fixação H1AT233 E H1AT221 são
vendidos separadamente.
FECHADOR DORMA - ALAVANCA P/ FECHADOR
H1AT244 Dorma com encaixe deslocado
H1AT221
FECHADOR DORMA - BASE P/ FECHADOR
DORMA MA 200
Obs: Vendido separado do fechador Dorma.Trabalha junto
com o suporte H1AT233
H1AT233
FECHADOR DORMA - SUPORTE P/ ALAVANCA
De fechador Dorma MA 200
Obs: Vendido separado do fechador Dorma.Trabalha junto
com a base para fechador H1AT221
FECHO DE PORTA
FOLHA DE PORTA PADRÃO ALFA
FONTE PARA INTERCOMUNICADOR
H101051
I100409
I100410
I100411
I100412
I100417
I100418
I100419
I100420
I100415
I100416
31
F
Fecho de porta com imã
700 x 2020 mm em aço carbono
700 x 2020 mm em aço inox
800 x 2020 mm em aço carbono
800 x 2020 mm em aço inox
700 x 2120 mm em aço carbono
700 x 2120 mm em aço inox
800 x 2120 mm em aço carbono
800 x 2120 mm em aço inox
Especial em aço carbono
Especial em aço inox
H103177 Entrada 110/220v, Saída 12v C/ CARREGADOR (FAC)
FECHADOR FECHOMATIC
H100163
H100164
Direito (foto)
Esquerdo
A alavanca H100587 e as guias H100207 e H100208 são
vendidas separadamente
32
FONTE PARA INTERCOMUNICADOR
FREIO DE SEGURANÇA INSTANTÂNEO
FUSÍVEL CARTUCHO
F
H103176
H100164
E 110/220V S 12V simples(FA)
E 110/220 S 6V c/carregador (FAC)
H103463
H103454
H103448
H103462
P/ guia 9mm mod. ALFA1 - Carga Máx. 2940 Kg -
Velocidade Máx. 45m/min = 0,75m/s.
P/ guia 9mm mod. ALFA2 - Carga Máx. 4782 Kg -
Velocidade Máx. 45m/min = 0,75m/s.
P/ guia 16mm mod. ALFA3 - Carga Máx. 3993 Kg -
Velocidade Máx. 45m/min = 0,75m/s.
P/ guia 16mm mod. ALFA4 - Carga Máx. 8561 Kg -
Velocidade Máx. 45m/min = 0,75m/s.
• Vendido conforme foto, em pares.
• Ver também Timoneria, Limitador de velocidade e Tensor.
H100172
H100870
H100173
H100174
H100175
H100176
10 Ampéres
15 Ampéres
20 Ampéres
30 Ampéres
60 Ampéres
80 Ampéres
• Vendido sob consulta.
FUSÍVEL VIDRO
FUSÍVEL DIAZED
H100177
H100178
H100179
H100180
H100181
1 Ampér
3 Ampéres
4 Ampéres
5 Ampéres
10 Ampéres
H100182
H100183
H100184
H100185
H100186
H100553
2 Ampéres
4 Ampéres
6 Ampéres
10 Ampéres
16 Ampéres
50 Ampéres
• Venda sob consulta
H100190
H100191
H100192
H100193
H100194
H100195
H100196
H100197
H100198
H100200
H100201
FUSÍVEL NH-DIN
GIRABREQUIM
GUARDA CORPO
GUIA DE CHAPA
GUIA PARA ALAVANCA FECHOMATIC
J100125
J100266
H100567
33
FG
00-063 Ampéres
00-080 Ampéres
00-100 Ampéres
00-125 Ampéres
01-063 Ampéres
01-080 Ampéres
01-100 Ampéres
01-125 Ampéres
01-160 Ampéres
01-200 Ampéres
01-400 Ampéres
• Venda sob consulta
Girabrequim para fechador ELEMAQ
Guarda-corpo para cabina
Obs: Fornecemos com 1500 mm largura, ajustar conforme
necessidade.
70 x 60 x 16 mm - Guia de chapa dobrada 5 metros
H100207
H100208
Direita (foto)
Esquerda
16mm
60mm
70mm
34
GUIA TREFILADA
INTERCOMUNICADOR
G/I
H100210
H104536
Guia T89A 16mm x 5m (89x62x16mm)
Guia T82A 9mm x 5m (82x68x9mm)
H103004 Imã flevível 25 x 5 x 1000m
H102370 Imã para sensor indutivo
H101872 Com 2 pontos (cabina e portaria)
Atende apenas 2 pontos
INTERCOMUNICADOR CENTRAL
INTERCOMUNICADOR MÓDULO VIVA-VOZ
H103175 Central CS 04 T
• Aplicação: Portaria e casa de máquina, interliga até 4
cabinas
• Trabalha com módulo viva-voz H103174
H103174 Módulo viva voz MVV-02
• Este equipamento é instalado na botoeira da cabina
Alimentação 12V
• Trabalha com a central H103175
C
B
A
IPD GG MATRICIAL SERIAL
I100741
I100753
35
I
Vermelho 2 dígitos + setas (GMSV) - 50mm
Vermelho 2 dígitos + setas + gongo - 50mm
IPD – INTERFACE
I100701
I100727
I100728
Interface 24V serial para elevadores multimarcas
com IPD serial
Interface serial para comando ALFA (adaptação)
Fonte para IPD serial 220VCA / 12 / 24VCA
Obs.: 01 Conjunto por elevador
IPD SERIAL – PULO / SENSOR + SENTIDO
36
I
I100629
IPD MUX MÉDIO NUMÉRICO BINÁRIO
Vermelho – reposição ALFA (MUXMNBV)
IPD MUX GG NUMÉRICO BINÁRIO
I100695 Vermelho – reposição ALFA (MUXGNBV)
IPD MÉDIO MATRICIAL SERIAL
I100792
I100793
I100794
I100795
I100796
I100797
IPD matricial 20mm - branco
IPD matricial 20mm - azul
IPD matricial 20mm - vermelho
IPD matricial 30mm - branco
IPD matricial 30mm - azul
IPD matricial 30mm - vermelho
IPD MATRICIAL SERIAL HORIZONTAL
H106120
H106121
matricial serial horizontal vermelho, 2 digitos + seta, visor
30x60mm
matricial serial horizontal azul, 2 digitos + seta, visor
30x60mm
IPD MATRICIAL SERIAL VERTICAL
H106122
H106123
matricial serial vertical azul, 2 digitos + seta, visor
30x60mm
matricial serial vertical vermelho, 2 digitos + seta, visor
30x60mm
37
I
IPD II GG NUMÉRICO SERIAL
I100697
I100724
Vermelho (GNSV)
Azul (GNSA)
• Desenho + dimensões na pág. 38
IPD II GG ALFANUMÉRICO SERIAL
I100726
I100699
Azul (GASA)
Vermelho (GASV)
IPD II GG NUMÉRICO BINÁRIO
I100631 Vermelho – reposição (GNBV)
38
I
IPD II MÉDIO NUMÉRICO BINÁRIO
I100630 Vermelho – reposição (MNBV)
IPD II MÉDIO NUMÉRICO SERIAL
I100693
I100720
Vermelho com seta V1 (MNSVV1)
Azul com seta V1 (MNSAV1)
IPD II MÉDIO ALFANUMÉRICO SERIAL
I100689
I100714
Vermelho com seta V1 (MSVV1)
Azul com seta V1 (MASAVI)
I100704
I100713
IPD II MÉDIO ALFANUMÉRICO (sem seta)
Vermelho (MASV)
Azul (MASA)
KIT DE MONTAGEM DE PORTA
KIT PENDURAL
J100587
39
I/K
Porta de pavimento automática
• 5 suportes, clips, parafusos, porcas, arruelas e
chumbadores
J100604 Kit pendural para seletor tipo pantalha
• Composição:
1 suporte mão direita
1 suporte mão esquerda
2 mão francesa
1 suporte para fonte J100171
Avulso: corda nylon H103955 (vendida por metro),
Pantalha I100214, I100213, I100212 (vendidas por peças)
IPSD G
IPSD P
I100660 Indicador grande numérico p/ multimarcas
I100632 Indicador pequeno númérico p/ multimarcas
IPD II NUMÉRICO SERIAL (sem seta)
I100706
I100719
Vermelho (MNSV)
Azul (MNSA)
40
LÂMINA PARA CHAVE
LÂMINA PARA CHAVE
LÂMINA PARA CHAVE
LÂMINA PARA CHAVE
L
J100029 Chave de comutação 5 HP OTIS/ELEV
J100028 Chave de comutação 15 HP central ALV
J100032 Chave de comutação 15 HP lateral ALV
J100030 Chave de comutação 10 HP ELEV
LÂMINA PARA CHAVE
LÂMINA PARA CHAVE
J100031 Chave de comutação 15 HP ELEV
J100089 Chave de comutação 25 HP
H100217
H100218
H100801
H100222
H100221
H102198
LÂMPADA BAIONETA
LÂMPADA DE ROSCA
LÂMPADA PILOTO
LÂMPADA NEON
H100219
H100578
H100223
H100220
H102406
H100946
H100629
H100533
H100556
H100234
H102076
H100233
41
L
6 volts x 3 watts
12 volts x 3 watts
14 volts x 3 watts
24 volts x 3 watts
63 volts x 3 watts
130 volts
6 volts x 3 watts
12 volts x 3 watts
14 volts x 3 watts
24 volts x 3 watts
30 volts x 3 watts
60 volts x 3 watts
100 volts x 3 watts
220 volts x 6 watts
220 volts x 6 watts
220 volts x 3 watts
220 volts x 6 watts
lâmpada neon
H101666
LÂMPADA FLUORESCENTE
Compacta 9 watts para luz de emergência
H100128
LED
LED
42
J100093
LED COM RABICHO
Polia 240mm, cabo 8mm, velocidade nominal 1,50m/s,
90m/min
Polia 240mm, cabo 8mm, velocidade nominal 1,75m/s,
105m/min
Polia 240mm, cabo 8mm, velocidade nominal 2,00m/s,
120m/min
Polia 240mm, cabo 8mm, velocidade nominal 2,50m/s,
150m/min
LIMITADOR DE VELOCIDADE PROGRESSIVO
M1TU011
M1TU012
LIMITE DE EMERGÊNCIA
H105154
LIMITE FIM DE CURSO
L
LED com rabicho para botão 75V
M1NI011
M1NI012
M1NI013
M1NI010
Com destravamento manual
Aplicação: Tensor do freio de segurança
Obs.: Com contato elétrico
M1NI004
LIMITE DE SEGURANÇA
Com travamento manual
M1TU034
LIMITE FIM DE CURSO
Limite fim de curso TD
LONA PARA FREIO
LUBRIFICADOR DE GUIA
LUZ DE EMERGÊNCIA – 6V
H100238
H100239
H100240
H100537
H100658
H102137
J100245
H102457
43
L
1/4¨x 3¨
1/4¨x 4¨
1/4¨x 5¨
3/16¨x 3¨
3/16¨x 4¨
3/16¨x 5 ¨
• Vendido por metro
Lubrificador de guia
• A regulagem da espessura da guia é ajustável
• O suporte de fixação deverá ser fabricado conforme cada
modelo de corrediça
Luz de emergência sem alarme
• Com alarme, adicionar sirene H102458
LUMINÁRIA PRETA
H101669 Com grade para caixa de inspeção
M1NI004
LIMITE PARA LIMITADOR
Contato elétrico para limitador de velocidade
M1TU035
LIMITE PARA LIMITADOR
Limite para limitador de velocidade
44
H103489
LUZ DE EMERGÊNCIA – 6V
H104812
LUZ DE EMERGÊNCIA – 12V
Mala de couro com divisória
Mala de couro sem divisória com reforço de chapa
Mala de Raspa com divisória
Mala de Raspa sem divisória
• Dimensão 150x250x380mm aproximadamente,
possui 4 pés de borracha para proteção da costura.
MALA DE COURO
M1AD006
M1AD005
H103065
H103902
MÁQUINA DE TRAÇÃO
H1SC133
MICRO SWIT
LM
NFA com luminária
Lua de emergência 12V
• Composta de 2 baterias e bandeija c/ 2 lampadas
• Ideal para alimentadr intercomunicador 12V
H101844
H101845
H106135
H106136
Capacidade de carga 450Kg, 45 m/min,
1 velocidade VVVF, até 30m de percurso
Capacidade de carga 600Kg, 60 m/min,
1 velocidade VVVF , até 30 m de percurso
Capacidade de carga 600Kg, 60 m/min,
1 velocidade VVVF, até 60m de percurso
Capacidade de carga 600Kg, 75 m/min,
1 velocidade VVVF, até 60m de percurso
Para cotação de outros modelos informar:
• capacidade de carga,
• velocidade nominal,
• percurso em metros,
• quantidade de paradas,
• tração direta 1:1 ou tração dupla 2:1
• tensão de alimentação
Para botão MX ALFA
* Fotos Ilustrativas
H100639
MICRO SWIT
MOLA PARA FECHADOR GEMICLO
MOLA PARA FECHADOR MECA
H100249
H100254
H100250
H100255
45
M
T2L
Direta (foto)
Esquerda
Direita
Esquerda (foto)
H100251
H100248
MOLA PARA FECHADOR ELEMAQ
Direta (foto)
Esquerda
H102348
H105406
H106106
MOLA PARA FECHAMENTO
Fechamento da porta de pavimento SELCON -
comprimento da mola 735 mm, diâmetro 20 mm, fio
1,8 mm
Fechamento da porta de pavimento automática ALFA,
abertura lateral - comprimento da mola 500 mm,
diâmetro 13 mm, fio 1,5 mm
Fechamento da porta de pavimento automática ALFA,
abertura central - comprimento de mola 600 mm,
diâmetro 16 mm, fio 1,3 mm
46
M
MOLA PARACHOQUE DE FUNDO DE POÇO
H103437
H104271
406mm, para peso total do carro + carga até 1.250Kg,
velocidade 45m/min - 0,75m/s
470mm, para peso total do carro + carga até 2.300Kg,
Velocidade 60m/min - 1m/s
• Para especificação da mola é necessário informar:
1 – Peso total do carro (cabina, armação, operador,
botoeira etc)
2 – Peso total do contra-peso (armação e peso)
3 – Capacidade de carga da cabina
4 – Velocidade nominal do elevador
A falta de uma das informações impossibilitará o cálculo da
mola ideal.
Tirante do cabo de aço 3/8¨e ¨
• Deve ser padronizado, todos os tirantes c/ molas iguais
• Diâmetro externo 35mm
• Comprimentos: 135mm
1/2
H101440
H100581
Tirante do cabo de aço 5/8¨
• Deve ser padronizado todos os tirantes c/ molas iguais
• Diâmetro externo: 60mm
• Comprimento: 145mm
MOLA PARA TIRANTE
MOLA PARA TIRANTE
H102075
MOLA PARA RAMPA
Mola para rampa mecânica
L100142
L100168
L100169
L100170
L100171
L100172
NÚCLEO PARA BOTÃO ALX 400
NÚCLEO PARA BOTÃO MX
NÚCLEO PARA BOTÃO MX
ÓLEO
J1SC271
J1SC272
C200297
C200244
C200246
C200139
C200229
47
NO
Verde pino curto
Verde pino longo
Verde pino médio
Vermelho pino curto
Vermelho pino longo
Vermelho pino médio
Núcleo para botão MX com led
• Não substitui o modelo MX Schindler
Núcleo para botão MX sem led
• Não substitui o modelo MX Schindler
Uso geral máquina grande – 1 litro
Uso geral máquina grande – 20 litros
40 para guia – 20 litros
MAXLUB CO20 – 20 litros
MAXLUB MA 40 para bucha e fechador – 20 litros
L100162
L100163
L100164
L100165
L100166
L100167
NÚCLEO PARA BOTÃO ALX 500
Verde pino curto
Verde pino longo
Verde pino médio
Vermelho pino curto
Vermelho pino longo
Vermelho pino médio
48
O
H102577
OPERADOR - CAME
Came
N100185
OPERADOR - CARRETILHA
Carretilha ( suporte + roldana + excentrico)
Para vão de Porta 800 x 2000mm x 2 Fls Padrão Alfa
• No operador, largura 380 x 217mm altura
• Na porta de pavimento, largura 380 x 175mm altura
OPERADOR - EXTENSOR PROLONGADOR
I100189 Extensor prolongador para folha de porta
• *50, 75, 100, 150, 200, 250, 300 e 350mm
*50mm
380mm
H103259
OPERADOR - INVERSOR PARA OPERADOR
Monofásico 0.25 CV 220V
• Para aplicar no operador de porta Alfa pedir
parametrizado
49
H101950
H101951
OPERADOR - MOTOR PARA PORTA
H103746
OPERADOR - MOTOR PARA PORTA
ALFA trif. 220V – WEG (mod. Antigo)
ALFA trif. 380V – WEG (mod. Antigo)
• Sempre vender motor + engrenagem H102417 da correia,
o suporte apenas quando trocar a marca do motor
ALFA trif. 220 / 380V – EBERLE / VOGES (mod. Novo)
• Sempre vender motor + engrenagem H102417 da
correia, o suporte apenas quando trocar a marca do motor
MOTOR WEG
OPERADOR - RAMPA MECÂNICA
H101770 Rampa mecânica direita
H101772
OPERADOR - RAMPA MECÂNICA
Rampa mecânica esquerda
550mm
O
50
O
I1OM001
OPERADOR - RAMPA MECÂNICA -TIRANTE COM ROLDANA
J100208
OPERADOR - RAMPA RETRÁTIL
Direita para porta de pavimento automática ALFA
• Especificações na página 53
OPERADOR - RAMPA RETRÁTIL
Para acionamento de rampa mecânica
Esquerda para porta de pavimento ALFAautomática
J100268
OPERADOR - ROLDANA 53mm
I100300 Para cabo de aço do operador de porta ALFA
51
L100226
OPERADOR - ROLDANA 54mm
J100270
OPERADOR - ROLDANA 68mm
Com eixo excêntrico p/ operador ALFA
Com eixo p/ operador ALFA
I100055
OPERADOR - SUPORTE BASE
Para fixação do operador de porta
• Para cabinas que não possuem estrutura para suportar
ou fixar o operador
• Permite ajuste lateral do operador
I100399
OPERADOR - SUPORTE PARA CONTATO DE PORTA
suporte para contato de porta do operador ALFA
O
52
O
I100404
OPERADOR - SUPORTE DIR/ESQ. PARA CONTATO DE PORTA
Suporte esquerdo para ponte do contato de porta do
operador ALFA (Foto)
Suporte direito para ponte do contato de porta do operador
ALFA
I100338
I100338
I100184
I100450
I100451
I100452
OPERADOR - TIRANTE DE CABO DE AÇO
Vão Livre 700mm - 2 folhas lateral - 1280mm
Vão Livre 800mm - 2 folhas lateral - 1280mm
Vão Livre 900mm - 2 folhas lateral - 1375mm
Vão Livre 1000mm - 2 folhas lateral - 1480mm
Vão Livre 1100mm - 2 folhas lateral - 1580mm
Vão Livre 1200mm - 2 folhas lateral - 1680mm
• Tirante de cabo de aço para propulsão do operador de porta
de cabine ALFA lateral
I100322
I100322
I100162
I100266
I100265
I100481
Vão Livre 700mm - 2 folhas lateral - 1280mm
Vão Livre 800mm - 2 folhas lateral - 1280mm
Vão Livre 900mm - 2 folhas lateral - 1390mm
Vão Livre 1000mm - 2 folhas lateral - 1480mm
Vão Livre 1100mm - 2 folhas lateral - 1580mm
Vão Livre 1200mm - 2 folhas lateral - 1680mm
• Tirante de cabo de aço para propulsão da porta de pavimento
lateral
• Obs.: As medidas são efetivas dos cabos de aço, não contemplam
os 60mm que são utilizados para prensar os tirantes
• Tirante de cabo de aço para propulsão do operador de porta de
cabine ALFA central
• Tirante de cabo de aço para propulsão da porta de pavimento central
Vão Livre 700mm - 2 folhas central - 2820mm
Vão Livre 800mm - 2 folhas central - 3180mm
Vão Livre 900mm - 2 folhas central - 3570mm
Vão Livre 1000mm - 2 folhas central - 3870mm
Vão Livre 1100mm - 2 folhas central - 4170mm
Vão Livre 1200mm - 2 folhas central - 4470mm
I100486
I100487
I100488
I100489
I100490
I100491
• Obs.: Central, são iguais para cabine e pavimento
53
OPERADOR - ESPECÍFICAÇÕES RAMPA RETRÁTIL
ALTURA EXTERNA, DO
PISO ACABADO AO TOPO
EXTERNO DA CABINA
MÃO DIREITA COMO MOSTRA
EXPANDIDA COMO MOSTRA 76mm
RETRAÍDA 40mm
TABELA DE REFERÊNCIA
MEDIDA “X”
IDEAL DA RAMPA
RETRÁTIL
2260 mm - PADRÃO ALFA
2350 mm
2450 mm
2550 mm
430 mm
510 mm
600 mm
700 mm
*CONSIDERANDO VÃO DA PORTA DE CABINE E PAVIMENTO 800 X 2000 mm
MedidaXvertabeladereferência““
O
54
P100042
P100043
P100044
P100045
P100046
P100047
OPERADOR DE PORTA DE CABINE LATERAL 2 FOLHAS
O
0700MM 220 / 380V c/ VF – mão Direita
0800mm 220 / 380V c/ VF – mão Direita
0900mm 220 / 380V c/ VF – mão Direita
1000mm 220 / 380V c/ VF – mão Direita
1100mm 220 / 380V c/ VF – mão Direita
1200mm 220 / 380V c/ VF – mão Direita
P100010
P100011
P100012
P100013
P100014
P100015
0700mm 220 / 380V c/ VF – mão Esquerda
0800mm 220 / 380V c/ VF – mão Esquerda
0900mm 220 / 380V c/ VF – mão Esquerda
1000mm 220 / 380V c/ VF – mão Esquerda
1100mm 220 / 380V c/ VF – mão Esquerda
1200mm 220 / 380V c/ VF – mão Esquerda
P100048
P100049
P100050
P100051
P100052
P100053
P100054
P100055
P100056
P100057
OPERADOR DE PORTA DE CABINE LATERAL 03 FOLHAS
0700mm 220 / 380V c/ VF – mão Direita
0800mm 220 / 380V c/ VF – mão Direita
0900mm 220 / 380V c/ VF – mão Direita
1000mm 220 / 380V c/ VF – mão Direita
1100mm 220 / 380V c/ VF – mão Direita
1200mm 220 / 380V c/ VF – mão Direita
1300mm 220 / 380V c/ VF – mão Direita
1400mm 220 / 380V c/ VF – mão Direita
1500mm 220 / 380V c/ VF – mão Direita
1600mm 220 / 380V c/ VF – mão Direita
P100016
P100017
P100018
P100019
P100020
P100021
P100022
P100023
P100024
P100025
0700mm 220 / 380V c/ VF – mão Esquerda
0800mm 220 / 380V c/ VF – mão Esquerda
0900mm 220 / 380V c/ VF – mão Esquerda
1000mm 220 / 380V c/ VF – mão Esquerda
1100mm 220 / 380V c/ VF – mão Esquerda
1200mm 220 / 380V c/ VF – mão Esquerda
1300mm 220 / 380V c/ VF – mão Esquerda
1400mm 220 / 380V c/ VF – mão Esquerda
1500mm 220 / 380V c/ VF – mão Esquerda
1600mm 220 / 380V c/ VF – mão Esquerda
Obs.: Com dispositivo de acionamento de rampa mecânica através do cabo de aço
• Desenhos e Dimensões pag. 56 e 57
P100205
P100074
P100075
P100076
P100077
P100078
OPERADOR DE PORTA DE CABINE CENTRAL 2 FOLHAS
P100206
P100079
P100080
P100081
P100082
P100083
P100084
P100085
P100086
P100087
P100088
P100089
P100090
55
O
0700mm 220 / 380V c/ VF
0800mm 220 / 380V c/ VF
0900mm 220 / 380V c/ VF
1000mm 220 / 380V c/ VF
1100mm 220 / 380V c/ VF
1200mm 220 / 380V c/ VF
0700mm 220 / 380V c/ VF
0800mm 220 / 380V c/ VF
0900mm 220 / 380V c/ VF
1000mm 220 / 380V c/ VF
1100mm 220 / 380V c/ VF
1200mm 220 / 380V c/ VF
1300mm 220 / 380V c/ VF
1400mm 220 / 380V c/ VF
1500mm 220 / 380V c/ VF
1600mm 220 / 380V c/ VF
1800mm 220 / 380V c/ VF
2000mm 220 / 380V c/ VF
2600mm 220 / 380V c/ VF
• Desenho e dimensões pag. 56 e 57
OPERADOR DE PORTA DE CABINE CENTRAL 4 FOLHAS
OPERADOR DE PORTA DE CABINE CENTRAL 6 FOLHAS
• Operadores de porta especiais são fabricados sob medida
56
OPERADOR DE PORTA DE CABINA
O
AL A B
700 1030 1090
800 1180 1210
900 1330 1375
1000 1470 1470
1100 1600 1600
1200 1700 1720
S
1000
1000
1450
1450
1450
1450
AL A B C
700 1400 1450 1480
800 1600 1650 1654
900 1760 1850 1854
1000 1910 2004 2050
1100 2060 2154 2250
1200 2210 2304 2450
S
1000
1000
1450
1450
1450
1450
OPERADOR DE PORTA DE CABINA, ABERTURA LATERAL, 2 FOLHAS
OPERADOR DE PORTA DE CABINA, ABERTURA CENTRAL, 2 FOLHAS
57
O
OPERADOR PADRÃO ALFA - MEDIDAS
MONTAGEM MEDIDA PADRÃO ALFA
2320mm
2000mm
2300mm
2458mm
2475mm
800 mm
58
OPERADOR PADRÃO ALFA - AL 800 ME
O
59
O
OPERADOR PADRÃO ALFA - AL 800 ME
60
OPERADOR PADRÃO ALFA - AL 800 ME
O
61
O
OPERADOR PADRÃO ALFA - AL 800 ME
62
OPERADOR PADRÃO ALFA - AL 800 ME
O
63
O
OPERADOR PADRÃO ALFA - AL 800 ME
64
LIGAÇÃO DO OPERADOR ALFA VF
QUADRO DE COMANDO VF
O
LIGAÇÃO - OPERADOR ALFA VF COM CAPACITOR (MONOFÁSICO)
LIGAÇÃO - OPERADOR ALFA VF
QUADRO DE COMANDO NÃO VF PARÂMETROS QUE FORAM ALTERADOS
65
P
M1ME008
M1ME019
M1ME005
M1ME017
PAINEL CI INFERIOR PARA ANTENA
PAINEL CI MÉDIO PARA ANTENA
PAINEL CONJUNTO DE TEMPO
PAINEL PARA BOTÃO MX ALFA
M1ME007
M1ME018
M1ME004
M1ME016
L1SC004
N100063
N100073
RX modelo 632
RX modelo 633
TX modelo 632
TX modelo 633
RX modelo 632
RX modelo 633
TX modelo 632
TX modelo 633
Conjunto de tempo eletrônico pequeno sem relé
Verde com diodo + resistência 470R quadro
Simpac / Eletem / Addtech
Verde com diodo + resistência 4K7 Servelev
M1ME006
M1ME015
M1ME003
M1ME014
PAINEL CI SUPERIOR PARA ANTENA
RX modelo 632
RX modelo 633
TX modelo 632
TX modelo 633
PAINEL PARA BOTÃO MX ALFA
L100174 MX ALFA sem iluminação 1NA / 1 NF
66
N100055
N100071
N100069
N100075
N100066
N100068
N100064
N100060
N100059
N100077
N100062
N100079
N100056
N100058
N100031
N100070
N100038
N100074
N100037
N100065
N100067
N100061
N100033
N100076
N100034
N100078
N100032
N100057
N100035
N100072
PAINEL PARA BOTÃO MX ALFA
L1LI001
L1LI002
L1LI004
PALHETA PARA SELETOR
P
Verde 10K / 90V / GC -
Verde 12K / 130V / chamada separada da iluminação
Verde 12K / 90V / GC+
Verde 12K / 130V / GC+ série 300 cabina
Verde 1K5 / 24V / chamada separada da iluminação
Verde 1K5 / 24V / GC- / Miconic / Elevatec
Verde 1k5 / 24 / GC+
Verde 470R / 12V / chamada separada da iluminação
Verde 470R / 12V / GC+
Verde 4K7 / 50 / 75V / GC -
Verde 4K7 / 50 / 75V / GC+
Verde 4K7 / 50 / 75V / GC+ / série 300 cabina
Verde com diodo para quadro microprocessado
Verde com diodo para quadro microprocessado Duplex
Vermelho 10K / 90V / GC -
Vermelho 12K / 130V / chamada separada da iluminação
Vermelho 12K / 130V / GC+
Vermelho 12K / 130V / GC+ série 300 cabina
Vermelho 1K5 / 24V / GC+
Vermelho 1K5 / 24V / chamada separada da iluminação
Vermelho 1K5 / 24V GC- / Miconic / Elevatec
Vermelho 470R / 12V / chamada separada da iluminação
Vermelho 470R / 12V / GC+
Vermelho 4K7 / 50 / 75V / GC -
Vermelho 4K7 / 50 / 75V / GC+
Vermelho 4K7 / 50 / 75V / GC+ / série 300 cabina
Vermelho com diodo para quadro microprocessado
Vermelho com diodo para quadro microprocessado duplex
Vermelho com diodo + resistência 470R quadro Simpac /
Eletem / Addtech
Vermelho com diodo + resistência 4K7 Servelev
Palheta grande para seletor lift
Palheta pequena para seletor lift
Palheta mini para seletor lift
J100056
PALHETA COM PRATA
PARAFUSO UNIÃO
PARAFUSO ANTI- VANDALISMO
C100171
C100172
C100625
C100508
C101118
C100539
C100624
C100529
C100675
C100654
67
P
Palheta com prata para miolo de trinco EV
3/16¨x 1¨ metalizado
3/16¨x 1.3/4¨ para puxador
3/16¨ x 1¨ latão cabeça oval
3/16¨ x 1¨ niquelado cabeça redonda
3/16¨ x 1¨ niquelado cabeça oval
3/16¨ x 1.1/2¨ niquelado cabeça oval
3/16¨ x 2.1/2¨ niquelado cabeça oval
5/32¨ x 5/8¨ niquelado cabeça oval
M4 x 12mm niquelado cabeça redonda
M5 x 35mm niquelado cabeça oval
I100214
I100213
I100212
PANTALHA PARA SELETOR
Pantalha pequena (2 por parada)
Pantalha média (4 por parada até 90 m/min)
Pantalha grande (4 por parada acima 90 m/min)
• Kit completo:
J100604 kit pendural / J100171 suporte p/ fonte /
H103955 corda nylon / I100214 + I100213 + I100212
• Cabeça oval – com pescoço escareado
• Cabeça redonda – sem pescoço, sem escareadosem escarear e
sem pescoço
cabeça redonda
escareado com pescoço
cabeça oval
68
H102410
PASTILHA BRAILLE
H103283
PASTILHA BRAILLE
Pastilha Braille 50 x 30mm - reta (foto)
Pastilha Braille 65 x 35mm - arredondada
PASTILHA BRAILLE
H101667
PASTILHA BRAILLE
M1AV001
PESADOR DE CARGA
P
Pastilha Braille 70 x 35mm para batente
• Instalar 2 por andar, 1 no batente direito outra no batente
esquerdo, na altura da linha de centro do botão do
pavimento, mínimo 900mm e no máximo 1100mm
Em aço inox 23,7 x 28,3mm - reta
H104839
H105797
Pastilha preta gravação Braille 25 x 30mm
Limitador de carga eletrônico
H101374
PESO PARA TENSOR
Peso para tensor
INOX
INOX
INOX
L100009
PICK-UP DE PARADA
PLACA U 307
PLACA EM ACRÍLICO
H101314
H100272
H100273
H100274
H100275
H100276
H100277
H100278
H100279
H100280
H100281
H100282
H100283
H100284
H100285
H100286
H100287
69
P
Pick-up de parada sem mola
Placa U 307
Ø 65mm indicadora de andar 1
Ø 65mm indicadora de andar 2
Ø 65mm indicadora de andar 3
Ø 65mm indicadora de andar 4
Ø 65mm indicadora de andar 5
Ø 65mm indicadora de andar 6
Ø 65mm indicadora de andar 7
Ø 65mm indicadora de andar 8
Ø 65mm indicadora de andar 9
Ø 65mm indicadora de andar S
Ø 65mm indicadora de andar T
Ø 65mm indicadora de andar 10
Ø 65mm indicadora de andar 11
Ø 65mm indicadora de andar 12
Ø 65mm indicadora de andar 13
Ø 65mm indicadora de andar 14
H101542
PITÃO PARA ACOLCHOADO
Pitão para acolchoado
• Fixar com rebite pop
H100288
H100289
H100290
H100291
H100292
H100293
H100294
H100295
H100296
H100297
H100298
H100299
H100300
H101532
H100811
H101127
H101267
H101268
H101269
H101270
H101271
H101272
H101529
H101530
H101531
Ø 54mm indicadora de andar 15
Ø 65mm indicadora de andar 16
Ø 65mm indicadora de andar 17
Ø 65mm indicadora de andar 18
Ø 65mm indicadora de andar 19
Ø 65mm indicadora de andar 20
Ø 65mm indicadora de andar S1
Ø 65mm indicadora de andar S2
Ø 65mm indicadora de andar S3
Ø 65mm indicadora de andar S4
Ø 65mm indicadora de andar S5
Ø 65mm indicadora de andar S6
Ø 65mm indicadora de andar SS
Ø 65mm indicadora de andar PG
Ø 65mm indicadora de andar G
Ø 65mm indicadora de andar 0
Ø 65mm indicadora de andar SL
Ø 65mm indicadora de andar C
Ø 65mm indicadora de andar P
Ø 65mm indicadora de andar -1
Ø 65mm indicadora de andar -2
Ø 65mm indicadora de andar -3
Ø 65mm indicadora de andar G1
Ø 65mm indicadora de andar G2
Ø 65mm indicadora de andar G3
70
H100873
PLACA ADESIVA
H102234
H100769
H100770
H100771
H100772
H100773
H100774
H100775
H100776
PLACA ADESIVA INFORMATIVA
H103942
PLACA ADESIVA DE POLIESTER
H100767
PLACA ADESIVA SERVIÇO
P
Para porta pantográfica - dimensão 105 x 155mm
Lotação 04 passageiros / proibido fumar
Lotação 05 passageiros / proibido fumar
Lotação 06 passageiros / proibido fumar
Lotação 07 passageiros / proibido fumar
Lotação 08 passageiros / proibido fumar
Lotação 09 passageiros / proibido fumar
Lotação 10 passageiros / proibido fumar
Lotação 11 passageiros / proibido fumar
Lotação 12 passageiros / proibido fumar
• Dimensão 105 x 155mm
Prata 130 x 140mm ¨seta sobe e desce¨ Indica
rotação do motor
Placa adesiva ¨serviço¨ - dimensão 50 x 230mm
H100768
PLACA ADESIVA SOCIAL
Placa adesiva ¨social¨ - dimensão 50 x 230mm
H103943
PLACA ADESIVA DE VINIL
PLACA ALUMÍNIO 150 X 180 mm
H101644
71
P
400 X 35mm ¨atenção cuidado com o contra peso¨
Aviso aos passageiros
H104695
H104696
H104697
H104698
H104699
PLACA ALUMÍNIO ¨ATENÇÃO...”
500kg
600kg
1000kg
2000kg
3000kg
H100940
H100939
H100264
PLACA DE PVC
PLACA DE PVC 240 x 160mm
H103945
Elevador em manutenção (foto)
Elevador em reforma
Elevador em revisão
Perigo máquina do elevador acesso proibido
H103944
PLACA DE PVC 310 x 220mm
Perigo mantenha-se distante da área do contra peso
Placa alumínio 290 x 130mm ¨Atenção Carga
Máxima Proibido o transporte de passageiros
Aplicação: Para elevador de carga
72
H103946
PLACA DE PVC 240 x 160mm
H103947
PLACA DE PVC 310 x 220mm
Atenção utilize a escada de acesso ao poço
PLACA DE PVC 310 x 180mm
H103949
PLACA DE PVC 240 x 160mm
H104216
PLACA EM VINIL 120 x 120mm
P
Perigo caixa do elevador acesso proibido
Atenção antes de acessar o poço teste a chave PAP
H103948
Atenção perigo de queda feche o alçapão
Deficiente físico
I100665
PLACA CENTRAL MX
Gerenciamento até 04 elevadores AL 2500 em conjunto
I100626
PLACA DE COMANDO
PLACA ESTAÇÃO PARA BOTOEIRA
H105920
73
P
Placa de comando AL 2500
Placa estação de botoeira
I100592
I100593
PLACA DE COMANDO
Placa de comando AL 2000 simplex
Placa de comando AL 2000 duplex
I100754
PLACA PARA CHAVEAMENTO
PLACA DE COMANDO PARA PLATAFORMA
H106368
De chamadas para Duplex
Placa de comando para plataforma e montacarga
2 paradas
• até 2CV - Elétrica ou Hidráulica
I100666
PLACA DUAL OMD 85 – PLACA PRINCIPAL
Para reposição DUAL / OMEGA II / INFOLEV
74
I100598
I100729
PLACA FIF MONITORAMENTO DE REDE
I100600
PLACA FILTRO
Módulo de filtragem de motor de porta trifásico
PLACA FILTRO DE PORTA
I100622
I100623
PLACA FONTE
I100619
PLACA FONTE DE FREIO MOTOR
P
AL 2000 e AL 2500 220V - inversão de fase (FIF)
AL 2000 e AL 2500 380V - inversão de fase (FIF)
Módulo de filtragem para bobinas de contatores
I100638
+ 10V para comando AL 2000 e AL 2500
+ 24V para comando AL 2000 e AL 2500
Para comando AL 2000 e AL 2500
I100627
I100628
I100594
I100618
PLACA INTERFACE PARA ACIONAMENTO
IR 2500 CC
IR 2500 VF
IR 2000 VF
IR 2000 HD
• Interface de rele (IR)
I100637
PLACA ILH – MULTIFUNÇÃO INTERFACE ILH
PLATAFORMA HIDRÁULICA
T100086
75
P
Para comando AL 2000 e AL 2500
Hidráulica, com capacidade de carga de 250Kg
J100410
J100411
J100412
PLACA KIT SETA – INTERFACE COM 2 RELÉ
2 Contato NA para comando AL 2000 e AL 2500
2 Contato NF para comando AL 2000 e AL 2500
1NA + 1 NF para comando AL 2000 e AL 2500
Características:
Sempre hidráulica
Capacidade de carga: 250kg
Velocidade: 6m / min.
Percurso máximo: até 2m de percurso a cabine será aberta, acima
de 2m e até 4m de percurso a cabine será aberta mas a caixa
devera ser enclausurada.
L = LARGURA C = COMPRIMENTO
O enclausuramento da cabine (caixa de corrida), quando
necessário em função do desnível, deverá ser providenciada pelo
comprador de acordo com as medidas estabelecidas em projeto.
• Especificações nas páginas 76
76
ESPECIFICAÇÕES PLATAFORMA HIDRÁULICA
P
DIMENSÕES
USO PRINCIPAL
Instalação em edifícios públicos
Portas adjacentes
Pessoa em cadeira de rodas c/ acompanhante
Portas unilaterais
Pessoa em cadeira de rodas c/ acompanhante
Portas opostas
Pessoa em cadeira de rodas c/ acompanhante
Instalações em edifícios residenciais
Portas opostas
Pessoa em cadeira de rodas c/ acompanhante atrás
Portas unilaterais
Pessoa em cadeira de rodas c/ acompanhante atrás
Portas opostas
Usuário só, em pé ou em cadeira de rodas
Portas unilaterais
Usuário só, em pé ou em cadeira de rodas
Portas opostas
Usuário só, não comporta cadeira de rodas
Portas unilaterais
Usuário só, não comporta cadeira de rodas
CABINA ÁREA ÚTIL (L x C)
1100 mm X 1400 mm
900 mm X 1400 mm
900 mm X 1400 mm
800 mm x 1600 mm
800 mm x 1600 mm
800 mm x 1250 mm
800 mm x 1250 mm
650 mm x 650 mm
650 mm x 650 mm
CAIXA MÍNIMA
1400 mm X 1500 mm
1270 mm X 1500 mm
1270 mm X 1450 mm
1150 mm x 1650 mm
1150 mm x 1700 mm
1150 mm x 1300 mm
1150 mm x 1350 mm
990 mm x 700 mm
990 mm x 750 mm
(L x C)
ESPECIFICAÇÕES
MODELO
PH 50
PH 100
PH 150
PH 200
PH 250
PH 300
PH 350
PH 400
VELOCIDADE
6 m/min
6 m/min
6 m/min
6 m/min
6 m/min
6 m/min
6 m/min
6 m/min
PERCURSO
até 500 mm
até 1000 mm
até 1500 mm
até 2000 mm
até 2500 mm
até 3000 mm
até 3500 mm
até 4000 mm
POÇO (min.)
150 mm
150 mm
150 mm
150 mm
150 mm
150 mm
150 mm
150 mm
ÚLTIMA ALTURA (min.)
-
-
-
-
2500 mm
2500 mm
2500 mm
2500 mm
I100004
PLATINADO DE ENGATE DE TRINCO
POLIA DE TRAÇÃO LIFT – 4 CANAIS – ½¨
J1LI012
J1LI009
J1LI010
J1LI023
77
P
Platinado de engate de trinco
Ø externo 540mm Ø interno 200mm
Ø externo 610mm Ø interno 200mm
Ø externo 510mm Ø interno 380mm
Ø externo 610mm Ø interno 390mm com orelhas
J1OM001
J1HA001
POLIA DE TRAÇÃO
Ø externo 500mm, Ø interno 180mm 4 canais 3/8¨para
máquina W 150
Ø externo 500mm, Ø interno eixo, c/ 3 canais 3/8¨
I100309
I100310
POLIA PARA OPERADOR ALFA
POLIA SINCRONIZADA
H101341
H101932
Eixo com chaveta, polia larga
Eixo com ranhura, polia estreita
24 x L037 para taco gerador
AL 8mm x 10 112Z Ø externo 283mm para taco gerador
H101931
POLIA SINCRONIZADA
FE 8mm x 10 x 14Z Ø externo 34mm para taco gerador
78
POLIA DE TRAÇÃO COM ENCAIXE
P
E
A
F D C B
A1 A2
B1
B2
C1 C2
A - Largura da polia
B - Ø diâmetro externo
C - Ø encaixe
D - Furo interno
E - Entre furos / entre centros
F - Entre furos / entre centros
G - Largura cubo
H - Ø diâmetro externo
A1 - Largura do canal da chaveta
B1 - Profundidade do canal da chaveta
C1 - Ø diâmetro externo do eixo
A2 - Largura do canal da chaveta
B2 - Altura interna do canal da chaveta
C2 - Ø diâmetro interno do furo da polia
A
B
G
HB2
A2
C2
Detalhes das ranhuras
Detalhes das ranhuras
POLIA DE TRAÇÃO
Rasgo da chaveta (eixo/polia)
H100304
H100671
PONTE RETIFICADORA MONOFÁSICA
PORTA DE PAVIMENTO AUTOMÁTICA CENTRAL
P100111
P100112
P100202
P100124
P100125
P100126
P100127
P100128
P100207
P100113
P100114
P100115
P100116
P100117
P100118
P100119
P100120
P100121
P100208
P100129
P100130
P100131
P100132
P100133
P100134
P100135
P100136
P100137
P100138
P100122
P100123
P100139
79
P
25/02 (foto)
24/05
1100mm 2 folhas aço inox
1200mm 2 folhas aço inox
0700mm 2 folhas aço carbono
0800mm 2 folhas aço carbono
0900mm 2 folhas aço carbono
1000mm 2 folhas aço carbono
1100mm 2 folhas aço carbono
1200mm 2 folhas aço carbono
0700mm 4 folhas aço inox
0800mm 4 folhas aço inox
0900mm 4 folhas aço inox
1000mm 4 folhas aço inox
1100mm 4 folhas aço inox
1200mm 4 folhas aço inox
1300mm 4 folhas aço inox
1400mm 4 folhas aço inox
1500mm 4 folhas aço inox
1600mm 4 folhas aço inox
0700mm 4 folhas aço carbono
0800mm 4 folhas aço carbono
0900mm 4 folhas aço carbono
1000mm 4 folhas aço carbono
1100mm 4 folhas aço carbono
1200mm 4 folhas aço carbono
1300mm 4 folhas aço carbono
1400mm 4 folhas aço carbono
1500mm 4 folhas aço carbono
1600mm 4 folhas aço carbono
2000mm 6 folhas aço carbono
2000mm 6 folhas aço inox
2600mm 6 folhas aço inox
2600mm 6 folhas aço carbono
H100305
H100530
H102418
H100803
PONTE RETIFICADORA TRIFÁSICA
SKD 31/02
SKD 31/04
SKD 31/08
SKD 50/04
P100201
P100108
P100109
P100110
0700mm 2 folhas aço inox
0800mm 2 folhas aço inox
0900mm 2 folhas aço inox
1000mm 2 folhas aço inox
80
PORTA DE PAVIMENTO AUTOMÁTICA LATERAL
P
P100140
P100141
P100142
P100143
P100144
P100145
P100211
P100146
P100147
P100148
P100149
P100150
P100151
P100152
P100153
P100154
P100155
P100156
P100157
P100158
P100159
P100160
P100212
P100161
P100162
P100163
P100164
P100165
P100166
P100167
P100168
P100169
Esquerda 0700mm 2 folhas aço inox
Esquerda 0800mm 2 folhas aço inox
Esquerda 0900mm 2 folhas aço inox
Esquerda 1000mm 2 folhas aço inox
Esquerda 1100mm 2 folhas aço inox
Esquerda 1200mm 2 folhas aço inox
Esquerda 0700mm 3 folhas aço inox
Esquerda 0800mm 3 folhas aço inox
Esquerda 0900mm 3 folhas aço inox
Esquerda 1000mm 3 folhas aço inox
Esquerda 1100mm 3 folhas aço inox
Esquerda 1200mm 3 folhas aço inox
Esquerda 1300mm 3 folhas aço inox
Esquerda 1400mm 3 folhas aço inox
Esquerda 1500mm 3 folhas aço inox
Esquerda 1600mm 3 folhas aço inox
Esquerda 0700mm 2 folhas aço carbono
Esquerda 0800mm 2 folhas aço carbono
Esquerda 0900mm 2 folhas aço carbono
Esquerda 1000mm 2 folhas aço carbono
Esquerda 1100mm 2 folhas aço carbono
Esquerda 1200mm 2 folhas aço carbono
Esquerda 0700mm 3 folhas aço carbono
Esquerda 0800mm 3 folhas aço carbono
Esquerda 0900mm 3 folhas aço carbono
Esquerda 1000mm 3 folhas aço carbono
Esquerda 1100mm 3 folhas aço carbono
Esquerda 1200mm 3 folhas aço carbono
Esquerda 1300mm 3 folhas aço carbono
Esquerda 1400mm 3 folhas aço carbono
Esquerda 1500mm 3 folhas aço carbono
Esquerda 1600mm 3 folhas aço carbono
P100170
P100171
P100172
P100173
P100174
P100175
P100209
P100176
P100177
P100178
P100179
P100180
P100181
P100182
P100183
P100184
P100185
P100186
P100187
P100188
P100189
P100190
P100210
P100191
P100192
P100193
P100194
P100195
P100196
P100197
P100198
P100199
Direita 0700mm 2 folhas aço inox
Direita 0800mm 2 folhas aço inox
Direita 0900mm 2 folhas aço inox
Direita 1000mm 2 folhas aço inox
Direita 1100mm 2 folhas aço inox
Direita 1200mm 2 folhas aço inox
Direita 0700mm 3 folhas aço inox
Direita 0800mm 3 folhas aço inox
Direita 0900mm 3 folhas aço inox
Direita 1000mm 3 folhas aço inox
Direita 1100mm 3 folhas aço inox
Direita 1200mm 3 folhas aço inox
Direita 1300mm 3 folhas aço inox
Direita 1400mm 3 folhas aço inox
Direita 1500mm 3 folhas aço inox
Direita 1600mm 3 folhas aço inox
Direita 0700mm 2 folhas aço carbono
Direita 0800mm 2 folhas aço carbono
Direita 0900mm 2 folhas aço carbono
Direita 1000mm 2 folhas aço carbono
Direita 1100mm 2 folhas aço carbono
Direita 1200mm 2 folhas aço carbono
Direita 0700mm 3 folhas aço carbono
Direita 0800mm 3 folhas aço carbono
Direita 0900mm 3 folhas aço carbono
Direita 1000mm 3 folhas aço carbono
Direita 1100mm 3 folhas aço carbono
Direita 1200mm 3 folhas aço carbono
Direita 1300mm 3 folhas aço carbono
Direita 1400mm 3 folhas aço carbono
Direita 1500mm 3 folhas aço carbono
Direita 1600mm 3 folhas aço carbono
* Portas especiais são fabricadas sob encomenda
PORTA DE PAVIMENTO
81
P
PORTA DE PAVIMENTO ABERTURA CENTRAL 2 FOLHAS
AL A B
700 1030 1090
800 1180 1210
900 1330 1375
1000 1470 1470
1100 1600 1600
1200 1700 1720
AL A B
700 1400 1450
800 1600 1650
900 1760 1850
1000 1910 2004
1100 2060 2154
1200 2210 2304
C
1480
1654
1854
2050
2250
2450
PORTA DE PAVIMENTO ABERTURA LATERAL 2 FOLHAS
82
H100307
PORTA FUSÍVEL DE VIDRO
P100204
PORTA GUILHOTINA
Manual,
• Para cotação informar:
1 – Quantidade de barras e altura da barra mais alta
2 – Acessórios opcionais :
Soleira, barra régua, trinco e limite fim de curso
• Venda sob consulta.
• Fornecida apenas em aço carbono
• Desenho de especificação na página de apoio
para cabine ou pavimento
PORTA PANTOGRÁFICA
H103084
PRESILHA
J100039
PUXADOR INOX
P
Porta fusível de vidro PF 50
Manual, para cabine ou pavimento
Obs: Fabricamos sob encomenda, com medidas
máximas 1m x 1m
H101519
Presilha 3/16¨ para botoeira
Puxador inox
H101543
PUXADOR
Em latão cromado para caixa de interfone
90mm
250mm
45mm
J100350
J100351
J100352
J100353
J100354
J100355
J100356
J100357
QUADRO DE COMANDO ALSR1 - ALSR1/M
83
Q
5HP / 220V
7,5 HP / 220V
10HP / 220V
15HP / 220V
5HP / 220V duplex
7,5HP / 220V duplex
10HP / 220V duplex
15HP / 220V duplex
J100381
J100382
J100383
J100384
J100385
J100386
J100387
QUADRO DE COMANDO ALSR2 / CC
50A / 220V
75A / 220V
100A / 220V
50A / 220V duplex
75A / 220V duplex
100A / 220V duplex
140A / 220V duplex
• Botões iluminados por LEDS
• Sistema de detecção de falhas em trincos, contatos de porta, botões de chamadas defeituosos, viagens, etc...
• Seletivo na subida e descida para até 32 pisos
• Disponível na versão duplex, para controle de 2 elevadores por conjunto
• Disponível para Serviço de Ascensorista
• Sistema de sinalizações (Setas, IPD, Gongo, etc...)
• Conjunto de até 04 carros (Sistema Multiplex) pode ser utilizado com central de monitoramento por computador
• Pode ser codificado (Sistema Alfa Code)
• Aceleração e desaceleração suave, sem vibrações e paradas bruscas com nivelamento perfeito
J100361
J100362
J100363
J100364
J100365
J100366
J100367
J100368
5HP / 380V
7,5 HP / 380V
10HP / 380V
15HP / 380V
5HP / 380V duplex
7,5HP / 380V duplex
10HP / 380V duplex
15HP / 380V duplex
• Elevadores elétricos com controle de velocidade;
• Sistema de multicarros para até três elevadores
MODELO ALSR1/M;
• Até 24 pisos;
• Até 75 m/min;
• Dupla seleção em todos os pisos;
• Sistema de sinalização todo serial (displays, setas,
gongo e voz);
• Novo conceito para estações de pavimento (chamadas,
IPD) com sistema serial;
• Inversores de primeira linha para acionamento do
elevador;
• Conjunto elétrico do elevador totalmente plugado.
• Quadro de Comando :: Caixa de Inspeção ::
Todos os Sinais de Poço (Portas, Limites etc.)
• Fiação de Cabine (Operador de Porta,
Botoeiras, Ventilador etc.) :: Iluminação da
Cabine :: Estações de Pavimento
OPERAÇÕES ESPECIAIS
• Serviço Independente :: Operação de Bombeiro ::
Sistema de Monitoramento Central
• Sistema de Biometria a ser implementado em breve.
J100388
J100389
J100390
J100391
J100392
J100393
J100394
50A / 380V
75A / 380V
100A / 380V
50A / 380V duplex
75A / 380V duplex
100A / 380V duplex
140A / 380V duplex
84
J100369
J100370
J100371
J100372
J100373
J100374
QUADRO DE COMANDO ALSR2 - ALSR2/M - ALSR6/M
J100396
J100398
J100399
J100400
J100401
J100402
QUADRO DE COMANDO ALSR1/H
Q
10 HP / 220V
15 HP / 220V
20 HP / 220V
10 HP / 220V duplex
15 HP / 220V duplex
20 HP / 220V duplex
8HP / 220V
12HP / 220V
15HP / 220V
20HP / 220V
25HP / 220V
30HP / 220V
J100375
J100376
J100377
J100378
J100379
J100380
10 HP / 380V
15 HP / 380V
20 HP / 380V
10 HP / 380V duplex
15 HP / 380V duplex
20 HP / 380V duplex
• Quadro de Comando :: Caixa de Inspeção ::
Todos os Sinais de Poço (Portas, Limites etc.)
• Fiação de Cabine (Operador de Porta,
Botoeiras, Ventilador etc.) :: Iluminação da
Cabine :: Estações de Pavimento
OPERAÇÕES ESPECIAIS
• Serviço Independente :: Operação de Bombeiro
:: Operação c/ Ascensorista
• Sistema de Monitoramento computadorizado ::
Sistema de Biometria a ser implementado
• Elevadores elétricos com controle de velocidade;
• Sistema multicarros para até três elevadores MODELO ALSR2/M;
• Sistema multicarros para até seis elevadores MODELO ALSR6/M
• Até 32 pisos;
• Até 180 m/min;
• Dupla seleção em todos os pisos;
• Sistema de sinalização todo serial (displays, setas, gongo e voz);
• Novo conceito para estações de pavimento (chamadas, IPD) com
sistema serial;
• Inversores de primeira linha para acionamento do elevador;
• Conjunto elétrico do elevador totalmente plugado.
J100403
J100405
J100406
J100407
J100408
J100409
8HP / 380V
12HP / 380V
15HP / 380V
20HP / 380V
25HP / 380V
30HP / 380V
• Quadro de Comando :: Caixa de Inspeção ::
Todos os Sinais de Poço (Portas, Limites etc.)
• Fiação de Cabine (Operador de Porta,
Botoeiras, Ventilador etc.) :: Iluminação da
Cabine :: Estações de Pavimento
OPERAÇÕES ESPECIAIS
• Serviço Independente :: Operação de Bombeiro
:: Sistema de Resgate Automático
por falta de Energia :: Sistema de Biometria a ser
implementado em breve.
• Para elevadores hidráulicos;
• Até 24 pisos;
• Partidas suaves;
• Acionamento por Sistema de Softstart;
• Sistema de Renivelamento automático;
• Dupla seleção em todos os pisos;
• Sistema de Sinalização todo serial (displays, setas,
gongo e voz);
• Novo conceito para estação de pavimento (chamadas,
IPD) com sistema serial;
• Conjunto elétrico do elevador totalmente plugado;
J100395
QUADRO DE COMANDO CENTRAL AL 2500
85
QR
Multicarros - Gerenciamento de até 4 elevadores
J100609
J100624
QUADRO DE COMANDO
Para plataforma hidráulica, até 2 paradas, até 2HP com
Soft Start
Para monta carga elétrico, até 2 paradas, até 2HP com
Soft Start
• Posição dos elevadores
• Chamadas de subida e descida externas do grupo
• Chamadas individuais internas de cabine
• Destino da viagem dos elevadores
• Alocação das chamadas e distribuição para os elevadores
Uma eficiente ferramenta para gerenciar e monitorar os seus
elevadores, com um computador podemos interferir no sistema, gerar
e deletar chamadas nos elevadores, para atender situações de
emergência ou particulares alterando a estratégia de funcionamento
dos carros, distribuindo as chamadas externas e reduzindo o tempo
de espera.
H101212
H101984
H101470
H102159
H102405
H101816
H101793
H101815
H102391
H101890
H101536
RELÉ
DZK 020048
MR 301110 / OP 3RC6 / 11
RUD 101024
SBMS 1500 60VCC
SBMS 4RC1 / 3A / ZK 040006
TM 2RC3 / ZG 200024
TM 4RC4 / 400048 / 410048
TM 4RC66 / ZG 450125
ZG 210024 / PT 370024
MR 301110 / OP 3RC6 / 11
ZK 900166 / DZK 73005
• Venda sob consulta
M1TH002
M1TH003
RELÉ FYS
94 para falta e inversão de fase
soquete para relé
OBS: 220V
86
H101813
RELÓGIO DIGITAL
Cromado 100 x 250mm
Cromado 100 x 500mm
REQUADRO DE LATÃO
H100401
H100402
H102346
RETENTOR
R
Relógio digital para botoeira
J100250
J100251
00051
00219
00610 BR
• Venda sob consulta
H104279
RESISTÊNCIA DE FRENAGEM
10 OHMS x 1200W
• Venda sob consulta
H101948
H101822
H102119
H101949
H101935
H102241
H101752
H102335
H101830
H101934
H101834
RESISTÊNCIA TUBULAR FIXA E AJUSTÁVEL
ROLAMENTO
H100529
H100437
H100925
H100440
H100880
87
R
2 R x 30 Watts
750 R x 30 Watts
1,6 R x 120 Watts
1,6 R x 400 Watts
10 R x 120 Watts
12 R x 150 Watts
20 R x 150 Watts
22 R x 160 Watts
30 R x 50 Watts
30 R x 120 Watts
40 R x 50 Watts
6208
6209
6210 Z
6213
6309 ZZ
H101612
H102144
H101147
H101615
H101833
H102130
H102165
H102347
H102118
H101909
300 R x 120 Watts
400 R x 30 Watts
500 R x 30 Watts
500 R x 120 Watts
514 R x 30 Watts
680 R x 50 Watts
1K5 R x 30 Watts
2K R x 30 Watts
2K R x 120 Watts
3150 R x 120 Watts
• Venda sob consulta
H101614
H101832
H101616
H101613
H101408
H102143
H102187
H101831
H101854
H101971
45 R x 120 Watts
50 R x 50 Watts
50 R x 120 Watts
63 R x 120 Watts
100 R x 120 Watts
120 R x 25 Watts
160 R x 120 Watts
200 R x 50 Watts
270 R x 30 Watts
270 R x 50 Watts
H100464
H100879
H100874
H100465
H101499
54306
54307
54309
54406 U
54407 U
• Venda sob consulta
H101023
H100462
H101071
H100819
H102204
211QJ MA
51110
52309
52310 B
53176
54307 6208ZZ 6209 54406 U
88
Roldana para arcada 80mm
• Acompanha eixo e parafuso
ROLDANA PARA ARCADA 80 mm
I100237
ROLDANA PARA ARCADA 150 mm
J100042
ROLDANA COM ROLAMENTO 68 mm
R
I100236
Roldana para arcada 150mm
• Acompanha eixo e parafuso
Para suspensão de porta de cabina ATLAS / REAL
• Externo 68mm interno 15mm
H102205
ROLDANA SUPERIOR 41 mm
Para operador tipo SELCON
ø externo 41 mm
ø interno 13 mm
H102556
ROLDANA P/ TRINCO DE PORTA DE PAVIMENTO AUTOMÁTICA
Roldana para trinco da porta de pavimento automática
ALFA
SENSOR INDUTIVO
SIRENE PARA LUZ DE EMERGÊNCIA
I100777
I100778
H101595
89
S
NA - Com suporte, 24 a 60 Volts
NF - Com suporte, 24 a 60 Volts
Sirene para luz de emergência
H100469
SAPATILHA DE NYLON
Para soleira de porta de cabina ATLAS / REAL
SERVIÇOS GERAIS
H300003 M.O. / usinagem / corte e dobra de chapa
SIRENE PARA LUZ DE EMERGÊNCIA
H102458 Sirene para luz de emergência - 6V
com 2 canais, 100 x 22mm
com 3 canais, 137 x 22mm
• Vendido por metro
90
J100652
J100651
SOLEIRA DE ALUMÍNIO REFORÇADA
J100269
SOLEIRA DE ALUMÍNIO
Com 2 canais, 100 x 26mm
• Vendido por metro
SOLEIRA DE ALUMÍNIO
J100044
SOLEIRA DE ALUMÍNIO
J100045
SOLEIRA DE ALUMÍNIO
S
Com 1 canal, 80 x 26mm
• Vendido por metro
J100254
Com 1 canal, 110 X 19mm
• Vendido por metro
Com 2 canais, 133 x 19mm
• Vendido por metro
J100130
SOLEIRA DE ALUMÍNIO
Soleira de alumínio xadrez
• Vendido por metro
16 13
51mm
26mm
26mm
1613
3313
25
46,5mm
13mm
50,5mm
19mm
15,5
13
25
13
66,5
19mm
J100224
J100225
SOLEIRA DE ALUMÍNIO
SOQUETE PARA LÂMPADA
SUBTETO PADRÃO ALFA
H100474
91
S
Com 3 canais 118 x 26mm / operador de porta
Com 3 canais 137 x 26mm – composta por 2 peças
separadas 1 com 118mm + uma tira de complemento com
19mm, para porta de pavimento ALFA
• Vendido por metro
Rosca
H100473
SOQUETE PARA LÂMPADA
Baioneta
SUBTETO
J100052 De acrílico para cabina
• O subteto pode ser fabricado conforme modelo de cada
cliente, para cotação envie o desenho disponível na página
de apoio (ou foto) e as dimensões internas livres da
cabina. Abaixo sugestões de modelos de subteto
1413
13
23
23
1319
26mm
modelo
Teo 19
modelo
Teo 34
modelo
Teo 28
modelo
Teo 55 Obs.: Desenho de
especificação na
página de apoio
92
J100211
SUPORTE PARA CORREDIÇA
Para corrediça de porta SELCON rosca 1/4 ¨ (foto)
Para corrediça de porta ALFA rosca 1/4 ¨
SUPORTE EXCÊNTRICO
H104482
SUPORTE CONCÊNTRICO
J100171
SUPORTE PARA FONTE
S
Da soleira do operador de porta de cabina ALFA
H102468
H104495
Para corrediça de porta SUR/FERMATOR rosca 3/8¨
Suporte para fonte osciladora
SUPORTE L PARA FIXAÇÃO DE GUIA
SUPORTE P/ QUADRO DE COMANDO
I100076
I100546
I100553
J100606
93
S
Suporte em L para fixação de guia 100mm x 100mm x 3/16”
Suporte em L para fixação de guia 63mm x 88mm x 3/16”
Suporte em L para fixação de guia 138mm x 188mm x 3/16”
(foto)
Suporte para quadro de comando
I100299
SUPORTE PARA CORREDIÇA SCHINDLER
Suporte para corrediça Schindler + lubrificador
• Não incluso corrediça, lubrificador, nem coletor de óleo
SUPORTE PARA LUBRIFICADOR
J1AT141 Suporte para lubrificador de guia
94
H100484
SUPORTE PARA SAPATILHA
J100050
TAPA VISTA
Para cabo do freio de segurança
Obs: Diâmetro externo da polia 220mm
TENSOR SEM PESO
H100498
TERMINAL ESPADA
H100499
TERMINAL ESPADA
ST
Suporte para sapatilha de nylon
Ou aba de proteção de cabine
L100013
Fêmea para CI
Macho para CI
vão livre + 50mm
850mm
750mm
100mm
C200336
C200095
TINTA ESMALTE SINTÉTICO – 3,6L
TIRANTE PARA CABO DE AÇO
J100174
J100175
J100183
95
T
amarelo
azul ATLAS
Para cabo 3/8¨ com cunha sem mola
Para cabo 1/2¨ com cunha sem mola
Para cabo 5/8¨ com cunha sem mola
• Mola vendida separadamente
• Acompanham 2 clips para cabo de aço (abraçadeira)
H101021
TRANSFORMADOR MONOFÁSICO
H101756
H101806
TRANSFORMADOR MONOFÁSICO
500W entrada 220V saída 6/8/12/24/70/75/110 volts
50W entrada 110V saída 8/12/24 volts
50W entrada 220V saída 5/10/15 volts
N100131
N100134
TIMONERIA
Entre guias 1000 a 1300mm
Entre guias 1305 a 1800mm
Timoneria - Dispositivo articulado p/ acionar o par
de cunha do freio de segurança
96
M000019
M000020
TRINCO ACIONAMENTO LATERAL
J100216
J100217
TRINCO PARA PORTA DE PAVIMENTO
TV
Direito p/ porta eixo vertical (foto)
Esquerdo p/ porta eixo vertical
Direito automático modelo ALFA
Esquerdo automático modelo ALFA (foto)
N1AT121
N1AT122
TRINCO PARA PORTA PANTOGRÁFICA
TC direito TV3
TC esquerdo TV3 (foto)
• Para o trinco ser completo adicionar:
L1AT052 – Alavanca para trinco EV
J1AT148 – Engate externo para trinco EV
H101540
VENTILADOR
Ventilador / exaustor para cabina 110/220V com 260mm
Direito p/ porta eixo vertical (foto)
Esquerdo p/ porta eixo vertical
TRINCO ACIONAMENTO FRONTAL
M1OM033
M1OM036
VENTILADOR
VISOR DE LATÃO
H103719
H103720
J100249
97
V
Microventilador p/ cabina 110/220V com 140mm
Grade para microventilador
Cromado 100 x 250mm (medida do rasgo de porta)
VISOR BRANCO – LUZ DE EMERGÊNCIA
H101963
H101835
100 X 63 X 2mm
153 X 63 X 2mm
VISOR DE LATÃO
J100090 Cromado 100 x 500mm (medida do rasgo de porta)
M1TH004
VENTILADOR
Ventilador centrífugo 230 VCA / 29W
Dimensão 435 x 130 x 130 mm - Ruído 48 db
98
H1OT161
J100623
VISOR TRANSPARENTE
24 x 19 x 2mm
40 x 24 x 2mm
100 x 70 x 2mm
180 x 70 x 2mm
100 x 70 x 2mm – Modelo novo de sobrepor
60 x 85 x 2mm - PIMR / PLA7012 / 55DD
60 x 45 x 2mm - 55D
VISOR VERMELHO PARA IPD
H104498
H104591
H104533
H104508
H105550
VISOR AZUL PARA IPD
V
Para relógio digital 60 x 30 x 2mm
Para IPD LCD 126 x 70mm
H101115
H101114
H102343
J100205
H105411
J100610
J100611
40 x 24 x 2mm
60 x 30 x 2mm
60 x 50 x 2mm
100 x 70 x 2mm
60 x 85 x 2mm - PIMR / PLA7012 / 55DD
L1AT001
L1AT002
ALAVANCA PARA FECHADOR
ANEL DE ACABAMENTO
BASE PARA BOTÃO
H1AT149
J1AT132
99
AB
Direito
Esquerdo (foto)
Para botão classe A
Para botão classe A
L1AT052
ALAVANCA PARA TRINCO
Alavanca para trinco eixo vertical
ARRUELA DENTADA
I1AT053 Para botão classe A
BOBINA
N1AT037 Bobina 2440 G3
ATLAS
100
N1AT035
BOBINA
N1AT024
N1AT001
N1AT002
N1AT128
BOBINA
Bobina 3303 G1
Bobina 3303 G2
Bobina 3303 G3
Bobina 3303 G16
BOBINA
N1AT031
N1AT020
BOBINA
N1AT003
N1AT004
N1AT005
N1AT006
BOBINA
B
Bobina 2440 G16
Bobina 3038 G1
Bobina 3038 G2
Bobina 3038 G3
Bobina 3038 G5
N1AT116
N1AT039
N1AT023
N1AT032
Bobina 3303 G11
Bobina 3303 G12
Bobina 640 G1
Bobina 640 G2
Bobina 640 G3
Bobina 640 G4
N1AT008
N1AT009
BOBINA
Bobina 641 G1
Bobina 641 G2
ATLAS
N1AT010
N1AT011
N1AT012
N1AT013
BOBINA
BOBINA
BOBINA
N1AT014
N1AT015
N1AT026
101
B
Bobina 697 G1
Bobina 697 G2
Bobina 697 G3
Bobina 697 G4
Bobina 727 G1
Bobina 727 G4
Bobina para chave 11
N1AT045
BOBINA
Bobina 725 G5
BOBINA
N1AT036 Bobina GR3T
BOBINA
J1AT154 Bobina para freio
ATLAS
102
J1AT157
J1AT167
J1AT159
J1AT158
BOBINA PARA FREIO A DISCO
H1AT214
H1AT215
BOBINA
Para operador de porta
• 1 - Regulagem pelo eixo superior
• 2 - O parafuso lateral determina o limite do nível de
óleo, usar óleo Bardhal MA 20 ISO VG 68 ou similar
BOMBA AMORTECEDORA
H101093
BORRACHA AMORTECEDORA
H1AT160
BORRACHA PARA CORREDIÇA
B
Grande 125V
Grande 65V
Pequena 125V
Pequena 65V
Para rampa magnética 125V
Para rampa magnética 65V
H1AT223
Para corrente do operador
Para corrediça lateral 30 x 123mm
• Trabalha na corrediça H1AT069
H1AT317
BORRACHA PARA CORREDIÇA
Para corrediça lateral 25 x 126mm
• Trabalha na corrediça H1AT316
ATLAS
2
1
P1AT070
BOTÃO CLASSE A
BOTÃO CLASSE A
BOTÃO BL 60
P1AT068
L1AT025
103
B
Com furo para led
• Liso - furo central
• Gravado - furo fora do centro
Botão classe A simples
• Gravação sempre no centro
Gravado seta, com arruela
P1AT071
BOTÃO CLASSE A
Em inox com furo para led
• Liso - furo central
• Gravado - furo fora do centro
BOTÃO CLASSE A
P1AT069 Botão classe A simples em inox
• Gravação sempre no centro
BOTÃO BL 60
L1AT024 Liso, com arruela
ATLAS
104
H100060
BOTÃO OPERADOR
H100061
BOTÃO OPERADOR
Botão retangular digital ATLAS
• Não acompanha ¨painel de chamada para botão digital¨
O led sempre no centro da botoeira, na foto mostra
botão esquerdo
BOTÃO RETANGULAR DIGITAL
H100065
H100066
BUCHA DE NYLON
I100035
I100036
BUJÃO ILHÓS
BC
Grande para relé SR
• Não acompanha rebite
Pequeno para relé SR
• Não acompanha rebite
H1AT322
Para bomba do operador
Para braço do operador
Bujão ilhós
Chave para bujão ilhós
• Bujão e a chave são vendidos separados
H1AT048
CALÇO PARA CARRETILHA
Calço para carretilha
ATLAS
H1AT050
CAPACETE PARA BOTÃO
CARVÃO DUPLO METALIZADO
CARVÃO PARA QUADRO ALFA
H1AT226
H1AT173
105
C
Capacete para botão classe A
16 X 19 X 34mm
25 x 32 x 38mm
I1AT126
I1AT128
CAPACETE EM INOX P/ BOTÃO CLASSE A
Liso com furo central
Gravado com furo lateral
CARVÃO SIMPLES METALIZADO
H1AT227 16,1 x 16,1 x 19,05mm
CARVÃO PARA QUADRO QV
H1AT053 25,5 x 29 x 33mm
ATLAS
106
L1AT005
CAVALETE CENTRAL
L1AT004
CAVALETE LATERAL
Para ajustar relé
CHAVE
I100036
CHAVE
J1AT113
CHAVE
C
Para fita seletora
• Acompanha rebite
Para fita seletora
• Acompanha rebite
J1AT034
Para bujão ilhós
Para freio tenaz
N1AT028
COLUNA DE COMBINAÇÃO
Coluna de combinação para ASKA
• Para pedido informar NA ou NF
Cada coluna possui 2 contatos + palheta de
acionamento (esqui)
ATLAS
H1AT059
H1AT337
CONTATO FIXO
CONTATO MEIA LUA
COROA E SEM FIM
L100099
J1AT096
107
C
Para contato V – contato externo – (foto)
para contato V – contato interno
Com prata para botão BL 60
Para máquina Ii47
• Coroa e Sem Fim não são vendidos separadamente, é
necessário enviar a máquina de tração para avaliação
e orçamento
H1AT330
CONTATO AZ
Para porta ATLAS
CONTATO V PARA CHAVE
L1AT008 Contato V para chave
CORREDIÇA DE NYLON
H1AT316 17 x 23 x 140 mm lateral – externo
• Trabalha com corrediça H1AT315 e borracha H1AT317
ATLAS
108
H1AT308
CORREDIÇA DE NYLON
H1AT069
CORREDIÇA DE NYLON
Para porta de cabina 2000
CORREDIÇA DE NYLON
H1AT063
H1AT064
H1AT065
H1AT066
H1AT067
CORREDIÇA DE NYLON XADREZ
H1AT315
H1AT068
CORREDIÇA DE NYLON CENTRAL
C
30 x 37 x 163 mm para guia de 16mm
20 x 30 x 140 mm lateral – externo
• Trabalha com corrediça H1AT068 e borracha H1AT160
H1AT153
30 x 50 x 250 mm para guia de 16mm
32 x 39 x 173 mm para guia de 16mm
32 x 39 x 214 mm para guia de 16mm
32 x 39 x 253 mm para guia de 16mm
32 x 50 x 130 mm para guia de 16mm
34 x 38 x 142 mm - externo
35 x 45 x 142 mm - externo
H100122
H100551
CORREIA
A 31
A 39
ATLAS
H100562
H100123
H100124
CORREIA
COXIM DE BORRACHA
CUBO PARA RETENTOR
H1AT204
J1AT179
109
CD
B 46
B 51
B 75
Para operador de porta
Do eixo da intermediária da máquina 365
J1AT009
COTOVELO DE NYLON
Cotovelo de nylon para rampa
CUBO PARA POLIA
J1AT099 Polia de máquina 360 / 365
• Aplicado nas polias J1AT058, J1AT103 e J1AT098
• Furo paralelo chavetado
DESTORCEDOR
J1AT162 Para fita seletora ATLAS
ATLAS
110
H1AT231
DISCO DE FERRO
J1000159
EIXO EXCÊNTRICO
Para motor do operador de porta 150mm
EIXO FREZADO
J1AT129
EIXO FREZADO
J1AT148
ENGATE EXTERNO
DE
Para freio de 240mm
Com rolamento para suspensão de porta
H1AT246
Para motor do operador de porta 170mm
Para trinco EV (TV3)
L1AT009
L1AT203
ENGRENAGEM DE BRONZE
Ø externo 95mm x Ø interno 28mm x largura 12mm
para motor do operador de porta
Ø externo 95mm x Ø interno 80mm x largura 12mm
para motor do operador de porta
ATLAS
H1AT321
ENGRENAGEM DE NYLON
GARFO DE POLIETILENO
H1AT230
111
E/G
Ø externo 93mm x Ø interno 52mm x largura 20mm
motor do operador da porta
para
Para porta simultânea
H1AT301
H1AT176
H1AT167
H1AT219
H1AT075
H1AT220
H1AT325
H1AT155
H1AT171
H1AT174
H1AT157
ESCOVAS ELÉTRO GRAFITES
8,8 x 32 x 44mm
9,5 x 19 x 38mm 360/365 15CV – MG 44/63
9,5 x 25 x 45mm MG 44/45/63/144 gerador
9,9 x 38,1 x 51mm MG 113
11 X 33 X 51mm MG70
11,2 x 38,1 x 44mm MG 113
12,5 x 25,4 x 38,1mm MG 32
12,7 x 25,3 x 44mm máquina I e II 47 / MG 45/70
excitador / regulador
12,7 x 31,7 x 44mm MG 70 / 83W
14,7 x 32,2 x 51mm MG70
16 x 32 x 45mm MG21 / máquina II 47
FITA SELETORA
J1AT026 Estampada 0,4 x 25mm azulada
GAXETA CHEVRON
H1AT089
H1AT225
H1AT090
H1AT265
Ø externo 76 x Ø interno 50,8 x alt. 45mm
Ø externo 90 x Ø interno 55,5 x alt. 40mm
Ø externo 90 x Ø interno 58 x alt. 40mm
Ø externo 90 x Ø interno 63 x alt. 12mm
ATLAS
112
J1AT036
GUIA DE NYLON
J1AT170
KIT PARA ELIMINAR RUÍDO
Fina 3/32"
Grossa 1/8"
LÂMINA PARA CHAVE DE COMUTAÇÃO
J1AT015
LÂMINA PARA CHAVE DE COMUTAÇÃO
H1AT324
LÂMINA PARA CHAVE DE COMUTAÇÃO
G/L
Para fita seletora
Eliminar ruído do freio FD 35
J1AT014
J1AT077
Para quadro QV
Comando ALFA
M1TU006
M1TU007
LIMITE LM 60
Contato aberto
Contato fechado
Obs: Vendidos separadamente
M1TU036 – Suporte para limite
J1AT102 – Suporte com clips para fixar limite na guia
ATLAS
H1AT102
LIMITE JACARÉ
LIMITADOR DE VELOCIDADE – polia 300mm, canal 3/8¨ com contato elétrico
M1TU052
M1TU053
113
L/M
Com contato aberto
Velocidade nominal 1,50 m/s – 90 m/min
Velocidade nominal 1,75 m/s – 105 m/min
Com cunha no canal da polia
Protetor de polia 530 x 385 x 180mm (I1AT183),
vendido separadamente
H1AT103
LIMITE JACARÉ
Com contato fechado
LIMITADOR DE VELOCIDADE – polia 240mm, cabo 8mm, com contato elétrico
M1NI011
M1NI012
M1NI013
M1NI010
Velocidade nominal 1,50 m/s – 90 m/min
Velocidade nominal 1,75 m/s – 105 m/min
Velocidade nominal 2,00 m/s – 120 m/min
Velocidade nominal 2,50 m/s – 150 m/min
Com cunha no canal da polia
Obs: Acompanha protetor de polia com 160 x 440 x 340mm
MIOLO DE TRINCO
L100048 EV com contatos elétricos
ATLAS
114
L1AT036
MIOLO DE TRINCO
J1AT149
MIOLO DE TRINCO
Grande para freio
MOLA
H101162
MOLA PARA BOTÃO
H1AT109
MOLA PARA CORREDIÇA
M
EV com contatos elétricos
Transparente (TV3)
H1AT172
Classe A
De cabina e contra-peso
H1AT148
MOLA PARA FECHADOR
Mola para fechador EV
ATLAS
H1AT110
MOLA PARA FREIO
115
M/N
Mola para freio a disco
H1AT113
MOLA PARA PICK-UP
Mola para pick-up
NÚCLEO COM CAPACETE
L1AT192 Em inox p/ botão Classe A
ATLAS
NÚCLEO COM CAPACETE
L1AT191 Em inox p/ botão Classe A c/ furo para led
• Núcleo sem gravação o furo para led é no centro
• Núcleo gravado o furo para led é fora do centro
NÚCLEO COM CAPACETE
L1AT190 Para botão Classe A simples
MOLA PARA TRINCO
H100258 Mola para trinco EV
116
L1AT193
NÚCLEO COM CAPACETE
H104444
H104456
PAINEL DE CHAMADA P/ BOTÃO DIGITAL
Led lateral com diodo
Led lateral com resistência 470R
Led lateral com resistência 4K7
Led lateral com resistência 10K
Led lateral com resistência 12K
PAINEL PARA BOTÃO CLASSE A GRAVADO
L1AT048
L1AT185
L1AT187
L1AT189
L1AT200
PAINEL PARA BOTÃO CLASSE A – LISO
H1AT234
PARAFUSO
N/P
Para botão Classe A com furo para led
• Núcleo sem gravação o furo para led é no centro
• Núcleo gravado o furo para led é fora do centro
Painel para botão de chamada
Painel para botão EM/AL
L1AT049
L1AT184
L1AT186
L1AT188
L1AT199
Led central com diodo
Led central com resistência 470R
Led central com resistência 4K7
Led central com resistência 10K
Led central com resistência 12K
Para regulagem de disco de freio
H1AT198
PERFIL DE BORRACHA
Para porta – fino 10 x 10mm
ATLAS
H104444 H104456
10mm
10mm
H1AT199
PERFIL DE BORRACHA
117
P
Para porta – grosso
H1AT203
PERFIL DE BORRACHA
Perfil de borracha largo 10 x 20mm
PINO PARA TRINCO
H105156 Para trinco TC
ATLAS
PINO ESPIGA
H1AT338 Para gancho do trinco TC 46
PINO DE LATÃO
H1AT237 Para fita seletora
PINO DE BRONZE
H1AT300 Para disco de freio
10mm
20mm
118
J1AT160
J1AT161
J1AT086
J1AT142
POLIA DE DESVIO
J1AT106
J1AT175
J1AT163
J1AT103
J1AT058
J1AT098
J1AT080
J1AT071
J1AT123
J1AT118
J1AT130
J1AT131
J1AT078
J1AT092
POLIA DE TRAÇÃO
J1AT108
J1AT143
POLIA DE TRAÇÃO
H1AT285
PONTE PARA ENGATE
P
Ø ext. 520mm com 5 canais de 1/2¨ secundária
Ø ext. 600mm com 5 canais de 1/2¨ secundária
Ø ext. 415mm com 5 canais de 1/2¨
Ø ext. 650mm com 5 canais de 1/2¨ secundária
Ø ext. 350mm Ø enc. 290mm, com 3 canais 3/8¨
Ø ext. 390mm Ø enc. eixo, com 3 canais 3/8¨ máq. CE 120
Ø ext. 400mm Ø enc. 7 canais 3/8¨ + freio
Ø ext. 460mm Ø enc. 400, com 3 canais 3/8¨ maq. 365
Ø ext. 460mm Ø enc. 400, com 5 canais 3/8¨ maq. 365
Ø ext. 460mm Ø enc. 400, com 8 canais 3/8¨
Ø ext. 540mm Ø enc. 430, com 3 canais 1/2¨ maq. II 47
Ø ext. 540mm Ø enc. 470, com 4 canais 1/2¨ maq. II 47
Ø ext. 600mm Ø enc. 520, com 5 canais 1/2¨ + freio
Ø ext. 600mm Ø enc. 532, com 5 canais 1/2¨ +1 canal p/ fita
Ø ext. 630mm Ø enc. 470, com 4 canais 1/2¨
Ø ext. 720mm Ø enc. 570, com 5 canais 1/2¨
Ø ext. 820mm Ø enc. 570, com 4 canais 1/2¨
Ø ext. 820mm Ø enc. 570, com 5 canais 1/2¨
• Desenhos para especificação na próxima página
Ø
com 3 canais 3/8”
Ø externo 410mm Ø interno 67/76 eixo cônico padrão
com 4 canais 3/8”
• Polia inteira, instalada no eixo cônico 67/76 chavetado
externo 410mm Ø interno 67/76 eixo cônico padrão
Ponte para engate de trinco (TV3)
I1AT183
PROTETOR P/ POLIA - 530 x 385 x 180 mm
Para limitador de velocidade
ATLAS
385mm
180mm530mm
119
PATLAS
POLIA DE TRAÇÃO COM ENCAIXE
E
A
F D C B
A1 A2
B1
B2
C1 C2
A - Largura da polia
B - Ø diâmetro externo
C - Ø encaixe
D - Furo interno
E - Entre furos / entre centros
F - Entre furos / entre centros
G - Largura cubo
H - Ø diâmetro externo
A1 - Largura do canal da chaveta
B1 - Profundidade do canal da chaveta
C1 - Ø diâmetro externo do eixo
A2 - Largura do canal da chaveta
B2 - Altura interna do canal da chaveta
C2 - Ø diâmetro interno do furo da polia
A
B
G
HB2
A2
C2
Detalhes das ranhuras
Detalhes das ranhuras
POLIA DE TRAÇÃO
Rasgo da chaveta (eixo/polia)
120
H101252
REED SWITT
L1AT013
RELÉ SR REC
Para máquina II 47
• Coroa e sem fim não são vendidos separadamente, é
necessário enviar a máquina de tração para avaliação e
orçamento
SEM FIM E COROA
H1AT136
SEPARADOR
H1AT137
SEPARADOR
RS
SM 1001 / SM 1000
Relé SR Rec
• Informar combinação
• A bobina é vendida separadamente
J1AT095
Separador fêmea para relé
Separador macho para relé
H1AT264
H104479
SETA DISPLAY
Seta display dupla vermelha
Seta display dupla azul
• Pode ser fornecida com tensão de alimentação
de 12 a 130V
ATLAS
COMBINAÇÃO
= = =
= = =
= = =
J1AT102
SUPORTE COM CLIPS
121
ST
Para fixar limite LM 60 na guia
J1AT171
J1AT172
SUPORTE PARA CORREDIÇA
Grande para cabina
Pequeno para contra-peso (foto)
TRINCO PARA PORTA EIXO VERTICAL
L1AT198
L1AT197
Direito (TV3)
Esquerdo (TV3) (foto)
• Trabalha com alavanca L1AT052 e engate J1AT148 e são
vendidos separadamente
ATLAS
SUPORTE PARA LIMITE
M1TU036 Para limite LM 60
SUPORTE COM ROLDANA E EXCÊNTRICO
L1AT007 Para suspensão de porta
SUPORTE COM ROLDANA E EXCÊNTRICO
N1AT114 Para suspensão de porta automática
122
H104293
TRINCO PARA PORTA EIXO VERTICAL
H104294
TRINCO PARA PORTA EIXO VERTICAL
Para IPD 169 x 84 x 2mm
VISOR FUME
J100608
VISOR PUXADOR
H1AT336
VISOR VERMELHO
T/V
Tipo TF2, direito
H1AT313
Preto fosco, com vidro, para porta eixo vertical
• Não fornecemos em aço inox
• Rasgo na Porta 120 x 945mm
Visor vermelho oval para IPD
ATLAS
esp. 2mm
40mm
69mm
945mm
160mm
Tipo TF2, esquerdo
J100162
ALAVANCA PARA FECHADOR
123
A/C
Fechador DORMA com rolamento
H1KO057
BOTÃO CINZA
Botão cinza com 1 led 24V
CONTATO DE PORTA
H1KO023 Contato de porta EV AZ 07
KONE
BOTÃO PRETO
H1KO053 Botão preto com 3 leds 60V
BOTÃO PRETO
H1KO051 Botão preto com 1 led 60V
BOTÃO CINZA
H1KO058 Botão cinza com 3 leds 24V
124
H1KO059
CONTATO DE PORTA
H1KO036
H1KO035
CORPO PARA BOTÃO C/ 1 FURO P/ LED
Cinza
Preto
CORPO PARA BOTÃO C/ 3 FUROS P/ LED
H1KO040
H1KO039
CORPO PARA BOTÃO SEM FURO P/ LED
H1KO032
CORREDIÇA CURVA
C
Automática AZ 05
Cinza
Preto
H1KO038
H1KO037
Cinza
Preto
Para porta de cabina
H1KO033
H1KO087
CORREDIÇA LONGA
Direita para porta de cabina (foto)
Esquerda para porta de cabina
KONE
H1KO047
H1KO048
H1KO049
CORREDIÇA DE NYLON
125
C/I
27 x 27 x 177mm para guia de 9mm
27 x 27 x 177mm para guia de 11mm
27 x 27 x 177mm para guia de 16mm
H1KO073
CORREDIÇA DE NYLON
Para porta KONE (bujão)
IPD COMPLETO
H1KO055 IPD completo 24V cinza
KONE
DOBRADIÇA
H1KO081 Dobradiça KONE 16/1601
CORREIA
H1KO003 Para operador de porta
CORREDIÇA RETA
H1KO031 Para porta de cabina
126
H1KO052
IPD COMPLETO
H1KO001
LIMITE
Para operador de porta
MOLA
H1KO046
H1KO045
NÚCLEO PARA BOTÃO
H1KO070
H1KO071
PAINEL DE CHAMADA
I/P
IPD completo 60V preto
Limite fim de curso ZK4
H1KO004
Gravado (foto)
Liso
• Utilizado com painel de chamada com micro, não
funciona no painel de chamada com palheta
24V – 1 led
60V – 1 led
KONE
H1KO072
H1KO069
PAINEL DE CHAMADA
24V – 3 leds
60V – 3 leds
L1KO001
L1KO012
L1KO013
PAINEL FONTE OSCILADORA
127
P/R
70 volts NA
24 volts NA
24 volts NF
L100128
PAINEL INDICADOR
Painel indicador de andar
REQUADRO PARA VISOR
H1KO044
H1KO043
H1KO042
H1KO041
Cinza grande
Preto grande
Cinza pequeno
Preto pequeno
KONE
PONTE PARA CONTATO
H1KO024 Para contato de porta automática AZ 05
PONTE PARA CONTATO
H1KO050 Para contato de porta EV AZ 07
POLIA DE TRAÇÃO
J1KO035
J1KO037
J1KO017
Ø ext. 410mm Ø enc. eixo c/ 3 canais 3/8¨
Ø ext. 430mm Ø enc. eixo c/ 4 canais 3/8¨
Ø ext. 430mm Ø enc. eixo c/ 6 canais 3/8¨
128
J1KO007
ROLDANA COM ROLAMENTO
I1KO004
I1KO012
SUPORTE C/ EIXO P/ PORTA DE PAVIMENTO
Direito (foto)
Esquerdo
TRINCO EV P/ PORTA DE PAVIMENTO
R/T
Para suspensão porta de cabina Ø ext. 70 mm
Direito (foto)
Esquerdo
H1KO005
H1KO005
KONE
J1OT126
J1OT129
ALAVANCA P/ FECHO (CACHORRINHO)
129
AB
Direito (foto)
Esquerdo
J100162
ALAVANCA COM ROLAMENTO
Para fechador DORMA
BASE PARA CONTATO DE BOTÃO
H1OT004 Para botão 21mm
OTIS
AMORTECEDOR DE PORTA DE PAVIMENTO
H1OT002 De porta de pavimento Ak1
• A regulagem é feita pelo eixo
AMORTECEDOR DE BORRACHA
H1OT177 De borracha para operador de porta
AMORTECEDOR DE BORRACHA
H1OT172 De borracha para batente
130
H1OT141
BASE PARA CONTATO DE PORTA
J1OT033
BASE PARA NEON
De botão modelinho
BASE PARA PAINEL DE CHAMADA
H1OT007
BASE PARA VISOR
J1OT125
BATENTE DE BORRACHA
B
Base para contato de porta
Base para neon completa
H1OT155
Do indicador de setas
Para porta de pavimento Ø ext. 1.1/4¨
OTIS
N1OT003
BOBINA 222
Bobina 222 CDI
N1OT020
BOBINA 222
131
B
Bobina 222 CD2
N1OT005
N1OT019
BOBINA 222
Bobina 222 CV6
Bobina 222 Z8
BOBINA 222
N1OT018 Bobina 222 CY2
OTIS
BOBINA 222
N1OT007 Bobina 222 CY1
BOBINA 222
N1OT017 Bobina 222 CX17
BOBINA 222
N1OT006 Bobina 222 CX1
132
N1OT016
BOBINA 222
N1OT008
N1OT021
BOBINA 222
Bobina 222 EB1
Bobina 222 EB6
BOBINA 222
L1OT074
BOTÃO MODELINHO
H1OT164
BUJÃO BAIONETA
BC
Bobina 222 CZ1
Bobina 222 CZ2
Bobina 222 CZ6
N1OT012
N1OT029
Botão modelinho sem painel
• Botão completo, liso ou gravado
Não acompanha painel de chamada
Bujão baioneta
OTIS
H1OT093
CAPACETE PARA BOTÃO
Para botão modelinho
H1OT038
CARVÃO P/ CHAVE DE COMUTAÇÃO
133
C
5HP 10 x 10 x 23mm
H1OT039
CARVÃO P/ CHAVE DE COMUTAÇÃO
10HP 15 X 15 X 25mm
CHAVETA PARA PORTA DE PAVIMENTO
H102752 Chaveta para porta de pavimento
OTIS
CHAVE PARA DESTRAVAR TRINCO
H1OT170 Chave para destravar trinco – triangular
CHAVE PARA DESTRAVAR TRINCO
H1OT191 Chave para destravar trinco – canoa
CHAVE PARA DESTRAVAR TRINCO
H1OT157 Chave para destravar trinco – articulada
134
H1OT187
CONTATO DUPLO
H1OT134
CONTATO DUPLO
Para porta EV – curto
CONTATO PARA PORTA
H1OT131
CONTATO PARA PORTA
J1OT139
COROA PARA MÁQUINA
C
Com base para trinco EV – curto
Com base para trinco EV – longo
H1OT130
Para porta EV – longo
Para máquina 11 BT
• Coroa e Sem Fim não são vendidos separadamente, é
necessário enviar a máquina de tração para avaliação e
orçamento
OTIS
H1OT175
H1OT176
CORPO BOTÃO MODELINHO
Externo
Interno
• Vendido sempre o casal
H1OT050
CORREDIÇA DE NYLON
135
CD
Para guia de cabina e contra-peso 25 x 06 x 190mm
• Trabalha sempre conjunto com 3 peças
H1OT184
CORREDIÇA DE NYLON
Para porta de cabina 12 x 19 x 50mm
Obs.: Substitui a corrediça de Feltro
DISPOSITIVO PARA REGULAGEM
J1OT128 De lâmina A/B
OTIS
DEFLETOR PEQUENO
H1OT145 Defletor pequeno
DEFLETOR GRANDE
H1OT142 Defletor grande
CORREDIÇA DE NYLON
H1OT049 Para porta de cabina 12 x 19 x 89mm
136
J1OT137
DISPOSITIVO PARA DESTRAVAR
H1OT151
EIXO PARA PORTA
Para operador de porta
ENGRENAGEM DUPLA
H1OT116
H1OT119
H1OT117
H1OT055
H1OT120
H1OT152
H1OT097
ESCOVAS
J1OT011
FITA SELETORA
D/G
Dispositivo para destravar trinco
Com furo de passagem
I1OT012
9,5 x 38 x 44mm MG 63/65 GA 240 P2 / 240 P6 – reta
9,5 x 38 x 44mm motor 63G/65G 240 P1
9,5 x 38 x 44mm motor 77G/89F 240 J3
9,5 x 38 x 45mm máquina 131 HT 240 P3 – chanfrada
12,7 x 38 x 45mm máquina 98G 240 F19
12,7 x 38 x 50mm canto chanfrado
12,7 x 38 x 50mm MG 71/82 GA 240 R3
Estampada 0,4 x 25mm azulada
OTIS
H1OT069
GUIA PARA NÚCLEO
Do botão modelinho
H1OT196
GRAMPO
137
G/K
Para dispositivo para destravar porta
L10T001
INDICADOR DE SETAS
Indicador de setas completo
KIT LUBRIFICADOR DE GUIAS
L1OT080 Lubrificador de guias B4
Obs: A espessura da guia é ajustável
OTIS
KIT LUBRIFICADOR DE GUIAS
L1OT079 Lubrificador de guias B3
Obs: A espessura da guia é ajustável
KIT LUBRIFICADOR DE GUIAS
L1OT078 Lubrificador de guias B2
Obs: A espessura da guia é ajustável
KIT LUBRIFICADOR DE GUIAS
L1OT077 Lubrificador de guias B1
Obs: A espessura da guia é ajustável
138
L1OT081
KIT LUBRIFICADOR DE GUIAS
J1OT013
LÂMINA PARA CHAVE DE COMUTAÇÃO
Polia 320mm, canal 1/4¨ou 3/8¨, com contato elétrico
LIMITADOR DE VELOCIDADE
H101665
MIOLO DE TRINCO
K/M
Lubrificador de guias B5
Obs: A espessura da guia é ajustável
Para chave de comutação 10 HP
Miolo de trinco antigo
OTIS
H1OT099
MOLA PARA BOTÃO MODELINHO
Mola para botão modelinho
Velocidade 0,50 m/s – 30 m/min
Velocidade 0,75 m/s – 45 m/min
Velocidade 1,00 m/s – 60 m/min
Velocidade 1,25 m/s – 75 m/min
Velocidade 1,50 m/s – 90 m/min
• Para fazer pedido informar mão do limitador, conforme a
foto, a roldana está à esquerda e o martelo de travamento
à direita, mão direita como mostra na foto.
• Veja também: Protetor de Polia para Limitador (I1OT160)
L1OT085
L1OT083
L1OT082
L1OT084
L1OT086
H1OT078
MOLA PARA LIMITADOR
139
M/P
Mola para limitador de velocidade
H1OT076
H1OT077
MOLA PARA PORTA
Direita (foto)
Esquerda
PAINEL DE CHAMADA
L1OT002 Para botão com tiristor, palheta e neon
• Aplicação Seletron / Modelinho
OTIS
PAINEL DE CHAMADA
L1OT062 Para botão 130V, com tiristor, micro e led amarelo
• Aplicação Seletron / Modelinho
PAINEL DE CHAMADA
L1OT061 Para botão 30V ADV led vermelho
• Aplicação ADV
NÚCLEO COM CAPACETE
J1OT146 Para botão modelinho
140
L1OT012
PAINEL DE CHAMADA
H1OT149
PAINEL FONTE OSCILADORA
Para indicador de andar com neon
PAINEL PARA INDICADOR DE ANDAR
L1OT003
PAINEL P3P
L1OT005
PAINEL PDI
P
Para botão de cabina
• Sem tiristor
24 Volts NA / NF 4 fios
L1OT068
Painel P3P
Painel PDI – indicador de andar
OTIS
L1OT006
PAINEL PF
Painel PF
L1OT007
PAINEL PFS
141
P
Painel PFS
L1OT004
PAINEL PGC
Painel PGC
PAINEL PST / FR
L1OT008 Painel PST / FR
• Substitui o modelo PST / FR com 2 relés, para isso deixe
o soquete 304 ou ST1 sem relé.
OTIS
PAINEL PRF
L1OT011 Painel PRF
PAINEL PRD
L1OT075 Barra do seletor com 3 leds
PAINEL PRD
L100006 Barra do seletor com 2 leds
142
L1OT009
PAINEL RELÉ J
L1OT010
PAINEL TAS
Fêmea
PERFIL DE BORRACHA PARA PORTA
H1OT137
PERFIL DE BORRACHA PARA PORTA
J1OT154
PINO PARA ENGATE DE TRINCO
P
Painel relé J
Painel TAS
H1OT136
Macho
Pino para engate de trinco
OTIS
J1OT099
POLIA DE DESVIO
Ø ext. 530mm com 4 canais 1/2¨
143
POTIS
POLIA DE TRAÇÃO COM ENCAIXE
E
A
F D C B
A1 A2
B1
B2
C1 C2
A - Largura da polia
B - Ø diâmetro externo
C - Ø encaixe
D - Furo interno
E - Entre furos / entre centros
F - Entre furos / entre centros
G - Largura cubo
H - Ø diâmetro externo
A1 - Largura do canal da chaveta
B1 - Profundidade do canal da chaveta
C1 - Ø diâmetro externo do eixo
A2 - Largura do canal da chaveta
B2 - Altura interna do canal da chaveta
C2 - Ø diâmetro interno do furo da polia
A
B
G
HB2
A2
C2
Detalhes das ranhuras
Detalhes das ranhuras
POLIA DE TRAÇÃO
Rasgo da chaveta (eixo/polia)
144
J1OT133
J1OT110
J1OT123
J1OT109
J1OT170
J1OT163
J1OT157
J1OT147
POLIA DE TRAÇÃO
Para contato de porta
PONTE ADS
I10T160
PROTETOR DE POLIA (350 x 380 x 180mm)
H100731
H103832
RELÉ
P/R
Ø ext. 510mm Ø enc. 310mm com 4 canais 1/2¨
Ø ext. 610mm Ø enc. 412mm com 3 canais 1/2¨
Ø ext. 610mm Ø enc. 412mm com 3 canais 3/8¨
Ø ext. 610mm Ø enc. 412mm com 4 canais 1/2¨
Ø ext. 610mm Ø enc. 412mm com 4 canais 3/8¨
Ø ext. 710mm Ø enc. eixo cônico com 3 canais 3/8¨VTR
Ø ext. 770mm Ø enc. 412mm com 4 canais 1/2¨
Ø ext. 770mm Ø enc. 440mm com 5 canais 1/2¨
• Desenhos para especificação na página anterior
H1OT163
Do limitador de velocidade
ZK 040048 / SBMS 4RC4/3A / 2800 Ohms
SMB 1277 x 5800 Ohms
• Venda sob consulta
OTIS
H1OT008
ROLDANA DE BORRACHA
Para limitador de velocidade
380mm
350mm
180mm
J1OT116
ROLDANA DE BORRACHA
145
RS
Para trinco de porta automática
H1OT162
ROLDANA DE FERRO
Com rolamento para suspensão de porta – Ø ext. 82mm
SUPORTE ALTO
J1OT160 Para corrediça de porta
OTIS
SENSOR INDUTIVO
H1OT150 ICL 8 – 3 fios
Marron + / Azul – / Preto sinal
SEM FIM PARA MÁQUINA
J10T138 Para máquina 11BT
• Coroa e Sem Fim não são vendidos separadamente, é
necessário enviar a máquina de tração para avaliação e
orçamento
ROLDANA COM ROLAMENTO
J1OT016 Para suspensão de porta de cabina - Ø ext. 50mm
38mm
15mm
38mm
24
26
25mm
15mm
12mm
146
J1OT161
SUPORTE BAIXO
De cabina modelinho (sem borracha)
SUPORTE PARA CORREDIÇA
J1OT169
SUPORTE PARA CORREDIÇA
J1OT151
TELA PERFURADA
ST
Para corrediça de porta
J1OT148
Do contra-peso modelinho
Tela perfurada para visor
• Somente em aço carbono com pintura eletrostática
OTIS
H101698
H101699
TRINCO SELETRON MODELINHO
Direito (foto)
Esquerdo
• A ponte ADS H1OT163 é vendida separadamente
Direita (foto)
Esquerda
SUPORTE C/ EIXO P/ PORTA DE PAVIMENTO
I1OT145
I1OT149
15mm
15mm
15mm
765mm
112mm
H1OT167
UNIDADE REMOTA DE MONITORAÇÃO
147
UV
URM-Unidade Remota de Monitoração
• Atende somente a placa LCB I e nas versões
antigas da LCBII
N1OT026
VISOR PARA PORTA DE PAVIMENTO
Com botão e indicador de setas
• Somente em aço carbono com pintura eletrostática
OTIS
VISOR VERMELHO P / IPD
H1O2342
H10T088
60 x 50 x 2mm
60 x 30 x 2mm
668mm
145mm
148
L1RE001
ALAVANCA PARA FECHADOR
Máquina 4
Máquina 4 – 75mm
Máquina 5
BOBINA PARA FREIO
N1RE011
BOBINA RA1
N1RE004
BOBINA TL2
AB
Com lado reversível direito (foto)
N1RE010
N1RE018
N1RE014
Para chave PAPF antiga
Bobina TL 2
REAL
N1RE015
BOBINA TL3
Bobina TL 3
PAPF modelo 76
Para chave de comutação CM3R
BOBINA
N1RE003
J1RE009
N1RE012
BOBINA TL5
149
BC
Bobina TL 5
N1RE005
BOBINA TL 7
Bobina TL 7 – 68mm
REAL
BOBINA TL 8
N1RE007 Bobina TL 8 – 68mm
J1RE013
J1RE014
CALHA
Para máquina 3
Para máquina 4
H1RE071
CARVÃO
18 x 18 x 32mm para chave antiga
CARVÃO SIMPLES
H1RE072 20 x 20 x 20mm
150
H1RE073
CARVÃO DUPLO
8 HP 50/75 VCC base simples
8 HP 50/75 VCC base dupla (foto)
15 HP 50/75 VCC base simples
15 HP 50/75 VCC base dupla
CHAVE DE COMUTAÇÃO
J1RE019
CONJUNTO P1
L1RE084
CONTATO DE TRINCO
C
20 x 25 x 25mm
N1RE008
N1RE013
N1RE009
N1RE016
Para lâmina da chave de comutação
Contato de trinco antigo
REAL
J1RE020
CONTATO TIPO L
Curto para chave de comutação
25 x 25 x 35mm
CARVÃO
H1RE074
J1RE021
CONTATO TIPO L
151
C
Duplo, para chave de comutação
J1RE022
CONTATO TIPO L
Longo, para chave de comutação
REAL
COROA
L1RE024
L1RE025
L1RE022
Para máquina 3
Para máquina 4 M 4,5 – 69Z – 2
Para máquina 5
• Coroa e Sem Fim não são vendidos separadamente, é
necessário enviar a máquina de tração para avaliação e
orçamento
H1RE084
CORREDIÇA DE COURO
Para guia 11mm – alta
H1RE085
CORREDIÇA DE COURO
Para guia 11mm – baixa
CORREDIÇA DE NYLON
H1RE206 30 x 37 x 152 mm, para guia 16mm
152
H1RE207
CORREDIÇA DE NYLON
215 mm para motor do operador de porta
EIXO FREZADO
J2RE022
EIXO DA POLIA
L1RE021
ENGRENAGEM DE BRONZE
C/E
30 x 37 x 210mm, para guia 16mm
J1RE053
De desvio Ø 50 x 330 mm
Ø externo 91mm x
para motor de operador de porta
Ø interno 28mm x largura 20mm
REAL
H1RE212
ENGRENAGEM DE NYLON
Ø externo 91mm x Ø interno 28mm x largura 20mm
para motor de operador de porta
Ø externo de 270mm
Ø externo de 180mm
CUPULA DE FREIO
J1RE119
J1RE105
H1RE088
ESCOVA PARA SELETOR
153
E/L
Escova para seletor
J1RE023
FITA SELETORA
Estampada 0,4 x 25mm
REAL
FRONTAL DE BAQUELITE
J1RE027 Para chave de comutação
H100202
GARFO DE BORRACHA
Para porta automática
L1RE011
LÂMINA ACIONADORA DO MICRO
Com braçadeira
LÂMINA PARA CHAVE DE COMUTAÇÃO
J100033
J100034
Para chave de comutação dupla
Para chave de comutação simples
154
J1RE030
LÂMINA FIXA
Duplo NA / NF
LIMITE FINAL DE CURSO
H1RE096
LIMITE FINAL DE CURSO
H1RE098
LIMITE JACARÉ
L
Para chave PAPF
H1RE095
Simples NA
Esquerdo NA ou NF
REAL
H1RE097
LIMITE JACARÉ
Direiro NA ou NF
Para chave PAPF
LÂMINA MÓVEL
J1RE029
L1RE095
L1RE094
L1RE093
L1RE097
L1RE096
LIMITADOR DE VELOCIDADE
155
LM
Velocidade 0,50 m/s – 30 m/min
Velocidade 0,75 m/s – 45 m/min
Velocidade 1,00 m/s – 60 m/min
Velocidade 1,25 m/s – 75 m/min
Velocidade 1,50 m/s – 90 m/min
• Veja também: Protetor de Polia para Limitador (I1RE146)
H101168
MICRO SWIT
755 / 250 para trinco
REAL
MOLA PARA FECHADOR
H1RE100
H1RE101
Direita
Esquerda (foto)
H1RE198
MOLA P/ LIMITADOR DE VELOCIDADE
Mola para limitador de velocidade
H1RE104
MOLA PARA SUPORTE DE CORREDIÇA
Para suporte de corrediça da cabina
MOLA PICK-UP
H1RE106 Mola pick-up
Polia 290mm, canal 1/4¨ ou 3/8¨, com contato elétrico
156
L1RE004
PAINEL BTS
Conjunto de tempo eletrônico
PAINEL CONJUNTO DE TEMPO
C100170
PARAFUSO
J1RE034
PENTE
P
De chamada A SD com 2 soquetes sem reléC
L1RE010
1/2¨x 2¨ cabeça sextavada rosca fina para
regulagem de freio
Pente CN1
REAL
J1RE035
PENTE
Pente CN2
De chamada A SD com 1 soquete sem reléC
PAINEL BTS
L1RE003
J1RE036
PENTE
157
P
Para bts duplo comando
H1RE208
PINO DE LATÃO
Para freio magnético
REAL
PINO DE LATÃO
H1RE202 Para seletor
L1RE012
PLACA DE COMANDO
ACSD modulex
• Não se aplica a elevadores com ascensorista
• O rele é vendido separadamente
J1RE100
J1RE115
J1RE113
J1RE112
J1RE106
J1RE124
J1RE125
J1RE098
J1RE126
POLIA DE TRAÇÃO
Ø ext. 510mm Ø enc. 440mm 3 canais 1/2¨
Ø ext. 510mm Ø enc. 440mm 4 canais 1/2¨
Ø ext. 530mm Ø enc. 440mm 3 canais 1/2¨
Ø ext. 550mm Ø enc. 337mm 3 canais 1/2¨
Ø ext. 550mm Ø enc. 337 mm 4 canais 1/2¨
Ø ext. 600mm Ø enc. 337mm 3 canais 1/2¨
Ø ext. 600mm Ø enc. 395mm 4 canais 1/2¨
Ø ext. 610mm Ø enc. 440mm 3 canais 1/2¨
Ø ext. 650mm Ø enc. 395mm 5 canais 1/2¨
• Desenhos para especificação na próxima página
158
J1RE110
J1RE116
POLIA DE DESVIO
P
Ø ext. 400mm com 3 canais 1/2¨
Ø ext. 425mm com 4 canais 1/2¨
REAL
I1RE146
PROTETOR PARA POLIA (360 x 320 x 150mm)
Do limitador de velocidade
360mm
320mm 150mm
POLIA DE TRAÇÃO COM ENCAIXE
E
A
F D C B
A - Largura da polia
B - Ø diâmetro externo
C - Ø encaixe
D - Furo interno
E - Entre furos / entre centros
F - Entre furos / entre centros
Detalhes das ranhuras
J1RE056
RAMPA EM INOX
159
RS
Para pick-up de parada
H1RE158
H1RE144
L1RE032
RELÉ
4A / 4F S8Y REALTRON
SBM 1467 / ZK 900 100
SR recondicionado
• Venda sob consulta
REAL
RESISTÊNCIA TUBULAR PARA MOTOR
J1RE039
J1RE040
J1RE061
J1RE063
J1RE041
J1RE058
J1RE059
J1RE060
6/8HP / 2 velocidade 380 Volts alta
8/10HP / 1 e 2 velocidade / 220 Volts / alta
5/6HP / 1 velocidade / 220 Volts / alta
13/20HP / 2 velocidade / 220 Volts / alta
10HP / 2 velocidade / 220 Volts / baixa
6/8HP / 2 velocidade / 380 Volts / baixa
6/8HP / 2 velocidade / 220 Volts / baixa
13/20HP / 2 velocidade / 220 Volts / baixa
/ /
L1RE089
L1RE081
L1RE023
SEM FIM PARA MÁQUINA
Máquina 3
Máquina 4
Máquina 5
• Coroa e Sem Fim não são vendidos separadamente
é necessário enviar a máquina de tração para
avaliação e orçamento
I1RE143
SUPORTE DE BORRACHA
Para corrediça de cabina
160
J1RE043
SUPORTE PARA CARVÃO
Para fixação do micro SWIT
SUPORTE DE CHAPA
J1RE080
SUPORTE PARA CORREDIÇA
J1RE131
SUPORTE PARA CORREDIÇA
S
Para carvão duplo
J1RE064
De couro guia alta
De couro guia baixa
REAL
J1RE045
SUPRESSOR DE FAÍSCA
Supressor de faísca para chave
Para carvão simples
SUPORTE PARA CARVÃO
J1RE044
I1RE026
I1RE025
STOP DE BORRACHA PARA OPERADOR
161
S/V
Direito (foto)
Esquerdo
H100478
SOQUETE CI
Para relé ZK 900100 / SBMS 1467
REAL
TRANÇA PARA CHAVE
L1RE013
J1RE048
Para chave de comutação
Para chave PAPF
H101485
VIDRO TEMPERADO
120 x 160 x 4mm - para visor
162
J1SC068
ALAVANCA PARA CACHIMBO DE FREIO
Para ditador
ALAVANCA
L1SC028
L1SC029
ALAVANCA PARA TRINCO EVR
H1SC184
ALAVANCA PARA TRINCO EVR
AB
Para Cachimbo de freio – 200mm
L1SC030
Direito (foto)
Esquerdo
Alavanca para trinco EVR
SCHINDLER
J1SC079
BASE PARA DITADOR
Base para ditador
Para cachimbo de freio – 250mm
ALAVANCA PARA CACHIMBO DE FREIO
J1SC299
H1SC159
H1SC180
BOBINA PARA FREIO MAGNÉTICO
163
A
Sapata 200mm
Sapata 250mm
• Aplica somente em freio ALFA
H1SC010
BORRACHA DE ACOPLAMENTO
Grande 40 x 45 x 20mm
SCHINDLER
BORRACHA DE ACOPLAMENTO
H1SC011 Pequena 30 x 30 x 14mm
H1SC012
BORRACHA PARA BATENTE DE PORTA
Borracha para batente de porta
H1SC095
BOTÃO QUADRADO – 14mm
Branco, com pino
BOTÃO QUADRADO – 18mm
H1SC013
H1SC014
H1SC015
H1SC016
Branco, com pino
Preto , com pino
Verde, com pino
Vermelho, com pino
164
H1SC092
BOTÃO QUADRADO – 14mm
Preto, com pino
Verde, com pino
Vermelho, com pino
BOTÃO REDONDO – 18mm
H1SC164
BUCHA PARA BRAÇO DO OPERADOR
H1SC146
BUJÃO BAIONETA
AB
Branco, sem pino
H1SC020
H1SC021
H1SC022
Nylon
Cromado
SCHINDLER
H1SC209
BUJÃO BAIONETA
Com rosca
Preto, com pino
Verde, com pino
Vermelho, com pino
BOTÃO REDONDO – 12mm
H1SC017
H1SC018
H1SC019
I1SC033
CAIXA DE DESVIO
165
C
Para mola TS
J1SC115
CAIXA PARA PORTA DITADOR
Caixa para porta dirador
SCHINDLER
CALHA PARA OPERADOR DE PORTA
J1SC039 Operador de porta de cabina Qk2
Obs.: Cada peça possui 1500mm de comprimento
J1SC002
J1SC302
J1SC303
CALHA PARA OPERADOR DE PORTA
Porta de cabina QK8 – 140mm
Porta de cabina QK8 – 160mm
Porta de cabina QK8 – 220mm
Obs.: Cada peça possui 1500mm de comprimento
H1SC025
CAPACETE PARA BOTÃO
Para botão quadrado
CARVÃO
H1SC031 10 x 20 x 20mm para demarrador
140mm
160mm
220mm
166
H1SC098
CHAVE CENTRIFUGAL
Para ponte de disco luminoso
CONTATO DE COBRE
J1SC007
CONTATO FIXO
H1SC123
CONTATO FIXO
C
Chave centrifugal JZ
• Não acompanha eixo nem platinado interno
J1SC021
Para chave UA
Para demarrador
SCHINDLER
N1SC001
CONTATO KS
Para trinco de ferro
• Trinco antigo – caixa de ferro
Chave para destravar trinco – baioneta
CHAVE PARA DESTRAVAR TRINCO
H1SC132
H1SC185
CONTATO KS
167
C
Para trinco EVR
• Trinco moderno – caixa de chapa
H1SC035
CONTATO KV
Preto, para trinco de ferro
• 4 contatos
SCHINDLER
CONTATO KV
H1SC034 Transparente
• 4 contatos
J1SC010
CONTATO MÓVEL
Para chave UA
J1SC097
COROA PARA MÁQUINA
Coroa para máquina W54K
• Coroa e Sem Fim não são vendidos separadamente, é
necessário enviar a máquina de tração para avaliação e
orçamento
CORREDIÇA DE NYLON
H1SC101
H1SC042
28 x 37 x 260mm para guia de 9mm
30 x 37 x 260mm para guia de 16mm
168
H1SC041
H1SC114
H1SC040
CORREDIÇA DE NYLON
14mm
11mm
CORREDIÇA DE NYLON PARA PORTA
H1AT327
CORREDIÇA DE NYLON PARA PORTA
J1SC282
J1SC283
CORREDIÇA PARA PORTA
C
30 x 38 x 120 para guia de 9mm
30 x 35 x 120 para guia de 11mm
30 x 35 x 120 para guia de 16mm
H1SC178
H1SC179
Modelo MICONIC
11mm
14mm
SCHINDLER
H1SC046
CORREIA FINA
Correia fina para operador
• 4 PJ 1025
32 x 26 x 260mm para guia de 11 mm – baixa
CORREDIÇA DE NYLON
H1SC099
H1SC045
CORREIA LARGA
169
CD
Correia larga para operador
• 10 PJ 1025
J1SC094
CORRENTE PARA MOLA
Corrente para mola TS
SCHINDLER
COTOVELO DE NYLON PARA RAMPA
H1SC048 Direito sem pino
J1SC071
CÚPULA DE FREIO
Para sapata de 200mm
H1SC151
DISCO LUMINOSO
Disco luminoso completo
DISPOSITIVO PARA SACAR
H1SC155 Dispositivo para sacar JZ
170
H1SC052
DITADOR
Dobradiça SCH
DOBRADIÇA
L1SC005
FERRAGEM
H1SC136
H1SC135
FREIO MAGNÉTICO BINDER 80VCC
D/F
Ditador
H1SC199
Para contato KS
Para sapata 200mm
Para sapata 250mm
• A sapata existente deve ser reaproveitada
• * A sapata não acompanha o produto
SCHINDLER
H1SC054
FRONTAL DE BAQUELITE
Para chave UA
Dobradiça paulista
DOBRADIÇA
H100635
J1SC075
GABARITO
171
G/L
Para regular carvão do demarrador
H1SC056
GUIA DE NYLON
Alta, para botão quadrado
SCHINDLER
GUIA DE NYLON
H1SC055 Baixa, para botão quadrado
H1SC160
LÂMINA PARA CHAVE
Para chave RJ 12 grande
J1SC038
LÂMINA PARA CHAVE
Para chave RJ 12 pequena
LÂMPADA TORPEDO
H100235
H100577
12 Volts x 5 Watts
24 Volts x 5 Watts
172
L1SC310
L1SC308
L1SC309
L1SC311
L1SC307
LIMITADOR DE VELOCIDADE
Com pé, com pino passante curto
Sem pé, com pino passante curto
• Não acompanha base de ferro nem alavanca com
roldana
LIMITE EOG PARA FIM DE CURSO
L1SC022
L1SC021
LIMITE EOG PARA FIM DE CURSO
L1SC016
LIMITE EOG
L
Velocidade nominal 0,50 m/s – 30 m/min
Velocidade nominal 0,75 m/s – 45 m/min
Velocidade nominal 1,00 m/s – 60 m/min
Velocidade nominal 1,25 m/s – 75 m/min
Velocidade nominal 1,50 m/s – 90 m/min
• Veja também: Protetor para Polia do Limitador, vendido
separadamente (I100225)
L1SC023
L1SC024
Com pé, com pino passante longo
Sem pé, com pino passante longo
Com pé, com pino e com roldana
SCHINDLER
L1SC006
LIMITE EOG
Com pé, com pino e sem roldana
Sem pé, com pino e com roldana
LIMITE EOG
L1SC007
polia 290mm, canal ou 3/8¨ com contato elétrico1/4¨
L1SC009
LIMITE EOG
173
LM
Sem pé, com pino e sem roldana
L1SC304
LIMITE EOG
Sem pé, com trava
Obs: Destravamento manual, ideal para limitador de
velocidade
SCHINDLER
MICRO SWIT
H101159 Para botão MX
H1SC158
H1SC172
MOLA PARA PORTA
Direita (foto)
Esquerda
MOLA PARA PORTA ESCOVA
H1SC062 Mola para porta escova
174
H1SC060
MOLA PARA FREIO
Mola para limitador de velocidade
MOLA P/ LIMITADOR DE VELOCIDADE
H1SC068
MOLA PICK-UP
H1SC064
MOLA PARA RAMPA
M
Mola para freio BS
H1SC122
Mola pick-up
Pequena
SCHINDLER
H1SC063
MOLA PARA RAMPA
Grande
Mola para garfo de porta
MOLA PARA GARFO
H1SC103
H1SC065
MOLA PARA SAPATA DE FREIO
175
M/P
Mola para sapata de freio
H1SC066
MOLA PARA TIRANTE DA PORTA
Mola tirante da porta de cabina QK8
SCHINDLER
MOLA TS
H1SC061 Mola TS
L1SC296
MOTA TS
Com corrente, tirante e parafuso
H1SC059
MOLA PARA FEIXE
Mola para feixe BS
• Conjunto composto por 6 lâminas
PAINEL RCB
L1SC002 Conjunto de tempo eletrônico grande, sem relé
176
H1SC070
H1SC071
H1SC072
PASTILHA PARA SETA
Para disco luminoso
PINO DE LATÃO
J1SC074
J1SC062
J1SC103
J1SC093
J1SC102
J1SC100
J1SC070
J1SC082
J1SC122
J1SC057
J1SC065
J1SC108
J1SC284
J1SC280
J1SC265
POLIA DE TRAÇÃO
P
Branca
Verde
Vermelha
H1SC137
Ø ext. 450mm Ø enc. eixo, com 4 canais 3/8¨
Ø ext. 510mm Ø enc. 370mm, com 4 canais 1/2¨ (foto1)
Ø ext. 530mm Ø enc. eixo, com 3 canais 1/2¨ (foto2)
Ø ext. 530mm Ø enc. eixo, com 4 canais 1/2¨ (foto2)
Ø ext. 530mm Ø enc. eixo, com 4 canais 3/8¨ (foto2)
Ø ext. 530mm Ø enc. eixo, com 6 canais 1/2¨ (foto2)
Ø ext. 560mm Ø enc. 370mm, com 4 canais 1/2¨ (foto1)
Ø ext. 590mm Ø enc. eixo, com 4 canais 1/2¨ (foto2)
Ø ext. 620mm Ø enc. 370mm, com 4 canais 5/8¨ (foto1)
Ø ext. 620mm Ø enc. 370mm, com 6 canais 1/2¨ (foto1)
Ø ext. 630mm Ø enc. eixo, com 4 canais 1/2¨ (foto2)
Ø ext. 670mm Ø enc. 370mm, com 4 canais 1/2¨ (foto1)
Ø ext. 710mm Ø enc. 370mm, com 4 canais 1/2¨ (foto1)
Ø ext. 820mm Ø enc. 370mm, com 6 canais 5/8¨ (foto3)
Ø ext. 910mm Ø enc. 370mm, com 6 canais 5/8¨ (foto3)
• Desenhos para especificação na próxima página
SCHINDLER
Perfil de borracha para porta
PERFIL DE BORRACHA
H1SC100
1
2
3
177
PSCHINDLER
POLIA DE TRAÇÃO COM ENCAIXE
E
A
F D C B
A1 A2
B1
B2
C1 C2
A - Largura da polia
B - Ø diâmetro externo
C - Ø encaixe
D - Furo interno
E - Entre furos / entre centros
F - Entre furos / entre centros
G - Largura cubo
H - Ø diâmetro externo
A1 - Largura do canal da chaveta
B1 - Profundidade do canal da chaveta
C1 - Ø diâmetro externo do eixo
A2 - Largura do canal da chaveta
B2 - Altura interna do canal da chaveta
C2 - Ø diâmetro interno do furo da polia
A
B
G
HB2
A2
C2
Detalhes das ranhuras
Detalhes das ranhuras
POLIA DE TRAÇÃO
Rasgo da chaveta (eixo/polia)
178
J1SC109
POLIA DE DESVIO
Para disco luminoso
PONTE DE CONTATO
H1SC075
PONTE PARA CONTATO
P
Ø ext. 400mm com 5 canais 1/2¨
H1SC085
Para contato KS
SCHINDLER
KTC para porta de cabina
PONTE DE CONTATO
L1SC020
Para demarrador
PORTA ESCOVA
I100225
PROTETOR PARA POLIA (430 x 320 x 180mm)
H1SC076
Do limitador de velocidade
430mm
180mm320mm
H1SC157
REED SWIT
179
R
GRJ para sensor de parada
• 3 fios (Geral / NA / NF)
H100323
RELÉ
SBMS 2RC4/3A p/ conjunto de tempo
• Venda sob consulta
SCHINDLER
REQUADRO CROMADO
H1SC079 300 x 70mm para visor xadrez
J1SC022
ROLDANA DE NYLON COM ROLAMENTO
Ø externo 40mm para suspensão de porta de cabina
J1SC023
ROLDANA DE NYLON C/ ROLAMENTO
Ø externo 54mm para suspensão de porta de cabina
ROLDANA DE NYLON C/ ROLAMENTO
J1SC024 Ø externo 74mm para suspensão de porta de cabina
180
J1SC056
ROLDANA DE BORRACHA C/ ROLAMENTO
Para máquina W54K
• Coroa e Sem Fim não são vendidos separadamente, é
necessário enviar a máquina de tração para avaliação e
orçamento
SEM FIM PARA MÁQUINA
J1SC264
J1SC263
J1SC262
J1SC267
SETA DISPLAY VERMELHA
RS
Para limitador de velocidade
J1SC098
6 Volts
12 Volts
24 Volts
110 Volts
SCHINDLER
Para garfo QKS6
ROLDANA PARA GARFO
H102266
Para limite EOG
SUPORTE DE CHAPA
J1SC091
J1SC105
SUPORTE PARA CORREDIÇA
J1SC066
Suporte para corrediça GD
Suporte para corrediça GD / mancal
L1SC015
SUSPENSÃO PARA PORTA DE CABINA
Suspensão para porta de cabina
• Roldana J1SC024 com 74mm
L1SC011
SUSPENSÃO PARA PORTA DE CABINA
181
ST
QK 8, com roldana externa
L1SC012
SUSPENSÃO PARA PORTA DE CABINA
QK 8, com roldana interna
SCHINDLER
SUSPENSÃO PARA PORTA DE CABINA
L1SC013 QK 8, com roldana interna, com pino
L1SC014
SUSPENSÃO PARA PORTA DE CABINA
QK 8, com roldana, reto
L1SC305
SUSPENSÃO PARA PORTA DE CABINA
QK 8, com roldana, reto, com pino
TIRANTE PARA CACHIMBO DO FREIO
J1SC278
J1SC277
270mm
330mm
182
J1SC037
TIRANTE PARA RAMPA
Trinco EVR – lado reversível
• A mesma peça se aplica na porta mão direita e na porta
da mão esquerda
TRINCO EVR
J1SC030
TUBO ISOLANTE
T/V
QKS 8 770mm
H1SC183
De celeron, para demarrador, com 200mm cada peça
SCHINDLER
Para porta escova do demarrador
TRANÇA DUPLA
J1SC028
43 x 29 x 2mm / 43 x 29 x 4mm
VISOR VERMELHO PARA IPD
H1SC089
VISOR XADREZ
J100203
Visor xadrez 300 x 70mm
J1SU107
J1SU127
ALAVANCA PEQUENA P/ FECHADOR
183
AB
Direita (foto)
Esquerda
J1SU076
BOBINA PARA CHAVE
De comutação
SUR
BOBINA PARA FREIO DE MÁQUINA
N1SU004 Bobina para freio de máquina
N1SU005
N1SU001
BOBINA PARA FREIO DE OPERADOR
110 Volts
60 Volts
J1SU121
J1SU119
BORRACHA DE ACOPLAMENTO
Com eixo 25 x 65 mm
Com eixo 40 x 85 mm
BORRACHA DE ACOPLAMENTO
H1SU103 Ø ext. 40 x Ø int. 21 x 45 mm altura
184
L1SU165
L1SU164
BOTÃO
17 x 19 x 28 mm
CARVÃO
H1SU122
CHAVE
BC
Quadrado 31mm
Redondo 28mm
H1SU009
Para destravar trinco (canoa)
SUR
Redondo 28mm e quadrado 31mm
CAPACETE PARA BOTÃO
H1SU003
Para fechador de piso
CHAVETA
H1SU070
CHAVETA
H1SU102
Para porta de pavimento
H1SU091
H1SU092
CORREDIÇA DE NYLON
185
C/F
27 x 31 x 100 para guia 9mm
33 x 32 x 100 para guia 16mm
H1SU094
H1SU095
H1SU096
CORREDIÇA DE NYLON
21 x 06 x 120 central
24 x 06 x 120 lateral
28 x 06 x 120 central
• O conjunto é formado por 3 peças:
2 laterais + 1 central
SUR
CORREDIÇA DE NYLON
H1SU089
H1SU090
34 x 49 x 208 para guia 16mm
28 x 37 x 158 para guia 11mm
H1SU126
ENGATE EXTERNO
Para trinco
H1SU120
H1SU121
FECHADOR AÉREO PARA PORTA
Direito (foto)
Esquerdo
FECHADOR DE PISO PARA PORTA
H1SU118
H1SU119
Direito (foto)
Esquerdo
186
J1SU001
LÂMINA PARA CHAVE DE COMUTAÇÃO
Do trinco capelinha seta
PLATINADO DO ENGATE
J1SU068
J1SU077
J1SU122
J1SU081
J1SU109
J1SU096
POLIA DE TRAÇÃO
L/P
Para chave de comutação 10 HP
H1SU108
Ø ext. 500 x Ø enc. 390mm, 3 canais
Ø ext. 500 x Ø enc. 390mm, 4 canais 1/2¨
Ø ext. 550 x Ø enc. 390mm, 4 canais 1/2¨
Ø ext. 600 x Ø enc. 390mm, 4 canais 1/2¨
Ø ext. 800 x Ø enc. 370mm, 5 canais 1/2¨
Ø ext. 540 x Ø enc. 450mm, 4 canais 1/2¨, interno
com orelhas
• Desenhos para especificação na próxima página
1/2¨
SUR
Núcleo com capacete para botão
NÚCLEO COM CAPACETE
J1SU106
J1SU068
J1SU077
J1SU081
J1SU122
J1SU096
187
PRSUR
H1SU030
H1SU026
H101987
RELÉ RA
400060 / TM 4RC5
400615
610024
• Venda sob consulta
ROLDANA DE BORRACHA
H1SU106 Com bucha, ext. 54 x 20 x 44 mm
POLIA DE TRAÇÃO COM ENCAIXE
E
A
F D C B
Detalhes das ranhuras
A - Largura da polia
B - Ø diâmetro externo
C - Ø encaixe
D - Furo interno
E - Entre furos / entre centros
F - Entre furos / entre centros
188
J1SU118
ROLDANA DE BORRACHA
Ø externo 75mm, para suspensão de porta
• Não acompanha eixo
ROLDANA COM ROLAMENTO
H1SU062
SAPATILHA DE NYLON
RS
Ø externo 41 x Ø interno 19 x comprimento 39 mm,
para trinco de porta automática
• Com bucha
I1SU022
Para corrediça de porta
SUR
Ø externo 70mm para suspensão de porta
• Não acompanha eixo
ROLDANA COM ROLAMENTO
H1SU097
Seta display
SETA DISPLAY
H1SU051
Suporte para sapatilha
SUPORTE PARA SAPATILHA
H1SU110
30
41
19
26,5
39
J100102
J100612
TAMPA EM INOX P/ FECHADOR DE PISO
189
T
Esquerdo (foto)
Direito
J1SU070
TIRANTE PARA PORTA
Com cabo de aço
• Fabricado sob encomenda, necessário fornecer desenho
ou peça de amostra
SUR
TRINCO EV DIREITO
H104414 Trinco EV direito
H104413
TRINCO EV ESQUERDO
Trinco EV esquerdo
APOIO
190
COTAÇÃO DE BOTOEIRA DE CABINA
191
APOIO
COTAÇÃO DE BOTOEIRA DE PAVIMENTO
APOIO
192
COTAÇÃO DE ESPELHO PARA IPD
193
APOIO
COTAÇÃO DE ESPELHO PARA IPDCOTAÇÃO DE ELEVADOR COMPLETO - PASSAGEIROS
Quantidade:
Instalação:
Instalado Só equipamento sem instalação
Tipo de elevador:
Passageiro Comercial Passageiro Residencial Maca
Acionamento:
Elétrico Hidráulico
Velocidade:
Elétrico:
30m/min - 0,50m/s 45m/min - 0,75m/s 60m/min - 1m/s 75m/min - 1,25m/s
90m/min - 1,5m/s 105m/min - 1,75m/s 120m/min - 2m/s 150m/min - 2,5m/s
Hidráulico:
30m/min - 0,50m/s
Casa de máquinas:
Elétrico sem casa de máquina Elétrico com casa de máquina superior
Hidráulico com casa de máquina inferior Hidráulico com casa de máquina superior
Dimensões em metros da caixa de poço: frente m x m profundidade
Percurso (Distância em metros do piso da 1ª parada inferior ao piso da última parada superior):
Última altura: (Distância em metros entre piso da última parada a base inferior da laje da casa de máquina)
Profundidade em metros do poço de molas:
Altura em metros da casa da máquina:
Capacidade de carga:
300Kg/4pass 450Kg/6pass 600Kg/8pass 750Kg/10pass 975Kg/13pass/Maca
1575Kg/21pass/Maca Leito Outra /
Porta de pavimento automática – acabamento:
Aço inox Pintura eletrostática Vidro com moldura em inox
Quantidade de paradas:
Quantidade de portas:
Obs.: Para entrada oposta, a quantidade de portas pode ser diferente da quantidade de paradas.
Cabina - Acabamento:
Aço inox Pintura eletrostática 1 lateral panorâmica 2 laterais panorâmicas
Entrada na cabina:
Unilateral Tml - Todas mesmo lado Opostas Adjacentes
Cabina será padrão Alfa, com corrimão, rodapé, subteto, botoeira tipo totem com dobras laterais com botões luminosos
e piso rebaixado para granito.
Equipamentos conforme NBR NM 207, NBR NM 267 e NBR NM 313 para passageiros e conforme NBR 14712 para
maca.
• Para elevador comercial o ideal é ter acionamento elétrico, pois o elevador hidráulico tem limite de 40 partidas/hora.
* Dimensões e características básicas, consulte página 21, 22, 23, 24, 25 e 26.
__________ __ ___ ____________
____________________________________________________________________________
_____ ___
Solicitante/Empresa:
Contato:
Telefone: e-mail:
Endereço da Obra: Cidade / Estado:
APOIO
194
COTAÇÃO DE ELEVADOR COMPLETO - CARGUEIRO
Quantidade:
Instalação:
Instalado Só equipamento sem instalação
Elevador Cargueiro:
Acionamento:
Elétrico Hidráulico
Velocidade:
30m/min - 0,5m/s Outra /
Casa de máquinas:
Elétrico com casa de máquina superior
Hidráulico com casa de máquina inferior Hidráulico com casa de máquina superior
Dimensões em metros da caixa de poço: frente: m x m profundidade
Percurso (Distância em metros do piso da 1ª parada inferior ao piso da última parada superior):
Última altura: (Distância em metros entre piso da última parada a base inferior da laje da casa de máquina)
Profundidade em metros do poço de molas:
Altura em metros da casa da máquina:
Capacidade de carga:
1000Kg/Cargueiro Outra /
Porta de pavimento – Manual, tipo pantográfica, em pintura
Quantidade de paradas:
Quantidade de portas:
Obs.: Para entrada oposta, a quantidade de portas pode ser diferente da quantidade de paradas.
Cabina - Acabamento:
Aço inox Pintura eletrostática
Entrada na cabina:
Unilateral Tml - Todas mesmo lado Opostas Adjacentes
Cabina será padrão Alfa, sem corrimão, sem rodapé e sem subteto, botoeira tipo tradicional e piso de chapa de aço
xadrez.
• Exclusivo para transporte de carga.
Com porta de cabine e pavimento manual, tipo pantográfica.
Obs.:
__________ ___ ___________ _
____________________________________________________________________________
_______ ___
Solicitante/Empresa:
Contato:
Telefone: e-mail:
Endereço da Obra: Cidade / Estado:
195
APOIO
COTAÇÃO DE ELEVADOR COMPLETO - MONTA-CARGA
Quantidade
Instalação:
Instalado Só equipamento sem instalação
Elevador Monta-carga:
Acionamento - Elétrico
Velocidade - 12m/min - 0,2m/s
Casa de máquinas:
Casa de máquina superior Casa de máquina inferior
Dimensões em metros da caixa de poço: frente: m x m profundidade
Percurso (Distância em metros do piso da 1ª parada inferior ao piso da última parada superior):
Última altura: (Distância em metros entre piso da última parada a base inferior da laje da casa de máquina)
Capacidade de carga:
50Kg 100Kg 200Kg 300Kg - máxima por norma
Porta de pavimento - Manual, tipo guilhotina – acabamento:
Aço inox Pintura eletrostática
Quantidade de paradas:
Quantidade de portas: A 900 mm dos pisos Niveladas com os pisos
Obs.: Para entrada oposta, a quantidade de portas pode ser diferente da quantidade de paradas.
Cabina - Acabamento:
Aço inox Pintura eletrostática
Entrada na cabina:
Unilateral Tml - Todas mesmo lado Opostas Adjacentes
• Com porta de cabina e pavimento manual, tipo guilhotina
Dimensão interna livre da cabina, máximas conforme norma: 1000mm x 1000mm x 1200mm altura
Obs.:
:
__________ __ ___ ______________
______________
_______ ___
Solicitante/Empresa:
Contato:
Telefone: e-mail:
Endereço da Obra: Cidade / Estado:
APOIO
196
COTAÇÃO DE PLATAFORMA HIDRÁULICA PARA DEFICIENTE FÍSICO
Selecione as opções desejadas, somente 1 modelo por cotação.
Quantidade:
Instalação:
Instalado Só equipamento sem instalação
Dimensões em metros da caixa de poço: frente m x m profundidade
Uso principal:
Edifício Público Edifício Residencial
Modelo PH50 até 500mm percurso
Modelo PH100 até 1000mm percurso
Modelo PH150 até 1500mm percurso
Modelo PH200 até 2000mm percurso
Modelo PH250 até 2500mm percurso
Modelo PH300 até 3000mm percurso
Modelo PH350 até 3500mm percurso
Modelo PH400 até 4000mm percurso
Portas Opostas Portas Adjacentes Unilaterais, todas do mesmo lado
*Características básicas:
• Hidráulica
• Acabamento aço carbono com pintura eletrostática
• Velocidade 6m/min - 0,1m/s
• 2 paradas
• Poço mínimo 150mm
Nos modelos PH250, PH300, PH350 e PH400, a cabina é aberta mas a caixa de corrida deverá ser enclausurada e
executada pelo comprador.
Obs.:
* Dimensões e características básicas, consulte página 76.
___________________________
___________________ ____________________
Solicitante/Empresa:
Contato:
Telefone: e-mail:
Endereço da Obra: Cidade / Estado:
197
APOIO
COTAÇÃO OPERADOR E PORTA DE PAVIMENTO ABERTURA “CENTRAL”
Imprescindível Informar:
Vão livre útil da entrada da cabina, largura mm x mm altura
Altura externa da cabina: distância da soleira ao topo externo da cabina mm
• Veja desenho com dimensões nas páginas 56 e 81.
APOIO
198
COTAÇÃO OPERADOR E PORTA DE PAVIMENTO ABERTURA “LATERAL”
Imprescindível Informar:
Vão livre útil da entrada da cabina, largura mm x mm altura
Altura externa da cabina: distância da soleira ao topo externo da cabina mm
• Veja desenho com dimensões nas páginas 56 e 81.
199
APOIO
COTAÇÃO DE PORTA PANTOGRÁFICA
MATÉRIA PRIMA: AÇO CARBONO COM PINTURA EM FUNDO BASE
INFORMAR QUANTIDADE DE BARRAS:
BARRAS COM PUXADOR
BARRAS SEM PUXADOR
INFORMAR:
ALTURA TOTAL DA BARRA MAIS ALTA mm
VÃO LIVRE NA LARGURA mm
VÃO LIVRE NA ALTURA mm
DISTÂNCIA DE BATENTE A BATENTE mm
ACESSÓRIOS OPCIONAIS:
PUXADOR SIM NÃO
SOLEIRA EM ALUMÍNIO SIM NÃO
BARRA RÉGUA SIM NÃO
TRINCO SIM NÃO
LIMITE FIM DE CURSO SIM NÃO
APOIO
200
COTAÇÃO DE QUADRO DE COMANDO - FOLHA 01
201
APOIO
COTAÇÃO DE QUADRO DE COMANDO - FOLHA 02
APOIO
202
DESENHO PARA CONFECÇÃO DE FIAÇÃO DE POÇO
Contato do tensor: extensão com 6 metros
Contato do limitador: extensão com 6 metros
Casos especiais devem ser informados, por
exemplo: Porta oposta, IPD na verga superior,
barreira infravermelha
Cliente:
Referência / Obra:
Fornecer comprimento do cabo de comando:
Superior
até o quadro de
comando
DISTÂNCIAS
INFERIOR
POÇO
PISO ATÉ
BOTOEIRA
BOTOEIRA ATÉ
TRINCO
DISTÂNCIAS
PISOS NOMENCLATURA
203
APOIO
ESQUEMA DE CONEXÃO - INTERCOMUNICADOR
APOIO
204
GABARITO PARA COTAÇÃO DO PROTETOR DE POLIA
DO LIMITADOR DE VELOCIDADE
ALTURADABASE
COMPR. DA BASE
LARGURADABASE
ASSINALAR A CONDIÇÃO DO LIMITADOR
1° INFORMAR AS MEDIDAS MÁXIMAS EXTERNAS DO LIMITADOR
2° QUANDO O LIMITADOR ESTIVER MONTADO SOBRE BASE DE
CONCRETO, INFORMAR AS MEDIDAS
205
APOIO
GABARITO PARA COTAÇÃO DO PROTETOR DE POLIA DE TRAÇÃO
BASE DA MAQ.
LAJE
E
GF
Assinalar a condição da máquina: NOMENCLATURA
A = ø POLIA DA MÁQUINA
B = DISTÂNCIA DE CABO A CABO
C = ALTURA DA BASE A FACE SUPERIOR DA POLIA
D = ALTURA DA BASE DA MÁQUINA
E = LARGURA DA POLIA
F = ESPAÇO ENTRE A POLIA E A BASE
G = ESPAÇO ENTRE A POLIA E A BASE
COTAÇÃO ABERTURA- SUBTETO CENTRAL
APOIO
206
COTAÇÃO - SUBTETO ABERTURA LATERAL
207
APOIO

Catalogo alfa 2012

  • 1.
    Este catálogo foidesenvolvido para aperfeiçoar nossa comunicação e simplificar suas compras, uma vez que facilita e auxilia na procura pelo produto desejado. Algumas instruções são importantes em sua consulta: O catálogo está subdividido por marcas em ordem alfabética, com páginas numeradas. Caso você não encontre determinado produto de algum fabricante, procure imediatamente em peçasAlfa. Se o problema persistir, entre em contato com nosso departamento de vendas. Algumas peças estão organizadas em Famílias, e caso a foto do produto não corresponda ao que procura, verifique o código e descrição completos, porque certamente você encontrará o que precisar. Esteja certo de que trabalhamos para oferecer-lhe o melhor. Nós estamos sempre atentos e prontos para solucionar quaisquer problemas em transporte vertical. Trabalhamos também com Elevadores novos e completos, você compra e instala com suporte técnico daAlfa ou você compra e aAlfa entrega instalado. Qualquer que seja sua necessidade entre em contato, possuímos uma equipe de vendas treinada a sua disposição, conte sempre com nossa força e apoio técnico. Obs.: As fotos e as características dos produtos existentes nesse catálogo são ilustrativas e podem sofrer alterações sem aviso prévio. Alfa, de 1 sensor a 1 elevador! 1
  • 2.
    2 A ACABAMENTO DIFUSOR PARATETO ACABAMENTO DIFUSOR PARA TETO ACABAMENTO DIFUSOR PARA TETO ACABAMENTO PARA TETO ACABAMENTO PARA TETO ACABAMENTO PARA TETO
  • 3.
    K100059 K100058 K100057 ACOLCHOADO PARA CABINA ALAVANCAPARA FECHADOR ALAVANCA PARA FECHADOR ALAVANCA PARA FECHADOR ARCADA L100002 H100587 L100124 L100125 I100231 3 A Algodão 1400 x 1400 x 1400 x 2200 mm Lonita 1400 x 1400 x 1400 x 2200 mm Poliéster 1400 x 1400 x 1400 x 2200 mm Para cotação informar as seguintes medidas internas da cabina: Profundidade, largura e altura EV ELEMAQ lado reversível esquerdo (foto ao lado) FECHOMATIC lado esquedo reversível (foto ao lado) EV direita (foto ao lado) EV esquerda Para elevador hidráulico
  • 4.
    4 H100011 ARRUELA H000761 J1RE065 BARRA RÉGUA PARASUSPENSÃO Barramento de rotor (gaiola) BARRAMENTO DE ROTOR M1NM001 M1NM002 BARREIRA INFRA VERMELHA I100071 BASE DE BORRACHA I100251 BASE PARA MÁQUINA DE TRACÃO AB Nylon ø e 22 mm x ø I 10 mm x 2 mm p/ pick up de parada 10 x 40 mm - cantos arredondados Alfa (foto ao lado) 12 x 48 mm - canto superior redondo e inferior reto J100100 94 feixes modelo 620 - 9 x 24 x 2000mm 154 feixes modelo 632 - 9 x 24 x 2000mm Alcance: largura até 4m x altura 1,8m 100 X 100 mm para máquina de tração Base p/ máquina de tração
  • 5.
    BATENTE PARA PORTADE PAVIMENTO BOBINA P/ CHAVE DE COMUTAÇÃO BOBINA P/ CHAVE DE COMUTAÇÃO BOTÃO ALX 400 BOTÃO ALX 500 Verde pino curto Verde - pino longo Verde - pino médio Vermelho - pino curto Vermelho - pino longo Vermelho - pino médio - 5 B N100054 N100043 N100044 N100045 N100046 N100047 Verde - pino curto Verde - pino longo Verde - pino médio Vermelho - pino curto Vermelho - pino longo Vermelho - pino médio N100048 N100049 N100050 N100051 N100052 N100053 5HP 110V ELEV. 15HP 110V ELEV N100013 N100016 15HP 110V ELEV. 25HP 50/75 núcleo 26mm ELEV. 36V ELEV. N100029 N100012 N100010 Aço carbono, porta central 2m Aço carbono, porta central 2,10m Aço carbono, porta lateral 2m Aço carbono, porta lateral 2,10 Aço inox, porta central 2m Aço inox, porta central 2,10m Aço inox, porta lateral 2m Aço inox, porta lateral 2,10m J100232 J100234 J100228 J100230 J100231 J100233 J100227 J100229 Obs.: Pino curto - painel de chamada padrão Alfa Pino médio - painel Adv com micro Pino longo - painel Seletron modelinho com palheta Obs.: Pino curto - painel de chamada padrão Alfa Pino médio - painel Adv com micro Pino longo - painel Seletron modelinho com palheta
  • 6.
    6 Com Led 110V-10K ComLed 12V-470R Com Led 24V-1K5 Com Led 75V-4K7 Com Led c/ diodo Obs.: Somente para botoeiras Alfa BOTÃO ALX 600 BOTÃO MX ALFA BOTÃO MX BOTÃO ALX 700 CÔNCAVO INOX - AZUL BOTÃO ALX 700 CÔNCAVO INOX - VERDE B L1SC299 L1SC302 L1SC303 L1SC298 L1SC300 Botão MX - simples • esse botão é fabricado p/ botoeiras ALFA o núcleo não substitui o modelo SCHINDLER - sem ledL1SC297 Sem iluminação c/ 1 contato NA Sem iluminação c/ 1 contato NF Diodo p/ comando microprocessado Diodo + resistor 150R p/ comando Sectron Diodo + resistor 470R p/ comando Simpac / Eletem / Addtech 470R12V GC+ 470R 12V chamada separada da iluminação 1K5 24V GC+ N100132 N100133 N100184 N100135 N100136 N100137 N100138 N100139 Inox polido - verde pino curto Inox polido - verde - pino longo Inox polido - verde - pino médio Inox polido - vermelho - pino curto Inox polido - vermelho - pino longo Inox polido - vermelho - pino médio -N100122 N100124 N100123 N100119 N100121 N100120 1K5 24V GC- 1K5 24V chamada separada da iluminação Scanchip 4K7 50/75V GC+ 4K7 50/75V GC- 10K 90V GC+ 10K 90V GC- 12K 130V GC+ 12K 130V chamada separada da Iluminação N100140 N100141 N100142 N100143 N100144 N100145 N100146 N100147 Sem iluminação c/ 1 contato NA Sem iluminação c/ 1 contato NF Diodo p/ comando microprocessado Diodo + resistor 150R p/ comando Sectron Diodo + resistor 470R p/ comando Simpac / Eletem / Addtech 470R 12V GC+ 470R 12V chamada separada da Iluminação 1K5 24V GC+ N100148 N100149 N100150 N100151 N100152 N100153 N100154 N100155 1K5 24V GC- 1K5 24V chamada separada da Iluminação Scanchip 4K7 50/75V GC+ 4K7 50/75 GC- 10K 90V GC+ 10K 90V GC- 12K 130V GC+ 12K 130V chamada separada da iluminação N100160 N100161 N100162 N100163 N100164 N100165 N100166 N100167 Obs.: Pino curto - painel de chamada padrão Alfa Pino médio - painel Adv com micro Pino longo - painel Seletron modelinho com palheta
  • 7.
    BOTÃO ALX 700CÔNCAVO INOX - VERMELHO BOTOEIRAS DE CABINA 7 B Sem iluminação c/ 1 contato NA Sem iluminação c/ 1 contato NF Diodo p/ comando microprocessado Diodo + resistor 150R p/ comando Sectron Diodo + resistor 470R p/ comando Simpac / Eletem / Addtech 470R 12V GC+ 470R 12V chamada separada da iluminação Scanchip 1K5 24V GC+ 1K5 24V GC- 1K5 24V chamada separada da iluminação 4K7 50/75V GC+ 4K7 50/75V GC- 10K 90V GC+ 10K 90V GC- 12K 130V GC+ 12K 130V chamada separada da iluminação N100168 N100169 N100170 N100171 N100172 N100173 N100174 N100175 N100176 N100177 N100178 N100179 N100180 N100181 N100182 N100183 Obs.: a pastilha braile H104839 é vendida separadamente 1 - Tradicional, aço inox, botão ALX 400 vermelho, S, T, 1 a 8, AL, EM, janela para IPD, relógio, interc. 2 - Tradicional, aço inox, botão ALX 500 verde com braile, T, 1 a 14, AL, EM, 2 chaves, janela p/ IPD, relógio, intermomunicador, luz de emergência. 3 - Tradicional, latão, botão ALX 400 vermelho, S, T, 1 a 8, AL, EM, janela para IPD, relógio, intercomunicador 4 - Tradicional, latão, botão ALX 500 verde, T, 1 a 8, AL, EM, janela para IPD, relógio, intercomunicador 5 - Tipo totem com dobras laterais, aço inox, botão ALX 400 vermelho, T, 1 a 10, AL, EM, 2 chaves, janela IPD, relógio, intercomunicador, luz de emergência. 6 - Tipo totem, aço inox, botão ALX 600, com braile, T, 1 a 10, AL, AP, 2 chaves, janela IPD, relógio, intercomunicador, luz de emergência. Obs: Tipo totem - Altura: Distância do piso acabado até o subteto. Conforme NBR 13994 altura mínima do primeiro botão 890 + ou – 25mm, altura máxima 1350 + ou – 25mm Desenho de especificações nas páginas de apoio. 1 2 3 4 5 6
  • 8.
    8 BOTOEIRAS DE PAVIMENTO K100004 K100065 K100007 K100063 K100009 K100068 K100006 K100039 K100040 K100041 K100042 K100060 K100043 K100044 K100045 K100046 K100005 K100064 K100008 L100012 K100067 K100047 K100048 K100049 K100050 K100023 K100022 B Botoeirade pavimento, Botoeira de pavimento, 1 botão, 1 chave elétrica, sem caixa, com iluminação Botoeira de pavimento, 1 botão, 1 janela para display, 1 chave elétrica, com caixa, com Iluminação Botoeira de pavimento, 1 botão, 1 janela para display,1 chave elétrica, sem caixa, com Iluminação Botoeira de pavimento, 1 botão, 2 janelas para display, 2 chaves elétricas, com caixa, com Iluminação Botoeira de pavimento, 1 botão, 2 janelas para display, 2 chaves elétricas, sem caixa, com Iluminação Botoeira de pavimento, 1 botão, 2 janelas para display, com caixa, com iluminação Botoeira de pavimento, 1 botão, 2 setas, com caixa, com iluminação Botoeira de pavimento, 1 botão, 2 setas, com caixa, sem iluminação Botoeira de pavimento, 1 botão, 2 setas, sem caixa, com iluminação Botoeira de pavimento, 1 botão, 2 setas. sem caixa sem iluminação Botoeira de pavimento, 1 botão, 2 janelas para display, sem caixa, com iluminação Botoeira de pavimento, 1 botão, sem setas, com caixa, com iluminação Botoeira de pavimento, 1 botão, sem setas, com caixa, sem iluminação Botoeira de pavimento, 1 botão, sem setas, sem caixa, com iluminação Botoeira de pavimento, 1 botão, sem setas, sem caixa, sem iluminação Botoeira de pavimento, 2 botões, 1 chave elétrica, com caixa, com iluminação Botoeira de pavimento, 2 botões, 1 chave elétrica, sem caixa, com iluminação Botoeira de pavimento, 2 botões, 1 janela para display, 1 chave elétrica, com caixa, com Iluminação Botoeira de pavimento, 2 botões, 2 janelas para display, 2 chaves elétricas, com caixa, com iluminação Botoeira de pavimento, 2 botões, 2 janelas para display, 2 chaves elétricas, sem caixa, com Iluminação Botoeira de pavimento, 2 botões, 2 janelas para display, com caixa com iluminação Botoeira de pavimento, 2 botões, 2 janelas para display, com caixa, sem iluminação Botoeira de pavimento, 2 botões, 2 janelas para display, sem caixa, com iluminação Botoeira de pavimento, 2 botões, 2 janelas para display, sem caixa, sem iluminação Botoeira de pavimento, 2 botões, 4 setas, com caixa, com iluminação Botoeira de pavimento, 2 botões, 4 setas, com caixa, sem iluminação 1 botão, 1 chave elétrica, com caixa, com iluminação 1 - 2 - 3 - 4 - K100035 K100036 K100037 K100038 K100061 K100035 Botoeira de pavimento, 1 botão, janela para display, com caixa, com iluminação. Botoeira de pavimento, 1 botão, janela para display, sem caixa com iluminação. Botoeira de pavimento, 1 botão, janela para display, sem caixa com iluminação. Botoeira de pavimento, 1 botão, janela para display, com caixa com iluminação. Botoeira de pavimento, 2 botões, 1 janela para display, com caixa, com iluminação. Botoeira de pavimento, com dobras laterais, 1 botão, janela para display, sem caixa, com iluminação. 1 2 3 4
  • 9.
    BOTOEIRAS DE PAVIMENTO BOTOEIRAS- MODELO TOTEM 9 B Botoeira de pavimento, Botoeira de pavimento, 2 botões, 4 setas, sem caixa, sem iluminação Botoeira de pavimento, 2 botões, 1 janela para display, com caixa, com iluminação Botoeira de pavimento, 2 botões sem setas, com caixa, com iluminação Botoeira de pavimento, 2 botões sem setas, com caixa, sem iluminação Botoeira de pavimento, 2 botões sem setas, sem caixa, com iluminação Botoeira de pavimento, 2 botões sem setas, sem caixa, sem ilumunação Botoeira de pavimento, 4 botões, 2 janelas para display, 2 chaves elétricas, com caixa com iluminação Botoeira de pavimento, 4 botões, 2 janelas para display, 2 chaves elétricas, sem caixa com Iluminação Botoeira de pavimento, 4 botões, 2 janelas para display, com caixa, com iluminação Botoeira de pavimento, 4 botões, 2 janelas para display, sem caixa, com iluminação Botoeira de pavimento, Horizontal, 2 botões, 2 janelas para display, 2 chaves elétricas, com caixa com iluminação Botoeira de pavimento, Horizontal, 2 botões, 2 janelas para display, 2 chaves elétricas, sem caixa com iluminação Botoeira de pavimento, Horizontal, 2 botões, 2 janelas para display, com caixa com iluminação Botoeira de pavimento, Horizontal, 2 botões, 2 janelas para display, sem caixa, com iluminação 2 botões, 4 setas, sem caixa, com iluminaçãoK100021 K100020 K100062 K100051 K100052 K100053 K100054 K100014 K100069 K100013 K100070 K100011 K100072 K100010 K100071 • Para cotação de botoeiras (cabina ou pavimento) é necessário informar a composição: todos os botões, (chamada e comando) chaves e acessórios (IPD, intercomunicador, luz de emergência, caixa, braile, gravações etc). • Preencher formulário de especificação de botoeira anexado no final do catálogo, arquivos de apoio. BOTÃO - CHAMADA SEPARADA DA ILUMINAÇÃO
  • 10.
    10 BOTÃO - COMANDOSSIMPAC / ELETEM / ADDTECH BOTÃO - COMANDOS ATLAS/OTIS/SUR BOTÃO - COMANDOS JR – 80 BOTÃO - COMANDOS ELETRÔNICOS BOTÃO - COMANDOS REAL/SCHINDLER B ATLAS OMEGA / EXCEL / ALFA DUAL / INFOLEV IFL 750
  • 11.
    BLOCO ADITIVO CABINAS 11 BC Cabina eminox, 3 passageiros, sub-teto, corrimão, rodapé e piso rebaixado Cabina em inox, 4 passageiros, sub-teto, corrimão, rodapé e piso rebaixado Cabina em inox, 5 passageiros, sub-teto, corrimão, rodapé e piso rebaixado Cabina em inox, 6 passageiros, sub-teto, corrimão, rodapé e piso rebaixado Cabina em inox, 7 passageiros, sub-teto, corrimão, rodapé e piso rebaixado Cabina em inox, 8 passageiros, sub-teto, corrimão, rodapé e piso rebaixado Cabina em inox, 9 passageiros, sub-teto, corrimão, rodapé e piso rebaixado Cabina em inox, 10 passageiros, sub-teto, corrimão, rodapé e piso rebaixado Cabina em inox, 12 passageiros, sub-teto, corrimão, rodapé e piso rebaixado Cabina em inox, 15 passageiros, sub-teto, corrimão, rodapé e piso rebaixado Cabina em inox, 16 passageiros, sub-teto, corrimão, rodapé e piso rebaixado L100191 L100192 L100193 L100194 L100195 L100196 L100197 L100198 L100201 L100199 L100200 BUCHA DE NYLON Bloco aditivo 2NA-2NF-LA1D22H101019 Bucha de nylon p/ pick-up de paradaH100067 Da Vinci Renoir Van Gogh Cezzani BC
  • 12.
    12 PARA MAIORES DETALHESENTRE EM CONTATO COM NOSSO DEPARTAMENTO DE VENDAS. C • Para cotação de cabina é necessário informar as medidas livres internas, largura x profundidade x altura e o acabamento (inox ou pintura eletrostática). • Botoeira e Operador de Porta de Cabine são acessórios vendidos separadamente. CABINAS Cabina Carga Cabina Monet Cabina Inox Cabina Pintura Cabina Monta CargaCabina Matisse
  • 13.
    PLANTAS 13 C ELEVAÇÃO DA CABINAPLANTA BAIXA CENTRAL PLANTA BAIXA MÃO DIREITA PLANTA BAIXA MÃO ESQUERDA * DISTÂNCIA ENTRE TRAVESSAS, INFORMAR: NA ALTURA______MM NA LARGURA_____MM
  • 14.
    14 H100070 H100069 H101373 H100072 H100068 H100074 CABO DE AÇO H102411 H100075 CABODE COMANDO Caixa para botoeira de cabina CAIXA PARA BOTOEIRA DE CABINA H101552 CAIXA PARA BOTÃO J100059 CAIXA PARA BOTOEIRA DE PAVIMENTO H104911 CAIXA PARA BOTOEIRA DE PAVIMENTO C Cabo de aço 1/8¨ (3,2mm) 6x19 – Galvanizado, com alma de fibra Cabo de aço 1/4¨ (6,4mm) 6x19 – Galvanizado, com alma de fibra Cabo de aço 5/16¨(8mm) 8x19 – Polido com alma de fibra Cabo de aço 3/8¨(9,5mm) 8x19 – Polido com alma de fibra Cabo de aço 1/2¨(13mm) 8x19 – Polido com alma de fibra Cabo de aço 5/8¨(16mm) 8x19 – Polido com alma de fibra * Somos distribuidores de cabo de aço CIMAF 8 X 1,50mm – Motor de porta 9 x 0,75mm – Fiação de passadiço J100082 Caixa para botão MX ALFA De chapa de aço carbono Caixa de plástico para botoeira de pavimento
  • 15.
    N100030 CAIXA DE INSPEÇÃO CAIXADE INSPEÇÃO E PASSAGEM PLUGADA CAIXA DE PASSAGEM CAIXA DE PASSAGEM E INSPEÇÃO CAIXA PARA POÇO S100022 S100023 S100024 S100025 I100038 P100203 H101650 15 C caixa de inspeção Plugada para comando ALSR1/VF Plugada para comando ALSR1/HD Plugada para comando ALSR1/VF com 02 operadores Plugada para comando ALSR1/HD com 02 operadores Caixa de passagem com tampa (Borne) Caixa de passagem e inspeção (Borne) Caixa para poço com botão EM, luz e tomada H103837 CAIXA DE INSPEÇÃO Caixa de inspeção completa
  • 16.
    16 J100073 CALÇO PARA SAPATILHA Capacitoreletrolítico 10mF x 440V CAPACITOR H100081 CARVÃO H100676 CARVÃO C Calço para sapatilha de porta de cabina H102994 Carvão 13 x 13 x 19 para chave de comutação 5HP ELEV Carvão 15 x 19 x 25 para chave de comutação 10HP ELEV H100082 CARVÃO Carvão 16 x 25 x 25 para chave de comutação 15HP ELEV
  • 17.
    CARVÃO CHAPA DE PVC CHASSI/ ARMAÇÃO CHAVE ELÉTRICA H100085 H100087 I100470 H100169 17 C Carvão 31 x 37 x 38 para chave de comutação 25HP Chapa de PVC Vitron Box para teto de cabina Chassi/armação com freio instantâneo para cabina Obs: Incluso timoneria para acionar freio de segurança. Chave elétrica liga/desliga H100083 CARVÃO Carvão 22 x 22 x 20 para chave de comutação 10HP ALV
  • 18.
    18 H100590 CHAVE DE LUZ I100033 CHAVEPAPF Chave para destravar trinco (triangular) CHAVE PARA DESTRAVAR H101167 H105941 CHAVE PARA PARAFUSO J100613 CHICOTE PLUGADO H104503 H104561 H105208 CLIPS PARA GUIA C Chave de luz para botoeira de cabina Chave Papf tipo contatora 72 VCC H103778 Chave para parafuso anti-vandalismo - Grande Chave para parafuso anti-vandalismo - Pequena M4 e 5/32 Chicote plugado Clips grande 60 x 58mm Clips médio 50 x 52mm Clips pequeno 50 x 42mm
  • 19.
    H101520 H101662 H102066 H101663 H102763 H102000 CLIPS PARA CABODE AÇO CONTATO DE PORTA AZ 05 CONTATO DE PORTA AZ 07 CONTATO DE PORTA AZ 06 CORDA DE NYLON TRANÇADA H1KO088 H1KO023 H103834 H103955 19 C 1/2¨ 1/4¨ 1/8¨ 3/8¨ 5/16¨ 5/8¨ Contato de porta simultânea AZ 05 • Também usado na porta de pavimento Alfa Contato de porta EV AZ 07 • Também usado no operador ALFA Contato de Porta AZ 06 • Usar ponte de contato AZ 07 H1K0050 - Vendido separado. 4mm para seletor Pantalha H104292 COLETOR DE ÓLEO Coletor de óleo • Aplicação: Guia Trefilada 9, 11 e 16mm Guia de chapa dobrada 16mm
  • 20.
    20 J1LI016 J1LI017 COROA E SEMFIM J1LI007 CORREDIÇA Corrediça de nylon para soleira • Para porta Fermator/Sur sempre usar suporte concêntrico com rosca 3/8¨ Cod. H104482 • Também usado no operador e na porta de pavimento automática Alfa, usar suporte excentrico com rosca 1/4¨ Cod. H104495 CORREDIÇA I100015 CORREDIÇA H101623 CORREDIÇA H102574 CORREIA C Coroa e sem fim para máquina R-15 Ø 275 Z 42 grande Coroa e Sem Fim para máquina R Z 20 pequena • Coroa e Sem Fim não são vendidos separadamente, é necessário enviar a máquina de tração para avaliação e orçamento. Corrediça de nylon para contra-peso lift H104441 Corrediça de nylon p/ porta pantográfica Corrediça de nylon para porta Selcon Correia para operador 6 canais
  • 21.
    H101340 H101930 CORREIA SINCRONIZADA CORRIMÃO DISCO DEACRÍLICO CRISTAL DISPOSITIVO PARA TRAVAR CABO ELEVADOR ELÉTRICO PARA PASSAGEIROS J100088 H103380 H103657 I100021 21 C/E 306 X L037 taco gerador 8m X 10 X 1600mm Corrimão em aço inox 150 x 2 x 1000mm • Com ou sem acabamento para espelho Redondo 103 x 24mm para sub-teto Quadrado 103 x 24mm para sub-teto Dispositivo para travar cabo de aço (em ferro) • Elevador elétrico para passageiros, com casa de máquina superior; • Conforme NBR NM 207 Formulário com as dimensões na pag. 23 • Para orçamento, preencha o formulário de especificação no final do catálogo ou em nosso site. H100727 CORRENTE Corrente asa 1/2¨ x 1/8¨ RS 37/1 • Vendido por metro
  • 22.
    22 ELEVADOR ELÉTRICO PARAPASSAGEIROS ELEVADOR ELÉTRICO CARGUEIRO Elevador elétrico,montacarga, com casa de máquina superior • Elevadores especiais fabricados conforme a necessidade do cliente, dimensão max. da cabine 1m x 1m x 1,20m, com porta de cabine e pavimento manual tipo guilhotina • Para orçamento preencha o formulário de especificações no final do catálogo ou em nosso site. ELEVADOR ELÉTRICO MONTACARGA ELEVADOR HIDRÁULICO PARA PASSAGEIROS ELEVADOR HIDRÁULICO UNIFAMILIAR E Elevador elétrico para passageiros, sem casa de máquina • Para orçamento preencha formulário de especificação no final do catálogo ou em nosso site. Formulário com as dimensões na pag.24 Elevador elétrico, cargueiro, com casa de máquina superior • Elevadores especiais fabricados conforme a necessidade do cliente • Para orçamento preencha o formulário de especificações no final do catálogo ou em nosso site. Elevador Hidráulico para passageiros com casa de máquina inferior e superior • Fabricados conforme NBR NM 267. Formulário com as dimensões nas páginas 25 e 26 • Para orçamento preencha o formulário de especificação no final do catálogo ou em nosso site. Elevador Hidráulico unifamiliar para passageiros, com casa de máquina inferior • Percurso máximo 12 metros; • Velocidade máxima 15m/min - 25m/s; • Poço mínimo 500m; • Última altura mínima 2,80m; • Capacidade de carga mínima 75 e máxima 225 Kg. • Para atender acessibilidade, fazer cabine com no máx. 1,20m2 (0,91x1,30) e manter a capacidade de carga de 225 kg. • Para orçamento preencha o formulário de especificação no final do catálogo ou em nosso site.
  • 23.
    23 E ELEVADOR ELÉTRICO C/CASA DE MÁQUINA SUPERIOR ELEVADOR NORMALIZADO - ELEVADOR PASSAGEIRO NBR NM 207 - ELEVADOR MACA NBR 14712 - TRAÇÃO POR MOTO-REDUTOR TIPO CARGA Kg VELOCIDADE m/s CABINA A x B EAT CABINA C x D EAC CABINA E x F FUNDO DE POÇO K ÚLTIMA ALTURA L PORTAS M 4075 4100 6075 6100 6150 8075 8100 8150 10075 10100 10150 13075 13100 13150 300 450 600 750 975 975 4 6 8 10 13 13 0,75 1,0 0,75 1,0 1,5 0,75 1,0 1,5 0,75 1,0 1,5 0,75 1,0 1,5 0,75 1,0 1,5 1000X900 1100X1180 1100X1400 1300X1400 1600X1400 1200X2200 1400X1450 1550X1750 1550X1950 1700X2050 2000X2050 2000X2600 1500X1400 1750X1700 1750X1900 1750X1950 1900X1950 2300X2550 1400 1400 1400 1400 1400 1400 4000 4000 4200 4000 4200 4000 4200 4000 4200 4200 700 800 800 800 900 1100 ELEVADORESDEPASSAGEIROS ESPECIFICAÇÃO: elevador elétrico porta automática porta telescópica 06 passageiros velocidade 1,0 E A T 6 100 ALFA - A001 Obs.: Fornecemos elevadores conforme normas vigentes, possuem equipamentos exigidos por norma, tais como: Intercomunicador, luz de emergência, barreira infravermelha, protetor de polia, guarda corpo, pastilha braile entre outros. todos ELEVADOR DEMACA PLANTAS DO PASSADIÇO CASA DE MÁQUINAS CORTE DO PASSADIÇO
  • 24.
    24 ELEVADOR ELÉTRICO SEMCASA DE MÁQUINA E ELEVADOR NORMALIZADO - ELEVADOR PASSAGEIRO NBR NM 207 - ELEVADOR MACA NBR 14712 - TRAÇÃO POR MOTO-REDUTOR TIPO CARGA Kg VELOCIDADE m/s CABINA A x B EAT CABINA C x D EAC CABINA E x F FUNDO DE POÇO K ÚLTIMA ALTURA L PORTAS M 4075 4100 6075 6110 6150 8075 8100 8150 10075 10100 10150 13075 13100 13150 300 450 600 750 975 975 4 6 8 10 13 13 0,75 1,0 0,75 1,0 1,5 0,75 1,0 1,5 0,75 1,0 1,5 0,75 1,0 1,5 0,75 1,0 1,5 1000X900 1100X1180 1100X1400 1300X1400 1600X1400 1200X2200 1650X1300 1650X1650 1650X1850 1950X1850 2270X1850 2000X2600 1800X1250 1800X1600 1800X1800 2000X1800 2300X1800 2350X2550 1400 1400 1400 1400 1400 1400 4000 4000 4000 4000 4000 4000 4000 4000 4000 4000 4000 800 800 800 800 900 1100 ELEVADOR DEMACA ELEVADORESDEPASSAGEIROS ESPECIFICAÇÃO: elevador elétrico porta automática porta telescópica 06 passageiros velocidade 1,0 sem casa maquina E A T 6 100 SCM ALFA - A002 CORTE DO PASSADIÇO ** NA PARTE SUPERIOR DA CAIXA DE CORRIDA DEVERÁ CONSTAR DETECTOR DE FUMAÇA E VENTILAÇÃO CRUZADA COM TOMADA DE AR NA ÁREA EXTERNA DA EDIFICAÇÃO PARA VENTILAÇÃO DA MÁQUINA E SAÍDA DE GASES (PELO CLIENTE)
  • 25.
    25 E ELEVADOR HIDRÁULICO C/CASA DE MAQ. SUPERIOR E INFERIOR - PISTÃO LATERAL ELEVADOR NORMALIZADO - ELEVADOR PASSAGEIRO NBR NM 207 - ELEVADOR MACA NBR NM 267 / NBR 14712 300 450 600 750 975 975 4 6 8 10 13 13 0,5 1000X900 1000X1180 1100X1400 1300X1400 1600X1400 1200X2200 1550X1300 1650X1600 1650X1800 1850X1800 2150X1800 1950X2600 1650X1250 1850X1550 1850X1750 1900X1800 2150X1800 2300X2550 1400 1400 1400 1400 1400 1400 3800 3800 3800 3800 3800 3800 700 800 800 800 900 0,5 0,5 0,5 0,5 0,5 ESPECIFICAÇÃO: elevador hidráulico porta automática porta telescópica 06 passageiros velocidade 0,5 pistão lateral H A T 6 050 PL ALFA - A003 ELEVADORESDEPASSAGEIROSELEVADOR DEMACA TIPO CARGA Kg VELOCIDADE m/s CABINA A x B HAT CABINA C x D HAC CABINA E x F FUNDO DE POÇO K ÚLTIMA ALTURA L PORTAS M 1100
  • 26.
    26 ELEVADOR HIDRÁULICO C/CASA DE MAQ. SUPERIOR E INFERIOR - PISTÃO NO FUNDO E ELEVADOR NORMALIZADO - ELEVADOR PASSAGEIRO NBR NM 267 TIPO CARGA Kg VELOCIDADE m/s CABINA A x B HAT CABINA C x D HAC CABINA E x F FUNDO DE POÇO K ÚLTIMA ALTURA L PORTAS M 300 450 600 750 975 4 6 8 10 13 0,5 1000X900 1100X1180 1100X1400 1300X1400 1600X1400 1400X1600 1550X1900 1550X2100 1600X2100 1900X2100 500X1550 1750X1850 1750X2050 1750X2100 1900X2100 1400 1400 1400 1400 1400 3800 700 800 800 800 900 ELEVADORESDEPASSAGEIROS 0,5 0,5 0,5 0,5 3800 3800 3800 3800 ESPECIFICAÇÃO: elevador hidráulico porta automática porta telescópica 06 passageiros velocidade 0,5 pistão frontal ALFA - A004
  • 27.
    27 E ELEVOICE - ANUNCIADORDE ANDAR ENGATE EXTERNO ENGRAXADEIRA ENCODER SEM ACOPLAMENTO J100022 H100151 H100152 H100153 H100154 H100155 Engate externo em chapa para trinco 01 X 1/8¨ 02 X 1/4¨ 03 X 1/4¨ 04 X 1/4¨ 05 X 1/4¨ M1HJ001 Anunciador de andar Piso menos três; Piso menos dois; Piso menos um; Terceiro subsolo; Segundo subsolo; Primeiro subsolo; Subsolo; Garagem três; Garagem dois; Garagem um; Garagem; Estacionamento três; Estacionamento dois; Estacionamento um; Estacionamento; Terreo; Primeiro andar; Segundo andar; Terceiro andar; Quarto andar; Quinto andar; Sexto andar; Sétimo andar; Oitavo andar; Nono andar; Décimo andar; Décimo primeiro andar; Décimo segundo andar; Décimo terceiro andar; Décimo Quarto andar; Décimo quinto andar; Décimo sexto andar; Décimo sétimo andar; Décimo oitavo andar; Décimo nono andar; Vigésimo andar; Vigésimo primeiro andar; Vigésimo segundo andar; Vigésimo terceiro andar; Vigésimo quarto andar; Vigésimo quinto andar; Vigésimo sexto andar; Vigésimo sétimo andar; Vigésimo oitavo andar; Vigésimo nono andar; Trigésimo andar; Trigésimo primeiro andar; Trigésimo segundo andar; Piso principal; Portaria; Acesso; Lobby; Playground; Cobertura; Restaurante; Saída; Salão de Festas; Sobreloja; Sobe; Desce; Subindo; Descendo; Excesso de carga por favor deixe o elevador; Por favor desobstruir a porta; *Elevador defeituoso use o interfone; *Operação de emergência deixe o elevador; *Aperte o número do andar de destino. H104161 H104956 Para 1024 PPR Para 5000 PPR • Venda sob consulta *Disponível somente em comando Alfa. Obs.: Não é possível adicionar novas mensagens. Para aplicação em elevadores multimarcas, funciona com a fonte e a interface do IPD Serial, adicionar 1 sensor indutivo mais 1 imã por parada. Mensagens disponíveis:
  • 28.
    28 EQUALIZADOR DE CABOS ESCADAMARINHEIRO ESPELHO INOX PARA INTERCOMUNICADOR E J100106 Equalizador de cabos J100101 Escada marinheiro • Medida padrão 2,3 m p/ poço de 1,5m J100134 L100136 Para intercomunicador Para interfone com caixa ESPELHO PARA BOTOEIRA DE CABINA L1SU060 L1SU061 L1SU062 L1SU063 L1SU064 L1SU065 L1SU066 L1SU067 L1SU068 L1SU069 L1SU070 L1SU071 L1SU072 L1SU073 Inox com 03 furos p/ botões Inox com 04 furos p/ botões Inox com 05 furos p/ botões Inox com 06 furos p/ botões Inox com 07 furos p/ botões Inox com 08 furos p/ botões Inox com 09 furos p/ botões Inox com 10 furos p/ botões Inox com 11 furos p/ botões Inox com 12 furos p/ botões Inox com 13 furos p/ botões Inox com 14 furos p/ botões Inox com 15 furos p/ botões Inox com 16 furos p/ botões L1SU074 L1SU075 L1SU076 L1SU077 L1SU078 L1SU079 L1SU080 L1SU081 L1SU082 L1SU083 L1SU084 L1SU085 L1SU086 L1SU087 Inox com 17 furos p/ botões Inox com 18 furos p/ botões Inox com 19 furos p/ botões Inox com 20 furos p/ botões Inox com 21 furos p/ botões Inox com 22 furos p/ botões Inox com 23 furos p/ botões Inox com 24 furos p/ botões Inox com 25 furos p/ botões Inox com 26 furos p/ botões Inox com 27 furos p/ botões Inox com 28 furos p/ botões Inox com 29 furos p/ botões Inox com 30 furos p/ botões
  • 29.
    L1SU163 L1SU166 L1SU167 L1SU168 ESPELHO INOX P/IPD ESPELHO INOX PARA PUXADOR ESPELHO PARA SERVIÇO DE BOMBEIRO J100113 29 E Para IPD com janela e visor (reto) Espelho para IPD em acrilico azul, tipo meia lua Espelho para IPD em acrílico vermelho, tipo meia lua Espelho para IPD em inox c/ dobras laterais Espelho inox para puxador L100129 L1SU059 L1SU058 L1SU057 ESPELHO INOX PARA BOTOEIRA Para botoeira de pavimento 1 furo para botão, janela IPD Para pavimento 2 furos para botão, janela IPD Para botoeira de pavimento 1 furo para botão Para botoeira de pavimento 1 furo para botão J100123 Espelho para serviço de bombeiro Obs.: Formulário de especificação disponível junto aos desenhos de apoio no final deste catalogo
  • 30.
    30 EXTENSÃO BARREIRA INFRAVERMELHA FECHADORAM 1400 ESPINGARDA FECHADOR DORMA MA 200 EF M1ME009 M1ME010 M1ME011 M1ME012 TX 632 RX 632 TX 633 RX 633 H101338 H101339 Direito (foto) Esquerdo H101261 H101337 Número 3 preto Número 4 preto Obs: Os suportes de fixação H1AT233 E H1AT221 são vendidos separadamente. FECHADOR DORMA - ALAVANCA P/ FECHADOR H1AT244 Dorma com encaixe deslocado H1AT221 FECHADOR DORMA - BASE P/ FECHADOR DORMA MA 200 Obs: Vendido separado do fechador Dorma.Trabalha junto com o suporte H1AT233 H1AT233 FECHADOR DORMA - SUPORTE P/ ALAVANCA De fechador Dorma MA 200 Obs: Vendido separado do fechador Dorma.Trabalha junto com a base para fechador H1AT221
  • 31.
    FECHO DE PORTA FOLHADE PORTA PADRÃO ALFA FONTE PARA INTERCOMUNICADOR H101051 I100409 I100410 I100411 I100412 I100417 I100418 I100419 I100420 I100415 I100416 31 F Fecho de porta com imã 700 x 2020 mm em aço carbono 700 x 2020 mm em aço inox 800 x 2020 mm em aço carbono 800 x 2020 mm em aço inox 700 x 2120 mm em aço carbono 700 x 2120 mm em aço inox 800 x 2120 mm em aço carbono 800 x 2120 mm em aço inox Especial em aço carbono Especial em aço inox H103177 Entrada 110/220v, Saída 12v C/ CARREGADOR (FAC) FECHADOR FECHOMATIC H100163 H100164 Direito (foto) Esquerdo A alavanca H100587 e as guias H100207 e H100208 são vendidas separadamente
  • 32.
    32 FONTE PARA INTERCOMUNICADOR FREIODE SEGURANÇA INSTANTÂNEO FUSÍVEL CARTUCHO F H103176 H100164 E 110/220V S 12V simples(FA) E 110/220 S 6V c/carregador (FAC) H103463 H103454 H103448 H103462 P/ guia 9mm mod. ALFA1 - Carga Máx. 2940 Kg - Velocidade Máx. 45m/min = 0,75m/s. P/ guia 9mm mod. ALFA2 - Carga Máx. 4782 Kg - Velocidade Máx. 45m/min = 0,75m/s. P/ guia 16mm mod. ALFA3 - Carga Máx. 3993 Kg - Velocidade Máx. 45m/min = 0,75m/s. P/ guia 16mm mod. ALFA4 - Carga Máx. 8561 Kg - Velocidade Máx. 45m/min = 0,75m/s. • Vendido conforme foto, em pares. • Ver também Timoneria, Limitador de velocidade e Tensor. H100172 H100870 H100173 H100174 H100175 H100176 10 Ampéres 15 Ampéres 20 Ampéres 30 Ampéres 60 Ampéres 80 Ampéres • Vendido sob consulta. FUSÍVEL VIDRO FUSÍVEL DIAZED H100177 H100178 H100179 H100180 H100181 1 Ampér 3 Ampéres 4 Ampéres 5 Ampéres 10 Ampéres H100182 H100183 H100184 H100185 H100186 H100553 2 Ampéres 4 Ampéres 6 Ampéres 10 Ampéres 16 Ampéres 50 Ampéres • Venda sob consulta
  • 33.
    H100190 H100191 H100192 H100193 H100194 H100195 H100196 H100197 H100198 H100200 H100201 FUSÍVEL NH-DIN GIRABREQUIM GUARDA CORPO GUIADE CHAPA GUIA PARA ALAVANCA FECHOMATIC J100125 J100266 H100567 33 FG 00-063 Ampéres 00-080 Ampéres 00-100 Ampéres 00-125 Ampéres 01-063 Ampéres 01-080 Ampéres 01-100 Ampéres 01-125 Ampéres 01-160 Ampéres 01-200 Ampéres 01-400 Ampéres • Venda sob consulta Girabrequim para fechador ELEMAQ Guarda-corpo para cabina Obs: Fornecemos com 1500 mm largura, ajustar conforme necessidade. 70 x 60 x 16 mm - Guia de chapa dobrada 5 metros H100207 H100208 Direita (foto) Esquerda 16mm 60mm 70mm
  • 34.
    34 GUIA TREFILADA INTERCOMUNICADOR G/I H100210 H104536 Guia T89A16mm x 5m (89x62x16mm) Guia T82A 9mm x 5m (82x68x9mm) H103004 Imã flevível 25 x 5 x 1000m H102370 Imã para sensor indutivo H101872 Com 2 pontos (cabina e portaria) Atende apenas 2 pontos INTERCOMUNICADOR CENTRAL INTERCOMUNICADOR MÓDULO VIVA-VOZ H103175 Central CS 04 T • Aplicação: Portaria e casa de máquina, interliga até 4 cabinas • Trabalha com módulo viva-voz H103174 H103174 Módulo viva voz MVV-02 • Este equipamento é instalado na botoeira da cabina Alimentação 12V • Trabalha com a central H103175 C B A
  • 35.
    IPD GG MATRICIALSERIAL I100741 I100753 35 I Vermelho 2 dígitos + setas (GMSV) - 50mm Vermelho 2 dígitos + setas + gongo - 50mm IPD – INTERFACE I100701 I100727 I100728 Interface 24V serial para elevadores multimarcas com IPD serial Interface serial para comando ALFA (adaptação) Fonte para IPD serial 220VCA / 12 / 24VCA Obs.: 01 Conjunto por elevador IPD SERIAL – PULO / SENSOR + SENTIDO
  • 36.
    36 I I100629 IPD MUX MÉDIONUMÉRICO BINÁRIO Vermelho – reposição ALFA (MUXMNBV) IPD MUX GG NUMÉRICO BINÁRIO I100695 Vermelho – reposição ALFA (MUXGNBV) IPD MÉDIO MATRICIAL SERIAL I100792 I100793 I100794 I100795 I100796 I100797 IPD matricial 20mm - branco IPD matricial 20mm - azul IPD matricial 20mm - vermelho IPD matricial 30mm - branco IPD matricial 30mm - azul IPD matricial 30mm - vermelho IPD MATRICIAL SERIAL HORIZONTAL H106120 H106121 matricial serial horizontal vermelho, 2 digitos + seta, visor 30x60mm matricial serial horizontal azul, 2 digitos + seta, visor 30x60mm IPD MATRICIAL SERIAL VERTICAL H106122 H106123 matricial serial vertical azul, 2 digitos + seta, visor 30x60mm matricial serial vertical vermelho, 2 digitos + seta, visor 30x60mm
  • 37.
    37 I IPD II GGNUMÉRICO SERIAL I100697 I100724 Vermelho (GNSV) Azul (GNSA) • Desenho + dimensões na pág. 38 IPD II GG ALFANUMÉRICO SERIAL I100726 I100699 Azul (GASA) Vermelho (GASV) IPD II GG NUMÉRICO BINÁRIO I100631 Vermelho – reposição (GNBV)
  • 38.
    38 I IPD II MÉDIONUMÉRICO BINÁRIO I100630 Vermelho – reposição (MNBV) IPD II MÉDIO NUMÉRICO SERIAL I100693 I100720 Vermelho com seta V1 (MNSVV1) Azul com seta V1 (MNSAV1) IPD II MÉDIO ALFANUMÉRICO SERIAL I100689 I100714 Vermelho com seta V1 (MSVV1) Azul com seta V1 (MASAVI) I100704 I100713 IPD II MÉDIO ALFANUMÉRICO (sem seta) Vermelho (MASV) Azul (MASA)
  • 39.
    KIT DE MONTAGEMDE PORTA KIT PENDURAL J100587 39 I/K Porta de pavimento automática • 5 suportes, clips, parafusos, porcas, arruelas e chumbadores J100604 Kit pendural para seletor tipo pantalha • Composição: 1 suporte mão direita 1 suporte mão esquerda 2 mão francesa 1 suporte para fonte J100171 Avulso: corda nylon H103955 (vendida por metro), Pantalha I100214, I100213, I100212 (vendidas por peças) IPSD G IPSD P I100660 Indicador grande numérico p/ multimarcas I100632 Indicador pequeno númérico p/ multimarcas IPD II NUMÉRICO SERIAL (sem seta) I100706 I100719 Vermelho (MNSV) Azul (MNSA)
  • 40.
    40 LÂMINA PARA CHAVE LÂMINAPARA CHAVE LÂMINA PARA CHAVE LÂMINA PARA CHAVE L J100029 Chave de comutação 5 HP OTIS/ELEV J100028 Chave de comutação 15 HP central ALV J100032 Chave de comutação 15 HP lateral ALV J100030 Chave de comutação 10 HP ELEV LÂMINA PARA CHAVE LÂMINA PARA CHAVE J100031 Chave de comutação 15 HP ELEV J100089 Chave de comutação 25 HP
  • 41.
    H100217 H100218 H100801 H100222 H100221 H102198 LÂMPADA BAIONETA LÂMPADA DEROSCA LÂMPADA PILOTO LÂMPADA NEON H100219 H100578 H100223 H100220 H102406 H100946 H100629 H100533 H100556 H100234 H102076 H100233 41 L 6 volts x 3 watts 12 volts x 3 watts 14 volts x 3 watts 24 volts x 3 watts 63 volts x 3 watts 130 volts 6 volts x 3 watts 12 volts x 3 watts 14 volts x 3 watts 24 volts x 3 watts 30 volts x 3 watts 60 volts x 3 watts 100 volts x 3 watts 220 volts x 6 watts 220 volts x 6 watts 220 volts x 3 watts 220 volts x 6 watts lâmpada neon H101666 LÂMPADA FLUORESCENTE Compacta 9 watts para luz de emergência H100128 LED LED
  • 42.
    42 J100093 LED COM RABICHO Polia240mm, cabo 8mm, velocidade nominal 1,50m/s, 90m/min Polia 240mm, cabo 8mm, velocidade nominal 1,75m/s, 105m/min Polia 240mm, cabo 8mm, velocidade nominal 2,00m/s, 120m/min Polia 240mm, cabo 8mm, velocidade nominal 2,50m/s, 150m/min LIMITADOR DE VELOCIDADE PROGRESSIVO M1TU011 M1TU012 LIMITE DE EMERGÊNCIA H105154 LIMITE FIM DE CURSO L LED com rabicho para botão 75V M1NI011 M1NI012 M1NI013 M1NI010 Com destravamento manual Aplicação: Tensor do freio de segurança Obs.: Com contato elétrico M1NI004 LIMITE DE SEGURANÇA Com travamento manual M1TU034 LIMITE FIM DE CURSO Limite fim de curso TD
  • 43.
    LONA PARA FREIO LUBRIFICADORDE GUIA LUZ DE EMERGÊNCIA – 6V H100238 H100239 H100240 H100537 H100658 H102137 J100245 H102457 43 L 1/4¨x 3¨ 1/4¨x 4¨ 1/4¨x 5¨ 3/16¨x 3¨ 3/16¨x 4¨ 3/16¨x 5 ¨ • Vendido por metro Lubrificador de guia • A regulagem da espessura da guia é ajustável • O suporte de fixação deverá ser fabricado conforme cada modelo de corrediça Luz de emergência sem alarme • Com alarme, adicionar sirene H102458 LUMINÁRIA PRETA H101669 Com grade para caixa de inspeção M1NI004 LIMITE PARA LIMITADOR Contato elétrico para limitador de velocidade M1TU035 LIMITE PARA LIMITADOR Limite para limitador de velocidade
  • 44.
    44 H103489 LUZ DE EMERGÊNCIA– 6V H104812 LUZ DE EMERGÊNCIA – 12V Mala de couro com divisória Mala de couro sem divisória com reforço de chapa Mala de Raspa com divisória Mala de Raspa sem divisória • Dimensão 150x250x380mm aproximadamente, possui 4 pés de borracha para proteção da costura. MALA DE COURO M1AD006 M1AD005 H103065 H103902 MÁQUINA DE TRAÇÃO H1SC133 MICRO SWIT LM NFA com luminária Lua de emergência 12V • Composta de 2 baterias e bandeija c/ 2 lampadas • Ideal para alimentadr intercomunicador 12V H101844 H101845 H106135 H106136 Capacidade de carga 450Kg, 45 m/min, 1 velocidade VVVF, até 30m de percurso Capacidade de carga 600Kg, 60 m/min, 1 velocidade VVVF , até 30 m de percurso Capacidade de carga 600Kg, 60 m/min, 1 velocidade VVVF, até 60m de percurso Capacidade de carga 600Kg, 75 m/min, 1 velocidade VVVF, até 60m de percurso Para cotação de outros modelos informar: • capacidade de carga, • velocidade nominal, • percurso em metros, • quantidade de paradas, • tração direta 1:1 ou tração dupla 2:1 • tensão de alimentação Para botão MX ALFA * Fotos Ilustrativas
  • 45.
    H100639 MICRO SWIT MOLA PARAFECHADOR GEMICLO MOLA PARA FECHADOR MECA H100249 H100254 H100250 H100255 45 M T2L Direta (foto) Esquerda Direita Esquerda (foto) H100251 H100248 MOLA PARA FECHADOR ELEMAQ Direta (foto) Esquerda H102348 H105406 H106106 MOLA PARA FECHAMENTO Fechamento da porta de pavimento SELCON - comprimento da mola 735 mm, diâmetro 20 mm, fio 1,8 mm Fechamento da porta de pavimento automática ALFA, abertura lateral - comprimento da mola 500 mm, diâmetro 13 mm, fio 1,5 mm Fechamento da porta de pavimento automática ALFA, abertura central - comprimento de mola 600 mm, diâmetro 16 mm, fio 1,3 mm
  • 46.
    46 M MOLA PARACHOQUE DEFUNDO DE POÇO H103437 H104271 406mm, para peso total do carro + carga até 1.250Kg, velocidade 45m/min - 0,75m/s 470mm, para peso total do carro + carga até 2.300Kg, Velocidade 60m/min - 1m/s • Para especificação da mola é necessário informar: 1 – Peso total do carro (cabina, armação, operador, botoeira etc) 2 – Peso total do contra-peso (armação e peso) 3 – Capacidade de carga da cabina 4 – Velocidade nominal do elevador A falta de uma das informações impossibilitará o cálculo da mola ideal. Tirante do cabo de aço 3/8¨e ¨ • Deve ser padronizado, todos os tirantes c/ molas iguais • Diâmetro externo 35mm • Comprimentos: 135mm 1/2 H101440 H100581 Tirante do cabo de aço 5/8¨ • Deve ser padronizado todos os tirantes c/ molas iguais • Diâmetro externo: 60mm • Comprimento: 145mm MOLA PARA TIRANTE MOLA PARA TIRANTE H102075 MOLA PARA RAMPA Mola para rampa mecânica
  • 47.
    L100142 L100168 L100169 L100170 L100171 L100172 NÚCLEO PARA BOTÃOALX 400 NÚCLEO PARA BOTÃO MX NÚCLEO PARA BOTÃO MX ÓLEO J1SC271 J1SC272 C200297 C200244 C200246 C200139 C200229 47 NO Verde pino curto Verde pino longo Verde pino médio Vermelho pino curto Vermelho pino longo Vermelho pino médio Núcleo para botão MX com led • Não substitui o modelo MX Schindler Núcleo para botão MX sem led • Não substitui o modelo MX Schindler Uso geral máquina grande – 1 litro Uso geral máquina grande – 20 litros 40 para guia – 20 litros MAXLUB CO20 – 20 litros MAXLUB MA 40 para bucha e fechador – 20 litros L100162 L100163 L100164 L100165 L100166 L100167 NÚCLEO PARA BOTÃO ALX 500 Verde pino curto Verde pino longo Verde pino médio Vermelho pino curto Vermelho pino longo Vermelho pino médio
  • 48.
    48 O H102577 OPERADOR - CAME Came N100185 OPERADOR- CARRETILHA Carretilha ( suporte + roldana + excentrico) Para vão de Porta 800 x 2000mm x 2 Fls Padrão Alfa • No operador, largura 380 x 217mm altura • Na porta de pavimento, largura 380 x 175mm altura OPERADOR - EXTENSOR PROLONGADOR I100189 Extensor prolongador para folha de porta • *50, 75, 100, 150, 200, 250, 300 e 350mm *50mm 380mm H103259 OPERADOR - INVERSOR PARA OPERADOR Monofásico 0.25 CV 220V • Para aplicar no operador de porta Alfa pedir parametrizado
  • 49.
    49 H101950 H101951 OPERADOR - MOTORPARA PORTA H103746 OPERADOR - MOTOR PARA PORTA ALFA trif. 220V – WEG (mod. Antigo) ALFA trif. 380V – WEG (mod. Antigo) • Sempre vender motor + engrenagem H102417 da correia, o suporte apenas quando trocar a marca do motor ALFA trif. 220 / 380V – EBERLE / VOGES (mod. Novo) • Sempre vender motor + engrenagem H102417 da correia, o suporte apenas quando trocar a marca do motor MOTOR WEG OPERADOR - RAMPA MECÂNICA H101770 Rampa mecânica direita H101772 OPERADOR - RAMPA MECÂNICA Rampa mecânica esquerda 550mm O
  • 50.
    50 O I1OM001 OPERADOR - RAMPAMECÂNICA -TIRANTE COM ROLDANA J100208 OPERADOR - RAMPA RETRÁTIL Direita para porta de pavimento automática ALFA • Especificações na página 53 OPERADOR - RAMPA RETRÁTIL Para acionamento de rampa mecânica Esquerda para porta de pavimento ALFAautomática J100268 OPERADOR - ROLDANA 53mm I100300 Para cabo de aço do operador de porta ALFA
  • 51.
    51 L100226 OPERADOR - ROLDANA54mm J100270 OPERADOR - ROLDANA 68mm Com eixo excêntrico p/ operador ALFA Com eixo p/ operador ALFA I100055 OPERADOR - SUPORTE BASE Para fixação do operador de porta • Para cabinas que não possuem estrutura para suportar ou fixar o operador • Permite ajuste lateral do operador I100399 OPERADOR - SUPORTE PARA CONTATO DE PORTA suporte para contato de porta do operador ALFA O
  • 52.
    52 O I100404 OPERADOR - SUPORTEDIR/ESQ. PARA CONTATO DE PORTA Suporte esquerdo para ponte do contato de porta do operador ALFA (Foto) Suporte direito para ponte do contato de porta do operador ALFA I100338 I100338 I100184 I100450 I100451 I100452 OPERADOR - TIRANTE DE CABO DE AÇO Vão Livre 700mm - 2 folhas lateral - 1280mm Vão Livre 800mm - 2 folhas lateral - 1280mm Vão Livre 900mm - 2 folhas lateral - 1375mm Vão Livre 1000mm - 2 folhas lateral - 1480mm Vão Livre 1100mm - 2 folhas lateral - 1580mm Vão Livre 1200mm - 2 folhas lateral - 1680mm • Tirante de cabo de aço para propulsão do operador de porta de cabine ALFA lateral I100322 I100322 I100162 I100266 I100265 I100481 Vão Livre 700mm - 2 folhas lateral - 1280mm Vão Livre 800mm - 2 folhas lateral - 1280mm Vão Livre 900mm - 2 folhas lateral - 1390mm Vão Livre 1000mm - 2 folhas lateral - 1480mm Vão Livre 1100mm - 2 folhas lateral - 1580mm Vão Livre 1200mm - 2 folhas lateral - 1680mm • Tirante de cabo de aço para propulsão da porta de pavimento lateral • Obs.: As medidas são efetivas dos cabos de aço, não contemplam os 60mm que são utilizados para prensar os tirantes • Tirante de cabo de aço para propulsão do operador de porta de cabine ALFA central • Tirante de cabo de aço para propulsão da porta de pavimento central Vão Livre 700mm - 2 folhas central - 2820mm Vão Livre 800mm - 2 folhas central - 3180mm Vão Livre 900mm - 2 folhas central - 3570mm Vão Livre 1000mm - 2 folhas central - 3870mm Vão Livre 1100mm - 2 folhas central - 4170mm Vão Livre 1200mm - 2 folhas central - 4470mm I100486 I100487 I100488 I100489 I100490 I100491 • Obs.: Central, são iguais para cabine e pavimento
  • 53.
    53 OPERADOR - ESPECÍFICAÇÕESRAMPA RETRÁTIL ALTURA EXTERNA, DO PISO ACABADO AO TOPO EXTERNO DA CABINA MÃO DIREITA COMO MOSTRA EXPANDIDA COMO MOSTRA 76mm RETRAÍDA 40mm TABELA DE REFERÊNCIA MEDIDA “X” IDEAL DA RAMPA RETRÁTIL 2260 mm - PADRÃO ALFA 2350 mm 2450 mm 2550 mm 430 mm 510 mm 600 mm 700 mm *CONSIDERANDO VÃO DA PORTA DE CABINE E PAVIMENTO 800 X 2000 mm MedidaXvertabeladereferência““ O
  • 54.
    54 P100042 P100043 P100044 P100045 P100046 P100047 OPERADOR DE PORTADE CABINE LATERAL 2 FOLHAS O 0700MM 220 / 380V c/ VF – mão Direita 0800mm 220 / 380V c/ VF – mão Direita 0900mm 220 / 380V c/ VF – mão Direita 1000mm 220 / 380V c/ VF – mão Direita 1100mm 220 / 380V c/ VF – mão Direita 1200mm 220 / 380V c/ VF – mão Direita P100010 P100011 P100012 P100013 P100014 P100015 0700mm 220 / 380V c/ VF – mão Esquerda 0800mm 220 / 380V c/ VF – mão Esquerda 0900mm 220 / 380V c/ VF – mão Esquerda 1000mm 220 / 380V c/ VF – mão Esquerda 1100mm 220 / 380V c/ VF – mão Esquerda 1200mm 220 / 380V c/ VF – mão Esquerda P100048 P100049 P100050 P100051 P100052 P100053 P100054 P100055 P100056 P100057 OPERADOR DE PORTA DE CABINE LATERAL 03 FOLHAS 0700mm 220 / 380V c/ VF – mão Direita 0800mm 220 / 380V c/ VF – mão Direita 0900mm 220 / 380V c/ VF – mão Direita 1000mm 220 / 380V c/ VF – mão Direita 1100mm 220 / 380V c/ VF – mão Direita 1200mm 220 / 380V c/ VF – mão Direita 1300mm 220 / 380V c/ VF – mão Direita 1400mm 220 / 380V c/ VF – mão Direita 1500mm 220 / 380V c/ VF – mão Direita 1600mm 220 / 380V c/ VF – mão Direita P100016 P100017 P100018 P100019 P100020 P100021 P100022 P100023 P100024 P100025 0700mm 220 / 380V c/ VF – mão Esquerda 0800mm 220 / 380V c/ VF – mão Esquerda 0900mm 220 / 380V c/ VF – mão Esquerda 1000mm 220 / 380V c/ VF – mão Esquerda 1100mm 220 / 380V c/ VF – mão Esquerda 1200mm 220 / 380V c/ VF – mão Esquerda 1300mm 220 / 380V c/ VF – mão Esquerda 1400mm 220 / 380V c/ VF – mão Esquerda 1500mm 220 / 380V c/ VF – mão Esquerda 1600mm 220 / 380V c/ VF – mão Esquerda Obs.: Com dispositivo de acionamento de rampa mecânica através do cabo de aço • Desenhos e Dimensões pag. 56 e 57
  • 55.
    P100205 P100074 P100075 P100076 P100077 P100078 OPERADOR DE PORTADE CABINE CENTRAL 2 FOLHAS P100206 P100079 P100080 P100081 P100082 P100083 P100084 P100085 P100086 P100087 P100088 P100089 P100090 55 O 0700mm 220 / 380V c/ VF 0800mm 220 / 380V c/ VF 0900mm 220 / 380V c/ VF 1000mm 220 / 380V c/ VF 1100mm 220 / 380V c/ VF 1200mm 220 / 380V c/ VF 0700mm 220 / 380V c/ VF 0800mm 220 / 380V c/ VF 0900mm 220 / 380V c/ VF 1000mm 220 / 380V c/ VF 1100mm 220 / 380V c/ VF 1200mm 220 / 380V c/ VF 1300mm 220 / 380V c/ VF 1400mm 220 / 380V c/ VF 1500mm 220 / 380V c/ VF 1600mm 220 / 380V c/ VF 1800mm 220 / 380V c/ VF 2000mm 220 / 380V c/ VF 2600mm 220 / 380V c/ VF • Desenho e dimensões pag. 56 e 57 OPERADOR DE PORTA DE CABINE CENTRAL 4 FOLHAS OPERADOR DE PORTA DE CABINE CENTRAL 6 FOLHAS • Operadores de porta especiais são fabricados sob medida
  • 56.
    56 OPERADOR DE PORTADE CABINA O AL A B 700 1030 1090 800 1180 1210 900 1330 1375 1000 1470 1470 1100 1600 1600 1200 1700 1720 S 1000 1000 1450 1450 1450 1450 AL A B C 700 1400 1450 1480 800 1600 1650 1654 900 1760 1850 1854 1000 1910 2004 2050 1100 2060 2154 2250 1200 2210 2304 2450 S 1000 1000 1450 1450 1450 1450 OPERADOR DE PORTA DE CABINA, ABERTURA LATERAL, 2 FOLHAS OPERADOR DE PORTA DE CABINA, ABERTURA CENTRAL, 2 FOLHAS
  • 57.
    57 O OPERADOR PADRÃO ALFA- MEDIDAS MONTAGEM MEDIDA PADRÃO ALFA 2320mm 2000mm 2300mm 2458mm 2475mm 800 mm
  • 58.
  • 59.
  • 60.
  • 61.
  • 62.
  • 63.
  • 64.
    64 LIGAÇÃO DO OPERADORALFA VF QUADRO DE COMANDO VF O LIGAÇÃO - OPERADOR ALFA VF COM CAPACITOR (MONOFÁSICO) LIGAÇÃO - OPERADOR ALFA VF QUADRO DE COMANDO NÃO VF PARÂMETROS QUE FORAM ALTERADOS
  • 65.
    65 P M1ME008 M1ME019 M1ME005 M1ME017 PAINEL CI INFERIORPARA ANTENA PAINEL CI MÉDIO PARA ANTENA PAINEL CONJUNTO DE TEMPO PAINEL PARA BOTÃO MX ALFA M1ME007 M1ME018 M1ME004 M1ME016 L1SC004 N100063 N100073 RX modelo 632 RX modelo 633 TX modelo 632 TX modelo 633 RX modelo 632 RX modelo 633 TX modelo 632 TX modelo 633 Conjunto de tempo eletrônico pequeno sem relé Verde com diodo + resistência 470R quadro Simpac / Eletem / Addtech Verde com diodo + resistência 4K7 Servelev M1ME006 M1ME015 M1ME003 M1ME014 PAINEL CI SUPERIOR PARA ANTENA RX modelo 632 RX modelo 633 TX modelo 632 TX modelo 633 PAINEL PARA BOTÃO MX ALFA L100174 MX ALFA sem iluminação 1NA / 1 NF
  • 66.
    66 N100055 N100071 N100069 N100075 N100066 N100068 N100064 N100060 N100059 N100077 N100062 N100079 N100056 N100058 N100031 N100070 N100038 N100074 N100037 N100065 N100067 N100061 N100033 N100076 N100034 N100078 N100032 N100057 N100035 N100072 PAINEL PARA BOTÃOMX ALFA L1LI001 L1LI002 L1LI004 PALHETA PARA SELETOR P Verde 10K / 90V / GC - Verde 12K / 130V / chamada separada da iluminação Verde 12K / 90V / GC+ Verde 12K / 130V / GC+ série 300 cabina Verde 1K5 / 24V / chamada separada da iluminação Verde 1K5 / 24V / GC- / Miconic / Elevatec Verde 1k5 / 24 / GC+ Verde 470R / 12V / chamada separada da iluminação Verde 470R / 12V / GC+ Verde 4K7 / 50 / 75V / GC - Verde 4K7 / 50 / 75V / GC+ Verde 4K7 / 50 / 75V / GC+ / série 300 cabina Verde com diodo para quadro microprocessado Verde com diodo para quadro microprocessado Duplex Vermelho 10K / 90V / GC - Vermelho 12K / 130V / chamada separada da iluminação Vermelho 12K / 130V / GC+ Vermelho 12K / 130V / GC+ série 300 cabina Vermelho 1K5 / 24V / GC+ Vermelho 1K5 / 24V / chamada separada da iluminação Vermelho 1K5 / 24V GC- / Miconic / Elevatec Vermelho 470R / 12V / chamada separada da iluminação Vermelho 470R / 12V / GC+ Vermelho 4K7 / 50 / 75V / GC - Vermelho 4K7 / 50 / 75V / GC+ Vermelho 4K7 / 50 / 75V / GC+ / série 300 cabina Vermelho com diodo para quadro microprocessado Vermelho com diodo para quadro microprocessado duplex Vermelho com diodo + resistência 470R quadro Simpac / Eletem / Addtech Vermelho com diodo + resistência 4K7 Servelev Palheta grande para seletor lift Palheta pequena para seletor lift Palheta mini para seletor lift
  • 67.
    J100056 PALHETA COM PRATA PARAFUSOUNIÃO PARAFUSO ANTI- VANDALISMO C100171 C100172 C100625 C100508 C101118 C100539 C100624 C100529 C100675 C100654 67 P Palheta com prata para miolo de trinco EV 3/16¨x 1¨ metalizado 3/16¨x 1.3/4¨ para puxador 3/16¨ x 1¨ latão cabeça oval 3/16¨ x 1¨ niquelado cabeça redonda 3/16¨ x 1¨ niquelado cabeça oval 3/16¨ x 1.1/2¨ niquelado cabeça oval 3/16¨ x 2.1/2¨ niquelado cabeça oval 5/32¨ x 5/8¨ niquelado cabeça oval M4 x 12mm niquelado cabeça redonda M5 x 35mm niquelado cabeça oval I100214 I100213 I100212 PANTALHA PARA SELETOR Pantalha pequena (2 por parada) Pantalha média (4 por parada até 90 m/min) Pantalha grande (4 por parada acima 90 m/min) • Kit completo: J100604 kit pendural / J100171 suporte p/ fonte / H103955 corda nylon / I100214 + I100213 + I100212 • Cabeça oval – com pescoço escareado • Cabeça redonda – sem pescoço, sem escareadosem escarear e sem pescoço cabeça redonda escareado com pescoço cabeça oval
  • 68.
    68 H102410 PASTILHA BRAILLE H103283 PASTILHA BRAILLE PastilhaBraille 50 x 30mm - reta (foto) Pastilha Braille 65 x 35mm - arredondada PASTILHA BRAILLE H101667 PASTILHA BRAILLE M1AV001 PESADOR DE CARGA P Pastilha Braille 70 x 35mm para batente • Instalar 2 por andar, 1 no batente direito outra no batente esquerdo, na altura da linha de centro do botão do pavimento, mínimo 900mm e no máximo 1100mm Em aço inox 23,7 x 28,3mm - reta H104839 H105797 Pastilha preta gravação Braille 25 x 30mm Limitador de carga eletrônico H101374 PESO PARA TENSOR Peso para tensor INOX INOX INOX
  • 69.
    L100009 PICK-UP DE PARADA PLACAU 307 PLACA EM ACRÍLICO H101314 H100272 H100273 H100274 H100275 H100276 H100277 H100278 H100279 H100280 H100281 H100282 H100283 H100284 H100285 H100286 H100287 69 P Pick-up de parada sem mola Placa U 307 Ø 65mm indicadora de andar 1 Ø 65mm indicadora de andar 2 Ø 65mm indicadora de andar 3 Ø 65mm indicadora de andar 4 Ø 65mm indicadora de andar 5 Ø 65mm indicadora de andar 6 Ø 65mm indicadora de andar 7 Ø 65mm indicadora de andar 8 Ø 65mm indicadora de andar 9 Ø 65mm indicadora de andar S Ø 65mm indicadora de andar T Ø 65mm indicadora de andar 10 Ø 65mm indicadora de andar 11 Ø 65mm indicadora de andar 12 Ø 65mm indicadora de andar 13 Ø 65mm indicadora de andar 14 H101542 PITÃO PARA ACOLCHOADO Pitão para acolchoado • Fixar com rebite pop H100288 H100289 H100290 H100291 H100292 H100293 H100294 H100295 H100296 H100297 H100298 H100299 H100300 H101532 H100811 H101127 H101267 H101268 H101269 H101270 H101271 H101272 H101529 H101530 H101531 Ø 54mm indicadora de andar 15 Ø 65mm indicadora de andar 16 Ø 65mm indicadora de andar 17 Ø 65mm indicadora de andar 18 Ø 65mm indicadora de andar 19 Ø 65mm indicadora de andar 20 Ø 65mm indicadora de andar S1 Ø 65mm indicadora de andar S2 Ø 65mm indicadora de andar S3 Ø 65mm indicadora de andar S4 Ø 65mm indicadora de andar S5 Ø 65mm indicadora de andar S6 Ø 65mm indicadora de andar SS Ø 65mm indicadora de andar PG Ø 65mm indicadora de andar G Ø 65mm indicadora de andar 0 Ø 65mm indicadora de andar SL Ø 65mm indicadora de andar C Ø 65mm indicadora de andar P Ø 65mm indicadora de andar -1 Ø 65mm indicadora de andar -2 Ø 65mm indicadora de andar -3 Ø 65mm indicadora de andar G1 Ø 65mm indicadora de andar G2 Ø 65mm indicadora de andar G3
  • 70.
    70 H100873 PLACA ADESIVA H102234 H100769 H100770 H100771 H100772 H100773 H100774 H100775 H100776 PLACA ADESIVAINFORMATIVA H103942 PLACA ADESIVA DE POLIESTER H100767 PLACA ADESIVA SERVIÇO P Para porta pantográfica - dimensão 105 x 155mm Lotação 04 passageiros / proibido fumar Lotação 05 passageiros / proibido fumar Lotação 06 passageiros / proibido fumar Lotação 07 passageiros / proibido fumar Lotação 08 passageiros / proibido fumar Lotação 09 passageiros / proibido fumar Lotação 10 passageiros / proibido fumar Lotação 11 passageiros / proibido fumar Lotação 12 passageiros / proibido fumar • Dimensão 105 x 155mm Prata 130 x 140mm ¨seta sobe e desce¨ Indica rotação do motor Placa adesiva ¨serviço¨ - dimensão 50 x 230mm H100768 PLACA ADESIVA SOCIAL Placa adesiva ¨social¨ - dimensão 50 x 230mm
  • 71.
    H103943 PLACA ADESIVA DEVINIL PLACA ALUMÍNIO 150 X 180 mm H101644 71 P 400 X 35mm ¨atenção cuidado com o contra peso¨ Aviso aos passageiros H104695 H104696 H104697 H104698 H104699 PLACA ALUMÍNIO ¨ATENÇÃO...” 500kg 600kg 1000kg 2000kg 3000kg H100940 H100939 H100264 PLACA DE PVC PLACA DE PVC 240 x 160mm H103945 Elevador em manutenção (foto) Elevador em reforma Elevador em revisão Perigo máquina do elevador acesso proibido H103944 PLACA DE PVC 310 x 220mm Perigo mantenha-se distante da área do contra peso Placa alumínio 290 x 130mm ¨Atenção Carga Máxima Proibido o transporte de passageiros Aplicação: Para elevador de carga
  • 72.
    72 H103946 PLACA DE PVC240 x 160mm H103947 PLACA DE PVC 310 x 220mm Atenção utilize a escada de acesso ao poço PLACA DE PVC 310 x 180mm H103949 PLACA DE PVC 240 x 160mm H104216 PLACA EM VINIL 120 x 120mm P Perigo caixa do elevador acesso proibido Atenção antes de acessar o poço teste a chave PAP H103948 Atenção perigo de queda feche o alçapão Deficiente físico I100665 PLACA CENTRAL MX Gerenciamento até 04 elevadores AL 2500 em conjunto
  • 73.
    I100626 PLACA DE COMANDO PLACAESTAÇÃO PARA BOTOEIRA H105920 73 P Placa de comando AL 2500 Placa estação de botoeira I100592 I100593 PLACA DE COMANDO Placa de comando AL 2000 simplex Placa de comando AL 2000 duplex I100754 PLACA PARA CHAVEAMENTO PLACA DE COMANDO PARA PLATAFORMA H106368 De chamadas para Duplex Placa de comando para plataforma e montacarga 2 paradas • até 2CV - Elétrica ou Hidráulica I100666 PLACA DUAL OMD 85 – PLACA PRINCIPAL Para reposição DUAL / OMEGA II / INFOLEV
  • 74.
    74 I100598 I100729 PLACA FIF MONITORAMENTODE REDE I100600 PLACA FILTRO Módulo de filtragem de motor de porta trifásico PLACA FILTRO DE PORTA I100622 I100623 PLACA FONTE I100619 PLACA FONTE DE FREIO MOTOR P AL 2000 e AL 2500 220V - inversão de fase (FIF) AL 2000 e AL 2500 380V - inversão de fase (FIF) Módulo de filtragem para bobinas de contatores I100638 + 10V para comando AL 2000 e AL 2500 + 24V para comando AL 2000 e AL 2500 Para comando AL 2000 e AL 2500 I100627 I100628 I100594 I100618 PLACA INTERFACE PARA ACIONAMENTO IR 2500 CC IR 2500 VF IR 2000 VF IR 2000 HD • Interface de rele (IR)
  • 75.
    I100637 PLACA ILH –MULTIFUNÇÃO INTERFACE ILH PLATAFORMA HIDRÁULICA T100086 75 P Para comando AL 2000 e AL 2500 Hidráulica, com capacidade de carga de 250Kg J100410 J100411 J100412 PLACA KIT SETA – INTERFACE COM 2 RELÉ 2 Contato NA para comando AL 2000 e AL 2500 2 Contato NF para comando AL 2000 e AL 2500 1NA + 1 NF para comando AL 2000 e AL 2500 Características: Sempre hidráulica Capacidade de carga: 250kg Velocidade: 6m / min. Percurso máximo: até 2m de percurso a cabine será aberta, acima de 2m e até 4m de percurso a cabine será aberta mas a caixa devera ser enclausurada. L = LARGURA C = COMPRIMENTO O enclausuramento da cabine (caixa de corrida), quando necessário em função do desnível, deverá ser providenciada pelo comprador de acordo com as medidas estabelecidas em projeto. • Especificações nas páginas 76
  • 76.
    76 ESPECIFICAÇÕES PLATAFORMA HIDRÁULICA P DIMENSÕES USOPRINCIPAL Instalação em edifícios públicos Portas adjacentes Pessoa em cadeira de rodas c/ acompanhante Portas unilaterais Pessoa em cadeira de rodas c/ acompanhante Portas opostas Pessoa em cadeira de rodas c/ acompanhante Instalações em edifícios residenciais Portas opostas Pessoa em cadeira de rodas c/ acompanhante atrás Portas unilaterais Pessoa em cadeira de rodas c/ acompanhante atrás Portas opostas Usuário só, em pé ou em cadeira de rodas Portas unilaterais Usuário só, em pé ou em cadeira de rodas Portas opostas Usuário só, não comporta cadeira de rodas Portas unilaterais Usuário só, não comporta cadeira de rodas CABINA ÁREA ÚTIL (L x C) 1100 mm X 1400 mm 900 mm X 1400 mm 900 mm X 1400 mm 800 mm x 1600 mm 800 mm x 1600 mm 800 mm x 1250 mm 800 mm x 1250 mm 650 mm x 650 mm 650 mm x 650 mm CAIXA MÍNIMA 1400 mm X 1500 mm 1270 mm X 1500 mm 1270 mm X 1450 mm 1150 mm x 1650 mm 1150 mm x 1700 mm 1150 mm x 1300 mm 1150 mm x 1350 mm 990 mm x 700 mm 990 mm x 750 mm (L x C) ESPECIFICAÇÕES MODELO PH 50 PH 100 PH 150 PH 200 PH 250 PH 300 PH 350 PH 400 VELOCIDADE 6 m/min 6 m/min 6 m/min 6 m/min 6 m/min 6 m/min 6 m/min 6 m/min PERCURSO até 500 mm até 1000 mm até 1500 mm até 2000 mm até 2500 mm até 3000 mm até 3500 mm até 4000 mm POÇO (min.) 150 mm 150 mm 150 mm 150 mm 150 mm 150 mm 150 mm 150 mm ÚLTIMA ALTURA (min.) - - - - 2500 mm 2500 mm 2500 mm 2500 mm
  • 77.
    I100004 PLATINADO DE ENGATEDE TRINCO POLIA DE TRAÇÃO LIFT – 4 CANAIS – ½¨ J1LI012 J1LI009 J1LI010 J1LI023 77 P Platinado de engate de trinco Ø externo 540mm Ø interno 200mm Ø externo 610mm Ø interno 200mm Ø externo 510mm Ø interno 380mm Ø externo 610mm Ø interno 390mm com orelhas J1OM001 J1HA001 POLIA DE TRAÇÃO Ø externo 500mm, Ø interno 180mm 4 canais 3/8¨para máquina W 150 Ø externo 500mm, Ø interno eixo, c/ 3 canais 3/8¨ I100309 I100310 POLIA PARA OPERADOR ALFA POLIA SINCRONIZADA H101341 H101932 Eixo com chaveta, polia larga Eixo com ranhura, polia estreita 24 x L037 para taco gerador AL 8mm x 10 112Z Ø externo 283mm para taco gerador H101931 POLIA SINCRONIZADA FE 8mm x 10 x 14Z Ø externo 34mm para taco gerador
  • 78.
    78 POLIA DE TRAÇÃOCOM ENCAIXE P E A F D C B A1 A2 B1 B2 C1 C2 A - Largura da polia B - Ø diâmetro externo C - Ø encaixe D - Furo interno E - Entre furos / entre centros F - Entre furos / entre centros G - Largura cubo H - Ø diâmetro externo A1 - Largura do canal da chaveta B1 - Profundidade do canal da chaveta C1 - Ø diâmetro externo do eixo A2 - Largura do canal da chaveta B2 - Altura interna do canal da chaveta C2 - Ø diâmetro interno do furo da polia A B G HB2 A2 C2 Detalhes das ranhuras Detalhes das ranhuras POLIA DE TRAÇÃO Rasgo da chaveta (eixo/polia)
  • 79.
    H100304 H100671 PONTE RETIFICADORA MONOFÁSICA PORTADE PAVIMENTO AUTOMÁTICA CENTRAL P100111 P100112 P100202 P100124 P100125 P100126 P100127 P100128 P100207 P100113 P100114 P100115 P100116 P100117 P100118 P100119 P100120 P100121 P100208 P100129 P100130 P100131 P100132 P100133 P100134 P100135 P100136 P100137 P100138 P100122 P100123 P100139 79 P 25/02 (foto) 24/05 1100mm 2 folhas aço inox 1200mm 2 folhas aço inox 0700mm 2 folhas aço carbono 0800mm 2 folhas aço carbono 0900mm 2 folhas aço carbono 1000mm 2 folhas aço carbono 1100mm 2 folhas aço carbono 1200mm 2 folhas aço carbono 0700mm 4 folhas aço inox 0800mm 4 folhas aço inox 0900mm 4 folhas aço inox 1000mm 4 folhas aço inox 1100mm 4 folhas aço inox 1200mm 4 folhas aço inox 1300mm 4 folhas aço inox 1400mm 4 folhas aço inox 1500mm 4 folhas aço inox 1600mm 4 folhas aço inox 0700mm 4 folhas aço carbono 0800mm 4 folhas aço carbono 0900mm 4 folhas aço carbono 1000mm 4 folhas aço carbono 1100mm 4 folhas aço carbono 1200mm 4 folhas aço carbono 1300mm 4 folhas aço carbono 1400mm 4 folhas aço carbono 1500mm 4 folhas aço carbono 1600mm 4 folhas aço carbono 2000mm 6 folhas aço carbono 2000mm 6 folhas aço inox 2600mm 6 folhas aço inox 2600mm 6 folhas aço carbono H100305 H100530 H102418 H100803 PONTE RETIFICADORA TRIFÁSICA SKD 31/02 SKD 31/04 SKD 31/08 SKD 50/04 P100201 P100108 P100109 P100110 0700mm 2 folhas aço inox 0800mm 2 folhas aço inox 0900mm 2 folhas aço inox 1000mm 2 folhas aço inox
  • 80.
    80 PORTA DE PAVIMENTOAUTOMÁTICA LATERAL P P100140 P100141 P100142 P100143 P100144 P100145 P100211 P100146 P100147 P100148 P100149 P100150 P100151 P100152 P100153 P100154 P100155 P100156 P100157 P100158 P100159 P100160 P100212 P100161 P100162 P100163 P100164 P100165 P100166 P100167 P100168 P100169 Esquerda 0700mm 2 folhas aço inox Esquerda 0800mm 2 folhas aço inox Esquerda 0900mm 2 folhas aço inox Esquerda 1000mm 2 folhas aço inox Esquerda 1100mm 2 folhas aço inox Esquerda 1200mm 2 folhas aço inox Esquerda 0700mm 3 folhas aço inox Esquerda 0800mm 3 folhas aço inox Esquerda 0900mm 3 folhas aço inox Esquerda 1000mm 3 folhas aço inox Esquerda 1100mm 3 folhas aço inox Esquerda 1200mm 3 folhas aço inox Esquerda 1300mm 3 folhas aço inox Esquerda 1400mm 3 folhas aço inox Esquerda 1500mm 3 folhas aço inox Esquerda 1600mm 3 folhas aço inox Esquerda 0700mm 2 folhas aço carbono Esquerda 0800mm 2 folhas aço carbono Esquerda 0900mm 2 folhas aço carbono Esquerda 1000mm 2 folhas aço carbono Esquerda 1100mm 2 folhas aço carbono Esquerda 1200mm 2 folhas aço carbono Esquerda 0700mm 3 folhas aço carbono Esquerda 0800mm 3 folhas aço carbono Esquerda 0900mm 3 folhas aço carbono Esquerda 1000mm 3 folhas aço carbono Esquerda 1100mm 3 folhas aço carbono Esquerda 1200mm 3 folhas aço carbono Esquerda 1300mm 3 folhas aço carbono Esquerda 1400mm 3 folhas aço carbono Esquerda 1500mm 3 folhas aço carbono Esquerda 1600mm 3 folhas aço carbono P100170 P100171 P100172 P100173 P100174 P100175 P100209 P100176 P100177 P100178 P100179 P100180 P100181 P100182 P100183 P100184 P100185 P100186 P100187 P100188 P100189 P100190 P100210 P100191 P100192 P100193 P100194 P100195 P100196 P100197 P100198 P100199 Direita 0700mm 2 folhas aço inox Direita 0800mm 2 folhas aço inox Direita 0900mm 2 folhas aço inox Direita 1000mm 2 folhas aço inox Direita 1100mm 2 folhas aço inox Direita 1200mm 2 folhas aço inox Direita 0700mm 3 folhas aço inox Direita 0800mm 3 folhas aço inox Direita 0900mm 3 folhas aço inox Direita 1000mm 3 folhas aço inox Direita 1100mm 3 folhas aço inox Direita 1200mm 3 folhas aço inox Direita 1300mm 3 folhas aço inox Direita 1400mm 3 folhas aço inox Direita 1500mm 3 folhas aço inox Direita 1600mm 3 folhas aço inox Direita 0700mm 2 folhas aço carbono Direita 0800mm 2 folhas aço carbono Direita 0900mm 2 folhas aço carbono Direita 1000mm 2 folhas aço carbono Direita 1100mm 2 folhas aço carbono Direita 1200mm 2 folhas aço carbono Direita 0700mm 3 folhas aço carbono Direita 0800mm 3 folhas aço carbono Direita 0900mm 3 folhas aço carbono Direita 1000mm 3 folhas aço carbono Direita 1100mm 3 folhas aço carbono Direita 1200mm 3 folhas aço carbono Direita 1300mm 3 folhas aço carbono Direita 1400mm 3 folhas aço carbono Direita 1500mm 3 folhas aço carbono Direita 1600mm 3 folhas aço carbono * Portas especiais são fabricadas sob encomenda
  • 81.
    PORTA DE PAVIMENTO 81 P PORTADE PAVIMENTO ABERTURA CENTRAL 2 FOLHAS AL A B 700 1030 1090 800 1180 1210 900 1330 1375 1000 1470 1470 1100 1600 1600 1200 1700 1720 AL A B 700 1400 1450 800 1600 1650 900 1760 1850 1000 1910 2004 1100 2060 2154 1200 2210 2304 C 1480 1654 1854 2050 2250 2450 PORTA DE PAVIMENTO ABERTURA LATERAL 2 FOLHAS
  • 82.
    82 H100307 PORTA FUSÍVEL DEVIDRO P100204 PORTA GUILHOTINA Manual, • Para cotação informar: 1 – Quantidade de barras e altura da barra mais alta 2 – Acessórios opcionais : Soleira, barra régua, trinco e limite fim de curso • Venda sob consulta. • Fornecida apenas em aço carbono • Desenho de especificação na página de apoio para cabine ou pavimento PORTA PANTOGRÁFICA H103084 PRESILHA J100039 PUXADOR INOX P Porta fusível de vidro PF 50 Manual, para cabine ou pavimento Obs: Fabricamos sob encomenda, com medidas máximas 1m x 1m H101519 Presilha 3/16¨ para botoeira Puxador inox H101543 PUXADOR Em latão cromado para caixa de interfone 90mm 250mm 45mm
  • 83.
    J100350 J100351 J100352 J100353 J100354 J100355 J100356 J100357 QUADRO DE COMANDOALSR1 - ALSR1/M 83 Q 5HP / 220V 7,5 HP / 220V 10HP / 220V 15HP / 220V 5HP / 220V duplex 7,5HP / 220V duplex 10HP / 220V duplex 15HP / 220V duplex J100381 J100382 J100383 J100384 J100385 J100386 J100387 QUADRO DE COMANDO ALSR2 / CC 50A / 220V 75A / 220V 100A / 220V 50A / 220V duplex 75A / 220V duplex 100A / 220V duplex 140A / 220V duplex • Botões iluminados por LEDS • Sistema de detecção de falhas em trincos, contatos de porta, botões de chamadas defeituosos, viagens, etc... • Seletivo na subida e descida para até 32 pisos • Disponível na versão duplex, para controle de 2 elevadores por conjunto • Disponível para Serviço de Ascensorista • Sistema de sinalizações (Setas, IPD, Gongo, etc...) • Conjunto de até 04 carros (Sistema Multiplex) pode ser utilizado com central de monitoramento por computador • Pode ser codificado (Sistema Alfa Code) • Aceleração e desaceleração suave, sem vibrações e paradas bruscas com nivelamento perfeito J100361 J100362 J100363 J100364 J100365 J100366 J100367 J100368 5HP / 380V 7,5 HP / 380V 10HP / 380V 15HP / 380V 5HP / 380V duplex 7,5HP / 380V duplex 10HP / 380V duplex 15HP / 380V duplex • Elevadores elétricos com controle de velocidade; • Sistema de multicarros para até três elevadores MODELO ALSR1/M; • Até 24 pisos; • Até 75 m/min; • Dupla seleção em todos os pisos; • Sistema de sinalização todo serial (displays, setas, gongo e voz); • Novo conceito para estações de pavimento (chamadas, IPD) com sistema serial; • Inversores de primeira linha para acionamento do elevador; • Conjunto elétrico do elevador totalmente plugado. • Quadro de Comando :: Caixa de Inspeção :: Todos os Sinais de Poço (Portas, Limites etc.) • Fiação de Cabine (Operador de Porta, Botoeiras, Ventilador etc.) :: Iluminação da Cabine :: Estações de Pavimento OPERAÇÕES ESPECIAIS • Serviço Independente :: Operação de Bombeiro :: Sistema de Monitoramento Central • Sistema de Biometria a ser implementado em breve. J100388 J100389 J100390 J100391 J100392 J100393 J100394 50A / 380V 75A / 380V 100A / 380V 50A / 380V duplex 75A / 380V duplex 100A / 380V duplex 140A / 380V duplex
  • 84.
    84 J100369 J100370 J100371 J100372 J100373 J100374 QUADRO DE COMANDOALSR2 - ALSR2/M - ALSR6/M J100396 J100398 J100399 J100400 J100401 J100402 QUADRO DE COMANDO ALSR1/H Q 10 HP / 220V 15 HP / 220V 20 HP / 220V 10 HP / 220V duplex 15 HP / 220V duplex 20 HP / 220V duplex 8HP / 220V 12HP / 220V 15HP / 220V 20HP / 220V 25HP / 220V 30HP / 220V J100375 J100376 J100377 J100378 J100379 J100380 10 HP / 380V 15 HP / 380V 20 HP / 380V 10 HP / 380V duplex 15 HP / 380V duplex 20 HP / 380V duplex • Quadro de Comando :: Caixa de Inspeção :: Todos os Sinais de Poço (Portas, Limites etc.) • Fiação de Cabine (Operador de Porta, Botoeiras, Ventilador etc.) :: Iluminação da Cabine :: Estações de Pavimento OPERAÇÕES ESPECIAIS • Serviço Independente :: Operação de Bombeiro :: Operação c/ Ascensorista • Sistema de Monitoramento computadorizado :: Sistema de Biometria a ser implementado • Elevadores elétricos com controle de velocidade; • Sistema multicarros para até três elevadores MODELO ALSR2/M; • Sistema multicarros para até seis elevadores MODELO ALSR6/M • Até 32 pisos; • Até 180 m/min; • Dupla seleção em todos os pisos; • Sistema de sinalização todo serial (displays, setas, gongo e voz); • Novo conceito para estações de pavimento (chamadas, IPD) com sistema serial; • Inversores de primeira linha para acionamento do elevador; • Conjunto elétrico do elevador totalmente plugado. J100403 J100405 J100406 J100407 J100408 J100409 8HP / 380V 12HP / 380V 15HP / 380V 20HP / 380V 25HP / 380V 30HP / 380V • Quadro de Comando :: Caixa de Inspeção :: Todos os Sinais de Poço (Portas, Limites etc.) • Fiação de Cabine (Operador de Porta, Botoeiras, Ventilador etc.) :: Iluminação da Cabine :: Estações de Pavimento OPERAÇÕES ESPECIAIS • Serviço Independente :: Operação de Bombeiro :: Sistema de Resgate Automático por falta de Energia :: Sistema de Biometria a ser implementado em breve. • Para elevadores hidráulicos; • Até 24 pisos; • Partidas suaves; • Acionamento por Sistema de Softstart; • Sistema de Renivelamento automático; • Dupla seleção em todos os pisos; • Sistema de Sinalização todo serial (displays, setas, gongo e voz); • Novo conceito para estação de pavimento (chamadas, IPD) com sistema serial; • Conjunto elétrico do elevador totalmente plugado;
  • 85.
    J100395 QUADRO DE COMANDOCENTRAL AL 2500 85 QR Multicarros - Gerenciamento de até 4 elevadores J100609 J100624 QUADRO DE COMANDO Para plataforma hidráulica, até 2 paradas, até 2HP com Soft Start Para monta carga elétrico, até 2 paradas, até 2HP com Soft Start • Posição dos elevadores • Chamadas de subida e descida externas do grupo • Chamadas individuais internas de cabine • Destino da viagem dos elevadores • Alocação das chamadas e distribuição para os elevadores Uma eficiente ferramenta para gerenciar e monitorar os seus elevadores, com um computador podemos interferir no sistema, gerar e deletar chamadas nos elevadores, para atender situações de emergência ou particulares alterando a estratégia de funcionamento dos carros, distribuindo as chamadas externas e reduzindo o tempo de espera. H101212 H101984 H101470 H102159 H102405 H101816 H101793 H101815 H102391 H101890 H101536 RELÉ DZK 020048 MR 301110 / OP 3RC6 / 11 RUD 101024 SBMS 1500 60VCC SBMS 4RC1 / 3A / ZK 040006 TM 2RC3 / ZG 200024 TM 4RC4 / 400048 / 410048 TM 4RC66 / ZG 450125 ZG 210024 / PT 370024 MR 301110 / OP 3RC6 / 11 ZK 900166 / DZK 73005 • Venda sob consulta M1TH002 M1TH003 RELÉ FYS 94 para falta e inversão de fase soquete para relé OBS: 220V
  • 86.
    86 H101813 RELÓGIO DIGITAL Cromado 100x 250mm Cromado 100 x 500mm REQUADRO DE LATÃO H100401 H100402 H102346 RETENTOR R Relógio digital para botoeira J100250 J100251 00051 00219 00610 BR • Venda sob consulta H104279 RESISTÊNCIA DE FRENAGEM 10 OHMS x 1200W • Venda sob consulta
  • 87.
    H101948 H101822 H102119 H101949 H101935 H102241 H101752 H102335 H101830 H101934 H101834 RESISTÊNCIA TUBULAR FIXAE AJUSTÁVEL ROLAMENTO H100529 H100437 H100925 H100440 H100880 87 R 2 R x 30 Watts 750 R x 30 Watts 1,6 R x 120 Watts 1,6 R x 400 Watts 10 R x 120 Watts 12 R x 150 Watts 20 R x 150 Watts 22 R x 160 Watts 30 R x 50 Watts 30 R x 120 Watts 40 R x 50 Watts 6208 6209 6210 Z 6213 6309 ZZ H101612 H102144 H101147 H101615 H101833 H102130 H102165 H102347 H102118 H101909 300 R x 120 Watts 400 R x 30 Watts 500 R x 30 Watts 500 R x 120 Watts 514 R x 30 Watts 680 R x 50 Watts 1K5 R x 30 Watts 2K R x 30 Watts 2K R x 120 Watts 3150 R x 120 Watts • Venda sob consulta H101614 H101832 H101616 H101613 H101408 H102143 H102187 H101831 H101854 H101971 45 R x 120 Watts 50 R x 50 Watts 50 R x 120 Watts 63 R x 120 Watts 100 R x 120 Watts 120 R x 25 Watts 160 R x 120 Watts 200 R x 50 Watts 270 R x 30 Watts 270 R x 50 Watts H100464 H100879 H100874 H100465 H101499 54306 54307 54309 54406 U 54407 U • Venda sob consulta H101023 H100462 H101071 H100819 H102204 211QJ MA 51110 52309 52310 B 53176 54307 6208ZZ 6209 54406 U
  • 88.
    88 Roldana para arcada80mm • Acompanha eixo e parafuso ROLDANA PARA ARCADA 80 mm I100237 ROLDANA PARA ARCADA 150 mm J100042 ROLDANA COM ROLAMENTO 68 mm R I100236 Roldana para arcada 150mm • Acompanha eixo e parafuso Para suspensão de porta de cabina ATLAS / REAL • Externo 68mm interno 15mm H102205 ROLDANA SUPERIOR 41 mm Para operador tipo SELCON ø externo 41 mm ø interno 13 mm H102556 ROLDANA P/ TRINCO DE PORTA DE PAVIMENTO AUTOMÁTICA Roldana para trinco da porta de pavimento automática ALFA
  • 89.
    SENSOR INDUTIVO SIRENE PARALUZ DE EMERGÊNCIA I100777 I100778 H101595 89 S NA - Com suporte, 24 a 60 Volts NF - Com suporte, 24 a 60 Volts Sirene para luz de emergência H100469 SAPATILHA DE NYLON Para soleira de porta de cabina ATLAS / REAL SERVIÇOS GERAIS H300003 M.O. / usinagem / corte e dobra de chapa SIRENE PARA LUZ DE EMERGÊNCIA H102458 Sirene para luz de emergência - 6V
  • 90.
    com 2 canais,100 x 22mm com 3 canais, 137 x 22mm • Vendido por metro 90 J100652 J100651 SOLEIRA DE ALUMÍNIO REFORÇADA J100269 SOLEIRA DE ALUMÍNIO Com 2 canais, 100 x 26mm • Vendido por metro SOLEIRA DE ALUMÍNIO J100044 SOLEIRA DE ALUMÍNIO J100045 SOLEIRA DE ALUMÍNIO S Com 1 canal, 80 x 26mm • Vendido por metro J100254 Com 1 canal, 110 X 19mm • Vendido por metro Com 2 canais, 133 x 19mm • Vendido por metro J100130 SOLEIRA DE ALUMÍNIO Soleira de alumínio xadrez • Vendido por metro 16 13 51mm 26mm 26mm 1613 3313 25 46,5mm 13mm 50,5mm 19mm 15,5 13 25 13 66,5 19mm
  • 91.
    J100224 J100225 SOLEIRA DE ALUMÍNIO SOQUETEPARA LÂMPADA SUBTETO PADRÃO ALFA H100474 91 S Com 3 canais 118 x 26mm / operador de porta Com 3 canais 137 x 26mm – composta por 2 peças separadas 1 com 118mm + uma tira de complemento com 19mm, para porta de pavimento ALFA • Vendido por metro Rosca H100473 SOQUETE PARA LÂMPADA Baioneta SUBTETO J100052 De acrílico para cabina • O subteto pode ser fabricado conforme modelo de cada cliente, para cotação envie o desenho disponível na página de apoio (ou foto) e as dimensões internas livres da cabina. Abaixo sugestões de modelos de subteto 1413 13 23 23 1319 26mm modelo Teo 19 modelo Teo 34 modelo Teo 28 modelo Teo 55 Obs.: Desenho de especificação na página de apoio
  • 92.
    92 J100211 SUPORTE PARA CORREDIÇA Paracorrediça de porta SELCON rosca 1/4 ¨ (foto) Para corrediça de porta ALFA rosca 1/4 ¨ SUPORTE EXCÊNTRICO H104482 SUPORTE CONCÊNTRICO J100171 SUPORTE PARA FONTE S Da soleira do operador de porta de cabina ALFA H102468 H104495 Para corrediça de porta SUR/FERMATOR rosca 3/8¨ Suporte para fonte osciladora
  • 93.
    SUPORTE L PARAFIXAÇÃO DE GUIA SUPORTE P/ QUADRO DE COMANDO I100076 I100546 I100553 J100606 93 S Suporte em L para fixação de guia 100mm x 100mm x 3/16” Suporte em L para fixação de guia 63mm x 88mm x 3/16” Suporte em L para fixação de guia 138mm x 188mm x 3/16” (foto) Suporte para quadro de comando I100299 SUPORTE PARA CORREDIÇA SCHINDLER Suporte para corrediça Schindler + lubrificador • Não incluso corrediça, lubrificador, nem coletor de óleo SUPORTE PARA LUBRIFICADOR J1AT141 Suporte para lubrificador de guia
  • 94.
    94 H100484 SUPORTE PARA SAPATILHA J100050 TAPAVISTA Para cabo do freio de segurança Obs: Diâmetro externo da polia 220mm TENSOR SEM PESO H100498 TERMINAL ESPADA H100499 TERMINAL ESPADA ST Suporte para sapatilha de nylon Ou aba de proteção de cabine L100013 Fêmea para CI Macho para CI vão livre + 50mm 850mm 750mm 100mm
  • 95.
    C200336 C200095 TINTA ESMALTE SINTÉTICO– 3,6L TIRANTE PARA CABO DE AÇO J100174 J100175 J100183 95 T amarelo azul ATLAS Para cabo 3/8¨ com cunha sem mola Para cabo 1/2¨ com cunha sem mola Para cabo 5/8¨ com cunha sem mola • Mola vendida separadamente • Acompanham 2 clips para cabo de aço (abraçadeira) H101021 TRANSFORMADOR MONOFÁSICO H101756 H101806 TRANSFORMADOR MONOFÁSICO 500W entrada 220V saída 6/8/12/24/70/75/110 volts 50W entrada 110V saída 8/12/24 volts 50W entrada 220V saída 5/10/15 volts N100131 N100134 TIMONERIA Entre guias 1000 a 1300mm Entre guias 1305 a 1800mm Timoneria - Dispositivo articulado p/ acionar o par de cunha do freio de segurança
  • 96.
    96 M000019 M000020 TRINCO ACIONAMENTO LATERAL J100216 J100217 TRINCOPARA PORTA DE PAVIMENTO TV Direito p/ porta eixo vertical (foto) Esquerdo p/ porta eixo vertical Direito automático modelo ALFA Esquerdo automático modelo ALFA (foto) N1AT121 N1AT122 TRINCO PARA PORTA PANTOGRÁFICA TC direito TV3 TC esquerdo TV3 (foto) • Para o trinco ser completo adicionar: L1AT052 – Alavanca para trinco EV J1AT148 – Engate externo para trinco EV H101540 VENTILADOR Ventilador / exaustor para cabina 110/220V com 260mm Direito p/ porta eixo vertical (foto) Esquerdo p/ porta eixo vertical TRINCO ACIONAMENTO FRONTAL M1OM033 M1OM036
  • 97.
    VENTILADOR VISOR DE LATÃO H103719 H103720 J100249 97 V Microventiladorp/ cabina 110/220V com 140mm Grade para microventilador Cromado 100 x 250mm (medida do rasgo de porta) VISOR BRANCO – LUZ DE EMERGÊNCIA H101963 H101835 100 X 63 X 2mm 153 X 63 X 2mm VISOR DE LATÃO J100090 Cromado 100 x 500mm (medida do rasgo de porta) M1TH004 VENTILADOR Ventilador centrífugo 230 VCA / 29W Dimensão 435 x 130 x 130 mm - Ruído 48 db
  • 98.
    98 H1OT161 J100623 VISOR TRANSPARENTE 24 x19 x 2mm 40 x 24 x 2mm 100 x 70 x 2mm 180 x 70 x 2mm 100 x 70 x 2mm – Modelo novo de sobrepor 60 x 85 x 2mm - PIMR / PLA7012 / 55DD 60 x 45 x 2mm - 55D VISOR VERMELHO PARA IPD H104498 H104591 H104533 H104508 H105550 VISOR AZUL PARA IPD V Para relógio digital 60 x 30 x 2mm Para IPD LCD 126 x 70mm H101115 H101114 H102343 J100205 H105411 J100610 J100611 40 x 24 x 2mm 60 x 30 x 2mm 60 x 50 x 2mm 100 x 70 x 2mm 60 x 85 x 2mm - PIMR / PLA7012 / 55DD
  • 99.
    L1AT001 L1AT002 ALAVANCA PARA FECHADOR ANELDE ACABAMENTO BASE PARA BOTÃO H1AT149 J1AT132 99 AB Direito Esquerdo (foto) Para botão classe A Para botão classe A L1AT052 ALAVANCA PARA TRINCO Alavanca para trinco eixo vertical ARRUELA DENTADA I1AT053 Para botão classe A BOBINA N1AT037 Bobina 2440 G3 ATLAS
  • 100.
    100 N1AT035 BOBINA N1AT024 N1AT001 N1AT002 N1AT128 BOBINA Bobina 3303 G1 Bobina3303 G2 Bobina 3303 G3 Bobina 3303 G16 BOBINA N1AT031 N1AT020 BOBINA N1AT003 N1AT004 N1AT005 N1AT006 BOBINA B Bobina 2440 G16 Bobina 3038 G1 Bobina 3038 G2 Bobina 3038 G3 Bobina 3038 G5 N1AT116 N1AT039 N1AT023 N1AT032 Bobina 3303 G11 Bobina 3303 G12 Bobina 640 G1 Bobina 640 G2 Bobina 640 G3 Bobina 640 G4 N1AT008 N1AT009 BOBINA Bobina 641 G1 Bobina 641 G2 ATLAS
  • 101.
    N1AT010 N1AT011 N1AT012 N1AT013 BOBINA BOBINA BOBINA N1AT014 N1AT015 N1AT026 101 B Bobina 697 G1 Bobina697 G2 Bobina 697 G3 Bobina 697 G4 Bobina 727 G1 Bobina 727 G4 Bobina para chave 11 N1AT045 BOBINA Bobina 725 G5 BOBINA N1AT036 Bobina GR3T BOBINA J1AT154 Bobina para freio ATLAS
  • 102.
    102 J1AT157 J1AT167 J1AT159 J1AT158 BOBINA PARA FREIOA DISCO H1AT214 H1AT215 BOBINA Para operador de porta • 1 - Regulagem pelo eixo superior • 2 - O parafuso lateral determina o limite do nível de óleo, usar óleo Bardhal MA 20 ISO VG 68 ou similar BOMBA AMORTECEDORA H101093 BORRACHA AMORTECEDORA H1AT160 BORRACHA PARA CORREDIÇA B Grande 125V Grande 65V Pequena 125V Pequena 65V Para rampa magnética 125V Para rampa magnética 65V H1AT223 Para corrente do operador Para corrediça lateral 30 x 123mm • Trabalha na corrediça H1AT069 H1AT317 BORRACHA PARA CORREDIÇA Para corrediça lateral 25 x 126mm • Trabalha na corrediça H1AT316 ATLAS 2 1
  • 103.
    P1AT070 BOTÃO CLASSE A BOTÃOCLASSE A BOTÃO BL 60 P1AT068 L1AT025 103 B Com furo para led • Liso - furo central • Gravado - furo fora do centro Botão classe A simples • Gravação sempre no centro Gravado seta, com arruela P1AT071 BOTÃO CLASSE A Em inox com furo para led • Liso - furo central • Gravado - furo fora do centro BOTÃO CLASSE A P1AT069 Botão classe A simples em inox • Gravação sempre no centro BOTÃO BL 60 L1AT024 Liso, com arruela ATLAS
  • 104.
    104 H100060 BOTÃO OPERADOR H100061 BOTÃO OPERADOR Botãoretangular digital ATLAS • Não acompanha ¨painel de chamada para botão digital¨ O led sempre no centro da botoeira, na foto mostra botão esquerdo BOTÃO RETANGULAR DIGITAL H100065 H100066 BUCHA DE NYLON I100035 I100036 BUJÃO ILHÓS BC Grande para relé SR • Não acompanha rebite Pequeno para relé SR • Não acompanha rebite H1AT322 Para bomba do operador Para braço do operador Bujão ilhós Chave para bujão ilhós • Bujão e a chave são vendidos separados H1AT048 CALÇO PARA CARRETILHA Calço para carretilha ATLAS
  • 105.
    H1AT050 CAPACETE PARA BOTÃO CARVÃODUPLO METALIZADO CARVÃO PARA QUADRO ALFA H1AT226 H1AT173 105 C Capacete para botão classe A 16 X 19 X 34mm 25 x 32 x 38mm I1AT126 I1AT128 CAPACETE EM INOX P/ BOTÃO CLASSE A Liso com furo central Gravado com furo lateral CARVÃO SIMPLES METALIZADO H1AT227 16,1 x 16,1 x 19,05mm CARVÃO PARA QUADRO QV H1AT053 25,5 x 29 x 33mm ATLAS
  • 106.
    106 L1AT005 CAVALETE CENTRAL L1AT004 CAVALETE LATERAL Paraajustar relé CHAVE I100036 CHAVE J1AT113 CHAVE C Para fita seletora • Acompanha rebite Para fita seletora • Acompanha rebite J1AT034 Para bujão ilhós Para freio tenaz N1AT028 COLUNA DE COMBINAÇÃO Coluna de combinação para ASKA • Para pedido informar NA ou NF Cada coluna possui 2 contatos + palheta de acionamento (esqui) ATLAS
  • 107.
    H1AT059 H1AT337 CONTATO FIXO CONTATO MEIALUA COROA E SEM FIM L100099 J1AT096 107 C Para contato V – contato externo – (foto) para contato V – contato interno Com prata para botão BL 60 Para máquina Ii47 • Coroa e Sem Fim não são vendidos separadamente, é necessário enviar a máquina de tração para avaliação e orçamento H1AT330 CONTATO AZ Para porta ATLAS CONTATO V PARA CHAVE L1AT008 Contato V para chave CORREDIÇA DE NYLON H1AT316 17 x 23 x 140 mm lateral – externo • Trabalha com corrediça H1AT315 e borracha H1AT317 ATLAS
  • 108.
    108 H1AT308 CORREDIÇA DE NYLON H1AT069 CORREDIÇADE NYLON Para porta de cabina 2000 CORREDIÇA DE NYLON H1AT063 H1AT064 H1AT065 H1AT066 H1AT067 CORREDIÇA DE NYLON XADREZ H1AT315 H1AT068 CORREDIÇA DE NYLON CENTRAL C 30 x 37 x 163 mm para guia de 16mm 20 x 30 x 140 mm lateral – externo • Trabalha com corrediça H1AT068 e borracha H1AT160 H1AT153 30 x 50 x 250 mm para guia de 16mm 32 x 39 x 173 mm para guia de 16mm 32 x 39 x 214 mm para guia de 16mm 32 x 39 x 253 mm para guia de 16mm 32 x 50 x 130 mm para guia de 16mm 34 x 38 x 142 mm - externo 35 x 45 x 142 mm - externo H100122 H100551 CORREIA A 31 A 39 ATLAS
  • 109.
    H100562 H100123 H100124 CORREIA COXIM DE BORRACHA CUBOPARA RETENTOR H1AT204 J1AT179 109 CD B 46 B 51 B 75 Para operador de porta Do eixo da intermediária da máquina 365 J1AT009 COTOVELO DE NYLON Cotovelo de nylon para rampa CUBO PARA POLIA J1AT099 Polia de máquina 360 / 365 • Aplicado nas polias J1AT058, J1AT103 e J1AT098 • Furo paralelo chavetado DESTORCEDOR J1AT162 Para fita seletora ATLAS ATLAS
  • 110.
    110 H1AT231 DISCO DE FERRO J1000159 EIXOEXCÊNTRICO Para motor do operador de porta 150mm EIXO FREZADO J1AT129 EIXO FREZADO J1AT148 ENGATE EXTERNO DE Para freio de 240mm Com rolamento para suspensão de porta H1AT246 Para motor do operador de porta 170mm Para trinco EV (TV3) L1AT009 L1AT203 ENGRENAGEM DE BRONZE Ø externo 95mm x Ø interno 28mm x largura 12mm para motor do operador de porta Ø externo 95mm x Ø interno 80mm x largura 12mm para motor do operador de porta ATLAS
  • 111.
    H1AT321 ENGRENAGEM DE NYLON GARFODE POLIETILENO H1AT230 111 E/G Ø externo 93mm x Ø interno 52mm x largura 20mm motor do operador da porta para Para porta simultânea H1AT301 H1AT176 H1AT167 H1AT219 H1AT075 H1AT220 H1AT325 H1AT155 H1AT171 H1AT174 H1AT157 ESCOVAS ELÉTRO GRAFITES 8,8 x 32 x 44mm 9,5 x 19 x 38mm 360/365 15CV – MG 44/63 9,5 x 25 x 45mm MG 44/45/63/144 gerador 9,9 x 38,1 x 51mm MG 113 11 X 33 X 51mm MG70 11,2 x 38,1 x 44mm MG 113 12,5 x 25,4 x 38,1mm MG 32 12,7 x 25,3 x 44mm máquina I e II 47 / MG 45/70 excitador / regulador 12,7 x 31,7 x 44mm MG 70 / 83W 14,7 x 32,2 x 51mm MG70 16 x 32 x 45mm MG21 / máquina II 47 FITA SELETORA J1AT026 Estampada 0,4 x 25mm azulada GAXETA CHEVRON H1AT089 H1AT225 H1AT090 H1AT265 Ø externo 76 x Ø interno 50,8 x alt. 45mm Ø externo 90 x Ø interno 55,5 x alt. 40mm Ø externo 90 x Ø interno 58 x alt. 40mm Ø externo 90 x Ø interno 63 x alt. 12mm ATLAS
  • 112.
    112 J1AT036 GUIA DE NYLON J1AT170 KITPARA ELIMINAR RUÍDO Fina 3/32" Grossa 1/8" LÂMINA PARA CHAVE DE COMUTAÇÃO J1AT015 LÂMINA PARA CHAVE DE COMUTAÇÃO H1AT324 LÂMINA PARA CHAVE DE COMUTAÇÃO G/L Para fita seletora Eliminar ruído do freio FD 35 J1AT014 J1AT077 Para quadro QV Comando ALFA M1TU006 M1TU007 LIMITE LM 60 Contato aberto Contato fechado Obs: Vendidos separadamente M1TU036 – Suporte para limite J1AT102 – Suporte com clips para fixar limite na guia ATLAS
  • 113.
    H1AT102 LIMITE JACARÉ LIMITADOR DEVELOCIDADE – polia 300mm, canal 3/8¨ com contato elétrico M1TU052 M1TU053 113 L/M Com contato aberto Velocidade nominal 1,50 m/s – 90 m/min Velocidade nominal 1,75 m/s – 105 m/min Com cunha no canal da polia Protetor de polia 530 x 385 x 180mm (I1AT183), vendido separadamente H1AT103 LIMITE JACARÉ Com contato fechado LIMITADOR DE VELOCIDADE – polia 240mm, cabo 8mm, com contato elétrico M1NI011 M1NI012 M1NI013 M1NI010 Velocidade nominal 1,50 m/s – 90 m/min Velocidade nominal 1,75 m/s – 105 m/min Velocidade nominal 2,00 m/s – 120 m/min Velocidade nominal 2,50 m/s – 150 m/min Com cunha no canal da polia Obs: Acompanha protetor de polia com 160 x 440 x 340mm MIOLO DE TRINCO L100048 EV com contatos elétricos ATLAS
  • 114.
    114 L1AT036 MIOLO DE TRINCO J1AT149 MIOLODE TRINCO Grande para freio MOLA H101162 MOLA PARA BOTÃO H1AT109 MOLA PARA CORREDIÇA M EV com contatos elétricos Transparente (TV3) H1AT172 Classe A De cabina e contra-peso H1AT148 MOLA PARA FECHADOR Mola para fechador EV ATLAS
  • 115.
    H1AT110 MOLA PARA FREIO 115 M/N Molapara freio a disco H1AT113 MOLA PARA PICK-UP Mola para pick-up NÚCLEO COM CAPACETE L1AT192 Em inox p/ botão Classe A ATLAS NÚCLEO COM CAPACETE L1AT191 Em inox p/ botão Classe A c/ furo para led • Núcleo sem gravação o furo para led é no centro • Núcleo gravado o furo para led é fora do centro NÚCLEO COM CAPACETE L1AT190 Para botão Classe A simples MOLA PARA TRINCO H100258 Mola para trinco EV
  • 116.
    116 L1AT193 NÚCLEO COM CAPACETE H104444 H104456 PAINELDE CHAMADA P/ BOTÃO DIGITAL Led lateral com diodo Led lateral com resistência 470R Led lateral com resistência 4K7 Led lateral com resistência 10K Led lateral com resistência 12K PAINEL PARA BOTÃO CLASSE A GRAVADO L1AT048 L1AT185 L1AT187 L1AT189 L1AT200 PAINEL PARA BOTÃO CLASSE A – LISO H1AT234 PARAFUSO N/P Para botão Classe A com furo para led • Núcleo sem gravação o furo para led é no centro • Núcleo gravado o furo para led é fora do centro Painel para botão de chamada Painel para botão EM/AL L1AT049 L1AT184 L1AT186 L1AT188 L1AT199 Led central com diodo Led central com resistência 470R Led central com resistência 4K7 Led central com resistência 10K Led central com resistência 12K Para regulagem de disco de freio H1AT198 PERFIL DE BORRACHA Para porta – fino 10 x 10mm ATLAS H104444 H104456 10mm 10mm
  • 117.
    H1AT199 PERFIL DE BORRACHA 117 P Paraporta – grosso H1AT203 PERFIL DE BORRACHA Perfil de borracha largo 10 x 20mm PINO PARA TRINCO H105156 Para trinco TC ATLAS PINO ESPIGA H1AT338 Para gancho do trinco TC 46 PINO DE LATÃO H1AT237 Para fita seletora PINO DE BRONZE H1AT300 Para disco de freio 10mm 20mm
  • 118.
    118 J1AT160 J1AT161 J1AT086 J1AT142 POLIA DE DESVIO J1AT106 J1AT175 J1AT163 J1AT103 J1AT058 J1AT098 J1AT080 J1AT071 J1AT123 J1AT118 J1AT130 J1AT131 J1AT078 J1AT092 POLIADE TRAÇÃO J1AT108 J1AT143 POLIA DE TRAÇÃO H1AT285 PONTE PARA ENGATE P Ø ext. 520mm com 5 canais de 1/2¨ secundária Ø ext. 600mm com 5 canais de 1/2¨ secundária Ø ext. 415mm com 5 canais de 1/2¨ Ø ext. 650mm com 5 canais de 1/2¨ secundária Ø ext. 350mm Ø enc. 290mm, com 3 canais 3/8¨ Ø ext. 390mm Ø enc. eixo, com 3 canais 3/8¨ máq. CE 120 Ø ext. 400mm Ø enc. 7 canais 3/8¨ + freio Ø ext. 460mm Ø enc. 400, com 3 canais 3/8¨ maq. 365 Ø ext. 460mm Ø enc. 400, com 5 canais 3/8¨ maq. 365 Ø ext. 460mm Ø enc. 400, com 8 canais 3/8¨ Ø ext. 540mm Ø enc. 430, com 3 canais 1/2¨ maq. II 47 Ø ext. 540mm Ø enc. 470, com 4 canais 1/2¨ maq. II 47 Ø ext. 600mm Ø enc. 520, com 5 canais 1/2¨ + freio Ø ext. 600mm Ø enc. 532, com 5 canais 1/2¨ +1 canal p/ fita Ø ext. 630mm Ø enc. 470, com 4 canais 1/2¨ Ø ext. 720mm Ø enc. 570, com 5 canais 1/2¨ Ø ext. 820mm Ø enc. 570, com 4 canais 1/2¨ Ø ext. 820mm Ø enc. 570, com 5 canais 1/2¨ • Desenhos para especificação na próxima página Ø com 3 canais 3/8” Ø externo 410mm Ø interno 67/76 eixo cônico padrão com 4 canais 3/8” • Polia inteira, instalada no eixo cônico 67/76 chavetado externo 410mm Ø interno 67/76 eixo cônico padrão Ponte para engate de trinco (TV3) I1AT183 PROTETOR P/ POLIA - 530 x 385 x 180 mm Para limitador de velocidade ATLAS 385mm 180mm530mm
  • 119.
    119 PATLAS POLIA DE TRAÇÃOCOM ENCAIXE E A F D C B A1 A2 B1 B2 C1 C2 A - Largura da polia B - Ø diâmetro externo C - Ø encaixe D - Furo interno E - Entre furos / entre centros F - Entre furos / entre centros G - Largura cubo H - Ø diâmetro externo A1 - Largura do canal da chaveta B1 - Profundidade do canal da chaveta C1 - Ø diâmetro externo do eixo A2 - Largura do canal da chaveta B2 - Altura interna do canal da chaveta C2 - Ø diâmetro interno do furo da polia A B G HB2 A2 C2 Detalhes das ranhuras Detalhes das ranhuras POLIA DE TRAÇÃO Rasgo da chaveta (eixo/polia)
  • 120.
    120 H101252 REED SWITT L1AT013 RELÉ SRREC Para máquina II 47 • Coroa e sem fim não são vendidos separadamente, é necessário enviar a máquina de tração para avaliação e orçamento SEM FIM E COROA H1AT136 SEPARADOR H1AT137 SEPARADOR RS SM 1001 / SM 1000 Relé SR Rec • Informar combinação • A bobina é vendida separadamente J1AT095 Separador fêmea para relé Separador macho para relé H1AT264 H104479 SETA DISPLAY Seta display dupla vermelha Seta display dupla azul • Pode ser fornecida com tensão de alimentação de 12 a 130V ATLAS COMBINAÇÃO = = = = = = = = =
  • 121.
    J1AT102 SUPORTE COM CLIPS 121 ST Parafixar limite LM 60 na guia J1AT171 J1AT172 SUPORTE PARA CORREDIÇA Grande para cabina Pequeno para contra-peso (foto) TRINCO PARA PORTA EIXO VERTICAL L1AT198 L1AT197 Direito (TV3) Esquerdo (TV3) (foto) • Trabalha com alavanca L1AT052 e engate J1AT148 e são vendidos separadamente ATLAS SUPORTE PARA LIMITE M1TU036 Para limite LM 60 SUPORTE COM ROLDANA E EXCÊNTRICO L1AT007 Para suspensão de porta SUPORTE COM ROLDANA E EXCÊNTRICO N1AT114 Para suspensão de porta automática
  • 122.
    122 H104293 TRINCO PARA PORTAEIXO VERTICAL H104294 TRINCO PARA PORTA EIXO VERTICAL Para IPD 169 x 84 x 2mm VISOR FUME J100608 VISOR PUXADOR H1AT336 VISOR VERMELHO T/V Tipo TF2, direito H1AT313 Preto fosco, com vidro, para porta eixo vertical • Não fornecemos em aço inox • Rasgo na Porta 120 x 945mm Visor vermelho oval para IPD ATLAS esp. 2mm 40mm 69mm 945mm 160mm Tipo TF2, esquerdo
  • 123.
    J100162 ALAVANCA PARA FECHADOR 123 A/C FechadorDORMA com rolamento H1KO057 BOTÃO CINZA Botão cinza com 1 led 24V CONTATO DE PORTA H1KO023 Contato de porta EV AZ 07 KONE BOTÃO PRETO H1KO053 Botão preto com 3 leds 60V BOTÃO PRETO H1KO051 Botão preto com 1 led 60V BOTÃO CINZA H1KO058 Botão cinza com 3 leds 24V
  • 124.
    124 H1KO059 CONTATO DE PORTA H1KO036 H1KO035 CORPOPARA BOTÃO C/ 1 FURO P/ LED Cinza Preto CORPO PARA BOTÃO C/ 3 FUROS P/ LED H1KO040 H1KO039 CORPO PARA BOTÃO SEM FURO P/ LED H1KO032 CORREDIÇA CURVA C Automática AZ 05 Cinza Preto H1KO038 H1KO037 Cinza Preto Para porta de cabina H1KO033 H1KO087 CORREDIÇA LONGA Direita para porta de cabina (foto) Esquerda para porta de cabina KONE
  • 125.
    H1KO047 H1KO048 H1KO049 CORREDIÇA DE NYLON 125 C/I 27x 27 x 177mm para guia de 9mm 27 x 27 x 177mm para guia de 11mm 27 x 27 x 177mm para guia de 16mm H1KO073 CORREDIÇA DE NYLON Para porta KONE (bujão) IPD COMPLETO H1KO055 IPD completo 24V cinza KONE DOBRADIÇA H1KO081 Dobradiça KONE 16/1601 CORREIA H1KO003 Para operador de porta CORREDIÇA RETA H1KO031 Para porta de cabina
  • 126.
    126 H1KO052 IPD COMPLETO H1KO001 LIMITE Para operadorde porta MOLA H1KO046 H1KO045 NÚCLEO PARA BOTÃO H1KO070 H1KO071 PAINEL DE CHAMADA I/P IPD completo 60V preto Limite fim de curso ZK4 H1KO004 Gravado (foto) Liso • Utilizado com painel de chamada com micro, não funciona no painel de chamada com palheta 24V – 1 led 60V – 1 led KONE H1KO072 H1KO069 PAINEL DE CHAMADA 24V – 3 leds 60V – 3 leds
  • 127.
    L1KO001 L1KO012 L1KO013 PAINEL FONTE OSCILADORA 127 P/R 70volts NA 24 volts NA 24 volts NF L100128 PAINEL INDICADOR Painel indicador de andar REQUADRO PARA VISOR H1KO044 H1KO043 H1KO042 H1KO041 Cinza grande Preto grande Cinza pequeno Preto pequeno KONE PONTE PARA CONTATO H1KO024 Para contato de porta automática AZ 05 PONTE PARA CONTATO H1KO050 Para contato de porta EV AZ 07 POLIA DE TRAÇÃO J1KO035 J1KO037 J1KO017 Ø ext. 410mm Ø enc. eixo c/ 3 canais 3/8¨ Ø ext. 430mm Ø enc. eixo c/ 4 canais 3/8¨ Ø ext. 430mm Ø enc. eixo c/ 6 canais 3/8¨
  • 128.
    128 J1KO007 ROLDANA COM ROLAMENTO I1KO004 I1KO012 SUPORTEC/ EIXO P/ PORTA DE PAVIMENTO Direito (foto) Esquerdo TRINCO EV P/ PORTA DE PAVIMENTO R/T Para suspensão porta de cabina Ø ext. 70 mm Direito (foto) Esquerdo H1KO005 H1KO005 KONE
  • 129.
    J1OT126 J1OT129 ALAVANCA P/ FECHO(CACHORRINHO) 129 AB Direito (foto) Esquerdo J100162 ALAVANCA COM ROLAMENTO Para fechador DORMA BASE PARA CONTATO DE BOTÃO H1OT004 Para botão 21mm OTIS AMORTECEDOR DE PORTA DE PAVIMENTO H1OT002 De porta de pavimento Ak1 • A regulagem é feita pelo eixo AMORTECEDOR DE BORRACHA H1OT177 De borracha para operador de porta AMORTECEDOR DE BORRACHA H1OT172 De borracha para batente
  • 130.
    130 H1OT141 BASE PARA CONTATODE PORTA J1OT033 BASE PARA NEON De botão modelinho BASE PARA PAINEL DE CHAMADA H1OT007 BASE PARA VISOR J1OT125 BATENTE DE BORRACHA B Base para contato de porta Base para neon completa H1OT155 Do indicador de setas Para porta de pavimento Ø ext. 1.1/4¨ OTIS N1OT003 BOBINA 222 Bobina 222 CDI
  • 131.
    N1OT020 BOBINA 222 131 B Bobina 222CD2 N1OT005 N1OT019 BOBINA 222 Bobina 222 CV6 Bobina 222 Z8 BOBINA 222 N1OT018 Bobina 222 CY2 OTIS BOBINA 222 N1OT007 Bobina 222 CY1 BOBINA 222 N1OT017 Bobina 222 CX17 BOBINA 222 N1OT006 Bobina 222 CX1
  • 132.
    132 N1OT016 BOBINA 222 N1OT008 N1OT021 BOBINA 222 Bobina222 EB1 Bobina 222 EB6 BOBINA 222 L1OT074 BOTÃO MODELINHO H1OT164 BUJÃO BAIONETA BC Bobina 222 CZ1 Bobina 222 CZ2 Bobina 222 CZ6 N1OT012 N1OT029 Botão modelinho sem painel • Botão completo, liso ou gravado Não acompanha painel de chamada Bujão baioneta OTIS H1OT093 CAPACETE PARA BOTÃO Para botão modelinho
  • 133.
    H1OT038 CARVÃO P/ CHAVEDE COMUTAÇÃO 133 C 5HP 10 x 10 x 23mm H1OT039 CARVÃO P/ CHAVE DE COMUTAÇÃO 10HP 15 X 15 X 25mm CHAVETA PARA PORTA DE PAVIMENTO H102752 Chaveta para porta de pavimento OTIS CHAVE PARA DESTRAVAR TRINCO H1OT170 Chave para destravar trinco – triangular CHAVE PARA DESTRAVAR TRINCO H1OT191 Chave para destravar trinco – canoa CHAVE PARA DESTRAVAR TRINCO H1OT157 Chave para destravar trinco – articulada
  • 134.
    134 H1OT187 CONTATO DUPLO H1OT134 CONTATO DUPLO Paraporta EV – curto CONTATO PARA PORTA H1OT131 CONTATO PARA PORTA J1OT139 COROA PARA MÁQUINA C Com base para trinco EV – curto Com base para trinco EV – longo H1OT130 Para porta EV – longo Para máquina 11 BT • Coroa e Sem Fim não são vendidos separadamente, é necessário enviar a máquina de tração para avaliação e orçamento OTIS H1OT175 H1OT176 CORPO BOTÃO MODELINHO Externo Interno • Vendido sempre o casal
  • 135.
    H1OT050 CORREDIÇA DE NYLON 135 CD Paraguia de cabina e contra-peso 25 x 06 x 190mm • Trabalha sempre conjunto com 3 peças H1OT184 CORREDIÇA DE NYLON Para porta de cabina 12 x 19 x 50mm Obs.: Substitui a corrediça de Feltro DISPOSITIVO PARA REGULAGEM J1OT128 De lâmina A/B OTIS DEFLETOR PEQUENO H1OT145 Defletor pequeno DEFLETOR GRANDE H1OT142 Defletor grande CORREDIÇA DE NYLON H1OT049 Para porta de cabina 12 x 19 x 89mm
  • 136.
    136 J1OT137 DISPOSITIVO PARA DESTRAVAR H1OT151 EIXOPARA PORTA Para operador de porta ENGRENAGEM DUPLA H1OT116 H1OT119 H1OT117 H1OT055 H1OT120 H1OT152 H1OT097 ESCOVAS J1OT011 FITA SELETORA D/G Dispositivo para destravar trinco Com furo de passagem I1OT012 9,5 x 38 x 44mm MG 63/65 GA 240 P2 / 240 P6 – reta 9,5 x 38 x 44mm motor 63G/65G 240 P1 9,5 x 38 x 44mm motor 77G/89F 240 J3 9,5 x 38 x 45mm máquina 131 HT 240 P3 – chanfrada 12,7 x 38 x 45mm máquina 98G 240 F19 12,7 x 38 x 50mm canto chanfrado 12,7 x 38 x 50mm MG 71/82 GA 240 R3 Estampada 0,4 x 25mm azulada OTIS H1OT069 GUIA PARA NÚCLEO Do botão modelinho
  • 137.
    H1OT196 GRAMPO 137 G/K Para dispositivo paradestravar porta L10T001 INDICADOR DE SETAS Indicador de setas completo KIT LUBRIFICADOR DE GUIAS L1OT080 Lubrificador de guias B4 Obs: A espessura da guia é ajustável OTIS KIT LUBRIFICADOR DE GUIAS L1OT079 Lubrificador de guias B3 Obs: A espessura da guia é ajustável KIT LUBRIFICADOR DE GUIAS L1OT078 Lubrificador de guias B2 Obs: A espessura da guia é ajustável KIT LUBRIFICADOR DE GUIAS L1OT077 Lubrificador de guias B1 Obs: A espessura da guia é ajustável
  • 138.
    138 L1OT081 KIT LUBRIFICADOR DEGUIAS J1OT013 LÂMINA PARA CHAVE DE COMUTAÇÃO Polia 320mm, canal 1/4¨ou 3/8¨, com contato elétrico LIMITADOR DE VELOCIDADE H101665 MIOLO DE TRINCO K/M Lubrificador de guias B5 Obs: A espessura da guia é ajustável Para chave de comutação 10 HP Miolo de trinco antigo OTIS H1OT099 MOLA PARA BOTÃO MODELINHO Mola para botão modelinho Velocidade 0,50 m/s – 30 m/min Velocidade 0,75 m/s – 45 m/min Velocidade 1,00 m/s – 60 m/min Velocidade 1,25 m/s – 75 m/min Velocidade 1,50 m/s – 90 m/min • Para fazer pedido informar mão do limitador, conforme a foto, a roldana está à esquerda e o martelo de travamento à direita, mão direita como mostra na foto. • Veja também: Protetor de Polia para Limitador (I1OT160) L1OT085 L1OT083 L1OT082 L1OT084 L1OT086
  • 139.
    H1OT078 MOLA PARA LIMITADOR 139 M/P Molapara limitador de velocidade H1OT076 H1OT077 MOLA PARA PORTA Direita (foto) Esquerda PAINEL DE CHAMADA L1OT002 Para botão com tiristor, palheta e neon • Aplicação Seletron / Modelinho OTIS PAINEL DE CHAMADA L1OT062 Para botão 130V, com tiristor, micro e led amarelo • Aplicação Seletron / Modelinho PAINEL DE CHAMADA L1OT061 Para botão 30V ADV led vermelho • Aplicação ADV NÚCLEO COM CAPACETE J1OT146 Para botão modelinho
  • 140.
    140 L1OT012 PAINEL DE CHAMADA H1OT149 PAINELFONTE OSCILADORA Para indicador de andar com neon PAINEL PARA INDICADOR DE ANDAR L1OT003 PAINEL P3P L1OT005 PAINEL PDI P Para botão de cabina • Sem tiristor 24 Volts NA / NF 4 fios L1OT068 Painel P3P Painel PDI – indicador de andar OTIS L1OT006 PAINEL PF Painel PF
  • 141.
    L1OT007 PAINEL PFS 141 P Painel PFS L1OT004 PAINELPGC Painel PGC PAINEL PST / FR L1OT008 Painel PST / FR • Substitui o modelo PST / FR com 2 relés, para isso deixe o soquete 304 ou ST1 sem relé. OTIS PAINEL PRF L1OT011 Painel PRF PAINEL PRD L1OT075 Barra do seletor com 3 leds PAINEL PRD L100006 Barra do seletor com 2 leds
  • 142.
    142 L1OT009 PAINEL RELÉ J L1OT010 PAINELTAS Fêmea PERFIL DE BORRACHA PARA PORTA H1OT137 PERFIL DE BORRACHA PARA PORTA J1OT154 PINO PARA ENGATE DE TRINCO P Painel relé J Painel TAS H1OT136 Macho Pino para engate de trinco OTIS J1OT099 POLIA DE DESVIO Ø ext. 530mm com 4 canais 1/2¨
  • 143.
    143 POTIS POLIA DE TRAÇÃOCOM ENCAIXE E A F D C B A1 A2 B1 B2 C1 C2 A - Largura da polia B - Ø diâmetro externo C - Ø encaixe D - Furo interno E - Entre furos / entre centros F - Entre furos / entre centros G - Largura cubo H - Ø diâmetro externo A1 - Largura do canal da chaveta B1 - Profundidade do canal da chaveta C1 - Ø diâmetro externo do eixo A2 - Largura do canal da chaveta B2 - Altura interna do canal da chaveta C2 - Ø diâmetro interno do furo da polia A B G HB2 A2 C2 Detalhes das ranhuras Detalhes das ranhuras POLIA DE TRAÇÃO Rasgo da chaveta (eixo/polia)
  • 144.
    144 J1OT133 J1OT110 J1OT123 J1OT109 J1OT170 J1OT163 J1OT157 J1OT147 POLIA DE TRAÇÃO Paracontato de porta PONTE ADS I10T160 PROTETOR DE POLIA (350 x 380 x 180mm) H100731 H103832 RELÉ P/R Ø ext. 510mm Ø enc. 310mm com 4 canais 1/2¨ Ø ext. 610mm Ø enc. 412mm com 3 canais 1/2¨ Ø ext. 610mm Ø enc. 412mm com 3 canais 3/8¨ Ø ext. 610mm Ø enc. 412mm com 4 canais 1/2¨ Ø ext. 610mm Ø enc. 412mm com 4 canais 3/8¨ Ø ext. 710mm Ø enc. eixo cônico com 3 canais 3/8¨VTR Ø ext. 770mm Ø enc. 412mm com 4 canais 1/2¨ Ø ext. 770mm Ø enc. 440mm com 5 canais 1/2¨ • Desenhos para especificação na página anterior H1OT163 Do limitador de velocidade ZK 040048 / SBMS 4RC4/3A / 2800 Ohms SMB 1277 x 5800 Ohms • Venda sob consulta OTIS H1OT008 ROLDANA DE BORRACHA Para limitador de velocidade 380mm 350mm 180mm
  • 145.
    J1OT116 ROLDANA DE BORRACHA 145 RS Paratrinco de porta automática H1OT162 ROLDANA DE FERRO Com rolamento para suspensão de porta – Ø ext. 82mm SUPORTE ALTO J1OT160 Para corrediça de porta OTIS SENSOR INDUTIVO H1OT150 ICL 8 – 3 fios Marron + / Azul – / Preto sinal SEM FIM PARA MÁQUINA J10T138 Para máquina 11BT • Coroa e Sem Fim não são vendidos separadamente, é necessário enviar a máquina de tração para avaliação e orçamento ROLDANA COM ROLAMENTO J1OT016 Para suspensão de porta de cabina - Ø ext. 50mm 38mm 15mm 38mm 24 26 25mm 15mm 12mm
  • 146.
    146 J1OT161 SUPORTE BAIXO De cabinamodelinho (sem borracha) SUPORTE PARA CORREDIÇA J1OT169 SUPORTE PARA CORREDIÇA J1OT151 TELA PERFURADA ST Para corrediça de porta J1OT148 Do contra-peso modelinho Tela perfurada para visor • Somente em aço carbono com pintura eletrostática OTIS H101698 H101699 TRINCO SELETRON MODELINHO Direito (foto) Esquerdo • A ponte ADS H1OT163 é vendida separadamente Direita (foto) Esquerda SUPORTE C/ EIXO P/ PORTA DE PAVIMENTO I1OT145 I1OT149 15mm 15mm 15mm 765mm 112mm
  • 147.
    H1OT167 UNIDADE REMOTA DEMONITORAÇÃO 147 UV URM-Unidade Remota de Monitoração • Atende somente a placa LCB I e nas versões antigas da LCBII N1OT026 VISOR PARA PORTA DE PAVIMENTO Com botão e indicador de setas • Somente em aço carbono com pintura eletrostática OTIS VISOR VERMELHO P / IPD H1O2342 H10T088 60 x 50 x 2mm 60 x 30 x 2mm 668mm 145mm
  • 148.
    148 L1RE001 ALAVANCA PARA FECHADOR Máquina4 Máquina 4 – 75mm Máquina 5 BOBINA PARA FREIO N1RE011 BOBINA RA1 N1RE004 BOBINA TL2 AB Com lado reversível direito (foto) N1RE010 N1RE018 N1RE014 Para chave PAPF antiga Bobina TL 2 REAL N1RE015 BOBINA TL3 Bobina TL 3 PAPF modelo 76 Para chave de comutação CM3R BOBINA N1RE003 J1RE009
  • 149.
    N1RE012 BOBINA TL5 149 BC Bobina TL5 N1RE005 BOBINA TL 7 Bobina TL 7 – 68mm REAL BOBINA TL 8 N1RE007 Bobina TL 8 – 68mm J1RE013 J1RE014 CALHA Para máquina 3 Para máquina 4 H1RE071 CARVÃO 18 x 18 x 32mm para chave antiga CARVÃO SIMPLES H1RE072 20 x 20 x 20mm
  • 150.
    150 H1RE073 CARVÃO DUPLO 8 HP50/75 VCC base simples 8 HP 50/75 VCC base dupla (foto) 15 HP 50/75 VCC base simples 15 HP 50/75 VCC base dupla CHAVE DE COMUTAÇÃO J1RE019 CONJUNTO P1 L1RE084 CONTATO DE TRINCO C 20 x 25 x 25mm N1RE008 N1RE013 N1RE009 N1RE016 Para lâmina da chave de comutação Contato de trinco antigo REAL J1RE020 CONTATO TIPO L Curto para chave de comutação 25 x 25 x 35mm CARVÃO H1RE074
  • 151.
    J1RE021 CONTATO TIPO L 151 C Duplo,para chave de comutação J1RE022 CONTATO TIPO L Longo, para chave de comutação REAL COROA L1RE024 L1RE025 L1RE022 Para máquina 3 Para máquina 4 M 4,5 – 69Z – 2 Para máquina 5 • Coroa e Sem Fim não são vendidos separadamente, é necessário enviar a máquina de tração para avaliação e orçamento H1RE084 CORREDIÇA DE COURO Para guia 11mm – alta H1RE085 CORREDIÇA DE COURO Para guia 11mm – baixa CORREDIÇA DE NYLON H1RE206 30 x 37 x 152 mm, para guia 16mm
  • 152.
    152 H1RE207 CORREDIÇA DE NYLON 215mm para motor do operador de porta EIXO FREZADO J2RE022 EIXO DA POLIA L1RE021 ENGRENAGEM DE BRONZE C/E 30 x 37 x 210mm, para guia 16mm J1RE053 De desvio Ø 50 x 330 mm Ø externo 91mm x para motor de operador de porta Ø interno 28mm x largura 20mm REAL H1RE212 ENGRENAGEM DE NYLON Ø externo 91mm x Ø interno 28mm x largura 20mm para motor de operador de porta Ø externo de 270mm Ø externo de 180mm CUPULA DE FREIO J1RE119 J1RE105
  • 153.
    H1RE088 ESCOVA PARA SELETOR 153 E/L Escovapara seletor J1RE023 FITA SELETORA Estampada 0,4 x 25mm REAL FRONTAL DE BAQUELITE J1RE027 Para chave de comutação H100202 GARFO DE BORRACHA Para porta automática L1RE011 LÂMINA ACIONADORA DO MICRO Com braçadeira LÂMINA PARA CHAVE DE COMUTAÇÃO J100033 J100034 Para chave de comutação dupla Para chave de comutação simples
  • 154.
    154 J1RE030 LÂMINA FIXA Duplo NA/ NF LIMITE FINAL DE CURSO H1RE096 LIMITE FINAL DE CURSO H1RE098 LIMITE JACARÉ L Para chave PAPF H1RE095 Simples NA Esquerdo NA ou NF REAL H1RE097 LIMITE JACARÉ Direiro NA ou NF Para chave PAPF LÂMINA MÓVEL J1RE029
  • 155.
    L1RE095 L1RE094 L1RE093 L1RE097 L1RE096 LIMITADOR DE VELOCIDADE 155 LM Velocidade0,50 m/s – 30 m/min Velocidade 0,75 m/s – 45 m/min Velocidade 1,00 m/s – 60 m/min Velocidade 1,25 m/s – 75 m/min Velocidade 1,50 m/s – 90 m/min • Veja também: Protetor de Polia para Limitador (I1RE146) H101168 MICRO SWIT 755 / 250 para trinco REAL MOLA PARA FECHADOR H1RE100 H1RE101 Direita Esquerda (foto) H1RE198 MOLA P/ LIMITADOR DE VELOCIDADE Mola para limitador de velocidade H1RE104 MOLA PARA SUPORTE DE CORREDIÇA Para suporte de corrediça da cabina MOLA PICK-UP H1RE106 Mola pick-up Polia 290mm, canal 1/4¨ ou 3/8¨, com contato elétrico
  • 156.
    156 L1RE004 PAINEL BTS Conjunto detempo eletrônico PAINEL CONJUNTO DE TEMPO C100170 PARAFUSO J1RE034 PENTE P De chamada A SD com 2 soquetes sem reléC L1RE010 1/2¨x 2¨ cabeça sextavada rosca fina para regulagem de freio Pente CN1 REAL J1RE035 PENTE Pente CN2 De chamada A SD com 1 soquete sem reléC PAINEL BTS L1RE003
  • 157.
    J1RE036 PENTE 157 P Para bts duplocomando H1RE208 PINO DE LATÃO Para freio magnético REAL PINO DE LATÃO H1RE202 Para seletor L1RE012 PLACA DE COMANDO ACSD modulex • Não se aplica a elevadores com ascensorista • O rele é vendido separadamente J1RE100 J1RE115 J1RE113 J1RE112 J1RE106 J1RE124 J1RE125 J1RE098 J1RE126 POLIA DE TRAÇÃO Ø ext. 510mm Ø enc. 440mm 3 canais 1/2¨ Ø ext. 510mm Ø enc. 440mm 4 canais 1/2¨ Ø ext. 530mm Ø enc. 440mm 3 canais 1/2¨ Ø ext. 550mm Ø enc. 337mm 3 canais 1/2¨ Ø ext. 550mm Ø enc. 337 mm 4 canais 1/2¨ Ø ext. 600mm Ø enc. 337mm 3 canais 1/2¨ Ø ext. 600mm Ø enc. 395mm 4 canais 1/2¨ Ø ext. 610mm Ø enc. 440mm 3 canais 1/2¨ Ø ext. 650mm Ø enc. 395mm 5 canais 1/2¨ • Desenhos para especificação na próxima página
  • 158.
    158 J1RE110 J1RE116 POLIA DE DESVIO P Øext. 400mm com 3 canais 1/2¨ Ø ext. 425mm com 4 canais 1/2¨ REAL I1RE146 PROTETOR PARA POLIA (360 x 320 x 150mm) Do limitador de velocidade 360mm 320mm 150mm POLIA DE TRAÇÃO COM ENCAIXE E A F D C B A - Largura da polia B - Ø diâmetro externo C - Ø encaixe D - Furo interno E - Entre furos / entre centros F - Entre furos / entre centros Detalhes das ranhuras
  • 159.
    J1RE056 RAMPA EM INOX 159 RS Parapick-up de parada H1RE158 H1RE144 L1RE032 RELÉ 4A / 4F S8Y REALTRON SBM 1467 / ZK 900 100 SR recondicionado • Venda sob consulta REAL RESISTÊNCIA TUBULAR PARA MOTOR J1RE039 J1RE040 J1RE061 J1RE063 J1RE041 J1RE058 J1RE059 J1RE060 6/8HP / 2 velocidade 380 Volts alta 8/10HP / 1 e 2 velocidade / 220 Volts / alta 5/6HP / 1 velocidade / 220 Volts / alta 13/20HP / 2 velocidade / 220 Volts / alta 10HP / 2 velocidade / 220 Volts / baixa 6/8HP / 2 velocidade / 380 Volts / baixa 6/8HP / 2 velocidade / 220 Volts / baixa 13/20HP / 2 velocidade / 220 Volts / baixa / / L1RE089 L1RE081 L1RE023 SEM FIM PARA MÁQUINA Máquina 3 Máquina 4 Máquina 5 • Coroa e Sem Fim não são vendidos separadamente é necessário enviar a máquina de tração para avaliação e orçamento I1RE143 SUPORTE DE BORRACHA Para corrediça de cabina
  • 160.
    160 J1RE043 SUPORTE PARA CARVÃO Parafixação do micro SWIT SUPORTE DE CHAPA J1RE080 SUPORTE PARA CORREDIÇA J1RE131 SUPORTE PARA CORREDIÇA S Para carvão duplo J1RE064 De couro guia alta De couro guia baixa REAL J1RE045 SUPRESSOR DE FAÍSCA Supressor de faísca para chave Para carvão simples SUPORTE PARA CARVÃO J1RE044
  • 161.
    I1RE026 I1RE025 STOP DE BORRACHAPARA OPERADOR 161 S/V Direito (foto) Esquerdo H100478 SOQUETE CI Para relé ZK 900100 / SBMS 1467 REAL TRANÇA PARA CHAVE L1RE013 J1RE048 Para chave de comutação Para chave PAPF H101485 VIDRO TEMPERADO 120 x 160 x 4mm - para visor
  • 162.
    162 J1SC068 ALAVANCA PARA CACHIMBODE FREIO Para ditador ALAVANCA L1SC028 L1SC029 ALAVANCA PARA TRINCO EVR H1SC184 ALAVANCA PARA TRINCO EVR AB Para Cachimbo de freio – 200mm L1SC030 Direito (foto) Esquerdo Alavanca para trinco EVR SCHINDLER J1SC079 BASE PARA DITADOR Base para ditador Para cachimbo de freio – 250mm ALAVANCA PARA CACHIMBO DE FREIO J1SC299
  • 163.
    H1SC159 H1SC180 BOBINA PARA FREIOMAGNÉTICO 163 A Sapata 200mm Sapata 250mm • Aplica somente em freio ALFA H1SC010 BORRACHA DE ACOPLAMENTO Grande 40 x 45 x 20mm SCHINDLER BORRACHA DE ACOPLAMENTO H1SC011 Pequena 30 x 30 x 14mm H1SC012 BORRACHA PARA BATENTE DE PORTA Borracha para batente de porta H1SC095 BOTÃO QUADRADO – 14mm Branco, com pino BOTÃO QUADRADO – 18mm H1SC013 H1SC014 H1SC015 H1SC016 Branco, com pino Preto , com pino Verde, com pino Vermelho, com pino
  • 164.
    164 H1SC092 BOTÃO QUADRADO –14mm Preto, com pino Verde, com pino Vermelho, com pino BOTÃO REDONDO – 18mm H1SC164 BUCHA PARA BRAÇO DO OPERADOR H1SC146 BUJÃO BAIONETA AB Branco, sem pino H1SC020 H1SC021 H1SC022 Nylon Cromado SCHINDLER H1SC209 BUJÃO BAIONETA Com rosca Preto, com pino Verde, com pino Vermelho, com pino BOTÃO REDONDO – 12mm H1SC017 H1SC018 H1SC019
  • 165.
    I1SC033 CAIXA DE DESVIO 165 C Paramola TS J1SC115 CAIXA PARA PORTA DITADOR Caixa para porta dirador SCHINDLER CALHA PARA OPERADOR DE PORTA J1SC039 Operador de porta de cabina Qk2 Obs.: Cada peça possui 1500mm de comprimento J1SC002 J1SC302 J1SC303 CALHA PARA OPERADOR DE PORTA Porta de cabina QK8 – 140mm Porta de cabina QK8 – 160mm Porta de cabina QK8 – 220mm Obs.: Cada peça possui 1500mm de comprimento H1SC025 CAPACETE PARA BOTÃO Para botão quadrado CARVÃO H1SC031 10 x 20 x 20mm para demarrador 140mm 160mm 220mm
  • 166.
    166 H1SC098 CHAVE CENTRIFUGAL Para pontede disco luminoso CONTATO DE COBRE J1SC007 CONTATO FIXO H1SC123 CONTATO FIXO C Chave centrifugal JZ • Não acompanha eixo nem platinado interno J1SC021 Para chave UA Para demarrador SCHINDLER N1SC001 CONTATO KS Para trinco de ferro • Trinco antigo – caixa de ferro Chave para destravar trinco – baioneta CHAVE PARA DESTRAVAR TRINCO H1SC132
  • 167.
    H1SC185 CONTATO KS 167 C Para trincoEVR • Trinco moderno – caixa de chapa H1SC035 CONTATO KV Preto, para trinco de ferro • 4 contatos SCHINDLER CONTATO KV H1SC034 Transparente • 4 contatos J1SC010 CONTATO MÓVEL Para chave UA J1SC097 COROA PARA MÁQUINA Coroa para máquina W54K • Coroa e Sem Fim não são vendidos separadamente, é necessário enviar a máquina de tração para avaliação e orçamento CORREDIÇA DE NYLON H1SC101 H1SC042 28 x 37 x 260mm para guia de 9mm 30 x 37 x 260mm para guia de 16mm
  • 168.
    168 H1SC041 H1SC114 H1SC040 CORREDIÇA DE NYLON 14mm 11mm CORREDIÇADE NYLON PARA PORTA H1AT327 CORREDIÇA DE NYLON PARA PORTA J1SC282 J1SC283 CORREDIÇA PARA PORTA C 30 x 38 x 120 para guia de 9mm 30 x 35 x 120 para guia de 11mm 30 x 35 x 120 para guia de 16mm H1SC178 H1SC179 Modelo MICONIC 11mm 14mm SCHINDLER H1SC046 CORREIA FINA Correia fina para operador • 4 PJ 1025 32 x 26 x 260mm para guia de 11 mm – baixa CORREDIÇA DE NYLON H1SC099
  • 169.
    H1SC045 CORREIA LARGA 169 CD Correia largapara operador • 10 PJ 1025 J1SC094 CORRENTE PARA MOLA Corrente para mola TS SCHINDLER COTOVELO DE NYLON PARA RAMPA H1SC048 Direito sem pino J1SC071 CÚPULA DE FREIO Para sapata de 200mm H1SC151 DISCO LUMINOSO Disco luminoso completo DISPOSITIVO PARA SACAR H1SC155 Dispositivo para sacar JZ
  • 170.
    170 H1SC052 DITADOR Dobradiça SCH DOBRADIÇA L1SC005 FERRAGEM H1SC136 H1SC135 FREIO MAGNÉTICOBINDER 80VCC D/F Ditador H1SC199 Para contato KS Para sapata 200mm Para sapata 250mm • A sapata existente deve ser reaproveitada • * A sapata não acompanha o produto SCHINDLER H1SC054 FRONTAL DE BAQUELITE Para chave UA Dobradiça paulista DOBRADIÇA H100635
  • 171.
    J1SC075 GABARITO 171 G/L Para regular carvãodo demarrador H1SC056 GUIA DE NYLON Alta, para botão quadrado SCHINDLER GUIA DE NYLON H1SC055 Baixa, para botão quadrado H1SC160 LÂMINA PARA CHAVE Para chave RJ 12 grande J1SC038 LÂMINA PARA CHAVE Para chave RJ 12 pequena LÂMPADA TORPEDO H100235 H100577 12 Volts x 5 Watts 24 Volts x 5 Watts
  • 172.
    172 L1SC310 L1SC308 L1SC309 L1SC311 L1SC307 LIMITADOR DE VELOCIDADE Compé, com pino passante curto Sem pé, com pino passante curto • Não acompanha base de ferro nem alavanca com roldana LIMITE EOG PARA FIM DE CURSO L1SC022 L1SC021 LIMITE EOG PARA FIM DE CURSO L1SC016 LIMITE EOG L Velocidade nominal 0,50 m/s – 30 m/min Velocidade nominal 0,75 m/s – 45 m/min Velocidade nominal 1,00 m/s – 60 m/min Velocidade nominal 1,25 m/s – 75 m/min Velocidade nominal 1,50 m/s – 90 m/min • Veja também: Protetor para Polia do Limitador, vendido separadamente (I100225) L1SC023 L1SC024 Com pé, com pino passante longo Sem pé, com pino passante longo Com pé, com pino e com roldana SCHINDLER L1SC006 LIMITE EOG Com pé, com pino e sem roldana Sem pé, com pino e com roldana LIMITE EOG L1SC007 polia 290mm, canal ou 3/8¨ com contato elétrico1/4¨
  • 173.
    L1SC009 LIMITE EOG 173 LM Sem pé,com pino e sem roldana L1SC304 LIMITE EOG Sem pé, com trava Obs: Destravamento manual, ideal para limitador de velocidade SCHINDLER MICRO SWIT H101159 Para botão MX H1SC158 H1SC172 MOLA PARA PORTA Direita (foto) Esquerda MOLA PARA PORTA ESCOVA H1SC062 Mola para porta escova
  • 174.
    174 H1SC060 MOLA PARA FREIO Molapara limitador de velocidade MOLA P/ LIMITADOR DE VELOCIDADE H1SC068 MOLA PICK-UP H1SC064 MOLA PARA RAMPA M Mola para freio BS H1SC122 Mola pick-up Pequena SCHINDLER H1SC063 MOLA PARA RAMPA Grande Mola para garfo de porta MOLA PARA GARFO H1SC103
  • 175.
    H1SC065 MOLA PARA SAPATADE FREIO 175 M/P Mola para sapata de freio H1SC066 MOLA PARA TIRANTE DA PORTA Mola tirante da porta de cabina QK8 SCHINDLER MOLA TS H1SC061 Mola TS L1SC296 MOTA TS Com corrente, tirante e parafuso H1SC059 MOLA PARA FEIXE Mola para feixe BS • Conjunto composto por 6 lâminas PAINEL RCB L1SC002 Conjunto de tempo eletrônico grande, sem relé
  • 176.
    176 H1SC070 H1SC071 H1SC072 PASTILHA PARA SETA Paradisco luminoso PINO DE LATÃO J1SC074 J1SC062 J1SC103 J1SC093 J1SC102 J1SC100 J1SC070 J1SC082 J1SC122 J1SC057 J1SC065 J1SC108 J1SC284 J1SC280 J1SC265 POLIA DE TRAÇÃO P Branca Verde Vermelha H1SC137 Ø ext. 450mm Ø enc. eixo, com 4 canais 3/8¨ Ø ext. 510mm Ø enc. 370mm, com 4 canais 1/2¨ (foto1) Ø ext. 530mm Ø enc. eixo, com 3 canais 1/2¨ (foto2) Ø ext. 530mm Ø enc. eixo, com 4 canais 1/2¨ (foto2) Ø ext. 530mm Ø enc. eixo, com 4 canais 3/8¨ (foto2) Ø ext. 530mm Ø enc. eixo, com 6 canais 1/2¨ (foto2) Ø ext. 560mm Ø enc. 370mm, com 4 canais 1/2¨ (foto1) Ø ext. 590mm Ø enc. eixo, com 4 canais 1/2¨ (foto2) Ø ext. 620mm Ø enc. 370mm, com 4 canais 5/8¨ (foto1) Ø ext. 620mm Ø enc. 370mm, com 6 canais 1/2¨ (foto1) Ø ext. 630mm Ø enc. eixo, com 4 canais 1/2¨ (foto2) Ø ext. 670mm Ø enc. 370mm, com 4 canais 1/2¨ (foto1) Ø ext. 710mm Ø enc. 370mm, com 4 canais 1/2¨ (foto1) Ø ext. 820mm Ø enc. 370mm, com 6 canais 5/8¨ (foto3) Ø ext. 910mm Ø enc. 370mm, com 6 canais 5/8¨ (foto3) • Desenhos para especificação na próxima página SCHINDLER Perfil de borracha para porta PERFIL DE BORRACHA H1SC100 1 2 3
  • 177.
    177 PSCHINDLER POLIA DE TRAÇÃOCOM ENCAIXE E A F D C B A1 A2 B1 B2 C1 C2 A - Largura da polia B - Ø diâmetro externo C - Ø encaixe D - Furo interno E - Entre furos / entre centros F - Entre furos / entre centros G - Largura cubo H - Ø diâmetro externo A1 - Largura do canal da chaveta B1 - Profundidade do canal da chaveta C1 - Ø diâmetro externo do eixo A2 - Largura do canal da chaveta B2 - Altura interna do canal da chaveta C2 - Ø diâmetro interno do furo da polia A B G HB2 A2 C2 Detalhes das ranhuras Detalhes das ranhuras POLIA DE TRAÇÃO Rasgo da chaveta (eixo/polia)
  • 178.
    178 J1SC109 POLIA DE DESVIO Paradisco luminoso PONTE DE CONTATO H1SC075 PONTE PARA CONTATO P Ø ext. 400mm com 5 canais 1/2¨ H1SC085 Para contato KS SCHINDLER KTC para porta de cabina PONTE DE CONTATO L1SC020 Para demarrador PORTA ESCOVA I100225 PROTETOR PARA POLIA (430 x 320 x 180mm) H1SC076 Do limitador de velocidade 430mm 180mm320mm
  • 179.
    H1SC157 REED SWIT 179 R GRJ parasensor de parada • 3 fios (Geral / NA / NF) H100323 RELÉ SBMS 2RC4/3A p/ conjunto de tempo • Venda sob consulta SCHINDLER REQUADRO CROMADO H1SC079 300 x 70mm para visor xadrez J1SC022 ROLDANA DE NYLON COM ROLAMENTO Ø externo 40mm para suspensão de porta de cabina J1SC023 ROLDANA DE NYLON C/ ROLAMENTO Ø externo 54mm para suspensão de porta de cabina ROLDANA DE NYLON C/ ROLAMENTO J1SC024 Ø externo 74mm para suspensão de porta de cabina
  • 180.
    180 J1SC056 ROLDANA DE BORRACHAC/ ROLAMENTO Para máquina W54K • Coroa e Sem Fim não são vendidos separadamente, é necessário enviar a máquina de tração para avaliação e orçamento SEM FIM PARA MÁQUINA J1SC264 J1SC263 J1SC262 J1SC267 SETA DISPLAY VERMELHA RS Para limitador de velocidade J1SC098 6 Volts 12 Volts 24 Volts 110 Volts SCHINDLER Para garfo QKS6 ROLDANA PARA GARFO H102266 Para limite EOG SUPORTE DE CHAPA J1SC091 J1SC105 SUPORTE PARA CORREDIÇA J1SC066 Suporte para corrediça GD Suporte para corrediça GD / mancal L1SC015 SUSPENSÃO PARA PORTA DE CABINA Suspensão para porta de cabina • Roldana J1SC024 com 74mm
  • 181.
    L1SC011 SUSPENSÃO PARA PORTADE CABINA 181 ST QK 8, com roldana externa L1SC012 SUSPENSÃO PARA PORTA DE CABINA QK 8, com roldana interna SCHINDLER SUSPENSÃO PARA PORTA DE CABINA L1SC013 QK 8, com roldana interna, com pino L1SC014 SUSPENSÃO PARA PORTA DE CABINA QK 8, com roldana, reto L1SC305 SUSPENSÃO PARA PORTA DE CABINA QK 8, com roldana, reto, com pino TIRANTE PARA CACHIMBO DO FREIO J1SC278 J1SC277 270mm 330mm
  • 182.
    182 J1SC037 TIRANTE PARA RAMPA TrincoEVR – lado reversível • A mesma peça se aplica na porta mão direita e na porta da mão esquerda TRINCO EVR J1SC030 TUBO ISOLANTE T/V QKS 8 770mm H1SC183 De celeron, para demarrador, com 200mm cada peça SCHINDLER Para porta escova do demarrador TRANÇA DUPLA J1SC028 43 x 29 x 2mm / 43 x 29 x 4mm VISOR VERMELHO PARA IPD H1SC089 VISOR XADREZ J100203 Visor xadrez 300 x 70mm
  • 183.
    J1SU107 J1SU127 ALAVANCA PEQUENA P/FECHADOR 183 AB Direita (foto) Esquerda J1SU076 BOBINA PARA CHAVE De comutação SUR BOBINA PARA FREIO DE MÁQUINA N1SU004 Bobina para freio de máquina N1SU005 N1SU001 BOBINA PARA FREIO DE OPERADOR 110 Volts 60 Volts J1SU121 J1SU119 BORRACHA DE ACOPLAMENTO Com eixo 25 x 65 mm Com eixo 40 x 85 mm BORRACHA DE ACOPLAMENTO H1SU103 Ø ext. 40 x Ø int. 21 x 45 mm altura
  • 184.
    184 L1SU165 L1SU164 BOTÃO 17 x 19x 28 mm CARVÃO H1SU122 CHAVE BC Quadrado 31mm Redondo 28mm H1SU009 Para destravar trinco (canoa) SUR Redondo 28mm e quadrado 31mm CAPACETE PARA BOTÃO H1SU003 Para fechador de piso CHAVETA H1SU070 CHAVETA H1SU102 Para porta de pavimento
  • 185.
    H1SU091 H1SU092 CORREDIÇA DE NYLON 185 C/F 27x 31 x 100 para guia 9mm 33 x 32 x 100 para guia 16mm H1SU094 H1SU095 H1SU096 CORREDIÇA DE NYLON 21 x 06 x 120 central 24 x 06 x 120 lateral 28 x 06 x 120 central • O conjunto é formado por 3 peças: 2 laterais + 1 central SUR CORREDIÇA DE NYLON H1SU089 H1SU090 34 x 49 x 208 para guia 16mm 28 x 37 x 158 para guia 11mm H1SU126 ENGATE EXTERNO Para trinco H1SU120 H1SU121 FECHADOR AÉREO PARA PORTA Direito (foto) Esquerdo FECHADOR DE PISO PARA PORTA H1SU118 H1SU119 Direito (foto) Esquerdo
  • 186.
    186 J1SU001 LÂMINA PARA CHAVEDE COMUTAÇÃO Do trinco capelinha seta PLATINADO DO ENGATE J1SU068 J1SU077 J1SU122 J1SU081 J1SU109 J1SU096 POLIA DE TRAÇÃO L/P Para chave de comutação 10 HP H1SU108 Ø ext. 500 x Ø enc. 390mm, 3 canais Ø ext. 500 x Ø enc. 390mm, 4 canais 1/2¨ Ø ext. 550 x Ø enc. 390mm, 4 canais 1/2¨ Ø ext. 600 x Ø enc. 390mm, 4 canais 1/2¨ Ø ext. 800 x Ø enc. 370mm, 5 canais 1/2¨ Ø ext. 540 x Ø enc. 450mm, 4 canais 1/2¨, interno com orelhas • Desenhos para especificação na próxima página 1/2¨ SUR Núcleo com capacete para botão NÚCLEO COM CAPACETE J1SU106 J1SU068 J1SU077 J1SU081 J1SU122 J1SU096
  • 187.
    187 PRSUR H1SU030 H1SU026 H101987 RELÉ RA 400060 /TM 4RC5 400615 610024 • Venda sob consulta ROLDANA DE BORRACHA H1SU106 Com bucha, ext. 54 x 20 x 44 mm POLIA DE TRAÇÃO COM ENCAIXE E A F D C B Detalhes das ranhuras A - Largura da polia B - Ø diâmetro externo C - Ø encaixe D - Furo interno E - Entre furos / entre centros F - Entre furos / entre centros
  • 188.
    188 J1SU118 ROLDANA DE BORRACHA Øexterno 75mm, para suspensão de porta • Não acompanha eixo ROLDANA COM ROLAMENTO H1SU062 SAPATILHA DE NYLON RS Ø externo 41 x Ø interno 19 x comprimento 39 mm, para trinco de porta automática • Com bucha I1SU022 Para corrediça de porta SUR Ø externo 70mm para suspensão de porta • Não acompanha eixo ROLDANA COM ROLAMENTO H1SU097 Seta display SETA DISPLAY H1SU051 Suporte para sapatilha SUPORTE PARA SAPATILHA H1SU110 30 41 19 26,5 39
  • 189.
    J100102 J100612 TAMPA EM INOXP/ FECHADOR DE PISO 189 T Esquerdo (foto) Direito J1SU070 TIRANTE PARA PORTA Com cabo de aço • Fabricado sob encomenda, necessário fornecer desenho ou peça de amostra SUR TRINCO EV DIREITO H104414 Trinco EV direito H104413 TRINCO EV ESQUERDO Trinco EV esquerdo
  • 190.
  • 191.
  • 192.
  • 193.
    193 APOIO COTAÇÃO DE ESPELHOPARA IPDCOTAÇÃO DE ELEVADOR COMPLETO - PASSAGEIROS Quantidade: Instalação: Instalado Só equipamento sem instalação Tipo de elevador: Passageiro Comercial Passageiro Residencial Maca Acionamento: Elétrico Hidráulico Velocidade: Elétrico: 30m/min - 0,50m/s 45m/min - 0,75m/s 60m/min - 1m/s 75m/min - 1,25m/s 90m/min - 1,5m/s 105m/min - 1,75m/s 120m/min - 2m/s 150m/min - 2,5m/s Hidráulico: 30m/min - 0,50m/s Casa de máquinas: Elétrico sem casa de máquina Elétrico com casa de máquina superior Hidráulico com casa de máquina inferior Hidráulico com casa de máquina superior Dimensões em metros da caixa de poço: frente m x m profundidade Percurso (Distância em metros do piso da 1ª parada inferior ao piso da última parada superior): Última altura: (Distância em metros entre piso da última parada a base inferior da laje da casa de máquina) Profundidade em metros do poço de molas: Altura em metros da casa da máquina: Capacidade de carga: 300Kg/4pass 450Kg/6pass 600Kg/8pass 750Kg/10pass 975Kg/13pass/Maca 1575Kg/21pass/Maca Leito Outra / Porta de pavimento automática – acabamento: Aço inox Pintura eletrostática Vidro com moldura em inox Quantidade de paradas: Quantidade de portas: Obs.: Para entrada oposta, a quantidade de portas pode ser diferente da quantidade de paradas. Cabina - Acabamento: Aço inox Pintura eletrostática 1 lateral panorâmica 2 laterais panorâmicas Entrada na cabina: Unilateral Tml - Todas mesmo lado Opostas Adjacentes Cabina será padrão Alfa, com corrimão, rodapé, subteto, botoeira tipo totem com dobras laterais com botões luminosos e piso rebaixado para granito. Equipamentos conforme NBR NM 207, NBR NM 267 e NBR NM 313 para passageiros e conforme NBR 14712 para maca. • Para elevador comercial o ideal é ter acionamento elétrico, pois o elevador hidráulico tem limite de 40 partidas/hora. * Dimensões e características básicas, consulte página 21, 22, 23, 24, 25 e 26. __________ __ ___ ____________ ____________________________________________________________________________ _____ ___ Solicitante/Empresa: Contato: Telefone: e-mail: Endereço da Obra: Cidade / Estado:
  • 194.
    APOIO 194 COTAÇÃO DE ELEVADORCOMPLETO - CARGUEIRO Quantidade: Instalação: Instalado Só equipamento sem instalação Elevador Cargueiro: Acionamento: Elétrico Hidráulico Velocidade: 30m/min - 0,5m/s Outra / Casa de máquinas: Elétrico com casa de máquina superior Hidráulico com casa de máquina inferior Hidráulico com casa de máquina superior Dimensões em metros da caixa de poço: frente: m x m profundidade Percurso (Distância em metros do piso da 1ª parada inferior ao piso da última parada superior): Última altura: (Distância em metros entre piso da última parada a base inferior da laje da casa de máquina) Profundidade em metros do poço de molas: Altura em metros da casa da máquina: Capacidade de carga: 1000Kg/Cargueiro Outra / Porta de pavimento – Manual, tipo pantográfica, em pintura Quantidade de paradas: Quantidade de portas: Obs.: Para entrada oposta, a quantidade de portas pode ser diferente da quantidade de paradas. Cabina - Acabamento: Aço inox Pintura eletrostática Entrada na cabina: Unilateral Tml - Todas mesmo lado Opostas Adjacentes Cabina será padrão Alfa, sem corrimão, sem rodapé e sem subteto, botoeira tipo tradicional e piso de chapa de aço xadrez. • Exclusivo para transporte de carga. Com porta de cabine e pavimento manual, tipo pantográfica. Obs.: __________ ___ ___________ _ ____________________________________________________________________________ _______ ___ Solicitante/Empresa: Contato: Telefone: e-mail: Endereço da Obra: Cidade / Estado:
  • 195.
    195 APOIO COTAÇÃO DE ELEVADORCOMPLETO - MONTA-CARGA Quantidade Instalação: Instalado Só equipamento sem instalação Elevador Monta-carga: Acionamento - Elétrico Velocidade - 12m/min - 0,2m/s Casa de máquinas: Casa de máquina superior Casa de máquina inferior Dimensões em metros da caixa de poço: frente: m x m profundidade Percurso (Distância em metros do piso da 1ª parada inferior ao piso da última parada superior): Última altura: (Distância em metros entre piso da última parada a base inferior da laje da casa de máquina) Capacidade de carga: 50Kg 100Kg 200Kg 300Kg - máxima por norma Porta de pavimento - Manual, tipo guilhotina – acabamento: Aço inox Pintura eletrostática Quantidade de paradas: Quantidade de portas: A 900 mm dos pisos Niveladas com os pisos Obs.: Para entrada oposta, a quantidade de portas pode ser diferente da quantidade de paradas. Cabina - Acabamento: Aço inox Pintura eletrostática Entrada na cabina: Unilateral Tml - Todas mesmo lado Opostas Adjacentes • Com porta de cabina e pavimento manual, tipo guilhotina Dimensão interna livre da cabina, máximas conforme norma: 1000mm x 1000mm x 1200mm altura Obs.: : __________ __ ___ ______________ ______________ _______ ___ Solicitante/Empresa: Contato: Telefone: e-mail: Endereço da Obra: Cidade / Estado:
  • 196.
    APOIO 196 COTAÇÃO DE PLATAFORMAHIDRÁULICA PARA DEFICIENTE FÍSICO Selecione as opções desejadas, somente 1 modelo por cotação. Quantidade: Instalação: Instalado Só equipamento sem instalação Dimensões em metros da caixa de poço: frente m x m profundidade Uso principal: Edifício Público Edifício Residencial Modelo PH50 até 500mm percurso Modelo PH100 até 1000mm percurso Modelo PH150 até 1500mm percurso Modelo PH200 até 2000mm percurso Modelo PH250 até 2500mm percurso Modelo PH300 até 3000mm percurso Modelo PH350 até 3500mm percurso Modelo PH400 até 4000mm percurso Portas Opostas Portas Adjacentes Unilaterais, todas do mesmo lado *Características básicas: • Hidráulica • Acabamento aço carbono com pintura eletrostática • Velocidade 6m/min - 0,1m/s • 2 paradas • Poço mínimo 150mm Nos modelos PH250, PH300, PH350 e PH400, a cabina é aberta mas a caixa de corrida deverá ser enclausurada e executada pelo comprador. Obs.: * Dimensões e características básicas, consulte página 76. ___________________________ ___________________ ____________________ Solicitante/Empresa: Contato: Telefone: e-mail: Endereço da Obra: Cidade / Estado:
  • 197.
    197 APOIO COTAÇÃO OPERADOR EPORTA DE PAVIMENTO ABERTURA “CENTRAL” Imprescindível Informar: Vão livre útil da entrada da cabina, largura mm x mm altura Altura externa da cabina: distância da soleira ao topo externo da cabina mm • Veja desenho com dimensões nas páginas 56 e 81.
  • 198.
    APOIO 198 COTAÇÃO OPERADOR EPORTA DE PAVIMENTO ABERTURA “LATERAL” Imprescindível Informar: Vão livre útil da entrada da cabina, largura mm x mm altura Altura externa da cabina: distância da soleira ao topo externo da cabina mm • Veja desenho com dimensões nas páginas 56 e 81.
  • 199.
    199 APOIO COTAÇÃO DE PORTAPANTOGRÁFICA MATÉRIA PRIMA: AÇO CARBONO COM PINTURA EM FUNDO BASE INFORMAR QUANTIDADE DE BARRAS: BARRAS COM PUXADOR BARRAS SEM PUXADOR INFORMAR: ALTURA TOTAL DA BARRA MAIS ALTA mm VÃO LIVRE NA LARGURA mm VÃO LIVRE NA ALTURA mm DISTÂNCIA DE BATENTE A BATENTE mm ACESSÓRIOS OPCIONAIS: PUXADOR SIM NÃO SOLEIRA EM ALUMÍNIO SIM NÃO BARRA RÉGUA SIM NÃO TRINCO SIM NÃO LIMITE FIM DE CURSO SIM NÃO
  • 200.
    APOIO 200 COTAÇÃO DE QUADRODE COMANDO - FOLHA 01
  • 201.
    201 APOIO COTAÇÃO DE QUADRODE COMANDO - FOLHA 02
  • 202.
    APOIO 202 DESENHO PARA CONFECÇÃODE FIAÇÃO DE POÇO Contato do tensor: extensão com 6 metros Contato do limitador: extensão com 6 metros Casos especiais devem ser informados, por exemplo: Porta oposta, IPD na verga superior, barreira infravermelha Cliente: Referência / Obra: Fornecer comprimento do cabo de comando: Superior até o quadro de comando DISTÂNCIAS INFERIOR POÇO PISO ATÉ BOTOEIRA BOTOEIRA ATÉ TRINCO DISTÂNCIAS PISOS NOMENCLATURA
  • 203.
  • 204.
    APOIO 204 GABARITO PARA COTAÇÃODO PROTETOR DE POLIA DO LIMITADOR DE VELOCIDADE ALTURADABASE COMPR. DA BASE LARGURADABASE ASSINALAR A CONDIÇÃO DO LIMITADOR 1° INFORMAR AS MEDIDAS MÁXIMAS EXTERNAS DO LIMITADOR 2° QUANDO O LIMITADOR ESTIVER MONTADO SOBRE BASE DE CONCRETO, INFORMAR AS MEDIDAS
  • 205.
    205 APOIO GABARITO PARA COTAÇÃODO PROTETOR DE POLIA DE TRAÇÃO BASE DA MAQ. LAJE E GF Assinalar a condição da máquina: NOMENCLATURA A = ø POLIA DA MÁQUINA B = DISTÂNCIA DE CABO A CABO C = ALTURA DA BASE A FACE SUPERIOR DA POLIA D = ALTURA DA BASE DA MÁQUINA E = LARGURA DA POLIA F = ESPAÇO ENTRE A POLIA E A BASE G = ESPAÇO ENTRE A POLIA E A BASE
  • 206.
    COTAÇÃO ABERTURA- SUBTETOCENTRAL APOIO 206
  • 207.
    COTAÇÃO - SUBTETOABERTURA LATERAL 207 APOIO